- Tổng quan
- Nội dung
- Tiêu chuẩn liên quan
- Lược đồ
- Tải về
Tiêu chuẩn ngành 52TCN-CTYT 39:2005 Tiêu chuẩn thiết kế khoa cấp cứu bệnh viện đa khoa
| Số hiệu: | 52TCN-CTYT 39:2005 | Loại văn bản: | Tiêu chuẩn ngành |
| Cơ quan ban hành: | Bộ Y tế | Lĩnh vực: | Y tế-Sức khỏe , Xây dựng |
|
Ngày ban hành:
Ngày ban hành là ngày, tháng, năm văn bản được thông qua hoặc ký ban hành.
|
31/10/2005 |
Hiệu lực:
|
Đã biết
|
| Người ký: | Đang cập nhật |
Tình trạng hiệu lực:
Cho biết trạng thái hiệu lực của văn bản đang tra cứu: Chưa áp dụng, Còn hiệu lực, Hết hiệu lực, Hết hiệu lực 1 phần; Đã sửa đổi, Đính chính hay Không còn phù hợp,...
|
Đã biết
|
TÓM TẮT TIÊU CHUẨN NGÀNH 52TCN-CTYT 39:2005
Nội dung tóm tắt đang được cập nhật, Quý khách vui lòng quay lại sau!
Tải tiêu chuẩn Việt Nam 52TCN-CTYT 39:2005
KHOA CẤP CỨU, KHOA ĐIỀU TRỊ TÍCH CỰC VÀ CHỐNG ĐỘC
1.1. Tiêu chuẩn được áp dụng để lập, thẩm định dự án đầu tư xây dựng công trình, thiết kế xây dựng công trình, thiết kế xây dựng cải tạo khoa Cấp cứu, khoa Điều trị tích cực và chống độc tại bệnh viện đa khoa khu vực, bệnh viện đa khoa tỉnh và Trung ương trong phạm vi cả nước.
1.2.Có thể vận dụng khi xây dựng khoa Cấp cứu, khoa Điều trị tích cực và chống độc tại Bệnh viện của các Bộ, ngành, bệnh viện tuyến huyện và bệnh viện ngoài công lập được điều chỉnh theo từng quy mô cụ thể.
2.1. Bệnh viện đa khoa - Yêu cầu thiết kế TCVN - 4470: 1995.
2.2. Phòng cháy và chữa cháy cho nhà và công trình công cộng - Yêu cầu thiết kế TCVN - 2622: 1995.
2.3. Chiếu sáng tự nhiên trong công trình dân dụng - Tiêu chuẩn thiết kế
TCXD - 29: 1991.
2.4. Chiếu sáng nhân tạo trong công trình dân dụng TCXD - 16: 1986.
2.5. Danh mục trang thiết bị y tế bệnh viện đa khoa tuyến tỉnh ban hành kèm theo Quyết định 437/QĐ-BYT ngày 20/02/2002 của Bộ trưởng Bộ Y tế.
2.6. Quy chế bệnh viện ban hành kèm theo quyết định 1895/1997/BYT-QĐ ngày 19/9/1997 của Bộ trưởng Bộ Y tế.
3.1. Công tác Cấp cứu – Hồi sức bao gồm 2 khoa riêng biệt để thực hiện công tác Cấp cứu, cứu thương (Khoa cấp cứu); Duy trì, phục hồi và điều trị các trạng thái cấp tính (Khoa Điều trị tích cực và chống độc). Sau đây viết tắt là Khoa CC, khoa ĐTTC.
3.1.1. Khoa Cấp cứu (cấp cứu, cứu thương): Mở cửa 24/24 giờ có nhiệm vụ tiếp đón phân loại bệnh nhân nặng/nhẹ, làm các xét nghiệm theo định hướng chẩn đoán. Cấp cứu – ổn định các chức năng sống trước khi vận chuyển bệnh nhân đến các chuyên khoa hoặc bệnh viện tuyến trên trong vòng 24 đến 48 giờ đầu.
Khoa Cấp cứu gồm các bộ phận:
- Bộ phận kỹ thuật: Đón nhận phân loại, không gian cấp cứu (băng bó sơ cứu), khu vực chẩn đoán (xét nghiệm nhanh, X Quang di động), không gian làm thủ thuật can thiệp.
- Bộ phận phụ trợ: Dụng cụ - thuốc, rửa tiệt trùng, kho (sạch, bẩn), hành chính, giao ban, đào tạo, trực, nhân viên, vệ sinh/ tắm/ thay đồ, trưởng khoa.
3.1.2. Khoa Điều trị tích cực và chống độc: Có nhiệm vụ điều trị, chăm sóc tích cực và chống độc, hỗ trợ các chức năng sống bị suy yếu của các bệnh nhân thuộc nhiều chuyên khoa khác nhau bằng các thiết bị chuyên dụng hiện đại.
Khoa Điều trị tích cực và chống độc gồm các bộ phận:
- Bộ phận kỹ thuật: không gian điều trị tích cực, chống độc và trực theo dõi, không gian làm thủ thuật can thiệp, phòng chăm sóc đặc biệt.
- Bộ phận phụ trợ: sảnh đón, phòng rửa khử độc và rửa dạ dày, phòng dụng cụ thuốc, rửa tiệt trùng, kho sạch, kho bẩn, khu vực đợi của người nhà bệnh nhân, hành chính giao ban đào tạo, trực, nhân viên, vệ sinh/ tắm/ thay đồ, trưởng khoa.
3.2. Khoa cấp cứu phải có sảnh đủ rộng phòng khi cấp cứu thảm họa, đặc biệt phải có dàn tắm tập thể khi có thảm họa hóa chất.
3.3. Phải có khu vực nghiên cứu khoa học, đào tạo chuyên môn về cấp cứu, điều trị tích cực và chống độc cho tuyến dưới.
3.4. Tỷ lệ số giường của Khoa Cấp cứu và Khoa điều trị tích cực và chống độc chiếm tỷ lệ từ 5% đến 8% tổng số giường của một bệnh viện đa khoa. Trong đó số giường của Khoa CC 40%, số giường Khoa ĐTTC 60%.
3.5. Khoa CC, khoa ĐTTC bệnh viện đa khoa được tổ chức theo các quy mô số giường lưu:
- Quy mô 1: Bệnh viện đa khoa quy mô: từ 250 đến 350 giường lưu.
- Quy mô 2: Bệnh viện đa khoa quy mô: từ 400 đến 500 giường lưu.
- Quy mô 3: Bệnh viện đa khoa quy mô: trên 550 giường lưu.
3.6. Khoa CC, khoa ĐTTC được quy định thiết kế đạt tiêu chuẩn bền vững theo cấp độ của cơ sở y tế, phù hợp với tiêu chuẩn TCVN 4470: 1995.
3.7. Khoa CC, khoa ĐTTC phải đảm bảo điều kiện vệ sinh môi trường, yêu cầu vô khuẩn.
3.8. Tại tuyến Huyện, Quận Khoa CC, khoa ĐTTC được tổ chức thành khoa Cấp cứu – Hồi sức, gồm bộ phận cấp cứu và bộ phận hồi sức (điều trị tích cực và chống độc).
3.9. Tại các bệnh viện Trung ương có vai trò đầu ngành, được tổ chức thành hai khoa riêng biệt: khoa cấp cứu, khoa điều trị tích cực và chống độc.
4. YÊU CẦU VỀ DÂY CHUYỀN HOẠT ĐỘNG
Sơ đồ hoạt động Cấp cứu

Dây chuyền hoạt động của Khoa Cấp cứu, khoa Điều trị tích cực và chống độc phải đảm bảo yêu cầu sạch bẩn một chiều, thuận tiện đáp ứng tính kịp thời trong công tác cấp cứu, điều trị tích cực và chống độc; được phân chia theo hai khu vực:
4.1. Khu vực sạch: (Khu vực có yêu cầu về môi trường sạch)
- Không gian điều trị tích cực và chống độc, y tá trực theo dõi.
- Phòng thủ thuật can thiệp.
4.2. Khu vực phụ trợ:
- Sảnh, tiếp nhận phân loại bệnh nhân.
- Phòng đợi của người nhà bệnh nhân.
- Không gian tạm lưu cấp cứu.
- Phòng dụng cụ thuốc.
- Phòng rửa khử độc và rửa dạ dày.
- Phòng rửa, tiệt trùng.
- Kho sạch.
- Kho bẩn.
- Kỹ thuật phụ trợ (X.Quang, siêu âm, xét nghiệm nhanh...).
- Hành chính văn phòng (phòng bác sỹ - hộ lý, giao ban hội chẩn, đào tạo...).
- Khu vệ sinh (rửa, tắm/ thay đồ).
5.1. Sơ đồ vị trí khoa Cấp cứu, khoa điều trị tích cực và chống độc trong bệnh viện đa khoa.

5.2. Khoa Cấp cứu:
Ở tầng 1 (tầng trệt) có cổng và đường ra vào riêng, gần với khoa khám bệnh.
Liên hệ thuận tiện với khối kỹ thuật nghiệp vụ, xét nghiệm và chẩn đoán hình ảnh.
5.3. Khoa điều trị tích cực và chống độc:
Riêng biệt với khoa cấp cứu.
Kề cận với khối kỹ thuật nghiệp vụ.
Nên ở gần khoa cấp cứu để hỗ trợ khi có cấp cứu hàng loạt.
5.4. Nằm ở khu vực trung tâm bệnh viện, nơi có các điều kiện môi trường và hạ tầng kỹ thuật tốt nhất.
5.5. Thuận tiện cho việc lắp đặt, vận hành các thiết bị và gần nguồn cung cấp dụng cụ, vật tư vô trùng, cấp khí y tế, điện và cấp nước sạch.
6. YÊU CẦU VỀ GIẢI PHÁP THIẾT KẾ
6.1. Kết cấu:
Kết cấu công trình của Khoa CC, khoa ĐTTC phải đảm bảo độ bền vững (sử dụng bê tông cốt thép, khung kim loại)
6.2. Kiến trúc:
6.2.1. Tổ chức không gian: Giải pháp tổ chức không gian trong Khoa CC, khoa ĐTTC phải đảm bảo các yêu cầu:
6.2.2. Quan sát: Việc quan sát bệnh nhân được thực hiện liên tục bởi nhân viên y tế, nhân viên trực phải nhìn thấy được tất cả các giường bệnh.
6.2.3. Kiểm soát: Kiểm soát các bệnh nhân, đặc biệt là trẻ em.
Kiểm soát người nhà và khách thăm, có phương án tổ chức không gian để khách thăm quan sát qua vách kính, trao đổi với bệnh nhân qua micro.
6.2.4. Hệ thống báo gọi y tá: Các bệnh nhân nặng ở các không gian riêng biệt ngoài hệ thống báo gọi nhất thiết phải có nhân viên y tế quan sát và theo dõi 24h/ngày.
6.2.5. Phù hợp với yêu cầu lắp đặt và vận hành các thiết bị quy định tại Danh mục trang thiết bị y tế ban hành.
6.3. Các yêu cầu về kích thước, không gian:
6.3.1.Các phòng chức năng:
- Chiều cao trong phòng (từ sàn tới trần - tùy theo yêu cầu lắp đặt của thiết bị). không thấp hơn 3,0m.
- Chiều cao của tầng kỹ thuật từ trần tới hạn dưới kết cấu dầm (dành cho các hệ thống đường ống, thiết bị kỹ thuật). không thấp hơn 0,2m.
6.3.2. Cầu thang, đường dốc (nếu có):
- Chiều rộng bản thang (1 vế) không nhỏ hơn 1,8m.
- Chiều rộng chiếu nghỉ không nhỏ hơn 2,4m.
- Chiều cao của các chiếu nghỉ không thấp hơn 2,0m.
6.3.3. Kích thước (Chiều rộng x dài) buồng thang máy (cabin):
- Cho bệnh nhân không nhỏ hơn 1,1m x 2,3m.
- Cho nhân viên không nhỏ hơn 1,1m x 1,4m.
6.3.4. Hành lang:
- Chiều rộng hành lang bên không nhỏ hơn 2,4m.
- Chiều rộng hành lang giữa không nhỏ hơn 3,0m.
- Chiều cao của hành lang không thấp hơn 2,5m.
6.3.5. Cửa:
- Chiều rộng cửa ra vào có chuyển xe, giường đẩy không nhỏ hơn 1,6m.
- Chiều rộng cửa ra vào thông thường không nhỏ hơn 0,9m.
- Chiều cao của các cửa ra vào không thấp hơn 2,1m.
6.4. Yêu cầu diện tích của các hạng mục công trình
6.4.1. Khoa Cấp cứu
Diện tích sử dụng các phòng khoa cấp cứu được quy định trong bảng 1.
Bảng 1.
S T T | Tên phòng | Diện tích/Quy mô (m2) | Ghi chú | ||
Quy mô 1 250 - 350 giường | Quy mô 2 400 - 500 giường | Quy mô 3 trên 550 giường | |||
1. | Sảnh đón | 18 | 24 | 36 | Không nhỏ hơn |
2. | P. sơ cứu, phân loại | 24 | 36 | 36 | - nt - |
3. | P. Tạm lưu cấp cứu | 60 | 120 | 180 | - nt - |
4. | P. tắm rửa khử độc cho bệnh nhân | 12 | 12 | 18 | Không nhỏ hơn |
5. | P. chẩn đoán hình ảnh, xét nghiệm nhanh | 24 | 24 | 24 | Kết hợp với điều khiển |
6. | P. rửa, tiệt trùng | 12 | 18 | 24 | Không nhỏ hơn |
7. | Phòng trưởng khoa | 18 | 18 | 24 | Không nhỏ hơn |
8. | Phòng bác sỹ | 12 | 18 | 24 | Kết hợp là phòng trực |
9. | Phòng y tá, hộ lý | 12 | 18 | 24 | - nt - |
10. | P.giao ban, đào tạo | 24 | 48 | 54 | Cho 25 đến 30 CBCNV hoặc nhóm học viên |
11. | Kho sạch | 12 | 18 | 24 | Không nhỏ hơn |
12. | Kho bẩn | 9 | 18 | 27 | - nt - |
13. | Vệ sinh thay đồ | 18 | 36 | 48 | Không nhỏ hơn 1.0m2/người |
Tổng cộng diện tích | 255 | 408 | 543 |
| |
6.4.2. Khoa Điều trị tích cực và chống độc
Khoa Điều trị tích cực và chống độc có diện tích sử dụng được quy định trong Bảng 2
Bảng 2.
S T T |
Tên phòng | Diện tích/Quy mô(m2) |
Ghi chú | ||
Quy mô 1 250 - 350 giường | Quy mô 2 400 - 500 giường | Quy mô 3 trên 550 giường | |||
1. | Sảnh | 18 | 24 | 36 | Không nhỏ hơn |
2. | P. Điều trị tích cưc | 150 | 300 | 450 | Không nhỏ hơn 15m2/giường |
3. | P. làm thủ thuật | 28 | 28 | 56 | Yêu cầu như phòng mổ |
4. | Phòng máy | 12 | 24 | 36 |
|
5. | Phòng chuẩn bị | 12 | 12 | 24 | Không nhỏ hơn |
6. | Phòng rửa, tiệt trùng | 12 | 12 | 24 | - nt - |
7. | Kho sạch | 12 | 18 | 24 | - nt - |
8. | Kho bẩn | 6 | 9 | 12 | - nt - |
9. | Phòng Trưởng khoa | 18 | 18 | 24 | Không nhỏ hơn |
10. | Phòng bác sỹ | 12 | 24 | 36 | Đồng thời là phòng trực |
11. | Phòng y tá, hộ lý | 12 | 24 | 36 | - |
12. | P.giao ban, đào tạo | 36 | 48 | 56 | Không nhỏ hơn |
13. | Vệ sinh thay đồ | 24 | 48 | 56 | Không nhỏ hơn 1.0m2/người |
Tổng cộng diện tích | 352 | 589 | 870 |
| |
6.5. Diện tích Khoa CC, khoa ĐTTC theo từng quy mô của bệnh viện đa khoa quy định trong Bảng 3
Bảng 3.
STT | Khoa | Quy mô 1 từ 250 - 350 giường | Quy mô 2 từ 400 - 500 giường | Quy mô 3 trên 550 giường |
1. | Cấp cứu | 255 m2 | 408 m2 | 543 m2 |
2. | Điều trị tích cực và chống độc | 352 m2 | 589 m2 | 870 m2 |
Diện tích sử dụng | 607 m2 | 997 m2 | 1413 m2 | |
Diện tích sàn | 950 m2 | 1 500 m2 | 2 000 m2 | |
Ghi chú: (*) Diện tích sàn của khoa CC, khoa ĐTTC được tính với hệ số k = 0,65 – 0,6.
7. YÊU CẦU VỀ GIẢI PHÁP KỸ THUẬT
7.1. Chiếu sáng:
7.1.1. Khoa CC, khoa ĐTTC phải chiếu sáng đáp ứng được yêu cầu cho từng khu vực.
- Khu phụ trợ: ưu tiên chiếu sáng tự nhiên.
- Khu sạch: chiếu sáng tự nhiên kết hợp chiếu sáng nhân tạo.
7.1.2. Yêu cầu về độ rọi tối thiểu của ánh sáng được quy định trong bảng 4.
Bảng 4.
Tên phòng | Độ rọi tối thiểu (lux) | Ghi chú |
Sảnh đợi, tiếp nhận, phân loại | 140 |
|
Phòng vệ sinh, thay quần áo | 140 | Cửa sổ cao trên 1,8m |
Phòng tạm lưu cấp cứu, Phòng điều trị tích cực và chống độc | 500/250 | Điều khiển được 2 mức sáng |
Phòng làm thủ thuật can thiệp, xét nghiệm, X quang, siêu âm… | 750/300 | Điều khiển được 2 mức sáng |
Phòng rửa, khử trùng | 250 | |
Phòng hành chính, bác sỹ trưởng khoa, sinh hoạt, (bộ phận văn phòng) | 140 | |
Kho (dụng cụ, thiết bị, vật phẩm y tế và dược phẩm, đồ bẩn) | 140 | Tính toán đối với mặt phẳng thẳng đứng, cao trên 1,0m |
Hành lang, lối đi | 100 |
|
Chú thích: Độ rọi tối thiểu là lượng ánh sáng tối thiểu trên đơn vị diện tích (được tính đối với mặt phẳng ngang, cao trên 0,8m tính từ sàn).
7.2. Các yêu cầu vi khí hậu:
7.2.1. Khoa CC, khoa ĐTTC phải đảm bảo điều kiện thông gió đáp ứng yêu cầu của từng khu vực
- Khu phụ trợ ưu tiên sử dụng giải pháp thông gió tự nhiên.
- Khu sạch sử dụng giải pháp thông gió tự nhiên kết hợp với điều hoà được thiết kế theo tiêu chuẩn phòng sạch trong y tế.
7.2.2. Nhiệt độ, độ ẩm và luân chuyển không khí các phòng quy định trong Bảng 5.
Bảng 5.
Tên phòng | Nhiệt độ (°C) | Độ ẩm (%) | Số lần luân chuyển không khí/giờ | Số lượng hạt bụi³0,5mm trong 1m3 không khí |
P. Điều trị tích cực và chống độc | 21 - 24 | £70 | 10 – 15 | £3 x 106 |
P. làm kỹ thuật can thiệp, | 21 - 24 | £70 | 10 – 15 | £3 x 106 |
Phòng XN, X quang, Siêu âm | 21 - 26 | £70 | 3 – 5 |
|
7.3. Độ ồn cho phép: Từ 40dB đến 45dB vào ban ngày.
Từ 30dB đến 40dB vào ban đêm.
7.4. Yêu cầu về phòng cháy và chữa cháy.
7.4.1. Khoa CC, khoa ĐTTC được thiết kế tuân theo những quy định trong Tiêu chuẩn TCVN 2622: 1995, Tiêu chuẩn TCVN 4470: 1995.
7.4.2. Khoảng cách tối đa từ cửa đi của các phòng đến lối thoát nạn gần nhất trong Khoa CC, khoa ĐTTC được quy định tại Bảng 6.
Bảng 6.
Bậc chịu lửa | Khoảng cách tối đa cho phép (m) | |
Từ các phòng ở giữa 2 lối thoát nạn | Từ các phòng có lối ra hành lang cụt | |
I | 30 | 25 |
II | 30 | 25 |
Chú thích: Đối với các không gian rộng, hành lang dài tuỳ theo yêu cầu để bố trí cửa ngăn lửa đảm bảo an toàn.
7.5. Cấp điện
Khoa CC, khoa ĐTTC phải được cấp điện 24h/ngày đáp ứng cho yêu cầu chiếu sáng, sử dụng các thiết bị.
Hệ thống cấp điện của Khoa CC, khoa ĐTTC phải đảm bảo các yêu cầu:
- Hệ thống điện chiếu sáng phải độc lập với hệ thống điện động lực.
- Hệ thống chiếu sáng phải đảm bảo đủ yêu cầu về độ rọi tối thiểu (quy định tại mục 7.1.2. - Bảng 4).
- Hệ thống dây dẫn và thiết bị kiểm soát, cung cấp điện phải đảm bảo an toàn và phù hợp các thông số kỹ thuật của từng thiết bị.
- Hệ thống cấp điện dự phòng cung cấp cho các thiết bị y tế và chiếu sáng thời gian trì hoãn không quá 15 giây.
7.6. Cấp và thoát nước:
7.6.1. Cấp nước:
Khoa CC, khoa ĐTTC phải được cấp nước sạch vô khuẩn, liên tục trong ngày đảm bảo yêu cầu hoạt động chuyên môn.
Tại các phòng tạm lưu cấp cứu, phòng sơ cứu phân loại, phòng tắm rửa khử độc, phòng điều trị tích cực và chống độc, phòng thủ thuật can thiệp, phòng chuẩn bị phải bố trí ít nhất 01 chỗ rửa tay cho 1 phòng hoặc cho 1 giường.
7.6.2. Thoát nước:
Khoa CC, khoa ĐTTC phải có hệ thống thoát nước kín, đảm bảo vệ sinh môi trường.
7.7. Thông tin
Khoa CC, khoa ĐTTC phải có hệ thống kết nối thông tin liên lạc giữa các bộ phận, với các khoa khác trong bệnh viện và các cơ sở bên ngoài bằng hệ thống tổng đài, mạng máy tính nội bộ.
Chú thích: Trong phòng điều trị tích cực và chống độc có hệ thống các monitor, camera.
7.8. Xử lý chất thải
7.8.1. Chất thải rắn: Phải được tập trung, phân loại và chuyển tới bộ phận xử lý chung của bệnh viện tuân thủ theo quy định của quy chế quản lý chất thải y tế ban hành.
7.8.2. Nước thải: Được tập trung vào hệ thống xử lý chung của bệnh viện.
7.9. Khí y tế
Khí y tế phải được cấp từ hệ thống trung tâm.
Các phòng lưu cấp cứu, phòng điều trị tích cực và chống độc, phòng làm thủ thuật can thiệp, yêu cầu số lượng đầu cấp các loại khí y tế được quy định ở Bảng 7.
Bảng 7.
S T T | Loại khí y tế | Số đầu khí cấp/ giường | Chú thích | |
Khoa cấp cứu | Khoa Điều trị tích cực và chống độc | |||
1. | Khí (O2) | 01 | 02 | Thêm 01 đầu dự phòng |
2. | Khí nén (AIR) | 01 | 02 | nt |
3. | Khí hút (VAC) | 01 | 02 | nt |
7.10. Yêu cầu hoàn thiện công trình
7.10.1. Sàn:
- Sàn của Khoa CC, Khoa ĐTTC đảm bảo phẳng, nhẵn, không chênh cốt, không trơn trượt, chịu được hoá chất, chống thấm, có tính kháng khuẩn và không thay đổi độ cao giữa các không gian.
- Giao tuyến của sàn với tường phải đảm bảo dễ vệ sinh, chống đọng nước và không bám bụi.
7.10.2. Tường:
- Tường của Khoa CC, khoa ĐTTC phải được hoàn thiện, sử dụng vật liệu chất lượng cao đảm bảo lớp che phủ bề mặt phẳng, nhẵn, có tính kháng khuẩn.
- Tường bên trong các phòng tạm lưu cấp cứu, điều trị tích cực và chống độc, phòng làm thủ thuật can thiệp phải hoàn thiện bằng vật liệu chống thấm, chống ăn mòn hoá chất, kháng khuẩn, dễ cọ rửa từ sàn tới trần.
- Tường bên trong khu vực hành lang và các phòng có chuyển cáng, xe và giường đẩy phải gắn thanh chống va đập ở độ cao từ 0,7 đến 0,9m (tính từ sàn).
7.10.3. Trần:
- Trần bên trong phòng và hành lang của Khoa CC, khoa ĐTTC phải có bề mặt phẳng, nhẵn (không bám bụi - kháng khuẩn) bảo ôn và chống thấm.
- Trần được sơn mầu sáng, nhạt (trắng, xanh nhạt,...).
- Các phòng, hành lang phải có trần kỹ thuật lắp đặt các thiết bị (chiếu sáng, phòng cháy chữa cháy, điều hoà không khí và các thiết bị kỹ thuật).
7.10.4. Cửa đi:
- Cửa ra vào có khuôn, cánh cửa bằng vật liệu tổng hợp, nhựa tổng hợp hoặc kim loại kết hợp với kính trong hoặc mờ.
- Cửa sảnh, cửa phòng phân loại được đóng mở tự động.
- Các cửa đi chính có chuyển xe, giường đẩy bản lề mở hai chiều.
7.10.5. Cửa sổ:
Cửa sổ có khuôn, cánh cửa bằng vật liệu tổng hợp hoặc kim loại kết hợp với kính trong hoặc mờ để chiếu sáng tự nhiên, có lưới chắn côn trùng.
7.10.6. Lắp đặt thiết bị kỹ thuật:
Lắp đặt thiết bị kỹ thuật hệ thống đường ống, các đầu nối khí y tế, đèn đọc phim, box dụng cụ... phải hoàn thiện đảm bảo kỹ, mỹ thuật.
{C}{C}8. {C}{C}TỔNG HỢP CÁC YÊU CẦU KỸ THUẬT
Bảng 8.
Phòng chức năng | Khu giường bệnh | - Làm thủ thuật - Can thiệp, - Tiệt trùng | - Xét nghiệm, - X quang, siêu âm - Rửa, dụng cụ | - Khu phụ trợ, - Nơi giám sát | |||
1. Diện tích | 15m2/giường |
|
|
| |||
2. Nội thất hoàn thiện | Toàn bộ vật liệu chống mài mòn, bền vững với các chất chống lây nhiễm dễ làm sạch và khử trùng, kháng khuẩn... | ||||||
3. Sàn nhà | Phủ vật liệu cách âm/tiêu âm, chống nấm mốc, kháng khuẩn, chống tĩnh điện | Nếu ở tầng trên phòng đặt máy X-quang phải có biện pháp chống tia xạ | |||||
4. Tường | Đảm bảo phẳng, nhẵn, kháng khuẩn, sơn các mầu nhẹ nhàng | Các vật liệu chịu các hoá chất, được sử dụng tới cổ trần. | Khu ướt ốp bằng gạch men hoặc sơn epoxy | ||||
5. Trần | Bề mặt phẳng, nhẵn, có khoảng không lắp đặt hệ thống chiếu sáng, các hệ thống thiệt bị kỹ thuật | ||||||
6. Cửa | Đóng mở nhẹ nhàng, tay cửa dễ cầm, nắm, đủ rộng để vận chuyển giường, máy… | ||||||
7. Cổng kết nối phương tiện | Toàn bộ các cổng khí y tế, nguồn điện kết nối đặt cạnh giường |
|
|
| |||
8. Nhiệt độ | 21 – 24°c | 21 - 24°c | 21 – 26°c |
| |||
9. Độ ẩm | Không lớn hơn 70% |
| Không lớn hơn 70% |
| |||
10. Số lần luân chuyển không khí/giờ | 10 – 15 lần/h | 10 – 15 lần/h | 3 – 5 lần/h |
| |||
11.Số lượng đầu cấp khí y tế | 03 đầu cấp cho 3 loại | 06 đầu cấp cho 3 loại |
|
| |||
12. Ánh sáng | Độ rọi 500/250lux điều khiển ở 2 mức sáng . | Độ rọi 250 lux | Độ rọi 750/300 lux, ĐK 2 mức sáng. | Độ rọi | |||
13. Ổ cắm điện | 6 ổ/ giường loại 220V/10A | 8 ổ loại 220V/10A | 4 ổ loại 220V/10A | 2 ổ/phòng | |||
14. Hệ thống điện khẩn cấp (nguồn dự phòng) | Cung cấp cho các thiết bị y tế và chiếu sáng. thời gian trì hoãn để vận hành không quá 15 giây | ||||||
15.Công suất cổng kết nối | 1200 w/giường | 1000w. |
| 2,8 kW | |||
16. Máy sử dụng nguồn điện DC | Máy gọi y tá, máy gọi đảo chiều, đầu dây Tel | Đồng hồ,máy gọi đảo chiều, | Máy gọi đảo chiều, |
| |||
17. Nước cấp | Nước tiệt trùng cấp cho chậu rửa tay | - 02 chậu rửa cho bác sỹ - Nước tiệt trùng cấp cho chậu rửa | 01 chậu rửa/1 phòng | - 01 chậu rửa / 10 người - 01 vòi sen / 20 người | |||
18. Nước thoát | Nước thải của khu khám chữa bệnh và nước thải sinh hoạt được thu gom để xử lý trước khi thoát ra hệ thống chung. | ||||||
NỘI DUNG :
KHOA CẤP CỨU:
Quy mô 1: Mặt bằng, mặt cắt
Quy mô 2: Mặt bằng, mặt cắt
Quy mô 3: Mặt bằng, mặt cắt
KHOA ĐIỀU TRỊ TÍCH CỰC VÀ CHỐNG ĐỘC:
Quy mô 1: Mặt bằng, mặt cắt
Quy mô 2: Mặt bằng, mặt cắt
Quy mô 3: Bố cục mặt bằng
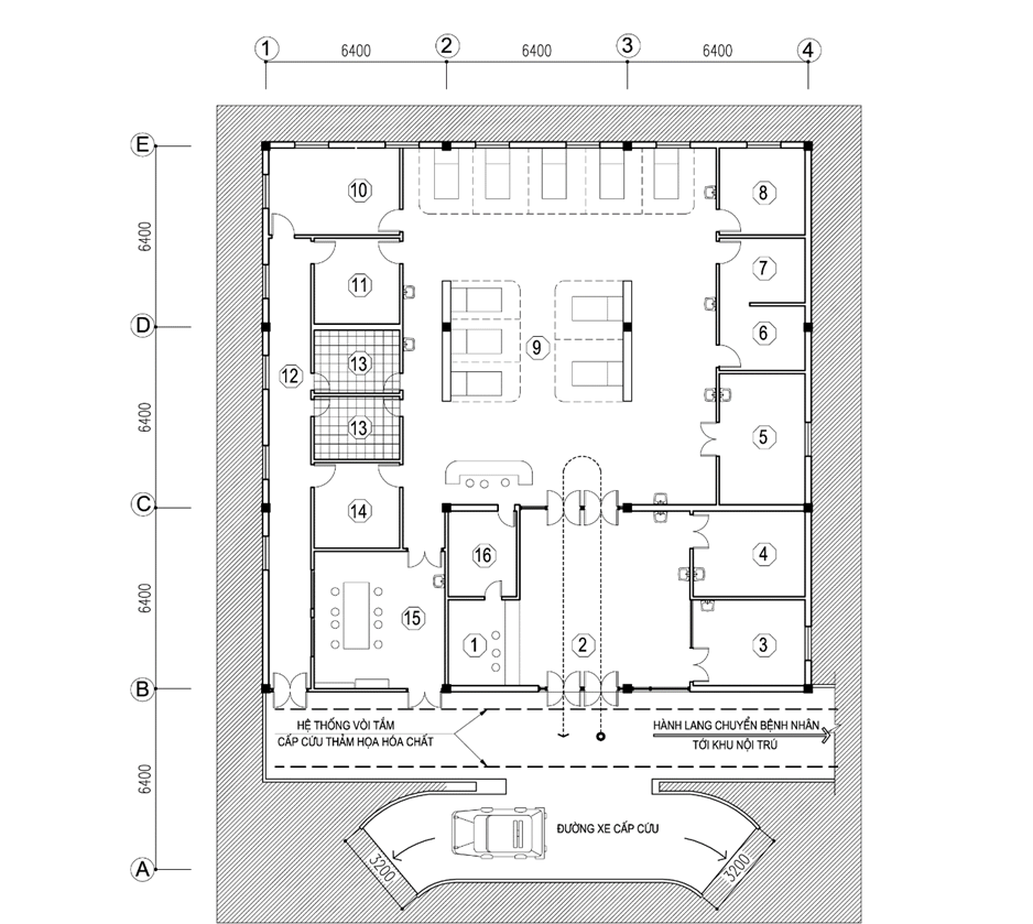
KHOA CẤP CỨU QUY MÔ 1(BVĐK từ 250 đến 350 giường)
{C}{C}
MẶT CẮT

MẶT BẰNG
1. | Trực, đón tiếp | 9. | Tạm lưu cấp cứu |
2. | Sơ cứu, phân loại | 10. | Kho bẩn |
3. | Tắm rửa, khử độc cho bệnh nhân | 11. | Bác sỹ |
4. | Xét nghiệm + chẩn đoán hình ảnh | 12. | Hành lang nhân viên |
5. | Kỹ thuật can thiệp | 13. | Thay đồ nhân viên |
6. | Rửa | 14. | Trưởng khoa |
7. | Tiệt trùng | 15. | Giao ban, đào tạo |
8. | kho sạch | 16. | Y tá, hộ lý |
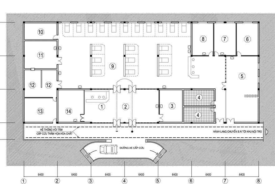
KHOA CẤP CỨU QUY MÔ 2(BVĐK từ 400 đến 500 giường)

MẶT CẮT

MẶT BẰNG
1. | Trực, đón tiếp | 8. | Y tá, hộ lý |
2. | Sơ cứu, phân loại | 9. | Tạm lưu cấp cứu |
3. | Tắm rửa khử độc cho bệnh nhân | 10. | Kho sạch |
4. | Thay đồ nhân viên | 11. | Kỹ thuật can thiệp |
5. | Giao ban, đào tạo | 12. | Rửa + Tiệt trùng |
6. | Trưởng khoa | 13. | Kho bẩn |
7. | Bác sỹ | 14. | X-Quang, Xét nghiệm nhanh |
KHOA CẤP CỨU QUY MÔ 3(BVĐK trên 550 giường)
{
MẶT CẮT

MẶT BẰNG
1. | Trực, đón tiếp | 8. | Y tá, hộ lý |
2. | Sơ cứu, phân loại | 9. | Tạm lưu cấp cứu |
3. | Tắm rửa khử độc cho bệnh nhân | 10. | Kho sạch |
4. | Thay đồ nhân viên | 11. | Kỹ thuật can thiệp |
5. | Giao ban đào tạo | 12. | Rửa + Tiệt trùng |
6. | Trưởng khoa | 13. | Kho bẩn |
7. | Bác sỹ | 14. | X-Quang, Xét nghiệm nhanh |
KHOA ĐIỀU TRỊ TÍCH CỰC VÀ CHỐNG ĐỘC
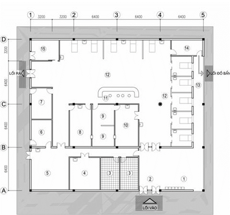
QUY MÔ 1(BVĐK từ 250 đến 350 giường)

MẶT CẮT

Mặt bằng
1. | Đợi dành cho người nhà bệnh nhân | 8. | Phòng máy, thuốc, dụng cụ |
2. | Đón tiếp, phân loại | 9. | Rửa, tiệt trùng |
3. | Thay đồ nhân viên | 10. | Kỹ thuật can thiệp |
4. | Phòng bác sỹ | 11. | Y tá trực theo dõi |
5. | Giao ban, đào tạo | 12. | Chăm sóc tích cực và chống độc |
6. | Trưởng khoa | 13. | Hành lang thăm |
7. | Kho sạch | 14. | Kho bẩn |
|
|
| 15. | Phòng chăm sóc đặc biệt |
KHOA ĐIỀU TRỊ TÍCH CỰC VÀ CHỐNG ĐỘC
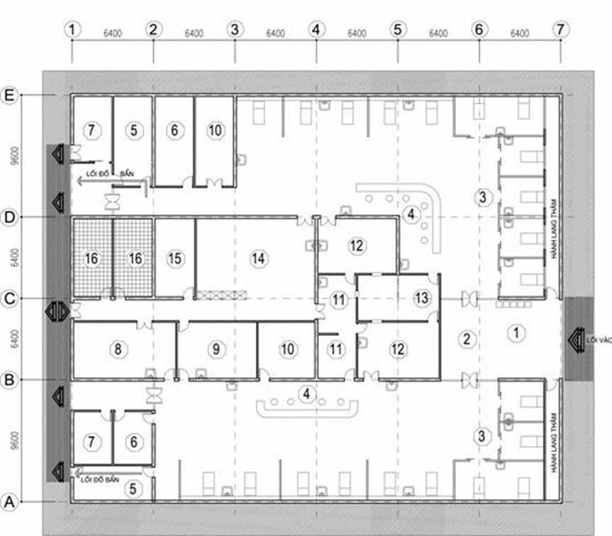
QUY MÔ 2(BVĐK từ 400 đến 500 giường)

MẶT CẮT

MẶT BẰNG
1. | Đợi dành cho người nhà bệnh nhân | 9. | Phòng bác sỹ |
2. | Đón tiếp, phân loại | 10. | Thuốc, dụng cụ |
3. | Chăm sóc tích cực và chống độc | 11. | Phòng chuẩn bị |
4. | Y tá trực theo dõi | 12. | Kỹ thuật can thiệp |
5. | Kho bẩn | 13. | Rửa, tiệt trùng |
6. | Kho sạch | 14. | Hành chính, đào tạo |
7. | Phòng chăm sóc đặc biệt | 15. | Trưởng khoa |
8. | Phòng ytá, hộ lý | 16. | Thay đồ nhân viên |
KHOA ĐIỀU TRỊ TÍCH CỰC VÀ CHỐNG ĐỘC
QUY MÔ 3(BVĐK trên 550 giường)
BỐ CỤC MẶT BẰNG

Bạn chưa Đăng nhập thành viên.
Đây là tiện ích dành cho tài khoản thành viên. Vui lòng Đăng nhập để xem chi tiết. Nếu chưa có tài khoản, vui lòng Đăng ký tại đây!