- Tổng quan
- Nội dung
- Tiêu chuẩn liên quan
- Lược đồ
- Tải về
Tiêu chuẩn ngành 52TCN-CTYT 38:2005 Tiêu chuẩn thiết kế khoa phẫu thuật bệnh viện đa khoa
| Số hiệu: | 52TCN-CTYT 38:2005 | Loại văn bản: | Tiêu chuẩn ngành |
| Cơ quan ban hành: | Đang cập nhật | Lĩnh vực: | Y tế-Sức khỏe , Xây dựng |
|
Ngày ban hành:
Ngày ban hành là ngày, tháng, năm văn bản được thông qua hoặc ký ban hành.
|
31/10/2005 |
Hiệu lực:
|
Đã biết
|
| Người ký: | Đang cập nhật |
Tình trạng hiệu lực:
Cho biết trạng thái hiệu lực của văn bản đang tra cứu: Chưa áp dụng, Còn hiệu lực, Hết hiệu lực, Hết hiệu lực 1 phần; Đã sửa đổi, Đính chính hay Không còn phù hợp,...
|
Đã biết
|
TÓM TẮT TIÊU CHUẨN NGÀNH 52TCN-CTYT 38:2005
Nội dung tóm tắt đang được cập nhật, Quý khách vui lòng quay lại sau!
Tải tiêu chuẩn Việt Nam 52TCN-CTYT 38:2005
TIÊU CHUẨN NGÀNH Y TẾ
52TCN – CTYT 38: 2005
TIÊU CHUẨN THIẾT KẾ - KHOA PHẪU THUẬT BỆNH VIỆN ĐA KHOA
1. PHẠM VI ÁP DỤNG
1.1. Tiêu chuẩn được áp dụng để lập, thẩm định dự án đầu tư xây dựng công trình, thiết kế xây dựng công trình, thiết kế xây dựng cải tạo Khoa Phẫu thuật tại bệnh viện đa khoa khu vực, bệnh viện đa khoa tỉnh và Trung ương trong phạm vi cả nước.
1.2. Có thể vận dụng khi xây dựng Khoa phẫu thuật tại bệnh viện của các Bộ, ngành, bệnh viện tuyến huyện và bệnh viện ngoài công lập được điều chỉnh theo từng quy mô cụ thể.
2. TIÊU CHUẨN TRÍCH DẪN
2.1. Bệnh viện đa khoa - Yêu cầu thiết kế TCVN - 4470:1995.
2.2. Phòng cháy và chữa cháy cho nhà và công trình công cộng - Yêu cầu thiết kế TCVN - 2622:1995.
2.3. Chiếu sáng tự nhiên trong công trình dân dụng - Tiêu chuẩn thiết kế
TCXD - 29:1991.
2.4. Chiếu sáng nhân tạo trong công trình dân dụng TCXD -16: 1986.
2.5. Danh mục trang thiết bị y tế bệnh viện đa khoa tuyến tỉnh ban hành kèm theo Quyết định 437/QĐ-BYT ngày 20/02/2002 của Bộ trưởng Bộ Y tế.
2.6. Quy chế bệnh viện ban hành kèm theo quyết định 1895/1997/BYT-QĐ ngày 19/9/1997 của Bộ trưởng Bộ Y tế.
3. QUY ĐỊNH CHUNG
3.1. Khoa Phẫu thuật thuộc khối kỹ thuật nghiệp vụ, gồm hệ thống các phòng để thực hiện các thủ thuật, phẫu thuật chữa bệnh.
3.2. Khoa Phẫu thuật gồm các không gian để thực hiện các chức năng nhiệm vụ:
3.3. Phải có khu vực nghiên cứu khoa học, đào tạo chuyên môn về ngoại khoa.
3.4. Khoa Phẫu thuật được tổ chức theo quy mô số giường lưu (từ 55 - 65 giường/phòng mổ) số lượng phòng mổ quy định trong Bảng 1.
Bảng 1.
STT | Tên phòng mổ | Số lượng đơn vị phòng mổ | ||
Quy mô 1250 – 350 giường | Quy mô 2400 – 500 giường | Quy mô 3trên 550 giường | ||
1. | Mổ tổng hợp | 01 | 01 | 02 |
2. | Mổ hữu khuẩn | 01 | 01 | 02 |
3. | Mổ chấn thương | 01 | 01 | 01 |
4. | Mổ cấp cứu |
| 01 | 01 |
5. | Mổ sản | 01 | 01 | 01 |
6. | Mổ chuyên khoa |
| 01 | 02 |
Cộng | 04 | 06 | 09 | |
3.5. Khoa Phẫu thuật được quy định thiết kế đạt tiêu chuẩn bền vững theo cấp độ của cơ sở y tế, phù hợp với tiêu chuẩn TCVN - 4470: 1995.
3.6. Khoa Phẫu thuật phải đảm bảo điều kiện vệ sinh môi trường, yêu cầu vô khuẩn cao nhất trong bệnh viện.
4. YÊU CẦU VỀ DÂY CHUYỀN HOẠT ĐỘNG
4.1. Sơ đồ dây chuyền công năng:

4.2. Dây chuyền hoạt động của Khoa Phẫu thuật phải đảm bảo yêu cầu sạch bẩn một chiều, riêng biệt và được phân chia cấp độ sạch theo ba khu vực:
4.2.1. Khu vực vô khuẩn: khu vực có yêu cầu về môi trường sạch vô khuẩn gồm:
4.2.2. Khu vực sạch: khu vực có yêu cầu về môi trường sạch, vô khuẩn ở mức trung bình, là phần chuyển tiếp giữa khu vực vô khuẩn với khu vực phụ trợ gồm:
4.2.3. Khu vực phụ trợ: gồm các bộ phận:
5. YÊU CẦU VỀ VỊ TRÍ XÂY DỰNG
5.1. Sơ đồ vị trí khoa phẫu thuật trong bệnh viện đa khoa.

5.2. Đặt ở khu vực trung tâm bệnh viện, nơi có các điều kiện môi trường và hạ tầng kỹ thuật tốt nhất.
5.3. Gần khu chăm sóc tích cực, liên hệ thuận tiện với khu điều trị ngoại khoa và các khu xét nghiệm, chẩn đoán hình ảnh.
5.4. Đặt tại vị trí cuối hành lang để dễ dàng kiểm soát được sự ra vào, không có giao thông qua lại.
5.5. Thuận tiện cho việc lắp đặt, vận hành các thiết bị; gần nguồn cung cấp dụng cụ, vật tư vô khuẩn và hệ thống kỹ thuật; điện, nước, điều hoà không khí, khí y tế.
6. YÊU CẦU VỀ GIẢI PHÁP THIẾT KẾ
6.1. Kết cấu:
Kết cấu công trình của Khoa Phẫu thuật phải đảm bảo độ bền vững (sử dụng khung bê tông cốt thép hoặc khung kim loại).
6.2. Tổ chức không gian: giải pháp thiết kế tổ chức không gian trong Khoa Phẫu thuật phải đảm bảo các yêu cầu sau:
6.3. Các yêu cầu về kích thước không gian:
6.3.1. Các phòng chức năng:
6.3.2. Cầu thang, đường dốc(nếu có):
6.3.3. Thang máy:
6.3.4. Hành lang:
6.3.5. Cửa:
6.4. Yêu cầu diện tích của các hạng mục công trình:
6.4.1. Khu vực vô khuẩn:
Diện tích sử dụng các phòng chức năng khu vô khuẩn được quy định trong bảng 2
Bảng 2.
STT | Tên phòng | Diện tích/ Quy mô (m2) | Ghi chú | ||
Quy mô 1250-350giường | Quy mô 2400-500giường | Quy mô 3trên 550giường | |||
1. | Mổ tổng hợp | 36 x 1ph | 36 x 1ph | 36 x 2ph | Không nhỏ hơn |
2. | Mổ hữu khuẩn | 36 x 1ph | 36 x 1ph | 36 x 2ph | - nt - |
3. | Mổ chấn thương | 36 x 1ph | 36 x 1ph | 36 x 1ph | - nt - |
4. | Mổ cấp cứu | 36 x 1ph | 36 x 1ph | - nt - | |
5. | Mổ sản |
| 36 x 1ph | 36 x 1ph | - nt - |
6. | Mổ chuyên khoa | 36 x 1ph | 36 x 1ph | 36 x 2ph | - nt - |
7. | Rửa tay vô khuẩn | 18 | 36 | 42 | Kết hợp hành lang VT |
8. | Cung cấp vật tư tiêu hao | 18 | 36 | 42 |
|
9. | Hàng lang vô khuẩn | 18 | 36 | 42 | Kết hơp cung cấp vật tư tiêu hao |
Tổng cộng | 4 phòng | 6 phòng | 9 phòng |
| |
Cộng diện tích | 198 | 288 | 450 |
| |
6.4.2. Khu vực sạch:
Diện tích sử dụng các phòng chức năng khu sạch được quy định trong Bảng 3.
Bảng 3.
| STT | Tên phòng | Diện tích/Quy mô (m2) | Ghi chú | ||
|---|---|---|---|---|---|
Quy mô 1250 -350 giường | Quy mô 2400 -500 giường | Quy mô 3trên 550 giường | |||
1. | P.Tiền mê (lấy bằng 50% số phòng mổ) | 18 | 27 | 45 | Tối thiểu 9 m2/g có thể kết hợp với hàng lang sạch |
2. | Hành lang sạch | 24 | 36 | 48 | Không nhỏ hơn |
3. | P. nghỉ giữa ca mổ | 18 | 24 | 24 | Có vệ sinh liền phòng |
4. | P. ghi hồ sơ mổ | 9 | 9 | 12 | Có thể kết hợp với hành lang sạch |
5. | Phòng khử khuẩn | 12 | 24 | 36 | Không nhỏ hơn |
6. | Phòng đồ thải | 12 | 18 | 24 | - nt - |
7. | Kho thiết bị | 18 | 24 | 36 | - nt - |
Tổng cộng | 111 | 162 | 235 |
| |
6.4.3. Khu vực phụ trợ:
Diện tích sử dụng phòng chức năng khu phụ trợ được quy định trong Bảng 4
Bảng 4.
STT | Tên phòng | Diện tích/ Quy mô (m2) | Ghi chú | ||
Quy mô 1 | Quy mô 2 | Quy mô 3 | |||
1. | Tiếp nhận B/N | 24 | 36 | 48 | Không nhỏ hơn |
2. | Hồi tỉnh(lấy bằng 50% số phòng mổ) | 24 | 36 | 60 | Tối thiểu 12 m2/g |
3. | Hành chính, trực | 12 | 18 | 24 | - nt - |
4. | Hội chẩn, đào tạo | 24 | 36 | 48 | - nt - |
5. | Thay quần áo, WC | 18 x 2ph | 24 x 2ph | 36 x 2ph |
|
6. | Trưởng khoa | 12 | 12 | 12 x 2ph |
|
7. | Bác sỹ | 18 | 18 x 2ph | 18 x 3ph | - nt - |
8. | P. Y tá, hộ lý | 18 | 18 x 2ph | 18 x 3ph | - nt - |
Tổng cộng | 174 | 264 | 372 |
| |
6.4.4. Diện tích của các khu vực Khoa Phẫu thuật theo từng quy mô của bệnh viện đa khoa các tuyến; được quy định trong Bảng 5.
Bảng 5
STT | Khu vực | Quy mô 1 | Quy mô 2 | Quy mô 3 |
1. | Khu vô khuẩn | 198 m2 | 288 m2 | 450 m2 |
2. | Khu sạch | 111 m2 | 162 m2 | 235 m2 |
3. | Khu phụ trợ | 174 m2 | 264 m2 | 372 m2 |
Diện tích sử dụng | 483 m2 | 714 m2 | 1057 m2 | |
Diện tích sàn Khoa Phẫu thuật (*) | 730 m2 | 1100 m2 | 1600 m2 | |
Ghi chú: (*) Diện tích sàn Khoa Phẫu thuật được tính với hệ số k = 0,65 - 0,6.
7. YÊU CẦU VỀ GIẢI PHÁP KỸ THUẬT
7.1. Chiếu sáng:
7.1.1. Khoa Phẫu thuật phải đảm bảo điều kiện chiếu sáng theo yêu cầu cho từng khu vực.
7.1.2. Yêu cầu về độ rọi tối thiểu của ánh sáng được quy định trong bảng 6.
Bảng 6
| Tên phòng | Độ rọi tối thiểu (lux) | Ghi chú |
|---|---|---|
Sảnh đợi, tiếp nhận bệnh nhân | 140 |
|
Phòng vệ sinh, thay quần áo | 140 | Cửa sổ cao trên 1,8m |
Phòng khử khuẩn, cung cấp vô khuẩn, kỹ thuật, hành lang vô khuẩn | 300 |
|
Phòng mổ | 700/300 | Điều khiển ở 2 mức sáng |
Phòng Tiền mê, hồi tỉnh | 500/250 |
|
Phòng nghỉ thư giãn, Phòng hành chính, bác sỹ trưởng khoa, giao ban, đào tạo (bộ phận văn phòng) | 140 |
|
Kho (dụng cụ, thiết bị, vật phẩm y tế và dược phẩm, đồ bẩn) | 140 | Tính toán đối với mặt phẳng thẳng đứng, cao trên 1,0m |
Hành lang, lối đi | 100 |
|
Chú thích: Độ rọi tối thiểu là lượng ánh sáng tối thiểu trên đơn vị diện tích (được tính đối với mặt phẳng ngang, cao trên 0,8m tính từ sàn).
7.2. Các yêu cầu vi khí hậu:
7.2.1. Đảm bảo điều kiện vi khí hậu (nhiệt độ, độ ẩm, áp suất);
7.2.2. Các phòng mổ và hành lang vô khuẩn: yêu cầu sạch đạt mức Class 100 000.
7.2.3. Các yêu cầu vi khí hậu được quy định trong bảng 7
Bảng 7
Tên phòng | Nhiệt độ (°C) | Độ ẩm (%) | Số lần luân chuyển không khí / giờ | Số lượng hạt bụi ³0,5mm trong 1m3 không khí |
Phòng mổ, phòng hồi tỉnh, hành lang vô khuẩn | 21 - 24 | 60 - 70 | 15 – 20 | £ 3 x 106 |
Tiền mê, hành lang sạch | 21 - 26 | £ 70 | 5 – 15 |
|
7.3. Yêu cầu về phòng cháy và chữa cháy:
7.3.1. Khoa Phẫu thuật được thiết kế tuân theo những quy định trong Tiêu chuẩn
TCVN - 2622 : 1995.
7.3.2. Khoảng cách tối đa từ cửa đi của các phòng đến lối thoát nạn gần nhất trong Khoa Phẫu thuật được quy định tại bảng 8
Bảng 8
Bậc chịu lửa | Khoảng cách tối đa cho phép (m) | |
Từ các phòng ở giữa 2 lối thoát nạn | Từ các phòng có lối ra hành lang cụt | |
I | 30 | 25 |
II | 30 | 25 |
Chú thích: Đối với các không gian rộng, hành lang dài tuỳ theo yêu cầu để bố trí cửa ngăn lửa đảm bảo an toàn.
7.4. Cấp điện:
7.4.1. Khoa Phẫu thuật phải được cấp đủ điện, liên tục 24h/ngày. Ngoài nguồn thường xuyên phải có nguồn dự phòng, tự động cấp điện sau 5 giây.
7.4.2. Ngoài nguồn điện 2 pha theo quy chuẩn thông thường, được bố trí thêm nguồn cấp điện 3 pha tại khu sạch đề phòng sử dụng các thiết bị đặc biệt.
7.4.3. Hệ thống cấp điện của Khoa Phẫu thuật phải đảm bảo các yêu cầu:
7.5. Công nghệ thông tin:
Có hệ thống kết nối thông tin liên lạc trong các bộ phận, giữa các khoa khác trong bệnh viện và các cơ sở bên ngoài bằng hệ thống điện thoại tổng đài, truyền dữ liệu và hình ảnh, mạng máy tính nội bộ.
Chú thích: Trong các phòng mổ tùy theo yêu cầu có hệ thống thông tin (truyền hình ảnh, và số liệu) liên lạc với bên ngoài và phòng hành chính, đào tạo để phục vụ công tác nghiên cứu khoa học, giảng dạy.
7.6. Cấp thoát nước:
7.6.1. Nước cấp: Khoa Phẫu thuật phải được cấp nước sạch vô khuẩn đầy đủ, liên tục trong ngày đảm bảo yêu cầu hoạt động chuyên môn.
7.6.2. Nước thải: Phải có hệ thống thu gom nước thải các phòng chuyên môn và nước thải sinh hoạt vào hệ thống xử lý nước thải chung của bệnh viện, đảm bảo vệ sinh môi trường.
7.7. Chất thải rắn:
7.8. Yêu cầu cung cấp khí y tế:
Hệ thống khí y tế phải được cấp từ hệ thống trung tâm.
Số lượng các loại khí y tế, số đầu cấp được quy định ở Bảng 9
Bảng 9.
STT | Loại khí y tế | Số đầu khí cấp/giường, bàn mổ | Chú thích | ||
Tiền mê | hồi tỉnh | Phòng mổ |
| ||
1. | (O2) trung tâm | 01 | 01 | 02 |
|
2. | Khí nén (AIR) trung tâm |
| 01 | 02 | áp lực 4bar và 8bar |
3. | Khí hút (VAC) trung tâm | 01 | 01 | 02 |
|
Chú thích: Tùy theo yêu cầu của phòng mổ mà thiết kế hệ thống trung tâm khí CO2 và N2O...
7.9. Yêu cầu hoàn thiện công trình:
7.9.1. Nền sàn:
Nền sàn của Khoa Phẫu thuật đảm bảo phẳng, nhẵn, chịu lực không trơn trượt, chịu được hoá chất, chống thấm, và dễ cọ rửa vệ sinh. Giữa các không gian không chênh cốt.
Giao tuyến của sàn với tường đảm bảo dễ vệ sinh, chống đọng và bám bụi.
7.9.2. Tường:
Tường của Khoa Phẫu thuật, sử dụng vật liệu hoàn thiện chất lượng cao đảm bảo bề mặt phẳng, nhẵn, chịu nước, chống ăn mòn hoá chất, dễ vệ sinh từ sàn tới trần.
Giao tuyến của sàn với tường cong trơn chống bám bụi.
Tường bên trong khu vực hành lang phải gắn thanh chống va đập ở độ cao từ 0,7m đến 0,9m (tính từ sàn).
7.9.3. Trần:
Trần bên trong và hành lang của Khoa Phẫu thuật sơn mầu trắng, phải có bề mặt phẳng, nhẵn (không bám bụi) chống thấm, kháng khuẩn, bảo ôn và cách âm tốt.
7.9.4. Cửa đi:
Cửa ra vào có khuôn, cánh cửa bằng nhựa tổng hợp hoặc kim loại kết hợp với kính trong hoặc mờ.
Cửa có chuyển xe, giường đẩy bản lề mở hai chiều hoặc đóng mở tự động.
Các cửa ra vào đều phải có chốt, khoá an toàn (các bệnh viện loại I nên có cửa đóng mở tự động ở các hành lang).
7.9.5. Cửa sổ:
Cửa sổ có khuôn, cánh cửa bằng nhựa tổng hợp hoặc kim loại kết hợp với kính trong hoặc mờ để chiếu sáng tự nhiên.
7.9.6. Cửa chuyển dụng cụ (Passbox) Cửa chuyển dụng cụ cách sàn tối thiểu 0,9m đảm bảo ngăn cách không khí sạch lạnh và độ chênh áp giữa các khu vực.
7.9.7. Lắp đặt thiết bị kỹ thuật:
Lắp đặt thiết bị kỹ thuật (tủ điều khiển, đèn đọc phim, passbox dụng cụ…) phải đảm bảo yêu cầu kỹ mỹ thuật, hoàn thiện không để không khí bẩn, bụi lọt vào trong phòng.
8. TỔNG HỢP CÁC YÊU CẦU KỸ THUẬT
Bảng 10.
Phòng chức năng | - Phòng mổ, | - Phòng Tiền mê, - P. nghỉ thư giãn | - Rửa dụng cụ, | - Khu phụ trợ - Hành chính | |||
1. Diện tích | 36m2/phòng mổ | 6(9)m2/người (gi) |
|
| |||
2. Sàn nhà | Phủ vật liệu nhân tạo chống mài mòn, chống nấm mốc, chống tĩnh điện. | Chống trơn trượt. |
| ||||
3. Tường | Sử dụng các vật liệu chịu nước, các chất tẩy khuẩn, sơn kháng khuẩn, được sử dụng tới trần. | Đảm bảo phẳng, nhẵn. khu ướt ốp bằng gạch men kính, hoặc sơn Epoxy | |||||
4. Trần | Bề mặt phẳng, nhẵn; hệ thống chiếu sáng, phòng - chữa cháy, cấp không khí sạch và các hệ thống máy móc kỹ thuật. | ||||||
5. Cửa | Dễ cầm nắm, đóng mở nhẹ nhàng; cửa có chuyển xe, giường đẩy bản lề mở hai chiều. | ||||||
6. Cổng kết nối phương tiện | Toàn bộ các cổng kết nối đặt cạnh giường |
|
|
| |||
7. Nhiệt độ | 21 – 24°C | 21 - 26°C | 21 - 26°C |
| |||
8. Độ ẩm không khí | 60% - 70% | Không lớn hơn 70% |
|
| |||
9. Luân chuyển không khí /h | 15 - 20 lần/h | 5 - 15 lần/h |
|
| |||
10. Số lượng đầu cấp khí | 06 cho 3 loại | 03 cho 3 loại |
|
| |||
11. Ánh sáng | Độ rọi 300-700 lux | Độ rọi 250-500 lux | Độ rọi 100-140 lux | ||||
12. Ổ cắm điện | 10 ổ/phòng mổ loại 220V/10A | 4 ổ/ giường loại 220V/10A | 4 ổ loại 220V/10A | 2 ổ/phòng | |||
13. Hệ thống cấp điện khẩn cấp | Cung cấp cho các thiết bị y tế và chiếu sáng, thời gian trì hoãn để vận hành không quá 15 giây. | ||||||
14. Công suất cổng kết nối |
| 1200 w/giường |
| 2,8 kW | |||
15. Máy sử dụng nguồn điện DC | Đồng hồ,máy gọi đảo chiều | Máy gọi y tá, máy gọi đảo chiều, đầu Tel |
| Máy gọi đảo chiều, đầu Tel | |||
16. Cấp nước | Nước vô khuẩn cấp cho chậu rửa tay | 02 chậu rửa cho bác sỹ | 01 chậu rửa cho 1 phòng | 01chậu rửa 10/người 01 vòi sen 20 người | |||
17. Thoát nước | Hệ thống thu, thoát nước thải hoá chất và nước thải sinh hoạt được xử lý sơ bộ trước khi thoát vào hệ thống xử lý nước thải chung của bệnh viện. | ||||||
PHỤ LỤC A
(thông tin tham khảo)
MẪU THIẾT KẾ
NỘI DUNG:
Mặt cắt, mặt bằng kỹ thuật phòng mổ
Mặt cắt, mặt bằng hệ thống khí sạch
Phòng hồi tỉnh
Phòng mổ
Mặt cắt

MẶT BẰNG
|
|
HỆ THỐNG KHÍ SẠCH PHÒNG MỔ
MẶT CẮT
|
|
MẶT BẰNG
|
|
PHÒNG HỒI TỈNH

1. | Giường bệnh | 4. | Bàn + rửa tay |
2. | Vách ngăn nhẹ di động | 5. | Xe thu đồ bẩn |
3. | Giá truyền dịch | 6. | Hệ thống cấp khí điện |
PHỤ LỤC B
(thông tin tham khảo)
MẪU THIẾT KẾ
QUY MÔ 1 :
BỆNH VIỆN ĐA KHOA ; 250 – 350 GIƯỜNG
Dây chuyền công nghệ, Sơ đồ hoạt động
Mặt bằng
Mặt cắt
QUY MÔ 2 :
BỆNH VIỆN ĐA KHOA ; 400 – 500 GIƯỜNG
Dây chuyền công nghệ, Sơ đồ hoạt động
Mặt bằng
Mặt cắt
QUY MÔ 3
BỆNH VIỆN ĐA KHOA ; TRÊN 550 GIƯỜNG
Mặt bằng sơ đồ tổ chức
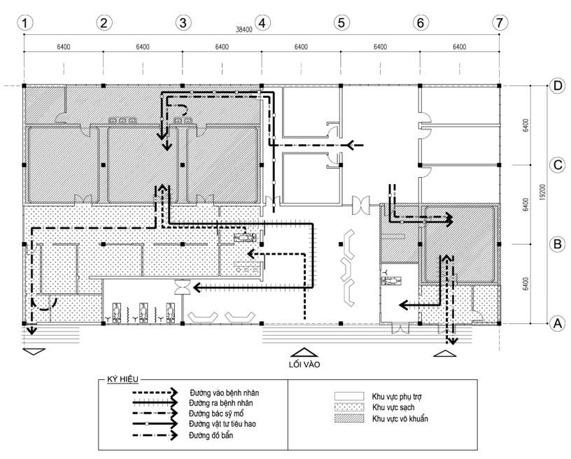
QUY MÔ 1 (Bệnh viện đa khoa 250 đến 350 giường)
DÂY CHUYỀN CÔNG NGHỆ

SƠ ĐỒ HOẠT ĐỘNG

MẶT BẰNG

GHI CHÚ:
1. | Sảnh | 9. | Phòng bác sỹ | 17. | Tiếp nhận bệnh nhân |
2. | Nơi đợi người nhà | 10. | Phòng y tá, hộ lý | 18. | Kho thiết bị |
3. | Hồi tỉnh mổ hữu khuẩn | 11. | Hành chính + hội chẩn + đào tạo | 19. | P.nghỉ thư giãn+ghi hồ sơ mổ |
4. | Tiền mê mổ hữu khuẩn | 12. | Tắm, thay đồ nhân viên | 20. | Phòng vệ sinh |
5. | Chuẩn bị | 13. | Phòng mổ vô khuẩn | 21. | P. khử khuẩn |
6. | Mổ hữu khuẩn | 14. | Hành lang vô khuẩn | 22. | Hồi tỉnh |
7. | Lối vào nhân viên | 15. | Kho vật tư tiêu hao | 23. | Phòng đồ thải |
8. | Trưởng khoa | 16. | Hành lang sạch + tiền mê |
|
|
Quy mô 1 (Bệnh viện đa khoa 250 đến 350 giường)
MẶT CẮT

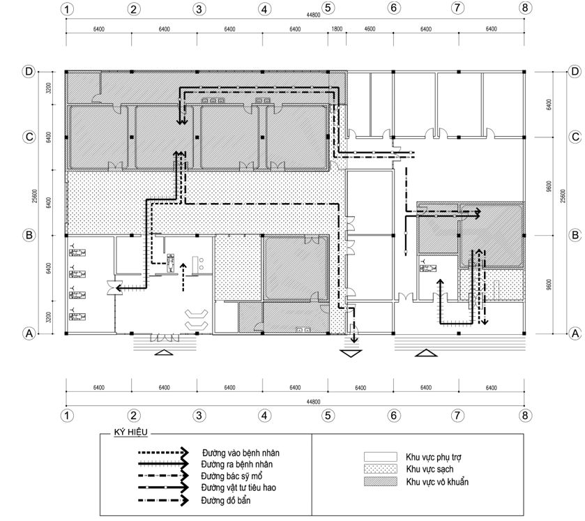
QUY MÔ 2 (Bệnh viện đa khoa 400 đến 500 giường)
DÂY CHUYỀN CÔNG NGHỆ

SƠ ĐỒ HOẠT ĐỘNG

MẶT BẰNG

GHI CHÚ:
1. | Sảnh | 9. | Phòng bác sỹ | 17. | Hồi tỉnh |
2. | Nơi đợi người nhà | 10. | Phòng y tá, hộ lý | 18. | Tiếp nhận bệnh nhân |
3. | Hồi tỉnh mổ hữu khuẩn | 11. | Hành chính+hội chẩn+đào tạo | 19. | P. khử khuẩn |
4. | Tiền mê mổ hữu khuẩn | 12. | Tắm, thay đồ nhân viên | 20. | P. nghỉ giữa ca + ghi hồ sơ mổ |
5. | Chuẩn bị | 13. | Kho thiết bị | 21. | Phòng vệ sinh |
6. | Mổ hữu khuẩn | 14. | Phòng mổ vô khuẩn | 22. | Phòng đồ thải |
7. | Hành lang vô khuẩn | 15. | Kho vật tư tiêu hao |
|
|
8. | Trưởng khoa | 16. | Hành lang sạch + Tiền mê |
|
|
MẶT CẮT

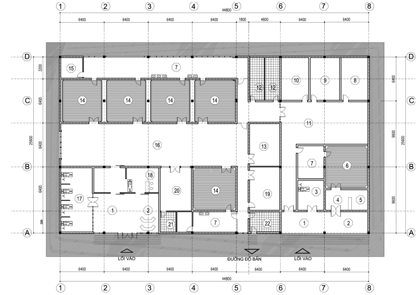
QUY MÔ 3 (Bệnh viện đa khoa trên 550 giường)
MINH HOẠ PHƯƠNG ÁN BỐ CỤC MẶT BẰNG

Bạn chưa Đăng nhập thành viên.
Đây là tiện ích dành cho tài khoản thành viên. Vui lòng Đăng nhập để xem chi tiết. Nếu chưa có tài khoản, vui lòng Đăng ký tại đây!


