- Tổng quan
- Nội dung
- VB gốc
- Tiếng Anh
- Hiệu lực
- VB liên quan
- Lược đồ
-
Nội dung hợp nhất
Tính năng này chỉ có tại LuatVietnam.vn. Nội dung hợp nhất tổng hợp lại tất cả các quy định còn hiệu lực của văn bản gốc và các văn bản sửa đổi, bổ sung, đính chính... trên một trang. Việc hợp nhất văn bản gốc và những văn bản, Thông tư, Nghị định hướng dẫn khác không làm thay đổi thứ tự điều khoản, nội dung.
Khách hàng chỉ cần xem Nội dung hợp nhất là có thể nắm bắt toàn bộ quy định hiện hành đang áp dụng, cho dù văn bản gốc đã qua nhiều lần chỉnh sửa, bổ sung.
- Tải về
Thông tư 06/2022/TT-BXD ban hành Quy chuẩn kỹ thuật quốc gia về An toàn cháy cho nhà và công trình
| Cơ quan ban hành: | Bộ Xây dựng |
Số công báo:
Số công báo là mã số ấn phẩm được đăng chính thức trên ấn phẩm thông tin của Nhà nước. Mã số này do Chính phủ thống nhất quản lý.
|
Đã biết
|
| Số hiệu: | 06/2022/TT-BXD | Ngày đăng công báo: |
Đã biết
|
| Loại văn bản: | Thông tư | Người ký: | Lê Quang Hùng |
|
Ngày ban hành:
Ngày ban hành là ngày, tháng, năm văn bản được thông qua hoặc ký ban hành.
|
30/11/2022 |
Ngày hết hiệu lực:
Ngày hết hiệu lực là ngày, tháng, năm văn bản chính thức không còn hiệu lực (áp dụng).
|
Đang cập nhật |
|
Áp dụng:
Ngày áp dụng là ngày, tháng, năm văn bản chính thức có hiệu lực (áp dụng).
|
Đã biết
|
Tình trạng hiệu lực:
Cho biết trạng thái hiệu lực của văn bản đang tra cứu: Chưa áp dụng, Còn hiệu lực, Hết hiệu lực, Hết hiệu lực 1 phần; Đã sửa đổi, Đính chính hay Không còn phù hợp,...
|
Đã biết
|
| Lĩnh vực: | Đất đai-Nhà ở Xây dựng |
TÓM TẮT THÔNG TƯ 06/2022/TT-BXD
Theo đó, trong các nhà (khoang cháy, nhà và các công trình xây dựng), khi thiết kế phải có các giải pháp kết cấu, bố trí mặt bằng – không gian và kỹ thuật công trình để bảo đảm khi xảy ra cháy thì: Nhà vẫn duy trì được tính ổn định tổng thể và tính bất biến hình trong một khoảng thời gian nhất định, được quy định bằng bậc chịu lửa của nhà; Có khả năng cứu người; Lực lượng và phương tiện chữa cháy có thể tiếp cận đám cháy và thực hiện các biện pháp chữa cháy, cứu người và tài sản.
Bên cạnh đó, các giải pháp kết cấu, bố trí mặt bằng – không gian và kỹ thuật công trình khi thiết kế cũng phải bảo đảm: Khi xảy ra cháy mọi người trong nhà (không phụ thuộc vào tuổi tác và tình trạng sức khỏe) có thể sơ tán ra bên ngoài tới khu vực an toàn (bên ngoài) trước khi xuất hiện nguy cơ đe dọa tính mạng và sức khỏe do tác động của đám cháy; Không để cháy lan sang các nhà bên cạnh, kể cả trong trường hợp nhà đang cháy bị sập đổ…
Trong quá trình xây dựng nhà phải bảo đảm: Thực hiện các giải pháp phòng chống cháy theo thiết kế phù hợp với quy chuẩn, tiêu chuẩn hiện hành và đã được thẩm duyệt; Thực hiện các yêu cầu phòng cháy chữa cháy cho các công trình đang xây dựng, các công trình phụ trợ và các quy định phòng cháy chữa cháy trong thi công xây lắp; Trang bị các phương tiện chữa cháy theo quy định và trong trạng thái sẵn sàng hoạt động; Khả năng thoát nạn an toàn và cứu người, bảo vệ tài sản khi xảy ra cháy trong công trình đang xây dựng và trên công trường.
Thông tư có hiệu lực từ ngày 16/01/2023.
Xem chi tiết Thông tư 06/2022/TT-BXD có hiệu lực kể từ ngày 16/01/2023
Tải Thông tư 06/2022/TT-BXD
|
BỘ XÂY DỰNG |
CỘNG HÒA XÃ HỘI CHỦ NGHĨA VIỆT NAM |
|
Số: 06/2022/TT-BXD |
Hà Nội, ngày 30 tháng 11 năm 2022 |
THÔNG TƯ
Ban hành QCVN 06:2022/BXD
Quy chuẩn kỹ thuật quốc gia về An toàn cháy cho nhà và công trình
_______________
Căn cứ Luật Tiêu chuẩn và quy chuẩn kỹ thuật ngày 29/6/2006;
Căn cứ Nghị định số 127/2007/NĐ-CP ngày 01/8/2007 của Chính phủ quy định chi tiết thi hành một số điều của Luật Tiêu chuẩn và quy chuẩn kỹ thuật và Nghị định số 78/2018/NĐ-CP ngày 16/5/2018 của Chính phủ sửa đổi, bổ sung một số điều của Nghị định số 127/2007/NĐ-CP;
Căn cứ Nghị định số 52/2022/NĐ-CP ngày 08/8/2022 của Chính phủ quy định chức năng, nhiệm vụ, quyền hạn và cơ cấu tổ chức của Bộ Xây dựng;
Theo đề nghị của Vụ trưởng Vụ Khoa học công nghệ và môi trường;
Bộ trưởng Bộ Xây dựng ban hành Thông tư ban hành quy chuẩn kỹ thuật quốc gia về An toàn cháy cho nhà và công trình
Điều 1. Ban hành kèm theo Thông tư này QCVN 06:2022/BXD Quy chuẩn kỹ thuật quốc gia về An toàn cháy cho nhà và công trình.
Điều 2. Thông tư này có hiệu lực kể từ ngày 16/01/2023 và thay thế Thông tư số 02/2021/TT-BXD ngày 19/05/2021 của Bộ trưởng Bộ Xây dựng ban hành QCVN 06:2021/BXD Quy chuẩn kỹ thuật quốc gia về An toàn cháy cho nhà và công trình.
Điều 3. Các Bộ, cơ quan ngang Bộ, cơ quan thuộc Chính phủ, Ủy ban nhân dân các tỉnh, thành phố trực thuộc Trung ương và các tổ chức, cá nhân có liên quan chịu trách nhiệm thi hành Thông tư này./.
|
Nơi nhận: |
KT. BỘ TRƯỞNG |
QCVN 06:2022/BXD
QUY CHUẨN KỸ THUẬT QUỐC GIA VÀ AN TOÀN CHÁY CHO NHÀ VÀ CÔNG TRÌNH
National Technical Regulation on Fire safety of Buildings and Constructions
MỤC LỤC
1 QUY ĐỊNH CHUNG
2 PHÂN LOẠI KỸ THUẬT VỀ CHÁY
3 BẢO ĐẢM AN TOÀN CHO NGƯỜI
4 NGĂN CHẶN CHÁY LAN
5 CẤP NƯỚC CHỮA CHÁY
6 CHỮA CHÁY VÀ CỨU NẠN
7 TỔ CHỨC THỰC HIỆN
PHỤ LỤC A (quy định) QUY ĐỊNH BỔ SUNG ĐỐI VỚI MỘT SỐ NHÓM NHÀ CỤ THỂ
PHỤ LỤC B (quy định) PHÂN LOẠI VẬT LIỆU XÂY DỰNG THEO ĐẶC TÍNH KỸ THUẬT VỀ CHÁY VÀ YÊU CẦU VỀ AN TOÀN CHÁY ĐỐI VỚI VẬT LIỆU
PHỤ LỤC C (quy định) HẠNG NGUY HIỂM CHÁY VÀ CHÁY NỔ CỦA NHÀ, CÔNG TRÌNH VÀ CÁC GIAN PHÒNG CÓ CÔNG NĂNG SẢN XUẤT VÀ KHO
PHỤ LỤC D (quy định) BẢO VỆ CHỐNG KHÓI
PHỤ LỤC E (quy định) KHOẢNG CÁCH PHÒNG CHÁY CHỐNG CHÁY
PHỤ LỤC F (quy định) GIỚI HẠN CHỊU LỬA DANH ĐỊNH CỦA MỘT SỐ CẤU KIỆN
PHỤ LỤC G (quy định) KHOẢNG CÁCH ĐẾN CÁC LỐI RA THOÁT NẠN VÀ CHIỀU RỘNG LỐI RA THOÁT NẠN
PHỤ LỤC H (quy định) BẬC CHỊU LỬA VÀ CÁC YÊU CẦU BẢO ĐẢM AN TOÀN CHÁY CHO NHÀ, CÔNG TRÌNH, KHOANG CHÁY
PHỤ LỤC I (tham khảo) CÁC HÌNH MINH HỌA
Lời nói đầu
QCVN 06:2022/BXD do Viện Khoa học công nghệ xây dựng (Bộ Xây dựng) chủ trì, Cục Cảnh sát phòng cháy chữa cháy và cứu nạn cứu hộ (Bộ Công an) phối hợp biên soạn, Vụ Khoa học công nghệ và môi trường (Bộ Xây dựng) trình duyệt Bộ Khoa học và Công nghệ thẩm định, Bộ Xây dựng ban hành kèm theo Thông tư số 06/2022/TT-BXD ngày 30 tháng 11 năm 2022 của Bộ trưởng Bộ Xây dựng.
QCVN 06:2022/BXD thay thế QCVN 06:2021/BXD ban hành kèm theo Thông tư số 02/2021/TT-BXD ngày 19 tháng 5 năm 2021 của Bộ trưởng Bộ Xây dựng.
QUY CHUẨN KỸ THUẬT QUỐC GIA VỀ AN TOÀN CHÁY CHO NHÀ VÀ CÔNG TRÌNH
National Technical Regulation on Fire safety of Buildings and Constructions
1 QUY ĐỊNH CHUNG
1.1. Phạm vi điều chỉnh
a) Các yêu cầu chung về an toàn cháy cho gian phòng, khoang cháy, nhà và các công trình xây dựng (khoang cháy, nhà và các công trình xây dựng sau đây gọi chung là nhà):
b) Phân loại kỹ thuật về cháy cho vật liệu xây dựng, cấu kiện xây dựng, các phần và bộ phận của nhà, và nhà.
1.1.2 Quy chuẩn này áp dụng đối với các nhà và công trình sau:
a) Nhà ở: chung cư và nhà ở tập thể có chiều cao PCCC đến 150 m và không quá 3 tầng hầm; nhà ở riêng lẻ có chiều cao từ 7 tầng trở lên hoặc có nhiều hơn 1 tầng hầm đến 3 tầng hầm, nhà ở riêng lẻ kết hợp sản xuất, kinh doanh với diện tích sàn dành cho mục đích sản xuất, kinh doanh chiếm trên 30% tổng diện tích sàn;
CHÚ THÍCH: Trường hợp chuyển đổi nhà ở riêng lẻ sang mục đích khác thì phải tuân thủ theo quy định của quy chuẩn này và các quy định pháp luật hiện hành có liên quan
b) Các nhà công cộng có chiều cao PCCC đến 150 m và không quá 3 tầng hầm (trừ các công trình trực tiếp sử dụng làm nơi thờ cúng, tín ngưỡng; các công trình di tích); các loại sân thể thao ngoài trời có khán đài (sân vận động, sân tập luyện, thi đấu thể thao và tương tự);
c) Các nhà sản xuất, nhà kho có chiều cao PCCC đến 50 m và không quá 1 tầng hầm;
d) Các nhà cung cấp cơ sở, tiện ích hạ tầng kỹ thuật có chiều cao PCCC đến 50 m và không quá 1 tầng hầm;
e) Các nhà phục vụ giao thông vận tải có chiều cao PCCC đến 50 m và không quá 3 tầng hầm;
f) Các nhà phục vụ nông nghiệp và phát triển nông thôn (trừ nhà ươm, nhà kính trồng cây và tương tự).
CHÚ THÍCH: Phân loại công trình theo quy định pháp luật liên quan. Các công trình cụ thể nêu tại 1.1.2 xem Bảng 6.
1.1.3 Đối với các nhà thuộc nhóm nguy hiểm cháy theo công năng F1.2. F1.3, F4.2, F4.3 và nhà hỗn hợp có chiều cao PCCC lớn hơn 150 m hoặc có từ 4 tầng hầm trở lên các nhà có các đặc điểm riêng về phòng chống cháy khác với các nhóm nhà trong Bảng 6, thì ngoài việc tuân thủ quy chuẩn này còn phải bổ sung các yêu cầu kỹ thuật và các giải pháp về tổ chức, về kỹ thuật công trình phù hợp với các đặc điểm riêng về phòng chống cháy của các nhà đó, trên cơ sở các tài liệu chuẩn được áp dụng.
CHÚ THÍCH: Đối với các nhà có tầng hầm 4, 5 bố trí để xe thì ngoài việc áp dụng quy chuẩn này phải áp dụng bổ sung quy chuẩn liên quan đến gara ngầm.
1.1.4 Quy chuẩn này áp dụng khi xây dựng mới các nhà và công trình nêu tại 1.1.2, hoặc trong phạm vi những thay đổi sau:
a) Cải tạo, sửa chữa làm thay đổi công năng của gian phòng, khoang cháy hoặc nhà;
b) Cải tạo, sửa chữa làm thay đổi các giải pháp thoát nạn của gian phòng, khoang cháy hoặc nhà;
c) Cải tạo, sửa chữa làm tăng tính nguy hiểm cháy của vật liệu xây dựng, hoặc làm giảm giới hạn chịu lửa của kết cấu, cấu kiện;
d) Cải tạo, sửa chữa làm thay đổi hạng nguy hiểm cháy và cháy nổ của gian phòng, khoang cháy và nhà theo hướng tăng tính nguy hiểm cháy;
e) Cải tạo, sửa chữa làm nâng cao các yêu cầu an toàn cháy đối với gian phòng, khoang cháy và nhà;
f) Cải tạo, sửa chữa hệ thống bảo vệ chống cháy của gian phòng khoang cháy và nhà;
g) Các trường hợp cải tạo, sửa chữa khác theo hướng dẫn của cơ quan Cảnh sát Phòng cháy chữa cháy và Cứu nạn cứu hộ (Cảnh sát PCCC và CNCH) có thẩm quyền.
1.1.5 Các phần 2, 3, 4, 5 và 6 không áp dụng cho các nhà có công năng đặc biệt (các nhà và công trình thuộc dây chuyền công nghệ của các cơ sở năng lượng: nhà máy thủy điện, nhiệt điện, điện nguyên tử; điện gió, điện mặt trời, điện địa nhiệt, điện thủy triều, điện rác, điện sinh khối; điện khí biogas; điện đồng phát, tháp kiểm soát không lưu, nhà sản xuất hoặc bảo quản các chất và vật liệu nổ; các kho chứa dầu mỏ và sản phẩm dầu mỏ, khí đốt tự nhiên, các loại khí dễ cháy, cũng như các chất tự cháy; cửa hàng kinh doanh xăng dầu, chất lỏng dễ cháy, khí đốt; nhà sản xuất hoặc kho hóa chất độc hại; công trình quốc phòng, an ninh; phần ngầm của công trình tàu điện ngầm; công trình hầm mỏ, và các nhà có đặc điểm tương tự).
1.1.6 Phần 5 cũng không áp dụng cho các đối tượng sau:
a) Cơ sở, nhà và công trình bảo quản và chế biến các hạt lương thực;
b) Cơ sở lò hơi cung cấp nhiệt; cơ sở điện lưới;
c) Các hệ thống chữa cháy cho các đám cháy do kim loại, các chất và vật liệu hoạt động hoá học mạnh phản ứng với nước sẽ gây nổ, tạo ra khí cháy, gây tỏa nhiệt mạnh, ví dụ như: các hợp chất nhôm - chất hữu cơ, các kim loại kiềm, các hợp chất lithium - chất hữu cơ, chì azua, các hydride nhôm, kẽm, magie, axit sunfuric, titan clorua, nhiệt nhôm.
1.1.7 Các yêu cầu về phòng cháy, chống cháy của các tài liệu chuẩn trong xây dựng phải dựa trên yêu cầu của quy chuẩn này.
Cùng với việc áp dụng quy chuẩn này, còn phải tuân theo các yêu cầu phòng cháy chữa cháy quy định cụ thể hơn trong các tài liệu chuẩn khác được quy định áp dụng cho từng đối tượng nhà và công trình. Khi chưa có các tài liệu chuẩn quy định cụ thể theo các yêu cầu của quy chuẩn này thì vẫn cho phép sử dụng các quy định cụ thể trong các tiêu chuẩn hiện hành cho đến Khi các tiêu chuẩn đó được soát xét lại, cũng như cho phép sử dụng các tiêu chuẩn hiện hành của nước ngoài trên nguyên tắc bảo đảm yêu cầu của quy chuẩn này và các quy định pháp luật của Việt Nam về phòng cháy, chữa cháy cùng các quy định về áp dụng tiêu chuẩn của nước ngoài trong hoạt động xây dựng ở Việt Nam.
Trong các tài liệu chuẩn hiện hành có liên quan về phòng cháy, chống cháy cho nhà và công trình mà có các quy định, yêu cầu kỹ thuật cụ thể kém an toàn hơn quy định của quy chuẩn này thì áp dụng quy chuẩn này.
1.1.8 Các tài liệu thiết kế về an toàn cháy và tài liệu kỹ thuật về an toàn cháy của nhà, kết cấu cấu kiện và vật liệu xây dựng phải nêu rõ các đặc tính kỹ thuật về cháy của chúng theo quy định của quy chuẩn này.
1.1.9 Khi thiết kế về xây dựng nhà và công trình, ngoài việc tuân thủ quy chuẩn này, còn phải tuân thủ các quy chuẩn và bảo đảm các yêu cầu kỹ thuật bắt buộc khác theo quy định của pháp luật hiện hành, như: quy hoạch, kiến trúc, kết cấu, hệ thống cấp thoát nước, hệ thống điện, thiết bị điện, chống sét, hệ thống cấp nhiên liệu, tiết kiệm năng lượng, hệ thống thông gió, điều hoà không khí, cơ khí, an toàn sử dụng kính, tránh rơi ngã, va đập.
1.1.10 Trong một số trường hợp riêng biệt, có thể xem xét thay thế một số yêu cầu của quy chuẩn này đối với công trình cụ thể khi có luận chứng kỹ thuật gửi Bộ Xây dựng nêu rõ các giải pháp bổ sung, thay thế và cơ sở của những giải pháp này để bảo đảm an toàn cháy cho công trình Luận chứng này phải được Bộ Xây dựng cho ý kiến thống nhất và hồ sơ thiết kế xây dựng phải được cơ quan Cảnh sát PCCC và CNCH có thẩm quyền thẩm duyệt theo quy định pháp luật về phòng cháy chữa cháy.
1.2 Đối tượng áp dụng
Quy chuẩn này áp dụng đối với các tổ chức, cá nhân có liên quan đến hoạt động đầu tư xây dựng trên lãnh thổ Việt Nam.
1.3 Tài liệu viện dẫn
Các tài liệu viện dẫn sau là cần thiết cho việc áp dụng quy chuẩn này. Trường hợp các tài liệu viện dẫn được sửa đổi, bổ sung hoặc thay thế thì áp dụng phiên bản mới nhất.
QCVN 17:2018/BXD, Quy chuẩn kỹ thuật quốc gia về Xây dựng và lắp đặt phương tiện quảng cáo ngoài trời.
TCVN 3890, Phương tiện phòng cháy và chữa cháy cho nhà và công trình - Trang bị, bố trí, kiểm tra, bảo dưỡng.
TCVN 5738, Phòng cháy chữa cháy - Hệ thống báo cháy - Yêu cầu kỹ thuật.
TCVN 7336, Phòng cháy chữa cháy - Hệ thống chữa cháy tự động bằng nước, bọt - Yêu cầu thiết kế và lắp đặt.
TCVN 9310-4, Phòng cháy chữa cháy - Từ vựng- Phần 4: Phương tiện chữa cháy.
TCVN 9310-8, Phòng cháy chữa cháy - Từ vựng - Phần 8: Thuật ngữ chuyên dùng cho chữa cháy, cứu nạn và xử lý vật liệu nguy hiểm.
TCVN 9311-1, Thử nghiệm chịu lửa - Các bộ phận kết cấu của tòa nhà - Phần 1: Yêu cầu chung.
TCVN 9311-3, Thử nghiệm chịu lửa các bộ phận kết cấu toà nhà - Phần 3: Chỉ dẫn về phương pháp thử và áp dụng số liệu thử nghiệm.
TCVN 9311-4, Thử nghiệm chịu lửa các bộ phận kết cấu toà nhà - Phần 4: Các yêu cầu riêng đối với bộ phận ngăn cách đứng chịu tải.
TCVN 9311-5, Thử nghiệm chịu lửa các bộ phận kết cấu toà nhà - Phần 5: Các yêu cầu riêng đối với bộ phận ngăn cách nằm ngang chịu tải.
TCVN 9311-6, Thử nghiệm chịu lửa các bộ phận kết cấu toà nhà - Phần 6: Các yêu cầu riêng đối với dầm.
TCVN 9311-7, Thử nghiệm chịu lửa các bộ phận kết cấu toà nhà - Phần 7: Các yêu cầu riêng đối với cột.
TCVN 9311-8, Thử nghiệm chịu lửa các bộ phận kết cấu toà nhà - Phần 8: Các yêu cầu riêng đối với bộ phận ngăn cách đứng không chịu tải.
TCVN 9383, Thử nghiệm khả năng chịu lửa - Cửa đi và cửa chắn ngăn cháy.
TCVN 12695, Thử nghiệm phản ứng với lửa cho các sản phẩm xây dựng - Phương pháp thử tính không cháy.
TCVN 13456, Phòng cháy chữa cháy - Phương tiện chiếu sáng sự cố và chỉ dẫn thoát nạn - Yêu cầu thiết kế, lắp đặt
1.4 Giải thích từ ngữ
Trong quy chuẩn này, các từ ngữ dưới đây được hiểu như sau:
1.4.1
An toàn cháy cho nhà, công trình (hoặc các phần công trình)
Sự bảo đảm các yêu cầu về tính chất vật liệu và cấu tạo kết cấu xây dựng, về các giải pháp kiến trúc, quy hoạch, các giải pháp kỹ thuật và công nghệ phù hợp với đặc điểm sử dụng của công trình nhằm ngăn ngừa cháy (phòng cháy), hạn chế lan truyền, bảo đảm dập tắt đám cháy (chống cháy), ngăn chặn các yếu tố nguy hiểm có hại đối với con người, hạn chế đến mức thấp nhất thiệt hại về tài sản khi có cháy xảy ra.
1.4.2
Bãi đỗ xe chữa cháy
Đoạn đường có mặt hoàn thiện chịu được tải trọng tính toán, được bố trí dọc theo chu vi hoặc một phần chu vi của nhà, cho phép phương tiện chữa cháy triển khai các hoạt động chữa cháy
CHÚ THÍCH: So với đường cho xe chữa cháy thì bãi đổ cho xe chữa cháy được thiết kế để chịu tải trong lớn hơn và có chiều rộng lớn hơn để triển khai các phương tiện chữa cháy trong quá trình hoạt động
1.4.3
Bảo vệ chống cháy
Tổng hợp các biện pháp tổ chức và các giải pháp kỹ thuật nhằm ngăn ngừa tác động của các yếu tố nguy hiểm cháy lên con người và hạn chế thiệt hại vật chất do cháy gây ra.
1.4.4
Bậc chịu lửa của nhà, công trình, khoang cháy
Đặc trưng phân bậc của nhà, công trình và khoang cháy được xác định bởi giới hạn chịu lửa của các kết cấu/cấu kiện sử dụng để xây dựng nhà công trình và khoang cháy đó.
1.4.5
Bộ phận ngăn cháy
Được dùng để ngăn cản đám cháy và các sản phẩm cháy lan truyền từ một khoang cháy hoặc từ một gian phòng có đám cháy tới các gian phòng khác. Bao gồm tường ngăn cháy, vách ngăn cháy và sàn ngăn cháy .
1.4.6
Bộ phận ngăn khói
Bộ phận được dùng để định luồng, chứa và (hoặc) ngăn cản sự lan truyền của khói (sản phẩm khi của đám cháy).
1.4.7
Cấp nguy hiểm cháy của cấu kiện xây dựng
Đặc trưng phân nhóm của cấu kiện xây dựng, dựa trên các mức khác nhau của thông số kết quả thử nghiệm gây cháy cho vật liệu cấu thành của cấu kiện xây dựng theo các tiêu chuẩn quy định.
1.4.8
Cấp nguy hiểm cháy kết cấu của nhà
Đặc trưng phân cấp của nhà, công trình và khoang cháy, được xác định bởi mức độ tham gia của kết cấu xây dựng vào sự phát triển đám cháy và hình thành các yếu tố nguy hiểm của đám cháy
1.4.9
Chiều cao phòng cháy chữa cháy (chiều cao PCCC)
Chiều cao PCCC của nhà (không tính tầng kỹ thuật trên cùng) được xác định như sau:
Bằng khoảng cách lớn nhất tính từ mặt đường cho xe chữa cháy tiếp cận đến mép dưới của lỗ cửa (cửa sổ) mở trên tường ngoài của tầng trên cùng;
Bằng một nửa tổng khoảng cách tính từ mặt đường cho xe chữa cháy tiếp cận đến mặt sàn và đến trần của tầng trên cùng - khi không có lỗ cửa (cửa sổ).
CHÚ THÍCH 1: Khi mái nhà được khai thác sử dụng thì chiều cao PCCC của nhà được xác định hàng khoảng cách lớn nhất từ mai đường cho xe chữa cháy tiếp cận đến mép trên tường bao của mái
CHÚ THÍCH 2: Khi xác định chiều cao PCCC thì mái nhà không được tính là có khai thác sử dụng nếu con người không có mặt thường xuyên trên mái
CHÚ THÍCH 3: Khi có ban công (lô gia) hoặc kết cấu bao che (lan can) cửa sổ thì chiều cao PCCC được tính bằng khoảng cách lớn nhất từ mặt đường cho xe chữa cháy tiếp cận đến mép trên của kết cấu bao che (lan can).
1.4.10
Chiều cao tia nước đặc
Lấy bằng 0,8 lần chiều cao tia nước phun theo phương thẳng đứng.
1.4.11
Cửa nắp thu khói (cửa trời hoặc cửa chớp)
Phương tiện (thiết bị) được điều khiển tự động từ xa, đậy các lỗ mở trên tường ngoài nhà bao che gian phòng được bảo vệ bằng hệ thống hút xả khói theo cơ chế tự nhiên.
1.4.12
Cửa giếng thang máy
Cửa ra vào được thiết kế để lắp đặt trong giếng thang tại nơi đỗ để cho phép đi vào và ra khỏi cabin thang máy
1.4.13
Cửa thu khói
Lỗ mở trong kênh (ống) của hệ thống hút xả khói, được đặt lưới, song chắn hoặc cửa nắp hút khói hoặc các van ngăn cháy thường đóng.
1.4.14
Diện tích sàn cho phép tiếp cận
Diện tích mặt sàn của tất cả các khu vực được bao che trong một nhà hoặc phần nhà, bao gồm cả diện tích các kênh dẫn, sàn giếng thang máy, nhà vệ sinh, buồng thang bộ, diện tích chiếm chỗ bởi đồ dùng máy móc, thiết bị cố định hoặc di động và cả các diện tích sinh hoạt hở ngoài trời ở phía trên hoặc phía dưới tầng 1 của nhà.
1.4.15
Đường cho xe chữa cháy
Đường được thiết kế cho các phương tiện chữa cháy đi đến và di chuyển trong phạm vi của một cơ sở để thực hiện các hoạt động chữa cháy và cứu nạn cứu hộ.
1.4 16
Đường thoát nạn
Đường di chuyển của người, dẫn trực tiếp ra ngoài hoặc dẫn vào vùng an toàn, tầng lánh nạn, gian lánh nạn và đáp ứng các yêu cầu thoát nạn an toàn của người khi có cháy.
1.4.17
Đường thoát nạn độc lập
Đường thoát nạn được sử dụng riêng cho một phần nhà (các phần nhà khác không có lối ra thoát nạn dẫn vào đường thoát nạn này).
1.4.18
Giới hạn chịu lửa
Thời gian (tính bằng giờ hoặc bằng phút) từ khi bắt đầu thử chịu lửa theo chế độ nhiệt tiêu chuẩn các mẫu cho tới khi xuất hiện một trong các trạng thái giới hạn của kết cấu và cấu kiện.
1.4.19
Gian lánh nạn
Khu vực bố trí trong tầng lánh nạn dùng để sơ tán tạm thời khi xảy ra sự cố cháy.
1.4.20
Gian kỹ thuật
Gian phòng bố trí các thiết bị kỹ thuật của tòa nhà hoặc tầng nhà Các gian kỹ thuật có thể bố trí trên toàn bộ hoặc một phần của tầng kỹ thuật
1.4.21
Gian phòng
Không gian bên trong nhà có công năng nhất định và được giới hạn bởi các kết cấu xây dựng.
1.4.22
Gian phòng có người làm việc thường xuyên
Gian phòng mà con người có mặt ở đó không ít hơn 2 giờ liên tục hoặc có mặt tổng cộng 6 giờ trong một ngày đêm.
1.4.23
Hành lang bên
Hành lang mà ở một phía có thông gió với bên ngoài, không bị chắn, liên tục theo chiều dài, với chiều cao thông thuỷ tinh từ đỉnh của tường chân ở mép hành lang lên phía trên không nhỏ hơn 1,2 m.
1.4.24
Hệ thống bảo vệ chống cháy
Hệ thống bảo vệ chống cháy bao gồm: hệ thống bảo vệ chống nhiễm khói, hệ thống họng nước chữa cháy bên trong, hệ thống cấp nước chữa cháy ngoài nhà, các hệ thống chữa cháy tự động, hệ thống báo cháy và âm thanh công cộng, hệ thống đèn chiếu sáng sự cố và đèn chỉ dẫn thoát nạn thang máy chữa cháy, phương tiện cứu nạn cứu hộ, giải pháp kết cấu, giải pháp thoát nạn, giải pháp ngăn khói, ngăn cháy lan.
1.4.25
Hệ thống cấp không khí chống khói
Hệ thống được điều khiển tự động từ xa, có tác dụng ngăn chặn nhiễm khói khi có cháy đối với các gian phòng thuộc vùng an toàn, các buồng thang bộ, các giếng thang máy, các khoang đệm ngăn cháy bằng cách cấp không khí từ ngoài vào và tạo ra áp suất dư trong các khu vực trên, cũng như có tác dụng ngăn chặn việc lan truyền các sản phẩm cháy và cấp không khí bù lại thể tích sản phẩm cháy đã bị đẩy ra ngoài.
1.4.26
Hệ thống hút xả khói
Hệ thống được điều khiển tự động từ xa, có tác dụng xả khói và các sản phẩm cháy qua cửa thu khói ra ngoài trời.
1.4.27
Họng nước chữa cháy
Tổng hợp các thiết bị chuyên dùng gồm van khóa, vòi, lăng phun được lập đặt sẵn để triển khai đưa nước đến đám cháy.
1.4.28
Khoảng cách phòng cháy chống cháy
Khoảng cách quy định giữa các nhà và công trình với mục đích ngăn cản cháy lan.
1.4.29
Khoang cháy
Một phần của nhà, được ngăn cách bởi các tường ngăn cháy và (hoặc) sàn ngăn cháy hoặc mái ngăn cháy, với giới hạn chịu lửa của các kết cấu ngăn chia bảo đảm việc đám cháy không lan ra ngoài khoang cháy trong suốt thời gian đám cháy
1.4.30
Khoang đệm
Không gian chuyển tiếp giữa hai cửa đi, dùng để bảo vệ tránh sự xâm nhập của khói và của các khí khác khi đi vào nhà, vào buồng thang bộ, hoặc vào các gian phòng khác của nhà.
1.4.31
Khoang đệm ngăn cháy
Khoang đệm bảo vệ lỗ mở trên bộ phận ngăn cháy, được bao che bằng các sàn ngăn cháy và vách ngăn cháy, có hai lỗ mở đặt kế tiếp nhau với bộ phận chèn bịt ngăn cháy hoặc nhiều hơn hai lỗ mở với bộ phận chèn bịt ngăn cháy khi được cung cấp cưỡng bức không khí bên ngoài vào khoang đệm sao cho đủ để khoang đệm không bị nhiễm khói khi có cháy.
1.4.32
Khói
Bụi khí hình thành bởi sản phẩm cháy không hoàn toàn của vật liệu dưới dạng lỏng và (hoặc) rán
1.4.33
Lối ra thoát nạn (lối thoát nạn, cửa thoát nạn)
Lối hoặc cửa dẫn vào đường thoát nạn, dẫn ra ngoài trực tiếp hoặc dẫn vào vùng an toàn, tầng lánh nạn, gian lánh nạn.
1.4.34
Lối ra thoát nạn độc lập
Lối ra thoát nạn dẫn vào đường thoát nạn và không quá các phần nhà (gian phòng) có công năng khác.
1.4.35
Lối ra thoát nạn riêng
Lối ra thoát nạn từ phần nhà (gian phòng) dẫn vào đường thoát nạn độc lập, hoặc dẫn ra ngoài trực tiếp, hoặc dẫn trực tiếp vào vùng an toàn, tầng lánh nạn, gian lánh nạn
1.4.36
Lớp bê tông bảo vệ, chiều dày lớp bê tông bảo vệ
Lớp bê tông tính từ biên (mép) cấu kiện đền bề mặt gần nhất của cốt thép.
Chiều dày lớp bê tông bảo vệ là chiều dày tính từ biên (mép) cấu kiện đến bề mặt gần nhất của cốt thép.
1.4.37
Mái có khai thác sử dụng
Mái nhà có sự có mặt thường xuyên của con người (không ít hơn 2 giờ liên tục hoặc tổng thời gian không ít hơn 6 giờ trong vòng một ngày đêm).
1.4.38
Ngọn lửa
Vừng cháy ở pha khí với bức xạ nhìn thấy được.
1.4.39
Nhà
Công trình xây dựng có chức năng chính là bảo vệ, che chắn cho người hoặc vật chứa bên trong, thông thường được bao che một phần hoặc toàn bộ và được xây dựng ở một vị trí cố định.
1.4.40
Nhà chung cư
Nhà có từ 2 tầng trở lên, có nhiều căn hộ, có lối đi, cầu thang chung, có phần sở hữu riêng, phần sở hữu chung và hệ thống công trình hạ tầng sử dụng chung cho các hộ gia đình, cá nhân, tổ chức, bao gồm nhà chung cư được xây dựng với mục đích để ở và nhà chung cư được xây dựng có mục đích sử dụng hỗn hợp để ở và kinh doanh (còn gọi là nhà chung cư hỗn hợp)
1.4.41
Nhà hỗn hợp
Nhà có nhiều công năng sử dụng khác nhau (ví dụ: một nhà được thiết kế sử dụng làm văn phòng, dịch vụ thương mại, hoạt động công cộng và cụ thể có các phòng ở)
CHÚ THÍCH: Nhà hỗn hợp phải áp dụng các quy định về an toàn cháy đối với nhà hỗn hợp khi diện tích sàn xây dựng dùng cho mỗi công năng của nhà không vượt quá 70 % tổng diện tích sàn xây dựng của nhà (không bao gồm các diện tích sàn dùng cho hệ thống kỹ thuật, phòng cháy chữa cháy, gian lánh nạn và đỗ xe).
1.4.42
Nhà sản xuất
Nhà mà bên trong có các hoạt động sản xuất công nghiệp và bảo đảm các điều kiện cần thiết cho con người làm việc và vận hành các thiết bị công nghệ.
1.4.43
Nhóm nguy hiểm cháy theo công năng của nhà, công trình, khoang cháy và gian phòng
Đặc trưng phân nhóm của nhà, công trình khoang cháy và gian phòng, được xác định bởi công năng và các đặc điểm sử dụng riêng của nhà công trình, khoang cháy và gian phòng vừa nêu, kể cả các đặc điểm của các quá trình công nghệ của sản xuất trong nhà, công trình, khoang cháy và gian phòng đó.
1.4.44
Nhóm của vật liệu xây dựng theo tính nguy hiểm cháy
Đặc trưng phân nhóm của vật liệu xây dựng dựa trên các mức khác nhau của thông số kết quả thử nghiệm gây cháy cho vật liệu theo các tiêu chuẩn quy định
1.4.45
Phân khoang cháy
Một phần của khoang cháy được ngăn bởi các bộ phận ngăn cháy và (hoặc) khu vực không có tải trọng cháy
1.4.46
Phòng cháy
Tổ hợp các giải pháp tổ chức và kỹ thuật nhằm bảo đảm an toàn cho con người, ngăn ngừa sự cố cháy, hạn chế lan truyền cháy cũng như tạo ra các điều kiện để dập cháy hiệu quả
1.4.47
Quy mô khối tích
Khối tích của một không gian trong phạm vi một nhà hoặc khoang cháy. Khối tích này không bao gồm các tường của thang máy được bảo vệ, buồng thang bộ thoát nạn và các không gian khác (ví dụ: khu vệ sinh và các buồng để đồ) được bao che bằng các tường có giới hạn chịu lửa không thấp hơn 60 phút, đồng thời các lối đi qua tường được bảo vệ bằng cửa ngăn cháy loại 2 có lắp cơ cấu tự đóng. Quy mô khối tích được tính đưa vào các kích thước sau:
a) Kích thước mặt bằng lấy theo khoảng cách giữa các bề mặt hoàn thiện phía trong của tường bao, hoặc ở tất cả các mặt không có tường bao thì tính đến một mặt phẳng thẳng đứng kéo đến cạnh ngoài trên cùng của sàn;
b) Chiều cao lấy theo khoảng cách từ bề mặt trên của sàn phía dưới đến mặt bề mặt dưới của sàn phía trên của không gian;
c) Đối với một nhà hoặc khoang cháy kéo lên đến mái thì lấy theo khoảng cách đến bề mặt dưới của mái hoặc bề mặt dưới của trần của tầng cao nhất trong khoang cháy, bao gồm cả không gian bị chiếm chỗ bởi tất cả các tường, hoặc giếng đứng, kênh dẫn không được bảo vệ, hoặc kết cấu nằm trong không gian đang xét.
1.4.48
Sảnh ngăn khói
Sảnh được bố trí ở phía ngoài lối vào một buồng thang bộ thoát nạn. Thiết kế của sảnh này phải bảo đảm ngăn chặn hoặc giảm thiểu sự xâm nhập của khói vào các buồng thang bộ.
1.4.49
Sảnh thang máy
Không gian trống trước cửa ra vào của thang máy.
1.4.50
Số tầng nhà
Số tầng của tòa nhà bao gồm toàn bộ các tầng trên mặt đất (kể cả tầng kỹ thuật, tầng tum) và tầng bán/nửa hầm, không bao gồm tầng áp mái.
CHÚ THÍCH: Tầng tum không tính vào số tầng nhà của công trình khi chỉ có chức năng sử dụng để bao che lồng cầu thang bộ/giếng thang máy và che chắn các thiết bị kỹ thuật của công trình (nếu có), có diện tích mái tum không vượt quá 30 % diện tích sàn mái.
1.4.51
Đám cháy
Sự cháy không được kiểm soát dẫn đến các thiệt hại về người và (hoặc) tài sản.
1.4.52
Sự cháy
Phản ứng oxy hóa tỏa nhiệt của một chất có kèm theo ít nhất một trong ba yếu tố ngọn lửa, phát sáng, sinh khói.
1.4.53
Tài liệu chuẩn
Bao gồm các tài liệu như các tiêu chuẩn (standard), quy định kỹ thuật (technical specifications), quy phạm thực hành (code of practice) và quy chuẩn kỹ thuật (technical regulation) trong và ngoài nước được các cơ quan, tổ chức có thẩm quyền ban hành.
1.4.54
Tải trọng cháy
Tổng năng lượng nhiệt được giải phóng bởi sự cháy của tất cả các vật liệu có thể cháy trong một không gian công trình
1.4.55
Tầng áp mái
Tầng nằm bên trong không gian của mái dốc mà toàn bộ hoặc một phần mặt đứng của nó được tạo bởi bề mặt mái nghiêng hoặc mặt gấp, trong đó tường bao (nếu có) không cao quá mặt sàn 1,5 m.
1.4.56
Tầng dừng chính (của thang máy)
Tầng có cửa chính của nhà (thường là tầng 1).
1.4.57
Tầng hầm
Tầng mà quá một nửa chiều cao của nó nằm dưới cao độ mặt đất đặt công trình theo quy hoạch được duyệt.
CHÚ THÍCH: Khi xem xét các yêu cầu về an toàn cháy đối với nhà có cao độ mặt đất xung quanh khác nhau, không xác định tầng hầm dưới cao độ mặt đất theo quy hoạch được duyệt là tầng hầm nếu đường thoát nạn từ tầng đá không di chuyển theo hướng từ dưới lên trên.
1.4.58
Tầng lánh nạn
Tầng dùng để sơ tán tạm thời, được bố trí trong tòa nhà có chiều cao PCCC lớn hơn 100 m Tầng lánh nạn có bố trí một hoặc nhiều gian lánh nạn.
1.4.59
Tầng nửa/bán hầm
Tầng mà một nửa chiều cao của nó nằm trên hoặc ngang cao độ mặt đất đặt công trình theo quy hoạch được duyệt
1.4.60
Tầng kỹ thuật
Tầng hoặc một phần tầng bố trí các gian kỹ thuật hoặc các thiết bị kỹ thuật của tòa nhà Tầng kỹ thuật có thể là tầng hầm, tầng nửa hầm, tầng áp mái, tầng trên cùng hoặc tầng thuộc phần giữa của tòa nhà.
1.4.61
Tầng trên mặt đất
Tầng mà cao độ sàn của nó cao hơn hoặc bằng cao độ mặt đất đặt công trình theo quy hoạch được duyệt.
1.4.62
Thang máy chữa cháy
Thang máy được lắp đặt chủ yếu để vận chuyển người nhưng được trang bị thêm các hệ thống điều khiển bảo vệ, thông tin liên lạc và các dấu hiệu để cho phép những thang máy đó được sử dụng dưới sự điều khiển trực tiếp của lực lượng chữa cháy đến được các tầng của nhà khi có cháy xảy ra
1.4.63
Thông gió thoát khói
Quá trình trao đổi khí được điều khiển, diễn ra bên trong nhà khi có cháy ở một trong những gian phòng của nhà, có tác dụng ngăn chặn các tác động có hại của các sản phẩm cháy (gia tăng nồng độ các chất độc, gia tăng nhiệt độ và thay đổi mật độ quang học của không khí) đến con người và tài sản.
1.4.64
Tính nguy hiểm cháy của chất, vật liệu xây dựng
Trạng thái của chất và vật liệu và được đặc trưng bởi khả năng làm phát sinh sự cháy hoặc nổ của chất và vật liệu.
1.4.65
Tính nguy hiểm cháy của đối tượng bảo vệ
Trạng thái của đối tượng bảo vệ và được đặc trưng bởi khả năng làm phát sinh và phát triển đám cháy, cũng như sự tác động của các yếu tố nguy hiểm cháy đối với người và tài sản.
1.4.66
Tính chịu lửa
Tính chất chống lại các tác động của đám cháy và chống sự lan truyền các yếu tố nguy hiểm của đám cháy.
1.4.67
Van khói
Van ngăn cháy thường đóng, chỉ yêu cầu giới hạn chịu lửa E và được lắp đặt trực tiếp trên lỗ mở của các giếng hút khói trong các hành lang và sảnh được bảo vệ chống khói (tiếp theo gọi là hành lang)
1.4.68
Van ngăn cháy
Thiết bị được điều khiển tự động từ xa, dùng để che chắn các kênh thông gió hoặc các lỗ mở trên kết cấu bao che của nhà, có giới hạn chịu lửa đánh giá theo tiêu chí El. Van ngăn cháy gồm các loại sau:
Van ngăn cháy thưởng mở (đóng khi có cháy);
Van ngăn cháy thường đóng (mở khi có cháy hoặc sau cháy);
Van ngăn cháy kép (đóng khi có cháy và mở sau cháy);
1.4.69
Vùng an toàn
Vùng mà trong đó con người được bảo vệ khỏi tác động từ các yếu tố nguy hiểm của đám cháy, hoặc trong đó không có các yếu tố nguy hiểm của đám cháy, hoặc các yếu tố nguy hiểm của đám cháy không vượt quá các giá trị cho phép.
1.4.70
Vùng khói
Vùng bên trong một công trình được giới hạn hoặc bao xung quanh bằng các bộ phận ngăn khói hoặc cấu kiện kết cấu để ngăn cản sự lan truyền của lớp khói bốc lên do nhiệt trong các đám cháy.
1.4.71
Xử lý chống cháy cho kết cấu
Dùng biện pháp ngâm tẩm hoặc bọc, phủ các lớp bảo vệ lên kết cấu nhằm làm tăng khả năng chịu lửa và (hoặc) làm giảm tính nguy hiểm cháy của kết cấu đó.
1.4.72
Yếu tố nguy hiểm của đám cháy
Các yếu tố của đám cháy mà tác động của chúng có thể dẫn đến chấn thương, ngộ độc, hoặc nguy hiểm tính mạng và (hoặc) thiệt hại tài sản.
CHÚ THÍCH: Các yếu tố nguy hiểm cháy 1) ngọn lửa và tia lửa; 2) luồng nhiệt, 3) nhiệt độ môi trường tăng cao, 4) nồng độ chất độc tăng cao của các sản phẩm cháy và phân rã nhiệt, 5) nồng độ ôxy thấp, 6) tầm nhìn giảm trong khói.
1.5 Quy định chung
1.5.1 Trong các nhà, khi thiết kế phải có các giải pháp kết cấu, bố trí mặt bằng - không gian và kỹ thuật công trình để bảo đảm khi xảy ra cháy thì:
- Nhà vẫn duy trì được tính ổn định tổng thể và tính bất biến hình trong một khoảng thời gian nhất định, được quy định bằng bậc chịu lửa của nhà;
- Mọi người trong nhà (không phụ thuộc vào tuổi tác và tình trạng sức khỏe) có thể sơ tán ra bên ngoài tới khu vực an toàn (sau đây gọi là bên ngoài) trước khi xuất hiện nguy cơ đe doạ tính mạng và sức khỏe do tác động của các yếu tố nguy hiểm của đám cháy;
Có khả năng cứu người;
Lực lượng và phương tiện chữa cháy có thể tiếp cận đám cháy và thực hiện các biện pháp chữa cháy, cứu người và tài sản;
Không để cháy lan sang các nhà bên cạnh, kể cả trong trường hợp nhà đang cháy bị sập đổ;
Hạn chế các thiệt hại trực tiếp và gián tiếp về vật chất, bao gồm bản thân nhà và các tài sản bên trong nhà, có xét tới tương quan kinh tế giữa giá trị thiệt hại và chi phí cho các giải pháp cùng trang thiết bị kỹ thuật phòng cháy chữa cháy.
1.5.2 Trong quá trình xây dựng phải bảo đảm:
- Thực hiện các giải pháp phòng chống cháy theo thiết kế phù hợp với quy chuẩn, tiêu chuẩn hiện hành và đã được thẩm duyệt theo quy định;
- Thực hiện các yêu cầu phòng cháy chữa cháy cho các công trình đang xây dựng, các công trình phụ trợ và các quy định phòng cháy chữa cháy trong thi công xây lắp theo pháp luật về phòng cháy chữa cháy hiện hành;
Trang bị các phương tiện chữa cháy theo quy định và trong trạng thái sẵn sàng hoạt động;
Khả năng thoát nạn an toàn và cứu người, cũng như bảo vệ tài sản khi xảy ra cháy trong công trình đang xây dựng và trên công trường.
1.5.3 Trong quá trình khai thác sử dụng phải:
Bảo đảm các bộ phận của nhà và khả năng làm việc của các hệ thống bảo vệ chống cháy phù hợp với yêu cầu thiết kế và các tài liệu kỹ thuật của chúng;
Thực hiện các quy định về phòng cháy chữa cháy theo pháp luật hiện hành;
Không được phép thay đổi kết cấu hay các giải pháp bố trí mặt bằng - không gian và kỹ thuật công trình mà không có thiết kế được phê duyệt theo quy định;
Khi tiến hành sửa chữa, không cho phép sử dụng các cấu kiện và vật liệu không đáp ứng các yêu cầu của các quy chuẩn, tiêu chuẩn hiện hành
Khi nhà được cấp phép ở điều kiện phải hạn chế về tải trọng cháy, về số người trong nhà hoặc trong bất kỳ phần nào của nhà, thì bên trong nhà phải đặt thông báo về những hạn chế này ở những nơi dễ thấy, còn bộ phận quản lý nhà phải thiết lập các biện pháp tổ chức riêng về phòng cháy chữa cháy và sơ tán người khi xảy ra cháy.
1.5.4 Khi phân tích tính nguy hiểm cháy của nhà, có thể sử dụng các tình huống tính toán dựa trên tương quan giữa các thông số; sự phát triển và lan truyền các yếu tố nguy hiểm của đám cháy, việc sơ tán người và tổ chức chữa cháy.
2 PHÂN LOẠI KỸ THUẬT VỀ CHÁY
2.1 Phân nhóm vật liệu xây dựng theo tính nguy hiểm cháy
2.1.1 Mục đích phân nhóm
2.1.1.1 Việc phân nhóm chất và vật liệu xây dựng theo tính nguy hiểm cháy được thực hiện nhằm mục đích thiết lập các yêu cầu về an toàn cháy khi có chất và vật liệu, sử dụng bảo quản và vận chuyển, chế biến và tiêu hủy.
2.1.1.2 Để thiết lập các yêu cầu về an toàn cháy đối với kết cấu nhà, công trình và các hệ thống bảo vệ chống cháy vật liệu xây dựng được phân nhóm theo tính nguy hiểm cháy.
2.1.2 Tiêu chí phân nhóm
Tính nguy hiểm cháy của vật liệu xây dựng được xác định theo các đặc tính kỹ thuật về cháy:
- Tính cháy;
- Tính bắt cháy;
- Tính lan truyền lửa trên bề mặt;
- Khả năng sinh khói;
- Độc tính.
2.1.3 Phân nhóm theo tính cháy
2.1.3.1 Theo tính cháy, vật liệu xây dựng được phân thành vật liệu không cháy và vật liệu cháy.
2.1.3.2 Vật liệu xây dựng không cháy là vật liệu có các chỉ tiêu về tính cháy (mức gia tăng nhiệt độ mất khối lượng mẫu thử, thời gian kéo dài của ngọn lửa ổn định) khi thử nghiệm như trong B.1.1, Phụ lục B.
Vật liệu xây dựng không cháy thì không quy định về tính nguy hiểm cháy và không xác định các chỉ tiêu khác (xem B.1.1, Phụ lục B)
2.1.3.3 Vật liệu xây dựng cháy được phân thành 4 nhóm:
- Ch1 (cháy yếu);
- Ch2 (cháy vừa phải);
- Ch3 (cháy mạnh vừa);
- Ch4 (cháy mạnh).
Tính cháy và các nhóm của vật liệu xây dựng theo tính cháy được xác định theo B.1.2, Phụ lục B
2.1.4 Phân nhóm theo tính bắt cháy
Theo tính bắt cháy vật liệu xây dựng cháy được phân thành 3 nhóm:
- BC1 (khó bắt cháy);
BC2 (bắt cháy vừa phải);
BC3 (dễ bắt cháy).
Nhóm vật liệu xây dựng theo tính bắt cháy được xác định theo B.1.3. Phụ lục B
2.1.5 Phân nhóm theo tính lan truyền lửa
Theo tính lan truyền lửa trên bề mặt, vật liệu xây dựng cháy được phân thành 4 nhóm
LT1 (Không lan truyền);
LT2 (lan truyền yếu);
LT3 (lan truyền vừa phải);
LT4 (lan truyền mạnh).
Nhóm vật liệu xây dựng theo tính lan truyền lửa trên bề mặt được quy định cho lớp vật liệu bề mặt của mái và sàn, kể cả lớp thảm trải sàn, theo B.1.4, Phụ lục B
Đối với các vật liệu xây dựng khác không xác định và không quy định việc phân nhóm về lan truyền lửa trên bề mặt.
2.1.6 Phân nhóm theo khả năng sinh khói
Theo khả năng sinh khói, vật liệu xây dựng cháy được phân thành 3 nhóm:
- SK1 (khả năng sinh khói thấp);
- SK2 (khả năng sinh khói vừa phải);
- SK3 (khả năng sinh khói cao).
Nhóm vật liệu xây dựng theo khả năng sinh khói được xác định theo B.1.5, Phụ lục B.
2.1.7 Phân nhóm theo độc tính
Theo độc tính của các sản phẩm cháy, vật liệu xây dựng cháy được phân thành 4 nhóm:
- ĐT1 (độc tính thấp);
- ĐT2 (độc tính vừa phải);
- ĐT3 (độc tính cao);
- ĐT4 (độc tính đặc biệt cao).
Nhóm vật liệu xây dựng theo độc tính của các sản phẩm cháy được xác định theo B.1.6, Phụ lục B
2.1.8 Phân cấp theo tính nguy hiểm cháy
2.1.8.1 Theo tính nguy hiểm cháy, vật liệu xây dựng được phân thành các cấp nguy hiểm cháy tăng dần từ CV0, CV1, CV2, CV3, CV4 đến CV5.
CHÚ THÍCH: Cấp nguy hiểm cháy của vật liệu xây dựng là chỉ tiêu tổng hợp của các nhóm nguy hiểm cháy của vật liệu nêu tại 2.1.2.
2.1.8.2 Cấp nguy hiểm cháy của vật liệu xây dựng được xác định theo B.1.7, Phụ lục B.
2.2 Cấu kiện xây dựng
2.2.1 Mục đích phân loại
2.2.1.1 Cấu kiện xây dựng được phân loại theo tính chịu lửa và tính nguy hiểm cháy
2.2.1.2 Cấu kiện xây dựng được phân loại theo tính chịu lửa để xác định khả năng sử dụng chúng trong nhà, công trình và khoang cháy có bậc chịu lửa nhất định hoặc để xác định bậc chịu lửa của nhà, công trình và khoang cháy.
2.2.13 Cấu kiện xây dựng được phân loại Theo tính nguy hiểm cháy để xác định mức độ tham gia của chúng vào sự phát triển đám cháy và khả năng hình thành các yếu tố nguy hiểm của đám cháy.
2.2.2 Phân loại cấu kiện xây dựng theo tính chịu lửa
2 2.2.1 Các cấu kiện xây dựng của nhà và công trình, phụ thuộc vào khả năng của chúng chống lại tác động của đám cháy và sự lan truyền các yếu tố nguy hiểm cháy của đám cháy trong điều kiện thử nghiệm tiêu chuẩn, được phân thành các cấu kiện xây dựng với các giới hạn chịu lửa như sau:
- Không quy định;
- Không nhỏ hơn 15 min;
- Không nhỏ hơn 30 min;
- Không nhỏ hơn 45 min;
- Không nhỏ hơn 60 min;
- Không nhỏ hơn 90 min;
- Không nhỏ hơn 120 min;
- Không nhỏ hơn 150 min;
- Không nhỏ hơn 180 min;
- Không nhỏ hơn 240 min.
2.2.2.2 Giới hạn chịu lửa của cấu kiện xây dựng được xác định trong điều kiện thử nghiệm tiêu chuẩn. Thời điểm đạt tới giới hạn chịu lửa của các cấu kiện chịu lực và bao che trong điều kiện thử nghiệm tiêu chuẩn hoặc theo kết quả tính toán được xác định theo thời gian đạt tới một hoặc một số dấu hiệu nối tiếp nhau của các trạng thái giới hạn:
- Mất khả năng chịu lực (ký hiệu bằng chữ R);
- Mất tính toàn vẹn (ký hiệu bằng chữ E);
- Mất khả năng cách nhiệt (ký hiệu bằng chữ I) do nhiệt độ ở bề mặt không đốt nóng tăng đến giá trị giới hạn;
Mất khả năng hạn chế bức xạ nhiệt (ký hiệu bằng chữ W) do thông lượng nhiệt ở khoảng cách quy định từ bề mặt không bị đốt nóng của cấu kiện/kết cấu đạt tới giá trị giới hạn.
CHÚ THÍCH 1: Giới hạn chịu lửa của cấu kiện xây dựng được xác định bằng thử nghiệm chịu lửa theo TCVN 9311-1 đến TCVN 9311-8 hoặc các tiêu chuẩn tương đương hoặc bằng tính toán theo tiêu chuẩn thiết kế chịu lửa được áp dụng.
Giới hạn chịu lửa của các ống dẫn khói, không khí được xác định theo tiêu chuẩn ISO 6944 hoặc các tiêu chuẩn tương đương.
CHÚ THÍCH 2: Giới hạn chịu lửa yêu cầu của các cấu kiện xây dựng cụ thể được quy định trong quy chuẩn này và trong các quy chuẩn kỹ thuật cho từng loại công trình. Giới hạn chịu lửa yêu cầu của cấu kiện xây dựng được ký hiệu bằng REI, REW, EI, EW, EIW, RE hoặc R kèm theo các chỉ số tương ứng về thời gian chịu tác động của lửa tính bằng phút. Ví dụ: cấu kiện có giới hạn chịu lửa yêu cầu là REI 120 nghĩa là cấu kiện phải duy trì được đồng thời cả ba khả năng: chịu lực, toàn vẹn và cách nhiệt trong khoảng thời gian chịu tác động của lửa là 120 phút. Cấu kiện có giới hạn chịu lửa yêu cầu là R 60, thì cấu kiện chỉ phải duy trì khả năng chịu lực trong thời gian 60 phút, không yêu cầu về khả năng cách nhiệt và tính toàn vẹn.
CHÚ THÍCH 3: Một cấu kiện xây dựng được cho là bảo đảm yêu cầu về giới hạn chịu lửa nếu thoả mãn một trong các điều kiện sau:
a) Cấu kiện có cấu tạo với đặc điểm kỹ thuật giống như mẫu thử nghiệm chịu lửa và mẫu này khi thử nghiệm có giới hạn chịu lửa không nhỏ hơn giới hạn chịu lửa yêu cầu của cấu kiện đó.
b) Giới hạn chịu lửa của cấu kiện được xác định bằng tính toán theo tiêu chuẩn thiết kế chịu lửa áp dụng không nhỏ hơn giới hạn chịu lửa yêu cầu của cấu kiện đó.
c) Cấu kiện có cấu tạo với đặc điểm kỹ thuật phù hợp với cấu kiện nêu trong Phụ lục F mà giới hạn chịu lửa danh định tương ứng cho trong phụ lục này không nhỏ hơn giới hạn chịu lửa yêu cầu của cấu kiện đó.
2.2.3 Phân cấp cấu kiện xây dựng theo tính nguy hiểm cháy
2.2.3.1 Theo tính nguy hiểm cháy, cấu kiện xây dựng được phân thành 4 cấp:
K0 (không nguy hiểm cháy);
K1 (ít nguy hiểm cháy);
K2 (nguy hiểm cháy vừa phải),
K3 (nguy hiểm cháy).
2.2.3.2 Giá trị các tiêu chí để xếp cấu kiện xây dựng vào một cấp nguy hiểm cháy nhất định được xác định phù hợp với các phương pháp nêu trong các tiêu chuẩn quốc gia (hoặc tương đương) về thử nghiệm an toàn cháy.
CHÚ THÍCH 1: Cho phép xếp cấu kiện xây dựng vào cấp nguy hiểm cháy mà không cần thử nghiệm như sau:
a) Cấp K0 - nếu cấu kiện được chế tạo chỉ từ vật liệu không cháy;
b) Cấp K1 - nếu bề mặt ngoài của cấu kiện được cấu tạo từ vật liệu có đồng thời các chỉ tiêu kỹ thuật về cháy không nguy hiểm hơn Ch1, BC1, SK1;
c) Cấp K2 - nếu bề mặt ngoài của cấu kiện được cấu tạo từ vật liệu có đồng thời các chỉ tiêu kỹ thuật về cháy không nguy hiểm hơn Ch2, BC2, SK2;
d) Cấp K3 - nếu bề mặt ngoài của cấu kiện được cấu tạo chỉ từ các vật liệu có một trong các chỉ tiêu kỹ thuật về cháy là Ch3, BC3, SK3
CHÚ THÍCH 2: Cấu kiện tường kính bao che (facad) được coi là cấu kiện có cấp nguy hiểm cháy K0, nếu các bộ phận của nó (bao gồm cả bộ phận liên kết với nhà) được làm từ vật liệu không cháy. Cho phép không xét đến các mạch chèn bịt và lớp phủ mặt ngoài có chiều dày nhỏ hơn 0,3 mm (nếu có)
2.3 Bộ phận ngăn cháy
2.3.1 Mục đích phân loại
Bộ phận ngăn cháy được phân loại theo biện pháp ngăn chặn lan truyền các yếu tố nguy hiểm cháy, cũng như theo tính chịu lửa để lựa chọn kết cấu xây dựng và bộ phận chèn bịt lỗ mở của bộ phận ngăn cháy với giới hạn chịu lửa cần thiết và cấp nguy hiểm cháy.
2.3.2 Phân loại bộ phận ngăn cháy
2.3.2.1 Các bộ phận ngăn cháy gồm tường ngăn cháy, vách ngăn cháy và sàn ngăn cháy, được phân thành các loại như Bảng 1.
CHÚ THÍCH: Ngoài các bộ phận ngăn cháy đó, để ngăn chặn sự lan truyền đám cháy còn có các biện pháp dùng: màn ngăn cháy, màn nước ngăn cháy, khoảng cách phòng cháy chống cháy, khoảng không gian không có tải trọng cháy.
2.3.2.2 Các bộ phận chèn bịt lỗ mở của bộ phận ngăn cháy (cửa đi ngăn cháy, cửa nắp, van ngăn cháy, cửa sổ, màn ngăn cháy) phụ thuộc vào giới hạn chịu lửa của phần ngăn cách của chúng được phân thành các loại như Bảng 2.
CHÚ THÍCH: Giới hạn chịu lửa của các van ngăn cháy của các hệ thống phân phải không khí xác định theo ISO 10294 hoặc các tiêu chuẩn tương đương. Giới hạn chịu lửa của cửa đi, cửa sổ và cửa chắn xác định theo TCVN 9383 hoặc các tiêu chuẩn tương đương.
2.3.2.3 Các khoang đệm ngăn cháy bố trí trong lỗ mở của bộ phận ngăn cháy phụ thuộc vào loại bộ phận cấu thành khoang đệm ngăn cháy được phân thành khoang đệm ngăn cháy loại 1 và loại 2
2.3.3 Yêu cầu đối với bộ phận ngăn cháy
2.3.3.1 Bộ phận ngăn cháy được dùng để ngăn cản đám cháy và các sản phẩm cháy lan truyền từ một khoang cháy hoặc từ một gian phòng có đám cháy tới các gian phòng khác.
2.3.3.2 Bộ phận ngăn cháy được đặc trưng bằng tính chịu lửa và tính nguy hiểm cháy.
Tính chịu lửa của một bộ phận ngăn cháy được xác định bằng tính chịu lửa của các bộ phận cấu thành ra nó, bao gồm.
- Phần ngăn cách (tấm vách, tấm tường, tấm sàn và các bộ phận tương tự);
- Cấu kiện giữ ổn định cho phân ngăn cách (khung, giằng và các cấu kiện tương tự);
- Cấu kiện đỡ phần ngăn cách (dầm đỡ, sườn đỡ, tường đỡ và các bộ phận tương tự);
- Các nút liên kết giữa chúng.
Giới hạn chịu lửa theo trạng thái mất khả năng chịu lực (R) của cấu kiện giữ ổn định cho phần ngăn cách, của cấu kiện đỡ phân ngăn cách và của các nút liên kết giữa chúng không được thấp hơn giới hạn chịu lửa yêu cầu đối với phần ngăn cách.
Tính nguy hiểm cháy của bộ phận ngăn cháy được xác định bằng tính nguy hiểm cháy của phần ngăn cách cùng với các chi tiết liên kết và của các cấu kiện giữ ổn định cho phần ngăn cách.
2.3.3.3 Giới hạn chịu lửa và loại cấu kiện xây dựng thực hiện chức năng bộ phận ngăn cháy, các loại bộ phận chèn bịt tương ứng với chúng và các khoang đệm ngăn cháy được quy định tại Bảng 1.
2.3.3.4 Bộ phận ngăn cháy loại 1 phải có cấp nguy hiểm cháy K0. Trong các trường hợp riêng, cho phép sử dụng cấp nguy hiểm cháy K1 trong các bộ phận ngăn cháy loại 2 đến loại 4.
2.3.3.5 Giới hạn chịu lửa đối với các loại bộ phận chèn bịt lỗ mở tương ứng của bộ phận ngăn cháy được quy định tại Bảng 2.
Bảng 1 - Giới hạn chịu lửa và loại cấu kiện xây dựng thực hiện chức năng bộ phận ngăn cháy, các loại bộ phận chèn bịt tương ứng với chúng và các khoang đệm ngăn cháy
|
Bộ phận ngăn cháy |
Loại bộ phận ngăn cháy |
Giới hạn chịu lửa của bộ phận ngăn cháy |
Loại bộ phận chèn bịt lỗ mở của bộ phận ngăn cháy |
Loại khoang đệm ngăn cháy |
|
1. Tường ngăn cháy |
1 |
REI 150 |
1 |
1 |
|
2 |
REI 45 |
2 |
2 |
|
|
2. Vách ngăn cháy |
1 |
EI 45 |
2 |
1 |
|
2 |
El 15 |
3 |
2 |
|
|
3 Vách ngăn cháy có diện tích kính lớn hơn 25 % diện tích vách |
1 |
EIW 45 1) |
2 |
1 |
|
2 |
EIW 15 1) |
3 |
2 |
|
|
4 Sàn ngăn cháy |
1 |
REI 150 |
1 |
1 |
|
2 |
REI 60 |
2 |
1 |
|
|
3 |
REI 45 |
2 |
1 |
|
|
4 |
REl 15 |
3 |
2 |
|
|
Đối với phần vật liệu khác kính áp dụng chỉ tiêu EI, đối với phần kính áp dụng chỉ tiêu EW. Các vách ngăn cháy đã thử nghiệm đạt chỉ tiêu EI đối với cả phần kính được xem là đạt chỉ tiêu EW. |
||||
Bảng 2 - Giới hạn chịu lửa của các bộ phận chèn bịt của bộ phận ngăn cháy
|
Các bộ phận chèn bịt lỗ mở của bộ phận ngăn cháy |
Loại bộ phận chèn bịt của bộ phận ngăn cháy |
Giới hạn chịu lửa |
|
1. Cửa đi (trừ: cửa đi có tỉ lệ diện tích kính lớn hơn 25 % diện tích cửa đi cửa kín khói), cửa nắp, van ngăn cháy 1), màn ngăn cháy |
1 |
El 60 |
|
2 |
El 30 |
|
|
3 |
EI 15 |
|
|
2. Cửa đi có tỉ lệ diện tích kính lớn hơn 25 % diện tích cửa đi |
1 |
EIW 60 2) |
|
2 |
EIW 30 2) |
|
|
3 |
EIW 15 2) |
|
|
3. Cửa giếng thang máy (khi có yêu cầu về giới hạn chịu lửa) |
2 |
E 30 |
|
4. Cửa sổ |
1 |
E 60 |
|
2 |
E 30 |
|
|
3 |
E 15 |
|
|
1) Giới hạn chịu lửa của van ngăn cháy được phép chỉ lấy theo tính toàn vẹn (E) nếu những van này lắp đặt bên trong các kênh, giếng và đường ống dẫn mà bảo đảm được khả năng chịu lửa yêu cầu đối với cả tính toàn vẹn (E) và tính cách nhiệt (I). 2) Đối với phân vật liệu khác kính áp dụng chỉ tiêu El, đối với phần kính áp dụng chỉ tiêu EW. Các cửa đi đã thử nghiệm đạt chỉ tiêu El đối với cả phần kính được xem là đạt chỉ tiêu EW. |
||
2.3.3.6 Yêu cầu đối với các bộ phận của khoang đệm ngăn cháy các loại được quy định tại Bảng 3.
CHÚ THÍCH: Khi trong bộ phận ngăn cháy có các cửa đi, cửa nắp, van cửa sổ, màn chắn, hay khi ở vị trí các cửa đó có bố trí khoang đệm ngăn cháy thì cửa, van ngăn cháy và khoang đệm ngăn cháy phải được chọn loại cũng có khả năng ngăn cháy phù hợp với loại của bộ phận ngăn cháy theo quy định tại Bảng 1.
Bảng 3 - Yêu cầu đối với các bộ phận của khoang đệm ngăn cháy
|
Loại khoang đệm ngăn cháy |
Loại bộ phận của khoang đệm ngăn cháy |
||
|
Vách ngăn |
Sàn |
Bộ phận chèn bịt lỗ mở |
|
|
1 |
1 |
3 |
2 |
|
2 |
2 |
4 |
3 |
2.4 Cầu thang bộ và buồng thang bộ
2.4.1 Mục đích phân loại
Cầu thang bộ và buồng thang bộ được phân loại nhằm mục đích để xác định các yêu cầu đối với chúng về giải pháp mặt bằng - không gian và giải pháp kết cấu, cũng như để thiết lập các yêu cầu đối với việc sử dụng chúng trên đường thoát nạn cho người.
2.4.2 Phân loại cầu thang bộ
2.4.2.1 Cầu thang và buồng thang bộ dùng để thoát nạn cho người từ nhà và công trình khi có cháy được phân thành các loại sau:
Loại 1 - cầu thang bên trong nhà, được đặt trong buồng thang;
Loại 2 - cầu thang bên trong nhà, để hở;
Loại 3 - cầu thang bên ngoài nhà, để hở.
CHÚ THÍCH 1: "Để hở" nghĩa là không được đặt trong buồng thang bộ.
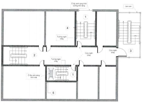
CHÚ THÍCH 2: Một số hình minh họa về các loại cầu thang bộ được thể hiện tai Phụ lục I.
2.4.2.2 Thang chữa cháy để phục vụ cho việc chữa cháy và cứu nạn được phân thành 2 loại sau:
- P1 - thang đứng;
- P2 - thang bậc với độ nghiêng không quá 6:1 (không quá 80°)
2.4.3 Phân loại buồng thang bộ
2.4.3.1 Các buồng thang bộ thoát nạn được phân thành các loại sau phụ thuộc vào mức độ được bảo vệ chống nhiễm khói khi có cháy:
- Buồng thang bộ thông thường;
- Buồng thang bộ không nhiễm khói
CHÚ THÍCH: Một số hình minh họa về các loại buồng thang bộ được thể hiện tại Phụ lục I.
2.4.3.2 Các loại buồng thang bộ thông thường được phân thành các loại:
- L1 - được chiếu sáng tự nhiên qua các lỗ cửa (để hở hoặc lắp kính) ở tường ngoài trên mỗi tầng hoặc không được chiếu sáng tự nhiên trong trường hợp nếu chúng được dành cho thoát nạn chỉ từ các gian phòng của tầng nửa hầm;
- L2 - được chiếu sáng tự nhiên qua các lỗ (để hở hoặc lắp kính) ở trên mái.
2.4.3.3 Các buồng thang bộ không nhiễm khói được phân thành các loại sau, phụ thuộc vào biện pháp bảo vệ chống nhiễm khói khi có cháy;
- N1 - buồng thang bộ có lối vào buồng thang từ mỗi tầng qua một vùng đệm không khí không nhiễm khói theo các đường di chuyển tiếp hở (xem phần 3 về một số trường hợp buồng thang loại N1);
CHÚ THÍCH: Cho phép thay thế buồng thang bộ N1 bằng buồng thang bộ có lối vào buồng thang từ mỗi tầng qua khoang đệm. Cả khoang đệm và buồng thang bộ phải có áp suất. Không khí dương khi có cháy. Việc cấp không khí vào khoang đệm và vào buồng thang bộ là độc lập với nhau
- N2 - buồng thang bộ có áp suất không khí dương (áp suất không khí trong buồng thang cao hơn bên ngoài buồng thang) trong buồng thang bộ khi có cháy;
- N3 - buồng thang bộ có lối vào buồng thang bộ từ mỗi tầng qua khoang đệm ngăn cháy luôn có áp suất không khí dương (áp suất không khí dương trong khoang đệm ngăn cháy là thường xuyên hoặc khi có cháy).
2.5 Nhà, công trình, khoang cháy
2.5.1 Mục đích phân loại
Việc phân loại kỹ thuật vẽ cháy cho nhà, công trình và khoang cháy nhằm thiết lập các yêu cầu an toàn cháy đối với các hệ thống phòng cháy chống cháy cho nhà, công trình phụ thuộc vào công năng (mục đích sử dụng) và tính nguy hiểm cháy của chúng.
2.5.2 Tiêu chí phân loại
Việc phân loại kỹ thuật về cháy cho nhà, công trình, khoang cháy được hiện có kể đến các tiêu chí sau:
- Bậc chịu lửa;
- Cấp nguy hiểm cháy kết cấu;
- Nhóm nguy hiểm cháy theo công năng.
2.5.3 Phân bậc chịu lửa của nhà, công trình, khoang cháy
2.5.3.1 Nhà, công trình, khoang cháy được phân thành 5 bậc chịu lửa I, II, III, IV, V.
2.5.3.2 Thiết lập bậc chịu lửa của nhà, công trình, khoang cháy
Bậc chịu lửa của nhà, công trình, khoang cháy được thiết lập phụ thuộc vào số tầng (hoặc chiều cao PCCC của nhà), nhóm nguy hiểm cháy theo công năng, diện tích khoang cháy (xem Phụ lục H) và tính nguy hiểm cháy của các quá trình công nghệ diễn ra trong nhà, công trình, khoang cháy.
2.5.3.3 Giới hạn chịu lửa cần thiết của kết cấu xây dựng phải được lựa chọn phù hợp với bậc chịu lửa đã chọn của nhà, công trình và khoang cháy. Trừ những trường hợp được quy định riêng trong quy chuẩn này, sự phù hợp giữa bậc chịu lửa của nhà, công trình và khoang cháy với giới hạn chịu lửa của kết cấu xây dựng của chúng được quy định tại Bảng 4.
Bảng 4 - Sự phù hợp giữa bậc chịu lửa của nhà, công trình và khoang cháy với giới hạn chịu lửa của cấu kiện xây dựng của nhà, công trình và khoang cháy
|
Bậc chịu lửa của nhà, công trình và khoang cháy |
Giới hạn chịu lửa của cấu kiện, không nhỏ hơn |
||||||
|
Tường chịu lực, cột chịu lực và các bộ phận chịu lực khác |
Tường ngoài không chịu lực |
Sàn tầng (bao gồm cả sàn tầng áp mái và sàn trên tầng hầm) |
Kết cấu mái không có tầng áp mái |
Các cấu kiện xây dựng của buồng thang bộ |
|||
|
Tấm lợp (kể cả tấm lợp có lớp cách nhiệt) |
Giàn, dầm, xà gồ |
Tường trong |
Bản thang và chiếu thang |
||||
|
I |
R 120 |
E 30 |
REI 60 |
RE 30 |
R 30 |
REI 120 |
R 60 |
|
II |
R 90 |
E 15 |
REI 45 |
RE 15 |
R 15 |
REI 90 |
R 60 |
|
II |
R 45 |
E 15 |
REI 45 |
RE 15 |
R 15 |
REI 60 |
R 45 |
|
IV |
R 15 |
E 15 |
REI 15 |
RE 15 |
R 15 |
REI 45 |
R 15 |
|
V |
Không quy định |
||||||
|
CHÚ THÍCH 1: Trong các nhà có bậc chịu lửa I, II, III thì sàn và trần của tầng hầm, tầng nửa hầm phải làm bằng vật liệu không cháy và có giới hạn chịu lửa ít nhất REI 90. Sàn tầng 1 và tầng trên cùng phải làm bằng vật liệu có tính cháy không thấp hơn Ch1. Trong các nhà có bậc chịu lửa IV, V thì sàn của tầng hầm hoặc tầng nửa hầm phải làm bằng vật liệu có tính cháy không thấp hơn Ch1 và có giới hạn chịu lửa không dưới REl 45. CHÚ THÍCH 2: Không quy định giới hạn chịu lửa của các tấm lợp (kể cả tấm lợp có lớp cách nhiệt) và xà gồ đỡ tấm lợp (trừ các nhà, khoang cháy, gian phòng thuộc nhóm nguy hiểm cháy theo công năng F3.1, F3.2, nhà sản xuất, nhà kho nhóm F5 và các nhà, gian phòng, khoang cháy khác thuộc hạng A, B, C) khi thoả mãn đồng thời các điều kiện sau: Mặt dưới xà gỗ nằm cách sàn ngay dưới chúng một khoảng cách tối thiểu 6,1 m, Tấm lợp và xà gồ được làm từ các vật liệu không cháy hoặc cháy yếu (Ch1). CHÚ THÍCH 3: Đối với nhà (nhà nhóm F1.3 và nhà hỗn hợp) có 2 hoặc 3 tầng hầm thì các cấu kiện kết cấu chịu lực ở tầng hầm phải có giới hạn chịu lửa tối thiểu R 120. CHÚ THÍCH 4: Trang các phòng có sản xuất hoặc bảo quản các chất lỏng cháy được thì sàn phát làm bằng vật liệu không cháy. CHÚ THÍCH 5: Cho phép một phần tường ngoài không chịu lực không cần bảo vệ chống cháy với diện tích xác định Theo E.3, Phụ lục E. CHÚ THÍCH 6: Không quy định giới hạn chịu lửa của tường ngoài không chịu lực đối với các mặt nhà đồng thời thoả mãn các điều kiện sau: - Toàn nhà được trang bị chữa cháy tự động sprinkler Theo TCVN 7336; - Bảo đảm khoảng cách phòng cháy chống cháy tối thiểu tương ứng với 100 % diện tích tường ngoài không cần bảo vệ chống cháy tại E.3, Phụ lục E; - Tường ngoài không chịu lực của nhà có cấp nguy hiểm cháy K0. Vật liệu hoàn thiện tường ngoài (nếu có) là vật liệu không cháy hoặc có tính cháy không thấp hơn Ch1 và tính lan truyền cháy không thấp hơn LT1. |
|||||||
Tường chịu lực, cột chịu lực, hệ giằng, vách cứng, giàn, các bộ phận của sàn giữa các tầng và của mái không có tầng áp mái (dầm, vì kèo, xà, tấm sàn, tấm lợp) được coi là các bộ phận chịu lực của nhà nếu chúng bảo đảm độ bền tổng thể và sự ổn định không gian cho nhà khi có cháy.
Thông tin về các bộ phận chịu lực nêu trên của nhà phải được đơn vị thiết kế chỉ rõ trong tài liệu kỹ thuật của nhà.
Không quy định giới hạn chịu lửa và cấp nguy hiểm cháy của các cấu kiện kết cấu mái có tầng áp mái trong các nhà với mọi bậc chịu lửa Không quy định giới hạn chịu lửa của kết cấu đầu hồi tầng áp mái, trong trường hợp này thì đầu hồi tầng áp mái phải có cấp nguy hiểm cháy tương đương với cấp nguy hiểm cháy của tường bao che nhà. Các cấu kiện, kết cấu thuộc các bộ phận của mái có tầng áp mái phải được đơn vị thiết kế chỉ dẫn trong tài liệu kỹ thuật của nhà.
Không quy định giới hạn chịu lửa đối với bộ phận chèn bịt lỗ mở (cửa, cửa sổ, cửa nắp), cửa trời trên mái, cửa lấy sáng trên mái, và các tấm lợp mái lấy sáng, ngoại trừ các bộ phận chèn bịt lỗ mở trên các bộ phận ngăn cháy và các trường hợp được nói riêng.
Khi giới hạn chịu lửa tối thiểu của các cấu kiện được yêu cầu là R 15 (RE 15, REI 15) thì cho phép sử dụng các kết cấu thép không bọc bảo vệ nếu giới hạn chịu lửa của chúng theo kết quả thử nghiệm hoặc theo tính toán từ R 8 trở lên, hoặc hệ số tiết diện Am/V nhỏ hơn hoặc bằng 250 m-1.
CHÚ THÍCH: Hệ số tiết diện Am/V xác định theo ISO 834-10 hoặc các tiêu chuẩn tương đương
Trong các buồng thang bộ không nhiễm khói loại N1 được phép sử dụng các bản thang và các chiếu thang với giới hạn chịu lửa R 15 và có cấp nguy hiểm cháy K0.
Các khoang cháy được ngăn chia bởi các tường ngăn cháy loại 1 và (hoặc) sàn ngăn cháy loại 1. Cho phép ngăn chia khoang cháy theo phương đứng bằng tầng kỹ thuật được ngăn cách với các tầng liền kề bằng các sàn ngăn cháy loại 2, nếu các tường ngăn cháy loại 1 không lệch khỏi trục chính. Cho phép phân chia khoang cháy trong các nhà có bậc chịu lửa IV và V bằng các tường ngăn cháy loại 2.
2.5.4 Phân cấp nguy hiểm cháy kết cấu của nhà, công trình và khoang cháy
2.5.4.1 Nhà công trình và khoang cháy được phân thành 4 cấp nguy hiểm cháy kết cấu S0, S1, S2 và S3 theo tính nguy hiểm cháy của cấu kiện xây dựng.
2.5.4.2 Thiết lập cấp nguy hiểm cháy kết cấu của nhà, công trình và khoang cháy
Cấp nguy hiểm cháy kết cấu của nhà công trình và khoang cháy được thiết lập phụ thuộc vào số tầng nhóm nguy hiểm cháy theo công năng, diện tích khoang cháy và tính nguy hiểm cháy của các quá trình công nghệ diễn ra trong nhà, công trình và khoang cháy đó.
2.5.4.3 Sự phù hợp giữa cấp nguy hiểm cháy kết cấu của nhà và cấp nguy hiểm cháy của cấu kiện xây dựng
Cấp nguy hiểm cháy của cấu kiện xây dựng phải phù hợp với cấp nguy hiểm cháy kết cấu của nhà, công trình và khoang cháy. Sự phù hợp giữa cấp nguy hiểm cháy kết cấu của nhà, công trình và khoang cháy với cấp nguy hiểm cháy dã lựa chọn của kết cấu xây dựng của chúng được quy định tại Bảng 5.
2.5.4.4 Không quy định về cấp nguy hiểm cháy đối với các bộ phận chèn bịt lỗ thông trên kết cấu bao che của nhà (cửa, cửa sổ cửa nắp), cửa trời trên mái, cửa lấy sáng trên mái, trừ các bộ phận chèn bịt lỗ mở trong bộ phận ngăn cháy.
CHÚ THÍCH: Khi áp dụng vào thực tế xây dựng các kết cấu hoặc hệ kết cấu mà không thể xác định được giới hạn chịu lửa hoặc cấp nguy hiểm cháy của chúng trên cơ sở các thử nghiệm chịu lửa tiêu chuẩn hoặc theo tính toán thì cần tiến hành thử nghiệm chịu lửa trên các bộ phận của kết cấu hoặc kết cấu đó theo tài liệu chuẩn được lựa chọn áp dụng.
Bảng 5 - Sự phù hợp giữa cấp nguy hiểm cháy kết cấu của nhà, công trình và khoang cháy với cấp nguy hiểm cháy của cấu kiện xây dựng
|
Cấp nguy hiểm cháy kết cấu của nhà, công trình và khoang cháy |
Cấp nguy hiểm cháy của cấu kiện xây dựng |
||||
|
Các bộ phận chịu lực dạng thanh (cột, xà, giàn và tương tự) |
Tường ngoài từ phía ngoài |
Tường, vách ngăn, sàn giữa các tầng, và mái không có tầng áp mái |
Tường của buồng thang bộ; bộ phận ngăn cháy |
Bàn thang và chiếu thang trong buồng thang bộ |
|
|
S0 |
K0 |
K0 |
K0 |
K0 |
K0 |
|
S1 |
K1 |
K2 |
K1 |
K0 |
K0 |
|
S2 |
K3 |
K3 |
K2 |
K1 |
K1 |
|
S3 |
Không quy định |
K1 |
K3 |
||
2.5.5 Phân nhóm nguy hiểm cháy theo công năng đối với nhà, công trình, khoang cháy và gian phòng
2.5.5.1 Nhà và các phần của nhà (khoang cháy, các gian phòng hoặc nhóm các gian phòng có công năng liên quan với nhau) được phân thành các nhóm nguy hiểm cháy theo công năng tùy thuộc vào đặc điểm sử dụng chúng, vào mức đe dọa tới sự an toàn của người trong trường hợp xảy ra đám cháy có tính đến lứa tuổi, trạng thái thể chất, khả năng có người đang ngủ, nhóm người sử dụng theo công năng chính và số người của nhóm đó Phân nhóm nguy hiểm cháy theo công năng được quy định tại Bảng 6.
2.6.5.2 Các gian phòng sản xuất và các gian phòng kho, kể cả các phòng thí nghiệm và nhà Xưởng có diện tích trên 50 m2, các gian phòng chuẩn bị đồ ăn có thiết bị đun nấu có công suất trên 10 kW trong các nhà thuộc nhóm F1, F2, F3 và F4, được xếp vào nhóm F5.
2.5.5.3 Trong các nhà có nhóm nguy hiểm cháy theo công năng nhất định, mà trong trường hợp chung cho phép bố trí nhóm các gian phòng và các gian phòng có nhóm nguy hiểm cháy theo công năng khác, thì ngoài việc tuân theo các yêu cầu chung của quy chuẩn này, cần phải bảo đảm các điều kiện bổ sung theo các tiêu chuẩn thiết kế các dạng cụ thể của nhà và các thiết bị kỹ thuật tương ứng đó.
Bảng 6 - Phân nhóm nhà1) dựa trên tính nguy hiểm cháy theo công năng
|
Nhóm |
Mục đích sử dụng |
Đặc điểm sử dụng |
|
F1 |
Nhà để ở thường xuyên hoặc tạm thời (trong đó có cả để ở suốt ngày đêm) |
Các gian phòng trong nhà này thường được sử dụng cả ngày và đêm. Nhóm người trong đó có thể gồm nhiều lứa tuổi và trạng thái thể chất khác nhau. Đặc trưng của các nhà này là có các phòng ngủ. |
|
F1.1 |
Nhà trẻ, trường mẫu giáo, mầm non; bệnh viện (không bao gồm bệnh viện dã chiến), khói nhà điều trị nội trú của cơ sở phòng chống dịch bệnh, phòng khám đa khoa chuyên khoa, nhà hộ sinh; nhà chuyên dùng cho người cao tuổi và người khuyết tật (không phải nhà căn hộ), nhà dưỡng lão; khối nhà ngủ của các trường nội trú và của các cơ sở cho trẻ em; và các nhà có đặc điểm sử dụng tương tự. |
|
|
F1.2 |
Khách sạn, nhà khách, nhà nghỉ, nhà trọ; ký túc xá, nhà ở tập thể, khối nhà ngủ của các cơ sở điều dưỡng, nghỉ dưỡng, phục hồi chức năng, chỉnh hình, và các cơ sở lưu trú khác có đặc điểm sử dụng tương tự. |
|
|
F1.3 |
Nhà chung cư, và các nhà có đặc điểm sử dụng tương tự |
|
|
F1.4 |
Nhà ở riêng lẻ, và các nhà có đặc điểm tương tự. |
|
|
F2 |
Nhà của các cơ sở văn hoá, thể thao |
Các gian phòng chính trong các nhà này được đặc trưng bởi số lượng lớn khách lưu lại trong một khoảng thời gian nhất định. |
|
F2 1 |
Nhà hát, rạp chiếu phim, rạp xiếc, phòng hoà nhạc; câu lạc bộ, hộp đêm, vũ trường, quán bar, phòng hát, nhà kinh doanh karaoke và các cơ sở tương tự khác trong các gian phòng kín, các công trình thể thao có khán đài, nhà thi đấu, cung thể thao trong nhà; thư viện; trung tâm hội nghị, tổ chức sự kiện không bao gồm dịch vụ ăn uống, và các nhà khác có đặc điểm sử dụng tương tự với số lượng chỗ ngồi tính toán cho người trong các gian phòng kín. |
|
|
F2.2 |
Nhà bảo tàng, triển lãm; phòng nhảy; khối nhà của các công trình vui chơi giải trí, thủy cung, và các nhà có đặc điểm sử dụng tương tự. |
|
|
F2.3 |
Nhà của các cơ sở được đề cập ở F2.1 nhưng hở ra ngoài trời, công viên giải trí; và các nhà có đặc điểm sử dụng tương tự. |
|
|
F2.4 |
Nhà của các cơ sở được đề cập ở F2.2 nhưng hở ra ngoài trời. |
|
|
F3 |
Nhà của các cơ sở thương mại, kinh doanh và dịch vụ dân cư |
Các gian phòng của các nhà này được đặc trưng bởi số lượng khách lớn hơn so với nhân viên phục vụ. |
|
F3.1 |
Nhà của cơ sở bán hàng, phòng trưng bày các sản phẩm hàng hóa, nhà hội chợ, trung tâm thương mại, điện máy, siêu thị, cửa hàng bách hóa, cửa hàng tiện ích; nhà sách; cửa hàng kinh doanh mô-tô, xe gắn máy; và các nhà có đặc điểm sử dụng tương tự. |
|
|
F3.2 |
Nhà hàng, cửa hàng ăn uống, giải khát, trạm dừng nghỉ; trung tâm hội nghị, tổ chức sự kiện có bao gồm dịch vụ ăn uống; và các nhà có đặc điểm sử dụng tương tự. |
|
|
F3.3 |
Nhà ga đường sắt, nhà ga hàng không, nhà chờ cáp treo vận chuyển người, bến phà, bến xe khách; và các nhà có đặc điểm sử dụng tương tự. |
|
|
F3.4 |
Phòng khám chữa bệnh (ngoại trú) đa khoa, chuyên khoa và cấp cứu; khối nhà điều trị ngoại trú của cơ sở y tế khác như trạm y tế, chỉnh hình, thẩm mỹ viện, phục hồi chức năng; nhà có kinh doanh dịch vụ xoa bóp; và các nhà có đặc điểm sử dụng tương tự. |
|
|
F3.5 |
Các gian phòng cho khách của các doanh nghiệp, cơ sở dịch vụ đời sống và công cộng có số lượng chỗ ngồi cho khách Không được tính toán (bưu điện, bưu cục, quỹ tiết kiệm, phòng vé, văn phòng tư vấn luật, văn phòng công chứng; cửa hàng giặt là, nhà may, sửa chữa giày và quần áo, cửa hàng cắt tóc), cơ sở phục vụ lễ tang, và các cơ sở tương tự. |
|
|
F3.6 |
Các khu liên hợp thể dục thể thao và các khu tập luyện, thi đấu thể thao không có khán đài; các gian phòng dịch vụ; sân vận động, trường đưa, trường bắn; và các nhà có đặc điểm sử dụng tương tự. |
|
|
F4 |
Các công trình giáo dục, đào tạo, trụ sở làm việc, tổ chức khoa học, nghiên cứu và thiết kế, cơ quan quản lý |
Các gian phòng trong các nhà này được sử dụng một số thời gian nhất định trong ngày, bên trong phòng thường có nhóm người cố định, quen với điều kiện tại chỗ, có đó tuổi và trạng thái thể chất xác định. |
|
F4.1 |
Các trường tiểu học, trung học cơ sở, cơ sở đào tạo phổ thông có nhiều cấp học (không bao gồm mầm non, mẫu giáo) trường trung học phổ thông, trung học chuyên nghiệp, trường dạy nghề, trường đào tạo người chuyên hoạt động tôn giáo ở lứa tuổi thiếu niên, và các nhà có đặc điểm sử dụng tương tự. |
|
|
F4.2 |
Các trường đại học, cao đẳng, học viện, trung cấp chuyên nghiệp, trường bồi dưỡng nâng cao nghiệp vụ, trường công nhân kỹ thuật; trường đào tạo người chuyên hoạt động tôn giáo không thuộc nhóm F4.1; và các nhà có đặc điểm sử dụng tương tự. |
|
|
F4.3 |
Trụ sở của các cơ quan quản lý, cơ quan Nhà nước các cấp, nhà làm việc của nhân viên văn phòng trong các doanh nghiệp; trụ sở của các tổ chức chính trị, tổ chức chính trị - xã hội; văn phòng làm việc của các tổ chức xã hội - nghề nghiệp, đơn vị sự nghiệp, doanh nghiệp và các tổ chức, cá nhân khác; trụ sở của các tôn giáo; tổ chức thiết kế, tổ chức nghiên cứu khoa học, trạm nghiên cứu địa chấn, trạm khí tượng thủy văn, cơ sở nghiên cứu vũ trụ; tổ chức thông tin và nhà xuất bản; cơ sở truyền thanh, truyền hình, viễn thông, nhà lắp đặt thiết bị thông tin, ngân hàng, cơ quan, văn phòng; và các nhà có đặc điểm sử dụng tương tự. |
|
|
F4.4 |
Các trạm (đội) chữa cháy và cứu nạn, cứu hộ. |
|
|
F5 |
Các nhà, công trình, gian phòng có công năng sản xuất và kho |
Các gian phòng trong các nhà này được đặc trưng bởi sự có mặt của nhóm người làm việc cố định, kể cả làm việc suốt ngày đêm. |
|
F5.1 |
Các nhà sản xuất, các gian phòng sản xuất và thí nghiệm, nhà xưởng, cửa hàng sửa chữa, bảo đường ô-tô. mô-tô, xe gắn máy; và các nhà có đặc điểm sử dụng tương tự. |
|
|
F5.2 |
Các nhà và công trình kho, ga ra để xe không có dịch vụ kỹ thuật và sửa chữa; kho chứa sách, kho lưu trữ, trung tâm lưu trữ, trung tâm cơ sở dữ liệu chuyên ngành, các gian phòng kho, khu vực lưu giữ hàng hóa của cảng cạn; kho hàng hóa, vật tư cháy được hoặc hàng hóa vật tư không cháy đựng trong các bao bì cháy được, và các nhà có đặc điểm sử dụng tương tự. |
|
|
F5.3 |
Các nhà phục vụ nông nghiệp và phát triển nông thôn. |
|
|
1) Bảng này áp dụng cho nhà, công trình, khoang cháy, gian phòng hoặc nhóm các phòng có công năng liên quan với nhau. |
||
2.5.6 Phân hạng nhà, công trình và gian phòng có công năng sản xuất và kho theo tính nguy hiểm cháy và cháy nổ
2.5.6.1 Mục đích phân hạng
Việc phân hạng nhà, công trình và gian phòng có công năng sản xuất và kho theo tính nguy hiểm cháy và cháy nổ được thực hiện nhằm mục đích thiết lập các yêu cầu về an toàn cháy hưởng tới việc ngăn ngừa khả năng xuất hiện đám cháy và bảo đảm việc bảo vệ chống cháy cho người và tài sản trong trường hợp xảy ra đám cháy trong nhà, công trình và gian phòng.
2.5.6.2 Phân hạng gian phòng
2.5.6.2.1 Theo tính nguy hiểm cháy và cháy nổ, các gian phòng có công năng sản xuất và kho được phần thanh các hạng:
- Nguy hiểm cháy nổ cao (A);
- Nguy hiểm cháy nổ (B);
- Nguy hiểm cháy (C1, C2, C3 và C4)
- Nguy hiểm cháy vừa phải (D);
- Nguy hiểm cháy thấp (E).
Các hạng gian phòng có công năng sản xuất và kho được quy định tại Phụ lục C.
2.5.6.2.2 Nhà, công trình và gian phòng có công năng khác không phân hạng theo tính nguy hiểm cháy và cháy nổ.
2.5.6.2.3 Hạng gian phòng theo tính nguy hiểm cháy và cháy nổ được xác định căn cứ trên loại chất và vật liệu cháy có trong gian phòng, số lượng và tính chất nguy hiểm cháy của chúng, cũng như căn cứ trên các giải pháp mặt bằng - không gian của gian phòng và đặc điểm của các quá trình công nghệ diễn ra trong gian phòng.
2.5.6.2.4 Việc xác định hạng gian phòng được thực hiện bằng cách lần lượt kiểm tra gian phòng thuộc hạng nguy hiểm hơn (A) đến ít nguy hiểm hơn (E) theo Bảng C.1. Phụ lục C.
2.5.6.3 Phân hạng nhà, công trình
2.5.6.3.1 Theo tính nguy hiểm cháy và cháy nổ, nhà, công trình được phân thành các hạng A, B, C, D và E.
2.5.6.3.2 Hạng của nhà và công trình theo tính nguy hiểm cháy và cháy nổ được xác định căn cứ trên tỉ lệ và tổng diện tích các gian phòng thuộc hạng này hay hạng khác trong nhà và công trình đó.
2.5.6.3.3 Việc xếp hạng nhà và công trình được quy định tại Phụ lục C.
3 BẢO ĐẢM AN TOÀN CHO NGƯỜI
3.1 Quy định chung
3.1.1 Các yêu cầu trong phần này nhằm bảo đảm:
- Thoát nạn cho người kịp thời và không bị cản trở;
- Cứu người bị tác động của các yếu tố nguy hiểm của đám cháy;
- Bảo vệ người trên đường thoát nạn tránh khỏi những tác động của các yếu tố nguy hiểm của đám cháy.
3.1.2 Thoát nạn là quá trình tự di chuyển có tổ chức của người ra bên ngoài từ các gian phòng, nơi các yếu tố nguy hiểm của đám cháy có thể tác động lên họ. Thoát nạn còn là sự di chuyển không tự chủ của nhóm người ít có khả năng vận động, do các nhân viên phục vụ thực hiện. Thoát nạn được thực hiện theo các đường thoát nạn qua các lối ra thoát nạn.
3.1.3 Cứu nạn là sự di chuyển cưỡng bức của người ra bên ngoài khi họ bị các yếu tố nguy hiểm của đám cháy tác động hoặc khi xuất hiện nguy cơ trực tiếp của các tác động đó. Cứu nạn được thực hiện một cách tự chủ với sự trợ giúp của lực lượng chữa cháy hoặc nhân viên được huấn luyện chuyên nghiệp, bao gồm cả việc sử dụng các phương tiện cứu hộ, qua các lối ra thoát nạn và lối ra khẩn cấp.
3.1.4 Việc bảo vệ người trên các đường thoát nạn phải được bảo đảm bằng tổ hợp các giải pháp bố trí mặt bằng - không gian, tiện nghi, kết cấu kỹ thuật công trình và tổ chức.
Các đường thoát nạn trong phạm vi gian phòng phải bảo đảm sự thoát nạn an toàn qua các lối ra thoát nạn từ gian phòng đó mà không tính đến các phương tiện bảo vệ chống khói và chữa cháy có trong gian phòng này.
Việc bảo vệ đường thoát nạn ngoài phạm vi gian phòng phải được tính đến theo điều kiện bảo đảm thoát nạn an toàn cho người có kể đến tính nguy hiểm cháy theo công năng của các gian phòng trên đường thoát nạn. Số người thoát nạn, bậc chịu lửa và cấp nguy hiểm cháy kết cấu của nhà, số lối ra thoát nạn từ một tầng và từ toàn bộ nhà.
Trong các gian phòng và trên các đường thoát nạn ngoài phạm vi gian phòng phải hạn chế tính nguy hiểm cháy của vật liệu xây dựng thuộc các lớp bề mặt kết cấu (lớp hoàn thiện và ốp mặt) tùy thuộc vào tính nguy hiểm cháy theo công năng của gian phòng và nhà, có tính đến các giải pháp khác về bảo vệ đường thoát nạn.
3.1.5 Khi bố trí thoát nạn từ các gian phòng và nhà thì không được tính đến các biện pháp và phương tiện dùng để cứu nạn, cũng như các lối ra không đáp ứng yêu cầu về lối ra thoát nạn quy định tại 3.2.1.
3.1.6 Không cho phép bố trí các gian phòng nhóm F5 hạng A hoặc hạng B dưới các gian phòng dùng cho hơn 50 người có mặt đồng thời; không bố trí các gian phòng nhóm F5 này trong các tầng hầm và tầng nửa hầm.
Không cho phép bố trí các gian phòng nhóm F1.1, F1.2 và F1.3 trong các tầng hầm và tầng nửa hầm.
3.1.7 Trong các nhà có từ 2 đến 3 tầng hầm, chỉ được phép bố trí phòng hút thuốc, các siêu thị và trung tâm thương mại, quán ăn, quán giải khát và các gian phòng công cộng khác nằm sâu hơn tầng hầm 1 khi có các giải pháp bảo đảm an toàn cháy bổ sung theo tài liệu chuẩn được áp dụng và được cơ quan quản lý nhà nước cứ thẩm quyền chấp thuận theo quy định tại 1.1.10.
Đối với bệnh viện và trường phổ thông, chỉ cho phép bố trí các công năng chính từ tầng bán hầm hoặc tầng hầm 1 (trong trường hợp không có tầng bán hầm) trở lên. Tầng hầm 1 là tầng hầm trên cùng hoặc ngay sát tầng bán hầm.
Tại tất cả các sàn tầng hầm, ít nhất phải có 1 lối vào buồng thang bộ thoát nạn đi qua sánh ngăn khói được ngăn cách với các không gian xung quanh bằng tường ngăn cháy loại 2. Các cửa đi phải là loại có cơ cấu tự đóng.
3.1.8 Để bảo đảm thoát nạn an toàn phải phát hiện cháy và báo cháy kịp thời.
3.1.9 Để bảo vệ người thoát nạn, phải bảo vệ chống khói xâm nhập các đường thoát nạn của nhà và các phần nhà.
Các yêu cầu cơ bản về báo về chống khói cho nhà được quy định tại Phụ lục D.
3.1.10 Các thiết bị điện của hệ thống bảo vệ chống cháy của nhà phải được cấp điện ưu tiên từ hai nguồn độc lập (một nguồn điện lưới về một nguồn máy phát điện dự phòng).
CHÚ THÍCH: Đối với các thiết bị điện có nguồn dự phòng riêng (ví dụ bơm diezen, tủ chống cháy có ắc quy dự phòng) thì chỉ cần một nguồn điện lưới nhưng nguồn dự phòng riêng này phải đảm bảo hoạt động bình thường khi có cháy.
3.1.11 Hiệu quả của các giải pháp bảo đảm an toàn cho người khi cháy có thể được đánh giá bằng tính toán.
3.2 Lối ra thoát nạn và lối ra khẩn cấp
3.2.1 Các lối ra được coi là lối ra thoát nạn nếu chúng
a) Dẫn từ các gian phòng ở tầng 1 ra ngoài theo một trong những cách sau:
- Ra ngoài trực tiếp;
- Qua hành lang;
- Qua tiền sảnh (hay phòng chờ);
- Qua buồng thang bộ;
- Qua hành lang và tiền sảnh (hay phòng chờ);
- Qua hành lang và buồng thang bộ.
b) Dẫn từ các gian phòng của tầng bất kỳ, trừ tầng 1, vào một trong các nơi sau:
- Trực tiếp vào buồng thang bộ hay tới cầu thang bộ loại 3;
- Vào hành lang dẫn trực tiếp vào buồng thang bộ hay tới cầu thang bộ loại 3;
- Vào phòng sử dụng chung (hay phòng chờ) có lối ra trực tiếp dẫn vào buồng thang bộ hoặc tới cầu thang bộ loại 3;
- Vào hành lang bên của nhà có chiều cao PCCC dưới 28 m dẫn trực tiếp vào cầu thang bộ loại 2;
- Ra mái có khai thác sử dụng, hoặc ra một khu vực riêng của mái dẫn tới cầu thang bộ loại 3.
c) Dẫn vào gian phòng liền kề (trừ gian phòng nhóm F5 hạng A hoặc B) trên cùng tầng mà từ gian phòng này có các lối ra như được nếu tại 3.2.1 a, b). Lối ra dẫn vào gian phòng hạng A hoặc B được phép coi là lối ra thoát nạn nếu nó dẫn từ gian phòng kỹ thuật không có người làm việc thường xuyên mà chi dùng để phục vụ các gian phòng hạng A hoặc B nêu trên.
d) Các lối ra đáp ứng quy định tại 3.2.2 và các lối ra thoát nạn khác được quy định cụ thể trong quy chuẩn này.
CHÚ THÍCH: Trong trường hợp sử dụng cầu thang bộ loại 3 để thoát nạn cần có tính toán thoát nạn phù hợp với Phụ lục G.
3.2.2 Các lối ra từ các tầng hầm và tầng nửa hầm, về nguyên tắc, là lối ra thoát nạn khi chúng thoát trực tiếp ra ngoài và được ngăn cách với các buồng thang bộ chung của nhà (xem Hình I.1, Phụ lục I).
Các lối ra sau đây cũng được coi là lối ra thoát nạn:
a) Các lối ra từ các tầng hầm đi qua các buồng thang bộ chung có lối đi riêng ra bên ngoài được ngăn cách với phần còn lại của buồng thang bộ bằng vách đặc ngăn cháy loại 1 (xem hình I.2, Phụ lục I);
b) Các lối ra tử các tầng hầm và tầng nửa hầm có bố trí các gian phòng hạng C1 đến C4, D, E, đi vào các gian phòng hạng C1 đến C4, D, E và vào tiền sảnh nằm trên tầng một của nhà nhóm F5;
c) Các lối ra từ phòng chờ, phòng gửi đồ, phòng hút thuốc và phòng vệ sinh ở các tầng hầm hoặc tầng nửa hầm của nhà nhóm F2, F3 và F4 đi vào tiền sảnh của tầng 1 theo các cầu thang bộ riêng loại 2. Trong trường hợp này thì phải bảo đảm các yêu cầu sau:
- Tiền sảnh phải được ngăn cách với các hành lang và gian phòng lân cận bằng các vách ngăn cháy không nhỏ hơn loại 1;
- Các gian phòng tầng 1 và các tầng trên phải có đường thoát nạn không đi qua tiền sảnh này (trừ các gian phòng nằm trong tiền sảnh);
- Vật liệu hoàn thiện các phòng chờ, phòng gửi đồ, phòng hút thuốc và phòng vệ sinh ở các tầng hầm hoặc tầng nửa hầm phải thoả mãn yêu cầu đối với các gian phòng chung theo Phụ lục B;
Phòng gửi đồ phải có số lối ra thoát nạn thỏa mãn yêu cầu của quy chuẩn này, không tính lối ra thoát nạn theo cầu thang bộ loại 2 nêu trên.
d) Các cửa mở quay có bản lề trên cửa ra vào dành cho phương tiện vận tải đường sắt hoặc đường bộ.
Cho phép bố trí khoang đệm tại lối ra ngoài trực tiếp từ nhà, từ tầng hầm và tầng nửa hầm.
3.2.3 Các lối ra không được coi là lối ra thoát nạn nêu trên lối ra này có đặt cửa có cánh mở kiểu trượt hoặc xếp, cửa cuốn, cửa quay.
Các cửa đi có cánh mở ra (cửa bản lề) nằm trong các cửa nói trên được coi là lối ra thoát nạn nếu được thiết kế theo đúng yêu cầu quy định.
3.2.4 Số lượng và chiều rộng của các lối ra thoát nạn từ các gian phòng, các tầng và các nhà được xác định theo số lượng người thoát nạn lớn nhất có thể đi qua chúng và khoảng cách giới hạn cho phép từ chỗ xa nhất có thể có người (sinh hoạt, làm việc) tới lối ra thoát nạn gần nhất.
CHÚ THÍCH 1: Số lượng người thoát nạn lớn nhất từ các không gian khác nhau của nhà hoặc phần nhà được xác định theo G.3, Phụ lục G
CHÚ THÍCH 2: Ngoài các yêu cầu chung được nêu trong quy chuẩn này, yêu cầu cụ thể về số lượng và chiều rộng của các lối ra thoát nạn được nếu trong tài liệu chuẩn cho từng loại công trình. Phụ lục G nêu một số quy định cụ thể cho các nhóm nhà thường gặp.
Các phần nhà có công năng khác nhau và được ngăn chia bởi các bộ phận ngăn cháy thì phải có các lối ra thoát nạn độc lập, trừ các trường hợp được quy định cụ thể trong quy chuẩn này.
Các phần nhà có công năng khác nhau và được ngăn chia bởi các bộ phận ngăn cháy thành các khoang cháy trong nhà có nhiều công năng phải có các lối ra thoát nạn riêng từ mỗi tầng. Cho phép không quá 50% lối ra thoát nạn dẫn vào khoang cháy lân cận (trừ lối ra thoát nạn dẫn vào khoang cháy nhóm F5). Riêng phần nhà nhóm F5 phải có lối ra thoát nạn riêng.
3.2.5 Các gian phòng sau phải có không ít hơn hai lối ra thoát nạn:
a) Các gian phòng nhóm F1.1 có mặt đồng thời hơn 15 người;
b) Các gian phòng trong các tầng hầm và tầng nửa hầm có mặt đồng thời hơn 15 người; riêng các gian phòng trong tầng hầm và tầng nửa hầm có từ 6 đến 15 người có mặt đồng thời thì cho phép một trong hai lối ra là lối ra khẩn cấp theo các yêu cầu tại đoạn d) của 3.2.13;
c) Các gian phòng có mặt đồng thời từ 50 người trở lên;
d) Các gian phòng (trừ các gian phòng nhóm F5) có mặt đồng thời dưới 50 người (bao gồm cả tầng khán giả ở trên cao hoặc ban công khán phòng) với khoảng cách dọc theo lối đi từ chỗ xa nhất có người đến lối ra thoát nạn vượt quá 25 m. Khi có các lối thoát nạn thông vào gian phòng đang xét từ các gian phòng bên cạnh với số lượng trên 5 người có mặt ở mỗi phòng bên cạnh, thì khoảng cách trên phải bao gồm độ dài đường thoát nạn cho người từ các gian phòng bên cạnh đó;
e) Các gian phòng có tổng số người có mặt trong đó và trong các gian liền kề có lối thoát nạn chỉ đi vào gian phòng đang xét từ 50 người trở lên;
f) Các gian phòng nhóm F5 hạng A hoặc B có số người làm việc trong ca đông nhất lớn hơn 5 người, hạng C - khi số người làm việc trong ca đông nhất lớn hơn 25 người hoặc có diện tích lớn hơn 1 000 m2;
g) Các sàn công tác hở và các sàn dành cho người vận hành và bảo dưỡng thiết bị trong các gian phòng nhóm F5 có diện tích lớn hơn 100 m2 - đối với các gian phòng thuộc hạng A và B hoặc lớn hơn 400 m2 - đối với các gian phòng thuộc các hạng khác.
Nếu gian phòng phải có từ 2 lối ra thoát nạn trở lên thì cho phép bố trí không quá 50 % số lượng lối ra thoát nạn của gian phòng đó đi qua một gian phòng liền kề, với điều kiện gian phòng liền kề đó cũng phải có lối ra thoát nạn tuân thủ quy định của quy chuẩn này và các tài liệu chuẩn tương ứng cho gian phòng đó.
3.2.6 Số lượng lối ra thoát nạn của tầng nhà
3.2.6.1 Các tầng nhà sau đây phải có không ít hơn hai lối ra thoát nạn:
a) Các tầng của nhà thuộc các nhóm F1.1; F1.2; F2.1; F2.2; F3; F4;
b) Các tầng nhà với số lượng người từ 50 trở lên;
c) Các tầng của nhà nhóm F1.3 khi tổng diện tích các căn hộ trên một tầng lớn hơn 500 m2 (đối với các nhà đơn nguyên thì tính diện tích trên một tầng của đơn nguyên). Trường hợp tổng diện tích các căn hộ trên một tầng nhỏ hơn hoặc bằng 500 m2 và khi chỉ có một lối ra thoát nạn từ một tầng, thì từ mỗi căn hộ ở độ cao lớn hơn 15 m, ngoài lối ra thoát nạn, phải có một lối ra khẩn cấp theo quy định tại 3.2.13;
d) Các tầng của nhà nhóm F5, hạng A hoặc B khi số người làm việc trong ca đông nhất lớn hơn 5 người, hạng C khi số người làm việc trong ca đông nhất lớn hơn 25 người;
e) Các tầng hầm và nửa hầm có diện tích lớn hơn 300 m2 hoặc dùng cho hơn 15 người có mặt đồng thời.
3.2.6.2 Cho phép bố trí một lối ra thoát nạn trong các trường hợp sau (trừ các nhà có bậc chịu lửa V):
a) Từ mỗi tầng (hoặc từ một phần của tầng được ngăn cách khỏi các phần khác của tầng bằng các bộ phận ngăn cháy) có nhóm nguy hiểm cháy theo công năng F1.2, F1.4, F2 (trừ hộp đêm, vũ trường, quán bar, phòng hát, nhà kinh doanh karaoke; và các nhà kinh doanh dịch vụ tương tự), F3, F4.2, F4.3 và F4.4, khi thỏa mãn đồng thời các điều kiện sau:
- Đối với nhà có chiều cao PCCC không quá 15 m thì diện tích mỗi tầng đang xét không được lớn hơn 300 m2. Đối với nhà có chiều cao PCCC từ trên 15 m đến 21 m thì diện tích mỗi tầng đang xét không được lớn hơn 200 m2;
- Toàn bộ nhà được bảo vệ bằng hệ thống chữa cháy tự động sprinkler;
- Số người lớn nhất trên mỗi tầng không vượt quá 20 người;
- Đối với nhà trên 3 tầng hoặc có chiều cao PCCC lớn hơn 9 m: có trang bị cửa đi ngăn cháy loại 2 trên lối ra thoát nạn từ mỗi tầng đi vào buồng thang bộ thoát nạn.
- Đối với nhà từ 3 tầng trở xuống hoặc có chiều cao PCCC từ 9 m trở xuống: được sử dụng cầu thang bộ loại 2 thay thế cho buồng thang bộ nêu trên khi đảm bảo điều kiện người trong nhà có thể thoát ra ban công thoáng hoặc sân thượng thoáng khi có cháy (trừ các biệt thự, villa, cơ sở nghỉ dưỡng theo quy định riêng dưới đây).
CHÚ THÍCH: Ban công thoáng hoặc sân thượng thoáng nghĩa là hở ra ngoài trời và bộ phận bao che (nếu có) phải bảo đảm cho việc thoát nạn, cứu nạn dễ dàng khi lực lượng chữa cháy tiếp cận.
Đối với các biệt thự, villa, cơ sở nghỉ dưỡng không cao quá 3 tầng thuộc nhóm F1.2, cho phép thay thế các loại buồng thang bộ nêu trên bằng cầu thang bộ loại 2, khi bảo đảm được đồng thời các điều kiện sau:
- Diện tích mỗi tầng không quá 200 m2, chiều cao PCCC không quá 9 m và tổng số người sử dụng không quá 15 người;
Nhà có tối thiểu một lối ra thoát nạn trực tiếp ra ngoài hoặc ra cầu thang bộ loại 3;
Để thoát ra ngoài theo cầu thang bộ loại 2 chỉ cần lên hoặc xuống tối đa 1 tầng. Trường hợp phải xuống 2 tầng mới thoát được ra ngoài thì mỗi phòng có thể sử dụng để ngủ phải có không ít hơn một cửa sổ đặt ở cao độ không quá 1 m so với sàn và có lối thoát trực tiếp vào hành lang hoặc phòng chung có cửa ra ban công. Cao độ đặt các cửa sổ và ban công nêu trên không được quá 7 m so với mặt đất. Trường hợp các cửa sổ và ban công này đặt ở cao độ quá 7 m cho đến tối đa 9 m thì mỗi cửa sổ và ban công phải được trang bị thêm thiết bị thoát nạn khẩn cấp để bảo đảm việc thoát nạn cho người an toàn từ trên cao (ví dụ thang kim loại, thang dây);
b) Từ các tầng kỹ thuật hoặc khu vực để các thiết bị kỹ thuật có diện tích không quá 300 m2. Trường hợp tầng có khu vực kỹ thuật như trên, thì cứ mỗi 2 000 m2 diện tích còn lại phải bố trí thêm không ít hơn một lối ra thoát nạn (trường hợp diện tích còn lại nhỏ hơn 2 000 m2 cũng phải bố trí thêm không ít hơn một lối ra thoát nạn). Nếu tầng kỹ thuật hoặc khu vực kỹ thuật nằm dưới hầm thì lối ra thoát nạn phải riêng biệt với các lối ra khác của nhà và thoát thẳng ra ngoài. Nếu tầng kỹ thuật hoặc khu vực kỹ thuật nằm ở các tầng trên mặt đất thì cho phép bố trí các lối ra đi qua các buồng thang bộ chung, còn đối với nhà có các buồng thang bộ N1 - đi qua khoảng đệm của buồng thang bộ NT;
c) Từ các tầng của nhà nhóm F1.3 với tổng diện tích các căn hộ trên tầng đó (đối với nhà có các đơn nguyên thì tính diện tích tầng trong đơn nguyên) từ trên 500 m2 đến 550 m2 và:
Khi cao độ của tầng trên cùng không quá 28 m - lối ra thoát nạn từ tầng đang xét vào buồng thang bộ thông thường, với điều kiện mỗi căn hộ được trang bị đầu báo cháy địa chỉ;
Khi cao độ của tầng trên cùng lớn hơn 28 m - lối ra thoát nạn từ tầng đang xét vào một buồng thang bộ không nhiễm khói N1 với điều kiện tất cả các phòng trong căn hộ (trừ khu vệ sinh, phòng tắm và khu phụ) được trang bị đầu báo cháy địa chỉ hoặc thiết bị chữa cháy tự động.
Đối với nhà nhóm F1.3 có chiều cao PCCC từ trên 28 m đến 50 m và tổng diện tích các căn hộ trên mỗi tầng đến 500 m2, cho phép thay buồng thang bộ loại N1 bằng buồng thang bộ loại N2, khi đáp ứng đồng thời các điều kiện sau: 1) Lối vào buồng thang bộ từ tất cả các tầng, bao gồm cả lối thông giữa buồng thang bộ và tiền sảnh, phải có khoang đệm ngăn cháy với áp suất dương khi có cháy; 2) có một trong các thang máy của nhà được dành cho việc vận chuyển lực lượng chữa cháy; 3) Tất cả các phòng trong căn hộ (trừ khu vệ sinh, phòng tắm và khu phụ) được trang bị báo cháy địa chỉ hoặc hệ thống chữa cháy tự động; 4) Nhà được trang bị hệ thống âm thanh cảnh báo cháy (cho phép bố trí tại các hành lang chung giữa các căn hộ).
CHÚ THÍCH: Diện tích căn hộ bao gồm cả diện tích ban công và (hoặc) lô gia.
d) Từ các tầng (hoặc một phần của tầng được ngăn cách khỏi các phần khác của tầng bằng các bộ phận ngăn cháy) thuộc nhóm nguy hiểm cháy theo công năng F4.1, khi thỏa mãn đồng thời các điều kiện sau:
- Nhà có chiều cao PCCC không quá 9 m, diện tích tầng đang xét không quá 300 m2;
- Tầng đang xét có hành lang bên dẫn vào cầu thang hở loại 2 hoặc buồng thang bộ, các gian phòng nhóm F4.1 có cửa ra hành lang bên này.
3.2.7 Số lối ra thoát nạn từ một tầng không được ít hơn hai nếu tầng này có ít nhất một gian phòng có yêu cầu số lối ra thoát nạn không ít hơn hai.
Số lối ra thoát nạn từ một nhà không được ít hơn số lối ra thoát nạn từ bất kỳ tầng nào của nhà đó.
3.2.8 Khi có từ hai lối ra thoát nạn trở lên, chúng phải được bố trí phân tán và khi tính toán khả năng thoát nạn của các lối ra cần giả thiết là đám cháy đã ngăn cản không cho người sử dụng thoát nạn qua một trong những lối ra đó. Các lối ra còn lại phải bảo đảm khả năng thoát nạn an toàn cho tất cả số người có trong gian phòng, trên tầng hoặc trong nhà đó (xem Hình I.3).
Khi một gian phòng, một phần nhà hoặc một tầng của nhà yêu cầu phải có từ 2 lối ra thoát nạn trở lên thì ít nhất hai trong số những lối ra thoát nạn đó phải được bố trí phân tán, đặt cách nhau một khoảng bằng hoặc lớn hơn một nửa chiều dài của đường chéo lớn nhất của mặt bằng gian phòng, phần nhà hoặc tầng nhà đó. Khoảng cách giữa hai lối ra thoát nạn được đo theo đường thẳng nối giữa hai cạnh gần nhất của chúng (xem Hình I.4 a), b), c)).
Nếu nhà được bảo vệ toàn bộ bằng hệ thống chữa cháy tự động Sprinkler, thì khoảng cách này có thể giảm xuống còn 1/3 chiều dài đường chéo lớn nhất của mặt bằng các gian phòng trên (xem Hình I.4 d)).
Khi có hai buồng thang thoát nạn nối với nhau bằng một hành lang trong thì khoảng cách giữa hai lối ra thoát nạn (cửa vào buồng thang thoát nạn) được đo dọc theo đường di chuyển theo hành lang đó (xem Hình I.5). Hành lang này phải được bảo vệ theo quy định tại 3.3.5.
3.2.9 Chiều cao thông thuỷ của lối ra thoát nạn phải không nhỏ hơn 1,9 m, chiều rộng thông thủy không nhỏ hơn:
- 1,2 m - từ các gian phòng nhóm F1.1 khi số người thoát nạn lớn hơn 15 người, từ các gian phòng và nhà thuộc nhóm nguy hiểm cháy theo công năng khác có số người thoát nạn lớn hơn 50 người, ngoại trừ nhóm F1.3;
- 0,8 m - trong tất cả các trường hợp còn lại.
Chiều rộng của các cửa đi ra bên ngoài của buồng thang bộ cũng như của các cửa đi từ buồng thang bộ vào sảnh không được nhỏ hơn giá trị tính toán hoặc chiều rộng của bản thang được quy định tại 3.4.1.
Trong mọi trường hợp, khi xác định chiều rộng của một lối ra thoát nạn phải tính đến dạng hình học của đường thoát nạn qua lỗ cửa hoặc cửa để bảo đảm không cản trở việc vận chuyển các cáng tải thương có người nằm trên.
Nếu sử dụng cửa hai cánh trên lối ra thoát nạn thì chiều rộng của lối ra thoát nạn chỉ được lấy bằng chiều rộng lối đi qua bên cánh mở, không được phép tính bên cánh đóng hoặc cánh cố định. Cửa hai cánh phải được lắp cơ cấu tự đóng sao cho các cánh được đóng lần lượt.
Trong các nhà có chiều cao PCCC lớn hơn 28 m (trừ nhà nhóm F1.3 và F1.4), các cửa thoát nạn từ các hành lang chung mỗi tầng, từ sảnh chung, phòng chờ, tiền sảnh, buồng thang bộ (trừ cửa thoát nạn trực tiếp ra ngoài trời), phải là cửa chống cháy với giới hạn chịu lửa không thấp hơn El 30.
3.2.10 Các cửa của lối ra thoát nạn và các cửa khác trên đường thoát nạn phải được mở theo chiều lối thoát từ trong nhà ra ngoài.
Không quy định chiều mở của các cửa đối với:
- Các gian phòng nhóm F1.3 và F1.4;
- Các gian phòng có mặt đồng thời không quá 15 người, ngoại trừ các gian phòng hạng A hoặc B;
- Các phòng kho có diện tích không lớn hơn 200 m2 và không có người làm việc thường xuyên;
- Các buồng vệ sinh;
- Các lối ra dẫn vào các chiếu thang của các cầu thang bộ loại 3.
3.2.11 Các cửa của các lối ra thoát nạn từ các hành lang tầng, không gian chung, phòng chờ, sảnh và buồng thang bộ phải mở được cửa tự do từ bên trong mà không cần chìa. Trong các nhà có chiều cao PCCC lớn hơn 15 m, các cánh cửa nói trên, ngoại trừ các cửa của căn hộ, phải là cửa đặc hoặc cửa với kính cường lực.
Các cửa của lối ra thoát nạn từ các khu vực (gian phòng hay các hành lang) được bảo vệ chống khói cưỡng bức phải là cửa đặc được trang bị cơ cấu tự đóng và khe cửa phải được chèn kín. Các cửa này nếu cần để mở khi sử dụng thì phải được trang bị cơ cấu tự động đóng khi có cháy.
Đối với các buồng thang bộ, các cửa ra vào phải có cơ cấu tự đóng và khe cửa phải được chèn kín. Các cửa trong buồng thang bộ mở trực tiếp ra ngoài cho phép không có cơ cấu tự đóng và không cần chèn kín khe cửa. Ngoại trừ những trường hợp được quy định riêng, cửa của buồng thang bộ phải bảo đảm là cửa ngăn cháy loại 1 đối với nhà có bậc chịu lửa I, II; loại 2 đối với nhà có bậc chịu lửa III, IV; và loại 3 đối với nhà có bậc chịu lửa V.
Ngoài những quy định được nói riêng, các cửa của lối ra thoát nạn từ các hành lang tầng đi vào buồng thang bộ phục vụ từ 4 tầng nhà trở lên (ngoại trừ trong các nhà phục vụ mục đích giam giữ, cải tạo) phải bảo đảm:
a) Tất cả các khóa điện lắp trên cửa phải tự động mở khi hệ thống báo cháy tự động của tòa nhà bị kích hoạt. Ngay khi mất điện thì các khóa điện đó cũng phải tự động mở;
b) Người sử dụng buồng thang luôn có thể quay trở lại phía trong nhà qua chính cửa vừa đi qua hoặc qua các điểm bố trí cửa quay trở lại phía trong nhà;
c) Bố trí trước các điểm quay trở lại phía trong nhà theo nguyên tắc các cánh cửa chỉ được phép ngăn cản việc quay trở lại phía trong nhà nếu đáp ứng tất cả các yêu cầu sau:
- Có không ít hơn hai tầng, nơi có thể đi ra khỏi buồng thang bộ để đến một lối ra thoát nạn khác;
- Có không quá 4 tầng nằm giữa các tầng nhà có thể đi ra khỏi buồng thang bộ để đến một lối ra thoát nạn khác;
- Việc quay trở lại phía trong nhà phải có thể thực hiện được tại tầng trên cùng hoặc tầng dưới liền kề với tầng trên cùng được phục vụ bởi buồng thang bộ thoát nạn nếu tầng này cho phép đi đến một lối ra thoát nạn khác;
- Các cửa cho phép quay trở lại phía trong nhà phải được đánh dấu trên mặt cửa phía trong buồng thang bằng dòng chữ “CỬA CÓ THỂ ĐI VÀO TRONG NHÀ" với chiều cao các chữ ít nhất là 50 mm, chiều cao bố trí không thấp hơn 1,2 m và không cao hơn 1,8 m;
- Các cửa không cho phép quay trở lại phía trong nhà phải có thông báo trên mặt cửa phía trong buồng thang để nhận biết được vị trí của cửa quay trở lại phía trong nhà hoặc lối ra thoát nạn gần nhất theo từng hướng di chuyển.
CHÚ THÍCH: Đối với các cửa không cho phép quay trở lại phía trong nhà, ở mặt cửa phía hành lang trong nhà (ngoài buồng thang) nên có biển cảnh báo người sử dụng không thể quay trở lại phía trong nhà được khi họ đi qua cửa đó.
3.2.12 Các lối ra không thoả mãn các yêu cầu đối với lối ra thoát nạn có thể được xem là lối ra khẩn cấp để tăng thêm mức độ an toàn cho người khi có cháy. Mọi lối ra khẩn cấp, bao gồm cả các lối ra khẩn cấp tại 3.2.13, không được đưa vào tính toán thoát nạn khi cháy.
3.2.13 Ngoài trường hợp đã nêu tại 3.2.12, các lối ra khẩn cấp còn gồm có:
a) Lối ra ban công hoặc lôgia, mà ở đó có khoảng tường đặc với chiều rộng không nhỏ hơn 1,2 m tính từ mép ban công (lôgia) tới ô cửa sổ (hay cửa đi lắp kính) hoặc không nhỏ hơn 1,6 m giữa các ô cửa kính mở ra ban công (lôgia). Ban công hoặc lôgia phải có chiều rộng không nhỏ hơn 0,6 m, bảo đảm có thông gió tự nhiên và được ngăn cách với gian phòng bằng vách ngăn (có các lỗ cửa) từ sàn đến trần. Cho phép thay các khoảng tường đặc nói trên bằng tường kính với giới hạn chịu lửa không thấp hơn El 30 hoặc El 15 tùy thuộc vào giới hạn chịu lửa của tường ngoài nhà;
b) Lối ra dẫn vào một lối đi chuyển tiếp hở (cầu nối) bên ngoài, có chiều rộng không nhỏ hơn 0,6 m, dẫn đến phân khoang cháy liền kề hoặc đến một khoang cháy liền kề. Không cho phép bố trí các kết cấu/cấu kiện bao che cản trở di chuyển của người;
c) Lối ra ban công hoặc lôgia có chiều rộng không nhỏ hơn 0,6 m, mà ở đó có trang bị thang bên ngoài nối các ban công hoặc lôgia theo từng tầng, hoặc có cửa nắp trên sàn ban công hoặc lôgia, kích thước tối thiểu 0,6 x 0,8 m, có thể thông xuống ban công hoặc lôgia tầng dưới;
d) Lối ra bên ngoài trực tiếp từ các gian phòng có cao trình sàn hoàn thiện không thấp hơn âm 4,5 m và không cao hơn 5,0 m qua cửa sổ hoặc cửa đi có kích thước không nhỏ hơn 0,75 m x 1,5 m, cũng như qua cửa nắp có kích thước không nhỏ hơn 0,6 m x 0,8 m; khi đó tại các lối ra này phải được trang bị thang leo; độ dốc của các thang leo này không quy định;
e) Lối ra mái của nhà có bậc chịu lửa I, II và III thuộc cấp S0 và S1 qua cửa sổ, cửa đi hoặc cửa nắp với kích thước và thang leo được quy định như tại đoạn d) của điều này.
3.2.14 Trong các tầng kỹ thuật cho phép bố trí các lối ra thoát nạn với chiều cao không nhỏ hơn 1,8 m.
Từ các tầng kỹ thuật chỉ dùng để đặt các mạng kỹ thuật công trình (đường ống, đường dây và các đối tượng tương tự) cho phép bố trí lối ra khẩn cấp qua cửa đi với kích thước không nhỏ hơn 0,75 m x 1,5 m hoặc qua cửa nắp với kích thước không nhỏ hơn 0,6 m x 0,8 m mà không cần bố trí lối ra thoát nạn.
Trong các tầng kỹ thuật hầm các lối ra này phải được ngăn cách với các lối ra khác của nhà và dẫn trực tiếp ra bên ngoài.
3.3 Đường thoát nạn
3.3.1 Các đường thoát nạn phải được chiếu sáng và chỉ dẫn phù hợp với các yêu cầu tại TCVN 3890 .
3.3.2 Khoảng cách giới hạn cho phép từ vị trí xa nhất của gian phòng, hoặc từ chỗ làm việc xa nhất tới lối ra thoát nạn gần nhất, được đo theo trục của đường thoát nạn, phải được hạn chế tùy thuộc vào:
- Nhóm nguy hiểm cháy theo công năng và hạng nguy hiểm cháy nổ (xem Phụ lục C) của gian phòng và nhà;
- Số lượng người thoát nạn;
- Các thông số hình học của gian phòng và đường thoát nạn;
- Cấp nguy hiểm cháy kết cấu và bậc chịu lửa của nhà.
Chiều dài của đường thoát nạn theo cầu thang bộ loại 2 lấy bằng ba lần chiều cao của thang đó.
CHÚ THÍCH: Các yêu cầu cụ thể về khoảng cách giới hạn cho phép từ vị trí xa nhất đến lối ra thoát nạn gần nhất được nếu trong các quy chuẩn cho từng loại công trình. Một số quy định cụ thể cho các nhóm nhà thường gặp nếu tại Phụ lục G.
3.3.3 Khi bố trí, thiết kế các đường thoát nạn phải căn cứ vào yêu cầu tại 3.2.1. Đường thoát nạn không bao gồm các thang máy, thang cuốn và các đoạn đường được nêu dưới đây:
- Đường đi qua các hành lang trong có lối ra từ giếng thang máy, qua các sảnh thang máy và các khoang đệm trước thang máy, nếu các kết cấu bao che giếng thang máy, bao gồm cả cửa giếng thang máy, không đáp ứng các yêu cầu như đối với bộ phận ngăn cháy;
- Đường đi qua các buồng thang bộ khi có lối đi xuyên chiếu tới của buồng thang là một phần của hành lang trong, cũng như đường đi qua gian phòng có đặt cầu thang bộ loại 2, mà cầu thang này không phải là cầu thang để thoát nạn;
- Đường đi theo mái nhà, ngoại trừ mái đang được khai thác sử dụng hoặc một phần mái được trang bị riêng cho mục đích thoát nạn;
- Đường đi theo các cầu thang bộ loại 2, nối thông từ 3 tầng (sàn) trở lên, cũng như dẫn từ tầng hầm và tầng nửa hầm, ngoại trừ các trường hợp cụ thể về thoát nạn theo cầu thang bộ loại 2 nêu tại 3.2.1, 3.2.2, 3.2.6.
3.3.4 Vật liệu hoàn thiện, trang trí tường và trần (bao gồm cả tấm trần treo nếu có), vật liệu ốp lát, vật liệu phủ sàn trên đường thoát nạn tuân thủ yêu cầu tại Bằng B.8, Phụ lục B.
3.3.5 Trong các hành lang trên lối ra thoát nạn nêu tại 3.2.1, ngoại trừ những trường hợp nói riêng trong quy chuẩn, không cho phép bố trí: thiết bị nhô ra khỏi mặt phẳng của tường trên độ cao nhỏ hơn 2 m; các ống dẫn khi cháy và ống dẫn các chất lỏng cháy được, cũng như các tủ tường, trừ các tủ thông tin liên lạc và tủ đặt họng nước chữa cháy.
Các hành lang, sảnh, phòng chung trên đường thoát nạn phải được bao che bằng các bộ phận ngăn cháy phù hợp quy định trong các quy chuẩn cho từng loại công trình Bộ phận ngăn cháy bao che đường thoát nạn của nhà có bậc chịu lửa I phải làm bằng vật liệu không cháy với giới hạn chịu lửa ít nhất El 30, và của nhà có bậc chịu lửa II, III, IV phải làm bằng vật liệu không cháy hoặc cháy yếu (Ch1) với giới hạn chịu lửa ít nhất El 15. Riêng nhà có bậc chịu lửa II của hạng nguy hiểm cháy và cháy nổ D, E (xem Phụ lục C) có thể bao che hành lang bằng tường kính. Các cửa mở vào hành lang phải là cửa ngăn cháy có giới hạn chịu lửa không thấp hơn giới hạn chịu lửa của bộ phận ngăn cháy.
Các hành lang dài hơn 60 m phải được phân chia bằng các vách ngăn cháy loại 2 thành các đoạn có chiều dài được xác định theo yêu cầu bảo vệ chống khói nêu tại Phụ lục D, nhưng không được vượt quá 60 m. Các cửa đi trong các vách ngăn cháy này phải phù hợp với các yêu cầu tại 3.2.11.
Khi các cánh cửa đi của gian phòng mở nhô ra hành lang, thì chiều rộng của đường thoát nạn theo hành lang được lấy bằng chiều rộng thông thủy của hành lang trừ đi:
- Một nửa chiều rộng phần nhỏ ra của cánh cửa (tính cho cửa nhỏ ra nhiều nhất) - khi cửa được bố trí một bên hành lang;
Cả chiều rộng phần nhô ra của cánh cửa (tính cho cửa nhô ra nhiều nhất) - khi các cửa được bố trí hai bên hành lang. Yêu cầu này không áp dụng cho hành lang tầng (sảnh chung) nằm giữa cửa ra từ căn hộ và cửa ra dẫn vào buồng thang bộ trong các đơn nguyên nhà nhóm F1.3.
3.3.6 Chiều cao thông thủy các đoạn nằm ngang của đường thoát nạn không được nhỏ hơn 2 m, chiều rộng thông thủy các đoạn nằm ngang của đường thoát nạn và các đoạn dốc không được nhỏ hơn:
- 1,2 m - đối với hành lang chung dùng để thoát nạn cho hơn 15 người từ các gian phòng nhóm F1, hơn 50 người - từ các gian phòng thuộc nhóm nguy hiểm cháy theo công năng khác.
- 0,7 m - đối với các lối đi đến các chỗ làm việc đơn lẻ.
- 1,0 m - trong tất cả các trường hợp còn lại.
Trong bất kỳ trường hợp nào, các đường thoát nạn phải đủ rộng, có tính đến dạng hình học của chúng, để không cản trở việc vận chuyển các cáng tải thương có người nằm trên.
3.3.7 Trên sàn của đường thoát nạn không được có các giật cấp với chiều cao chênh lệch nhỏ hơn 45 cm hoặc có gờ nhô lên, ngoại trừ các ngưỡng trong các ô cửa đi. Tại các chỗ có giật cấp phải bố trí bậc thang với số bậc không nhỏ hơn 3 hoặc làm đường dốc với độ dốc không được lớn hơn 1:6 (độ chênh cao không được quá 10 cm trên chiều dài 60 cm hoặc góc tạo bởi đường dốc với mặt bằng không lớn hơn 9,5°).
Khi làm bậc thang ở những nơi có chiều cao chênh lệch lớn hơn 45 cm phải bố trí lan can tay vịn.
Ngoại trừ những trường hợp được quy định riêng tại 3.4.4, trên đường thoát nạn không cho phép bố trí cầu thang xoắn ốc, cầu thang cong toàn phần hoặc từng phần theo mặt bằng và trong phạm vi một bản thang và một buồng thang bộ không cho phép bố trí các bậc có chiều cao khác nhau và chiều rộng mặt bậc khác nhau. Trên đường thoát nạn không được bố trí gương soi gây ra sự nhầm lẫn về đường thoát nạn.
3.4 Cầu thang bộ và buồng thang bộ trên đường thoát nạn
3.4.1 Chiều rộng của bản thang bộ dùng để thoát người, trong đó kể cả bản thang đặt trong buồng thang bộ, không được nhỏ hơn chiều rộng tính toán hoặc chiều rộng của bất kỳ lối ra thoát nạn (cửa đi) nào trên nó, đồng thời không được nhỏ hơn:
- 1,35 m - đối với nhà nhóm F1.1;
- 1,2 m - đối với nhà có số người trên tầng bất kỳ, trừ tầng một, lớn hơn 200 người;
- 0,7 m - đối với cầu thang bộ dẫn đến các chỗ làm việc đơn lẻ;
- 0,9 m - đối với tất cả các trường hợp còn lại.
3.4.2 Độ dốc (góc nghiêng) của các thang bộ trên các đường thoát nạn không được lớn hơn 1:1 (45°); chiều rộng mặt bậc không được nhỏ hơn 25 cm trừ các cầu thang ngoài nhà, còn chiều cao bậc không được lớn hơn 22 cm và không nhỏ hơn 5 cm.
Độ dốc (góc nghiêng) của các cầu thang bộ hở đi tới các chỗ làm việc đơn lẻ cho phép tăng đến 2:1 (63,5°).
Cho phép giảm chiều rộng mặt bậc của cầu thang cong đón tiếp (thường bố trí ở sảnh tầng 1) ở phần thu hẹp tới 22 cm; Cho phép giảm chiều rộng mặt bậc tới 12 cm đối với các cầu thang bộ dẫn tới các tầng kỹ thuật, tầng áp mái, mái nhà không khai thác sử dụng, cũng như chỉ dùng cho các gian phòng có tổng số chỗ làm việc không lớn hơn 5 người (trừ các gian phòng nhóm F5 hạng A hoặc B).
Các cầu thang bộ loại 3 phải được làm bằng vật liệu không cháy (trừ đối với nhà có bậc chịu lửa V) và được đặt ở sát các phần đặc (không có ô cửa sổ hay lỗ ánh sáng) của tường có cấp nguy hiểm cháy không thấp hơn K1 và có giới hạn chịu lửa không thấp hơn REI 30 hoặc El 30 (không quy định giới hạn chịu lửa của phần đặc này của tường đối với nhà có bậc chịu lửa V). Các cầu thang bộ này phải có chiếu thang nằm cùng cao trình với lối ra thoát nạn, có lan can cao 1,2 m và bố trí cách lỗ cửa sổ không nhỏ hơn 1,0 m. Cho phép thay thế các phần đặc của tường bằng tường kính có giới hạn chịu lửa không thấp hơn El 30. Không quy định giới hạn chịu lửa của các lỗ của dẫn từ hành lang ra chiếu tới của thang, cũng như dẫn từ các gian phòng mà cầu thang bộ loại 3 này chỉ sử dụng đề thoát nạn cho các gian phòng đó.
Cầu thang bộ loại 2 phải thỏa mãn các yêu cầu quy định đối với bản thang và chiếu thang trong buồng thang bộ.
3.4.3 Chiều rộng của chiếu thang bộ phải không nhỏ hơn chiều rộng của bản thang. Còn chiều rộng của chiếu thang ở trước lối vào thang máy (chiếu thang đồng thời là sảnh của thang máy) đối với thang máy có cánh cửa bản lề mở ra, phải không nhỏ hơn tổng chiều rộng bản thang và một nửa chiều rộng cánh cửa của thang máy, nhưng không nhỏ hơn 1,6 m.
Các chiếu nghỉ trung gian trong bản thang bộ thẳng phải có chiều dài không nhỏ hơn 1,0 m.
Các cửa đi có cánh cửa mở vào buồng thang bộ thì khi mở, cánh cửa không được làm giảm chiều rộng tính toán của các chiếu thang và bản thang.
3.4.4 Trong các nhà thuộc nhóm nguy hiểm cháy theo công năng F4 cho phép bố trí cầu thang cong trên đường thoát nạn khi bảo đảm tất cả những điều kiện sau:
- Chiều cao của thang không quá 9,0 m;
- Chiều rộng của vế thang phù hợp với các quy định trong quy chuẩn này;
- Bán kính cong nhỏ nhất không nhỏ hơn 2 lần chiều rộng vế thang;
- Chiều cao cổ bậc nằm trong khoảng từ 150 mm đến 190 mm;
- Chiều rộng phía trong của mặt bậc (đo cách đầu nhỏ nhất của bậc 270 mm) không nhỏ hơn 220 mm;
- Chiều rộng đo tại giữa chiều dài của mặt bậc không nhỏ hơn 250 mm;
- Chiều rộng phía ngoài của mặt bậc (đo cách đầu to nhất của bậc 270 mm) không quá 450 mm;
- Tổng của 2 lần chiều cao cổ bậc với chiều rộng phía trong mặt bậc không nhỏ hơn 480 mm và với chiều rộng phía ngoài của mặt bậc không lớn hơn 800 mm.
3.4.5 Trong các buồng thang bộ và khoang đệm (nếu có) không cho phép bố trí:
- Các ống dẫn khí cháy và chất lỏng cháy được;
- Các tủ tường, trừ các tủ thông tin liên lạc và tủ chứa các họng nước chữa cháy;
- Các cáp và dây điện đi hở (trừ dây điện cho thiết bị điện dòng thấp và dây điện cho chiếu sáng hành lang và buồng thang bộ);
- Các lối ra từ thang tải và thiết bị nâng hàng;
- Các lối ra gian phòng kho hoặc phòng kỹ thuật;
- Các thiết bị nhô ra khỏi mặt tường ở độ cao dưới 2,2 m tính từ bề mặt của các bậc và chiếu thang.
Trong không gian của các buồng thang bộ thoát nạn và khoang đệm ngăn cháy có áp suất không khí dương khi có cháy, không cho phép bố trí bất kỳ phòng công năng nào .
3.4.6 Trong không gian của các buồng thang bộ, trừ các buồng thang không nhiễm khói, cho phép bố trí không quá hai thang máy chở người hạ xuống chỉ đến tầng 1 với các kết cấu bao che giếng thang làm từ các vật liệu không cháy.
Các giếng thang máy nằm ngoài nhà, nếu cần bao che thì phải sử dụng các kết cấu làm từ vật liệu không cháy.
3.4.7 Các buồng thang bộ, trừ các trường hợp được quy định riêng trong quy chuẩn này, phải có lối ra ngoài trực tiếp tới khu đất liền kề nhà hoặc qua tiền sảnh được ngăn cách với các hành lang và các gian phòng tiếp giáp bằng các vách ngăn cháy loại 1 có cửa đi với cơ cấu tự đóng và khe cửa phải được chèn kín.
Khi bố trí các lối ra thoát nạn từ hai buồng thang bộ trở lên qua tiền sảnh chung thì các buồng thang bộ (trừ một trong số đó) phải có cửa ra bên ngoài trực tiếp trừ lối ra dẫn vào sảnh. Trong trường hợp chỉ có một buồng thang bộ dẫn vào tiền sảnh thì buồng thang bộ này phải có lối ra ngoài trực tiếp.
Cho phép bố trí các lối ra thoát nạn từ hai buồng thang bộ qua tiền sảnh chung đối với các nhà có chiều cao PCCC dưới 28 m, diện tích mỗi tầng không quá 300 m2, có số người sử dụng ở mỗi tầng tính lớn nhất theo thiết kế được duyệt, khi thiết kế không chỉ rõ giá trị này, số lượng người lớn nhất được tính bằng tỉ số giữa diện tích sàn của phòng, của tầng hoặc của nhà chia cho hệ số không gian sàn (m2/người) quy định tại Bảng G.9 không vượt quá 50 người và toàn bộ nhà được bảo vệ hệ thống chữa cháy tự động phù hợp với quy định hiện hành.
Đối với các nhà ga hành khách và các sảnh rộng lớn có đặc điểm sử dụng tương tự, có thể coi là lối ra thoát nạn đối với các lối ra từ 50 % số buồng thang bộ (hoặc từ các hành lang) vào sảnh hành khách chung có lối thoát nạn trực tiếp ra ngoài, ra cầu vượt hở bên ngoài, hoặc ra sân ga.
Các buồng thang bộ loại N1 phải có lối ra ngoài trực tiếp.
3.4.8 Các buồng thang bộ phải được bảo đảm chiếu sáng tự nhiên hoặc nhân tạo.
a) Trường hợp chiếu sáng tự nhiên:
Trừ buồng thang bộ loại L2 , việc bảo đảm chiếu sáng có thể được thực hiện bằng các lỗ lấy ánh sáng với diện tích không nhỏ hơn 1,2 m2 trên các tường ngoài ở mỗi tầng.
Các buồng thang bộ loại L2 phải có lỗ lấy ánh sáng trên mái có diện tích không nhỏ hơn 4 m2 với khoảng hở giữa các vế thang có chiều rộng không nhỏ hơn 0,7 m hoặc giếng lấy sáng theo suốt chiều cao của buồng thang bộ với diện tích mặt cắt ngang không nhỏ hơn 2 m2.
Cho phép bố trí không quá 50 % buồng thang bộ bên trong không có các lỗ lấy ánh sáng, dùng để thoát nạn, trong các trường hợp sau:
- Các nhà thuộc nhóm F2, F3 và F4: đối với buồng thang loại N2 hoặc N3 có áp suất không khí dương khi cháy;
- Các nhà thuộc nhóm F5 hạng C có chiều cao PCCC tới 28 m, còn hạng D và E không phụ thuộc chiều cao PCCC của nhà: đối với buồng thang loại N3 có áp suất không khí dương khi cháy.
b) Trường hợp chiếu sáng nhân tạo:
Trường hợp không bố trí được các lỗ cửa như quy định tại đoạn a) của 3.4.8 thì các buồng thang bộ thoát nạn phải là buồng thang bộ không nhiễm khói và được trang bị chiếu sáng nhân tạo, được cấp điện như chú thích tại 3.4.13 bảo đảm nguyên tắc duy trì liên tục nguồn điện cấp cho hệ thống chiếu sáng hoạt động ổn định khi có cháy xảy ra, và ánh sáng phải đủ để người thoát nạn theo các buồng thang này có thể nhìn rõ đường thoát nạn và không bị lóa mắt.
3.4.9 Việc bảo vệ chống khói các buồng thang bộ loại N2 và N3 phải tuân theo Phụ lục D. Khi cần thiết, các buồng thang bộ loại N2 phải được chia thành các khoang theo chiều cao bằng các vách ngăn cháy đặc loại 1 với lối đi lại giữa các khoang nằm ngoài không gian buồng thang bộ.
Các cửa sổ trong các buồng thang bộ loại N2 phải là cửa sổ không mở được.
Khoang đệm của các buồng thang bộ loại N3 phải có diện tích không nhỏ hơn 3,0 m2 và không nhỏ hơn 6,0 m2 nếu khoang đệm đó đồng thời là sảnh của thang máy chữa cháy.
3.4.10 Tính không nhiễm khói của khoảng đệm không nhiễm khói dẫn tới các buồng thang bộ không nhiễm khói loại N1 phải được bảo đảm bằng thông gió tự nhiên với các giải pháp kết cấu và bố trí mặt bằng - không gian phù hợp. Một số trường hợp được cho là phù hợp như sau:
CHÚ THÍCH: Một số phương án bố trí khoảng đệm không nhiễm khói dẫn vào buồng thang bộ loại N1 được minh họa tại I.3.2 (Phụ lục I).
a) Các khoảng đệm không nhiễm khói phải để hở, thông với bên ngoài, thường đặt tại các góc bên trong của nhà, đồng thời phải bảo đảm các yêu cầu sau (xem Hình I.7):
- Khi một phần của tường ngoài của nhà nối tiếp với phần tường khác dưới một góc nhỏ hơn 135° thì khoảng cách theo phương ngang từ lỗ cửa đi gần nhất ở khoảng đệm này tới đỉnh góc tiếp giáp phải không nhỏ hơn 4 m; khoảng cách này có thể giảm đến bằng giá trị phần nhỏ ra của tường ngoài. Yêu cầu này không áp dụng đối với lối đi, nằm ở các góc tiếp giáp lớn hơn hoặc bằng 135°, cũng như cho phần nhô ra của tường ngoài có giá trị không lớn hơn 1,2 m;
Chiều rộng phần tường giữa các lỗ cửa đi của khoảng đệm không nhiễm khói và ô cửa sổ gần nhất của gian phòng không được nhỏ hơn 2 m;
Các lối đi phải có chiều rộng không nhỏ hơn 1,2 m với chiều cao lan can 1,2 m, chiều rộng của phần tường giữa các lỗ cửa đi ở khoảng đệm không nhiễm khói phải không nhỏ hơn 1,2 m.
CHÚ THÍCH: Một số trường hợp tương tự dạng này được minh họa trong Phụ lục I, hình I.8 a), b) và c)
b) Khoảng đệm không nhiễm khói đi theo hành lang bên (xem Hình I.8 h), i) và k)) được chiếu sáng và thông gió tự nhiên bằng các lỗ thông mở ra phía và tiếp xúc với một trong những không gian sau:
- Không gian bên ngoài;
- Một đường phố hoặc đường công cộng hoặc các không gian công cộng khác thông hoàn toàn ở phía trên;
- Một giếng thông gió thẳng đứng có chiều rộng không nhỏ hơn 6 m và diện tích mặt thoáng không nhỏ hơn 93 m2;
c) Khoảng đệm không nhiễm khói đi qua một sảnh ngăn khói có diện tích không nhỏ hơn 6 m2 với kích thước nhỏ nhất theo mỗi chiều không nhỏ hơn 2 m được ngăn cách với các khu vực liền kề của tòa nhà bằng tường ngăn cháy loại 2. Các cửa ra vào phải có cơ cấu tự đóng và khe cửa phải được chèn kín. Thiết kế của sảnh ngăn khói phải bảo đảm không cản trở sự di chuyển của người sử dụng trên đường thoát nạn. Tính không nhiễm khói của sảnh ngăn khói phải được bảo đảm bởi một trong những giải pháp sau:
- Có các lỗ thông gió với diện tích không nhỏ hơn 15 % diện tích sàn của sảnh ngăn khói và đặt cách không quá 9 m tính từ bất kỳ bộ phận nào của sảnh. Các lỗ thông gió này phải thông với một giếng đứng hoặc khoang lõm thông khí trên suốt dọc chiều cao nhà. Kích thước của giếng đứng hoặc khoang lõm phải bảo đảm chiều rộng không nhỏ hơn 6 m và diện tích mặt thoáng không nhỏ hơn 93 m2. Tường bao giếng đứng phải có khả năng chịu lửa nhỏ nhất là 1 giờ và trong giếng không được có lỗ thông nào khác ngoài các lỗ thông gió của sảnh ngăn khói, buồng thang thoát nạn và các khu vệ sinh (xem Hình I.8 d), e), f));
- Là hành lang được thông gió ngang, có các lỗ thông gió cố định nằm ở hai tường bên ngoài. Các lỗ thông trên mỗi bức tường ngoài không được nhỏ hơn 50 % diện tích mặt thoáng của tường ngoài đối diện. Khoảng cách từ mọi điểm của sàn hành lang đến một lỗ thông bất kỳ không được lớn hơn 13 m (xem Hình I.8 g)).
3.4.11 Các buồng thang bộ loại L1 và cầu thang bộ loại 3 được phép bố trí trong các nhà thuộc tất cả các nhóm nguy hiểm cháy theo công năng có chiều cao PCCC tới 28 m; khi đó, trong nhà nhóm F5 hạng A hoặc B, lối ra hành lang tầng từ các gian phòng hạng A hoặc B phải đi qua khoang đệm luôn luôn có áp suất không khí dương.
3.4.12 Các buồng thang bộ loại L2 được phép bố trí trong các nhà có bậc chịu lửa I, II, III thuộc cấp nguy hiểm cháy kết cấu S0, S1 và nhóm nguy hiểm cháy theo công năng F1, F2, F3 và F4, với chiều cao PCCC không quá 9 m. Cho phép tăng chiều cao này đến 12 m (trừ các nhà cơ sở y tế nội trú) với điều kiện lỗ mở lấy sáng trên cao được mở tự động khi có cháy, số lượng các buồng thang như vậy (trừ các nhà nhóm F1.3 và F1.4) cho phép tối đa 50%, các buồng thang bộ còn lại phải có lỗ lấy sáng trên tường ngoài tại mỗi tầng.
Khi bố trí các buồng thang bộ loại L2, còn phải bảo đảm yêu cầu sau: Đối với các nhà nhóm F1.3 dạng đơn nguyên, trong từng căn hộ có bố trí ở độ cao trên 4 m phải có một lối ra khẩn cấp theo quy định tại 3.2.13.
3.4.13 Trong các nhà có chiều cao PCCC lớn hơn 28 m (trừ các nhà nhóm F5 hạng C, E không có người làm việc thường xuyên), cũng như trong các nhà nhóm F5 hạng A hoặc B phải bố trí buồng thang bộ không nhiễm khói, trong đó phải bố trí buồng thang loại N1.
Trong các nhà có nhiều công năng, các buồng thang bộ nối giữa các phần nhà có nhóm nguy hiểm cháy theo công năng khác nhau phải là buồng thang bộ không nhiễm khói phù hợp với các yêu cầu của điều này, trừ các trường hợp được quy định riêng.
CHÚ THÍCH: Buồng thang bộ N1 có thể được thay thế như đã nêu tại 2.5.1c) của với điều kiện hệ thống cung cấp không khí bên ngoài vào khoang đệm và vào buồng thang phải được cấp điện ưu tiên từ hai nguồn độc lập (1 nguồn điện lưới và 1 nguồn máy phát điện dự phòng) bảo đảm nguyên tắc duy trì liên tục nguồn điện cấp cho hệ thống hoạt động ổn định khi có cháy xảy ra.
Cho phép:
a) Trong các nhà nhóm F1, F2, F3, F4 bố trí không quá 50 % buồng thang bộ loại N3 hoặc loại N2 có lối vào buồng thang đi qua khoang đệm với giải pháp bao che giống như khoang đệm ngăn cháy loại 1 (nghĩa là không yêu cầu có áp suất không khí dương trong khoang đệm này, nhưng các bộ phận bao che phải có giới hạn chịu lửa tương tự như khoang đệm ngăn cháy loại 1);
b) Khi nhà có từ hai tầng hầm trở lên, việc thoát nạn từ các tầng hầm này có thể theo các buồng thang bộ loại N3, hoặc loại N2 có lối vào buồng thang đi qua khoang đệm với giải pháp bao che giống như khoang đệm ngăn cháy loại 1;
c) Trong các nhà nhóm F5 bố trí các buồng thang bộ không nhiễm khói thay cho loại N1 như sau:
- Trong các nhà hạng A hoặc B - các buồng thang bộ N2 hoặc N3 có áp suất không khí dương thường xuyên;
- Trong các nhà hạng C - các buồng thang bộ N2 hoặc N3 với áp suất không khí dương khi có cháy;
- Trong các nhà hạng D, E - các buồng thang bộ N2 hoặc N3 với áp suất không khí dương khi có cháy, hoặc các buồng thang bộ L1 với điều kiện buồng thang phải được phân khoang bằng vách ngăn cháy đặc qua mỗi 20 m chiều cao và lối đi từ khoang này sang khoang khác của buồng thang phải đặt ở ngoài không gian của buồng thang.
3.4.14 Trong các nhà có các buồng thang bộ không nhiễm khói phải bố trí bảo vệ chống khói cho các hành lang chung, các sảnh, các không gian chung và các phòng chờ .
3.4.15 Trong các nhà có bậc chịu lửa I và II; và cấp nguy hiểm cháy kết cấu S0, cho phép bố trí các cầu thang bộ loại 2 đi từ tiền sảnh lên tầng hai có tính đến các yêu cầu tại 4.26.
Trong các nhà nhóm F3.1 và F3.2 cho phép sử dụng cầu thang nói trên kể cả khi không có tiền sảnh.
3.4.16 Trong các nhà có chiều cao PCCC không quá 28 m thuộc các nhóm nguy hiểm cháy theo công năng F1.2, F2, F3, F4, với bậc chịu lửa I, II và cấp nguy hiểm cháy kết cấu S0, thì cho phép sử dụng các cầu thang bộ loại 2 nối hai tầng trở lên, khi các buồng thang bộ thoát nạn đáp ứng yêu cầu của các tài liệu chuẩn và quy định tại 4.27. Các cầu thang bộ loại 2 nối thông từ 3 tầng (sàn) trở lên không được tính toán, sử dụng làm đường thoát nạn khi có cháy, trừ các trường hợp quy định tại 3.2.1, 3.2.2, 3.2.6.
3.4.17 Các thang cuốn phải được bố trí phù hợp các yêu cầu quy định cho cầu thang bộ loại 2.
3.5 Yêu cầu về an toàn cháy đối với các vật liệu xây dựng cho nhà
3.5.1 Vật liệu xây dựng được sử dụng cho nhà phụ thuộc vào công dụng và tính nguy hiểm cháy của vật liệu.
3.5.2 Các yêu cầu về an toàn cháy đối với việc áp dụng các vật liệu xây dựng trong nhà được quy định tương ứng với các chỉ tiêu về tính nguy hiểm cháy của vật liệu quy định tại Bảng B.7 (Phụ lục B).
3.5.3 Việc sử dụng các vật liệu hoàn thiện - trang trí, vật liệu ốp lát và vật liệu phủ sàn trên các đường thoát nạn phải tuân thủ yêu cầu tại 3.3.4, còn đối với các phòng sử dụng chung (trừ vật liệu phủ sàn của các sàn thi đấu thể thao và các sàn của phòng nhảy) - tuân thủ quy định tại Bảng B.9 (Phụ lục B).
3.5.4 Trong các gian phòng của nhà thuộc nhóm F5, hạng A, B và C1 có sử dụng hoặc bảo quản các chất lỏng dễ cháy, vật liệu phủ sàn phải có cáp nguy hiểm cháy vật liệu không nguy hiểm hơn CV1.
3.5.5 Trong các gian gửi đồ của nhà nhóm F2.1, không cho phép sử dụng: các loại vật liệu hoàn thiện tường, trần và trần treo, vật liệu ốp lát có cấp nguy hiểm cháy vật liệu nguy hiểm hơn CV1; vật liệu phủ sàn có cấp nguy hiểm cháy vật liệu nguy hiểm hơn CV2.
3.5.6 Trong các gian phòng lưu trữ sách, hồ sơ, tài liệu và các vật phẩm tương tự, chỉ được sử dụng vật liệu hoàn thiện, trang trí, vật liệu ốp lát và vật liệu phủ sàn có cấp nguy hiểm cháy CV0 hoặc CV1.
3.5.7 Trong các gian trưng bày của bảo tàng, triển lãm và các gian phòng có tính chất tương tự thuộc nhóm F2.2, không cho phép sử dụng các vật liệu hoàn thiện tường, trần và trần treo có cấp nguy hiểm cháy cao hơn CV2, vật liệu phủ sàn có cấp nguy hiểm cháy vật liệu nguy hiểm hơn CV3.
3.5.8 Trong các gian phòng thương mại của nhà nhóm F3.1, không cho phép sử dụng các vật liệu hoàn thiện tường, trần, trần treo có cấp nguy hiểm cháy vật liệu nguy hiểm hơn CV2, vật liệu phủ sàn có cấp nguy hiểm cháy vật liệu nguy hiểm hơn CV3.
3.5.9 Trong các gian phòng chờ của nhà nhóm F3.3, vật liệu hoàn thiện tường, trần, trần treo và vật liệu phủ sàn phải có cấp nguy hiểm cháy CV0.
3.5.10 Cho phép áp dụng các yêu cầu về an toàn cháy đối với vật liệu hoàn thiện - trang trí, vật liệu ốp lát, vật liệu phủ sàn và các tiêu chí thử nghiệm tương ứng theo các tài liệu chuẩn được phép áp dụng để thay thế cho các yêu cầu từ 3.5.1 đến 3.5.9 và Phụ lục B, trừ các yêu cầu quy định tại A.4.
4 NGĂN CHẶN CHÁY LAN
4.1 Việc ngăn chặn sự lan truyền của đám cháy được thực hiện bằng các biện pháp hạn chế diện tích cháy, cường độ cháy và thời gian cháy. Cụ thể là:
- Sử dụng giải pháp kết cấu và bố trí mặt bằng - không gian để ngăn cản sự lan truyền các yếu tố nguy hiểm của đám cháy trong một gian phòng, giữa các gian phòng với nhau, giữa các nhóm gian phòng có tính nguy hiểm cháy theo công năng khác nhau, giữa các tầng và các đơn nguyên, giữa các khoang cháy, cũng như giữa các tòa nhà.
- Hạn chế tính nguy hiểm cháy và nguy hiểm cháy nổ công nghệ trong các gian phòng và nhà;
- Hạn chế tính nguy hiểm cháy của vật liệu xây dựng được sử dụng ở các lớp bề mặt của kết cấu nhà, bao gồm: lớp lợp mái; các lớp hoàn thiện của tường ngoài, gian phóng và đường thoát nạn;
- Có các thiết bị chữa cháy ban đầu, trong đó bao gồm thiết bị tự động và cầm tay;
- Có thiết bị phát hiện cháy và báo cháy.
CHÚ THÍCH: Quy định về khoảng cách phòng cháy chống cháy giữa các nhà ở, công trình công cộng và các nhà sản xuất được quy định tại Phụ lục E Khoảng cách giữa các kho chất lỏng cháy, các kho hở trên mặt đất có chứa chất cháy, các bồn chứa LPG (LPG là từ viết tắt của Liquified Petrolium Gas - Khí dầu mỏ hóa lỏng), khí cháy đến các công trình khác phải tuân theo những quy chuẩn, tiêu chuẩn chuyên ngành.
4.3 Các bộ phận nhà (các gian phòng, gian lánh nạn, tầng kỹ thuật, tầng hầm, tầng nửa hầm và các phần khác của nhà) mà việc chữa cháy khó khăn cần được trang bị các phương tiện bổ sung nhằm hạn chế diện tích, cường độ và thời gian cháy.
4.5 Các phần nhà và các gian phòng thuộc các nhóm nguy hiểm cháy theo công năng khác nhau phải được ngăn cách với nhau bằng các bộ phận ngăn chia với giới hạn chịu lửa và cấp nguy hiểm cháy kết cấu theo quy định hoặc ngăn cách nhau bằng vách ngăn cháy loại 1 và (hoặc) sàn ngăn cháy loại 3 , trừ khi có quy định khác trong quy chuẩn này hoặc các quy chuẩn, tiêu chuẩn chuyên ngành. Khi đó, yêu cầu đối với các kết cấu ngăn cách và bộ phận ngăn cháy này được xem xét có kể đến tính nguy hiểm cháy theo công năng của các gian phòng, giá trị tải trọng cháy, bậc chịu lửa và cấp nguy hiểm cháy kết cấu của nhà.
Đối với một tầng nhà có từ hai công năng khác nhau trở lên, trong đó có một công năng chính chiếm tối thiểu 90 % diện tích sàn tầng và các công năng còn lại là phụ trợ cho công năng chính, cho phép không cần phân chia các khu vực thuộc các nhóm nguy hiểm cháy theo công năng khác nhau bằng bộ phận ngăn cháy, khi đó toàn bộ tầng nhà này phải tuân thủ các yêu cầu an toàn cháy tương ứng với nhóm nguy hiểm cháy theo công năng chính. Quy định này không áp dụng cho trường hợp các gian phòng với công năng phụ trợ có hạng nguy hiểm cháy và cháy nổ cao hơn các gian phòng với công năng chính.
CHÚ THÍCH: Một số yêu cầu riêng đối với nhà nhóm F1.3 như sau:
a) Tường và vách ngăn giữa các đơn nguyên; tường và vách ngăn giữa hành lang chung (bên ngoài căn hộ) với các phòng khác, phải có giới hạn chịu lửa không nhỏ hơn El 30;
b) Tường và vách ngăn không chịu lực giữa các căn hộ, phải có giới hạn chịu lửa không nhỏ hơn El 30 và cấp nguy hiểm cháy K0;
c) Các phòng có công năng công công phải được ngăn cách với các phòng ở bằng các vách ngăn cháy loại 1, các sàn ngăn cháy loại 3, còn trong các nhà có bậc chịu lửa I thì phải ngăn cách bằng sàn ngăn cháy loại 2.
4.6 Trong một nhà khi các phần có tính nguy hiểm cháy theo công năng khác nhau đã được phân chia bằng các bộ phận ngăn cháy thì mỗi phần đó phải đáp ứng các yêu cầu về an toàn cháy đặt ra như đối với nhà có nhóm nguy hiểm cháy theo công năng tương ứng.
Việc lựa chọn hệ thống bảo vệ chống cháy của nhà phải được dựa trên cơ sở: khi các phần của nhà có tính nguy hiểm cháy theo công năng khác nhau thì tính nguy hiểm cháy theo công năng của toàn nhà có thể lớn hơn tính nguy hiểm cháy theo công năng của bất cứ phần nào trong nhà đó.
4.7 Trong các nhà thuộc nhóm F5, nếu yêu cầu công nghệ cho phép, cần bố trí các gian phòng hạng A và B ở gần tường ngoài, còn trong các nhà nhiều tầng, cần bố trí các gian phòng này ở các tầng phía trên.
4.8 Trong các tầng hầm và tầng nửa hầm, không cho phép bố trí các gian phòng có hạng A và B, trừ các trường hợp được quy định riêng.
4.9 Các cấu kiện xây dựng không được tạo điều kiện cho việc lan truyền cháy ngầm.
CHÚ THÍCH: Đối với nhà hoặc phần nhà nhóm F1.3, lan can của các lôgia và ban công từ tầng 3 trở lên phải được làm từ vật liệu không cháy
4.10 Tính chịu lửa của chi tiết liên kết các cấu kiện xây dựng không được thấp hơn tính chịu lửa yêu cầu của chính cấu kiện đó.
4.11 Kết cấu tạo dốc sàn trong các phòng khán giả phải đáp ứng các yêu cầu về giới hạn chịu lửa và cấp nguy hiểm cháy theo Bảng 4 và Bảng 5 như đối với các sàn giữa các tầng.
4.12 Khi bố trí các đường ống kỹ thuật, đường cáp đi xuyên qua các kết cấu tường, sàn, vách, thì chỗ tiếp giáp giữa các đường ống, đường cáp với các kết cấu này phải được chèn bịt hoặc xử lý thích hợp để không làm giảm các chỉ tiêu kỹ thuật về cháy theo yêu cầu của kết cấu.
4.13 Các lớp phủ và lớp ngâm tẩm chống cháy mà được xử lý trên bề mặt hở của các cấu kiện phải đáp ứng các yêu cầu đặt ra cho việc hoàn thiện các cấu kiện đó.
Trong các tài liệu kỹ thuật cho các lớp phủ hoặc lớp ngâm tẩm chống cháy phải chỉ rõ chu kỳ thay thế hoặc khôi phục chúng tùy thuộc vào điều kiện khai thác sử dụng.
Để tăng giới hạn chịu lửa hoặc làm giảm mức nguy hiểm cháy của cấu kiện, không cho phép sử dụng các lớp bảo vệ chống cháy tại các vị trí mà ở đó không thể khôi phục hoặc định kỳ thay thế các lớp bảo vệ đó.
4.14 Hiệu quả của các chất (vật liệu) xử lý chống cháy dùng để làm giảm tính nguy hiểm cháy của vật liệu phải được đánh giá bằng các thử nghiệm để xác định nhóm nguy hiểm cháy của vật liệu xây dựng nêu trong Phần 2.
Hiệu quả của các chất (vật liệu) xử lý chống cháy dùng để nâng cao tính chịu lửa của cấu kiện phải được đánh giá bằng thử nghiệm đề xác định giới hạn chịu lửa của các cấu kiện xây dựng nêu trong Phần 2.
4.15 Các vách ngăn cháy trong các gian phòng có trần treo phải ngăn chia cả không gian phía trên trần treo, và trong không gian này không cho phép bố trí các kênh và đường ống dẫn để vận chuyển các chất cháy dạng khí, hỗn hợp bụi - khí, chất lỏng và vật liệu cháy.
Không được bố trí trần treo trong các gian phòng hạng A hoặc B.
Nếu sử dụng trần treo để tăng giới hạn chịu lửa của sàn giữa các tầng và sàn mái, thì các trần treo này phải phù hợp với các yêu cầu về tính nguy hiểm cháy đối với sàn giữa các tầng và sàn mái này.
4.16 Tại các vị trí giao nhau giữa các bộ phận ngăn cháy với các kết cấu bao che của nhà, kể cả tại các vị trí thay đổi hình dạng nhà, phải có các giải pháp bảo đảm không để cháy lan truyền qua các bộ phận ngăn cháy này.
4.17 Các tường ngăn cháy mà phân chia nhà thành các khoang cháy phải được xây dựng trên toàn bộ chiều cao nhà hoặc tới sàn ngăn cháy loại 1 và phải bảo đảm không để cháy lan truyền từ phía nguồn cháy vào khoang cháy liền kề khi các kết cấu nhà ở phía có cháy bị sụp đổ.
4.18 Các lỗ mở trong các bộ phận ngăn cháy phải được đóng kín khi có cháy.
Các cửa sổ trong các bộ phận ngăn cháy phải là các cửa sổ không mở được, còn các cửa đi, cửa nắp và van phải có cơ cấu tự đóng và các khe cửa phải được chèn kín. Các cửa đi, cửa nắp và van nếu cần mở để khai thác sử dụng thì phải được lắp các thiết bị tự động đóng kín khi có cháy.
4.19 Tổng diện tích các lỗ cửa trong các bộ phận ngăn cháy, trừ kết cấu bao che của các giếng thang máy, không được vượt quá 25% diện tích của bộ phận ngăn cháy đó. Không giới hạn diện tích lỗ mở trong các bộ phận ngăn cháy nếu giới hạn chịu lửa danh định của bộ phận chèn bịt lỗ mở không nhỏ hơn giới hạn chịu lửa tương ứng của bộ phận ngăn cháy (trừ tường ngăn cháy loại 1). Các bộ phận chèn bịt lỗ mở trong các bộ phận ngăn cháy phải đáp ứng các yêu cầu tại 2.3.3 và các yêu cầu của Phần 4.
Tại các cửa đi trong các bộ phận ngăn cháy dùng để ngăn các gian phòng hạng A hoặc B với các không gian khác như: phòng có hạng khác với hạng A hoặc B, hành lang, buồng thang bộ và sảnh thang máy, phải bố trí các khoang đệm luôn có áp suất không khí dương như yêu cầu nêu trong Phụ lục D. Không được phép bố trí các khoang đệm chung cho hai gian phòng trở lên cùng có hạng A hoặc B.
4.20 Khi không thể bố trí các khoang đệm ngăn cháy trong các bộ phận ngăn cháy dùng để ngăn các gian phòng hạng A hoặc B với các gian phòng khác hoặc khi không thể bố trí các cửa đi, cửa nắp và van trong các bộ phận ngăn cháy dùng để ngăn các gian phòng hạng C với các gian phòng khác, cần phải thiết lập tổ hợp các giải pháp nhằm ngăn ngừa sự lan truyền của đám cháy và sự xâm nhập vào các phòng và tầng liền kề của các khí, hơi dễ bắt cháy, hơi của các chất lỏng, bụi và xơ cháy mà các chất này có khả năng tạo thành các nồng độ nguy hiểm nổ. Hiệu quả của các giải pháp đó phải được chứng minh.
Trong các lỗ cửa của các bộ phận ngăn cháy giữa các gian phòng liền kề hạng C, D và E, khi không thể đóng được bằng cửa ngăn cháy, cho phép bố trí các khoang đệm hở được trang bị thiết bị chữa cháy tự động. Các kết cấu bao che của các khoang đệm này phải là kết cấu ngăn cháy phù hợp.
4.21 Cửa và van ngăn cháy trong các bộ phận ngăn cháy phải được làm từ các vật liệu không cháy.
Cho phép sử dụng các vật liệu thuộc nhóm có tính cháy không thấp hơn Ch3 được bảo vệ bằng vật liệu không cháy có độ dày không nhỏ hơn 4 mm để làm các cửa, cửa nắp và van ngăn cháy.
Cửa của các khoang đệm ngăn cháy, cửa đi, cửa nắp ngăn cháy trong các bộ phận ngăn cháy ở phía các gian phòng trong đó không bảo quản và không sử dụng các chất khí cháy, chất lỏng cháy và vật liệu cháy, cũng như không có các quá trình công nghệ liên quan tới việc hình thành các bụi cháy, được phép làm từ vật liệu thuộc nhóm có tính cháy Ch3 với chiều dày không nhỏ hơn 40 mm và không có hốc rỗng.
4.22 Không cho phép bố trí các kênh, giếng và đường ống vận chuyển khí cháy, hỗn hợp bụi - khi cháy, chất lỏng cháy, chất và vật liệu cháy xuyên qua các tường và sàn ngăn cháy loại 1.
Đối với các kênh, giếng và đường ống để vận chuyển các chất và vật liệu khác với các loại nói trên thì tại các vị trí giao cắt với các bộ phận ngăn cháy này phải có thiết bị tự động ngăn cản sự lan truyền của các sản phẩm cháy theo các kênh, giếng và ống dẫn.
CHÚ THÍCH 1: Cho phép đặt ống thông gió và ống khói trong tường ngăn cháy của nhà ở, công trình công cộng và nhà phụ trợ khi chiều dày tối thiểu của tường ngăn cháy (trừ tiết diện đường ống) ở chỗ đó không được dưới 25 cm, còn chiều dày của phần ngăn giữa ống khói và ống thông hơi tối thiểu là 12 cm.
CHÚ THÍCH 2: Những lỗ đặt ống dẫn nước ở bộ phận ngăn cháy phải được xử lý phù hợp với quy định tại 4.12.
4.23 Các kết cấu bao che của các giếng thang máy (trừ các giếng đã nêu tại 3.4.6) và các phòng máy của thang máy (trừ các phòng trên mái), cũng như của các kênh, giếng và hộp kỹ thuật phải đáp ứng các yêu cầu đặt ra như đối với các vách ngăn cháy loại 1 và các sàn ngăn cháy loại 3. Không quy định giới hạn chịu lửa của các kết cấu bao che giữa giếng thang máy và phòng máy của thang máy.
Khi không thể lắp các cửa ngăn cháy trong các kết cấu bao che các giếng thang máy nêu trên, phải bố trí các khoang đệm hoặc các sảnh với các vách ngăn cháy loại 1 và sàn ngăn cháy loại 3 hoặc các màn chắn tự động đóng các lỗ cửa đi của giếng thang khi cháy. Các màn chắn này phải được làm bằng vật liệu không cháy và giới hạn chịu lửa của chúng không nhỏ hơn E 30.
Trong các nhà có các buồng thang bộ không nhiễm khói phải bố trí bảo vệ chống khói tự động cho các giếng thang máy mà tại cửa ra của chúng không có các khoang đệm ngăn cháy với áp suất không khí dương khi cháy.
4.24 Buồng chứa rác, ống đổ rác và cửa thu rác phải được thiết kế, lắp đặt phù hợp với tiêu chuẩn, yêu cầu kỹ thuật quy định riêng cho bộ phận này và các yêu cầu cụ thể như sau:
- Các ống đổ rác và buồng chứa rác phải được cách ly với những phần khác của nhà bằng các bộ phận ngăn cháy; cửa thu rác ở các tầng phải có cửa ngăn cháy tự động đóng kín;
- Ống đổ rác phải được làm bằng vật liệu không cháy;
- Không được đặt các ống đổ rác và buồng chứa rác bên trong các buồng thang bộ, sảnh đợi hoặc khoang đệm được bao che ngăn cháy dùng cho thoát nạn;
- Các buồng có chứa ống đổ rác hoặc để chứa rác phải bảo đảm có lối vào trực tiếp qua một khoảng thông thoáng bên ngoài nhà hoặc qua một khoang đệm ngăn cháy được thông gió thường xuyên;
- Cửa vào buồng chứa rác không được đặt liền kề với các lối thoát nạn hoặc cửa ra bên ngoài của nhà hoặc đặt gắn với cửa sổ của nhà ở.
4.25 Theo các điều kiện của công nghệ, cho phép bố trí các thang bộ riêng biệt để lưu thông giữa các tầng hầm hoặc tầng nửa hầm với tầng một.
Các thang bộ này phải được bao che bằng các vách ngăn cháy loại 1 với khoang đệm ngăn cháy có áp suất không khí dương khi cháy.
Cho phép không bố trí khoang đệm ngăn cháy như đã nêu cho các thang bộ này trong các nhà nhóm F5 với điều kiện chúng dẫn từ tầng hầm hoặc tầng nửa hầm có các gian phòng hạng C4, D, E vào các gian phòng cùng hạng ở tầng một.
Các thang bộ này không được kể đến khi tính toán thoát nạn, trừ các trường hợp quy định tại 3.2.1.
4.26 Khi bố trí các cầu thang bộ loại 2 đi từ sảnh tầng 1 lên tầng 2, thì sảnh này phải được ngăn cách khỏi các hành lang và các gian phòng liền kề bằng các vách ngăn cháy loại 1.
4.27 Gian phòng, trong đó có bố trí cầu thang bộ loại 2 theo quy định tại 3.4.16, phải được ngăn cách với các hành lang thông với nó và các gian phòng khác bằng các vách ngăn cháy loại 1. Cho phép không ngăn cách gian phóng có cầu thang bộ loại 2 bằng các vách ngăn cháy khi:
- Có trang bị chữa cháy tự động trong toàn bộ nhà;
- Trong các nhà có chiều cao PCCC không lớn hơn 9 m với diện tích một tầng không quá 300 m2.
4.28 Trong các tầng hầm hoặc tầng nửa hầm, trước lối vào các thang máy phải bố trí các khoang đệm ngăn cháy loại 1 có áp suất không khí dương khi cháy.
4.29 Việc lựa chọn kích thước của nhà và của các khoang cháy, cũng như khoảng cách giữa các nhà phải dựa vào bậc chịu lửa, cấp nguy hiểm cháy kết cấu, nhóm nguy hiểm cháy theo công năng và giá trị tải trọng cháy, có tính đến hiệu quả của các phương tiện bảo vệ chống cháy được sử dụng, sự có mặt, vị trí và mức độ trang bị của các đơn vị chữa cháy, những hậu quả có thể về kinh tế và môi trường sinh thái do cháy.
4.30 Trong quá trình khai thác vận hành, tất cả các thiết bị kỹ thuật bảo vệ chống cháy phải bảo đảm khả năng làm việc theo đúng yêu cầu đã đặt ra.
4.31 Việc trang bị hệ thống báo cháy và chữa cháy tự động phải tuân theo TCVN 3890 .
4.32.1 Tường ngăn cháy loại 1 phải chia cắt các tường ngoài có cấp nguy hiểm cháy K1, K2, K3 và vươn ra khỏi mặt phẳng tường ngoài tối thiểu 30 cm.
Cho phép không chia cắt các tường ngoài nếu tường ngoài có cấp nguy hiểm cháy K0, hoặc tường ngăn cháy loại 1 tiếp giáp với dải tường ngoài theo phương đứng (dải ngăn cháy theo phương đứng) có chiều rộng tối thiểu 1,2 m, có giới hạn chịu lửa không thấp hơn E 60 và có cấp nguy hiểm cháy K0.
Tường ngăn cháy loại 2 và vách ngăn cháy loại 1, nếu có giao với tường ngoài thì phải tiếp giáp với dài ngăn cháy theo phương đứng, có bề rộng không nhỏ hơn 1 m, có giới hạn chịu lửa quy định cho tường ngoài theo Bảng 4 hoặc Bảng A.1 tùy chiều cao nhà. Vách ngăn cháy loại 2 phải tiếp xúc với dải tường ngoài đặc theo phương đứng, có bề rộng không nhỏ hơn 1 m, có giới hạn chịu lửa quy định cho tường ngoài theo Bảng 4 hoặc Bảng A.1 tùy chiều cao nhà.
4.33 Ngăn chặn cháy lan theo phương đứng của mặt ngoài nhà
4.33.1 Các tường ngoài với các lỗ mở không có cửa ngăn cháy hoặc có các phần có giới hạn chịu lửa không đáp ứng quy định thì ở vị trí tường ngoài tiếp giáp với sàn giữa các tầng (đai ngăn cháy giữa các tầng) phải được cấu tạo phù hợp để ngăn chặn lan truyền đám cháy theo phương đứng. Cho phép đai ngăn cháy giữa các tầng có cấu tạo phù hợp với một trong các quy định sau:
a) Phần tường ngoài tiếp giáp với sàn giữa các tầng (phần tường giữa các ở cửa sổ tầng dưới và tầng trên hoặc giữa các phần tường không được bảo vệ chịu lửa của tầng dưới và tầng trên) phải là tường đặc, làm từ vật liệu không cháy và có chiều cao tối thiểu 1,0 m;
b) Ô văng cửa được làm bằng vật liệu không cháy, có chiều rộng (vươn ra tử mặt tường ngoài) không nhỏ hơn 0,6 m, giới hạn chịu lửa của ô văng không nhỏ hơn giới hạn chịu lửa quy định đối với tường ngoài;
c) Phần tường ngoài tiếp giáp với sàn giữa các tầng bằng kính cường lực, có chiều dày không nhỏ hơn 6 mm, được trang bị các đầu phun sprinkler của thiết bị chữa cháy tự động, bảo đảm các đầu phun được đặt cách nhau không quá 2 m từ phía các gian phòng (hành lang) liền kề tường ngoài và cách mặt trong của tường ngoài không quá 0,5 m.
CHÚ THÍCH 1: Yêu cầu về giới hạn chịu lửa (nếu có) của các thành phần hình thành nên đai ngăn cháy được lấy phù hợp với Bảng 4 hoặc Bảng A.1 tùy theo quy mô của nhà. Đối với thành phần ngăn cách theo phương đứng phải bảo đảm chỉ tiêu toàn vẹn (E), đối với chi tiết mối nối hoặc chèn bịt khe hở phải bảo đảm chỉ tiêu toàn vẹn (E) và cách nhiệt (I), đối với chi tiết liên kết cố định phải bảo đảm chỉ tiêu chịu lực (R).
CHÚ THÍCH 2: Các yêu cầu nêu trên không áp dụng đối với vị trí các cửa ra vào của lô gia và ban công, có phần bản sàn ban công đưa ra lớn hơn 0,6 m cũng như đối với các lối ra thoát nạn.
4.33.2 Giới hạn chịu lửa của các cấu kiện của tường ngoài có lắp kính lấy sáng cũng phải bảo đảm yêu cầu như đối với các tường ngoài không chịu lực và quy định tại 4.32, 4.33.
4.33.3 Khi một phần tường ngoài của nhà nối tiếp với một phần khác của tường, tạo thành một góc nhỏ hơn 135° và khoảng cách theo phương nằm ngang giữa các mép gần nhất của các lỗ mở ở tường ngoài theo các hướng khác nhau của định góc, nhỏ hơn 4 m, thì trên phần tương ứng của tường, các lỗ mở phải có các cửa ngăn cháy có giới hạn chịu lửa không nhỏ hơn E 30 hoặc có hệ thống phun nước .
4.33.4 Cho phép không áp dụng các quy định tại 4.33.1 đến 4.33.3 đối với nhà từ ba tầng trở xuống hoặc chiều cao PCCC dưới 15 m, ga ra để xe nổi dạng hở, hoặc nhà thỏa mãn đồng thời các điều kiện nêu tại CHÚ THÍCH 6 (Bảng 4) hoặc CHÚ THÍCH 2 (Bảng A.1) tùy chiều cao nhà.
4.34 Ngăn chặn cháy lan giữa các nhà
Phải bảo đảm khoảng cách phòng cháy chống cháy giữa các nhà (quy định tại E.1 và E.2 trong Phụ lục E) và khoảng cách phòng cháy chống cháy theo đường ranh giới (quy định tại E.3 trong Phụ lục E) tương ứng với diện tích lỗ mở không được bảo vệ chống cháy của tường ngoài nhà và giới hạn chịu lửa của phần tường phải bảo vệ chống cháy.
4.35 Ngăn chặn cháy lan đối với sảnh thông tầng
Việc thiết kế trong nhà, tổ hợp nhà, một hoặc một số sảnh thông tầng, kể cả trang bị trong khối tích của nó các cầu thang bộ hở, thang cuốn, thang cuốn ngang, thang máy toàn cảnh và tương tự, cũng như các gian phòng có các lỗ mở ở hành lang bên, cần bảo đảm thực hiện các yêu cầu sau:
a) Sảnh thông tầng phải được đặt trong khối tích của một khoang cháy, ở các lỗ mở của các sàn giữa các tầng của nó cho phép bố trí các thang máy cuốn, thang bộ hở và thang máy (kể cả thang máy toàn cảnh);
b) Các kết cấu bao quanh các gian phòng và hành lang ở các vị trí tiếp giáp với sảnh thông tầng, cần có giới hạn chịu lửa không nhỏ hơn El (EIW) 60 hoặc làm bằng kính cường lực, có chiều dày không nhỏ hơn 6 mm, có giới hạn chịu lửa không quy định nhưng được trang bị các đầu phun (sprinkler) của thiết bị chữa cháy tự động, bảo đảm các đầu phun được đặt từ phía các gian phòng (hành lang) liền kề, cách nhau không quá 2 m và cách vách ngăn không quá 0,5 m;
c) Ở các lỗ mở, dẫn vào sảnh thông tầng, kể cả các lỗ mở của các thang cuốn và của các gian phòng ở hành lang bên có trang bị các rèm, màn ngăn khói, có giới hạn chịu lửa không nhỏ hơn E 45, được hạ xuống khi có cháy, chúng phải có các cơ cấu dẫn động điều khiển tự động và từ xa, hoặc trang bị các màn ngăn khói cố định. Chiều cao làm việc của các rèm, màn ngăn khói, khi hạ xuống không được nhỏ hơn chiều dày của lớp khói được tạo ra khi có cháy. Chiều dày lớp khói được xác định bảng tính toán khi thiết kế. Khi đó, biên dưới của lớp khói được xác định ở chiều cao không nhỏ hơn 2,5 m tính từ mặt sàn;
d) Diện tích tầng trong phạm vi khoang cháy có sảnh thông tầng được xác định bằng tổng diện tích tầng dưới cùng của sảnh thông tầng và diện tích của các hành lang bên, của các lối đi và của tất cả các gian phòng nằm phía trên, đặt trong phạm vi khối tích của sảnh thông tầng, giới hạn bằng các vách ngăn cháy loại 1. Khi không có các vách ngăn cháy loại 1, ngăn cách không gian của sảnh với các gian phòng tiếp giáp thì diện tích khoang cháy bằng tổng diện tích của các tầng tương ứng;
e) Cho phép sử dụng hệ thống hút xả khói theo cơ chế tự nhiên từ sảnh thông tầng nếu có luận cứ tính toán phù hợp;
f) Tấm chắn lấy sáng ở mái của sảnh thông tầng phải được làm từ vật liệu không cháy, khi đó, kết cấu của tấm mái này phải được làm từ kính có cốt gia cường và an toàn (không gây thương tích). Cho phép sử dụng các vật liệu tấm lấy sáng có nhóm nguy hiểm cháy không nguy hiểm hơn Ch1 và không tạo thành các giọt nóng chảy;
g) Để chữa cháy trong không gian sảnh thông tầng, cho phép lắp đặt các đầu phun sprinkler ở bên dưới kết cấu nhô ra của sàn giữa các tầng, của các ban công (kể cả dưới các thang cuốn...) mà không phải lắp đặt vào mái của sảnh thông tầng. Các đầu phun (sprinkler) đặt cách nhau từ 1,5 m đến 2,0 m và cách mép/cạnh của lỗ mở thông sàn không quá 0,5 m.
5 CẤP NƯỚC CHỮA CHÁY
5.1 Cấp nước chữa cháy ngoài nhà
5.1.1 Các yêu cầu an toàn cháy đối với cấp nước chữa cháy ngoài nhà
5.1.1.1 Việc trang bị cấp nước chữa cháy ngoài nhà phải được thực hiện theo quy định tại TCVN 3890 và tài liệu chuẩn thay thế khác.
5.1.1.2 Chất lượng nước của nguồn cấp nước chữa cháy phải phù hợp với điều kiện vận hành của các phương tiện chữa cháy và phương pháp chữa cháy.
5.1.1.3 Hệ thống đường ống nước chữa cháy thường có áp suất thấp, khi duy trì áp suất cao thì phải tính toán bảo đảm áp suất làm việc của hệ thống đường ống. Đối với đường ống áp suất cao, các máy bơm chữa cháy phải được trang bị phương tiện bảo đảm hoạt động không trễ hơn 5 phút sau khi có tín hiệu báo cháy.
5.1.2 Các yêu cầu an toàn cháy đối với lưu lượng nước cho chữa cháy ngoài nhà
5.1.2.1 Lưu lượng nước cho chữa cháy ngoài nhà (tính cho 1 đám cháy) và số đám cháy đồng thời trong một khu dân cư tính cho mạng đường ống chính nối vòng lấy theo Bảng 7.
5.1.2.2 Lưu lượng nước cho chữa cháy ngoài nhà (cho 1 đám cháy) cho nhà thuộc nhóm nguy hiểm cháy theo công năng F1, F2, F3, F4 tính toán cho đường ống kết hợp và đường ống phân phối của mạng đường ống, cũng như mạng đường ống trong 1 cụm nhỏ (1 xóm, 1 dãy nhà và tương tự) lấy theo giá trị lớn nhất của Bảng 8.
5.1.2.3 Lưu lượng nước cho chữa cháy ngoài nhà cho nhà có nhóm nguy hiểm cháy theo công năng F5, tính cho 1 đám cháy, lấy theo nhà có yêu cầu giá trị lớn nhất như Bảng 9 và Bảng 10.
CHÚ THÍCH 1: Khi tính toán lưu lượng nước chữa cháy cho 2 đám cháy thì lấy giá trị bằng cho 2 nhà có yêu cầu lưu lượng lớn nhất.
CHÚ THÍCH 2: Lưu lượng nước cho chữa cháy ngoài nhà cho các nhà phụ trợ nằm độc lập lấy theo Bảng 8 giống như cho nhà có nhóm nguy hiểm cháy theo công năng F2, F3, F4, còn nếu nằm trong các nhà sản xuất thì tính theo khối tích chung của nhà sản xuất và lấy theo Bảng 9.
CHÚ THÍCH 3: Lưu lượng nước cho chữa cháy ngoài nhà cho nhà phục vụ nông nghiệp và phát triển nông thôn có bậc chịu lửa I, II với khối tích không lớn hơn 5 000 m3 hạng nguy hiểm cháy và cháy nổ D, E lấy bằng 5 L/s.
CHÚ THÍCH 4: Lưu lượng nước cho chữa cháy ngoài nhà cho trạm truyền thanh, truyền hình không phụ thuộc khối tích của trạm và số lượng người sống trong khu vực đặt các trạm này, phải lấy không nhỏ hơn 15 L/s, ngay cả khi Bảng 9 và Bảng 10 quy định lưu lượng thấp hơn giá trị này.
CHÚ THÍCH 5: Lưu lượng nước cho chữa cháy ngoài nhà cho nhà có khối tích lớn hơn trong Bằng 9 và Bảng 10 phải tuân theo các yêu cầu đặc biệt.
CHÚ THÍCH 6: Đối với nhà có bậc chịu lửa II làm bằng kết cấu gỗ thì lưu lượng nước cho chữa cháy ngoài nhà lấy lớn hơn 5 L/s so với Bảng 9 và Bảng 10.
CHÚ THÍCH 7: Lưu lượng nước cho chữa cháy ngoài nhà cho nhà và khu vực kho lạnh bảo quản thực phẩm thì lấy giống nhà có hạng nguy hiểm cháy C.
CHÚ THÍCH 8: Lưu lượng nước cho chữa cháy ngoài nhà cho cơ sở lưu trữ công-ten-nơ có hàng hóa phụ thuộc vào số lượng công-ten-nơ, được lấy như sau:
Từ 30 đến 50 công-ten-nơ lấy 15 L/s;
Từ 51 đến 100 công-ten-nơ: lấy 20 L/s;
Từ 101 đến 300 công-ten-nơ: lấy 25 L/s;
Từ 301 đến 1 000 công-ten-nơ: lấy 40 L/s;
Từ 1 001 đến 1 500 công-ten-nơ: lấy 60 L/s;
Từ 1 501 đến 2 000 công-ten-nơ: lấy 80 L/s;
Nhiều hơn 2 000 công-ten-nơ: lấy 100 L/s;
Bảng 7 - Lưu lượng nước từ mạng đường ống cho chữa cháy ngoài nhà trong các khu dân cư
|
Dân số, x 1 000 người |
Số đám cháy đồng thời |
Lưu lượng nước cho chữa cháy ngoài nhà cho 1 đám cháy, L/s |
|
|
Xây dựng nhà không quá 2 tầng không phụ thuộc bậc chịu lửa |
Xây dựng nhà từ 3 tầng trở lên không phụ thuộc bậc chịu lửa |
||
|
≤ 1 |
1 |
5 |
10 |
|
> 1 và ≤ 5 |
1 |
10 |
10 |
|
> 5 và ≤ 10 |
1 |
10 |
15 |
|
> 10 và ≤ 25 |
2 |
10 |
15 |
|
> 25 và ≤ 50 |
2 |
20 |
25 |
|
> 50 và ≤ 100 |
2 |
25 |
35 |
|
> 100 và ≤ 200 |
3 |
40 |
40 |
|
> 200 và ≤ 300 |
3 |
55 |
|
|
> 300 và ≤ 400 |
3 |
70 |
|
|
> 400 và ≤ 500 |
3 |
80 |
|
|
> 500 và ≤ 600 |
3 |
85 |
|
|
> 600 và ≤ 700 |
3 |
90 |
|
|
> 700 và ≤ 800 |
3 |
95 |
|
|
> 800 và ≤ 1 000 |
3 |
100 |
|
|
> 1 000 |
5 |
110 |
|
|
CHÚ THÍCH 1: Lưu lượng nước cho chữa cháy ngoài nhà trong khu dân cư phải không nhỏ hơn lưu lượng nước chữa cháy cho nhà theo Bảng 8. CHÚ THÍCH 2: Khi thực hiện cấp nước theo vùng, lưu lượng nước cho chữa cháy ngoài nhà và số đám cháy đồng thời theo từng vùng được lấy phụ thuộc vào số dân sống trong vùng. CHÚ THÍCH 3: Số đám cháy đồng thời và lưu lượng nước cho 1 đám cháy cho một vùng có số dân trên 1 triệu người thì tuân theo luận chứng của các yêu cầu kỹ thuật đặc biệt. CHÚ THÍCH 4: Đối với hệ thống các cụm đường ống nhóm (chung) số đám cháy đồng thời lấy phụ thuộc vào tổng số dân trong các cụm có kết nối với hệ thống đường ống. Lưu lượng nước để hồi phục lượng nước chữa cháy theo cụm đường ống nhóm được xác định bằng tổng lượng nước cho khu dân cư (tương ứng với số đám cháy đồng thời) tối đa để chữa cháy tuân theo quy định tại 5.1.3.3 và 5.1.3.4. CHÚ THÍCH 5: Số đám cháy tính toán đồng thời trong khu dân cư phải bao gồm cả các đám cháy của nhà sản xuất và nhà kho trong khu dân cư đó. Khi đó lưu lượng nước tính toán bao gồm cả lưu lượng nước để chữa cháy tương ứng cho các nhà đó, nhưng không nhỏ hơn giá trị trong Bảng 7. |
|||
Bảng 8 - Lưu lượng nước cho chữa cháy ngoài nhà của nhà thuộc nhóm nguy hiểm cháy theo công năng F1, F2, F3, F4
|
Loại nhà |
Lưu lượng nước cho chữa cháy ngoài nhà không phụ thuộc bậc chịu lửa tính cho 1 đám cháy, L/s, theo khối tích nhà, 1 000 m3 |
||||
|
≤ 1 |
> 1 và ≤ 5 |
> 5 và ≤ 25 |
> 25 và ≤ 50 |
> 50 |
|
|
1. Nhà nhóm F1.3, F1.4 có một hoặc nhiều đơn nguyên với số tầng: |
|
|
|
|
|
|
≤ 3 |
10 1) |
10 1) |
15 |
15 |
20 |
|
> 3 và ≤ 12 |
10 |
15 |
15 |
20 |
20 |
|
> 12 và ≤ 16 |
- |
20 |
20 |
25 |
25 |
|
> 16 |
- |
20 |
25 |
25 |
30 |
|
2. Nhà nhóm F1.1, F1.2, F2, F3 và F4 với số tầng: |
|
|
|
|
|
|
≤ 3 |
10 1) |
10 1) |
15 |
20 |
25 |
|
>3 và ≤ 12 |
10 |
15 |
20 |
25 |
30 |
|
> 12 và ≤ 16 |
- |
20 |
25 |
30 |
35 |
|
> 16 |
- |
25 |
30 |
30 |
35 |
|
1) Đối với nhà thuộc khu vực làng, xã (nông thôn) lấy lưu lượng nước cho 1 đám cháy là 5 L/s. |
|||||
|
CHÚ THÍCH 1: Nếu hiệu suất của mạng đường ống ngoài nhà không đủ để truyền lưu lượng nước tính toán cho chữa cháy hoặc khi liên kết ống vào với mạng đường ống cụt thì cần phải xem xét lắp đặt bồn, bể, với thể tích phải bảo đảm lưu lượng nước cho chữa cháy ngoài nhà trong 3 giờ. CHÚ THÍCH 2: Trong khu dân cư không có đường ống nước chữa cháy thì phải có bồn, bể nước bảo đảm chữa cháy trong 3 giờ. |
|||||
Bảng 9 - Lưu lượng nước cho chữa cháy ngoài nhà cho nhà nhóm F5
|
Bậc chịu lửa của nhà |
Cấp nguy hiểm cháy kết cấu của nhà |
Hạng nguy hiểm cháy và cháy nổ của nhà |
Lưu lượng nước cho chữa cháy ngoài nhà đối với nhà có lỗ mở trên mái không phụ thuộc vào chiều rộng của nhà, cũng như nhà không có lỗ mở trên mái có chiều rộng không lớn hơn 60 m, tính cho 1 đám cháy, L/s, theo khối tích nhà, 1 000 m3 |
|||||||
|
≤ 3 |
> 3 và ≤ 5 |
> 5 và ≤ 20 |
> 20 và ≤ 50 |
> 50 và ≤ 200 |
> 200 và ≤ 400 |
> 400 và ≤ 600 |
> 600 |
|||
|
I và II |
S0, S1 |
D, E |
10 |
10 |
10 |
10 |
15 |
20 |
25 |
35 |
|
I và II |
S0, S1 |
A, B, C |
10 |
10 |
15 |
20 |
30 |
35 |
40 |
50 |
|
III |
S0, S1 |
D, E |
10 |
10 |
15 |
25 |
35 |
40 |
45 |
- |
|
III |
S0 |
A, B, C |
10 |
15 |
20 |
30 |
45 |
60 |
75 |
- |
|
IV |
S0, S1 |
D, E |
10 |
15 |
20 |
30 |
40 |
50 |
60 |
- |
|
IV |
S0, S1 |
A, B, C |
15 |
20 |
25 |
40 |
60 |
80 |
100 |
- |
|
IV |
S2, S3 |
E |
10 |
15 |
20 |
30 |
45 |
- |
- |
- |
|
IV |
S2, S3 |
A, B, C |
15 |
20 |
25 |
40 |
65 |
- |
- |
- |
|
V |
- |
E |
10 |
15 |
20 |
30 |
55 |
- |
- |
- |
|
V |
- |
C |
15 |
20 |
25 |
40 |
70 |
- |
- |
- |
Bảng 10 - Lưu lượng nước cho chữa cháy ngoài nhà cho nhà nhóm F5 không có lỗ mở trên mái có chiều rộng trên 60 m
|
Bậc chịu lửa của nhà |
Cấp nguy hiểm cháy kết cấu của nhà |
Hạng nguy hiểm cháy và cháy nổ của nhà |
Lưu lượng nước chữa cháy ngoài nhà đối với nhà không có lỗ mở trên mái có chiều rộng từ 60 m trở lên, tính cho 1 đám cháy, L/s, theo khối tích nhà, 1 000 m3 |
||||||||
|
≤ 50 |
> 50 và ≤ 100 |
> 100 và ≤ 200 |
> 200 và ≤ 300 |
> 300 và ≤ 400 |
> 400 và ≤ 500 |
> 500 và ≤ 600 |
> 600 và ≤ 700 |
> 700 |
|||
|
I và II |
S0 |
A, B, C |
20 |
30 |
40 |
50 |
60 |
70 |
80 |
90 |
100 |
|
I và II |
S0 |
D, E |
10 |
15 |
20 |
25 |
30 |
35 |
40 |
45 |
50 |
|
CHÚ THÍCH: Lỗ mở trên mái là các lỗ mở để thông gió đặt trên kết cấu mái của nhà (nóc gió) có diện tích không nhỏ hơn 2,5 % diện tích xây dựng của nhà đó. |
|||||||||||
5.1.2.4 Lưu lượng nước cho chữa cháy ngoài nhà cho nhà được ngăn chia bằng tường ngăn cháy thì lấy theo phần của nhà, nơi yêu cầu lưu lượng lớn nhất.
5.1.2.5 Lưu lượng nước cho chữa cháy ngoài nhà cho nhà được ngăn cách bằng vách ngăn cháy được xác định theo khối tích chung của nhà và theo hạng cao nhất của hạng nguy hiểm cháy và cháy nổ.
5.1.2.6 Lưu lượng nước chữa cháy phải được bảo đảm ngay cả khi lưu lượng cho các nhu cầu khác là lớn nhất, cụ thể phải tính đến:
- Nước sinh hoạt;
- Hộ kinh doanh cá thể;
- Cơ sở sản xuất công nghiệp và nông nghiệp, nơi mà yêu cầu chất lượng nước uống hoặc mục đích kinh tế không phù hợp để làm đường ống riêng;
- Trạm xử lý nước, mạng đường ống và kênh dẫn và tương tự;
- Trong trường hợp điều kiện công nghệ cho phép, có thể sử dụng một phần nước sản xuất để chữa cháy, khi đó cần kết nối trụ nước trên mạng đường ống sản xuất với trụ nước trên mạng đường ống chữa cháy bảo đảm lưu lượng nước chữa cháy cần thiết.
5.1.2.7 Các hệ thống cấp nước chữa cháy ngoài nhà của cơ sở (đường ống dẫn nước, trạm bơm, bồn, bể dự trữ nước chữa cháy) phải bảo đảm độ tin cậy để không bị ngừng cấp nước quá 10 phút và không bị giảm lưu lượng nước quá 30% lưu lượng nước tính toán trong 3 ngày.
5.1.2.8 Trường hợp công trình năm trong khu vực chưa có hạ tầng cấp nước chữa cháy ngoài nhà, hoặc đã có nhưng không bảo đảm theo quy định tại các bảng 8, 9 và 10 thì thực hiện theo hướng dẫn của cơ quan Cảnh sát PCCC và CNCH có thẩm quyền.
5.1.3 Số đám cháy tính toán đồng thời
5.1.3.1 Số đám cháy tính toán đồng thời cho một cơ sở công nghiệp hoặc nông nghiệp phải được lấy theo diện tích của cơ sở đó, cụ thể như sau:
- Nếu diện tích đến 150 ha lấy là 1 đám cháy;
- Nếu diện tích trên 150 ha lấy là 2 đám cháy.
Số đám cháy tính toán đồng thời tại một khu vực kho dạng hở hoặc kín chứa vật liệu từ gỗ, lấy như sau: diện tích kho đến 50 ha lấy là 1 đám cháy; diện tích trên 50 ha lấy là 2 đám cháy.
CHÚ THÍCH: Diện tích của cơ sở để tính toán cho hệ thống cấp nước chữa cháy ngoài nhà là diện tích khu đất của cơ sở (không bao gồm khu đất rừng, khu đất công viên cây xanh, khu đất trồng cày nông nghiệp hay các khu đất tương tư mà trên đó không có công trình xây dựng).
5.1.3.2 Khi kết hợp đường ống chữa cháy của khu dân cư và cơ sở công nghiệp nằm ngoài khu dân cư thì số đám cháy tính toán đồng thời tính như sau:
- Khi diện tích của cơ sở công nghiệp đến 150 ha và dân số của khu dân cư đến 10 000 người, lấy là 1 đám cháy (lấy lưu lượng nước theo bên lớn hơn); tương tự với số dân từ 10 000 đến 25 000 người lấy là 2 đám cháy (1 đám cháy cho cơ sở công nghiệp và 1 đám cháy cho khu dân cư);
- Khi diện tích của cơ sở công nghiệp trên 150 ha và số dân đến 25 000 người, lấy là 2 đám cháy (2 đám cháy tính cho khu vực cơ sở công nghiệp hoặc 2 đám cháy tính cho khu dân cư, lấy theo lưu lượng nước yêu cầu của bên lớn hơn);
- Khi số dân trong khu dân cư lớn hơn 25 000 người, lấy là 2 đám cháy, trong đó lưu lượng nước của 1 đám cháy được xác định bằng tổng của lưu lượng yêu cầu lớn hơn (tính cho cơ sở công nghiệp hoặc khu dân cư) và 50 % lưu lượng yêu cầu nhỏ hơn (tính cho cơ sở công nghiệp hoặc khu dân cư).
5.1.3.3 Thời gian chữa cháy phải lấy là 3 giờ, ngoại trừ những quy định riêng nêu dưới đây:
- Đối với nhà bậc chịu lửa I, II với kết cấu và lớp cách nhiệt làm từ vật liệu không cháy có các khu vực thuộc hạng nguy hiểm cháy nổ D và E lấy là 2 giờ;
- Đối với công trình nhà trẻ, trường mẫu giáo, mầm non, nhà thuộc nhóm nguy hiểm cháy theo công năng F4.1, F4.3 ở khu vực nông thôn, có bậc chịu lửa I, II với kết cấu và lớp cách nhiệt làm từ vật liệu không cháy cao không quá 3 tầng, diện tích xây dựng đến 500 m2 lấy là 1 giờ;
- Đối với công trình nhà trẻ, trường mẫu giáo, mầm non, nhà thuộc nhóm nguy hiểm cháy theo công năng F4.1, F4.3 ở khu vực nông thôn, có bậc chịu lửa I, II với kết cấu và lớp cách nhiệt làm từ vật liệu không cháy cao không quá 3 tầng, diện tích xây dựng đến 500 m2 thì cho phép sử dụng hệ thống họng nước chữa cháy bên trong để thay thế cho hệ thống cấp nước chữa cháy ngoài nhà;
- Đối với kho dạng hở chứa vật liệu từ gỗ - không nhỏ hơn 5 giờ.
5.1.3.4 Thời gian lớn nhất để phục hồi nước dự trữ chữa cháy không lớn hơn:
- Đối với khu dân cư và cơ sở công nghiệp có khu vực thuộc hạng nguy hiểm cháy nổ A, B, C lấy là 24 giờ;
- Đối với cơ sở công nghiệp có khu vực thuộc hạng nguy hiểm cháy nổ D và E lấy là 36 giờ;
- Đối với các khu dân cư và cơ sở nông nghiệp lấy là 72 giờ.
CHÚ THÍCH: Đối với cơ sở công nghiệp có yêu cầu về lưu lượng nước cho chữa cháy ngoài nhà đến 20 L/s thì cho phép tăng thời gian phục hồi nước chữa cháy như sau:
a) Đối với khu vực thuộc hạng nguy hiểm cháy D và E cho phép đến 48 giờ
b) Đối với khu vực thuộc hạng nguy hiểm cháy C cho phép đến 36 giờ.
Khi không thể bảo đảm phục hồi lượng nước chữa cháy theo thời gian quy định thì cần cung cấp thêm n lần lượng nước dự trữ chữa cháy. Giá trị của n (n = 1,5; 2,0; 2,5; 3,0 ...) phụ thuộc vào thời gian phục hồi thực tế, ttt, và tính theo công thức sau:
n = ttt / tqđ
trong đó: ttt là thời gian phục hồi nước dự trữ chữa cháy thực tế;
tqđ là thời gian phục hồi nước dự trữ chữa cháy (theo 5.1.3.4).
5.1.4 Yêu cầu an toàn cháy đối với mạng đường ống và các công trình được xây dựng trên chúng
5.1.4.1 Khi lắp đặt từ 2 đường ống cấp trở lên phải lắp đặt van chuyển đổi giữa chúng khi đó trong trường hợp ngắt 1 đường cấp hoặc 1 phần của nó thì việc chữa cháy vẫn bảo đảm 100 %.
5.1.4.2 Mạng đường ống dẫn nước chữa cháy phải là mạch vòng. Cho phép làm các đường ống cụt khi: cấp nước cho chữa cháy hoặc sinh hoạt - chữa cháy khi chiều dài đường ống không lớn hơn 200 m mà không phụ thuộc vào lưu lượng nước chữa cháy yêu cầu.
Không cho phép nối vòng mạng đường ống ngoài nhà bằng mạng đường ống bên trong nhà và công trình.
Ở các khu dân cư đến 5 000 người và yêu cầu về lưu lượng nước cho chữa cháy ngoài nhà đến 10 L/s hoặc số họng nước chữa cháy trong nhà đến 12 thì cho phép dùng mạng cụt chiều dài trên 200 m nếu có xây dựng bồn bể, thấp nước áp lực hoặc bể điều tiết dành cho mạng cụt, trong đó có chứa toàn bộ lượng nước cho chữa cháy.
5.1.4.3 Đường ống phải được phân chia thành các đoạn bằng các van khoá bảo đảm để khi sửa chữa sẽ không ngất nhiều hơn 05 trụ cấp nước chữa cháy
5.1.4.4 Các van trên các đường ống với mọi đường kính khi điều khiển từ xa hoặc tự động phải là loại van điều khiển bằng điện.
Cho phép sử dụng van khí nén, thủy lực hoặc điện từ.
Khi không điều khiển từ xa hoặc tự động thì van khóa đường kính đến 400 mm có thể là loại khóa bằng tay, với đường kính lớn hơn 400 mm là khóa điện hoặc thủy lực; trong các trường hợp luận chứng riêng cho phép lắp van đường kính trên 400 mm khóa bằng tay.
Trong mọi trường hợp đều phải cho phép mở và đóng được bằng tay.
5.1.4.5 Đường kính của đường ống cấp và mạng sau đường ống cấp phải được tính toán trên cơ sở sau:
- Theo yếu tố kỹ thuật, kinh tế;
- Các điều kiện làm việc khi ngắt sự cố từng đoạn riêng.
Đường kính ống dẫn nước chữa cháy ngoài nhà cho khu dân cư và cơ sở sản xuất không được nhỏ hơn 100 mm, đối với khu vực nông thôn - không được nhỏ hơn 75 mm.
5.1.4.6 Các trụ cấp nước chữa cháy phải được bố trí ở khoảng cách không lớn hơn 2,5 m đến mép đường, nhưng không gần hơn 1 m đến tường ngôi nhà; cho phép bố trí trụ nước (trụ ngầm) nằm ở đường giao thông.
5.1.4.7 Các trụ cấp nước chữa cháy phải được bố trí trên mạng đường ống sao cho tối thiểu 02 trụ khi lưu lượng yêu cầu từ 15 L/s trở lên, tối thiểu 01 trụ khi lưu lượng yêu cầu thấp hơn 15 L/s phục vụ đến mọi điểm của nhà xét theo phương ngang và bán kính phục vụ của mỗi trụ nước không lớn 200 m tính theo đường di chuyển của vòi chữa cháy đi bên ngoài nhà.
CHÚ THÍCH: Trên mạng đường ống cho các điểm dân cư đến 500 người cho phép thay thế các trụ cấp nước chữa cháy loại 3 cửa bằng đoạn đường ống đứng DN 80 mm có lắp họng nước.
5.1.4.8 Các công trình thuộc diện trang bị hệ thống họng nước chữa cháy cũng như hệ thống chữa cháy sprinkler tự động phải có đường ống kết nối từ trạm bơm cấp nước chữa cháy của công trình đến tối thiểu 01 trụ cấp nước chữa cháy loại 03 cửa hoặc loại 02 cửa DN65 đặt ở vị trí mặt bên ngoài tường công trình về phía có đường giao thông.
5.1.5 Các yêu cầu đối với bồn, bể trữ nước cho chữa cháy ngoài nhà.
5.1.5.1 Bồn, bể cấp nước theo công năng phải bao gồm cho điều tiết, chữa cháy, sự cố và nước mồi.
5.1.5.2 Nếu việc lấy nước chữa cháy trực tiếp tử các nguồn cấp nước không phù hợp với điều kiện kinh tế, kỹ thuật thì trong mọi trường hợp, các bồn, bể trữ nước phải bảo đảm có đủ lượng nước chữa cháy theo tính toán.
5.1.5.3 Thể tích nước chữa cháy trong bồn, bể phải được tính toán để bảo đảm:
- Thực hiện việc cấp nước chữa cháy từ trụ nước ngoài nhà và các hệ thống chữa cháy khác;
- Cung cấp cho các thiết bị chữa cháy chuyên dụng (sprinkler, drencher và tương tự) không có bể riêng;
- Lượng nước tối đa cho sinh hoạt và sản xuất trong suốt quá trình chữa cháy.
5.1.5.4 Các hồ ao để cho xe chữa cháy hút nước phải có lối tiếp cận và có bãi đỗ xe kích thước không nhỏ hơn 12 m x 12 m với bề mặt bảo đảm tải trọng dành cho xe chữa cháy.
Khi xác định thể tích nước chữa cháy trong các bồn, bể thì cho phép tính cả việc nạp thêm vào bồn, bể trong thời gian chữa cháy nếu nó có hệ thống cấp nước bảo đảm quy định tại 5.1.2.7.
5.1.5.5 Khi cấp nước theo 1 đường ống cấp thì phải dự phòng thêm lượng nước bổ sung cho chữa cháy, quy định tại 5.1.5.3.
Cho phép không cần tính đến lượng nước bổ sung cho chữa cháy khi chiều dài của một đường ống cấp không lớn hơn 500 m đối với khu dân cư có số dân đến 5 000 người, cũng như cho các đối tượng với yêu cầu về lưu lượng nước cho chữa cháy ngoài nhà không lớn hơn 40 L/s.
5.1.5.6 Tổng số bồn, bể cho chữa cháy trong một mạng ống phải không nhỏ hơn 2 (không áp dụng đối với bồn, bể dành cho cấp nước ngoài nhà của công trình riêng lẻ ).
Giữa các bồn, bể trong mạng ống, mực nước thấp nhất và cao nhất của nước chữa cháy phải tương ứng như nhau.
Khi ngắt một bồn, bể thì lượng nước trữ để chữa cháy trong các bồn, bể còn lại phải không nhỏ hơn 50 % của lượng nước yêu cầu cho chữa cháy.
5.1.5.7 Việc trữ nước chữa cháy trong các bồn, bể chuyên dụng hoặc các hồ nước hở được cho phép đối với:
- Khu dân cư đến 5 000 người;
- Các tòa nhà, không phụ thuộc công năng, đứng riêng biệt ngoài khu dân cư không có hệ thống đường ống nước sinh hoạt hoặc sản xuất, để cung cấp lượng nước cần thiết cho hệ thống cấp nước ngoài nhà;
- Nhà công năng khác nhau có lưu lượng nước yêu cầu cho cấp nước chữa cháy ngoài nhà không quá 10 L/s;
- Nhà có từ 1 đến 2 tầng, không phụ thuộc vào công năng, có diện tích xây dựng không lớn hơn diện tích khoang cháy cho phép đối với loại nhà đó.
5.1.5.8 Lượng nước chữa cháy của bồn, bể và hồ nước nhân tạo xác định trên cơ sở tính toán lượng nước tiêu thụ và thời gian chữa cháy theo quy định tại 5.1.2.2, 5.1.2.3, 5.1.2.4, 5.1.2.5, 5.1.2.6 và 5.1.3.3.
CHÚ THÍCH 1: Tính toán thể tích nước chữa cháy của hồ nhân tạo hở phải tính đến khả năng bốc hơi và đóng băng của nước. Mực nước tối thiểu không được nhỏ hơn 0,5 m.
CHÚ THÍCH 2: Phải bảo đảm lối vào cho xe chữa cháy tiếp cận bể, hồ và những điểm lấy nước tương tự.
5.1.5.9 Bồn, bể, trụ nước chữa cháy ngoài nhà, hồ nước chữa cháy tự nhiên và nhân tạo phải đặt tại vị trí bảo đảm bán kính phục vụ:
- Khi có xe bơm là 200 m;
- Khi có máy bơm di động là 100 m đến 150 m trong phạm vi hoạt động kỹ thuật của máy bơm;
- Để tăng bán kính phục vụ, cho phép lắp đặt các đường ống cụt có chiều dài không quá 200 m từ bồn, bể và hồ nhân tạo bảo đảm theo quy định tại 5.1.5.8;
- Khoảng cách từ điểm lấy nước từ bồn, bể hoặc hồ nhân tạo đến nhà có bậc chịu lửa III, IV và V hoặc đến kho hở chứa vật liệu cháy được phải không nhỏ hơn 30 m, đến nhà bậc chịu lửa I và II phải không nhỏ hơn 10 m.
5.1.5.10 Khi không thể hút nước chữa cháy trực tiếp từ bồn, bể hoặc hồ bằng xe máy bơm hoặc máy bơm di động, thì phải cung cấp các hố thu với thể tích từ 3 m3 đến 5 m3 . Đường kính ống kết nối bồn, bể hoặc hồ với các hố thu lấy theo các điều kiện tính toán lưu lượng nước cho chữa cháy ngoài nhà, nhưng không nhỏ hơn 200 mm. Trên đoạn ống kết nối phải có hộp van để khóa sự lưu thông nước, việc đóng mở van phải thực hiện được từ bên ngoài hộp. Đầu đoạn ống kết nối ở phía hồ nhân tạo phải có lưới chắn.
5.1.5.11 Bồn, bể áp lực để chữa cháy phải được trang bị thước đo mức nước, thiết bị báo tín hiệu mức nước cho trạm bơm hoặc trạm phân phối nước.
Bồn, bể áp lực của đường ống nước chữa cháy áp lực cao phải trang bị thiết bị bảo đảm tự động ngắt nước lên bồn bể, thấp khi máy bơm chữa cháy hoạt động.
5.1.5.12 Bồn, bể áp lực sử dụng khi ép áp lực, thì ngoài máy ép vận hành phải có máy ép dự bị.
5.2 Hệ thống họng nước chữa cháy trong nhà
5.2.1 Nhà ở, nhà công cộng, nhà hành chính - phụ trợ của công trình công nghiệp phải lắp đặt hệ thống họng nước chữa cháy trong nhà với lưu lượng nước tối thiểu để chữa cháy xác định theo Bảng 11, đối với nhà sản xuất và nhà kho thì xác định theo Bảng 12.
Khi xác định lưu lượng nước chữa cháy cần thiết, phải căn cứ vào chiều cao tia nước đặc và đường kính đầu lăng phun chữa cháy xác định theo Bảng 13. Khi đó tính toán hoạt động đồng thời của họng nước và các hệ thống chữa cháy khác.
Căn cứ vào lưu lượng cấp nước, các họng nước chữa cháy được phân loại thành;
- Lưu lượng thấp (từ 0,2 L/s đến 1,5 L/s). Thiết bị cho họng nước chữa cháy lưu lượng thấp có đường kính là DN 5, DN 10, DN 15, DN 20, DN 25, DN 40;
- Lưu lượng trung bình (lớn hơn 1,5 L/s).
Trường hợp sử dụng các họng nước lưu lượng thấp thì phải bảo đảm tổng lưu lượng cấp nước và chiều cao tia nước đặc xác định theo các bảng 11, 12 và 13.
Bảng 11 - Số tia phun chữa cháy và lưu lượng nước tối thiểu đối với hệ thống họng nước chữa cháy trong nhà
|
Nhà ở và công trình công cộng |
Số tia phun chữa cháy trên 1 tầng nhà |
Lưu lượng tối thiểu cho chữa cháy trong nhà, L/s, đối với một tia phun |
|
1. Nhà ở, nhà chung cư |
||
|
≤ 16 tầng, khi hành lang chung dài ≤ 10 m |
1 |
2,5 |
|
≤ 16 tầng, khi hành lang chung dài > 10 m |
2 |
2,5 |
|
> 16 và ≤ 25 tầng, khi hành lang chung dài ≤ 10 m |
2 |
2,5 |
|
> 16 và ≤ 25 tầng, khi hành lang chung dài > 10 m |
3 |
2,5 |
|
2. Nhà hành chính 1) |
||
|
≤ 10 tầng và khối tích ≤ 25 000 m3 |
1 |
2,5 |
|
≤ 10 tầng và khối tích > 25 000 m3 |
2 |
2,5 |
|
> 10 tầng và khối tích ≤ 25 000 m3 |
2 |
2,5 |
|
>10 tầng và khối tích > 25 000 m3 |
3 |
2,5 |
|
3. Phòng câu lạc bộ có sân khấu, nhà hát, rạp chiếu phim, phòng có trang bị thiết bị nghe nhìn (sinh hoạt, hội thảo và tương tự) |
||
|
≤ 300 chỗ |
2 |
2,5 |
|
> 300 chỗ |
2 |
5,0 |
|
4. Ký túc xá và nhà công cộng (ngoại trừ mục 2) 2) |
||
|
≤ 10 tầng và khối tích ≤ 25 000 m3 |
1 |
2,5 |
|
≤ 10 tầng và khối tích > 25 000 m3 |
2 |
2,5 |
|
> 10 tầng và khối tích ≤ 25 000 m3 |
2 |
2,5 |
|
> 10 tầng và khối tích > 25 000 m3 |
3 |
2,5 |
|
5. Nhà hành chính - phụ trợ của công trình công nghiệp có khối tích |
||
|
≤ 25 000 m3 |
1 |
2,5 |
|
> 25 000 m3 |
2 |
2,5 |
|
1) Trụ sở cơ quan nhà nước, nhà làm việc của các doanh nghiệp, tổ chức chính trị, xã hội, bưu điện, cơ sở truyền thanh, truyền hình, viễn thông, nhà lắp đặt thiết bị thông tin, trung tâm lưu trữ, quản lý dữ liệu... và các công trình có công năng tương tự. 2) Nhà công cộng và các công trình có công năng tương tự, như: - Nhà ở ký túc xá, nhà hỗn hợp, khách sạn, nhà ở riêng lẻ kết hợp công năng khác, nhà khách, nhà nghỉ, nhà trọ, cơ sở lưu trú khác được thành lập theo Luật Du lịch; - Cơ sở kinh doanh dịch vụ karaoke, vũ trường, quán bar, câu lạc bộ, thẩm mỹ viện, kinh doanh dịch vụ xoa bóp, công viên giải trí, vườn thú, thủy cung; - Cửa hàng điện máy, siêu thị, cửa hàng bách hoá; cửa hàng tiện ích, nhà hàng, cửa hàng ăn uống; - Phòng khám đa khoa, chuyên khoa; thẩm mỹ viện; - Bảo tàng, thư viện, nhà triển lãm, nhà trưng bày, nhà lưu trữ, nhà sách, nhà hội chợ; - Sân vận động, nhà thi đấu thể thao, cung thể thao trong nhà, trung tâm thể dục, thể thao, trường đua, trường bắn, cơ sở thể thao khác được thành lập theo Luật Thể dục, thể thao; - Cảng hàng không, đài kiểm soát không lưu, bến cảng biển, cảng cạn, cảng thủy nội địa, bến xe khách, trạm dừng nghỉ, nhà ga đường sắt, nhà chờ cáp treo vận chuyển người, công trình tàu điện ngầm, cơ sở đăng kiểm phương tiện giao thông cơ giới, cửa hàng kinh doanh, sửa chữa, bảo dưỡng ô tô, mô tô, xe gắn máy, Nhà trẻ, trường mẫu giáo, mầm non, trường tiểu học, trung học cơ sở, trung học phổ thông, trường phổ thông có nhiều cấp học, trường cao đẳng, đại học, học viện, trường trung cấp chuyên nghiệp, trường dạy nghề, cơ sở giáo dục thường xuyên, cơ sở giáo dục khác được thành lập theo Luật Giáo dục; - Nhà điều dưỡng, phục hồi chức năng, chỉnh hình, nhà dưỡng . |
||
Bảng 12 - Số tia phun chữa cháy và lưu lượng nước tối thiểu cho chữa cháy trong nhà đối với nhà sản xuất và nhà kho
|
Bậc chịu lửa của nhà |
Hạng nguy hiểm cháy và cháy nổ của nhà |
Cấp nguy hiểm cháy của kết cấu |
Số tia phun chữa cháy và lưu lượng nước tối thiểu, L/s, đối với 1 tia phun, cho chữa cháy trong nhà đối với nhà sản xuất và nhà kho có chiều cao PCCC đến 50 m và theo khối tích, 1 000 m3 |
|
|
≤ 150 |
> 150 |
|||
|
I, II |
A, B, C |
S0, S1 |
2 x 2,5 |
3 x 2,5 |
|
D, E |
Không quy định |
1 x 2,5 |
1 x 2,5 |
|
|
III |
A, B, C |
S0 |
2 x 2,5 |
3 x 2,5 |
|
D, E |
S0, S1 |
1 x 2,5 |
2 x 2,5 |
|
|
IV |
A, B |
S0 |
2 x 2,5 |
3 x 2,5 |
|
C |
S0, S1 |
2 x 2,5 |
2 x 5 |
|
|
C |
S2, S3 |
3 x 2,5 |
4 x 2,5 |
|
|
D, E |
S0, S1, S2, S3 |
1 x 2,5 |
2 x 2,5 |
|
|
V |
C |
Không quy định |
2 x 2,5 |
2 x 5 |
|
D, E |
Không quy định |
1 x 2,5 |
2 x 2,5 |
|
Bảng 13 - Lưu lượng nước chữa cháy phụ thuộc theo chiều cao tia nước đặc và đường kính đầu lăng phun chữa cháy
|
Chiều cao tia nước đặc, m |
Lưu lượng của lăng phun, L/s |
Áp suất, MPa, của họng nước chữa cháy với chiều dài cuộn vòi, m |
Lưu lượng của lăng phun, L/s |
Áp suất, MPa, của họng nước chữa cháy với chiều dài cuộn vòi, m |
Lưu lượng của lăng phun, L/s |
Áp suất, MPa, của họng nước chữa cháy với chiều dài cuộn vòi, m |
||||||
|
10 |
15 |
20 |
10 |
15 |
20 |
10 |
15 |
20 |
||||
|
|
Đường kính đầu lăng phun chữa cháy, mm |
|||||||||||
|
13 |
16 |
19 |
||||||||||
|
Họng nước chữa cháy DN 50 1) |
||||||||||||
|
6 |
- |
- |
- |
- |
2,6 |
0,092 |
0,096 |
0,100 |
3,4 |
0,088 |
0,096 |
0,104 |
|
8 |
- |
- |
- |
- |
2,9 |
0,120 |
0,125 |
0,130 |
4,1 |
0,129 |
0,138 |
0,148 |
|
10 |
- |
- |
- |
- |
3,3 |
0,151 |
0,157 |
0,164 |
4.6 |
0,160 |
0,173 |
0,185 |
|
12 |
2,6 |
0,202 |
0,206 |
0,210 |
3,7 |
0,192 |
0,196 |
0,210 |
5,2 |
0,206 |
0,223 |
0,240 |
|
14 |
2,8 |
0,236 |
0,241 |
0,245 |
4,2 |
0,248 |
0,255 |
0,263 |
- |
- |
- |
- |
|
16 |
3,2 |
0,316 |
0,322 |
0,328 |
4,6 |
0,293 |
0,300 |
0,318 |
- |
- |
- |
- |
|
18 |
3,6 |
0,390 |
0,398 |
0,406 |
5,1 |
0,360 |
0,380 |
0,400 |
- |
- |
- |
- |
|
|
Họng nước chữa cháy DN 65 1) |
|||||||||||
|
6 |
- |
- |
- |
- |
2,6 |
0,088 |
0,089 |
0,090 |
3,4 |
0,078 |
0,080 |
0,083 |
|
8 |
- |
- |
- |
- |
2,9 |
0,110 |
0,112 |
0,114 |
4,1 |
0,114 |
0,117 |
0,121 |
|
10 |
- |
- |
- |
- |
3,3 |
0,140 |
0,143 |
0,146 |
4,6 |
0,143 |
0,147 |
0,151 |
|
12 |
2,6 |
0,198 |
0,199 |
0,201 |
3,7 |
0,180 |
0,183 |
0,186 |
5,2 |
0,182 |
0,190 |
0,199 |
|
14 |
2,8 |
0,23 |
0,231 |
0,233 |
4,2 |
0,230 |
0,233 |
0,235 |
5,7 |
0,218 |
0,224 |
0,230 |
|
16 |
3,2 |
0,31 |
0,313 |
0,315 |
4,6 |
0,276 |
0,280 |
0,284 |
6,3 |
0,266 |
0,273 |
0,280 |
|
18 |
3,6 |
0,38 |
0,383 |
0,385 |
5,1 |
0,338 |
0,342 |
0,346 |
7,0 |
0,329 |
0,338 |
0,348 |
|
20 |
4,0 |
0,464 |
0,467 |
0,470 |
5,6 |
0,412 |
0,424 |
0,418 |
7,5 |
0,372 |
0,385 |
0,397 |
|
1) DN - Viết tắt của Diameter Nominal - Đường kính trong danh nghĩa, đơn vị tính bằng milimét (mm). |
||||||||||||
5.2.2 Để tính toán công suất máy bơm và lượng nước dự trữ cho chữa cháy, số tia phun nước và lưu lượng nước cho chữa cháy trong nhà công cộng đối với phần nhà nằm ở chiều cao PCCC trên 50 m phải lấy tương ứng là 4 tia, mỗi tia 2,5 L/s, đối với nhà nhóm F5 hạng nguy hiểm cháy nổ A, B, C có chiều cao PCCC trên 50 m lấy tương ứng là 4 tia, mỗi tia 5 L/s.
5.2.3 Đối với nhà sản xuất và nhà kho sử dụng dạng kết cấu dễ bị hư hỏng khi chịu tác động của lửa, theo tương ứng với Bảng 12, lưu lượng nước tối thiểu để tính toán công suất máy bơm và lượng nước dự trữ cho chữa cháy xác định theo Bảng 12 phải được tăng thêm tùy từng trường hợp như sau:
- Khi sử dụng kết cấu thép không được bảo vệ chống cháy trong các nhà bậc chịu lửa III, IV (nhóm S2, S3), cũng như kết cấu gỗ tự nhiên hoặc gỗ ép (trong trường hợp này là gỗ đã qua xử lý bảo vệ chống cháy), phải tăng thêm 5 L/s;
- Khi sử dụng vật liệu là chất cháy bao quanh cấu trúc nhà bậc chịu lửa IV (nhóm S2, S3), phải tăng thêm 5 L/s với nhà có khối tích đến 10 000 m3. Khi nhà có khối tích lớn hơn 10 000 m3 thì phải tăng thêm 5 L/s cho mỗi 100 000 m3 tăng thêm hoặc phần lẻ của 100 000 m3 tăng thêm.
5.2.4 Số tia phun chữa cháy cho mỗi điểm cháy lấy là 2 tia đối với các công trình có yêu cầu số tia phun bằng hoặc lớn hơn 2.
5.2.5 Đối với các phần nhà có khu vực công năng khác nhau thì lưu lượng nước cho chữa cháy phải tính toán riêng đối với từng phần theo quy định tại 5.2.1 và 5.2.2. Khi đó lưu lượng nước chữa cháy trong nhà tính toán theo quy định sau:
- Đối với nhà không được ngăn chia bằng các tường ngăn cháy phải tính theo khối tích chung;
- Đối với nhà được ngăn chia bằng các tường ngăn cháy loại 1 hoặc 2 phải tính theo khối tích của phần nhà có yêu cầu lưu lượng nước cao hơn.
Khi liên kết các nhà có bậc chịu lửa I và II bằng các lối đi làm bằng vật liệu không cháy và được lắp đặt cửa ngăn cháy thì khối tích của nhà phục vụ việc xác định lưu lượng nước chữa cháy được tính là khối tích riêng của từng nhà; khi không có cửa ngăn cháy thì tính theo khối tích tổng và theo hạng nguy hiểm cháy cao hơn.
5.2.6 Áp suất thủy tĩnh trong hệ thống nước sinh hoạt - chữa cháy đo tại các thiết bị vệ sinh - kỹ thuật đặt ở mức nước thấp nhất không được vượt quá 0,45 MPa.
Áp suất thủy tĩnh của hệ thống chữa cháy riêng biệt do tại họng nước chữa cháy đặt ở mức nước thấp nhất không được vượt quá 0,90 MPa .
Khi tính toán, nếu áp suất trong hệ thống chữa cháy vượt quá 0,45 MPa thì phải lắp đặt mạng hệ thống chữa cháy riêng.
Khi áp suất giữa van và đầu nối của họng nước chữa cháy lớn hơn 0,4 MPa thì phải lắp đặt màng ngăn và thiết bị điều chỉnh áp lực để giảm áp lực dư.
5.2.7 Áp suất tự do của họng nước chữa cháy phải bảo đảm cho chiều cao của tia nước đặc cần thiết để chữa cháy vào mọi thời điểm trong ngày đối với khu vực cao nhất và xa nhất. Chiều cao tối thiểu và bán kính hoạt động của tia nước đặc chữa cháy phải bằng chiều cao của khu vực, tính từ sàn đến điểm cao nhất của xà (trần), nhưng không nhỏ hơn các giá trị sau:
- Đối với nhà ở, nhà công cộng, nhà sản xuất và nhà phụ trợ của công trình công nghiệp có chiều cao PCCC đến 50 m không nhỏ hơn 6 m;
- Đối với nhà ở có chiều cao PCCC trên 50 m không nhỏ hơn 8 m;
- Đối với nhà công cộng, nhà sản xuất và nhà phụ trợ của công trình công nghiệp có chiều cao PCCC trên 50 m không nhỏ hơn 16 m.
CHÚ THÍCH 1: Áp suất của họng nước chữa cháy phải được tính toán tổn thất của cuộn vòi chữa cháy dài 10, 15 và 20 m.
CHÚ THÍCH 2: Để nhận tia nước đặc lưu lượng đến 4 L/s thì sử dụng họng nước chữa cháy DN 50, đối với lưu lượng lớn hơn phải sử dụng họng DN 65 Khi luận chứng kinh tế - kỹ thuật cho phép thì được dùng họng nước chữa cháy DN 50 cho lưu lượng trên 4 L/s
5.2.8 Thiết kế bể áp lực cho nhà phải bảo đảm mọi thời điểm đều cung cấp được tia nước đặc cao trên 4 m tại tầng cao nhất hoặc tầng ngay dưới nơi đặt bể, và không nhỏ hơn 6 m đối với các tầng còn lại; khi đó số tia nước bảo đảm: 2 tia mỗi tia 2,5 L/s trong 10 phút khi số tia tính toán là 2 hoặc nhiều hơn, 1 tia trong các trường hợp còn lại.
Khi lắp đặt họng nước chữa cháy dùng làm cảm biến điều khiển tự động máy bơm chữa cháy thì không cần xem xét đến bể nước áp lực.
5.2.9 Trong trường hợp lắp đặt hệ thống họng nước chữa cháy riêng biệt với các hệ thống chữa cháy tự động, thì thể tích của bể chứa nước dự trữ phải bảo đảm lượng nước dùng trong 1 giờ, cho một họng nước chữa cháy và các nhu cầu dùng nước khác.
Khi lắp đặt hệ thống họng nước chữa cháy trên các hệ thống chữa cháy tự động thì thời gian làm việc của họng nước lấy bằng thời gian làm việc của hệ thống chữa cháy tự động.
5.2.10 Các nhà từ 6 tầng trở lên khi liên kết hệ thống nước sinh hoạt và chữa cháy thì các ống đứng phải được nối vòng ở trên. Khi đó để bảo đảm việc thay nước trong nhà phải nối vòng ống đứng với một hoặc một vài ống xả đứng có van khóa.
Trong các hệ thống chữa cháy đường ống khô lắp đặt trong các nhà không được sưởi ấm thì van khóa phải được lắp đặt tại các khu vực không có khả năng bị đóng băng.
5.2.11 Việc xác định vị trí và số lượng đường ống đứng và họng nước chữa cháy trong nhà phải bảo đảm quy định sau:
- Cho phép lắp đặt họng kép trên các ống đứng trong nhà sản xuất và nhà công cộng khi số lượng tia nước tính toán không nhỏ hơn 3, còn trong nhà ở không nhỏ hơn 2;
- Trong nhà ở với chiều dài hành lang đến 10 m khi số tia nước bằng 2 cho mỗi điểm thì cho phép phun 2 tia từ một ống đứng;
- Trong nhà ở với chiều dài hành lang lớn hơn 10 m, cũng như nhà sản xuất và nhà công cộng có từ 2 tia nước tính toán trở lên cho mỗi điểm thì phải bố trí 2 tia phun từ 2 tủ chữa cháy cạnh nhau (2 họng nước khác nhau).
CHÚ THÍCH 1 : Phải lắp đặt họng nước chữa cháy trong các tầng kỹ thuật, tầng áp mái và tầng hầm kỹ thuật nếu trong đó có vật liệu và kết cấu làm từ vật liệu cháy được.
CHÚ THÍCH 2: Số tia nước từ mỗi tủ không được lớn hơn 2.
5.2.12 Các họng nước chữa cháy được lắp đặt sao cho miệng họng nằm ở độ cao 1,20 m ± 0,15 m so với mặt sàn và đặt trong các tủ chữa cháy có lỗ thông gió, được dán niêm phong. Đối với họng nước chữa cháy kép, cho phép lắp đặt 1 họng nằm trên 1 họng nằm dưới, khi đó họng nằm dưới phải lắp có chiều cao không nhỏ hơn 1,0 m tính từ mặt sàn.
5.2.13 Hệ thống họng nước chữa cháy trong nhà và công trình phải có họng chờ lắp đặt ở ngoài nhà, có đầu nối với kích cỡ phù hợp để kết nối với phương tiện chữa cháy di động. Đối với nhà cao từ 17 tầng trở lên, họng chờ cấp nước cho hệ thống họng nước chữa cháy trong nhà phải chia thành các vùng theo chiều cao mỗi vùng không quá 50 m. Các họng này phải được lắp đặt van một chiều và niêm phong mở.
5.2.14 Họng nước chữa cháy bên trong nhà phải được lắp đặt tại các lối vào phía trong hành lang (ở nơi không có nguy cơ nước bị đóng băng) của các buồng thang (trừ các buồng thang không nhiễm khói), tại các sảnh, hành lang, lối đi và những chỗ dễ tiếp cận khác, khi đó việc bố trí phải bảo đảm không gây cản trở các hoạt động thoát nạn.
5.2.15 Tại các khu vực được bảo vệ bằng hệ thống chữa cháy tự động, cho phép lắp đặt họng nước chữa cháy trong nhà trên các đường ống DN 65 hoặc lớn hơn, sau cụm van điều khiển của hệ thống sprinkler bằng nước.
5.2.16 Tại các khu vực kín có khả năng bị đóng băng, các đường ống của hệ thống họng nước chữa cháy trong nhà ở sau trạm bơm cho phép là đường ống khô.
5.2.17 Những van để khóa nước từ các đường ống nhánh cụt cũng như những van khóa lớn từ đường ống thép khép kín phải được bố trí để bảo đảm mỗi đoạn ống chỉ khóa nhiều nhất là 5 họng nước chữa cháy trên cùng một tầng.
5.2.18 Căn cứ vào công năng của đối tượng bảo vệ có thể lựa chọn các phương án trang bị hệ thống họng nước chữa cháy sau:
- Phương án 1: sử dụng các họng nước chữa cháy lưu lượng trung bình. Phương án này được phép áp dụng với mọi loại hình công trình;
- Phương án 2: sử dụng các họng nước chữa cháy lưu lượng nhỏ kết hợp với trang bị đường ống họng khô. Phương án này được phép áp dụng với nhà ở, công trình công cộng;
- Phương án 3: sử dụng các họng nước chữa cháy lưu lượng nhỏ. Phương án này được phép áp dụng với các công trình được trang bị hệ thống chữa cháy tự động cho toàn bộ công trình;
- Phương án 4: sử dụng các họng nước chữa cháy lưu lượng nhỏ kết hợp với các họng nước chữa cháy lưu lượng trung bình. Phương án này được phép áp dụng với nhà ở, công trình công cộng.
CHÚ THÍCH: Trong một công trình cho phép kết hợp nhiều phương án trang bị họng nước chữa cháy khác nhau.
5.3 Trạm bơm cấp nước chữa cháy
5.3.1 Máy bơm cấp nước chữa cháy dù thiết kế riêng biệt hay kết hợp với hệ thống nước sinh hoạt, sản xuất đều phải có máy bơm dự phòng, có công suất tương đương với máy bơm chính, số lượng máy bơm dự phòng được quy định như sau:
- Khi tính toán cần từ một đến ba máy bơm chữa cháy chính thì phải có ít nhất một máy bơm dự phòng;
- Khi tính toán cần bốn máy bơm chữa cháy chính trở lên thì phải có ít nhất hai máy bơm dự phòng;
Các máy bơm chữa cháy phải được kết nối với hai nguồn điện riêng biệt từ nguồn điện lưới, nguồn điện từ máy phát điện hoặc sử dụng máy bơm động cơ đốt trong. Cho phép không trang bị máy bơm dự phòng hoặc nguồn điện dự phòng khi cấp nước cho nhà sản xuất, nhà kho có bậc chịu lửa I, II với hạng nguy hiểm cháy, nổ hạng D, E và lưu lượng cấp nước chữa cháy ngoài nhà yêu cầu nhỏ hơn 20L/s.
5.3.2 Máy bơm cấp nước chữa cháy có thể điều khiển tại chỗ bằng tay hoặc điều khiển tự động từ xa và phải bảo đảm cho máy bơm được kích hoạt vận hành trong thời gian không chậm quá 3 phút kể từ khi có tín hiệu báo cháy. Khi lưu lượng cấp nước cho chữa cháy ngoài nhà yêu cầu từ 25 L/s trở lên thì phải có cơ cấu điều khiển máy bơm chữa cháy tự động từ xa.
5.3.3 Khi các nhà thiết kế hệ thống họng nước chữa cháy bên trong mà áp lực nước thường xuyên không đủ cung cấp cho các họng nước chữa cháy thì phải có bộ phận điều khiển máy bơm từ xa bố trí ngay ở họng nước chữa cháy.
6 CHỮA CHÁY VÀ CỨU NẠN
6.1 Nhà và công trình phải bảo đảm việc chữa cháy và cứu nạn bằng các giải pháp: kết cấu, bố trí mặt bằng - không gian, kỹ thuật - công trình và giải pháp tổ chức.
Các giải pháp này bao gồm:
- Bố trí các đường cho xe chữa cháy, bãi đỗ xe chữa cháy và lối tiếp cận cho lực lượng và phương tiện chữa cháy, kết hợp chung với các đường và lối đi theo công năng của nhà hoặc bố trí riêng;
- Bố trí các thang chữa cháy ngoài nhà và bảo đảm các phương tiện cần thiết khác để đưa lực lượng chữa cháy cùng các trang thiết bị kỹ thuật chữa cháy đến các tầng và mái của các nhà, trong đó gồm cả việc bố trí các thang máy có chế độ “chuyên chở lực lượng chữa cháy” (dưới đây gọi chung là thang máy chữa cháy);
- Bố trí đường ống cấp nước chữa cháy, kết hợp với các đường ống cấp nước sinh hoạt hoặc bố trí riêng, và khi cần thiết, bố trí các họng tiếp nước, đường ống tiếp nước vào trong nhà cho lực lượng chữa cháy, các trụ nước, bể chứa nước chữa cháy hoặc các nguồn cấp nước chữa cháy khác;
- Bảo vệ chống khói cho các lối đi của lực lượng chữa cháy bên trong nhà;
- Trang bị cho nhà các phương tiện cứu người cho cá nhân và tập thể trong trường hợp cần thiết;
- Bố trí, xây dựng các công trình, các trạm (đội) phòng cháy và chữa cháy phù hợp với số lượng nhân viên và các thiết bị kỹ thuật chữa cháy cần thiết, đáp ứng các điều kiện chữa cháy trên các công trình hoặc khu vực trong phạm vi hoạt động của các trạm (đội) này theo đúng các quy định hiện hành.
Việc lựa chọn các giải pháp nêu trên phụ thuộc vào bậc chịu lửa, cấp nguy hiểm cháy kết cấu và nhóm nguy hiểm cháy theo công năng của nhà, công trình.
Tại những địa phương chưa có đủ điều kiện hạ tầng giao thông công cộng và cấp nước chung theo quy định của quy chuẩn này thì các giải pháp chữa cháy và cứu nạn được thực hiện theo các hướng dẫn riêng của cơ quan quản lý nhà nước về PCCC ở những địa phương đó.
6.2 Đường cho xe chữa cháy và bãi đỗ xe chữa cháy
6.2.1 Yêu cầu chung
6.2.1.1 Chiều rộng thông thủy của mặt đường cho xe chữa cháy không được nhỏ hơn 3,5 m.
6.2.1.2 Bãi đỗ xe chữa cháy phải có chiều rộng thông thủy bảo đảm khả năng đi vào để triển khai các phương tiện chữa cháy phù hợp với chiều cao PCCC và nhóm nguy hiểm cháy theo công năng của nhà như quy định tại Bảng 14.
Bảng 14 - Kích thước bãi đỗ xe chữa cháy
|
Nhóm nguy hiểm cháy theo công năng của nhà / Chỉ tiêu kích thước bãi đỗ |
Kích thước bãi đỗ xe chữa cháy, m, tương ứng theo chiều cao PCCC của nhà, m |
||
|
|
≤ 15 |
> 15 và ≤ 28 1) |
> 28 |
|
1. Nhà nhóm F1.3 |
|
|
|
|
a) Chiều rộng của bãi đỗ xe chữa cháy |
Không yêu cầu |
≥ 6 |
≥ 6 |
|
b) Chiều dài của bãi đỗ xe chữa cháy |
Không yêu cầu |
≥ 15 |
≥ 15 |
|
2. Các nhóm nhà còn lại |
|
|
|
|
a) Chiều rộng của bãi đỗ xe chữa cháy |
Không yêu cầu |
≥ 6 |
≥ 6 |
|
b) Chiều dài của bãi đỗ xe chữa cháy |
Theo Bảng 15 và Bảng 16 |
Theo Bảng 15 và Bảng 16 |
Theo Bảng 15 và Bảng 16 |
|
1) Không yêu cầu có bãi đỗ xe chữa cháy đối vốn nhà có số người sử dụng trên mỗi tầng, tính theo Bảng G 9 (Phụ lục G), không vượt quá 50 người và khoảng cách từ đường cho xe chữa cháy đến họng tiếp nước vào nhà không được lớn hơn 18 m. |
|||
6.2.1.3 Chỉ cho phép có các kết cấu chặn phía trên đường cho xe chữa cháy và bãi đỗ xe chữa cháy nếu bảo đảm tất cả những yêu cầu sau:
- Chiều cao thông thủy để các phương tiện chữa cháy đi qua không được nhỏ hơn 4,5 m;
- Kích thước của kết cấu chặn phía trên (đo dọc theo chiều dài của đường cho xe chữa cháy và bãi đỗ xe chữa cháy) không được lớn hơn 10 m;
- Nếu có từ hai kết cấu chặn phía trên bắc ngang qua đường cho xe chữa cháy hoặc bãi đỗ xe chữa cháy thì khoảng thông giữa những kết cấu này không được nhỏ hơn 20 m;
- Chiều dài của đoạn cuối của đường cho xe chữa cháy hoặc bãi đỗ xe chữa cháy không bị chặn bởi các kết cấu chặn phía trên không được nhỏ hơn 20 m;
- Chiều dài của bãi đỗ xe chữa cháy không được tính đến những đoạn có kết cấu chặn phía trên.
6.2.1.4 Dọc theo tường ngoài của nhà, tại các vị trí đối diện với bãi đỗ xe chữa cháy phải bố trí các lối xuyên qua tường ngoài vào bên trong nhà từ trên cao (lối vào từ trên cao) phù hợp với quy định tại 6.3 để triển khai các hoạt động chữa cháy và cứu nạn.
6.2.2 Việc bố trí đường cho xe chữa cháy và bãi đỗ xe chữa cháy phải bảo đảm các yêu cầu sau:
6.2.2.1 Nhà nhóm F1, F2, F3 và F4 có chiều cao PCCC không quá 15 m không yêu cầu có bãi đỗ xe chữa cháy, tuy nhiên phải có đường cho xe chữa cháy tiếp cận đến điểm bất kỳ trên hình chiếu bằng của nhà không lớn hơn 60 m .
6.2.2.2 Nhà nhóm F1.3 có chiều cao PCCC lớn hơn 15 m phải bảo đảm tất cả những yêu cầu sau:
- Phải có đường cho xe chữa cháy trong phạm vi di chuyển không quá 18 m tính từ điểm cuối của đường đến lối vào tất cả các khoang đệm của thang máy chữa cháy hoặc của buồng thang bộ thoát nạn có bố trí họng chờ cấp nước DN 65 dành cho lực lượng chữa cháy chuyên nghiệp (của hệ thống ống khô);
- Phải có bãi đỗ xe chữa cháy để tiếp cận đến ít nhất toàn bộ một mặt ngoài của mỗi khối nhà. Bãi đỗ xe chữa cháy phải được bố trí ở khoảng không gần hơn 2 m và không xa quá 10 m tính từ tường mặt ngoài của nhà;
- Thiết kế của bãi đỗ xe chữa cháy và đường cho xe chữa cháy phải đáp ứng những quy định nêu trong Bảng 14.
6.2.2.3 Nhà hoặc phần nhà nhóm F1.1, F1.2, F2, F3 và F4 có chiều cao PCCC lớn hơn 15 m thì tại mỗi vị trí có lối vào từ trên cao phải bố trí một bãi đỗ xe chữa cháy để tiếp cận trực tiếp đến các tấm cửa của lối vào từ trên cao. Chiều dài của bãi đỗ xe chữa cháy phải được lấy theo Bảng 15 căn cứ vào diện tích sàn cho phép tiếp cận của tầng có giá trị diện tích sàn cho phép tiếp cận lớn nhất. Đối với trường hợp nhà có sàn thông tầng, giá trị đó được tính như sau:
a) Đối với nhà có các sàn thông tầng, bao gồm cả các tầng hầm thông với các tầng trên mặt đất thì diện tích sàn cho phép tiếp cận lấy bằng diện tích cộng dồn các giá trị diện tích sàn cho phép tiếp cận của tất cả các sàn thông tầng;
b) Đối với các nhà có từ hai nhóm sàn thông tầng trở lên thì diện tích sàn cho phép tiếp cận phải lấy bảng giá trị cộng dồn của nhóm sàn thông tầng có diện tích lớn nhất;
c) Đối với nhà nhóm F5, phải có một bãi đỗ xe chữa cháy cho các phương tiện chữa cháy . Chiều dài của bãi đỗ xe chữa cháy phải được lấy theo Bảng 16, dựa vào tổng quy mô khối tích của nhà (không bao gồm tầng hầm).
Khi điều kiện sản xuất không yêu cầu có đường vào thì đường cho xe chữa cháy được phép bố trí phần đường rộng 3,5 m cho xe chạy, nền đường được gia cố bằng các vật liệu bảo đảm chịu được tải trọng của xe chữa cháy và bảo đảm thoát nước mặt.
Khoảng cách từ mép đường cho xe chữa cháy đến tường của nhà phải không lớn hơn 5 m đối với các nhà có chiều cao PCCC nhỏ hơn 12 m, không lớn hơn 8 m đối với các nhà có chiều cao PCCC từ 12 m đến 28 m và không lớn hơn 10 m đối với các nhà có chiều cao PCCC trên 28 m.
Trong những trường hợp cần thiết, khoảng cách từ mép gần nhà của đường xe chạy đến tường ngoài của nhà và công trình được tăng đến 60 m với điều kiện nhà và công trình này có các đường cụt đi vào, kèm theo bãi quay xe chữa cháy và bố trí các trụ nước chữa cháy. Trong trường hợp đó, khoảng cách từ nhà và công trình đến bãi quay xe chữa cháy phải không nhỏ hơn 5 m và không lớn hơn 15 m và khoảng cách giữa các đường cụt không được vượt quá 100 m.
CHÚ THÍCH 1: Chiều rộng của nhà và công trình lấy theo khoảng cách giữa các trục định vị.
CHÚ THÍCH 2: Đối với các hồ nước được sử dụng để chữa cháy, cần bố trí lối vào với khoảng sân có kích thước mỗi cạnh không nhỏ hơn 12 m
Bảng 15 - Chiều dài của bãi đỗ xe chữa cháy đối với nhà hoặc phần nhà nhóm F1.1, F1.2, F2, F3, F4
|
Diện tích sàn cho phép tiếp cận, m2 |
Chiều dài yêu cầu của bãi đỗ xe chữa cháy, tính theo chu vi nhà, m |
|
|
Nhà không được bảo vệ bằng hệ thống sprinkler |
Nhà được bảo vệ bằng hệ thống sprinkler |
|
|
≤ 2 000 |
1/6 chu vi và không nhỏ hơn 15 m |
1/6 chu vi và không nhỏ hơn 15 m |
|
> 2 000 và ≤ 4 000 |
1/4 chu vi |
1/6 và không nhỏ hơn 15 m |
|
> 4 000 và ≤ 8 000 |
1/2 chu vi |
1/4 chu vi |
|
> 8 000 và ≤ 16 000 |
3/4 chu vi |
1/2 chu vi |
|
> 16 000 và ≤ 32 000 |
Bao quanh mặt bằng nhà 1) |
3/4 chu vi |
|
> 32 000 |
Bao quanh mặt bằng nhà 1) |
Bao quanh mặt bằng nhà 1) |
|
1) Cho phép không đi theo biên của mặt bằng nhưng phải bảo đảm quy định tại 6.2.3 |
||
Bảng 16 - Chiều dài của bãi đỗ xe chữa cháy đối với nhà nhóm F5
|
Quy mô khối tích, m3 |
Chiều dài yêu cầu của bãi đỗ xe chữa cháy, tính theo chu vi nhà, m |
|
|
Nhà không được bảo vệ bằng hệ thống sprinkler |
Nhà được bảo vệ bằng hệ thống sprinkler |
|
|
≤ 28 400 |
1/6 chu vi và không nhỏ hơn 15 m |
1/6 chu vi và không nhỏ hơn 15 m |
|
> 28 400 và ≤ 56 800 |
1/4 chu vi |
1/6 chu vi và không nhỏ hơn 15 m |
|
> 56 800 và ≤ 85 200 |
1/2 chu vi |
1/4 chu vi |
|
> 85 200 và ≤ 113 600 |
3/4 chu vi |
1/4 chu vi |
|
> 113 600 và ≤ 170 400 |
Bao quanh mặt bằng nhà 1) |
1/2 chu vi |
|
> 170 400 và ≤ 227 200 |
Bao quanh mặt bằng nhà 1) |
3/4 chu vi |
|
> 227 200 |
Bao quanh mặt bằng nhà 1) |
Bao quanh mặt bằng nhà 1) |
|
1) Cho phép không đi theo biên của mặt bằng nhưng phải bảo đảm quy định tại 6.2.3. |
||
6.2.2.4 Bố trí đường cho xe chữa cháy hoặc bãi đỗ xe chữa cháy cho nhà hỗn hợp phải bảo đảm những yêu cầu sau:
a) Khi phần nhà không để ở (không thuộc nhóm F1.3) chỉ nằm ở phần dưới của nhà thì chiều cao PCCC của nhà để xác định các yêu cầu về đường cho xe chữa cháy hoặc bãi đỗ xe chữa cháy phải căn cứ vào phần nhà không để ở của nhà;
b) Đối với nhà hỗn hợp không có phần nhà thuộc nhóm F1.3 thì chiều dài yêu cầu của đường cho xe chữa cháy hoặc bãi đỗ xe chữa cháy phải được lấy bằng giá trị lớn hơn trong hai giá trị xác định căn cứ vào:
- Tổng quy mô khối tích của các phần nhà thuộc nhóm F5; hoặc
- Xác định được theo Bảng 15;
c) Đối với nhà hỗn hợp có phần nhà thuộc nhóm F1.3, chiều dài của bãi đỗ xe chữa cháy phải được tính theo 6.2.2.3 đồng thời phải đáp ứng được quy định tại 6.2.2.
Đối với các tầng hầm phải có đường cho xe chữa cháy nằm trong phạm vi 18 m tính từ lối vào trên mặt đất của tất cả các khoang đệm của thang máy chữa cháy hoặc của buồng thang bộ thoát nạn có bố trí họng chờ cấp nước DN 65 dành cho lực lượng chữa cháy chuyên nghiệp (của hệ thống ống khô).
6.2.3 Bãi đỗ xe chữa cháy phải được bố trí bảo đảm để khoảng cách đo theo phương nằm ngang từ mép gần nhà hơn của bãi đổ đến điểm giữa của lối vào từ trên cao không gần hơn 2 m và không xa quá 10 m.
6.2.4 Bề mặt của bãi đỗ xe chữa cháy phải ngang bằng. Nếu nằm trên một mặt nghiêng thì độ dốc không được quá 1:15. Độ dốc của đường cho xe chữa cháy không được quá 1:8,3.
6.2.5 Nếu chiều dài của đường cho xe chữa cháy hoặc bãi đỗ xe chữa cháy dạng cụt lớn hơn 46 m thì ở cuối đoạn cụt phải có bãi quay xe được thiết kế theo quy định tại 6.4.
6.2.6 Đường giao thông công cộng có thể được sử dụng làm bãi đỗ xe chữa cháy, nếu vị trí của đường đó phù hợp với các quy định về khoảng cách đến lối vào từ trên cao tại 6.2.3.
6.2.7 Đường cho xe chữa cháy và bãi đỗ xe chữa cháy phải được bảo đảm thông thoáng tại mọi thời điểm. Khoảng không giữa bãi đỗ xe chữa cháy và lối vào từ trên cao phải bảo đảm không bị cản trở bởi cây xanh hoặc các vật thể cố định khác.
6.2.8 Phải đánh dấu tất cả các góc của bãi đỗ xe chữa cháy và đường cho xe chữa cháy ngoại trừ những đường giao thông công cộng được sử dụng làm bãi đỗ xe chữa cháy hoặc đường cho xe chữa cháy. Việc đánh dấu phải được thực hiện bảng các dải sơn phản quang, bảo đảm có thể nhìn thấy được vào buổi tối và phải bố trí ở cả hai phía của đường cho xe chữa cháy hoặc bãi đỗ xe chữa cháy với khoảng cách không quá 5 m.
Tại các điểm đầu và điểm cuối của đường cho xe chữa cháy hoặc bãi đỗ xe chữa cháy phải có biển báo nền trắng, chữ đỏ với chiều cao chữ không nhỏ hơn 50 mm. Chiều cao từ mặt đất đến điểm thấp nhất của biển báo phải nằm trong khoảng 1,0 m đến 1,5 m. Biển báo phải bảo đảm nhìn thấy được vào buổi tối và không được bố trí cách đường cho xe chữa cháy hoặc bãi đỗ xe chữa cháy quá 3 m. Tất cả các phần của đường cho xe chữa cháy hoặc bãi đỗ xe chữa cháy không được cách biển báo gần nhất quá 15 m.
6.2.9 Mặt đường cho xe chữa cháy và bãi đỗ xe chữa cháy phải bảo đảm chịu được tải trọng của xe chữa cháy theo yêu cầu thiết kế và phù hợp với chủng loại phương tiện của cơ quan Cảnh sát PCCC và CNCH nơi xây dựng công trình.
6.3 Lối vào từ trên cao để phục vụ chữa cháy và cứu nạn
6.3.1 Lối vào từ trên cao phải bảo đảm thông thoáng, không bị cản trở ở mọi thời điểm trong thời gian nhà được sử dụng. Lối vào từ trên cao có thể là các lỗ thông trên tường ngoài, cửa sổ, cửa ban công, các tấm tường lắp kính và các tấm cửa có thể mở được từ bên trong và bên ngoài. Không được bố trí đồ đạc hoặc bất kì vật nào có thể gây cản trở trong phạm vi 1 m của phần sàn bên trong nhà tính từ các lối vào từ trên cao.
6.3.2 Lối vào từ trên cao phải được bố trí đối diện với một không gian sử dụng. Không được bố trí ở các phòng kho hoặc phòng máy, buồng thang bộ thoát nạn, sảnh không nhiễm khói, sảnh thang máy chữa cháy hoặc không gian chỉ dẫn đến một điểm cụt.
6.3.3 Mặt ngoài của các tấm cửa của lối vào từ trên cao phải được đánh dấu bằng dấu tam giác đều mầu đỏ hoặc mầu vàng có cạnh không nhỏ hơn 150 mm, định tam giác có thể hướng lên hoặc hướng xuống. Ở mặt trong phải có dòng chữ “LỐI VÀO TỪ TRÊN CAO - KHÔNG ĐƯỢC GÂY CẢN TRỞ" với chiều cao chữ không nhỏ hơn 25 mm.
6.3.4 Các lối vào từ trên cao phải có chiều rộng không nhỏ hơn 850 mm, chiều cao không nhỏ hơn 1 000 mm, mép dưới của lối vào cách mặt sàn phía trong không lớn hơn 1 100 mm và mép trên cách mặt sàn phía trong không nhỏ hơn 1 800 mm.
6.3.5 Số lượng, vị trí của lối vào từ trên cao đối với mỗi khoang cháy của nhà hoặc phần nhà không thuộc nhóm F1.3 phải bảo đảm những quy định sau:
Đối với nhà nhóm F1.1, F1.2, F2, F3, F4 và F5 số lượng lối vào từ trên cao phải tính toán dựa vào chiều dài của bãi đỗ xe chữa cháy. Cứ mỗi đoạn đủ hoặc không đủ 20 m chiều dài bãi đỗ xe chữa cháy phải có một vị trí lối vào từ trên cao;
- Lối vào từ trên cao phải được bố trí cách xa nhau, dọc trên cạnh của nhà. Khoảng cách xa nhất đo dọc theo tường ngoài giữa tâm của hai lối vào từ trên cao liên tiếp nhau được phục vụ bởi một bãi đỗ xe chữa cháy không được quá 20 m. Lối vào từ trên cao phải được phân bố bảo đảm để ít nhất phải có 1 lối vào từ trên cao trên mỗi đoạn 20 m chiều dài của bãi đỗ xe chữa cháy, ngoại trừ những phần nhà 1 tầng không thuộc nhóm F5;
- Đối với nhà thuộc nhóm F1.1, F1.2, F2, F3 và F4 có chiều cao PCCC từ trên 15 m đến 50 m, phải có lối vào từ trên cao ở tất cả các tầng trừ tầng 1 và phải nằm đối diện với bãi đỗ xe chữa cháy;
- Đối với nhà nhóm F5, phải bố trí các lối vào từ trên cao ở phía trên một bãi đỗ xe chữa cháy, lên đến chiều cao PCCC 50 m.
Yêu cầu về lối vào từ trên cao không áp dụng đối với các nhà nhóm F1.3, bao gồm cả những khu vực phụ trợ (ví dụ: phòng tập gym, các phòng câu lạc bộ, và các gian phòng có công năng tương tự phục vụ riêng cho cư dân của nhà) trong nhà nhóm F1.3.
6.4 Thiết kế bãi quay xe phải tuân theo một trong các quy định sau:
- Hình tam giác đều có cạnh không nhỏ hơn 7 m, một đỉnh nằm ở đường cụt, hai đỉnh nằm cân đối ở hai bên đường;
- Hình vuông có cạnh không nhỏ hơn 12 m;
- Hình tròn, đường kính không nhỏ hơn 10 m;
- Hình chữ nhật vuông góc với đường cụt, cân đối về hai phía của đường, có kích thước không nhỏ hơn 5 m x 20 m.
CHÚ THÍCH: Những quy định trên là ngưỡng tối thiểu, cơ quan quản lý về PCCC và CNCH có thể đưa ra các quy định cụ thể căn cứ vào yêu cầu kỹ thuật của phương tiện chữa cháy ở mỗi địa phương.
6.5 Đối với đường giao thông nhỏ hẹp chỉ đủ cho 1 làn xe chạy thì cứ ít nhất 100 m phải thiết kế một đoạn đường mở rộng có chiều dài tối thiểu 8 m và chiều rộng tối thiểu 7 m để xe chữa cháy và các loại xe khác có thể tránh nhau dễ dàng.
6.6 Đối với các nhà từ 2 tầng trở lên có mái bằng hoặc mái có độ dốc nhỏ hơn 25 % với chiều cao lớn hơn hoặc bằng 10 m tính đến diềm mái hoặc mép trên của tường ngoài (tường chắn mái) phải có các lối ra mái trực tiếp từ các buồng thang bộ hoặc đi qua tầng áp mái, hoặc đi theo cầu thang bộ loại 3, hoặc đi theo thang chữa cháy ngoài nhà.
Số lượng lối ra mái và việc bố trí chúng phải dựa trên tính nguy hiểm cháy theo công năng và các kích thước của nhà. Nhà nhóm F1, F2, F3 và F4 phải có ít nhất 1 lối tiếp cận lên mái cho mỗi diện tích đủ hoặc không đủ 9 300 m2 mái. Đối với nhà nhóm F5 thực hiện theo quy định tại A.1.3.1.
Cho phép không bố trí các thang chữa cháy tại mặt chính của nhà nếu chiều rộng nhà không quá 150 m và ở phía trước nhà có tuyến đường ống cấp nước chữa cháy.
6.7 Trong các tầng áp mái của nhà, trừ các nhà nhóm F1.4, phải có các lối ra mái qua các thang cố định và các cửa đi, cửa nắp hoặc cửa sổ có kích thước không nhỏ hơn 0,6m x 0,8m.
Các lối ra mái hoặc ra tầng áp mái từ các buồng thang bộ phải được bố trí theo các bản thang có các chiếu thang ở trước lối ra, qua các cửa ngăn cháy loại 2 kích thước không nhỏ hơn 0,75 m x 1,5 m. Các bản thang và chiếu thang nói trên có thể được làm bằng thép nhưng phải có độ dốc (góc nghiêng) không lớn hơn 2:1 (63,5°) và chiều rộng không nhỏ hơn 0,7 m.
Trong các nhà nhóm F1, F2, F3 và F4 có chiều cao PCCC đến 15 m cho phép bố trí các lối ra tầng áp mái hoặc ra mái từ các buồng thang bộ qua các cửa nắp ngăn cháy loại 2 với kích thước 0,6 m x 0,8 m theo các thang leo bằng thép gắn cố định.
6.8 Trong các tầng kỹ thuật, bao gồm cả các tầng hầm kỹ thuật và các tầng áp mái kỹ thuật, chiều cao thông thủy của lối đi phải không nhỏ hơn 1,8 m; trong các tầng áp mái dọc theo toàn bộ nhà - không nhỏ hơn 1,6 m. Chiều rộng của các lối đi này phải không nhỏ hơn 1,2 m. Trong các đoạn riêng biệt có chiều dài không lớn hơn 2 m cho phép giảm chiều cao của lối đi xuống 1,2 m, còn chiều rộng tối thiểu là 0,9 m.
6.9 Trong các nhà có tầng gác áp mái phải có các cửa nắp trong các kết cấu bao che các hốc của tầng áp mái.
6.10 Tại các điểm chênh lệch độ cao của mái lớn hơn 1,0 m (trong đó có cả điểm chênh cao để nâng các cửa lấy sáng - thông gió) phải có thang chữa cháy.
Tại khu vực chênh lệch độ cao của mái hơn 10 m, nếu mỗi một phần mái diện tích lớn hơn 100 m2 có cửa ra mái riêng thỏa mãn các yêu cầu tại 6.6, hoặc độ cao phần thấp hơn của mái, xác định theo 6.6 không vượt quá 10 m thì cho phép không bố trí thang chữa cháy.
6.11 Khi bố trí lối tiếp cận lên mái bằng các thang chữa cháy ngoài nhà theo yêu cầu tại 6.6, phải sử dụng các thang chữa cháy loại P1 để lên độ cao đến 20 m và tại các chỗ chênh lệch độ cao của mái từ 1,0 m đến 20 m. Phải sử dụng các thang chữa cháy loại P2 để lên độ cao lớn hơn 20 m và tại các chỗ chênh lệch độ cao trên 20 m.
Các thang chữa cháy phải được làm bằng vật liệu không cháy, đặt ở nơi dễ thấy và cách xa cửa sổ không dưới 1,0 m. Chiều rộng thang 0,7 m. Đối với thang loại P1, từ độ cao 10 m trở lên phải có cung tròn bảo hiểm bán kính 0,35 m, tâm của cung tròn cách thang 0,45 m. Các cung tròn phải được đặt cách nhau 0,7 m, ở nơi ra mái phải đặt chiếu tới có lan can cao ít nhất 0,6 m. Đối với thang P2 phải có tay vịn và có chiếu nghỉ đặt cách nhau không quá 8 m.
6.12 Giữa các bản thang và giữa các lan can tay vịn của bản thang phải có khe hở với chiều rộng thông thủy chiếu trên mặt bằng không nhỏ hơn 100 mm.
6.13 Mỗi khoang cháy của các nhà có chiều cao PCCC lớn hơn 28 m (lớn hơn 50 m đối với nhà nhóm F1.3), hoặc nhà có chiều sâu của sàn tầng hầm dưới cùng (tính đến cao độ của lối ra thoát nạn ra ngoài) lớn hơn 9 m phải có tối thiểu một thang máy chữa cháy.
CHÚ THÍCH: Yêu cầu kỹ thuật khác như cáp điện, hệ thống điều khiển, truyền tín hiệu, liên lạc, thiết bị phục vụ bảo vệ chống cháy và những hệ thống tương tự phải bảo đảm theo các tiêu chuẩn kỹ thuật riêng được chọn lựa cho thang máy chữa cháy
Việc bố trí và lắp đặt các thang máy chữa cháy phải bảo đảm những quy định cơ bản sau:
- Không được sử dụng các thang máy chủ yếu để vận chuyển hàng hóa để làm thang máy chữa cháy;
- Ở điều kiện bình thường, thang máy chữa cháy vẫn được sử dụng để chở người. Thang máy chữa cháy có thể được bố trí với một sảnh thang máy riêng hoặc trong một sảnh chung với các thang máy chở người và hợp lại với nhau bằng một hệ thống điều khiển tự động theo nhóm;
- Có số lượng được tính toán đủ để khoảng cách từ vị trí các thang máy đó đến một điểm bất kỳ trên mặt bằng tầng mà nó phục vụ không vượt quá 60 m;
- Nếu chỉ có một thang máy chữa cháy thì thang máy đó ít nhất phải đến được tất cả các tầng kề cận với tầng đang cháy của nhà;
- Nếu có nhiều thang máy chữa cháy được bố trí chung trong một giếng thang thì các thang máy có thể phục vụ cho các khu vực khác nhau của nhà với điều kiện phải thể hiện rõ vùng được phục vụ trên mỗi thang máy đó;
- Trong mọi trường hợp, hình thức phục vụ của các thang máy chữa cháy phải giống nhau và thông dụng, ví dụ thang máy chỉ phục vụ các tầng lẻ hoặc các tầng chẵn hoặc tất cả các tầng;
- Nếu có các tầng lánh nạn thì mỗi tầng đó phải được phục vụ bởi ít nhất một thang máy chữa cháy;
- Ở chế độ hoạt động bình thường, cửa các thang máy chữa cháy không được mở vào những tầng lánh nạn đó còn cửa giếng thang máy tại những tầng lánh nạn đó phải thường xuyên được khóa và chỉ được tự động mở khóa khi chuyển sang chế độ phục vụ lực lượng chữa cháy.
Trong trường hợp có cháy, các thang máy chữa cháy phải bảo đảm để người lính chữa cháy:
- Là người duy nhất được quyền kiểm soát và vận hành để cùng với trang thiết bị của mình tiếp cận đến đám cháy một cách dễ dàng, quen thuộc, an toàn và nhanh chóng;
- Được bảo vệ an toàn khi sử dụng trước tác động của lửa và khói bằng các giải pháp thích hợp, đặc biệt là khi ra khỏi các thang máy đó;
- Có lối đi thông thoáng và an toàn để tiếp cận đến các thang máy đó cũng như đến các sàn được những thang máy đó phục vụ;
- Không phải di chuyển quá hai tầng để tiếp cận đến tầng có thể bị cháy bất kỳ của nhà khi có từ 2 thang máy chữa cháy trở lên;
- Được bảo vệ trong các giếng thang máy riêng (không chung với các loại thang máy khác) và trong mỗi giếng thang máy như vậy chỉ được bố trí không quá 3 thang máy chữa cháy. Kết cấu bao che giếng thang máy phải có giới hạn chịu lửa không nhỏ hơn REI 120.
Sảnh thang máy chữa cháy là một khoang đệm bảo đảm tất cả các quy định sau:
- Có diện tích không nhỏ hơn 4 m2;
- Khi kết hợp với các sảnh của buồng thang bộ không nhiễm khói thì diện tích không nhỏ hơn 6 m2;
- Được bao che bằng các vách ngăn cháy loại 1;
- Có lắp đặt họng chờ cấp nước DN 65 dành cho lực lượng chữa cháy chuyên nghiệp;
- Việc bố trí thang máy chữa cháy phải dự tính được đường di chuyển của đội chữa cháy chuyên nghiệp và bảo đảm đội chữa cháy tiếp cận được tất cả các gian phòng trên tất cả các tầng của nhà;
- Sức chở của thang máy chữa cháy không được nhỏ hơn 630 kg đối với nhà chung cư nhóm F1.3 và không nhỏ hơn 1 000 kg đối với nhà sản xuất và nhà công cộng khác;
- Tốc độ di chuyển của thang máy chữa cháy không được nhỏ hơn H/60 (m/s), trong đó H là chiều cao nâng (m);
- Kết cấu bao che của cabin thang máy chữa cháy phải được làm từ vật liệu không cháy hoặc cháy yếu.
6.14 Trong các nhà có độ dốc mái đến 12 %, chiều cao đến diềm mái hoặc mép trên của tường ngoài (tường chắn) lớn hơn 10 m, cũng như trong các nhà có độ dốc mái lớn hơn 12 % và chiều cao đến diềm mái lớn hơn 7 m phải có lan can, tay vịn trên mái phù hợp tiêu chuẩn hiện hành. Các lan can, tay vịn loại này cũng phải được bố trí cho các mái phẳng, ban công, lôgia, hành lang bên ngoài, cầu thang bên ngoài loại hở, bản thang bộ và chiếu thang bộ mà không phụ thuộc vào chiều cao PCCC của nhà.
6.15 Các hệ thống cấp nước chữa cháy cho nhà phải bảo đảm để lực lượng và phương tiện chữa cháy có thể tiếp cận và sử dụng ở mọi thời điểm.
6.17 Phòng trực điều khiển chống cháy
6.17.1 Nhà ở và công trình công cộng cao trên 10 tầng; nhà có từ 2 đến 3 tầng hầm; công trình công cộng tập trung đông người (nhà hát, rạp chiếu phim, vũ trường, các quán karaoke mà phải bố trí từ 2 lối ra thoát nạn trở lên theo A.4 , và các nhà có mục đích sử dụng tương tự, với số người trên mỗi tầng, tính theo Bảng G.9 (Phụ lục G), vượt quá 50 người); gara (chỗ để ô-tô, xe máy, xe đạp), nhà sản xuất, kho có tổng diện tích sàn trên 18 000 m2 phải có phòng trực điều khiển chống cháy và có nhân viên có chuyên môn thường xuyên trực tại phòng điều khiển.
6.17.2 Phòng trực điều khiển chống cháy phải:
- Có diện tích đủ để bố trí các thiết bị theo yêu cầu phòng chống cháy của nhà nhưng không nhỏ hơn 6 m2;
- Có hai lối ra vào: một lối thông với không gian trống ngoài nhà và một lối thông với hành lang chính để thoát nạn;
- Được ngăn cách với các phần khác của nhà bằng các bộ phận ngăn cháy loại 1;
- Có lắp đặt các thiết bị thông tin và đầu mối của hệ thống báo cháy liên hệ với tất cả các khu vực của nhà;
- Có bảng theo dõi, điều khiển các thiết bị chữa cháy, thiết bị khống chế khói và có sơ đồ mặt bằng bố trí các thiết bị phòng cháy chữa cháy của nhà.
6.18 Tất cả các tầng hầm trong nhà có từ 2 đến 3 tầng hầm, phải được trang bị hệ thống liên lạc khẩn cấp hai chiều giữa phòng trực điều khiển chống cháy tới những khu vực sau:
- Các phòng thiết bị liên quan đến hệ thống chữa cháy, đặc biệt là các phòng máy bơm của hệ thống sprinkler, phòng máy bơm cấp nước vào hệ thống ống đứng, phòng chuyển mạch, phòng máy phát điện và phòng máy thang máy;
- Tất cả các phòng lắp đặt thiết bị điều khiển hệ thống kiểm soát chống khói;
- Các thang máy chữa cháy;
- Tất cả các gian lánh nạn;
- Các phòng điều khiển hệ thống thông gió.
7 TỔ CHỨC THỰC HIỆN
7.1 Quy định chuyển tiếp
7.1.1 Hồ sơ thiết kế xây dựng đã được góp ý hoặc thẩm duyệt về phòng cháy chữa cháy bởi cơ quan quản lý nhà nước có thẩm quyền trước khi quy chuẩn này có hiệu lực thì tiếp tục thực hiện theo hồ sơ thiết kế đã được góp ý hoặc thẩm duyệt.
7.1.2 Hồ sơ thiết kế xây dựng được góp ý hoặc thẩm duyệt về phòng cháy chữa cháy bởi cơ quan quản lý nhà nước có thẩm quyền kể từ thời điểm quy chuẩn này có hiệu lực thì phải tuân thủ các quy định của quy chuẩn này.
7.3 Các cơ quan quản lý Nhà nước về phòng cháy chữa cháy và về xây dựng ở Trung ương và địa phương có trách nhiệm tổ chức kiểm tra sự tuân thủ quy chuẩn này trong lập, thẩm định, phê duyệt và quản lý xây dựng nhà và công trình trên địa bàn theo quy định của pháp luật.
7.4 Các cơ quan quản lý Nhà nước có thẩm quyền về phòng cháy chữa cháy và về xây dựng tại các địa phương có trách nhiệm phối hợp ban hành quy định liên quan đến các thông số kỹ thuật để thiết kế, cấu tạo đường cho xe chữa cháy và bãi đỗ xe chữa cháy phù hợp với các đặc điểm của phương tiện chữa cháy tại địa phương.
PHỤ LỤC A
(quy định)
QUY ĐỊNH BỔ SUNG ĐỐI VỚI MỘT SỐ NHÓM NHÀ CỤ THỂ
A.1 Nhà sản xuất và nhà kho
A.1.1 Phạm vi áp dụng
A.1.1.1 Nhà sản xuất dùng cho việc sản xuất sản phẩm, hàng hóa thuộc nhóm F5.1 và F5.2, có không quá 1 tầng hầm.
A.1.1.3 Không áp dụng đối với các nhà và gian phòng sau:
a) Nhà kho và gian phòng kho dùng để chứa (lưu giữ) phân khoáng khô và hóa chất bảo vệ thực vật, chất phóng xạ, các chất khí không dễ cháy được chứa trong chai dưới áp suất lớn hơn 70 kPa, xi măng, bông, bột mì, thức ăn gia súc, lông thú và sản phẩm từ lỏng thú cũng như các sản phẩm nông nghiệp;
b) Các nhà hoặc gian phòng làm kho lạnh và kho ngũ cốc;
c) Các nhà sản xuất có từ 2 tầng hầm trở lên.
A.1.1.4 Cho phép không áp dụng đối với nhà sản xuất có sử dụng tiêu chuẩn nước ngoài về phòng cháy chữa cháy trong thiết kế theo quy định của pháp luật Việt Nam, nhưng phải được cơ quan cảnh sát PCCC và CNCH có thẩm quyền chấp thuận.
A.1.2 Quy định chung
A.1.2.1 Tổng diện tích nhà lấy bằng tổng diện tích của tất cả các tầng (tầng trên mặt đất, kể cả tầng kỹ thuật, tầng nửa hầm và tầng hầm), với kích thước mặt bằng được đo trong phạm vi giới hạn bởi bề mặt bên trong của các tường bao (hoặc bởi trục các cột biên ở khu vực không có tường bao); đường hầm; sàn giá đỡ trong nhà; sàn lửng; tất cả các sàn của giá đỡ nhiều tầng trong nhà; thềm (cầu) xếp dỡ; hành lang (trong mặt bằng) và hành lang liên thông sang các nhà khác. Tổng diện tích của nhà không bao gồm: diện tích các tầng hầm kỹ thuật có chiều cao, tính từ sàn đến mặt dưới của kết cấu nhỏ ra ở phía trên, nhỏ hơn 1,8 m (ở đó không yêu cầu có lối đi để bảo dưỡng các đường ống kỹ thuật); diện tích phía trên trần treo; cũng như diện tích sàn của giá đỡ nhiều tầng dùng để bảo dưỡng đường ray phía dưới cầu trục, bảo dưỡng cần trục, bằng tải, đường ray đơn và thiết bị chiếu sáng.
Diện tích các gian phòng có chiều cao thông từ 2 tầng trở lên, trong phạm vi một nhà nhiều tầng (gian phòng thông 2 tầng hoặc nhiều tầng), được tính vào diện tích tổng cộng của nhà trong phạm vi một tầng.
Khi xác định số lượng tầng của nhà thì mỗi sàn giá đỡ và sàn lửng nằm ở cao độ bất kì có diện tích lớn hơn 40 % diện tích 1 tầng của nhà đó, phải được tính như một tầng.
Diện tích 1 tầng của nhà trong phạm vi một khoang cháy được xác định theo chu vi bên trong của tường bao của tầng, không tính diện tích buồng thang bộ. Nếu trong diện tích đó có sàn giá đỡ, sàn của giả đỡ nhiều tầng và sàn lửng thì đối với nhà 1 tầng phải tính diện tích của tất cả các sàn giá đỡ, sàn của giá đỡ nhiều tầng và sàn lửng; còn đối với nhà nhiều tầng chỉ tính diện tích các sàn giá đỡ, sàn của giá đỡ nhiều tầng và sàn lửng nằm trong phạm vi khoảng cách theo chiều cao giữa các cốt của sàn giá đỡ, sàn của giá đỡ nhiều tầng và sàn lửng có diện tích ở mỗi cao độ không hơn 40 % diện tích sàn của tầng. Diện tích của thềm (cầu) xếp dỡ phía ngoài dùng cho phương tiện vận tải đường bộ và đường sắt không được tính vào diện tích của tầng nhà trong phạm vi khoang cháy.
Diện tích xây dựng được xác định theo chu vi ngoài của nhà ở cao độ chân tường, bao gồm cả các phần nhô ra, đường đi qua dưới nhà, các phần nhà không có kết cấu ngăn che bên ngoài.
A.1.2.2 Khối tích xây dựng của nhà được xác định là tổng khối tích các phần nhà trên mặt đất tính từ cốt ± 0,00 trở lên và phần ngấm từ cốt hoàn thiện nền sàn tầng hầm dưới cùng lên đến cốt ± 0,00.
Khối tích các phần trên mặt đất và phần ngầm của nhà được tính theo kích thước từ mặt ngoài kết cấu bao che, kể cả ô lấy sáng và thông gió của mỗi phần của nhà.
A.1.2.3 Chiều cao các gian phòng tính từ mặt sàn đến mặt dưới của các bộ phận nhô ra phía dưới trần hoặc mái không được nhỏ hơn 2,2 m. Các lối đi có người qua lại thường xuyên và đường thoát nạn phải có chiều cao tính từ mặt sàn đến mặt dưới của các bộ phận nhô ra của các đường ống kỹ thuật và thiết bị không nhỏ hơn 2,0 m, còn đối với các lối đi không có người qua lại thường xuyên thì chiều cao đó phải không nhỏ hơn 1,8 m. Chiều cao thông thủy của lối vào nhà dành cho xe chữa cháy chạy qua không được nhỏ hơn 4,5 m.
A.1.2.4 Đối với tầng kỹ thuật, nếu yêu cầu công nghệ đòi hỏi phải có lối đi lại để bảo dưỡng thiết bị kỹ thuật, đường ống kỹ thuật và các thiết bị công nghệ hỗ trợ bố trí trong đó, thì chiều cao các lối đi này phải lựa chọn phù hợp với quy định tại A.1.2.3.
A.1.2.5 Lối ra từ tầng hầm phải được bố trí ngoài khu vực hoạt động của các thiết bị nâng chuyển.
A.1.2.6 Chiều rộng của khoang đệm và khoang đệm ngăn cháy phía ngoài cửa thang máy phải rộng hơn chiều rộng cửa ít nhất là 0,5 m (0,25 m về mỗi bên của cửa), và chiều sâu của các khoang đệm đó không được nhỏ hơn 1,2 m đồng thời phải lớn hơn chiều rộng của cánh cửa ít nhất là 0,2 m.
Khi có người khuyết tật đi lại bằng xe lăn sử dụng thì chiều sâu của khoang đệm và khoang đệm ngăn cháy ít nhất phải là 1,8 m, còn chiều rộng ít nhất phải là 1,4 m.
A.1.2.7 Trong các gian phòng có hạng nguy hiểm cháy nổ A và B phải lắp đặt các tấm che ngoài dễ bung.
Trong trường hợp không đủ diện tích để làm các tấm che ngoài dễ bung bằng kính thì cho phép sử dụng những dạng vật liệu sau (nhưng phải là vật liệu không cháy):
- Thép, nhôm;
- Ngói mềm, ngói kim loại;
- Đá và vật liệu giữ nhiệt hiệu quả.
Diện tích tấm che ngoài dễ bung phải được xác định bằng tính toán. Trong trường hợp không có số liệu tính toán thì diện tích tấm che ngoài dễ bung phải lấy không nhỏ hơn 0,05 m2 trên 1 m3 thể tích gian phòng hạng A và không ít hơn 0,03 m2 trên 1 m3 thể tích gian phòng hạng B.
CHÚ THÍCH 1: Nếu dùng kính có chiều dày 3, 4 hoặc 5 mm cho các tấm che ngoài dễ bung thì diện tích tương ứng không nhỏ hơn 0,8, 1,0 và 1,5 m2. Không được dùng kính có gia cường, kính 2 lớp, 3 lớp, stalinite và polycarbonate trong tấm che ngoài dễ bung.
CHÚ THÍCH 2: Tấm phủ dạng cuộn trên khu vực tấm che ngoài dễ bung của mái phải được bố trí thành các mảnh có diện tích không lớn hơn 180 m2.
CHÚ THÍCH 3: Tải trọng tính toán của khối lượng tấm che ngoài dễ bung trên mái không được vượt quá 0,7 kPa
A.1.3 Bố trí mặt bằng - không gian
A.1.3.1 Đối với các nhà có chiều cao từ cốt mặt đất thiết kế đến thành gờ hoặc mặt trên của tường chắn mái lớn hơn hoặc bằng 10 m thì cứ 40 000 m2 diện tích mặt bằng mái phải có 1 lối lên mái, nếu diện tích mặt bằng mái chưa đủ 40 000 m2 thì vẫn phải bố trí ít nhất 1 lối lên mái. Đối với nhà 1 tầng thì bố trí lối lên mái theo thang thép hở bên ngoài, còn đối với nhà nhiều tầng thì bố trí từ buồng thang bộ.
Đối với các nhà có chiều cao từ cốt mặt đất thiết kế đến mặt sàn trên cùng không quá 30 m và chiều cao của tầng trên cùng không đủ để bố trí buồng thang bộ thoát ra mái, thì cho phép bố trí một thang leo hở bằng thép để thoát nạn từ buồng thang bộ qua mái bằng thang này.
A.1.3.2 Việc bố trí các gian phòng có hạng nguy hiểm cháy khác nhau trong cùng một nhà và ngăn chia giữa chúng phải tuân thủ các yêu cầu về giới hạn chịu lửa của bộ phận bao che các gian phòng đó, đường thoát nạn và lối ra thoát nạn, thiết bị thoát khói, khoang đệm và khoang đệm ngăn cháy, buồng thang bộ và thang leo cũng như lối ra mái được quy định trong những phần liên quan của quy chuẩn này và các quy chuẩn, tiêu chuẩn chuyên ngành.
Cho phép bố trí tầng có công năng làm kho hoặc phòng điều hành bên trong nhà sản xuất, cũng như tầng có công năng sản xuất và điều hành bên trong nhà kho nếu bảo đảm được các yêu cầu về khoảng cách phòng cháy chống cháy quy định tại Phụ lục E và các quy định liên quan của quy chuẩn này.
Trong các kho trung chuyển (kho ngoại quan) một tầng có bậc chịu lửa I hoặc II và cấp nguy hiểm cháy kết cấu S0, nếu có các hành lang để thoát nạn được bao bởi các vách ngăn cháy loại 1 và có áp suất không khí dương khi xảy ra cháy thì chiều dài đoạn hành lang đó không phải tính vào độ dài của đường thoát nạn.
A.1.3.3 Khi bố trí kho trong nhà sản xuất thì diện tích lớn nhất cho phép của kho trong phạm vi một khoang cháy và chiều cao của chúng (số tầng) không được vượt quá các giá trị quy định tại Phụ lục H.
Khi có các sàn giá đỡ, sàn của giá đỡ nhiều tầng và sàn lửng có diện tích trên mỗi cao độ vượt quá 40 % diện tích sàn thì diện tích sàn được xác định như đối với nhà nhiều tầng.
A.1.3.4 Khi bố trí chung trong một nhà hoặc một gian phòng các dây chuyền công nghệ có hạng nguy hiểm cháy và cháy nổ khác nhau thì phải có các giải pháp ngăn chặn sự lan truyền của sự cháy và nổ giữa các dây chuyền đó. Hiệu quả ngăn chặn của các giải pháp đó phải được xem xét đánh giá trong phần công nghệ của dự án. Nếu các giải pháp được lựa chọn không bảo đảm hiệu quả ngăn chặn thì các dây chuyền công nghệ với hạng nguy hiểm cháy và cháy nổ khác nhau phải được bố trí trong các gian phòng riêng và được ngăn cách phù hợp với các yêu cầu trong Phụ lục E.
A.1.3.5 Các tầng hầm có các gian phòng hạng C1, C2, C3 phải được ngăn chia thành các phần khoang cháy có diện tích không quá 3 000 m2 mỗi phân khoang, bằng các vách ngăn cháy loại 1. Các phân khoang này phải được bảo vệ chống khói theo yêu cầu tại phụ lục D. Sàn tầng phía trên của các tầng hầm này tối thiểu là sàn ngăn cháy loại 3. Các gian phòng nêu trên phải được ngăn cách với hành lang bằng các vách ngăn cháy loại 1.
Các hành lang phải có chiều rộng không nhỏ hơn 2 m dẫn trực tiếp ra ngoài hoặc qua một buồng thang bộ không nhiễm khói.
A.1.3.6 Các bộ phận công trình của thềm (cầu) xếp dỡ và bộ phận bao che thềm (cầu) xếp dỡ liền kề với các nhà có bậc chịu lửa I, II, III và IV, hạng nguy hiểm cháy là S0 và S1 phải được làm bằng vật liệu không cháy.
A.1.3.7 Thềm (cầu) xếp dỡ hàng hóa và sân ga xếp dỡ phải có ít nhất là 2 thang leo hoặc đường dốc được bố trí cách xa nhau (phân tán).
A.1.3.8 Lựa chọn kết cấu và vật liệu cho nền và lớp phủ sàn nhà kho và gian phòng kho phải tính đến các yếu tố liên quan để bảo đảm ngăn ngừa việc phát sinh ra bụi.
Bề mặt sàn ở những khu vực có nguy cơ hình thành hỗn hợp nổ khí gas, bụi, chất lỏng và các chất khác với nồng độ có thể gây ra nổ hoặc cháy khi gặp tia lửa do va đập của một vật lên sàn hoặc hiện tượng nhiễm tĩnh điện, phải có biện pháp thích hợp để chống nhiễm tĩnh điện và không làm phát sinh tia lửa khi bị va đập.
Những nhà kho cất chứa hàng hóa có nhiệt độ vượt 60 °C thì phải sử dụng sàn chịu nhiệt.
A.1.3.9 Phòng kho trong nhà sản xuất phải được cách li với các loại gian phòng khác theo quy định cụ thể như dưới đây.
Các gian sản xuất, gian kỹ thuật và gian kho (nhóm nguy hiểm cháy theo công năng F5) có hạng nguy hiểm cháy và cháy nổ C1 đến C3 được đặt trong nhà ở và nhà công cộng, nếu không có quy định gì khác thì ít nhất phải được ngăn cách với các gian phòng và hành lang khác như sau:
- Với nhà có bậc chịu lửa I ngăn cách bằng vách ngăn cháy loại 1 và sàn ngăn cháy không kém hơn loại 2;
- Với nhà có bậc chịu lửa II, III, IV ngăn cách bằng vách ngăn cháy loại 1 và sàn ngăn cháy không kém hơn loại 3.
Không cho phép đặt gian phòng kho, gian sản xuất, phòng thí nghiệm và tương tự có hạng nguy hiểm cháy và cháy nổ C1, C2 và C3 hoặc cao hơn trong nhà khác dự kiến có từ 50 người sử dụng đồng thời trở lên.
Các gian phòng sản xuất, phòng kỹ thuật và phòng kho có hạng nguy hiểm cháy và cháy nổ C4, đặt trong nhà ở hoặc nhà công cộng thì phải được ngăn cách với các phòng khác và hành lang bằng các vách ngăn cháy không kém hơn loại 2.
Các gian phòng kho có hạng nguy hiểm cháy và cháy nổ C1, C2 và C3 trong nhà sản xuất phải được ngăn cách với các khu vực khác bằng vách ngăn cháy loại 1 và sàn ngăn cháy không kém hơn loại 3. Đối với các kho cất trữ hàng bằng giá đỡ cao tầng phải ngăn cách bằng tường ngăn cháy loại 1 và sàn ngăn cháy loại 1. Đối với những gian phòng kho này, nếu cất giữ thành phẩm có hạng nguy hiểm cháy và cháy nổ C1, C2 và C3 đặt trong nhà sản xuất thì phải có tường bao ngoài.
CHÚ THÍCH: Giá đỡ cao tầng là giá đỡ có chiều cao để hàng trên 5,5 m
A.1.3.10 Kho cất giữ hàng có hạng nguy hiểm cháy và cháy nổ C trên giá đỡ cao tầng phải được bố trí trong nhà 1 tầng có bậc chịu lửa I đến IV và cấp nguy hiểm cháy kết cấu của nhà S0.
Các giá đỡ hàng phải có sàn đỡ nằm ngang, đặc và làm từ vật liệu không cháy đặt cách nhau không quá 4 m theo chiều cao.
A.1.3.11 Khi chia một gian kho chứa hàng hóa có cùng mức độ nguy hiểm cháy như nhau bằng các vách ngăn theo điều kiện công nghệ hoặc vệ sinh, thì phải nêu rõ các yêu cầu đối với những vách ngăn đó trong phần thuyết minh công nghệ của dự án.
A.1.3.12 Các lỗ cửa sổ của nhà kho phải được đặt thêm tấm cửa mở lật lên trên với tổng diện tích xác định theo tính toán bảo đảm thoát khói khi có cháy.
Trong gian phòng lưu trữ cho phép không cần lắp đặt ó cửa sổ nếu đã có hệ thống thoát khói được tính toán phù hợp với yêu cầu tại Phụ lục D.
A.2 Nhà (có chiều cao PCCC từ trên 50 m đến 150 m) thuộc nhóm F1.2, F4.2, F4.3 và nhà hỗn hợp
A.2.1 Các nhà thuộc các nhóm này có bậc chịu lửa tối thiểu là bậc I.
A.2.2 Nhà phải được phân chia thành các khoang cháy theo chiều cao, với chiều cao mỗi khoang cháy không lớn hơn 50 m. Các khoang cháy được ngăn cách với nhau bằng các tường ngăn cháy và sàn ngăn cháy hoặc bằng các tầng kỹ thuật. Tầng kỹ thuật được ngăn cách bằng các sàn ngăn cháy có giới hạn chịu lửa không nhỏ hơn REI 90. Giới hạn chịu lửa của các tường ngăn cháy và sàn ngăn cháy này lấy theo quy định tại A.2.24.
Mỗi đơn nguyên hoặc một khoang cháy (khi không phân thành đơn nguyên) phải có hệ thống bảo vệ chống cháy hoạt động độc lập (bảo đảm hoạt động như dự kiến khi cần thiết, không phụ thuộc vào việc hệ thống bảo vệ chống cháy ở khoang cháy khác có hoạt động hay không) và có phòng phương tiện chữa cháy ban đầu.
A.2.3 Diện tích lớn nhất cho phép của một tầng nhà trên mặt đất trong phạm vi một khoang cháy :
- Không lớn hơn 3 000 m2 - đối với khối đế;
- Không lớn hơn 1 500 m2 - đối với nhóm F1.2 (khách sạn, ký túc xá);
- Không lớn hơn 2 000 m2 - đối với nhóm F1.3;
- Không lớn hơn 2 500 m2 - trong các trường hợp còn lại.
Tường và vách ngăn giữa các đơn nguyên phải có giới hạn chịu lửa tương ứng không thấp hơn quy định tại A.2.24.
A.2.4 Các gian phòng tập trung đông người có số chỗ ngồi cố định từ trên 300 đến 600 - không được đặt ở chiều cao PCCC trên 15 m; số chỗ ngồi cố định từ trên 150 đến 300 - không được đặt ở chiều cao PCCC trên 40 m, và với số chỗ ngồi cố định từ 100 đến 150 - không được đặt ở chiều cao PCCC trên 50 m. Các gian phòng công cộng đặt ở chiều cao PCCC trên 50 m thì số chỗ ngồi cố định không được vượt quá 100.
A.2.5 Nhà có bố trí các quán ăn, quán giải khát và các gian phòng công cộng nhóm F3.2 và F3.6, nằm ở chiều cao PCCC trên 50 m mà số người có mặt cùng một lúc trong mỗi gian phòng đó, tính theo Bảng G.9 (Phụ lục G), vượt quá 50 người thì khoảng cách từ lối ra thoát nạn của các gian phòng đến buồng thang bộ không nhiễm khói gần nhất không được vượt quá 20 m.
CHÚ THÍCH: Đối với các tầng nhà nằm ở chiều cao PCCC trên 50 m không có hành lang được bao che bằng các bộ phận ngăn cháy theo quy định trong A.2.24 thì khoảng cách di chuyển đến cửa của buồng thang bộ không nhiễm khói phải được tính từ điểm xa nhất của gian phòng.
Mái nhà được sử dụng để bố trí các quán ăn, quán giải khát, hoặc các diện tích dùng cho ngắm cảnh, dạo chơi, trong đó có số người cùng một lúc, tính theo Bảng G.9 (Phụ lục G), vượt quá 50 người thì khu vực đó phải có không ít hơn 2 lối ra thoát nạn.
A.2.6 Các gian phòng tập trung đông người, với số lượng người có mặt đồng thời có thể lớn hơn 500 người, thì gian phòng đó phải được ngăn cách với các gian phòng khác bằng các tường và sàn ngăn cháy có giới hạn chịu lửa theo quy định tại A.2.24. Khoảng cách từ lối ra thoát nạn của các phòng này đến buồng thang bộ không nhiễm khói gần nhất không được vượt quá 20 m.
A.2.7 Các gian phòng có người khuyết tật sinh hoạt thường xuyên không được đặt cao hơn tầng 2, nếu có người khuyết tật dùng xe lăn thì không được đặt cao hơn tầng 1.
Trường hợp người khuyết tật sinh hoạt ở các tầng cao hơn phải có các giải pháp bổ sung, bảo đảm khả năng cho người khuyết tật di chuyển an toàn tới lối ra thoát nạn hoặc tới được gian lánh nạn khi có cháy xảy ra. Giải pháp bổ sung phải được lý giải bằng tính toán trên cơ sở các tài liệu chuẩn hiện hành được áp dụng.
A.2.8 Không cho phép bố trí các gian phòng kho, lưu trữ sách báo và các vật dụng dễ cháy và có diện tích lớn hơn 50 m2 ở chiều cao PCCC trên 50 m, cũng như đặt dưới hoặc liền kề các gian phòng, ở đó có số người tính theo Bảng G.9 (Phụ lục G) nhiều hơn 50 người.
A.2.9 Không cho phép bố trí các gian phòng có nguy hiểm cháy nổ (hạng A hoặc B) trong phạm vi của nhà.
A.2.10 Máy biến áp của các phân trạm đặt trong nhà hoặc sát cạnh nhà phải bảo đảm là loại khố hoặc chứa đầy dầu không cháy (dầu cách điện), và được đặt ở tầng 1, tầng nửa hầm, tầng hầm đầu tiên hoặc ở tầng kỹ thuật bất kỳ. Các phân trạm biến áp phải được ngăn cách bằng các bộ phận ngăn cháy có giới hạn chịu lửa theo quy định tại A.2.24.
Cho phép sử dụng các máy phát điện diezen làm nguồn cấp điện độc lập và nguồn dự phòng tại chỗ. Khi đó cho phép bố trí các gian phòng đặt máy phát điện diezen không sâu hơn tầng hầm 1 hoặc ở các tầng trên mặt đất, trong phạm vi kích thước của nhà hoặc trong một nhà đứng riêng biệt khi thực hiện các yêu cầu sau:
- Giới hạn chịu lửa của các kết cấu tường và sàn chịu lực của gian phòng phải lấy không nhỏ hơn REI 180;
- Giao thông giữa gian phòng đặt máy phát điện diezen với các gian phòng khác phải đi qua khoang đệm ngăn cháy loại 1, có áp suất không khí dương khi có cháy;
- Để ngăn ngừa sự cháy loang của nhiên liệu, trong trường hợp có sự tràn nhiên liệu ra ngoài các gờ chặn, cần bố trí ở dưới các máy phát điện các khay đựng để chứa tất cả số nhiên liệu tràn ra;
- Bố trí các thiết bị phân tích khi để phát hiện sự rò rỉ nhiên liệu và phát ra các tín hiệu tới gian phòng của trạm chữa cháy, cũng như bố trí thông gió sự cố bằng thông gió có khí;
- Bố trí trong các gian phòng đặt máy phát điện diezen, thiết bị dập cháy tự động;
- Thể tích của thùng chứa dầu nằm trong kết cấu khung của mỗi máy phát điện diezen không được vượt quá 1 m3;
- Công suất của máy phát điện diezen và việc cung cấp, dự trữ nhiên liệu, phải bảo đảm sự làm việc của các hệ thống bảo vệ chống cháy, được xác định từ thời gian quy định cần thiết cho sự làm việc của chúng khi có cháy.
Cho phép sử dụng máy phát điện chạy bằng nhiên liệu khí, khi đặt những máy này trong một nhà đứng riêng biệt, với các yêu cầu an toàn cháy đã được quy định trong các tài liệu chuẩn liên quan.
A.2.11 Các sảnh thang máy phải được ngăn cách với các hành lang và các phòng bên cạnh bằng các vách ngăn cháy có giới hạn chịu lửa theo quy định tại A.2.24.
Vật liệu của các bộ phận cabin thang máy phải được cấu tạo như thang máy chữa cháy.
A.2.12 Phải bố trí thang máy chữa cháy trong các giếng thang riêng biệt, có sảnh thang máy độc lập. Lối ra từ thang máy này đi ra ngoài nhà không được bố trí đi qua sảnh chung.
Số lượng thang máy chữa cháy cho mỗi khoang cháy phải được tính toán đủ để khoảng cách từ vị trí các thang máy đó đến một điểm bất kỳ trên mặt bằng tầng mà nó phục vụ không vượt quá 45 m.
Các cấu kiện bao che cabin thang máy chữa cháy (tường, sàn, trần, cửa) phải được làm từ vật liệu không cháy hoặc từ nhóm vật liệu Ch1.
Vật liệu ốp lát hoàn thiện bề mặt các cấu kiện bao che cabin áp dụng như cho các gian phòng theo quy định tại A.2.25.
A.2.13 Giới hạn chịu lửa của kết cấu giếng thang máy và buồng máy của thang máy lấy theo quy định tại A.2.24.
A.2.14 Các hành lang phải được phân chia thành các khoang ngăn cách nhau bằng vách ngăn cháy loại 1. Cửa ngăn cháy lắp đặt trên các vách ngăn cháy này phải có cơ cấu tự đóng và các khe cửa phải được che kín (trừ phần chân). Chiều dài mỗi khoang hành lang phải bảo đảm như sau:
- Đối với khối căn hộ: không quá 30 m.
- Đối với khối nhà không phải là căn hộ: không quá 60 m.
A.2.15 Tất cả các buồng thang bộ không nhiễm khói của nhà phải có lối ra bên ngoài trực tiếp tại tầng 1, đồng thời phải có lối ra lên mái nhà, qua cửa ngăn cháy loại 1.
A.2.16 Đường thoát nạn phải được tính toán với số lượng người trong nhà hoặc trong gian phòng tăng lên so với số lượng thiết kế là 1,25 lần (trừ các gian phòng trình diễn và các gian phòng khác đã có số lượng chỗ ngồi quy định).
A.2.17 Nếu trong cùng một thời điểm các khu vực của nhà hoặc của tầng được sử dụng bởi nhiều đối tượng người sử dụng khác nhau hoặc cho nhiều mục đích sử dụng khác nhau thì các yêu cầu về thoát nạn cho toàn bộ nhà hoặc tầng nhà đó phải được tính toán trên cơ sở công năng hoặc mục đích sử dụng có yêu cầu về thoát nạn khắt khe nhất hoặc phải xác định riêng các yêu cầu về thoát nạn cho từng khu vực của nhà.
A.2.18 Nếu nhà, tầng nhà hoặc một phần của nhà được sử dụng cho nhiều mục đích với các hoạt động khác nhau tại nhiều thời điểm khác nhau thì phải áp dụng công năng hoặc mục đích sử dụng liên quan đến số lượng người lớn nhất để làm cơ sở xác định các yêu cầu về thoát nạn.
A.2.19 Khi cửa ra vào của các căn hộ hoặc gian phòng bố trí trên hành lang cụt thì khoảng cách từ cửa đó đến lối ra thoát nạn gần nhất không được vượt quá 15 m. Khi cửa được bố trí ở giữa các buồng thang bộ không nhiễm khói thì khoảng cách này không được vượt quá 20m.
A.2.20 Nhà có chiều cao PCCC trên 100 m phải bố trí tầng lánh nạn, gian lánh nạn bảo đảm các yêu cầu theo A.3.2.
A.2.21 Bố trí đường cho xe chữa cháy và bãi đỗ xe chữa cháy theo quy định trong 6.2.
A.2.22 Nhà phải có các phòng bảo quản các phương tiện chữa cháy tại chỗ được trang bị theo quy định hiện hành, bố trí ở các tầng dưới của mỗi khoang cháy theo chiều cao. Tại tầng 1, phòng phương tiện chữa cháy ban đầu của nhà phải được bố trí liền kề với phòng lắp đặt trung tâm điều khiển hệ thống bảo vệ chống cháy. Tại các các khoang cháy phía trên phải bố trí phòng phương tiện chữa cháy ban đầu cách buồng thang bộ không nhiễm khói hoặc thang máy chữa cháy không quá 30 m.
A.2.23 Việc ngăn chặn cháy lan theo mặt ngoài nhà phải tuân thủ các yêu cầu tại 4.32, 4.33.
A.2.24 Yêu cầu chịu lửa của kết cấu và bộ phận nhà
A.2.24.1 Giới hạn chịu lửa của các cấu kiện xây dựng phải không được thấp hơn các giá trị quy định tại Bảng A.1.
Bảng A.1 - Giới hạn chịu lửa tối thiểu của các cấu kiện xây dựng
|
Tên cấu kiện (bộ phận nhà) |
Giới hạn chịu lửa tối thiểu cho nhà có chiều cao PCCC, m |
|
|
> 50 và ≤ 100 |
> 100 và ≤ 150 |
|
|
(1) |
(2) |
(3) |
|
1. Cột chịu lực, tường chịu lực, hệ giằng, vách cứng, giàn, các bộ phận của sàn giữa các tầng và sàn mái của nhà không có tầng áp mái (dầm, xà, bản sàn) 1) |
R 150 |
R 180 |
|
2. Tường ngoài không chịu lực |
E 60 |
E 60 |
|
3. Sàn giữa các tầng (bao gồm cả sàn tầng áp mái và sàn trên tầng hầm) |
REI 120 |
REI 120 |
|
4. Các bộ phận của mái |
|
|
|
4.1 Tấm lợp |
RE 30 |
RE 30 |
|
4.2 Dầm, xà, xà gồ, khung, giàn |
R 30 |
R 30 |
|
5. Các bộ phận của mái dành cho việc thoát nạn, cứu nạn |
|
|
|
5.1 Tấm lợp |
RE 120 |
RE 120 |
|
5.2 Dầm, xà, xà gồ, khung, giàn |
R 150 |
R 180 |
|
6. Kết cấu buồng thang bộ |
|
|
|
6.1 Tường trong |
REI 150 |
REI 180 |
|
6.2 Bản thang và chiếu thang |
R 60 |
R 60 |
|
7. Tường ngăn cháy và sàn ngăn cháy |
REI 150 |
REI 180 |
|
8. Kết cấu giếng |
|
|
|
8.1 Giếng thang máy và giếng đường ống kỹ thuật, kênh dẫn và hộp kỹ thuật không cắt qua biên của khoang cháy |
REI 120 |
REI 120 |
|
8.2 Giếng thang máy và giếng đường ống kỹ thuật, kênh dẫn và hộp kỹ thuật cắt qua biên của khoang cháy; Giếng thang máy chữa cháy |
REI 150 1) |
REI 180 1) |
|
9. Tường trong không chịu lực (vách ngăn) |
|
|
|
9.1 Tường trong giữa các phòng ở của khách sạn, các phòng văn phòng và tương tự |
El 60 |
El 60 |
|
9.2 Tường ngăn cách giữa các phòng với sảnh thông tầng; giữa hành lang với các phòng ở của khách sạn và với các phòng văn phòng |
El (EIW) 60 |
El (EIW) 60 |
|
9.3 Tường ngăn cách các gian phòng cho máy phát điện sự cố và cho trạm điện Điêzen |
REI 180 |
REI 180 |
|
9.4 Tường ngăn cách các gian bán hàng có diện tích lớn hơn 2 000 m2 và ngăn cách các gian phòng tập trung đông người có số người đồng thời có mặt lớn hơn 500 người |
El 180 |
El 180 |
|
9.5 Tường ngăn cách giữa các căn hộ với nhau |
El 90 |
El 90 |
|
9.6 Tường ngăn cách giữa các căn hộ với hành lang và với các gian phòng khác |
El 30 |
El 60 |
|
9.7 Tường ngăn cách sảnh thang máy |
El (EIW) 60 |
El (EIW) 60 |
|
9.8 Tường ngăn cách sảnh thang máy với khoang đệm của thang máy chữa cháy |
El (EIW) 60 |
El (EIW) 90 |
|
9.9 Tường ngăn cách giữa phòng xông khô trong nhà với các gian phòng khác |
El (EIW) 60 |
El (EIW) 60 |
|
9.10 Tường ngăn cách các gian phòng của các cơ sở dịch vụ đời sống, có diện tích lớn hơn 300 m2 |
El 60 |
El 60 |
|
9.11 Tường ngăn cách các gian phòng lưu trữ, kho sách báo và tương tự |
El 90 |
El 120 |
|
9.12 Tường vách ngăn cách gian phòng của trạm biến áp |
El 60 |
El 60 |
|
1) Các bộ phận của nhà như các tường chịu lực, cột chịu lực, hệ giằng, vách cứng, các bộ phận của sàn (dầm xà hoặc tấm sàn) được xếp vào loại các bộ phận chịu lực của nhà nếu chúng tham gia vào việc bảo đảm sự ổn định tổng thể và sự bất biến hình của nhà khi có cháy. Các bộ phận chịu lực mà không tham gia vào việc bảo đảm ổn định tổng thể của nhà phải được đơn vị thiết kế chỉ dẫn trong tài liệu kỹ thuật của nhà. |
||
|
CHÚ THÍCH 1: Giới hạn chịu lửa R của kết cấu chịu lực mà là gối tựa cho sàn ngăn cháy phải không nhỏ hơn giới hạn chịu lửa R của chính sàn ngăn cháy đó. CHÚ THÍCH 2: Cho phép áp dụng các quy định về giới hạn chịu lửa của tường ngoài không chịu lực theo chú thích 5, 6 của Bảng 4 |
||
A.2.24.2 Giới hạn chịu lửa của các cửa đi, cửa nắp và các tấm chèn bịt lỗ mở trên các cấu kiện xây dựng có yêu cầu về khả năng chịu lửa theo quy định tại Bảng A.1 phải có giới hạn chịu lửa không nhỏ hơn El 30 (EIW 30) trong trường hợp sử dụng trong các cấu kiện có giới hạn chịu lửa El 60 (EIW60), và không nhỏ hơn El 60 (EIW 60) trong các trường hợp còn lại.
A.2.24.3 Các cửa đi của sảnh thang máy và cửa đi của gian máy của thang máy phải là các cửa không lọt khí, khói.
A.2.24.4 Ở các giếng kỹ thuật, chỉ dùng để đi các đường ống cấp và thoát nước với các ống được chế tạo từ vật liệu không cháy, thì cho phép dùng các cửa, van ngăn cháy loại 2 (El 30).
A.2.25 Sử dụng vật liệu theo tính nguy hiểm cháy
A.2.25.1 Vật liệu lợp, phủ mái phải là vật liệu không cháy. Trường hợp mái có lớp phủ chống thấm là vật liệu cháy được thì phía trên lớp vật liệu đó phải được phủ bằng vật liệu không cháy có chiều dày không nhỏ hơn 50 mm.
A.2.25.2 Lớp hoàn thiện tường, trần và lớp phủ sàn trên đường thoát nạn (hành lang, tiền sảnh, phòng chờ), cũng như ở các tầng kỹ thuật phải được làm từ vật liệu không cháy.
A.2.25.3 Vật liệu hoàn thiện tường, trần, trang trí trần treo và phủ sàn trong các gian phòng phải phù hợp với quy định tại Bảng B.9 (Phụ lục B).
A.2.25.4 Trong các gian phòng lớn, có chỗ ngồi cho khán giả với số lượng lớn hơn 50 chỗ, các bộ phận của ghế tựa mềm, mành rèm, màn che không được làm từ các vật liệu dễ bắt cháy (nhóm BC3). Trong các gian phòng này, không phụ thuộc vào số chỗ ngồi, các ghế ngồi không được làm từ vật liệu có độc tính cao hơn ĐT2.
Các sản phẩm vải, sợi dùng cho trang trí nội thất không được làm từ vật liệu thuộc nhóm dễ bắt cháy (BC3).
A.2.26 Trang thiết bị báo cháy, chữa cháy, cứu nạn
A.2.26.1 Nhà phải được trang bị hệ thống báo cháy tự động theo địa chỉ; phải được bố trí các chuông báo cháy tự động ở tất cả các khu vực, bao gồm: các căn hộ, các phòng văn phòng, các hành lang, sảnh thang máy, phòng chờ sảnh chung, các phòng kỹ thuật thường xuyên có người làm việc và tương tự), trừ các gian phòng có điều kiện môi trường sử dụng bình thường luôn ẩm ướt.
A.2.26.2 Nhà phải được trang bị hệ thống loa truyền thanh và điều khiển thoát nạn.
A.2.27 Cấp nước chữa cháy
A.2.27.1 Hệ thống cấp nước chữa cháy trong nhà (mạng đường ống và hệ thiết bị) phải thiết kế riêng biệt, có trạm bơm được bố trí độc lập với các phòng có công năng khác.
A.2.27.2 Lưu lượng nước chữa cháy trong nhà cho từng khoang cháy phải đủ cho 4 tia phun chữa cháy, lưu lượng nước mỗi tia phun không nhỏ hơn 2,5 L/s.
A.2.27.3 Trong các khoang cháy có các gian phòng công cộng, cho phép bố trí các họng nước chữa cháy có lưu lượng không nhỏ hơn 2,5 L/s, với điều kiện phải có các ống đứng bảo đảm cung cấp cho các họng nước đạt lưu lượng 5 L/s.
A.2.27.4 Phải bố trí 2 ống nối có các đầu nối đường kính phù hợp để đấu nối hệ thống cấp nước chữa cháy trong nhà và các thiết bị chữa cháy tự động với các phương tiện chữa cháy di chuyển ở ngoài nhà.
Phải có các van chặn và van một chiều ở bên trong nhà để điều chỉnh lượng nước chữa cháy cấp vào hệ thống. Các đầu nối đưa ra phía ngoài nhà phải được đặt tại các vị trí thuận tiện cho xe chữa cháy tiếp cận và phải được ký hiệu bằng các chỉ dẫn rõ ràng dễ đọc.
A.2.27.5 Việc bố trí các đầu phun của hệ thống chữa cháy tự động bằng nước cho các gian phòng, sảnh, đường thoát nạn và các bộ phận khác phải bảo đảm, bảo vệ được các lỗ cửa sổ (từ phía ngoài hoặc từ phía trong của gian phòng) và các ở cửa đi của các căn hộ, các gian phòng văn phòng và các gian phòng khác, mà các cửa đó mở vào hành lang.
A.2.27.6 Cường độ phun đối với các hệ thống chữa cháy tự động không được thấp hơn 0,08 L/(s∙m2).
A.2.27.7 Đối với hệ thống chữa cháy sprinkler, lưu lượng nước phải bảo đảm không thấp hơn 10 L/s.
A.2.27.8 Trong các khoang đệm buồng của thang bộ không nhiễm khói phải bố trí các họng chờ cấp nước D 65 dành cho lực lượng chữa cháy chuyên nghiệp (của hệ thống ống khô), ở tầng 1 các đường ống này phải có các ống nối để đấu nối với các bơm áp lực cao của các xe chữa cháy.
A.2.28 Hệ thống điện
A.2.28.1 Điện cấp cho các hệ thống thiết bị kỹ thuật nêu dưới đây phải bảo đảm duy trì sự làm việc của các thiết bị đó trong thời gian không ít hơn 3 giờ kể từ khi có cháy và phải được lấy từ 2 nguồn cấp độc lập:
- Thang máy chữa cháy;
- Các thiết bị của hệ thống bảo vệ chống cháy;
- Hệ thống báo cháy tự động và hướng dẫn thoát nạn;
- Các thiết bị của hệ thống chữa cháy tự động và cấp nước chữa cháy;
- Các thiết bị bảo vệ chống cháy cho hệ thống thiết bị kỹ thuật;
- Các trang thiết bị phục vụ cứu hộ - cứu nạn.
A.2.28.2 Các cáp điện từ trạm biến áp và từ nguồn cấp độc lập đến các thiết bị phân phối đầu vào ở mỗi khoang cháy phải được đặt trong các kênh (hộp) riêng biệt với khả năng chịu lửa theo quy định tại A.2.24, hoặc phải là các cáp có khả năng chịu lửa.
A.2.28.3 Ở các thiết bị phân phối đầu vào của mỗi khoang cháy phải có thiết bị ngắt bảo vệ và được xử lý bảo vệ chống cháy.
A.2.28.4 Ở các tủ phân phối của tầng và ở các bảng điện của các căn hộ đều phải có thiết bị ngắt bảo vệ. Cấu tạo kết cấu của các tủ này phải bảo đảm loại trừ được khả năng lan cháy ra ngoài phạm vi tủ.
A.2.28.5 Ở các vị trí các cáp và dây dẫn xuyên qua các cấu kiện xây dựng có yêu cầu khả năng chịu lửa thì liên kết chèn khe hở của cáp phải có giới hạn chịu lửa không thấp hơn giới hạn chịu lửa của cấu kiện mà cáp và dây xuyên qua.
A.2.28.6 Các đèn chiếu sáng thoát nạn phải bảo đảm duy trì hoạt động trong điều kiện nhiệt độ cao.
A.2.28.7 Cáp (dây) dẫn điện từ tủ phân phối của tầng đến các gian phòng, phải được đi trong các kênh dẫn hoặc trong các cấu kiện xây dựng làm từ vật liệu không cháy.
A.2.28.8 Dây điện và cáp điện từ thiết bị phân phối đầu vào đến các hệ thống bảo vệ chống cháy (thiết bị điện của hệ thống chữa cháy, báo cháy, hút xả khói, chiếu sáng thoát nạn và tương tự) phải được thực hiện bằng các cáp có khả năng chịu lửa (dây điện và cáp điện có lớp khoáng hoặc dây điện và cáp điện khác có giới hạn chịu lửa không thấp hơn 120 phút).
A.2.29 Hệ thống thông gió và bảo vệ chống khói
A.2.29.1 Các nhóm gian phòng với công năng khác nhau đặt trong phạm vi của cùng một khoang cháy phải có hệ thống thông gió, điều hòa và sưởi ấm không khí hoạt động độc lập.
A.2.29.2 Gian phòng đặt thiết bị thông gió phải đặt trong phạm vi khoang cháy mà thiết bị đó phục vụ, cho phép đặt trong một gian phòng chung thiết bị thông gió của các hệ thống phục vụ cho các khoang cháy khác nhau, trừ các trường hợp sau đây.
- Thiết bị của các hệ thống cấp khí vào, từ sự tuần hoàn lại của không khí, phục vụ cho các gian phòng có hạng nguy hiểm cháy và cháy nổ C1 đến C3, không được đặt cùng với thiết bị của các hệ thống dùng cho các gian phòng có hạng nguy hiểm cháy nổ khác;
- Thiết bị của các hệ thống cấp khí vào, phục vụ cho các phòng ở, không được đặt cùng với thiết bị của hệ thống cấp khí vào, phục vụ cho các gian phòng dùng trong dịch vụ đời sống, cũng như cùng với thiết bị của các hệ thống xả khí ra;
- Thiết bị của hệ thống xả khi ra (xả không khí có mùi khó chịu ra ngoài, từ các phòng hút thuốc, vệ sinh và tương tự), không đặt cùng với thiết bị của các hệ thống cấp khí vào;
- Thiết bị của các hệ thống hút xả cục bộ các hỗn hợp nguy hiểm nổ, không đặt cùng với thiết bị của các hệ thống khác.
A.2.29.3 Không cho phép các hệ thống thông gió phục vụ cho các khoang cháy khác nhau sử dụng chung thiết bị tiếp nhận không khí bên ngoài (các miệng hút). Khoảng cách theo phương ngang giữa các miệng hút không khí bố trí ở các khoang cháy liền kề nhau không được nhỏ hơn 3 m.
A.2.29.4 Khoảng cách theo phương ngang giữa các thiết bị tiếp nhận không khí bên ngoài (miệng hút) và miệng phun của cùng một hệ thống xả khí lắp trên một mặt đứng ngoài nhà phải bảo đảm không nhỏ hơn 10 m. Nếu không bảo đảm khoảng cách theo phương ngang thì phải bảo đảm khoảng cách theo phương đứng không nhỏ hơn 6 m.
A.2.29.5 Cho phép cấu tạo các ống dẫn không khí và đoạn ống góp của mọi hệ thống nằm trong phạm vi khoang cháy mà chúng phục vụ, theo những quy định sau:
- Làm từ vật liệu không cháy và có giới hạn chịu lửa không thấp hơn El 15, với điều kiện đường ống dẫn không khí phải được đặt trong một giếng chung, với kết cấu bao quanh giếng có giới hạn chịu lửa không thấp hơn REI 120, và phải có các van ngăn cháy tại các vị trí đường ống xuyên qua các kết cấu bao quanh giếng đó;
- Làm từ vật liệu không cháy và có các van ngăn cháy ở tất cả các vị trí mà đường ống xuyên qua các tường, vách và sàn có yêu cầu về khả năng chịu lửa;
- Các đoạn ống dẫn không khí nằm bên ngoài khoang cháy mà chúng phục vụ, tính từ các bộ phận ngăn cháy trên biên của khoang cháy đó, phải có giới hạn lửa không nhỏ hơn El 180.
A.2.29.6 Khi bố trí các ống dẫn không khí và đoạn ống góp của mọi hệ thống phục vụ cho nhiều khoang cháy khác nhau trong một kênh hoặc giếng chung thì kết cấu bao quanh của kênh hoặc giếng đó phải có giới hạn chịu lửa không nhỏ hơn REI 180 và cấu tạo của các đường ống đó phải bảo đảm các quy định sau:
- Có giới hạn chịu lửa không thấp hơn El 60 khi đường ống nằm trong khoang cháy mà nó phục vụ và có lắp đặt các van ngăn cháy tại các vị trí mà đường ống xuyên qua kết cấu bao quanh kênh và giếng;
- Có giới hạn chịu lửa không thấp hơn El 60 khi đường ống nằm bên ngoài khoang cháy mà nó phục vụ, và có lắp đặt các van ngăn cháy tại các vị trí mà đường ống xuyên qua các sàn ngăn cháy nằm ở biên các khoang cháy, với giới hạn chịu lửa của sàn là REI 180.
A.2.29.7 Các ống dẫn khí có quy định yêu cầu về khả năng chịu lửa phải được làm từ vật liệu không cháy, có chiều dày không nhỏ hơn 0,8 mm và phải có bộ phận bù dãn nở nhiệt dọc trục. Việc chèn đệm các mối nối của các ống dẫn khí phải được thực hiện bằng các vật liệu không cháy.
A.2.29.8 Các van ngăn cháy phải có thiết bị dẫn động điều khiển từ xa và tự động. Không cho phép sử dụng các van ngăn cháy với bộ dẫn động bằng các phần tử nhiệt. Giới hạn chịu lửa của các van chặn lửa phải bảo đảm các quy định sau:
- Không thấp hơn El 90 - khi bộ phận ngăn cháy tương ứng có giới hạn chịu lửa REI 120 hoặc cao hơn;
- Không thấp hơn El 60 - khi bộ phận ngăn cháy tương ứng có giới hạn chịu lửa REI 60.
A.2.29.9 Hệ thống hút xả khói ra ngoài phải bảo đảm các quy định sau:
- Giới hạn chịu lửa của các quạt hút phải đáp ứng được yêu cầu làm việc theo nhiệt độ tính toán của dòng khí;
- Các ống dẫn khí và kênh dẫn làm từ vật liệu không cháy có giới hạn chịu lửa không thấp hơn:
El 180 - đối với các ống dẫn khí và các kênh dẫn nằm bên ngoài khoang cháy mà chúng phục vụ;
El 120 - Đối với các ống dẫn khí thẳng đứng và các kênh dẫn nằm trong phạm vi khoang cháy mà chúng phục vụ;
- Các van ngăn khói phải có thiết bị dẫn động điều khiển từ xa và tự động, có giới hạn chịu lửa không thấp hơn:
El 60 - đối với các gian để xe ô tô và các hành lang cách ly của gara kín;
El 45 - đối với các phòng có mặt đồng thời 50 người trở lên, tính theo Bảng G.9 (Phụ lục G), trong một khoảng thời gian nhất định và đối với các sảnh thông tầng;
El 30 - đối với các hành lang, sảnh, hành lang bên.
A.2.29.10 Các quạt dùng để đẩy các sản phẩm cháy ra ngoài phải được đặt trong các gian phòng riêng biệt, được bao che bằng các vách ngăn cháy loại 1.
A.2.29.11 Các giếng bao che đường ống của hệ thống cấp không khí vào để bảo vệ chống khói phải có giới hạn chịu lửa không thấp hơn giới hạn chịu lửa của các sàn mà nó cắt qua. Giới hạn chịu lửa yêu cầu của các ống dẫn khí của hệ thống cấp khi vào này phải không được nhỏ hơn:
El 60 - đối với các ống dẫn khí theo tầng của hệ thống cấp khi vào cho các khoang đệm ngăn cháy, các hành lang cách ly của gara kín;
El 30 - đối với các ống dẫn khí của hệ thống cấp khí vào bảo vệ cho các buồng thang bộ và giếng thang máy, cũng như cho các khoang đệm ngăn cháy ở các cao trình trên mặt đất.
A.2.29.12 Các van ngăn cháy của hệ thống cấp khi vào cho bảo vệ chống khói phải có giới hạn chịu lửa không thấp hơn giới hạn chịu lửa yêu cầu đối với các ống dẫn khí của hệ thống này.
A.2.29.13 Việc điều khiển thiết bị và cơ cấu vận hành của hệ thống bảo vệ chống khói phải được thực hiện bằng cả chế độ tự động (từ hệ thống phát hiện cháy) và điều khiển từ xa (từ bàn điều khiển của kíp trực của nhân viên điều độ và từ các nút bấm bố trí ở các lối ra thoát nạn của các tầng hoặc ở các tủ chữa cháy). Trong tất cả các kịch bản về tình huống nguy hiểm cháy, phải ngắt các hệ thống thông gió và điều hòa không khí thông thường (không được sử dụng ở chế độ bảo vệ chống khói), và mở ngay hệ thống hút xả khói và cấp khí vào cho bảo vệ chống khói.
A.2.29.14 Các thông tin về vị trí và tình trạng thực tế của các thiết bị và cơ cấu vận hành của hệ thống bảo vệ chống khói phải được theo dõi và nhận biết tại trạm điều khiển.
A.2.29.15 Các cơ cấu và thiết bị vận hành của hệ thống bảo vệ chống khói phải bảo đảm có độ tin cậy hoạt động được xác định bằng xác suất an toàn không nhỏ hơn 0,999.
A.2.30 Hệ thống thu gom rác
A.2.30.1 Thân ống đổ rác phải được làm bằng vật liệu không cháy.
A.2.30.2 Cửa van nhận rác của ống đổ rác phải được bố trí trong một phòng riêng, ngăn cách với các không gian khác bằng vách ngăn cháy có giới hạn chịu lửa không thấp hơn El 120. Các cửa ngăn cháy lắp trên vách này phải có giới hạn chịu lửa không thấp hơn El 60, được trang bị cơ cấu tự đóng và được chèn kín các khe cửa.
A.3 Nhà chung cư thuộc nhóm nguy hiểm cháy theo công năng F1.3 có chiều cao PCCC từ trên 75 m đến 150 m
A.3.1 Nhà có chiều cao PCCC từ trên 75 m đến 100 m
A.3.1.1 Bậc chịu lửa của nhà tối thiểu là bậc I, yêu cầu chịu lửa của kết cấu và bộ phận nhà lấy theo A.2.24, ngoại trừ các trường hợp được quy định tại A.3.1.10 và A.3.1.14.
A.3.1.2 Nhà phải được phân chia thành các khoang cháy theo chiều cao, với chiều cao khoang cháy dưới cùng không lớn hơn 75 m, các khoang cháy tiếp theo mỗi khoang không lớn hơn 50 m. Các khoang cháy phải được ngăn cách với nhau bằng một sàn ngăn cháy có giới hạn chịu lửa tối thiểu REI 150 hoặc bằng một tầng kỹ thuật với kết cấu chịu lực theo phương ngang (sàn và trần) có giới hạn chịu lửa không nhỏ hơn REI 90.
A.3.1.3 Diện tích lớn nhất cho phép của một tầng nhà trong phạm vi một khoang cháy xác định theo A.2.3.
A.3.1.4 Tại các vị trí giao nhau giữa sàn ngăn cháy và các bộ phận ngăn cháy với kết cấu bao che của nhà phải có giải pháp bảo đảm không để cháy lan truyền qua các bộ phận ngăn cháy. Ngăn chặn cháy lan theo mặt ngoài nhà phải tuân thủ các yêu cầu tại 4.32, 4.33.
A.3.1.5 Mỗi khoang cháy theo chiều cao phải có hệ thống bảo vệ chống cháy (cấp nước chữa cháy, thoát khói, chiếu sáng thoát nạn, báo cháy, chữa cháy tự động) hoạt động độc lập. Cho phép các khoang cháy sử dụng chung trạm bơm cấp nước, trạm bơm chữa cháy, quạt hút khói, tủ trung tâm báo cháy.
A.3.1.6 Phía trên lối ra từ các gara ở tầng một phải bố trí các mái đua bằng vật liệu không cháy có chiều rộng không nhỏ hơn 1,0 m và bảo đảm khoảng cách từ mái đua này tới cạnh dưới của các lỗ cửa sổ bên trên không nhỏ hơn 4,0 m.
A.3.1.7 Việc ngăn chia và chiều dài cho phép của các đoạn được ngăn chia của hành lang trong nhà phải tuân thủ A.2.14. Khoảng cách giới hạn cho phép từ cửa ra vào của căn hộ đến lối ra thoát nạn gần nhất (buồng thang bộ hoặc lối ra bên ngoài) phải tuân thủ A.2.19.
A.3.1.8 Chiều rộng thông thủy bản thang và chiếu thang của các buồng thang bộ loại N1, N3 tại phân ở của nhà phải không nhỏ hơn 1,20 m; buồng thang bộ loại N2 không nhỏ hơn 1,05 m với khoảng cách hở thông thủy giữa các bản thang không nhỏ hơn 100 mm.
A.3.1.9 Từ tất cả các buồng thang bộ không nhiễm khói phải có các bản thang dẫn lên mái qua các cửa ngăn cháy loại 2.
A.3.1.10 Phần có công năng khác của nhà (kể cả các phòng kỹ thuật, phòng phụ trợ phục vụ cho phần căn hộ) phải được ngăn cách với phần căn hộ của nhà bằng tường ngăn cháy đặc có giới hạn chịu lửa REI 150 và sàn ngăn cháy loại 1 đồng thời có các lối ra thoát nạn riêng.
A.3.1.11 Lớp cách nhiệt (nếu có) của tường ngoài nhà phải được làm bằng vật liệu không cháy. Cho phép sử dụng lớp cách nhiệt từ vật liệu có nhóm cháy Ch1 và Ch2 nếu nó được bảo vệ từ tất cả các phía bằng bê tông hoặc vữa trát có chiều dày không nhỏ hơn 50 mm. Tại các vị trí lắp khuôn cửa sổ và cửa đi trên tường ngoài chiều dày của lớp bê tông (vữa trát) này phải không nhỏ hơn 30 mm.
A.3.1.12 Các cửa ngăn cháy phải được bố trí phù hợp cho từng trường hợp như sau:
a) Trừ đoạn b) và c) dưới đây, giới hạn chịu lửa của cửa phải lấy không nhỏ hơn El 30 (EIW 30) trong trường hợp sử dụng trong các cấu kiện có giới hạn chịu lửa El 60 (EIW 60) và không nhỏ hơn El 60 (EIW 60) trong các trường hợp còn lại.
b) Cửa ngăn cháy là loại 2 trong trường hợp: cửa từ khoang đệm đi vào buồng thang bộ không nhiễm khói, vào sảnh thang máy và vào phòng có ống đổ rác.
c) Cửa giếng thang máy đi vào sảnh thang máy phải là các cửa kín khói.
A.3.1.13 Vật liệu hoàn thiện trần, tường, sàn trên các đường thoát nạn, trong sảnh thang máy, sảnh chung, tầng kỹ thuật phải là vật liệu không cháy .
A.3.1.14 Lớp cách âm của các phòng, cũng như cách nhiệt cho thiết bị và đường ống kỹ thuật phải làm từ vật liệu không cháy.
A.3.1.15 Các đường ống chính theo trục đứng của hệ thống kỹ thuật (thoát nước, dẫn nước mưa, cấp nước nóng và lạnh) được làm bằng vật liệu không cháy hoặc được đặt trong các kênh, hộp kỹ thuật làm bằng vật liệu không cháy. Yêu cầu đối với hệ thống thu gom rác thực hiện theo A.2.30.
A.3.1.16 Việc bảo vệ chống khói cho nhà, hệ thống báo cháy và chữa cháy tự động thực hiện theo các quy định bổ sung sau đây:
a) Tất cả các phòng không phải căn hộ (gara, phòng phụ trợ, phòng kỹ thuật, không gian công cộng, khoang chứa rác và các phòng có công năng tương tự) và ống đổ rác phải có đầu phun sprinkler (trừ các gian phòng kỹ thuật điện, điện tử có yêu cầu bố trí hệ thống hoặc thiết bị dập lửa thể khí);
b) Bên trên các cửa vào căn hộ phải lắp các sprinkler nối với đường ống cấp nước chữa cháy thông qua rơ le dòng;
c) Hệ thống báo cháy tự động phải báo rõ địa chỉ của từng căn hộ. Trong các phòng của căn hộ và các hành lang tầng, kể cả sảnh thang máy phải lắp đặt đầu báo khói. Trong mỗi căn hộ phải trang bị hệ thống loa truyền thanh để hướng dẫn thoát nạn, bảo đảm mọi người trong căn hộ có thể nghe rõ thông báo, hướng dẫn khí có sự cố;
d) Cần trang bị hệ thống báo cháy, thiết bị, phương tiện chữa cháy tự động trong các kênh, giếng kỹ thuật điện, thông tin liên lạc và giếng kỹ thuật khác có nguy hiểm cháy;
e) Nguồn điện cấp cho hệ thống bảo vệ chống cháy gồm: thang máy phục vụ chuyên chở lực lượng, phương tiện chữa cháy; hệ thống bảo vệ chống khói; hệ thống báo cháy, chữa cháy tự động; phải được lấy từ các tủ điện độc lập hoặc các bằng điện riêng với mẫu sơn khác nhau đi theo hai tuyến riêng biệt tới thiết bị phân phối của từng khoang cháy.
A.3.1.17 Yêu cầu bảo vệ chịu lửa đối với các dây, cáp điện của nguồn điện cấp cho hệ thống phòng cháy chữa cháy thực hiện theo A.2.28.
A.3.2 Nhà có chiều cao PCCC từ trên 100 m đến 150 m
A.3.2.1 Đối với nhà có chiều cao PCCC từ trên 100 m đến 150 m, ngoài việc tuân thủ các quy định tại A.3.1, cần phải bố trí tầng lánh nạn, gian lánh nạn đáp ứng những yêu cầu sau đây:
a) Tầng lánh nạn cách nhau không quá 20 tầng, tầng lánh nạn đầu tiên được bố trí không cao quá tầng thứ 21. Khu vực bố trí gian lánh nạn, phải được ngăn cách với các khu vực khác bằng bộ phận ngăn cháy có giới hạn chịu lửa không nhỏ hơn REI 150. Các khu vực khác ngoài khu vực bố trí gian lánh nạn có thể sử dụng cho các công năng công cộng. Không bố trí căn hộ hoặc một phần căn hộ trên tầng lánh nạn;
CHÚ THÍCH: Có thể sử dụng tầng kỹ thuật hoặc một phần tầng kỹ thuật làm khu vực lánh nạn khi đáp ứng các quy định tại các đoạn b), c), d), e), f).
b) Gian lánh nạn phải có diện tích với định mức 0,3 m2/người, bảo đảm đủ chứa tổng số người thoát nạn lớn nhất của tất cả các tầng phía trên tính từ tầng có gian lánh nạn đến hết tầng có gian lánh nạn tiếp theo, hoặc các tầng phía trên còn lại đối với tầng lánh nạn trên cùng. Không cho phép sử dụng diện tích gian lánh nạn vào các hoạt động thương mại, nhưng có thể sử dụng làm sân/khu vực chơi cho trẻ em hoặc tập thể dục;
CHÚ THÍCH: Số lượng người thoát nạn lớn nhất từ các không gian khác nhau của nhà hoặc phần nhà được xác định theo G 3, Phụ lục G. Riêng đối với nhà hoặc phần nhà có nhóm nguy hiểm cháy theo công năng khác F1.3 thì áp dụng thêm quy định tại A.2.16.
c) Gian lánh nạn phải được thông gió tự nhiên qua các ô thông tường cố định bố trí trên hai tường ngoài (ô thông gió) bảo đảm các yêu cầu:
- Tổng diện tích các ô thông gió ít nhất phải bằng 25 % diện tích gian lánh nạn;
- Chiều cao nhỏ nhất của các ô thông gió (tính từ cạnh dưới đến cạnh trên) không được nhỏ hơn 1,2 m;
- Các ô thông gió cho gian lánh nạn phải được bố trí cách ít nhất 1,5 m theo phương ngang và 3,0 m theo phương đứng tính từ các ô thông tường không được bảo vệ khác nằm ngang bằng hoặc phía dưới nó. Nếu các ô thông gió cho gian lánh nạn có tổng diện tích không nhỏ hơn 50 % diện tích gian lánh nạn thì khoảng cách theo phương đứng được phép giảm xuống đến 1,5 m;
d) Tất cả các trang bị, dụng cụ đặt trong gian lánh nạn phải được làm bằng vật liệu không cháy;
e) Gian lánh nạn phải có lối ra thoát nạn trực tiếp đi vào buồng thang bộ không nhiễm khói và lối ra thoát nạn đi vào khoang đệm của thang máy chữa cháy. Các đường thoát nạn dẫn vào gian lánh nạn phải đi qua một sảnh ngăn khói/sảnh thang máy chữa cháy hoặc một hành lang bên;
f) Gian lánh nạn phải có trang thiết bị chống cháy gồm: họng nước chữa cháy trong nhà, hệ thống chữa cháy tự động sprinkler, chiếu sáng sự cố, điện thoại liên lạc với bên ngoài, hệ thống truyền thanh chỉ dẫn thoát nạn và tương tự;
g) Phía trong buồng thang bộ thoát nạn và trên mặt ngoài của tường buồng thang bộ thoát nạn ở vị trí tầng lánh nạn phải có biển thông báo với nội dung “GIAN LÁNH NẠN/FIRE EMERGENCY HOLDING AREA” đặt ở chiều cao 1 500 mm tính từ mặt nền hoàn thiện của chiếu tới hoặc sàn tầng lánh nạn. Chiều cao chữ trên biển thông báo không được nhỏ hơn 50 mm;
CHÚ THÍCH: Bên cạnh việc trình bày bằng tiếng Việt và tiếng Anh, nội dung biển thông báo có thể được trình bày thêm bằng các ngôn ngữ khác tùy thuộc đặc điểm người sử dụng phổ biến trong nhà.
h) Cho phép phần diện tích gian lánh nạn không được tính vào chỉ tiêu hệ số sử dụng đất và diện tích sàn xây dựng của công trình.
A.4 Nhà kinh doanh dịch vụ karaoke, vũ trường (thuộc nhóm F2.1)
A.4.1 Bậc chịu lửa của nhà kinh doanh dịch vụ karaoke, vũ trường phải phù hợp với các quy định tại quy chuẩn này và tối thiểu là bậc IV.
A.4.2 Các tầng nhà của nhà kinh doanh dịch vụ karaoke, vũ trường phải có không ít hơn hai lối ra thoát nạn.
Cho phép từ mỗi tầng có một lối ra thoát nạn, khi thỏa mãn đồng thời các điều kiện sau:
- Đối với nhà có chiều cao PCCC không quá 15 m thì diện tích mỗi tầng đang xét không được lớn hơn 300 m2. Đối với nhà có chiều cao PCCC từ trên 15 m đến 21 m thì diện tích mỗi tầng đang xét không được lớn hơn 200 m2;
- Toàn bộ nhà được bảo vệ bằng hệ thống chữa cháy tự động;
- Số người lớn nhất trên mỗi tầng không vượt quá 20 người;
- Phải có thêm ít nhất một lối ra khẩn cấp từ các tầng nhà dẫn ra ban công thoáng, hoặc dẫn lên vùng an toàn trên sân thượng thoáng, hoặc dẫn ra cầu thang bộ loại 3.
CHÚ THÍCH: Ban công thoáng hoặc sân thượng thoáng nghĩa là hở ra ngoài trời và bộ phận bao che (nếu có) phải bảo đảm cho việc thoát nạn, cứu nạn dễ dàng khi lực lượng chữa cháy tiếp cận.
A.4.3 Lối ra thoát nạn từ mỗi tầng nhà kinh doanh dịch vụ karaoke, vũ trường phải dẫn vào buồng thang bộ với cửa ngăn cháy loại 2. Đường thoát nạn trên mỗi tầng nhà phải được bảo vệ bởi bộ phận ngăn cháy có giới hạn chịu lửa như sau:
a) Đối với nhà có bậc chịu lửa I - phải làm bằng vật liệu không cháy với giới hạn chịu lửa ít nhất El 30;
b) Đối với nhà có bậc chịu lửa II, III, IV - phải làm bằng vật liệu không cháy hoặc cháy yếu (Ch1) với giới hạn chịu lửa ít nhất El 15.
A.4.4 Trên đường thoát nạn phải bố trí bổ sung các biển báo chỉ dẫn thoát nạn tầm thấp theo TCVN 13456.
A.4.5 Vật liệu hoàn thiện, trang trí (bao gồm cả tấm trần treo nếu có), vật liệu ốp lát và vật liệu phủ sàn sử dụng trong nhà kinh doanh dịch vụ karaoke, vũ trường phải có cấp nguy hiểm cháy không nguy hiểm hơn CV1.
A.4.6 Phòng trực điều khiển chống cháy (nếu có) phải tuân thủ 6.17.
A.4.7 Hệ thống báo cháy, chữa cháy tự động, phương tiện phòng cháy chữa cháy trong nhà kinh doanh dịch vụ karaoke, vũ trường phải tuân thủ TCVN 3890, TCVN 5738, TCVN 7336.
A.4.8 Chuông, đèn báo cháy phải được bố trí trong các hành lang, sảnh chung và trong từng gian phòng của nhà kinh doanh dịch vụ karaoke, dịch vụ vũ trường. Hệ thống điện của giàn âm thanh, hình ảnh phải được kết nối liên động, tự động ngắt khi có tín hiệu từ hệ thống báo cháy tự động và điều khiển ngắt bằng tay (nút điều khiển ngắt bằng tay được đặt tại phòng trực điều khiển chống cháy hoặc tại khu vực lễ tân, có biển chỉ dẫn) khi có cháy.
A.4.9 Nhà kinh doanh dịch vụ karaoke, vũ trường phải có sân thượng thoáng và lối vào từ trên cao theo quy định tại 6.3.1 đến 6.3.4 để lực lượng chữa cháy tiếp cận được.
A.4.10 Biển quảng cáo của nhà kinh doanh dịch vụ karaoke, vũ trường phải tuân thủ quy định của QCVN 17:2018/BXD.
CHÚ THÍCH: Việc rà soát, khắc phục, bảo đảm an toàn phòng cháy chữa cháy theo quy định của quy chuẩn này đối với các cơ sở kinh doanh dịch vụ karaoke, vũ trường được đưa vào sử dụng trước thời điểm quy chuẩn này có hiệu lực được thực hiện theo hướng dẫn riêng của cơ quan công an có thẩm quyền
PHỤ LỤC B
(quy định)
PHÂN LOẠI VẬT LIỆU XÂY DỰNG THEO ĐẶC TÍNH KỸ THUẬT VỀ CHÁY VÀ YÊU CẦU VỀ AN TOÀN CHÁY ĐỐI VỚI VẬT LIỆU
B.1 Phân loại vật liệu xây dựng theo đặc tính kỹ thuật về cháy
B.1.1 Các loại vật liệu không cháy và vật liệu cháy
Vật liệu xây dựng được phân thành hai loại: vật liệu cháy và vật liệu không cháy theo các trị số của các thông số thử nghiệm cháy như sau:
Vật liệu không cháy là vật liệu bảo đảm trong suốt khoảng thời gian thử nghiệm:
- Mức gia tăng nhiệt độ của lò đốt không quá 50 °C;
- Khối lượng mẫu bị giảm không quá 50 %;
- Thời gian kéo dài của ngọn lửa không quá 10 s.
Vật liệu cháy là vật liệu khi thử nghiệm không thỏa mãn một trong 3 yếu tố trên.
CHÚ THÍCH: Các thông số thử nghiệm được xác định theo tiêu chuẩn TCVN 12695 (ISO 1182) hoặc tiêu chuẩn tương đương.
VÍ DỤ: Một số vật liệu thực tế được xếp vào loại vật liệu không cháy như các vật liệu vô cơ nói chung như bê tông, gạch đất sét nung, gốm, kim loại, khối xây và vữa trát và vật liệu tương tự.
B.1.2 Các nhóm vật liệu cháy theo tính cháy
Bảng B.1 - Nhóm vật liệu cháy theo tính cháy
|
Nhóm cháy của vật liệu |
Các thông số cháy |
|||
|
Nhiệt độ khí trong ống thoát khói, T,°C |
Mức độ hư hỏng làm giảm chiều dài mẫu, L, % |
Mức độ hư hỏng làm giảm khối lượng mẫu, m, % |
Khoảng thời gian tự cháy, s |
|
|
Ch1 - cháy yếu |
≤ 135 |
≤ 65 |
≤ 20 |
0 |
|
Ch2 - cháy vừa phải |
≤ 235 |
≤ 85 |
≤ 50 |
≤ 30 |
|
Ch3 - cháy mạnh vừa |
≤ 450 |
> 85 |
≤ 50 |
≤ 300 |
|
Ch4 - cháy mạnh |
> 450 |
> 85 |
> 50 |
> 300 |
|
CHÚ THÍCH 1: Các thông số thử nghiệm được xác định theo tiêu chuẩn quốc gia hiện hành hoặc tiêu chuẩn tương đương về phương pháp thử tính cháy của vật liệu xây dựng CHÚ THÍCH 2: Nếu thử nghiệm theo TCVN 12695 (ISO 1182), các vật liệu đáp ứng các yêu cầu sau cũng được xếp vào nhóm vật liệu cháy yếu Ch1: - Mức gia tăng nhiệt độ của lò đốt không quá 50 °C; - Khối lượng mẫu bị giảm không quá 50 %; - Thời gian kéo dài của ngọn lửa không quá 20 s. |
||||
B.1.3 Các nhóm vật liệu theo tính bắt cháy
Bảng B.2 - Nhóm vật liệu cháy theo tính bắt cháy
|
Nhóm bắt cháy của vật liệu |
Cường độ thông lượng nhiệt bề mặt tới hạn, kW/m2 |
|
BC1 - khó bắt cháy |
≥ 35 |
|
BC2 - bắt cháy vừa phải |
≥ 20 và < 35 |
|
BC3 - dễ bắt cháy |
< 20 |
|
CHÚ THÍCH: Cường độ thông lượng nhiệt bề mặt tới hạn được xác định theo ISO 5657 hoặc tiêu chuẩn tương đương. |
|
B.1.4 Các nhóm vật liệu theo tính lan truyền lửa trên bề mặt
Bảng B.3 - Nhóm vật liệu cháy theo tính lan truyền lửa trên bề mặt
|
Nhóm lan truyền lửa trên bề mặt của vật liệu |
Cường độ thông lượng nhiệt bề mặt tới hạn, kW/m2 |
|
LT1 - không lan truyền |
≥ 11 |
|
LT2 - lan truyền yếu |
≥ 8 và < 11 |
|
LT3 - lan truyền vừa phải |
≥ 5 và < 8 |
|
LT4 - lan truyền mạnh |
< 5 |
|
CHÚ THÍCH: Các thông số thử nghiệm được xác định theo ISO 5658-2, ISO 9239 hoặc tiêu chuẩn tương đương |
|
B.1.5 Các nhóm vật liệu cháy theo khả năng sinh khói
Bảng B.4 - Nhóm vật liệu cháy theo khả năng sinh khói
|
Nhóm sinh khói của vật liệu |
Giá trị hệ số sinh khói của vật liệu, m2/kg |
|
SK1 - khả năng sinh khói thấp |
≤ 50 |
|
SK2 - khả năng sinh khói vừa phải |
> 50 và ≤ 500 |
|
SK3 - khả năng sinh khói cao |
> 500 |
|
CHÚ THÍCH: Hệ số sinh khói của vật liệu được xác định theo ISO 5660-2 hoặc tiêu chuẩn tương đương. |
|
B.1.6 Các nhóm vật liệu cháy theo độc tính
Bảng B.5 - Nhóm vật liệu cháy theo độc tính
|
Nhóm độc tính của vật liệu |
Chỉ số HCL50, g/m3, tương ứng với thời gian, min, để lộ |
|||
|
5 |
15 |
30 |
60 |
|
|
ĐT1 - độc tính thấp |
> 210 |
> 150 |
> 120 |
> 90 |
|
ĐT2 - độc tính vừa phải |
> 70 và ≤ 210 |
> 50 và ≤ 150 |
> 40 và ≤ 120 |
> 30 và ≤ 90 |
|
ĐT3 - độc tính cao |
> 25 và ≤ 70 |
> 17 và ≤ 50 |
> 13 và ≤ 40 |
> 10 và ≤ 30 |
|
ĐT4 - độc tính đặc biệt cao |
≤ 25 |
≤ 17 |
≤ 13 |
≤ 10 |
|
CHÚ THÍCH: Các thông số thử nghiệm và tính toán chỉ số HCL50 theo ISO 13344 hoặc tiêu chuẩn tương đương. |
||||
B.1.7 Cấp nguy hiểm cháy của vật liệu
Bảng B.6 - cấp nguy hiểm cháy của vật liệu
|
Đặc tính kỹ thuật về cháy của vật liệu |
Cấp nguy hiểm cháy của vật liệu |
|||||
|
CV0 |
CV1 |
CV2 |
CV3 |
CV4 |
CV5 |
|
|
1. Tính cháy |
Không cháy |
Ch1 |
Ch1 |
Ch2 |
Ch3 |
Ch4 |
|
2. Tính bắt cháy |
- |
BC1 |
BC2 |
BC2 |
BC2 |
BC3 |
|
3. Khả năng sinh khói |
- |
SK2 |
SK2 |
SK3 |
SK3 |
SK3 |
|
4. Độc tính của sản phẩm cháy |
- |
ĐT2 |
ĐT2 |
ĐT2 |
ĐT3 |
ĐT4 |
|
5. Tính lan truyền lửa trên bề mặt |
- |
LT1 |
LT1 |
LT2 |
LT2 |
LT4 |
|
CHÚ THÍCH: Danh mục các chỉ tiêu về tính nguy hiểm cháy của vật liệu xây dựng đủ để xác định cấp nguy hiểm cháy của vật liệu từ CV0 đến CV5 được xác định theo Bảng B7. |
||||||
Bảng B.7 - Danh mục các chỉ tiêu về tính nguy hiểm cháy cần thiết phụ thuộc vào công dụng của vật liệu xây dựng
|
Công dụng của vật liệu xây dựng |
Danh mục các chỉ tiêu về tính nguy hiểm cháy cần thiết phụ thuộc vào công dụng của vật liệu xây dựng |
||||
|
Nhóm về tính cháy |
Nhóm về tính lan truyền lửa trên bề mặt |
Nhóm về tính bắt cháy |
Nhóm về khả năng sinh khói |
Nhóm về độc tính của sản phẩm cháy |
|
|
1. Vật liệu hoàn thiện tường và trần, bao gồm cả các lớp phủ từ sơn, men, véc ni1) |
+ |
- |
+ |
+ |
+ |
|
2. Vật liệu phủ sàn, bao gồm cả thảm |
- |
+ |
+ |
+ |
+ |
|
3. Vật liệu lợp mái |
+ |
+ |
+ |
- |
- |
|
4. Vật liệu chống thấm và chống lọt hơi có chiều dày lớn hơn 0,2 mm |
+ |
- |
+ |
- |
- |
|
5. Vật liệu cách nhiệt |
+ |
- |
+ |
+ |
+ |
|
1) Không yêu cầu đánh giá đặc tính kỹ thuật về cháy đối với các lớp phủ có chiều dày đến 0,3 mm, phủ trên nền tường, trần hoặc sàn làm từ vật liệu không cháy CHÚ THÍCH 1: Ký hiệu "+" nghĩa là chỉ tiêu này cần được áp dụng CHÚ THÍCH 2. Ký hiệu “-” nghĩa là chỉ tiêu này không cần áp dụng CHÚ THÍCH 3: Khi áp dụng vật liệu chống thấm là lớp phủ bề mặt của mái thì các chỉ tiêu về tính nguy hiểm cháy cần được áp dụng theo mục 3. |
|||||
B.2 Yêu cầu về an toàn cháy đối với vật liệu
Bảng B.8 - Phạm vi áp dụng của vật liệu hoàn thiện, trang trí, vật liệu ốp lát và vật liệu phủ sàn trên đường thoát nạn
|
Nhóm nguy hiểm cháy theo công năng của nhà, công trình, khoang cháy |
Số tầng và chiều cao của nhà |
Cấp nguy hiểm cháy của vật liệu |
|||
|
Sử dụng cho tường và trần (bao gồm cả tấm trần treo nếu có) |
phủ sàn |
||||
|
Tiền sảnh, buồng thang bộ, sảnh thang máy |
Hành lang chung, sảnh chờ |
Tiền sảnh, buồng thang bộ, sảnh thang máy |
Hành lang chung, sảnh chờ |
||
|
F1.2; F1.3; F2.3; F2.4; F3.1; F3.2; F3.6; F4.2; F4.3; F4.4; F5.1; F5.2, F5.3 |
≤ 9 tầng hoặc ≤ 28 m |
CV2 |
CV3 |
CV3 |
CV4 |
|
> 9 tầng và ≤ 17 tầng; hoặc > 28 m và ≤ 50 m |
CV1 |
CV2 |
CV2 |
CV3 |
|
|
> 17 tầng hoặc > 50 m |
CV0 |
CV1 |
CV1 |
CV2 |
|
|
F1.1; F2.1; F2.2; F3.3; F3.4; F3.5; F4.1 |
Không phụ thuộc vào số tầng hoặc chiều cao |
CV0 |
CV1 |
CV1 |
CV2 |
Bảng B.9 - Phạm vi áp dụng của vật liệu hoàn thiện, trang trí, vật liệu ốp lát và vật liệu phủ sàn trong các gian phòng chung, trừ sân thi đấu thể thao và sàn của phòng nhảy
|
Nhóm nguy hiểm cháy theo công năng của nhà |
Sức chứa của gian phòng, người |
Cấp nguy hiểm cháy của vật liệu |
|
|
sử dụng cho tường và trần (bao gồm cả tấm trần treo nếu có) |
phủ sàn |
||
|
F1.2; F2.3; F2.4; F31; F3.2; F3.6; F4.2; F4.3; F4.4; F5.1 |
> 800 |
CV0 |
CV2 |
|
> 300 và ≤ 800 |
CV1 |
CV2 |
|
|
> 50 và ≤ 300 |
CV2 |
CV3 |
|
|
≤ 50 |
CV3 |
CV4 |
|
|
F1.1; F2.1; F2.2; F3.3, F3.4; F3.5; F4.1 |
> 300 |
CV0 |
CV2 |
|
> 15 và ≤ 300 |
CV1 |
CV2 |
|
|
≤ 15 |
CV3 |
CV4 |
|
PHỤ LỤC C
(quy định)
HẠNG NGUY HIỂM CHÁY VÀ CHÁY NỔ CỦA NHÀ, CÔNG TRÌNH VÀ CÁC GIAN PHÒNG CÓ CÔNG NĂNG SẢN XUẤT VÀ KHO
C.1 Hạng nguy hiểm cháy và cháy nổ của gian phòng
Bảng C.1 - Hạng nguy hiểm cháy và cháy nổ của gian phòng
|
Hạng nguy hiểm cháy của gian phòng |
Đặc điểm của các chất và vật liệu có (hoặc hình thành) trong gian phòng |
|
A Nguy hiểm cháy nổ cao |
- Các chất khi cháy, chất lỏng dễ bắt cháy có nhiệt độ bùng cháy không lớn hơn 28 °C, với khối lượng có thể tạo thành hỗn hợp khí - hơi nguy hiểm nổ, khi bốc cháy tạo ra áp suất nổ dư tính toán trong gian phòng vượt quá 5 kPa. - Các chất và vật liệu có khả năng nổ và cháy khi tác dụng với nước, với ôxy trong không khí hoặc tác dụng với nhau, với khối lượng để áp suất nổ dư tính toán trong gian phòng vượt quá 5 kPa. |
|
B Nguy hiểm cháy nổ |
Các chất bụi hoặc sợi cháy, chất lỏng dễ bắt cháy, có nhiệt độ bùng cháy lớn hơn 28 °C, các chất lỏng cháy, và khối lượng có thể tạo thành hỗn hợp khí - bụi hoặc khí - hơi nguy hiểm nổ, khi bốc cháy tạo ra áp suất nổ dư tính toán trong gian phòng vượt quá 5 kPa. |
|
C1 đến C4 Nguy hiểm cháy |
- Các chất lỏng cháy hoặc khó cháy, các chất và vật liệu cháy và khó cháy ở thể rắn (kể cả bụi và sợi), các chất và vật liệu khi tác dụng với nước, với ôxy trong không khí hoặc tác dụng với nhau có khả năng cháy, ở điều kiện gian phòng có các chất và vật liệu này không thuộc các hạng A hoặc B. - Việc chia gian phòng thành các hạng C1 đến C4 theo trị số tải trọng cháy riêng của các chất chứa trong nó như sau: C1 - Có tải trọng cháy riêng lớn hơn 2 200 MJ/m2; C2 - Có tải trọng cháy riêng từ 1 401 MJ/m2 đến 2 200 MJ/m2; C3 - Có tải trọng cháy riêng từ 181 MJ/m2 đến 1 400 MJ/m2; C4 - Có tải trọng cháy riêng từ 1 MJ/m2 đến 180 MJ/m2. |
|
D Nguy hiểm cháy vừa phải |
Các chất và vật liệu không cháy ở trạng thái nóng, nóng đỏ hoặc nóng chảy, mà quá trình gia công có kèm theo sự phát sinh bức xạ nhiệt, tia lửa và ngọn lửa; các chất rắn, lỏng, khi cháy được sử dụng để làm nhiên liệu. |
|
E Nguy hiểm cháy thấp |
Các chất và vật liệu không cháy ở trạng thái nguội. |
C.2 Hạng nguy hiểm cháy và cháy nổ của nhà, công trình
C.2.1 Hạng A
C.2.1.1 Nhà, công trình được xếp vào hạng A nếu trong nhà, công trình đó có tổng diện tích của các gian phòng hạng A vượt quá 5 % diện tích của tất cả các gian phòng của nhà, hoặc vượt quá 200 m2.
C.2.1.2 Nhà, công trình không được xếp vào hạng A nếu tổng diện tích của các gian phòng hạng A trong nhà, công trình đó không vượt quá 25 % tổng diện tích của tất cả các gian phòng của nhà (nhưng không vượt quá 1 000 m2) và các gian phòng hạng A đó đều được trang bị các thiết bị chữa cháy tự động.
C.2.2 Hạng B
C.2.2.1 Nhà, công trình được xếp vào hạng B nếu đồng thời thỏa mãn 2 điều kiện sau:
- Nhà, công trình không thuộc hạng A;
- Tổng diện tích của các gian phòng hạng A và B vượt quá 5 % tổng diện tích của tất cả các gian phòng của nhà, công trình đó hoặc vượt quá 200 m2.
C.2.2.2 Nhà, công trình không được xếp vào hạng B nếu tổng diện tích của các gian phòng hạng A và B trong nhà, công trình đó không vượt quá 25 % tổng diện tích của tất cả các gian phòng của nhà, công trình (nhưng không vượt quá 1 000 m2) và các gian phòng đó đều được trang bị các thiết bị chữa cháy tự động.
C.2.3 Hạng C
C.2.3.1 Nhà, công trình được xếp vào hạng C nếu đồng thời thỏa mãn 2 điều kiện sau:
Nhà, công trình không thuộc hạng A hoặc B;
Tổng diện tích của các gian phòng hạng A, B và C1, C2 và C3 vượt quá 5 % (10 %, nếu trong nhà, công trình không có các gian phòng hạng A và B) tổng diện tích của tất cả các gian phòng của nhà, công trình.
C.2.3.2 Nhà, công trình không được xếp vào hạng C nếu tổng diện tích của các gian phòng hạng A, B và C1, C2 và C3 trong nhà, công trình đó không vượt quá 25 % tổng diện tích của tất cả các gian phòng của nhà, công trình (nhưng không vượt quá 3 500 m2) và các gian phòng đó đều được trang bị các thiết bị chữa cháy tự động.
C.2.4 Hạng D
C.2.4.1 Nhà, công trình được xếp vào hạng D nếu đồng thời thỏa mãn 2 điều kiện sau:
- Nhà, công trình không thuộc hạng A, B và C;
- Tổng diện tích của các gian phòng hạng A, B, C1, C2, C3 và D vượt quá 5 % tổng diện tích của tất cả các gian phòng của nhà, công trình.
C.2.4.2 Nhà, công trình không được xếp vào hạng D nếu tổng diện tích của các gian phòng hạng A, B, 01, C2, C3 và D trong nhà, công trình đó không vượt quá 25 % tổng diện tích của tất cả các gian phòng của nhà, công trình (nhưng không vượt quá 5 000 m2) và các gian phòng hạng A, B, C1, C2 và C3 đều được trang bị các thiết bị chữa cháy tự động.
C.2.5 Hạng E
Nhà, công trình được xếp vào hạng E nếu nó không thuộc các hạng A, B, C hoặc D.
C.3 Phương pháp xác định các dấu hiệu để xếp hạng
C.3.1 Phương pháp xác định các dấu hiệu để xếp nhà, công trình và gian phòng có công năng sản xuất và kho vào các hạng theo tính nguy hiểm cháy và cháy nổ được quy định trong các tiêu chuẩn.
C.3.2 Một số nhà và gian phòng thuộc các phân xưởng, nhà kho, bộ phận sản xuất được phép phân hạng nguy hiểm cháy và cháy nổ như sau:
C.3.2.1 Hạng A
- Phân xưởng chế tạo và sử dụng Natri và Kali;
- Phân xưởng nhà máy làm sợi nhân tạo, cao su nhân tạo;
- Phân xưởng sản xuất xăng, dầu;
- Phân xưởng Hydro hóa chưng cất và phân chia khí;
- Phân xưởng sản xuất nhiên liệu lỏng nhân tạo, thu hồi và chưng cất các chất lỏng hòa tan hữu cơ với nhiệt độ bùng cháy ở thể hơi từ 28 °C trở xuống;
- Kho chứa bình đựng hơi đốt, kho xăng,
Các căn phòng chứa ắc quy kiềm và axit của nhà máy điện;
Các trạm bơm chất lỏng có nhiệt độ bắt cháy ở thể hơi từ 28 °C trở xuống.
C.3.2.2 Hạng B
- Phân xưởng sản xuất và vận chuyển than cám, mùn cưa, những trạm tẩy rửa các thùng dầu madút và các chất lỏng khác có nhiệt độ bùng cháy ở thể hơi từ 28 °C đến 61 °C;
- Gian nghiền và xay cán chất rắn , phân xưởng chế biến cao su nhân tạo, phân xưởng sản xuất đường, những kho chứa dầu madút của nhà máy điện, những trạm bơm chất lỏng có nhiệt độ bùng cháy ở thể hơi từ 28 °C đến 61 °C.
C.3.2.3 Hạng C
- Phân xưởng xẻ gỗ, phân xưởng làm đồ mỹ thuật bằng gỗ;
- Phân xưởng dệt và may mặc;
- Phân xưởng công nghiệp giấy với quá trình sản xuất khô;
- Xí nghiệp chế biến sơ bộ sợi bông, gai đay và những chất sợi khác.
- Những bộ phận sàng, sấy hạt của các nhà máy xay và kho chứa hạt;
- Phân xưởng tái sinh dầu mỡ, chưng cất nhựa đường, những kho chứa vật liệu cháy và dầu mỡ;
- Những thiết bị phân phối điện có máy ngắt điện và thiết bị điện với lượng dầu mỡ lớn hơn 60 kg cho một đơn vị thiết bị;
- Hành lang băng tải dùng để vận chuyển than đá, than bùn;
- Kho kín chứa than, những kho hàng hỗn hợp, những trạm bơm chất lỏng có nhiệt độ bùng cháy của hơi trên 61 °C.
C.3.2.4 Hạng D
- Phân xưởng đúc và luyện kim, phân xưởng rèn, hàn;
- Trạm sửa chữa đầu máy xe lửa;
- Phân xưởng cán nóng kim loại, gia công kim loại bằng nhiệt;
- Những gian nhà đặt động cơ đốt trong;
- Phòng thí nghiệm điện cao thế;
- Nhà chính của nhà máy điện (gian lò, gian tuốc bin, và các gian tương tự);
- Trạm nồi hơi.
C.3.2.5 Hạng E
- Phân xưởng cơ khí gia công nguội kim loại (trừ hợp kim Magiê);
- Sân chứa liệu (quặng);
- Xưởng sản xuất xút (trừ bộ phận lò);
- Trạm quạt gió, trạm máy ép không khí và các chất khí không cháy;
- Phân xưởng tái sinh axít;
- Trạm sửa chữa xe điện và đầu máy xe điện;
- Phân xưởng dập, khuôn và cán nguội các khoáng chất quặng Amiăng, muối và các nguyên liệu không cháy khác;
- Phân xưởng thuộc công nghiệp dệt và giấy có quá trình sản xuất ướt;
- Phân xưởng chế biến thực phẩm, cá, thịt, sữa;
- Trạm điều khiển điện;
- Công trình làm sạch nước (lắng, lọc, tẩy và các công trình có đặc điểm sử dụng tương tự);
- Trạm bơm và hút nước của nhà máy điện;
- Bộ phận chứa Axit Cacbonic và Clo, các tháp làm lạnh, những trạm bơm chất lỏng không cháy.
PHỤ LỤC D
(quy định)
BẢO VỆ CHỐNG KHÓI
D.1 Yêu cầu chung
D.1.1 Việc bảo vệ chống khói cho nhà và công trình nhằm ngăn chặn và (hoặc) hạn chế sự lan truyền khói và các sản phẩm cháy (sau đây gọi chung là khói) trong nhà, với mục đích:
- Tạo điều kiện an toàn cho người thoát nạn và bảo vệ tài sản khi xảy ra cháy;
- Tạo các điều kiện cần thiết cho lực lượng chữa cháy cứu người, phát hiện và khoanh vùng đám cháy trong nhà.
D.1.2 Các giải pháp bảo vệ chống khói cho nhà và công trình bao gồm:
- Phân chia, cô lập khói thành các vùng khói (bể khói);
- Thông gió tự nhiên khi có cháy;
- Thông gió thoát khói: bao gồm hệ thống hút xả khói và cấp không khí chống khói theo cơ chế tự nhiên hoặc cơ chế cưỡng bức;
- Tạo áp suất dương cho các khu vực cần chống nhiễm khói.
Có thể áp dụng một hoặc đồng thời nhiều giải pháp nêu trên, và phải bảo đảm điều kiện biên dưới của lớp khói không thấp hơn 2 m so với mặt sàn cao nhất có thể đi bộ trong gian phòng hoặc trong hành lang được bảo vệ chống khói.
D.1.3 Các thiết bị của hệ thống hút xả khói và cấp không khí chống khói, không phụ thuộc vào cơ chế hoạt động (tự nhiên hoặc cưỡng bức), phải được dẫn động (kích hoạt) tự động (từ tín hiệu báo cháy tự động hoặc từ thiết bị chữa cháy tự động) và dẫn động (kích hoạt) từ xa (từ phòng trực điều độ của nhà, hoặc phòng trực chống cháy hoặc từ các nút bấm được đặt trên lối thoát nạn hoặc trong các tủ báo cháy. Các nút bấm này phải được bố trí sao cho con người có thể dễ dàng kích hoạt).
Các thiết bị của hệ thống bảo vệ chống khói (bao gồm cả các đường ống) phải được lắp đặt đúng quy định của nhà sản xuất, được kiểm tra định kỳ và bảo trì, bảo dưỡng thích hợp. Các trang bị phụ trợ để lắp đặt, treo các thiết bị phải bảo đảm duy trì khả năng hoạt động của thiết bị theo quy định của nhà sản xuất trong suốt thời gian khai thác sử dụng.
D.1.4 Khi bật hệ thống hút xả khói của nhà khi có cháy, phải tắt các hệ thống thông gió, điều hòa không khí chung và các hệ thống thông gió, điều hòa không khí phục vụ yêu cầu công nghệ (nếu có) của nhà (trừ các hệ thống phục vụ an toàn công nghệ), và đóng các van ngăn cháy thường mở. Việc tắt các hệ thống thông gió, điều hòa không khí có thể là toàn phần hoặc một phần, tùy thuộc vào thiết kế cụ thể, nhưng phải thỏa mãn điều kiện không để lan truyền khói và lửa qua hệ thống thông gió, điều hòa không khí chung.
D.1.5 Hệ thống thông gió thoát khói phải độc lập cho từng khoang cháy, ngoại trừ:
- Các hệ thống cấp không khí tạo áp suất dương để bảo vệ các buồng thang bộ và giếng thang máy liên thông giữa các khoang cháy khác nhau;
- Các hệ thống hút xả khói bảo vệ sảnh thông tầng và các hành lang thông tầng không được ngăn chia thành các khoang cháy.
D.1.6 Hệ thống cấp không khí bù (cấp không khí từ ngoài vào bù lại khối tích khói đã bị hút ra) chỉ được dùng phối hợp với hệ thống hút xả khói. Không được phép áp dụng riêng hệ thống cấp không khí bù mà không có hệ thống hút xả khói tương ứng. Trong mọi trường hợp, chênh lệch áp suất trên các cửa lối ra thoát nạn phải bảo đảm người bình thường có thể dễ dàng mở được cửa.
Không cho phép sử dụng chung hệ thống bảo vệ chống khói đối với các gian phòng có nhóm nguy hiểm cháy theo công năng khác nhau.
D.1.7 Cho phép thay đổi các yêu cầu trong Phụ lục D này trên cơ sở có luận chứng kỹ thuật về các giải pháp bảo vệ chống khói phù hợp với tiêu chuẩn được phép áp dụng.
D.1.8 Đối với một số gian phòng có công năng đặc biệt hoặc có yêu cầu công nghệ đặc biệt (như phòng sạch, kho lạnh), bảo vệ chống khói có thể thực hiện theo tài liệu chuẩn được phép áp dụng. Trong mọi trường hợp, phải đảm bảo an toàn cho người trong nhà thoát nạn và lực lượng cứu hộ tiếp cận.
CHÚ THÍCH: Khái niệm và phân loại phòng sạch xác định theo ISO 14644 hoặc tiêu chuẩn tương đương.
a) Từ hành lang (trừ hành lang bên) và sảnh của nhà ở, nhà công cộng, nhà hành chính - phụ trợ (trong các cơ sở công nghiệp) và nhà hỗn hợp có chiều cao PCCC lớn hơn 28 m;
b) Từ các hành lang và đường hầm đi bộ của tầng hầm, tầng nửa hầm của các nhà ở, nhà công cộng, nhà hành chính - phụ trợ (trong các cơ sở công nghiệp), nhà sản xuất và nhà hỗn hợp, khi các hành lang và đường hầm đi bộ này liên thông với các phòng có người làm việc thường xuyên;
c) Từ các hành lang có chiều dài lớn hơn 15 m mà không có thông gió tự nhiên khi có cháy của các nhà từ 2 tầng trở lên sau:
- Nhà sản xuất, nhà kho hạng A, B và C;
- Nhà công cộng, bao gồm cả nhà hành chính - phụ trợ trong các cơ sở công nghiệp;
- Nhà hỗn hợp;
d) Từ hành lang chung (trừ hành lang bên) và sảnh chung của các nhà có buồng thang bộ không nhiễm khói;
e) Từ các sảnh thông tầng và các hành lang thương mại bao quanh sảnh thông tầng (sau đây gọi chung là sảnh thông tầng);
f) Từ các gian phòng có người làm việc thường xuyên, phục vụ sản xuất hoặc kho, bao gồm cả nơi bảo quản lưu trữ sách, tài liệu, hiện vật, xưởng phục chế của bảo tàng (đối với gian phòng lưu trữ dạng kệ thì không phụ thuộc vào việc có người làm việc thường xuyên), nếu các gian phòng này thuộc hạng A, B, C1 đến C3 trong nhà bậc chịu lửa I đến IV, hoặc hạng C4, D, E trong nhà bậc chịu lửa IV;
g) Từ mỗi gian phòng liên thông với buồng thang bộ không nhiễm khói, hoặc từ mỗi gian phòng không có thông gió tự nhiên khi có cháy sau:
- Diện tích từ 50 m2 trở lên, thường xuyên hoặc nhất thời tập trung đông người (số lượng hơn 1 người trên 1 m2 sàn, không tính diện tích chiếm chỗ của các thiết bị, vật dụng);
- Các gian thương mại, trưng bày sản phẩm hàng hóa ;
- Các phòng đọc và lưu trữ sách của thư viện, các gian triển lãm, bảo tàng có diện tích từ 50 m2 trở lên, có người làm việc thường xuyên, dùng để lưu trữ hoặc sử dụng các chất và vật liệu cháy;
- Phòng thay đồ, gửi đồ diện tích từ 200 m2 trở lên;
h) Các gara giữ xe kín, ngầm hoặc nổi, được xây dựng riêng hoặc là một phần của các nhà có công năng khác và cả các đường dốc được ngăn cách của các gara này.
Cho phép hút xả khói qua hành lang liền kề từ các gian phòng có diện tích đến 200 m2 và hạng nguy hiểm cháy C1, C2, C3, hoặc lưu trữ hoặc sử dụng chất và vật liệu cháy.
Đối với các gian phòng thương mại và văn phòng diện tích không lớn hơn 800 m2, khi khoảng cách từ điểm xa nhất của gian phòng đến lối ra thoát nạn gần nhất không lớn hơn 25 m thì cho phép hút xả khói qua các khu vực liền kề là hành lang, sảnh, sảnh và hành lang thông tầng.
Không cho phép ngăn chia phần hành lang cụt của nhà bằng các vách ngăn có cửa đi thành các đoạn có chiều dài nhỏ hơn 15 m.
CHÚ THÍCH 1: Khu vực không có thông gió tự nhiên khi có cháy là khu vực không có ô cửa mở trên kết cấu xây dựng ngoài (tường ngoài) hoặc khu vực có ô cửa mở nhưng diện tích không đủ để thoát sản phẩm cháy
CHÚ THÍCH 2: Để thông gió tự nhiên khi có cháy cho các hành lang phải bố trí các ô cửa sổ mở hoặc lỗ cửa trên tường ngoài với các yêu cầu sau:
- Mép trên ô cửa không thấp hơn 2,5 m và mép dưới ô cửa không cao quá 1,5 m tính từ mặt sàn,
- Tổng chiều rộng phần mở được của các ở cửa không nhỏ hơn 1,6 m cho mỗi đoạn 30 m chiều dài hành lang,
- Ô cửa phải mở được bằng tay một cách dễ dàng khi người đứng trên sàn.
CHÚ THÍCH 3: Để thông gió tự nhiên khi cháy cho gian phòng phải có các 6 cửa sổ mở hoặc lỗ cửa trên tường ngoài tương tự như CHÚ THÍCH 2, với chiều rộng tối thiểu 0,24 m cho mỗi m chiều dài tường ngoài Nếu tường ngoài chỉ nằm ở 1 phía của gian phòng thì khoảng cách từ tường ngoài này đến tường ngăn bên trong không được lớn hơn 20 m. Nếu các ô cửa mở nằm ở hai kết cấu xây dựng ngoài đối diện nhau thì khoảng cách giữa hai kết cấu đó không lớn hơn 40 m, trong trường hợp này thì chiều dài tường ngoài không được nhỏ hơn 1/3 tổng chiều dài của các tường ngăn phòng bên trong.
D.3 Các yêu cầu tại D.2 không cần áp dụng đối với:
a) Các gian phòng có diện tích đến 200 m2, được trang bị hệ thống chữa cháy tự động bằng bọt hoặc nước (trừ gian phòng hạng nguy hiểm cháy A, B, các gian phòng liên thông trực tiếp với các buồng thang bộ không nhiễm khói N2 và N3, và các gara ô tô kín với việc đỗ xe thủ công (lái xe phải tự đỗ xe));
b) Các gian phòng được trang bị chữa cháy tự động bằng khí, bột, aerosol (trừ các gara giữ xe kín với việc đỗ xe thủ công);
c) Các hành lang và sảnh mà tất cả các gian phòng có cửa đi vào hành lang hoặc sảnh này đã được thiết kế thoát khói trực tiếp;
d) Các gian phòng diện tích đến 50 m2 mỗi gian, nằm trong gian phòng chính đã được thiết kế thoát khói;
e) Các hành lang (trừ các hành lang đã được quy định trong a) và b) của D.2) không có thông gió tự nhiên khi có cháy, nếu không có người làm việc thường xuyên trong tất cả các gian phòng có cửa đi vào hành lang này, và các cửa đi này là cửa ngăn cháy kín khói;
f) Các gian phòng công năng công cộng xây dựng tại tầng 1 (tầng trệt) trong các nhóm F1.2 và F1.3, có kết cấu ngăn cách với khu vực ở và có lối ra thoát nạn trực tiếp ra bên ngoài khi khoảng cách từ điểm xa nhất của gian phòng đến lối ra này không lớn hơn 25 m và diện tích không lớn hơn 800 m2.
D.4 Lưu lượng hút khói phải được xác định bằng tính toán trong những trường hợp sau:
a) Từ các hành lang nêu tại các đoạn a), b), c) và d) của D.2 - cho mỗi đoạn chiều dài không lớn hơn 60 m;
b) Từ các gian phòng nêu tại các đoạn e), f), g) và h) của D.2 - cho mỗi vùng khói có diện tích không lớn hơn 3 000 m2.
D.5 Thiết kế hệ thống hút xả khói bảo vệ các hành lang phải riêng biệt với hệ thống hút xả khói để bảo vệ các phòng.
Cho phép sử dụng hệ thống hút xả khói chung cho việc bảo vệ các hành lang của các gian phòng tại đoạn f) của D.3 và các hành lang của các phòng ở thuộc các tầng trên, nếu toàn bộ các gian phòng này đều nằm trong một khoang cháy.
D.6 Cửa thu khói của các giếng hút khói để hút khói từ các hành lang phải đặt ở dưới trần của hành lang và không được thấp hơn dạ cửa (cạnh trên của lỗ cửa đi) của lối ra thoát nạn. Cho phép đặt các cửa thu khói trên các ống nhánh dẫn vào giếng hút khói. Chiều dài hành lang cần lắp một cửa thu khói như sau:
- Không lớn hơn 45 m nếu là hành lang thẳng;
- Không lớn hơn 30 m nếu là hành lang gấp khúc;
- Không lớn hơn 20 m nếu là hành lang dạng vòng khép kín.
Chiều dài hành lang được tính bằng tổng chiều dài các đoạn hành lang nằm liên tiếp nhau, có hình chữ nhật hoặc gần chữ nhật.
D.7 Khi hút khói trực tiếp từ các gian phòng có diện tích lớn hơn 3 000 m2 thì phải ngăn chia gian phòng (bằng giải pháp bao che (sử dụng các bộ phận ngăn khói) hoặc giải pháp giả định) thành các vùng khói (bể khói) có diện tích không lớn hơn 3 000 m2 và phải tính đến khả năng xảy ra cháy ở một trong các vùng đó. Mỗi cửa thu khói chỉ được tính phục vụ cho một diện tích không quá 1 000 m2.
Nếu sử dụng các bộ phận ngăn khói (màn ngăn khói) để phân chia gian phòng thành các vùng khói thì cho phép thiết kế chỉ bật một hệ thống hút xả khói tại vùng khói có cháy. Nếu sử dụng giải pháp giả định để phân chia gian phòng thành các vùng khói thì phải có cơ sở tính toán tương ứng và phải thiết kế bật tất cả các hệ thống hút xả khói đồng thời cho tất cả các vùng khói.
CHÚ THÍCH: Màn ngăn khói là màn cuốn được điều khiển tự động từ xa, hoặc là bộ phận kết cấu cố định làm từ vật liệu không cho khói xuyên qua với tính cháy không nguy hiểm hơn Ch1 trên nền không cháy (dạng lưới, vải và các dạng khác), được gắn vào trần gian phòng được bảo vệ hoặc gắn vào lỗ mở trên tường và hạ xuống một đoạn không nhỏ hơn chiều dày lớp khói tạo thành, có tác dụng ngăn khói lan cũng như phân chia gian phòng thành các vùng khói.
D.8 Để thoát khói trực tiếp cho các gian phòng và hành lang của nhà một tầng có thể áp dụng hệ thống hút xả khói theo cơ chế cưỡng bức, hoặc theo cơ chế tự nhiên thông qua các giếng (ống) thu khói với van khói, thông qua các cửa nắp hút khói, hoặc thông qua các cửa trời mở và không đón gió vào.
CHÚ THÍCH 1: Hệ thống hút xả khói theo cơ chế cưỡng bức là hệ thống hút xả khói, trong đó lực hút khói ra ngoài được tạo ra và duy trì bởi quạt hút.
CHÚ THÍCH 2: Hệ thống hút xả khói theo cơ chế tự nhiên là hệ thống hút xả khói, trong đó khói tự thoát ra ngoài nhà qua các lỗ mở trên kết cấu bao che của nhà theo các định luật vật lý tự nhiên.
Trong các nhà nhiều tầng cần sử dụng hệ thống hút xả khói theo cơ chế cưỡng bức. Cho phép sử dụng hệ thống hút xả khói theo cơ chế tự nhiên đối với tầng trên cùng của nhà nhiều tầng, thông qua van khói, cửa nắp hút khói, hoặc các cửa trời mở, cửa chớp mở và không đón gió vào.
Đối với nhà một tầng và tầng trên cùng của nhà nhiều tầng, cho phép sử dụng thông gió tự nhiên khi có cháy thay cho hệ thống hút xả khói khi bảo đảm các điều kiện sau:
- Có tính toán thoát khói phù hợp với tiêu chuẩn áp dụng, với các điều kiện bất lợi nhất đối với thoát khói (về nhiệt độ không khí bên ngoài, vận tốc gió bên ngoài, vị trí đám cháy, vị trí và tình trạng mở của các ô cửa và các yếu tố khác). Trong tính toán, biên dưới của lớp khói phải không thấp hơn 2 m tính tới mặt sàn cao nhất có thể đi bộ được trong hành lang hay gian phòng đang xét.
- Các ô cửa, cửa trời được kể đến trong tính toán thoát khói phải luôn mở, hoặc tự động mở khi có cháy và phải đảm bảo có thể điều khiển mở từ xa bởi con người. Diện tích mở của các ô cửa, cửa trời khi có cháy phải phù hợp với tính toán.
D.9 Hệ thống hút xả khói phải đáp ứng các yêu cầu sau:
a) Việc bố trí các quạt hút (bao gồm cả các bộ phận phụ trợ của quạt để kết nối với ống) với giới hạn chịu lửa phù hợp (ví dụ: 0,5 giờ ở 200 °C; 0,5 giờ ở 300 °C; 1 giờ ở 300 °C; 1 giờ ở 400 °C; 1 giờ ở 600 °C hoặc 1,5 giờ ở 600 °C, v.v ...) phải được thực hiện căn cứ vào nhiệt độ tính toán của dòng khi chuyển dịch và hạng của gian phòng được bảo vệ;
b) Các đường ống và kênh dẫn nếu có yêu cầu về giới hạn chịu lửa thì phải được chế tạo từ vật liệu không cháy (bao gồm cả các lớp bọc phủ cách nhiệt và bảo vệ chịu lửa của ống) và có độ kín cấp B (phân cấp độ kín theo xác định theo EN 15727 hoặc tiêu chuẩn tương đương), với giới hạn chịu lửa không thấp hơn:
- El 120 - đối với các đường ống và kênh dẫn khói nằm bên ngoài phạm vi của khoang cháy mà hệ thống đó phục vụ; khi đó tại các vị trí đường ống và kênh khói đi xuyên qua tường, sàn ngăn cháy của khoang cháy không được lắp các van ngăn cháy loại thường mở;
- El 60 - đối với các đường ống và kênh dẫn khói nằm trong phạm vi của khoang cháy được phục vụ, khi sử dụng để thải khói từ các gara để xe dạng kín;
- El 45 - đối với đường ống và kênh dẫn khói theo phương đứng nằm trong phạm vi của khoang cháy được phục vụ, khi hút khói trực tiếp tại khu vực phục vụ đó;
- El 30 - đối với các trường hợp khác nằm trong phạm vi khoang cháy được phục vụ.
CHÚ THÍCH 1: Không yêu cầu giới hạn chịu lửa đối với các đường ống nằm trong kênh hoặc giếng kỹ thuật được bao che bởi các bộ phận ngăn cháy có giới hạn chịu lửa tương đương theo quy định
CHÚ THÍCH 2: Van ngăn cháy loại thường mở là loại van ngăn cháy sẽ bị đóng lại khi có cháy
c) Van ngăn cháy loại thường đóng có giới hạn chịu lửa không thấp hơn:
El 60 - đối với các gara để xe kín;
El 45 - dùng cho việc xả khói trực tiếp từ các gian phòng được bảo vệ;
El 30 - đối với các hành lang và sảnh khi lắp đặt van trên các ống nhánh từ giếng thu khói;
El 30 - đối với các hành lang và sảnh khi lắp đặt van khói trực tiếp trên lỗ mở của giếng thu khói;
d) Khói và sản phẩm cháy phải được xả ra bên ngoài nhà và công trình theo các phương án sau:
- Xả lên trên mái nhà: phải bảo đảm khoảng cách tối thiểu 5 m từ vị trí xả khói đến cửa hút không khí của hệ thống cấp không khí chống khói. Chiều cao ống xả khói tối thiểu 2 m nếu mái làm từ vật liệu cháy, cho phép lấy chiều cao ống xả khói thấp hơn nếu mái được bảo vệ bằng vật liệu không cháy trong khoảng cách tối thiểu 2 m tính từ mép cửa xả khói, hoặc không cần bảo vệ nếu sử dụng quạt hút dạng mái xả khói theo phương đứng;
- Xả qua các cửa nắp hút khói, có xét đến vận tốc gió bên ngoài nhà;
- Qua các ô thoáng, giếng xả khói nằm trên tường ngoài không có ô cửa hoặc cách các ô cửa không nhỏ hơn 5 m theo cả phương ngang và phương đứng và cách mặt đất hơn 2 m. Khoảng cách đến ô cửa có thể giảm xuống nếu bảo đảm vận tốc xả khói không nhỏ hơn 20 m/s;
- Qua các giếng xả khói tách biệt nằm trên mặt đất ở khoảng cách không nhỏ hơn 15 m tính đến tường ngoài có cửa sổ (trong trường hợp các cửa sổ tường ngoài là cửa kín khói, luôn đóng hoặc tự động đóng khi có cháy thì không quy định khoảng cách tối thiểu), hoặc tính từ các miệng hút của hệ thống cấp không khí thông gió của các nhà lân cận hoặc của hệ thống cấp không khí chống khói của nhà đang xét. Cho phép thay thế yêu cầu này bằng các giải pháp xả khói khác theo tài liệu chuẩn được phép áp dụng.
Cho phép xả khói từ các ống hút khói từ tầng hầm và tầng nửa hầm qua các khoang được thông gió. Trong trường hợp này, miệng xả khói phải được đặt cách nền của khoang thông gió ở tầng hầm thứ nhất ít nhất là 6 m (cách kết cấu của một nhà ít nhất là 3 m theo chiều đứng và 1 m theo chiều ngang) hoặc đối với thiết bị xả dạng ướt phải cách mặt sàn ít nhất là 3 m. Không lắp các van khói trên những ống này.
Các quạt hút khói phải được đặt trong các gian phòng riêng biệt với kết cấu bao che có giới hạn chịu lửa không thấp hơn giới hạn chịu lửa yêu cầu của các ống dẫn khói đi xuyên qua các kết cấu bao che này, hoặc đặt ngay trong các gian phòng mà chúng bảo vệ.
Các quạt hút khói có thể đặt trên mái hoặc bên ngoài nhà với kết cấu bao che bảo đảm không cho người lạ tiếp cận. Cho phép đặt quạt hút trên tường ngoài nhà khi đáp ứng các yêu cầu nêu tại đoạn d) của D.9.
D.10 Khi có cháy, hệ thống cấp không khí chống khói phải cấp không khí từ ngoài vào các khu vực sau:
a) Giếng thang máy (khi ở cửa ra giếng thang không có khoang đệm ngăn cháy được bảo vệ bởi hệ thống cấp không khí chống khói) ở những nhà có các buồng thang bộ không nhiễm khói;
b) Khoang đệm của các giếng thang máy chữa cháy;
c) Các buồng thang bộ không nhiễm khói loại N2;
d) Các khoang đệm ngăn cháy tại tầng có cháy của buồng thang bộ không nhiễm khói loại N3;
e) Các khoang đệm ngăn cháy từ cửa ra thang máy vào các gian để xe của ga ra ngầm;
f) Các khoang đệm ngăn cháy ở cầu thang bộ bên trong nhà, dẫn vào các gian phòng của tầng 1 từ các tầng hầm hoặc tầng nửa hầm có các phòng có sử dụng hoặc cất giữ các chất và vật liệu cháy hoặc có các hành lang không có thông gió tự nhiên. Trong các khoang đệm ở các gian xưởng luyện, đúc, cán và các gian gia công nhiệt khác cho phép cấp không khí vào từ các gian thông khí của nhà;
g) Khoang đệm ngăn cháy ở lối vào các sảnh thông tầng và khu bán hàng, từ cao trình của các tầng nửa hầm và tầng hầm;
h) Khoang đệm (nếu có yêu cầu trong quy chuẩn về việc phải bố trí khoang đệm ở buồng thang bộ loại N2) tại tầng có cháy của các buồng thang bộ loại N2 trong các nhà chung cư có chiều cao PCCC trên 75 m, nhà hỗn hợp chiều cao PCCC trên 28 m, và nhà công cộng có chiều cao PCCC trên 50 m;
i) Phần dưới của các gian phòng và hành lang được bảo vệ bằng hệ thống hút xả khói, nhằm bù lại khối tích khói đã bị hút xả ra ngoài;
CHÚ THÍCH: Phần dưới của các gian phòng hoặc hành lang: là phần của gian phòng hoặc hành lang nằm dưới lớp khối khi có cháy, được bảo vệ bởi hệ thống hút xả khói và cấp không khí chống khói.
j) Khoang đệm ngăn cháy, ngăn cách gara ô-tô kín dạng ngầm hoặc nổi với các gian phòng có công năng khác;
k) Khoang đệm ngăn cháy, ngăn chia gian giữ ô-tô với đường dốc kín của các gara ngầm;
l) Khoang đệm ngăn cháy ở các lối vào tiền sảnh từ buồng thang bộ loại N2 có thông với các tầng trên của nhà;
m) Khoang đệm ngăn cháy (sảnh thang máy) ở lối ra từ thang máy vào tầng nửa hầm và các tầng hầm của nhà;
n) Các gian phòng thuộc vùng an toàn (nếu có) trên tầng có đám cháy.
Cho phép cấp không khí tạo áp suất dương vào các hành lang chung của các gian phòng được hút khói trực tiếp, cũng như vào các hành lang liên thông với khu giải trí, phòng chờ, các hành lang khác, các sảnh, sảnh thông tầng được bảo vệ bởi hệ thống hút xả khói.
Trong các khoang đệm ngăn cháy (sảnh thang máy) trên lối ra từ thang máy vào các tầng hầm của nhà, không cho phép cấp không khí từ giếng thang qua các van ngăn cháy thường đóng, nếu tầng dừng chính của các thang này nằm tại tầng 1 của nhà, và các giếng thang được bảo vệ bởi hệ thống cấp không khí chống khói với không khí cấp vào không xuống quá tầng dừng chính.
Khi bố trí vùng an toàn tại các sảnh thang máy, không cho phép cấp không khí vào các sảnh này qua các van ngăn cháy thường đóng từ các giếng thang bên cạnh.
D.11 Lưu lượng không khí cấp vào của hệ thống cấp không khí chống khói phải được tính toán bảo đảm áp suất dư từ 20 Pa đến 50 Pa trong các khu vực sau:
a) Trong các giếng thang máy - khi tất cả các cửa giếng thang máy đều đóng, trừ cửa tại tầng dừng chính của thang máy;
b) Trong các buồng thang bộ loại N2 - lấy giá trị lưu lượng lớn hơn trong các trường hợp sau:
- Trên tầng có cháy: Khi các cửa từ hành lang và sảnh vào đường thoát nạn dẫn vào buồng thang bộ đều mở, hoặc các cửa từ các gian phòng trực tiếp vào buồng thang bộ đều mở;
- Cửa từ trong nhà đi ra ngoài trời mở, còn tất cả các cửa khác dẫn từ hành lang và sảnh trên tất cả các tầng đều đóng;
c) Trong các khoang đệm ngăn cháy tại tầng có cháy (khi các cửa đều đóng).
Lưu lượng không khí cấp vào các khoang đệm ngăn cháy trên lối vào các buồng thang bộ N2 hoặc N3, vào các cầu thang bộ loại 2, trên các lối vào sảnh thông tầng từ các tầng hầm và nửa hầm, trước sảnh thang máy của các ga ra ngầm, cần được tính toán bảo đảm điều kiện vận tốc dòng khí qua lỗ cửa mở không nhỏ hơn 1,3 m/s, có xét đến hoạt động đồng thời của hệ thống hút xả khói.
Giá trị áp suất dương được xác định so với các gian phòng lân cận phòng được bảo vệ.
D.12 Khi tính toán các tham số của hệ thống cấp không khí chống khói cần tuân thủ những yêu cầu sau:
a) Áp suất dư không nhỏ hơn 20 Pa và không lớn hơn 50 Pa trong các khu vực sau:
- Buồng thang bộ N2;
- Các khoang đệm ngăn cháy trên cửa vào các buồng thang bộ N2 hoặc N3 từ các tầng;
- Các khoang đệm ngăn cháy trên cửa vào sảnh thông tầng từ các tầng hầm và nửa hầm;
- Các khoang đệm ngăn cháy ngăn cách gian để ô tô với đường dốc của gara ngầm;
- Các sảnh thang máy của các tầng hầm và nửa hầm;
- Các hành lang chung của các gian phòng được hút khói trực tiếp;
- Các phòng của vùng an toàn (nếu có);
- Trong các giếng thang máy.
b) Khi có cửa hai cánh thì lấy diện tích của cánh lớn hơn, khi đó diện tích này phải không nhỏ hơn diện tích cần thiết cho việc thoát nạn. Trong trường hợp ngược lại phải lấy diện tích toàn bộ cửa hai cánh;
c) Buồng thang máy dừng ở tầng dừng chính;
d) Áp suất dư trên các cửa đóng của lối ra thoát nạn không được vượt quá 50 Pa dưới tác dụng đồng thời của hệ thống hút xả khói và cấp không khí chống khói.
D.13 Hệ thống cấp không khí chống khói phải thỏa mãn các điều kiện sau:
a) Các quạt đẩy có thể được lắp đặt tại các vị trí sau:
- Trong các gian phòng không có các loại quạt khác, với giới hạn chịu lửa của kết cấu bao che không thấp hơn giới hạn chịu lửa yêu cầu đối với các kết cấu giao cắt với đường ống;
- Trong phạm vi một khoang cháy: trong các gian phòng chứa hệ thống cấp không khí vào của hệ thống thông gió chung nếu thỏa mãn yêu cầu của tiêu chuẩn thiết kế, hoặc lắp đặt trực tiếp trong các buồng thang bộ, hành lang và các khoang đệm ngăn cháy;
- Trên mái và ngoài nhà, với kết cấu bao che tránh sự tiếp cận của người lạ.
b) Các đường ống và kênh dẫn phải được chế tạo từ vật liệu không cháy (bao gồm cả các lớp bọc phủ cách nhiệt và bảo vệ chịu lửa của ống), có độ kín cáp B và giới hạn chịu lửa không thấp hơn:
- El 120 - đối với các giếng gom không khí và kênh cấp không khí nằm ngoài phạm vi khoang cháy được phục vụ;
- El 120 - đối với các kênh của hệ thống cấp không khí bảo vệ các khoang đệm của giếng thang máy chữa cháy;
- El 60 - đối với các kênh cấp không khí vào khoang đệm ngăn cháy trên lối vào buồng thang bộ N2 hoặc N3 từ các tầng, cũng như cấp không khí cho các gian của ga ra để xe kín;
- El 30 - đối với các giếng gom không khí và kênh cấp không khí trong phạm vi khoang cháy được phục vụ.
CHÚ THÍCH: Không yêu cầu giới hạn chịu lửa đối với các đường ống nằm trong kênh hoặc giếng kỹ thuật được bao che bởi các bộ phận ngăn cháy có giới hạn chịu lửa tương đương theo quy định.
c) Các cửa lấy không khí bên ngoài phải bố trí cách cửa xả khói của hệ thống hút xả khói không nhỏ hơn 5 m;
d) Các van ngăn cháy thường đóng trong các kênh cấp không khí vào khoang đệm ngăn cháy có giới hạn chịu lửa không nhỏ hơn:
- El 120 - đối với các hệ thống được quy định tại đoạn b) của D.10;
- El 60 - đối với các hệ thống được quy định tại các đoạn d), e), h), j), k), I) của D.10;
- El 30 - đối với các hệ thống trong các đoạn f), g), i) của D.10, cũng như đoạn m) của D.10 có kể đến đoạn b) của D.13.
CHÚ THÍCH: Không yêu cầu giới hạn chịu lửa đối với van ngăn cháy thường đóng trong các đường ống cấp không khí vào nằm trong kênh hoặc giếng kỹ thuật được bao bởi các bộ phận ngăn cháy có giới hạn chịu lửa tương đương theo quy định.
e) Van ngăn cháy không cần lắp đặt cho các hệ thống chỉ phục vụ một khoang đệm ngăn cháy. Không cho phép áp dụng cánh van không cách nhiệt trong các van ngăn cháy thường đóng trong các kênh dẫn không khí vào khoang đệm ngăn cháy;
f) Khoảng cách tối thiểu giữa cửa thu khói của hệ thống hút xả khói và cửa cấp không khí của hệ thống cấp không khí chống khói nêu trong đoạn i) của D.10 không nhỏ hơn 1,5 m theo phương đứng.
D.14 Một số yêu cầu đối với các giải pháp mặt bằng - không gian và các giải pháp cấu tạo
D.14.1 Các kết cấu bao che của các gian phòng để thiết bị thông gió chung nằm trong khoang cháy mà nó phục vụ phải có giới hạn chịu lửa không thấp hơn El 45.
Các kết cấu bao che của các gian phòng để thiết bị thông gió thoát khói - theo các yêu cầu của D.9 và đoạn a) của D.13.
Cửa vào các gian phòng trên phải là cửa ngăn cháy loại 2 (trừ các gian phòng để thiết bị thông gió chung thuộc hạng E).
D.14.2 Các kết cấu bao che của các gian phòng để thiết bị thông gió chung và thông gió thoát khói nằm ngoài khoang cháy mà nó phục vụ phải có giới hạn chịu lửa không thấp hơn El 150. Cửa vào các gian phòng trên phải là cửa ngăn cháy loại 1.
D.14.3 Trong các nhà không được bảo vệ bởi hệ thống hút xả khói, không cho phép cửa thang máy được mở sẵn ở một tầng bất kỳ.
D.14.4 Lối ra từ thang máy vào ga ra ngầm phải có khoang đệm ngăn cháy được bảo vệ bởi hệ thống cấp không khí chống khói.
D.14.5 Để bù lại khối tích khói đã bị hút ra khỏi gian phòng bởi hệ thống hút xả khói, phải thiết kế hệ thống cấp không khí vào theo cơ chế tự nhiên hoặc cưỡng bức:
a) Không khí theo cơ chế tự nhiên có thể cấp vào qua các lỗ mở trên tường bao che ngoài hoặc qua các giếng cấp không khí với van được dẫn động tự động và dẫn động từ xa. Các lỗ mở phải được bố trí ở phần dưới của gian phòng được bảo vệ. Để bù không khí cho các sảnh thông tầng và hành lang bao quanh sảnh thông tầng có thể sử dụng các lỗ cửa đi của lối thoát nạn trực tiếp ra ngoài trời, khi đó các cửa này phải được điều khiển tự động từ xa. Tổng diện tích thông khí của các lỗ cửa mở phải được xác định phù hợp với D.4 và đáp ứng yêu cầu vận tốc dòng khí đi qua các lỗ cửa không vượt quá 6 m/s;
b) Hệ thống cấp không khí chống khói theo cơ chế cưỡng bức có thể được thiết kế độc lập hoặc sử dụng chính các hệ thống cấp không khí vào khoang đệm ngăn cháy hoặc các giếng thang máy (trừ các giếng thang máy chữa cháy và buồng thang bộ N2).
PHỤ LỤC E
(quy định)
KHOẢNG CÁCH PHÒNG CHÁY CHỐNG CHÁY
E.1 Khoảng cách phòng cháy chống cháy giữa các nhà ở, nhà và công trình công cộng, và từ các nhà ở, nhà và công trình công cộng đến nhà và công trình sản xuất, nhà kho
Khoảng cách phòng cháy chống cháy tối thiểu giữa các nhà ở, nhà và công trình công cộng (bao gồm cả nhà văn phòng, nhà dịch vụ) được quy định tại Bảng E.1.
Khoảng cách phòng cháy chống cháy tối thiểu từ các nhà ở, nhà và công trình công cộng nêu trên đến các nhà và công trình sản xuất, nhà kho được quy định tại Bảng E.1.
Trong trường hợp cần bảo đảm khoảng cách giữa các nhà, công trình phục vụ công tác chữa cháy và cứu nạn cứu hộ thì khoảng cách giữa hai công trình phải bảo đảm các yêu cầu tương ứng, ngoài các quy định tại phụ lục này đối với khoảng cách phòng cháy chống cháy.
CHÚ THÍCH: Xác định khoảng cách phòng cháy chống cháy đối với gara để xe tương tự như đối với nhà kho; đối với nhà hành chính - phụ trợ trong các cơ sở công nghiệp - tương tự như nhà công cộng
Bảng E.1 - Khoảng cách phòng cháy chống cháy giữa các nhà ở, nhà và công trình công cộng và khoảng cách từ các nhà ở, nhà và công trình công cộng đến nhà và công trình sản xuất, nhà kho
|
Bậc chịu lửa của nhà thứ nhất |
Cấp nguy hiểm cháy kết cấu của nhà thứ nhất |
Khoảng cách phòng cháy chống cháy tối thiểu, m, đến nhà ở và nhà công cộng thứ hai với bậc chịu lửa và cấp nguy hiểm cháy kết cấu |
|||
|
I, II, III S0 |
II, III S1 |
IV S0, S1 |
IV, V S2, S3 |
||
|
1. Nhà ở và nhà công cộng |
|||||
|
I, II, III |
S0 |
6 |
8 |
8 |
10 |
|
II, III |
S1 |
8 |
10 |
10 |
12 |
|
IV |
S0, S1 |
8 |
10 |
10 |
12 |
|
IV, V |
S2, S3 |
10 |
12 |
12 |
15 |
|
2. Nhà sản xuất và nhà kho |
|||||
|
I, II, III |
S0 |
10 |
12 |
12 |
12 |
|
II, III |
S1 |
12 |
12 |
12 |
12 |
|
IV |
S0, S1 |
12 |
12 |
12 |
15 |
|
IV, V |
S2, S3 |
15 |
15 |
15 |
18 |
|
CHÚ THÍCH 1: Khoảng cách giữa các nhà và công trình là khoảng cách thông thủy giữa các bức tường ngoài hoặc các kết cấu bao che của chúng. Trong trường hợp các kết cấu, cấu kiện của nhà và công trình làm bằng những vật liệu cháy vươn ra hơn 1 m thì phải lấy khoảng cách giữa các kết cấu, cấu kiện này. CHÚ THÍCH 2: Khoảng cách phòng cháy chống cháy giữa các bức tường đặc (không có lỗ cửa sổ) của nhà ở và nhà, công trình công cộng (với bậc chịu lửa I đến IV; cấp nguy hiểm cháy kết cấu S0, S1; lớp hoàn thiện tường ngoài có tính cháy tối thiểu Ch1; lớp mặt ngoài (chống thấm) của mái tối thiểu Ch1 và LT1) đến các nhà và công trình khác cho phép lấy nhỏ hơn 20 % giá trị quy định trong bảng này. CHÚ THÍCH 3: Đối với các nhà 2 tầng kết cấu lắp ghép dạng khung-tấm với bậc chịu lửa V, cũng như các nhà được lợp bằng vật liệu cháy, thì khoảng cách phòng cháy chống cháy cần phải tăng thêm 20 % giá trị quy định trong bảng này. CHÚ THÍCH 4: Không quy định khoảng cách phòng cháy chống cháy giữa các nhà ở, nhà và công trình công cộng nếu bức tường cao và rộng hơn giữa hai nhà, hoặc cả hai bức tường liền kề của hai nhà là các tường ngăn cháy loại 1. CHÚ THÍCH 5: Không quy định khoảng cách giữa các nhà ở, cũng như giữa các nhà ở và các công trình phục vụ sinh hoạt khác khi tổng diện tích đất xây dựng (gồm cả diện tích đất không xây dựng giữa chúng) không vượt quá diện tích tầng cho phép lớn nhất trong phạm vi của một khoang cháy xác định theo bậc chịu lửa và cấp nguy hiểm cháy kết cấu kém nhất (xem Phụ lục H) CHÚ THÍCH 6: Không quy định khoảng cách giữa các nhà và công trình công cộng khi tổng diện tích đất xây dựng (gồm cả diện tích đất không xây dựng giữa chúng) không vượt quá diện tích tầng cho phép lớn nhất trong phạm vi của một khoang cháy (xem Phụ lục H). Chú thích này không áp dụng cho các nhà và công trình thuộc nhóm nguy hiểm cháy theo công năng F1.1 và F4.1, và các cơ sở kinh doanh khí cháy, chất lỏng cháy và chất lỏng dễ bắt cháy, cũng như các chất và vật liệu có khả năng nổ và cháy khi tác dụng với nước, ô xi trong không khí hoặc giữa chúng với nhau CHÚ THÍCH 7: Cho phép giảm 50% khoảng cách phòng cháy chống cháy quy định trong bảng này đối với các nhà, công trình có bậc chịu lửa I và II, cấp nguy hiểm cháy kết cấu S0 và mỗi nhà đều được trang bị chữa cháy tự động toàn nhà. |
|||||
E.2 Khoảng cách phòng cháy chống cháy giữa các nhà sản xuất, nhà kho
Khoảng cách phòng cháy chống cháy giữa các nhà trong một cơ sở công nghiệp , phụ thuộc vào bậc chịu lửa, cấp nguy hiểm cháy kết cấu và hạng nguy hiểm cháy và cháy nổ, phải không nhỏ hơn các giá trị quy định tại Bảng E.2.
Bảng E.2 - Khoảng cách phòng cháy chống cháy giữa các nhà trong một cơ sở công nghiệp
|
Bậc chịu lửa và cấp nguy hiểm cháy kết cấu |
Khoảng cách giữa các nhà, m |
||
|
Bậc chịu lửa I và II. Bậc chịu lửa III và IV với cấp S0 |
Bậc chịu lửa III và cấp S1 |
Bậc chịu lửa III và cấp S2, S3. Bậc chịu lửa IV và cáp S1, S2, S3. Bậc chịu lửa V |
|
|
1. Bậc chịu lửa I và II. Bậc chịu lửa III và IV với cấp S0 |
Nhà hạng D và E: không quy định |
9 |
12 |
|
Nhà hạng A, B, C: 9 m (xem thêm chú thích 3) |
|||
|
2. Bậc chịu lửa III và cấp S1 |
9 |
12 |
15 |
|
3. Bậc chịu lửa III và cấp S2, S3. Bậc chịu lửa IV và cấp S1, S2, S3. Bậc chịu lửa V |
12 |
15 |
18 |
|
CHÚ THÍCH 1: Khoảng cách nhỏ nhất giữa các nhà là khoảng cách thông thủy giữa các bức tường ngoài hoặc kết cấu bên ngoài của chúng. Trong trường hợp nhà hoặc công trình có phần kết cấu, cấu kiện làm bằng những vật liệu cháy vươn ra hơn 1 m thì khoảng cách nhỏ nhất phải lấy là khoảng cách giữa các kết cấu, cấu kiện này. CHÚ THÍCH 2: Không quy định khoảng cách giữa các nhà nhóm F5 trong những trường hợp sau a) Nếu tổng diện tích mặt sàn của từ 2 nhà trở lên có bậc chịu lửa III, IV không vượt quá diện tích lớn nhất cho phép của một tầng trong phạm vi một khoang cháy (Phụ lục H) tính theo hạng nguy hiểm cháy cao nhất, bậc chịu lửa và cấp nguy hiểm cháy thấp nhất. b) Nếu tường của nhà, công trình cao hơn hoặc rộng hơn quay về phía một công trình khác là tường ngăn cháy loại 1. c) Nếu các nhà và công trình có bậc chịu lửa III, không phụ thuộc vào tính nguy hiểm cháy của các gian phòng trong chúng, có các bức tường đứng đối diện là tường ngăn cháy loại 2 với các lỗ mở được chèn bịt bằng cửa ngăn cháy hoặc van ngăn cháy loại 2. Khoảng cách giữa các nhà phải bảo đảm các yêu cầu về khoảng cách phục vụ chữa cháy và cứu nạn cứu hộ. CHÚ THÍCH 3: Khoảng cách đã quy định trong bảng này đối với những nhà có bậc chịu lửa I, II, cũng như các nhà bậc III, IV với cấp S0 thuộc hạng A, B, C được giảm từ 9 m xuống còn 6 m khi các nhà đó được trang bị hệ thống chữa cháy tự động cho toàn nhà. |
|||
E.3 Xác định diện tích lỗ mở không được bảo vệ chống cháy của tường ngoài và giới hạn chịu lửa tương ứng của phần tường ngoài phải bảo vệ chống cháy
E.3.1 Khoảng cách phòng cháy chống cháy theo đường ranh giới được quy định trong phần này để xác định tỷ lệ diện tích tường ngoài không được bảo vệ chống cháy và giới hạn chịu lửa của tường ngoài.
E.3.2 Khoảng cách phòng cháy chống cháy theo đường ranh giới là chiều rộng của khoảng không gian hở và không thay đổi, đo theo phương ngang vuông góc 90° từ tường ngoài nhà tới đường ranh giới của khu đất liền kề, hoặc tới đường trung tuyến của đường giao thông tiếp giáp, hoặc tới một đường quy ước giữa tường ngoài của các nhà liền kề trong cùng một khu đất.
Đường quy ước được xác định như sau:
- Nếu một nhà đã có sẵn thì đường quy ước sẽ song song và cách mặt ngoài của nhà có sẵn một khoảng cách tương ứng với tổng diện tích mặt ngoài không được bảo vệ và giới hạn chịu lửa tường ngoài của nhà này (xem các bằng E.3, E.4a và E.4b);
- Nếu cả hai nhà đều xây mới thì đường quy ước là đường phù hợp với diện tích mặt ngoài không được bảo vệ và giới hạn chịu lửa tường ngoài của cả hai nhà.
- Nếu mặt ngoài nhà có hình dáng không đều thì đường phân định được xác định theo phương án an toàn nhất từ các mặt phẳng tường ngoài khác nhau.
CHÚ THÍCH: Phần không được bảo vệ chống cháy của tường ngoài thường là các phần sau:
a) Các cửa (cửa đi, cửa sổ, và cửa tương tự) không đáp ứng yêu cầu là các cửa ngăn cháy trong tường ngăn cháy;
b) Các phần tường có giới hạn chịu lửa thấp hơn giới hạn chịu lửa của tường ngăn cháy tương ứng;
c) Các phần tường mà bề mặt ngoài có sử dụng các vật liệu có tính nguy hiểm cháy bằng và cao hơn các nhóm Ch1 và LT1.
E.3.3 Tỷ lệ tổng diện tích lớn nhất của các lỗ mở không được bảo vệ chống cháy so với tổng diện tích bề mặt tường đối diện với đường ranh giới được xác định theo các bảng E.4a và E.4b. Giới hạn chịu lửa của phần tường được bảo vệ chống cháy được quy định tại Bảng E.3.
CHÚ THÍCH: Trong mọi trường hợp, phải tuân thủ cả yêu cầu chống cháy lan theo mặt ngoài nhà tại 4.32, 4.33.
Bảng E.3 - Giới hạn chịu lửa của tường ngoài phụ thuộc vào khoảng cách phòng cháy chống cháy theo đường ranh giới
|
Nhà thuộc nhóm nguy hiểm cháy theo công năng |
Khoảng cách phòng cháy chống cháy theo đường ranh giới, m |
Diện tích lỗ mở không được bảo vệ chống cháy |
|||
|
≥ 0 và ≤ 1,5 |
> 1,5 và ≤ 3 |
> 3 và ≤ 9 |
> 9 |
||
|
1. Các nhóm F3.1, F3.2; karaoke, vũ trường thuộc nhóm F2.1; nhóm F5 hạng C |
E 120 |
E 60 |
0 |
0 |
Xem Bảng E.4a |
|
2. Nhóm F5 hạng A, B |
E 180 |
E 120 |
E 60 |
0 |
Xem Bảng E.4a |
|
3. Các nhóm còn lại |
E 60 |
E 60 |
0 |
0 |
Xem Bảng E.4b |
Bảng E.4a - Tỷ lệ tổng diện tích lớn nhất của các lỗ mở không được bảo vệ chống cháy so với tổng diện tích bề mặt tường đối diện với đường ranh giới, % (cho các nhà thuộc mục 1, 2 Bảng E.3)
|
Khoảng cách phòng cháy chống cháy theo đường ranh giới, m |
Tổng diện tích tường ngoài, m2 |
||||||||||||||||||
|
9 |
14 |
19 |
23 |
28 |
37 |
47 |
56 |
65 |
74 |
84 |
93 |
140 |
186 |
233 |
326 |
465 |
930 |
≥ 1860 |
|
|
0,0 |
0 |
0 |
0 |
0 |
0 |
0 |
0 |
0 |
0 |
0 |
0 |
0 |
0 |
0 |
0 |
0 |
0 |
0 |
0 |
|
0,9 |
0 |
0 |
0 |
0 |
0 |
0 |
0 |
0 |
0 |
0 |
0 |
0 |
0 |
0 |
0 |
0 |
0 |
0 |
0 |
|
1,2 |
4 |
4 |
4 |
4 |
4 |
4 |
4 |
4 |
4 |
4 |
4 |
4 |
4 |
4 |
4 |
4 |
4 |
4 |
4 |
|
1,5 |
6 |
5 |
5 |
5 |
5 |
4 |
4 |
4 |
4 |
4 |
4 |
4 |
4 |
4 |
4 |
4 |
4 |
4 |
4 |
|
1,8 |
9 |
7 |
7 |
6 |
6 |
5 |
5 |
5 |
5 |
4 |
4 |
4 |
4 |
4 |
4 |
4 |
4 |
4 |
4 |
|
2,1 |
12 |
10 |
8 |
8 |
7 |
6 |
6 |
5 |
5 |
5 |
5 |
5 |
4 |
4 |
4 |
4 |
4 |
4 |
4 |
|
2,4 |
17 |
13 |
11 |
9 |
9 |
7 |
7 |
6 |
6 |
6 |
5 |
5 |
5 |
4 |
4 |
4 |
4 |
4 |
4 |
|
2,7 |
21 |
16 |
13 |
12 |
10 |
9 |
8 |
7 |
7 |
7 |
6 |
6 |
5 |
5 |
5 |
4 |
4 |
4 |
4 |
|
3,0 |
27 |
20 |
16 |
14 |
12 |
11 |
9 |
8 |
8 |
7 |
7 |
7 |
6 |
5 |
5 |
5 |
4 |
4 |
4 |
|
4,6 |
69 |
48 |
38 |
31 |
27 |
21 |
18 |
16 |
14 |
13 |
12 |
12 |
9 |
8 |
7 |
6 |
6 |
5 |
4 |
|
6,1 |
100 |
91 |
70 |
57 |
48 |
38 |
31 |
27 |
24 |
22 |
20 |
18 |
16 |
12 |
10 |
9 |
7 |
6 |
5 |
|
7,6 |
100 |
100 |
100 |
91 |
77 |
59 |
48 |
41 |
36 |
32 |
29 |
27 |
20 |
16 |
14 |
11 |
9 |
7 |
5 |
|
9,0 |
100 |
100 |
100 |
100 |
100 |
86 |
59 |
56 |
52 |
46 |
42 |
38 |
27 |
22 |
18 |
15 |
12 |
8 |
6 |
|
> 9,0 |
100 |
100 |
100 |
100 |
100 |
100 |
100 |
100 |
100 |
100 |
100 |
100 |
100 |
100 |
100 |
100 |
100 |
100 |
100 |
Bảng E.4b - Tỷ lệ tổng diện tích lớn nhất của các lỗ mở không được bảo vệ chống cháy so với tổng diện tích bề mặt tường đối diện với đường ranh giới, % (cho các nhà thuộc mục 3, Bảng E.3)
|
Khoảng cách phòng cháy chống cháy theo đường ranh giới, m |
Tổng diện tích tường ngoài, m2 |
||||||||||||||||||
|
9 |
14 |
19 |
23 |
28 |
37 |
47 |
56 |
65 |
74 |
84 |
93 |
140 |
186 |
233 |
326 |
465 |
930 |
≥ 1860 |
|
|
0,0 |
0 |
0 |
0 |
0 |
0 |
0 |
0 |
0 |
0 |
0 |
0 |
0 |
0 |
0 |
0 |
0 |
0 |
0 |
0 |
|
0,9 |
0 |
0 |
0 |
0 |
0 |
0 |
0 |
0 |
0 |
0 |
0 |
0 |
0 |
0 |
0 |
0 |
0 |
0 |
0 |
|
1,2 |
9 |
8 |
8 |
8 |
8 |
7 |
7 |
7 |
7 |
7 |
7 |
7 |
7 |
7 |
7 |
7 |
7 |
7 |
7 |
|
1,5 |
12 |
11 |
10 |
9 |
9 |
9 |
8 |
8 |
8 |
8 |
8 |
8 |
7 |
7 |
7 |
7 |
7 |
7 |
7 |
|
1,8 |
18 |
15 |
13 |
12 |
11 |
10 |
10 |
9 |
9 |
9 |
9 |
8 |
8 |
8 |
8 |
7 |
7 |
7 |
7 |
|
2,1 |
25 |
20 |
17 |
15 |
14 |
12 |
11 |
11 |
10 |
10 |
10 |
9 |
9 |
8 |
8 |
8 |
8 |
7 |
7 |
|
2,4 |
33 |
2.5 |
21 |
19 |
17 |
15 |
14 |
13 |
12 |
11 |
11 |
11 |
10 |
9 |
9 |
8 |
8 |
7 |
7 |
|
2,7 |
43 |
32 |
27 |
23 |
21 |
18 |
16 |
15 |
14 |
13 |
12 |
12 |
11 |
10 |
9 |
9 |
8 |
8 |
7 |
|
3,0 |
55 |
40 |
33 |
28 |
25 |
21 |
19 |
17 |
16 |
15 |
14 |
13 |
12 |
11 |
10 |
9 |
9 |
8 |
7 |
|
> 3,0 |
100 |
100 |
100 |
100 |
100 |
100 |
100 |
100 |
100 |
100 |
100 |
100 |
100 |
100 |
100 |
100 |
100 |
100 |
100 |
|
CHÚ THÍCH: Các giá trị trung gian có thể xác định bằng cách nội suy tuyến tính theo các bảng E.4a và E.4b |
|||||||||||||||||||
PHỤ LỤC F
(quy định)
GIỚI HẠN CHỊU LỬA DANH ĐỊNH CỦA MỘT SỐ CẤU KIỆN
F.1 Cấu kiện tường
Bảng F.1 - Tường xây hoặc tường bê tông
|
Kết cấu và vật liệu |
Chiều dày nhỏ nhất không kể lớp trát, mm, để bảo đảm giới hạn chịu lửa |
|||||||||||
|
Cho cấu kiện chịu lực |
Cho cấu kiện không chịu lực |
|||||||||||
|
REI |
REI |
REI |
REI |
REI |
REI |
El |
El |
El |
El |
El |
El |
|
|
240 |
180 |
120 |
90 |
60 |
30 |
240 |
180 |
120 |
90 |
60 |
30 |
|
|
(1) |
(2) |
(3) |
(4) |
(5) |
(6) |
(7) |
(8) |
(9) |
(10) |
(11) |
(12) |
(13) |
|
1. Tường bê tông cốt thép, có chiều dày nhỏ nhất của lớp bê tông bảo vệ cốt thép chịu lực chính là 25 mm: |
|
|
|
|
|
|
|
|
|
|
|
|
|
a) Không trát (được thiết kế theo tiêu chuẩn lựa chọn áp dụng) |
- |
- |
- |
- |
- |
- |
- |
- |
- |
- |
- |
- |
|
b) Trát xi măng cát dày 12,5 mm |
180 |
- |
100 |
100 |
75 |
75 |
- |
- |
- |
- |
- |
- |
|
2. Tường bê tông nhẹ cốt liệu Nhóm 2 3): |
|
|
|
|
|
|
|
|
|
|
|
|
|
Trát xi măng cát dày 13 mm |
- |
- |
- |
- |
- |
- |
150 |
150 |
150 |
150 |
150 |
150 |
|
3. Tường gạch đất sét nung, tường gạch bê tông: |
|
|
|
|
|
|
|
|
|
|
|
|
|
a) Không trát |
200 |
200 |
100 |
100 |
100 |
100 |
170 |
170 |
100 |
100 |
75 |
75 |
|
b) Trát xi măng cát dày 13 mm |
200 |
200 |
100 |
100 |
100 |
100 |
170 |
170 |
100 |
100 |
75 |
75 |
|
4. Tường block bê tông cốt liệu Nhóm 1 1): |
|
|
|
|
|
|
|
|
|
|
|
|
|
a) Không trát |
150 |
- |
100 |
100 |
100 |
100 |
150 |
- |
75 |
75 |
75 |
50 |
|
b) Trát xi măng cát dày 12,5 mm |
150 |
- |
100 |
100 |
100 |
100 |
100 |
- |
75 |
75 |
75 |
50 |
|
5. Tường block bê tông cốt liệu Nhóm 2 2): |
|
|
|
|
|
|
|
|
|
|
|
|
|
a) Không trát |
- |
- |
100 |
100 |
100 |
100 |
150 |
- |
100 |
100 |
75 |
50 |
|
b) Trát xi măng cát dày 12,5 mm |
- |
- |
100 |
100 |
100 |
100 |
150 |
- |
100 |
100 |
75 |
50 |
|
6. Tường block bê tông khi chưng áp có khối lượng thể tích từ 480 kg/m3 đến 1 200 kg/m3: |
180 |
140 |
100 |
100 |
100 |
100 |
100 |
- |
62 |
62 |
50 |
50 |
|
7. Tường block bê tông rỗng, 1 lỗ rỗng theo chiều dày tường, cốt liệu Nhóm 1 1): |
|
|
|
|
|
|
|
|
|
|
|
|
|
a) Không trát |
- |
- |
100 |
100 |
100 |
100 |
150 |
- |
100 |
100 |
75 |
75 |
|
b) Trát xi măng cát dày 12,5 mm |
- |
- |
100 |
100 |
100 |
100 |
150 |
- |
100 |
75 |
75 |
75 |
|
8. Tường block bê tông rỗng, 1 lỗ rỗng theo chiều dày tường, cốt liệu Nhóm 2 2) |
|
|
|
|
|
|
|
|
|
|
|
|
|
a) Không trát |
- |
- |
- |
- |
- |
- |
150 |
- |
150 |
125 |
125 |
125 |
|
b) Trát xi măng cát dày 12,5 mm |
- |
- |
- |
- |
- |
- |
150 |
- |
150 |
125 |
125 |
100 |
|
9. Tường gạch tổ ong đất sét nung với tỷ lệ độ rỗng nhỏ hơn 50 %: |
|
|
|
|
|
|
|
|
|
|
|
|
|
Trát xi măng cát dày 12,5 mm |
- |
- |
- |
- |
- |
- |
- |
- |
- |
- |
100 |
75 |
|
10. Tường rỗng nhiều lớp, có lớp ngoài bằng gạch hoặc block nung làm từ đất sét, bê tông với chiều dày không nhỏ hơn 100 mm và: |
|
|
|
|
|
|
|
|
|
|
|
|
|
a) Lớp trong bằng gạch hoặc block làm từ đất sét hoặc bê tông |
100 |
100 |
100 |
100 |
100 |
100 |
75 |
- |
75 |
75 |
75 |
75 |
|
b) Lớp trong bằng gạch hoặc block bê tông cốt liệu Nhóm 1 1) đặc hoặc có lỗ |
100 |
100 |
100 |
100 |
100 |
100 |
75 |
- |
75 |
75 |
75 |
75 |
|
11. Tường rỗng nhiều lớp có lớp ngoài bằng gạch tổ ong đất sét nung với tỷ lệ độ rỗng nhỏ hơn 50 % như mục 9 và lớp trong bằng block bê tông khí chưng áp có khối lượng thể tích từ 480 kg/m3 đến 1 200 kg/m3: |
150 |
140 |
100 |
100 |
100 |
100 |
75 |
75 |
75 |
75 |
75 |
75 |
|
1) “Cốt liệu Nhóm 1” có nghĩa là xỉ bọt, pumice, xỉ lò cao, tro bay về viên, gạch và các sản phẩm đất sét nung nghiền nhỏ (bao gồm cả keramzit), clinker nung và đá vôi nghiền. 2) “Cốt liệu Nhóm 2” có nghĩa là: sỏi đá lửa, granite và tất cả các dạng đá tự nhiên nghiền ngoại trừ đá vôi. |
||||||||||||
|
CHÚ THÍCH 1: Nguyên tắc xác định giới hạn chịu lửa của các cấu kiện xem thêm phần 2 CHÚ THÍCH 2: Giới hạn chịu lửa trong bảng chỉ dùng cho kết cấu tĩnh định. Các kết cấu siêu tĩnh được tính toán chịu lửa theo tiêu chuẩn lựa chọn áp dụng. CHÚ THÍCH 3: Các thông số của tiết diện cấu kiện phải xét đồng thời. |
||||||||||||
Bảng F.2-Tường ngoài không chịu lực
|
Kết cấu và vật liệu |
Giới hạn chịu lửa |
|
1. Tường bằng khung xương thép có lớp ngoài bằng tấm vật liệu không cháy và lớp trong là: |
|
|
a) Lớp trát xi măng cát hoặc thạch cao dày 12,5 mm trên lưới thép |
El 240 |
|
b) Hai lớp tấm ốp dày 9,5 mm |
El 30 |
|
c) Tấm ốp dày 9,5 mm trát thạch cao dày 12,5 mm |
El 30 |
|
d) Tấm ốp dày 12,5 mm trát thạch cao dày 5 mm |
El 30 |
|
2. Tường bằng khung xương gỗ có lớp ngoài dày 10 mm là xi măng cát hoặc xi măng - vôi 1) và lớp trong là: |
|
|
a) Lớp trát thạch cao dày 16 mm trên lưới thép |
El 60 |
|
b) Tấm ốp dày 9,5 mm trát thạch cao dày 12,5 mm |
El 60 |
|
c) Tấm ốp dày 12,5 mm trát thạch cao dày 5 mm |
El 60 |
|
d) Block bê tông khí chưng áp có chiều dày bằng: |
|
|
50 mm |
El 180 |
|
62 mm |
El 240 |
|
75 mm |
El 240 |
|
100 mm |
El 240 |
|
3. Tường bằng khung xương gỗ có lớp ngoài dày 100 mm là gạch hoặc block làm từ đất sét nung, bê tông, lớp trong trát thạch cao dày 16 mm trên lưới thép |
El 240 |
|
4. Tường bằng khung xương gỗ có lớp ngoài là các tấm ốp chống mép hoặc gỗ dán dày 9,5 mm 1) và lớp trong là: |
|
|
a) Lớp trát thạch cao dày 16 mm trên lưới thép |
El 30 |
|
b) Tấm ốp dày 9,5 mm trát thạch cao dày 12,5 mm |
El 30 |
|
c) Tấm ốp dày 12,5 mm trát bằng thạch cao dày 5 mm |
El 30 |
|
d) Block bê tông khí chưng áp có chiều dày: |
|
|
50 mm |
El 180 |
|
62 mm |
El 240 |
|
75 mm |
El 240 |
|
100 mm |
El 240 |
|
1) Phải coi sự có mặt của màng ngăn các dạng hơi có thể cháy được trong phần chiều dày của những kết cấu này không có đóng góp gì cho khả năng chịu lửa của chúng. |
|
|
CHÚ THÍCH: Nguyên tắc xác định giới hạn chịu lửa của các cấu kiện xem thêm phần 2. |
|
F.2 Dầm bê tông cốt thép
Bảng F.3 - Dầm bê tông cốt thép
|
Đặc điểm |
Giá trị nhỏ nhất của thông số, mm, để bảo đảm giới hạn chịu lửa |
|||||
|
R 240 |
R 180 |
R 120 |
R 90 |
R 60 |
R 30 |
|
|
1. Bê tông dùng cốt liệu gốc silic:
|
|
|
|
|
|
|
|
a) Chiều dày trung bình của lớp bê tông bảo vệ cốt thép chịu lực |
651) |
551) |
451) |
35 |
25 |
15 |
|
b) Chiều rộng tiết diện dầm |
280 |
240 |
180 |
140 |
110 |
80 |
|
2. Bê tông dùng cốt liệu gốc silic có trát xi măng hoặc thạch cao dày 15 mm trên lưới thép mảnh: |
|
|
|
|
|
|
|
a) Chiều dày trung bình của lớp bê tông bảo vệ cốt thép chịu lực chính |
501) |
40 |
30 |
20 |
15 |
15 |
|
b) Chiều rộng tiết diện dầm |
250 |
210 |
170 |
110 |
85 |
70 |
|
3. Bê tông dùng cốt liệu gốc silic có trát vermiculite/thạch cao 2) dày 15 mm: |
|
|
|
|
|
|
|
a) Chiều dày trung bình của lớp bê tông bảo vệ cốt thép chịu lực chính |
25 |
15 |
15 |
15 |
15 |
15 |
|
b) Chiều rộng tiết diện dầm |
170 |
145 |
125 |
85 |
60 |
60 |
|
4. Bê tông dùng cốt liệu nhẹ: |
|
|
|
|
|
|
|
a) Chiều dày trung bình của lớp bê tông bảo vệ cốt thép chịu lực chính |
50 |
45 |
35 |
30 |
20 |
15 |
|
b) Chiều rộng tiết diện dầm |
250 |
200 |
160 |
130 |
100 |
80 |
|
1) Có thể bổ sung cốt thép phụ để giữ lớp bê tông bảo vệ nếu cần. 2) Vermiculite/thạch cao phải có tỷ lệ phối trộn theo thể tích nằm trong khoảng 1,5:1 đến 2:1. |
||||||
|
CHÚ THÍCH 1: Nguyên tắc xác định giới hạn chịu lửa của các cấu kiện xem thêm phần 2. CHÚ THÍCH 2: Giới hạn chịu lửa trong bảng chỉ dùng cho kết cấu tĩnh định. Các kết cấu siêu tĩnh được tính toán chịu lửa theo tiêu chuẩn lựa chọn áp dụng CHÚ THÍCH 3: Các thông số của tiết diện cấu kiện phải xét đồng thời. |
||||||
F.3 Dầm bê tông cốt thép ứng suất trước
Bảng F.4 - Dầm bê tông cốt thép ứng suất trước
|
Đặc điểm |
Giá trị nhỏ nhất của thông số, mm, để bảo đảm giới hạn chịu lửa |
|||||
|
R 240 |
R 180 |
R 120 |
R 90 |
R 60 |
R 30 |
|
|
1. Bê tông dùng cốt liệu gốc silic:
|
|
|
|
|
|
|
|
a) Chiều dày trung bình của lớp bê tông bảo vệ cốt thép ứng suất trước (thanh, cáp) |
1001) |
851) |
651) |
501) |
40 |
25 |
|
b) Chiều rộng tiết diện dầm |
280 |
240 |
180 |
140 |
110 |
80 |
|
2. Bê tông dùng cốt liệu gốc silic, có trát thạch cao dày 15 mm trên lưới thép mảnh: |
|
|
|
|
|
|
|
a) Chiều dày trung bình của lớp bê tông bảo vệ cốt thép ứng suất trước (thanh, cáp) |
901) |
75 |
50 |
40 |
30 |
15 |
|
b) Chiều rộng tiết diện dầm |
250 |
210 |
170 |
110 |
85 |
70 |
|
3. Bê tông dùng cốt liệu gốc silic có trát vermiculite/thạch cao2) dày 15 mm: |
|
|
|
|
|
|
|
a) Chiều dày trung bình của lớp bê tông bảo vệ cốt thép ứng suất trước (thanh, cáp) |
751) |
60 |
45 |
30 |
25 |
15 |
|
b) Chiều rộng tiết diện dầm |
170 |
145 |
125 |
85 |
60 |
60 |
|
4. Bê tông dùng cốt liệu gốc silic có trát vermiculite/thạch cao 2) dày 25 mm: |
|
|
|
|
|
|
|
a) Chiều dày trung bình của lớp bê tông bảo vệ cốt thép ứng suất trước (thanh, cáp) |
50 |
45 |
30 |
25 |
15 |
15 |
|
b) Chiều rộng tiết diện dầm |
140 |
125 |
85 |
70 |
60 |
60 |
|
5. Bê tông dùng cốt liệu nhẹ: |
|
|
|
|
|
|
|
a) Chiều dày trung bình của lớp bê tông bảo vệ cốt thép ứng suất trước (thanh, cáp) |
80 |
65 |
50 |
40 |
30 |
20 |
|
b) Chiều rộng tiết diện dầm |
250 |
200 |
160 |
130 |
100 |
80 |
|
1) Có thể bổ sung cốt thép phụ để giữ lớp bê tông bảo vệ nếu cần 2) Vermiculite/thạch cao phải có tỷ lệ phối trộn theo thể tích nằm trong khoảng 1,5:1 đến 2:1. |
||||||
|
CHÚ THÍCH 1: Nguyên tắc xác định giới hạn chịu lửa của các cấu kiện xem thêm phần 2. CHÚ THÍCH 2: Giới hạn chịu lửa trong bảng chỉ dùng cho kết cấu tĩnh định Các kết cấu siêu tĩnh được tính toán chịu lửa theo tiêu chuẩn lựa chọn áp dụng. CHÚ THÍCH 3: Các thông số của tiết diện cấu kiện phải xét đồng thời. |
||||||
F.4 Cột bê tông cốt thép
Bảng F.5 - Cột bê tông cốt thép (có 4 mặt đều tiếp xúc với lửa)
|
Đặc điểm |
Giá trị nhỏ nhất của thông số, mm, để bảo đảm giới hạn chịu lửa |
|||||
|
R 240 |
R 180 |
R 120 |
R 90 |
R 60 |
R 30 |
|
|
1. Bê tông dùng cốt liệu gốc silic: |
|
|
|
|
|
|
|
a) Không có biện pháp bảo vệ bổ sung |
450 |
400 |
300 |
250 |
200 |
150 |
|
b) Có trát xi măng hoặc thạch cao dày 15 mm trên lưới thép mảnh |
300 |
275 |
225 |
150 |
150 |
150 |
|
c) Có trát vermiculite/thạch cao1) |
275 |
225 |
200 |
150 |
120 |
120 |
|
2. Bê tông dùng cốt liệu đá vôi hoặc gốc silic: |
|
|
|
|
|
|
|
Có thể có cốt thép phụ trong lớp bê tông bảo vệ nếu cần |
300 |
275 |
225 |
200 |
190 |
150 |
|
3. Bê tông cốt liệu nhẹ |
300 |
275 |
225 |
200 |
190 |
150 |
|
1) Vermiculite/thạch cao phải có tỷ lệ phối trộn theo thể tích nằm trong khoảng 1,5:1 đến 2:1 |
||||||
|
CHÚ THÍCH 1: Nguyên tắc xác định giới hạn chịu lửa của các cấu kiện xem thêm phần 2 CHÚ THÍCH 2: Giới hạn chịu lửa trong bảng chỉ dùng cho kết cấu tĩnh định. Các kết cấu siêu tĩnh được tính toán chịu lửa theo tiêu chuẩn lựa chọn áp dụng CHÚ THÍCH 3: Các thông số của tiết diện cấu kiện phải xét đồng thời. |
||||||
Bảng F.6 - Cột bê tông cốt thép (có 1 mặt tiếp xúc với lửa)
|
Đặc điểm |
Giá trị nhỏ nhất của thông số, mm, để bảo đảm giới hạn chịu lửa |
|||||
|
R 240 |
R 180 |
R 120 |
R 90 |
R 60 |
R 30 |
|
|
Bê tông dùng cốt liệu gốc silic: |
|
|
|
|
|
|
|
a) Không có biện pháp bảo vệ bổ sung |
180 |
150 |
100 |
100 |
75 |
75 |
|
b) Có trát vermiculite/thạch cao1) dày 15 mm trên bề mặt tiếp xúc với lửa |
125 |
100 |
75 |
75 |
65 |
65 |
|
1) Vermiculite/thạch cao phải có tỷ lệ phối trộn theo thể tích nằm trong khoảng 1,5:1 đến 2:1. |
||||||
|
CHÚ THÍCH 1: Nguyên tắc xác định giới hạn chịu lửa của các cấu kiện xem thêm phần 2. CHÚ THÍCH 2: Giới hạn chịu lửa trong bảng chỉ dùng cho kết cấu tĩnh định. Các kết cấu siêu tĩnh được tính toán chịu lửa theo tiêu chuẩn lựa chọn áp dụng CHÚ THÍCH 3: Các thông số của tiết diện cấu kiện phải xét đồng thời |
||||||
F.5 Kết cấu thép
Bảng F.7 - Cột chống bằng thép được bọc bảo vệ (khối lượng cột trên 1 m dài không nhỏ hơn 45 kg)
|
Kết cấu và vật liệu bọc bảo vệ |
Chiều dày nhỏ nhất, mm, của lớp bảo vệ để bảo đảm giới hạn chịu lửa |
|||||
|
R 240 |
R 180 |
R 120 |
R 90 |
R 60 |
R 30 |
|
|
A. Lớp bảo vệ dạng đặc 1) (không trát) |
||||||
|
1. Bê tông dùng cốt liệu tự nhiên, không nghèo hơn so với cấp phối 1:2:4 2): |
|
|
|
|
|
|
|
a) Bê tông không tham gia chịu lực, có cốt thép3) |
50 |
- |
25 |
25 |
25 |
25 |
|
b) Bê tông có tham gia chịu lực, có cốt thép (được thiết kế theo tiêu chuẩn lựa chọn áp dụng) |
75 |
- |
50 |
50 |
50 |
50 |
|
2. Gạch đặc đất sét nung |
100 |
75 |
50 |
50 |
50 |
50 |
|
3. Block đặc bằng bê tông xỉ bọt hoặc bê tông pumice, có cốt thép3) tại tất cả các mạch ngang |
75 |
60 |
50 |
50 |
50 |
50 |
|
B. Lớp bảo vệ dạng rỗng 4) |
||||||
|
1. Gạch đặc đất sét nung có cốt thép tại tất cả các mạch ngang, không trát |
115 |
- |
50 |
50 |
50 |
50 |
|
2. Block đặc bằng bê tông xỉ bọt hoặc bê tông pumice có cốt thép 2) tại tất cả các mạch ngang, không trát |
75 |
|
50 |
50 |
50 |
50 |
|
1) Lớp bảo vệ dạng đặc có nghĩa là một vỏ bên ngoài được gắn chặt vào cột thép, không tạo ra khe hở giữa bề mặt tiếp xúc và tất cả các mạch ghép nối trong phần vỏ đó đều kín và đặc. 2) Tỉ lệ 1:2:4 là tỉ lệ xi măng : cát : cốt liệu thô theo thể tích. Bê tông nặng có cấp cường độ tối thiểu B20 theo TCVN 5574:2018 được coi là đạt yêu cầu này. 3) Cốt thép phải là các sợi thép buộc có đường kính không nhỏ hơn 2,3 mm, hoặc là một lưới thép có khối lượng đơn vị không nhỏ hơn 0,48 kg/m2. Trong lớp bê tông bảo vệ, khoảng cách cốt thép, theo bất kỳ chiều nào không được lớn hơn 150 mm. 4) Lớp bảo vệ dạng rỗng có nghĩa là có một khoảng trống giữa vật liệu bảo vệ và thép. Tất cả các lớp bảo vệ dạng rỗng cho cột phải được chèn bít một cách có hiệu quả tại mỗi cao trình sàn. |
||||||
Bảng F.8 - Dầm thép được bọc bảo vệ (khối lượng dầm trên 1 m dài không nhỏ hơn 30 kg)
|
Kết cấu và vật liệu bảo vệ |
Chiều dày nhỏ nhất, mm, của lớp bảo vệ để bảo đảm giới hạn chịu lửa |
|||||
|
R 240 |
R 180 |
R 120 |
R 90 |
R 60 |
R 30 |
|
|
A. Lớp bảo vệ dạng đặc 1) (không trát) |
||||||
|
1. Bê tông cốt liệu tự nhiên, không nghèo hơn so với cấp phối 1:2:4 2): |
|
|
|
|
|
|
|
a) Bê tông không tham gia chịu lực, có cốt thép3) |
75 |
50 |
25 |
25 |
25 |
25 |
|
b) Bê tông có tham gia chịu lực, có cốt thép (được thiết kế theo tiêu chuẩn lựa chọn áp dụng) |
75 |
75 |
50 |
50 |
50 |
50 |
|
B. Lớp bảo vệ dạng rỗng 4) |
||||||
|
1. Lưới thép với: |
|
|
|
|
|
|
|
a) Lớp trát xi măng - vôi với chiều dày |
- |
- |
38 |
25 |
19 |
12,5 |
|
b) Lớp trát thạch cao với chiều dày |
- |
- |
22 |
19 |
16 |
12,5 |
|
1) Lớp bảo vệ dạng đặc có nghĩa là một vỏ bên ngoài được gắn chặt vào thép, không tạo ra khe hở giữa bề mặt tiếp xúc và tất cả các mạch ghép nối trong phần vỏ đó đều kín và đặc. 2) Tỉ lệ 1:2:4 là tỉ lệ xi măng : cát : cốt liệu thô theo thể tích. Bê tông nặng có cấp cường độ tối thiểu B20 theo TCVN 5574:2018 được coi là đạt yêu cầu này. 3) Cốt thép phải là các sợi thép buộc có đường kính không nhỏ hơn 2,3 mm, hoặc là một lưới thép có khối lượng đơn vị không nhỏ hơn 0,48 kg/m2. Trong lớp bê tông bảo vệ, khoảng cách cốt thép, theo bất kỳ chiều nào không được lớn hơn 150 mm. 4) Lớp bảo vệ dạng rỗng có nghĩa là có một khoảng trống giữa vật liệu bảo vệ và thép. Tất cả các lớp bảo vệ dạng rỗng cho cột phải được chèn bịt một cách có hiệu quả tại mỗi cao trình sàn. |
||||||
F.6 Kết cấu sàn
Bảng F.9 - Sàn bê tông cốt thép (cốt liệu gốc silic hoặc đá vôi)
|
Kết cấu sàn |
Giá trị nhỏ nhất của thông số, mm, để bảo đảm giới hạn chịu lửa |
|||||
|
REI |
REI |
REI |
REI |
REI |
REI |
|
|
240 |
180 |
120 |
90 |
60 |
30 |
|
|
(1) |
(2) |
(3) |
(4) |
(5) |
(6) |
(7) |
|
1. Sàn đặc: |
|
|
|
|
|
|
|
a) Chiều dày trung bình của lớp bê tông bảo vệ cốt thép chịu lực |
25 |
25 |
20 |
20 |
15 |
15 |
|
b) Chiều cao tổng thể 1) của tiết diện |
150 |
150 |
125 |
125 |
100 |
100 |
|
2. Sàn có lỗ rỗng với lỗ rỗng tiết diện tròn hoặc hộp. Phần diện tích tiết diện đặc phải chiếm không ít hơn 50 % tổng diện tích tiết diện ngang của sàn: |
|
|
|
|
|
|
|
a) Chiều dày trung bình của lớp bê tông bảo vệ cốt thép chịu lực |
25 |
25 |
20 |
20 |
15 |
15 |
|
b) Chiều dày của phần bê tông dưới lỗ rỗng |
50 |
40 |
40 |
30 |
25 |
20 |
|
c) Chiều cao tổng thể 1) của tiết diện |
190 |
175 |
160 |
140 |
110 |
100 |
|
3. Sàn tiết diện rỗng có một hoặc nhiều khoang rỗng hình hộp theo chiều dọc với chiều rộng lớn hơn chiều cao: |
|
|
|
|
|
|
|
a) Chiều dày trung bình của lớp bê tông bảo vệ cốt thép chịu lực |
25 |
25 |
20 |
20 |
15 |
15 |
|
b) Chiều dày của bản cánh phía dưới |
50 |
40 |
40 |
30 |
25 |
20 |
|
c) Chiều cao tổng thể 1) của tiết diện |
230 |
205 |
180 |
155 |
130 |
105 |
|
4. Sàn sườn có phần rỗng chèn bằng block đất sét nung, hoặc dầm chữ T ngược có phần rỗng được chèn bằng block bê tông hoặc block đất sét nung. Nếu sàn có phần diện tích tiết diện đặc nhỏ hơn 50 % tổng diện tích tiết diện ngang thì phải được trát một lớp dày 15 mm ở bề mặt phía dưới: |
|
|
|
|
|
|
|
a) Chiều dày trung bình của lớp bê tông bảo vệ cốt thép chịu lực |
25 |
25 |
20 |
20 |
15 |
15 |
|
b) Chiều rộng tiết diện sườn hoặc dầm chữ T, đo ở mặt đáy |
125 |
100 |
90 |
80 |
70 |
50 |
|
c) Chiều cao tổng thể 1) của tiết diện |
190 |
175 |
160 |
140 |
110 |
100 |
|
5. Tiết diện chữ T: |
|
|
|
|
|
|
|
a) Chiều dày trung bình của lớp bê tông bảo vệ cốt thép chịu lực, đo ở mặt đáy |
65 2) |
55 2) |
45 2) |
35 |
25 |
15 |
|
b) Chiều dày của lớp bê tông bảo vệ cốt thép chịu lực, đo ở mặt bên |
65 |
55 |
45 |
35 |
25 |
15 |
|
c) Chiều rộng tiết diện sườn hoặc của bụng dầm |
150 |
140 |
115 |
90 |
75 |
60 |
|
d) Chiều dày cánh |
150 |
150 |
125 |
125 |
100 |
90 |
|
6. Tấm sàn tiết diện chữ U ngược có bán kính cong tại giao điểm giữa bản đáy với sườn của sàn không lớn hơn chiều cao tiết diện: |
|
|
|
|
|
|
|
a) Chiều dày trung bình của lớp bê tông bảo vệ cốt thép chịu lực, đo ở mặt đáy |
65 2) |
55 2) |
45 2) |
35 |
25 |
15 |
|
b) Chiều dày của lớp bê tông bảo vệ cốt thép, đo ở mặt bên |
40 |
30 |
25 |
20 |
15 |
10 |
|
c) Chiều rộng của sườn hoặc của chân chữ U |
75 |
70 |
60 |
45 |
40 |
30 |
|
d) Chiều dày tại bản phía trên |
150 |
150 |
125 |
125 |
100 |
90 |
|
7. Tấm sàn tiết diện chữ U ngược hoặc chữ U có bán kính cong tại giao điểm giữa bản đáy với sườn của sàn lớn hơn chiều cao tiết diện: |
|
|
|
|
|
|
|
a) Chiều dày trung bình của lớp bê tông bảo vệ cốt thép chịu lực, đo ở mặt đáy |
65 2) |
55 2) |
45 2) |
35 |
25 |
15 |
|
b) Chiều dày của lớp bê tông bảo vệ cốt thép, đo ở mặt bên |
40 |
30 |
25 |
20 |
15 |
10 |
|
c) Chiều rộng sườn hoặc của chân chữ U |
70 |
60 |
50 |
40 |
35 |
25 |
|
d) Chiều dày tại bản phía trên |
150 |
150 |
100 |
100 |
75 |
65 |
|
1) Có thể cộng thêm chiều dày của các lớp láng hoặc lớp hoàn thiện bằng vật liệu không cháy. 2) Có thể bổ sung cốt thép phụ để giữ lớp bê tông bảo vệ nếu cần. |
||||||
|
CHÚ THÍCH 1: Nguyên tắc xác định giới hạn chịu lửa của các cấu kiện xem thêm phần 2. CHÚ THÍCH 2: Giới hạn chịu lửa trong bảng chỉ dùng cho kết cấu tĩnh định. Các kết cấu siêu tĩnh tính toán chịu lửa theo tiêu chuẩn lựa chọn áp dụng. CHÚ THÍCH 3: Các thông số của tiết diện cấu kiện phải xét đồng thời. |
||||||
Bảng F.10 - Sàn bê tông cốt thép ứng suất trước (cốt liệu gốc silic hoặc đá vôi)
|
Kết cấu sàn |
Giá trị nhỏ nhất của thông số, mm, để bảo đảm giới hạn chịu lửa |
|||||
|
REI 240 |
REI 180 |
REI 120 |
REI 90 |
REI 60 |
REI 30 |
|
|
(1) |
(2) |
(3) |
(4) |
(5) |
(6) |
(7) |
|
1. Sàn đặc: |
|
|
|
|
|
|
|
a) Chiều dày trung bình của lớp bê tông bảo vệ cốt thép ứng suất trước (thanh, cáp) |
65 1) |
50 1) |
40 |
30 |
25 |
15 |
|
b) Chiều cao tổng thể 2) của tiết diện |
150 |
150 |
125 |
125 |
100 |
100 |
|
2. Sàn có lỗ rỗng với lỗ rỗng tiết diện tròn hoặc hộp. Phần diện tích tiết diện đặc phải chiếm không ít hơn 50 % tổng diện tích tiết diện ngang của sàn: |
|
|
|
|
|
|
|
a) Chiều dày trung bình của lớp bê tông bảo vệ cốt thép ứng suất trước (thanh, cáp) |
65 1) |
50 1) |
40 |
30 |
25 |
15 |
|
b) Chiều dày của phần bê tông dưới lỗ rỗng |
50 |
40 |
40 |
30 |
25 |
20 |
|
c) Chiều cao tổng thể 2) của tiết diện |
190 |
175 |
160 |
140 |
110 |
100 |
|
3. Sàn tiết diện rỗng có một hoặc nhiều khoang rỗng hình hộp theo chiều dọc với chiều rộng lớn hơn chiều cao: |
|
|
|
|
|
|
|
a) Chiều dày trung bình của lớp bê tông bảo vệ cốt thép ứng suất trước (thanh, cáp) |
65 1) |
50 1) |
40 |
30 |
25 |
15 |
|
b) Chiều dày của bản cánh phía dưới |
65 |
50 |
40 |
30 |
25 |
15 |
|
c) Chiều cao tổng thể 2) của tiết diện |
230 |
205 |
180 |
155 |
130 |
105 |
|
4. Sàn sườn có phần rỗng chèn bằng block đất sét nung, hoặc dầm chữ T ngược có phần rỗng được chèn bằng block bê tông hoặc block đất sét nung. Nếu sàn có phần diện tích tiết diện đặc nhỏ hơn 50 % tổng diện tích tiết diện ngang thì phải được trát một lớp dày 15 mm ở bề mặt phía dưới: |
|
|
|
|
|
|
|
a) Chiều dày trung bình của lớp bê tông bảo vệ cốt thép ứng suất trước (thanh, cáp) |
651 ) |
50 1) |
40 |
30 |
25 |
15 |
|
b) Chiều rộng tiết diện sườn hoặc dầm chữ T, đo ở mặt đáy |
125 |
100 |
90 |
80 |
70 |
50 |
|
c) Chiều cao tổng thể 2) của tiết diện |
190 |
175 |
160 |
140 |
110 |
100 |
|
5. Tiết diện chữ T: |
|
|
|
|
|
|
|
a) Chiều dày trung bình của lớp bê tông bảo vệ cốt thép ứng suất trước (thanh, cáp), đo ở mặt đáy |
100 1) |
85 1) |
65 1) |
50 1) |
40 |
25 |
|
b) Chiều dày của lớp bê tông bảo vệ cốt thép ứng suất trước (thanh, cáp), đo ở mặt bên |
100 |
85 |
65 |
50 |
40 |
25 |
|
c) Chiều rộng sườn hoặc hoặc của bụng dầm |
250 |
200 |
150 |
110 |
90 |
60 |
|
d) Chiều dày của cánh 2) |
150 |
150 |
125 |
125 |
100 |
90 |
|
6. Tấm sàn tiết diện chữ U ngược có bán kính cong tại giao điểm giữa bản đáy với sườn của sàn không lớn hơn chiều cao tiết diện: |
|
|
|
|
|
|
|
a) Chiều dày trung bình của lớp bê tông bảo vệ cốt thép ứng suất trước (thanh, cáp), đo ở mặt đáy |
100 1) |
85 1) |
65 1) |
50 1) |
40 |
25 |
|
b) Chiều dày của lớp bê tông bảo vệ cốt thép ứng suất trước (thanh, cáp), đo ở mặt bên |
50 |
45 |
35 |
25 |
20 |
15 |
|
c) Chiều rộng của sườn hoặc của chân chữ U |
125 |
100 |
75 |
55 |
45 |
30 |
|
d) Chiều dày tại bản phía trên 2) |
150 |
150 |
125 |
125 |
100 |
90 |
|
7. Tấm sàn tiết diện chữ U ngược hoặc chữ U có bán kính cong tại giao điểm giữa bản đáy với sườn của sàn lớn hơn chiều cao tiết diện: |
|
|
|
|
|
|
|
a) Chiều dày trung bình của lớp bê tông bảo vệ cốt thép ứng suất trước (thanh, cáp), đo ở mặt đáy |
100 1) |
85 1) |
65 1) |
50 1) |
40 |
25 |
|
b) Chiều dày của lớp bê tông bảo vệ cốt thép ứng suất trước (thanh, cáp), đo ở mặt bên |
50 |
45 |
35 |
25 |
20 |
15 |
|
c) Chiều rộng sườn hoặc của chân chữ U |
110 |
90 |
70 |
50 |
40 |
30 |
|
d) Chiều dày tại bản phía trên 2) |
150 |
150 |
125 |
125 |
100 |
90 |
|
1) Có thể bổ sung cốt thép phụ để giữ lớp bê tông bảo vệ nếu cần. 2) Có thể cộng thêm chiều dày của các lớp láng hoặc lớp hoàn thiện bằng vật liệu không cháy. |
||||||
|
CHÚ THÍCH 1: Nguyên tắc xác định giới hạn chịu lửa của các cấu kiện xem thêm phần 2. CHÚ THÍCH 2: Giới hạn chịu lửa trong bảng chỉ dùng cho kết cấu tĩnh định Các kết cấu siêu tĩnh tính toán chịu lửa theo tiêu chuẩn lựa chọn áp dụng CHÚ THÍCH 3: Các thông số của tiết diện cấu kiện phải xét đồng thời. |
||||||
PHỤ LỤC G
(quy định)
KHOẢNG CÁCH ĐẾN CÁC LỐI RA THOÁT NẠN VÀ CHIỀU RỘNG LỐI RA THOÁT NẠN
G.1 Khoảng cách giới hạn cho phép từ chỗ xa nhất (có người sinh hoạt, làm việc) đến lối ra thoát nạn gần nhất
G.1.1 Nhà ở
Khoảng cách giới hạn cho phép từ cửa ra vào của căn hộ (nhà nhóm F1.3) hoặc của phòng ở (nhà nhóm F1.2) đến lối ra thoát nạn gần nhất (buồng thang bộ hoặc lối ra bên ngoài) được quy định tại Bảng G.1.
Bảng G.1 - Khoảng cách giới hạn cho phép từ cửa ra vào của căn hộ hay của phòng ở đến lối ra thoát nạn gần nhất
|
Bậc chịu lửa của nhà |
Cấp nguy hiểm cháy kết cấu của nhà |
Khoảng cách giới hạn cho phép từ cửa ra vào căn hộ hoặc phòng ở đến lối ra thoát nạn gần nhất, m |
|
|
Khi cửa bố trí ở giữa các buồng thang bộ hoặc giữa các lối ra ngoài |
Khi cửa bố trí ở hành lang cụt |
||
|
I, II |
S0 |
40 |
25 |
|
II |
S1 |
30 |
20 |
|
III |
S0 |
30 |
20 |
|
S1 |
25 |
15 |
|
|
IV |
S0 |
25 |
15 |
|
S1, S2 |
20 |
10 |
|
|
V |
Không quy định |
20 |
10 |
G.1.2 Công trình công cộng
G.1.2.1 Khoảng cách giới hạn cho phép theo đường thoát nạn từ cửa ra vào của gian phòng xa nhất của nhà công cộng (trừ các gian phòng vệ sinh, phòng tắm giặt, phục vụ khác) đến lối ra thoát nạn gần nhất (lối ra bên ngoài hoặc vào buồng thang bộ, hoặc đến cầu thang bộ loại 2 mà quy chuẩn này cho phép thoát nạn) được quy định tại Bảng G.2a.
CHÚ THÍCH: Đối với các tầng nhà có hành lang không được bao che bằng các bộ phận ngăn cháy theo quy định tại 3.3 5 hoặc không tuân thủ yêu cầu tại 3.3 4 thì khoảng cách giới hạn cho phép của đường thoát nạn phải tính từ điểm xa nhất của gian phòng trên tầng nhà đó. Chú thích này không áp dụng đối với các tầng nhà có gian phòng karaoke, vũ trường.
G.1.2.2 Khoảng cách giới hạn cho phép từ một điểm bất kỳ của các gian phòng có khối tích khác nhau không có ghế ngồi cho khán giả đến lối ra thoát nạn gần nhất được quy định tại Bảng G.2b. Khi có sự kết hợp các lối thoát nạn chính vào một lối chung thì chiều rộng của lối chung không được nhỏ hơn tổng chiều rộng của các lối thành phần.
Bảng G.2a - Khoảng cách giới hạn cho phép từ cửa ra vào của gian phòng đến lối ra thoát nạn gần nhất đối với nhà công cộng
|
Bậc chịu lửa của nhà |
Khoảng cách, m, khi mật độ dòng người thoát nạn, người/m2 |
||||
|
≤ 2 |
> 2 và ≤ 3 |
> 3 và ≤ 4 |
> 4 và ≤ 5 |
> 5 |
|
|
1. Từ gian phòng có cửa ra bố trí ở giữa các buồng thang bộ hoặc ở giữa các lối ra bên ngoài |
|||||
|
I, II, III |
60 |
50 |
40 |
35 |
20 |
|
IV |
40 |
35 |
30 |
25 |
15 |
|
V |
30 |
25 |
20 |
15 |
10 |
|
2. Từ gian phòng có cửa ra mở vào hành lang cụt hoặc mở vào sảnh chung |
|||||
|
I, II, III |
30 |
25 |
20 |
15 |
10 |
|
IV |
20 |
15 |
15 |
10 |
7 |
|
V |
15 |
10 |
10 |
5 |
5 |
|
CHÚ THÍCH 1: Mật độ dòng người thoát nạn được xác định bằng tỉ số giữa tổng số người phải thoát nạn theo đường thoát nạn và diện tích của đường thoát nạn đó. CHÚ THÍCH 2: Phải áp dụng những giá trị khoảng cách quy định tại Bảng G.2a như sau: Đối với trường mầm non lấy theo cột (6); Đối với các trường phổ thông, trường kỹ thuật dạy nghề, các trường cao đẳng, chuyên nghiệp và đại học lấy theo cột (3); Đối với các cơ sở điều trị nội trú lấy theo cột (5); Đối với khách sạn lấy theo cột (4) Đối với các nhà công cộng khác, mật độ dòng người thoát nạn trong hành lang được lấy cụ thể cho từng dự án. |
|||||
Bảng G.2b - Khoảng cách giới hạn cho phép từ một điểm bất kỳ của gian phòng công cộng không có ghế ngồi cho khán giả đến lối ra thoát nạn gần nhất
|
Gian phòng |
Bậc chịu lửa của nhà |
Khoảng cách giới hạn cho phép, m, từ 1 điểm bất kỳ của gian phòng tới lối ra thoát nạn gần nhất với khối tích gian phòng, 1 000 m3 |
||
|
≤ 5 |
> 5 và ≤ 10 |
> 10 |
||
|
(1) |
(2) |
(3) |
(4) |
(5) |
|
1. Các gian phòng chờ, bán vé, trưng bày triển lãm, khiêu vũ, nghỉ và tương tự. |
I, II |
30 |
45 |
55 |
|
III, IV |
20 |
30 |
Xem chú thích |
|
|
V |
15 |
Xem chú thích |
Xem chú thích |
|
|
2. Các gian phòng ăn, phòng đọc khi diện tích của mỗi lối đi chính tính theo đầu người không nhỏ hơn 0,2 m2. |
I, II |
65 |
Xem chú thích |
Xem chú thích |
|
III, IV |
45 |
Xem chú thích |
Xem chú thích |
|
|
V |
30 |
Xem chú thích |
Xem chú thích |
|
|
3. Các gian phòng thương mại khi diện tích của các lối đi chính tính theo phần trăm diện tích của gian phòng không nhỏ hơn 25 %. |
I, II |
50 |
65 |
80 |
|
III, IV |
35 |
45 |
Xem chú thích |
|
|
V |
25 |
Xem chú thích |
Xem chú thích |
|
|
4. Các gian phòng thương mại khi diện tích của các lối đi chính tính theo phần trăm diện tích của gian phòng nhỏ hơn 25 %. |
I, II |
25 |
30 |
35 |
|
III, IV |
15 |
20 |
Xem chú thích |
|
|
V |
10 |
Xem chú thích |
Xem chú thích |
|
|
CHÚ THÍCH: Khoảng cách giới hạn này phải được xác định theo luận chứng kỹ thuật riêng. |
||||
G.1.3 Nhà sản xuất và nhà kho
G.1.3.1 Khoảng cách giới hạn cho phép từ chỗ làm việc xa nhất trong gian phòng đến lối ra thoát nạn gần nhất (lối ra trực tiếp bên ngoài hoặc buồng thang bộ) quy định tại Bảng G.3. Đối với các gian phòng có diện tích lớn hơn 1 000 m2 thì khoảng cách quy định tại Bằng G.3 bao gồm cả chiều dài của đường đi theo hành lang để đến lối ra.
G.1.3.2 Khoảng cách giới hạn cho phép quy định tại Bảng G.3 với các trị số trung gian của khối tích của gian phòng được xác định bằng nội suy tuyến tính.
G.1.3.3 Khoảng cách giới hạn cho phép trong Bằng G.3 được quy định cho các gian phòng có chiều cao đến 6 m. Khi chiều cao gian phòng lớn hơn 6 m, thì khoảng cách này được tăng lên như sau: khi chiều cao gian phòng đến 12 m thì tăng thêm 20 %; đến 18 m thì tăng thêm 30 %; đến 24 m thì tăng thêm 40 %, nhưng không được lớn hơn 140 m đối với gian phòng có hạng A, B và không lớn hơn 240 m đối với gian phòng có hạng C.
G.1.3.4 Khoảng cách giới hạn cho phép từ cửa ra vào của gian phòng xa nhất có diện tích không lớn hơn 1 000 m2 của nhà sản xuất đến lối ra thoát nạn gần nhất (ra ngoài hoặc vào buồng thang bộ) quy định tại Bằng G.4.
Bảng G.3 - Khoảng cách giới hạn cho phép từ chỗ làm việc xa nhất đến lối ra thoát nạn gần nhất của nhà sản xuất
|
Khối tích của gian phòng, 1000 m3 |
Hạng của gian phòng |
Bậc chịu lửa của nhà |
Cấp nguy hiểm cháy kết cấu của nhà |
Khoảng cách, m, khi mật độ dòng người thoát nạn trên lối đi chung, người/m2 |
||
|
≤ 1 |
> 1 và ≤ 3 |
> 3 và ≤ 5 |
||||
|
≤ 15 |
A, B |
I, II, III, IV |
S0 |
40 |
25 |
15 |
|
C1, C2, C3 |
I, II, III, IV |
S0 |
100 |
60 |
40 |
|
|
III, IV |
S1 |
70 |
40 |
30 |
||
|
V |
S2, S3 |
50 |
30 |
20 |
||
|
30 |
A, B |
I, II, III, IV |
S0 |
60 |
35 |
25 |
|
C1, C2, C3 |
I, II, III, IV |
S0 |
145 |
85 |
60 |
|
|
III, IV |
S1 |
100 |
60 |
40 |
||
|
40 |
A, B |
I, II, III, IV |
S0 |
80 |
50 |
35 |
|
40 |
C1, C2, C3 |
I, II, III, IV |
S0 |
160 |
95 |
65 |
|
III, IV |
S1 |
110 |
65 |
45 |
||
|
50 |
A, B |
I, II, III, IV |
S0 |
120 |
70 |
50 |
|
C1, C2, C3 |
I, II, III, IV |
S0 |
180 |
105 |
75 |
|
|
III, IV |
S1 |
160 |
95 |
65 |
||
|
≥ 60 |
A, B |
I, II, III, IV |
S0 |
140 |
85 |
60 |
|
C1, C2, C3 |
I, II, III, IV |
S0 |
200 |
110 |
85 |
|
|
III, IV |
S1 |
180 |
105 |
75 |
||
|
≥ 80 |
C1, C2, C3 |
I, II, III, IV |
S0 |
240 |
140 |
100 |
|
III, IV |
S1 |
200 |
110 |
85 |
||
|
Không phụ thuộc vào khối tích |
C4, D |
I, II, III, IV |
S0 |
Không hạn chế |
Không hạn chế |
Không hạn chế |
|
III, IV |
S1 |
160 |
95 |
65 |
||
|
V |
Không quy định |
120 |
70 |
50 |
||
|
Không phụ thuộc vào khối tích |
E |
I, II, III, IV |
S0, S1 |
Không hạn chế |
Không hạn chế |
Không hạn chế |
|
IV, V |
S2, S3 |
160 |
95 |
65 |
||
|
CHÚ THÍCH: Mật độ dòng người thoát nạn được xác định bằng tỉ số giữa tổng số người phải thoát nạn theo đường thoát nạn và diện tích của đường thoát nạn đó |
||||||
Bảng G.4 - Khoảng cách giới hạn cho phép từ cửa ra vào của gian phòng sản xuất có diện tích đến 1 000 m2 đến lối ra thoát nạn gần nhất
|
Vị trí cửa ra của gian phòng |
Hạng của gian phòng |
Bậc chịu lửa của nhà |
Cấp nguy hiểm cháy kết cấu của nhà |
Khoảng cách đi theo hành lang, m, từ cửa gian phòng đến lối ra thoát nạn gần nhất, khi mật độ dòng người thoát nạn trên lối đi chung, người/m2 |
|||
|
≤ 2 |
> 2 và ≤ 3 |
> 3 và ≤ 4 |
> 4 và ≤ 5 |
||||
|
1. Ở giữa hai lối ra thoát nạn |
A, B |
I, II, III, IV |
S0 |
60 |
50 |
40 |
35 |
|
C1, C2, C3 |
I, II, III, IV |
S0 |
120 |
95 |
80 |
65 |
|
|
III, IV |
S1 |
85 |
65 |
55 |
45 |
||
|
Không quy định |
S2, S3 |
60 |
50 |
40 |
35 |
||
|
C4, D, E |
I, II, III, IV |
S0 |
180 |
140 |
120 |
100 |
|
|
III, IV |
S1 |
125 |
100 |
85 |
70 |
||
|
Không quy định |
S2, S3 |
90 |
70 |
60 |
50 |
||
|
2. Đi vào hành lang cụt |
Không phụ thuộc vào hạng |
I, II, III, IV |
S0 |
30 |
25 |
20 |
15 |
|
III, IV |
S1 |
20 |
15 |
15 |
10 |
||
|
Không quy định |
S2, S3 |
15 |
10 |
10 |
8 |
||
G.2 Chiều rộng của lối ra thoát nạn
G.2.1 Nhà công cộng
G.2.1.1 Chiều rộng của một lối ra thoát nạn từ hành lang vào buồng thang bộ cũng như chiều rộng bản thang phải được xác định theo số lượng người cần thoát nạn qua lối ra thoát nạn đó và định mức người thoát nạn tính cho 1 mét chiều rộng lối ra (cửa ra). Tùy theo bậc chịu lửa của nhà, được lấy không vượt quá các giá trị sau:
- Nhà có bậc chịu lửa I, II: 165 người/m;
- Nhà có bậc chịu lửa III, IV: 115 người/m;
- Nhà có bậc chịu lửa V: 80 người/m.
G.2.1.2 Để tính toán chiều rộng lối thoát nạn của các nhà thuộc trường học phổ thông, trường học nội trú và các khu nội trú của trưởng, cần xác định số lượng người lớn nhất đồng thời có mặt trên một tầng từ số lượng người lớn nhất của các phòng học, của các phòng dạy nghề và của các phòng ngủ cũng như các gian thể thao, hội nghị, giảng đường nằm trên tầng đó (xem G.3, Bảng G.9).
G.2.1.3 Chiều rộng của các cửa ra từ các phòng học với số lượng học sinh lớn hơn 15 người, không được nhỏ hơn 0,9 m.
G.2.1.4 Chiều rộng của một lối ra thoát nạn từ các gian phòng không có ghế ngồi cho khán giả phải xác định theo số lượng người cần thoát nạn qua lối ra đó theo Bảng G.5, nhưng không được nhỏ hơn 1,2 m ở các gian phòng có sức chứa hơn 50 người.
Bảng G.5 - Số lượng người tối đa trên 1 m chiều rộng của lối ra thoát nạn của các gian phòng không có ghế ngồi cho khán giả của nhà công cộng
|
Gian phòng |
Bậc chịu lửa của nhà |
Số lượng người tối đa trên 1 m chiều rộng của lối ra thoát nạn trong các gian phòng có khối tích, 1 000 m3 |
||
|
≤ 5 |
> 5 và ≤ 10 |
> 10 |
||
|
1. Các gian phòng thương mại khi diện tích của các đường thoát nạn chính không nhỏ hơn 25 % diện tích của gian phòng; Các phòng ăn và phòng đọc khi mật độ dòng người trên mỗi lối đi chính không lớn hơn 5 người/m2. |
I, II |
165 |
220 |
275 |
|
III, IV |
115 |
155 |
Xem chú thích |
|
|
V |
80 |
Xem chú thích |
Xem chú thích |
|
|
2. Các gian phòng thương mại khi diện tích của các đường thoát nạn chính nhỏ hơn 25 % diện tích của gian phòng; và các gian phòng khác. |
I, II |
75 |
100 |
125 |
|
III, IV |
50 |
70 |
Xem chú thích |
|
|
V |
40 |
Xem chú thích |
Xem chú thích |
|
|
CHÚ THÍCH: Số lượng người tối đa trên 1 m chiều rộng của lối ra thoát nạn phải được xác định theo luận chứng kỹ thuật riêng. |
||||
G.2.1.5 Chiều rộng của các lối đi thoát nạn chính trong một gian phòng thương mại phải lấy không nhỏ hơn:
- 1,4 m - khi diện tích thương mại không lớn hơn 100 m2;
- 1,6 m - khi diện tích thương mại lớn hơn 100 m2 và không lớn hơn 150 m2;
- 2,0 m - khi diện tích thương mại lớn hơn 150 m2 và không lớn hơn 400 m2;
- 2,5 m - khi diện tích thương mại lớn hơn 400 m2.
G.2.1.6 Số lượng người trên 1 m chiều rộng đường thoát nạn từ các khán đài của các công trình thể thao và biểu diễn ngoài trời được quy định tại Bảng G.6.
Bảng G.6 - Số lượng người tối đa trên 1 m chiều rộng của đường thoát nạn từ khán đài của các công trình thể thao, biểu diễn ngoài trời
|
Bậc chịu lửa của công trình |
Số lượng người tối đa trên 1 m chiều rộng của đường thoát nạn |
|||
|
Theo các cầu thang bộ của các lối đi chính của khán đài |
Đi qua cửa ra từ các lối đi chính của khán đài |
|||
|
Đi xuống |
Đi lên |
Đi xuống |
Đi lên |
|
|
I, II |
600 |
825 |
620 |
1 230 |
|
III, IV |
420 |
580 |
435 |
860 |
|
V |
300 |
415 |
310 |
615 |
|
CHÚ THÍCH: Tổng số lượng người thoát nạn đi qua một lối ra thoát nạn không được vượt quá 1 500 người khi khán đài cố bậc chịu lửa I, II. Khi khán đài có bậc chịu lửa là bậc III thì tổng số người đi qua phải giảm xuống 30 % và khi bậc IV và bậc V thì phải giảm xuống 50 %. |
||||
G.2.2 Nhà sản xuất và nhà kho
G.2.2.1 Chiều rộng của một lối ra thoát nạn từ một gian phòng phải xác định theo số lượng người cần thoát nạn qua lối ra đó và theo số lượng người trên 1 m chiều rộng của lối ra thoát nạn được quy định tại Bảng G.7, nhưng không nhỏ hơn 0,9 m.
Số lượng người trên 1 m chiều rộng của một lối ra thoát nạn đối với các trị số trung gian của khối tích của nhà được xác định bằng nội suy tuyến tính.
Số lượng người trên 1 m chiều rộng của một lối ra thoát nạn từ các gian phòng có chiều cao lớn hơn 6 m được tăng lên như sau:
- Tăng lên 20 % khi chiều cao PCCC của nhà là 12 m;
- Tăng lên 30 % khi chiều cao PCCC của nhà là 18 m và tăng lên 40 % khi chiều cao PCCC của nhà là 24 m.
Khi chiều cao PCCC của nhà là các trị số trung gian thì số lượng người trên 1 m chiều rộng của một lối ra thoát nạn được xác định nội suy tuyến tính.
Bảng G.7 - số lượng người tối đa trên 1 m chiều rộng của lối ra thoát nạn từ một gian phòng của nhà sản xuất
|
Khối tích của gian phòng, 1 000 m3 |
Hạng của gian phòng |
Bậc chịu lửa của nhà |
Cấp nguy hiểm cháy kết cấu của nhà |
Số lượng người tối đa trên 1 m chiều rộng của lối ra thoát nạn từ một gian phòng, người |
|
≤ 15 |
A, B |
I, II, III, IV |
S0 |
45 |
|
C1, C2, C3 |
I, II, III, IV |
S0 |
110 |
|
|
III, IV |
S1 |
75 |
||
|
Không quy định |
S2, S3 |
55 |
||
|
30 |
A, B |
I, II, III, IV |
S0 |
65 |
|
C1, C2, C3 |
I, II, III, IV |
S0 |
155 |
|
|
III, IV |
S1 |
110 |
||
|
40 |
A, B |
I, II, III, IV |
S0 |
85 |
|
C1 , C2, C3 |
I, II, III, IV |
S0 |
175 |
|
|
III, IV |
S1 |
120 |
||
|
50 |
A, B |
I, II, III, IV |
S0 |
130 |
|
C1, C2, C3 |
I, II, III, IV |
S0 |
195 |
|
|
III, IV |
S1 |
135 |
||
|
≥ 60 |
A, B |
I, II, III, IV |
S0 |
150 |
|
C1, C2, C3 |
I, II, III, IV |
S0 |
220 |
|
|
III, IV |
S1 |
155 |
||
|
≥ 80 |
C1, C2, C3 |
I, II, III, IV |
S0 |
260 |
|
III, IV |
S1 |
220 |
||
|
Không phụ thuộc vào khối tích |
C4, D |
I, II, III, IV |
S0 |
260 |
|
III, IV |
S1 |
180 |
||
|
Không quy định |
S2, S3 |
130 |
||
|
Không phụ thuộc vào khối tích |
E |
Không quy định |
||
G.2.2.2 Chiều rộng của một lối ra thoát nạn từ hành lang ra bên ngoài hoặc vào một buồng thang bộ, phải xác định theo tổng số người cần thoát nạn qua lối ra đó và theo định mức số người trên 1 m chiều rộng của lối ra thoát nạn được quy định tại Bảng G.8 nhưng không nhỏ hơn 0,9 m.
Bảng G.8 - số lượng người tối đa trên 1 m chiều rộng của lối ra thoát nạn từ hành lang của nhà sản xuất
|
Hạng của gian phòng có nguy hiểm cháy cao nhất có lối ra thoát nạn đi vào hành lang |
Bậc chịu lửa của nhà |
Cấp nguy hiểm cháy kết cấu của nhà |
Số lượng người tối đa trên 1 m chiều rộng của lối ra thoát nạn từ hành lang, người |
|
A, B |
I. II, III, IV |
S0 |
85 |
|
C1, C2, C3 |
I, II, III, IV |
S0 |
173 |
|
IV |
S1 |
120 |
|
|
Không quy định |
S2, S3 |
85 |
|
|
C4, D, E |
I, II, III, IV |
S0 |
260 |
|
IV |
S1 |
180 |
|
|
Không quy định |
S2, S3 |
130 |
G.3 Xác định số lượng người lớn nhất trong nhà hoặc trong một phần của nhà
Số lượng người lớn nhất trong một gian phòng, một tầng hoặc nhà là số lượng người lớn nhất theo thiết kế được duyệt. Khi thiết kế không ghi rõ giá trị này, số lượng người lớn nhất được tính bằng tỉ số giữa diện tích sàn của phòng, của tầng hoặc của nhà chia cho hệ số không gian sàn (m2/người) quy định tại Bảng G.9 .
CHÚ THÍCH: “Diện tích sàn" ở đây không kể diện tích của cầu thang bộ, thang máy, khu vệ sinh và các phần phụ trợ khác.
Bảng G.9 - Hệ số không gian sàn 1)
|
Không gian sử dụng 2), 3) |
Hệ số không gian sàn, m2/người |
|
1. Khu vực vui chơi có mái che, hội trường, nơi đông người, câu lạc bộ, sàn nhảy, quầy Bar, Karaoke và các khu tương tự |
1,0 |
|
2. Sảnh lớn, sảnh thông tầng, khu tiếp đón, khu khách chờ, và tương tự |
3,0 |
|
3. Phòng họp, phòng khách, phòng hội thảo, phòng ăn, phòng đọc, phòng học, căng-tin, và các gian phòng tương tự |
1,5 |
|
4. Nhà chợ, trung tâm thương mại, siêu thị |
3,0 |
|
5. Phòng triển lãm hoặc trường quay (phim, thu phát sóng, truyền hình, ghi âm) |
1,5 |
|
6. Các cửa hàng mua bán, dịch vụ: bách hóa, dịch vụ cắt, uốn tóc, giặt là, sửa chữa hoặc tương tự |
3,0 |
|
7. Phòng trưng bày nghệ thuật, khu trưng bày sản phẩm, bảo tàng hoặc các khu tương tự |
5,0 |
|
8. Văn phòng |
6,0 |
|
9. Các cửa hàng bán đồ nội thất lớn như bàn ghế, đồ trải sàn và tương tự |
7,0 |
|
10. Nhà bếp hoặc thư viện |
7,0 |
|
11. Phòng ngủ hoặc phòng ngủ kết hợp phòng học |
8,0 |
|
12. Phòng khách, phòng giải trí |
10,0 |
|
13. Kho hoặc nơi chứa đồ |
30,0 |
|
14. Nhà để xe ôtô |
2 người/ô để xe |
|
1) Nếu không sử dụng các giá trị trong bảng này thì có thể xác định hệ số không gian sàn theo số liệu thực tế lấy từ công trình tương tự. Trong trường hợp này, các số liệu cần phải phản ánh được mật độ sinh hoạt trung bình tại thời điểm cao nhất trong năm. 2) Khi một đối tượng không thuộc không gian sử dụng được nêu ở trên thì có thể lựa chọn giá trị phù hợp từ một đối tượng tương tự. 3) Nếu một khu vực nhà được sử dụng cho nhiều mục đích khác nhau thì cần áp dụng hệ số không gian sàn tính ra số lượng người lớn nhất. Nếu nhà có nhiều khu vực sử dụng khác nhau thì mỗi khu vực cần được tính toán với hệ số không gian tương ứng cho khu vực đó. |
|
PHỤ LỤC H
(quy định)
BẬC CHỊU LỬA VÀ CÁC YÊU CẦU BẢO ĐẢM AN TOÀN CHÁY CHO NHÀ, CÔNG TRÌNH, KHOANG CHÁY
H.1 Nhà ở và ký túc xá kiểu căn hộ
Bậc chịu lửa, cấp nguy hiểm cháy kết cấu, chiều cao PCCC lớn nhất cho phép của nhà và diện tích một tầng trong phạm vi một khoang cháy đối với nhà ở và ký túc xá dạng căn hộ được quy định tại Bảng H.1.
Bảng H.1 - Nhà ở và ký túc xá kiểu căn hộ
|
Bậc chịu lửa của nhà |
Cấp nguy hiểm cháy kết cấu của nhà |
Chiều cao PCCC lớn nhất cho phép của nhà, m |
Diện tích lớn nhất cho phép của một tầng nhà trong phạm vi một khoang cháy, m2 |
|
I |
S0 |
75 |
2 500 |
|
II |
S0 |
50 |
2 500 |
|
S1 |
28 |
2 200 |
|
|
III |
S0 |
28 |
1 800 |
|
S1 |
15 |
1 800 |
|
|
IV |
S0 |
5 |
1 000 |
|
3 |
1 400 |
||
|
S1 |
5 |
800 |
|
|
3 |
1 200 |
||
|
S2 |
5 |
500 |
|
|
3 |
900 |
||
|
V |
Không quy định |
5 |
500 |
|
3 |
800 |
||
|
CHÚ THÍCH 1: Quy định về số tầng (chiều cao PCCC cho phép), diện tích khoang cháy của các nhà thuộc nhóm nguy hiểm cháy theo công năng F1.3 có chiều cao PCCC từ trên 75 m đến 150 m được quy định tại Phụ lục A. CHÚ THÍCH 2: Các bộ phận chịu lực của nhà hai tầng có bậc chịu lửa IV phải có giới hạn chịu lửa không thấp hơn R 30. |
|||
H.2 Nhà công cộng
H.2.1 Quy định chung
Bậc chịu lửa, cấp nguy hiểm cháy kết cấu, chiều cao PCCC lớn nhất cho phép của nhà và diện tích một tầng trong phạm vi một khoang cháy đối với nhà công cộng, bao gồm cả khách sạn và nhà căn hộ cho thuê (apartment) (trừ ký túc xá và khách sạn kiểu căn hộ như nhà ở ) được quy định tại Bảng H.2.
Cần tuân thủ thêm các quy định bổ sung tại H.2.2 đến H.2.12 đối với các nhà công cộng theo nhóm nguy hiểm cháy theo công năng tương ứng.
Bảng H.2 - Nhà công cộng
|
Bậc chịu lửa của nhà |
Cấp nguy hiểm cháy kết cấu của nhà |
Chiều cao PCCC lớn nhất cho phép của nhà, m |
Diện tích lớn nhất cho phép của một tầng nhà trong phạm vi một khoang cháy, m2, với số tầng trên mặt đất (không tính tầng kỹ thuật trên cùng) |
|||||
|
1 |
2 |
3 |
4,5 |
6 đến 9 |
10 đến 16 |
|||
|
I |
S0 |
50 |
6 000 |
5 000 |
5 000 |
5 000 |
5 000 |
2 500 |
|
II |
S0 |
50 |
6 000 |
4 000 |
4 000 |
4 000 |
4 000 |
2 200 |
|
II |
S1 |
28 |
5 000 |
3 000 |
3 000 |
2 000 |
1 200 |
- |
|
III |
S0 |
15 |
3 000 |
2 000 |
2 000 |
1 200 |
- |
- |
|
III |
S1 |
12 |
2 000 |
1 400 |
1 200 |
800 |
- |
- |
|
IV |
S0 |
9 |
2 000 |
1 400 |
- |
- |
- |
- |
|
IV |
S1 |
6 |
2 000 |
1 400 |
- |
- |
- |
- |
|
IV |
S2, S3 |
6 |
1 200 |
800 |
- |
- |
- |
- |
|
V |
S1, S2, S3 |
6 |
1 200 |
800 |
- |
- |
- |
- |
|
CHÚ THÍCH 1: Bảng này được áp dụng cho các loại nhà công cộng được đề cập trong H.2.1, trừ khi có quy định khác nêu tại H.2.2 đến H.2.12. CHÚ THÍCH 2: Dấu “-” trong bảng có nghĩa là nhà có bậc chịu lửa theo hàng ngang tương ứng thì không thể có số tầng theo cột dọc tương ứng. CHÚ THÍCH 3: Trong nhà có bậc chịu lửa IV với chiều cao 2 tầng thì kết cấu chịu lực của nhà phải có giới hạn chịu lửa không thấp hơn R 45. CHÚ THÍCH 4: Quy định về số tầng (chiều cao PCCC cho phép), diện tích khoang cháy của các nhà công cộng có chiều cao PCCC từ trên 50 m đến 150 m được quy định tại Phụ lục A. |
||||||||
H.2.2 Các cơ sở dịch vụ (nhóm F3.5)
Bậc chịu lửa, cấp nguy hiểm cháy kết cấu, chiều cao PCCC lớn nhất cho phép của nhà và diện tích một tầng trong phạm vi một khoang cháy đối với các cơ sở dịch vụ (nhóm F3.5) được quy định tại Bảng H.3. Cần tuân thủ thèm các quy định bổ sung tại H.2.12.
Bảng H.3 - Nhà của các cơ sở dịch vụ (nhóm F3.5)
|
Bậc chịu lửa của nhà |
Cấp nguy hiểm cháy kết cấu |
Chiều cao PCCC lớn nhất cho phép của nhà, m |
Diện tích lớn nhất cho phép của một tầng nhà trong phạm vi một khoang cháy, m2 |
|
|
Nhà 1 tầng |
Nhà nhiều tầng (tối đa 6 tầng không kể đến tầng kỹ thuật trên cùng) |
|||
|
I |
S0 |
18 |
3 000 |
2 500 |
|
II |
S0 |
18 |
3 000 |
2 500 |
|
II |
S1 |
6 |
2 500 |
1 000 |
|
III |
S0 |
6 |
2 500 |
1 000 |
|
III |
S1 |
5 |
1 000 |
- |
|
IV |
S0, S1 |
5 |
1 000 |
- |
|
IV |
S2, S3 |
5 |
500 |
- |
|
V |
S1, S2, S3 |
5 |
500 |
- |
|
CHÚ THÍCH: Dấu “-” nghĩa là nhà có bậc chịu lửa theo hàng ngang tương ứng thì không thể có số tầng theo cột dọc tương ứng. |
||||
H.2.3 Nhà của các cơ sở thương mại (nhóm F3.1)
Bậc chịu lửa, cấp nguy hiểm cháy kết cấu, chiều cao PCCC lớn nhất cho phép của nhà và diện tích một tầng trong phạm vi một khoang cháy đối với nhà của các cơ sở thương mại (nhóm F3.1) được quy định tại Bảng H.4. cần tuân thủ thêm các quy định bổ sung tại H.2.12.
Bảng H.4 - Nhà của các cơ sở thương mại (nhóm F3.1)
|
Bậc chịu lửa của nhà |
Cấp nguy hiểm cháy kết cấu |
Chiều cao PCCC lớn nhất cho phép của nhà, m |
Diện tích lớn nhất cho phép của một tầng nhà trong phạm vi một khoang cháy, m2 |
||
|
1 tầng |
2 tầng |
3 đến 5 tầng |
|||
|
I, II |
S0 |
28 |
3 500 |
3 000 |
2 500 |
|
III |
S0, S1 |
8 |
2 000 |
1 000 |
- |
|
IV |
S0 |
3 |
1 000 |
- |
- |
|
IV, V |
S1, S2, S3 |
3 |
500 |
- |
- |
|
CHÚ THÍCH 1: Dấu "-" nghĩa là nhà có bậc chịu lửa theo hàng ngang tương ứng thì không thể có số tầng theo cột dọc tương ứng. CHÚ THÍCH 2: Trong các nhà của các cơ sở thương mại 1 tầng có bậc chịu lửa III, trừ các cơ sở kinh doanh sơn và véc ni, các vật liệu xây dựng hoàn thiện, phụ tùng, phụ kiện ô tô, thảm, đồ nội thất, cho phép tăng gấp đôi diện tích lớn nhất cho phép của một tầng nhà trong phạm vi một khoang cháy với điều kiện phải ngăn cách gian bán hàng với các phòng khác bằng tường ngăn cháy loại 2. CHÚ THÍCH 3: Đối với nhà cửa hàng có bậc chịu lửa I và II, cho phép tăng chiều cao của nhà thêm 1 tầng nếu chỉ bố trí kho hàng, các gian phòng phục vụ, dịch vụ và phòng kỹ thuật ở tầng trên cùng. CHÚ THÍCH 4: Số tầng được tính bằng số các tầng trên mặt đất không kể tầng kỹ thuật trên cùng. |
|||||
H.2.4 Nhà trẻ, mẫu giáo, mầm non
H.2.4.1 Bậc chịu lửa, cấp nguy hiểm cháy kết cấu, chiều cao PCCC lớn nhất cho phép của nhà (khoang cháy) của nhà trẻ, mẫu giáo, mầm non thông thường (nhóm F1.1) được quy định tại Bảng H.5 phụ thuộc vào số chỗ tối đa trong nhà. Cần tuân thủ các quy định bổ sung đối với các nhà nhóm này và các yêu cầu nêu tại H.2.12.
Bảng H.5 - Nhà trẻ, mẫu giáo, mầm non
|
Số chỗ trong nhà |
Bậc chịu lửa của nhà, không thấp hơn |
Cấp nguy hiểm cháy kết cấu của nhà |
Chiều cao PCCC lớn nhất cho phép của nhà, m (số tầng trên mặt đất không kể tầng kỹ thuật trên cùng) |
|
≤ 50 |
Không quy định |
Không quy định |
3 (1) |
|
≤ 100 |
III |
S0, S1 |
6 (2) |
|
≤ 150 |
II |
S0, S1 |
|
|
≤ 350 |
II |
S0 |
9 (3) |
|
I |
S0 |
H.2.4.2 Các tường (mặt trong), vách ngăn và kết cấu sàn tầng của nhà trẻ, mẫu giáo, mầm non (nhóm F1.1), cũng như câu lạc bộ (nhóm F2.1) trong các nhà có cấp nguy hiểm cháy kết cấu S1 đến S3, bao gồm cả việc sử dụng kết cấu/cấu kiện gỗ, phải có cấp nguy hiểm cháy K0.
H.2.4.3 Nhà trẻ, mẫu giáo, mầm non, không phụ thuộc vào số chỗ, phải có chiều cao không được vượt quá:
- Hai tầng - đối với nhà trẻ, mẫu giáo, mầm non dành cho trẻ khiếm khuyết về thể chất và (hoặc) trí tuệ;
- Một tầng - đối với nhà trẻ, mẫu giáo, mầm non dành cho trẻ bị khiếm thị.
Trong các nhà trẻ 3 tầng thì các phòng cho lớp bé cần bố trí ở tầng 1.
H.2.4.4 Trên tầng 3 của nhà trẻ cho phép bố trí các phòng dành cho lớp lớn, phòng học nhạc và thể chất, phòng chơi, phòng phục vụ. Khi đó các phòng có diện tích lớn hơn 50 m2 thì phải có một trong các lối ra thoát nạn dẫn trực tiếp vào buồng thang bộ.
Trong nhà trẻ, mẫu giáo, mầm non, các hành lang nối các buồng thang bộ cần được ngăn cách với các phòng bằng vách ngăn cháy không thấp hơn loại 2. Các cửa vào các phòng phải được chèn kín.
H.2.5 Nhà của trường học phổ thông (nhóm F4.1) và nhà ngủ của các trường nội trú (nhóm F1.1)
H.2.5.1 Bậc chịu lửa, cấp nguy hiểm cháy kết cấu và chiều cao PCCC lớn nhất cho phép của nhà các trường tiểu học, trung học cơ sở, trung học phổ thông, bổ túc, nhà khối học của trường nội trú (nhóm F4.1), nhà ngủ của trường nội trú (F1.1) được xác định theo Bảng H.6. Diện tích lớn nhất cho phép của một tầng trong phạm vi một khoang cháy của những nhà này được xác định theo Bảng H.2. Cần tuân thủ các quy định bổ sung đối với các nhà nhóm này và các yêu cầu nêu tại H.2.12.
Bảng H.6 - Nhà của trường học phổ thông (nhóm F4.1) và nhà ngủ của các trường nội trú (nhóm F1.1)
|
Số học sinh hoặc số chỗ trong nhà |
Cấp nguy hiểm cháy kết cấu |
Bậc chịu lửa tối thiểu |
Chiều cao PCCC lớn nhất cho phép của nhà, m (số tầng) |
|
≤ 100 |
Không quy định |
Không quy định |
3 (1) |
|
≤ 270 |
S1 |
III |
3 (1) |
|
≤ 350 |
S0 |
III |
7 (2) |
|
S1 |
II |
7 (2) |
|
|
≤ 600 |
S0 |
II |
11 (3) |
|
Không hạn chế |
S0 |
I |
19 (5) |
|
Nhà ngủ |
|||
|
≤ 40 |
Không quy định |
Không quy định |
3 (1) |
|
≤ 80 |
S1, S2, S3 |
IV |
3 (1) |
|
≤ 140 |
S0 |
IV |
3 (1) |
|
≤ 200 |
S1 |
III |
3 (1) |
|
≤ 280 |
S0 |
III |
7 (2) |
|
Không hạn chế |
S0 |
I, II |
15 (4) |
|
CHÚ THÍCH: Số tầng nhà được xác định bằng số các tầng trên mặt đất, không tính tầng kỹ thuật trên cùng. |
|||
H.2.5.2 Chiều cao PCCC của các nhà khối học và nhà nội trú dành cho trẻ em khiếm khuyết về thể chất và (hoặc) trí tuệ không được cao quá 9 m.
H.2.6 Nhà của cơ sở văn hóa
H.2.6.1 Bậc chịu lửa, cấp nguy hiểm cháy kết cấu và chiều cao PCCC lớn nhất cho phép đối với các nhà của các cơ sở văn hóa nhóm F2.1 và F2.2 (thư viện, bảo tàng, triển lãm, câu lạc bộ, nhà hát, phòng hòa nhạc, rạp chiếu phim, rạp xiếc và các nhà có đặc điểm sử dụng tương tự) xác định theo Bảng H.7 phụ thuộc vào sức chứa của nhà hoặc gian phòng.
H.2.6.2 Cần tuân thủ các quy định bổ sung đối với các nhà thuộc nhóm này và các quy định tại H.2.12.
H.2.6.3 Khi xác định sức chứa của gian phòng thì cần cộng tổng số chỗ cố định và tạm thời.
Khi rạp chiếu phim có một số phòng chiếu phim thì tổng sức chứa của các phòng này không được vượt quá giá trị quy định tại Bảng H.7.
H.2.6.4 Kết cấu chịu lực của mái (giàn, dầm và kết cấu đỡ mái tương tự khác) trên sân khấu và các gian phòng của nhà hát, câu lạc bộ và các công trình thể thao có bậc chịu lửa từ I đến III cần có giới hạn chịu lửa không thấp hơn R 45.
Bảng H.7 - Nhà của các cơ sở văn hóa (nhóm F2.1 và F2.2) (thư viện, bảo tàng, triển lãm, câu lạc bộ, nhà hát, phòng hòa nhạc, rạp chiếu phim, rạp xiếc và các nhà có đặc điểm sử dụng tương tự)
|
Nhóm nguy hiểm cháy theo công năng của nhà, công trình |
Bậc chịu lửa |
Cấp nguy hiểm cháy kết cấu |
Chiều cao PCCC lớn nhất cho phép của nhà, m (số tầng trên mặt đất không kề tầng kỹ thuật trên cùng) |
Sức chứa của gian phòng hoặc công trình, chỗ |
|
F2.1 |
I |
S0 |
50 |
Không hạn chế |
|
II |
S0 |
9 (3) |
≤ 800 |
|
|
II |
S1 |
6 (2) |
≤ 600 |
|
|
III |
S0 |
3 (1) |
≤ 400 |
|
|
IV, V |
S0, S1, S2, S3 |
3 (1) |
≤ 300 |
|
|
F2.2 |
I |
S0 |
50 |
Không hạn chế |
|
II |
S0 |
50 |
≤ 800 |
|
|
II |
S1 |
28 |
≤ 600 |
|
|
III |
S0 |
9 (3) |
≤ 400 |
|
|
III |
S1 |
6 (2) |
≤ 300 |
|
|
IV, V |
S0, S1, S2, S3 |
3 (1) |
≤ 300 |
|
|
CHÚ THÍCH 1: Trong các nhà nhóm F2.1 chiều cao lớn nhất được phép bố trí gian phòng, được xác định bởi cao độ của tầng tại vị trí hàng ghế đầu tiên, không được vượt quá 9 m đối với các gian có sức chứa trên 600 chỗ. Trong các nhà có bậc chịu lửa I và cáp nguy hiểm cháy kết cấu S0 cho phép bố trí các gian có sức chứa đến 300 chỗ ở chiều cao lớn hơn 28 m. CHÚ THÍCH 2: Trong các nhà nhóm F 2.2, không được bố trí các sàn nhảy có sức chứa lớn hơn 400 người cũng như các gian phòng có công năng khác với sức chứa lớn hơn 600 người ở chiều cao PCCC của tầng tương ứng lớn hơn 9 m Trong nhà có bậc chịu lửa I và cấp nguy hiểm cháy kết cấu S0, cho phép bố trí các gian sức chứa đến 300 chỗ ở chiều cao lớn hơn 28 m, nhưng phải tuân thủ yêu cầu tại A.2.4. CHÚ THÍCH 3: Khi kết hợp rạp chiếu phim hoạt động quanh năm với rạp chiếu phim hoạt động mùa vụ với bậc chịu lửa khác nhau thì các rạp này phải được ngăn cách với nhau bằng tường ngăn cháy loại 2. |
||||
H.2.7 Nhà và công trình thể thao
H.2.7.1 Trong các gian thi đấu thể thao, sân trượt băng trong nhà, bể bơi trong nhà (kể cả có ghế ngồi cho khán giả hoặc không có ghế ngồi) cũng như trong các gian phòng huấn luyện bơi lội, các khu vực huấn luyện bắn súng trong nhà (kể cả đặt ở dưới khán đài hoặc xây trong các nhà công cộng khác), nếu diện tích của gian lớn hơn giá trị quy định tại Bảng H.2 thì cần bố trí tường ngăn cháy giữa gian này và các phòng khác.
H.2.7.2 Các khán đài sức chứa bất kỳ của các công trình nhóm F2.3 phải có bậc chịu lửa I và cấp nguy hiểm cháy kết cấu S0 nếu có sử dụng không gian bên dưới khán đài để bố trí các gian phòng phụ trợ từ hai tầng trở lên.
H.2.7.3 Sàn tầng dưới khán đài phải là sàn ngăn cháy loại 2.
H.2.7.4 Khi các gian phòng phụ trợ chỉ có một tầng dưới khán đài hoặc khi số lượng các hàng ghế khán giả trên khán đài lớn hơn 20 thì kết cấu chịu lực của khán đài phải có giới hạn chịu lửa không thấp hơn R 45, cấp nguy hiểm cháy K0, và sàn tầng dưới khán đài phải là sàn ngăn cháy loại 3.
H.2.7.5 Các kết cấu chịu lực của khán đài công trình thể thao (nhóm F2.3) không sử dụng không gian dưới khán đài và có số lượng hàng ghế lớn hơn 5 và không quá 20 thì phải được làm từ vật liệu không cháy với giới hạn chịu lửa không thấp hơn R 15, còn với số lượng hàng ghế trên 20 thì phải có giới hạn chịu lửa không thấp hơn R 45, cấp nguy hiểm cháy K0. Khi đó, không cho phép để các chất cháy và vật liệu cháy bên dưới khán đài. Trong các công trình thể thao trong nhà (kín), kết cấu chịu lực của các khán đài cố định với sức chứa hơn 600 người phải có giới hạn chịu lửa không thấp hơn R 60, cấp nguy hiểm cháy K0; từ 300 người đến 600 người - R 45 và K0; dưới 300 người - R 15 và K0 hoặc K1. Khi đó, các sàn dưới khán đài phải là sàn ngăn cháy loại 2 khi khán đài có sức chứa hơn 600 người, loại 3 với sức chứa từ 300 người đến 600 người và loại 4 với sức chứa dưới 300 người.
H.2.7.6 Giới hạn chịu lửa của các kết cấu khán đài tạm (di động) phải không thấp hơn R 15 không phụ thuộc sức chứa.
H.2.7.7 Các yêu cầu trên không áp dụng cho các chỗ ngồi khán giả tạm thời được bố trí trên sân thi đấu khi sân thi đấu biến hình.
H.2.8 Nhà ga hành khách
H.2.8.1 Trong các nhà ga hành khách có bậc chịu lửa I và II và cấp nguy hiểm cháy kết cấu S0, thay cho việc phân chia nhà thành các khoang cháy bằng tường ngăn cháy loại 1, cho phép phân chia khoang cháy thành các phân khoang cháy với cùng diện tích như trong Bảng H.2 (với các nhóm gian phòng có cùng nhóm nguy hiểm cháy theo công năng) bằng các màn nước ngăn cháy (drencher), hoặc bằng các màn ngăn cháy có giới hạn chịu lửa không nhỏ hơn E 60. Khi đó, các màn ngăn cháy và màn nước ngăn cháy nêu trên phải được lắp đặt ở vùng không có tải trọng cháy trên một chiều rộng không nhỏ hơn 4 m về cả hai phía của màn ngăn cháy và màn nước ngăn cháy.
H.2.8.2 Trong các nhà ga sân bay có bậc chịu lửa I, diện tích sàn giữa các tường ngăn cháy (khoang cháy) có thể tăng lên đến 10 000 m2 khi không có tầng hầm hoặc nếu có tầng hầm thì trong tầng hầm (tầng nửa hầm) không có các kho và các dạng phòng khác có chứa các vật liệu cháy (ngoại trừ gian giữ đồ và mũ áo của nhân viên, các gian phòng có hạng nguy hiểm cháy C4 và E). Khi đó, lối đi lại từ các phòng để dụng cụ vệ sinh đặt trong tầng hầm và tầng nửa hầm lên tầng 1 có thể đi theo các buồng thang bộ hở, nếu đi từ các gian giữ đồ phải đi theo các cầu thang bộ riêng nằm trong buồng thang kín. Các gian phòng giữ đồ (ngoại trừ những gian phòng có trang bị các hộc gửi tự động) và gian phòng giữ mũ áo phải được ngăn cách với những phần khác của tầng hầm bằng các vách ngăn cháy loại I và được trang bị hệ thống chữa cháy tự động, còn các trạm điều độ - chỉ huy phải được ngăn cách bằng các vách ngăn cháy loại I.
H.2.8.3 Trong các nhà ga sân bay và nhà ga hành khách có bậc chịu lửa I và cấp nguy hiểm cháy kết cấu so, không hạn chế diện tích sàn giữa các tường ngăn cháy nếu được trang bị các hệ thống chữa cháy tự động.
H.2.9 Bệnh viện
H.2.9.1 Nhà bệnh viện (nhóm F1.1) cần được bố trí trong các nhà đứng độc lập hoặc trong khoang cháy riêng với chiều cao PCCC không quá 28 m. Nhà bệnh viện cao từ 2 tầng trở lên phải có bậc chịu lửa I hoặc II và cấp nguy hiểm cháy kết cấu S0.
H.2.9.2 Các nhà bệnh viện 1 tầng cho phép có bậc chịu lửa III và cấp nguy hiểm cháy kết cấu không thấp hơn S1, khi đó diện tích lớn nhất cho phép của một tầng trong phạm vi một khoang cháy không vượt quá 2 000 m2 đối với nhà có cấp nguy hiểm cháy kết cấu S0 và không quá 1 200 m2 đối với nhà cấp S1. Khi đó các tường, vách ngăn và sàn, bao gồm cả có sử dụng kết cấu gỗ, phải có cấp nguy hiểm cháy K0.
H.2.9.3 Nhà nội trú của bệnh viện có chiều cao đến 3 tầng cần được chia thành các phân khoang cháy với diện tích không quá 1 000 m2 bằng các vách ngăn cháy loại 1. Nhà nội trú có chiều cao hơn 3 tầng và nhà nội trú có cấp nguy hiểm cháy kết cấu S1 cần được chia thành các phân khoang cháy với diện tích không quá 800 m2 bằng các vách ngăn cháy loại 1.
H.2.9.4 Các nhà chữa bệnh dành cho bệnh nhân tâm thần và các nhà chữa bệnh của trạm y tế có chiều cao PCCC không được quá 9 m, bậc chịu lửa không thấp hơn II và cấp nguy hiểm cháy kết cấu S0.
H.2.9.5 Nhà dưỡng lão và chăm sóc người khuyết tật cần được thiết kế phù hợp với các yêu cầu an toàn cháy như bệnh viện.
H.2.10 Nhà khám chữa bệnh đa khoa (nhóm F3.4)
H.2.10.1 Chiều cao PCCC của nhà khám bệnh đa khoa ngoại trú (nhóm F3.4) tối đa 28 m. Bậc chịu lửa của nhà từ 2 tầng trở lên không được thấp hơn bậc II, cấp nguy hiểm cháy kết cấu không thấp hơn S0.
H.2.10.2 Các cơ sở y tế không có nội trú cho phép đặt trong các nhà một tầng có bậc chịu lửa III và cấp nguy hiểm cháy kết cấu không thấp hơn S1, khi đó diện tích lớn nhất cho phép của một tầng trong phạm vi một khoang cháy không lớn hơn 3 000 m2 đối với nhà có cấp S0 và không lớn hơn 2 000 m2 đối với nhà có cấp S1. Khi đó các tường và cách ngăn chia hành lang và tiền sảnh với các phòng lân cận, bao gồm cả việc sử dụng kết cấu gỗ, phải có cấp nguy hiểm cháy K0.
H.2.10.3 Các gian phòng khám đa khoa ngoại trú (nhóm F3.4) cho phép đặt trong các phần phụ của nhà có bậc chịu lửa II và cấp nguy hiểm cháy kết cấu không thấp hơn S0. Các phòng này không được đặt ở độ cao quá 28 m.
H.2.11 Nhà ngủ của cơ sở điều dưỡng
H.2.11.1 Các nhà ngủ của cơ sở điều dưỡng không được cao quá 28 m .
H.2.11.2 Đối với nhà ngủ của cơ sở điều dưỡng cao hơn 2 tầng, bậc chịu lửa phải không thấp hơn bậc II, cấp nguy hiểm cháy kết cấu S0.
H.2.11.3 Các nhà ngủ hai tầng của cơ sở điều dưỡng cho phép có bậc chịu lửa III và cấp nguy hiểm cháy kết cấu S0.
H.2.11.4 Số chỗ trong các nhà ngủ của cơ sở điều dưỡng với bậc chịu lửa I và II và cấp nguy hiểm cháy kết cấu S0 không được vượt quá 1 000, bậc III và cấp S0 - không quá 150, các bậc chịu lửa còn lại - không quá 50.
H.2.11.5 Các gian phòng ngủ dành cho gia đình có trẻ em trong nhà ngủ của cơ sở điều dưỡng cần được bố trí trong các tòa nhà độc lập hoặc các phần nhà riêng được ngăn cách bởi vách ngăn cháy loại 1, chiều cao không quá 6 tầng và có lối ra thoát nạn riêng biệt với các phần nhà khác. Khi đó, các gian phòng ngủ phải có lối ra khẩn cấp phù hợp với một trong những yêu cầu sau:
- Lối ra phải dẫn ra ban công hoặc lô gia với vách tường đặc không nhỏ hơn 1,2 m từ mép ngoài ban công (lô gia) đến lỗ mở cửa sổ (cửa đi bằng kính) hoặc không nhỏ hơn 1,6 m giữa các cửa kính đi ra ban công (lô gia);
- Lối ra phải dẫn ra lối đi chuyển tiếp rộng tối thiểu 0,6 m dẫn sang phần nhà khác liền kề;
- Lối ra phải dẫn ra ban công hoặc lô gia có trang bị thang ngoài nối liền các ban công và lô gia từng tầng.
H.2.12 Các quy định bổ sung đối với các nhà công cộng thuộc H.2
H.2.12.1 Trong các nhà công cộng đề cập ở trên (H.2.1 đến H.2.11) có bậc chịu lửa I đến III, kết cấu chịu lực của mái các phần phụ xây liền kề nhà (có thể có một phần nằm trong nhà chính, một phần nằm ngoài nhà chính) phải có giới hạn chịu lửa không thấp hơn R 45 và cấp nguy hiểm cháy K0.
H.2.12.2 Trong các nhà có bậc chịu lửa I và II và cấp nguy hiểm cháy kết cấu S0, khi toàn nhà có trang bị hệ thống chữa cháy tự động thì diện tích khoang cháy quy định tại các bảng từ H.2 đến H.4 được phép tăng lên không quá 2 lần.
H.2.12.3 Nếu trong phạm vi khoang cháy của nhà 1 tầng tại các bảng từ H.2 đến H.4 có một phần nhà 2 tầng với diện tích chiếm không quá 15 % diện tích xây dựng của nhà thì khoang cháy đó vẫn được coi như nhà 1 tầng.
H.2.12.4 Những phần phụ của nhà chính như mái che gắn vào nhà chính (mái hiên, mái che phần diện tích sát chân nhà), sân trời, hành lang ngoài và tương tự được phép lấy bậc chịu lửa thấp hơn 1 bậc so với bậc chịu lửa của nhà chính. Khi đó, cấp nguy hiểm cháy kết cấu của các phần phụ này không được thấp hơn cấp nguy hiểm cháy kết cấu của nhà chính. Trong trường hợp này, bậc chịu lửa của nhà có mái che gắn vào nhà chính, sân trời, hành lang ngoài lấy bằng bậc chịu lửa của nhà chính, và diện tích một tầng trong phạm vi một khoang cháy được tính toán bao gồm cả diện tích các phần phụ này.
H.2.12.5 Trong các gian tiền sảnh và phòng chờ có diện tích lớn hơn giá trị quy định tại Bảng H.2, cho phép thay thế tường ngăn cháy bằng vách ngăn cháy xuyên sáng loại 2.
H.2.12.6 Các tường (mặt tường), vách và trần bằng gỗ của nhà có bậc chịu lửa V sử dụng làm nhà trẻ, trường phổ thông, trường nội trú, cơ sở khám bệnh và điều trị ngoại trú, các trại chăm sóc sức khỏe cho trẻ em và các câu lạc bộ (ngoại trừ các nhà câu lạc bộ 1 tầng có tường ốp đá) phải được bảo vệ chống cháy.
H.2.12.7 Trong các nhà ga hành khách và các nhà hay phòng có công năng tương tự với không gian rộng lớn (trung tâm thương mại, sảnh thông tầng), nếu không thể bố trí được các tường ngăn cháy thì cho phép thay thế tường ngăn cháy bằng thiết bị tạo màn nước drencher bố trí thành 2 dải cách nhau 0,5 m và với cường độ phun không nhỏ hơn 1 L/s cho mỗi mét chiều dài màn nước (tính chung cho cả 2 dải). Khoảng thời gian duy trì màn nước ít nhất là 1 giờ. Ngoài ra, phải có giải pháp ngăn chặn lan truyền khói giữa các khoang cháy.
H.2.12.8 Nhà thư viện không được cao quá 28 m.
H.2.12.9 Chiều cao PCCC lớn nhất cho phép bố trí các gian giảng đường, khán phòng, phòng hội nghị, hội thảo, gian tập thể thao không có khán giả và các gian phòng khác có công năng tương tự trong nhà có công năng bất kỳ được quy định tại Bảng H.8 có kể đến bậc chịu lửa, cấp nguy hiểm cháy kết cấu của nhà và sức chứa của gian.
Bảng H.8 - Chiều cao PCCC lớn nhất cho phép bố trí một số gian phòng
|
Bậc chịu lửa của nhà |
Cấp nguy hiểm cháy kết cấu của nhà |
Sức chứa của gian phòng, chỗ |
Chiều cao PCCC lớn nhất cho phép bố trí gian phòng, m |
|
I, II |
S0 |
≤ 300 |
50 |
|
S0, S1 |
≤ 600 |
12 |
|
|
S0, S1 |
> 600 |
9 |
|
|
III |
S0 |
≤ 300 |
9 |
|
S0, S1 |
≤ 600 |
3 |
|
|
IV |
S0, S1, S2, S3 |
≤ 100 |
3 |
|
CHÚ THÍCH 1: Chiều cao lớn nhất cho phép bố trí gian phòng là cao độ của tầng tương ứng với hàng ghế đầu tiên. CHÚ THÍCH 2: Trong các nhà trẻ, mầm non, mẫu giáo, các cơ sở dưỡng lão và chăm sóc người khuyết tật (không phải kiểu căn hộ), bệnh viện, các nhà ngủ của cơ sở giáo dục nội trú và các cơ sở trẻ em, cơ sở chăm sóc sức khỏe trẻ em (nhóm F1.1), không cho phép bố trí các gian phòng nói trên cao quá tầng 2, còn đối với các trường học (nhóm F4.1) - không cho phép cao quá tầng 3. CHÚ THÍCH 3: Tổng sức chứa của các gian phòng đặt trên cùng một tầng không được vượt quá giá trị cho phép trong bảng này (trừ trường hợp các gian phòng đặt ở các khoang cháy khác nhau). |
|||
H.3 Nhà hành chính - phụ trợ của cơ sở sản xuất và kho
Bậc chịu lửa, cấp nguy hiểm cháy kết cấu, chiều cao tối đa cho phép của nhà và diện tích một tầng trong phạm vi một khoang cháy đối với nhà hành chính - phụ trợ của cơ sở sản xuất và kho (nhà đứng độc lập, đứng liền kề hoặc nằm bên trong nhà sản xuất hoặc kho, thuộc nhóm F4.3) được quy định tại Bảng H.2. Khi xác định bậc chịu lửa của nhà thì cần xét đến chiều cao bố trí các khán phòng, hội trường và phòng hội thảo theo Bảng H.8.
H.4 Nhà sản xuất và nhà chăn nuôi gia súc, gia cầm và động vật
H.4.1 Nhà sản xuất
Bậc chịu lửa, cấp nguy hiểm cháy kết cấu, chiều cao lớn nhất cho phép của nhà và diện tích một tầng trong phạm vi một khoang cháy đối với nhà sản xuất phụ thuộc vào hạng nguy hiểm cháy và cháy nổ được quy định tại Bảng H.9.
Số tầng nhà, diện tích một tầng trong phạm vi một khoang cháy của nhà sản xuất xác định theo A.2.1 , Phụ lục A và H.6, Phụ lục H. Khi có các lỗ mở công nghệ trên các sàn giữa các tầng thì tổng diện tích các tầng này không được vượt quá diện tích tầng quy định tại Bảng H.9.
Khi trang bị chữa cháy tự động toàn nhà cho nhà sản xuất, cho phép tăng gấp 2 lần các diện tích sàn trong phạm vi một khoang cháy quy định tại Bảng H.9, trừ nhà có bậc chịu lửa IV và V.
Đối với nhà thuộc hạng nguy hiểm cháy nổ C có các gian phòng hạng C1 với tổng diện tích lớn hơn 1/2 diện tích tầng tương ứng thì diện tích một tầng trong phạm vi một khoang cháy quy định tại Bảng H.9 phải giảm đi 25 %.
Bảng H.9 - Nhà sản xuất
|
Hạng nguy hiểm cháy nổ của nhà hoặc khoang cháy |
Chiều cao lớn nhất cho phép của nhà 1), m |
Bậc chịu lửa của nhà |
Cấp nguy hiểm cháy kết cấu của nhà |
Diện tích lớn nhất cho phép của một tảng nhà trong phạm vi một khoang cháy, m2 |
||
|
Nhà 1 tầng |
Nhà 2 tầng |
Nhà từ 3 tầng trở lên |
||||
|
(1) |
(2) |
(3) |
(4) |
(5) |
(6) |
(7) |
|
A |
36 |
I, II |
S0 |
Không hạn chế |
5 200 |
3 500 |
|
24 |
III |
S0 |
7 800 |
3 500 |
2 600 |
|
|
Không quy định |
IV |
S0 |
3 500 |
- |
- |
|
|
B |
36 |
I, II |
S0 |
Không hạn chế |
10 400 |
7800 |
|
24 |
III |
S0 |
7 800 |
3 500 |
2 600 |
|
|
Không quy định |
IV |
S0 |
3 500 |
- |
- |
|
C |
Xem 2) |
|||||
|
48 |
I, II |
S0 |
Không hạn chế |
25 000 7 800 3) |
10 400 5 200 3) |
|
|
24 |
III |
S0, S1 |
25 000 |
10 400 5 200 3) |
5 200 3 600 3) |
|
|
18 |
IV |
S0, S1 |
25 000 |
10 400 |
- |
|
|
18 |
IV |
S2, S3 |
2 600 |
2 000 |
- |
|
|
12 |
V |
Không quy định |
1 200 |
600 4) |
- |
|
|
D |
54 |
I, II |
S0 |
Không hạn chế |
||
|
36 |
III |
S0 |
Không hạn chế |
25 000 |
10 400 |
|
|
30 |
III |
S1 |
Không hạn chế |
10 400 |
7 800 |
|
|
24 |
IV |
S0 |
Không hạn chế |
10 400 |
5 200 |
|
|
18 |
IV |
S1 |
6 500 |
5 200 |
- |
|
|
E |
54 |
I, II |
S0 |
Không hạn chế |
||
|
36 |
III |
S0 |
Không hạn chế |
50 000 |
15 000 |
|
|
30 |
III |
S1 |
Không hạn chế |
25 000 |
10 400 |
|
|
24 |
IV |
S0, S1 |
Không hạn chế |
25 000 |
7 800 |
|
|
18 |
IV |
S2, S3 |
10 400 |
7 800 |
- |
|
|
12 |
V |
Không quy định |
2 600 |
1 500 |
- |
|
|
1) Chiều cao nhà trong bảng này được tính từ sàn tầng 1 đến trần tầng trên cùng, bao gồm cả tầng kỹ thuật; khí trần nhà có cao độ thay đổi thì lấy giá trị cao độ trung bình. Khi xác định số tầng nhà thì chỉ tính các tầng trên mặt đất. Không quy định chiều cao nhà một tầng có cấp nguy hiểm cháy S0 và S1. 2) Trong trường hợp nhà bậc chịu lửa I, cấp S0 vẫn không thể đáp ứng yêu cầu về chiều cao hoặc diện tích khoang cháy phù hợp với quy mô sản xuất, cho phép áp dụng đồng bộ tiêu chuẩn NFPA 5000 phiên bản mới nhất hoặc tiêu chuẩn tương đương để xác định chiều cao và diện tích lớn nhất cho phép của một tầng nhà trong phạm vi một khoang cháy tương ứng với giới hạn chịu lửa của các kết cấu, cấu kiện nhà và các điều kiện khác. Giới hạn chịu lửa của kết cấu, cấu kiện nhà trong trường hợp này không được thấp hơn quy định trong Bảng 4 đối với nhà có bậc chịu lửa I. 3) Dành cho nhà sản xuất chế biến gỗ. 4) Dành cho các xưởng cưa (xẻ) có tối đa 4 khung nhà, các xưởng sản xuất chế biến gỗ sơ bộ và các trạm nghiền (băm) gỗ. |
||||||
|
CHÚ THÍCH: Dấu “-” nghĩa là nhà có bậc chịu lửa theo hàng ngang tương ứng thì không thể có số tầng theo cột dọc tương ứng. |
||||||
H.4.2 Nhà chăn nuôi gia súc, gia cầm và động vật (nhóm F5.3)
Bậc chịu lửa, cấp nguy hiểm cháy kết cấu, chiều cao nhà lớn nhất cho phép của nhà và diện tích một tầng trong phạm vi một khoang cháy đối với nhà chăn nuôi gia súc, gia cầm và động vật phụ thuộc vào hạng nguy hiểm cháy nổ được quy định tại Bảng H.10, còn đối với nhà hạng D - tại Bảng H.9.
Bảng H.10 - Nhà chăn nuôi gia súc, gia cầm và động vật
|
Hạng nguy hiểm cháy nổ của nhà hoặc khoang cháy |
Chiều cao lớn nhất cho phép của nhà 1), m |
Bậc chịu lửa của nhà |
Cấp nguy hiểm cháy kết cấu của nhà |
Diện tích lớn nhất cho phép của một tầng nhà trong phạm vi một khoang cháy, m2 |
||
|
Nhà 1 tầng |
Nhà 2 tầng |
Nhà từ 3 tầng trở lên |
||||
|
C |
36 |
I, II |
S0 |
Không hạn chế |
25 000 |
10 400 |
|
18 |
III |
S0 |
25 000 |
10 400 |
5 200 |
|
|
12 |
IV |
S0, S1 |
25 000 |
10 400 |
- |
|
|
12 |
IV |
S2, S3 |
2 600 |
2 000 |
- |
|
|
8 |
V |
Không quy định |
1 200 |
- |
- |
|
E |
36 |
I, II |
S0 |
Không hạn chế |
||
|
18 |
III |
S0 |
Không hạn chế |
50 000 |
15 000 |
|
|
18 |
III |
S1 |
Không hạn chế |
25 000 |
10 400 |
|
|
12 |
IV |
S0, S1 |
Không hạn chế |
25 000 |
7 800 |
|
|
12 |
IV |
S2, S3 |
10 400 |
7 800 |
- |
|
|
8 |
V |
Không quy định |
2 600 |
1 500 |
- |
|
|
1) Chiều cao nhà trong bảng này được tính từ sàn tầng 1 đến trần tầng trên cùng, bao gồm cả tầng kỹ thuật; với trần nhà có cao độ thay đổi thì lấy giá trị cao đỏ trung bình. Khi xác định số tầng nhà thì chỉ tính các tầng trên mặt đất. Không quy định chiều cao nhà một tầng có cáp nguy hiểm cháy S0 và S1. |
||||||
|
CHÚ THÍCH 1: Cho phép tăng lên đến 1 800 m2 đối với diện tích tầng chứa chim và cừu giữa các tường ngăn cháy của nhà một tầng có bậc chịu lửa V và hạng C. CHÚ THÍCH 2: Dấu "-" nghĩa là nhà có bậc chịu lửa theo hàng ngang tương ứng thì không thể có số tầng theo cột dọc tương ứng. |
||||||
H.5 Nhà kho
H.5.1 Bậc chịu lửa, cấp nguy hiểm cháy kết cấu, chiều cao lớn nhất cho phép của nhà và diện tích một tầng trong phạm vi một khoang cháy đối với nhà kho (nhóm F5.2) phụ thuộc vào hạng nguy hiểm cháy nổ được quy định tại Bảng H.11.
Bảng H.11 - Nhà kho
|
Hạng nguy hiểm cháy nổ của nhà hoặc khoang cháy |
Chiều cao lớn nhất cho phép của nhà 1), m |
Bậc chịu lửa của nhà |
Cấp nguy hiểm cháy kết cấu của nhà |
Diện tích lớn nhất cho phép của một tầng nhà trong phạm vi một khoang cháy, m2 |
||
|
Nhà 1 tầng |
Nhà 2 tầng |
Nhà từ 3 tầng trở lên |
||||
|
(1) |
(2) |
(3) |
(4) |
(5) |
(6) |
(7) |
|
A |
Không quy định |
I, II |
S0 |
5 200 |
- |
- |
|
Không quy định |
III |
S0 |
4 400 |
- |
- |
|
|
Không quy định |
IV |
S0 |
3 600 |
- |
- |
|
|
Không quy định |
IV |
S2, S3 |
75 2) |
- |
- |
|
|
B |
18 |
I, II |
S0 |
7 800 |
5 200 |
3 500 |
|
Không quy định |
III |
S0 |
6 500 |
- |
- |
|
|
Không quy định |
IV |
S0 |
5 200 |
- |
- |
|
|
Không quy định |
IV |
S2, S3 |
75 2) |
- |
- |
|
C |
36 |
I, II |
S0 |
10 400 |
7 800 |
5 200 |
|
24 |
III |
S0 |
10 400 |
5 200 |
2 600 |
|
|
Không quy định |
IV |
S0, S1 |
7 800 |
- |
- |
|
|
Không quy định |
IV |
S2, S3 |
2 600 |
- |
- |
|
|
Không quy định |
V |
Không quy định |
1 200 |
- |
- |
|
E |
Không giới hạn |
I, II |
S0 |
Không giới hạn |
10 400 |
7 800 |
|
36 |
III |
S0, S1 |
Không giới hạn |
7 800 |
5 200 |
|
|
12 |
IV |
S0, S1 |
Không giới hạn |
2 200 |
- |
|
|
Không quy định |
IV |
S2, S3 |
5 200 |
- |
- |
|
|
9 |
V |
Không quy định |
2 200 |
1 200 |
- |
|
|
1) Chiều cao nhà trong bảng này được tính từ sàn tầng 1 đến trần tầng trên cùng, bao gồm cả tầng kỹ thuật, với trần nhà có cao độ thay đổi thì lấy giá trị cao độ trung bình. Khi xác định số tầng nhà thì chỉ tính các tầng trên mặt đất. Không quy định chiều cao nhà một tầng có bậc chịu lửa I, II, III và cấp nguy hiểm cháy S0. Chiều cao nhà một tầng có bậc chịu lửa IV và cấp nguy hiểm cháy S0, S1 không được lớn hơn 25 m, đối với cấp S2, S3 - không lớn hơn 18 m (tính từ mặt sàn đến mép dưới của kết cấu chịu lực mái tại vị trí gối đỡ) 2) Nhà di động |
||||||
|
CHÚ THÍCH 1: Dấu "-" nghĩa là nhà có bậc chịu lửa theo hàng ngang tương ứng thì không thể có số tầng theo cột dọc tương ứng. CHÚ THÍCH 2: Đối với các nhà kho hạng C, E, trong trường hợp nhà bậc chịu lửa I, cấp S0 vẫn không thể đáp ứng yêu cầu về chiều cao hoặc diện tích khoang cháy phù hợp với quy mô cần thiết, cho phép áp dụng đồng bộ tiêu chuẩn NFPA 5000 phiên bản mới nhất hoặc tiêu chuẩn tương đương để xác định chiều cao và diện tích lớn nhất cho phép của một tầng nhà trong phạm vi một khoang cháy tương ứng với giới hạn chịu lửa của các kết cấu, cấu kiện nhà và các điều kiện khác. Giới hạn chịu lửa của kết cấu, cấu kiện nhà trong trường hợp này không được thấp hơn quy định trong Bảng 4 đối với nhà có bậc chịu lửa I. |
||||||
H.5.2 Đối với các nhà kho có sàn công tác, khung giá đỡ, tầng lửng thì số tầng và diện tích tầng trong phạm vi một khoang cháy xác định tương tự như nhà sản xuất đã được quy định tại H.4.1. Khi có các lỗ mở trên sàn giữa các tầng thì tổng diện tích các tầng này không được vượt quá giá trị quy định tại Bảng H.10 .
H.5.3 Khi trang bị chữa cháy tự động toàn nhà cho các nhà kho, có thể tăng tối đa 2 lần diện tích sàn trong phạm vi một khoang cháy so với giá trị quy định tại Bảng H.11, trừ các nhà có bậc chịu lửa IV và V.
Khi bố trí các kho trong các nhà sản xuất thì diện tích sàn kho trong phạm vi một khoang cháy và chiều cao của chúng (số tầng) không được vượt quá các giá trị quy định tại Bảng H.11.
H.5.4 Diện tích lớn nhất cho phép trong phạm vi một khoang cháy đối với tầng 1 của nhà kho nhiều tầng cho phép xác định theo quy định của nhà một tầng, nếu sàn tầng 2 là sàn ngăn cháy loại 1.
H.5.5 Nhà lưu trữ không được cao quá 28 m.
H.5.6 Nhà kho chứa gỗ thành phẩm chỉ được 1 tầng, bậc chịu lửa tối thiểu bậc IV và cấp nguy hiểm cháy kết cấu S0 và S1.
Bậc chịu lửa, cấp nguy hiểm cháy kết cấu và diện tích một tầng trong phạm vi một khoang cháy cho nhà kho chứa gỗ thành phẩm quy định tại Bảng H.12.
Khi trang bị chữa cháy tự động cho nhà kho chứa gỗ thành phẩm thì cho phép tăng tối đa 2 lần giá trị diện tích một tầng trong phạm vi một khoang cháy quy định tại Bảng H.12, trừ nhà có bậc chịu lửa IV với cấp nguy hiểm cháy kết cấu bất kỳ và nhà có bậc chịu lửa V. Trong trường hợp này, cường độ và diện tích để tính toán lượng nước tiêu hao hoặc chất tạo bọt cần tăng thêm 10 %.
Bảng H.12 - Nhà kho chứa gỗ thành phẩm
|
Hạng nhà |
Bậc chịu lửa của nhà |
Cấp nguy hiểm cháy kết cấu của nhà |
Diện tích lớn nhất cho phép của một tầng nhà trong phạm vi một khoang cháy, m2 |
|
C |
I, II, III |
S0 |
9 600 |
|
IV |
S0, S1 |
4 800 |
|
|
IV |
S2, S3 |
2 400 |
|
|
V |
Không quy định |
1 200 |
H.6 Tính diện tích khoang cháy
H.6.1 Việc lựa chọn kích thước nhà và khoang cháy cần phù hợp với bậc chịu lửa của chúng, cấp nguy hiểm cháy kết cấu và nhóm nguy hiểm cháy theo công năng, tính nguy hiểm cháy của các quá trình công nghệ trong nhà hoặc khoang cháy.
H.6.2 Diện tích khoang cháy là diện tích lớn nhất của một tầng trong phạm vi một khoang cháy.
Diện tích một tầng trong phạm vi một khoang cháy là diện tích tầng được giới hạn bởi các tường bao của nhà và (hoặc) các tường ngăn cháy loại 1. Diện tích này được xác định với các yêu cầu bổ sung sau:
- Diện tích một tầng nhà trong phạm vi một khoang cháy được xác định theo chu vi bên trong tường bao của tầng không tính diện tích các buồng thang bộ, trừ các trường hợp đặc biệt được yêu cầu riêng. Khi không có một phần hoặc toàn bộ tường bao thì diện tích trên bằng diện tích sàn;
- Diện tích một tầng trong phạm vi một khoang cháy của các nhà được nối với nhau bằng lối đi bộ kín, đường hầm hoặc hành lang kín cần tính bằng tổng các diện tích các tầng nhà được nối thông và diện tích của lối đi bộ kín, đường hầm hoặc hành lang kín;
- Trong các nhà sản xuất và nhà kho (nhóm F5.1, F5.2 và F5.3), khi có các lỗ mở trên các sàn tầng, diện tích một tầng trong phạm vi một khoang cháy là tổng các diện tích các tầng được thông với nhau qua lỗ mở;
- Trong các nhà ga ra ô tô kín với các ram dốc không được ngăn cách, diện tích một tầng trong phạm vi một khoang cháy là tổng diện tích các tầng được nối với nhau bằng ram dốc không được ngăn cách;
- Đối với nhà thuộc nhóm nguy hiểm cháy theo công năng F1.1, F1.2, F2 đến F4, khi xác định diện tích một tầng trong phạm vi một khoang cháy cần kể đến diện tích của các mái che, sân trời và hành lang gắn với nhà, nếu chúng không được ngăn cách với phần nhà chính bằng các tường ngăn cháy loại 1;
- Trong các nhà thuộc nhóm nguy hiểm cháy theo công năng F1.1, F1.2, F2 đến F4 với các gian thông tầng để bố trí cầu thang hở, thang cuốn, sảnh thông tầng và các công năng khác, diện tích một sàn trong phạm vi một khoang cháy là tổng diện tích của tầng dưới cùng của gian thông tầng và của các hành lang, lối đi bộ và các gian phòng của tất cả các tầng phía trên của gian thông tầng trong phạm vi không gian được ngăn cách bởi các vách ngăn cháy loại 1. Khi không có vách ngăn cháy loại 1 ngăn cách không gian thông tầng với các hành lang và các gian phòng tiếp giáp với không gian này (kể cả trong trường hợp có sử dụng các giải pháp thay thế như rèm ngăn cháy, màn drencher và trang bị ngăn cháy tương tự khác) thì diện tích một tầng trong phạm vi một khoang cháy là tổng diện tích của các tầng tương ứng.
Trong trường hợp kết hợp nhiều yêu cầu nêu trên, thì diện tích tầng và chiều cao nhà được lấy theo yêu cầu bất lợi nhất đối với nhà có cấp nguy hiểm cháy kết cấu tương ứng.
Trong trường hợp không xác định được bậc chịu lửa và cấp nguy hiểm cháy kết cấu của nhà, cho phép lấy bậc chịu lửa V và cấp nguy hiểm cháy kết cấu S3 để xác định các yêu cầu an toàn cháy khác (xác định khoảng cách phòng cháy chống cháy và các yêu cầu khác).
PHỤ LỤC I
(tham khảo)
CÁC HÌNH MINH HỌA
I.1 Ngăn cách lối ra thoát nạn của tầng hầm với lối ra thoát nạn của các tầng xuống khi bố trí chung trong một buồng thang bộ (xem 3.2.2)

a) Hình ảnh tổng thể

b) Mặt bằng
Hinh I.1 - Lối ra thoát nạn từ tầng hầm lên được bố trí thoát trực tiếp ra bên ngoài

a) Hình ảnh tổng thể

b) Mặt bằng
Hình I.2 - Lối ra thoát nạn từ tầng hầm lên được bố trí thoát vào sảnh tầng 1 sau đó có lối đi riêng để thoát ra bên ngoài
I.2 Bố trí phân tán các lối ra thoát nạn (xem 3.2.8)

a) Hai buồng thang bộ thoát nạn bố trí gần nhau nên không đảm bảo thoát nạn khi có đám cháy ở khu vực lân cận (không đúng nguyên tắc)

b) Hai buồng thang bộ thoát nạn bố trí xa nhau nên khi có đám cháy ở khu vực lân cận của một trong hai buồng thì vẫn có thể thoát nạn qua buồng thang còn lại (đúng nguyên tắc)
Hình I.3 - Bố trí phân tán các buồng thang bộ thoát nạn

Hình I.4 - Nguyên tắc nửa đường chéo mặt bằng khi bố trí phân tán các lối ra thoát nạn

Hình I.5 – Nguyên tắc bảo đảm khoảng phân tán giữa các lối ra thoát nạn đối với mặt bằng một tầng nhà
I.3 Cầu thang và buồng thang bộ trên đường thoát nạn
I.3.1 Các loại cầu thang và buồng thang bộ thông thường (xem 2.4.2)

CHÚ DẪN:
1 - Cầu thang bộ loại 1 (cầu thang kín, trong nhà): cầu thang bên trong nhà, được bao che kín bởi kết cấu buồng thang và cửa ra vào có khả năng chịu lửa (ngăn cháy). Tường phía ngoài có thể có lỗ mở.
2 - Cầu thang bộ loại 2 (cầu thang bộ hở, trong nhà): cầu thang bên trong nhà, không được bao kín bởi kết cấu buồng thang, không gian cầu thang thông với các không gian khác của nhà.
3 - Cầu thang bộ loại 3 (cầu thang bộ hở, ngoài nhà): cầu thang nằm phía ngoài nhà và không có buồng thang.
4 - Buồng thang bộ loại L1: kết cấu bao che cầu thang bộ trong nhà, có khả năng chịu lửa (ngăn cháy), có lỗ mở lấy ánh sáng ở tường ngoài trên mỗi tầng.
5 - Buồng thang bộ loại L2: kết cấu bao che cầu thang bộ trong nhà, có khả năng chịu lửa (ngăn cháy), có lỗ mở lấy ánh sáng từ trên mái của buồng thang.
Hình I.6 - Các dạng cầu thang bộ và buồng thang bộ thông thường
I.3.2 Một số buồng thang bộ không nhiễm khói loại N1

Hình I.7 - Bố trí buồng thang bộ loại N1 (xem 3.4.10 a))

a) Khoảng đệm không nhiễm khói là một ban công

b) Khoảng đệm không nhiễm khói là một lôgia
Hình I.8 - Khoảng đệm không nhiễm khói dẫn vào buồng thang bộ loại N1

c) Khoảng đệm không nhiễm khói là một sảnh chung nằm ở biên của nhà, bảo đảm yêu cầu về thông gió tự nhiên

d) Khoảng đệm không nhiễm khói qua một sảnh chung nằm sâu trong mặt bằng nhưng có không gian đủ rộng để bảo đảm yêu cầu về thông gió tự nhiên
Hình I.8 (tiếp theo)

e) Khoảng đệm không nhiễm khói là một sảnh có thông gió tự nhiên với khoang lõm

f) Khoảng đệm không nhiễm khói là một sảnh ngăn khói có thông gió tự nhiên qua giếng đứng
Hình I.8 (tiếp theo)

g) Khoảng đệm không nhiễm khói là một sảnh chung nằm giữa các khối nhà và bảo đảm điều kiện lưu thông của không khí qua sảnh nhờ những lỗ thông trên hai tường đối diện

h) Khoảng đệm không nhiễm khói đi theo hành lang bên

i) Khoảng đệm không nhiễm khói đi theo hành lang bên
Hình I.8 (tiếp theo)

k) Khoảng đệm không nhiễm khói đi theo hành lang bên
Hình I.8 (kết thúc)
I.3.3 Buồng thang bộ không nhiễm khói loại N2 và N3

Hình I.9 - Các buồng thang bộ không nhiễm khói loại N2 và N3
Bạn chưa Đăng nhập thành viên.
Đây là tiện ích dành cho tài khoản thành viên. Vui lòng Đăng nhập để xem chi tiết. Nếu chưa có tài khoản, vui lòng Đăng ký tại đây!
Bạn chưa Đăng nhập thành viên.
Đây là tiện ích dành cho tài khoản thành viên. Vui lòng Đăng nhập để xem chi tiết. Nếu chưa có tài khoản, vui lòng Đăng ký tại đây!