- Tổng quan
- Nội dung
- Tiêu chuẩn liên quan
- Lược đồ
- Tải về
Tiêu chuẩn Quốc gia TCVN 12299:2018 Khu cách ly đối với sinh vật có ích nhập khẩu
| Số hiệu: | TCVN 12299:2018 | Loại văn bản: | Tiêu chuẩn Việt Nam |
| Cơ quan ban hành: | Bộ Khoa học và Công nghệ | Lĩnh vực: | Nông nghiệp-Lâm nghiệp |
|
Ngày ban hành:
Ngày ban hành là ngày, tháng, năm văn bản được thông qua hoặc ký ban hành.
|
2018 |
Hiệu lực:
|
Đã biết
|
| Người ký: | Đang cập nhật |
Tình trạng hiệu lực:
Cho biết trạng thái hiệu lực của văn bản đang tra cứu: Chưa áp dụng, Còn hiệu lực, Hết hiệu lực, Hết hiệu lực 1 phần; Đã sửa đổi, Đính chính hay Không còn phù hợp,...
|
Đã biết
|
TÓM TẮT TIÊU CHUẨN VIỆT NAM TCVN 12299:2018
Nội dung tóm tắt đang được cập nhật, Quý khách vui lòng quay lại sau!
Tải tiêu chuẩn Việt Nam TCVN 12299:2018
TIÊU CHUẨN QUỐC GIA
TCVN 12299:2018
KHU CÁCH LY ĐỐI VỚI SINH VẬT CÓ ÍCH NHẬP KHẨU - YÊU CẦU CHUNG
Isolation area for imported biological control agents - General requirements
Lời nói đầu
TCVN 12299: 2018 do Trung tâm Kiểm dịch thực vật sau nhập khẩu I - Cục Bảo vệ thực vật biên soạn, Bộ Nông nghiệp và Phát triển nông thôn đề nghị, Tổng cục Tiêu chuẩn Đo lường Chất lượng thẩm định, Bộ Khoa học và Công nghệ công bố.
KHU CÁCH LY ĐỐI VỚI SINH VẬT CÓ ÍCH NHẬP KHẨU - YÊU CẦU CHUNG
Isolation area for imported biological control agents - General requirements
1 Phạm vi áp dụng
Tiêu chuẩn này quy định các yêu cầu chung đối với khu cách ly đối với sinh vật có ích nhập khẩu.
2 Thuật ngữ-định nghĩa
Trong tiêu chuẩn này các thuật ngữ và định nghĩa được hiểu như sau:
2.1
Côn trùng có ích
Là những loài côn trùng có tác dụng điều hòa số lượng của sinh vật gây hại đối với tài nguyên thực vật hoặc sử dụng vào mục đích có lợi cho con người.
2.2
Nấm có ích
Là những loài nấm có tác dụng khống chế, điều hòa số lượng của sinh vật gây hại đối với tài nguyên thực vật hoặc sử dụng vào mục đích có lợi cho con người.
2.3
Chuyên tính
Là loài sinh vật có ích chỉ phát triển trên một loài hoặc một dòng ký chủ (đơn thực).
2.4
Khu cách ly
Là nơi nhân nuôi, bảo quản và kiểm tra sinh vật có ích cách ly hoàn toàn với môi trường bên ngoài trong thời gian kiểm dịch.
3 Yêu cầu chung
3.1 Yêu cầu cơ sở vật chất
Khu cách ly gồm có:
- Phòng nhận mẫu.
Diện tích tối thiểu là 4,5m x 2,5m
- Phòng nuôi (côn trùng, nhện, tuyến trùng, nấm, vi khuẩn).
Diện tích tối thiểu là 4,5m x 2,5m
- Phòng thí nghiệm nghiên cứu: côn trùng, nhện, tuyến trùng, nấm, vi khuẩn.
Diện tích tối thiểu là 7,5m x 5,5m
Tùy thuộc vào nhu cầu sử dụng các đối tượng sinh vật có ích, khu cách ly sẽ thiết kế diện tích của các phòng, số lượng phòng nuôi và phòng thí nghiệm khác nhau (Phụ lục A).
- Hệ thống điện, nguồn điện ổn định và đủ công suất đáp ứng chiếu sáng và các thiết bị khác như: thiết bị thí nghiệm, hệ thống điều hòa, thông gió.
- Mỗi phòng đều được trang bị hệ thống đèn tia cực tím, hút ẩm.
- Các phòng thí nghiệm và nhân nuôi phải kín đảm bảo không để sinh vật có ích lọt ra khỏi nơi lưu giữ để nuôi và kiểm tra.
- Nền phòng phải được làm từ vật liệu dễ vệ sinh khử trùng.
- Hệ thống cửa sổ, quạt thông gió phải được phủ lưới với kích thước mắt lưới không vượt quá 0,25 mm.
3.2 Yêu cầu về trang thiết bị
3.2.1 Phòng nhận mẫu
- Mục đích: Nhận và phân loại mẫu sinh vật có ích
Lưu giữ các thông tin của sinh vật có ích
- Yêu cầu trang thiết bị:
Bàn và ghế được sản xuất bằng vật liệu dễ dàng làm sạch và khử trùng
Các giá để mẫu
3.2.2 Phòng nuôi sinh vật có ích
Mục đích: kiểm tra tính chuyên tính
Nuôi sinh vật có ích với từng loại ký chủ riêng rẽ (bắt đầu từ loài ký chủ mà loài sinh vật có ích được dự định sử dụng để phòng trừ cho đến các loài có họ hàng gần với loài ký chủ đó, các côn trùng có ích bản địa). Nếu sinh vật có ích lựa chọn loại dịch hại nào thì tiếp tục nuôi bằng loại dịch hại đó cho tới khi chúng hoàn thành vòng đời hoặc bị chết (hoặc ký chủ chết hoàn toàn).
3.2.2.1 Phòng nuôi côn trùng
- Yêu cầu về trang thiết bị:
• Giá để hộp
• Lồng nuôi có khung bằng nhôm hoặc gỗ với 1 mặt kính và 5 mặt được làm bằng lưới có kích thước mắt lưới không vượt quá 0,25 mm (kích thước: 46 x 46 x 55 cm).
• Hộp nhựa có nắp lưới có kích thước mắt lưới không vượt quá 0,25 mm
• Lọ đựng mẫu
• Bút lông, panh, kéo, bộ dao
• Ống nghiệm, ống hút
• Hệ thống cửa đôi màu đen và bố trí các bẫy ánh sáng phù hợp ở giữa ngăn cửa đôi. Hệ thống thông gió và hệ thống thoát nước phải được thiết kế chống côn trùng thoát ra.
• Tường sơn màu trắng để dễ dàng phát hiện côn trùng thoát ra.
3.2.2.2 Phòng nhân nuôi vi sinh vật (nấm, vi khuẩn, tuyến trùng)
Tùy thuộc vào quy mô của khu cách ly và mục đích sử dụng sẽ quyết định số lượng phòng nhân nuôi. Các trang thiết bị phục vụ cho việc nuôi nấm, vi khuẩn và tuyến trùng như sau.
- Yêu cầu về trang thiết bị:
• Giá để hộp/đĩa petri
• Tủ lạnh
• Buồng cấy vi sinh
3.2.3 Phòng thí nghiệm
- Mục đích: kiểm tra độ thuần, ký sinh bậc 2 của sinh vật có ích.
- Kiểm tra tất cả các sinh vật có ích nhập khẩu và đánh giá độ thuần, sự lẫn tạp của các loài khác cũng như các sinh vật và tạp chất khác. Loại bỏ các cá thể khác loại lẫn vào.
- Kiểm tra thường xuyên các lồng nuôi, đĩa petri. Khi phát hiện sinh vật có ích bị chết, không phát triển hoặc có hiện tượng bất thường thì tiến hành các phương pháp kiểm tra chuyên sâu cần thiết để xác định nguyên nhân.
- Yêu cầu trang thiết bị:
• Kính hiển vi có độ phóng đại 40 đến 1.000 lần (40x - 1000x).
• Kính lúp soi nổi (độ phóng đại 10x - 60x)
• Buồng cấy vi sinh
• Tủ sinh thái
• Máy tính kết nối internet
• Hot plate
• Máy ảnh
• Tủ lạnh, tủ đựng hóa chất
• Máy chưng nước cất
• Nồi hấp tiệt trùng (dung tích 24 lít, Thang nhiệt độ/áp suất: 118 đến 134°C (0.9 đến 2.1 kg/cm2)
• Tủ sấy UM 500 (dung tích 53 lít, điều chỉnh nhiệt độ từ nhiệt độ phòng đến 220°C)
• Môi trường PDA (Potato-Dextrose Agar), môi trường PGA (Potato-Glucose Agar), môi trường Nutrient Agar
• Bom Canada
• Parafin cuộn
• Đường Fructoza
• Glycerin, fomaldehit, axit fuchsin
3.3 Yêu cầu xử lý mẫu
Tất cả các sinh vật có ích bị chết, bị lẫn tạp hoặc không đảm bảo yêu cầu trước khi đưa ra khỏi phòng thí nghiệm hoặc khu cách ly được hấp khử trùng ở 121°C trong vòng 30 min ở 1,5 atm hoặc sấy khô ở 177°C trong thời gian 2 h đến 3 h.
4 Quy trình thực hiện

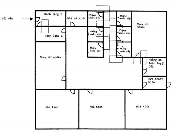
Phụ lục A
(Tham khảo)
Một số mô hình khu cách ly

Hình A.1: Khu cách ly của trường đại học Rhode Island

Hình A.2: Một cơ sở nghiên cứu sinh vật có ích tại Florida

Hình A.3: Một mô hình phòng thí nghiệm an toàn sinh học cấp độ 1 (WHO, 2004)
THƯ MỤC TÀI LIỆU THAM KHẢO
[1] Lester w. Burgess, Timothy E. Knight, Len Tesoriero và Phan Thúy Hiền, 2009. Cẩm nang chẩn đoán bệnh cây ở Việt Nam.
[2] Overholt w. A. , Cave R. D. , Pratt p. D. , Lake p. C. , and Scoles J. C. , 2016. Biological control containment Facilities in Florida, 2016.
[3] Public health agency of Canada, The Laboratory biosafety guidelines: 3rd Edition, 2004.
[4] Quarantine Approved Premises (QAP) 5.3: Quarantine Containment Level 3 under section 46A of the Quarantine Act 1908 (the Act).
[5] University of Rhode Island, 2014 USDA Aphis inspected quarantine facility kingston, Rl. standard operating procedures manual.
[6] University of South Carolina, 2010 Laboratory Design & Construction Guidelines
[7] World Health Organization 2004, Laboratory biosafety manual facility Kingston, Rl. standard operating procedures manual.
Bạn chưa Đăng nhập thành viên.
Đây là tiện ích dành cho tài khoản thành viên. Vui lòng Đăng nhập để xem chi tiết. Nếu chưa có tài khoản, vui lòng Đăng ký tại đây!