- Tổng quan
- Nội dung
- Tiêu chuẩn liên quan
- Lược đồ
- Tải về
Tiêu chuẩn xây dựng TCXDVN 266:2002 Nhà ở - Hướng dẫn xây dựng đảm bảo người tàn tật tiếp cận sử dụng
| Số hiệu: | TCXDVN 266:2002 | Loại văn bản: | Tiêu chuẩn XDVN |
| Cơ quan ban hành: | Đang cập nhật | Lĩnh vực: | Đất đai-Nhà ở , Xây dựng |
|
Ngày ban hành:
Ngày ban hành là ngày, tháng, năm văn bản được thông qua hoặc ký ban hành.
|
01/01/2002 |
Hiệu lực:
|
Đã biết
|
| Người ký: | Đang cập nhật |
Tình trạng hiệu lực:
Cho biết trạng thái hiệu lực của văn bản đang tra cứu: Chưa áp dụng, Còn hiệu lực, Hết hiệu lực, Hết hiệu lực 1 phần; Đã sửa đổi, Đính chính hay Không còn phù hợp,...
|
Đã biết
|
TÓM TẮT TIÊU CHUẨN XDVN TCXDVN 266:2002
TCXDVN 266:2002 - Tiêu chuẩn xây dựng nhà ở cho người tàn tật
TCXDVN 266:2002 được ban hành bởi Bộ Xây dựng ngày 01/10/2002, có hiệu lực thi hành ngay sau khi công bố và không có văn bản thay thế nào. Tiêu chuẩn này nhằm mục đích hướng dẫn xây dựng nhà ở để đảm bảo người tàn tật có thể tiếp cận và sử dụng một cách thuận tiện nhất.
1. Phạm vi áp dụng
- Tiêu chuẩn này áp dụng cho việc xây dựng mới các loại nhà ở dành cho người tàn tật, bao gồm cả cải tạo các khu nhà cũ. Điều này có nghĩa là khi thiết kế nhà ở, cần đặc biệt chú ý đến các yêu cầu của người tàn tật, bao gồm cả người vận động và khiếm thị.
2. Quy hoạch khu nhà ở
- Vị trí thuận lợi: Nhà ở cần được đặt ở những vị trí gần nơi có giao thông thuận lợi và các dịch vụ công cộng như công viên và trung tâm thương mại.
- Thiết kế đường và hè phố: Tiêu chuẩn yêu cầu phải có các lối dốc, vỉa hè dành riêng cho người tàn tật, và các biển báo cần được lắp đặt để chỉ dẫn.
3. Giải pháp thiết kế
- Bãi để xe: Tối thiểu 2-3 chỗ đỗ xe cho người tàn tật phải được bố trí gần lối vào nhà. Mỗi chỗ đỗ xe cần có đủ khoảng không gian để người tàn tật có thể dễ dàng di chuyển bằng xe lăn.
- Đường dốc và lối vào: Các lối ra vào nhà ở phải được thiết kế với độ dốc và chiều rộng phù hợp, nhằm tạo điều kiện cho xe lăn đi qua dễ dàng. Cần trang bị tay vịn và đảm bảo bề mặt đường dốc bằng phẳng.
- Cầu thang và thang máy: Ở các nhà ở có cầu thang, thiết kế phải đảm bảo chiều rộng tối thiểu cho người tàn tật sở hữu xe lăn, đồng thời thang máy là giải pháp ưu tiên để đảm bảo tiếp cận các tầng khác trong tòa nhà.
4. Thiết kế cửa và cửa sổ
- Cửa đi: Cần có kích thước rộng tối thiểu 800mm và dễ dàng mở đóng cho người tàn tật. Ngoài ra, cửa sổ cũng phải được thiết kế ở độ cao thích hợp để đảm bảo người ngồi xe lăn có thể quan sát dễ dàng.
5. Các phòng chức năng
- Các phòng trong nhà, như phòng khách, phòng ngủ và bếp, cần được thiết kế với không gian rộng rãi để xe lăn có thể dễ dàng di chuyển. Bề mặt làm việc trong bếp cần có chiều cao linh hoạt, từ 700mm đến 850mm, để người tàn tật có thể thao tác thuận tiện.
TCXDVN 266:2002 không chỉ tạo điều kiện để người tàn tật tiếp cận nhà ở mà còn đảm bảo họ có một không gian sống an toàn và thuận tiện. Việc thực hiện các tiêu chuẩn trên không chỉ là nghĩa vụ của các nhà xây dựng mà còn là trách nhiệm chung của xã hội để xây dựng một cộng đồng hòa nhập.
TIÊU CHUẨN XÂY DỰNG VIỆT NAM
TCXDVN 266 : 2002
NHÀ Ở - HƯỚNG DẪN XÂY DỰNG ĐỂ ĐẢM BẢO NGƯỜI TÀN TẬT TIẾP CẬN SỬ DỤNG
LỜI NÓI ĐẦU
TCXDVN 266 : 2002 được biên soạn căn cứ vào Pháp lệnh về người tàn tật: Điều 26: “Việc đầu tư xây dựng mới hoặc cải tạo công trình nhà ở, các công trình công cộng và thiết kế chế tạo các dụng cụ sinh hoạt, các phương tiện giao thông, liên lạc phải tính đến nhu cầu sử dụng thuận tiện của người tàn tật, trước hết là người tàn tật các dạng vận động, thị giác, đồng thời phải tuân thủ tiêu chuẩn, quy chuẩn xây dựng do cơ quan Nhà nước có thẩm quyền ban hành:
TCXDVN 266 : 2002 do Viện Nghiên cứu Kiến trúc và Ban soạn thảo “Quy chuẩn và tiêu chuẩn xây dựng công trình đảm bảo sử dụng của người tàn tật tại Việt Nam" biên soạn, Vụ Khoa học Công nghệ - Bộ Xây dựng đề nghị và được Bộ Xây dựng kí ban hành.
TCXDVN 266 : 2002 được biên soạn với sự hợp tác và tài trợ của Ủy ban Tổng thống Mỹ về việc làm cho người tàn tật (PCEPD) và Hội trợ giúp người tàn tật Việt Nam (VNAH).
NHÀ Ở - HƯỚNG DẪN XÂY DỰNG ĐỂ ĐẢM BẢO NGƯỜI TÀN TẬT TIẾP CẬN SỬ DỤNG
Residents - Guidance of accessible design and construction for people with disabilities
1. Phạm vi áp dụng
Hướng dẫn này áp dụng khi xây dựng mới các loại nhà ở đảm bảo cho người tàn tật vận động và khiếm thị tiếp cận sử dụng, đồng thời khuyến khích áp dụng cho việc cải tạo, nâng cấp các khu nhà ở cũ có tính đến nhu cầu sử dụng của người tàn tật.
2. Tiêu chuẩn viện dẫn
- QCXDVN 01 : 2002 - Quy chuẩn xây dựng công trình để đảm bảo người tàn tật tiếp cận sử dụng.
- TCVN 4451 : 1987 - Nhà ở - Nguyên tắc cơ bản để thiết kế.
- TCXDVN 264 : 2002 - Nhà và công trình - Nguyên tắc cơ bản xây dựng công trình để đảm bảo người tàn tật tiếp cận sử dụng.
3. Thuật ngữ, định nghĩa
Các thuật ngữ sử dụng trong hướng dẫn này đã được định nghĩa trong Quy chuẩn xây dựng công trình để đảm bảo người tàn tật tiếp cận sử dụng.
4. Quy hoạch khu nhà ở
4.1. Quy hoạch xây dựng nhà ở để đảm bảo người tàn tật tiếp cận sử dụng cần tuân theo tiêu chuẩn TCVN 4451 : 1987. Nhà ở - Nguyên tắc cơ bản để thiết kế.
4.2. Nhà ở để đảm bảo người tàn tật tiếp cận sử dụng được đặt ở các vị trí ưu tiên sau:
- Thuận lợi về giao thông, dễ đến cho người tàn tật.
- Gần những nơi có công viên, cây xanh, đường đi dạo.
- Gần các trung tâm dịch vụ thương mại, dịch vụ công cộng, gần trung tâm chăm sóc sức khỏe.
4.3. Trong các khu ở phải thiết kế đường và hè phố thuận lợi cho người tàn tật sử dụng. Tại các lối vào nhà ở phải làm đường dốc, vệt dốc lên vỉa hè cho xe lăn của người tàn tật.
4.4. Trong khu nhà ở phải có biển báo, biển chỉ dẫn cho người tàn tật
4.5. Khi thiết kế nhà ở cho người tàn tật ngoài việc tuân theo yêu cầu trong hướng dẫn này còn phải tuân theo TCXDVN 264 : 2002 - Nhà và công trình - Nguyên tắc cơ bản xây dựng công trình để đảm bảo người tàn tật tiếp cận sử dụng.
5. Giải pháp thiết kế
5.1. Bãi để xe và điểm chờ xe
5.1.1. Bãi để xe phải bố trí chỗ để xe cho người tàn tật. Bãi để xe được bố trí cứ 100 xe có 2 đến 3 chỗ để xe cho người tàn tật. Chỗ để xe cho người tàn tật phải được đặt ngay cạnh đường dốc hoặc lối ra vào của ngôi nhà và phải có biển báo, biển chỉ dẫn.
5.1.2. Bên cạnh chỗ đỗ xe phải có khoảng không gian thông thủy để cho người tàn tật đi xe lăn lên xuống. Chiều rộng từ 900mm đến 1200mm, đối với trường hợp xe buýt chiều rộng phải là 2500mm (xem hình 1). Nếu bố trí vị trí để hai xe của người tàn tật liền nhau thì có thể dùng chung một đường cho xe lăn.
5.1.3. Tại các điểm chờ xe phải thiết kế vệt dốc hay đường dốc đảm bảo cho người tàn tật đến được các phương tiện giao thông. Các điểm chờ xe phải được chiếu sáng tối thiểu là 54lux và có mái che. Chi tiết thiết kế đường dốc, vệt dốc lấy như quy định ở điều 5.2.

Hình 1: Kích thước quy định cho một chỗ đỗ xe
5.2. Đường dốc
5.2.1. Các lối ra vào nhà ở để đảm bảo người tàn tật tiếp cận sử dụng phải không có sự thay đổi độ cao đột ngột, nếu có sự thay đổi độ cao phải thiết kế đường dốc. Đường dốc đảm bảo cho người tàn tật sử dụng phải phẳng, không gồ ghề, có độ nhám.
5.2.2. Đường dốc lối vào chính dành cho người tàn tật dùng xe lăn có:
- Độ dốc cho phép từ 1/10 đến 1/33. Độ cao đường dốc và độ dài đường dốc xem bảng 1.
- Chiều rộng đường dốc không được nhỏ hơn 1000mm. Xem hình 2, 3, 4.
- Bố trí chiếu nghỉ khi chiều dài đường dốc lớn hơn 9000mm. Chiều dài chiếu nghỉ không được nhỏ hơn 2000mm và ở các khoảng cách đều nhau không quá 9000mm (xem hình 5 và hình 6).
- Hai bên đường dốc phải bố trí tay vịn. Chi tiết thiết kế tay vịn xem ở điều 5.12.
Chú thích:
1) Khi đường dốc chuyển hướng phải bố trí chiếu nghỉ hình chữ L mỗi chiều dài 2000 mm.
2) Khi đường dốc có độ thoải lớn hơn 1/33 thì không cần có chiếu nghỉ.
Bảng 1: Độ dốc, chiều cao và chiều dài đường dốc (mm)
| - Độ dốc của đường dốc | 1/10 | 1/12 | 1/14 | 1/19 | 1/20 | 1/33 |
| - Chiều cao cho phép của mỗi đoạn dốc | 600 | 750 |
|
|
|
|
| - Chiều dài cho phép của mỗi đoạn dốc | 6000 | 9000 | 12000 | 14000 | 14000 | 25000 |

Hình 2: Phối cảnh đường dốc (đáy rộng)

Hình 3: Phối cảnh đường dốc kéo dài

Hình 4: Phối cảnh đường dốc lên có lề liên tục

Hình 5: Mặt bằng đường dốc ngoài nhà

Hình 6: Mặt bằng đường dốc có chiếu nghỉ ở góc
5.2.3. Ở phía đầu và phía cuối của đường dốc, phải có khoảng trống để xe lăn có thể di chuyển được, kích thước không được nhỏ hơn 1500mm.
5.2.4. Phải bố trí lan can, tay vịn ở cả 2 phía đường dốc. Nếu một bên đường dốc có khoảng trống thì phía chân lan can, tay vịn nên bố trí gờ an toàn có chiều cao không nhỏ hơn 50mm hoặc bố trí rào chắn xem hình 7.
5.2.5. Đường dốc cho người khiếm thị có lan can phụ làm thấp, có tấm lát dẫn hướng và đánh dấu vị trí chỉ dẫn tới đỉnh của đường dốc, chiếu nghỉ, chiếu đợi.

Hình 7: Lan can an toàn của đường dốc
5.3. Lối ra vào
5.3.1. Đối với nhà ở không thể thiết kế đường dốc thì phải thiết kế lối ra vào có bậc thuận tiện cho người đi lại khó khăn như người chống nạng, chống gậy và người khiếm thị. Lối ra vào có bậc phải đảm bảo những yêu cầu sau:
- Chiều cao bậc cho phép 120mm đến 160mm.
- Bề rộng mặt bậc cho phép 300mm đến 400mm
- Không dùng bậc thang hở.
- Phải bố trí chiếu nghỉ ở bậc phía trên cùng.
- Nếu bậc thềm quá 3 bậc thì hai phía của bậc thềm phải bố trí tay vịn. Chi tiết thiết kế tay vịn xem quy định ở điều 5.12 (xem hình 8 và hình 9).
5.3.2. Lối chính vào nhà ở được bố trí trực tiếp vào sảnh chung (không nên thiết kế lối dành riêng chỉ cho người tàn tật). Lối vào chính không dẫn đến phòng ngủ và dễ nhận biết. Lối vào phải có biển báo, biển chỉ dẫn.
5.3.3. Lối vào chính phải có độ cao bằng độ cao sàn nhà hoặc phải có đường dốc đến sàn nhà.
|
| Hình 8: Lối vào có bậc 1. Kích thước nhỏ nhất của khoảng không trước lối vào (1500mm x 1500mm); 2. Cửa lối vào đặt trong hốc tường; 3. Tay vịn kéo dài ở đỉnh đường dốc; 4. Tay vịn kéo dài ở chân đường dốc; 5. Đường tiếp cận có bậc; 6. Lề đường; 7. Tay vịn bố trí ở độ cao 900mm; 8. Đường dốc có độ dốc 1/12, rộng 1200mm. |

Hình 9: Giao nhau của lối vào có bậc và đường dốc
5.4. Sảnh
5.4.1. Lối vào chính của nhà ở phải đến được sảnh (đối với nhà chung cư), đến được tiền sảnh (đối với nhà ở khác). Thang và thang máy bố trí ngay tại sảnh.
5.4.2. Sảnh phải có kích thước đủ rộng cho xe lăn dịch chuyển, đường kính 1300mm. Tiền sảnh tối thiểu rộng 2300mm x 2500mm. Kích thước giữa hai lớp cửa là 2500mm, xem hình 10.
5.4.3. Nhà chung cư phải có biển báo và biển chỉ dẫn cho người tàn tật ở tại sảnh.
5.4.4. Bề mặt nền sảnh bằng phẳng, có độ nhám để chống trơn trượt.
5.5. Hành lang, lối đi
5.5.1. Chiều rộng thông thủy của hành lang được lấy như sau:
- Một xe lăn đi qua: không nhỏ hơn 1000mm;
- Một xe lăn đi qua và một người đi ngược chiều: không nhỏ hơn 1500mm;
- Hai xe lăn đi qua: không nhỏ hơn 1800mm (xem hình 11).

Hình 10: Cách bố trí cửa tại sảnh và kích thước không gian sảnh

Hình 11: Kích thước các lối đi
5.2.2. Tại chỗ hành lang đổi hướng thì hành lang phải rộng 900mm và nếu có cửa thì phải rộng 1200mm (xem hình 12).

Hình 12: Chiều rộng của hành lang đổi hướng
5.5.3. Nếu hai bên hành lang có gờ tường thì chiều rộng thông thủy phải lấy như quy định ở điều 5.5.1.
5.5.4. Phải bố trí tay vịn hai bên hành lang ở độ cao 900mm. Góc quay ở những chỗ rẽ nên là mặt tường vòng cung hoặc mặt tường vuông góc.
Nếu ở đầu hành lang hoặc ở phía cuối hành lang chênh lệch độ cao với mặt sàn hoặc mặt đất thì phải có lan can, tấm chắn hoặc gờ chắn và phải lắp đặt biển báo an toàn.
5.5.5. Kích thước thông thủy để xe lăn di chuyển trên hành lang được quy định như sau:
a) Lối vào thẳng vuông góc (xem hình 13): kích thước thông thủy là 1200mm x 900mm.
b) Lối vào song song (xem hình 14): kích thước thông thủy là 1500mm x 800mm.

Hình 13: Lối vào thẳng vuông góc
5.5.6. Trên lối đi cho phép các vật nhô ra 100mm và được lắp đặt ở độ cao cách mặt sàn 600mm và trên 2000mm (xem hình 15).
Chú thích: Tay vịn của cầu thang và đường dốc được phép nhô ra lớn nhất là 115mm.
5.5.7. Những vật được gắn trên trục như biển quảng cáo, cột điện thoại công cộng, thùng thư... cho phép nhô ra mỗi bên 300mm và được lắp đặt ở độ cao cách mặt sàn 650mm và trên 2000mm (xem hình 16).
| Hình 14. Lối vào song song |
| ||
|
| Hình 15. Giới hạn cho phép của vật nhô ra |
| |

Hình 16: Giới hạn cho phép nhô ra của các vật gắn trên trục
5.5.8. Lối đi có chiều cao thông thủy thấp dần và nhỏ hơn 2000mm thì phải bố trí thanh chắn. Độ cao lắp đặt thanh chắn cách mặt sàn tối thiểu 700mm (xem hình 17).
5.6. Cầu thang, bậc lên xuống
5.6.1. Cầu thang trong nhà ở chung cư được quy định như sau:
- Không dùng cầu thang hình vòng cung, xoắn ốc;
- Chiều rộng về cầu thang không nên nhỏ hơn 1200mm;
- Mặt bậc thang phải không trơn trượt và không làm mũi bậc có hình vuông;

Hình 17: Lối đi có chiều cao thông thủy thấp dần
- Không dùng cầu thang loại bậc hở;
- Tay vịn phải bố trí liên tục và ở độ cao 900mm. Ở điểm bắt đầu và điểm kết thúc cầu thang, tay vịn được kéo dài thêm 300mm. Chi tiết tay vịn theo quy định ở điều 5.12.
- Nếu cầu thang có trải thảm thì phải được lót chắc chắn. Mép ngoài của thảm phải được gắn chặt với sàn. Góc giữa mặt bậc và thân bậc không được lớn hơn 30°. Mũi bậc không được lõm vào làm vướng mũi giầy hoặc nạng chống.
Chú thích: Đối với các loại nhà ở như nhà liền kế, nhà biệt thự... nếu có yêu cầu có thể cho phép:
- Sử dụng cầu thang hình vòng cung, xoắn ốc;
- Chiều rộng về cầu thang không nhỏ hơn 800mm.
5.6.2. Bề rộng mặt bậc thang không nhỏ hơn 300mm với cầu thang trong nhà, không nhỏ hơn 400mm với cầu thang ngoài nhà. Độ cao bậc thang không được lớn hơn 160mm với thang trong nhà và không được lớn hơn 120mm với thang ngoài nhà (xem hình 18).

Hình 18: Bề rộng mặt bậc và chiều cao bậc
5.6.3. Mũi bậc thang được thiết kế không lớn hơn 25mm. Nếu mũi bậc được thiết kế vượt ra ngoài thân bậc thì mũi bậc phải được lượn cong hoặc vê tròn (xem hình 19).

Hình 19: Mũi bậc thang
5.6.4. Chiều cao của một đợt thang không được lớn hơn 1800mm và phải bố trí chiếu nghỉ. Chiều rộng chiếu nghỉ không nhỏ hơn 800mm. Khoảng cách giữa mặt trên tay vịn với mặt bậc thang đầu tiên và mặt dốc phía cuối không được lớn hơn 1000mm theo chiều thẳng đứng (xem hình 20).

Hình 20: Kích thước cầu thang
5.6.5. Cầu thang phải được chiếu sáng tốt. Mặt bậc đầu và cuối cầu thang có mầu khác với mầu mặt sàn.
5.6.6. Nhà ở không có thang máy phải có hệ thống nâng hoặc hạ xuống bằng các thiết bị chuyên dụng gắn vào lan can hoặc ròng rọc (xem hình 21, 22, 23, 24). Hai bên cầu thang đặt tay vịn cao 900mm.

Hình 21: Thang nâng trong nhà ở

Hình 22: Thang nâng cố định


Hình 23: Các thiết bị chuyên dụng

Hình 24: Thiết bị nâng tại các nơi có nhiều bậc thang
5.7. Thang máy
5.7.1. Giải pháp giao thông theo chiều đứng tốt nhất cho người tàn tật là thang máy. Hệ thống hoạt động của thang máy phải hoàn toàn tự động.
Chú thích: Trường hợp nhà ở không có thang máy phải bố trí các phòng ở cho người tàn tật ở tầng trệt.
5.7.2. Yêu cầu về an toàn khi lắp đặt và sử dụng thang máy và thang máy điện phải tuân theo các quy định trong tiêu chuẩn TCVN 5744 : 1993. Thang máy - Yêu cầu an toàn trong lắp đặt và sử dụng và TCVN 6395 : 1998. Thang máy điện - Yêu cầu an toàn về cấu tạo và lắp đặt.
5.7.3. Thang máy cần phải đặt gần thang bộ. Khoảng cách từ thang máy đến thang bộ từ 2400mm - 3600mm (xem hình 25).
5.7.4. Cửa thang máy được mở theo chiều ngang và kích thước thông thủy sau khi mở không được nhỏ hơn 900mm. Tùy theo vị trí đặt cửa, kích thước thông thủy bên trong của buồng thang máy được lấy như quy định trong bảng 2 và xem hình 26.
Bảng 2: Kích thước nhỏ nhất của buồng thang máy
| Vị trí cửa | Chiều rộng thông thủy của cửa (mm) | Chiều rộng bên trong buồng thang máy (mm) | Chiều sâu từ tường phía sau đến mặt tường phía trước (mm) |
| Đặt giữa Đặt lệch Bất kì | 900 900 900 900 | 2100 1800 1400 1500 | 1300 1300 2100 1500 |

Hình 25: Quy định khoảng cách giữa thang máy và thang bộ

Hình 26: Kích thước buồng thang máy
5.7.5. Diện tích khoảng không gian đợi trước khi vào thang máy không được nhỏ hơn 1500mm x 1500mm.
5.7.6. Cửa thang máy được lắp thiết bị tự đóng mở. Thời gian đóng mở cửa phải lớn hơn 20 giây.
5.7.7. Bảng điều khiển trong buồng thang máy được lắp đặt ở độ cao không lớn hơn 1200mm và không thấp hơn 900mm tính từ mặt sàn thang máy đến tâm nút điều khiển cao nhất. Trên các nút điều khiển phải có các kí tự hoặc tín hiệu cảm nhận được từ xúc giác và hệ thống chữ nổi Brain dành cho người khiếm thị. Các kí tự và chữ nổi Brain xem trên hình 27.
Chú thích: Hệ thống điều khiển thang máy bao gồm cả nút điều khiển khẩn cấp, còi báo động, báo hỏa hoạn được tập hợp thành một nhóm bố trí ở phía dưới bảng điều khiển.

Hình 27: Các ký hiệu và tín hiệu trên lối vào thang máy dành cho người khiếm thị
5.7.8. Nút điều khiển trước cửa buồng thang máy được lắp đặt ở độ cao không quá 1200mm và không thấp hơn 900mm so với mặt sàn. Độ cao này được tính từ tâm của nút điều khiển (xem hình 28). Các nút điều khiển đặt ở mặt tường bên, cách mặt tường liền kề 300mm đến 500mm.

Hình 28: Độ cao lắp đặt các thiết bị điều khiển
5.7.9. Các kí tự nổi và hệ chữ Brain sẽ được đặt ngay bên trái nút mà chúng kí hiệu. Quy cách nhận dạng các kí hiệu chữ nổi quy định trong bảng 3.
Bảng 3: Kí hiệu các nút điều khiển thang máy

5.7.10. Trong buồng thang máy cần lắp đặt cả tín hiệu âm thanh lẫn các số hiển thị để nhận dạng vị trí tầng mà thang máy sẽ đến.
Tín hiệu âm thanh sẽ phát tiếng một lần đối với hướng lên và 2 lần cho hướng xuống hoặc có thông báo bằng lời nói nhấn mạnh "lên" hoặc "xuống". Tín hiệu âm thanh sẽ có tần số tối đa 1500Hz. Tín hiệu âm thanh thông báo qua lời nói tối thiểu là 10dBA nhưng không được vượt quá 80dBA được đo tại nút gọi của sảnh. Tín hiệu này sẽ tự động thông báo về số tầng mà buồng thang máy dừng lại.
5.7.11. Mức độ chiếu sáng tại bảng điều khiển thang máy, mặt sàn, ngưỡng cửa và không gian đợi trước khi vào thang máy không được nhỏ hơn 60lux.
5.8. Lối thoát nạn
5.8.1. Trong nhà ở nhất thiết phải có lối thoát nạn cho người tàn tật khi gặp sự cố. Trên đường thoát nạn phải có chỗ dành cho người tàn tật ở cùng một độ cao và đầu đường thoát nạn phải có cầu thang bộ.
5.8.2. Chiều rộng đường thoát nạn phải từ 900mm đến 1200mm. Ở những nơi tập trung đông người phải rộng 1800mm. Trên đường thoát không được có sự thay đổi độ cao. Nếu dùng các cửa tự động hoặc dùng thẻ từ thì các cửa này phải tự mở khi có cháy.
5.8.3. Phải đảm bảo độ rọi chiếu sáng trên đường thoát nạn từ 0,1 đến 0,2lux. Tại các cửa ra vào và các bậc thang lên xuống cũng phải đảm bảo chiếu sáng.
5.9. Cửa đi
5.9.1. Cửa đi trong nhà ở thiết kế để đảm bảo cho người tàn tật sử dụng phải không gây cản trở nguy hiểm, dễ đóng mở và phải được bố trí ở nơi đi lại thuận tiện và an toàn.
5.9.2. Bề mặt sàn phía trong và ngoài cửa đi phải ở cùng một độ cao. Nếu sàn phía trong và phía ngoài không cùng một độ cao thì phải thiết kế đường dốc ngay tại cửa.
5.9.3. Phía trong và phía ngoài cửa đi phải có khoảng không gian thông thủy kích thước 1500mm x 1500mm.
5.9.4. Nếu cửa đi có hai lớp cửa, sau mỗi lớp cửa phải có khoảng không gian thông thủy không nhỏ hơn 1200mm.
5.9.5. Ưu tiên sử dụng cửa đi mở ra cả hai phía. Khi có điều kiện, có thể dùng các loại cửa đi đóng mở tự động, cửa đẩy, cửa xoay thay cho loại cửa mở bằng tay. Không bố trí các loại cửa quá nặng hoặc loại cửa quay có nhiều cánh. Chiều rộng cửa không được nhỏ hơn 800mm và không nên bố trí khít vào góc tường.
5.9.6. Cửa đi dùng cho khu vệ sinh nên là loại cửa mở ra ngoài hoặc cửa trượt. Cửa treo hoặc cửa đẩy phải nhẹ. Chỉ cho phép cửa mở vào trong khi bên trong phòng vệ sinh có không gian đủ rộng. Mặt trong cửa cần bố trí giá đỡ nằm ngang, cách mặt sàn 1100mm. Cửa đi khu vệ sinh cho phép có chiều rộng không nhỏ hơn 700mm.
Chú thích: Lực đóng mở cho các loại cửa không nên lớn hơn 30 kg.m/s2 và mở được một góc 90°.
5.9.7. Các tay nắm cửa phải dễ sử dụng liền với ổ khóa và xoay theo chiều từ trên xuống, tay nắm bố trí ở độ cao từ 800mm đến 1100mm tính từ mặt sàn (xem hình 29).

Hình 29: Kích thước khi đặt các vị trí báo hiệu của cửa
5.9.8. Khi hai cửa mở ngược hướng với hành lang thì hành lang phải có khoảng rộng 800mm đủ cho xe lăn đi được. Trong không gian sảnh, hai cửa đi mở cùng chiều thì phải có khoảng rộng 1200mm. Khi cửa đi mở ra ngược với hướng lối đi thì cần bố trí một khoảng không gian thông thủy có chiều rộng lớn hơn 500mm về phía tay nắm cửa (xem hình 30).
Các hình thức mở cửa (xem hình 31).
5.9.9. Không nên làm ngưỡng cửa hoặc gờ ở bên trong cửa đối với khoảng không gian thông thủy nhỏ hơn 800mm.
Chú thích: Chỉ cho phép có ngưỡng cửa và gờ ở phía bên trong cửa đối với khoảng không gian thông thủy lớn hơn 800mm nhưng không được lớn hơn 50mm.

Hình 30: Hướng tiếp cận với cửa ra vào

Hình 31: Các hình thức mở cửa
5.9.10. Đối với các loại cửa kéo, cửa trượt, cửa xếp thì khoảng không gian thông thủy đối với từng loại cửa được quy định như trong bảng 4 và bảng 5.
a) Cửa kéo: Quy định khoảng không gian thông thủy để cho xe lăn di chuyển xem hình 32. Trường hợp cửa đóng hoặc khóa thì kích thước này lấy rộng thêm 300mm.
Bảng 4: Khoảng không gian thông thủy cho xe lăn đối với cửa kéo
| Loại cửa | Khoảng không gian thông thủy, không được nhỏ hơn, mm | ||
| Hướng lối đi | Mặt cửa | Vuông góc với cửa | Phía dưới ổ khóa song song với cửa |
| Từ phía trước | Kéo | 1500 | 500 |
| Từ phía trước | Đẩy | 1200 | - |
| Từ phía bản lề | Kéo | 1500 | 900 |
|
|
| 1300 | 1000 |
| Từ phía bản lề | Đẩy | 1000 | 1300 |
| Từ phía khóa | Kéo | 1200 | 600 |
| Từ phía khóa | Đấy | 1000 | 600 |
b) Cửa trượt và cửa xếp: Quy định khoảng không gian thông thủy để cho xe lăn di chuyển được cho trong bảng 5 và xem hình 33.
Bảng 5: Khoảng không gian thông thủy dành cho xe lăn đối với cửa trượt và cửa xếp
| Hướng lối đi | Khoảng không gian thông thủy, không nhỏ hơn (mm) | |
| Vuông góc với cửa | Song song với cửa | |
| Từ phía trước | 1200 | - |
| Từ phía bên cạnh bản lề | 1000 | 1300 |
| Từ phía bên cạnh khóa | 1000 | 600 |

Hình 32: Khoảng không gian thông thủy cho cửa kéo thông thường

Hình 33: Khoảng không gian thông thủy đối với cửa trượt và cửa xếp
c) Đối với các lối vào không có cửa: Quy định khoảng không gian thông thủy cho xe lăn di chuyển nếu lối vào nhỏ hơn 800mm là 1200mm.
d) Đối với hai cửa đối diện nhau: Quy định khoảng không gian thông thủy cho xe lăn di chuyển giữa hai cửa nếu cửa mở theo hai hướng khác nhau không nhỏ hơn 1200mm cộng thêm chiều rộng của cửa. Cửa trong cùng một dãy có thể sẽ mở cùng một hướng hoặc theo hai hướng khác nhau.
5.9.11. Đối với loại cửa đóng mở tự động cũng phải đảm bảo chiều rộng thông thủy không nhỏ hơn 800mm. Trên các cửa tự động phải có biển chỉ dẫn đồng thời có bề mặt tiếp xúc ở cả hai mặt cửa để báo hiệu và có tín hiệu âm thanh báo khi đã đi qua cửa cho những người khiếm thị.
5.9.12. Các phụ kiện của cửa như tay nắm, tay kéo, ổ khóa, khóa và những chi tiết khác trên cửa cần đảm bảo cho người tàn tật sử dụng. Những phụ kiện này được lắp đặt ở độ cao cách mặt sàn hay mặt đất từ 800mm đến 1100mm. Đối với loại cửa trượt các phụ kiện cửa phải được sử dụng từ cả hai phía.
Chú thích: Khóa chỉ được sử dụng cho những mục đích an ninh mà không được sử dụng cho những hoạt động thông thường ở bất kì nơi nào.
5.9.13. Thời gian đóng mở cửa từ vị trí cửa mở 90° đến vị trí 12° phải đảm bảo là 5 giây. Thời gian đóng mở của cửa có bản lề lò so từ vị trí cửa mở 70° đến khi cửa dịch chuyển đến vị trí đóng phải không nhỏ hơn 1,5 giây.
5.9.14. Đối với loại cửa kính trong suốt phải đánh dấu theo chiều đứng của cửa để cảnh báo cho người sử dụng. Màu sắc giữa tường và cửa phải được tương phản nhau để dễ phân biệt. Cửa ra vào để người mù sử dụng, điểm khởi đầu và điểm kết thúc của bậc thềm và trước cửa thang máy, nên lát tấm lát có cảm giác để nhắc nhở.
5.9.15. Ô nhìn bố trí trên cửa được lắp đặt cách mặt sàn không được lớn hơn 1000mm.
5.10. Cửa sổ
5.10.1. Cửa sổ thiết kế phải đảm bảo an toàn cho người tàn tật. Chiều rộng cửa sổ không nhỏ hơn 1200mm. Bậu cửa sổ đặt ở độ cao cách mặt sàn không lớn hơn 700mm.
5.10.2. Cửa sổ trong các buồng phòng phải bố trí để người ngồi trên xe lăn có thể quan sát ra bên ngoài một cách thoải mái. Góc nhìn khi ngồi trên xe lăn giới hạn từ 27° đến 30°.
5.11. Ban công, logia
5.11.1. Ban công và logia trong nhà ở phải có chiều rộng không nhỏ hơn 1400mm để xe lăn có thể quay được (xem hình 34).
5.11.2. Chiều cao lan can tại ban công, logia không nhỏ hơn 1000mm.
5.12. Tay vịn
5.12.1. Tay vịn phải có ở mỗi bên của bất kì đường dốc nào và được bố trí liên tục ở cả hai bên đường dốc. Tay vịn được bố trí cả ở chiếu nghỉ, lối vào có bậc và hành lang. Tay vịn ở điểm đầu và điểm cuối đường dốc, phải được kéo dài thêm 300mm.

Hình 34: Kích thước logia, bancon
5.12.2. Tay vịn phải dễ nắm và được liên kết chắc chắn với tường. Nên dùng tay vịn tròn đường kính từ 25mm đến 50mm và được lắp đặt ở độ cao 900mm so với mặt sàn. Đối với người ngồi xe lăn, khoảng cách từ mặt sàn đến tay vịn là 750mm. Khoảng cách giữa tay vịn và bức tường gắn không nhỏ hơn 40mm. Chi tiết thiết kế tay vịn xem hình 35.
5.12.3. Tay vịn phải có mầu sắc tương phản với mầu của tường.
5.12.4. Trong trường hợp bố trí hai tay vịn một bên (xem hình 36) thì cao độ tay vịn trên là 900mm, cao độ tay vịn dưới là 650mm tính từ mặt sàn.
5.12.5. Tay vịn không được xoay trong các mối liên kết và được chế tạo từ các vật liệu đảm bảo chịu được một lực là 110 kg.m/s2 tại bất kì mọi điểm.

Hình 35: Kích thước và hình dáng chi tiết tay vịn

Hình 36: Bố trí hai tay vịn vào một bên
5.13. Sàn nhà và nền
5.13.1. Mặt sàn hay mặt đất để người tàn tật sử dụng phải bằng phẳng, có độ nhám, không trơn trượt. Nếu trên mặt sàn có trải thảm thì phải được dán chắc chắn, mép ngoài của thảm phải được đóng chặt xuống sàn.
5.13.2. Khu vực sàn cho xe lăn phải bằng phẳng không bị dốc nghiêng. Nếu nền xung quanh cao thấp không đều cần lắp đặt lan can hoặc tấm chắn cao từ 850mm đến 1000mm.
5.13.3. Mặt sàn phải chắc chắn được sử dụng bằng vật liệu không trơn và không bị biến dạng.
5.13.4. Cho phép thay đổi độ cao theo chiều thẳng đứng lớn nhất là 6mm, theo cạnh xiên với độ dốc không lớn hơn 1 : 2. Những thay đổi độ cao lớn hơn 15mm phải tạo thành đường dốc theo như quy định trong điều 5.1.
5.13.5. Chiều dầy tấm chùi giầy dép đặt ở cửa không được lớn hơn 20mm.
5.13.6. Kích thước lỗ của các tấm thoát nước mưa ở cửa ra vào không được lớn hơn 20mm x 20mm để đầu gậy, đầu nạng của người tàn tật không bị lọt vào.
5.13.7. Trong khu vệ sinh nếu có các rãnh bố trí trên mặt sàn thì đường kính rãnh không lớn hơn 10mm đến 15mm. Kích thước rãnh được kéo dài và vuông góc với hướng đi (xem hình 37).

Hình 37: Bố trí rãnh trên mặt sàn khu vệ sinh
5.13.8. Trước điểm khởi đầu và điểm kết thúc của bậc thềm và trước cửa ra vào để sử dụng thang máy dùng các tấm lát có cảm giác để cảnh báo cho những người khiếm thị nhận biết được.
5.14. Các phòng chức năng
5.14.1. Thiết kế nhà ở đảm bảo cho người tàn tật tiếp cận sử dụng cần tuân theo TCVN 4451 : 1987. Nhà ở - Nguyên tắc cơ bản để thiết kế.
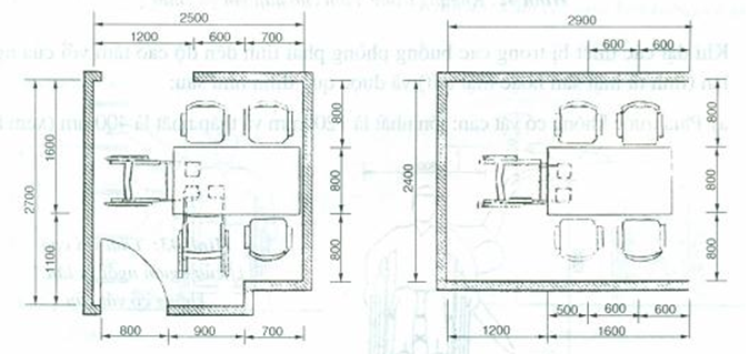
5.14.2. Các phòng chức năng như phòng khách, phòng ngủ, phòng ăn (xem hình 38, 39, 40, 41) phải dành không gian thông thủy có đường kính không nhỏ hơn 1300mm để xe lăn di chuyển được.
5.14.3. Các phòng ở phải được chiếu sáng đầy đủ, thoáng mát, đặc biệt phải tận dụng điều kiện thiên nhiên. Đối với các nhà ống, phòng ở của người tàn tật phải ở tầng dưới, gần cửa ra vào. Trong các phòng ở phải bố trí các bảng điều khiển như bảng điện, ổ cắm. v.v... được lắp đặt ở độ cao không lớn hơn 1200mm và không nhỏ hơn 400mm. Khoảng trống trước các bảng điều khiển có kích thước 800mm x 1200mm (xem hình 38).
5.14.4. Phòng ngủ của người tàn tật đặt gần không gian sinh hoạt chung trong nhà ở và bố trí thuận tiện cho việc đi lại với các phòng khác của ngôi nhà, có diện tích tối thiểu 9m2. Khi bố trí giường ngủ của người đi xe lăn, phải để diện tích quay xe lăn có đường kính không nhỏ hơn 1300mm về một phía của giường ngủ. Giường ngủ có chiều cao không lớn hơn hoặc bằng 450mm (xem hình 39, 40).
5.14.5. Các thiết bị trong các buồng, phòng phải linh hoạt để có thể thay đổi được khi cần thiết. Móc và giá treo quần áo lắp đặt trong các phòng cách mặt sàn từ 1100mm đến 1200mm. Đối với hệ thống tủ tường, các giá đỡ, móc treo quần áo, bàn làm việc, bàn bếp phải có đủ không gian để đầu gối, chân và mũi giầy không chạm phải khi sử dụng các mặt phẳng làm việc. Khoảng không gian thông thủy phía dưới đầu gối và chỗ để chân của người tàn tật đi xe lăn (xem hình 42) được quy định như sau:
- Khoảng cách từ mặt sàn đến trên đầu gối: 650mm;
- Khoảng cách từ mặt sàn đến dưới đầu gối: 500mm;
- Chỗ để chân: 200mm.

Hình 38: Bố trí phòng khách

Hình 39: Bố trí giường ngủ cho phòng đơn

Hình 40: Bố trí giường ngủ cho phòng đôi

Hình 41: Bố trí bàn ăn

Hình 41: (Tiếp theo)

Hình 42: Khoảng trống dành cho đầu gối và chân
5.14.6. Khi đặt các thiết bị trong các buồng phòng phải tính đến độ cao tầm với của người đi xe lăn (tính từ mặt sàn hoặc mặt đất) và được quy định như sau:
a) Phía trước không có vật cản: lớn nhất là 1200mm và thấp nhất là 400mm (xem hình 43).
|
| Hình 43: Tầm với cao của người ngồi xe lăn không có vật cản |
b) Phía trước có vật cản và nhô ra 500mm thì độ cao tầm với lớn nhất là 1200mm; nếu độ nhô ra của vật cản lớn hơn 500mm và nhỏ hơn 600mm thì độ cao của tầm với sẽ là 1100mm (xem hình 44).

Hình 44: Độ cao tầm với của người ngồi xe lăn khi phía trước có vật cản
c) Hai bên không có vật cản thì độ cao của tầm với lớn nhất là 1200mm và thấp nhất là 400mm (xem hình 45);

Hình 45: Tầm với sang bên không có vật cản
d) Hai bên có vật cản và độ nhô ra của vật cản là 250mm thì độ cao lớn nhất của tầm với sẽ là 1200mm;
Nếu vật cản nhô ra lớn hơn 250mm và nhỏ hơn 600mm thì độ cao lớn nhất của tầm với sẽ là 1150mm (xem hình 46).

Hình 46: Tầm với sang bên có vật cản
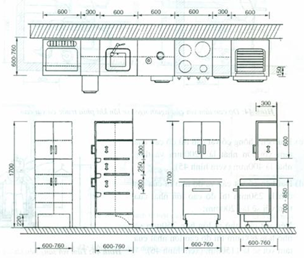
5.14.7. Bếp trong nhà ở được bố trí thuận tiện cho người tàn tật sử dụng. Khoảng không gian thông thủy cho xe lăn dịch chuyển được trong phòng bếp tuân theo quy định 5.14.2. Bệ bếp và kệ bếp có chiều cao điều chỉnh được, bề mặt bếp cách mặt sàn 700mm - 850mm. Mặt bàn nấu nướng phải có chiều rộng 600mm - 760mm (xem hình 47). Phía dưới mặt bàn làm bếp sẽ không được có bề mặt sắc nhọn hoặc thô ráp. Khoảng không dưới đầu gối cho người ngồi xe lăn tiếp cận được với các thiết bị lấy theo 5.14.5.

Hình 47: Kích thước bàn bếp và tủ bếp
5.14.8. Khi trên cả ba mặt tường bếp đều đặt tủ bếp và các thiết bị thì khoảng cách giữa tất cả các bệ bếp, tủ bếp, thiết bị hoặc mặt tường đối diện trong khu vực làm bếp không được nhỏ hơn 1500mm, chiều sâu các tủ tường không lớn hơn 300mm. Khoảng cách từ các tủ bếp tới bàn ăn không nhỏ hơn 1100mm. Tầm với của các vật trên tủ bếp sẽ có độ cao được quy định trong 5.14.6.
5.14.9. Chiều cao lắp đặt chậu rửa trong khu vực bếp và khu vệ sinh không lớn hơn 800mm từ phần cao nhất từ mép chậu đến mặt sàn (xem hình 48). Chiều rộng của chậu rửa và phần xung quanh không nhỏ hơn là 600mm. Chậu rửa và mặt bằng xung quanh được điều chỉnh phù hợp có độ cao từ 800mm. Độ sâu của chậu rửa tối đa 165mm. Chậu rửa nhiều khoang có ít nhất một khoang theo quy định này. Phía dưới chậu rửa sẽ không được có bề mặt sắc nhọn hoặc thô ráp.

Hình 48: Kích thước lắp đặt chậu rửa
Chú thích: Gương soi đặt trên chậu rửa trong phòng vệ sinh được treo ở độ cao không được lớn hơn 900mm tính từ mặt sàn đến mép dưới của gương.
5.14.10. Các thiết bị xả nước hoặc vòi rửa phải sử dụng loại có cần gạt hoặc tự động để đảm bảo cho người tàn tật sử dụng. Vòi nước tự động đóng mở sẽ duy trì độ mở trong khoảng thời gian ít nhất là 10 giây. Máy rửa bát có cửa mở ra không ảnh hưởng đến các hoạt động khác và có khoảng rộng thông thủy ở vị trí sát cạnh máy rửa bát.
5.14.11. Các kho chứa của bếp hoặc trong khu vực nhà ở phải có kích thước không nhỏ hơn 1500mm x 1600mm. Bố trí không gian kho phải thuận tiện cho người di chuyển bằng xe lăn dễ sử dụng (xem hình 49).

Hình 49: Quy định các kích thước không gian kho
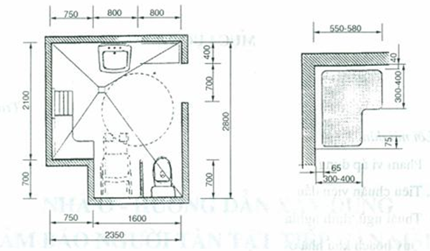
5.14.12. Trường hợp phòng vệ sinh có lối vào thẳng cho người tàn tật đi xe lăn, kích thước không gian thông thủy của phòng vệ sinh không được nhỏ hơn 1900mm x 1000mm đối với cửa mở ra ngoài và 2700mm x 1000mm đối với cửa mở vào trong (xem hình 50). Trường hợp phòng vệ sinh có lối vào song song cho người tàn tật đi xe lăn, kích thước phòng vệ sinh không nhỏ hơn 1500mm x 1450mm (xem hình 51).
Chú thích: Khoảng không gian thông thủy trong phòng vệ sinh có tính cả vị trí cho các vật như: tay vịn, hộp đựng giấy vệ sinh, đường đi, khu vực sàn trống hoặc các vật dụng khác và khu vực dịch chuyển xe lăn.
5.14.13. Phòng vệ sinh cho người tàn tật phải được lắp đặt xí bệt. Có thể dùng rèm kéo hoặc các tấm ngăn để phân cách với các bộ phận khác.

Hình 50: Phòng vệ sinh có lối vào thẳng cho người tàn tật đi xe lăn
5.14.14. Độ cao lắp đặt bệ xí cách mặt sàn từ 400mm đến 450mm. Khoảng cách từ mép trước của bệ xí đến mặt tường phía sau của phòng vệ sinh không nhỏ hơn 760mm. Khoảng cách từ đường trục đặt bệ xí đến mặt tường bên xa nhất không nhỏ hơn 460mm.
5.14.15. Hộp đựng giấy vệ sinh đặt cách mép trước bệ xí một khoảng từ 180mm đến 230mm và cách mặt sàn không nhỏ hơn 400mm và không lớn hơn 1.200mm.
Nếu lắp phía dưới tay vịn, nó sẽ cách tay vịn một khoảng không nhỏ hơn 40mm.
Nếu lắp phía trên tay vịn, nó sẽ cách tay vịn một khoảng không nhỏ hơn 300mm (xem hình 52).

Hình 51: Phòng vệ sinh có lối vào song song dành cho người đi xe lăn

Hình 52. Kích thước lắp đặt bệ xí và vị trí bố trí hộp đựng giấy vệ sinh
5.14.16. Trên tường xung quanh bệ xí phải lắp đặt các tay vịn an toàn. Chi tiết tay vịn lấy theo quy định ở điều 5.12 của hướng dẫn này. Kích thước lắp đặt tay vịn được lấy như sau:
- Xung quanh bệ xí phải lắp đặt tay vịn nằm ngang. Chiều dài tay vịn nằm ngang trên mặt tường bên không nhỏ hơn 1000mm và cách mặt tường phía sau 300mm. Độ cao lắp đặt 900mm. Tay vịn nằm ngang ở mặt tường sau có chiều dài không nhỏ hơn 600mm độ cao lắp đặt 900mm.
- Tay vịn thẳng đứng thứ nhất được bố trí cách mép trước bệ xí 300mm, cách đường trục bệ xí 250mm; Tay vịn thẳng đứng thứ hai được bố trí cách đường trục bệ xí 450mm về phía tường cách xa bệ xí hơn. Tay vịn thẳng đứng được lắp đặt ở độ cao từ 850mm đến 1300mm, tính từ mặt sàn. Cũng có thể bố trí tay vịn thẳng đứng từ mặt sàn tới trần, xem hình 53.
Chú thích: Đối với các phòng vệ sinh có chiều dài từ 1.400mm đến 1.500mm và chiều rộng là 900mm thì không cần lắp đặt tay vịn thẳng đứng nếu tay vịn nằm ngang được bẻ xiên một góc 30° đến 45° với chiều dài 700mm.

Hình 53: Kích thước bố trí tay vịn xung quanh bệ xí
5.14.17. Nếu khu vệ sinh có bố trí bồn tiểu thì phải có tay vịn cho người tàn tật. Kích thước lắp đặt tay vịn xem trên hình 54.
Độ cao lắp đặt bồn tiểu dạng ngồi hoặc gắn vào tường không được cách mặt sàn lớn hơn 400mm.

Hình 54: Kích thước lắp đặt bồn tiểu treo
5.14.18. Đối với nhà ở có khu vệ sinh kết hợp với phòng tắm, kích thước không gian thông thủy được lấy như sau: 2200mm x 2100mm; 2600mm x 1600mm.
Đối với nhà ở có nhu cầu lắp đặt phòng tắm, kích thước không gian thông thủy của phòng tắm được lấy như sau:
| a) Phòng tắm có vòi hoa sen kết hợp với chậu rửa: kích thước không nhỏ hơn 1500mm x 1500mm (xem hình 57). b) Phòng tắm có gắn vòi hoa sen di động: kích thước không nhỏ hơn 1200mm x 1800mm (xem hình 58). c) Phòng tắm có lắp đặt bồn tắm: kích thước không nhỏ hơn 2300mm x 2150mm (xem hình 59). |
Hình 55: Phòng vệ sinh kết hợp với tắm không bồn |

Hình 56: Phòng vệ sinh kết hợp tắm có bồn
5.14.19. Phòng tắm bố trí để đảm bảo người tàn tật tiếp cận sử dụng phải ở vị trí ra vào thuận lợi. Trong khu vực phòng tắm phải có diện tích để quay xe lăn. Để phân cách khu vực tắm của người tàn tật với các bộ phận khác nên dùng rèm kéo hoặc vách ngăn di động. Trong phòng tắm phải lắp đặt các tay vịn an toàn, chắc chắn (xem hình 58).
5.14.20. Đối với phòng tắm vòi hoa sen có ghế ngồi thì tay vịn được gắn trên ba mặt tường. Khoảng cách giữa tay vịn với bức tường gần kề không lớn hơn 150mm. Vị trí lắp đặt các tay vịn xem hình 60.
Chú thích:
1) Khi lắp đặt ghế ngồi trong phòng tắm vòi hoa sen thì tay vịn tại mặt tường bên sẽ không dài quá chiều dài của ghế và không được lắp ở phía sau ghế.
2) Tay vịn và bề mặt tường hoặc kề sát với tay vịn không được có các chi tiết sắc nhọn.
3) Tay vịn sẽ không được xoay trong các mối liên kết và được chế tạo từ vật liệu chịu được một lực 110kg.m/s2.

Hình 57: Phòng tắm có gắn vòi hoa sen không có ghế ngồi
|
| Hình 58: Kích thước phòng tắm không bồn có ghế ngồi |

Hình 59: Kích thước lắp đặt phòng vệ sinh có bồn tắm với ghế ngồi cố định

Hình 60: Vị trí lắp đặt các tay vịn trong phòng tắm vòi hoa sen
5.14.21. Trong phòng tắm có bồn cần lắp đặt các tay vịn để đảm bảo người tàn tật dễ tiếp cận và sử dụng. Kích thước lắp đặt được quy định như sau:
a) Bồn tắm có ghế cố định: các tay vịn được lắp trên tường dọc theo bồn. Tay vịn trên được gắn cách mặt sàn từ 900mm. Tay vịn dưới cách mép trên bồn tắm 250mm. Các tay vịn này cách mặt tường phía đầu một khoảng không lớn hơn 350mm và cách mặt tường phía chân một khoảng không lớn hơn 300mm. Một tay vịn khác dài 600mm được bố trí trên mặt tường phía chân của bồn tắm tính từ mép tường ngoài (xem hình 61).
b) Bồn tắm không có ghế cố định: các tay vịn được gắn trên tường như quy định ở a). Ngoài ra phía trên tường đầu bồn tắm có lắp một tay vịn dài 300mm tính từ mép tường ngoài (xem hình 62).
|
|
|
| Hình 61: Kích thước lắp đặt tay vịn trong phòng tắm có bồn với ghế ngồi cố định | Hình 62: Kích thước lắp đặt tay vịn trong phòng tắm có bồn với ghế ngồi không cố định |
5.14.22. Trong phòng tắm cần bố trí chỗ ngồi cho người tàn tật. Ghế ngồi có dạng hình chữ L và hình chữ nhật được gắn hoặc ghép thành khối cố định hoặc không cố định. Trong phòng tắm dùng vòi hoa sen ghế được lắp dưới dạng ghế gập được gắn cố định trên tường. Đối với phòng tắm có bồn thì ghế ngồi được bố trí ở phía đầu của bồn tắm hoặc ở trên mặt bồn. Chỗ ngồi phải được gắn an toàn và không bị trượt trong quá trình sử dụng. Mặt ghế cách mặt sàn từ 400mm đến 450mm.
5.14.23. Khi lắp đặt ghế ngồi dạng hình chữ nhật thì mép sau của ghế cách mặt tường kề sát không lớn hơn 65mm. Đối với phòng tắm dùng vòi hoa sen di động thì các mép bên của ghế cách mặt tường kề sát không nhỏ hơn 40mm. Chiều rộng mặt ghế từ 300mm đến 400mm (xem hình 63).
| Hình 63: Kích thước lắp đặt loại ghế ngồi hình chữ nhật |
|
5.14.24. Khi lắp đặt ghế ngồi dạng hình chữ L thì mép sau của ghế cách mặt tường kề sát không lớn hơn 65mm. Chiều rộng mặt ghế từ 350mm đến 400mm. Mép sau tại phần gập của chữ L cách mặt tường kề sát một khoảng không lớn hơn 40mm. Phần cuối của ghế chữ L có chiều rộng từ 550mm đến 580mm (xem hình 64).
5.14.25. Trong phòng tắm phải bố trí vòi hoa sen di động dài 1500mm và có bộ hòa trộn nước nóng nước lạnh. Vòi và các bộ phận điều khiển phải đảm bảo cho người tàn tật sử dụng. Các bộ phận điều khiển được lắp ở phía trên thanh vịn nhưng không được cách mặt sàn quá 1200mm và cách đường tâm của ghế 350mm về phía bên phải hoặc bên trái tùy ý. Kích thước lắp đặt chậu rửa, gương (xem hình 65).
5.14.26. Đối với các nhà ở độc lập hoặc chung cư phải lắp đặt các thiết bị nhận biết bằng âm thanh và hình ảnh, độ cao lắp đặt thiết bị không nhỏ hơn 1000mm và không lớn hơn 1200mm. Hệ thống thiết bị này nằm bên trong nhà, nút hoặc công tắc sẽ được lắp bên ngoài cửa ra vào chính.

Hình 64: Kích thước lắp đặt loại ghế ngồi hình chữ L

Hình 65: Kích thước lắp đặt chậu rửa và gương soi trong khu vệ sinh
5.14.27. Trong nhà ở phải có các thiết bị báo khói ở nơi được quy định. Đường dây điện sẽ kéo dài tới một điểm nằm trong tòa nhà và kề sát với máy báo khói của toàn thể khu vực nhà ở. Tất cả các trang thiết bị thông báo qua màn hình những thông tin báo khói trong khu vực nhà ở sẽ được hoạt hóa dưới máy báo khói. Tất cả các thiết bị thông báo qua màn hình những thông tin báo cháy trong khu vực nhà ở sẽ được hoạt hóa dưới hệ thống máy báo cháy.
5.14.28. Trong các công trình đảm bảo cho người tàn tật sử dụng cần hướng sự chú ý của người sử dụng vào các phương tiện trợ giúp cho người tàn tật. Biểu tượng quy ước quốc tế về người tàn tật được quy định theo TCXDVN 264 : 2002 - Nhà và công trình - Nguyên tắc cơ bản thiết kế để đảm bảo người tàn tật tiếp cận sử dụng.
MỤC LỤC
Lời nói đầu
1. Phạm vi áp dụng
2. Tiêu chuẩn viện dẫn
3. Thuật ngữ, định nghĩa
4. Quy hoạch khu nhà ở
5. Giải pháp thiết kế
Bạn chưa Đăng nhập thành viên.
Đây là tiện ích dành cho tài khoản thành viên. Vui lòng Đăng nhập để xem chi tiết. Nếu chưa có tài khoản, vui lòng Đăng ký tại đây!








