- Tổng quan
- Nội dung
- VB gốc
- Tiếng Anh
- Hiệu lực
- VB liên quan
- Lược đồ
-
Nội dung hợp nhất
Tính năng này chỉ có tại LuatVietnam.vn. Nội dung hợp nhất tổng hợp lại tất cả các quy định còn hiệu lực của văn bản gốc và các văn bản sửa đổi, bổ sung, đính chính... trên một trang. Việc hợp nhất văn bản gốc và những văn bản, Thông tư, Nghị định hướng dẫn khác không làm thay đổi thứ tự điều khoản, nội dung.
Khách hàng chỉ cần xem Nội dung hợp nhất là có thể nắm bắt toàn bộ quy định hiện hành đang áp dụng, cho dù văn bản gốc đã qua nhiều lần chỉnh sửa, bổ sung.
- Tải về
Quyết định 2271/2002/QĐ-BYT của Bộ Y tế về việc ban hành Tiêu chuẩn thiết kế Trạm y tế cơ sở - tiêu chuẩn ngành
| Cơ quan ban hành: | Bộ Y tế |
Số công báo:
Số công báo là mã số ấn phẩm được đăng chính thức trên ấn phẩm thông tin của Nhà nước. Mã số này do Chính phủ thống nhất quản lý.
|
Đang cập nhật |
| Số hiệu: | 2271/2002/QĐ-BYT | Ngày đăng công báo: | Đang cập nhật |
| Loại văn bản: | Quyết định | Người ký: | Lê Ngọc Trọng |
| Trích yếu: | Về việc ban hành Tiêu chuẩn thiết kế Trạm y tế cơ sở - tiêu chuẩn ngành | ||
|
Ngày ban hành:
Ngày ban hành là ngày, tháng, năm văn bản được thông qua hoặc ký ban hành.
|
17/06/2002 |
Ngày hết hiệu lực:
Ngày hết hiệu lực là ngày, tháng, năm văn bản chính thức không còn hiệu lực (áp dụng).
|
Đã biết
|
|
Áp dụng:
Ngày áp dụng là ngày, tháng, năm văn bản chính thức có hiệu lực (áp dụng).
|
Đã biết
|
Tình trạng hiệu lực:
Cho biết trạng thái hiệu lực của văn bản đang tra cứu: Chưa áp dụng, Còn hiệu lực, Hết hiệu lực, Hết hiệu lực 1 phần; Đã sửa đổi, Đính chính hay Không còn phù hợp,...
|
Đã biết
|
| Lĩnh vực: | Y tế-Sức khỏe Xây dựng | ||
TÓM TẮT QUYẾT ĐỊNH 2271/2002/QĐ-BYT
Tiêu chuẩn thiết kế Trạm y tế cơ sở được cập nhật
Ngày 17/06/2002, Bộ Y tế đã ban hành Quyết định 2271/2002/QĐ-BYT về việc ban hành Tiêu chuẩn thiết kế Trạm y tế cơ sở - tiêu chuẩn ngành, có hiệu lực từ ngày ký ban hành.
Quyết định này áp dụng cho việc thiết kế mới và cải tạo các trạm y tế cơ sở trên toàn quốc, nhằm đảm bảo các tiêu chuẩn về diện tích, mật độ xây dựng và khoảng cách không ảnh hưởng đến công tác khám chữa bệnh.
Quy định chung về Trạm y tế cơ sở
Trạm y tế cơ sở là nơi thực hiện các hoạt động chăm sóc sức khỏe ban đầu và khám chữa bệnh thông thường cho cộng đồng. Các không gian chính bao gồm khu đón tiếp, phòng khám chữa bệnh, khu chăm sóc sức khỏe bà mẹ và trẻ em, khu lưu bệnh nhân, và các khu phụ trợ như kho, bếp, và nhà vệ sinh.
Yêu cầu về khu đất xây dựng
Khu đất xây dựng trạm y tế phải gần các trục giao thông, thoáng, cao ráo và có nguồn nước sạch. Diện tích đất từ 600 đến 1200m², với mật độ xây dựng không quá 30-35%. Khu đất cần có cây xanh chiếm 30-40% diện tích và không trồng cây có nhựa độc hay thu hút côn trùng.
Nội dung công trình và yêu cầu thiết kế
Trạm y tế cơ sở phải có các phòng chức năng như sảnh tiếp đón, phòng khám Tây y và Y học cổ truyền, phòng đẻ, phòng thực hiện dịch vụ kế hoạch hóa gia đình, và phòng lưu bệnh nhân. Các phòng phải đảm bảo điều kiện vô khuẩn và dây chuyền hoạt động sạch bẩn một chiều.
Yêu cầu về kỹ thuật
Trạm y tế phải có hệ thống chiếu sáng và thông gió tự nhiên, cấp điện và nước đầy đủ, hệ thống thoát nước và xử lý nước thải hiệu quả. Công trình phải đảm bảo an toàn phòng cháy chữa cháy và có kết cấu bền vững, phù hợp với điều kiện địa phương.
Danh mục trang thiết bị y tế
Quyết định cũng ban hành danh mục trang thiết bị y tế cần thiết cho trạm y tế xã, bao gồm giường bệnh, máy điện tim, máy siêu âm, và các dụng cụ khám chữa bệnh khác, nhằm đảm bảo hoạt động hiệu quả của trạm y tế cơ sở.
Văn bản này được sửa đổi, bổ sung bởi 96/2023/NĐ-CP
Xem chi tiết Quyết định 2271/2002/QĐ-BYT có hiệu lực kể từ ngày 17/06/2002
|
BỘ Y TẾ |
CỘNG HÒA XÃ HỘI CHỦ NGHĨA VIỆT NAM |
|
Số: 2271/2002/QĐ-BYT |
Hà Nội, ngày 17 tháng 06 năm 2002 |
QUYẾT ĐỊNH
Về việc ban hành Tiêu chuẩn thiết kế Trạm y tế cơ sở - tiêu chuẩn ngành
___________
BỘ TRƯỞNG BỘ Y TẾ
Căn cứ Nghị định số 68/CP ngày 11/10/1993 của Chính phủ về chức năng, nhiệm vụ quyền hạn và tổ chức bộ máy Bộ Y tế;
Căn cứ Quyết định số 370/2002/QĐ-BYT ngày 07/02/2002 của Bộ trưởng Bộ Y tế về việc ban hành chuẩn Quốc gia về y tế xã giai đoạn 2001-2010;
Căn cứ Quyết định số 437/QĐ-BYT ngày 20/02/2002 của Bộ trưởng Bộ Y tế về việc ban hành Danh mục Trang thiết bị y tế Bệnh viện đa khoa tuyến tỉnh, huyện, phòng khám đa khoa khu vực, trạm y tế xã và túi thôn bản.
Xét tờ trình số 57/TTBYT-TKM ngày 10/6/2002 của Viện trưởng Viện Trang thiết bị và công trình y tế xin chỉnh lý và bổ sung Tiêu chuẩn ngành Thiết kế Trạm y tế cơ sở 52/TCN-CTYT 0001:2000;
Theo đề nghị của ông Vụ trưởng Vụ Trang thiết bị - Công trình y tế
QUYẾT ĐỊNH
Điều 1. Nay ban hành kèm theo Quyết định này Tiêu chuẩn 52 CN-CTYT 0001:2002 Trạm y tế cơ sở - Tiêu chuẩn thiết kế (Chỉnh lý và bổ sung tháng 6/2002) thay thế cho Tiêu chuẩn 52 TCN-CTYT 0001:2000.
Điều 2. Giám đốc Sở Y tế tỉnh, thành phố trực thuộc Trung ương căn cứ vào tiêu chuẩn thiết kế trạm y tế cơ sở này để xây dựng mới hoặc vận dụng để xây dựng cải tạo trạm y tế đã cũ, bị hư hỏng xuống cấp.
Điều 3. Quyết định này có hiệu lực kể từ ngày ký ban hành và thay thế quyết định số 4009/QĐ-Bộ Y tế ngày 10/11/2000 của Bộ trưởng Bộ Y tế.
Điều 4. Các ông, bà Chánh văn phòng, Vụ trưởng các Vụ Trang thiết bị - Công trình y tế, Vụ Kế hoạch, Vụ Điều trị và các Vụ có liên quan của Bộ Y tế; giám đốc Sở y tế các tỉnh, thành phố trực thuộc Trung ương chịu trách nhiệm thi hành quyết định này./.
|
|
KT. BỘ TRƯỞNG BỘ Y TẾ |
TIÊU CHUẨN NGÀNH
Ban hành kèm theo quyết định số 2271/2002/QĐ-BYT ngày 17 tháng 6 năm 2002 Về việc ban hành Tiêu chuẩn thiết kế Trạm y tế cơ sở - Tiêu chuẩn ngành"
TRẠM Y TẾ CƠ SỞ - TIÊU CHUẨN THIẾT KẾ
1. PHẠM VI ÁP DỤNG
1.1. Tiêu chuẩn được áp dụng để thiết kế mới, thiết kế cải tạo các trạm y tế cơ sở tại các địa phương trong phạm vi cả nước.
1.2. Khi thiết kế cải tạo, những quy định về diện tích, mật độ xây dựng, khoảng cách không nhất thiết phải chính xác hoàn toàn nhưng không được ảnh hưởng đến công tác khám - chữa bệnh tại trạm y tế cơ sở.
2. QUY ĐỊNH CHUNG
2.1. Trạm y tế xã, phường, thị trấn (gọi chung là trạm Y tế cơ sở) là nơi thực hiện các hoạt động chăm sóc sức khoẻ ban đầu và khám - chữa bệnh thông thường cho cộng đồng dân cư đặt tại các xã, phường, thị trấn.
2.2. Căn cứ vào chức năng nhiệm vụ và để bảo đảm các hoạt động chuyên môn, trạm y tế cơ sở gồm các không gian chủ yếu :
1. Đón tiếp, tuyên truyền và tư vấn về chăm sóc sức khoẻ ban đầu.
2. Thực hiện các dịch vụ phòng bệnh: Tiêm chủng mở rộng (TCMR), uống vắc xin...
3. Khám và chữa bệnh (Tây y và Y học cổ truyền).
4. Chăm sóc sức khoẻ bà mẹ, trẻ em, dịch vụ kế hoạch hoá gia đình (KHHGĐ)
5. Lưu bệnh nhân để theo dõi và điều trị.
6. Thực hiện các xét nghiệm đơn giản.
7. Cung ứng thuốc, dược phẩm thông thường.
8. Khu phụ trợ (kho, bếp, WC,...) sân vườn và đường nội bộ...
2.3.Trạm y tế cơ sở được thiết kế theo quy mô dân số, bán kính phục vụ và đặc điểm địa lý của từng vùng miền.
1. Loại trạm có quy mô dân số nhỏ hơn hoặc bằng 10.000 dân.
2. Loại trạm có quy mô dân số lớn hơn 10.000 dân.
3. Loại trạm phù hợp với đặc điểm địa lý vùng miền phân theo 3 loại vùng: vùng không có lũ lụt, vùng có lũ lụt và vùng núi cao (vùng xa, hải đảo...)
2.4. Trạm y tế cơ sở được thiết kế xây dựng bền vững đạt tiêu chuẩn công trình cấp II. Đối với các công trình cải tạo lại từ nhà hiện có cũng phải bảo đảm cấp độ bền vững như trên.
1. Vùng có lũ lụt thường xuyên, vùng ven biển cần chú ý tới yêu cầu phòng chống bão lũ thiên tai.
2. Đối với vùng núi cao, vùng sâu - vùng xa tuỳ theo thực tế xây dựng, khi thiết kế cần triệt để sử dụng vật liệu xây dựng sẵn có ở địa phương.
3. YÊU CẦU VỀ KHU ĐẤT XÂY DỰNG VÀ MẶT BẰNG TỔNG THỂ
3.1. Khu đất xây dựng
3.1.1. Khu đất xây dựng trạm y tế cơ sở phải bảo đảm các yêu cầu sau :
1. Vị trí khu đất xây dựng cần đặt gần các trục giao thông liên xã qua các khu vực trung tâm xã, phường, thị trấn; thuận tiện cho cư dân tới trạm để chăm sóc sức khoẻ ban đầu và khám - chữa bệnh.
2. Khu đất xây dựng phải thoáng, cao ráo, ít tốn kém về biện pháp xử lý nền móng hay thoát nước mặt, nước thải.
3. Khu đất xây dựng phải đảm bảo có nguồn cung cấp nước sạch thường xuyên.
4. Khu đất xây dựng phải phù hợp với quy hoạch chung và đảm bảo bán kính phục vụ.
3.1.2. Diện tích đất xây dựng trạm y tế cơ sở khoảng từ 600 ÷ 1200m2 đủ để bố trí các hạng mục:
1. Xây dựng nhà trạm, công trình phụ trợ (nhà bếp, nhà vệ sinh, lán đợi và nhà để xe).
2. Đường giao thông nội bộ và diện tích xây dựng cổng, tường rào.
3. Sân vườn cây xanh (cây cảnh và cây tạo bóng mát).
4. Khu trồng cây dược liệu, thuốc nam, vườn mẫu.
3.1.3 Mật độ xây dựng cho phép không lớn hơn 30 ÷ 35 % diện tích khu đất
3.1.4. Khoảng cách giới hạn từ mép ngoài tường rào cổng chính tới mặt trước nhà trạm không được nhỏ hơn 6m.
3.2. Cây xanh
3.2.1. Tỷ lệ diện tích cây xanh (gồm diện tích trồng cây bóng mát kết hợp vườn hoa và vườn cây thuốc Nam) từ 30 ÷ 40 % tổng diện tích khu đất.
3.2.2. Vườn mẫu trồng cây dược liệu, thuốc Nam (gồm 60 loại cây chữa 9 loại bệnh thông thường) phải cách mép tường ngoài nhà trạm lớn hơn 2m.
3.2.3. Trong khu đất xây dựng không trồng các loại cây có nhựa độc, có gai, cây có hoa quả thu hút ruồi muỗi, côn trùng.
3.3. Lối ra vào, đường đi và sân trong
3.3.1. Trong mặt bằng tổng thể khu đất xây dựng trạm y tế cơ sở phải có rào bảo vệ ngăn gia súc, gia cầm.
3.3.2. Đường đi giữa các bộ phận trong khuôn viên trạm y tế cơ sở có chiều rộng tối thiểu là 1,2m.
3.3.3. Phía ngoài nhà trạm y tế phải có sân chờ, bãi để xe cho khách và nhân viên.
3.3.4. Đối với vùng ngập nước (đồng bằng sông Cửu Long) cần bố trí xây dựng bến thuyền để đưa đón bệnh nhân, cán bộ.
4. NỘI DUNG CÔNG TRÌNH VÀ NHỮNG YÊU CẦU VỀ GIẢI PHÁP THIẾT KẾ
4.1. Yêu cầu chung
4.1.1. Giải pháp mặt bằng kiến trúc trạm y tế cơ sở phải đảm bảo yêu cầu:
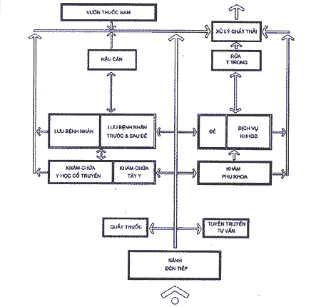
1. Phù hợp với yêu cầu sử dụng, không chồng chéo hoạt động của các công tác khám - chữa bệnh, chăm sóc sức khỏe ban đầu và phòng chống bệnh dịch cho cộng đồng.
2. Dây chuyền hoạt động được bố trí phải đảm bảo nguyên lý sạch bẩn một chiều
3. Các phòng khám - chữa bệnh, phòng đẻ và phòng thực hiện các dịch vụ KHHGĐ phải được bố trí riêng biệt, đảm bảo điều kiện vô khuẩn.
4.1.2. Chiều cao thông thủy các phòng trong trạm y tế cơ sở phải lớn hơn 3,3m. Các phòng phụ trợ vệ sinh đặt ngoài nhà, chiều cao tối thiểu 2,8m.
4.1.3. Chiều rộng thông thủy cho hành lang, cửa đi, cầu thang được quy định.
1. Hành lang : Hành lang bên (có chỗ đợi) rộng 1,5 ÷ 2,8m.
Hành lang bên (không đợi) rộng 1,2 ÷ 1,5m.
Đối với vùng nắng nóng, hành lang mái hiên đủ rộng tránh được ánh nắng trực tiếp chiếu vào tường.
2. Cửa đi : Chiều cao cửa từ 2,1m ÷ 2,4m
Cửa đi có chuyển cáng, đòn võng có chiều rộng không nhỏ hơn 1,4m.
Cửa phòng đẻ chiều rộng không nhỏ hơn 1,2m.
Cửa phòng thông thường có chiều rộng 1,0m; cửa phòng khu vệ sinh và bếp rộng 0,7m.
3. Cầu thang: Chiều rộng thông thuỷ đảm bảo:≥ 1,2m
Độ dốc phải đảm bảo: ≤ 30°
Chiều rộng chiếu nghỉ phải đảm bảo: ≥ 1,2m
Vùng ngập nước, có lũ lụt, cầu thang phải có nơi đón, neo đậu xuồng thuyền.
4.2. Nội dung công trình
Căn cứ vào chức năng, nhiệm vụ và các quy định chung, công trình trạm y tế cơ sở gồm các phòng sau:
4.2.1. Sảnh tiếp đón đặt ngay lối cửa chính, có hành lang liên hệ trực tiếp với các không gian chức năng, diện tích 8 ÷ 12m2
1. Sảnh tiếp đón phải có đủ diện tích bố trí ghế đợi khám bệnh và bàn làm thủ tục tiếp đón.
2. Sảnh có thể bố trí kết hợp với không gian đa năng, không gian khám bệnh
3. Quầy, tủ thuốc có thể kết hợp đặt trong không gian sảnh.
Không gian tuyên truyền tư vấn, phục vụ các chương trình TCMR và uống vắc xin (không gian đa năng), diện tích 14 ÷ 16m2 (có sức chứa 10 người lớn với tiêu chuẩn 1,4 ÷ 1,6 m2/người).
4.2.2. Không gian đa năng bố trí gần lối vào, có thể kết hợp các chức năng sảnh tiếp đón, khám bệnh thông thường.
1. Phòng đa năng phải có diện tích bố trí các băng ghế đợi, nghe tuyên truyền, tư vấn và hội họp, có bảng panô tuyên truyền cổ động công tác chăm sóc sức khoẻ, có tủ trưng bày, lưu trữ.
2. Phòng đa năng còn là nơi thực hiện việc TCMR, tiêm phòng, cho uống thuốc theo chiến dịch của các các chương trình y tế quốc gia tới xã, phường, thị trấn.
4.2.3. Phòng khám - chữa bệnh Tây y thực hiện công tác khám chữa các bệnh thông thường và tổ chức sơ cứu ban đầu có diện tích từ 12 ÷ 14m2.
1. Phòng khám - chữa bệnh Tây y phải có diện tích đủ bố trí bàn làm việc, giường khám, chậu rửa tay.
2. Nếu có kết hợp chức năng thủ thuật, phòng tiêm tại chỗ có thể tăng diện tích thêm từ 2 ÷ 4m2.
4.2.4. Phòng khám - chữa bệnh theo phương pháp Y học cổ truyền có diện tích từ 12 ÷ 14m2.
1. Phòng khám chữa - bệnh theo phương pháp Y học cổ truyền phải có diện tích đủ bố trí giường xoa bóp, bấm huyệt và châm cứu.
2. Đối với các cơ sở có lương y kê đơn bốc thuốc tại chỗ nên có tủ thuốc y học dân tộc và bàn bốc thuốc, bắt mạch.
3. Phòng khám chữa - bệnh theo phương pháp Y học cổ truyền có thể kết hợp với hành lang phụ để phơi sấy, chặt ,thái thuốc ....
4.2.5. Phòng đẻ có diện tích 13 ÷ 15m2
1. Phòng đẻ có diện tích bố trí 1 bàn đẻ và bàn đón trẻ sơ sinh, chỗ rửa tay, xe đẩy đựng dụng cụ.
2. Phòng đẻ liên hệ với khu tiệt trùng cần phải có vách ngăn và có cửa riêng đưa đồ bẩn, nhiễm khuẩn. Dây truyền sạch bẩn (rửa tay và dụng cụ) một chiều, có tủ dụng cụ sạch.
4.2.6. Phòng thực hiện các dịch vụ KHHGĐ có diện tích từ 13 ÷ 15m2 đặt liền sát phòng đẻ và khu rửa tiệt trùng.
1. Phòng thực hiện các dịch vụ KHHGĐ phải có diện tích bố trí chậu rửa tay, bàn thủ thuật có lối liên hệ với khu tiệt trùng (chung với khu tiệt trùng phòng đẻ), dây chuyền sạch bẩn một chiều.
4.2.7. Phòng rửa, tiệt trùng dụng cụ có diện tích từ 5 ÷ 7m2, đặt nằm giữa phòng đẻ và phòng thực hiện các dịch vụ KHHGĐ.
1. Phòng rửa, tiệt trùng phải có cửa riêng thoát ra ngoài; đảm bảo dây chuyền sạch bẩn một chiều.
4.2.8. Phòng lưu sau đẻ có diện tích từ 12 ÷ 14m2 có vị trí sát gần phòng đẻ.
1. Điều kiện cho phép nên tách riêng bệnh nhân chờ đẻ và sản phụ sau đẻ, thực hiện KHHGĐ thành 2 phòng có diện tích từ 8 ÷ 10m2/phòng
2. Phòng lưu bệnh nhân phải đủ diện tích bố trí 2 giường bệnh nhân, diện tích từ 12 ÷ 14m2, có cửa liên hệ trực tiếp với phòng đẻ.
3. Điều kiện cho phép nên có vệ sinh riêng (1 xí, 1 rửa) cho sản phụ với diện tích 3 ÷ 5m2 liền phòng khép kín.
4.2.9. Phòng lưu bệnh nhân thông thường có diện tích từ 12 ÷ 14m2 (đối với phòng 2 giường) hoặc 18 ÷ 20m2 (đối với phòng 3 giường).
1. Phòng lưu bệnh nhân phải có diện tích bố trí 2 ÷ 3 giường bệnh nhân (tuỳ theo quy mô phục vụ).
2. Phòng lưu bệnh nhân nên gần khu vệ sinh chung.
4.2.10. Phòng vệ sinh chung (cán bộ CNV và bệnh nhân) có diện tích 4 ÷ 6m2 (1 xí, 1 tiểu, 1 rửa).
1. Nên đặt vệ sinh liền trong khối nhà trạm có bể tự hoại.
2. Vùng núi cao, vùng sâu nếu do phong tục tập quán có thể đặt vệ sinh bên ngoài nhà trạm nhưng khoảng cách tới nhà trạm không nhỏ hơn 10m, phải bảo đảm các điều kiện vệ sinh, mỹ quan tối thiểu.
4.2.11.Kho dụng cụ, thiết bị có diện tích từ 4 ÷ 6m2 (có thể tận dụng phần xép phía trên phòng rửa tiệt trùng).
4.2.12.Phòng bếp nấu có diện tích từ 4 ÷ 6m2, đặt ở vị trí cuối hướng gió, phía sau công trình chính.
4.2.13.Quầy thuốc có diện tích từ 4 ÷ 6m2 đặt ở vị trí dễ tiếp cận trực tiếp, gần cổng chính, sảnh (có tủ quầy quản lý thuốc, dược phẩm).
4.2.14.Toàn bộ diện tích hành lang, lối đi bên trong nhà không cho phép vượt quá 35 % tổng diện tích xây dựng nhà trạm.
5. NHỮNG YÊU CẦU VỀ CÁC GIẢI PHÁP KỸ THUẬT
5.1. Chiếu sáng và thông thoáng tự nhiên
5.1.1. Trong trạm y tế cơ sở, các phòng phải được chiếu sáng tự nhiên trực tiếp và thông gió tự nhiên.
5.1.2. Hệ thống chiếu sáng tự nhiên cho các phòng (theo phương pháp tính toán độ rọi bên trong DF trung bình) theo tiêu chuẩn sau:
|
Loại phòng |
Tỷ lệ (%) (Diện tích cửa sổ / Diện tích sàn) |
|
1. Các phòng chủ yếu |
Không nhỏ hơn 20% |
|
2. Các phòng tạm lưu, phòng phụ trợ |
Không nhỏ hơn 15% |
5.2. Kỹ thuật hạ tầng
5.2.1. Cấp điện
1. Trạm y tế cơ sở phải được cung cấp điện đầy đủ cho chiếu sáng và sử dụng các thiết bị.
2. Trạm y tế cơ sở phải có nguồn điện dự phòng sự cố (máy phát điện nhỏ cho trạm vùng đồng bằng, máy thuỷ điện nhỏ cho trạm vùng núi).
3. Mạng điện sử dụng dây dẫn ruột đồng vỏ PVC 2 lớp đi trong ống đặt nổi hoặc chìm trong tường, trần, bố trí cầu dao tự ngắt tại từng phòng để đảm bảo an toàn.
5.2.2. Cấp nước
Trạm y tế cơ sở phải được cấp nước liên tục suốt ngày đêm từ nguồn nước máy (ở đô thị); giếng khoan (ở nông thôn) và các bể dự trữ. Nước đã qua xử lý đảm bảo tiêu chuẩn vệ sinh, chất lượng theo Quyết định số 505 BYT/QĐ ngày 13-4-1992 của Bộ trưởng Bộ Y tế.
Tiêu chuẩn cấp nước của một trạm y tế cơ sở từ 3.000 ÷ 4.000lít/ngày đêm.
5.2.3. Thoát nước
Trạm y tế cơ sở phải có hệ thống thoát nước mặt bảo đảm hoạt động tại trạm và không ảnh hưởng đến môi trường xung quanh. Hệ thống thoát nước nên dùng biện pháp tự chảy.
5.2.3. Nước thải
Trạm y tế cơ sở phải có hệ thống xử lý nước thải, phòng đẻ và phòng thực hiện các dịch vụ KHHGĐ phải có hệ thống ống kín thu nước sàn khi cọ rửa.
5.2.4. Chất thải rắn
Các chất thải rắn phải có nơi đốt, hố chôn phân hủy ở ngoài nhà.
5.3. Yêu cầu về phòng cháy, chữa cháy
5.3.1. Trạm y tế cơ sở là công trình chịu lửa bậc III (theo Tiêu chuẩn Việt Nam TCVN 2748-1991)
5.3.2. Trạm y tế cơ sở phải có hệ thống bình bột cứu hỏa đặt trong nhà. ở vùng núi cao, vùng sâu thì khoảng cách từ trạm tới bể chứa nước dự trữ (hoặc giếng nước) không quá xa.
1. Phải có bể trữ nước để cứu hoả vừa phục vụ sinh hoạt khi mùa khô, có thể tích 6 ữ 8m3.
2. Nếu có điều kiện, nên có hố cát dự trữ để cứu hỏa gần công trình.
5.4. Yêu cầu về kết cấu và hoàn thiện công trình
5.4.1. Tường các phòng đẻ, phòng thực hiện các dịch vụ KHHGĐ phải ốp gạch men kính hoặc sơn chống thấm từ sàn tới trần nhà. Các phòng khám - chữa bệnh phải được ốp gạch chân tường. Phần tường còn lại có thể sơn hoặc quét vôi màu sáng.
5.4.2. Sàn nhà lát bằng gạch hoa xi măng, riêng phòng đẻ, phòng thực hiện các dịch vụ KHHGĐ phải có biện pháp chống trơn và dễ dàng vệ sinh cọ rửa (sử dụng đá granito mài tại chỗ hoặc gạch Ceramic khổ to).
5.4.3. Trần nhà có thể phẳng hoặc dốc nhưng phải đủ điều kiện cách nhiệt, cách ẩm, chống thấm tốt. Có thể kết hợp chiếu sáng từ trần phòng, phải sơn hoặc quét vôi màu sắc sáng sủa, nhẹ nhàng.
5.4.4. Cửa sổ trong trạm y tế cơ sở bằng panô hoặc chớp và có hệ thống hoa sắt bảo vệ. Các phòng đẻ, phòng thực hiện các dịch vụ KHHGĐ và các phòng khám - lưu bệnh nhân ở các miền có mùa lạnh cần có thêm lớp cửa panô kính (nhôm hoặc gỗ).
5.4.5. Cửa đi trong trạm y tế cơ sở phải bảo đảm an toàn, bền vững. Cửa đi phải có khuôn, panô gỗ hoặc nhôm, sắt. Các cửa bên trong phòng đẻ, phòng thực hiện các dịch vụ KHHGĐ, khám phụ khoa phải kín đáo (cửa panô kính mờ).
5.4.6. Công trình trạm y tế cơ sở phải có kết cấu đơn giản bền vững, dễ thi công xây lắp, vật liệu xây dựng phù hợp với điều kiện xây dựng tại địa phương và các hoàn cảnh cụ thể.
5.4.7 Công trình phải được hoàn thiện tốt theo các yêu cầu chức năng cả nội thất, ngoại thất và sân vườn.
5.4.8. Hình thức kiến trúc của trạm y tế cơ sở phải đẹp hiện đại (thể hiện tính đặc thù công trình; chú ý tới các yếu tố kiến trúc truyền thống nông thôn Việt Nam), phù hợp với cảnh quan và quy hoạch chung.
DÂY CHUYỀN HOẠT ĐỘNG CỦA TRẠM Y TẾ CƠ SỞ

CÁC VĂN BẢN PHÁP QUY LIÊN QUAN
ĐẾN TỔ CHỨC, NHIỆM VỤ VÀ CHỨC NĂNG CỦA TRẠM Y TẾ CƠ SỞ
1. Quy định chức năng nhiệm vụ của Trạm y tế xã, phường, thị trấn (Bộ Y tế).
2. Quyết định của Thủ tướng Chính phủ số 58/TTg ngày 03/02/1994 Quy định một số vấn đề tổ chức và chế độ chính sách với y tế cơ sở.
3. Quyết định của Thủ tướng Chính phủ số 131/TTg ngày 04/03/1995 v/v Sửa đổi một số điều trong Quyết định số 58/TTg ngày 03/02/1994.
4. Thông tư liên Bộ số 08/TT-LB ngày 20/04/1995 của Liên bộ Bộ Y tế, Bộ Lao động - Thương binh Xã hội, Bộ Tài Chính, Ban Tổ chức cán bộ - Chính Phủ v/v Hướng dẫn một số vấn đề tổ chức và chế độ chính sách với y tế cơ sở.
5. Quyết định số 220/QĐ-BYT ngày 22/02/1993 của Bộ trưởng Bộ Y tế v/v Quy định nhiệm vụ kỹ thuật trong công tác bảo vệ sức khoẻ bà mẹ trẻ em và kế hoạch hoá gia đình tại trạm y tế địa phương.
6. Quyết định số 370/2002/QĐ-BYT ngày 07/02/2002 của Bộ trưởng Bộ Y tế về việc ban hành Chuẩn Quốc gia về y tế xã giai đoạn 2001-2010.
7. Công văn số 492/YT-YH của Vụ Y học cổ truyền - Bộ Y tế ngày 24/01/2000 v/v Củng cố y học cổ truyền tại tuyến y tế cơ sở và cộng đồng.
8. Quy chuẩn Xây dựng Việt Nam do Bộ Xây dựng ban hành năm 1997 (Tập I và II )
9. Tiêu chuẩn qui phạm thiết kế nhà ở và công trình công cộng do Bộ Xây dựng ban hành năm 1997.
10. Biên bản cuộc họp bàn thống nhất v/v Soạn thảo nhiệm vụ thiết kế trạm y tế cơ sở ngày 23/03/2000 giữa các Vụ Trang thiết bị và công trình y tế, Vụ Tổ chức, Vụ Bảo vệ sức khoẻ bà mẹ trẻ em và Kế hoạch hoá gia đình và các bản đóng góp ý kiến của các Vụ hữu quan.
11. Tham khảo Đề tài nghiên cứu Xây dựng mô hình chăm sóc sức khoẻ ở tuyến y tế cơ sở mã số KH 11-01-01.
12. Tham khảo các mẫu thiết kế Trạm Y tế xã của Dự án Hỗ trợ y tế Quốc gia, (Bộ Y tế); Dự án Dân số - Sức khỏe gia đình (Uỷ ban quốc gia DS và KHHGĐ) và Chương trình Xoá xã trắng.
DANH MỤC
TRANG THIẾT BỊ Y TẾ TRẠM Y TẾ XÃ
(Ban hành theo Quyết định số 2271/2002/BYT-QĐ ngày 17 tháng 6 năm 2002 của Bộ trưởng Bộ Y tế)
|
SỐ TT |
TÊN BỘ PHẬN VÀ TÊN TRANG THIẾT BỊ |
ĐƠN VỊ |
SỐ LƯỢNG |
|
1. |
DUNG CỤ KHÁM ĐIỀU TRỊ CHUNG |
|
|
|
1.1. |
Giường bệnh |
Cái |
5 |
|
1.2. |
Tủ đầu giường |
Cái |
5 |
|
1.3. |
Bàn khám bệnh |
Cái |
1 |
|
1.4. |
Đèn bàn khám bệnh |
Cái |
2 |
|
1.5. |
Huyết áp kế |
Cái |
2 |
|
1.6. |
ống nghe bệnh |
Cái |
2 |
|
1.7. |
Nhiệt kế y học 42oC |
Cái |
5 |
|
1.8. |
Máy điện tim 1 kênh (cho xã có bác sỹ) |
Cái |
1 |
|
1.9. |
Máy châm cứu |
Cái |
1 |
|
1.10 |
Bộ kim châm cứu các loại (bổ sung thêm khi có nhu cầu) |
Bộ |
10 |
|
1.11 |
Máy siêu âm chẩn đoán loại xách tay (cho xã có bác sỹ) |
Cái |
1 |
|
1.12 |
Máy khí dung |
Cái |
1 |
|
1.13 |
Máy hút điện |
Cái |
1 |
|
1.14 |
Kính hiển vi |
Cái |
1 |
|
1.15 |
Bộ dụng cụ rửa dạ dày |
Bộ |
1 |
|
1.16 |
Bộ dụng cụ thử nước tiểu (định tính) |
Bộ |
1 |
|
1.17 |
Cân trọng lượng 120kg có thước đo chiều cao |
Cái |
1 |
|
1.18 |
Đè lưỡi thép không gỉ |
Cái |
8 |
|
1.19 |
Bàn để dụng cụ |
Cái |
2 |
|
1.20 |
Cáng tay |
Cái |
1 |
|
1.21 |
Tủ đựng thuốc và dụng cụ |
Cái |
1 |
|
1.22 |
Khay quả đậu 825ml thép không gỉ |
Cái |
2 |
|
1.23 |
Khay quả đậu 475ml thép không gỉ |
Cái |
2 |
|
1.24 |
Khay đựng dụng cụ nông |
Cái |
4 |
|
1.25 |
Khay đựng dụng cụ sâu |
Cái |
4 |
|
1.26. |
Hộp hấp bông gạc hình trống |
Cái |
4 |
|
1.27. |
Hộp hấp dụng cụ có nắp |
Cái |
4 |
|
1.28. |
Bát đựng dung dịch 600ml, thép không gỉ |
Cái |
2 |
|
1.29. |
Thùng nhôm đựng nước có vòi |
Cái |
2 |
|
1.30. |
Cốc đựng dung dịch 500ml có chia độ |
Cái |
2 |
|
1.31. |
Bơm tiêm nhựa một lần các loại |
Cái |
500 |
|
1.32. |
Kẹp phẫu tích 1 x 2 răng |
Cái |
2 |
|
1.33. |
Kẹp phẫu tích không mấu |
Cái |
4 |
|
1.34. |
Kẹp Korcher có mấu và khoá hãm |
Cái |
2 |
|
1.35. |
Kẹp phẫu tích thẳng kiểu Mayo |
Cái |
4 |
|
1.36. |
Kéo thẳng, nhọn 145mm |
Cái |
4 |
|
1.37. |
Kéo thẳng tù 145mm |
Cái |
2 |
|
1.38. |
Kéo cong nhọn/nhọn 145mm |
Cái |
3 |
|
1.39. |
Kéo thẳng nhọn/tù 145mm |
Cái |
3 |
|
1.40. |
Kéo cong tù 145mm |
Cái |
3 |
|
1.41. |
Kéo cắt bông gạc |
Cái |
3 |
|
1.42. |
Kẹp kim Mayo 200mm |
Cái |
2 |
|
1.43. |
Kẹp lấy dị vật trong mắt |
Cái |
2 |
|
1.44. |
Bảng thử thị lực |
Cái |
1 |
|
1.45. |
Kính lúp 2 mắt |
Cái |
1 |
|
1.46. |
Ghế răng đơn giản |
Cái |
1 |
|
1.47. |
Kìm nhổ răng trẻ em |
Cái |
2 |
|
1.48. |
Kìm nhổ răng người lớn |
Cái |
2 |
|
1.49. |
Bẩy răng thẳng |
Cái |
5 |
|
1.50. |
Bẩy răng cong |
Cái |
5 |
|
1.51. |
Bộ lấy cao răng bằng tay |
Bộ |
2 |
|
1.52. |
Bộ khám răng miệng (khay quả đậu, gương, gắp ...) |
Bộ |
2 |
|
1.53. |
Bộ dụng cụ hàn răng sâu ngà đơn giản |
Bộ |
2 |
|
1.54. |
Cán dao số 4 |
Cái |
2 |
|
1.55. |
Lưỡi dao mổ số 21 - hộp 5 lưỡi |
Cái |
2 |
|
1.56. |
Đèn pin |
Cái |
2 |
|
1.57. |
Tủ đựng thuốc đông y |
Cái |
1 |
|
1.58. |
Dụng cụ sơ chế thuốc đông y |
Bộ |
1 |
|
1.59. |
Bô tròn |
Cái |
2 |
|
1.60. |
Vịt đái nữ |
Cái |
2 |
|
1.61. |
Vịt đái nam |
Cái |
2 |
|
1.62. |
Bốc tháo thụt, dây dẫn |
Cái |
1 |
|
1.63. |
Túi chườm nóng lạnh |
Cái |
2 |
|
1.64. |
Ghế đẩu quay |
Cái |
2 |
|
1.65. |
Cốc thủy tinh chia độ |
Cái |
2 |
|
1.66. |
Các bộ nẹp chân, tay |
Bộ |
5 |
|
1.67. |
Garo cho tiêm truyền và garo cầm máu... |
Cái |
10 |
|
1.68. |
Bông Y tế |
Gói |
10 |
|
1.69. |
Băng vết thương y tế |
Cuộn |
10 |
|
2. |
KHÁM ĐIỀU TRỊ SẢN PHỤ KHOA - ĐỠ ĐẺ |
|
|
|
2.1. |
Bàn khám phụ khoa |
Cái |
1 |
|
2.2. |
Mỏ vịt cỡ nhỏ, thép không gỉ |
Cái |
2 |
|
2.3. |
Mỏ vịt cỡ vừa, thép không gỉ |
Cái |
2 |
|
2.4. |
Van âm đạo các cỡ |
Cái |
2 |
|
2.5. |
Kẹp gắp bông gạc thẳng 200mm |
Cái |
2 |
|
2.6. |
Kẹp cầm máu thẳng thép không gỉ |
Cái |
2 |
|
2.7. |
Kéo cong 160mm thép không gỉ |
Cái |
2 |
|
2.8. |
Khay quả đậu, thép không gỉ |
Cái |
1 |
|
2.9. |
Thước đo tử cung |
Cái |
1 |
|
2.10. |
Thước đo khung chậu |
Cái |
1 |
|
2.11. |
Găng mổ cỡ 6,5 và 7 |
Cái |
30 |
|
2.12. |
Thùng nhôm có vòi, 20 lít |
Cái |
1 |
|
2.13. |
Bơm tiêm 2ml |
Cái |
2 |
|
2.14. |
Bơm tiêm 5ml |
Cái |
2 |
|
2.15. |
Kim tiêm các cỡ |
Cái |
18 |
|
2.16. |
Kẹp lấy vòng |
Cái |
2 |
|
2.17. |
Kẹp cổ tử cung 2 răng, 280mm, thép không gỉ |
Cái |
2 |
|
2.18. |
Bộ dụng cụ hút thai 1 van + ống hút số 4, 5, 6 |
Cái |
5 |
|
2.19. |
Chậu tắm trẻ em 25 lít |
Cái |
1 |
|
2.20. |
Băng huyết áp kế trẻ em |
Cái |
2 |
|
2.21. |
Quả bóp tháo thụt |
Cái |
1 |
|
2.22. |
Bầu nhỏ giọt |
Cái |
1 |
|
2.23. |
Bóng hút nhớt mũi trẻ sơ sinh + ống hút nhớt |
Cái |
2 |
|
2.24. |
Kẹp cầm máu thẳng loại Korcherr-Ochner, thép không gỉ 160mm |
Cái |
4 |
|
2.25. |
Bàn đẻ thép không gỉ |
Cái |
1 |
|
2.26. |
Thước dây 1,5 mét |
Cái |
1 |
|
2.27. |
ống nghe tim thai |
Cái |
1 |
|
2.28. |
Bơm hút sữa bằng tay |
Cái |
1 |
|
2.29. |
Kéo cắt tầng sinh môn 200mm |
Cái |
2 |
|
2.30. |
Kim khâu 3 cạnh, 3/7 vòng |
Cái |
2 |
|
2.31. |
Kim khâu cổ tử cung |
Cái |
2 |
|
2.32. |
Chỉ khâu loại không tiêu |
Gói |
10 |
|
2.33. |
Chỉ Catgut No.2 |
Gói |
5 |
|
2.34. |
Cân trẻ sơ sinh 15kg |
Cái |
1 |
|
3. |
DỤNG CỤ TIỆT KHUẨN |
|
|
|
3.1. |
Nồi hấp áp lực 18 lít điện - than |
Cái |
1 |
|
3.2. |
Nồi luộc dụng cụ điện |
Cái |
1 |
|
3.3. |
Nồi luộc dụng cụ đun dầu |
Cái |
1 |
|
3.4. |
Tủ sấy điện cỡ nhỏ |
Cái |
1 |
|
3.5. |
Kẹp dụng cụ sấy hấp |
Cái |
2 |
|
3.6. |
Chậu thép không gỉ - dung tích 6 lít |
Cái |
1 |
|
3.7. |
Xô đựng 12 đến 15 lít |
Cái |
4 |
|
4. |
THIẾT BỊ THÔNG DỤNG |
|
|
|
4.1. |
Máy bơm nước điện |
Cái |
1 |
|
4.2. |
Máy bơm nước UNICEF cho nơi không có điện |
Cái |
1 |
|
4.3. |
Máy phát điện 1500 VA/220V/50Hz |
Cái |
1 |
|
4.4. |
Đèn măng xông |
Cái |
1 |
|
4.5. |
Đèn bão |
Cái |
2 |
|
4.6. |
Loa phóng thanh cầm tay |
Cái |
1 |
|
4.7. |
Bàn làm việc |
Cái |
4 |
|
4.8. |
Ghế |
Cái |
12 |
|
4.9. |
Ghế băng |
Cái |
2 |
|
4.10. |
Tủ đựng tài liệu |
Cái |
3 |
|
4.11. |
Bảng đen |
Cái |
2 |
|
4.12. |
Bếp điện |
Cái |
1 |
|
4.13. |
Lò sưởi điện |
Cái |
1 |
|
5 |
TÚI Y TẾ THÔN BẢN |
|
|
|
5.1. |
Bơm tiêm thủy tinh 5ml + hộp nhôm |
Cái |
2 |
|
5.2. |
Bơm tiêm thủy tinh 10ml + hộp nhôm |
Cái |
1 |
|
5.3. |
Kim tiêm hộp 12 kim phù hợp với 02 loại bơm tiêm 5ml và 10ml |
Hộp |
3 |
|
5.4. |
Y nhiệt kế 420C |
Cái |
2 |
|
5.5. |
Kẹp Korcher thẳng 160mm có mấu và khoá hãm |
Cái |
1 |
|
5.6. |
Kẹp cong có mấu và khoá hãm 160mm |
Cái |
1 |
|
5.7. |
Kẹp phẫu tích 160mm |
Cái |
1 |
|
5.8. |
Kéo thẳng 160mm đầu tù |
Cái |
1 |
|
5.9. |
Thước dây bằng vải tráng nhựa 1,5m |
Cái |
1 |
|
5.10. |
Đè lưỡi các loại |
Cái |
3 |
|
5.11. |
Hộp đựng dụng cụ 220x100x50mm nhôm dày 0,85-1mm |
Cái |
1 |
|
5.12. |
Đèn pin + 2 pin đại |
Cái |
1 |
|
5.13. |
Bông y tế |
Gói |
2 |
|
5.14. |
Băng vết thương y tế |
Cuộn |
2 |
|
5.15. |
Các bộ nẹp chân, tay |
Bộ |
2 |
|
5.16. |
Túi đựng dụng cụ y tế, giả da xách tay |
Cái |
1 |
|
6. |
GÓI ĐỠ ĐẺ SẠCH |
|
|
|
|
Tất cả các hạng mục được khử trùng trước khi đóng gói |
|
|
|
|
CƠ SỐ 1 GÓI |
|
|
|
6.1. |
Găng tay y tế |
Đôi |
2 |
|
6.2. |
Lưỡi dao mổ |
Cái |
1 |
|
6.3. |
Tấm nylon mềm kích thước 45x70cm |
Tấm |
1 |
|
6.4. |
Cồn Iode 0,5% - 5ml |
Lọ |
1 |
|
6.5. |
Gạc cầu Ф40mm |
Cái |
2 |
|
6.6. |
Xà phòng rửa tay |
Miếng |
1 |
|
6.7. |
Băng rốn vô khuẩn |
Gói |
1 |
|
6.8. |
Chỉ buộc rốn dài 30cm |
Sợi |
2 |
|
6.9. |
Bông thấm nước |
Gói |
1 |
|
6.10. |
Tăm bông |
Cái |
2 |
MỘT SỐ THIẾT KẾ MẪU TRẠM Y TẾ CƠ SỞ
MẪU SỐ1
DÙNG CHO VÙNG:
• KHÔNG CÓ LŨ LỤT
• CÓ QUY MÔ DÂN SỐ LỚN HƠN 10.000 DÂN
MẪU SỐ 2
DÙNG CHO VÙNG:
• KHÔNG CÓ LŨ LỤT
• CÓ QUY MÔ DÂN SỐ NHỎ HƠN HOẶC BẰNG 10.000 DÂN
MẪU SỐ 3
DÙNG CHO VÙNG:
• MIỀN NÚI, VÙNG XA, HẢI ĐẢO...
• CÓ QUY MÔ DÂN SỐ NHỎ HƠN HOẶC BẰNG 5.000 DÂN
MẪU SỐ 4
DÙNG CHO VÙNG:
• CÓ LŨ LỤT
• CÓ QUY MÔ DÂN SỐ LỚN HƠN 10.000 DÂN
MẪU SỐ 5
DÙNG CHO VÙNG:
• CÓ LŨ LỤT
• CÓ QUY MÔ DÂN SỐ NHỎ HƠN HOẶC BẰNG 10.000 DÂN
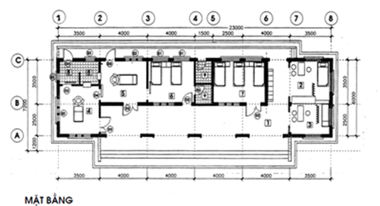
THIẾT KẾ MẪU - TRẠM Y TẾ CƠ SỞ
MẪU SỐ 1
DÙNG CHO VÙNG:
• KHÔNG CÓ LŨ LỤT
• CÓ QUY MÔ DÂN SỐ LỚN HƠN 10.000 DÂN

PHỐI CẢNH MINH HỌA MẪU SỐ 1
THIẾT KẾ MẪU - TRẠM Y TẾ CƠ SỞ
MẪU SỐ 1

GHI CHÚ:
1. VƯỜN THUỐC
2. SÂN
3. ĐẤT DỰ KIẾN PHÁT TRIỂN
4. KHỐI KỸ THUẬT
5. KHỐI PHỤ TRỢ
Diện tích đất 800m2
THIẾT KẾ MẪU - TRẠM Y TẾ CƠ SỞ
MẪU SỐ 1

|
1. Sảnh đón tiếp và Phòng đa năng kết hợp |
40.0 m2 |
|
2. Phòng khám Tây y (có tủ thuốc): |
27.0m2 |
|
3. Phòng khám - chữa bệnh theo phương pháp Y học cổ truyền: |
|
|
4. Phòng thực hiện các dịch vụ KHHGĐ: |
14.0m2 |
|
5. Phòng đẻ: |
14.0m2 |
|
6. Phòng sau đẻ: |
14.0m2 |
|
7. Phòng lưu bệnh nhân: |
15.8m2 |
|
8. Phòng rửa tiệt trùng: |
7.0m2 |
|
9. Phòng vệ sinh: |
5.2m2 |
|
Tổng diện tích sử dụng: |
135.0m2 |
THIẾT KẾ MẪU - TRẠM Y TẾ CƠ SỞ
MẪU SỐ 1


THUYẾT MINH THIẾT KẾ MẪU SỐ 1
1. PHẠM VI ÁP DỤNG
1.1. Trạm y tế cơ sở tại các xã, phường, thị trấn vùng không có lũ lụt
1.2. Quy mô dân số lớn hơn 10.000 dân
2. PHẦN KIẾN TRÚC
2.1. Số tầng công trình: 1 tầng
2.2. Cấp công trình: cấp II
2.3. Hình thức kiến trúc mang tính truyền thống nông thôn Việt Nam, nhưng đơn giản, hiện đại
2.4. Tổng mặt bằng trạm y tế cơ sở gồm có: Khối kỹ thuật nhà trạm, sân chờ, khối phụ trợ (bể nước, bếp nấu...), vườn cây thuốc, cây xanh bóng mát, hàng rào và cổng chính.
2.5. Nội thất nhà trạm: tường gạch trát vữa tam hợp hoặc xi măng cát, quét vôi; các phòng kỹ thuật ốp gạch men kính toàn bộ tường; cửa sổ và cửa đi bằng gỗ - kính có hoa sắt bảo vệ (khu WC, các phòng kỹ thuật có lưới chắn côn trùng).
2.6. Diện tích xây dựng gồm:
|
2.6.1 |
Sảnh đón tiếp kết hợp Phòng đa năng: |
40.0m2 |
|
2.6.2. |
Phòng khám Tây y (có tủ thuốc) |
270m2 |
|
2.6.3. |
Phòng khám - chữa bệnh theo phương pháp Y học cổ truyền: |
|
|
2.6.4. |
Phòng thực hiện các dịch vụ KHHGĐ: |
14.0m2 |
|
2.6.5 |
Phòng đẻ: |
14.0m2 |
|
2.6.6. |
Phòng sau đẻ: |
14.0m2 |
|
2.6.7. |
Phòng lưu bệnh nhân: |
15.8m2 |
|
2.6.8. |
Phòng rửa tiệt trùng: |
7.0m2 |
|
2.6.9. |
Phòng vệ sinh: |
5.2m2 |
|
|
Tổng diện tích sử dụng: |
135.0m2 |
3. PHẦN KẾT CẤU
|
3.1 |
Móng |
Móng gạch hoặc bê tông cốt thép chịu lực |
|
3.2 |
Thân nhà: |
Tường gạch chịu lực. |
|
3.3 |
Mái: |
Mái bằng bê tông cốt thép đổ tại chỗ. |
|
3.4 |
Chống thấm, chống nóng: |
Bằng mái tôn. |
|
3.5 |
Thống kê vật liệu chính: |
|
|
|
3.5.1. Gạch đặc 75#: |
63.000 viên |
|
|
3.5.2. Xi măng PC 30: |
18.300 kg |
|
|
3.5.3. Sắt thép: |
2.130 kg |
|
|
3.5.4. Vôi: |
2.620 kg |
|
|
3.5.5. Cát: |
83 m3 |
|
|
3.5.6. Đá / sỏi: |
20 m3 |
4. KỸ THUẬT ĐIỆN, NƯỚC, VỆ SINH MÔI TRƯỜNG
4.1. Hệ thống điện
4.1.1. Nguồn cấp điện lấy điện lưới hoặc máy phát điện (nếu chưa có điện lưới).
4.1.2. Hệ thống dây dẫn bọc PVC đi chìm trong tường, trần.
4.1.3. Thiết bị điện sử dụng các loại sản xuất trong nước.
4.2. Hệ thống cấp nước
4.2.1.Nguồn cấp nước lấy từ nguồn nước máy hoặc giếng khoan.
4.2.2.Hệ thống dự trữ nước gồm bể nước xây ngoài nhà (cho sinh hoạt và PCCC) và bể nước trên mái (có sử dụng máy bơm).
4.3. Hệ thống thoát nước
4.3.1. Nước thải sinh hoạt được dẫn qua hố ga lọc trước khi đổ ra cống chung;
4.3.2. Nước thải từ WC thoát qua bể tự hoại và nước thải từ các phòng kỹ thuật được xử lý tiệt khuẩn trước khi thoát ra cống chung.
4.4.Vệ sinh môi trường: Các chất thải rắn, chất thải y tế được thu gom tập trung bên ngoài nhà để xử lý riêng.
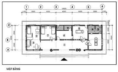
THIẾT KẾ MẪU - TRẠM Y TẾ CƠ SỞ
MẪU SỐ 2
DÙNG CHO VÙNG:
• KHÔNG CÓ LŨ LỤT
• CÓ QUY MÔ DÂN SỐ NHỎ HƠN HOẶC BẰNG 10.000 DÂN

PHỐI CẢNH MINH HỌA MẪU SỐ 2
THIẾT KẾ MẪU - TRẠM Y TẾ CƠ SỞ
MẪU SỐ 2

GHI CHÚ:
1. VƯỜN THUỐC
2. SÂN
3. ĐẤT DỰ KIẾN PHÁT TRIỂN
4. KHỐI KỸ THUẬT
5. KHỐI PHỤ TRỢ
DIỆN TÍCH ĐẤT 700M2
THIẾT KẾ MẪU - TRẠM Y TẾ CƠ SỞ
MẪU SỐ 2

|
1. Sảnh đón tiếp kết hợp Phòng đa năng: |
30.0m2 |
|
2. Phòng khám Tây y (có tủ thuốc): |
21.0m2 |
|
3. Phòng khám - chữa bệnh theo phương pháp Y học cổ truyền: |
|
|
4. Phòng thực hiện các dịch vụ KHHGĐ: |
14.0m2 |
|
5. Phòng đẻ: |
14.0m2 |
|
6. Phòng sau đẻ: |
8.0m2 |
|
7. Phòng lưu bệnh nhân: |
14.0m2 |
|
8. Phòng rửa tiệt trùng: |
7.0m2 |
|
9. Phòng vệ sinh: |
4.0m2 |
|
Tổng diện tích sử dụng: |
112.0m2 |
THIẾT KẾ MẪU - TRẠM Y TẾ CƠ SỞ
MẪU SỐ 2


THUYẾT MINH THIẾT KẾ MẪU SỐ 2
1. PHẠM VI ÁP DỤNG
1.1. Trạm y tế cơ sở tại các xã, phường, thị trấn vùng không có lũ lụt
1.2. Quy mô dân số nhỏ hơn hoặc bằng 10.000 dân
2. PHẦN KIẾN TRÚC
2.1. Số tầng công trình: 1 tầng
2.2. Cấp công trình: cấp II
2.3. Hình thức kiến trúc mang tính truyền thống nông thôn Việt Nam, nhưng đơn giản, hiện đại
2.4. Tổng mặt bằng trạm y tế cơ sở gồm có: Khối kỹ thuật nhà trạm, sân chờ, khối phụ trợ (bể nước, bếp nấu...), vườn cây thuốc, cây xanh bóng mát, hàng rào và cổng chính.
2.5. Hoàn thiện công trình: Tường gạch trát vữa tam hợp hoặc xi măng, quét vôi; các phòng kỹ thuật ốp gạch men kính toàn bộ tường; cửa sổ và cửa đi bằng gỗ - kính có hoa sắt bảo vệ (khu WC, các phòng kỹ thuật có lưới chắn côn trùng).
2.6. Diện tích xây dựng gồm:
|
2.6.1. Sảnh đón tiếp kết hợp Phòng đa năng: |
30.0m2 |
|
2.6.2. Phòng khám Tây y (có tủ thuốc): |
21.0m2 |
|
2.6.3. Phòng khám - chữa bệnh theo phương pháp Y học cổ truyền: |
|
|
2.6.4. Phòng thực hiện các dịch vụ KHHGĐ: |
14.0m2 |
|
2.6.5. Phòng đẻ: |
14.0m2 |
|
2.6.6. Phòng sau đẻ: |
8.0m2 |
|
2.6.7. Phòng lưu bệnh nhân: |
14.0m2 |
|
2.6.8. Phòng rửa tiệt trùng: |
7.0m2 |
|
2.6.9. Phòng vệ sinh: |
4.0m2 |
|
Tổng diện tích sử dụng: |
112.0m2 |
3. PHẦN KẾT CẤU
|
3.1 |
Móng: |
Móng gạch hoặc đá chịu lực. |
|
3.2 |
Thân nhà: |
Tường gạch chịu lực. |
|
3.3 |
Mái: |
Mái bằng bê tông cốt thép đổ tại chỗ |
|
3.4. |
Chống thấm, chống nóng mái: Bằng mái tôn. |
|
|
3.5 |
Thống kê vật liệu chính: |
|
|
|
3.5.1. Gạch: |
57.300 viên |
|
|
3.5.2. Xi măng: |
16.800 kg |
|
|
3.5.3. Vôi: |
2.400 kg |
|
|
3.5.4. Cát: |
76 m3 |
|
|
3.5.5. Sắt thép: |
1.950 kg |
|
|
3.5.6. Đá/sỏi: |
18 m3 |
4. KỸ THUẬT ĐIỆN, NƯỚC, VỆ SINH MÔI TRƯỜNG
4.1. Hệ thống điện:
4.1.1 Nguồn cấp điện lấy điện lưới hoặc máy phát điện (nếu chưa có điện lưới);
4.1.2. Hệ thống dây dẫn bọc PVC đi chìm trong tường, trần:
4.1.2. Thiết bị điện sử dụng các loại sản xuất trong nước.
4.2. Hệ thống cấp nước:
4.3.1. Nguồn cấp nước lấy từ nguồn nước máy hoặc giếng khoan.
4.3.2. Hệ thống dự trữ nước gồm bể nước xây ngoài nhà (cho sinh hoạt và PCCC) và bể nước trên mái (có sử dụng máy bơm).
4.3. Hệ thống thoát nước:
4.3.1. Nước thải sinh hoạt được dẫn qua hố ga lọc trước khi đổ ra cống chung;
4.3.2. Nước thải từ WC thoát qua bể tự hoại và nước thải từ các phòng kỹ thuật được xử lý tiệt khuẩn trước khi thoát ra cống chung.
4.4. Vệ sinh môi trường: Các chất thải rắn, chất thải y tế được thu gom tập trung bên ngoài nhà để xử lý riêng.
THIẾT KẾ MẪU - TRẠM Y TẾ CƠ SỞ
MẪU SỐ 3
DÙNG CHO VÙNG:
• NÚI CAO, VÙNG XA, HẢI ĐẢO...
• CÓ QUY MÔ DÂN SỐ NHỎ HƠN HOẶC BẰNG 5.000 DÂN

PHỐI CẢNH MINH HỌA MẪU SỐ 3
THIẾT KẾ MẪU - TRẠM Y TẾ CƠ SỞ
MẪU SỐ 3

MẶT BẰNG TỔNG THỂ
GHI CHÚ:
1. VƯỜN THUỐC
2. SÂN
3. KHỐI KỸ THUẬT
4. KHỐI PHỤ TRỢ
DIỆN TÍCH ĐẤT 600m2
THIẾT KẾ MẪU - TRẠM Y TẾ CƠ SỞ
MẪU SỐ 3

MẶT BẰNG
|
1. Sảnh đón tiếp kết hợp Phòng đa năng: |
20.0m2 |
|
2. Phòng khám Tây y (có tủ thuốc): |
21.0m2 |
|
3. Phòng khám - chữa bệnh theo phương pháp Y học cổ truyền: |
|
|
4. Phòng thực hiện các dịch vụ KHHGĐ: |
14.0m2 |
|
5. Phòng đẻ: |
14.0m2 |
|
6. Phòng lưu bệnh nhân: |
14.0m2 |
|
7. Phòng rửa: |
7.0m2 |
|
8. Phòng tiệt trùng: |
|
|
Tổng diện tích sử dụng: |
90.0m2 |
THIẾT KẾ MẪU - TRẠM Y TẾ CƠ SỞ
MẪU SỐ 3

MẶT ĐỨNG

MẶT CẮT
THUYẾT MINH THIẾT KẾ MẪU SỐ 3
1. PHẠM VI ÁP DỤNG
1.1. Trạm y tế cơ sở tại các xã, phường, thị trấn vùng núi cao, vùng xa, hải đảo...
1.2. Quy mô dân số nhỏ hơn hoặc bằng 5.000 dân
2. PHẦN KIẾN TRÚC
2.1. Số tầng công trình: 1 tầng
2.2. Cấp công trình: cấp II
2.3. Hình thức kiến trúc đơn giản và hiện đại, nhưng phù hợp với điều kiện xây dựng ở miền núi, vùng xa, hải đảo...
2.4. Tổng mặt bằng trạm y tế cơ sở gồm có: Khối kỹ thuật nhà trạm, sân chờ, bể nước, bếp nấu, vườn cây thuốc, cây xanh bóng mát, hàng rào và cổng chính.
2.5. Nội thất nhà trạm: tường gạch trát vữa tam hợp hoặc xi măng cát, quét vôi; các phòng kỹ thuật ốp gạch men kính toàn bộ tường; sàn lát gạch hoa XM; cửa sổ và cửa đi bằng gỗ - kính có hoa sắt bảo vệ (các phòng kỹ thuật có lưới chắn côn trùng).
2.6. Diện tích xây dựng gồm:
|
2.6.1. Sảnh đón tiếp kết hợp Phòng đa năng: |
20.0m2 |
|
2.6.2. Phòng khám Tây y (có tủ thuốc): |
21.0m2 |
|
2.6.3. Phòng khám - chữa bệnh theo phương pháp Y học cổ truyền: |
|
|
2.6.4. Phòng thực hiện các dịch vụ KHHGĐ: |
14.0m2 |
|
2.6.5. Phòng đẻ: |
14.0m2 |
|
2.6.6. Phòng lưu bệnh nhân: |
14.0m2 |
|
2.6.8. Phòng rửa tiệt trùng: |
7.0m2 |
|
Tổng diện tích sử dụng: |
90.0m2 |
3. PHẦN KẾT CẤU
|
3.1 |
Móng: |
Móng gạch hoặc đá chịu lực. |
|
3.2 |
Thân nhà: |
Tường gạch chịu lực. |
|
3.3 |
Mái: |
Mái: Mái lợp ngói, dàn kèo đỡ mái bằng gỗ nhóm 4 |
|
3.4 |
Thống kê vật liệu chính: |
|
|
|
3.4.1. Gạch: |
26.740 viên |
|
|
3.4.2. Xi măng: |
7.800 kg |
|
|
3.4.3. Vôi: |
1.100 kg |
|
|
3.4.4. Cát: |
40 m3 |
|
|
3.4.5. Sắt thép: |
910 kg |
|
|
3.4.6. Đá/sỏi: |
9 m3 |
4. KỸ THUẬT ĐIỆN, NƯỚC, VỆ SINH MÔI TRƯỜNG
4.1. Hệ thống điện:
4.1.1. Nguồn cấp điện lấy điện lưới hoặc máy phát điện (nếu chưa có điện lưới);
4.1.2. Hệ thống dây dẫn bọc PVC đi chìm trong tường, trần:
4.1.2. Thiết bị điện sử dụng các loại sản xuất trong nước.
4.2. Hệ thống cấp nước:
4.3.1. Nguồn cấp nước lấy từ nguồn nước máy hoặc giếng khoan;
4.3.2. Hệ thống dự trữ nước gồm bể nước xây ngoài nhà (cho sinh hoạt và PCCC)
4.3. Hệ thống thoát nước:
4.3.1. Nước thải sinh hoạt được dẫn qua hố ga lọc trước khi đổ ra cống chung;
4.3.2. Nước thải từ khu WC thoát qua bể tự hoại; nước thải từ các phòng kỹ thuật được xử lý tiệt khuẩn trước khi thoát ra cống chung.
4.4. Vệ sinh môi trường: Các chất thải rắn, chất thải y tế được thu gom tập trung bên ngoài nhà để xử lý riêng.
THIẾT KẾ MẪU - TRẠM Y TẾ CƠ SỞ
MẪU SỐ 4
DÙNG CHO VÙNG:
• CÓ LŨ LỤT
• CÓ QUY MÔ DÂN SỐ LỚN HƠN 10.000 DÂN

PHỐI CẢNH MINH HỌA MẪU SỐ 4
THIẾT KẾ MẪU - TRẠM Y TẾ CƠ SỞ
MẪU SỐ 4

MẶT BẰNG TỔNG THỂ
GHI CHÚ:
1. VƯỜN THUỐC
2. SÂN
3. KHỐI KỸ THUẬT
4. KHỐI PHỤ TRỢ
DIỆN TÍCH ĐẤT 800 ÷ 1200M2
THIẾT KẾ MẪU - TRẠM Y TẾ CƠ SỞ
MẪU SỐ 4

|
1. Không gian đa năng, tuyên truyền - tư vấn |
75.0m2 |
|
2. Phòng Khám chữa bệnh Tây y (có tủ thuốc) |
|
|
3. Phòng khám chữa bệnh theo phương pháp Y học cổ truyền: |
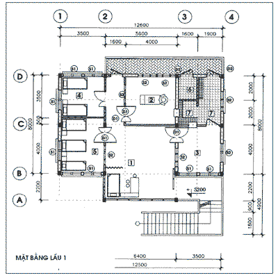
THIẾT KẾ MẪU - TRẠM Y TẾ CƠ SỞ
MẪU SỐ 4

|
1. |
Sảnh đón tiếp kết hợp Phòng đa năng: |
44.5m2 |
|
2. |
Phòng đẻ: |
14.0m2 |
|
3. |
Phòng thực hiện các dịch vụ KHHGĐ: |
14.0m2 |
|
4. |
Phòng sau đẻ |
12.5m2 |
|
5. |
Phòng lưu bệnh nhân: |
16.0m2 |
|
6. |
Khu vệ sinh: |
3.5m2 |
|
7. |
Phòng rửa, tiệt trùng: |
10.5m2 |
THIẾT KẾ MẪU - TRẠM Y TẾ CƠ SỞ
MẪU SỐ 4

MẶT ĐỨNG

MẶT CẮT
THUYẾT MINH THIẾT KẾ MẪU SỐ 4
1. PHẠM VI ÁP DỤNG
1.1. Trạm y tế cơ sở các xã, phường, thị trấn tại vùng có lũ lụt.
1.2. Quy mô dân số lớn hơn 10.000 dân
2. PHẦN KIẾN TRÚC
2.1. Số tầng công trình: 2 tầng
2.2. Cấp công trình: Cấp II
2.3. Hình thức kiến trúc: Mang tính truyền thống nông thôn Việt Nam, nhưng đơn giản hiện đại và phù hợp với đặc điểm vùng có lũ lụt.
Phần tầng 1 (trệt) không có tường bao che cố định dùng làm không gian đa năng, tuyên truyền tư vấn, khám chữa bệnh tây y, khám chữa bệnh theo phương pháp y học cổ truyền (khi không có lũ lụt). Khi xẩy ngập lụt ở tầng 1, các hoạt động chủ yếu của trạm vẫn diễn ra bình thường ở tầng 2 (lầu 1), liên hệ bằng cầu thang riêng bên ngoài.
2.4. Tổng mặt bằng trạm y tế cơ sở gồm có: Khối kỹ thuật nhà trạm, sân chờ, bể nước, bếp nấu, vườn cây thuốc, cây xanh bóng mát, hàng rào và cổng chính.
2.5. Hoàn thiện công trình: Tường gạch trát vữa xi măng cát, quét vôi; các phòng kỹ thuật ốp gạch men kính toàn bộ tường; sàn lát gạch hoa XM; cửa sổ và cửa đi bằng gỗ - kính có hoa sắt bảo vệ (khu vệ sinh, các phòng kỹ thuật có lưới chắn côn trùng).
2.6. Diện tích xây dựng gồm:
|
|
Trệt (Tầng 1): |
75.0m2 |
|
2.6.1. |
Không gian đa năng, tuyên truyền – tư vấn |
|
|
2.6.3. |
Phòng khám chữa bệnh tây y |
|
|
2.6.4. |
Phòng khám chữa bệnh theo phương pháp y học cổ truyền: |
|
|
|
Lầu một (Tầng 2): |
|
|
2.6.4 |
Sảnh đón tiếp kết hợp Phòng đa năng: |
44.5m2 |
|
2.6.5 |
Phòng đẻ: |
14.0m2 |
|
2.6.6. |
Phòng thực hiện các dịch vụ KHHGĐ: |
14.0m2 |
|
2.6.7. |
Phòng sau đẻ: |
12.5m2 |
|
2.6.8 |
Phòng lưu bệnh nhân: |
16.0m2 |
|
2.6.9 |
Phòng rửa, tiệt trùng: |
10.5m2 |
|
2.6.10 |
Khu vệ sinh: |
2.5m2 |
|
|
Tổng diện tích sử dụng lầu một: |
115.0m2 |
3. PHẦN KẾT CẤU:
|
3.1 |
Móng: |
Móng bê tông cốt thép |
|
3.2 |
Thân nhà: |
Khung bê tông cốt thép chịu lực. |
|
3.3 |
Mái: |
Mái bằng bê tông cốt thép đổ tại chỗ. |
|
3.4 |
Chống thấm, chống nóng: |
Mái tôn lợp dốc |
|
3.5 |
Thống kê vật liệu chính: |
|
|
|
3.5.1. Gạch: |
32.500 viên |
|
|
3.5.2. Xi măng: |
21.000 kg |
|
|
3.5.3. Cát: |
57 m3 |
|
|
3.4.3. Sắt thép: |
2.700 kg |
|
|
3.4.4. Đá/sỏi: |
26 m3 |
4. KỸ THUẬT ĐIỆN, NƯỚC, VỆ SINH MÔI TRƯỜNG
4.1 Hệ thống điện:
4.1.1 Nguồn cấp điện lấy điện lưới hoặc máy phát điện (nếu chưa có điện lưới);
4.1.2. Hệ thống dây dẫn bọc PVC đi chìm trong tường, trần:
4.1.2. Thiết bị điện sử dụng các loại sản xuất trong nước.
4.2. Hệ thống cấp nước:
4.2.1. Nguồn nước cấp lấy từ nguồn nước máy hoặc giếng khoan;
4.2.2.Hệ thống dự trữ nước gồm bể nước xây ngoài nhà (cho sinh hoạt và PCCC) và bể nước trên mái (có sử dụng máy bơm).
4.3 Hệ thống thoát nước:
4.3.1. Nước thải sinh hoạt được dẫn qua hố ga lọc trước khi đổ ra cống chung;
4.3.2. Nước thải từ khu vệ sinh thoát qua bể tự hoại; nước thải từ các phòng kỹ thuật được xử lý tiệt khuẩn trước khi thoát ra cống chung.
4.4. Vệ sinh môi trường: Các chất thải rắn, chất thải y tế được thu gom tập trung bên ngoài nhà để xử lý riêng.
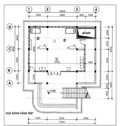
THIẾT KẾ MẪU - TRẠM Y TẾ CƠ SỞ
MẪU SỐ 5
DÙNG CHO VÙNG:
• CÓ LŨ LỤT
• CÓ QUY MÔ DÂN SỐ NHỎ HOẶC BẰNG 10.000 DÂN

PHỐI CẢNH MINH HỌA MẪU SỐ 5
THIẾT KẾ MẪU - TRẠM Y TẾ CƠ SỞ
MẪU SỐ 5

GHI CHÚ:
1. VƯỜN THUỐC
2. SÂN
3. KHỐI KỸ THUẬT
4. KHỐI PHỤ TRỢ
DIỆN TÍCH ĐẤT 800m2 ÷ 10002
THIẾT KẾ MẪU - TRẠM Y TẾ CƠ SỞ
MẪU SỐ 5

|
1. Không gian đa năng, tuyên truyền - tư vấn |
60.0m2 |
|
2. Phòng khám chữa bệnh theo phương pháp Y học cổ truyền: |
|
|
3. Phòng khám - chữa bệnh Tây y (có tủ thuốc) |
THIẾT KẾ MẪU - TRẠM Y TẾ CƠ SỞ
MẪU SỐ 5

|
1. |
Sảnh đón tiếp kết hợp Phòng đa năng: |
31.5m2 |
|
2. |
Phòng đẻ: |
14.0m2 |
|
3. |
Phòng sau đẻ: |
8.5m2 |
|
4. |
Phòng lưu bệnh nhân: |
10.0m2 |
|
5. |
Phòng thực hiện các dịch vụ KHHGĐ: |
14.0m2 |
|
6. |
Phòng rửa, tiệt trùng: |
9.0m2 |
|
7. |
Khu vệ sinh: |
3.0m2 |
THIẾT KẾ MẪU - TRẠM Y TẾ CƠ SỞ
MẪU SỐ 5

MẶT ĐỨNG

MẶT CẮT
THUYẾT MINH THIẾT KẾ MẪU SỐ 5
1. PHẠM VI ÁP DỤNG
1.1. Trạm y tế cơ sở tại các xã, phường, thị trấn vùng có lũ lụt
1.2. Quy mô dân số nhỏ hơn hoặc bằng 10.000 dân
2. PHẦN KIẾN TRÚC
2.1. Số tầng công trình: 2 tầng
2.2. Cấp công trình: Cấp II
2.3. Hình thức kiến trúc mang tính truyền thống Việt Nam nhưng đơn giản và phù hợp với đặc điểm vùng có lũ lụt.
Phần tầng 1 (trệt) không có tường bao che cố định dùng làm không gian đa năng, tuyên truyền tư vấn, khám chữa bệnh tây y, y học cổ truyền (khi không có lũ lụt). Khi xẩy ngập lụt ở tầng 1 các hoạt động chủ yếu của trạm vẫn diễn ra bình thường ở tầng 2 (lầu 1), liên hệ bằng cầu thang riêng bên ngoài.
2.4. Tổng mặt bằng trạm y tế cơ sở gồm có: Khối kỹ thuật nhà trạm, sân chờ, bể nước, bếp nấu, vườn cây thuốc, cây xanh bóng mát, hàng rào à cổng chính.
2.5. Hoàn thiện công trình: Tường gạch trát vữa xi măng cát, quét vôi; các phòng kỹ thuật ốp gạch men kính toàn bộ tường; sàn lát gạch hoa XM; cửa sổ và cửa đi bằng gỗ - kính có hoa sắt bảo vệ (khu vệ sinh, các phòng kỹ thuật có lưới chắn côn trùng).
2.6. Diện tích xây dựng gồm:
|
|
Trệt (Tầng 1): |
60.0m2 |
|
2.6.1. |
Không gian đa năng, tuyên truyền – tư vấn |
|
|
2.6.3. |
Phòng khám chữa bệnh Tây y |
|
|
2.6.4. |
Phòng khám chữa bệnh theo phương pháp y học cổ truyền: |
|
|
|
Lầu một (Tầng 2): |
|
|
2.6.4. |
Sảnh đón tiếp kết hợp Phòng đa năng: |
31.5m2 |
|
2.6.5. |
Phòng đẻ: |
14.0m2 |
|
2.6.6. |
Phòng thực hiện các dịch vụ KHHGĐ: |
14.0m2 |
|
2.6.7. |
Phòng sau đẻ: |
8.5m2 |
|
2.6.8. |
Phòng lưu bệnh nhân: |
10.0m2 |
|
2.6.9. |
Phòng rửa, tiệt trùng: |
9.0m2 |
|
2.6.10. |
Khu vệ sinh: |
3.0m2 |
|
|
Tổng diện tích sử dụng lầu một: |
90.0m2 |
3. PHẦN KẾT CẤU
|
3.1. |
Móng: |
Móng bê tông cốt thép. |
|
3.2. |
Thân nhà: |
Khung bê tông cốt thép chịu lực. |
|
3.3. |
Mái: |
Mái bằng bê tông cốt thép tại chỗ. |
|
3.4. |
Chống thấm, chống nóng: |
Mái tôn lợp dốc. |
|
3.5. |
Thống kê vật liệu chính: |
|
|
|
3.5.1. Gạch: |
27.000viên |
|
|
3.5.2. Xi măng: |
18.200 kg |
|
|
3.5.3. Cát: |
48 m3 |
|
|
3.5.4. Sắt thép: |
2.200 kg |
|
|
3.5.5. Đá sỏi: |
21 m3 |
4. KỸ THUẬT ĐIỆN, NƯỚC, VỆ SINH MÔI TRƯỜNG
4.1. Hệ thống điện
4.1.1. Nguồn cấp điện lấy điện lưới hoặc máy phát điện (nếu chưa có điện lưới);
4.1.2. Hệ thống dây dẫn bọc PVC đi chìm trong tường, trần:
4.1.2. Thiết bị điện sử dụng các loại sản xuất trong nước.
4.2. Hệ thống cấp nước
4.2.1. Nguồn nước cấp lấy từ nguồn nước máy hoặc giếng khoan;
4.2.2. Hệ thống dự trữ nước gồm bể nước xây ngoài nhà (cho sinh hoạt và PCCC) và bể nước trên mái (có sử dụng máy bơm).
4.3. Hệ thống thoát nước:
4.3.1. Nước thải sinh hoạt được dẫn qua hố ga lọc trước khi đổ ra cống chung;
4.3.2. Nước thải từ khu vệ sinh thoát qua bể tự hoại và nước thải từ các phòng kỹ thuật được xử lý tiệt khuẩn trước khi thoát ra cống chung.
4.4. Vệ sinh môi trường: Các chất thải rắn, chất thải y tế được thu gom tập trung bên ngoài nhà để xử lý riêng.
Bạn chưa Đăng nhập thành viên.
Đây là tiện ích dành cho tài khoản thành viên. Vui lòng Đăng nhập để xem chi tiết. Nếu chưa có tài khoản, vui lòng Đăng ký tại đây!
Bạn chưa Đăng nhập thành viên.
Đây là tiện ích dành cho tài khoản thành viên. Vui lòng Đăng nhập để xem chi tiết. Nếu chưa có tài khoản, vui lòng Đăng ký tại đây!