- Tổng quan
- Nội dung
- Tiêu chuẩn liên quan
- Lược đồ
- Tải về
Tiêu chuẩn quốc gia TCVN 14498:2025 Phòng cháy chữa cháy - Bình chữa cháy cố định bằng sol-khí dạng cô đặc
| Số hiệu: | TCVN 14498:2025 | Loại văn bản: | Tiêu chuẩn Việt Nam |
| Cơ quan ban hành: | Bộ Khoa học và Công nghệ | Lĩnh vực: | Xây dựng , An ninh trật tự |
| Trích yếu: | Phòng cháy chữa cháy - Bình chữa cháy cố định bằng sol-khí dạng cô đặc | ||
|
Ngày ban hành:
Ngày ban hành là ngày, tháng, năm văn bản được thông qua hoặc ký ban hành.
|
01/10/2025 |
Hiệu lực:
|
Đã biết
|
| Người ký: | Đang cập nhật |
Tình trạng hiệu lực:
Cho biết trạng thái hiệu lực của văn bản đang tra cứu: Chưa áp dụng, Còn hiệu lực, Hết hiệu lực, Hết hiệu lực 1 phần; Đã sửa đổi, Đính chính hay Không còn phù hợp,...
|
Đã biết
|
TÓM TẮT TIÊU CHUẨN VIỆT NAM TCVN 14498:2025
Tiêu chuẩn Quốc gia TCVN 14498:2025 về Bình Chữa Cháy Cố Định bằng Sol-Khí Dạng Cô Đặc
Tiêu chuẩn Quốc gia TCVN 14498:2025, được Bộ Công an ban hành, quy định các yêu cầu kỹ thuật và phương pháp thử nghiệm đối với bình chữa cháy cố định bằng Sol-khí dạng cô đặc. Tiêu chuẩn này có hiệu lực từ ngày 01/01/2025 và được xây dựng dựa trên các tiêu chuẩn quốc tế như ANSI/CAN/UL/ULC 2775:2022A.
Tiêu chuẩn này áp dụng cho các bình chữa cháy sử dụng trong các công trình xây dựng như tủ điện, tuabin điện, và những khu vực có nguy cơ cao. Đặc biệt không thay thế cho hệ thống chữa cháy hiện có hoặc bảo vệ khu vực có nguy cơ cháy cao hơn khả năng kỹ thuật của từng thiết bị.
Yêu cầu cấu tạo và chức năng
Cấu tạo bình chữa cháy: Bình chữa cháy cần có cơ cấu kích hoạt tự động hoặc thủ công. Tất cả các bộ phận phải chịu được yêu cầu về kháng ăn mòn trong môi trường. Nồng độ chất chữa cháy Sol-khí phải phù hợp với tiêu chuẩn thiết kế về hệ thống chữa cháy, đặc biệt là với các thử nghiệm dập cháy loại A và B.
Yêu cầu về kích hoạt và điều khiển: Bình chữa cháy phải được trang bị bộ phận khóa an toàn để tránh phun chất chữa cháy không mong muốn. Đối với hệ thống có yêu cầu hoạt động bằng điện, phải có nguồn dự phòng độc lập để đảm bảo an toàn trong mọi tình huống.
Chất chữa cháy: Sol-khí cô đặc là chất chữa cháy chính, phải tuân thủ các yêu cầu về bảo vệ môi trường, đảm bảo không gây ảnh hưởng xấu đến sức khỏe con người.
Các phương pháp thử nghiệm
Tiêu chuẩn quy định nhiều phương pháp thử nghiệm để xác định hiệu suất và độ an toàn của bình chữa cháy, bao gồm:
- Thử nghiệm phun xả: Đánh giá thời gian và lượng chất chữa cháy phun ra trong điều kiện nhiệt độ nhất định.
- Thử nghiệm bền cơ học: Bình phải có khả năng chịu đựng va chạm, rung lắc mà không bị hư hỏng hay giảm hiệu suất.
- Thử nghiệm tiếp xúc lửa: Đánh giá khả năng hoạt động của bình khi tiếp xúc với ngọn lửa.
Mỗi loại thử nghiệm sẽ có những yêu cầu về độ chính xác và điều kiện thử nghiệm cụ thể, đảm bảo rằng tất cả các bình chữa cháy đều có khả năng hoạt động tốt và an toàn khi được sử dụng.
Ghi nhãn và tài liệu hướng dẫn
Mọi bình chữa cháy theo tiêu chuẩn TCVN 14498:2025 đều phải có ghi nhãn rõ ràng về thông số kỹ thuật, công dụng và hướng dẫn sử dụng. Tài liệu hướng dẫn cũng cần đi kèm để đảm bảo người dùng có thông tin cần thiết cho việc vận hành bình chữa cháy một cách an toàn và hiệu quả.
Kết luận
Tiêu chuẩn TCVN 14498:2025 là cơ sở pháp lý quan trọng giúp đảm bảo an toàn phòng cháy chữa cháy tại các công trình, góp phần nâng cao chất lượng và hiệu quả của các hệ thống chữa cháy sử dụng sol-khí. Đây là một bước tiến mới trong việc chuẩn hóa các thiết bị chữa cháy tại Việt Nam, nhằm bảo vệ tài sản và tính mạng của cộng đồng.
Tải tiêu chuẩn Việt Nam TCVN 14498:2025
TIÊU CHUẨN QUỐC GIA
TCVN 14498:2025
PHÒNG CHÁY CHỮA CHÁY - BÌNH CHỮA CHÁY CỐ ĐỊNH BẰNG SOL- KHÍ DẠNG CÔ ĐẶC
Fire protection - Fixed Condensed Aerosol fire extinguisher
Mục Lục
Lời nói đầu
1 Phạm vi áp dụng
2 Tài liệu viện dẫn
3 Thuật ngữ và định nghĩa
4 Yêu cầu về cấu tạo
4.1 Yêu cầu chung
4.2 Điều khiển và chỉ báo
4.3 Cơ chế đánh thủng
4.4 Chất chữa cháy Sol-khí cô đặc
5 Thử nghiệm
5.1 Yêu cầu chung
5.2 Thử nghiệm phun xả
5.3 Thử nghiệm đo nhiệt độ
5.4 Thử nghiệm thiết bị lắp
5.5 Thử nghiệm rơi mạnh
5.6 Thử nghiệm rung
5.7 Thử nghiệm tiếp xúc đám cháy
5.8 Thử nghiệm độ ẩm cao
5.9 Thử nghiệm ăn mòn phun muối
5.10 Thử nghiệm nhiệt độ gia tăng trong 30 ngày
5.11 Thử nghiệm chu kỳ nhiệt độ
5.12 Thử nghiệm hiệu suất đánh lửa
5.13 Thử nghiệm kiểm tra phân phối cho hệ thống (các) bình chữa cháy bằng Sol-khí
5.14 Thử nghiệm kiểm tra phân phối cho bình chữa cháy bằng Sol-khí
5.15 Thử nghiệm dập đám cháy tự động bằng bình chữa cháy tự động kích hoạt
5.16 Thử nghiệm nứt do ăn mòn ứng suất cho các bộ phận bằng đồng thau
5.17 Thử nghiệm lão hóa - bình chữa cháy bằng Sol-khí
5.18 Thử nghiệm bộ phận khóa an toàn và chốt niêm phong
6 Yêu cầu về tính năng đối với các đám cháy (thử nghiệm dập tắt đám cháy loại A và đám cháy loại B)
6.1 Các thông số thử nghiệm chung
6.2 Thử dập đám cháy loại A
6.3 Thử dập đám cháy loại B
7 Ghi nhãn
8 Tài liệu hướng dẫn
Thư mục tài liệu tham khảo
Lời nói đầu
TCVN 14498:2025 do Cục cảnh sát phòng cháy, chữa cháy và cứu nạn, cứu hộ biên soạn, Bộ Công an đề nghị, Ủy ban Tiêu chuẩn Đo lường Chất lượng Quốc gia thẩm định, Bộ Khoa học và Công nghệ công bố.
TCVN 14498:2025 được xây dựng trên cơ sở tham khảo ANSI/CAN/UL/ULC 2775 : 2022A, Standard for Fixed Condensed Aerosol Extingushing System Units (Tiêu chuẩn đối với Hệ thống chữa cháy cố định bằng Sol-khí cô đặc) và ISO 15779 :2011, Condensed aerosol fire extinguishing systems- Requirements and test methods for components and system design, installation and maintenance - General requirements (Hệ thống chữa cháy bằng khí dung ngưng tụ - Yêu cầu và phương pháp thử đối với thiết kế, lắp đặt và bảo trì các bộ phận và hệ thống - Yêu cầu chung).
PHÒNG CHÁY CHỮA CHÁY - BÌNH CHỮA CHÁY CỐ ĐỊNH BẰNG SOL- KHÍ DẠNG CÔ ĐẶC
Fire protection - Fixed Condensed Aerosol fire extinguisher
1 Phạm vi áp dụng
1.1 Tiêu chuẩn này quy định yêu cầu kỹ thuật, phương pháp thử đối với bình chữa cháy cố định bằng Sol-khí dạng cô đặc (bình chữa cháy bằng Sol-khí) dùng cho hệ thống chữa cháy bằng Sol-khí theo thể tích, ứng dụng trong các nhà, công trình và một số ứng dụng đặc biệt khác (như tủ điện, tuabin điện...).
1.2 Các bình chữa cháy tự động tạo Sol-khí có phương thức kích hoạt thủ công và không nhằm mục đích:
a) Để sử dụng thay thế cho các hệ thống chữa cháy bằng Sol-khí;
b) Sử dụng nhiều thiết bị để bảo vệ các khu vực có nguy cơ cháy lớn hơn so với tính năng kỹ thuật của một thiết bị.
2 Tài liệu viện dẫn
Các tài liệu viện dẫn dưới đây là cần thiết khi áp dụng tiêu chuẩn này. Đối với các tài liệu có ghi năm công bố thì áp dụng phiên bản đã nêu. Đối với các tài liệu không ghi năm công bố thì áp dụng phiên bản mới nhất, bao gồm cả các sửa đổi (nếu có):
- TCVN 7417-1 : 2010 - Hệ thống ống dùng cho lắp đặt cáp - Phần 1: Yêu cầu chung;
- TCVN 7568 (ISO 7240) - Hệ thống báo cháy;
- TCVN 12640 (ISO 9227) – Thử nghiệm ăn mòn trong môi trường nhân tạo - Phương pháp thử phun mù muối;
- TCVN 13333:2021 - Hệ thống chữa cháy bằng Sol-khí - Yêu cầu về thiết kế, lắp đặt kiểm tra và bảo dưỡng;
- UL 33 :2022 - Heat Responsive Links for Fire - Protection Service (các liên kết phản ứng nhiệt trong dịch vụ phòng cháy chữa cháy);
- ULC - S505 : 2018 - Standard for Fusible Links for Fire Protection Service (Tiêu chuẩn về các liên kết cho cầu chì trong dịch vụ phòng cháy chữa cháy).
- [ANSl/CAN/UL/ULC 2775 : 2022A, Standard for Fixed Condensed Aerosol Extingushing System Units (Tiêu chuẩn đối với Hệ thống chữa cháy cố định bằng Sol-khí cô đặc);
- ISO 15779 : 2011 - Condensed aerosol fire extinguishing systems- Requirements and test methods for components and system design, installation and maintenance - General requirements (Hệ thống chữa cháy bằng khí dung ngưng tụ - Yêu cầu và phương pháp thử đối với thiết kế, lắp đặt và bảo trì các bộ phận và hệ thống - Yêu cầu chung);
3 Thuật ngữ và định nghĩa
Trong tiêu chuẩn này sử dụng các thuật ngữ và định nghĩa sau:
3.1
Cơ chế kích hoạt (Actuating Mechanism)
Thiết bị vận hành tự động hoặc thủ công để phun ra chất chữa cháy
3.2
Sol-khí dạng cô đặc (Aerosol, condensed)
Là chất chữa cháy bao gồm các hạt rắn có kích thước cực nhỏ, đường kính thường nhỏ hơn 10 μm và chất khí, được tạo ra do quá trình nhiệt phân hỗn hợp cụ thể để tạo Sol-khí.
3.3
Lượng chất chữa cháy (Agent quantity)
Lượng Sol-khí cần thiết để đạt được nồng độ thiết kế cho một thể tích bảo vệ trong thời gian phun xác định.
3.4
Chất làm mát (Coolant)
Chất hấp thụ nhiệt có trong thiết bị tạo Sol-khí cô đặc làm giảm nhiệt độ của chất chữa cháy Sol-khí trước khi thoát ra ngoài qua (các) lỗ phun.
3.5
Lỗ phun (Discharge Port)
Đầu phun hoặc lỗ hở trên bình chữa cháy bằng Sol-khí được phun ra khi hệ thống được kích hoạt.
3.6
Nồng độ thiết kế (Design application density), g/m3
Nồng độ dập tắt bao gồm cả hệ số an toàn được dùng để thiết kế hệ thống.
3.7
Thời gian phun (Discharge time)
Khoảng thời gian từ khi kích hoạt bình chữa cháy bằng Sol-khí đến khi chất chữa cháy Sol-khí kết thúc thoát ra từ (các) lỗ phun.
3.8
Nồng độ dập tắt (Extinguishing application density), g/m3
Khối lượng chất tạo Sol-khí nhỏ nhất trên mỗi mét khối của khu vực bảo vệ để dập tắt đám cháy của một chất cháy cụ thể, được xác định trong điều kiện thực nghiệm, không tính đến hệ số an toàn.
3.9
Hệ thống chữa cháy (Extinguishing system unit)
Một hoặc nhiều bình tạo Sol-khí cô đặc có giá lắp đặt, cơ chế kích hoạt và các thiết bị phụ kiện khác (nếu có) được thiết kế để kích hoạt tự động hoặc thủ công.
3.10
Vỏ bình phun Sol-khí (Generator Casing)
Bề mặt ngoài của bình phun Sol-khí, không bao gồm bề mặt có chứa các lỗ phun.
3.11
Bình phun Sol-khí (Generator)
Thiết bị để tạo ra môi trường Sol-khí chữa cháy bằng quá trình nhiệt phân.
Bình chữa cháy phải được thiết kế để không nạp lại được tại hiện trường hoặc tại nhà máy sản xuất mà phải loại bỏ sau khi sử dụng.
3.12
Thời gian chờ (Hold time)
Đối với các thử nghiệm cháy, khoảng thời gian mà chất chữa cháy được yêu cầu để duy trì sự phân bố đồng đều trong toàn bộ thể tích được bảo vệ với một lượng đủ để dập tắt đám cháy.
3.13
Thiết bị đánh lửa (Ignition device)
Thiết bị kích hoạt phản ứng tự cháy của hợp chất rắn tạo Sol-khí.
3.14
Phương thức kích hoạt tự động (Method of automatic actuation)
Phương thức kích hoạt để phun chất chữa cháy mà không cần sự can thiệp của con người, ví dụ như cơ chế kích hoạt bằng nhiệt.
3.15
Phương thức kích hoạt thủ công (Method of manual actuation)
Phương thức kích hoạt để phun chất chữa cháy có sự can thiệp của con người bằng phương pháp cơ học, khí nén hoặc điện.
3.16
Giá lắp đặt (Mounting bracket)
Thiết bị được thiết kế dùng để gắn cụm điều khiển khí nén hoặc bình chữa cháy bằng Sol-khí của hệ thống chữa cháy vào cấu trúc vỏ che chắn và duy trì hướng lỗ phun của bình chữa cháy bằng Sol-khí trong quá trình phun.
3.17
Dải nhiệt độ làm việc (Operating temperature range)
Dải nhiệt độ bao gồm nhiệt độ tối thiểu và tối đa mà hệ thống bình chữa cháy cố định bằng Sol-khí hoặc cụm điều khiển khí nén dự kiến để bảo quản, sử dụng và vận hành.
3.18
Thể tích được bảo vệ (Protected volume)
Thể tích được bao quanh bởi các kết cấu xây dựng của khu vực bảo vệ, trừ thể tích của các kết cấu xây dựng không thấm chất chữa cháy cố định bên trong khu vực bảo vệ.
3.19
Phun xả (Release)
Sự phun hoặc phát tán vật lý của chất chữa cháy Sol-khí do hoạt động của bình chữa cháy bằng Sol-khí.
3.20
Khoảng cách nhiệt (Thermal clearance)
Khoảng cách tối thiểu giữa vỏ bình chữa cháy cố định bằng Sol-khí và các lỗ phun của bình chữa cháy cố định bằng Sol-khí và với con người, bộ phận hoặc cấu trúc nhạy cảm với nhiệt độ phát ra trong và sau khi phun của bình chữa cháy cố định bằng Sol-khí.
3.21
Hệ thống chữa cháy theo thể tích (Total flooding extinguishing system)
Hệ thống phun chất chữa cháy vào khu vực bảo vệ để đạt được sự phân bổ đồng đều của chất chữa cháy bằng hoặc cao hơn nồng độ thiết kế.
4 Yêu cầu về cấu tạo
4.1 Yêu cầu chung
4.1.1 Sau khi bắt đầu phun chất chữa cháy, bình chữa cháy cố định bằng Sol-khí dạng cô đặc phải duy trì tốc độ phun chất chữa cháy tối đa mà không cần thao tác bằng tay.
4.1.2 Tất cả các bộ phận tiếp xúc của bình chữa cháy bằng Sol-khí, bao gồm các lớp hoàn thiện trên bề mặt (được phủ hoặc sơn), bảng tên đã được cố định, các phụ kiện như giá lắp đặt, bộ phận kích hoạt hoặc các bộ phận tương tự khác, phải chịu được các ảnh hưởng ăn mòn trong không khí thường gặp và chống ăn mòn điện, như được xác định theo thử ăn mòn bằng phun muối tại 5.9.
4.1.3 Khi một bộ phận của bình chữa cháy bằng Sol-khí có nguy cơ khiến bình đó không hoạt động được nếu bị hư hỏng, nứt vỡ hoặc sự cố khác, bộ phận đó phải đảm bảo không dễ bị nứt vỡ do ứng suất, như được xác định bằng thử nứt do ăn mòn ứng suất cho các bộ phận bằng đồng thau, mục 5.16.
4.1.4 Bình chữa cháy cố định bằng Sol-khí bao gồm:°
a) Cơ cấu kích hoạt;
b) Thiết bị tạo Sol-khí cô đặc; và
c) Giá lắp đặt.
Hệ thống (các) bình chữa cháy bằng Sol-khí cũng có thể bao gồm bộ phận kích hoạt thủ công từ xa và các thiết bị phụ kiện khác.
4.1.5 Nồng độ thiết kế cho hệ thống chữa cháy bằng bình chữa cháy bằng Sol-khí phải phù hợp với tiêu chuẩn về hệ thống chữa cháy bằng Sol-khí, TCVN 13333 : 2021.
Hệ thống chữa cháy phải tuân theo các thử dập đám cháy loại A và đám cháy loại B được mô tả trong mục 6 và thử nghiệm kiểm tra phân phối cho hệ thống chữa cháy được mô tả trong 5.13. Bình chữa cháy bằng Sol-khí phải tuân thủ các thử nghiệm kiểm tra phân phối cho bình chữa cháy bằng Sol-khí được mô tả trong 5.14 và thử dập đám cháy vận hành tự động bằng bình chữa cháy bằng Sol-khí được mô tả trong 5.15. Khi các bình chữa cháy bằng Sol-khí thiết kế để bảo vệ dập đám cháy loại A như được mô tả trong TCVN 13333 : 2021, hệ thống (các) bình chữa cháy có cấu tạo giống hệt nhau, chỉ trừ phương thức kích hoạt sẽ được coi là đại diện cho cùng thiết kế và kích thước của các bình chữa cháy bằng Sol- khí với điều kiện các hệ thống (các) bình chữa cháy chữa cháy tuân thủ các thử nghiệm dập đám cháy loại A được mô tả trong Điều 6.
4.2 Điều khiển và chỉ báo
4.2.1 Hệ thống (các) bình chữa cháy bằng Sol-khí bao phải được lắp đặt sử dụng:
a) Thiết bị kích hoạt tự động và thủ công; hoặc
b) Chỉ thiết bị kích hoạt thủ công.
Một bình chữa cháy bằng Sol-khí chỉ được kết hợp với một thiết bị kích hoạt tự động. Cơ chế kích hoạt nhiệt của bình chữa cháy bằng Sol-khí phải tuân theo các yêu cầu hiện hành của tiêu chuẩn về liên kết cho cầu chì, UL 33 hoặc tiêu chuẩn về liên kết dễ nóng chảy đối ULC-S505, tùy từng trường hợp áp dụng.
4.2.2 Thiết bị kích hoạt thủ công phải được đi kèm với bộ phận khóa an toàn để giảm nguy cơ phun chất chữa cháy không có chủ ý. Niêm phong (ví dụ như chốt niêm phong hoặc tương đương) có thể phá vỡ bằng lực không quá 65 N, được lắp đặt không gây ra tải trọng từ bên ngoài trên bộ phận khóa an toàn, được đi kèm để giữ bộ phận khóa an toàn và chỉ ra có sự can thiệp hoặc sử dụng bộ kích hoạt thủ công hay chưa. Chốt niêm phong phải được chế tạo sao cho nó bắt buộc phải bị phá vỡ thì mới vận hành được bộ kích hoạt thủ công.
4.2.3 Bộ phận khóa an toàn và chốt niêm phong phải được làm bằng vật liệu chống ăn mòn và phải tuân thủ thử ăn mòn phun muối theo 5.9.
4.2.4 Chốt niêm phong sẽ bị phá vỡ khi chịu một lực 65 N trở xuống khi thực hiện thử bộ phận khóa an toàn và chốt niêm phong theo 5.18.
Ngoại lệ: Lực 65 N không áp dụng khi chốt niêm phong bị phá vỡ do tác động cần thiết để khởi động cơ chế phun của bình chữa cháy hoặc khi tải trọng bên trong liên tục được tác động lên cơ cấu xả tải, khi lực tác dụng có chủ đích và cần thiết để thực hiện việc phun hoặc giải phóng tải bên trong. Trong trường hợp này, lực không được vượt quá 133 N. Tham khảo 5.18.
4.2.5 Khi thiết bị kích hoạt thủ công được lắp và sử dụng nguồn lực cơ học hoặc khí nén:
a) Lực kích hoạt không được vượt quá 178 N; và
b) Chuyển động để vận hành an toàn không được vượt quá 356 mm.
4.2.6 Khi thiết bị kích hoạt thủ công được lắp và sử dụng nguồn điện:
a) Nguồn điện đó phải độc lập với nguồn điện cho các thiết bị kích hoạt tự động: hoặc
b) Khi nguồn điện được sử dụng cho cả kích hoạt thủ công và tự động, nó phải có nguồn dự phòng độc lập, ví dụ như pin
4.2.7 Kết nối phụ kiện điện tích hợp, như đầu nối cáp dương, đầu nối cáp âm hoặc tương tự, được sử dụng như một phần của hệ thống chữa cháy phải tuân thủ tiêu chuẩn về máng đi dây, ống và phụ kiện cáp, TCVN 7417-1.
4.2.8 Thiết bị điều khiển, ví dụ như bảng điều khiển, trạm điều khiển nút bấm hoặc thiết bị tương tự, được sử dụng như một phần của hệ thống (các) bình chữa cháy bằng Sol-khí phải tuân thủ tiêu chuẩn về thiết bị điều khiển và phụ kiện cho Hệ thống báo cháy - hoặc tiêu chuẩn về thiết bị điều khiển cho hệ thống báo cháy.
4.2.9 Bình chữa cháy bằng Sol-khí với bộ kích hoạt điện tích hợp được sử dụng như một phần của hệ thống (các) bình chữa cháy bằng Sol-khí phải tuân theo các yêu cầu hiện hành đối với cấu tạo vỏ và hệ thống dây điện và tiến hành thử nghiệm rơi mạnh, điện áp cách điện và va đập như được quy định trong tiêu chuẩn TCVN 7568.
4.2.10 Bộ kích hoạt điện được sử dụng như một phần của hệ thống các bình chữa cháy bằng Sol-khí phải tuân theo các yêu cầu hiện hành về việc tiến hành thử nghiệm vận hành điện áp biến thiên như được quy định trong trong tiêu chuẩn TCVN 7568; ngoại trừ trường hợp điều kiện điện áp biến thiên 85 % được chỉ định, sản phẩm phải chịu được điều kiện điện áp biến thiên 65 %.
4.3 Cơ chế đánh thủng
Các bộ phận của cơ cấu đánh thủng, ngoại trừ lò xo và chốt không tiếp xúc, phải được làm bằng kim loại màu hoặc thép không gỉ chống ăn mòn.
4.4 Chất chữa cháy Sol-khí cô đặc
Chất Sol-khí, được sử dụng để chữa cháy, phải tuân thủ các yêu cầu hiện hành của pháp luật về bảo vệ môi trường.
5 Thử nghiệm
5.1 Yêu cầu chung
Phải tiến hành các thử nghiệm trên các mẫu đại diện như quy định tại 5.2 - 5.18. Các thử nghiệm đối với bình chữa cháy bằng Sol-khí, phản ứng tự cháy để tạo ra Sol-khí chữa cháy phải được tích hợp trong bình chứa và việc phun sẽ không dẫn đến biến dạng dư cho mẫu thử nghiệm.
5.2 Thử nghiệm phun xả
5.2.1 Yêu cầu
Các mẫu bình chữa cháy bằng Sol-khí đại diện cho từng kích thước và thiết kế của bình chữa cháy bằng Sol-khí phải hoạt động như dự kiến, có thời gian phun tối đa là 60 s khi được ổn định ở (21 ± 4) °C và có tốc độ phun trong khoảng ± 10 % tốc độ phun trung bình khi được ổn định ở (21 ± 4) °C. Khi được ổn định đến nhiệt độ làm việc nhỏ nhất và nhiệt độ làm việc lớn nhất, các mẫu thử đại diện cho từng kích thước và thiết kế phải:
a) Hoạt động như dự kiến;
b) Có thời gian phun trong vòng ± 20 % hoặc ± 5 s (tùy theo giá trị nào lớn hơn) của thời gian phun trung bình được xác định ở (21 ± 4) °C; và
c) Có lượng phun chất chữa cháy ít nhất là 90 % lượng phun chất chữa cháy trung bình được xác định ở (21 ± 4) °C.
Ba mẫu của mỗi thiết kế và kích thước phải được thử nghiệm cho mỗi nhiệt độ được chỉ định.
5.2.2 Phương pháp thử
Mỗi mẫu thử phải được cân và ổn định ít nhất 16 h ở nhiệt độ làm việc tối thiểu -3/+ 0 °C, (21 ± 4) °C, hoặc nhiệt độ làm việc tối đa ± 3 °C và phải được thử phun theo quy định tại 5.2.3 trong vòng 5 min kể từ khi đưa ra khỏi nhiệt độ ổn định.
5.2.3 Mỗi mẫu thử phải được lắp đặt trong giá lắp đặt trong môi trường được duy trì ở (21 ± 4) °C được kích hoạt thủ công và ghi lại thời gian phun. Thời gian phun phải được xác định bằng cách theo dõi sự thay đổi nhiệt độ của dòng chất chữa cháy phun bằng thiết bị thu thập dữ liệu, ghi video hồng ngoại, sự thay đổi lực đẩy bằng thiết bị thu thập dữ liệu hoặc phương pháp tương đương khác. Sau khi kết thúc quá trình phun, mỗi mẫu thử phải được để làm mát, cân và tính toán lượng chất chữa cháy được phun ra.
5.3 Thử nghiệm đo nhiệt độ
5.3.1 Yêu cầu
Các mẫu bình chữa cháy bằng Sol-khí đại diện cho từng kích thước và thiết kế của bình chữa cháy phải tạo ra nhiệt độ tối đa ở khoảng cách an toàn tối thiểu được chỉ định trong hướng dẫn thiết kế, lắp đặt, vận hành và bảo trì không vượt quá các nhiệt độ sau:
a) Nhiệt độ Sol-khí phun không được vượt quá 75 °C tại khoảng cách an toàn tối thiểu giữa các lỗ phun của bình chữa cháy bằng Sol-khí và vị trí có người.
b) Nhiệt độ Sol-khí phun không được vượt quá 200 °C tại khoảng cách an toàn tối thiểu giữa các lỗ phun của bình chữa cháy bằng Sol-khí và vật liệu dễ cháy.
c) Nhiệt độ không được vượt quá 75 °C trong và sau khi phun ở khoảng cách an toàn tối thiểu giữa vỏ bình và vị trí có người.
d) Nhiệt độ không được vượt quá 200 °C trong và sau khi phun ở khoảng cách an toàn tối thiểu giữa vỏ bình và vật liệu dễ cháy.
5.3.2 Phương pháp thử
Mỗi mẫu thử phải được cân, ổn định đến (21 ± 4) °C, được lắp đặt riêng trong giá lắp đặt đặt trong môi trường duy trì ở (21 ± 4) °C, được kích hoạt thủ công và ghi lại thời gian phun và nhiệt độ. Thời gian phun phải được xác định bằng cách theo dõi sự thay đổi nhiệt độ của dòng Sol-khí phun bằng thiết bị thu thập dữ liệu, ghi video hồng ngoại, sự thay đổi lực đẩy bằng thiết bị thu thập dữ liệu hoặc phương pháp tương đương khác. Nhiệt độ phải được đo ở khoảng cách an toàn tối thiểu bằng cặp nhiệt điện và thiết bị thu thập dữ liệu. Nhiệt độ vỏ, nhiệt độ của Sol-khí phun gần các lỗ phun và nhiệt độ ở khoảng cách trung gian giữa các vị trí này và khoảng cách an toàn tối thiểu cũng phải được đo bằng cặp nhiệt điện và thiết bị thu thập dữ liệu. Không được có vật cản giữa mẫu thử và vị trí cặp nhiệt điện. Sau khi kết thúc quá trình phun, mỗi mẫu thử phải được để làm mát, cân và tính toán lượng chất chữa cháy được phun ra.
5.4 Thử nghiệm thiết bị lắp
5.4.1 Đối với các cụm điều khiển khí nén không được thiết kế để trực tiếp trên sàn, các mẫu thử đại diện cho từng kích thước và thiết kế để sử dụng cho cụm điều khiển khí nén phải giữ vững được trong 5 min, không bị hư hỏng hoặc biến dạng vĩnh cửu, tải trọng tĩnh gấp 5 lần trọng lượng đã nạp đầy, nhưng không nhỏ hơn 45 kg.
Đối với bình chữa cháy bằng Sol-khí có trọng lượng ít nhất là 910 g không được thiết kế để trực tiếp trên sàn với dòng phun hướng lên trên, các mẫu thiết bị lắp đại diện cho từng kích thước và thiết kế để sử dụng cho hệ thống các bình chữa cháy bằng Sol-khí phải giữ vững được trong 5 min, không bị hư hỏng hoặc biến dạng vĩnh viễn, tải trọng tĩnh gấp 5 lần trọng lượng đã nạp đầy hoặc 5 lần lực tác động được xác định trong quá trình phun (tùy giá trị nào lớn hơn), nhưng không nhỏ hơn 45 kg.
5.4.2 Đối với bình chữa cháy bằng Sol-khí có trọng lượng dưới 910 g không được thiết kế để trực tiếp trên sàn với dòng phun hướng lên trên, các mẫu thử đại diện cho từng kích thước và thiết kế phải giữ vững được trong 5 min, không bị hư hỏng hoặc biến dạng vĩnh viễn, tải trọng tĩnh gấp 5 lần trọng lượng đã nạp đầy hoặc 5 lần lực tác động được xác định trong quá trình phun (tùy giá trị nào lớn hơn), nhưng không nhỏ hơn 22,5 kg.
5.5 Thử nghiệm rơi mạnh
5.5.1 Yêu cầu
Sau khi được cân và thả xuống bề mặt bê tông, các mẫu thử đại diện cho từng kích thước và thiết kế phải:
a) Hoạt động như dự kiến;
b) Có thời gian phun trong khoảng ± 20 % hoặc trong vòng ± 5 s (tùy theo giá trị nào lớn hơn) của thời gian phun trung bình được xác định ở (21 ± 4) °C trong thử phun, theo 5.2;
c) Có lượng chất chữa cháy phun ít nhất là 90 % lượng phun trung bình được xác định ở (21 ± 4) °C trong thử phun, theo 5.2.
5.5.2 Phương pháp thử
Mỗi mẫu thử phải được cân và thả từ độ cao (915 ±15) mm đo từ bề mặt sàn đến phần dưới cùng của bình. Mỗi mẫu thử phải được định vị để tác động vào điểm yếu nhất với hướng của bình phụ thuộc vào thiết kế của nó. Đối với thử nghiệm đầu tiên, mỗi mẫu thử phải được giữ ở vị trí thẳng đứng và thả xuống. Đối với thử nghiệm thứ hai, mỗi mẫu thử phải được giữ ở vị trí nằm ngang và thả xuống. Sau khi thả, mỗi mẫu thử phải được ổn định đến (21 ± 4) °C và phun như mô tả tại 5.2.3.
5.6 Thử nghiệm rung
5.6.1 Sau khi rung, các mẫu thử đại diện cho từng kích thước và thiết kế phải:
a) Hoạt động như dự kiến;
b) Không gây thương tích cho người;
c) Không gặp phải tình trạng hư hỏng vật lý hoặc bất thường của các bộ phận đến mức cần phải thay thế;
d) Có thời gian phun trong khoảng ± 20 % hoặc trong vòng ± 5 s (tùy theo giá trị nào lớn hơn) của thời gian phun trung bình được xác định ở (21 ± 4)°C trong thử phun, mục theo 5.2;
e) Có lượng chất chữa cháy phun ít nhất là 90 % lượng phun trung bình được xác định ở (21 ± 4) °C trong thử phun, theo 5.2.
Bình chữa cháy cố định bằng Sol-khí phải được đánh giá với cơ cấu kích hoạt dự kiến. Sau khi rung, mỗi mẫu thử phải được ổn định đến (21 ± 4) °C và phun như mô tả tại 5.2.3.
5.6.2 Tình trạng hư hỏng vật lý của các bộ phận yêu cầu sửa chữa hoặc thay thế bình chữa cháy hoặc các bộ phận kèm theo trước khi chúng có thể được đưa trở lại vận hành không tuân theo yêu cầu này.
5.6.3 Mỗi mẫu thử phải được lắp trên giá lắp đặt hoặc thiết bị cố định và được lắp chắc chắn vào thiết bị thử rung theo hướng mô phỏng cách lắp đặt dự kiến.
5.6.4 Sau khi đã lắp chắc chắn, mỗi mẫu thử phải được thử rung với tần số và độ bền biến thiên trong mỗi ba trục định hướng phẳng: ngang, bên và dọc. Cả tần số và độ bền biến thiên đều phải được thực hiện đầy đủ trong một mặt phẳng rung trước khi mẫu thử được thử nghiệm trên mặt phẳng khác.
Đối với tần số biến thiên, mỗi mẫu thử phải được rung với độ dịch chuyển của bàn nêu trong Bảng 1 với các tần số từ 10 Hz đến 60 Hz trong các khoảng cụ thể là 2 Hz và duy trì ở mỗi tần số trong 5 min.
Đối với độ bền, mỗi mẫu thử phải được rung trong 2 h ở tần số và độ dịch chuyển bàn tương ứng tạo ra cộng hưởng lớn nhất như được xác định trong quá trình thay đổi tần số hoặc ở tần số 60 Hz và độ dịch chuyển của bàn là (0,51 ± 0,05) mm khi không quan sát thấy cộng hưởng trong quá trình thay đổi tần số.
Bảng 1 - Cài đặt thiết bị kiểm tra độ rung
| Biến thiên số, Hz | Độ dịch chuyển của bàn, mm | Biên độ, mm |
| 10 - 19 | 1,52 ± 0,15 | 0,76 ± 0,08 |
| 20 - 39 | 1,0 ± 0,1 | 0,51 ± 0,05 |
| 40 - 60 | 0,51 ± 0,05 | 0,25 ± 0,03 |
5.6.5 Đối với các thử nghiệm này, biên độ là độ dịch chuyển lớn nhất của chuyển động hình sin từ vị trí nghỉ hoặc một nửa tổng độ dịch chuyển của bàn. Cộng hưởng là độ phóng đại tối đa của rung động được áp dụng.
5.7 Thử nghiệm tiếp xúc đám cháy
5.7.1 Yêu cầu
Trong hoặc sau khi tiếp xúc trực tiếp với đám cháy, các bình chữa cháy bằng Sol-khí đại diện cho từng kích thước và thiết kế phải:
a) Hoạt động như dự kiến;
b) Có thời gian phun trong khoảng ± 20 % hoặc trong vòng ± 5 s (tùy theo giá trị nào lớn hơn) của thời gian phun trung bình được xác định ở (21 ± 4) °C trong thử phun, theo 5.2; và
c) Có lượng phun chất chữa cháy ít nhất là 90 % lượng phun trung bình được xác định ở (21 ± 4) °C trong thử phun, theo 5.2.
Các bình chữa cháy bằng Sol-khí phải được trang bị cơ cấu kích hoạt nhiệt có khả năng chịu được nhiệt độ cao hoặc không được trang bị cơ cấu kích hoạt nhiệt.
5.7.2 Phương pháp thử
Mỗi mẫu thử phải được cân và lắp vào giá lắp đặt sao cho phần dưới cùng của mẫu thử được đặt vào trung tâm là (915 ± 15) mm so với đáy khay mồi cháy quy định tại 6.3.1.2. Đối với mỗi thử nghiệm, phải đặt vào khay mồi cháy ít nhất 2,5 cm heptan, mồi lửa và cháy tự do trong ít nhất 60 s. Trong hoặc sau khi tiếp xúc với đám cháy, mỗi mẫu thử phải được phun như mô tả tại 5.2.3, ngoại trừ môi trường không cần duy trì ở (21 ± 4) °C.
5.8 Thử nghiệm độ ẩm cao
5.8.1 Sau khi thiết lập điều kiện, các mẫu bình chữa cháy bằng Sol-khí đại diện cho từng kích thước và thiết kế phải:
a) Hoạt động như dự kiến;
b) Có thời gian phun trong khoảng ± 20 % hoặc trong vòng ± 5 s (tùy theo giá trị nào lớn hơn) của thời gian phun trung bình được xác định ở (21 ± 4) °C trong thử phun, theo 5.2; và
c) Có lượng phun chất chữa cháy ít nhất là 90 % lượng phun trung bình được xác định ở (21 ± 4) °C trong thử phun, theo 5.2.
Các bình chữa cháy bằng Sol-khí phải được trang bị cơ cấu kích hoạt nhiệt có khả năng chịu được nhiệt độ cao.
5.8.2 Mỗi mẫu thử phải được cân và ổn định trong 30 ngày ở (54 ± 2) °C và độ ẩm tương đối (95 ± 2) %. Sau đó, mỗi mẫu thử phải được ổn định ở (21 ± 4) °C và phun như mô tả trong theo 5.2.3.
5.9 Thử nghiệm ăn mòn phun muối
5.9.1 Các bộ phận đại diện cho lớp hoàn thiện trên các bộ phận được phủ hoặc sơn: bảng tên được gắn tại chỗ; các bộ phận đi kèm như giá lắp đặt cần thiết cho việc lắp đặt; và bất kỳ bộ phận vận hành nào khác có chi tiết chuyển động mà có vật liệu tiếp xúc bên ngoài không có khả năng chống ăn mòn tương đương với vật liệu polyme, đồng thau hoặc thép không gỉ phải được thử nghiệm. Bất kỳ bộ phận kim loại nào được thiết kế để lắp đặt tại địa điểm phải được kết nối với một phụ kiện hoặc khớp nối điển hình để mô phỏng lắp đặt tại địa điểm. Nhằm phục vụ mục đích của những yêu cầu này, thuật ngữ "ăn mòn ban đầu” được định nghĩa là bằng chứng đầu tiên về sự phá hủy tính toàn vẹn của vật liệu.
5.9.2 Sau khi tiếp xúc, các mẫu bình chữa cháy bằng Sol-khí đại diện cho từng kích thước và thiết kế phải:
a) Hoạt động như dự kiến;
b) Có thời gian phun trong khoảng ± 20 % hoặc trong vòng ± 5 s (tùy theo giá trị nào lớn hơn) của thời gian phun trung bình được xác định ở (21 ± 4) °C trong thử phun, theo 5.2; và
c) Có lượng phun chất chữa cháy ít nhất là 90 % lượng phun trung bình được xác định ở (21 ± 4) °C trong thử phun, theo 5.2.
d) Có các lớp phủ chống ăn mòn (ví dụ như sơn) còn nguyên vẹn và bám chặt vào bề mặt không thể loại bỏ (khi loại bỏ để lộ vật liệu bị ăn mòn) bằng hành động như rửa hoặc chà xát bằng móng tay;
e) Không có bằng chứng về sự ăn mòn ban đầu của các bề mặt kim loại không có lớp phủ hoặc sơn bảo vệ;
f) Không có bằng chứng về sự ăn mòn điện do các kim loại khác nhau tiếp xúc hoặc ở gần nhau; và
g) Không có dấu hiệu nứt hoặc vênh ở các cạnh của bảng tên nhạy áp, cũng như không làm suy giảm đáng kể tính dễ đọc của bảng tên nhạy áp, ví dụ như gỉ đen, mờ sương hoặc phồng rộp.
Bình chữa cháy bằng Sol-khí phải được đánh giá với cơ cấu kích hoạt nhiệt dự kiến.
5.9.3 Sau khi tiếp xúc, các cụm điều khiển khí nén thử nghiệm, bao gồm cả các phụ kiện giữ áp suất, phải:
a) Hoạt động như dự kiến;
b) Không có hơi ẩm bên trong đồng hồ đo nếu có đồng hồ đo;
c) Có các lớp phủ chống ăn mòn (ví dụ như sơn) còn nguyên vẹn và bám chặt vào bề mặt không thể loại bỏ (khi loại bỏ để lộ vật liệu bị ăn mòn) bằng hành động như rửa hoặc chà xát bằng móng tay;
d) Không có bằng chứng về sự ăn mòn ban đầu của các bề mặt kim loại không có lớp phủ hoặc sơn bảo vệ;
e) Không có bằng chứng về sự ăn mòn điện do các kim loại khác nhau tiếp xúc hoặc ở gần nhau; và
f) Không có dấu hiệu nứt hoặc vênh ở các cạnh của bảng tên nhạy áp, cũng như không làm suy giảm đáng kể tính dễ đọc của bảng tên nhạy áp, ví dụ như gỉ đen, mờ sương hoặc phồng rộp.
Khi một bộ phận đang được thử nghiệm có áp suất bình thường, không khí, nitơ hoặc chất tương đương được phép sử dụng.
5.9.4 Sau khi tiếp xúc, các bộ phận vận hành khác có chi tiết chuyển động mà có vật liệu tiếp xúc bên ngoài không có khả năng chống ăn mòn tương đương với vật liệu polyme, đồng thau hoặc thép không gỉ của các hệ thống chữa cháy phải:
a) Hoạt động như dự kiến;
b) Có các lớp phủ chống ăn mòn (ví dụ như sơn) còn nguyên vẹn và bám chặt vào bề mặt không thể loại bỏ (khi loại bỏ để lộ vật liệu bị ăn mòn) bằng hành động như rửa hoặc chà xát bằng móng tay;
c) Không có bằng chứng về sự ăn mòn ban đầu của các bề mặt kim loại không có lớp phủ hoặc sơn bảo vệ; và
d) Không có bằng chứng về sự ăn mòn điện do các kim loại khác nhau tiếp xúc hoặc ở gần nhau.
5.9.5 Mỗi mẫu thử phải được tiếp xúc với phun muối (dạng mù sương) như quy định trong thực hành tiêu chuẩn về vận hành thiết bị phun muối (dạng mù sương), TCVN 12640, ngoại trừ thời gian thử nghiệm phải là 10 ngày và dung dịch muối phải chứa 20 % muối thông thường (natri clorua) tính theo khối lượng. Dung dịch thu được sau khi phun trong thiết bị. thử nghiệm này phải có giá trị pH từ 6,5 đến 7,2 và khối lượng riêng từ 1,126 đến 1,157 ở nhiệt độ (35 ± 2) °C. Sau khi tiếp xúc, mỗi mẫu thử phải được ổn định nhiệt độ đến (21 ± 4) °C và phun như mô tả trong theo 5.2.3.
5.10 Thử nghiệm nhiệt độ gia tăng trong 30 ngày
5.10.1 Sau khi thiết lập điều kiện như quy định trong 5.13.2, các mẫu bình bình chữa cháy bằng Sol-khí đại diện cho từng kích thước và thiết kế phải:
a) Hoạt động như dự kiến;
b) Có thời gian phun trong khoảng ± 20 % hoặc trong vòng ± 5 s (tùy theo giá trị nào lớn hơn) của thời gian phun trung bình được xác định ở (21 ± 4) °C trong thử phun, theo 5.2; và
c) Có lượng phun chất chữa cháy ít nhất là 90 % lượng phun trung bình được xác định ở (21 ± 4) °C trong thử phun, theo 5.2.
5.10.2 Mỗi mẫu bình chữa cháy bằng Sol-khí phải được cân, lắp trong giá lắp đặt hoặc trong bộ cố định thử nghiệm được lắp chắc chắn trong môi trường thử và được ổn định trong 30 ngày ở nhiệt độ làm việc tối đa ± 3 °C. Sau đó, mỗi mẫu thử phải được thiết lập điều kiện bổ sung trong tối thiểu 24 h ở (21 ± 4) °C. Sau khi thiết lập điều kiện bổ sung, mỗi mẫu thử phải được phun như mô tả trong theo 5.2.3.
5.10.3 Sau khi thiết lập điều kiện như quy định trong 5.13.4, các cụm điều khiển khí nén đại diện, bao gồm cả các phụ kiện giữ áp suất không được có biểu hiện:
a) Bất kỳ sự rò rỉ nào có thể đo được sau khi ổn định; hoặc
b) Sự suy giảm hoặc tách lớp đệm đàn hồi sau khi phun.
5.10.4 Mỗi mẫu thử cụm điều khiển khí nén, bao gồm cả các bộ phận kích hoạt duy trì áp suất, phải được điều áp đến áp suất làm việc ở nhiệt độ 21 °C, được gắn trong giá lắp đặt hoặc trong bộ cố định thử nghiệm được lắp chắc chắn trong buồng môi trường thử và được thiết lập điều kiện trong 30 ngày ở nhiệt độ làm việc tối đa ± 3 °C. Sau khi thiết lập điều kiện, mỗi mẫu thử phải được thiết lập điều kiện bổ sung trong tối thiểu 24 h ở nhiệt độ (21 ± 4) °C. Sau khi thiết lập điều kiện bổ sung, mỗi mẫu cụm khiển khí nén phải được kiểm tra rò rỉ. Sau đó, áp suất phải được giải phóng, mẫu thử được tháo rời và kiểm tra các vòng đệm.
5.11 Thử nghiệm chu kỳ nhiệt độ
5.11.1 Sau khi thiết lập điều kiện như quy định trong 5.14.2, các mẫu bình chữa cháy bằng Sol-khí đại diện cho từng kích thước và thiết kế phải:
a) Hoạt động như dự kiến;
b) Có thời gian phun trong khoảng ± 20 % hoặc trong vòng ± 5 s (tùy theo giá trị nào lớn hơn) của thời gian phun trung bình được xác định ở (21 ± 4) °C trong thử phun, theo 5.2;
c) Có lượng phun chất chữa cháy ít nhất là 83 % lượng phun trung bình được xác định ở (21 ± 4) °C trong thử phun, theo 5.2.
5.11.2 Mỗi mẫu bình chữa cháy bằng Sol-khí phải được cân, lắp trong giá lắp đặt hoặc trong bộ cố định thử nghiệm được lắp chắc chắn trong môi trường thử và được ổn định trong 24 h ở nhiệt độ làm việc tối thiểu -3/+ 0 °C, 24 h ở nhiệt độ làm việc tối đa ± 3 °C, và một lần nữa đến nhiệt độ làm việc tối thiểu -3/+ 0 °C. Chu kỳ này sẽ được lặp lại với tổng cộng 10 chu kỳ. Sau khi thiết lập điều kiện bổ sung, mỗi mẫu thử phải được phun như mô tả tại 5.2.3.
5.12 Thử nghiệm hiệu suất đánh lửa
Việc đánh lửa của bộ kích hoạt điện phải được thử nghiệm theo thông số kỹ thuật của nhà sản xuất.
Tất cả các mẫu của toàn bộ thiết bị đánh lửa phải hoạt động như yêu cầu. Nếu thiết bị đánh lửa có sẵn dữ liệu thử nghiệm đảm bảo độ tin cậy, dữ liệu đó có thể được sử dụng để đáp ứng yêu cầu này.
Công suất đầu ra của thiết bị đánh lửa không được nhỏ hơn. công suất do nhà sản xuất chỉ định ở mức công suất đầu ra tối thiểu đủ để đốt cháy khối lượng thiết kế tối đa của hợp chất tạo Sol-khí ở nhiệt độ làm việc thấp nhất do nhà sản xuất chỉ định.
Các bộ đánh lửa đã được cơ quan có thẩm quyền chứng nhận về độ tin cậy đánh lửa sẽ không phải thử nghiệm lại.
5.12.1 Trừ khi có quy định khác, tối thiểu 200 mẫu thiết bị đánh lửa của mỗi loại thiết bị sẽ được dùng cho phép thử nghiệm hiệu suất đánh lửa.
5.13 Thử nghiệm kiểm tra phân phối cho hệ thống (các) bình chữa cháy bằng Sol-khí
5.13.1 Yêu cầu chung
5.13.1.1 Bình chữa cháy bằng Sol-khí của một hệ thống (các) bình chữa cháy bằng Sol-khí phải trộn, phân phối chất chữa cháy và phải phun ngập hoàn toàn phòng thử nghiệm khi được thử nghiệm theo các yêu cầu của 5.13.1.2 - 5.13.4.5 theo các giới hạn thiết kế tối đa và các hướng dẫn lắp đặt nghiêm ngặt nhất theo các phương pháp được chỉ định trong tài liệu thiết kế, lắp đặt, vận hành và bảo trì của nhà sản xuất.
5.13.1.2 Khi được thử nghiệm như mô tả trong 5.13.1.3 - 5.13.4.5, bình chữa cháy bằng Sol-khí của hệ thống chữa cháy phải dập tắt tất cả các đám cháy trong vòng 30 s sau khi kết thúc quá trình phun.
5.13.1.3 Các thử nghiệm được mô tả trong 5.13.1.4 - 5.13.4.5 đánh giá mục đích sử dụng và các giới hạn của hệ thống (các) bình chữa cháy bằng Sol-khí bao gồm:
a) Cấu hình lỗ phun;
b) Phạm vi bao phủ của bình chữa cháy bằng Sol-khí;
c) Vị trí đặt bình chữa cháy bằng Sol-khí trong khu vực được bảo vệ; và
d) Thời gian phun tối đa;
5.13.1.4 Nồng độ dập tắt cho mỗi thử nghiệm phải là 76,92 % của nồng độ thiết kế mục đích sử dụng cuối dự kiến cho loại nhiên liệu được chỉ định trong tài liệu hướng dẫn thiết kế, lắp đặt, vận hành và bảo trì. Nồng độ dập tắt được phép điều chỉnh để bù cho rò rỉ thực tế đo được từ phòng thử nghiệm. Khi nồng độ dập tắt đối với nhiên liệu loại A nhỏ hơn 80% nồng độ dập tắt đối với heptan, thì nhiên liệu có nồng độ dập tắt không lớn hơn 110 % nồng độ dập tắt đối với nhiên liệu loại A sẽ được sử dụng ngoài heptan.
5.13.1.5 Các thử nghiệm phải được tiến hành bằng cách sử dụng heptan làm nhiên liệu, trừ khi có ghi chú khác trong 5.13.1.4 và 5.13.4.5.
5.13.1.6 Các cốc thử phải được làm bằng thép có độ dày danh nghĩa tối đa là 5,5 mm, đường kính trong từ 7,6 cm đến 8,9 cm và chiều sâu ít nhất là 102 mm.
5.13.1.7 Mỗi cốc thử dùng để chứa nhiên liệu hoặc nhiên liệu và nước với mức nhiên liệu thấp hơn miệng của cốc thử ít nhất 5 cm. Khi cốc thử chứa nhiên liệu và nước, mức nhiên liệu phải đạt ít nhất 5 cm.
5.13.2 Phòng thử nghiệm
5.13.2.1 Phòng thử nghiệm phải được xây dựng bằng ván ép hoặc vật liệu tương đương trong nhà hoặc ngoài trời, dày tối thiểu 9,5 mm. Phải quan sát được về khả năng dập cháy từ bên ngoài phòng thử nghiệm. Được phép sử dụng cặp nhiệt điện đặt trên (các) nguồn lửa hoặc cửa sổ gần (các) vị trí nguồn lửa. Phòng thử nghiệm phải được duy trì nhiệt độ ở (20 ± 5) °C trước khi mồi cháy nhiên liệu.
5.13.2.2 Đối với mỗi bình chữa cháy bằng Sol-khí được thử nghiệm, các phòng thử nghiệm cho các thử nghiệm được mô tả trong 5.13.3 và 5.13.4 phải được xây dựng đại diện cho các trường hợp:
a) Vùng bao phủ tối đa và giới hạn chiều cao tối thiểu; và
b) Giới hạn chiều cao tối đa.
5.13.2.3 Đối với bình chữa cháy bằng Sol-khí được lắp đặt ở trung tâm của chiều dài hoặc chiều rộng của tường, một vách ngăn phải được lắp đặt:
a) Giữa sàn và trần;
b) Với điểm giữa của chiều rộng vách ngăn nằm ở trung tâm giữa hai tường song song với tường có lắp đặt bình chữa cháy bằng Sol-khí; và
c) Với chiều rộng vách ngăn vuông góc với vị trí lắp đặt bình chữa cháy bằng Sol-khí.
5.13.2.4 Đối với bình chữa cháy bằng Sol-khí đặt ở trung tâm của phòng thử nghiệm, phải lắp đặt một vách ngăn;
a) Giữa sàn và trần;
b) Với điểm giữa của chiều rộng vách ngăn được đặt chính giữa tâm của phòng thử nghiệm và tường song song với vị trí lắp đặt bình chữa cháy bằng Sol-khí; và
c) Với chiều rộng vách ngăn vuông góc với vị trí lắp đặt bình chữa cháy bằng Sol-khí.
5.13.2.5 Vách ngăn từ sàn đến trần phải bằng ít nhất 20 % chiều dài hoặc chiều rộng của phòng thử nghiệm; tùy theo điều kiện nào áp dụng liên quan đến các bức tường song song với chiều rộng của vách ngăn.
5.13.3 Quy trình bố trí thử nghiệm vùng bao phủ tối đa và chiều cao tối thiểu
5.13.3.1 Các cốc thử chứa nhiên liệu phải được đặt trong phạm vi 5 cm tính từ góc của các tường của phòng thử nghiệm, miệng của cốc thử đặt thẳng đứng trong phạm vi 30 cm so với mặt trên và mặt đáy của phòng thử nghiệm. Đối phòng thử nghiệm có chiều cao nhỏ hơn 50 cm, miệng của cốc thử được phép đặt theo chiều dọc trong phạm vi 30 cm của cả mặt trên và mặt đáy của phòng thử nghiệm.
5.13.3.2 Hai cốc thử chứa nhiên liệu bổ sung phải được đặt trong phạm vi 5 cm phía sau vách ngăn (tương quan với vị trí bình chữa cháy bằng Sol-khí) và đặt chính giữa nằm ngang phía sau vách ngăn. Một cốc thử phải được đặt sao cho miệng của cốc thử nằm theo chiều dọc trong phạm vi 30 cm so với mặt đáy của phòng thử nghiệm và cốc kia được đặt sao cho miệng của cốc thử ở điểm giữa thẳng đứng của vách ngăn. Đối với phòng thử nghiệm có chiều cao nhỏ hơn 60 cm, một cốc thử được phép sử dụng sao cho miệng của cốc thử vừa nằm theo chiều thẳng đứng trong phạm vi 30 cm của mặt đáy của phòng thử nghiệm và vừa ở điểm giữa thẳng đứng của vách ngăn.
5.13.3.3 Phòng thử nghiệm phải có các lỗ thông hơi đóng được ngay phía trên hoặc bên cạnh cốc thử chứa nhiên liệu.
5.13.3.4 Đối với mỗi thử nghiệm, bình chữa cháy bằng Sol-khí phải được cân trước khi lắp đặt, nhiên liệu phải được đổ vào các cốc thử, tiến hành mồi lửa và cháy tự do trong ít nhất 30 s. Ngay trước khi phun Sol-khí, các lỗ thông hơi phải được đóng lại và hệ thống sẽ được khởi động thủ công, cần quan sát thời điểm dập tắt được đám cháy để xác định sự tuân thủ 5.13.1.2 và bình chữa cháy bằng Sol-khí được cân sau khi làm mát để xác định lượng chất chữa cháy đã phun ra.
5.13.4 Quy trình bố trí thử nghiệm chiều cao tối đa
5.13.4.1 Các cốc thử chứa nhiên liệu phải được đặt trong phạm vi 5 cm tính từ góc của các tường của phòng thử nghiệm, miệng của cốc thử đặt thẳng đứng trong phạm vi 30 cm so với mặt trên và mặt sàn của phòng thử nghiệm. Đối phòng thử nghiệm có chiều cao nhỏ hơn 50 cm, miệng của cốc thử được phép đặt theo chiều dọc trong phạm vi 30 cm của cả mặt trên và mặt đáy của phòng thử nghiệm.
5.13.4.2 Hai cốc thử chứa nhiên liệu bổ sung phải được đặt trong phạm vi 5 cm phía sau vách ngăn (tương quan với vị trí bình chữa cháy bằng Sol-khí) và đặt chính giữa nằm ngang phía sau vách ngăn. Một cốc thử phải được đặt sao cho miệng của cốc thử nằm theo chiều dọc trong phạm vi 30 cm so với mặt đáy của phòng thử nghiệm và cốc thử kia được đặt sao cho miệng của cốc thử ở điểm giữa thẳng đứng của vách ngăn. Đối với phòng thử nghiệm có chiều cao nhỏ hơn 60 cm, một khay được phép sử dụng sao cho miệng của cốc thử vừa nằm theo chiều thẳng đứng trong phạm vi 30 cm của mặt đáy của phòng thử nghiệm và vừa ở điểm giữa thẳng đứng của vách ngăn
5.13.4.3 Phòng thử nghiệm phải có các lỗ thông hơi đóng được trên mặt trên và mặt đáy.
5.13.4.4 Đối với mỗi thử nghiệm, bình chữa cháy bằng Sol-khí phải được cân trước khi lắp đặt, nhiên liệu phải được đỗ vào các cốc thử, tiến hành mồi lửa và cháy tự do trong ít nhất 30 s. Ngay trước khi phun Sol- khí, các lỗ thông hơi phải được đóng lại và hệ thống sẽ được khởi động thủ công, cần quan sát thời điểm dập tắt được đám cháy để xác định sự tuân thủ 5.13.1.2 và bình chữa cháy bằng Sol-khí được cân sau khi làm mát để xác định lượng chất chữa cháy đã phun ra.
5.13.4.5 Một thử nghiệm bổ sung mà không có vách ngăn phải được tiến hành riêng biệt sử dụng khay thép vuông và phương pháp thử nghiệm được mô tả trong thử nghiệm dập đám cháy loại B trong 6.3.
5.14 Thử nghiệm kiểm tra phân phối cho bình chữa cháy bằng Sol-khí
5.14.1 Yêu cầu chung
5.14.1.1 Bình chữa cháy bằng Sol-khí phải trộn, phân phối chất chữa cháy và phải phun ngập hoàn toàn phòng thử nghiệm khi được thử theo các yêu cầu của 5.14.1.2 - 5.14.4.4 theo các giới hạn thiết kế tối đa và các yêu cầu lắp đặt phức tạp nhất theo các phương pháp được chỉ định trong tài liệu thiết kế, lắp đặt, vận hành và bảo trì của nhà sản xuất.
5.14.1.2 Bình chữa cháy bằng Sol-khí phải dập tắt tất cả các đám cháy trong vòng 30 s sau khi kết thúc quá trình phun.
5.14.1.3 Các thử nghiệm được mô tả trong 5.14.1.4 - 5.14.4.4 đánh giá mục đích sử dụng và các giới hạn của bình chữa cháy bằng Sol-khí bao gồm:
a) Cấu hình lỗ phun;
b) Phạm vi bao phủ của bình chữa cháy bằng Sol-khí;
c) Vị trí đặt bình chữa cháy cố định bằng Sol-khí trong khu vực được bảo vệ;
d) Thời gian phun tối đa;
e) Thể tích bảo vệ tối đa của phòng thử nghiệm;
5.14.1.4 Nồng độ dập tắt cho mỗi thử nghiệm phải là 100 % của nồng độ thiết kế mục đích sử dụng cuối dự kiến được chỉ định trong tài liệu hướng dẫn thiết kế, lắp đặt, vận hành và bảo trì.
5.14.1.5 Các thử nghiệm phải được tiến hành bằng cách sử dụng heptan làm nhiên liệu.
5.14.1.6 Các cốc thử phải được làm bằng thép có độ dày danh nghĩa tối đa là 5,5 mm, đường kính trong từ 7,6 - 8,9 cm và chiều sâu ít nhất là 102 mm.
5.14.1.7 Khay thử dùng để chứa nhiên liệu hoặc nhiên liệu và nước với mức nhiên liệu thấp hơn miệng của khay ít nhất 5 cm. Khi khay thử chứa nhiên liệu và nước, mức nhiên liệu phải đạt ít nhất 5 cm.
5.14.2 Phòng thử nghiệm
5.14.2.1 Các phòng thử nghiệm phải được lắp đặt bằng ván ép hoặc vật liệu tương đương trong nhà hoặc ngoài trời, dày tối thiểu 9,5 mm. Phải quan sát được về khả năng dập cháy từ bên ngoài phòng thử. Được phép sử dụng cặp nhiệt điện đặt trên (các) nguồn lửa hoặc cửa sổ gần (các) vị trí nguồn lửa. Các phòng thử nghiệm phải được duy trì nhiệt độ ở (20 ± 5) °C trước khi mồi cháy nhiên liệu.
5.14.2.2 Đối với mỗi bình chữa cháy bằng Sol-khí được thử nghiệm, phòng thử nghiệm cho các thử nghiệm được thực hiện tại 5.14.3 và 5.14.4 phải được xây dựng đại diện cho các trường hợp:
a) Vùng bao phủ tối đa và giới hạn chiều cao tối thiểu và giới hạn thể tích tối đa; và
b) Giới hạn chiều cao tối đa và giới hạn thể tích tối đa.
5.14.2.3 Đối với bình chữa cháy bằng Sol-khí được lắp đặt ở trung tâm của chiều dài hoặc chiều rộng của tường, một vách ngăn phải được lắp đặt:
a) Giữa sàn và trần;
b) Với điểm giữa của chiều rộng vách ngăn nằm ở trung tâm giữa hai tường song song với tường có lắp đặt bình chữa cháy bằng Sol-khí; và
c) Với chiều rộng vách ngăn vuông góc với vị trí lắp đặt bình chữa cháy bằng Sol-khí.
5.14.2.4 Đối với bình chữa cháy bằng Sol-khí được lắp đặt ở trung tâm của phòng thử nghiệm, phải lắp đặt một vách ngăn:
a) Giữa sàn và trần;
b) Với điểm giữa của chiều rộng vách ngăn được đặt chính giữa tâm của phòng thử nghiệm và tường song song với vị trí lắp đặt bình chữa cháy bằng Sol-khí; và
c) Với chiều rộng vách ngăn vuông góc với vị trí lắp đặt bình chữa cháy bằng Sol-khí.
5.14.2.5 Vách ngăn từ sàn đến trần phải bằng ít nhất 20 % chiều dài hoặc chiều rộng của phòng thử nghiệm; tùy theo điều kiện nào áp dụng liên quan đến các bức tường song song với chiều rộng của vách ngăn.
5.14.3 Quy trình bố trí thử nghiệm vùng bao phủ tối đa và chiều cao tối thiểu và thể tích tối đa
5.14.3.1 Các cốc thử chứa nhiên liệu phải được đặt trong phạm vi 5 cm tính từ góc của các tường của phòng thử nghiệm, đỉnh của bình đặt thẳng đứng trong phạm vi 30 cm so với mặt trên và mặt sàn của phòng thử nghiệm. Đổi phòng thử nghiệm có chiều cao nhỏ hơn 50 cm, miệng của cốc thử được phép đặt theo chiều dọc trong phạm vi 30 cm của cả mặt trên và mặt sàn của phòng thử nghiệm.
5.14.3.2 Hai cốc thử chứa nhiên liệu bổ sung phải được đặt trong phạm vi 5 cm phía sau vách ngăn (tương quan với vị trí bình chữa cháy bằng Sol-khí) và đặt chính giữa nằm ngang phía sau vách ngăn. Một cốc thử phải được đặt sao cho miệng của cốc thử nằm theo chiều dọc trong phạm vi 30 cm so với mặt đáy của phòng thử nghiệm và cốc thử kia được đặt sao cho miệng của cốc thử ở điểm giữa thẳng đứng của vách ngăn. Đối với phòng thử nghiệm có chiều cao nhỏ hơn 60 cm, một cốc thử được phép sử dụng sao cho miệng của cốc thử vừa nằm theo chiều thẳng đứng trong phạm vi 30 cm của mặt đáy của phòng thử nghiệm và vừa ở điểm giữa thẳng đứng của vách ngăn.
5.14.3.3 Phòng thử nghiệm phải có các lỗ thông hơi đóng được phía trên hoặc bên cạnh cốc thử chứa nhiên liệu.
5.14.3.4 Đối với mỗi thử nghiệm, bình chữa cháy bằng Sol-khí phải được cân trước khi lắp đặt, nhiên liệu phải được đổ vào các cốc thử, tiến hành mồi lửa và cháy tự do trong ít nhất 30 s. Ngay trước khi phun Sol-khí, các lỗ thông hơi phải được đóng lại và hệ thống sẽ được khởi động thủ công, cần quan sát thời điểm dập tắt được đám cháy để xác định sự tuân thủ 5.14.1.2 và bình chữa cháy bằng Sol-khí được cân sau khi làm mát để xác định lượng chất chữa cháy đã phun ra.
5.14.4 Quy trình bố trí thử nghiệm chiều cao tối đa và thể tích lớn nhất
5.14.4.1 Các cốc thử chứa nhiên liệu phải được đặt trong phạm vi 5 cm tính từ góc của các tường của phòng thử nghiệm, miệng của cốc thử đặt thẳng đứng trong phạm vi 30 cm so với mặt trên và mặt sàn của phòng thử nghiệm. Đối phòng thử nghiệm có chiều cao nhỏ hơn 50 cm, miệng của cốc thử được phép đặt theo chiều dọc trong phạm vi 30 cm của cả mặt trên và mặt sàn của phòng thử nghiệm.
5.14.4.2 Hai cốc thử chứa nhiên liệu bổ sung phải được đặt trong phạm vi 5 cm phía sau vách ngăn (tương quan với vị trí bình chữa cháy cố định bằng Sol-khí cô đặc) và đặt chính giữa nằm ngang phía sau vách ngăn. Một cốc thử phải được đặt sao cho miệng của cốc thử nằm theo chiều dọc trong phạm vi 30 cm so với mặt đáy của phòng thử nghiệm và cốc thử kia được đặt sao cho miệng của cốc thử ở điểm giữa thẳng đứng của vách ngăn. Đối với phòng thử nghiệm có chiều cao nhỏ hơn 60 cm, một cốc thử được phép sử dụng sao cho miệng của cốc thử vừa nằm theo chiều thẳng đứng trong phạm vi 30 cm của mặt sàn của phòng thử nghiệm và vừa ở điểm giữa thẳng đứng của vách ngăn.
5.14.4.3 Phòng thử nghiệm phải có các lỗ thông hơi đóng được trên mặt trên và mặt đáy.
5.14.4.4 Đối với mỗi thử nghiệm, bình chữa cháy bằng Sol-khí phải được cân trước khi lắp đặt, nhiên liệu phải được đổ vào các cốc thử, tiến hành mồi lửa và cháy tự do trong ít nhất 30 s. Ngay trước khi phun chất chữa cháy, các lỗ thông hơi phải được đóng lại và hệ thống sẽ được khởi động thủ công, cần quan sát thời điểm dập tắt được đám cháy để xác định sự tuân thủ 5.14.1.2 và bình chữa cháy bằng Sol-khí được cân sau khi làm mát để xác định lượng chất chữa cháy đã phun ra.
5.15 Thử nghiệm dập đám cháy tự động bằng bình chữa cháy tự động kích hoạt
5.15.1 Yêu cầu chung
5.15.1.1 Bình chữa cháy bằng Sol-khí tự động kích hoạt phải trộn, phân phối chất chữa cháy và phải phun ngập hoàn toàn phòng thử nghiệm khi được thử nghiệm theo các yêu cầu của 5.15.1.2 - 5.15.3.4 theo các giới hạn thiết kế tối đa và các hướng dẫn lắp đặt nghiêm ngặt nhất theo các phương pháp được quy định trong tài liệu thiết kế, lắp đặt, vận hành và bảo trì của nhà sản xuất.
5.15.1.2 Bình chữa cháy bằng Sol-khí tự động kích hoạt phải phun Sol-khí và dập tắt đám cháy trong vòng 1 min sau khi mồi cháy nhiên liệu thử nghiệm.
5.15.1.3 Các thử nghiệm được mô tả trong 5.15.1.4 - 5.15.3.4 đánh giá mục đích sử dụng và các giới hạn của bình chữa cháy bằng Sol-khí tự động kích hoạt bao gồm:
a) Cấu hình lỗ phun;
b) Phạm vi bao phủ của bình chữa cháy bằng Sol-khí;
c) Vị trí đặt bình chữa cháy bằng Sol-khí trong khu vực được bảo vệ;
d) Thời gian phun tối đa.
e) Thể tích bảo vệ tối đa của phòng thử nghiệm; và
f) Nhiệt độ làm việc tối thiểu.
5.15.1.4 Nồng độ dập tắt cho mỗi thử nghiệm phải là 100 % của nồng độ thiết kế mục đích sử dụng cuối dự kiến được chỉ định trong tài liệu hướng dẫn thiết kế, lắp đặt, vận hành và bảo trì.
5.15.1.5 Các thử nghiệm phải được tiến hành bằng cách sử dụng heptan làm nhiên liệu.
5.15.1.6 Khay có hình vuông với kích thước chiều dài và chiều rộng bên trong ít nhất 482 mm, có diện tích ít nhất là 0,23 m2 và chiều sâu bên trong ít nhất là 102 mm. Khay phải được làm bằng thép có độ dày thành tối thiểu là 6,4 mm với các mối hàn kín không rò rỉ chất lỏng và có góc với kích thước danh nghĩa (38 x 38) mm dày khoảng 4,8 mm, để gia cố cạnh trên. Góc gia cố phải liên tục xung quanh chu vi của khay và tạo thành một cạnh quay ra ngang bằng với cạnh trên của khay. Bề mặt cạnh trên được chế tạo với chiều rộng khoảng 44 mm. Góc gia cố phải được hàn liên tục đến mặt ngoài của khay ở cạnh trên và hàn dính ở mép chân dưới của góc.
Ngoại lệ: Khi thể tích phòng thử nghiệm quá nhỏ để có thể sử dụng khay vuông có diện tích như mô tả trong 5.15.1.6, thì kích thước của khay vuông được phép giảm tương ứng với thể tích phòng thử nghiệm miễn là độ sâu bên trong ít nhất bằng 102 mm. Khay vuông có diện tích giảm phải được cấu tạo tương tự như quy định trong 5.15.1.6, ngoại trừ sắt góc gia cố được phép giảm kích thước hoặc loại bỏ miễn là khay phải vuông.
5.15.1.7 Khay dùng để chứa nhiên liệu hoặc nhiên liệu và nước với mức nhiên liệu thấp hơn đỉnh của khay ít nhất 5 cm. Khi khay chứa nhiên liệu và nước, cột nhiên liệu phải đạt ít nhất 5 cm.
5.15.2 Phòng thử nghiệm
5.15.2.1 Các phòng thử nghiệm phải được lắp đặt bằng ván ép hoặc vật liệu tương đương trong nhà hoặc ngoài trời, dày tối thiểu 9,5 mm. Phải quan sát bằng mắt về khả năng dập cháy từ bên ngoài phòng thử nghiệm. Được phép sử dụng cặp nhiệt điện đặt trên nguồn lửa hoặc cửa sổ gần vị trí nguồn lửa. Các phòng thử nghiệm phải được duy trì nhiệt độ ở (20 ± 5) °C trước khi mồi cháy nhiên liệu.
5.15.2.2 Mỗi phòng thử nghiệm phải có hai lỗ hình vuông, mỗi lỗ có diện tích tối đa là 0,09 m2 để cung cấp nguồn Oxygengen cho đám cháy. Một lỗ được đặt ở góc tường với cạnh đáy của lỗ ở mặt sàn của phòng thử nghiệm. Lỗ còn lại phải được đặt ở góc đối diện của bức tường đối diện trực tiếp với lỗ mở đầu tiên với cạnh trên của lỗ này cách trần trong khoảng 5 cm.
Ngoại lệ: Khi thể tích của phòng thử nghiệm quá nhỏ để có thể sử dụng hai lỗ hình vuông có diện tích như mô tả trong 5.1 theo 5.2.2, kích thước của hai lỗ hình vuông được phép giảm tương ứng với thể tích của phòng thử nghiệm. Hai lỗ hình vuông có diện tích giảm phải có cùng kích thước gần đúng và được đặt ở vị trí như trong 5.1 theo 5.2.2.
5.15.2.3 Đối với mỗi bình chữa cháy bằng Sol-khí được thử nghiệm, các phòng thử nghiệm cho các thử nghiệm mô tả trong 5.15.3 phải được kết cấu thể hiện giới hạn chiều cao tối đa và thể tích tối đa.
5.15.3 Quy trình bố trí thử nghiệm
5.15.3.1 Phải tiến hành các thử nghiệm riêng biệt cho từng phòng thử nghiệm, sử dụng một khay thép vuông chứa heptan, được đặt:
a) Ở trung tâm của phòng thử nghiệm; và
b) Trong phạm vi 5 cm từ góc của phòng thử nghiệm có lỗ mở và cách xa bình chữa cháy bằng Sol-khí tự động kích hoạt nhất.
5.15.3.2 Mỗi bình chữa cháy bằng Sol-khí tự động kích hoạt phải được cân và sau đó được ổn định ở nhiệt độ làm việc tối thiểu trong ít nhất 16 h.
5.15.3.3 Đối với mỗi phép thử, cho nhiên liệu vào khay, mồi cháy và để cháy tự do. Bình chữa cháy cố định bằng Sol-khí phải được kích hoạt tự động, thực hiện quan sát thời điểm bắt đầu phun, kết thúc phun và thời điểm đám cháy được dập tắt để xác định sự tuân thủ với 5.15.1.2 và bình chữa cháy bằng Sol- khí được cân sau khi làm mát để xác định lượng chất chữa cháy phun ra.
5.15.3.4 Nồng độ oxy bên trong phòng thử nghiệm phải được đo bằng máy phân tích đã điều chỉnh trước khi bắt đầu phun tại một vị trí, tương đương với chiều cao của khay thử nghiệm và một nửa khoảng cách tới tường. Đối với mỗi thử nghiệm, tại thời điểm bắt đầu phun, nồng độ oxy phải nằm trong khoảng 0,5 đơn vị của nồng độ oxy bình thường ở điều kiện khí quyển.
5.16 Thử nghiệm nứt do ăn mòn ứng suất cho các bộ phận bằng đồng thau
5.16.1 Sau khi đáp ứng các điều kiện mô tả trong 5.16.2 - 5.16.4, bộ phận bằng đồng thau chứa hơn 15 % kẽm sẽ không có dấu hiệu nứt vỡ khi được thử nghiệm sử dụng độ phóng đại 25 X.
Ngoại lệ: Vết nứt được cho phép khi nó không ảnh hưởng đến khả năng tuân thủ của sản phẩm với các yêu cầu trong đại cương nghiên cứu này.
Mỗi mẫu thử phải chịu các ứng suất vật lý thông thường được đặt lên hoặc bên trong một bộ phận do kết quả của việc lắp ráp với các bộ phận khác. Các ứng suất như vậy phải được đặt lên mẫu thử trước và có hiệu quả trong quá trình thử nghiệm. Các mẫu thử có ren, nhằm mục đích sử dụng để lắp đặt sản phẩm tại địa điểm, phải gắn và siết chặt ren với mô-men xoắn quy định trong Bảng 2 Vật liệu làm kín ống và/hoặc hợp chất của ống không được sử dụng trên ren.
Bảng 2 - Yêu cầu mô-men xoắn đối với các kết nối ren
| Kích thước ren danh định, cm | Mô men xoắn, N-m |
| 0,3175 | 11,3 |
| 0,635 | 20,3 |
| 1,27 | 46,3 |
| 1,905 | 67,8 |
| 2,54 | 135,6 |
| 3,175 | 163,8 |
| 1,27 | 175,1 |
| 5,08 | 186,4 |
| 3,81 | 197,7 |
| 7,62 | 203,4 |
| 10,16 | 214,7 |
5.16.2 Ba mẫu thử không có lớp mạ hoặc lớp phủ phải được tẩy dầu mỡ và sau đó cho tiếp xúc liên tục với hỗn hợp amoniac - không khí ẩm được duy trì trong buồng thủy tinh có nắp đậy bằng thủy tinh, ở một vị trí đã định trong 10 ngày.
5.16.3 Một lượng amoniac dạng nước khoảng 600 ml trên 930 cm2 diện tích sàn của buồng và có trọng lượng riêng 0,94 phải được duy trì ở sàn buồng kính bên dưới các mẫu thử. Các mẫu thử phải được đặt ở vị trí 38 mm trên dung dịch amoniac trong nước và được đỡ bởi một khay trơ. Hỗn hợp amoniac-không khí ẩm trong buồng phải được duy trì ở áp suất khí quyển và ở nhiệt độ (34 ± 2) °C.
Ngoại lệ: Thử nghiệm này chỉ áp dụng cho các bình chữa cháy Sol-khí có có bộ phận bằng đồng thau.
5.17 Thử nghiệm lão hóa - bình chữa cháy bằng Sol-khí
Sau khi được cân và thiết lập điều kiện trong lò sấy không khí tuần hoàn trong khoảng thời gian lão hóa tương ứng với nhiệt độ lão hóa dựa trên các giới hạn tuổi thọ được chỉ định trong hướng dẫn thiết kế, lắp đặt, vận hành và bảo trì của nhà sản xuất, các mẫu thử đại diện cho từng kích thước và thiết kế của hệ thống chữa cháy phải:
Hoạt động như dự kiến;
a) Có thời gian phun trong khoảng ± 20 % hoặc trong vòng ± 5 s (tùy theo giá trị nào lớn hơn) của thời gian phun trung bình được xác định ở (21 ± 4) °C trong thử phun, theo 5.2;
b) Có lượng phun chất chữa cháy ít nhất là 83 % của lượng phun chất chữa cháy trung bình được xác định ở (21 ± 4) °C trong thử phun, theo 5.2.
Thời gian lão hóa là hàm của nhiệt độ lão hóa và tuổi thọ hữu ích được tính theo công thức sau:
t = A . e –k.T
CHÚ DẪN:
t: Thời gian lão hóa tính bằng ngày; t ≥ 25 ngày
T: Nhiệt độ lão hóa tính bằng °C; T ≥ 70 °C
k = 0.1 In (2) = 0,069315
A = Hằng số và là một hàm của tuổi thọ hữu ích như quy định trong Bảng 3.
Bảng 3 - Hằng số và là một hàm của tuổi thọ hữu ích
| Thời gian sử dụng hữu ích, năm | Hằng số, A |
| 10 | 40,895 |
| 15 | 59,325 |
| 20 | 77,755 |
| 25 | 96,175 |
Sau đây là các giá trị được chọn dựa trên phương trình trên.
Bảng 4 - Một số kết quả tính toán thời gian lão hóa
| Nhiệt độ lão hóa | Thời gian lão hóa, t (ngày), kết quả thời gian sử dụng đảm bảo | |||
| T (°C) | 10 năm | 15 năm | 20 năm | 25 năm |
| 70 | 320 | 464 | 608 | 752 |
| 75 | 226 | 328 | 430 | 532 |
| 80 | 160 | 232 | 304 | 375 |
| 85 | 113 | 164 | 215 | 266 |
| 90 | 80 | 116 | 152 | 188 |
| 95 | 56 | 82 | 107 | 133 |
| 100 | 40 | 58 | 76 | 94 |
| 105 | 28 | 41 | 54 | 66 |
| 110 | [a] | 29 | 38 | 47 |
| 115 | [a] | [a] | 27 | 33 |
| [a] Thời gian lão hóa đối với nhiệt độ lão hóa được hiển thị là ít hơn cho phép; t ≥ 25 ngày | ||||
Các mẫu thử nghiệm được lão hóa cần được ủ trong lò sấy không khí tuần hoàn ở trạng thái sẵn sàng, đã được làm nóng trước từ trạng thái sẵn sàng đến nhiệt độ thử nghiệm ± 2 °C. Các mẫu thử không được chạm vào nhau hoặc các mặt của lò. Các mẫu thử phải được lão hóa ở trạng thái sẵn sàng và sau đó để nguội trong không khí ở (21 ± 4) °C trong ít nhất 16 h trước khi tiến hành thử phun theo 5.2 như được sử dụng trong thử nghiệm này, thuật ngữ “sẵn sàng” đề cập đến lò được sử dụng với các lỗ thông hơi đầu vào và đầu ra mờ và điều khiển van điều tiết lỗ thông hơi ở một cài đặt bội số trao đổi không khí từ 250 đến 350 lần/giờ. Sau khi lão hóa, mỗi mẫu thiết bị tạo Sol-khí phải được thiết lập điều kiện đến (21 ± 4) °C và phun như mô tả trong theo 5.2.3.
5.18 Thử nghiệm bộ phận khóa an toàn và chốt niêm phong
5.18.1 Lực cần thiết để phá vỡ chốt niêm phong của khóa an toàn không được vượt quá 65 N.
5.18.2 Lực cần thiết để kéo hoặc bật khóa an toàn không được vượt quá 130 N sau khi khóa an toàn được thử nghiệm như quy định trong 5.18.3 và 5.18.4.
5.18.3 Khóa an toàn không bị biến dạng khi chịu tác động một lực 220 N lên cơ cấu vận hành của khóa trong 30 s và khi đó bộ kích hoạt thủ công vẫn phải có khả năng hoạt động theo cách thức đã chỉ định. Bộ kích hoạt thủ công, với khóa an toàn và chốt niêm phong được gắn đúng theo thiết kế, phải đảm bảo khi tác động một lực 220 N ở vị trí cách 13 mm từ cuối của cần vận hành hoặc ở trung tâm của cơ cấu nút bấm.
5.18.4 Sau đó, kéo khóa an toàn với lực 130 N trong 30 s ở góc 45° hướng lên trên so với trục của nó để tháo ra và sau đó kéo trong 30 s theo hướng ra ngoài dọc theo trục. Khóa an toàn sẽ:
a) Có khả năng rút ra theo góc 45°; hoặc
b) Không bị hỏng hoặc cơ cấu bị kẹt đến mức ngăn cản việc rút trực tiếp khóa an toàn thiết kế theo hướng ra ngoài dọc theo trục của nó, khi tác động một lực 130 N trong 30 s.
Lực 130 N tác dụng lên khóa an toàn ở góc 45° và dọc theo trục của khóa, phải được tạo ra bằng cách tăng lực từ 0 đến 130 N với tốc độ 260 N mỗi min.
6 Yêu cầu về tính năng đối với các đám cháy (thử nghiệm dập tắt đám cháy loại A và đám cháy loại B)
6.1 Các thông số thử nghiệm chung
6.1.1 Yêu cầu chung
Khi được thử theo mục 6.2 và 6.3, (các) bình chữa cháy bằng Sol-khí phải dập tắt liên tiếp đám cháy loại A hoặc B hoặc cả hai đám cháy thử loại A và B. Các phép thử với mỗi nhiên liệu hoặc vật liệu phải được lặp lại 3 lần.
Đối với các phép thử đám cháy loại A, tất cả các đám cháy:
a) Phải được dập tắt trong vòng 600 s sau khi kết thúc quá trình phun của hệ thống; và
b) Không bắt cháy sau thời gian chờ 600 s sau khi kết thúc quá trình phun.
Đối với các phép thử đám cháy loại B tất cả các đám cháy phải được dập tắt trong vòng 30 s sau khi kết thúc quá trình phun.
6.1.2 Phòng thử nghiệm
Phòng thử nghiệm có thể tích tối thiểu là 100 m3 phải được tạo bằng thanh gỗ ép trong nhà hoặc ngoài trời độ dày tối thiểu 9,5 mm hoặc vật liệu tương đương và phải có chiều cao trần tối thiểu là 3,5 m với mỗi bức tường dài ít nhất 4 m. Các lỗ mở phải được bố trí ở trên cùng và dưới cùng của phòng thử nghiệm để thoát khí trước khi phun. Ngoài ra, phải có lỗ giảm áp ở phía trên của phòng thử nghiệm. Phải đưa ra các quy định để quan sát bằng mắt về khả năng dập lửa từ bên ngoài phòng thử nghiệm. Nếu tầm nhìn bị hạn chế sau khi phun, phải đưa ra các quy định khác ngoài quan sát bằng mắt. Phòng thử nghiệm phải được duy trì ở (20 ± 5) °C trước khi mồi lửa các đám cháy thử.
Ngoại lệ: Đối với hệ thống chữa cháy giới hạn khối tích bảo vệ nhỏ hơn 100 m3, đối với các bài kiểm tra chữa cháy loại B, phòng thử nghiệm phải có thể tích tương đương với thể tích tối đa được quy định trong hướng dẫn sử dụng.
6.1.3 Bố trí hệ thống
(Các) bình chữa cháy cố định bằng Sol-khí phải được lắp đặt theo các giới hạn thiết kế tối đa và các hướng dẫn lắp đặt nghiêm ngặt nhất theo các phương pháp được nêu trong sổ tay hướng dẫn thiết kế, lắp đặt, vận hành và bảo trì của nhà sản xuất. Đối với thử đám cháy loại A (cũi gỗ), (các) bình chữa cháy bằng Sol-khí phải được lắp đặt ở phía bên của phòng thử nghiệm đối diện với cũi nằm phía sau vách ngăn từ sàn đến trần.
(Các) bình chữa cháy bằng Sol-khí thử nghiệm phải được ổn định ở (20 ± 5) °C.
Nồng độ chữa cháy cho mỗi thử nghiệm phải là 76,92 % của mật độ ứng dụng thiết kế mục đích sử dụng cuối dự kiến cho loại nhiên liệu được chỉ định trong tài liệu hướng dẫn thiết kế, lắp đặt, vận hành và bảo trì của nhà sản xuất. (Các) bình chữa cháy bằng Sol-khí thử nghiệm phải được cân trước và sau các thử nghiệm để xác định lượng chất chữa cháy phun ra.
6.2 Thử dập đám cháy loại A
6.2.1 Yêu cầu chung
Vật liệu thử đám cháy loại A bao gồm cũi gỗ và 3 vật liệu polyme.
6.2.2 Cũi gỗ
Mỗi thử nghiệm đám cháy phải bao gồm hai (2) cũi gỗ, mỗi cũi có kích thước không nhỏ hơn (305 x 305 x 305) mm. Mỗi cũi bao gồm tám lớp xen kẽ của bốn thanh gỗ thông hoặc tương đương sấy khô kích thước (38 x 38) mm, dài từ 305 mm đến 310 mm. Các lớp gỗ xen kẽ phải được đặt vuông góc với các lớp liền kề. Các thanh gỗ riêng lẻ trong mỗi lớp phải được cách đều nhau dọc theo chiều dài các thanh gỗ của lớp dưới và được siết chặt bằng ghim hoặc đinh. Cũi gỗ phải được điều chỉnh trước để có độ ẩm từ 9 % đến 13 % trọng lượng.
Một vách ngăn sẽ được lắp đặt:
- Giữa sàn và trần nhà;
- Với điểm giữa của chiều rộng vách ngăn được đặt chính giữa tâm của phòng thử nghiệm và tường; và
- Với chiều rộng vách ngăn vuông góc với tâm của phòng thử nghiệm.
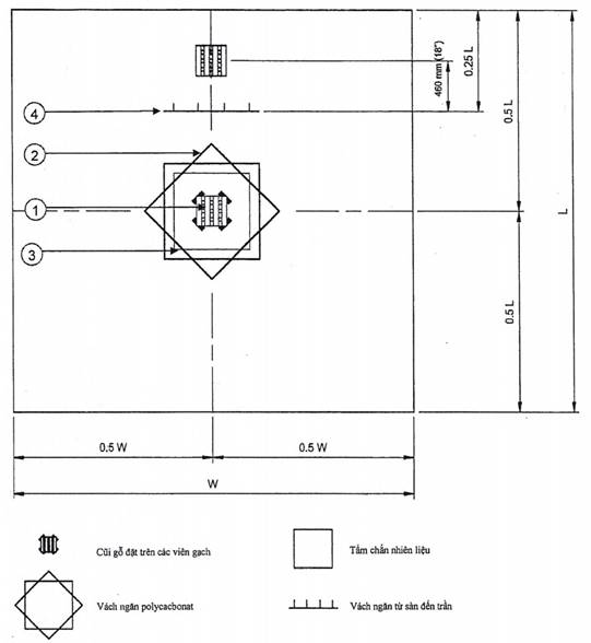
Chiều rộng của vách ngăn từ sàn đến trần ít nhất phải bằng 20 % chiều dài của các bức tường song song với vách ngăn như được chỉ ra trong Hình 1.

CHÚ DẪN:
1 - Cũi gỗ đặt trên các viên gạch
2- Vách ngăn polycacbonat
3- Tấm chắn nhiên liệu
4- Vách ngăn từ sàn đến trần
Hình 1 - Vị trí cũi gỗ
2 cũi gỗ sẽ được đặt trên sàn được hỗ trợ bởi 4 viên gạch cao (50 ± 2) mm, mỗi viên gạch ở mỗi đầu cũi như trong Hình 1 và Hình 2. 1 trong 2 cũi phải được đặt chính giữa hai bức tường vuông góc với vách ngăn từ sàn đến trần với 2 cạnh của cũi song song với vách ngăn từ sàn đến trần và tâm của cũi nằm cách (460 ± 10) mm phía sau vách ngăn từ sàn đến trần so với trung tâm của phòng thử nghiệm. Cũi còn lại phải được đặt chính giữa trong phòng thử nghiệm.
Phải có một tấm chắn nhiên liệu gồm 1 khung kim loại với thép tấm ở trên xung quanh cũi ở trung tâm của phòng thử nghiệm như trong Hình 2. Tấm chắn nhiên liệu phải rộng (760 ±10) mm, cao (825 ± 15) mm và sâu (760 ± 10) mm. Đỉnh (760 x 760) mm phải là thép tấm. Bốn cạnh còn lại và đáy sẽ được mở.
Hai vách ngăn bên ngoài có kích thước bằng hình vuông (1015 ± 15) mm và cao (305 ± 5) mm được bố trí xung quanh mặt ngoài của tấm chắn nhiên liệu như trong Hình 2. Các vách ngăn phải được đặt cao hơn sàn (90 ± 5) mm. Vách ngăn dưới phải được định hướng sao cho các mặt của nó song song với tấm chắn nhiên liệu và vách ngăn trên phải xoay 45° so với vách ngăn dưới.

CHÚ DẪN:
1- Cũi gỗ
2- Vách ngăn polycacbonat
3- Viên gạch
4- Tấm chắn nhiên liệu
5- Mảnh vụn báo
Hình 2 - Chi tiết bố trí cũi gỗ
Mỗi cũi phải có tối thiểu 113,5 g khối lượng mảnh vụn báo đặt dưới cũi ở chính giữa 4 viên gạch. Phải đổ một lượng ít nhất 236 ml rượu etylic biến tính lên mỗi cũi và giấy, sau đó mồi cháy. Sau khi mồi cháy, mỗi cũi phải được để cháy trong ít nhất 2 min. Nồng độ oxy phải được đo bằng máy phân tích được bố trí tại các vị trí có cùng độ cao với cũi gỗ và căn giữa từ mép cũi đến tường gần đó. Ngay trước khi phun chất chữa cháy vào phòng thử nghiệm, các lỗ thông hơi, ngoại trừ bộ giảm áp, phải được đóng lại và hệ thống sẽ được khởi động thủ công. Tại thời điểm phun chất chữa cháy, nồng độ oxy trong phòng thử nghiệm ở cao độ của cũi phải nằm trong khoảng 0,5 đơn vị so với nồng độ oxy bình thường ở điều kiện khí quyển.
Sau khi bắt đầu phun hệ thống, phải quan sát khi dập tắt đám cháy cũi. Phòng thử nghiệm phải được giữ kín trong đủ 600 s sau khi kết thúc phun. Ngay sau thời gian chờ 600 s, cũi phải được đưa ra khỏi phòng thử nghiệm, quan sát để xác định xem nhiên liệu có còn để duy trì quá trình cháy hay không và các dấu hiệu cháy trở lại.
6.2.3 Vật liệu polyme
Mỗi khay nhiên liệu polyme gồm 4 tấm của cùng một vật liệu polyme, dày (9,5 ± 0,5) mm, cao (405 ± 10) mm, rộng (205 ± 5) mm. Các tấm phải có khoảng cách và vị trí như được mô tả trong Hình 3. Đáy của khay chứa nhiên liệu phải cách sàn (205 ± 5) mm. Các tấm nhiên liệu phải được cố định cơ học ở khoảng cách quy định.

CHÚ DẪN:
1- Tấm polyme
2- Tấm chắn nhiên liệu
3- Khung góc nhôm hoặc thép cho tấm polyme
4- Thanh ren với miếng đệm (3,2 đến 9,5 mm)
5- Khay thép
6- Khay nhỏ giọt
7- Bàn cân điện tử
8- Vách ngăn
9- Gạch (hoặc vật liệu tương tự khác)
Hình 3 - Tấm chắn nhiên liệu
Một tấm chắn nhiên liệu gồm một khung kim loại với thép tấm ở trên và hai bên phải được lắp xung quanh khay nhiên liệu như được biểu thị trong Hình 3. Tấm chắn nhiên liệu phải rộng (380 ± 5) mm, cao (850 ± 15) mm và sâu (610 ±10) mm. Các cạnh rộng 610 mm, cao 850 mm và đỉnh (610 x 380) mm là thép tấm. Hai cạnh còn lại và đáy sẽ được mở.
Khay nhiên liệu phải được định hướng sao cho cạnh 205 mm của khay nhiên liệu song song với cạnh 610 mm của tấm chắn nhiên liệu.
Hai vách ngăn bên ngoài có kích thước bằng hình vuông (1015 ± 15) mm và cao (305 ± 5) mm được bố trí xung quanh mặt ngoài của tấm chắn nhiên liệu như trong Hình 3. Các vách ngăn phải được đặt cao hơn sàn (90 ± 5) mm. Vách ngăn dưới phải được định hướng sao cho các mặt của nó song song với tấm chắn nhiên liệu và vách ngăn trên phải xoay 45° so với vách ngăn dưới.
Các thử nghiệm phải được tiến hành sử dụng từng loại trong số ba nhiên liệu polyme sau: polymethyl methacrylate (PMMA); polypropylene (PP); và polyme acrylonitrile-butadien-styren (ABS). Các đặc tính của vật liệu được mô tả trong Bảng 5.
Bảng 5 - Đặc tính nhiên liệu polyme
| Tiếp xúc 25 kw/m2 trong nhiệt lượng kế hình nón | ||||||||
|
| Trung bình 180s | Hiệu quả | ||||||
| Nhiên liệu | Màu sắc | Khối lượng riêng (g/cm3) | Thời gian đốt | Tốc độ giải phóng nhiệt | Năng suất tỏa nhiệt | |||
| s | Dung sai | kW/m2 | Dung sai | MJ/kg | Dung sai | |||
| PMMA | Đen | 1,19 | 77 | ±30 % | 286 | ±25 % | 23,3 | ±15 % |
| Polypropyl ene | Tự nhiên (Trắng) | 0,91 | 91 | ±30 % | 225 | ±25% | 39,8 | ±15% |
| ABS | Tự nhiên (Kem) | 1,04 | 115 | ±30 % | 4x84 | ±25 % | 29,1 | ±15 % |
Nguồn mồi cháy là một khay chứa heptan với đỉnh cốc (12,7 ± 0,3) mm thấp hơn đáy của các tấm polyme. Khay được làm bằng thép với độ dày thành tối đa là 3,1 mm. Khay phải có hình vuông với kích thước chiều dài và chiều rộng bên trong ít nhất là 50,8 mm và chiều sâu bên trong là (22,2 ± 2,0) mm.
Phải định vị khay nhiên liệu, tấm chắn nhiên liệu, vách ngăn và chảo và đặt heptan vào trong khay, mồi lửa và cháy tự do trong ít nhất 90 s. Nồng độ oxy phải được đo bằng máy phân tích đã hiệu chuẩn tại một vị trí, có cùng độ cao với tâm của các tấm nhựa và căn giữa từ mép của tấm chắn nhiên liệu đến tường gần đó.
Ngay trước khi phun chất chữa cháy vào phòng thử, các lỗ thông hơi, ngoại trừ bộ giảm áp, phải được đóng lại và bình chữa cháy bằng Sol-khí sẽ được khởi động thủ công. Bình chữa cháy bằng Sol-khí phải được phun ít nhất 210 s sau khi mồi cháy heptan và các quan sát được thực hiện để dập tắt. Tại thời điểm phun hệ thống, nồng độ oxy trong phòng thử phải nằm trong khoảng 0,5 đơn vị so với nồng độ oxy bình thường ở điều kiện khí quyển. Phòng thử phải được giữ kín tối đa 600 s sau khi kết thúc phun.
Sự hao hụt khối lượng nhiên liệu phải được ghi lại liên tục trong quá trình thử nghiệm.
Các sự kiện sau đây phải được tính thời gian và ghi lại:
- Thời điểm mồi cháy bằng heptan;
- Thời điểm bắt lửa của tấm nhựa;
- Thời điểm bắt đầu phun chất chữa cháy;
- Thời điểm kết thúc phun chất chữa cháy; và
- Thời gian tất cả ngọn lửa nhìn thấy được dập tắt.
Hao hụt khối lượng các mẫu polyme không được vượt quá 15 gam trong khoảng thời gian từ 10 s đến 600 s sau khi kết thúc quá trình phun. Ngay sau thời gian chờ 600 s, hàng rào thử phải được thông gió nhanh chóng và kiểm tra vật liệu để tìm dấu hiệu bắt lửa trở lại. Nếu hàng rào thử không thể thông gió trong vòng 60 s, khay nhiên liệu phải được đưa ra khỏi phòng thử và kiểm tra vật liệu để tìm dấu hiệu bắt lửa lại.
6.3 Thử dập đám cháy loại B
6.3.1 Yêu cầu chung
6.3.1.1 Các thử nghiệm dập tắt đám cháy loại B phải được thực hiện bằng cách sử dụng khay chứa heptan làm nhiên liệu.
6.3.1.2 Khay có hình vuông với kích thước chiều dài và chiều rộng bên trong ít nhất 482 mm, có diện tích ít nhất là 0,23 m2 và chiều sâu bên trong ít nhất là 102 mm. Khay phải được làm bằng thép có độ dày thành tối thiểu là 6,4 mm, với các mối hàn kín để không rò rỉ chất lỏng và có góc với kích thước danh nghĩa (38 x 38) mm dày khoảng 4,8 mm, để gia cố cạnh trên. Góc gia cố phải liên tục xung quanh chu vi của khay và tạo thành một cạnh quay ra ngang bằng với cạnh trên của khay. Bề mặt cạnh trên được chế tạo với chiều rộng khoảng 44 mm. Góc gia cố phải được hàn liên tục phía mặt ngoài của khay ở cạnh trên và hàn dính ở mép chân dưới của góc.
Ngoại lệ: Hệ thống (các) bình chữa cháy bằng Sol-khí có giới hạn khối tích bảo vệ nhỏ hơn 100 m3, đối với phép thử chữa cháy đám cháy loại B, khay thử được phép có diện tích nhỏ hơn quy định, miễn là diện tích khay tối thiểu bằng 1,45 % diện tích sàn của phòng thử nghiệm và nồng độ oxy trong phòng thử nghiệm nằm trong khoảng 0,5 đơn vị của nồng độ oxy bình thường ở điều kiện khí quyển tại thời điểm bắt đầu xả khi được đo bằng một máy phân tích được bố trí tại một vị trí tương đương với chiều cao của khay thử nghiệm và một nửa khoảng cách đến tường.
6.3.1.3 Các thử nghiệm được tiến hành bằng cách khay đặt ở trung tâm của phòng, mặt trên của khay cao hơn sàn (66 - 76) cm. Khay chứa ít nhất 5 cm heptan.
6.3.1.4 Nồng độ oxy phải được đo bằng máy phân tích đã bố trí tại vị trí có cùng độ cao với mặt trên của khay và có tâm từ mép khay đến tường gần đó.
6.3.2 Quy trình thử
6.3.2.1 Đối với mỗi thử nghiệm, heptan phải được đặt vào khay, mồi cháy và cháy tự do trong ít nhất 30 s.
Ngay trước khi phun chất chữa cháy, các lỗ thông hơi, ngoại trừ bộ giảm áp, phải được đóng lại và hệ thống sẽ được khởi động thủ công. Tại thời điểm kích hoạt, nồng độ oxy trong phòng thử nghiệm phải nằm trong khoảng 0,5 đơn vị so với nồng độ oxy bình thường ở điều kiện khí quyển, cần quan sát thời điểm dập tắt được đám cháy.
7 Ghi nhãn
7.1 Nhãn phải đảm bảo bảo độ bền, dưới dạng bảng kim loại được khắc hoặc dập nổi các thông tin theo quy định, được gắn chắc chắn hoặc in trực tiếp lên thiết bị.
7.2 Mỗi bình chữa cháy bằng Sol-khí và cụm điều khiển khí nén phải được ký hiệu bằng một bộ phận nhận dạng hoặc số model và tên của nhà sản xuất hoặc nhãn hiệu riêng hoặc ký hiệu tương đương khác.
7.3 Khi một nhà sản xuất bình chữa cháy bằng Sol-khí, cụm điều khiển khí nén hoặc các bộ phận khác của hệ thống chữa cháy hoặc bình chữa cháy nhiều nhà máy, một nhãn hiệu phân biệt để xác định đó là sản phẩm của một nhà máy cụ thể sẽ được đánh dấu trên thiết bị hoặc thành phần đó.
7.4 Hướng dẫn vận hành, kiểm tra và bảo trì phải được ghi trên bình chữa cháy bằng Sol-khí và phải gồm ít nhất các thông tin sau:
a) Khối lượng hợp chất tạo Sol-khí có chứa trong bình chứa;
b) Ngày (năm, tháng) sản xuất của bình chữa cháy bằng Sol-khí;
c) Ngày bắt buộc thay thế bình chữa cháy bằng Sol-khí;
d) Phạm vi nhiệt độ làm việc;
e) Viện dẫn đến:
- Tiêu chuẩn về bình chữa cháy bằng Sol-khí; và
- Tài liệu hướng dẫn thiết kế, lắp đặt, vận hành và bảo trì của nhà sản xuất (được xác định bằng số bộ phận hoặc ngày) để có hướng dẫn chi tiết về cách sử dụng và bảo trì đúng cách;
f) Đối với các bình chữa cháy bằng Sol-khí không để thiết kế chữa đám cháy loại A, chỉ dẫn rõ ràng về mục đích sử dụng cụ thể.
g) Hướng dẫn kiểm tra cơ bản, với các nội dung sau:
- Đối với hệ thống (các) bình chữa cháy bằng Sol-khí, bình chữa cháy phải được kiểm tra định kỳ hàng tháng hoặc thường xuyên hơn khi có yêu cầu. Bình chữa cháy bằng Sol-khí phải được loại bỏ đúng cách sau khi sử dụng.
- Đối với bình chữa cháy bằng Sol-khí, bình phải được kiểm tra hàng tháng, hoặc định kỳ thường xuyên hơn khi có yêu cầu. Loại bỏ bình đúng cách sau khi sử dụng.
h) Nội dung sau đây hoặc nội dung tương đương:
“CẢNH BÁO: Việc phun chất chữa cháy có thể dẫn đến nguy cơ tiềm ẩn cho con người do bản chất tự nhiên của chất này. Tránh tiếp xúc không cần thiết. Không che, loại bỏ hoặc xóa nhãn này”.
i) Xác định các nội dung như sau:
- Nội dung tên sản phẩm như được xuất hiện trong Bảng dữ liệu an toàn của nhà sản xuất.
- Danh sách nhận dạng vật liệu nguy hiểm
- Thông tin nguy hiểm về chất chữa cháy phù hợp với Bảng Dữ liệu An toàn.
- Tên, địa chỉ gửi thư và số điện thoại của nhà sản xuất
7.5 Hướng dẫn vận hành, kiểm tra và bảo trì phải được ghi trên cụm điều khiển khí nén và ít nhất phải bao gồm các thông tin sau:
a) Loại khí của cụm điều khiển bằng khí nén được sử dụng;
b) Áp suất vận hành của thiết bị ở 21 °C;
c) Dải nhiệt độ làm việc và dải áp suất làm việc tương ứng;
d) Áp suất thử tại nhà máy của bình khí nén của cụm điều khiển khí nén hoặc chai chứa khí;
Ngoại lệ: Áp suất thử tại nhà máy được ghi trên bình áp suất hoặc chai chứa khí cũng tuân theo yêu cầu này. Bảng tên phải đề cập đến áp suất thử tại nhà máy trên bình áp suất hoặc chai chứa khí.
e) Viện dẫn đến:
- Tài liệu hướng dẫn thiết kế, lắp đặt, vận hành và bảo trì của nhà sản xuất (được xác định bằng số bộ phận hoặc ngày) để có hướng dẫn chi tiết về cách sử dụng và bảo trì chính xác.
- Hướng dẫn bảo trì cơ bản, bao gồm các văn bản sau hoặc văn bản tương đương:
Đối với cụm điều khiển khí nén loại áp suất nén trực tiếp: Ít nhất nửa năm một lần, lượng và áp suất khí của cụm điều khiển bằng khí nén phải được kiểm tra. Chai chứa khí phải được nạp đầy lại hoặc thay thế khi nó bị hao hụt thể tích trên 5 % hoặc mất áp suất (đã điều chỉnh theo nhiệt độ) trên 10 %.
8 Tài liệu hướng dẫn
8.1 Tài liệu hướng dẫn cho người sử dụng
Mỗi bình chữa cháy bằng Sol-khí phải được cung cấp một tài liệu hướng dẫn cho người sử dụng. Tài liệu phải có các hướng dẫn cần thiết, lời cảnh báo và các vấn đề phải chú ý đối với việc lắp đặt, vận hành và kiểm tra.
Tài liệu hướng dẫn cho người sử dụng phải bao gồm tiểu thiểu các thông tin sau:
a) Chỉ ra rõ ràng đây không phải là tài liệu hướng dẫn thiết kế, lắp đặt, vận hành và bảo dưỡng chi tiết.
b) Hướng dẫn việc liên hệ với nhà sản xuất để có tài liệu thiết kế, lắp đặt, vận hành và bảo dưỡng chi tiết.
c) Chỉ rõ rằng việc kiểm tra định kỳ được thực hiện bởi người có chuyên môn.
d) Thông tin liên quan đến các yêu cầu cần thiết để duy trì hoạt động bình thường của hệ thống (các) bình chữa cháy hoặc bình chữa cháy (nếu có) trước và sau đám cháy.
e) Đối với các hệ thống (các) bình chữa cháy, yêu cầu không được thực hiện thay đổi đối với hệ thống (các) bình chữa cháy mà không tham khảo ý kiến của đơn vị thiết kế, tham khảo hướng dẫn thiết kế chi tiết, lắp đặt, vận hành và bảo trì. Chỉ dẫn phải bao gồm các nội dung sau hoặc nội dung tương đương: “Hệ thống này gồm các bộ phận đã được thử nghiệm trong giới hạn quy định có trong tài liệu hướng dẫn chi tiết về thiết kế, lắp đặt, vận hành và bảo trì. Đơn vị thiết kế phải được tham khảo ý kiến khi có những thay đổi đối với hệ thống hoặc khu vực bảo vệ. Sau khi hệ thống phun xả chất chữa cháy, cần tham khảo ý kiến của đơn vị thiết kế hoặc đơn vị thi công có chuyên môn.”
f) Đối với bình chữa cháy bằng Sol-khí, yêu cầu không được thực hiện thay đổi đối với bình chữa cháy bằng Sol-khí mà không tham khảo ý kiến của đơn vị thiết kế, tham khảo hướng dẫn thiết kế chi tiết, lắp đặt, vận hành và bảo trì. Chỉ dẫn phải bao gồm các nội dung sau hoặc nội dung tương đương: “Bình chữa cháy bằng Sol-khí đã được thử nghiệm trong giới hạn quy định có trong tài liệu hướng dẫn chi tiết về thiết kế, lắp đặt, vận hành và bảo trì. Đơn vị thiết kế phải được tham khảo ý kiến khi có những thay đổi đối với thiết bị hoặc khu vực bảo vệ. Sau khi chất chữa cháy được phun xả, cần tham khảo ý kiến của đơn vị thiết kế hoặc đơn vị thi công có chuyên môn".
8.2 Tài liệu hướng dẫn thiết kế, lắp đặt, vận hành và bảo trì
Tài liệu hướng dẫn thiết kế, lắp đặt, vận hành và bảo trì phải bao gồm ít nhất các thông tin sau:
a) Mô tả tất cả các phiên bản của từng thiết bị, bao gồm các giới hạn đối các thông số kỹ thuật của từng phiên bản;
b) Giới hạn phạm vi nhiệt độ làm việc;
c) Khối lượng của hợp chất tạo Sol-khí cho mỗi kích thước bình chữa cháy bằng Sol-khí;
d) Thời gian phun xả cho mỗi kích thước bình chữa cháy bằng Sol-khí;
e) Công năng của gian phòng, khu vực, loại thiết bị cần được bảo vệ;
f) Thông tin về Bảng Dữ liệu An toàn và các hướng dẫn an toàn cần thiết;
g) Mô tả quy trình thiết kế và bố trí điển hình với các giới hạn cụ thể và các khuyến nghị để lắp đặt đúng quy trình và đạt hiệu quả bảo vệ tối đa;
h) Thông tin cụ thể về vị trí đặt bình chữa cháy bằng Sol-khí trong khu vực bảo vệ và hướng của (các) lỗ phun;
i) Khoảng cách an toàn tối thiểu giữa các lỗ phun của bình chữa cháy bằng Sol-khí và vị trí có người;
k) Khoảng cách an toàn tối thiểu giữa các lỗ phun của bình chữa cháy bằng Sol-khí và các vật liệu dễ cháy;
l) Khoảng cách an toàn tối thiểu giữa bình chữa cháy bằng Sol-khí và vị trí có người;
m) Khoảng cách an toàn tối thiểu giữa bình chữa cháy bằng Sol-khí và vật liệu dễ cháy;
n) Thông tin về việc kiểm tra sau khi lắp đặt;
o) Mô tả các yêu cầu đối với bảo trì tất cả các thiết bị;
p) Danh sách mã bộ phận cho tất cả các bộ phận của phương tiện khi thay thế;
q) Giới hạn về tuổi thọ đối với việc thay thế bắt buộc các bình chữa cháy bằng Sol-khí;
r) Tên của nhà sản xuất hoặc nhãn hiệu riêng, hoặc tương đương;
s) Ngày và số phát hành tài liệu hướng dẫn trên mỗi trang.
Thư mục tài liệu tham khảo
[1] TCVN 13333 : 2021, Hệ thống chữa cháy bằng Sol-khí- Yêu cầu về thiết kế, lắp đặt, kiểm tra và bảo dưỡng.
[2] ANSI/CAN/UL/ULC 2775 : 2022A, Standard for Fixed Condensed Aerosol Extingushing System Units.
[3] ISO 15779 : 2011, Condensed aerosol fire extinguishing systems- Requirements and test methods for components and system design, installation and maintenance - General requirements.
Bạn chưa Đăng nhập thành viên.
Đây là tiện ích dành cho tài khoản thành viên. Vui lòng Đăng nhập để xem chi tiết. Nếu chưa có tài khoản, vui lòng Đăng ký tại đây!