- Tổng quan
- Nội dung
- VB gốc
- Tiếng Anh
- Hiệu lực
- VB liên quan
- Lược đồ
-
Nội dung hợp nhất
Tính năng này chỉ có tại LuatVietnam.vn. Nội dung hợp nhất tổng hợp lại tất cả các quy định còn hiệu lực của văn bản gốc và các văn bản sửa đổi, bổ sung, đính chính... trên một trang. Việc hợp nhất văn bản gốc và những văn bản, Thông tư, Nghị định hướng dẫn khác không làm thay đổi thứ tự điều khoản, nội dung.
Khách hàng chỉ cần xem Nội dung hợp nhất là có thể nắm bắt toàn bộ quy định hiện hành đang áp dụng, cho dù văn bản gốc đã qua nhiều lần chỉnh sửa, bổ sung.
- Tải về
Thông tư 11/2020/TT-BTNMT quy định kỹ thuật xây dựng mạng lưới trọng lực quốc gia
| Cơ quan ban hành: | Bộ Tài nguyên và Môi trường |
Số công báo:
Số công báo là mã số ấn phẩm được đăng chính thức trên ấn phẩm thông tin của Nhà nước. Mã số này do Chính phủ thống nhất quản lý.
|
Đang cập nhật |
| Số hiệu: | 11/2020/TT-BTNMT | Ngày đăng công báo: | Đang cập nhật |
| Loại văn bản: | Thông tư | Người ký: | Nguyễn Thị Phương Hoa |
|
Ngày ban hành:
Ngày ban hành là ngày, tháng, năm văn bản được thông qua hoặc ký ban hành.
|
30/09/2020 |
Ngày hết hiệu lực:
Ngày hết hiệu lực là ngày, tháng, năm văn bản chính thức không còn hiệu lực (áp dụng).
|
Đang cập nhật |
|
Áp dụng:
Ngày áp dụng là ngày, tháng, năm văn bản chính thức có hiệu lực (áp dụng).
|
Đã biết
|
Tình trạng hiệu lực:
Cho biết trạng thái hiệu lực của văn bản đang tra cứu: Chưa áp dụng, Còn hiệu lực, Hết hiệu lực, Hết hiệu lực 1 phần; Đã sửa đổi, Đính chính hay Không còn phù hợp,...
|
Đã biết
|
| Lĩnh vực: | Tài nguyên-Môi trường |
TÓM TẮT THÔNG TƯ 11/2020/TT-BTNMT
Cụ thể, điểm gốc trọng lực quốc gia được đặt tại địa chỉ số 108, phố Chùa Láng, phường Láng Thượng, quận Đống Đa, Thành phố Hà Nội. Mốc trọng lực cơ sở được đặt trong các nhà xây kiên cố. Phòng đặt mốc có diện tích hữu ích tối thiểu 8 m2, khoảng cách từ mặt trên của mốc tới trần nhà phải lớn hơn 3 m đồng thời đảm bảo các điều kiện kỹ thuật trong quá trình đo trọng lực. Nhà đặt mốc phải được xây dựng ổn định trên 5 năm tính đến thời điểm chôn mốc trọng lực.
Bên cạnh đó, hệ thống kiểm định phương tiện đo trọng lực tuyệt đối bao gồm: Mốc kiểm định được thiết kế theo quy cách mốc cơ sở gồm 02 mốc cách nhau ≤ 1m được đặt trong phòng kiểm định, 02 mốc có chênh cao ≤ 1m; Thiết bị kiểm định bộ phận quang học của phương tiện đo trọng lực; Thiết bị kiểm định sự ổn định của các bộ phận điện tử của phương tiện đo trọng lực;…
Đồng thời, mỗi đường đáy trọng lực có từ 6 đến 8 mốc, khoảng cách giữa các mốc từ 2 - 5 km. Các mốc của đường đáy trọng lực phải được bố trí ở khu vực địa hình có độ chênh gia tốc lực trọng trường giữa các mốc liền kề từ 20 mGal đến 50 mGal nhằm đảm bảo kiểm định đủ dải đo của phương tiện đo, có điều kiện địa chất ổn định, không có nguy cơ tác động do con người và tự nhiên, nhằm sử dụng lâu dài.
Thông tư này có hiệu lực từ ngày 30/11/2020.
Xem chi tiết Thông tư 11/2020/TT-BTNMT có hiệu lực kể từ ngày 30/11/2020
Tải Thông tư 11/2020/TT-BTNMT
| BỘ TÀI NGUYÊN VÀ MÔI TRƯỜNG ___________ Số: 11/2020/TT-BTNMT | CỘNG HÒA XÃ HỘI CHỦ NGHĨA VIỆT NAM Độc lập - Tự do - Hạnh phúc ________________________ Hà Nội, ngày 30 tháng 9 năm 2020 |
THÔNG TƯ
Quy định kỹ thuật xây dựng mạng lưới trọng lực quốc gia
_______________
Căn cứ Luật Đo đạc và Bản đồ ngày 14 tháng 6 năm 2018;
Căn cứ Nghị định số 27/2019/NĐ-CP ngày 13 tháng 3 năm 2019 của Chính phủ quy định chi tiết một số điều của Luật Đo đạc và bản đồ;
Căn cứ Nghị định số 36/2017/NĐ-CP ngày 04 tháng 4 năm 2017 của Chính phủ quy định chức năng, nhiệm vụ, quyền hạn và cơ cấu tổ chức của Bộ Tài nguyên và Môi trường;
Theo đề nghị của Cục trưởng Cục Đo đạc, Bản đồ và Thông tin địa lý Việt Nam, Viện trưởng Viện Khoa học Đo đạc và Bản đồ, Vụ trưởng Vụ Khoa học và Công nghệ và Vụ trưởng Vụ Pháp chế;
Bộ trưởng Bộ Tài nguyên và Môi trường ban hành Thông tư quy định kỹ thuật xây dựng mạng lưới trọng lực quốc gia.
Chương I QUY ĐỊNH CHUNG
Điều 1. Phạm vi điều chỉnh
Thông tư này quy định kỹ thuật xây dựng mạng lưới trọng lực quốc gia trên lãnh thổ nước Cộng hòa xã hội chủ nghĩa Việt Nam.
Điều 2. Đối tượng áp dụng
Thông tư này áp dụng đối với cơ quan nhà nước, tổ chức và cá nhân có liên quan đến việc xây dựng mạng lưới trọng lực quốc gia.
Điều 3. Giải thích từ ngữ
Trong Thông tư này, các từ ngữ dưới đây được hiểu như sau:
1. Gia tốc lực trọng trường là gia tốc do lực hấp dẫn của trái đất tác động lên một vật trên bề mặt trái đất, đơn vị đo là miliGal (mGal) tương ứng 10-5 m/s2.
2. Đo trọng lực tuyệt đối là phương pháp đo sử dụng phương tiện đo trọng lực tuyệt đối theo nguyên lý con lắc điện tử hoặc buồng rơi chân không để xác định gia tốc lực trọng trường tại một điểm bất kỳ trên bề mặt trái đất.
3. Đo trọng lực tương đối là phương pháp đo sử dụng phương tiện đo trọng lực tương đối theo nguyên lý lò xo để xác định hiệu gia tốc lực trọng trường theo thời gian giữa hai điểm đo.
4. Hiệu gia tốc lực trọng trường là chênh lệch giá trị gia tốc lực trọng trường giữa hai điểm đo.
5. Đường đáy trọng lực là một tuyến các mốc trọng lực đã được xác định giá trị gia tốc lực trọng trường và hiệu gia tốc lực trọng trường giữa các mốc liền kề, phục vụ cho kiểm định và hiệu chuẩn các phương tiện đo trọng lực tương đối.
6. Gradient đứng là tỷ lệ biến thiên gia tốc lực trọng trường theo đơn vị chiều dài tính theo phương thẳng đứng.
7. Hằng số “C” của phương tiện đo trọng lực tương đối là tỷ lệ vạch chia số đo trên phương tiện đo với giá trị gia tốc lực trọng trường.
8. Dịch chuyển điểm “0” của phương tiện đo trọng lực tương đối là sự thay đổi số đọc của phương tiện đo trọng lực tại một vị trí đo theo thời gian do sự biến dạng của hệ thống đàn hồi, phương tiện đo trọng lực không tỷ lệ thuận với giá trị gia tốc lực trọng trường.
9. “SET đo” là một chu kỳ đo của phương tiện đo trọng lực tuyệt đối để tạo ra một giá trị gia tốc lực trọng trường đo được tại một điểm.
Điều 4. Quy định chung về mạng lưới trọng lực quốc gia
1. Trong mạng lưới trọng lực quốc gia, hệ thống các điểm trọng lực cơ sở được đo bằng phương pháp trọng lực tuyệt đối; mạng lưới các điểm trọng lực hạng I được đo bằng phương pháp trọng lực tương đối hoặc phương pháp trọng lực tuyệt đối; mạng lưới điểm trọng lực hạng II được đo bằng phương pháp trọng lực tương đối.
2. Mạng lưới trọng lực quốc gia được thiết lập và tính toán trong hệ trọng lực quốc gia phù hợp với hệ quy chiếu tọa độ, hệ tọa độ, hệ độ cao quốc gia.
3. Độ chính xác giá trị gia tốc lực trọng trường của mạng lưới trọng lực quốc gia được quy định như sau:
a) Sai số trung phương của điểm gốc trọng lực quốc gia ≤ ± 0,005 mGal;
b) Sai số trung phương của điểm trọng lực cơ sở ≤ ± 0,010 mGal;
c) Sai số trung phương của điểm trọng lực hạng I ≤ ± 0,030 mGal;
d) Sai số trung phương của điểm trọng lực hạng II ≤ ± 0,050 mGal.
4. Khi mốc trọng lực trong mạng lưới trọng lực quốc gia bị biến động do tai biến tự nhiên (động đất, sạt lở, sụt lún dất...) phải tiến hành đo đạc kiểm tra xác định lại gia tốc lực trọng trường của mốc trong khu vực bị biến động. Trường hợp có sự thay đổi vượt quá 2 lần giá trị quy định tại khoản 3 Điều này tương ứng với từng cấp hạng, phải tiến hành cập nhật giá trị mới.
5. Nguyên tắc đánh số hiệu điểm và đặt tên điểm:
a) Đánh số hiệu điểm theo số La Mã cho các điểm trọng lực cơ sở (I, II, III...). Đặt tên theo địa danh (tên thành phố, thị xã) cho điểm trọng lực cơ sở. Ví dụ: điểm VII (SA PA);
b) Đánh số hiệu điểm theo cấp hạng và số tự nhiên cho các điểm trọng lực hạng I, ví dụ I-1, I-2, I-3 ... Đặt tên theo địa danh (tên thành phố, thị xã, huyện lỵ) cho điểm trọng lực hạng I. Ví dụ: điểm I-21 (VŨNG TÀU);
c) Đánh số hiệu điểm theo cấp hạng và số tự nhiên cho các điểm trọng lực hạng II, ví dụ: II-1, II-2, II-3. Đặt tên theo địa danh (tên thị xã, thị trấn, thị tứ) cho điểm trọng lực hạng II. Ví dụ: điểm II-18 (XUÂN MAI);
d) Trường hợp khôi phục điểm bị mất, bị phá hủy số hiệu điểm được giữ nguyên như số hiệu điểm cũ, trường hợp chêm dày số hiệu điểm được đánh theo nguyên tắc là số tiếp theo của số hiệu điểm lớn nhất đang tồn tại ở thực địa tương ứng với cấp hạng của mạng lưới đó, tên điểm chêm dày được đặt theo nguyên tắc được quy định tại điểm a, b, c khoản 5 Điều này.
6. Phương tiện đo trọng lực phải được kiểm định, hiệu chuẩn theo quy định của pháp luật về đo lường mới được đưa vào đo mạng lưới trọng lực quốc gia.
7. Công tác kiểm tra, thẩm định, nghiệm thu chất lượng sản phẩm mạng lưới trọng lực quốc gia được thực hiện theo quy định tại Thông tư số 24/2018/TT-BTNMT ngày 15 tháng 11 năm 2018 của Bộ trưởng Bộ Tài nguyên và Môi trường quy định về kiểm tra, thẩm định, nghiệm thu chất lượng sản phẩm đo đạc và bản đồ.
8. Việc báo cáo thống kê mạng lưới trọng lực quốc gia gồm: điểm trọng lực cơ sở, điểm trọng lực hạng I, điểm trọng lực hạng II được thực hiện theo chế độ báo cáo quy định tại Thông tư số 20/2018/TT-BTNMT ngày 08 tháng 11 năm 2018 của Bộ trưởng Bộ Tài nguyên và Môi trường quy định chế độ báo cáo thống kê ngành tài nguyên và môi trường.
Chương II
THIẾT KẾ, CHỌN ĐIỂM TRỌNG LỰC, XÂY DỰNG MỐC TRỌNG LỰC
Điều 5. Điểm gốc trọng lực quốc gia
1. Điểm gốc trọng lực quốc gia được đặt tại địa chỉ số 108, phố Chùa Láng, phường Láng Thượng, quận Đống Đa, thành phố Hà Nội.
2. Mốc của điểm gốc trọng lực quốc gia được thiết kế, xây dựng trong nhà, kiên cố, đảm bảo các yêu cầu kỹ thuật trong quá trình đo trọng lực tuyệt đối, loại bỏ ảnh hưởng của các tác nhân bên ngoài như: nhiệt độ, độ rung, điện từ trường.
3. Điểm gốc trọng lực quốc gia được sử dụng để phát triển mạng lưới trọng lực quốc gia và kiểm định, hiệu chuẩn phương tiện đo trọng lực tuyệt đối.
Điều 6. Thiết kế, chọn điểm trọng lực
1. Thiết kế mạng lưới trọng lực quốc gia
a) Các điểm trong mạng lưới trọng lực cơ sở phải phân bố tương đối đều trên phạm vi toàn quốc, đảm bảo cho việc phát triển các mạng lưới trọng lực cấp thấp hơn;
| TT | Chỉ tiêu kỹ thuật | Điểm trọng lực cơ sở | Điểm trọng lực hạng I | Điểm điểm trọng lực hạng II |
| 1 | Khoảng cách giữa các điểm trọng lực | 400 - 750 km/điểm | 80 - 150 km/điểm | 40 - 80 km/điểm |
| 2 | Vị trí chôn mốc trọng lực cần phải tránh xa |
|
|
|
| Các nguồn thải; nhiễu công nghiệp; hầm mỏ đang khai thác, đường sắt, các trường điện từ mạnh; bờ biển có mức thuỷ triều cao | ≥ 1000 m | ≥ 300 m | ≥ 100 m | |
| Hồ, đầm lớn và các con sông lớn | ≥ 500 m | ≥ 200 m | ≥ 100 m | |
|
| Các đại lộ, đường phố có nhiều phương tiện vận tải; các đường dây tải điện cao thế, các trạm biến thế, tháp nước đứng riêng rẽ, cây lớn, các khu vực có biến động như cồn cát, hồ chứa nước, công trình xây dựng, các lỗ khoan, hút để khai thác nước ngầm, dầu, khí... | ≥ 200 m | ≥ 100 m | ≥ 50 m |
2. Chọn điểm trọng lực
a) Mốc trọng lực phải được đặt tại khu vực có điều kiện địa chất - thổ nhưỡng ổn định, chắc chắn, không có nguy cơ tác động do con người và tự nhiên gây ra, đảm bảo việc xác định gia tốc lực trọng trường với độ chính xác cao và sử dụng lâu dài;
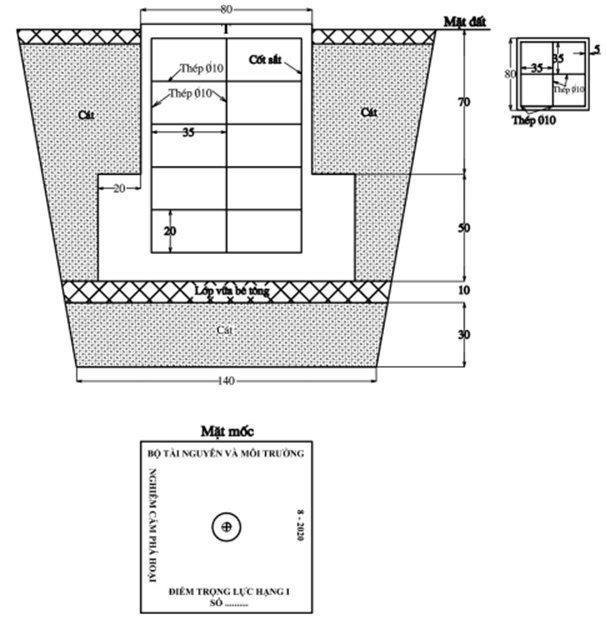
b) Mốc trọng lực cơ sở được đặt trong các nhà xây kiên cố. Phòng đặt mốc có diện tích hữu ích tối thiểu 8 m2, khoảng cách từ mặt trên của mốc tới trần nhà phải lớn hơn 3 m đồng thời đảm bảo các điều kiện kỹ thuật trong quá trình đo trọng lực. Nhà đặt mốc phải được xây dựng ổn định trên 5 năm tính đến thời điểm chôn mốc trọng lực. Trường hợp đặc biệt không chọn được điểm trọng lực trong các nhà kiên cố được phép đặt ở ngoài trời nhưng phải đảm bảo các điều kiện quy định tại điểm a khoản 2 Điều này. Các mốc trọng lực hạng I, hạng II được đặt ở ngoài trời.
Điều 7. Xây dựng mốc trọng lực
1. Xây dựng mốc trọng lực.
a) Mốc trọng lực được làm bằng bê tông cốt thép, mác M25 (39TCVN 6025:1995) trở lên, mặt mốc có độ cao tối thiểu ngang mặt đất có gắn dấu mốc bằng đồng;
b) Quy cách mốc trọng lực cơ sở được quy định tại Mẫu số 01 ban hành kèm theo Thông tư này. Quy cách mốc, tường vây trọng lực hạng I được quy định tại Mẫu số 02a, Mẫu số 02b ban hành kèm theo Thông tư này. Quy cách mốc, tường vây trọng lực hạng II được quy định tại Mẫu số 03a, Mẫu số 03b ban hành kèm theo Thông tư này.
2. Việc xây dựng, bàn giao mốc trọng lực được thực hiện theo quy định tại khoản 2, khoản 3 Điều 12 Nghị định số 27/2019/NĐ-CP ngày 13 tháng 3 năm 2019 của Chính phủ quy định chi tiết một số điều của Luật Đo đạc và bản đồ.
Chương III ĐO ĐẠC ĐIỂM TRỌNG LỰC
Điều 8. Phương tiện đo trọng lực
1. Phương tiện đo trọng lực là các phương tiện đo chuyên dùng để xác định gia tốc lực trọng trường. Phương tiện đo mạng lưới trọng lực quốc gia gồm 3 nhóm: nhóm đo gia tốc lực trọng trường theo phương pháp trọng lực tuyệt đối, nhóm đo gia tốc lực trọng trường theo phương pháp trọng lực tương đối và nhóm đo gradient đứng gia tốc lực trọng trường.
2. Phương tiện đo gia tốc lực trọng trường theo phương pháp trọng lực tuyệt đối là phương tiện đo trực tiếp giá trị gia tốc lực trọng trường, gồm 2 nhóm: nhóm có độ chính xác ≤ ± 0,005 mGal phục vụ cho việc xây dựng mạng lưới trọng lực cơ sở; nhóm có độ chính xác ≤ ± 0,015 mGal phục vụ cho việc xây dựng mạng lưới trọng lực hạng I.
3. Phương tiện đo gia tốc lực trọng trường theo phương pháp trọng lực tương đối là phương tiện đo hiệu gia tốc lực trọng trường giữa hai điểm, gồm 2 nhóm: nhóm có độ chính xác xác định hiệu gia tốc lực trọng trường ≤ ± 0,020 mGal phục vụ cho việc xây dựng mạng lưới trọng lực hạng I; nhóm có độ chính xác ≤ ± 0,035 mGal phục vụ cho việc xây dựng mạng lưới trọng lực hạng II.
4. Phương tiện đo gradient đứng gia tốc lực trọng trường là phương tiện đo xác định trực tiếp giá trị gradient đứng tại vị trí đo. Phương tiện đo gradient đứng có các cảm biến gia tốc theo cặp. Trong mỗi cặp, các cảm biến được đặt cách nhau một khoảng cách cụ thể và hướng xác định để thu được độ chênh gia tốc lực trọng trường theo hướng đó và hiển thị ra kết quả là gradient.
Điều 9. Đo gradient đứng
1. Việc đo gradient đứng tại mốc trọng lực được áp dụng trong trường hợp đo trọng lực bằng phương pháp trọng lực tuyệt đối. Gradient trọng lực đứng Δγ tại mốc trọng lực được xác định bằng việc đo hiệu gia tốc lực trọng trường giữa mặt bê tông của mốc và các điểm theo phương thẳng đứng ở độ cao 0,25 m, 0,50 m, 0,75 m và 1,0 m. Vị trí đo tại dấu mốc và 4 điểm ở bốn góc trên mặt bê tông của mốc. Biểu tổng hợp số liệu đo và tính gradient đứng theo Mẫu số 09 ban hành kèm theo Thông tư này.
2. Giá trị gradient đứng tại điểm đo được tính theo công thức (1).

Trong đó: δg là hiệu gia tốc lực trọng trường giữa 2 vị trí đo theo phương thẳng đứng; δH là khoảng cách giữa hai vị trí đo theo phương thẳng đứng.
3. Độ chính xác xác định gradient đứng tại mốc của điểm gốc trọng lực quốc gia phải ≤ ± 0,003 mGal.
4. Độ chính xác xác định gradient đứng tại các mốc trọng lực cơ sở phải ≤ ± 0,005 mGal.
5. Độ chính xác xác định gradient đứng tại các mốc trọng lực hạng I phải ≤ ± 0,010 mGal.
Điều 10. Xác định tọa độ, độ cao cho mạng lưới trọng lực quốc gia
1. Xác định tọa độ.
a) Các điểm trong mạng lưới trọng lực quốc gia được xác định tọa độ với độ chính xác tương đương điểm lưới cơ sở cấp 1 bằng công nghệ GNSS. Quy trình đo nối, tính toán được thực hiện theo quy định tại Điều 10, Điều 11 và Điều 12 của Thông tư số 68/2015/TT-BTNMT ngày 22 tháng 12 năm 2015 của Bộ trưởng Bộ Tài nguyên và Môi trường Quy định kỹ thuật đo đạc trực tiếp địa hình phục vụ thành lập bản đồ địa hình và cơ sở dữ liệu nền địa lý tỷ lệ 1:500, 1:1.000, 1:2.000, 1:5.000;
b) Trường hợp các điểm trọng lực được xây dựng trong nhà không thể xác định trực tiếp được tọa độ bằng công nghệ GNSS thì được phép đo nối bằng phương tiện đo là toàn đạc điện tử nhưng phải được nêu rõ trong thiết kế kỹ thuật - dự toán.
2. Xác định độ cao.
a) Đối với các điểm trọng lực cơ sở: việc thiết kế, đo nối, tính toán được thực hiện theo quy trình đo độ cao hạng II. Các điểm độ cao quốc gia làm điểm khởi tính là các điểm độ cao hạng I, hạng II. Sai số khép giữa đo đi - đo về giữa hai điểm hạng cao không vượt quá ± 4√L mm đối với vùng đồng bằng và ± 5 √L mm đối với vùng núi (L là chiều dài tuyến đo tính bằng km);
b) Đối với điểm trọng lực hạng I, hạng II: việc thiết kế, đo nối, tính toán được thực hiện theo quy trình đo độ cao hạng III. Các điểm độ cao quốc gia làm điểm khởi tính là các điểm độ cao hạng I, hạng II, hạng III. Sai số khép giữa đo đi - đo về giữa hai điểm hạng cao không vượt quá ± 10√L mm đối với vùng đồng bằng và ± 12√L mm đối với vùng núi (L là chiều dài tuyến đo tính bằng km).
Điều 11. Xác định gia tốc lực trọng trường tại điểm gốc trọng lực quốc gia, điểm trọng lực cơ sở
1. Công tác chuẩn bị.
a) Chuẩn bị các phương tiện đo trọng lực tuyệt đối, phương tiện đo gradient (hoặc phương tiện đo trọng lực tương đối phục vụ đo gradient) đã được kiểm định và hiệu chuẩn đạt yêu cầu theo quy định tại Điều 16 của Thông tư này. Phương tiện đo trọng lực phải được vận chuyển bằng ô tô chuyên dùng, tránh rung lắc, va đập ảnh hưởng đến phương tiện đo trọng lực đã kiểm định và hiệu chuẩn;
b) Chuẩn bị phòng (hoặc buồng di động) đặt phương tiện đo trọng lực đảm bảo phải kín; chuẩn bị đầy đủ ắc quy, máy hút ẩm, nhiệt kế, điều hòa nhiệt độ (để ổn định nhiệt độ, độ ẩm, áp suất, nguồn điện trong quá trình đo);
c) Chuẩn bị máy tính, thiết bị sao lưu dữ liệu, sổ đo theo Mẫu số 04a ban hành kèm theo Thông tư này;
d) Xác định thời điểm đo đảm bảo các điều kiện ngoại cảnh tốt nhất.
2. Đo gradient đứng theo quy định tại Điều 9 của Thông tư này.
3. Đo trọng lực tuyệt đối tại điểm gốc trọng lực quốc gia:
a) Lắp đặt phương tiện đo trọng lực tuyệt đối, định tâm, cân bằng máy, kiểm tra tính đồng bộ của các phương tiện đo;
b) Xác định chiều cao của phương tiện đo trọng lực tuyệt đối với độ chính xác đến 1mm;
c) Nhập giá trị tọa độ, độ cao vào phương tiện đo trọng lực tuyệt đối phục vụ việc tính số hiệu chỉnh;
d) Đo trọng lực tuyệt đối theo các SET đo. Thời gian đo tối thiểu một ca đo là 72 giờ tương ứng với 72 SET đo, mỗi SET đo thu được một giá trị gia tốc lực trọng trường. Kết thúc mỗi ca đo phải kiểm tra kết quả đạt được ngay tại điểm đo, trường hợp sai số trung phương của các giá trị gia tốc lực trọng trường > ± 0,005 mGal thì phải tiến hành đo lại ca đo đó;
đ) Trong quá trình đo trọng lực tuyệt đối, phải xác định nhiệt độ, áp suất tại thời điểm bắt đầu và thời điểm kết thúc đo; các thông tin về người đo, ca đo, thời gian đo, các điều kiện thời tiết phải được ghi chép đầy đủ vào sổ đo theo Mẫu số 04a ban hành kèm theo Thông tư này.
4. Đo trọng lực tuyệt đối tại điểm trọng lực cơ sở.
Quy trình đo gia tốc lực trọng trường tại điểm trọng lực cơ sở được thực hiện như đối với quy trình đo gia tốc lực trọng trường tại điểm gốc trọng lực quốc gia quy định tại khoản 3 Điều này. Trong đó thời gian đo tối thiểu một ca đo là 24 giờ tương ứng với 24 SET đo, trường hợp sai số trung phương của các giá trị gia tốc lực trọng trường > ± 0,010 mGal thì phải tiến hành đo lại ca đo đó.
5. Kết thúc ca đo phải tiến hành sao lưu kết quả đo vào thiết bị lưu trữ dữ liệu kèm theo sổ đo phục vụ việc tính toán và giao nộp thành quả.
Điều 12. Xác định gia tốc lực trọng trường tại điểm trọng lực hạng I, hạng II
1. Việc đo gia tốc lực trọng trường tại điểm trọng lực hạng I bằng phương pháp tuyệt đối quy trình đo được thực hiện như đối với việc đo gia tốc lực trọng trường tại điểm trọng lực cơ sở được quy định tại Điều 11 của Thông tư này. Trong đó thời gian đo tối thiểu một ca đo là 12 giờ tương ứng với 12 SET đo, trường hợp sai số trung phương của các giá trị gia tốc lực trọng trường > ± 0,03 mGal thì phải tiến hành đo lại ca đo đó.
2. Việc xác định gia tốc lực trọng trường cho điểm trọng lực hạng I, hạng II bằng phương pháp đo tương đối được thực hiện như sau:
b) Công tác chuẩn bị: phương tiện đo trọng lực tương đối đã được kiểm định, hiệu chuẩn đạt yêu cầu; máy tính, thiết bị lưu trữ dữ liệu, sổ đo theo Mẫu số 04b ban hành kèm theo Thông tư này và các thiết bị phụ trợ khác kèm theo;
c) Xác định tuyến đo theo nguyên tắc đảm bảo thời gian di chuyển giữa các điểm trên tuyến đo ngắn nhất, vận chuyển phương tiện đo an toàn, ổn định;
d) Việc xác định hiệu gia tốc lực trọng trường giữa hai mốc trọng lực liền kề A - B được thực hiện theo quy trình sau:
Tại mốc A đặt phương tiện đo trọng lực tương đối, cân bằng và tiến hành đọc số 3 lần, tính giá trị trung bình. Di chuyển phương tiện đo đến mốc B thao tác tương tự như tại mốc A. Sau đó quay lại mốc A để đo và kết thúc một chuyến đo. Dựa vào kết quả đo xác định được hiệu gia tốc lực trọng trường cạnh A - B.
Thực hiện 5 chuyến đo, xác định được 5 giá trị hiệu gia tốc lực trọng trường. Sai số trung phương các hiệu gia tốc lực trọng trường nhận được từ 5 chuyến đo đối với cạnh hạng I phải ≤ ± 0,020 mGal và ≤ ± 0,035 mGal đối với cạnh hạng II.
d) Được phép sử dụng đồng thời 5 phương tiện đo trọng lực tương đối có độ chính xác đáp ứng yêu cầu quy định tại khoản 3 Điều 8 của Thông tư này để rút ngắn thời gian đo đạc;
đ) Trong một chuyến đo có thể thực hiện theo theo quy trình A - B - A như trên hoặc A - B - C ... C - B - A, nhưng phải tiến hành liên tục, không gián đoạn và thời gian chuyến đo phải nằm trong khoảng dịch chuyển tuyến tính điểm “0” của phương tiện đo;
e) Trong quá trình đo, các thông tin về người đo, ca đo, thời gian đo, các điều kiện thời tiết phải được ghi chép đầy đủ vào nhật ký đo;
g) Kết thúc chuyến đo phải tiến hành sao lưu kết quả đo vào thiết bị lưu trữ dữ liệu kèm theo nhật ký đo phục vụ việc tính toán và giao nộp thành quả.
Chương IV
TÍNH TOÁN, XỬ LÝ SỐ LIỆU ĐO TRỌNG LỰC
Điều 13. Tính toán, bình sai mạng lưới trọng lực quốc gia
1. Tính toán giá trị gia tốc lực trọng trường của điểm gốc trọng lực quốc gia, điểm trọng lực cơ sở và điểm trọng lực hạng I khi đo bằng phương pháp tuyệt đối.
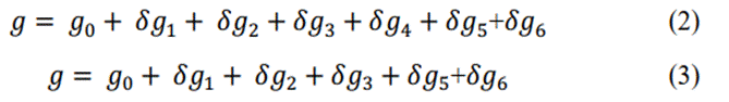
b) Tính toán các số hiệu chỉnh: Số hiệu chỉnh do ảnh hưởng của áp suất khí quyển (δց1); số hiệu chỉnh do ảnh hưởng của triều trái đất (δց2); số hiệu chỉnh do ảnh hưởng của chuyển động cực trái đất (δց3); số hiệu chỉnh do ảnh hưởng thay đổi mực nước ngầm (δց4); số hiệu chỉnh do chuyển đổi giá trị trọng lực từ tâm phương tiện đo về mặt mốc (δց5); số hiệu chỉnh do ảnh hưởng của thủy triều (δց6), cụ thể được quy định tại Mẫu số 06 ban hành kèm theo Thông tư này;
c) Giá trị gia tốc lực trọng trường của điểm gốc trọng lực quốc gia được tính theo công thức (2) và giá trị gia tốc lực trọng trường của điểm trọng lực cơ sở, trọng lực hạng I khi đo bằng phương pháp trọng lực tuyệt đối được tính theo công thức (3):

Trong đó: ց0 là trị đo gia tốc lực trọng trường của phương tiện đo trọng lực tuyệt đối.
c) Tổng hợp kết quả tính toán giá trị gia tốc lực trọng trường đo bằng phương pháp tuyệt đối theo bảng 1, Mẫu số 07 ban hành kèm theo Thông tư này.
2. Tính toán hiệu gia tốc lực trọng trường của điểm trọng lực hạng I, hạng II khi đo bằng phương pháp trọng lực tương đối:
a) Chuyển số đọc của phương tiện đo trọng lực về đơn vị mGal theo công thức (4):
R'=r.C (4)
Trong đó:
R' là số đọc của phương tiện đo trọng lực tại điểm đo đã chuyển về mGal;
r là số đọc trên phương tiện đo trọng lực tại điểm đo;
C là hằng số của phương tiện đo trọng lực tương đối.
b) Tính số đo của phương tiện đo trọng lực tại điểm A theo công thức (5):
Trong đó: δg2 là số hiệu chỉnh do ảnh hưởng của triều trái đất tại điểm đo.
c) Tính các số hiệu chỉnh Honcasalo (δghoncasalo) của phương pháp đo tương đối được tính theo công thức (6):
![]()
Trong đó: BA, BB - là các vĩ độ địa lý tại điểm A và B; k=1,2.
d) Tính hiệu gia tốc lực trọng trường giữa hai điểm đo A và B khi đo theo đồ hình A - B - A hoặc A - B - C...C - B - A theo công thức (7):
![]()
Trong đó: RA, RB là số đo của phương tiện đo trọng lực tại điểm A và điểm B đã được chuyển về đơn vị mGal; δgxd là số hiệu chỉnh do sự dịch chuyển điểm “0” của phương tiện đo trọng lực, được xác định theo công thức (8):

Trong đó: RA1, RA2, là số đọc của phương tiện đo trọng lực lúc bắt đầu và lúc kết thúc tại điểm A vào thời điểm TA1,TA2; T là thời điểm đo tại điểm B.
Bảng tính hiệu gia tốc lực trọng trường giữa hai điểm đo A và B theo Mẫu số 05 ban hành kèm theo Thông tư này.
đ) Sau khi tính toán giá trị hiệu gia tốc lực trọng trường của các cạnh thì đưa vào bình sai mạng lưới. Mạng lưới trọng lực hạng I, hạng II khi đo bằng phương pháp tương đối phải được bình sai theo phương pháp bình phương tối thiểu dưới đây:
Sai số khép cho phép trong đa giác kín đối với lưới trọng lực hạng I được tính theo công thức (9):
![]()
Trong đó: n là tổng số cạnh trong đa giác kín.
Sai số trung phương xác định giá trị hiệu gia tốc lực trọng trường giữa 2 điểm của mạng lưới trọng lực hạng I ≤ ± 0,020 mGal đối với tổ hợp nhiều phương tiện đo.
Sai số khép cho phép trong đa giác kín đối với lưới trọng lực hạng II được tính theo công thức (10):
Trong đó: n là tổng số cạnh trong đa giác kín.
Sai số trung phương xác định giá trị hiệu gia tốc lực trọng trường giữa 2 điểm của mạng lưới trọng lực hạng II ≤ ± 0,040 mGal đối với tổ hợp nhiều phương tiện đo.
e) Tổng hợp kết quả tính toán đo bằng phương pháp tương đối theo bảng 2a và 2b, Mẫu số 07 ban hành kèm theo Thông tư này.
Chương V
KIỂM ĐỊNH VÀ HIỆU CHUẨN PHƯƠNG TIỆN ĐO TRỌNG LỰC
Điều 14. Hệ thống kiểm định phương tiện đo trọng lực
1. Hệ thống kiểm định phương tiện đo trọng lực tuyệt đối bao gồm:
a) Mốc kiểm định được thiết kế theo quy cách mốc cơ sở gồm 02 mốc cách nhau ≤1m được đặt trong phòng kiểm định, 02 mốc có chênh cao ≤ 1m;
b) Thiết bị kiểm định bộ phận quang học của phương tiện đo trọng lực;
c) Thiết bị kiểm định sự ổn định của các bộ phận điện tử của phương tiện đo trọng lực;
d) Phương tiện đo nhiệt độ, áp suất, độ ẩm.
2. Hệ thống kiểm định phương tiện đo trọng lực tương đối bao gồm:
a) Mốc trọng lực tại phòng kiểm định phục vụ kiểm định dịch chuyển điểm “0” của phương tiện đo trọng lực tương đối ở trạng thái tĩnh;
b) Đường đáy trọng lực phục vụ kiểm định hằng số “C” và dịch chuyển điểm “0” của phương tiện đo trọng lực tương đối ở trạng thái động.
Điều 15. Đường đáy trọng lực
1. Mỗi đường đáy trọng lực có từ 6 đến 8 mốc, khoảng cách giữa các mốc từ 2 - 5 km. Các mốc của đường đáy trọng lực phải được bố trí ở khu vực địa hình có độ chênh gia tốc lực trọng trường giữa các mốc liền kề từ 20 mGal đến 50 mGal nhằm đảm bảo kiểm định đủ dải đo của phương tiện đo, có điều kiện địa chất ổn định, không có nguy cơ tác động do con người và tự nhiên, nhằm sử dụng lâu dài.
2. Quy cách, kích thước mốc trọng lực đường đáy được xây dựng ở ngoài trời tương tự như mốc trọng lực cơ sở.
3. Mốc trọng lực đường đáy được đo bằng phương pháp trọng lực tương đối. Độ chính xác xác định giá trị gia tốc lực trọng trường của mốc đường đáy phải ≤ ± 0,010 mGal.
4. Các mốc trọng lực đường đáy được xác định tọa độ, độ cao như mốc trọng lực cơ sở.
Điều 16. Kiểm định và hiệu chuẩn phương tiện đo trọng lực
1. Kiểm định phương tiện đo trọng lực tuyệt đối bao gồm các nội dung sau:
a) Kiểm tra mức độ đầy đủ của các phương tiện đo trọng lực, các thiết bị phụ trợ kèm theo bao gồm: bộ điều khiển, giá đỡ buồng rơi, giá đỡ lò xo, buồng rơi, buồng lò xo, bộ phát tia laser, bơm ion, máy đo giao thoa, máy tính xách tay và phần mềm, dây cáp nối;
b) Kiểm tra độ cân bằng của phương tiện đo trọng lực thông qua bọt thủy của buồng rơi và buồng lò xo;
c) Kiểm tra và điều chỉnh điện áp của nguồn phát tia laser;
d) Kiểm tra cường độ tia laser phát ra, sự ổn định của đường đi của tia laser;
đ) Kiểm tra điện áp cấp cho buồng chân không;
e) Kiểm tra buồng rơi, vân giao thoa thông qua máy đo giao thoa.
2. Kiểm định phương tiện đo trọng lực tương đối bao gồm các nội dung sau:
a) Kiểm tra mức độ đầy đủ các phụ trợ kèm theo phương tiện đo trọng lực, các phụ trợ kèm theo phương tiện đo trọng lực gồm: phương tiện đo trọng lực tương đối, máy tính xách tay, dây cáp nối, ắc quy và pin dự phòng;
b) Kiểm tra độ nhạy của hệ thống đàn hồi, bọt nước, đèn chiếu sáng, thang chia vạch, vòng xoay của ốc đọc số, hoạt động của ốc cân bằng phương tiện đo;
c) Theo dõi dịch chuyển điểm “0” của phương tiện đo trọng lực tại phòng kiểm định ở trạng thái tĩnh theo quy định kỹ thuật của nhà sản xuất, đảm bảo cho số đọc trên phương tiện đo ở dạng đồ thị tuyến tính trong suốt thời gian kiểm định. Ở trạng thái động, giá trị vạch chia ốc đọc số (hằng số “C”) được thực hiện trên đường đáy trọng lực quốc gia theo quy định tại Mẫu số 08 ban hành kèm theo Thông tư này;
d) Đo trên các mốc đường đáy và so sánh hiệu gia tốc lực trọng trường đo được trên các cạnh của đường đáy với giá trị chuẩn của nó, sai lệch không vượt quá ± 10% độ chính xác theo tiêu chuẩn của phương tiện đo.
3. Kiểm định phương tiện đo gradient tại phòng kiểm định. Tiến hành đo gradient tại các vị trí tương ứng với các độ cao 0,25 m; 0,50 m; 0,75 m; 1,00 m so với mặt mốc, so sánh giá trị gradient đo được với giá trị chuẩn của nó. Yêu cầu sai lệch không vượt quá ± 10% độ chính xác theo tiêu chuẩn của phương tiện đo gradient.
4. Khi các yếu tố trên không đạt yêu cầu kỹ thuật của nhà sản xuất phải tiến hành hiệu chuẩn. Việc hiệu chuẩn các phương tiện đo trọng lực sau khi kiểm định theo quy định kỹ thuật của nhà sản xuất.
Chương VI ĐIỀU KHOẢN THI HÀNH
Điều 17. Hiệu lực thi hành
Thông tư này có hiệu lực thi hành kể từ ngày 30 tháng 11 năm 2020 và thay thế Thông tư số 01/2009/TT-BTNMT ngày 14 tháng 01 năm 2009 của Bộ trưởng Bộ Tài nguyên và Môi trường quy định về quy phạm xây dựng lưới trọng lực quốc gia.
Điều 18. Trách nhiệm thi hành
1. Các Bộ, cơ quan ngang Bộ, cơ quan thuộc Chính phủ, Ủy ban nhân dân các tỉnh, thành phố trực thuộc trung ương và các tổ chức, cá nhân có liên quan chịu trách nhiệm thi hành Thông tư này.
2. Trong quá trình thực hiện nếu có khó khăn, vướng mắc, đề nghị các cơ quan, tổ chức, cá nhân phản ánh kịp thời về Bộ Tài nguyên và Môi trường để xem xét, quyết định./.
| Nơi nhận: - Thủ tướng Chính phủ và các Phó Thủ tướng Chính phủ; - Văn phòng Quốc hội; - Văn phòng Chính phủ; - Các Bộ, cơ quan ngang Bộ, cơ quan thuộc Chính phủ; - Viện Kiểm sát nhân dân tối cao; - Tòa án nhân dân tối cao; - UBND các tỉnh, thành phố trực thuộc trung ương; - Cục kiểm tra văn bản QPPL - Bộ Tư pháp; - Bộ trưởng, các Thứ trưởng Bộ TN&MT; - Sở TN&MT các tỉnh, thành phố trực thuộc trung ương; - Công báo, Cổng thông tin điện tử Chính phủ; - Các đơn vị trực thuộc Bộ TN&MT, Cổng TTĐT Bộ TN&MT; - Lưu: VT, PC, KHcN, ĐĐBĐVN, VĐĐBĐ. | KT. BỘ TRƯỞNG THỨ TRƯỞNG
Nguyễn Thị Phương Hoa |
PHỤ LỤC
(Kèm theo Thông tư số 11/2020/TT-BTNMT ngày 30 tháng 9 năm 2020 của Bộ trưởng Bộ Tài nguyên và Môi trường)
| Mẫu số 01 | Quy cách mốc trọng lực cơ sở |
| Mẫu số 02a | Quy cách mốc trọng lực hạng I |
| Mẫu số 02b | Quy cách tường vây mốc trọng lực hạng I |
| Mẫu số 03a | Quy cách mốc trọng lực hạng II |
| Mẫu số 03b | Quy cách tường vây mốc trọng lực hạng II |
| Mẫu số 04a | Sổ đo trọng lực tuyệt đối |
| Mẫu số 04b | Sổ đo trọng lực tương đối |
| Mẫu số 05 | Bảng tính hiệu gia tốc lực trọng trường giữa hai điểm đo A và B |
| Mẫu số 06 | Tính các số hiệu chỉnh trọng lực |
| Mẫu số 07 | Tổng hợp kết quả tính toán giá trị gia tốc lực trọng trường |
| Mẫu số 08 | Quy trình kiểm định phương tiện đo trọng lực tương đối |
| Mẫu số 09 | Biểu tổng hợp số liệu đo và tính gradient đứng |
Mẫu số 01. Quy cách mốc trọng lực cơ sở
QUY CÁCH MỐC TRỌNG LỰC CƠ SỞ
(kích thước cm)

Chú thích:
- Chữ “Bộ Tài nguyên và Môi trường” cao 4 cm, rộng 2,5 cm, sâu 0,5 cm, lực nét 0,5 cm.
- Các chữ khác: cao 3 cm, rộng 2,5 cm, sâu 0,5 cm, lực nét 0,5 cm
Mẫu số 02a. Quy cách mốc trọng lực hạng I
QUY CÁCH MỐC TRỌNG LỰC HẠNG I
(kích thước cm)

Chú thích:
- Chữ “Bộ Tài nguyên và Môi trường” cao 4 cm, rộng 2 cm, sâu 0,5 cm, lực nét 0,5 cm.
- Các chữ khác: cao 3 cm, rộng 2 cm, sâu 0,5 cm, lực nét 0,5 cm
Mẫu số 02b. Quy cách tường vây mốc trọng lực hạng I
QUY CÁCH TƯỜNG VÂY MỐC TRỌNG LỰC HẠNG I
(Kích thước cm)

Chú thích:
- Chữ “Bộ Tài nguyên và Môi trường” cao 4 cm, rộng 2 cm, sâu 0,5 cm, lực nét 0,5 cm.
- Các chữ khác: cao 3 cm, rộng 2 cm, sâu 0,5 cm, lực nét 0,5 cm.
Mẫu số 03a. Quy cách mốc trọng lực hạng II
QUY CÁCH MỐC TRỌNG LỰC HẠNG II
(kích thước cm)

Chú thích:
- Chữ “Bộ Tài nguyên và Môi trường” cao 4 cm, rộng 2 cm, sâu 0,5 cm, lực nét 0,5 cm.
- Các chữ khác: cao 3 cm, rộng 2 cm, sâu 0,5 cm, lực nét 0,5 cm.
Mẫu số 03b. Quy cách tường vây mốc trọng lực hạng II
QUY CÁCH TƯỜNG VÂY MỐC TRỌNG LỰC HẠNG II
(kích thước cm)

Chú thích:
- Chữ “Bộ Tài nguyên và Môi trường” cao 4 cm, rộng 2 cm, sâu 0,5 cm, lực nét 0,5 cm.
- Các chữ khác: cao 3 cm, rộng 2 cm, sâu 0,5 cm, lực nét 0,5 cm
Mẩu số 04a. Sổ đo trọng lực tuyệt đối

HƯỚNG DẪN GHI SỔ
1. Sổ nhật ký điểm đo được sử dụng khi đo giá trị gia tốc lực trọng trường bằng phương pháp tuyệt đối sử dụng các phương tiện đo có chức năng ghi trị đo dưới dạng file số nhưng không ghi đầy đủ được các thông tin của điểm đo theo quy định tại các trang nội dung của sổ này.
2. Cách ghi sổ:
- Cấp hạng đo: Ghi cấp lưới (điểm trọng lực cơ sở, điểm trọng lực hạng I, điểm trọng lực hạng II...) hoặc điểm trọng lực theo dự án.
- Phương tiện đo: hãng sản xuất, số serial của phương tiện đo, năm sản xuất...
- Chiều cao phương tiện đo: Ghi chiều cao của phương tiện đo khi đo thủ công (tùy từng loại máy)
ĐIỂM ĐO:
1. Ca đo:....................................................................................
2. Phương tiện đo:............. ; số serial:........................................
Hãng sx:............................ ;Năm sx:..........................................
3. Tọa độ, độ cao của điểm đo:
Kinh độ L:.............................. ;Vĩ độ B:......................................
Độ cao h:...............................
4. Giá trị Gradient đứng của điểm đo:..........................................
5. Thông số chuyển động cực trái đất: (cập nhật trong 1 tuần):
Polar motion (x): ................ ; Polar motion (y): ............................
6. Độ cao máy do:......................................................................
Độ cao từ tâm mốc đến đế máy: .................................................
7. Ngày đo:........... /................ /.................. ;
Từ:............... giờ............... , đến:..................... giờ....................
8. Người đo:...............................................................................
9. Thời tiết:................................................................................
10. Nhiệt độ ngoài trời:....... ; Nhiệt độ trong phòng:.....................
Trang
... tháng.... năm 20...
Đơn vị thi công
(Ký tên, đóng dấu)
Mẩu số 04b. Sổ đo trọng lực tưong đối

MÁY ĐO:
Tên máy: ....................... số máy: ..............................................
Nơi chế tạo: ..........................Hằng số máy: ...............
1. Người kiểm tra của đơn vị sản xuất:........................................
Ý kiến kiểm tra: .........................................................................
…………………………………………………………………
…………………………………………………………………
Ngày ... tháng ... năm 20...
2. Người kiểm tra của đơn vị thi công:.........................................
Ý kiến kiểm tra:..........................................................................
…………………………………………………………………
…………………………………………………………………
Ngày ... tháng... năm 20
3. Người kiểm tra của đơn vị chủ đầu tư:.....................................
Ý kiến kiểm tra:..........................................................................
…………………………………………………………………
…………………………………………………………………
Ngày ... tháng ... năm 20...
SƠ ĐỒ LƯỚI ĐO
|
|
Trang …
Ngày đo: …………. Thời tiết: …………
Người đo:..................... Người ghi:............................................
| Điểm đo | Thời gian | Nhiệt độ | Số đọc | Trung bình | Ghi chú |
|
|
|
|
|
|
|
|
|
|
|
|
|
|
|
|
|
|
|
|
|
|
|
|
|
|
|
|
|
|
|
|
|
|
|
|
|
|
|
|
|
|
|
|
|
|
|
|
|
Trang …
Ngày....tháng....năm 20....
Đơn vị thi công
(Ký tên, đóng dấu)
Mẫu số 05. Bảng tính hiệu gia tốc lực trọng trường giữa hai điểm đo A và B
BẢNG TÍNH HIỆU GIA TỐC LỰC TRỌNG TRƯỜNG GIỮA HAI ĐIỂM ĐO A VÀ B
Cạnh đo: A – B
| Phương tiện đo: Hằng số C: Ngày đo: ... | Người đo: . Người tính: Người kiểm tra: …. |
| STT | Tên điểm | Ti(h.m) | Tj(h.h) | Δh(ti – t1) | R | gr(R.C) | δցxd | Δg | Ghi chú |
|
|
|
|
|
|
|
|
|
|
|
|
| II-23 (ĐỒNG HỚI) | 7,43 | 7,71 |
| 1867,480 | 1867,480 |
|
|
|
| 1 | II-24(VĨNH LINH) | 9,03 | 9,05 | 1,34 | 1877,333 | 1877,333 | 0,000 | 9,853 |
|
|
| II-23 (ĐỒNG HỚI) | 10,14 | 10,24 | 2,52 | 1867,480 | 1867,480 | 0,000 |
|
|
|
| … |
|
|
|
|
|
|
|
|
|
| II-24(VĨNH LINH) | 9,03 | 9,05 |
| 1877,333 | 1877,333 |
|
|
|
| 2 | II-23 (ĐỒNG HỚI) | 10,14 | 10,24 | 1,19 | 1867,480 | 1867,480 | 0,004 | -9,857 |
|
|
| II-24(VĨNH LINH) | 10,60 | 10,99 | 1,94 | 1877,340 | 1877,340 | 0,007 |
|
|
|
| …. |
|
|
|
|
|
|
|
|
Giải thích:
Ti (h.m) là thời gian tại thời điểm đọc số của điểm đo tính theo giờ và phút;
Tj (h.h) là thời gian h (h.m) được chuyển sang đơn vị là giờ;
Δh(ti – t1) là độ khoảng thời gian đo điểm thứ i so với đo điểm đầu tiên;
R là số đọc trên phương tiện đo trọng lực;
gr(R.C) là số đọc trên phương tiện đo đã quy đổi ra mGal;
δցxd Giá trị cải chính do dịch chuyển điểm 0 (mGal);
Δg Giá trị hiệu gia tốc lực trọng trường đo được (mGal).
Mẫu số 06. Tính các số hiệu chỉnh trọng lực
TÍNH CÁC SỐ HIỆU CHỈNH TRỌNG LỰC
1. Số hiệu chỉnh do ảnh hưởng của áp suất khí quyển, ký hiệu δց1 (mGal), được tính theo công thức (6.1):
δց1 = 0,0004.ΔB (6.1)
Trong đó: ΔB là biến thiên của áp suất khí quyển tại điểm đo trong toàn bộ thời gian đo (đơn vị đo milimet thuỷ ngân).
2. Số hiệu chỉnh do ảnh hưởng của hiện tượng triều trái đất (số hiệu chỉnh mặt trăng và mặt trời hay còn gọi là địa triều), ký hiệu δց2(mGal), được tính theo công thức (6.2):

B, L tương ứng là vĩ độ, kinh độ địa lý của điểm trọng lực.
4. Số hiệu chỉnh do thay đổi của mực nước ngầm, ký hiệu δց4(mGal), được tính theo công thức (6.6):
δց4 = G. (h- hTB) (6.6)
Trong đó: G là hệ số thực nghiệm đơn vị mgal/mét biểu diễn sự thay đổi của gia tốc lực trọng trường dưới các mực nước ngầm khác nhau; hTB - độ sâu mực nước ngầm trung bình (m), h - độ sâu mực nước ngầm vào thời điểm đo (so với mặt địa hình).
5. Số hiệu chỉnh chuyển giá trị gia tốc lực trọng trường từ tâm phương tiện đo về mặt mốc, ký hiệu δց5(mGal).
δց5 = Δγ.H (6.7)
Δγ là giá trị gradient trọng lực đứng được xác định tại mốc trọng lực (mGal);
H là khoảng cách từ tâm của phương tiện đo đến tâm dấu mốc (m).
6. Số hiệu chỉnh do ảnh hưởng của thủy triều, ký hiệu δց6(mGal).
δց6 = 0,020.ΔhTide (6.8)
ΔhTide là thay đổi độ cao của mực nước thủy triều trong suốt thời gian đo (m).
Mẫu số 07. Tổng hợp kết quả tính toán giá trị gia tốc lực trọng trường
TỔNG HỢP KẾT QUẢ TÍNH TOÁN GIÁ TRỊ GIA TỐC LỰC TRỌNG TRƯỜNG
Bảng 1: Tổng hợp kết quả tính toán giá trị gia tốc lực trọng trường đo bằng phương pháp tuyệt đối
| TT | Điểm đo | Tọa độ địa lý | Các số hiệu chỉnh(mGữ/) | Giá trị gia tốc lực trọng trường sau hiệu chỉnh (mGal) | |||||||
| B | L | Áp suất khí quyển (δց1) | Địa triều (δց2) | Chuyển động cực (δց3) | Thay đổi mực nước ngầm (δց4) | Chuyển đổi độ cao (δց5) | Thủy triều (δց6) | Các số hiệu chỉnh khác (nếu có) | |||
| 1 | VI(VINH) |
|
|
|
|
|
|
|
|
|
|
| 2 |
|
|
|
|
|
|
|
|
|
|
|
| 3 |
|
|
|
|
|
|
|
|
|
|
|
Bảng 2a: Tổng hợp kết quả tính toán hiệu gia tốc lực trọng trường của cạnh trọng lực đo bằng phương pháp tương đối
| TT | Cạnh | Các số hiệu chỉnh(mGal) | Số lần đo | Sai số đo (mGal) | Hiệu gia tốc lực trọng trường cạnh A-B (mGal) | |
| Địa triều (δց2) | Honsacalo (δցHonsacalo) | |||||
| 1 | II-23(ĐỒNG HỚI) - II- 24(VĨNH LINH) |
|
|
|
|
|
| 2 |
|
|
|
|
|
|
| 3 |
|
|
|
|
|
|
Bảng 2b: Tổng hợp kết quả tính toán gia tốc lực trọng trường của điểm đo trọng lực bằng phương pháp tương đối
| TT | Điểm đo | Sai số đo (mGal) | Giá trị gia tốc lực trọng trường sau bình sai (mGal) |
| 1 | II-23(ĐỒNG HỚI) |
|
|
| 2 | II-24(VĨNH LINH) |
|
|
| 3 |
|
|
|
Mẫu số 08. Quy trình kiểm định phương tiện đo trọng lực tương đối
QUY TRÌNH KIỂM ĐỊNH PHƯƠNG TIỆN ĐO TRỌNG LỰC TƯƠNG ĐỐI
I. Quy trình kiểm định phương tiện đo trọng lực tương đối.
1. Kiểm tra bên ngoài phương tiện đo trọng lực
Công việc này được thực hiện bằng cách dùng mắt quan sát. Kiểm tra hiện trạng tổng thể bề ngoài của phương tiện đo trọng lực. Kiểm tra các nhiệt kế, giới hạn nhiệt độ đo của chúng và kiểm tra dây cáp nguồn.
2. Kiểm tra và điều chỉnh hoạt động của các ốc cân bằng phương tiện đo
Khi xoay các ốc cân bằng phải nhẹ và êm. Nếu quay thấy nặng và không đều cần tháo ra rửa bằng xăng, sau đó bôi mỡ và lắp lại.
3. Kiểm tra sự quay trơn của ốc đọc số
Tất cả các vạch chia của ốc đọc số phải nét, nhìn rõ. Khi quay ốc đọc số phải êm và nhẹ trên toàn bộ dải đọc. Việc kiểm tra được thực hiện bằng cách quay từ từ ốc đọc số từ 0 đến 15 vòng. Cần lưu ý độ êm khi quay ốc đọc số thuận chiều cũng như ngược chiều kim đồng hồ tại những vị trí chuyển tiếp giữa các vòng chẵn, sự phù hợp giữa vạch chia với vành đọc số.
4. Kiểm tra vị trí của thang chia vạch trong trường nhìn ống kính
Các vạch của thang chia trong trường nhìn ống kính phải rõ nét và song song với vạch sáng di động chỉ thị ảnh con lắc. Việc kiểm tra được thực hiện trước khi thiết lập dải đo trọng lực. Độ nét các vạch của thang chia trên trường nhìn được điều chỉnh bằng cách xê dịch phần trên của ống kính. Hình ảnh chỉ thị con lắc bao gồm hai vạch tối, được phân chia bởi vạch sáng, độ rộng của nó không được vượt quá hai lần độ dày của vạch chia trên thang trường nhìn. Điều chỉnh nó bằng cách xê dịch ống kính theo chiều cao. Vạch không của thang chia trên trường nhìn được xác định ở giữa hai vị trí tận cùng của ảnh chỉ thị con lắc. Các vị trí này được xác định bởi các giới hạn chuyển động của con lắc. Vị trí vạch không của thang chia được điều chỉnh nhờ xoay phần lệch tâm của ống kính.
5. Kiểm tra và điều chỉnh đèn chiếu sáng
Để thay đổi độ sáng tối trong trường nhìn cần xê dịch cụm bóng đèn lên xuống tùy ý.
6. Kiểm tra và điều chỉnh các bọt nước của phương tiện đo trọng lực
Đầu tiên kiểm tra bọt nước dọc, được bố trí theo hướng của con lắc, sau đó kiểm tra bọt nước ngang, được bố trí theo hướng trục quay của con lắc. Điều chỉnh độ nghiêng phương tiện đo trọng lực được thực hiện nhờ các ốc cân bằng. Việc kiểm tra và điều chỉnh chính xác các bọt nước được thực hiện khi xác định hằng số phương tiện đo trọng lực bằng phương pháp nghiêng.
7. Xác định độ dịch chuyển điểm “0”
Độ dịch chuyển điểm “0” của phương tiện đo trọng lực không được vượt quá 2 mGal/ngày- đêm (0,083 mGal/giờ) và được tính toán theo công thức
![]()
ở đây Δg - sự thay đổi số đọc (mGal) của phương tiện đo trọng lực tại cùng một điểm trong khoảng thời gian ΔT.
Độ dịch chuyển điểm “0” của phương tiện đo trọng lực có thể được tính toán từ các số liệu kiểm nghiệm trong phòng và số liệu quan sát hoặc công tác ngoại nghiệp.
8. Xác định giá trị vạch chia ốc đọc số (hằng số C) của phương tiện đo trọng lực trên đường đáy trọng lực
Xác định hằng số C của các phương tiện đo trọng lực trên đường đáy trọng lực được thực hiện sau khi kết thúc công tác kiểm tra, kiểm nghiệm trong phòng. Mục đích của việc xác định hằng số C của phương tiện đo trên đường đáy trọng lực là kiểm tra hoạt động của phương tiện đo trong điều kiện ngoại nghiệp và xác định hằng số C của phương tiện đo trọng lực trên các mốc chuẩn trên đường đáy trọng lực.
Trước khi đo trên các điểm của đường đáy trọng lực, phương tiện đo trọng lực cần thực hiện các bước sau:
Bước 1. Theo dõi dịch chuyển điểm “0” của phương tiện đo ở trạng thái tĩnh (gọi tắt là “theo dõi tĩnh”)
Việc này thực hiện từ 3 - 5 ngày để khảo sát dịch chuyển điểm “0” và độ ổn định của phương tiện đo. Phương pháp tiến hành như sau:
1. Đặt phương tiện đo tại một điểm trong phòng (tốt nhất là tại điểm gốc hoặc điểm có chất lượng tương đương);
2. Cứ 30 phút lấy số đọc và ghi vào sổ một lần bao gồm: số đọc R, thời gian h;
3. Vẽ đồ thị biểu diễn đặc trưng dịch chuyển điểm “0” của phương tiện đo ở trạng thái tĩnh với trục đứng biểu diễn số đọc gr(R.C) và trục ngang biểu diễn thời gian quan sát h;
4. Dựa vào các kết quả theo dõi ta tính được biên độ dịch chuyển điểm “0” (B) của phương tiện đo, ở trạng thái tĩnh, trong ngày đo.
Bước 2. Theo dõi dịch chuyển điểm “0” của phương tiện đo ở trạng thái động (gọi tắt là “theo dõi động”)
Để đánh giá đặc trưng dịch chuyển điểm “0” của phương tiện đo giống với điều kiện đo đạc ngoại nghiệp cần tiến hành theo dõi dịch chuyển điểm “0” ở trạng thái động. Phương pháp tiến hành như sau:
1. Chọn hai điểm cố định A và B, có hiệu trọng lực ít nhất bằng 10 lần sai số đo của phương tiện đo trọng lực và cách nhau một khoảng sao cho thời gian vận chuyển giữa 2 điểm dưới 1 giờ;
2. Phương tiện đo trọng lực được vận chuyển bằng ô tô và đo liên tục từ sáng đến tối (ít nhất từ 06h - 18h) tại 2 điểm, theo sơ đồ A - B - A - B -...- B - A;
3. Tại mỗi điểm đo lấy số liệu và ghi vào sổ gồm: số đọc r, thời gian h, nhiệt độ trong phương tiện đo t1 và nhiệt độ ngoài trời t2;
4. Vẽ đồ thị biểu diễn đặc trưng dịch chuyển điểm “0” của phương tiện đo ở trạng thái động tại mỗi điểm với trục đứng biểu diễn số đọc grA (grB) và trục ngang biểu diễn thời gian quan sát (tương tự như trạng thái tĩnh). Từ đồ thị biểu diễn đặc trưng dịch chuyển điểm “0” của phương tiện đo ở trạng thái động, xác định khoảng thời gian cho các chuyến đo trong ngày mà theo đó dịch chuyển điểm “0” được coi là tuyến tính.
Bước 3. Chuẩn phương tiện đo trọng lực trên đường đáy trọng lực quốc gia
Việc chuẩn phương tiện đo trọng lực trên đường đáy trọng lực quốc gia với các công việc sau:
1. Lập chương trình đo trên các điểm của đường đáy trọng lực quốc gia sao cho mỗi khoảng của thang đo (khoảng đầu, khoảng giữa, khoảng cuối) có thể thực hiện được cùng một số lượng giá trị quan sát, trong đó phải xác định trước được hiệu trọng lực quan sát nhất thiết phải lớn hơn 60 - 70 mGal.
2. Đưa phương tiện đo trọng lực vào trạng thái làm việc ít nhất 24 giờ trước khi bắt đầu chuyến đo. Đo đạc tại mỗi điểm trên đường đáy trọng lực quốc gia, số liệu quan sát được ghi vào sổ theo mẫu quy định.
3. Hằng số C là giá trị trung bình của ít nhất 50 giá trị Ci. Việc tính toán số liệu các chuyến đo được thực hiện như sau:
Tính toán và đưa vào hiệu chỉnh dịch chuyển điểm “0” của phương tiện đo trọng lực thông qua số đọc;
Tính số gia số đọc cho mỗi cạnh chuẩn đã đo;
Tính giá trị vạch trên thang chia của ốc đọc số theo công thức:

ở đây Ci - giá trị 1 vạch chia trên thang số đọc (tương ứng với 1 vòng của ốc đọc số) ở vòng đo thứ i (i = 1,2,..., n), thêm vào đó đại lượng n ít nhất bằng 50 và đại lượng Ci có đơn vị mGal/vòng; Δgi - hiệu trọng lực của cạnh đáy tương ứng; Δri - số gia số đọc ở vòng đo thứ i trên cạnh đáy tương ứng;
Hằng số C là giá trị trung bình của các giá trị Ci được xác định ở trên:

Với mục đích đảm bảo xác định tin cậy hằng số C cần phải đo trong vài ba ngày để chọn được ít nhất 50 giá trị Ci.
II. Quy trình kiểm định phương tiện đo trọng lực tương đối điện tử
Căn chỉnh phương tiện đo trọng lực là một trong những yếu tố ảnh hưởng đến độ chính xác đo trọng lực. Để phương tiện đo trọng lực đạt được độ chính xác cao nhất bằng phương tiện đo trọng lực điện tử việc kiểm tra, căn chỉnh hệ thống cân bằng và hệ thống phản hồi phải được tiến hành thường xuyên. Phải điều chỉnh hệ thống cân bằng trước mỗi đợt đo hoặc kiểm tra định kỳ khi phương tiện đo không hoạt động trong nhiều tháng. Điều chỉnh bộ phận cân bằng sẽ giảm được tối thiểu ảnh hưởng độ nghiêng của phương tiện đo đến kết quả đo.
Các nội dung căn chỉnh phương tiện đo trọng lực tương đối điện tử bao gồm:
Điều chỉnh các điểm dừng của con lắc;
Điều chỉnh hệ thống cân bằng dọc và ngang;
Điều chỉnh tăng hệ thống cân bằng;
Xác định hệ số tăng của con lắc;
Xác định hệ số tăng của hệ thống hồi tiếp;
Xác định hàm điều chỉnh cân bằng.
Kiểm nghiệm phương tiện đo trọng lực tương đối điện tử bao gồm:
Theo dõi dịch chuyển điểm 0 của phương tiện đo ở trạng thái tĩnh;
Theo dõi dịch chuyển điểm 0 của phương tiện đo ở trạng thái động;
Chuẩn phương tiện đo trên đường đáy trọng lực quốc gia.
Các công việc trên được thực hiện như với các phương tiện đo trọng lực tương đối quang cơ. Tuy nhiên, với phương tiện đo trọng lực tương đối điện tử việc theo dõi dịch chuyển điểm “0” ở trạng thái tĩnh có thể sử dụng chế độ đo ghi liên tục.
Mẫu số 09. Biểu tổng hợp số liệu đo và tính gradient đứng
BIỂU TỔNG HỢP SỐ LIỆU ĐO VÀ TÍNH GRADIENT ĐỨNG
Thời gian đo:....................................................... Người đo: .......................................................................................
Điểm đo: ............................................................. Người tính: .......................................................................................
Hằng số phương tiện đo: 1.000 Người kiểm tra:
| Vị trí | T(h.m) | T(h.m) | ΔT | r | R (r.C) | Δցxd | Δg | ABS (Δg) | i (Δgi- ΔgTB) | i2 |
| A | 7.37 | 7.61 |
| 2248.14 | 2248.140 |
|
|
|
|
|
| B | 7.40 | 7.67 | 0.06 | 2248.06 | 2248.060 | -0.001 | -0.079 | 0.315 | 0.001 | 0.0000 |
| C | 7.42 | 7.70 | 0.09 | 2247.98 | 2247.980 | -0.002 | -0.158 | 0.316 | 0.002 | 0.0000 |
| D | 7.45 | 7.75 | 0.14 | 2247.90 | 2247.900 | -0.003 | -0.237 | 0.316 | 0.002 | 0.0000 |
| E | 7.48 | 7.80 | 0.19 | 2247.82 | 2247.820 | -0.004 | -0.316 | 0.316 | 0.002 | 0.0000 |
| D | 7.51 | 7.85 | 0.24 | 2247.91 | 2247.910 | -0.005 | -0.225 | 0.300 | -0.014 | 0.0002 |
| C | 7.54 | 7.90 | 0.29 | 2247.98 | 2247.980 | -0.006 | -0.154 | 0.307 | -0.007 | 0.0000 |
| B | 7.58 | 7.97 | 0.36 | 2248.05 | 2248.050 | -0.008 | -0.082 | 0.329 | 0.015 | 0.0002 |
| A | 8.04 | 8.07 | 0.46 | 2248.13 | 2248.130 | -0.010 | 0.000 |
|
|
|
| Giá trị trung bình/1m: | 0.3141 (mGal) | A: vị trí ở dấu mốc. |
| Số lượng giá trị: | 7 | B,C,D,E: là vị trí ở 4 góc của mốc đo và có độ cao tương ứng 0.25m, 0.50m, 0.75m, 1.00m |
| Sai số trung phương: | 0.0034 (mGal) |
|
Bạn chưa Đăng nhập thành viên.
Đây là tiện ích dành cho tài khoản thành viên. Vui lòng Đăng nhập để xem chi tiết. Nếu chưa có tài khoản, vui lòng Đăng ký tại đây!
Bạn chưa Đăng nhập thành viên.
Đây là tiện ích dành cho tài khoản thành viên. Vui lòng Đăng nhập để xem chi tiết. Nếu chưa có tài khoản, vui lòng Đăng ký tại đây!