- Tổng quan
- Nội dung
- Tiêu chuẩn liên quan
- Lược đồ
- Tải về
Tiêu chuẩn TCVN 8867:2025 Áo đường mềm - Xác định độ võng đàn hồi bằng phương pháp cần Benkelman
| Số hiệu: | TCVN 8867:2025 | Loại văn bản: | Tiêu chuẩn Việt Nam |
| Cơ quan ban hành: | Bộ Khoa học và Công nghệ | Lĩnh vực: | Giao thông |
| Trích yếu: | Áo đường mềm - Xác định độ võng đàn hồi bằng phương pháp cần Benkelman | ||
|
Ngày ban hành:
Ngày ban hành là ngày, tháng, năm văn bản được thông qua hoặc ký ban hành.
|
14/04/2025 |
Hiệu lực:
|
Đã biết
|
| Người ký: | Đang cập nhật |
Tình trạng hiệu lực:
Cho biết trạng thái hiệu lực của văn bản đang tra cứu: Chưa áp dụng, Còn hiệu lực, Hết hiệu lực, Hết hiệu lực 1 phần; Đã sửa đổi, Đính chính hay Không còn phù hợp,...
|
Đã biết
|
TÓM TẮT TIÊU CHUẨN VIỆT NAM TCVN 8867:2025
Tiêu chuẩn quốc gia TCVN 8867:2025: Phương pháp xác định độ võng đàn hồi bằng cần Benkelman
Tiêu chuẩn quốc gia TCVN 8867:2025, có hiệu lực từ ngày 01/01/2025, nhằm quy định phương pháp xác định độ võng đàn hồi của mặt đường mềm bằng thiết bị cần Benkelman. Tiêu chuẩn này được biên soạn bởi Viện Khoa học và Công nghệ Giao thông Vận tải theo đề nghị của Bộ Giao thông Vận tải và được công bố bởi Bộ Khoa học và Công nghệ, thay thế cho TCVN 8867:2011.
Tiêu chuẩn này áp dụng cho các thử nghiệm trong lĩnh vực giao thông, giúp đánh giá khả năng phục hồi hình dạng của mặt đường sau khi chịu tải trọng của bánh xe tiêu chuẩn. Các thông số kỹ thuật của cần Benkelman được quy định với chiều dài tối thiểu là 2 mét và tỷ lệ cánh tay đòn không nhỏ hơn 2:1. Việc kiểm tra độ chính xác trước khi thực hiện đo là yêu cầu bắt buộc.
Danh sách tài liệu viện dẫn bao gồm một số tiêu chuẩn thiết kế liên quan như TCVN 4054, TCVN 5729, và TCVN 13592, nhằm đảm bảo rằng các thiết kế và thử nghiệm đều tuân thủ các quy định hiện hành về chất lượng mặt đường.
Về thiết bị đo, cần Benkelman và các loại xe đo võng phải tuân thủ các thông số quy định như tải trọng tác động lên mặt đường, áp lực bánh xe, và kiểm tra tình trạng cân bằng của vật chất tải trên xe. Các yêu cầu này đảm bảo độ chính xác trong quá trình thử nghiệm.
Quy trình đo được mô tả chi tiết, từ công tác chuẩn bị đến việc bố trí điểm đo trên mặt đường, với yêu cầu về số lượng điểm đo trong mỗi đoạn đường và cách xác định vị trí để đánh giá độ võng chính xác. Đo độ võng phải thực hiện trong điều kiện khí hậu thích hợp, tránh các yếu tố tác động như nắng nóng, mưa, và độ ẩm.
Kết quả đo phải được xử lý bằng các công thức cụ thể để xác định độ võng đàn hồi tại các vị trí thử nghiệm. Tiêu chuẩn này cũng đề cập đến cách tính toán các hệ số điều chỉnh để đảm bảo rằng kết quả đo phản ánh đúng thực tế trong từng điều kiện khác nhau về tải trọng và thời tiết.
Báo cáo thử nghiệm sẽ bao gồm các thông tin cơ bản như tên dự án, kết quả đo tại từng điểm, và đánh giá tổng quan về độ võng của mặt đường. Tiêu chuẩn này không chỉ phục vụ cho các cơ quan quản lý và nhà thầu xây dựng mà còn rất quan trọng đối với việc bảo trì, bảo dưỡng các công trình giao thông, đảm bảo an toàn và hiệu quả trong việc sử dụng đường bộ.
Chúng tôi khuyến nghị các đơn vị liên quan nắm vững tiêu chuẩn này để áp dụng một cách hiệu quả trong các công tác khảo sát và quản lý mặt đường nhằm nâng cao đáng kể chất lượng hạ tầng giao thông tại Việt Nam.
Tải tiêu chuẩn Việt Nam TCVN 8867:2025
TIÊU CHUẨN QUỐC GIA
TCVN 8867:2025
ÁO ĐƯỜNG MỀM - XÁC ĐỊNH ĐỘ VÕNG ĐÀN HỒI BẰNG PHƯƠNG PHÁP CẦN BENKELMAN
Flexible pavement - Method for testing rebound deflection using the Benkelman beam
Lời nói đầu
TCVN 8867:2025 thay thế TCVN 8867:2011.
TCVN 8867:2025 do Viện Khoa học và Công nghệ Giao thông Vận tải biên soạn, Bộ Giao thông Vận tải đề nghị, Ủy ban Tiêu chuẩn Đo lường Chất lượng Quốc gia thẩm định, Bộ Khoa học và Công nghệ công bố.
ÁO ĐƯỜNG MỀM - XÁC ĐỊNH ĐỘ VÕNG ĐÀN HỒI BẰNG PHƯƠNG PHÁP CẦN BENKELMAN
Flexible pavement - Method for testing rebound deflection using the Benkelman beam
1 Phạm vi áp dụng
Tiêu chuẩn này quy định trình tự thử nghiệm xác định độ võng đàn hồi của mặt đường mềm bằng cần Benkelman.
2 Tài liệu viện dẫn
Các tài liệu viện dẫn sau là cần thiết cho việc áp dụng các tiêu chuẩn này. Đối với các tài liệu viện dẫn ghi năm ban hành thì áp dụng bản được nêu. Đối với các tài liệu viện dẫn không ghi năm ban hành thì áp dụng phiên bản mới nhất, bao gồm cả sửa đổi (nếu có).
TCVN 4054, Đường ô tô - Yêu cầu thiết kế;
TCVN 5729, Đường ôtô cao tốc - Yêu cầu thiết kế;
TCVN 13592, Đường đô thị - Yêu cầu thiết kế;
AASHTO T 317 Standard Method of Test for Prediction of Asphalt-Bound Pavement Layer Temperatures (Phương pháp dự báo nhiệt độ trong lớp bê tông nhựa mặt đường)
3 Thuật ngữ và định nghĩa
Trong tiêu chuẩn này áp dụng các thuật ngữ sau:
3.1
Độ võng đàn hồi (Rebound deflection)
Độ biến dạng đàn hồi của mặt đường mềm, được đo dưới tác dụng của tải trọng bánh xe tiêu chuẩn bằng cần Benkelman. Thông số này biểu thị sự chênh lệch cao độ bề mặt mặt đường trước và sau khi tải trọng tiêu chuẩn được dỡ bỏ tại điểm thử nghiệm, phản ánh khả năng phục hồi hình dạng đàn hồi của mặt đường sau khi loại bỏ tải trọng.
3.2
Mô đun đàn hồi của kết cấu áo đường mềm (Elastic modulus of pavement structure)
Đại lượng đặc trưng cho khả năng chống biến dạng của kết cấu nền và mặt đường, bao gồm áo đường và khu vực chịu tác dụng của nền đường.
4 Thiết bị, dụng cụ
4.1 Cần Benkelman phải có chiều dài từ gối tựa phía trước đến mũi đo ít nhất là 2,0 m và có tỷ lệ cánh tay đòn cần đo không được nhỏ hơn 2:1 (xem Phụ lục B).
4.2 Trước mỗi ca làm việc phải kiểm tra độ chính xác của cần đo bằng cách đối chiếu kết quả đo chuyển vị thẳng đứng trực tiếp ở mũi đo với kết quả đo được chuyển vị thẳng đứng ở cuối cánh tay đòn phía sau của cần đo có xét đến tỷ lệ các cánh tay đòn cần đo. Nếu kết quả sai khác nhau quá ± 5% thì phải kiểm tra lại các liên kết ở các mối nối, khớp quay và mức độ trơn nhậy của cần đo. (xem Phụ lục B).
4.3 Xe đo võng là loại xe có trục sau là trục đơn, bánh đối với khe hở tối thiểu giữa hai bánh đôi là 5 cm. Các thông số của trục sau xe đo chỉ được sai lệch ± 5 % so với quy định ở Bảng 1.
Bảng 1 - Các thông số của trục sau xe đo tiêu chuẩn
| Thông số | Mức |
| 1. Tải trọng trục sau, Q, kN | 100 |
| 2. Áp lực bánh xe xuống mặt đường, p, MPa | 0,6 |
| 3. Đường kính tương đương của vệt bánh đôi, D, cm | 33 |
4.4 Vật chất tải trên xe phải đối xứng, cân bằng, không bị thay đổi vị trí và tải trọng trục sau không bị thay đổi trong suốt quá trình đo võng mặt đường. Trong suốt quá trình đo, xe đo phải được che bạt để tránh bị nước mưa ngấm vào và rơi vãi vật liệu.
4.5 Để xác định được tải trọng trục xe, phải tiến hành cân tải trọng trục sau bằng thiết bị cân xe hoặc dùng kích thủy lực có đồng hồ đo áp lực được tiêu định và thang chia áp lực không lớn hơn 0,02 MPa.
4.6 Kiểm tra áp lực hơi trong bánh xe khi bắt đầu đo đảm bảo đạt yêu cầu, giữa ca và cuối ca đo lại kiểm tra áp lực hơi trong bánh xe, để duy trì không đổi trong suốt quá trình đo võng mặt đường (xem Phụ lục B).
5 Cách tiến hành
5.1 Công tác chuẩn bị
5.1.1 Trước mỗi đợt đo phải kiểm tra lại diện tích vệt bánh đôi Sb bằng cách kích trục sau xe lên, lau sạch và bôi mỡ vào lốp, quay phần lốp xe có mỡ xuống phía dưới sau đó hạ kích để cho in vệt lốp lên giấy kẻ ly. Diện tích vệt bánh đôi Sb được xác định bằng diện tích phần vệt lốp có mỡ in trên giấy kẻ ly.
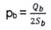
Đường kính tương đương của vệt bánh đôi của xe đo Db và áp lực bánh xe xuống mặt đường pb được tính theo các công thức sau:
|
| (1) |
|
| (2) |
Trong đó:
Db là đường kính tương đương của vệt bánh đôi của xe đo, tính bằng cm;
Sb là diện tích vệt bánh đôi của xe đo, tính bằng cm2;
pb là áp lực bánh xe xuống mặt đường của xe đo, tính bằng MPa;
Qb là tải trọng trục sau của xe đo, tính bằng kN.
5.1.2 Trên cơ sở khảo sát sơ bộ, hồ sơ quản lý tuyến đường và thị sát thực tế, tiến hành chia tuyến đường thành các đoạn đồng nhất và chọn đoạn đại diện trên mỗi đoạn theo các tiêu chí sau:
5.1.2.1 Các đoạn được coi là đồng nhất khi có các yếu tố sau đây tương đồng: loại hình nền mặt đường theo điều kiện gây ẩm, tình trạng thoát nước, trạng thái bề mặt áo đường, kết cấu mặt đường, loại lớp đất nền trên cùng, lưu lượng xe chạy, v.v. Các số liệu này được thu thập từ hồ sơ tuyến đường tại các cơ quan quản lý và thông qua khảo sát thực tế ngoài hiện trường (xem Phụ lục A);
5.1.2.2 Chọn đoạn đại diện trên mỗi đoạn đồng nhất: Đoạn đại diện phải có chiều dài từ 500 m đến 1000 m, với mỗi đoạn đo được chọn tối thiểu 20 điểm đo/làn xe. Đối với các đoạn đồng nhất đặc biệt ngắn nhưng có tính chất khác biệt rõ rệt so với các đoạn lân cận (như các đoạn có điều kiện địa chất thủy văn phức tạp hoặc đất nền mềm yếu), dù chiều dài nhỏ hơn 100 m, vẫn phải đảm bảo đo đủ tối thiểu 20 điểm đo/làn xe.
5.1.3 Nếu tuyến đường cần đánh giá không có được các số liệu cơ sở để áp dụng cách chia đường thành các đoạn đồng nhất nêu ở Điều 5.1.2 thì phải đo như sau:
5.1.3.1 Đối với giai đoạn thiết kế kỹ thuật hoặc thiết kế bản vẽ thi công, tiến hành đo rải đều trên toàn tuyến với mật độ ít nhất là 20 điểm đo / làn xe /1 km;
5.1.3.2 Đối với giai đoạn lập dự án đầu tư, công tác quản lý khai thác đường ô tô hoặc các công tác khác theo yêu cầu của chủ đầu tư, tiến hành đo với mật độ ít nhất từ 5 điểm đến 10 điểm đo / làn xe /1 km.
5.1.4 Chọn vị trí các điểm đo
5.1.4.1 Các điểm đo võng thường được bố trí ở vệt bánh xe phía ngoài (cách mép mặt đường từ 0,6 m đến 1,2 m) là nơi thường có độ võng cao hơn các vệt bánh xe phía trong. Trong trường hợp nếu quan sát bằng mắt thấy tình trạng mặt đường tại vệt bánh xe phía trong và vệt bánh xe phía ngoài bị hư hỏng không đồng đều, phải dùng hai cần đo võng đo cùng một lúc ở cả hai vệt bánh xe để lấy trị số lớn hơn làm giá trị độ võng đại diện cho mặt cắt của làn xe đo.
5.1.4.2 Với đường nhiều làn xe, khi quan sát bằng mắt thấy tình trạng mặt đường trên các làn khác nhau, phải đo võng cho làn yếu nhất. Trị số đo ở mỗi vị trí của làn đó sẽ đại diện cho độ võng tại mặt cắt ngang của đường (xem Phụ lục C).
5.1.4.3 Tiến hành đánh dấu sơn vào các vị trí cần đo. Điểm đo thứ nhất và điểm đo thứ 20 nên lấy trùng vào mặt cắt tại lý trình cột kilômét hoặc các cọc 100 m (cọc H).
5.2 Đo độ võng mặt đường dọc tuyến
5.2.1 Trình tự đo độ võng mặt đường
5.2.1.1 Di chuyển xe đo vào vị trí đo võng, đặt đầu đo của cần Benkelman tỳ lên mặt đường ở giữa khe hở của cặp bánh đôi trục sau xe đo. Dùng bút gõ cho thanh cần rung nhẹ, theo dõi kim chuyển vị kế cho tới khi thấy độ võng ổn định (trong 10 s kim không chuyển dịch quá 0,01 mm) thì ghi lấy số đọc ban đầu ở chuyển vị kế (ký hiệu là i0).
5.2.1.2 Cho xe đo chạy chậm lên phía trước với tốc độ khoảng 5 km/h cho đến khi trục sau của bánh xe cách điểm đo ít nhất 5 m, tiến hành gõ nhẹ lên thanh cần để kiểm tra độ nhạy chuyển vị kế. Theo dõi chuyển vị kế cho tới khi thấy độ võng ổn định thì ghi lấy số đọc cuối ở chuyển vị kế (ký hiệu là i5). Hiệu số của hai số đọc ở chuyển vị kế nhân với tỷ lệ cánh tay đòn cần đo là trị số độ võng đàn hồi của mặt đường tại điểm đo (ký hiệu là li).
5.2.1.3 Trong quá trình đo độ võng mặt đường, phải ghi rỗ lý trình của điểm đo, thời tiết, điều kiện gây ẩm và các nhận xét về tình trạng mặt đường tại điểm đo vào mẫu biểu thí nghiệm (xem Phụ lục C).
CHÚ THÍCH 1: Trong khi đo độ võng mặt đường, không đo tại các vị trí mặt đường bị hư hỏng quá nhiều như: cao su, nứt,... Những vị trí này không đại diện cho khu vực cần đo độ võng. Tuy nhiên vẫn phải ghi chép, mô tả các vị trí này để có các giải pháp xử lý cụ thể sau này.
5.2.2 Đo nhiệt độ mặt đường: Để hiệu chỉnh các kết quả đo võng về nhiệt độ tính toán sau này, phải đo nhiệt độ không khí và nhiệt độ mặt đường trong suốt thời gian đo độ võng dọc tuyến. Việc đo nhiệt độ mặt đường chỉ yêu cầu thực hiện đối với kết cấu mặt đường có chiều dày lớp mặt phủ nhựa lớn hơn hoặc bằng 5 cm. Nhiệt độ mặt đường có thể đo bằng các phương pháp sau:
5.2.2.1 Phương pháp A - Phương pháp đục lỗ và sử dụng chất lỏng (nước hay glyxêrin)
- Dùng búa và đục nhọn tạo thành một hố nhỏ sâu khoảng 45 mm tại mặt đường gần vị trí đo võng;
- Đổ nước hay glyxêrin vào khoảng nửa hố và đợi chừng vài phút;
- Dùng nhiệt kế với độ chính xác ± 1 °C để đo nhiệt độ của chất lỏng trong hố cho đến khi nhiệt độ không thay đổi thì ghi trị số nhiệt độ đo (ký hiệu là T °C).
CHÚ THÍCH 2: Khi điều kiện cho phép, có thể sử dụng thiết bị hồng ngoại hoặc đầu dò nhiệt chuyên dụng để thay thế phương pháp A nhằm giảm thiểu tác động lên mặt đường.
5.2.2.2 Phương pháp B - Mô hình được thiết lập từ chuỗi số liệu quan trắc
5.2.2.2.1 Mô hình nhiệt độ BELLS
- Xác định giá trị trung bình của nhiệt độ không khí cao nhất và nhiệt độ không khí thấp nhất trong 24 h trước đó tại vị trí đo.
- Dùng thiết bị đo nhiệt độ bằng tia hồng ngoại để xác định nhiệt độ bề mặt của lớp bê tông nhựa mặt đường. Độ chính xác của nhiệt kế hồng ngoại khi đo nhiệt độ mặt đường trong phạm vi ± 1 °C.
- Ghi lại thời gian trong ngày tại thời điểm xác định nhiệt độ tại vị trí đo.
- Xác định chiều sâu dùng để đo nhiệt độ của lớp bê tông nhựa mặt đường (40 mm).
- Sử dụng công thức hồi qui để dự báo nhiệt độ lớp mặt đường bê tông nhựa tại chiều sâu tính toán theo Điều 7 của AASHTO T317.
5.2.2.2.2 Mô hình nhiệt độ được nghiên cứu, thiết lập tại Việt Nam (xem Phụ lục H)
- Có thể sử dụng các mô hình nhiệt độ từ các kết quả nghiên cứu trong nước. Mô hình phải kèm theo các điều kiện áp dụng.
- Từ kết quả đo nhiệt độ bề mặt đường bằng nhiệt kế hồng ngoại dùng mỏ hình xác định nhiệt độ ở độ sâu 40 mm trong lớp bê tông nhựa.
CHÚ THÍCH 3:
- Để tránh hiện tượng bức xạ nhiệt của mặt trời tới cần Benkelman và hiện tượng đầu đo và cần bị lún vào mặt đường nhựa ở nhiệt độ cao gây ảnh hưởng tới độ chính xác của kết quả đo, không đo võng vào khoảng thời gian nhiệt độ mặt đường lớn hơn 40 °C.
- Tránh không để vị trí đo bị bóng của xe ôtô hay vật gì làm ảnh hưởng đến kết quả đo.
- Thiết bị đo nhiệt độ bề mặt mặt đường có thể dùng nhiệt kế hồng ngoại có giá đỡ để tránh bị lệch hướng, nhiệt kế hồng ngoại cầm tay, hoặc nhiệt kế tiếp xúc với bề mặt của mặt đường. Thiết bị đo nhiệt độ được sử dụng các kích cỡ khác nhau tùy theo khuyến nghị của nhà sản xuất.
5.2.3 Phải tổ chức đảm bảo an toàn giao thông trong suốt quá trình đo. Các thành viên tham gia đo đạc kể cả lái xe đều phải được đào tạo chuyên sâu về nghiệp vụ đo.
CHÚ THÍCH 4: Công tác đảm bảo an toàn giao thông có thể được thực hiện bằng cách sử dụng các barie, biển báo kết hợp với người cầm cờ điều khiển giao thông.
6 Xử lý kết quả đo võng
6.1 Xử lý kết quả đo võng
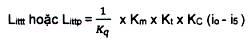
6.1.1 Độ võng đàn hồi tính toán tại vị trí thử nghiệm thứ (i) đại diện cho mặt cắt ngang của mặt đường (ký hiệu là Litt) được xác định theo công thức:
|
| (3) |
trong đó:
Li là độ võng của mặt đường đo được tại vị trí thử nghiệm thứ (i) khi chưa xét đến các yếu tố ảnh hưởng của tải trọng xe đo, mùa đo bất lợi và nhiệt độ của mặt đường khi đo, tính bằng mm;
Kq là hệ số hiệu chỉnh kết quả đo theo các thông số trục sau xe đo võng về kết quả của trục sau xe ôtô tiêu chuẩn. Kq được tính toán theo công thức:
|
| (4) |
trong đó:
pb, Db, p và D được xác định theo 5.1.1 và 4.3.
Km là hệ số hiệu chỉnh độ võng về mùa bất lợi nhất trong năm;
Kt là hệ số hiệu chỉnh độ võng ở nhiệt độ đo về nhiệt độ tính toán (ký hiệu là Ttt°C).
6.1.2 Khi không có điều kiện theo dõi quy luật thay đổi độ võng theo mùa và nhiệt độ, được phép sử dụng Km và Kt từ các quan trắc đã được tiến hành ở địa phương cho các tuyến đường có các điều kiện tương tự (quy định tại Phụ lục D)
6.1.3 Sau khi đã xác định được độ võng tính toán của các điểm đo (Litt), phải loại bỏ các sai số thô ra khỏi tập hợp các giá trị thu thập được trên từng đoạn bằng các tiêu chuẩn loại trừ quan sát cực trị của lý thuyết xác suất thống kê (quy định tại Phụ lục E).
6.2 Xác định độ võng đặc trưng cho mỗi đoạn đường thí nghiệm
6.2.1 Trị số độ võng đàn hồi đặc trưng trên đoạn đồng nhất, được tính bằng giá trị độ võng trung bình của đoạn đại diện trên đoạn đồng nhất đó.
6.2.2 Tùy theo yêu cầu và qui mô của dự án, độ võng đàn hồi đặc trưng cho mỗi đoạn đường thí nghiệm được tính cho cả hai chiều hoặc được tính cho từng chiều hoặc cho từng làn của tuyến đường thí nghiệm.
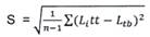
6.2.3 Trường hợp không có được các số liệu cơ sở để áp dụng cách chia đường thành các đoạn đồng nhất nêu ở Điều 5.1.2, trị số độ võng đàn hồi đặc trưng của từng đoạn đường thí nghiệm được tính theo công thức:
| Ldt = Ltb + (K x S) | (5) |
trong đó:
Ldt là độ võng đàn hồi đặc trưng của từng đoạn đường thí nghiệm;
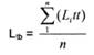
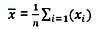
Ltb là độ võng trung bình của đoạn thí nghiệm, tính bằng mm. Giá trị Ltb được tính theo công thức sau:
|
| (6) |
n là số điểm đo;
S là độ lệch chuẩn của đoạn thử nghiệm, tính bằng mm. Giá trị S được tính toán theo công thức sau:
|
| (7) |
K là hệ số hiệu chỉnh lấy tùy thuộc vào cấp hạng đường, được xác định như sau:
- Đường cao tốc, đường cấp I (phân loại theo TCVN 5729 và TCVN 4054), đường cao tốc đô thị (phân loại theo TCVN 13592), K = 2,0;
- Đường cấp II (phân loại theo TCVN 4054), đường phố chính đô thị (phân loại theo TCVN 13592), K= 1,64;
- Đường cấp III (phân loại theo TCVN 4054), K = 1,3;
- Đường cấp IV đến cấp VI (phân loại theo TCVN 4054), đường phố gom, đường phố nội bộ của đô thị (phân loại theo TCVN 4054), K = 1,04.
6.2.4 Kết quả đo độ võng có thể được sử dụng để xác định trị số mô đun đàn hồi đặc trưng của từng đoạn đường thử nghiệm (xem Phụ lục G).
7 Báo cáo thử nghiệm
Kết quả thử nghiệm bao gồm tối thiểu các thông tin sau:
- Dự án (tuyến đường);
- Các đoạn đặc trưng;
- Kết quả đo võng của từng điểm đo;
- Độ võng đàn hồi của các đoạn đặc trưng;
- Người thí nghiệm và cơ sở thí nghiệm;
- Viện dẫn phương pháp thí nghiệm này.
Phụ lục A
(Tham khảo)
BIỂU PHÂN ĐOẠN TUYẾN ĐỂ ĐÁNH GIÁ ĐỘ VÕNG ĐÀN HỒI KẾT CẤU MẶT ĐƯỜNG MỀM
Dự án:
Đoạn:Từ Km Đến Km
Ngày thí nghiệm:
Tên và địa chỉ cơ sở thí nghiệm:

BIỂU PHÂN ĐOẠN TUYẾN ĐỂ ĐÁNH GIÁ ĐỘ VÕNG ĐÀN HỒI KẾT CẤU MẶT ĐƯỜNG MỀM
(tiếp theo)
| Lưu lượng xe tính toán (Xe /ngày đêm) | 1000 | 500 | 200 | |||
| Vị trí điểm đo tại trạm quan trắc |
|
|
| |||
| Phân đoạn cuối cùng | 1 | 2 | 3 | 4 | 5 | 6 |
Phụ lục B
(Tham khảo)
BIỂU KIỂM TRA THIẾT BỊ ĐO VÕNG ĐÀN HỒI BẰNG CẦN BENKELMAN
Dự án:
Đoạn:Từ Km Đến Km
Ngày thí nghiệm:
Tên và địa chỉ cơ sở thí nghiệm:

BIỂU KIỂM TRA THIẾT BỊ ĐO VÕNG ĐÀN HỒI BẰNG CẦN BENKELMAN (tiếp theo)

CHÚ THÍCH B.1:
Tải trọng trục xe đo (Q) khi xác định bằng kích thủy lực được tính theo công thức:
|
| (B.1) |
trong đó:
| Q | là tải trọng trục xe đo, kg; |
| p | là số đọc trên đồng hồ đo của kích, MPa ; |
| L | là chiều rộng của trục xe, tính bằng khoảng cách giữa hai tim vệt bánh xe, cm; |
| a | là khoảng cách tính từ vị trí đặt kích tới tim vệt bánh xe nâng lên khi kích, cm; |
| f | là áp lực của kích khi tiêu định, MPa; |
| q | là tải trọng tương ứng với áp lực kích khi tiêu định, kN. |
Phụ lục C
(Tham khảo)
BIỂU GHI DỮ LIỆU ĐO ĐỘ VÕNG ĐÀN HỒI BẰNG CẦN BENKELMAN
| Dự án: ................................................ Tờ số: Tổng số Tờ: | |
| Khu vực đo (Tỉnh): ............................................................................................................ | |
| Cơ sở thí nghiệm: ............................................................................................................ | |
| Người đo: .................................... Thời gian đo: | |
| Đo theo hướng lý trình tăng / giảm | |
| Hệ số chuyển đổi tải trọng trục xe đo | Kq = |
| Tỷ lệ cánh tay đòn cần đo 1, đo bánh xe trái | K1C = |
| Tỷ lệ cánh tay đòn cần đo 2, đo bánh xe phải | K2C = |

BIỂU GHI DỮ LIỆU ĐO ĐỘ VÕNG ĐÀN HỒI BẰNG CẦN BENKELMAN (tiếp theo)
CHÚ THÍCH C.1:
io, i5 là số đọc ở chuyển vị kế khi bánh xe đo di chuyển cách xa vị trí đo 0 m và lớn hơn 5 m;
Km là hệ số hiệu chỉnh độ võng về mùa bất lợi nhất trong năm;
Kt là hệ số hiệu chỉnh độ võng ở nhiệt độ đo về nhiệt độ tính toán;
Littt hoặc Littp là độ võng đàn hồi tại bánh xe trái hoặc phải được tính bằng công thức:
![]()
Lmax là giá trị lớn nhất của Littt và Littp.
Phụ lục D
(Quy định)
Xác định mùa bất lợi nhất, hệ số chuyển đổi mùa và chuyển đổi nhiệt độ mặt đường
D.1 Khi có điều kiện lập các vị trí quan trắc cố định tại địa phương
- Chọn vị trí đo: Tiến hành đo võng tại các vị trí đại diện cho các loại kết cấu nền mặt đường và loại hình khô ẩm của nền đường. Các vị trí đại diện nên chọn thật gần những vật chuẩn cố định để dễ thấy như các cột kilômét hay biển chỉ dẫn trên đường. Mỗi vị trí đại diện chọn khoảng 20 điểm đo. Đánh dấu các điểm đo dưới dạng hình tròn đường kính 10 cm bằng sơn chịu mài mòn, chịu nước, có mầu sáng; tọa độ của các vị trí đo (liên hệ với vật chuẩn đã chọn) phải được chỉ rõ trong biểu thống kê tổng hợp dưới dạng phân số với tử số là lý trình của điểm đo và mẫu số là khoảng cách từ điểm đo tới mép mặt đường về phía phải (P) hay trái (T) của đường .
- Thời gian đo: Công việc này được tiến hành trong nhiều năm. Mỗi tháng đo vào cùng một ngày, vào buổi sáng và lúc mặt đường có nhiệt độ cao nhất (khoảng 1-2 giờ chiều).
- Thao tác đo: Cách đo võng ở những điểm quan trắc cố định cũng tương tự như ở điểm đo dọc tuyến kể cả đo nhiệt độ mặt đường lúc thử nghiệm. Trong quá trình thử nghiệm tại các điểm đo, phải chú ý nghiêm ngặt việc đặt bánh xe của ôtô thí nghiệm trong phạm vi vòng tròn đã được vạch bằng sơn trên mặt đường.
- Xử lý kết quả sau khi đo: Dùng phương pháp phân tích thống kê các số liệu đo võng sẽ xác định được mùa bất lợi nhất trong năm, hệ số hiệu chỉnh độ võng về mùa bất lợi nhất trong năm (Km) và hệ số hiệu chỉnh độ võng ở nhiệt độ đo về nhiệt độ tính toán (Kt).
D.2 Khi không có điều kiện lập các vị trí quan trắc cố định tại địa phương
D.2.1 Chọn mùa bất lợi nhất: Có thể lấy mùa bất lợi nhất trong năm của tuyến đường đi qua của các địa phương theo Bảng D.1. Tháng bất lợi nhất được lấy tại giữa trong khoảng thời gian bất lợi nhất.
Bảng D.1 - Thời gian bất lợi trong năm của các địa phương trong cả nước
| TT | Tên địa phương | Thời gian bất lợi nhất trong năm | TT | Tên địa phương | Thời gian bất lợi nhất trong năm |
| 1 | An Giang | 5 đến 11 | 34 | Lâm Đồng | 5 đến 10 |
| 2 | Bà Rịa - Vũng Tàu | 6 đến 10 | 35 | Lào Cai | 5 đến 10 |
| 3 | Bắc Kạn | 5 đến 9 | 36 | Lạng Sơn | 6 đến 9 |
| 4 | Bắc Giang | 6 đến 9 | 37 | Lai Châu | 6 đến 9 |
| 5 | Bắc Ninh | 5 đến 9 | 38 | Long An | 5 đến 11 |
| 6 | Bạc Liêu | 5 đến 11 | 39 | Nam Định | 5 đến 9 |
| 7 | Bến Tre | 6 đến 10 | 40 | Nghệ An | 6 đến 11 |
| 8 | Bình Định (Quy Nhơn) | 10 đến 12 | 41 | Ninh Bình |
|
| 9 | Bình Dương | 6 đến 11 | 42 | Ninh Thuận | 8 đến 11 |
| 10 | Bình Phước | 6 đến 11 | 43 | Phú Thọ | 6 đến 9 |
| 11 | Bình Thuận | 6 đến 10 | 44 | Phú Yên | 10 đến 12 |
| 12 | Cà Mau | 5 đến 11 | 45 | Quảng Bình | 9 đến 12 |
| 13 | Cao Bằng | 6 đến 9 | 46 | Quảng Nam | 9 đến 11 |
| 14 | Cần Thơ | 6 đến 11 | 47 | Quảng Ngãi | 10 đến 11 |
| 15 | Đà Nẵng | 10 đến 12 | 48 | Quảng Ninh | 6 đến 9 |
| 16 | Đắk Lắk | 6 đến 10 | 49 | Quảng Trị |
|
| 17 | Điên Biên | 6 đến 9 | 50 | Sơn La | 6 đến 9 |
| 18 | Đắk Nông | 5 đến 10 | 51 | Sóc Trăng | 6 đến 10 |
| 19 | Đồng Nai | 6 đến 10 | 52 | Tây Ninh |
|
| 20 | Đồng Tháp | 6 đến 10 | 53 | Thái Bình | 5 đến 9 |
| 21 | Gia Lai | 6 đến 10 | 54 | Thái Nguyên | 6 đến 9 |
| 22 | Hà Giang | 6 đến 9 | 55 | Thanh Hoá | 6 đến 10 |
| 23 | Hà Nam | 5 đến 10 | 56 | Thừa Thiên Huế | 9 đến 11 |
| 24 | Hà Nội | 6 đến 9 | 57 | Tiền Giang | 5 đến 11 |
| 25 | Hà Tĩnh | 7 đến 11 | 58 | TP. Hồ Chí Minh | 6 đến 10 |
| 26 | Hậu Giang | 5 đến 11 | 59 | Trà Vinh | 6 đến 10 |
| 27 | Hải Dương | 5 đến 9 | 60 | Tuyên Quang | 5 đến 11 |
| 28 | Hải Phòng | 5 đến 9 | 61 | Vĩnh Long | 6 đến 11 |
| 29 | Hoà Bình | 5 đến 10 | 62 | Vĩnh Phúc | 5 đến 10 |
| 30 | Hưng Yên | 5 đến 9 | 63 | Yên Bái | 5 đến 10 |
| 31 | Khánh Hòa | 10 đến 12 | 64 | Hoàng Sa | 7 đến 11 |
| 32 | Kiên Giang | 5 đến 11 | 65 | Trường Sa | 6 đến 11 |
| 33 | Kon Tum | 5 đến 10 | 66 | Phú Quốc | 6 đến 11 |
D.2.2 Hệ số hiệu chỉnh độ võng về mùa bất lợi nhất trong năm (Km): Có thể xác định (Km) như sau:
+ Với loại hình kết cấu nền mặt đường hạn chế được tác dụng của các nguồn gây ẩm - loại I (luôn khô ráo, quy định tại Phụ lục I): Nền đường không có nước ngập thường xuyên, mực nước ngầm thấp hơn lớp đáy móng đường 1,5 m khi nền đắp bằng đất á sét và sét hay 0,8 m khi nền đắp bằng á cát và phải thoát nước mặt tốt. Nếu có nước ngập từng thời gian không quá 3 tháng thì lề đường phải được đắp bằng đất á sét hoặc sét với độ chặt K lớn hơn hoặc bằng 0,95 và lề đường phải rộng hơn từ 1,5 m đến 2,0 m. Kết cấu áo đường phải có tầng mặt không thấm nước và tầng mỏng bằng vật liệu kín, nền đường là đất được đầm với độ chặt K lớn hơn hoặc bằng 0,95 hoặc bằng đất, cát gia cố chất liên kết. Ngoài ra loại I còn có thể là loại hình nền mặt đường chịu tác động của nguồn gây ẩm nhưng không thay đổi theo mùa, độ võng của kết cấu áo đường sẽ không phụ thuộc vào độ ẩm (Km= 1,0) mà chỉ phụ thuộc vào nhiệt độ.
+ Với loại hình kết cấu nền mặt đường chịu tác động của các nguồn gây ẩm thay đổi theo mùa loại hình kết cấu nền mặt đường theo điều kiện gây ẩm loại II (ẩm vừa, quy định tại Phụ lục I) hoặc III (quá ẩm, quy định tại Phụ lục I): Nền đường đắp thấp, lề đường hẹp đắp bằng đất á cát được đầm chặt kém, có nước ngầm thường xuyên, thoát nước mặt không tốt và chịu ảnh hưởng của nước ngầm. Kết cấu áo đường có tầng mặt thuộc loại thấm nước, móng là loại không kín. Hệ số chuyển đổi mùa Km có thể lấy theo Bảng D.2 sau:
Bảng D.2 - Hệ số hiệu chỉnh độ võng về mùa bất lợi nhất trong năm (Km)
| Tình trạng bề mặt của đường | Mùa | Tháng | Hệ số Km |
| Các tỉnh miền Bắc | |||
|
| Xuân | 2 - 4 | 1,06 |
| Mặt đường kín không bị rạn nứt | Hè - Thu | 5 - 9 | 1,00 |
|
| Đông | 10 - 1 | 1,14 |
|
| Xuân | 2 - 4 | 1,18 |
| Mặt đường rạn nứt, thấm nước | Hè - Thu | 5 - 9 | 1,00 |
|
| Đông | 10 - 1 | 1,47 |
| Các tỉnh miền Trung | |||
|
| Xuân | 2 - 4 | 1,07 |
| Mặt đường kín không bị rạn nứt | Hè - Thu | 5 - 9 | 1,14 |
|
| Đông | 10 - 1 | 1,00 |
|
| Xuân | 2 - 4 | 1,24 |
| Mặt đường rạn nứt, thấm nước | Hè - Thu | 5 - 9 | 1,47 |
|
| Đông | 10-1 | 1,00 |
| Các tỉnh miền Nam và Tây Nguyên | |||
|
| Xuân | 2 - 4 | 1,14 |
| Mặt đường kín không bị rạn nứt | Hè - Thu | 5 - 9 | 1,00 |
|
| Đông | 10 - 1 | 1,07 |
|
| Xuân | 2 - 4 | 1,47 |
| Mặt đường rạn nứt, thấm nước | Hè - Thu | 5 - 9 | 1,00 |
|
| Đông | 10 - 1 | 1,24 |
| CHÚ THÍCH D.1: - Các tỉnh miền Bắc bao gồm toàn bộ các tỉnh miền núi phía Bắc, đồng bằng Bắc Bộ và các tỉnh Thanh Hóa, Nghệ An, Hà Tĩnh, Quảng Bình; - Các tỉnh miền Trung bao gồm các tỉnh từ Quảng Trị đến Ninh Thuận; Hoàng Sa (tất cả các đảo thuộc quần đảo Hoàng Sa) khu vực Đà Nẵng; Trường Sa (tất cả các đảo thuộc quần đảo Trường Sa) khu vực tỉnh Khánh Hòa; - Các tỉnh miền Nam và Tây Nguyên bao gồm các tỉnh miền Đông Nam Bộ, các tỉnh miền Tây Nam Bộ và các tỉnh Lâm Đồng, Đắc Lắk, Đắc Nông, Gia Lai, Kon Tum; Phú Quốc (bao gồm đảo Phú Quốc và các đảo khác thuộc thành phố Phú Quốc) huyện Kiên Hải tỉnh Kiên Giang. | |||
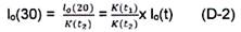
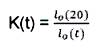
D.2.3 Hệ số hiệu chỉnh độ võng ở nhiệt độ đo về nhiệt độ tính toán (Kt):
Hệ số hiệu chỉnh nhiệt độ K(t) của độ võng lo(t) của mặt đường bê tông nhựa đo bằng thiết bị đo độ võng khi nhiệt độ mặt đường nhựa có nhiệt độ bất kỳ là t °C về độ võng lo(20) ở nhiệt độ chuẩn 20 °C trên cơ sở công thức:
|
| (D-1) |
trong đó:
K(t) - hệ số hiệu chỉnh theo nhiệt độ;
lo(t) - độ võng tại tâm tấm ép đo được trên mặt đường bê tông nhựa, khi nhiệt độ của mặt đường nhựa là t °C mm;
lo(20) - độ võng đã được hiệu chỉnh về nhiệt độ chuẩn của mặt đường bê tông nhựa ở 20 °C, mm.
- Có thể dùng đồ thị Hình D.1 để chuyển đổi độ võng lo(t) đo được trên mặt đường bê tông nhựa ở nhiệt độ t °C về độ võng ở nhiệt độ tính toán, ví dụ trường hợp hiện nay ở Việt Nam là 30 °C , lo(30), bằng cách chuyển đổi hai lần như sau:
![]()
![]()
Vậy: ![]()
VÍ DỤ:
Dùng thiết bị Benkelman đo võng ở mặt đường bê tông nhựa có lớp mặt bê tông nhựa dày 10 cm, móng trên bằng cấp phối đá dăm; nhiệt độ mặt đường nhựa lúc đo võng là t = 40 °C; trị số độ võng đo được là lo(t) = lo(40) = 1,1 mm.
- Dùng toán đồ Hình D.1, ứng với 40 °C ở trục hoành và đường nghiêng ứng với chiều dày lớp bê tông nhựa 10 cm, xác định được K(t1) = 0,77 ở trục tung.
- Cũng dùng toán đồ trên Hình D.1, ứng với 30 °C ở trục hoành và đường nghiêng ứng với chiều dày lớp bê tông nhựa 10 cm, xác định K(t2) = 0,887 ở trục tung.
Tính ra: lo(30) = 0,77 × 1,1/0,887 = 0,995 mm.

Hình D.1 - Hiệu chỉnh lo của mặt đường bê tông nhựa về nhiệt độ tính toán khi lớp móng trên là vật liệu hạt hoặc vật liệu có xử lý nhựa

Hình D.2 - Hiệu chỉnh lo của mặt đường bê tông nhựa về nhiệt độ tính toán khi lớp móng trên làm bằng vật liệu có gia cố xi măng hoặc Puzolan
Phụ lục E
(Quy định)
Tiêu chuẩn loại trừ các quan sát cực trị theo Tietjen - Moore
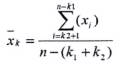
Cho dãy n quan sát được giả thiết có phân phối tuân theo quy luật chuẩn: x1, x2, x3,... xn. Để xét việc loại trừ k quan sát cực trị ra khỏi dãy thống kê cần tiến hành theo quy tắc sau:
- Bước 1:
+ Sắp xếp lại dãy quan sát các xi thành dãy x1 ≤ x2 ≤ ... ≤ xn
+ Tính giá trị trung bình của dãy theo công thức:
|
| (E.1) |
- Bước 2: Tính đại lượng so sánh theo cách sau:
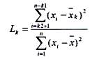
+ Khi nghi ngờ k1 giá trị quan sát lớn nhất, tính đại lượng theo công thức:
|
| (E.2) |
trong đó:
là trung bình số học của (n-k1) quan sát còn lại, sau khi đã tách k1 quan sát lớn nhất ra khỏi dãy.
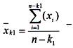
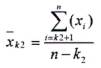
+ Khi nghi ngờ k2 giá trị quan sát cực tiểu, tính đại lượng theo công thức:
|
| (E.3) |
trong đó:
là trung bình số học của (n-k2) quan sát còn lại, sau khi đã tách k2 quan sát nhỏ nhất.
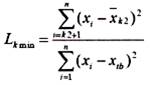
+ Khi nghi ngờ k1 giá trị lớn nhất và k2 giá trị nhỏ nhất, thì tính đại lượng:
|
| (E.4) |
trong đó:
là trung bình số học của [ n-(k1+k2)] quan sát còn lại, sau khi đã tách (k1+k2) quan sát cực trị ra khỏi dãy
- Bước 3: So sánh các giá trị Lkmax, Lkmin hoặc Lk vừa tính với giá trị tiêu chuẩn Cα được xác lập trong các bảng tính sẵn và so sánh như sau:
+ Nếu nhỏ hơn Cα thì có thể loại bỏ các quan sát cực trị đó ra khỏi tập hợp thống kê;
+ Nếu lớn hơn Cα thì không có căn cứ để loại bỏ các quan sát cực trị đó ra khỏi dãy thống kê.
VÍ DỤ: Kết quả đo võng của một đoạn đường thu được dãy số liệu sau (1/100 mm): 0,79, 0,73, 0,65, 0,28 , 0,80 , 0,38 , 0,58, 0,94 , 1,05, 0,95 , 1,15, 1,29, 1,28 , 1,23, 1,52 , 1,57, 2,31 , 1,59 , 1,63. Xem xét loại bỏ các sai số thô nếu có.
Cách giải như sau:
- Xắp lại dãy số trên:
0,28, 0,38, 0,58, 0,65, 0,73, 0,79, 0,80, 0,94, 0,95, 1,05, 1,15, 1,23, 1,28, 1,29, 1,52, 1,57, 1,59, 1,63, 2,31, 2,63.
- Tính:
=1,17
+ Ta nghi ngờ các kết quả lớn nhất 2,31 và 2,63. Cần phải xem xét có thể loại bỏ hai kết quả này được không ? Cần tiến hành như sau:
Áp dụng tiêu chuẩn loại trừ các quan sát cực trị cho trường hợp k1 = 2 (đối với hai số 2,31 và 2,63).

Tra bảng có C0,05 = 0,484 ; C0,10 = 0,530 như vậy Lkmax < C0,05 < C0,10, ta có cơ sở để loại trừ cả hai quan trắc cực trị 2.31 và 2.63 ra khỏi dãy số liệu đo võng nêu trên.
+ Nếu ta nghi ngờ cả các kết quả lớn nhất 2,31, 2,63 và nhỏ nhất 0,28, 0,38 của dãy trên thì có căn cứ thể loại chúng được không? cần tiến hành như sau:
Áp dụng tiêu chuẩn loại trừ các quan sát cực trị cho trường hợp k1 = 2 (đối với hai số 2,31,2,63); k2 = 2 (đối với hai số 0,28, 0,38).

Tra bảng với n = 20, k = 4 có C0,05 = 0,299 và C0,10 = 0,339. Như vậy Lk < C0,05 < C0,10.
Kết luận: có thể loại cả 4 quan trắc 0,28, 0,38, 2,31 và 2,63 ra khỏi dãy số liệu đo võng nêu trên.
Bảng E.1 - Giá trị tiêu chuẩn Cα
| Giá trị tiêu chuẩn Cα ứng với mức độ giá trị α = 0,10 | ||||||||||
| k n | 1 | 2 | 3 | 4 | 5 | 6 | 7 | 8 | 9 | 10 |
| 3 | 0,011 |
|
|
|
|
|
|
|
|
|
| 4 | 0,098 | 0,003 |
|
|
|
|
|
|
|
|
| 5 | 0,200 | 0,038 |
|
|
|
|
|
|
|
|
| 6 | 0,280 | 0,091 | 0,020 |
|
|
|
|
|
|
|
| 7 | 0,348 | 0,148 | 0,056 |
|
|
|
|
|
|
|
| 8 | 0,404 | 0,200 | 0,095 | 0,038 |
|
|
|
|
|
|
| 9 | 0,448 | 0,248 | 0,134 | 0,068 |
|
|
|
|
|
|
| 10 | 0,490 | 0,287 | 0,170 | 0,098 | 0,051 |
|
|
|
|
|
| 11 | 0,526 | 0,326 | 0,208 | 0,128 | 0,074 |
|
|
|
|
|
| 12 | 0,555 | 0,361 | 0,240 | 0,159 | 0,103 | 0,062 |
|
|
|
|
| 13 | 0,578 | 0,388 | 0,270 | 0,186 | 0,126 | 0,082 |
|
|
|
|
| 14 | 0,600 | 0,416 | 0,298 | 0,212 | 0,150 | 0,104 | 0,068 |
|
|
|
| 15 | 0,611 | 0,436 | 0,322 | 0,236 | 0,172 | 0,124 | 0,086 |
|
|
|
| 16 | 0,631 | 0,458 | 0,342 | 0,260 | 0,194 | 0,144 | 0,104 | 0,073 |
|
|
| 17 | 0,648 | 0,478 | 0,364 | 0,282 | 0,216 | 0,165 | 0,125 | 0,092 |
|
|
| 18 | 0,661 | 0,496 | 0,384 | 0,302 | 0,236 | 0,184 | 0,142 | 0,108 | 0,080 |
|
| 19 | 0,676 | 0,510 | 0,398 | 0,316 | 0,251 | 0,199 | 0,158 | 0,124 | 0,094 |
|
| 20 | 0,688 | 0,530 | 0,420 | 0,339 | 0,273 | 0,220 | 0,176 | 0,140 | 0,110 | 0,085 |
| 25 | 0,732 | 0,588 | 0,489 | 0,412 | 0,350 | 0,296 | 0,251 | 0,213 | 0,180 | 0,152 |
| 30 | 0,766 | 0,637 | 0,523 | 0,472 | 0,411 | 0,359 | 0,316 | 0,276 | 0,240 | 0,210 |
| 35 | 0,792 | 0,673 | 0,586 | 0,516 | 0,458 | 0,410 | 0,365 | 0,328 | 0,294 | 0,262 |
| 40 | 0,812 | 0,702 | 0,622 | 0,554 | 0,499 | 0,451 | 0,408 | 0,372 | 0,338 | 0,307 |
| 45 | 0,826 | 0,724 | 0,648 | 0,586 | 0,533 | 0,488 | 0,447 | 0,410 | 0,378 | 0,384 |
| 50 | 0,840 | 0,744 | 0,673 | 0,614 | 0,562 | 0,518 | 0,477 | 0,442 | 0,410 | 0,380 |
| Giá trị tiêu chuẩn Cα ứng với mức độ giá trị α = 0,05 | ||||||||||
| 3 | 0,003 |
|
|
|
|
|
|
|
|
|
| 4 | 0,051 | 0,001 |
|
|
|
|
|
|
|
|
| 5 | 0,125 | 0,018 |
|
|
|
|
|
|
|
|
| 6 | 0,203 | 0,055 | 0,010 |
|
|
|
|
|
|
|
| 7 | 0,273 | 0,106 | 0,032 |
|
|
|
|
|
|
|
| 8 | 0,326 | 0,146 | 0,064 | 0,022 |
|
|
|
|
|
|
| 9 | 0,372 | 0,194 | 0,099 | 0,045 |
|
|
|
|
|
|
| 10 | 0,418 | 0,233 | 0,129 | 0,070 | 0,034 |
|
|
|
|
|
| 11 | 0,454 | 0,270 | 0,162 | 0,098 | 0,054 |
|
|
|
|
|
| 12 | 0,489 | 0,305 | 0,196 | 0,125 | 0,076 | 0,042 |
|
|
|
|
| 13 | 0,517 | 0,337 | 0,224 | 0,150 | 0,098 | 0,060 |
|
|
|
|
| 14 | 0,540 | 0,363 | 0,250 | 0,174 | 0,122 | 0,079 | 0,050 |
|
|
|
| 15 | 0,556 | 0,387 | 0,276 | 0,197 | 0,140 | 0,097 | 0,066 |
|
|
|
| 16 | 0,575 | 0,410 | 0,300 | 0,219 | 0,159 | 0,115 | 0,082 | 0,055 |
|
|
| 17 | 0,594 | 0,427 | 0,322 | 0,240 | 0,181 | 0,136 | 0,100 | 0,072 |
|
|
| 18 | 0,608 | 0,447 | 0,337 | 0,259 | 0,200 | 0,154 | 0,116 | 0,086 | 0,062 |
|
| 19 | 0,624 | 0,462 | 0,354 | 0,277 | 0,209 | 0,168 | 0,130 | 0,099 | 0,074 |
|
| 20 | 0,639 | 0,484 | 0,377 | 0,299 | 0,238 | 0,188 | 0,150 | 0,115 | 0,088 | 0,066 |
| 25 | 0,696 | 0,550 | 0,450 | 0,374 | 0,312 | 0,262 | 0,222 | 0,184 | 0,154 | 0,126 |
| 30 | 0,730 | 0,599 | 0,506 | 0,434 | 0,376 | 0,327 | 0,283 | 0,245 | 0,212 | 0,183 |
| 35 | 0,762 | 0,642 | 0,554 | 0,482 | 0,424 | 0,376 | 0,334 | 0,297 | 0,264 | 0,235 |
| 40 | 0,784 | 0,672 | 0,588 | 0,523 | 0,468 | 0,421 | 0,378 | 0,342 | 0,310 | 0,280 |
| 45 | 0,802 | 0,696 | 0,618 | 0,556 | 0,502 | 0,456 | 0,417 | 0,382 | 0,350 | 0,320 |
| 50 | 0,820 | 0,722 | 0,646 | 0,588 | 0,535 | 0,490 | 0,450 | 0,414 | 0,383 | 0,356 |
| CHÚ THÍCH E.1: Ý nghĩa của mức độ giá trị tiêu chuẩn α = 0,10 hoặc α = 0,05 , .v.v... là xác suất loại bỏ giả thuyết bằng 0,10 hoặc 0,05 , v.v... nếu giả thuyết đó là đúng. | ||||||||||
Phụ lục F
(Quy định)
Phương pháp hiệu số cộng dồn để phân định các phân đoạn kết quả đo võng
F.1 Đặt vấn đề
Độ võng đàn hồi của mặt đường là hàm của các biến phụ thuộc như: loại mặt đường , kết cấu áo đường, loại hình và trạng thái đất nền đường, lưu lượng xe chạy, thời gian sử dụng mặt đường, nhiệt độ của mặt đường ... Vì có quá nhiều biến phụ thuộc nên giữa các trị số độ võng đo được luôn có những sai lệch cho dù có rút ngắn khoảng cách giữa các điểm đo. Bởi vậy, để đánh giá năng lực chịu tải của đường người ta phải phân tuyến đường thành từng đoạn đặc trưng, tiến hành xử lý thống kê các kết quả đo võng để đánh giá. Cơ sở của sự phân đoạn là sự khác nhau theo dọc tuyến của các biến phụ thuộc nêu trên được lấy từ hồ sơ các tuyến đường hiện có của các cơ quan quản lý đường bộ và các số liệu thu được qua khảo sát thăm dò thực tế ngoài hiện trường.
Vì một lý do nào đó, nếu công việc này không thực hiện được, người ta có thể chỉ căn cứ vào đồ thị đo võng dọc tuyến để phân định các đoạn qua một số phương pháp. Đơn giản nhất là bằng mắt để phân định một cách chủ quan nơi nào xảy ra các phân đoạn tương đối giống nhau. Ngoài ra có thể dùng phương pháp giải tích "Sai phân tích lũy" áp dụng trong trường hợp biến không liên tục gọi là "Hiệu số cộng dồn" để phân đoạn.
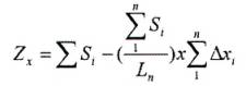
F.2 Phương pháp “Hiệu số cộng dồn”
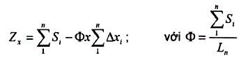
Phương pháp dựa trên vấn đề toán học là biến số Zx (được xác định bằng hiệu số giữa diện tích đường cong đo võng dọc tuyến tại bất kỳ khoảng cách nào và tổng diện tích được tính từ đường trung bình độ võng của toàn bộ tuyến đo được tại cùng khoảng cách đó) được vẽ thành đồ thị theo hàm số của khoảng cách dọc theo tuyến đường. Các biên của phân đoạn sẽ xảy ra tại vị trí mà các độ dốc của đồ thị Zx - X thay đổi dấu (xem hình F.1, F.2 và bảng F.1)
|
| (F.1) |

trong đó:
Si là diện tích thực tế của khoảng cách thứ i. Giá trị Si = Ltb × Δxi;
Δxi là chiều dài của khoảng cách thứ i;
Ltb là độ võng trung bình của khoảng thứ i;
Ln là tổng chiều dài của tuyến đường phải đo võng.
Từ kết quả phân đoạn sơ bộ này xác định độ võng đàn hồi đặc trưng (Lđt) cho từng đoạn, xem xét quyết định có thể nhập hai hoặc nhiều phân đoạn với nhau vì lý do thi công thực tế và lý do kinh tế được hay không ?. Với loại tầng mặt cấp cao (bê tông nhựa chặt) trên các tuyến đường cấp I, cấp II, đường cao tốc, đường trục chính ở các đô thị, đường trong xí nghiệp lớn, có thể nhập hai phân đoạn liền kề với nhau nếu mức chênh lệch về độ võng đàn hồi đặc trưng (Lđt) giữa chúng không vượt quá 10% .Với tầng mặt cấp thấp hơn đường cấp III, cấp IV có lớp mặt là bê tông nhựa rải nguội và ấm, các loại mặt đường: thấm nhập nhựa, đá dăm nước, đá gia cố chất kết dính vô cơ (phía trên có lớp láng nhựa) có thể nhập hai phân đoạn liền kề với nhau nếu mức chênh lệch về độ võng đàn hồi đặc trưng (Lđt) giữa chúng không vượt quá 15%.
Những phân đoạn nhỏ hơn 500 mét nếu không phải là những đoạn quá yếu đặc biệt (bị cao su, lún sụt) thì cũng nên nhập với các phân đoạn liền kề với chúng để giảm bớt sự phức tạp không cần thiết (xem hình F.4).

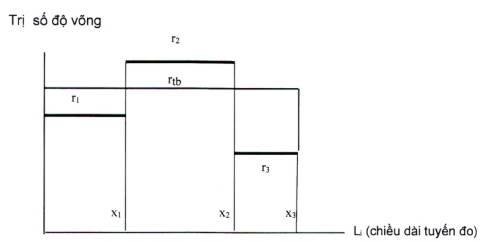
Diện tích tích lũy Ai = ri dx


Hình F.1 - Phương pháp sai phân tích lũy để phân đoạn cho biến liên tục

Hình F.2 - Ví dụ về xác định ranh giới các đoạn bằng phương pháp hiệu số cộng dồn

Hình F.3 - Ví dụ về biểu đồ độ võng đàn hồi theo thứ tự điểm đo trên Quốc lộ 1A đoạn TP.Hồ Chí Minh - Cần Thơ
Bảng F.1 - Phương pháp hiệu số cộng dồn phân đoạn kết quả đo võng
| Thứ tự điểm đo n | Vị trí | Chiều dài Các khoảng cách Δxi (100m) | Độ võng m. đường ở vị trí đo Li (1/100 mm) | Chiều dài cộng dồn các khoảng cách ΣΔxi (100m) | Độ võng trung bình của các khoảng cách ltbl (1/100 mm) | Diện tích thực tế của khoảng cách Si | Diện tích tích lũy của khoảng cách ΣSi | Hiệu số cộng dồn Zx | Giá trị thống kê của các khoảng chia Itbk, σk | Độ võng thiết kế Itk |
| 0 | 0 |
|
|
|
|
|
|
|
|
|
| 1 | Km...+000 | Δx1 | l1 | Δx1 | h | Δx1. l1 | S1 | S1 - Φ.Δx1 | Φ = ΣSi/ ΣΔxi |
|
| 2 | 100 | Δx2 | l2 | Δx1+Δx2 | (l1 + l2)/2 | Δx2. (l1+l2)/2 | S1 + S2 | S1 + S2 - Φ (Δx1+Δx2) |
|
|
| 3 | 400 | Δx3 | l3 | Δx1+Δx2+Δx3 | (l2 + l3)/2 | Δx3. (l2+l3)/2 | S1 + S2 + S3 | S1 + S2 + S3 -<P (Δx1+Δx2+Δx3) | ltbk = average (:) δk = stdev (:) | Itbk + Kδk |
| 4 | 700 |
|
|
|
|
|
|
|
|
|
| 5 | Km...+000 |
|
|
|
|
|
|
|
|
|
| 6 | 200 |
|
|
|
|
|
|
|
|
|
| 7 | 300 |
|
|
|
|
|
|
|
|
|
| 8 | 400 |
|
|
|
|
|
|
|
|
|
|
| ............... | ............... | ............... | ............... | ............... | ............... | ............... | ............... | ............... | ............... |
| n |
| Δxi | li | Δx1+...+Δxi | (Ii-1+ li)/2 | Δxi. (li-1+Ii)/2 | S1 +...+ Si | ΣSi - ΦΣΔxi |
|
|

Lý trình
Hình F.4 - Ví dụ về biểu đồ độ võng đàn hồi theo lý trình điểm đo trên Quốc lộ 1A đoạn TP.Hồ Chí Minh - Cần Thơ
Phụ lục G
(Tham khảo)
Xác định trị số mô đun đàn hồi đặc trưng
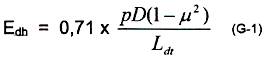
Kết quả đo độ võng có thể được sử dụng để xác định trị số mô đun đàn hồi đặc trưng của từng đoạn đường thử nghiệm (ký hiệu là Edh) theo công thức sau:

trong đó:
0,71 là hằng số đo độ võng;
p là áp lực bánh xe tiêu chuẩn xuống mặt đường, p = 0,6 MPa;
D là đường kính tương đương của diện tích vệt bánh xe tiêu chuẩn, D = 33 cm;
μ là hệ số poát xông, μ = 0,3;
Ldt là độ võng đàn hồi đặc trưng xác định theo Điều 6.2.
Phụ lục H
(Tham khảo)
Hướng dẫn xác định nhiệt độ mặt đường
H.1 Phạm vi áp dụng
Hướng dẫn này đưa ra trình tự xác định nhiệt độ mặt đường khi đo độ võng đàn hồi bằng cần đo võng Benkelman.
H.2 Quy định chung
H.2.1 Để xác định hệ số hiệu chỉnh độ võng về nhiệt độ tính toán cần phải xác định nhiệt độ mặt đường tại từng vị trí đo độ võng. Nhiệt độ mặt đường được quy định ở độ sâu 40 mm tính từ bề mặt đường.
H.2.2 Nhiệt độ bề mặt đường được đo bằng nhiệt kế hồng ngoại với độ chính xác ± 1 °C. Từ nhiệt độ bề mặt đường tính toán nhiệt độ mặt đường bằng các mô hình hồi quy.
H.2.3 Xác định nhiệt độ mặt đường tại một điểm đo độ võng bao gồm 3 bước:
- Bước 1: Xác định vị trí đo nhiệt độ gần điểm đo độ võng.
- Bước 2: Dùng nhiệt kế hồng ngoại đo nhiệt độ bề mặt đường.
- Bước 3: Tính toán nhiệt độ mặt đường ở độ sâu 40 mm bằng mô hình BELLS theo AASHTO T317 hoặc các mô hình hồi quy được xây dựng.
H.3. Mô hình BELLS theo AASHTO T317
H.3.1 Phương trình mô hình BELLS theo công thức (H-1):
Td = 0,95 + 0,892*IR + [lg(d) - 1,25]*[-0,44*IR + 0,621*(1-day) + 1,83*A] + 0,042*IR*B (H-1)
Trong đó:
| Td: | Nhiệt độ mặt đường ở độ sâu d mm, °C; |
| IR: | Nhiệt độ bề mặt đường đo bằng nhiệt kế hồng ngoại, °C; |
| Lg: | Logarithm cơ số 10; |
| (1-day): | Giá trị trung bình của nhiệt độ không khí cao nhất và nhiệt độ không khí thấp nhất trong 24 h (1 ngày) trước đó tại vị trí đo, °C; |
| A, B: | Các hệ số tính toán theo thời gian đo trong ngày, theo Bảng H-1; |
| h: | Thời gian đo trong ngày theo định dạng 24h. Ví dụ 1h30’ chiều thì h = 13,5; |
| Sin: | Hàm số sine, đối số tính bằng độ. |
Bảng H-1. Hệ số A, B theo thời gian đo trong ngày h
| Thời gian đo h | Hệ số A | Hệ số B |
| 0,0 < h ≤ 3,0 | Sin[(h+24-15,5)*20] | Sin[(h+24-13,5)*20] |
| 3,0 < h ≤ 5,0 | Sin[(h+24-15,5)*20] | -1,0 |
| 5,0 < h ≤ 9,0 | -1,0 | -1,0 |
| 9,0 < h ≤ 11,0 | -1,0 | Sin[(h-13,5)*20] |
| 11,0 < h ≤ 24,0 | Sin[(h-15,5)*20] | Sin[(h-13,5)*20] |
H.3.2 Ví dụ xác định nhiệt độ mặt đường theo mô hình BELLS.
Xác định nhiệt độ mặt đường tại thời điểm đo h=10h30’, nhiệt độ bề mặt đo bằng nhiệt kế hồng ngoại IR=35 °C, (1-day) = 28 °C.
Ta có: h=10h30’ = 10,5 trong phạm vi 9,0 < h ≤ 11,0, từ Bảng H-1 tính được A = -1,0 và B = -0,866
Thay vào phương trình (H-1) với d = 40 mm tính ra T40 = 30,95 °C.
H.4 Mô hình thực nghiệm tại Việt Nam
H.4.1 Mô hình (H-2) được thiết lập từ nghiên cứu thực nghiệm tại Việt Nam. Từ các số liệu đo đạc thực tế, phân tích thống kê xây dựng được mô hình với hệ số xác định R2 = 0,975, sai số căn quân phương RMSE (Root Mean Squared Error) bằng 1,37 °C.
T40 = 4,1478 + 0,89492*IR + 0,079738*IR*cos(2*pi*h/24 + 0,65568) (H-2)
Trong đó:
| T40: | Nhiệt độ mặt đường ở độ sâu 40 mm, °C; |
| IR: | Nhiệt độ bề mặt đường đo bằng nhiệt kế hồng ngoại, °C; |
| pi: | Số pi = 3,1416; |
| h: | Thời gian đo trong ngày theo định dạng 24h. Ví dụ 1h30’ chiều thì h = 13,5; |
| Cos: | Hàm số cosine, đối số tính bằng Radian. |
H.3.2 Ví dụ xác định nhiệt độ mặt đường theo mô hình thực nghiệm tại Việt Nam.
Xác định nhiệt độ mặt đường tại thời điểm đo h=10h30’, nhiệt độ bề mặt đo bằng nhiệt kế hồng ngoại IR=35 °C.
Ta có: h=10h30’ = 10,5, thay vào phương trình (H-2) tính ra T40 = 32,78 °C.
Phụ lục I
(Quy định)
Loại hình kết cấu nền mặt đường chịu tác động của các nguồn gây ẩm
I.1 Loại I (luôn khô ráo)
Loại I (luôn khô ráo) là loại đồng thời bảo đảm được các điều kiện và yêu cầu dưới đây:
- Khoảng cách từ mực nước ngầm hoặc mực nước đọng thường xuyên đến dưới đáy phạm vi tác dụng của nền đường thỏa mãn điều kiện trong Bảng 1.1. Đối với mực nước đọng thường xuyên không thỏa mãn, nếu không thỏa mãn điều kiện trong Bảng 1.1, nhưng thời gian ngập trong một năm dưới 3 tháng, xem như nền đường loại I;
- Kết cấu áo đường phải có tầng mặt kín và lớp móng trên bằng vật liệu gia cố chất liên kết hoặc có lớp cải thiện nền (có thể là cấp phối sỏi đồi hay cấp phối sỏi suối, đất hoặc cát gia cố chất liên kết vô cơ như xi măng, vôi hay xi măng kết hợp tro bay; hỗn hợp đá thải (đá lẫn đất) với hàm lượng cốt liệu đá không nhỏ hơn 60 %.)
- Nền đất trong khu vực tác dụng phải đầm nén đạt yêu cầu ở Bảng I.2;
I.2 Loại II (ẩm vừa)
Kết cấu nền mặt đường loại này có chịu ảnh hưởng của một vài nguồn ẩm và không đạt được một trong các điều kiện như đối với loại I; chẳng hạn, khoảng cách h chỉ đạt được tương ứng trạng thái ẩm vừa ở Bảng 1.1 hoặc có tầng mặt thấm nước.
I.3 Loại III (quá ẩm)
Kết cấu nền mặt đường chịu nhiều ảnh hưởng của các nguồn ẩm. Cụ thể trong các trường hợp sau: Nền đường đắp thấp, lề hẹp bằng đất đầm chặt kém, có nước ngập thường xuyên không thỏa mãn yêu cầu Bảng 1.1. Mặt đường hở, mỏng là vật liệu hở, không gia cố (đá ba, đá dăm...).
Bảng I.1 - Trạng thái ẩm tương ứng với khoảng cách từ mức nước ngầm hoặc mực nước đọng thường xuyên đến đáy khu vực tác dụng của nền đường
| Trạng thái ẩm | Khoảng cách từ mức nước ngầm đến đáy khu vực tác dụng của nền đường (h, m) | ||
| Đất cát | Đất sét | Đất bụi | |
| Loại I (luôn khô ráo) | 0,4 ÷ 0,6 | 0,6 ÷ 1,0 | 1,0 ÷ 1,4 |
| Loại II (ẩm vừa) | 0,2 ÷ 0,4 | 0,4 ÷ 0,6 | 0,6 ÷ 1,0 |
| Loại III (quá ẩm) | 0,0 ÷ 0,2 | 0,0 ÷ 0,4 | 0,0 ÷ 0,6 |
Bảng I.2: Độ chặt đầm nén yêu cầu đối với nền đường bằng đất
| Loại và bộ phận nền đường | Phạm vi độ sâu tính từ đáy áo đường trở xuống (cm) | Độ chặt K của nền đường | ||||
| Đường cao tốc | Đường cấp I đến cấp IV | Đường cấp V đến cấp VI | ||||
| Nền đắp | Lớp nền trên cùng (lớp đỉnh nền) | 30 | ≥ 1,0 | ≥ 0,98 | ≥ 0,95 | |
| Bên dưới chiều sâu nói trên | Cho đến hết thân nền đắp (trường hợp vật liệu mới đắp). |
| ≥ 0,98 | ≥ 0,95 | ≥ 0,93 | |
| Đất nền tự nhiên(*) | Cho đến 80 |
| ≥ 0,93 | ≥ 0,90 | ||
| Cho đến 100 | ≥ 0,95 |
|
| |||
| Nền đào và không đào không đắp (nền thiên nhiên (**)) | 30 | ≥ 1,0 | ≥ 0,98 | ≥ 0,95 | ||
| 30 đến 80 |
| ≥ 0,93 | ≥ 0,90 | |||
| 30 đến 100 | ≥ 0,95 |
|
| |||
| - (*) Trường hợp này là trường hợp nền đắp thấp khu vực tác dụng có một phần nằm vào phạm vi đất nền thiên nhiên; - (**) Nếu nền thiên nhiên không đạt độ chặt yêu cầu ở Bảng 2 thì phải đào phạm vi không đạt rồi đầm nén lại cho đạt yêu cầu. | ||||||
Thư mục tài liệu tham khảo
[1] AASHTO T 256-01 Pavement Deflection Measurements.
[2] ICR-81-1997, Guidelines For strengthening Of Flexible Road Pavements Using Benkelman Beam Deflection Technique.
[3] JT/T 120-2008, Benkelman beam pavement deflectometer.
[4] T 0951-2008, Method for Testing Rebound Deflection of Subgrade Pavement-Benkelman Beam.
Mục lục
1 Phạm vi áp dụng
2 Tài liệu viện dẫn
3 Thuật ngữ và định nghĩa
4 Thiết bị, dụng cụ
5 Cách tiến hành
6 Xử lý kết quả đo võng
7 Báo cáo thử nghiệm
Phụ lục A (Tham khảo): Biểu phân đoạn tuyến để đánh giá độ võng đàn hồi kết cấu mặt đường mềm
Phụ lục B (Tham khảo) Biểu kiểm tra thiết bị đo độ võng đàn hồi bằng cần Benkelman
Phụ lục C (Tham khảo) Biểu ghi dữ liệu do độ võng đàn hồi bằng cần Benkelman
Phụ lục D (Quy định) Xác định mùa bất lợi nhất, hệ số chuyển đổi mùa và chuyển đổi nhiệt độ mặt đường
Phụ lục E (Quy định) Tiêu chuẩn loại trừ các quan sát cực trị theo Tietjen-Moore
Phụ lục F (Quy định) Phương pháp hiệu số cộng dồn để phân định các phân đoạn kết quả đo võng
Phụ lục G (Tham khảo) Xác định trị số mô đun đàn hồi đặc trưng
Phụ lục H (Tham khảo) Hướng dẫn xác định nhiệt độ mặt đường
Phụ lục I (Quy định) Loại hình kết cấu nền mặt đường chịu tác động của các nguồn gây ẩm
Thư muc tài liệu tham khảo
Bạn chưa Đăng nhập thành viên.
Đây là tiện ích dành cho tài khoản thành viên. Vui lòng Đăng nhập để xem chi tiết. Nếu chưa có tài khoản, vui lòng Đăng ký tại đây!




