- Tổng quan
- Nội dung
- Quy chuẩn liên quan
- Lược đồ
- Tải về
Quy chuẩn kỹ thuật quốc gia QCVN 22:2025/BXD Khai thác đường sắt
| Số hiệu: | QCVN 22:2025/BXD | Loại văn bản: | Quy chuẩn Việt Nam |
| Cơ quan ban hành: | Bộ Xây dựng | Lĩnh vực: | Xây dựng , Giao thông |
| Trích yếu: | Khai thác đường sắt | ||
|
Ngày ban hành:
Ngày ban hành là ngày, tháng, năm văn bản được thông qua hoặc ký ban hành.
|
09/12/2025 |
Hiệu lực:
|
Đã biết
|
| Người ký: | Đang cập nhật |
Tình trạng hiệu lực:
Cho biết trạng thái hiệu lực của văn bản đang tra cứu: Chưa áp dụng, Còn hiệu lực, Hết hiệu lực, Hết hiệu lực 1 phần; Đã sửa đổi, Đính chính hay Không còn phù hợp,...
|
Đã biết
|
TÓM TẮT QUY CHUẨN VIỆT NAM QCVN 22:2025/BXD
Quy chuẩn kỹ thuật quốc gia QCVN 22:2025/BXD về Khai thác Đường sắt: Những quy định quan trọng cho tổ chức và cá nhân
Quy chuẩn kỹ thuật quốc gia QCVN 22:2025/BXD, được Bộ Xây dựng ban hành theo Thông tư số 44/2025/TT-BXD ngày 09 tháng 12 năm 2025, nhằm thay thế QCVN 08:2018/BGTVT, quy định rõ ràng các yêu cầu kỹ thuật và quản lý đối với khai thác đường sắt tại Việt Nam. Văn bản này không chỉ điều chỉnh mức giới hạn đặc tính kỹ thuật mà còn xác định rõ đối tượng áp dụng, bao gồm các tổ chức, cá nhân hoạt động liên quan đến đường sắt quốc gia và đường sắt chuyên dùng.
Phạm vi điều chỉnh: Quy chuẩn này áp dụng cho các công trình đường sắt, phương tiện giao thông đường sắt cùng tổ chức chạy tàu trên các tuyến đường sắt quốc gia, chuyên dùng có kết nối. Các yêu cầu cụ thể được nêu cho đường sắt có tốc độ thiết kế tối đa 120 km/h.
Quy định về công trình đường sắt: Các hạng mục công trình đường sắt như đường, cầu, cống, ga, hệ thống tín hiệu phải đảm bảo trạng thái kỹ thuật an toàn. Quy chuẩn yêu cầu công trình đường sắt phải được kiểm tra thường xuyên, định kỳ, đồng thời cần có hồ sơ trạng thái kỹ thuật theo quy định.
Yêu cầu về vận hành tàu: Quy chuẩn nhấn mạnh khối lượng vận tải, độ dốc và mặt cắt dọc của tuyến đường sắt cần được tính toán kỹ lưỡng để đảm bảo an toàn trong khai thác. Đặc biệt, doanh nghiệp quản lý tài sản đường sắt phải có kế hoạch kiểm soát chiều cao của ray và duy trì tiêu chuẩn kỹ thuật trong quá trình xây dựng, bảo trì.
Quy định về các thiết bị phụ trợ: Thiết bị tín hiệu, thông tin và cứu hộ trong quá trình khai thác cũng phải tuân theo các tiêu chuẩn kỹ thuật cụ thể. Các thiết bị này cần được bảo trì liên tục để đảm bảo giao tiếp và chỉ huy hiệu quả trong hoạt động chạy tàu.
Chế độ quản lý ga đường sắt: Các ga cần được phân loại theo cấp kỹ thuật và quy định rõ ràng về điều kiện hoạt động của từng cấp. Yêu cầu về trang bố trí trên ga cũng như điều kiện lên xuống an toàn cho hành khách và hàng hóa được nhấn mạnh trong quy chuẩn.
Quy chuẩn QCVN 22:2025/BXD có hiệu lực từ ngày 01/01/2026 và là cơ sở pháp lý quan trọng cho tổ chức, cá nhân hoạt động trong lĩnh vực đường sắt, đảm bảo an toàn và hiệu quả trong khai thác.
Tải quy chuẩn Việt Nam QCVN 22:2025/BXD

CỘNG HÒA XÃ HỘI CHỦ NGHĨA VIỆT NAM
QCVN 22:2025/BXD
QUY CHUẨN KỸ THUẬT QUỐC GIA
VỀ KHAI THÁC ĐƯỜNG SẮT
National technical regulations on railway operations
HÀ NỘI - 2025
Lời nói đầu
QCVN 22:2025/BXD do Cục Đường sắt Việt Nam chủ trì biên soạn, Bộ Khoa học và Công nghệ thẩm định và được Bộ Xây dựng ban hành theo Thông tư số 44/2025/TT-BXD ngày 09 tháng 12 năm 2025, thay thế QCVN 08:2018/BGTVT - Quy chuẩn kỹ thuật quốc gia về khai thác đường sắt.
QUY CHUẨN KỸ THUẬT QUỐC GIA
VỀ KHAI THÁC ĐƯỜNG SẮT
National technical regulations on railway operations
1. QUY ĐỊNH CHUNG
1.1 Phạm vi điều chỉnh
Quy chuẩn kỹ thuật quốc gia về khai thác đường sắt (sau đây gọi tắt là Quy chuẩn) quy định về mức giới hạn của đặc tính kỹ thuật và yêu cầu quản lý đối với các công trình đường sắt, phương tiện giao thông đường sắt, tổ chức chạy tàu trên đường sắt quốc gia và đường sắt chuyên dùng có kết nối ray vào đường sắt quốc gia đang khai thác, đường sắt khổ 1000mm, đường sắt khổ 1435mm và đường sắt lồng (khổ 1435mm và 1000mm), có tốc độ thiết kế từ 120 km/h trở xuống.
1.2 Đối tượng áp dụng
Quy chuẩn này áp dụng cho tổ chức, cá nhân có các hoạt động liên quan đến mạng đường sắt quốc gia, đường sắt chuyên dùng có kết nối ray vào đường sắt quốc gia.
2. QUY ĐỊNH KỸ THUẬT
2.1 Công trình đường sắt
2.1.1 Quy định chung đối với công trình, hạng mục công trình đường sắt
2.1.1.1 Để duy trì khai thác vận tải đường sắt thường xuyên, đảm bảo an toàn, công trình đường sắt phải bao gồm:
a) Đường, cầu, cống, hầm;
b) Kè, tường chắn;
c) Ga, khu tập kết bảo dưỡng, sửa chữa tàu (đề-pô);
d) Hệ thống thông tin, hệ thống tín hiệu, hệ thống báo hiệu cố định;
đ) Hệ thống cấp điện sức kéo đường sắt;
e) Công trình, thiết bị phụ trợ khác của đường sắt.
2.1.1.2 Công trình đường sắt phải được kiểm tra thường xuyên, định kỳ và phải có hồ sơ trạng thái kỹ thuật công trình để theo dõi diễn biến trong quá trình sử dụng. Nội dung, chế độ kiểm tra, báo cáo và hồ sơ trạng thái kỹ thuật công trình phải được thực hiện theo quy định về quản lý, khai thác kết cấu hạ tầng đường sắt.
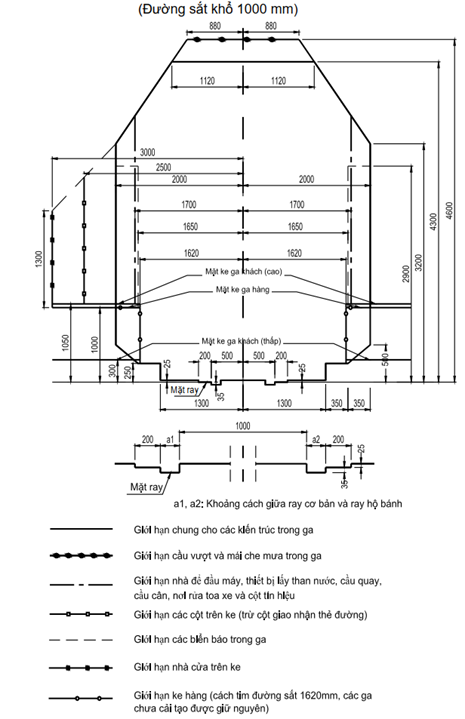
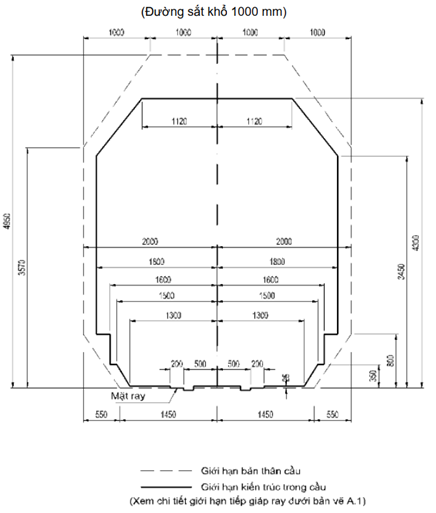
2.1.1.3 Khổ giới hạn tiếp giáp kiến trúc đường sắt là khoảng không gian giới hạn dọc theo đường sắt đủ để tàu chạy qua không bị va quệt. Bất cứ bộ phận nào của công trình và thiết bị cố định hay di động (trừ các thiết bị quy định tại mục 2.1.1.4) đều không được phạm vào khổ giới hạn tiếp giáp kiến trúc quy định trong Phụ lục A và Phụ lục C ban hành kèm theo Quy chuẩn này để đảm bảo an toàn chạy tàu, an toàn công trình.
2.1.1.4 Những thiết bị có liên quan trực tiếp với đầu máy, toa xe như cột giao nhận thẻ đường đang hoạt động được phạm vào khổ giới hạn tiếp giáp kiến trúc nhưng không được phạm vào khổ giới hạn đầu máy, toa xe.
2.1.2 Quy định cụ thể đối với công trình, hạng mục công trình đường sắt
2.1.2.1 Đường sắt
2.1.2.1.1 Mặt cắt dọc
2.1.2.1.1.1 Mặt cắt dọc của tuyến đường sắt
a) Độ dốc đỉnh ray của tuyến đường sắt không được vượt quá độ dốc hạn chế của tuyến (trừ trường hợp nêu tại điểm b mục này) và đáp ứng tiêu chuẩn kỹ thuật áp dụng cho tuyến đường.
b) Khi khối lượng vận tải của tuyến đường theo từng luồng hàng không cân bằng hoặc ở những nơi có bố trí nhiều đầu máy kéo trong một đoàn tàu thì được phép sử dụng độ dốc lớn hơn dốc hạn chế nhưng phải có biện pháp đảm bảo an toàn trong quá trình chạy tàu.
c) Đối với các tuyến đường đang khai thác không thỏa mãn các yêu cầu tại điểm b mục này Doanh nghiệp quản lý tài sản đường sắt quốc gia, doanh nghiệp kinh doanh vận tải đường sắt phải có giải pháp kỹ thuật đảm bảo an toàn giao thông vận tải đường sắt trong quá trình khai thác, kinh doanh kết cấu hạ tầng đường sắt, kinh doanh vận tải đường sắt.
2.1.2.1.1.2 Mặt cắt dọc của đường ga
Ga phải được xây dựng trên đoạn đường bằng. Trường hợp cá biệt được phép xây dựng ga trên đường có độ dốc không quá 2,5 nhưng phải phù hợp với tác nghiệp của ga và phải bảo đảm an toàn khai thác. Gặp địa hình thật khó khăn, những ga không tổ chức dồn dịch được xây dựng trên độ dốc lớn hơn, nhưng phải xét đến sức cản của dốc khi tàu chuyển bánh để bảo đảm tiêu chuẩn trọng lượng tàu quy định trong khu đoạn và có biện pháp đảm bảo an toàn trong quá trình khai thác.
2.1.2.1.1.3 Bán kính đường cong nối dốc đứng được bố trí tại các vị trí đổi dốc có hiệu số đại số độ dốc lớn theo tiêu chuẩn áp dụng cho tuyến đường. Giá trị bán kính đường cong nối dốc đứng phải đủ lớn để đảm bảo tàu vận hành ổn định, an toàn, không bị trật bánh, tuột móc toa xe khi qua lại vị trí điểm đổi dốc này.
2.1.2.1.1.4 Mặt cắt dọc và mặt bằng của tuyến, ga đường sắt phải được đo đạc, kiểm tra định kỳ nhằm phòng ngừa, phát hiện và khắc phục các nguyên nhân gây hư hỏng nhằm bảo đảm và duy trì sự làm việc bình thường, an toàn của công trình trong suốt quá trình hoạt động. Doanh nghiệp quản lý tài sản đường sắt quốc gia quyết định chu kỳ kiểm tra, nội dung, yêu cầu kiểm tra các nội dung này.
2.1.2.1.2 Khoảng cách giữa hai tim đường
Khoảng cách nhỏ nhất giữa hai tim đường sắt liền kề phải đảm bảo yêu cầu về khổ giới hạn tiếp giáp kiến trúc, an toàn cho người và các phương tiện giao thông đường sắt trong trường hợp bất lợi hai đoàn tàu chạy ngược chiều cùng lúc.
2.1.2.1.3 Bố trí đường trong ga
2.1.2.1.3.1 Số lượng đường trong ga phải phù hợp với loại ga, năng lực tuyến đường, tính năng của các trang thiết bị sử dụng trong ga.
2.1.2.1.3.2 Chiều dài dùng được của đường đón gửi tàu hoặc tránh tàu trong ga phải lớn hơn chiều dài đoàn tàu lớn nhất khai thác trên tuyến đó.
2.1.2.1.4 Nền đường
2.1.2.1.4.1 Bề rộng nền đường phải đủ để bố trí kết cấu tầng trên đường sắt, các hạng mục công trình phụ trợ khác cần phải bố trí trên nền đường, phục vụ cho công tác bảo trì và đảm bảo an toàn chạy tàu.
2.1.2.1.4.2 Hệ thống thoát nước nền đường phải đảm bảo đủ để thoát nước theo lưu lượng tính toán.
2.1.2.1.4.3 Nền đường phải ổn định trong quá trình khai thác theo tải trọng, tốc độ thiết kế của tuyến đường.
2.1.2.1.5 Kết cấu tầng trên đường sắt
2.1.2.1.5.1 Kết cấu tầng trên đường sắt bao gồm: Ray và phụ kiện nối giữ ray; Tà vẹt và phụ kiện nối giữ ray với tà vẹt; Đá ba lát; Ghi và phụ kiện liên kết; Tà vẹt ghi và phụ kiện liên kết tà vẹt với ray ghi.
2.1.2.1.5.2 Kết cấu tầng trên đường sắt phải đảm bảo tải trọng và tốc độ thiết kế của tuyến đường
2.1.2.1.5.3 Cự ly ray
Cự ly ray trên đường thẳng là khoảng cách ngắn nhất giữa hai má tác dụng của hai ray chính, được đo tại vị trí cách đỉnh ray xuống 16 mm, là 1000 mm đối với đường sắt khổ 1000 mm và 1435 mm đối với đường sắt khổ 1435 mm.
Trên đường cong, khoảng cách má trong giữa 2 ray được quy định tại Bảng 1. Độ biến đổi khoảng cách không được sai quá 1 ‰.
Bảng 1 - Khoảng cách má trong giữa 2 ray
| Đường sắt khổ 1000 mm và lồng | Đường sắt khổ 1435 mm và lồng | ||
| Bán kính đường cong (m) | Khoảng cách má trong giữa 2 ray(mm) | Bán kính đường cong (m) | Khoảng cách má trong giữa 2 ray (mm) |
| Từ 501 trở lên | 1000 | Từ 651 trở lên | 1435 |
| Từ 401 đến 500 | 1005 | Từ 650 đến 451 | 1440 |
| Từ 301 đến 400 | 1010 | Từ 450 đến 351 | 1445 |
| Từ 251 đến 300 | 1015 | Từ 350 trở xuống | 1450 |
| Từ 201 đến 250 | 1020 |
|
|
| Từ 200 trở xuống | 1025 |
|
|
Đối với đường sắt làm mới, cải tạo và sửa chữa lớn, sai lệch khoảng cách má trong giữa 2 ray trên đường thẳng cũng như trên đường cong so với tiêu chuẩn quy định không được lớn quá +4 mm và nhỏ quá -2 mm đối với đường sắt khổ 1000 mm, không lớn quá +6 mm và nhỏ quá -2 mm đối với đường sắt khổ 1435 mm.
Đối với đường sắt đang khai thác, sai lệch về khoảng cách má trong giữa 2 ray phải bảo đảm theo quy định hiện hành.
2.1.2.1.5.4 Trên đường thẳng, mặt trên của các ray chạy tàu đối với đường đơn và 3 ray đối với đường sắt lồng phải cao bằng nhau. Trên đường cong, căn cứ vào bán kính đường cong và tốc độ chạy tàu để quy định siêu cao ray lưng cho từng loại đường sắt khổ; Đường sắt lồng thực hiện siêu cao theo đường sắt khổ 1435 mm.
Đối với đường sắt làm mới, cải tạo hoặc sửa chữa lớn, sai lệch về độ cao mặt ray, so với tiêu chuẩn quy định không được quá 3 mm đối với đường sắt khổ 1000 mm và quá 4 mm đối với đường sắt khổ 1435 mm và đường sắt lồng.
Đối với đường đang khai thác, sai lệch về độ cao mặt ray phải bảo đảm theo quy định hiện hành.
2.1.2.1.5.5 Siêu cao đường sắt
Trị số gia tốc ly tâm chưa được cân bằng (αo) cho phép là 0,5 m/s2. Trị số siêu cao lớn nhất đối với đường sắt khổ 1000 mm là 95 mm, đường sắt khổ 1435 mm là 125 mm. Độ biến đổi thủy bình không quá 1 ‰.
Đối với đường sắt lồng, thực hiện vuốt siêu cao đường khổ 1000 mm trên cơ sở siêu cao của đường sắt khổ 1435 mm.
2.1.2.1.5.6 Ray
a) Ray chính trên cầu, trong hầm phải cùng loại với ray trên đường, nếu khác loại thì nối tiếp ở trước và sau cầu và hầm phải có ít nhất 2 cầu ray cùng loại với ray trên cầu, trong hầm. Không được phép dùng ray ngắn trên cầu. Mối nối ray trên cầu phải đặt đối xứng và cách tường đầu của mố cầu, đỉnh vòm cuốn và khe co giãn của vòm ít nhất 2 m.
b) Khi cầu có mặt cầu trần dài trên 5,0 m, cầu có ray đặt trực tiếp trên hệ dầm dọc, cầu đi chung với đường bộ, mặt cầu có đá ba lát dài trên 10 m, hoặc cầu trên đường cong có bán kính dưới 500 m phải đặt kết cấu hộ bánh. Khoảng cách giữa má tác dụng của ray chính và má tác dụng của kết cấu hộ bánh được xác định theo tiêu chuẩn bảo trì cầu đường sắt, nhưng không được vượt quá các trị số sau:
- 200 mm đối với cầu trần, cầu có đá ba lát, cầu trên đường cong có bán kính dưới 500 m.
- 85 mm đối với cầu có ray đặt trực tiếp trên hệ dầm dọc.
- Từ 60 mm - 70 mm đối với cầu đi chung đường sắt đường bộ.
Mặt kết cấu hộ bánh không được cao quá 5 mm và thấp quá 20 mm so với mặt ray chính. Kết cấu hộ bánh phải kéo dài ra ngoài tường đầu của mố cầu ít nhất 15 m trong đó ít nhất 10 m để thẳng và 5m uốn dần thành đầu thoi.
c) Ở những đường cong có bán kính dưới 200 m và những nơi có địa hình đặc biệt cần thiết phải đặt kết cấu chống trật bánh nhằm đảm bảo an toàn trong quá trình khai thác.
2.1.2.1.5.7 Tà vẹt và phụ kiện liên kết ray với tà vẹt
a) Tà vẹt và phụ kiện liên kết ray với tà vẹt phải đảm bảo đủ về số lượng, chất lượng đảm bảo yêu cầu kỹ thuật.
b) Tà vẹt dùng cho đường sắt gồm: Tà vẹt bê tông cốt thép, tà vẹt gỗ, tà vẹt sắt, tà vẹt composite. Trường hợp dùng loại tà vẹt khác quy định trên, việc sử dụng do Cục Đường sắt Việt Nam xem xét, quyết định dựa trên tiêu chuẩn áp dụng và kết quả thí nghiệm kiểm chứng của sản phẩm.
2.1.2.1.5.8 Nền đá ba lát phải đúng kích thước yêu cầu với từng loại đường đảm bảo tính đàn hồi, giữ ổn định ray, tà vẹt, chống lại sự phá hoại mặt đỉnh nền đường do tác động của đoàn tàu.
2.1.2.1.5.9 Ghi
a) Ray ghi phải cùng loại với ray trên đường, khi ray ghi khác loại thì cầu ray nối tiếp ở đầu và cuối ghi phải cùng loại với ray ghi.
b) Ghi phải đặt theo quy định dưới đây:
- Ghi trên đường chính tuyến và đường đón gửi tàu khách có tang không lớn hơn 1/9;
- Ghi trên đường đón gửi tàu hàng và các đường ga khác có tang không lớn hơn 1/8.
c) Tà vẹt ghi và phụ kiện nối giữ tà vẹt với ray ghi, phụ kiện nối giữ ray ghi phải đầy đủ, đảm bảo chất lượng, đáp ứng yêu cầu kỹ thuật của từng loại ghi.
d) Mặt bằng, khoảng cách ray và phương hướng của ghi phải chính xác, độ hao mòn và khuyết tật của ghi phải bảo đảm theo quy định hiện hành.
đ) Tất cả các ghi, kể cả ghi có thiết bị liên khóa và điều khiển tập trung đều phải có bộ phận khóa, trừ ghi ở bãi dồn dốc gù.
2.1.2.1.5.10 Khi tháo dỡ, thay thế hoặc lắp đặt kiến trúc tầng trên đường sắt trên đường sắt đang khai thác phải đảm bảo an toàn chạy tàu.
2.1.2.1.6 Đường an toàn và đường lánh nạn
2.1.2.1.6.1 Ở những nơi hiện nay mà đường sắt giao nhau trên cùng mặt bằng hoặc có đường nhánh nối vào đường chính trong khu gian, đường chính hoặc đường đón gửi tàu trong ga phải đặt đường an toàn trên đường nhánh hoặc trên cả hai phía của đường sắt thứ yếu. Chiều dài dùng được của đường an toàn không được dưới 50 m.
Khi địa hình hạn chế không thể đặt được đường an toàn thì phải đặt thiết bị trật bánh thay cho đường an toàn.
2.1.2.1.6.2 Khi đường chính hoặc đường nhánh có độ dốc lớn và dài, phải kiểm toán để làm đường lánh nạn nhằm bảo đảm an toàn chạy tàu. Phải duy trì trạng thái kỹ thuật theo đúng hồ sơ thiết kế.
2.1.2.1.7 Biển mốc chỉ dẫn và báo hiệu trên đường sắt
2.1.2.1.7.1 Dọc đường sắt phải đặt các biển mốc chỉ dẫn và báo hiệu sau đây:
a) Loại chỉ dẫn về đường gồm có: Mốc km, 100 m; Biển đường cong, các cọc nối đầu (NĐ), nối cuối (NC), tiếp đầu (TĐ), tiếp cuối (TC); biển đổi dốc, biển cầu, biển hầm, mốc giới hạn quản lý.
b) Các loại báo hiệu gồm: Biển giảm tốc độ, biển nguy hiểm, biển dẫn đường, biển ngừng, biển kéo còi, mốc đặt pháo, mốc tránh va chạm.
2.1.2.1.7.2 Kiểu mẫu và vị trí đặt các loại biển, mốc chỉ dẫn, báo hiệu thực hiện theo quy định của Quy chuẩn kỹ thuật quốc gia về tín hiệu giao thông đường sắt. Các biển, mốc chỉ dẫn đặt bên trái đường theo hướng tính km, các biển báo hiệu đặt bên trái theo hướng tàu chạy trừ mốc tránh va chạm, cọc chủ yếu đường cong. Ở khu đoạn đường đôi phải đặt thêm biển, mốc chỉ dẫn và báo hiệu ở bên trái theo hướng tàu chạy.
2.1.2.1.7.3 Điểm gần nhất của các biển mốc chỉ dẫn, biển hiệu phải đặt cách mép ngoài ray gần nhất là 1,75 m đối với đường 1000 mm và 2,0 m đối với đường 1435 mm và đường sắt lồng.
Các biển mốc thấp hơn đỉnh ray phải đặt cách mép ngoài ray gần nhất là 1,10 m đối với đường 1000 mm và 1,35 m đối với đường 1435 mm và đường sắt lồng.
Mốc tránh va chạm phải đặt ở giữa hai đường gần nhau về phía ghi, tại chỗ có khoảng cách giữa hai tim đường là 3,5 m đối với đường 1000 mm và 4,0 m đối với đường 1435 mm và đường sắt lồng.
Đối với đường sang toa, mốc tránh va chạm phải đặt ở chỗ có khoảng cách giữa hai tim đường là 3,3 m đối với đường 1000 mm và 3,6 m đối với đường 1435 mm và đường sắt lồng.
Trên đường cong, khoảng cách đặt các biển mốc phải cộng thêm độ nới rộng quy định trong bản vẽ khổ giới hạn tiếp giáp kiến trúc.
2.1.2.2 Thiết bị phụ trợ
2.1.2.2.1 Thiết bị tín hiệu đuôi tàu là thiết bị được sử dụng trên các đoàn tàu hàng không có toa xe trưởng tàu, bao gồm hai bộ phận cơ bản là: Bộ phận tại buồng lái và Bộ phận tại đuôi tàu.
2.1.2.2.2 Thiết bị tín hiệu đuôi tàu phải được kiểm tra, bảo trì thường xuyên để bảo đảm hoạt động tốt khi sử dụng.
2.1.2.3 Công trình và thiết bị chỉnh bị, sửa chữa phương tiện giao thông đường sắt
2.1.2.3.1 Các công trình, thiết bị chỉnh bị và sửa chữa phương tiện giao thông đường sắt phải có quy mô, chủng loại và số lượng phù hợp với kiểu loại và số lượng phương tiện giao thông đường sắt hiện có để bảo đảm chỉnh bị và sửa chữa các cấp với chất lượng kỹ thuật tốt theo đúng kế hoạch quy định, bảo đảm vệ sinh môi trường và an toàn lao động.
2.1.2.3.2 Trạm đầu máy, trạm khám chữa toa xe (bao gồm trạm chỉnh bị toa xe khách, toa xe hàng, trạm khám chữa tại các địa điểm quy định) phải có đầy đủ trang bị kỹ thuật và phụ tùng, vật tư cần thiết để chỉnh bị, kiểm tra và lâm tu phương tiện giao thông đường sắt kịp thời, nhanh chóng với chất lượng tốt, hạn chế thấp nhất việc hỏng hóc dọc đường cũng như việc sửa chữa cắt móc toa xe, đáp ứng được yêu cầu khi số đôi tàu trong biểu đồ chạy tàu là cao nhất.
2.1.2.3.3 Các công trình, thiết bị cấp nước cho phương tiện giao thông đường sắt phải bảo đảm cung cấp đầy đủ nước sạch cần thiết khi số lượng đôi tàu là cao nhất và các nhu cầu sử dụng nước khác cho đường sắt như vệ sinh đầu máy, toa xe, chữa cháy v.v...
Cổ hạc cấp nước cho đầu máy hơi nước phải có cơ cấu giữ ở vị trí song song với tim đường và có báo hiệu phòng vệ khi ở vị trí nằm ngang với đường.
2.1.2.3.4 Thủ trưởng các đơn vị sửa chữa, quản lý, vận dụng phương tiện giao thông đường sắt phải tổ chức quản lý, bảo dưỡng tốt tất cả các công trình, thiết bị của đơn vị để việc chỉnh bị và sửa chữa phương tiện giao thông đường sắt luôn đạt chất lượng theo tiêu chuẩn quy định.
2.1.2.4 Phương tiện và dụng cụ cứu viện, chữa cháy
2.1.2.4.1 Phải thường xuyên chuẩn bị tốt phương tiện và dụng cụ cứu viện, bao gồm: Tàu cứu hộ, cần cẩu, toa xe phục vụ tại các địa điểm theo quy định để sẵn sàng giải quyết các tai nạn (bao gồm cả cần cẩu và một số toa xe phục vụ cần thiết).
2.1.2.4.2 Để phòng ngừa và dập tắt hỏa hoạn, tại các địa điểm quy định, phải tổ chức phòng cháy, chữa cháy với đầy đủ phương tiện, dụng cụ theo đúng quy định của pháp luật về phòng cháy, chữa cháy và bố trí lực lượng để chuẩn bị sẵn sàng cứu chữa khi cần thiết.
2.1.2.5 Ga đường sắt
2.1.2.5.1 Cấp kỹ thuật ga đường sắt
Ga đường sắt được phân thành các cấp kỹ thuật sau:
- Ga cấp I;
- Ga cấp II;
- Ga cấp III.
Yêu cầu tối thiểu đối với tác nghiệp kỹ thuật ga đường sắt và yêu cầu tối thiểu đối với số lượng đường ga được quy định trong Phụ lục D ban hành kèm theo Quy chuẩn này.
2.1.2.5.2 Ke ga
2.1.2.5.2.1 Chiều dài của ke khách phải phù hợp với chiều dài của đoàn tàu khách đi, đến ga.
2.1.2.5.2.2 Ke khách có hai loại: Ke cao, ke thấp phải bảo đảm cho khách lên xuống tàu nhanh chóng, thuận tiện, an toàn, có lối qua ke (giao ke), cầu vượt hoặc đường ngầm bộ hành cho hành khách khi qua đường sắt để lên xuống tàu được thuận tiện, an toàn.
2.1.2.5.2.3 Ke hàng, bãi hàng phải bảo đảm đủ điều kiện bảo quản hàng hóa tốt, xếp dỡ nhanh chóng.
2.1.2.5.2.4 Ke ga phải tuân thủ khổ giới hạn tiếp giáp kiến trúc quy định tại Quy chuẩn này.
2.1.2.5.2.5 Ở những ga có ke ga đang sử dụng nếu chưa nâng cấp, cải tạo được giữ nguyên hiện trạng nhưng Doanh nghiệp quản lý tài sản đường sắt quốc gia phải có biện pháp đảm bảo an toàn, thuận tiện cho hành khách lên xuống tàu.
2.1.2.5.3 Các công trình phục vụ hành khách và hàng hóa, quảng trường, ke khách, đường đón gửi tàu khách, bãi dồn, bãi hàng kho, ke hàng, đường cầu cân, nơi chỉnh bị sửa chữa đầu máy, toa xe, đường đi lại trong ga phải có thiết bị chiếu sáng.
Đèn chiếu sáng ngoài trời không được làm ảnh hưởng đến việc nhìn rõ các đèn tín hiệu.
2.1.2.6 Cầu, cống, hầm
2.1.2.6.1 Cầu, cống, hầm phải ổn định trong quá trình khai thác theo tải trọng, tốc độ thiết kế của tuyến đường.
2.1.2.6.2 Cầu, hầm đường sắt phải tuân thủ khổ giới hạn tiếp giáp kiến trúc trong cầu, hầm quy định tại Quy chuẩn này và các điều kiện để lắp đặt thiết bị phụ trợ, đảm bảo an toàn cho nhân viên duy tu, bảo dưỡng.
2.1.2.6.3 Hầm có chiều dài từ 300 m trở lên, cầu có chiều dài từ 500 m trở lên, cầu trong khu đô thị có nguồn điện phải lắp hệ thống chiếu sáng và bảo vệ theo quy định.
2.1.2.6.4 Trong hầm phải bố trí những vị trí cần thiết để nhân viên đường sắt tránh tàu nhằm đảm bảo an toàn khi làm nhiệm vụ theo quy định.
2.1.2.6.5 Cầu, cống, hầm phải được tổ chức kiểm định trong quá trình khai thác sử dụng theo quy định, phải phân cấp tải trọng làm cơ sở để khai thác hợp lý.
2.1.2.7 Thiết bị tín hiệu và thông tin
2.1.2.7.1 Thiết bị tín hiệu
2.1.2.7.1.1 Thiết bị tín hiệu bao gồm:
a) Các loại tín hiệu: Tín hiệu cố định gồm tín hiệu đèn màu và tín hiệu cánh; Tín hiệu di động; Pháo hiệu; Biển báo hiệu; Đèn hiệu; Tín hiệu tay; Tín hiệu tàu; Tín hiệu tai nghe;
b) Hệ thống thiết bị liên khóa bao gồm: Thiết bị quay và khóa ghi; Thiết bị kiểm tra trạng thái đường chạy và thiết bị thực hiện khóa lẫn nhau giữa các biểu thị tín hiệu, giữa trạng thái ghi, trạng thái đường chạy và biểu thị trạng thái tín hiệu;
c) Thiết bị đóng đường bao gồm: Máy thẻ đường; Thiết bị đóng đường nửa tự động (bao gồm cả hệ thống xin đường tự động) và thiết bị đóng đường tự động.
2.1.2.7.1.2 Yêu cầu đối với các loại tín hiệu, hệ thống thiết bị liên khóa, thiết bị đóng đường thực hiện theo quy định tại Quy chuẩn kỹ thuật quốc gia về tín hiệu giao thông đường sắt.
2.1.2.7.2 Thiết bị thông tin
2.1.2.7.2.1 Thiết bị thông tin bao gồm:
a) Điện thoại điều độ chạy tàu;
b) Điện thoại đóng đường;
c) Điện thoại đường dài;
d) Điện thoại khu vực;
đ) Điện thoại khu gian;
e) Điện thoại ghi, chắn đường ngang, cầu, hầm;
g) Điện thoại hành chính ga, bảo dưỡng cầu đường, thông tin tín hiệu;
h) Điện thoại hội nghị;
i) Truyền hình hội nghị;
k)Điện thoại di động;
l) Phát thanh trong ga, trên tàu;
m) Điện thoại vô tuyến trong ga, bãi;
n) Điện thoại điều độ hàng hóa, hành khách, đầu máy, điện sức kéo;
o) Truyền ảnh, truyền số liệu, Fax, xác báo;
p) Điện thoại vô tuyến đoàn tàu - mặt đất;
q) Các trang thiết bị hướng dẫn, bảng chỉ đường, bảng thông báo và các thiết bị tương tự cung cấp thông tin cần thiết cho hành khách trong ga.
2.1.2.7.2.2 Không được phép mắc máy điện thoại và các thiết bị khác vào đường dây điện thoại đóng đường và các đường điện thoại ghi, gác chắn đường ngang, gác cầu, gác hầm.
Trên đường dây điện thoại điều độ chạy tàu chỉ được mắc máy điện thoại của nhân viên điều độ chạy tàu, Trực ban chạy tàu ga, phái ban trạm công tác trên tàu, Trực ban trạm đầu máy.
Đối với các khu gian chưa có đường điện thoại cứu viện, điện thoại thi công thì cho phép người chỉ huy cứu viện, người lãnh đạo thi công, trưởng tàu của tàu bị dừng được tạm thời mắc máy điện thoại chuyên dùng vào đường dây điện thoại điều độ chạy tàu trong thời gian cứu viện.
Không được phép mắc máy điện thoại vào đường dây trung kế đường dài trừ trường hợp mắc tạm thời để giải quyết trở ngại thông tin khi không còn đường thông tin nào khác.
2.1.2.7.2.3 Khoảng cách từ điểm thấp nhất của dây thông tin tín hiệu mắc trên không đến mặt đất, mặt ray quy định như sau:
- Trên đồng ruộng, đất bãi, đất đồi: Không nhỏ hơn 2,5 m;
- Trong ga: Không nhỏ hơn 3,0 m;
- Vượt đường bộ: Tuân thủ quy định của pháp luật về quản lý và bảo vệ kết cấu hạ tầng giao thông đường bộ.
2.1.2.7.2.4 Khoảng cách từ điểm thấp nhất của dây thông tin tín hiệu mắc trên không đến đỉnh ray tuân thủ theo quy định của pháp luật về quản lý, bảo vệ kết cấu hạ tầng giao thông đường sắt.
2.1.2.7.3 Thiết bị tín hiệu và thông tin phải bảo đảm tổ chức chỉ huy chạy tàu và dồn tàu được kịp thời, chính xác, an toàn và nâng cao hiệu suất chạy tàu. Việc liên hệ công tác giữa các nhân viên trong ngành được nhanh chóng, thuận tiện.
2.1.2.7.4 Tất cả các thiết bị tín hiệu và thông tin phải được duy trì hoạt động thường xuyên đạt các yêu cầu kỹ thuật theo tiêu chuẩn của hệ thống. Người không có trách nhiệm không được phép vào các phòng máy thông tin, tín hiệu.
2.1.2.7.5 Thiết bị tín hiệu và thông tin dùng trong việc chạy tàu phải được khóa hoặc kẹp chì niêm phong theo quy định ở những bộ phận chủ yếu và quan trọng nhằm bảo đảm thiết bị sử dụng được an toàn.
Nhân viên trực tiếp sử dụng các thiết bị đó có trách nhiệm giữ toàn vẹn khóa và niêm phong.
Việc bảo quản khóa, niêm phong thiết bị tín hiệu và thông tin ở trong khu gian do Doanh nghiệp quản lý tài sản đường sắt quốc gia quyết định.
Khi kiểm tra, duy tu, sửa đổi, di chuyển, thay thế, thử nghiệm các thiết bị tín hiệu và thông tin chạy tàu trong ga phải ghi vào sổ kiểm tra thiết bị chạy tàu và chỉ sau khi Trực ban chạy tàu ga đồng ý, ký tên, đóng dấu mới được tiến hành. Sau khi làm xong, phải được Trực ban chạy tàu ga thử và ký nhận thiết bị mới được sử dụng lại.
Biện pháp tiến hành những công tác nói trên đây đối với thiết bị tín hiệu và thông tin trong khu gian do Doanh nghiệp quản lý tài sản đường sắt quốc gia quy định. Nội dung cải tạo kỹ thuật, sửa đổi, thử nghiệm các thiết bị tín hiệu và thông tin phải được người có thẩm quyền theo quy định của pháp luật phê duyệt rồi mới được thực hiện và sử dụng.
2.1.2.7.6 Chỉ khi nào được Doanh nghiệp quản lý tài sản đường sắt quốc gia cho phép mới có thể thay đổi quan hệ liên khóa của thiết bị tín hiệu.
2.1.2.7.7 Khi nhiều dây thông tin cùng hỏng phải sửa chữa theo thứ tự sau đây:
a) Dây điện thoại điều độ chạy tàu;
b) Dây điện thoại đóng đường và dây điện thoại ghi, gác cầu, gác hầm, gác đường ngang;
c) Dây thông tin đường dài;
d) Các dây thông tin và tín hiệu khác.
2.2 Phương tiện giao thông đường sắt
2.2.1 Quy định chung
2.2.1.1 Trường hợp cần thay đổi cấu tạo và tính năng của các bộ phận chủ yếu (kích thước chính đầu máy; kích thước chính toa xe, bệ xe; tự trọng; tải trọng; tốc độ cấu tạo; giá chuyển hướng; đầu đấm móc nối; hệ thống hãm; khung che gió đầu xe) thì phải đảm bảo an toàn chạy tàu và tuân theo các quy định của Bộ trưởng Bộ Xây dựng.
2.2.1.2 Khổ giới hạn đầu máy, toa xe là đường bao của mặt cắt ngang lớn nhất của đầu máy, toa xe đặt thẳng đứng với tim đường. Bất kỳ bộ phận nào trên các phương tiện giao thông đường sắt ở trạng thái tĩnh, rỗng, có tải, mới, cũ đã tới tiêu chuẩn hạn độ cuối cùng đặt trên mặt đoạn đường bằng, thẳng đều không được vượt ra khỏi khổ giới hạn đầu máy, toa xe ghi trong các bản vẽ B.1 và B.2 của Phụ lục B ban hành kèm theo Quy chuẩn này.
Những phương tiện giao thông đường sắt đang sử dụng có một số bộ phận nằm ngoài khổ giới hạn đầu máy, toa xe đã được kiểm toán thì tiếp tục được sử dụng; đối với trường hợp khác, Doanh nghiệp quản lý tài sản đường sắt quốc gia tổ chức kiểm tra khổ giới hạn, chạy thử nghiệm phương tiện trong phạm vi dự kiến khai thác và báo cáo Cục Đường sắt Việt Nam quyết định.
2.2.2 Quy định về đăng ký, số hiệu, thông tin của phương tiện
2.2.2.1 Trên phương tiện giao thông đường sắt ngoài việc phải ghi số đăng ký, dán tem kiểm định theo quy định của Bộ trưởng Bộ Xây dựng. Ngoài ra:
a) Đầu máy phải ghi ký hiệu thể hiện được kiểu loại, công suất, kiểu truyền động, số hiệu, tự trọng. Riêng ô tô ray phải có ghi số chỗ ngồi;
b) Toa xe phải ghi ký hiệu và số hiệu toa xe, tự trọng, trọng tải, chiều dài, chiều rộng, chiều cao, dung tích, thời gian, nơi làm dầu, khám hãm, thông tin về thời gian và nơi kiểm tra bảo dưỡng, sửa chữa.
2.2.2.2 Toa xe khách và toa trưởng tàu phải có móc ở hai bên thành toa và hai xà đầu để đặt tín hiệu đuôi tàu. Móc ở hai bên thành toa phải bảo đảm khi lắp đèn loại tiêu chuẩn không vượt quá khổ giới hạn đầu máy, toa xe.
Trường hợp đoàn tàu hàng sử dụng Thiết bị tín hiệu đuôi tàu thay cho toa trưởng tàu, Bộ phận tại đuôi tàu thay thế tín hiệu tàu của toa xe cuối đoàn tàu.
2.2.2.3 Tất cả các toa xe đều phải qua kiểm tra phù hợp tiêu chuẩn mới được lắp vào đoàn tàu.
2.2.3 Đôi bánh xe của phương tiện giao thông đường sắt
2.2.3.1 Khoảng cách phía trong giữa hai đai bánh hoặc vành bánh của đôi bánh xe phải phù hợp với quy định sau:
a) Đường sắt khổ 1000 mm: 924 ± 3 mm;
b) Đường sắt khổ 1435 mm: 1353 ± 3 mm.
Chiều rộng và chiều dày đai bánh xe, vành bánh phải phù hợp với kích thước quy định đối với từng loại phương tiện giao thông đường sắt.
2.2.3.2 Không được phép đưa phương tiện giao thông đường sắt ra vận dụng và nối vào đoàn tàu khi đôi bánh xe có một trong những khuyết tật dưới đây:
a) Thân trục có vết nứt ngang hoặc chéo lớn hơn 30° so với đường tâm dọc;
b) Thân trục có vết nứt dọc hoặc bị ngậm than chiều dài quá 20 mm;
c) Thân trục có vết mòn sâu quá 4 mm đối với đầu máy và phương tiện động lực chuyên dùng đường sắt, quá 2,5 mm đối với toa xe và xe than nước;
d) Đai bánh xe, bánh xe hoặc ổ trục bị hỏng;
đ) Mặt lăn bánh xe mòn lõm sâu quá:
- Đầu máy, ô tô ray, toa xe động lực, phương tiện động lực chuyên dùng đường sắt, xe than nước khổ 1000 mm và 1435 mm: 7 mm;
- Toa xe đường sắt khổ 1000 mm: 7 mm;
- Toa xe khách đường sắt khổ 1435 mm: 8 mm;
- Toa xe hàng đường sắt khổ 1435 mm: 9 mm.
e) Mặt lăn bánh xe mòn vẹt sâu quá:
- Đầu máy diesel, ô tô ray, toa xe động lực, phương tiện động lực chuyên dùng đường sắt: 0,7 mm;
- Đầu máy hơi nước, xe than nước, toa xe ổ lăn: 1,0 mm;
- Toa xe ổ trượt: 2,0 mm.
g) Lợi bánh xe đo bằng thước chuyên dùng:
- Đo chiều dày:
+ Đường sắt khổ 1000 mm: Tại vị trí đo cách mặt lăn 10 mm thì không được nhỏ hơn 18 mm và lớn quá 30 mm;
+ Đường sắt khổ 1435 mm: Tại vị trí đo cách mặt lăn 10 mm thì không được nhỏ hơn 22 mm và lớn quá 34 mm;
+ Đối với phương tiện chuyên dùng có chiều dày lợi bánh xe lớn hơn 30 mm, phải đảm bảo tổng giang cách bánh xe và chiều dày của 02 lợi bánh xe không lớn hơn 987 mm.
- Chiều cao của vết mòn thẳng đứng:
+ Đường sắt khổ 1000 mm: quá 22 mm;
+ Đường sắt khổ 1435 mm: quá 18 mm.
- Lợi bánh xe bị mòn đùn thành gờ.
h) Chiều dày đai bánh xe hoặc vành bánh toa xe nhỏ hơn quy định tại Bảng 2.
Bảng 2 - Chiều dày đai bánh xe hoặc vành bánh xe
| Đường sắt khổ (mm) | Loại toa xe | Chiều dày đai bánh (mm) | Chiều dày vành bánh (mm) |
| 1000 | Toa xe khách | 30 | 25 |
| Toa xe hàng | 25 | 25 | |
| 1435 | Toa xe khách | 33 | 25 |
| Toa xe hàng | 25 | 25 |
2.2.3.3 Khi nối toa xe hàng vào tàu khách thì chiều dày đai, vành bánh xe cũng như các tiêu chuẩn khác của đôi bánh toa xe đó phải phù hợp với tiêu chuẩn quy định của đôi bánh toa xe khách.
2.2.4 Thiết bị hãm và móc nối, đỡ đấm
2.2.4.1 Đầu máy, toa xe, ô tô ray phải có hãm gió ép. Hãm gió ép phải thường xuyên tốt, thao tác thuận tiện, bảo đảm độ tin cậy trong các điều kiện làm việc khác nhau, bảo đảm tác dụng hãm linh hoạt và khi ống gió đoàn tàu bị đứt, vỡ hoặc khi giật van hãm khẩn cấp phải lập tức phát sinh tác dụng hãm đối với hãm gió ép.
2.2.4.2 Phương tiện giao thông đường sắt phải có hệ thống hãm tay hoạt động tốt, trừ những phương tiện mà thiết kế đã được phê duyệt không có.
Hãm tay phải được bảo dưỡng thường xuyên theo tiêu chuẩn hiện hành.
2.2.4.3 Móc nối và đỡ đấm phải lắp đúng kiểu loại và hoạt động tốt. Khoảng cách từ đường tâm móc nối đến mặt ray quy định tại Bảng 3.
Bảng 3 - Khoảng cách từ đường tâm móc nối đến mặt ray
| Cho phép | Loại phương tiện giao thông đường sắt | Khoảng cách (mm) | |
| Đường sắt khổ 1000 mm | Đường sắt khổ 1435 mm | ||
| Lớn nhất | - Đầu máy, ô tô ray, toa xe động lực, xe than nước - Toa xe khách và hàng | 825 | 890 |
| Nhỏ nhất | - Đầu máy, ô tô ray, toa xe động lực, xe than nước, toa xe khách và hàng nặng | 755 | 815 |
| - Toa xe khách rỗng, toa xe động lực rỗng | 795 | 855 | |
| - Toa xe hàng rỗng, toa trưởng tàu | 795 | 835 | |
2.2.5 Bảo dưỡng, sửa chữa và vận dụng phương tiện giao thông đường sắt
2.2.5.1 Quy định chung
2.2.5.1.1 Không được phép đưa vào khai thác các phương tiện giao thông đường sắt có những khuyết tật uy hiếp đến an toàn chạy tàu.
Chủ phương tiện có trách nhiệm quy định danh mục các khuyết tật uy hiếp đến an toàn chạy tàu.
2.2.5.1.2 Việc sửa chữa, bảo dưỡng phương tiện giao thông đường sắt phải thực hiện theo đúng quy trình bảo dưỡng, sửa chữa do Chủ phương tiện ban hành.
2.2.5.2 Doanh nghiệp quản lý tài sản đường sắt quốc gia quy định hình thức và số định biên của ban lái tàu trên đầu máy, ô tô ray, toa xe động lực, phương tiện động lực chuyên dùng đường sắt chạy trên đường sắt và phải bảo đảm an toàn trong vận dụng.
Đối với đầu máy diesel có thiết bị ghép đôi hoàn chỉnh cho phép chỉ có một ban lái tàu điều khiển nhiều đầu máy ghép liền từ một buồng lái.
2.2.6 Goòng thủ công
Yêu cầu kỹ thuật, biện pháp bảo dưỡng và sử dụng các loại goòng thủ công (goòng bàn, goòng đẩy tay, goòng kiểm tra đường, goòng dò vết nứt ray...) do Doanh nghiệp quản lý tài sản đường sắt quốc gia quyết định.
2.3 Tổ chức chạy tàu
2.3.1 Biểu đồ chạy tàu
2.3.1.1 Cơ sở của việc tổ chức chạy tàu là Biểu đồ chạy tàu. Biểu đồ chạy tàu là mệnh lệnh đối với tổ chức, cá nhân có liên quan đến hoạt động giao thông vận tải đường sắt.
2.3.1.2 Quy định về giờ chạy tàu: Giờ chạy tàu lấy theo múi giờ Hà Nội, mỗi ngày là 24 giờ tính từ 18 giờ ngày hôm trước đến 18 giờ ngày hôm sau.
2.3.2 Điểm phân giới
2.3.2.1 Quy định chung
2.3.2.1.1 Việc chạy tàu được thực hiện với giãn cách bằng các điểm phân giới, trường hợp đặc biệt thì thực hiện bằng giãn cách thời gian.
2.3.2.1.2 Điểm phân giới là ga, trạm đóng đường và cột tín hiệu đèn màu thông qua của khu gian đóng đường tự động.
2.3.2.1.3 Các điểm phân giới chia tuyến đường thành những khu gian hoặc phân khu để đóng đường cho tàu chạy.
2.3.2.1.4 Trạm đóng đường là điểm phân giới không có đường phụ.
2.3.2.1.5 Trạm bổ trợ (quản lý ghi trong khu gian), trạm hành khách và trạm hàng hóa không phải là điểm phân giới.
2.3.2.2 Quy định về giới hạn của ga, trạm
2.3.2.2.1 Giới hạn theo chiều dọc của ga được xác định từ vị trí xác định tín hiệu vào ga phía bên này đến vị trí xác định tín hiệu vào ga phía bên kia.
2.3.2.2.2 Giới hạn của trạm đóng đường hoặc phân khu đóng đường tự động là tâm của cột tín hiệu thông qua.
2.3.2.2.3 Trên khu đoạn đường đôi chạy tàu một chiều, phân theo đường chính tuyến, giới hạn ga là cột tín hiệu vào ga (phía tàu đến) và phía đối diện là điểm cách ghi ngoài cùng vào ga không dưới 50 m.
2.3.2.2.4 Trên khu đoạn đường đôi đóng đường tự động chạy tàu hai chiều, giới hạn ga phân theo đường chính tuyến của mỗi chiều là vị trí xác định tín hiệu vào ga.
2.3.2.3 Quy định về đặt tên ga, trạm
2.3.2.3.1 Tất cả các ga, trạm (bao gồm cả trạm đóng đường, trạm hành khách, trạm hàng hóa, trạm bổ trợ) đều phải có tên và không được đặt trùng tên trên cùng một tuyến.
2.3.2.3.2 Các cột tín hiệu đèn màu thông qua của khu gian đóng đường tự động phải có số hiệu.
2.3.2.3.3 Tên các ga, trạm được viết bằng chữ in hoa cỡ lớn ở vị trí dễ quan sát
2.3.2.3.4 Ở ga có nhiều đường đón gửi tàu khách phải đặt thêm bảng tên ga, tên đường kê hướng về phía tàu đến tại các vị trí để hành khách dễ quan sát nhất.
2.3.2.4 Đường sắt được chia ra các loại đường như sau: Đường chính tuyến, đường ga, đường dùng đặc biệt
2.3.2.4.1 Đường chính tuyến là đường nối liền và xuyên qua các điểm phân giới.
2.3.2.4.2 Đường ga gồm có:
a) Đường đón gửi tàu;
b) Đường xếp dỡ;
c) Đường dồn;
d) Đường rút dồn.
2.3.2.4.3 Đường dùng đặc biệt gồm có:
a) Đường an toàn, đường lánh nạn;
b) Đường nhánh, đường chuyên dùng;
c) Đường do các xí nghiệp đầu máy, toa xe quản lý;
d) Các đường khác (tên đường sẽ tùy theo công dụng mà xác định).
2.3.2.5 Các đường trong ga (kể cả đường chính) đều phải có số hiệu riêng. Đường trong một ga hoặc một bãi (đối với ga có nhiều bãi) không được trùng số hiệu. Việc đánh số đường quy định như sau:
a) Đường ga:
- Đánh số từ 1 trở lên;
- Đường chính tuyến đánh số La mã, các đường khác đánh số thường.
b) Các đường còn lại do Doanh nghiệp quản lý tài sản đường sắt quốc gia hoặc chủ sở hữu đường sắt chuyên dùng quy định.
2.3.2.6 Các ga, trạm phải có bản vẽ mặt bằng thu nhỏ của ga, trạm và bản vẽ mặt cắt dọc của các đường trong ga, trạm theo quy định của Doanh nghiệp quản lý tài sản đường sắt quốc gia hoặc của chủ sở hữu đường sắt chuyên dùng.
2.3.3 Tổ chức công tác kỹ thuật ga, trạm
2.3.3.1 Quy tắc quản lý kỹ thuật ga, trạm
Tất cả các ga, trạm đóng đường và trạm bổ trợ đường nhánh đều phải có Quy tắc quản lý kỹ thuật.
Việc tổ chức quản lý kỹ thuật và biện pháp sử dụng các thiết bị ở ga, trạm nhằm bảo đảm việc đón gửi tàu, dồn dịch được an toàn, chính xác và liên tục phải được quy định trong Quy tắc quản lý kỹ thuật ga, trạm do Doanh nghiệp quản lý tài sản đường sắt quốc gia hoặc của chủ sở hữu đường sắt chuyên dùng ban hành và sao gửi cho các đơn vị liên quan để tổ chức thực hiện.
Tại các phòng trực ban chạy tàu ga, phòng điều độ ga, chòi ghi và những nơi cần thiết khác phải niêm yết bản trích lục Quy tắc quản lý kỹ thuật ga, trạm. Nội dung trích lục do Doanh nghiệp quản lý tài sản đường sắt quốc gia hoặc của chủ sở hữu đường sắt chuyên dùng quy định.
Mọi nhân viên của ga, trạm và những nhân viên của các đơn vị khác công tác trong phạm vi ga, trạm có liên quan đến chạy tàu đều phải thông thạo và chấp hành Quy tắc quản lý kỹ thuật ga, trạm.
2.3.3.2 Sử dụng tín hiệu
2.3.3.2.1 Biểu thị của tín hiệu là mệnh lệnh về điều kiện chạy tàu và dồn tàu. Tất cả nhân viên đường sắt làm công tác có liên quan đến chạy tàu và dồn tàu đều phải thông thuộc Quy chuẩn kỹ thuật quốc gia về tín hiệu giao thông đường sắt và phải chấp hành vô điều kiện mệnh lệnh của tín hiệu phát ra.
2.3.3.2.2 Tín hiệu dùng trong ngành đường sắt gồm có tín hiệu mắt thấy và tín hiệu tai nghe.
Tín hiệu mắt thấy bao gồm: Tín hiệu ban ngày, tín hiệu ban đêm và tín hiệu cả ngày lẫn đêm.
Trường hợp ban ngày thời tiết xấu như có sương mù, mưa to, gió lớn ... mà tầm báo hiệu của tín hiệu ban ngày không bảo đảm khoảng cách quy định thì phải dùng tín hiệu ban đêm.
Trong hầm chỉ sử dụng tín hiệu ban đêm hoặc tín hiệu cả ngày lẫn đêm.
Tín hiệu tai nghe được sử dụng cả ngày lẫn đêm.
2.3.3.2.3 Biểu thị của tín hiệu phải bảo đảm rõ ràng, chính xác kịp thời theo quy định.
Khi tín hiệu ra ga, vào ga, ra bãi, vào bãi, tín hiệu thông qua và tín hiệu phòng vệ biểu thị không đúng, không rõ thì coi như báo tín hiệu "ngừng".
Không cho phép tàu hoặc đầu máy vượt quá tín hiệu "ngừng" (trừ trường hợp đặc biệt quy định trong Quy chuẩn này và quy định cụ thể của Doanh nghiệp quản lý tài sản đường sắt quốc gia hoặc Chủ sở hữu đường sắt chuyên dùng trong Quy trình chạy tàu và công tác dồn đường sắt).
2.3.3.2.4 Khi thời tiết xấu như có sương mù, mưa to, gió lớn... khó xác định tín hiệu và đường không thanh thoát hoặc hư hỏng, không thể đón tàu vào ga được hoặc không thể cho tàu chạy qua địa điểm phòng vệ vào phân khu phía trước thì không kể ngày hay đêm đều phải đặt pháo hiệu phụ trợ cho tín hiệu vào ga, tín hiệu phòng vệ hoặc tín hiệu thông qua nếu các tín hiệu này không có tín hiệu báo trước.
Phương pháp đặt pháo hiệu phụ trợ được quy định trong Quy chuẩn kỹ thuật quốc gia về tín hiệu giao thông đường sắt.
2.3.3.3 Quản lý ghi
2.3.3.3.1 Quy định chung
2.3.3.3.1.1 Các bộ ghi trên đường sắt phải được quản lý để bảo đảm an toàn chạy tàu.
2.3.3.3.1.2 Ghi trên các đường trong ga do Trưởng ga quản lý, ghi trên đường thuộc các tổ chức khác do Thủ trưởng các tổ chức đó quản lý, trừ ghi trên đường nối thông với đường ga (kể cả ghi liên động hoặc liên khóa với ghi nối thông) thì do trưởng ga quản lý.
2.3.3.3.1.3 Ghi đặt trên đường chính tuyến trong khu gian có trạm bổ trợ do trạm này quản lý. Nếu không có trạm bổ trợ thì do Doanh nghiệp quản lý tài sản đường sắt quốc gia chỉ định một ga đầu của khu gian đó quản lý.
Đối với đường sắt chuyên dùng do chủ sở hữu đường sắt chuyên dùng chỉ định.
2.3.3.3.1.4 Trưởng ga, Thủ trưởng các đơn vị chịu trách nhiệm bảo quản, bảo dưỡng những ghi thuộc quyền quản lý của mình luôn sử dụng tốt và bảo đảm đèn ghi chiếu sáng tốt (trừ ghi điều khiển tập trung).
2.3.3.3.2 Mỗi ghi phải có một số hiệu. Việc đánh số hiệu ghi quy định như sau:
a) Lấy trung tâm ga hoặc bãi làm mốc để đánh số thứ tự từ ngoài vào trong, phía tàu số lẻ đến đánh số lẻ, phía tàu số chẵn đến đánh số chẵn;
b) Đối với những ga cá biệt, Doanh nghiệp quản lý tài sản đường sắt quốc gia quy định cách đánh số riêng.
Đối với những ga cá biệt thuộc đường sắt chuyên dùng do chủ sở hữu đường sắt chuyên dùng quy định.
2.3.3.3.3 Trừ lúc sử dụng, lau chùi hoặc kiểm tra sửa chữa, ghi phải luôn để ở định vị như sau:
a) Ghi vào ga của đường chính tuyến trên khu đoạn đường đơn ở hai đầu ga phải để ở vị trí thông vào hai đường khác nhau;
b) Ghi vào ga của đường chính tuyến trên khu đoạn đường đôi phải để thông vào đường chính tuyến tương ứng;
c) Các ghi khác trên đường chính tuyến trong ga và trong khu gian phải để ở vị trí cho đường chính tuyến được thông (trừ những ghi vào đường an toàn, đường lánh nạn);
d) Ghi vào đường an toàn, đường lánh nạn phải ở vị trí thông vào các đường này;
đ) Định vị các ghi trên đường khác do trưởng ga quy định. Các ghi điều khiển tập trung bằng điện có thể không ở định vị;
e) Định vị của ghi phải được quy định rõ trong Quy tắc quản lý kỹ thuật ga, trạm.
2.3.3.3.4 Trước khi đón tàu hoặc gửi tàu, tất cả những ghi có quan hệ với đường tàu vào, tàu ra đều phải khóa chặt.
Việc quay và khóa những ghi đó do Gác ghi, Trưởng ghi hoặc Trực ban chạy tàu ga tự làm.
Sau khi khóa ghi xong, nếu chìa khóa không được giữ trong đài khống chế hoặc thiết bị giữ chìa khóa thì Trực ban chạy tàu ga phải bảo quản.
2.3.3.3.5 Chìa khóa những ghi dẫn vào những đường quy định đặc biệt dưới đây, nếu không có quan hệ liên khóa thì sau khi khóa xong phải do Trực ban chạy tàu ga bảo quản:
a) Ghi dẫn vào đường để đoàn xe cứu viện, xe xếp chất nổ, chất độc, khí nén và các hàng hóa nguy hiểm khác. Các ghi này phải khóa ở vị trí không cho đường khác thông vào đường này.
b) Ghi dẫn vào đường lánh nạn.
c) Ghi dẫn vào đường đón, gửi tàu ở ga dọc đường mà đường này đang có tàu, đầu máy, toa xe chiếm dụng hoặc đang có chướng ngại. Ghi này phải quay sang vị trí khác không thông vào đường nói trên và khóa chặt ở vị trí đó.
d) Ghi độ tuyến giữa hai đường chính tuyến.
đ) Ghi nối vào đường chính tuyến trong khu gian chưa có quan hệ liên khóa với thiết bị đóng đường. Ghi này phải khóa chặt ở vị trí khai thông đường chính tuyến và chìa khóa ghi do Trực ban chạy tàu ga đầu khu gian bảo quản mặc dù có trạm bổ trợ hay không. Trường hợp có quan hệ liên khóa với thiết bị đóng đường thì chìa khóa dự trữ do Trực ban chạy tàu ga đầu khu gian được chỉ định quản lý, bảo quản.
2.3.3.3.6 Mỗi ghi hoặc mỗi nhóm ghi do một Gác ghi lên ban phụ trách và chịu trách nhiệm về chạy tàu và dồn tàu an toàn qua những ghi đó. Những ghi cá biệt do Trực ban chạy tàu ga phụ trách; những ghi được điều khiển tập trung, việc kiểm soát trạng thái ghi và bố trí Gác ghi (nếu có) do Doanh nghiệp quản lý tài sản kết cấu hạ tầng đường sắt quy định.
Những ga có nhiều gác ghi lên ban và khối lượng công việc lớn thì phải bố trí một Trưởng ghi.
Ở ga có ghi và tín hiệu điều khiển tập trung phải đặt trạm điều khiển tập trung. Tại mỗi trạm nói trên chỉ do một nhân viên phụ trách (trực ban trạm, trực ban bãi hoặc phụ Trực ban chạy tàu ga). Mọi công tác ở trạm này phải theo sự điều khiển của Trực ban chạy tàu ga, ở bãi dồn dốc gù thì theo sự chỉ huy của Trực ban dốc gù.
Nhiệm vụ cụ thể của Gác ghi, Trưởng ghi và Nhân viên điều khiển tập trung do Doanh nghiệp quản lý tài sản đường sắt quốc gia hoặc Chủ sở hữu đường sắt chuyên dùng quy định trong Quy trình chạy tàu và công tác dồn đường sắt.
2.3.3.3.7 Việc quay những ghi không sử dụng thiết bị tín hiệu điều khiển tập trung, do gác ghi lên ban trực tiếp thực hiện theo quy định sau đây:
a) Khi chuẩn bị đường đón, gửi tàu phải theo lệnh của Trực ban chạy tàu ga, trạm hoặc Trực ban bãi (nhận lệnh trực tiếp hoặc qua Trưởng ghi truyền đạt);
b) Khi dồn tàu phải theo kế hoạch và tín hiệu khai thông đường của Trưởng dồn hoặc lệnh của Trực ban dốc gù;
c) Người không có phận sự không được phép quay ghi thay Gác ghi, trừ các trường hợp sau đây:
- Cho phép nhân viên trong tổ dồn hoặc Trưởng tàu quay ghi khi dồn trên đường nhánh ngoài khu gian;
- Cho phép Trực ban chạy tàu ga, các nhân viên trong tổ dồn quay ghi ở trong ga khi dồn trên đường không có gác ghi phụ trách.
2.3.3.3.8 Việc quay những ghi sử dụng thiết bị tín hiệu điều khiển tập trung, do trực ban chạy tàu ga lên ban trực tiếp thực hiện theo quy định sau đây:
a) Khi chuẩn bị đường chạy đón, gửi tàu, dồn tàu phải theo kế hoạch của nhân viên điều độ chạy tàu tuyến hoặc nhân viên điều độ chạy tàu ga.
b) Trước khi quay ghi để chuẩn bị đường chạy đón, gửi tàu, dồn tàu phải trực tiếp xác nhận qua đài điều khiển là khu vực ghi không có trở ngại.
c) Không được phép cho người không có phận sự quay ghi thay trực ban chạy tàu ga, trừ trường hợp nhân viên tổ dồn hoặc gác ghi trực tiếp quay ghi khi ghi điều khiển tập trung đã được chuyển thành ghi quay thủ công tại chỗ.
d) Trường hợp ở yết hầu ga hoặc bãi dồn có bố trí thiết bị ủy quyền dồn tàu, trực ban chạy tàu ga có thể ủy quyền cho trực ban trạm, trực ban bãi hoặc phụ trực ban chạy tàu ga thực hiện quay ghi để thiết lập đường chạy dồn tàu theo kế hoạch của trực ban chạy tàu ga nhưng phải bảo đảm an toàn chạy tàu.
2.3.3.3.9 Đối với các ga có bố trí gác ghi, khi thấy trạng thái ghi không tốt như: Lưỡi ghi không khít, bị sứt mẻ quá tiêu chuẩn quy định, khóa ghi không sử dụng được, biển ghi, đèn ghi không đúng hướng... Gác ghi lên ban phải báo ngay cho Trực ban chạy tàu ga, trực ban bãi hoặc Trưởng ghi biết. Nếu thấy sự hỏng hóc có nguy hại tới an toàn chạy tàu, Gác ghi lên ban phải đặt tín hiệu phòng vệ ghi, cấm tàu, đầu máy, toa xe qua lại rồi tự mình hoặc qua Trưởng ghi báo cáo tình hình đó cho Trực ban chạy tàu ga biết. Nhận được báo cáo, Trực ban chạy tàu ga phải báo ngay cho đơn vị quản lý ghi đến kiểm tra, sửa chữa.
Khi sửa chữa ghi, Gác ghi lên ban phải theo dõi công việc sửa chữa và nếu có ảnh hưởng đến chạy tàu còn phải kiểm tra việc phòng vệ.
Khi ghi sửa chữa xong, Gác ghi phải cùng với nhân viên sửa chữa tiến hành thử nghiệm. Nếu kết quả tốt, báo cáo để Trực ban chạy tàu ga xác nhận rồi mới được sử dụng.
2.3.3.4 Công tác dồn
2.3.3.4.1 Quy định chung
2.3.3.4.1.1. Dồn tàu phải theo kế hoạch của Trực ban chạy tàu ga hoặc Nhân viên điều độ chạy tàu ga.
2.3.3.4.1.2 Công tác dồn phải thực hiện theo đúng quy trình tác nghiệp kỹ thuật ga, kế hoạch của ga và bảo đảm an toàn chạy tàu, an toàn lao động, bảo đảm đầu máy, toa xe và hàng hóa được nguyên vẹn.
2.3.3.4.1.3 Người lãnh đạo công tác dồn trong ga là Trực ban chạy tàu ga (hoặc nhân viên điều độ chạy tàu ga), trạm, Trực ban đường hoặc Trực ban dốc gù. Việc phân định trách nhiệm giữa các nhân viên nói trên phải được quy định trong Quy tắc quản lý kỹ thuật ga, trạm.
2.3.3.4.2 Trong quá trình dồn, Lái tàu phải tuân theo sự điều khiển của Trưởng dồn. Việc ra lệnh cho đầu máy di chuyển khi dồn chỉ do một người chỉ huy duy nhất là Trưởng dồn.
2.3.3.4.3 Ở những ga có nhiều bãi dồn, mỗi bãi có thể bố trí đầu máy và tổ dồn chuyên trách.
Ở các ga dọc đường và đường nhánh có trạm bổ trợ mà không có tổ dồn, Trực ban chạy tàu ga, trạm làm nhiệm vụ Trưởng dồn với sự tham gia của Trưởng tàu (nếu có).
Ở đường nhánh không có trạm bổ trợ mà không có tổ dồn, Trưởng tàu của tàu có cắt móc toa xe làm nhiệm vụ Trưởng dồn.
Đối với đoàn tàu hàng sử dụng thiết bị tín hiệu đuôi tàu mà không bố trí trưởng tàu thì ga gửi tàu vào đường nhánh phải bố trí Trưởng dồn thực hiện nhiệm vụ theo quy định.
2.3.3.4.4 Lái tàu không được phép cho đầu máy dồn chuyển dịch khi chưa nhận được kế hoạch dồn và tín hiệu của trưởng dồn cho phép. Khi dồn, ban lái tàu có trách nhiệm:
a) Bảo đảm hoàn thành kế hoạch dồn chính xác và kịp thời;
b) Chấp hành nghiêm chỉnh, kịp thời tín hiệu chỉ huy dồn;
c) Chú ý chướng ngại phía trước, người qua lại, vị trí ghi và vị trí đầu máy, toa xe trên đường để dừng tàu kịp thời;
d) Bảo đảm an toàn cho công tác dồn và đầu máy, toa xe, hàng hóa được nguyên vẹn.
2.3.3.4.5 Khi dồn không được phép vượt quá tốc độ quy định dưới đây:
a) 25 km/h khi kéo toa xe trên đường thanh thoát;
b) 15 km/h khi đẩy toa xe trên đường thanh thoát và không kể kéo hay đẩy khi chạy qua ghi vào đường rẽ;
c) 10 km/h khi dồn toa xe có người ngồi (trừ người áp tải), toa xe chở chất nổ, chất độc, khí nén, khí hóa lỏng và các hàng nguy hiểm khác;
d) 3 km/h khi đầu máy đến gần toa xe định nối hoặc gần bục chắn. Tốc độ đẩy hoặc kéo toa xe qua cầu cân để cân toa xe theo quy định tốc độ của cầu cân;
Tốc độ đẩy toa xe trên dốc gù do Doanh nghiệp quản lý tài sản đường sắt quốc gia quyết định. Đối với đường sắt chuyên dùng do chủ sở hữu đường sắt chuyên dùng quyết định.
2.3.3.4.6 Không được phép dồn phóng và thả trôi từ dốc gù xuống các toa xe sau đây và không được phép phóng hoặc thả trôi các toa xe khác vào chúng:
a) Toa xe có chở người;
b) Toa xe khách và các toa xe có ghi dấu hiệu “CẤM PHÓNG”;
c) Toa xe chở chất nổ, chất độc, khí nén, khí hóa lỏng và các hàng nguy hiểm khác, toa xe xi téc rỗng đã lấy hết khí hóa lỏng nhưng chưa rửa, toa chở động vật sống và toa chở máy móc, thiết bị tinh vi, hàng dễ vỡ;
d) Toa xếp hàng vượt quá giới hạn từ cấp 1 trở lên, hàng xếp vượt quá 1 toa xe;
đ) Đầu máy không làm việc;
e) Toa xe mặt bằng, mặt võng chở hàng khối to và nặng;
g) Toa xe cần trục đường sắt;
h) Toa xe có trang thiết bị đặc biệt dùng vào công việc riêng (toa vô tuyến điện, toa phát điện, toa kiểm tra cầu đường, toa y tế, toa ướp lạnh, toa xe phục vụ công việc nghiên cứu thí nghiệm khoa học kỹ thuật...);
Những đầu máy, toa xe nói trên chỉ có thể qua dốc gù khi có đầu máy nối đi kèm.
Không được phép phóng vào các đường có toa xe đang tác nghiệp kỹ thuật, sửa chữa hoặc xếp, dỡ hàng, vào đường nhánh trong khu gian, vào đường chưa được chiếu sáng đầy đủ và khi có sương mù, mưa to, gió lớn.
Biện pháp cụ thể về dồn phóng và những ga được phép dồn phóng do Doanh nghiệp quản lý tài sản đường sắt quốc gia quyết định. Đối với đường sắt chuyên dùng do chủ sở hữu đường sắt chuyên dùng quyết định.
2.3.3.4.7 Phương tiện giao thông đường sắt đỗ trên đường phải ở trong mốc tránh va chạm, trừ các trường hợp đặc biệt sau đây:
a) Ở bãi dồn, toa xe dồn phóng chưa lọt trong mốc tránh va chạm nhưng không ảnh hưởng đến việc dồn vào đường khác và sau đợt dồn nhất thiết phải điều chỉnh lại để toa xe lọt vào trong mốc tránh va chạm.
b) Ở bãi xếp dỡ vì thiếu đường chứa xe hoặc khó khăn về địa điểm xếp dỡ, toa xe được tạm để ngoài mốc tránh va chạm nhưng không được làm trở ngại đến việc đón, gửi tàu, dồn tàu bình thường và phải phòng vệ phía đầu máy, toa xe có thể chạy vào.
Không được phép để phương tiện giao thông đường sắt đỗ trên đường an toàn, đường lánh nạn.
Những toa xe đỗ trên đường mà không xếp, dỡ hàng hóa, không làm vệ sinh toa xe hoặc không sửa chữa phải đóng các cửa lại.
Trước khi cắt đầu máy khỏi toa xe để lại trên đường có độ dốc quá 2,5‰ phải xả hết hãm gió đoàn xe, siết chặt hãm tay và chèn chắc chắn.
Những toa xe đỗ trên đường ga, đường nhánh trong khu gian và đường dùng riêng nếu chưa dồn thì phải nối liền với nhau, siết chặt hãm tay ở hai đầu đoàn xe và chèn chắc chắn.
2.3.3.4.8 Những toa xe chở hàng nguy hiểm như chất nổ, chất cháy... chưa lắp vào tàu phải được nối liền với nhau, chèn chắc chắn để riêng trên một đường và phòng vệ bằng tín hiệu di động “ngừng”. Các ghi dẫn vào đường này phải để thông sang đường khác, khi cần thiết phải khóa lại để không cho phương tiện giao thông đường sắt khác chạy vào.
2.3.3.4.9 Dồn trên đường chính tuyến hoặc giao cắt đường chính tuyến chỉ được thực hiện khi chưa có lệnh đón tàu vào ga và mỗi lần dồn phải được Trực ban chạy tàu ga cho phép.
Không được phép dồn khỏi giới hạn ga khi chưa được Nhân viên điều độ chạy tàu đồng ý và chưa giao cho Lái tàu bằng chứng chiếm dụng khu gian.
2.3.3.4.10 Đối với những ga có độ dốc quá 2,5‰ khi dồn toa xe có thể bị trôi vào khu gian nên cần phải có đường rút dồn. Nếu không có đường rút dồn, trong trường hợp đặc biệt thì chỉ có thể dồn với điều kiện đầu máy nối ở phía dưới dốc, nếu không làm như thế được thì phải nối tất cả hãm gió ép của đoàn xe với đầu máy dồn và phải thử hãm trước khi dồn.
Biện pháp dồn ở những ga có độ dốc như trên phải được quy định trong Quy tắc quản lý kỹ thuật ga.
2.3.3.5 Lập tàu
2.3.3.5.1 Quy định chung
2.3.3.5.1.1 Việc lập tàu phải theo đúng những quy định trong Quy chuẩn này, trong kế hoạch lập tàu và Biểu đồ chạy tàu.
2.3.3.5.1.2 Người chịu trách nhiệm về lập tàu là Nhân viên điều độ ga hoặc Trực ban chạy tàu ga (đối với ga không bố trí Nhân viên điều độ ga).
2.3.3.5.1.3 Khi cần thiết phải cho chạy những đoàn tàu quá dài hoặc quá trọng lượng do Doanh nghiệp quản lý tài sản đường sắt quốc gia quyết định.
Đối với đường sắt chuyên dùng phải theo lệnh của Chủ sở hữu đường sắt chuyên dùng.
2.3.3.5.1.4 Cách tính chiều dài và trọng lượng đoàn tàu theo Quy trình tính toán sức kéo đoàn tàu đường sắt.
2.3.3.5.2 Không được phép nối vào tàu những toa xe sau đây:
a) Toa xe vi phạm hạn độ kỹ thuật uy hiếp tới an toàn chạy tàu; toa xe có lò xo hay nhíp bị kẹt hoặc oằn xuống không đều làm thân toa xe bị nghiêng quá hạn độ quy định, thân toa xe và bệ xe va vào bộ phận chạy;
b) Toa xe đã bị trật bánh hoặc ở trong tàu đã bị tai nạn nặng nhưng chưa được kiểm tra và xác nhận là có trạng thái kỹ thuật bình thường;
c) Toa xe không có biển xác nhận sửa chữa định kỳ trừ toa xe chạy theo chứng nhận đặc biệt (coi như một thứ hàng hóa chạy được khi nối vào tàu);
d) Toa không mui (mặt bằng, mặt võng, thành thấp, thành cao), xếp hàng và gia cố hàng không đúng quy định;
đ) Toa xe xếp hàng siêu trường, siêu trọng nhưng chưa được Doanh nghiệp quản lý tài sản đường sắt quốc gia quyết định, chấp nhận vận chuyển. Đối với đường sắt chuyên dùng do Chủ sở hữu đường sắt chuyên dùng quyết định, chấp nhận vận chuyển;
e) Toa xe thành thấp mà các thành toa xe không đóng; Toa xe có cửa mở ra ngoài hoặc có cửa mở đáy nhưng không đóng và gài chốt chắc chắn;
g) Toa xe xếp loại hàng cần đình chỉ sử dụng hãm tay và hãm tự động nhưng các hãm này chưa được đình chỉ.
2.3.3.6 Mối nối toa xe trong tàu
2.3.3.6.1 Chênh lệch cao thấp của đường tâm hai móc nối tự động của hai toa xe nối liền nhau trong đoàn tàu (trong điều kiện tĩnh) không được quá 70 mm đối với toa xe đường sắt khổ 1000 mm và 75 mm đối với toa xe đường sắt khổ 1435 mm.
2.3.3.6.2 Việc cắt hoặc nối toa xe (bao gồm cả cắt hoặc nối ống hãm) trong tàu và bảo đảm các mối nối chính xác do những nhân viên sau đây phụ trách:
a) Cắt, nối giữa các toa xe trong tàu do nhân viên làm công tác dồn phụ trách;
b) Cắt, nối giữa đầu máy ghép và toa xe sát nó do nhân viên khám chữa toa xe phụ trách (ở nơi không có trạm khám xe do nhân viên làm công tác dồn phụ trách).
Trường hợp không có nhân viên làm công tác dồn thì do Phụ lái tàu thực hiện.
c) Người phụ trách kiểm tra các mối nối chính xác trong đoàn tàu là nhân viên khám chữa toa xe. Nếu không có nhân viên khám chữa toa xe thì do Trưởng tàu hoặc Phụ lái tàu của đầu máy chạy đơn có kéo theo toa xe hoặc Phụ lái tàu trong trường hợp đoàn tàu không bố trí trưởng tàu đảm nhiệm.
2.3.3.7 Sắp xếp toa xe trong tàu khách
2.3.3.7.1 Không được phép nối toa xe hàng vào tàu khách liên vận quốc tế, các tàu đặc biệt và tàu khách nhanh chạy suốt.
Khi có lệnh của Doanh nghiệp quản lý tài sản đường sắt quốc gia: Tàu khách nhanh được nối nhiều nhất không quá hai toa xe hàng, các tàu khách thường được nối nhiều nhất không quá ba toa xe hàng. Các toa xe hàng được nối vào tàu khách phải là loại 4 trục chạy ổ bi, có trạng thái kỹ thuật tốt, bảo đảm chạy tàu an toàn và tốc độ cấu tạo không thấp hơn tốc độ quy định của tàu khách. Trường hợp đặc biệt muốn nối quá số lượng toa xe hàng nói trên, Doanh nghiệp quản lý tài sản đường sắt quốc gia phải có lệnh cho phép hạ cấp bậc tàu.
2.3.3.7.2 Không được phép nối vào tàu khách những toa xe sau đây:
a) Toa xe mặt bằng, toa xi téc (rỗng hoặc nặng), toa xe chở chất nổ, chất độc, khí nén, khí hóa lỏng và hàng hóa nguy hiểm khác, hàng có mùi hôi thối, hàng dễ xê dịch xếp cao quá thành đầu toa xe, trừ toa xe dịch vụ có sử dụng bếp ga và toa xe chuyên dụng chở xe máy là hành lý, hàng lẻ gửi theo tàu sau khi được Doanh nghiệp kinh doanh vận tải đường sắt cho phép kèm theo các quy định biện pháp cụ thể đảm bảo an toàn chạy tàu;
b) Toa xe quá hạn sửa chữa định kỳ, quá hạn kiểm tra hãm ép gió và hộp trục;
c) Toa xe có chiều dày vành bánh, đai bánh và các tiêu chuẩn khác không phù hợp với tiêu chuẩn đôi bánh xe của toa xe khách;
d) Ôtô ray và các loại phương tiện động lực chuyên dùng đường sắt đã vượt quá kỳ hạn kiểm tra, sửa chữa định kỳ mà chưa được phép kéo dài kỳ hạn.
2.3.3.7.3 Không được phép nối vào tàu hỗn hợp các toa xe chở chất nổ, chất độc, khí nén, khí hóa lỏng và hàng nguy hiểm khác, hàng có mùi hôi thối, trừ các toa xe dịch vụ có sử dụng bếp ga.
Chỉ trong trường hợp đặc biệt trên các khu đoạn có khối lượng vận chuyển ít, ngoài tàu hỗn hợp không còn tàu nào khác, sau khi được Doanh nghiệp quản lý tài sản đường sắt quốc gia cho phép và kèm theo quy định biện pháp cụ thể thì mới được nối các toa chở hàng nguy hiểm (trừ toa chở chất nổ, chất độc, chất phóng xạ) vào tàu hỗn hợp.
2.3.3.7.4 Không được phép nối vào tàu chuyên dùng chở công nhân, tàu quân dụng có chở người những toa chở chất nổ, chất độc, chất phóng xạ, khí nén, khí hóa lỏng, toa chở axit, chất dễ cháy cấp 1, hàng có mùi hôi thối, toa xe xi téc đã lấy hết khí hóa lỏng nhưng chưa rửa sạch.
Trong trường hợp đặc biệt, Doanh nghiệp quản lý tài sản đường sắt quốc gia hoặc Chủ sở hữu đường sắt chuyên dùng được quyền cho phép có kèm theo biện pháp cụ thể nối các toa chất nổ, chất độc mạnh vào tàu quân dụng có chở người.
2.3.3.7.5 Các toa xe khách và toa xe hàng có chở người trong tàu hỗn hợp, tàu chuyên dùng chở công nhân, tàu quân dụng có chở người (không kể toa công vụ, toa nghỉ của ban lái máy và tổ công tác trên tàu) phải nối thành một cụm, toa xe hàng nối sát toa xe khách hoặc sát toa xe hàng có chở người phải là loại toa xe có mui.
Trường hợp tàu khách nhanh và tàu khách thường được phép nối thêm toa xe hàng cũng phải tuân theo những quy định tại mục này.
2.3.3.7.6 Cửa đầu phía trước của toa xe có khách thứ nhất và cửa đầu phía sau của toa xe khách cuối cùng (kể cả toa bưu vụ) của đoàn tàu khách hoặc của nhóm toa xe khách trong tàu hỗn hợp, tàu chuyên chở công nhân, tàu quân dụng chở người phải khóa lại. Lan can qua lại phải nâng lên, cửa lan can, dây an toàn phải đóng và cài lại.
2.3.3.8 Sắp xếp toa xe trong tàu hàng
2.3.3.8.1 Các toa xe nối trong tàu hàng không phân biệt nặng, rỗng nhưng phải nối thành từng nhóm theo ga đến (trừ trường hợp toa xe phải nối theo quy định riêng). Khi trong đoàn tàu có lẫn các toa xe hai trục và toa xe bốn trục trở lên thì phải nối các toa xe hai trục phía cuối tàu, không kể toa trưởng tàu.
2.3.3.8.2 Việc sắp xếp các toa xe đặc biệt, toa xe chở hàng siêu trường siêu trọng phải thực hiện theo quy định của Doanh nghiệp quản lý tài sản đường sắt quốc gia.
Đối với đường sắt chuyên dùng do chủ sở hữu đường sắt chuyên dùng quy định.
2.3.3.8.3 Các toa xe chở chất nổ, chất dễ cháy, chất độc, toa xi téc chở khí hóa lỏng, toa có mui chở hàng nguy hiểm, toa xi téc rỗng đã lấy khí hóa lỏng nhưng chưa rửa sạch, khi dồn hoặc khi nối vào tàu phải có toa đệm theo quy định tại Bảng 4 của Quy chuẩn này.
Bảng 4 - Khoảng cách toa đệm trong tàu hàng
| TT | Loại hàng chuyên chở | Số toa đệm ít nhất, tính bằng trục tùy theo loại đầu máy, toa xe | ||||||||||
| Đầu máy hơi nước | Đầu máy diesel kéo | Toa xe có hành khách | Toa xe chở chất nổ chất độc | Toa xe không mui xếp hàng dễ cháy | Đầu máy không có lửa, toa bằng xếp hàng dễ xê dịch, toa có thành xếp hàng dễ xê dịch | Toa xe trưởng tàu và toa có nhân viên công tác | Phía cuối cùng đoàn tàu | |||||
| Xe than nước | Đẩy | Kéo tàu thoi và tàu dồn | Không có lò đốt lửa | Có lò đốt lửa | ||||||||
| 1 | 2 | 3 | 4 | 5 | 6 | 7 | 8 | 9 | 10 | 11 | 12 | |
| I | CHẤT NỔ, CHẤT ĐỘC | 16 | 4 | 4 | 8 | 16 |
| 8 | 4 | 8 | 8 | 4 |
| II | TOA XI TÉC |
|
|
|
|
|
|
|
|
|
|
|
| 2.1 | Khí nén, khí hóa lỏng | 16 | 4 | 4 | 8 | 16 | 8 | 4 |
| 8 | 8 |
|
| 2.2 | Toa rỗng đã lấy khí hóa lỏng nhưng chưa rửa sạch | 16 | 4 | 4 | 8 | 8 | 4 | 4 |
| 8 | 8 |
|
| 2.3 | Thể lỏng dễ cháy cấp 1 | 8 | 4 | 4 | 4 | 4 | 8 | 4 |
| 4 | 4 |
|
| III | TOA CÓ MUI |
|
|
|
|
|
|
|
|
|
|
|
| 3.1 | Khí nén, khí hóa lỏng | 4 | 4 |
|
| 4 | 4 |
|
|
| 4 |
|
| 3.2 | Thể lỏng dễ cháy cấp 1 | 4 | 4 |
|
| 4 | 4 |
|
|
|
|
|
| 3.3 | Thể độc, thể cháy, chất tự cháy, chất có thể thành hỗn hợp cháy hoặc nổ, chất gặp nước bốc cháy | 4 | 4 |
|
| 4 | 8 | 8 |
|
| 4 |
|
| 3.4 | Axít | 4 |
| 4 |
| 4 | 4 | 4 | 4 | 4 | 4 |
|
| IV | TOA KHÔNG MUI XẾP HÀNG DỄ CHÁY | 16 | 4 | 4 | 8 | 4 | 8 |
|
|
| 4 |
|
Những toa xe chở hàng lẻ thuộc hàng dễ cháy, hàng nguy hiểm (trừ chất nổ, chất độc mạnh, hàng có thể trở thành hỗn hợp cháy hoặc nổ) khi nối vào tàu hoặc khi dồn có thể không cần toa đệm.
Những toa xe chở hàng không nguy hiểm, hàng không dễ cháy, toa xe có mui chở hàng dễ cháy mà các cửa đều đóng kín hoặc toa xe rỗng có thể dùng làm toa đệm.
2.3.3.8.4 Trong tàu hàng, những toa xe chở loại hàng cần đóng hãm gió ép hoặc những toa xe mà hãm gió ép hỏng không có điều kiện sửa chữa ngay, nhưng ống gió chính vẫn thông, không được nối liền quá 10 trục.
Nếu nối phía đuôi tàu thì không được nối quá 6 trục liền trước toa xe cuối cùng có hãm gió ép tốt (sát toa trưởng tàu nếu có toa trưởng tàu).
Khi có điều kiện sửa chữa thì các toa xe hỏng hãm tự động phải được sửa chữa rồi mới được phép lập tiếp vào tàu.
2.3.3.8.5 Việc nối toa xe khách có chở người vào tàu hàng chỉ được phép khi có lệnh của Doanh nghiệp quản lý tài sản đường sắt quốc gia.
Đối với đường sắt chuyên dùng do Chủ sở hữu đường sắt chuyên dùng cho phép.
Toa xe khách hoặc toa xe hàng có chở người nếu được phép nối vào tàu hàng phải tuân theo những quy định tại Mục 2.3.3.7.5 và Mục 2.3.3.7.6 của Quy chuẩn này.
2.3.3.8.6 Quy định về trang bị trên toa trưởng tàu hoặc toa xe cuối cùng của đoàn tàu không có toa xe trưởng tàu.
2.3.3.8.6.1 Toa trưởng tàu phải có hãm gió ép, van khẩn cấp, đồng hồ áp suất và hãm tay tốt.
2.3.3.8.6.2 Tại vị trí làm việc của trưởng tàu phải có thiết bị đo tốc độ đoàn tàu, thiết bị thông tin liên lạc giữa Trưởng tàu và Lái tàu.
2.3.3.8.6.3 Trường hợp tàu hàng không có toa trưởng tàu thì toa xe cuối cùng phải có hãm gió ép, hãm tay tốt và có đầy đủ tín hiệu tàu.
2.3.3.8.6.4 Đối với đoàn tàu hàng sử dụng Thiết bị tín hiệu đuôi tàu, Bộ phận tại đuôi tàu được lắp đặt phía cuối đoàn tàu, tín hiệu về áp lực ống hãm đoàn xe cuối đoàn tàu phải được báo về Bộ phận tại buồng lái của Thiết bị tín hiệu đuôi tàu đặt trên ca bin đầu máy. Doanh nghiệp quản lý tài sản đường sắt quốc gia hoặc Chủ sở hữu đường sắt chuyên dùng có trách nhiệm ban hành Quy trình khai thác sử dụng đối với Thiết bị tín hiệu đuôi tàu khi sử dụng trên các đoàn tàu hàng và phải thực hiện kiểm tra, bảo trì thường xuyên thiết bị tín hiệu đuôi tàu để đảm bảo thiết bị hoạt động tốt trong quá trình khai thác, sử dụng.
2.3.3.9 Lắp đầu máy vào tàu
2.3.3.9.1 Quy định chung
2.3.3.9.1.1 Đầu máy kéo tàu phải nối thuận chiều ở phía đầu đoàn tàu theo hướng chạy.
2.3.3.9.1.2 Khi có hai hoặc nhiều đầu máy kéo tàu chạy suốt khu đoạn phải nối đầu máy có bơm gió mạnh hơn về trước. Nếu là đầu máy hơi nước có công suất bơm gió như nhau thì phải nối đầu máy có bánh xe dẫn đường về phía trước. Đầu máy nối phía trước gọi là đầu máy chính.
2.3.3.9.1.3 Đầu máy phụ cũng phải nối ở phía đầu tàu (sau đầu máy chính hoặc cả cụm đầu máy kéo) trừ khi đầu máy phụ đẩy tàu vào khu gian rồi trở về hoặc đến ga bên cạnh cắt lại nhưng tàu không phải dừng thì được nối ở phía đuôi tàu và không nối ống gió thông vào đoàn tàu.
2.3.3.9.1.4 Trường hợp không thể nối các đầu máy ghép hoặc đầu máy phụ ở phía đầu tàu hoặc nối đầu máy khác loại liền nhau thì phải làm theo biện pháp nối đầu máy vào tàu do Doanh nghiệp quản lý tài sản đường sắt quốc gia quyết định. Đối với đường sắt chuyên dùng do chủ sở hữu đường sắt chuyên dùng quy định.
2.3.3.9.2 Đầu máy chỉ được phép chạy ngược chiều trong các trường hợp sau đây:
a) Kéo tàu chạy đường ngắn, tàu thoi, tàu cứu viện, tàu công trình;
b) Chạy trên đường nhánh;
c) Dồn toa;
d) Đầu máy thứ hai trở lên khi đoàn tàu có nhiều đầu máy kéo;
đ) Phụ đẩy tàu rồi quay về ga gửi;
e) Ở ga tàu xuất phát không có thiết bị quay đầu máy hoặc thiết bị này bị hỏng.
2.3.3.9.3 Đầu máy chạy đơn trong khu đoạn có độ dốc nhỏ hơn hoặc bằng 12‰ được phép kéo thêm không quá 5 toa xe.
2.3.3.9.3.1 Ở khu đoạn có độ dốc lớn hơn 12‰ số lượng toa xe nối thêm vào đầu máy đơn do Doanh nghiệp quản lý tài sản đường sắt quốc gia quyết định. Đối với đường sắt chuyên dùng do chủ sở hữu đường sắt chuyên dùng quy định.
2.3.3.9.3.2 Khi nối thêm các toa vào đầu máy chạy đơn phải tuân theo các quy định sau đây:
a) Lái tàu kiêm nhiệm trưởng tàu;
b) Toa xe cuối cùng phải có hãm gió ép và có đủ tín hiệu đuôi tàu;
c) Tất cả các toa xe đều phải nối vào hệ thống hãm gió ép và lực hãm cho 100 tấn trọng lượng không dưới tiêu chuẩn quy định;
d) Không được làm ảnh hưởng đến thời gian quay vòng quy định của đầu máy và thời gian lao động của ban lái tàu.
2.3.3.9.4 Đầu máy (kể cả đầu máy nguội) phải được chuẩn bị đầy đủ theo đúng biện pháp quy định của Doanh nghiệp quản lý tài sản đường sắt quốc gia hoặc Chủ sở hữu đường sắt chuyên dùng quyết định mới được gửi theo tàu. Số lượng đầu máy gửi theo tàu và số toa xe đệm giữa các đầu máy do Doanh nghiệp quản lý tài sản đường sắt quốc gia quyết định. Đối với đường sắt chuyên dùng do chủ sở hữu đường sắt chuyên dùng quy định.
2.3.3.10 Tính hãm, bố trí hãm, thử hãm trong đoàn tàu
2.3.3.10.1 Khoảng cách hãm quy định cho tàu dùng hãm gió ép không quá 800 m.
2.3.3.10.2 Áp lực guốc hãm cần thiết để đoàn tàu dừng được trong khoảng cách hãm quy định tương ứng với tốc độ, độ dốc hạn chế trong khu đoạn của phương tiện giao thông đường sắt do Doanh nghiệp quản lý tài sản đường sắt quốc gia hoặc Chủ sở hữu đường sắt chuyên dùng quyết định và ban hành phù hợp với đặc điểm của phương tiện giao thông đường sắt và tuyến đường sắt khai thác bảo đảm an toàn chạy tàu.
2.3.3.10.3 Áp lực guốc hãm trên một trục của phương tiện giao thông đường sắt do Doanh nghiệp quản lý tài sản đường sắt quốc gia hoặc Chủ sở hữu đường sắt chuyên dùng quyết định và ban hành phù hợp với đặc điểm của phương tiện giao thông đường sắt và tuyến đường sắt khai thác bảo đảm an toàn chạy tàu.
2.3.3.10.4 Hãm gió ép của tất cả các toa xe, đầu máy (kể cả xe than nước) trong tàu đều phải nối thông với nhau, trừ trường hợp đầu máy phụ đẩy cắt lại dọc đường.
2.3.3.10.5 Số trục có hãm tay tốt cần thiết để giữ cho tàu khi dừng lại khỏi trôi được quy định trong bảng tiêu chuẩn số trục hãm tay tốt tối thiểu phải có cho mỗi 100 tấn trọng lượng tàu (không kể đầu máy và xe than nước). (Xem Bảng 5).
Bảng 5- Số trục hãm tay cần thiết cho 100 tấn trọng lượng tàu để chống trôi tàu
| Độ dốc (‰) | 0-6 | 7-10 | 11-13 | 14-16 | 17-20 | 21-23 | 23-25 |
| Số trục có hãm tay tốt cần thiết | 2 | 3 | 4 | 5 | 6 | 7 | 8 |
Nếu có số trục hãm tốt không đủ theo quy định ở trên thì được dùng chèn sắt để thay thế. Mỗi chèn sắt thay được hai trục hãm tay.
Khi độ dốc lớn hơn 25‰ thì tất cả các trục toa xe đều phải có hãm tay tốt đồng thời phải bổ sung thêm chèn sắt chống trôi tàu. Số lượng chèn sắt do Doanh nghiệp quản lý tài sản đường sắt quốc gia hoặc chủ sở hữu đường sắt chuyên dùng quy định.
2.3.3.10.6 Hãm gió ép của đoàn tàu phải được thử theo quy định sau đây:
a) Thử toàn bộ để kiểm tra sự hoàn hảo của hệ thống hãm và được tiến hành trong các trường hợp sau:
- Sau khi đoàn tàu đến ga (ở những ga có quy định thử hãm);
- Trước khi tàu khởi hành ở ga lập tàu;
- Ở ga dọc đường có nối thêm toa xe vào tàu cũng phải thử hãm toàn bộ để kiểm tra tác dụng hãm của những toa xe nối thêm và toa xe cuối cùng của đoàn tàu.
b) Thử hãm đơn giản để kiểm tra sự thông gió tốt từ đầu máy đến toa xe cuối cùng và được tiến hành trong các trường hợp sau:
- Sau khi vòi hãm và ống gió chính bị đứt hỏng, bị cắt;
- Sau khi dừng tàu quá 20 phút;
- Khi áp suất gió trong thùng gió chính của đầu máy giảm xuống dưới áp suất quy định;
- Khi hãm gió ép của đầu máy thứ nhất bị hỏng phải giao việc điều khiển hãm cho đầu máy thứ hai;
- Khi thay ban lái tàu chính mà không thay đầu máy;
- Khi thay đổi chiều chạy mà không thay đầu máy chính và ban lái tàu.
c) Thử toàn bộ giữ thời gian.
Tàu chạy qua các khu gian có dốc lớn và dài phải thử hãm toàn bộ giữ thời gian. Tên ga và loại tàu có tác nghiệp thử hãm giữ thời gian do Doanh nghiệp quản lý tài sản đường sắt quốc gia quyết định. Đối với đường sắt chuyên dùng do Chủ sở hữu đường sắt chuyên dùng quy định.
2.3.3.10.7 Nội dung cụ thể về thử hãm, thời gian thử hãm, hãm toàn bộ giữ thời gian, chức danh đảm nhiệm công việc và ghi chép Giấy xác nhận tác dụng hãm tham khảo Mẫu số 01 tại Phụ lục E ban hành kèm theo Quy chuẩn này do Doanh nghiệp quản lý tài sản đường sắt quốc gia hoặc Chủ sở hữu đường sắt chuyên dùng quy định.
2.3.3.11 Khám kỹ thuật toa xe trong đoàn tàu
Mọi toa xe trong đoàn tàu phải được khám kỹ thuật và sửa chữa theo quy định để đảm bảo an toàn.
Doanh nghiệp kinh doanh vận tải có trách nhiệm xây dựng nội dung, chức danh đảm nhiệm việc khám kỹ thuật và ban hành sau khi thống nhất với Doanh nghiệp quản lý tài sản đường sắt quốc gia hoặc chủ sở hữu đường sắt chuyên dùng, tổ chức thực hiện việc khám kỹ thuật toa xe trong đoàn tàu đảm bảo an toàn.
Doanh nghiệp quản lý tài sản đường sắt quốc gia hoặc chủ sở hữu đường sắt chuyên dùng chịu trách nhiệm quy định địa điểm và giám sát việc khám kỹ thuật của đoàn tàu đảm bảo an toàn.
2.3.4 Phương pháp đóng đường chạy tàu
2.3.4.1 Quy định chung
2.3.4.1.1 Phương pháp đóng đường cơ bản để chạy tàu bao gồm:
a) Đóng đường tự động;
b) Đóng đường nửa tự động;
c) Đóng đường bằng máy thẻ đường.
Khi thiết bị đóng đường cơ bản bị hỏng hoặc không sử dụng được phải đình chỉ sử dụng và chuyển sang phương pháp đóng đường bằng điện tín để thay thế. Phương tiện chuyển, nhận điện tín là điện thoại.
Khi chuyển sang phương pháp đóng đường bằng điện tín hoặc phục hồi phương pháp đóng đường cơ bản đều phải làm theo mệnh lệnh của Nhân viên điều độ chạy tàu.
Trường hợp điện thoại với điều độ không thông, việc chuyển hoặc phục hồi phương pháp đóng đường do Trực ban chạy tàu ga hai ga đầu khu gian trực tiếp dùng điện thoại để làm thủ tục sau khi đã cùng xác nhận khu gian thanh thoát.
2.3.4.1.2 Biện pháp đóng đường của trạm đóng đường chạy tàu, trạm bổ trợ trong khu gian do Doanh nghiệp quản lý tài sản đường sắt quốc gia hoặc Chủ sở hữu đường sắt chuyên dùng quy định trong Quy trình chạy tàu và công tác dồn đường sắt.
2.3.4.1.3 Chạy tàu với các phương pháp đóng đường nửa tự động, tự động, bằng máy thẻ đường, bằng điện tín và chạy tàu khi thông tin bị gián đoạn do Doanh nghiệp quản lý tài sản đường sắt quốc gia hoặc Chủ sở hữu đường sắt chuyên dùng quy định trong Quy trình chạy tàu và công tác dồn đường sắt.
2.3.4.2 Đóng đường tự động
2.3.4.2.1 Khi sử dụng phương pháp đóng đường tự động, bằng chứng cho phép tàu chiếm dụng phân khu đóng đường là ánh đèn màu vàng hoặc màu lục của tín hiệu ra ga hoặc tín hiệu thông qua. Đối với tàu chở khách (kể cả tàu khách, tàu hỗn hợp, tàu chở người) và tàu chạy liền sau tàu khách (trừ đầu máy đơn không kéo toa xe, tàu hàng dừng rồi tiếp tục chạy, ô tô ray, phương tiện động lực chuyên dùng đường sắt), ít nhất phải có hai phân khu đóng đường phía trước thanh thoát Trực ban chạy tàu ga mới được cho tàu chạy.
2.3.4.2.2 Trên khu đoạn đường đơn, Trực ban chạy tàu ga trước khi làm thủ tục gửi tàu phải được Nhân viên điều độ chạy tàu đồng ý, nếu điện thoại với điều độ không thông, phải được sự đồng ý của Trực ban chạy tàu ga đón tàu.
2.3.4.2.3 Khi tín hiệu đèn màu thông qua biểu thị màu đỏ, biểu thị không đúng, tàu phải dừng trước tín hiệu đó và kéo một tiếng còi dài. Sau 3 phút tín hiệu thông qua vẫn chưa có biểu thị cho phép, Lái tàu kéo một hồi còi dài rồi tiếp tục chạy với tốc độ không lớn hơn 15 km/h và phải chuẩn bị sẵn sàng dừng tàu trước chướng ngại. Khi đến tín hiệu thông qua tiếp theo đó, tàu chạy theo biểu thị của tín hiệu này. Nếu tín hiệu tiếp theo cũng biểu thị như trên thì tàu được tiếp tục chạy theo biện pháp nói trên. Sau khi dừng tàu, Lái tàu nhìn thấy hoặc biết chắc chắn phân khu phía trước có chướng ngại thì trước khi xác định phân khu này thanh thoát, không được cho tàu tiếp tục chạy.
Trong trường hợp trên, Lái tàu phải hết sức chú ý, nếu thời tiết xấu hoặc tầm nhìn hạn chế, phải kịp thời kéo còi và giảm tốc độ thích hợp để bảo đảm tàu chạy an toàn.
2.3.4.2.4 Khi tàu chạy dọc đường nếu phát hiện tín hiệu thông qua không có biểu thị hoặc biểu thị không đúng, Lái tàu phải báo cho Trực ban chạy tàu ga gần nhất phía trước biết số hiệu và trạng thái tín hiệu đó.
Khi trong khu gian có hai tín hiệu thông qua cùng chiều trở lên không có biểu thị hoặc biểu thị không đúng thì coi như thiết bị đóng đường hỏng phải đình chỉ sử dụng.
2.3.4.3 Đóng đường nửa tự động
2.3.4.3.1 Khi sử dụng phương pháp đóng đường nửa tự động, bằng chứng cho phép tàu chiếm dụng khu gian là biểu thị cho phép tàu chạy của tín hiệu ra ga hoặc tín hiệu thông qua.
2.3.4.3.2 Trong khu đoạn đường đơn, trước khi mở tín hiệu ra ga, Trực ban chạy tàu ga gửi tàu phải nhận được biểu thị đồng ý đón tàu do Trực ban chạy tàu ga đón tàu cho phép.
2.3.4.3.3 Khi đã làm thủ tục đóng đường gửi tàu, nếu đã mở tín hiệu ra ga nhưng cần bãi bỏ việc gửi tàu, Trực ban chạy tàu ga phải đóng tín hiệu ra ga, báo lý do cho Trực ban chạy tàu ga đón tàu biết và hủy bỏ thủ tục đóng đường, khôi phục thiết bị đóng đường trở về trạng thái bình thường, khu gian thanh thoát.
2.3.4.4 Đóng đường bằng máy thẻ đường
2.3.4.4.1 Khi sử dụng phương pháp đóng đường bằng máy thẻ đường, bằng chứng cho phép tàu chiếm dụng khu gian là thẻ đường thuộc khu gian đó.
Khi nhận thẻ đường, Lái tàu phải xác nhận thẻ đường đúng với khu gian tàu sắp chạy vào.
2.3.4.4.2 Việc trao đổi điện thoại và chuyển nhận điện tín có liên quan đến chạy tàu, việc lấy thẻ đường ra hoặc trả thẻ đường vào hòm thẻ đường và việc giao, nhận thẻ đường do Trực ban chạy tàu ga tự làm.
Nếu máy thẻ đường đặt ở chòi ghi, việc lấy thẻ đường ra hoặc trả thẻ đường vào hòm thẻ đường cũng như việc giao, nhận thẻ đường do tổ trưởng tổ ghi làm theo mệnh lệnh của Trực ban chạy tàu ga.
2.3.4.4.3 Thẻ đường nhận được của một tàu vừa đến không phải trả vào hòm thẻ đường, được phép giao cho một tàu ngược chiều gửi vào chính khu gian ấy, nhưng phải được ga đón tàu đồng ý trước bằng điện tín và ghi vào sổ nhật ký chạy tàu.
Không được phép làm như trên ở khu gian có sử dụng thẻ hình chìa khóa hoặc đã đồng ý cho ga bên dồn theo đuôi tàu.
2.3.4.4.4 Không được phép:
a) Xin lấy thẻ đường ra trước khi tàu sẵn sàng chạy, trừ khi tàu thông qua hoặc dừng theo quy định không quá 3 phút;
b) Để thẻ đường ngoài hòm thẻ đường;
c) Đem thẻ đường của khu gian này sang khu gian khác.
2.3.4.5 Đóng đường bằng điện tín
2.3.4.5.1 Khi sử dụng phương pháp đóng đường bằng điện tín, bằng chứng cho phép tàu chiếm dụng khu gian là Phiếu đường theo Mẫu số 02 (2A, 2B) tại Phụ lục E ban hành kèm theo Quy chuẩn này.
Khi nhận Phiếu đường, Lái tàu phải kiểm tra nội dung đúng với ngày, số hiệu tàu và tên khu gian tàu sắp chạy vào.
2.3.4.5.2 Điện tín có liên quan đến đóng đường phải do Trực ban chạy tàu ga ghi vào sổ biên bản điện tín, ký tên rồi mới được chuyển đi. Khi nhận điện tín phải đọc lại, cả hai bên xác nhận đúng mới ghi thời gian, số điện tín, tên người nhận, người chuyển vào sổ biên bản điện tín.
Mẫu sổ điện tín và thủ tục đăng ký chuyển điện tín do Doanh nghiệp quản lý tài sản đường sắt quốc gia hoặc Chủ sở hữu đường sắt chuyên dùng quy định trong Quy trình chạy tàu và công tác dồn đường sắt.
2.3.4.5.3 Những việc liên quan đến đóng đường như:
a) Xin đường;
b) Cho đường;
c) Báo tàu đến đi hoặc thông qua;
d) Hủy bỏ thủ tục đóng đường;
đ) Xin đường để dồn ra ngoài giới hạn ga;
e) Những việc khác mà Trực ban chạy tàu ga xét thấy cần thiết đều phải được thực hiện theo mẫu điện tín do Doanh nghiệp quản lý tài sản đường sắt quốc gia hoặc Chủ sở hữu đường sắt chuyên dùng quy định trong Quy trình chạy tàu và công tác dồn đường sắt.
2.3.4.6 Phương pháp chạy tàu khi thông tin bị gián đoạn
2.3.4.6.1 Khi thiết bị đóng đường cơ bản và mọi thứ điện thoại đều bị gián đoạn (gọi tắt là thông tin gián đoạn) việc chạy tàu ở khu gian đường đơn tiến hành theo phương pháp liên lạc bằng thông tri, ở khu gian đường đôi theo giãn cách thời gian. Bằng chứng cho phép tàu chiếm dụng khu gian là Giấy phép màu đỏ kèm theo Thông tri Mẫu A hoặc B (Mẫu số 03), thông tri Mẫu C hoặc D (Mẫu số 04) tại Phụ lục E ban hành kèm theo Quy chuẩn này.
2.3.4.6.2 Phương pháp liên lạc bằng thông tri do ga ưu tiên quyết định. Chiều ưu tiên là chiều tàu số lẻ chạy. Ga gửi tàu số lẻ là ga ưu tiên.
Biện pháp gửi thông tri và điều kiện xác định phương pháp liên lạc bằng thông tri do Doanh nghiệp quản lý tài sản đường sắt quốc gia hoặc Chủ sở hữu đường sắt chuyên dùng quy định trong Quy trình chạy tàu và công tác dồn đường sắt.
2.3.4.6.3 Khi ga ưu tiên gửi tàu đầu tiên sau khi thông tin bị gián đoạn, không cần phải có sự đồng ý của ga đón tàu.
Ở khu đoạn đường đơn đóng đường tự động, mặc dù tàu đầu tiên thuộc chiều ưu tiên, nhưng Trực ban chạy tàu ga chỉ được cho tàu chạy khi nào đã xác định khu gian giữa hai ga đã thanh thoát.
Ga không ưu tiên không được cho bất cứ tàu nào chạy vào khu gian thông tin bị gián đoạn, trừ trường hợp tàu đã được phép chạy trước khi thông tin bị gián đoạn hoặc tàu cứu viện gửi vào khu gian theo yêu cầu cứu viện.
2.3.4.6.4 Trước khi thông tin bị gián đoạn, ga ưu tiên đã cho phép ga bên cạnh gửi tàu mà tàu đó chưa đến và cũng chưa nhận được báo hủy bỏ việc gửi tàu thì trước khi xác minh rõ tình hình phải coi như khu gian đã bị chiếm dụng và không được cho phép ga ưu tiên gửi tàu.
2.3.4.6.5 Trong lúc thông tin gián đoạn, không được phép gửi các tàu sau đây:
a) Tàu có dừng để làm việc trong khu gian (trừ tàu cứu viện);
b) Tàu chạy đến đường nhánh trong khu gian;
c) Đầu máy đơn có kéo thêm toa xe hoặc đoàn tàu không bố trí trưởng tàu nếu sau nó có tàu chạy cùng chiều.
2.3.4.6.6 Nếu tàu gửi sau khi thông tin bị gián đoạn có đầu máy phụ đẩy thì đầu máy đẩy không được phép đến dọc đường quay trở về mà phải cùng với tàu đi suốt khu gian. Trước khi tàu này chạy, Trực ban chạy tàu ga gửi tàu phải báo cho Lái tàu và Trưởng tàu biết.
2.3.4.6.7 Ở khu đoạn đường đơn, trong lúc thông tin bị gián đoạn việc gửi tàu cùng chiều được giải quyết theo giãn cách thời gian. Giãn cách thời gian giữa hai tàu này ít nhất phải bằng thời gian tàu trước chạy qua khu gian theo bảng thời trình cộng thêm 3 phút. Đối với khu gian khó khăn, giãn cách thời gian giữa hai do Doanh nghiệp quản lý tài sản đường sắt quốc gia hoặc Chủ sở hữu đường sắt chuyên dùng về quy định trong Quy trình chạy tàu và công tác dồn đường sắt.
2.3.4.6.8 Ở khu đoạn đường đôi, trong lúc thông tin bị gián đoạn, việc gửi tàu theo đường đúng chiều quy định tiến hành với giãn cách thời gian bằng thời gian tàu trước chạy qua khu gian theo bảng thời trình cộng thêm 3 phút. Đối với khu gian khó khăn, giãn cách thời gian giữa hai tàu do Doanh nghiệp quản lý tài sản đường sắt quốc gia hoặc Chủ sở hữu đường sắt chuyên dùng về quy định trong Quy trình chạy tàu và công tác dồn đường sắt.
Không được phép bất kỳ ga nào gửi tàu theo đường trái chiều quy định trong lúc thông tin bị gián đoạn.
Nếu khu đoạn đường đôi chạy tàu hai chiều trước khi thông tin bị gián đoạn thì việc chạy tàu tiến hành theo phương pháp liên lạc bằng thông tri như quy định đối với khu gian đường đơn.
2.3.4.6.9 Việc khôi phục phương pháp đóng đường cơ bản hoặc điện thoại phải làm theo mệnh lệnh của Nhân viên điều độ chạy tàu. Trường hợp điện thoại điều độ không thông thì do ga ưu tiên xác định. Trình tự phục hồi phương pháp đóng đường cơ bản hoặc điện thoại do Doanh nghiệp quản lý tài sản đường sắt quốc gia hoặc Chủ sở hữu đường sắt chuyên dùng về quy định trong Quy trình chạy tàu và công tác dồn đường sắt.
2.3.4.6.10 Trong lúc thông tin bị gián đoạn, nếu cần thiết phải phong tỏa, giải tỏa khu gian, Trực ban chạy tàu ga nhận được yêu cầu phải gửi giấy báo việc phong tỏa hoặc giải tỏa cho Trực ban chạy tàu ga đầu kia của khu gian.
2.3.5 Đón gửi tàu và chạy tàu
2.3.5.1 Quy định chung
2.3.5.1.1 Trong một thời gian nhất định, mỗi điểm phân giới, mỗi đoàn tàu hay mỗi đầu máy chỉ do một người chỉ huy việc chạy tàu:
a) Tại ga: Trực ban chạy tàu ga;
b) Trạm đóng đường: Trực ban chạy tàu trạm;
c) Trên đoàn tàu: Trưởng tàu;
d) Đầu máy đơn, đoàn tàu không bố trí Trưởng tàu: Lái tàu;
đ) Ga lớn có thể bố trí phụ Trực ban chạy tàu ga đảm nhiệm một phần công việc chạy tàu dưới sự chỉ huy của Trực ban chạy tàu ga. Nếu ga có nhiều bãi, có thể có nhiều phụ Trực ban chạy tàu ga, mỗi người chỉ huy chạy tàu ở mỗi bãi phải chịu sự chỉ huy thống nhất của Trực ban chạy tàu ga. Việc phân định khu vực quản lý và trách nhiệm chỉ huy chạy tàu của ga nói trên phải được quy định tại Quy tắc quản lý kỹ thuật ga;
e) Tại điểm phân giới, Trưởng tàu hoặc Lái tàu của đầu máy đơn, của đoàn tàu không bố trí trưởng tàu phải phục tùng mệnh lệnh của Trực ban chạy tàu điểm phân giới, hoặc tuân theo biểu thị của tín hiệu điểm phân giới.
2.3.5.1.2 Trong công tác đón gửi tàu, mọi việc quan trọng như: Chuẩn bị đường, làm thủ tục đóng mở tín hiệu, đón gửi tàu, giao bằng chứng chạy tàu và làm tín hiệu gửi tàu do Trực ban chạy tàu ga trực tiếp làm.
Trường hợp vì điều kiện thiết bị hoặc khối lượng công việc lớn, một phần công việc trên có thể do phụ Trực ban chạy tàu ga làm dưới sự chỉ huy và kiểm tra của Trực ban chạy tàu ga.
Trách nhiệm của Trực ban chạy tàu ga và phụ Trực ban chạy tàu ga do Doanh nghiệp quản lý tài sản đường sắt quốc gia quyết định. Đối với đường sắt chuyên dùng do chủ sở hữu đường sắt chuyên dùng quy định.
2.3.5.1.3 Ở những ga có thiết bị kiểm tra việc đón, gửi tàu, Trực ban chạy tàu ga phải căn cứ vào biểu thị của thiết bị đó để xác nhận tình hình chuẩn bị đường đón, gửi, trạng thái tàu ra, vào ga. Nếu không có thiết bị kiểm tra phải tự mình hoặc thông qua báo cáo hay tín hiệu an toàn của Gác ghi sau khi đã kiểm tra đường đón, gửi hoặc tín hiệu an toàn của Trưởng tàu để xác nhận tình hình trên.
2.3.5.1.4 Trên nguyên tắc tàu nào không dừng ở ga sẽ cho thông qua đường chính tuyến (trừ trường hợp không thể đón tàu vào đường chính tuyến). Tàu khách, tàu hỗn hợp, tàu chở người và tàu hàng có toa xe chở hàng siêu trường, siêu trọng phải được đón hoặc gửi trên đường quy định. Tàu hàng phải đón, gửi trên cụm đường quy định trong ga. Khi thay đổi đường cố định đón, gửi tàu khách, tàu hỗn hợp, tàu chở người phải được Nhân viên điều độ chạy tàu cho phép. Trường hợp buộc phải thay đổi sang một đường khác ngoài đường quy định đón, gửi tàu, phải được phép của Doanh nghiệp quản lý tài sản đường sắt quốc gia (đối với đường sắt chuyên dùng do chủ sở hữu đường sắt chuyên dùng quy định) và có biện pháp riêng về chuẩn bị đường.
Trình tự chuẩn bị đường để đón gửi tàu phải được quy định tại Quy tắc quản lý kỹ thuật ga.
2.3.5.1.5 Trực ban chạy tàu ga phải bảo đảm luôn luôn có đường thanh thoát để đón, gửi tàu. Không được phép để toa xe và các phương tiện giao thông vận tải đường sắt khác chiếm dụng trên đường chính tuyến.
2.3.5.1.6 Khi đón, gửi tàu, nhân viên phụ trách công việc này phải chú ý quan sát trạng thái toa xe và tín hiệu đuôi tàu. Nếu thấy có hiện tượng không bảo đảm an toàn, đèn tín hiệu đuôi tàu thông qua ban đêm bị tắt thì phải tìm cách bổ cứu.
Nhân viên đón, tiễn tàu không được rời vị trí khi chưa xác nhận đoàn tàu đến hoặc đi an toàn. Trường hợp tránh tàu hoặc cần làm ngay thủ tục đóng đường với ga bên hay báo giờ gửi tàu vào khu gian đặc biệt đối với ga bên, Trực ban chạy tàu ga có thể rời vị trí sau khi tàu chuyển bánh hoặc đầu máy đến qua khỏi vị trí đón gửi.
2.3.5.1.7 Sau khi tàu đến, đi hoặc thông qua ga, Trực ban chạy tàu ga phải ghi vào sổ nhật ký chạy tàu và báo cho Trực ban chạy tàu ga đón, gửi tàu và Nhân viên điều độ chạy tàu số hiệu tàu, giờ thực tế tàu đến, đi, thông qua và các đặc điểm khác của tàu (nếu có).
2.3.5.1.8 Trên khu đoạn đường đôi, mỗi đường chính tuyến dành riêng cho tàu chạy theo một chiều nhất định. Trừ trường hợp ngoại lệ (có quy định riêng), tàu chạy một chiều theo đường phía bên trái.
Khi tạm thời cho tàu chạy trái chiều đường quy định hoặc chạy hai chiều trên một đường phải có mệnh lệnh của Nhân viên điều độ chạy tàu.
2.3.5.1.9 Những tàu sau đây được phép chạy đầu máy đẩy toa xe đi trước:
a) Khi tàu chạy vào đường nhánh và trở về ga;
b) Khi tàu vào làm việc trong khu gian (tàu công trình, tàu cứu viện, chuyển tải,...);
c) Khi cần thiết đẩy lùi tàu từ khu gian về ga.
2.3.5.2 Đón tàu
2.3.5.2.1 Sau khi đã cho đường ga bên cạnh hoặc ga bên cạnh báo tàu đã chạy, Trực ban chạy tàu ga phải kịp thời ra lệnh cho Gác ghi hoặc nhân viên trạm tập trung chuẩn bị đường mà tàu sẽ chạy vào ga.
Nhân viên nhận lệnh phải nhắc lại nội dung mệnh lệnh đó với Trực ban chạy tàu ga.
2.3.5.2.2 Trước khi đón tàu, Trực ban chạy tàu ga phải kiểm tra và xác nhận những công việc chuẩn bị sau đây:
a) Việc dồn dịch có ảnh hưởng hoặc trở ngại đến đường đón tàu và đường tàu vào đã được đình chỉ;
b) Đường đón tàu và đường tàu vào đã thanh thoát;
c) Các ghi liên quan đã đúng vị trí cần thiết và đã khóa.
Trực ban chạy tàu ga chỉ được mở hoặc ra lệnh mở tín hiệu vào ga sau khi đã kiểm tra, xác nhận việc chuẩn bị đường đón tàu nói trên đã được thực hiện đầy đủ.
Trình tự và biện pháp chuẩn bị đường đón tàu của Trực ban chạy tàu ga, Gác ghi và nhân viên trạm tập trung do Doanh nghiệp quản lý tài sản đường sắt quốc gia hoặc Chủ sở hữu đường sắt chuyên dùng quy định trong Quy trình chạy tàu và công tác dồn đường sắt.
2.3.5.2.3 Khi cột tín hiệu vào ga, vào bãi báo tín hiệu ngừng hoặc đèn tắt được phép dùng tín hiệu dẫn đường hoặc cử người dẫn đường để đón tàu vào ga trong các trường hợp đặc biệt dưới đây:
a) Cột tín hiệu vào ga hoặc vào bãi bị hỏng không thể mở được hoặc đèn tín hiệu bị tắt;
b) Ga chưa có cột tín hiệu vào ga hoặc có nhưng chưa sử dụng được, phải dùng tín hiệu di động thay thế;
c) Cột tín hiệu vào ga hoặc vào bãi không có quan hệ liên khóa với ghi của đường đón tàu nếu không mở được.
Biện pháp đón tàu vào ga trong các trường hợp đặc biệt nói trên do Doanh nghiệp quản lý tài sản đường sắt quốc gia hoặc Chủ sở hữu đường sắt chuyên dùng quy định trong Quy trình chạy tàu và công tác dồn đường sắt.
2.3.5.2.4 Trường hợp trong ga không còn đường nào thanh thoát và có lệnh của Nhân viên điều độ chạy tàu cho phép, được cử nhân viên dẫn đường (không được dùng tín hiệu dẫn đường) để đón tàu vào đường không thanh thoát theo biện pháp dồn dịch, sau khi tàu này đã dừng ngoài cột tín hiệu vào ga đóng.
Không được phép đón tàu liên vận quốc tế, tàu khách nhanh chạy suốt và tàu khách nhanh vào đường không thanh thoát.
Biện pháp đón tàu vào đường không thanh thoát ở những ga có độ dốc cao mà tàu không phải dừng ngoài cột tín hiệu vào ga do Doanh nghiệp quản lý tài sản đường sắt quốc gia hoặc Chủ sở hữu đường sắt chuyên dùng quy định trong Quy trình chạy tàu và công tác dồn đường sắt.
2.3.5.2.5 Không được phép đón hai tàu vào ga cùng một lúc, nếu:
a) Cuối đường đón tàu này không có thiết bị tách rời với đường đón tàu kia (đường an toàn, thiết bị trật bánh hay những ghi có tác dụng tách rời), trừ trường hợp được Doanh nghiệp quản lý tài sản đường sắt quốc gia hoặc chủ sở hữu đường sắt chuyên dùng có quy định cho phép;
b) Một trong hai tàu là tàu thông qua theo thời trình, trừ khi có mệnh lệnh của Nhân viên điều độ chạy tàu cho tàu thông qua phải dừng lại tại ga theo điều kiện quy định tại điểm a) của mục này.
2.3.5.2.6 Lái tàu chỉ được cho tàu vượt quá cột tín hiệu vào ga hoặc vào bãi ở trạng thái đóng sau khi đã nhận được tín hiệu dẫn đường hoặc Giấy cho phép vào ga hay tín hiệu đón tàu của nhân viên dẫn đường và chạy vào ga với tốc độ không quá 15 km/h nhưng phải đặc biệt cảnh giác chuẩn bị sẵn sàng dừng tàu trước chướng ngại.
Giấy cho phép vào ga theo Mẫu số 05 tại Phụ lục E ban hành kèm theo Quy chuẩn này.
Cách thức giao Giấy cho phép vào ga cho Lái tàu và ghi chép nội dung của Giấy cho phép vào do Doanh nghiệp quản lý tài sản đường sắt quốc gia hoặc Chủ sở hữu đường sắt chuyên dùng quy định trong Quy trình chạy tàu và công tác dồn đường sắt.
2.3.5.2.7 Ở những ga không được phép đón hai tàu cùng một lúc, nếu có hai tàu cùng đến ga, phải đón vào trước tàu chạy trước tàu kế tiếp hoặc tàu mà để dừng ngoài cột hiệu vào ga sẽ chạy lại khó khăn hoặc tàu không nên để dừng ngoài ga.
2.3.5.2.8 Tàu đến ga phải dừng ở giữa giới hạn hai mốc tránh va chạm của đường đón tàu, ở ga có cột tín hiệu ra ga thì phải dừng giữa giới hạn cột tín hiệu ra ga phía trước và mốc tránh va chạm phía sau.
Nếu đuôi tàu còn ở ngoài mốc tránh va chạm: Trưởng tàu và Gác ghi phải báo tín hiệu ngừng trên đường bên cạnh để phòng vệ được quy định trong Quy chuẩn kỹ thuật quốc gia về tín hiệu giao thông đường sắt; Đối với đoàn tàu hàng không bố trí Trưởng tàu thì Gác ghi phải kiểm tra và báo tín hiệu ngừng trên đường bên cạnh để phòng vệ được quy định trong Quy chuẩn kỹ thuật quốc gia về tín hiệu giao thông đường sắt.
2.3.5.2.9 Tín hiệu vào ga phải được đóng lại ngay khi toàn bộ tàu chạy qua khỏi tín hiệu hoặc tự động đóng lại ngay khi đôi bánh xe đầu tiên của tàu chạy qua tín hiệu ở khu gian đóng đường tự động.
Nếu tàu quá dài mà đầu tàu đã đến mốc tránh va chạm phía ra ga, nhưng đuôi tàu còn nằm ngoài cột tín hiệu vào ga thì cũng phải đóng tín hiệu vào ga.
2.3.5.3 Gửi tàu
2.3.5.3.1 Trước khi gửi tàu, Trực ban chạy tàu ga và gác ghi phải chuẩn bị đường gửi tàu theo trình tự công tác do Doanh nghiệp quản lý tài sản đường sắt quốc gia hoặc Chủ sở hữu đường sắt chuyên dùng quy định trong Quy trình chạy tàu và công tác dồn đường sắt.
2.3.5.3.2 Trước khi gửi tàu, Trực ban chạy tàu ga phải xác nhận mọi điều kiện về an toàn để gửi tàu vào khu gian và đã làm đầy đủ các thủ tục về đóng đường với ga đón tàu.
2.3.5.3.3 Trước khi gửi tàu, Trực ban chạy tàu ga phải kiểm tra và xác nhận những công việc chuẩn bị sau đây:
a) Việc dồn dịch có ảnh hưởng hoặc trở ngại đến đường gửi tàu và đường tàu ra ga đã được đình chỉ;
b) Đường gửi tàu và đường tàu ra đã thanh thoát;
c) Các ghi liên quan đã đúng vị trí cần thiết và đã khóa.
Trực ban chạy tàu ga chỉ được mở tín hiệu ra ga hoặc giao bằng chứng cho phép tàu chiếm dụng khu gian sau khi đã kiểm tra và xác nhận công việc chuẩn bị đường gửi tàu nói trên đã được thực hiện đầy đủ.
2.3.5.3.4 Không được phép đón một tàu và gửi một tàu cùng chiều một lúc, nếu:
a) Cuối đường đón tàu này không có thiết bị tách rời với đường gửi tàu (đường an toàn, thiết bị trật bánh hoặc ghi có tác dụng tách rời), trừ trường hợp được Doanh nghiệp quản lý tài sản đường sắt quốc gia hoặc Chủ sở hữu đường sắt chuyên dùng cho phép.
b) Tàu đón vào là tàu thông qua theo thời trình trừ khi có mệnh lệnh của Nhân viên điều độ chạy tàu cho tàu thông qua phải dừng tại ga thì theo điều kiện quy định tại điểm a của mục này.
2.3.5.3.5 Bằng chứng cho phép tàu chiếm dụng khu gian khi không phải là biểu thị cho phép của tín hiệu ra ga, phải do Trực ban chạy tàu ga giao tận tay cho Lái tàu. Đối với tàu thông qua, dùng cột giao nhận để giao bằng chứng chạy tàu cho Lái tàu khi tàu đang chạy.
2.3.5.3.6 Tín hiệu ra ga phải được đóng lại ngay khi tàu chạy vào phạm vi khu gian hoặc sau khi đôi bánh xe đầu tiên của tàu chạy qua tín hiệu ra ga đó nếu đường tàu ra có mạch điện ray hoặc thiết bị truyền tin tương tự như mạch điện ray.
2.3.5.3.7 Trước khi gửi tàu, tại các ga: Ga khu đoạn, ga lập tàu và các ga khác được chỉ định lập tàu, Trực ban chạy tàu ga phải kiểm tra và xác nhận:
a) Tàu đã lập đúng kế hoạch lập tàu;
b) Việc sắp xếp toa xe trong tàu và các điều kiện khác về lập tàu đã đúng quy định nêu trong Quy chuẩn này;
c) Tàu đã có đủ tín hiệu cần thiết.
Ngoài ra, Trực ban chạy tàu ga phải giao cho Trưởng tàu tờ Nhật ký tàu theo mẫu do Doanh nghiệp quản lý tài sản đường sắt quốc gia hoặc Chủ sở hữu đường sắt chuyên dùng quy định.
Ở ga dọc đường mà tàu nối thêm toa xe, Trực ban chạy tàu ga này phải giao cho Trưởng tàu bảng kê số toa xe nối thêm.
Nội dung và mẫu bảng kê số toa xe nối thêm do Doanh nghiệp quản lý tài sản đường sắt quốc gia hoặc Chủ sở hữu đường sắt chuyên dùng quy định trong Quy trình về chạy tàu và công tác dồn đường sắt.
2.3.5.3.8 Khi sử dụng phương pháp đóng đường chạy tàu tự động, bán tự động mà đã xin được đường ga bên để gửi tàu nhưng tín hiệu ra ga, ra bãi ở trạng thái đóng
hoặc che khuất thì bằng chứng cho tàu chạy vào khu gian là Giấy phép vạch chéo lục theo Mẫu số 06 tại Phụ lục E ban hành kèm theo Quy chuẩn này.
Việc ghi nội dung, giao Giấy phép vạch chéo lục và thủ tục gửi tàu do Doanh nghiệp quản lý tài sản đường sắt quốc gia hoặc chủ sở hữu đường sắt chuyên dùng quy định trong Quy trình chạy tàu và công tác dồn đường sắt.
2.3.5.4 Trang bị và nhân viên công tác trên đoàn tàu
2.3.5.4.1 Khi trong tàu hàng có toa xe chở chất nổ, chất độc phải có dụng cụ, vật liệu chữa cháy và phòng độc theo quy định của Doanh nghiệp quản lý tài sản đường sắt quốc gia hoặc Chủ sở hữu đường sắt chuyên dùng.
2.3.5.4.2 Mỗi đoàn tàu phải có đủ định biên để làm công tác chạy tàu như Lái tàu, chỉ huy đoàn tàu, phục vụ hành khách, hàng hóa. Tùy theo loại tàu, Doanh nghiệp quản lý tài sản đường sắt quốc gia, Chủ sở hữu đường sắt chuyên dùng, Doanh nghiệp kinh doanh vận tải đường sắt quyết định số định biên, nhiệm vụ, chức năng từng chức danh.
2.3.5.4.3 Ngoài việc tuân thủ Quy định của Bộ trưởng Bộ Xây dựng về tiêu chuẩn, nhiệm vụ, quyền hạn đối với các chức danh nhân viên đường sắt trực tiếp phục vụ chạy tàu thì Lái tàu và Phụ lái tàu phải thực hiện các công việc quy định trong quy trình tác nghiệp của Lái tàu và Phụ lái tàu do Doanh nghiệp quản lý tài sản đường sắt quốc gia hoặc Chủ sở hữu đường sắt chuyên dùng quy định.
2.3.5.4.4 Nhân viên khám chữa toa xe và nhân viên phục vụ trên tàu.
2.3.5.4.4.1 Các đoàn tàu khách nhất thiết phải có nhân viên khám chữa toa xe và nhân viên phục vụ trên tàu.
2.3.5.4.4.2 Doanh nghiệp kinh doanh vận tải đường sắt căn cứ vào loại tàu khách để bố trí định viên chức danh nhân viên khám chữa toa xe và nhân viên phục vụ trên tàu, xây dựng quy trình tác nghiệp cho các chức danh trên thực hiện.
2.3.5.4.4.3 Tùy theo tính chất của từng loại tàu hàng, Doanh nghiệp kinh doanh vận tải đường sắt hoặc Chủ sở hữu đường sắt chuyên dùng bố trí định biên, nhân viên khám chữa toa xe và xây dựng Quy trình tác nghiệp cho các chức danh trên thực hiện.
2.3.5.5 Tốc độ
2.3.5.5.1 Tốc độ chạy tàu trên các khu gian, khu đoạn, đoạn không được vượt quá tốc độ quy định trong công lệnh tốc độ.
2.3.5.5.2 Khi tàu chạy qua cột tín hiệu đèn màu báo ánh sáng màu vàng hoặc cột tín hiệu báo trước có cánh ở trạng thái bình thường, tàu phải chạy với tốc độ thích hợp để dừng được trước cột tín hiệu tiếp theo báo ngừng.
2.3.5.5.3 Tốc độ chạy tàu qua ghi theo hướng rẽ: Phải theo đúng tốc độ do Doanh nghiệp quản lý tài sản đường sắt quốc gia quy định căn cứ theo cấu tạo và trạng thái của ghi. Đối với đường sắt chuyên dùng do chủ sở hữu đường sắt chuyên dùng quy định.
2.3.5.5.4 Khi tàu chạy do đầu máy đẩy đoàn xe, tốc độ không vượt quá 20 km/h.
2.3.5.5.5 Khi tàu chạy vào đường cụt trong ga, tàu chạy với tốc độ không vượt quá 10 km/h.
2.3.5.5.6 Khi qua địa điểm phòng vệ bằng tín hiệu giảm tốc độ tàu phải chạy đúng với tốc độ đã quy định giảm ở đó.
2.3.5.5.7 Nếu ở địa điểm đã có công lệnh giảm tốc độ nhưng lại có giấy cảnh báo ghi tốc độ khác với tốc độ quy định trong công lệnh, tàu phải chạy theo tốc độ thấp nhất.
2.3.5.5.8 Khi ở những địa điểm có đặt tín hiệu phòng vệ giảm tốc độ mà không quy định tốc độ cụ thể nhưng không có cảnh báo hoặc công lệnh quy định tốc độ, tàu phải chạy với tốc độ không quá 15 km/h.
2.3.5.5.9 Khi đầu máy hơi nước chạy ngược chiều mà xe than nước có giá chuyển hướng, tốc độ không được vượt quá 55 km/h. Nếu xe than nước không có giá chuyển hướng hoặc đầu máy không có bánh xe dẫn đường thì phải theo đúng tốc độ do Doanh nghiệp quản lý tài sản đường sắt quốc gia quy định. Đối với đường sắt chuyên dùng do chủ sở hữu đường sắt chuyên dùng quy định.
2.3.5.6 Biện pháp giải quyết khi bị dừng tàu trong khu gian
2.3.5.6.1 Khi buộc phải dừng tàu trong khu gian, Lái tàu có trách nhiệm:
a) Cho tàu dừng ở đoạn đường bằng và thẳng khi yêu cầu dừng tàu không khẩn cấp;
b) Sử dụng hãm gió ép để dừng đoàn tàu và khi cần thiết báo tín hiệu cho nhân viên phục vụ trên tàu siết hãm tay;
c) Xem xét đoàn tàu có thể tiếp tục chạy được không, nếu không phải lập tức kéo còi báo cho Trưởng tàu biết;
d) Cử người trong ban lái tàu đi phòng vệ khi có lệnh điều động của Trưởng tàu.
2.3.5.6.2 Khi tàu bị dừng trong khu gian, Trưởng tàu phải tự mình hoặc chỉ huy nhân viên trên tàu tiến hành ngay những công việc sau đây:
a) Ban đêm lập tức kiểm tra ánh sáng đèn tín hiệu đuôi tàu;
b) Siết chặt hãm tay của những toa xe cuối đoàn tàu. Nếu chỗ tàu dừng là dốc lên (hoặc khi gặp bão) phải dùng chèn đặt vào bánh xe của toa xe sau cùng khi Lái tàu báo hiệu tàu không thể tiếp tục chạy được. Trường hợp hãm gió ép mất tác dụng, phải siết chặt hãm tay ít nhất bằng số trục quy định trong Bảng 5 của Quy chuẩn này;
c) Cử người phòng vệ đoàn tàu ngay sau 10 phút tàu đã dừng ở trong khu gian không đóng đường tự động hoặc điện tín, sau 3 phút tàu đã dừng ở trong khu gian đóng đường tự động (kể cả khi dừng phía trước cột tín hiệu vào ga, tín hiệu phòng vệ đóng);
d) Khi có tàu cùng chiều chạy tiếp phía sau phải lập tức đặt tín hiệu phòng vệ. Nếu thiếu người, Trưởng tàu phải tự mình đảm nhiệm công việc phòng vệ cho đến khi có người thay thế mới được trở về đoàn tàu;
đ) Huy động mọi dụng cụ và vật liệu có thể sử dụng được để khôi phục lại việc chạy tàu thật nhanh chóng;
e) Nếu việc chạy tàu không thể khôi phục lại được trong vòng 30 phút thì phải tìm biện pháp báo ngay với Nhân viên điều độ chạy tàu hoặc Trực ban chạy tàu ga một trong hai ga đầu khu gian biết và yêu cầu cứu viện;
g) Khi đầu máy đơn (kể cả khi có nối thêm toa xe) hoặc đoàn tàu hàng không bố trí Trưởng tàu bị dừng trong khu gian, lái tàu phải đảm nhiệm những công việc nói trên của Trưởng tàu. Trường hợp không đủ người làm những việc nói trên, Lái tàu của đầu máy đơn hoặc Lái tàu của đoàn tàu hàng không bố trí Trưởng tàu khẩn trương báo tin cho Nhân viên điều độ chạy tàu. Nhân viên điều độ chạy tàu khi nhận được tin báo phải có biện pháp phong tỏa khu gian (nếu cần thiết) hoặc thông báo lại cho Lái tàu đối với đoàn tàu không bố trí trưởng tàu biết có tàu chạy kế tiếp (nếu có) để Lái tàu có biện pháp phòng vệ theo quy định.
2.3.5.6.3 Sau khi tàu bị dừng trong khu gian phải tổ chức phòng vệ. Biện pháp phòng vệ đoàn tàu bị dừng trong khu gian nói chung và phòng vệ đoàn tàu tổ chức kéo từng phần về ga nói riêng trong mọi trường hợp tuân thủ theo quy định tại Quy chuẩn kỹ thuật quốc gia về tín hiệu giao thông đường sắt do Bộ Xây dựng quy định và Quy trình về chạy tàu và công tác dồn đường sắt do Doanh nghiệp quản lý tài sản đường sắt quốc gia hoặc Chủ sở hữu đường sắt chuyên dùng ban hành.
2.3.5.6.4 Tàu bị dừng trong khu gian, sau khi đã xin cứu viện mà chưa được phép bằng mệnh lệnh thì không được tiếp tục chạy tiến hoặc lùi.
2.3.5.6.5 Tàu bị dừng trong khu gian có thể lùi lấy đà để chạy lại hoặc lùi về ga gửi tàu với tốc độ chạy lùi không quá 15 km/h. Đoàn tàu hàng sử dụng Thiết bị tín hiệu đuôi tàu thay thế toa trưởng tàu khi bị chết dốc, trong điều kiện lái tàu có thể quan sát được phía đuôi tàu, đảm bảo an toàn khi thực hiện việc lùi tàu, tiến hành cử phụ lái tàu làm tín hiệu phía đuôi tàu. Trình tự, biện pháp lùi tàu lấy đà để chạy lại hoặc lùi về ga gửi tàu do Doanh nghiệp quản lý tài sản đường sắt quốc gia hoặc chủ sở hữu đường sắt chuyên dùng quy định trong Quy trình về chạy tàu và công tác dồn đường sắt.
Giấy xin phép và Giấy cho phép lùi tàu về ga theo Mẫu số 07 và Mẫu số 08 tại Phụ lục E ban hành kèm theo Quy chuẩn này.
2.3.5.6.5.1 Nếu chưa được phép của Trực ban chạy tàu ga gửi tàu, tàu không được chạy lùi về phía trong cột tín hiệu báo trước hoặc biển báo trước của ga đó.
2.3.5.6.5.2. Không cho phép tàu chạy lùi trong các trường hợp sau đây:
a) Khi sương mù, mưa to, gió lớn hoặc điều kiện xấu khác khó xác nhận tín hiệu;
b) Tàu bị dừng là tàu chạy sau khi thông tin gián đoạn mà phía sau nó có tàu chạy cùng chiều;
c) Tàu chạy trong khu gian đóng đường tự động;
d) Tàu đã xin cứu viện;
đ) Tàu có đầu máy đẩy vào khu gian rồi trở về.
2.3.5.6.6 Khi tàu bị dừng trong khu gian vì không kéo nguyên cả đoàn tàu, đầu máy chính hoặc đầu máy cứu viện được phép kéo từng phần về ga. Biện pháp tổ chức kéo từng phần về ga do Doanh nghiệp quản lý tài sản đường sắt quốc gia hoặc chủ sở hữu đường sắt chuyên dùng quy định chi tiết trong Quy trình về chạy tàu và công tác dồn đường sắt.
Bằng chứng cho phép Lái tàu chạy đơn hoặc kéo phần đầu đoàn tàu về ga để xin cứu viện sau khi đã thu chứng vật chạy tàu là Giấy phép màu trắng kèm đơn xin cứu viện theo Mẫu số 09 tại Phụ lục E ban hành kèm theo Quy chuẩn này.
2.3.5.7 Biện pháp chạy tàu cứu viện
2.3.5.7.1 Tàu cứu viện chạy trong khu gian phong tỏa theo mệnh lệnh của Nhân viên điều độ chạy tàu (hoặc của Trực ban chạy tàu ga trong trường hợp điện thoại giữa ga với điều độ không thông), mệnh lệnh này phải ghi vào Giấy phép vạch chéo đỏ theo Mẫu số 10 tại Phụ lục E ban hành kèm theo Quy chuẩn này để làm bằng chứng cho phép tàu chiếm dụng khu gian.
2.3.5.7.2 Trực ban chạy tàu ga sau khi nhận được yêu cầu cứu viện bằng giấy hoặc điện thoại của Trưởng tàu, Lái tàu của đầu máy đơn hoặc Lái tàu của đoàn tàu hàng không bố trí Trưởng tàu hoặc của nhân viên cầu đường, thông tin tín hiệu phải báo ngay với Nhân viên điều độ chạy tàu.
Nhân viên điều độ chạy tàu phải phát mệnh lệnh phong tỏa khu gian và mệnh lệnh gửi tàu cứu viện, trong đó phải quy định rõ biện pháp chạy tàu của tàu cứu viện. Trường hợp điện thoại giữa hai ga với điều độ không thông, Trực ban chạy tàu ga nhận được yêu cầu cứu viện phải báo ngay cho Trực ban chạy tàu ga đầu kia khu gian và làm thủ tục phong tỏa khu gian. Sau đó căn cứ vào tình hình cụ thể, cùng nhau tổ chức và quy định biện pháp chạy tàu cứu viện. Khi điện thoại điều độ thông hoặc khi tai nạn đã giải quyết xong, Trực ban chạy tàu hai ga phải báo chi tiết công việc đã làm cho Nhân viên điều độ chạy tàu. Sau khi nhận được thông báo của ga xác nhận khu gian thanh thoát, Nhân viên điều độ chạy tàu phát mệnh lệnh giải tỏa khu gian.
Mệnh lệnh phong tỏa và giải tỏa khu do Doanh nghiệp quản lý tài sản đường sắt quốc gia hoặc Chủ sở hữu đường sắt chuyên dùng về quy định trong Quy trình chạy tàu và công tác dồn đường sắt.
2.3.5.7.3 Mỗi lần tàu cứu viện chạy vào khu gian hay trở về ga phải báo cho Nhân viên điều độ chạy tàu và Trực ban chạy tàu ga đầu kia của khu gian.
Nếu nơi xảy ra tai nạn có đặt trạm chạy tàu tạm thời thì trước khi cho tàu cứu viện chạy, Trực ban chạy tàu ga phải trao đổi và được sự đồng ý của Trực ban chạy tàu trạm.
2.3.5.7.4 Trưởng ga, Phó ga hoặc Trực ban chạy tàu ga xuống ban phải đi áp dẫn tàu cứu viện đầu tiên chạy vào nơi xảy ra tai nạn (không kể đầu máy vào khu gian kéo phần còn lại) nhân viên này điều khiển tại chỗ mọi công việc có liên quan đến chạy tàu cứu viện cho đến khi có người được chỉ định đến thay.
2.3.5.8 Biện pháp phong tỏa khu gian và chạy tàu khi thi công sửa chữa công trình thiết bị
2.3.5.8.1 Trên nguyên tắc, khi thi công sửa chữa cầu, đường, hầm, thiết bị tín hiệu, thông tin và các công trình, thiết bị khác phải bảo đảm an toàn chạy tàu, không được làm gián đoạn việc chạy tàu và giảm tốc độ tàu.
Chỉ trong trường hợp thi công với khối lượng công tác lớn, điều kiện công tác phức tạp mới cho phép gián đoạn việc chạy tàu và giảm tốc độ tàu trong một thời gian ngắn. Trường hợp này do Doanh nghiệp quản lý tài sản đường sắt quốc gia hoặc Chủ sở hữu đường sắt chuyên dùng quy định trong Quy trình chạy tàu và công tác dồn đường sắt.
2.3.5.8.2 Trường hợp thi công sửa chữa cầu, hầm và làm những công tác lớn như: Cải tuyến, sửa chữa lớn, thay ray... làm gián đoạn chạy tàu, phải bố trí thời gian phong tỏa vào khoảng trống không có tàu trong Biểu đồ chạy tàu.
2.3.5.8.3 Trường hợp thi công phải phong tỏa khu gian do Doanh nghiệp quản lý tài sản đường sắt quốc gia hoặc chủ sở hữu đường sắt chuyên dùng quy định trong Quy trình chạy tàu và công tác dồn đường sắt.
2.3.5.8.4 Trước khi bắt đầu thi công, căn cứ vào Giấy phong tỏa khu gian, Nhân viên điều độ chạy tàu liên quan phát mệnh lệnh phong tỏa và biện pháp chạy tàu cần thiết cho Trực ban chạy tàu hai ga đầu khu gian và người lãnh đạo thi công.
Nếu một ga đầu khu gian thuộc sự chỉ huy của Nhân viên điều độ chạy tàu liên quan khác thì trước khi phát lệnh phong tỏa, Nhân viên điều độ chạy tàu liên quan phụ trách ga đầu khu gian này phải trao đổi và được sự đồng ý của Nhân viên điều độ chạy tàu liên quan phụ trách ga đầu bên kia. Nếu phải làm khác nội dung ghi trong Giấy phong tỏa, Nhân viên điều độ chạy tàu liên quan phải báo cáo ngay lý do cho người ký Giấy phong tỏa khu gian.
Giấy phong tỏa khu gian do Doanh nghiệp quản lý tài sản đường sắt quốc gia hoặc Chủ sở hữu đường sắt chuyên dùng quy định trong Quy trình chạy tàu và công tác dồn đường sắt.
2.3.5.8.5 Mệnh lệnh phong tỏa khu gian do Nhân viên điều độ chạy tàu liên quan truyền đạt trực tiếp cho Người lãnh đạo thi công. Nếu không có liên lạc điện thoại trực tiếp, Nhân viên điều độ chạy tàu liên quan chỉ định ga đầu khu gian truyền đạt lại. Trường hợp không có điện thoại ở địa điểm thi công, Người lãnh đạo thi công phải cử người liên lạc với ga gần nhất để nhận mệnh lệnh phong tỏa.
Trong thời gian phong tỏa khu gian, Trực ban chạy tàu ga hai đầu khu gian phải treo biển “KHU GIAN PHONG TỎA” trên máy đóng đường hoặc điện thoại chạy tàu và đặt tín hiệu phòng vệ đường vào khu gian.
2.3.5.8.6 Không được phép khởi công sửa chữa công trình, thiết bị trên đường sắt gây nguy hiểm cho việc chạy tàu khi Người lãnh đạo thi công chưa nhận được mệnh lệnh bắt đầu phong tỏa khu gian của Nhân viên điều độ chạy tàu liên quan và chưa đặt tín hiệu phòng vệ địa điểm thi công đúng theo quy định tại Quy chuẩn kỹ thuật quốc gia về tín hiệu giao thông đường sắt.
Không được phép rút bỏ tín hiệu phòng vệ khi chưa kết thúc toàn bộ công tác thi công, chưa kiểm tra xong trạng thái đường và giới hạn tiếp giáp kiến trúc đủ điều kiện bảo đảm an toàn chạy tàu.
2.3.5.8.7 Trên nguyên tắc, trong khu gian phong tỏa để thi công chỉ cho phép một tàu công trình vào làm việc (kể cả phương tiện động lực chuyên dùng đường sắt và máy làm đường).
Trường hợp cần thiết cho nhiều tàu công trình cùng chạy vào khu gian phong tỏa thì gửi tàu theo biện pháp do Doanh nghiệp quản lý tài sản đường sắt quốc gia hoặc chủ sở hữu đường sắt chuyên dùng quy định trong Quy trình chạy tàu và công tác dồn đường sắt. Trong mọi trường hợp tàu công trình gửi vào khu gian phong tỏa phải có Giấy phép vạch chéo đỏ do Trực ban chạy tàu ga cấp cho Lái tàu làm bằng chứng cho phép tàu chiếm dụng khu gian căn cứ theo mệnh lệnh của Nhân viên điều độ chạy tàu liên quan.
Khi thi công không ảnh hưởng đến trạng thái của đường, cầu, hầm, thì Người chỉ huy thi công có thể trực tiếp báo cho Trực ban chạy tàu ga hoặc Nhân viên điều độ chạy tàu việc hoàn thành công tác.
Chỉ khi nào nhận được các báo cáo trên và kiểm tra thủ tục xác nhận khu gian thanh thoát, Nhân viên điều độ chạy tàu mới được phát mệnh lệnh giải tỏa khu gian.
2.3.5.8.8 Trong trường hợp phong tỏa khu gian để thi công, sau khi kết thúc thi công, đơn vị thi công phải báo cho Trực ban chạy tàu ga đầu khu gian hoặc Nhân viên điều độ chạy tàu bằng văn bản hoặc điện tín xác nhận kết thúc thi công và trạng thái đường, giới hạn tiếp giáp kiến trúc đã được khôi phục cho tàu chạy an toàn. Chỉ khi nào nhận được các báo cáo trên và kiểm tra thủ tục xác nhận khu gian thanh thoát, Nhân viên điều độ chạy tàu mới được phát mệnh lệnh giải tỏa khu gian.
2.3.5.8.9 Trường hợp sử dụng thời gian giãn cách giữa hai tàu trong Biểu đồ chạy tàu để thi công sửa chữa đường, cầu, hầm trong khu gian, người lãnh đạo thi công phải thông qua Trực ban chạy tàu ga, báo kế hoạch công tác và được Nhân viên điều độ chạy tàu cho phép thi công mà không cần phong tỏa khu gian.
2.3.5.8.10 Khi thi công trong khoảng thời gian giãn cách giữa hai tàu mặc dù đã được Nhân viên điều độ chạy tàu đồng ý, trước khi khởi công, người lãnh đạo thi công phải liên hệ trực tiếp hoặc qua Trực ban chạy tàu ga đầu khu gian với Nhân viên điều độ chạy tàu để thống nhất thời gian thực tế bắt đầu, kết thúc thi công và phải đặt tín hiệu phòng vệ địa điểm thi công được quy định trong Quy chuẩn kỹ thuật quốc gia về tín hiệu giao thông đường sắt.
Sau khi thống nhất thời gian trên, Nhân viên điều độ chạy tàu phát mệnh lệnh cho Trực ban chạy tàu ga hai ga đầu khu gian để quy định thời gian thi công.
Trực ban chạy tàu hai ga đầu khu gian không được gửi tàu vào khu gian trước khi hết thời gian thi công quy định trong mệnh lệnh điều độ, trừ tàu cứu viện. Cảnh báo cấp cho Lái tàu và Trưởng tàu cứu viện theo quy định của Doanh nghiệp quản lý tài sản đường sắt quốc gia, Chủ sở hữu đường sắt chuyên dùng trong Quy trình chạy tàu và công tác dồn đường sắt.
Việc sử dụng thiết bị cơ giới sửa chữa đường sắt mà không phải phong tỏa khu gian do Doanh nghiệp quản lý tài sản đường sắt quốc gia hoặc Chủ sở hữu đường sắt chuyên dùng quy định trong Quy trình chạy tàu và công tác dồn đường sắt. Chỉ được phép tiến hành thi công khi có Giấy cho phép thi công do Trực ban chạy tàu ga cấp theo Mẫu số 11 tại Phụ lục E ban hành kèm theo Quy chuẩn này.
2.3.5.8.11 Đến giờ kết thúc thi công trong khoảng thời gian giãn cách giữa hai tàu, trạng thái đường phải được khôi phục cho tàu chạy bình thường và rút bỏ tín hiệu phòng vệ.
Trường hợp đặc biệt phải giảm tốc độ chạy tàu, Người lãnh đạo thi công phải yêu cầu phát giấy cảnh báo cho tàu và đặt tín hiệu giảm tốc độ được quy định trong Quy chuẩn kỹ thuật quốc gia về tín hiệu giao thông đường sắt.
2.3.5.8.12 Khi cần thi công sửa chữa đường, thiết bị tín hiệu và công trình thiết bị khác trên đường ga có ảnh hưởng đến việc chạy tàu và dồn dịch, người lãnh đạo thi công phải đăng ký nội dung thi công và thời gian tiến hành vào sổ kiểm tra thiết bị chạy tàu và phải được Trực ban chạy tàu ga đồng ý. Sau khi đã phòng vệ địa điểm thi công theo quy định trong Quy chuẩn kỹ thuật quốc gia về tín hiệu giao thông đường sắt, người lãnh đạo thi công mới được cho khởi công.
Nếu phải phong tỏa đường chính tuyến và đường đón gửi tàu, Trực ban chạy tàu ga phải báo và được sự đồng ý của Nhân viên điều độ chạy tàu mới cho thi công.
2.3.5.8.13 Sau khi thi công xong ở ga, Người lãnh đạo thi công phải ghi vào sổ kiểm tra thiết bị chạy tàu chất lượng thiết bị bảo đảm chạy tàu an toàn. Trực ban chạy tàu ga ký tên xác nhận vào sổ xong mới được ra lệnh sử dụng lại thiết bị.
2.3.5.9 Biện pháp chạy goòng
2.3.5.9.1 Trên nguyên tắc, những loại xe có thể nhấc ra khỏi đường ray (được gọi là goòng) chỉ được di chuyển trên đường sắt vào ban ngày theo biện pháp chạy goòng do Doanh nghiệp quản lý tài sản đường sắt quốc gia, Chủ sở hữu đường sắt chuyên dùng quy định cụ thể tại Quy trình về chạy tàu và công tác dồn đường sắt.
Goòng chạy vào khu gian không cần có bằng chứng cho phép chiếm dụng khu gian như tàu (trừ loại có động cơ) và trong bất cứ trường hợp nào cũng không được làm trở ngại việc chạy tàu bình thường.
2.3.5.9.2 Khi sử dụng goòng, Người phụ trách goòng phải làm thủ tục và được Trực ban chạy tàu ga thừa nhận về thời gian sử dụng, nếu ở khu gian thì dùng điện thoại liên lạc với Trực ban chạy tàu ga xin thừa nhận. Dù được thừa nhận cũng phải bảo đảm nhấc goòng ra khỏi đường sắt khi cần thiết.
Việc yêu cầu sử dụng goòng và thừa nhận sử dụng goòng theo Phiếu chạy goòng Mẫu số 12 tại Phụ lục E ban hành kèm theo Quy chuẩn này.
Riêng đối với loại goòng dùng trong công tác kiểm tra, sửa chữa đường và thiết bị như: Goòng dò vết nứt, goòng công vụ làm đường, goòng chạy trên một ray... thì chỉ cần người phụ trách hỏi rõ Trực ban chạy tàu ga về tình hình chạy tàu là có thể cho goòng chạy vào khu gian, trừ khi chạy vào khu gian có hầm, cầu lớn và mặt cắt dọc, mặt bằng của đường bất lợi thì vẫn phải làm thủ tục thừa nhận.
2.3.5.9.3 Khi sử dụng goòng trong khu gian có chở vật liệu từ 100 kg đến dưới 500 kg hoặc khi goòng chạy trong khu gian có hầm, cầu lớn hoặc mặt cắt dọc, mặt bằng của đường hạn chế tầm nhìn, phải cử người cầm tín hiệu tay màu đỏ đi phía trước và phía sau cách goòng 800 m cùng chuyển dịch gieo goòng để phòng vệ. Nếu goòng chở từ 500 kg trở lên chạy trong điều kiện tầm nhìn hạn chế (đường đào, đường cong bán kính nhỏ, hầm, cầu lớn hoặc có sương mù, mưa to gió lớn), phải tăng thêm người phòng vệ trung gian đi cách xa hơn người phòng vệ chính ít nhất 200 m.
2.3.5.9.4 Khi sử dụng goòng phải có những điều kiện sau đây:
a) Có người phụ trách;
b) Có đủ số người đi theo để khi tàu gần đến hoặc khi nhận được tín hiệu nguy cấp nhấc goòng nhanh chóng ra khỏi đường ngoài phạm vi khổ giới hạn tiếp giáp kiến trúc đường sắt;
c) Có đủ tín hiệu quy định cho goòng và những tín hiệu cần thiết khác để phòng vệ;
d) Goòng có động cơ nhất thiết phải có thiết bị hãm tốt.
2.3.5.9.5 Khi sử dụng goòng trên các đường ga, Người phụ trách goòng phải ghi yêu cầu vào Sổ đăng ký chạy goòng và được Trực ban chạy tàu ga ký tên chấp nhận. Nếu địa điểm làm việc cách xa phòng Trực ban chạy tàu ga thì liên lạc bằng điện thoại để xin phép.
Ngoài quy định trên, khi sử dụng goòng di chuyển trên đường và ghi ở ga lập tàu hoặc ga đang có đầu máy dồn hoạt động, còn phải cử người cầm tín hiệu tay màu đỏ đi ở hai đầu cách goòng ít nhất 50 m cùng chuyển dịch theo goòng để phòng vệ.
Các trường hợp goòng không được phép chạy do Doanh nghiệp quản lý tài sản đường sắt quốc gia, Chủ sở hữu đường sắt chuyên dùng quy định cụ thể tại Quy trình về chạy tàu và công tác dồn đường sắt.
2.3.5.10 Cấp cảnh báo
Trừ những địa điểm cần giảm tốc độ chạy tàu đã được quy định bằng công lệnh, những trường hợp dưới đây phải cấp cảnh báo cho các nhân viên trên tàu:
a) Khi sửa chữa theo kế hoạch đường, cầu, hầm hoặc dừng rồi chạy lại (dẫn đường) qua địa điểm thi công;
b) Khi goòng chở vật liệu nặng hoặc khi goòng hoạt động trong khu gian có tầm nhìn hạn chế (đường cong, đường đào, sương mù, mưa to gió lớn, có cầu, hầm lớn dài);
c) Khi đường, cầu, hầm và thiết bị kiến trúc khác trong khu gian bị hư hỏng hoặc có chướng ngại ảnh hưởng đến tàu chạy bình thường;
d) Khi gửi tàu trong lúc có lụt, bão vào khu gian có đoạn đường mà Doanh nghiệp quản lý tài sản đường sắt quốc gia quy định là điểm xung yếu, nguy hiểm cho tàu chạy bình thường;
Đối với đường sắt chuyên dùng do chủ sở hữu đường sắt chuyên dùng quy định;
đ) Khi không kịp phục hồi trạng thái cầu, đường, hầm cho tàu chạy bình thường trước giờ quy định kết thúc thi công không phong tỏa khu gian;
e) Khi gửi tàu vào khu gian trước giờ quy định kết thúc thi công không phong tỏa khu gian;
g) Khi thi công sửa chữa đường hoặc thiết bị chạy tàu trong ga có ảnh hưởng đến việc đón tàu bình thường mà xét thấy cần thiết phải báo cho tàu biết (dẫn đường, giảm tốc độ ...);
h) Các trường hợp khác xét thấy cần cấp cảnh báo để bảo đảm an toàn chạy tàu.
Việc yêu cầu cấp cảnh báo thuộc quyền hạn của nhân viên đường sắt do Doanh nghiệp quản lý tài sản đường sắt quốc gia, Chủ sở hữu đường sắt chuyên dùng quy định cụ thể tại Quy trình về chạy tàu và công tác dồn đường sắt.
Giấy cảnh báo theo Mẫu số 13 tại Phụ lục E ban hành kèm theo Quy chuẩn này.
3. QUY ĐỊNH VỀ QUẢN LÝ
3.1 Trong thời gian làm nhiệm vụ có liên quan đến việc chạy tàu, mỗi nhân viên đường sắt phải qua kiểm tra định kỳ về trình độ thông hiểu quy chuẩn kỹ thuật, quy trình, quy tắc nghiệp vụ kỹ thuật, nội quy trong phạm vi chức trách của mình và được nhận xét về chất lượng công tác đạt yêu cầu quy định trong khi thi hành nhiệm vụ đó.
3.2 Những nhân viên đường sắt được sử dụng làm công tác có liên quan đến việc chạy tàu phải được định kỳ kiểm tra lại sức khỏe trong hạn kỳ quy định.
3.3. Những chức danh nhân viên đường sắt có tiêu chuẩn cấp bậc kỹ thuật phải được sát hạch về trình độ hiểu biết kỹ thuật chuyên môn trong phạm vi chức trách được giao.
3.4. Trong trường hợp các văn bản, tài liệu được viện dẫn trong Quy chuẩn này có thay đổi, bổ sung về các nội dung liên quan hoặc được thay thế thì thực hiện theo quy định trong văn bản mới.
4. TRÁCH NHIỆM CỦA TỔ CHỨC, CÁ NHÂN
4.1 Doanh nghiệp quản lý tài sản đường sắt quốc gia, Chủ sở hữu đường sắt chuyên dùng:
4.1.1 Ban hành Quy trình chạy tàu và công tác dồn đường sắt thuộc phạm vi quản lý để quy định chi tiết việc: Chạy tàu với phương pháp đóng đường tự động; Chạy tàu với phương pháp đóng đường nửa tự động; Chạy tàu với phương pháp đóng đường bằng máy thẻ đường; chạy tàu với phương pháp đóng đường bằng điện tín; Chạy tàu với phương pháp đóng đường bằng thông tri; Biện pháp chạy tàu cứu viện và biện pháp giải quyết khi tua bị dừng trong khu gian; Biện pháp chạy tàu khi tiến hành công tác sửa chữa thiết bị và công trình kiến trúc; Biện pháp đón gửi tàu; Công tác dồn; Công tác điều độ chạy tàu; Công tác cấp cảnh báo;
4.1.2 Quy định nội dung các mẫu sổ đăng ký phục vụ công tác chạy tàu và cấp cảnh báo bao gồm: Sổ đăng ký cảnh báo (dùng cho Trực ban chạy tàu ga); Sổ đăng ký lệnh của Nhân viên điều độ (dùng cho Nhân viên điều độ chạy tàu); Sổ đăng ký nhận lệnh của Nhân viên điều độ chạy tàu (dùng cho Trực ban chạy tàu ga); Bản sao lệnh của Nhân viên điều độ chạy tàu (dùng cho Trực ban chạy tàu ga); Sổ nhận điện tín (dùng cho Nhân viên điều độ chạy tàu); Sổ biên bản điện tín chạy tàu (dùng cho Trực ban chạy tàu ga); Sổ đăng ký cảnh báo của Nhân viên điều độ chạy tàu (dùng cho Nhân viên điều độ chạy tàu); Sổ nhận cảnh báo của Nhân viên điều độ chạy tàu (dùng cho Trực ban chạy tàu ga); Giấy phong tỏa khu gian; Các mẫu sổ và ấn chỉ chạy tàu cần thiết khác ban hành kèm theo Quy trình chạy tàu và công tác dồn đường sắt;
4.1.3 Ban hành quy định chi tiết Quy tắc quản lý kỹ thuật ga, trạm.
4.2 Doanh nghiệp sử dụng lao động phải kiểm tra nghiệp vụ của nhân viên đường sắt trước khi nhận nhiệm vụ liên quan đến việc chạy tàu trong phạm vi chức trách được giao về những nội dung sau:
a) Quy chuẩn kỹ thuật quốc gia về khai thác đường sắt;
b) Quy chuẩn kỹ thuật quốc gia về tín hiệu giao thông đường sắt;
c) Quy trình chạy tàu và công tác dồn đường sắt; Quy trình tác nghiệp;
d) Quy tắc an toàn lao động và an toàn kỹ thuật;
đ) Quy tắc quản lý kỹ thuật ga, trạm.
e) Nội quy lao động.
4.3 Những người đang trong thời kỳ thực tập, chỉ được phép sử dụng thiết bị tín hiệu, thông tin và các máy móc thiết bị chạy tàu khác khi có sự hướng dẫn và giám sát của nhân viên phụ trách chính thức. Trong trường hợp này, nhân viên phụ trách chính thức chịu trách nhiệm về việc làm của người thực tập.
4.4 Nhân viên đường sắt khi thấy tàu đang chạy hoặc đang dồn dịch có hiện tượng rõ rệt nguy hiểm đến an toàn chạy tàu phải lập tức có tín hiệu bắt tàu dừng lại; Khi phát hiện thấy công trình thiết bị đường sắt hoặc các chướng ngại khác có thể uy hiếp an toàn chạy tàu phải lập tức dùng mọi cách phòng vệ địa điểm nguy hiểm, đồng thời báo cho người có trách nhiệm đến giải quyết.
4.5 Khi tổ chức chạy tàu từ đường sắt quốc gia vào đường sắt chuyên dùng có kết nối ray với đường sắt quốc gia và ngược lại, Doanh nghiệp quản lý tài sản đường sắt quốc gia quy định biện pháp chạy tàu tại khu vực kết nối ray.
5. TỔ CHỨC THỰC HIỆN
5.1 Thủ trưởng các tổ chức liên quan có trách nhiệm phổ biến, tập huấn Quy chuẩn này đến các đơn vị và nhân viên dưới quyền để thực hiện.
5.2 Các tổ chức, đơn vị có liên quan căn cứ nội dung được giao trong Quy chuẩn này có trách nhiệm xây dựng, ban hành các nội dung chi tiết để thực hiện.
5.3 Quá trình thực hiện có khó khăn, vướng mắc, các tổ chức, đơn vị liên quan, tổng hợp, báo cáo gửi Cục Đường sắt Việt Nam, Bộ Xây dựng để giải quyết.
5.4 Cục Đường sắt Việt Nam chủ trì, phối hợp với các tổ chức, đơn vị có liên quan kiểm tra việc thực hiện Quy chuẩn này.
_________________________
Phụ lục A
Khổ giới hạn tiếp giáp kiến trúc
A.1 - Khổ giới hạn tiếp giáp kiến trúc trên đường thẳng trong khu gian và đường chính trong ga

Hình A.1
A.2 - Khổ giới hạn tiếp giáp kiến trúc trên đường thẳng trong ga

Hình A.2
A.3 - Khổ giới hạn tiếp giáp kiến trúc trên đường thẳng trong cầu

Hình A.3
A.4 - Khổ giới hạn tiếp giáp kiến trúc trên đường thẳng trong hầm

Hình A.4
Chú thích chung cho các bản vẽ từ A.1 đến A.4
Khổ giới hạn tiếp giáp kiến trúc trên đường cong phải căn cứ khổ giới hạn tiếp giáp kiến trúc trên đường thẳng mà nới rộng thêm theo công thức dưới đây:
1. Nới rộng bụng đường cong: ![]()
2. Nới rộng lưng đường cong: ![]()
Trong đó:
- ω1, ω2: Khoảng nới rộng.
- h: Siêu cao ray lưng đường cong (mm).
- R: Bán kính đường cong (m).
A.5 - Khổ giới hạn tiếp giáp kiến trúc trên đường thẳng trong khu gian và đường chính trong ga

Hình A.5
A.6 - Khổ giới hạn tiếp giáp kiến trúc trên đường thẳng trong ga

Hình A.6
A.7 - Khổ giới hạn tiếp giáp kiến trúc trên đường thẳng trong cầu

Hình A.7
A.8 - Khổ giới hạn tiếp giáp kiến trúc trên đường thẳng trong hầm

Hình A.8
Chú thích chung cho các bản vẽ từ A.5 đến A.8
Khổ giới hạn tiếp giáp kiến trúc trên đường cong phải căn cứ khổ giới hạn tiếp giáp kiến trúc trên đường thẳng mà nới rộng thêm theo công thức dưới đây:
1. Nới rộng bụng đường cong: ![]()
2. Nới rộng lưng đường cong: ![]()
Trong đó:
- ω1, ω2: Khoảng nới rộng về phía bụng và lưng đường cong (mm).
- H: Chiều cao từ điểm tính toán tới mặt ray (mm).
- h: Siêu cao ray lưng đường cong (mm).
- R: Bán kính đường cong (m).
Phụ lục B
Khổ giới hạn đầu máy, toa xe
B.1 - Khổ giới hạn đầu máy, toa xe (đường sắt khổ 1000 mm)

Hình B.1
B.2 – Khổ giới hạn đầu máy, toa xe (đường sắt khổ 1435mm)

Hình B.2
Phụ lục C
Khổ giới hạn áp dụng tạm thời cho các kiến trúc, thiết bị cũ chưa được cải tạo ở gần đường sắt khổ 1000 mm lồng thêm đường sắt khổ 1435 mm

Hình C
Ghi chú: Những toa xe từ mặt ray lên 1100 mm rộng quá 3000 mm, chạy trên đường sắt khổ 1000 mm phải có sự cho phép riêng như xếp hàng vượt quá khổ giới hạn đầu máy, toa xe.
Phụ lục D
Cấp kỹ thuật ga đường sắt
D.1 - Yêu cầu tối thiểu đối với tác nghiệp kỹ thuật của ga
| TT | Cấp kỹ thuật ga | Yêu cầu tối thiểu đối với tác nghiệp kỹ thuật của ga | |
| 1 | Ga cấp I | Ga hành khách | a) Giải thể, lập các loại tàu sau: tàu đặc biệt; tàu khách nhanh chạy suốt; tàu khách nhanh chạy trong khu đoạn; tàu khách thường; tàu quân dụng, tàu hỗn hợp, tàu chở công nhân; tàu hàng đường ngắn, tàu thoi hoặc tàu khách liên vận quốc tế hoặc tàu khách đường sắt đô thị. b) Có tác nghiệp chỉnh bị kỹ thuật toa xe tại ga hoặc tại cơ sở chỉnh bị kỹ thuật toa xe liền kề. c) Có tác nghiệp chỉnh bị kỹ thuật đầu máy tại cơ sở chỉnh bị đầu máy liền kề. d) Có tác nghiệp đón, tiễn hành khách. |
| Ga hàng hóa | a) Giải thể, lập các loại tàu sau: tàu đặc biệt; tàu hàng nhanh chạy suốt; tàu quân dụng, tàu hỗn hợp; tàu hàng trong khu đoạn; tàu hàng đường ngắn, tàu thoi; tàu chuyên dùng hoặc tàu hàng liên vận quốc tế. b) Có tác nghiệp chỉnh bị kỹ thuật toa xe tại ga hoặc tại cơ sở chỉnh bị kỹ thuật toa xe liền kề. c) Có tác nghiệp chỉnh bị kỹ thuật đầu máy tại cơ sở chỉnh bị đầu máy liền kề. d) Có tác nghiệp tổ chức xếp, dỡ hàng hóa. | ||
| Ga hỗn hợp | Thực hiện đồng thời chức năng của ga hành khách cấp I và ga hàng hóa cấp I. | ||
| 2 | Ga cấp II | Ga hành khách | a) Giải thể, lập các loại tàu sau: tàu đặc biệt; tàu khách nhanh chạy trong khu đoạn; tàu khách thường; tàu quân dụng, tàu hỗn hợp, tàu chở công nhân; tàu hàng đường ngắn, tàu thoi hoặc tàu khách liên vận quốc tế. b) Có tác nghiệp chỉnh bị kỹ thuật toa xe tại ga hoặc tại cơ sở chỉnh bị kỹ thuật toa xe liền kề hoặc có tác nghiệp chỉnh bị kỹ thuật đầu máy tại cơ sở chỉnh bị đầu máy liền kề. c) Có tác nghiệp đón, tiễn hành khách. |
|
|
| Ga hàng hóa | a) Giải thể, lập các loại tàu sau: tàu đặc biệt; tàu quân dụng, tàu hỗn hợp; tàu hàng trong khu đoạn; tàu hàng đường ngắn, tàu thoi; tàu chuyên dùng hoặc tàu hàng liên vận quốc tế. b) Có tác nghiệp chỉnh bị kỹ thuật toa xe tại ga hoặc tại cơ sở chỉnh bị kỹ thuật toa xe liền kề hoặc có tác nghiệp chỉnh bị kỹ thuật đầu máy tại cơ sở chỉnh bị đầu máy liền kề. c) Có tác nghiệp tổ chức xếp, dỡ hàng hóa. |
| Ga hỗn hợp | Thực hiện đồng thời chức năng của ga hành khách cấp II và ga hàng hóa cấp II. | ||
| 3 | Ga cấp III | Là các ga không đáp ứng các tiêu chí của các ga cấp I, ga cấp II | |
D.2 - Yêu cầu tối thiểu đối với số lượng đường ga
| TT | Cấp kỹ thuật ga | Số lượng đường đón gửi | Số lượng bãi dồn | Số lượng đường xếp dỡ | |
| 1 | Ga cấp I | Ga hành khách | 3 | 3 | - |
| Ga hàng hóa và ga hỗn hợp | 3 | 3 | 3 | ||
| 2 | Ga cấp II | Ga hành khách | 2 | 2 | - |
| Ga hàng hóa và ga hỗn hợp | 2 | 3 | 2 | ||
| 3 | Ga cấp III | Ga hành khách | 2 | - | - |
| Ga hàng hóa và ga hỗn hợp | 2 | - | 1 | ||
Ghi chú:
- Đối với những ga cấp I hiện tại mà có sử dụng đường đón gửi chung với đường dồn hoặc ngược lại thì số lượng đường bãi dồn tối thiểu là 02 đường.
- Ngoài thỏa mãn quy định về số đường trong ga như bảng trên, đối với từng cấp kỹ thuật ga theo quy định phải có đầy đủ số lượng và chiều dài đường ga khác đáp ứng yêu cầu khối lượng vận chuyển, tương ứng với tính chất tác nghiệp và cấp kỹ thuật ga.
Phụ lục E
Các biểu mẫu
Mẫu số: 01
GA:…………………… GIẤY XÁC NHẬN TÁC DỤNG HÃM số:…………….
Thử hãm……………………………………..số:……………………
Hội đồng kiểm tra hãm đoàn tàu số:…………do đầu máy số:………… kéo
tại ga:…………………….lúc ……..giờ……….. phút……………..
Ngày……tháng ………..năm…………..
| TÌNH HÌNH ĐOÀN TÀU THỬ HÃM | KẾT QUẢ |
| 1. Tổng trọng đoàn tàu………………………………………………. | ……………………… |
| 2. Tổng số toa xe của đoàn tàu…………………………………….. | ……………………… |
| 3. Số lượng toa xe chỉ có ống thông gió…………………………... | ……………………… |
| (Số hiệu xe) ………………………………………………………….. | ……………………… |
| 4. Số lượng toa xe không nối vào hệ thống hãm………………… | ……………………… |
| (Số hiệu xe) ………………………………………………………….. | ……………………… |
| 5. Số lượng toa xe sử dụng hãm gió tốt…………………………... | ……………………… |
| 6. Số lượng toa hỏng hãm tay……………………………………… | ……………………… |
| (Số hiệu xe) ………………………………………………………….. | ……………………… |
| 7. Áp suất ống gió đoàn xe KG/cm2……………………………….. | ……………………… |
| 8. Số tấn áp lực guốc hãm gió cần thiết…………………………… | ……………………… |
| 9. Số tấn áp lực guốc hãm gió hiện có trong đoàn tàu | ……………………… |
| 10. Số trục hãm tay cần thiết chống trôi…………………………… | ……………………… |
| 11. Số trục hãm tay hiện có trong đoàn tàu……………………….. | ……………………… |
Kết luận: Sau khi kiểm tra và tính toán Hội đồng xác nhận đoàn tàu có hãm tốt, có đủ lực hãm theo quy định và đảm bảo chạy tàu an toàn.
| CÁC ỦY VIÊN | CHỦ TỊCH HỘI ĐỒNG | |||
| TRƯỞNG TÀU | NHÂN VIÊN ÁP | NHÂN VIÊN | LÁI TÀU | TRỰC BAN |
| hoặc phó (Ký, Họ và tên) | Khám xe |
| ||
|
|
|
| ||
|
|
|
|
| |
| (Ký, Họ và tên) | (Ký, Họ và tên) | (Ký, Họ và tên) | (Ký tên, đóng dấu Ga) | |
|
|
| |||
(Ghi chú: Giấy xác nhận tác dụng hãm được lập thành 03 liên gồm: Phần lưu tồn căn tại ga; phần giao cho Trưởng tàu; phần giao cho Lái tàu)
Mẫu số: 02

Mẫu số: 03

Mẫu số: 04
THÔNG TRI C HOẶC D
| ĐƯỜNG SẮT VIỆT NAM
Ga…………………(dấu ga)
THÔNG TRI số……..
Ngày……tháng…… năm…….
Kính gửi: TBCT ga ……..
……………………………………..
C. Đồng ý đón tàu từ ga ……………đến.
D. Xin đường gửi tàu số ……….…..đến
TBCT ga ký tên
| ĐƯỜNG SẮT VIỆT NAM
Ga…………………(dấu ga)
THÔNG TRI số……..
Ngày……tháng…… năm…….
Kính gửi: TBCT ga ……..
……………………………………..
C. Đồng ý đón tàu từ ga ……………đến.
D. Xin đường gửi tàu số ……….…..đến
TBCT ga ký tên
|
Ghi chú:
1. Thông tri gồm hai (02) phần: Phần tồn căn và phần gửi ga bên;
2. Khi dùng: Gạch bỏ phần C hoặc D không thích hợp;
3. Điền bằng bút mực, không được tẩy xóa.
Mẫu số: 05
| ĐƯỜNG SẮT VIỆT NAM
Ga…………………(dấu ga)
GIẤY CHO PHÉP VÀO GA số……..
Cho phép tàu số: ……………….ngày……tháng…… năm……….. ………………………………………………………………………….. ………………………………………………………………………….. ………………………………………………………………………….. ………………………………………………………………………….. ………………………………………………………………………….. ………………………………………………………………………….. ………………………………………………………………………….. …………………………………………………………………………..
TBCT ga (Ký tên)
| ĐƯỜNG SẮT VIỆT NAM
Ga…………………(dấu ga)
GIẤY CHO PHÉP VÀO GA số……..
Cho phép tàu số: ……………….ngày……tháng…… năm……….. ………………………………………………………………………….. ………………………………………………………………………….. ………………………………………………………………………….. ………………………………………………………………………….. ………………………………………………………………………….. ………………………………………………………………………….. ………………………………………………………………………….. …………………………………………………………………………..
TBCT ga (Ký tên)
|
Mẫu số: 06
GIẤY PHÉP VẠCH CHÉO LỤC

Ghi chú:
1. Giấy phép vạch chéo lục khi sử dụng phương pháp đóng đường tự động và nửa tự động. Giấy phép này gồm hai (02) phần: Phần giao cho Lái tàu và phần làm tồn căn.
2. Khi dùng gạch bỏ mục không cần thiết và những chữ trong mục không thích hợp.
3. Điền bằng bút mực, không tẩy xoá.
4. Gạch chéo màu lục, giấy màu trắng.
Mẫu số: 07

Mẫu số: 08

Mẫu số: 09
GIẤY PHÉP MÀU TRẮNG KÈM ĐƠN XIN CỨU VIỆN

Ghi chú:
1. Ấn chỉ này gồm: 01 Giấy phép màu trắng giao cho Lái tàu, 01 Đơn xin cứu viện, 01 tồn căn;
2. Dùng bút mực điền vào các chỗ trống và gạch bỏ những chữ, những câu không cần thiết.
Mẫu số: 10
GIẤY PHÉP VẠCH CHÉO ĐỎ

Ghi chú
1. Điền vào chỗ trống ở đoạn thích hợp và gạch bỏ các đoạn còn lại không thích hợp;
2. Khi ghi phải dùng bút mực, viết rõ ràng, không tẩy xoá;
3. Giấy phép vạch chéo đỏ gồm hai (02) phần: Phần giao Lái tàu và phần làm tồn căn;
4. Giấy nền màu trắng, gạch chéo màu đỏ.
Mẫu số: 11

Mẫu số: 12
| ĐƯỜNG SẮT VIỆT NAM Ga…………. (dấu ga) | PHIẾU CHẠY GOÒNG Số: …………. |
A. Phần yêu cầu:
Tôi……………….. (họ tên) chức danh …………….. thuộc đơn vị …………….. Yêu cầu sử dụng…………..goòng (tên goòng) chạy vào khu gian từ …………. (ga, km) đến …………… (ga, km) trong thời gian từ ……..giờ ………..phút đến ……….giờ ………….phút theo biện pháp thừa nhận có người đi phòng vệ.
Tôi bảo đảm sẽ nhấc goòng ra khỏi Đường sắt không quá 3 phút.
……….ngày .... tháng .... năm.…………..
NGƯỜI PHỤ TRÁCH GOÒNG
ký tên
B. Phần thừa nhận:
Tôi……………………….. (họ tên) Trực ban chạy tàu ga …………………. Sau khi đã kiểm tra các điều kiện sử dụng goòng; được sự thoả thuận của ông…………………….thừa nhận cho goòng trên đây được chạy vào khu gian từ …………..(ga, km) đến ……………. (ga, km) trong thời gian từ …….giờ ………….phút đến………. giờ ……..phút theo điều kiện có người đi phòng vệ.
Tình hình tàu chạy vào khu gian trong thời gian sử dụng goòng:
Hướng lẻ: Tàu số ………….chạy ở ga…………. lúc ……….. giờ ……….. phút.
Hướng chẵn: Tàu số ………chạy ở ga ………….lúc ……….. giờ ……….. phút.
Phải nhấc goòng ra khỏi Đường sắt chậm nhất lúc …….giờ ……… phút.
C. Phần cảnh báo:
…………………………………………………………………………………………………
…………………………………………………………………………………………………
…………………………………………………………………………………………………
……..ngày ………. tháng …….. năm …………..
TBCT GA
ký tên
Ghi chú: Phiếu chạy goòng gồm hai (02) bản cùng một số: Bản A giao cho người phụ trách goòng, bản B giữ ở ga.
Mẫu số: 13
GIẤY CẢNH BÁO

Ghi chú:
1. Cảnh báo (giấy trắng có vạch chéo vàng) gồm ba (03) tờ, tờ nọ để lên trên tờ kia: Một (01) tờ giao cho Lái tàu, một (01) tờ bản sao giao cho Trưởng tàu, một (01) tờ làm tồn căn;
2. Dùng bút bi hoặc chì tím và giấy than để điền nội dung cảnh báo vào các chỗ quy định;
3. Khi giao phải yêu cầu Lái tàu, Trưởng tàu ký nhận;
4. Giấy nền màu trắng, gạch chéo màu vàng.
MỤC LỤC
1. QUY ĐỊNH CHUNG
1.1 Phạm vi điều chỉnh
1.2 Đối tượng áp dụng
2. QUY ĐỊNH KỸ THUẬT
2.1 Công trình đường sắt
2.1.1 Quy định chung đối với công trình, hạng mục công trình đường sắt
2.1.2 Quy định cụ thể đối với công trình, hạng mục công trình đường sắt
2.2 Phương tiện giao thông đường sắt
2.2.1 Quy định chung
2.2.2 Quy định về đăng ký, số hiệu, thông tin của phương tiện
2.2.3 Đôi bánh xe của phương tiện giao thông đường sắt
2.2.4 Thiết bị hãm và móc nối, đỡ đấm
2.2.5 Bảo dưỡng, sửa chữa và vận dụng phương tiện giao thông đường sắt
2.2.6 Goòng thủ công
2.3 Tổ chức chạy tàu
2.3.1 Biểu đồ chạy tàu
2.3.2 Điểm phân giới
2.3.3 Tổ chức công tác kỹ thuật ga, trạm
2.3.4 Phương pháp đóng đường chạy tàu
2.3.5 Đón gửi tàu và chạy tàu
3. QUY ĐỊNH VỀ QUẢN LÝ
4. TRÁCH NHIỆM CỦA TỔ CHỨC, CÁ NHÂN
5. TỔ CHỨC THỰC HIỆN
Phụ lục A Khổ giới hạn tiếp giáp kiến trúc
Phụ lục B Khổ giới hạn đầu máy, toa xe
Phụ lục C Khổ giới hạn áp dụng tạm thời cho các kiến trúc, thiết bị cũ chưa được cải tạo ở gần đường sắt khổ 1000 mm lồng thêm đường sắt khổ 1435 mm
Phụ lục D Cấp kỹ thuật ga đường sắt
Phụ lục E Các biểu mẫu
Bạn chưa Đăng nhập thành viên.
Đây là tiện ích dành cho tài khoản thành viên. Vui lòng Đăng nhập để xem chi tiết. Nếu chưa có tài khoản, vui lòng Đăng ký tại đây!