- Tổng quan
- Nội dung
- Tiêu chuẩn liên quan
- Lược đồ
- Tải về
Tiêu chuẩn xây dựng Việt Nam TCXDVN 265:2002 Xây dựng công trình đảm bảo người tàn tật tiếp cận sử dụng
| Số hiệu: | TCXDVN 265:2002 | Loại văn bản: | Tiêu chuẩn XDVN |
| Cơ quan ban hành: | Đang cập nhật | Lĩnh vực: | Xây dựng , Giao thông |
|
Ngày ban hành:
Ngày ban hành là ngày, tháng, năm văn bản được thông qua hoặc ký ban hành.
|
2002 |
Hiệu lực:
|
Đã biết
|
| Người ký: | Đang cập nhật |
Tình trạng hiệu lực:
Cho biết trạng thái hiệu lực của văn bản đang tra cứu: Chưa áp dụng, Còn hiệu lực, Hết hiệu lực, Hết hiệu lực 1 phần; Đã sửa đổi, Đính chính hay Không còn phù hợp,...
|
Đã biết
|
TÓM TẮT TIÊU CHUẨN XDVN TCXDVN 265:2002
Nội dung tóm tắt đang được cập nhật, Quý khách vui lòng quay lại sau!
Tải tiêu chuẩn Việt Nam TCXDVN 265:2002
TIÊU CHUẨN XÂY DỰNG VIỆT NAM
TCXDVN 265:2002
ĐƯỜNG VÀ HÈ PHỐ - NGUYÊN TẮC CƠ BẢN XÂY DỰNG CÔNG TRÌNH ĐỂ ĐẢM BẢO NGƯỜI TÀN TẬT TIẾP CẬN SỬ DỤNG
Route and sidewalk - Basic rules of accessible design and construction for people with disabilities
1. Phạm vi áp dụng
1.1. Tiêu chuẩn này áp dụng để xây dựng mới hoặc cải tạo đường và hè phố đảm bảo người khó khăn về vận động và người khiếm thị tiếp cận sử dụng.
Chú thích: Những người khó khăn về vận động và người khiếm thị sau đây gọi tắt là người tàn tật.
1.2. Các loại đường phải đảm bảo người tàn tật tiếp cận sử dụng bao gồm đường đi bộ, đường dạo trong công viên, đường vào khu du lịch, quảng trường, lối lên xuống hè phố tại các nút giao thông, lối vào công trình và phần đường dành cho người đi bộ trên đường dành cho xe cơ giới, đường dành cho xe không có động cơ, cầu vượt, đường hầm.
Chú thích:
1) Khi áp dụng các quy định trong tiêu chuẩn này phải tuân theo các quy định trong Quy chuẩn xây dựng công trình để đảm bảo người tàn tật tiếp cận sử dụng.
2) Việc xây dựng có liên quan đến đường và hè phố đảm bảo người tàn tật tiếp cận sử dụng, phải dựa vào đồ án thiết kế quy hoạch, thiết kế công trình, đồng thời phải là một trong những nội dung cần được thẩm định, phê duyệt và nghiệm thu công trình.
3) Những tuyến đường và hè phố được xây dựng để đảm bảo người tàn tật tiếp cận sử dụng phải tính toán khi lập tổng dự toán đầu tư công trình.
2. Tiêu chuẩn trích dẫn
- Quy chuẩn xây dựng công trình để đảm bảo người tàn tật tiếp cận sử dụng.
- TCXD 228 : 1998 - Lối đi cho người tàn tật trong công trình. Phần 1. Lối đi cho người tàn tật dùng xe lăn. Yêu cầu thiết kế.
- TCXD 264 : 2002 - Nhà và công trình - Nguyên tắc cơ bản xây dựng công trình để đảm bảo người tàn tật tiếp cận sử dụng.
3. Thuật ngữ - Định nghĩa
Các thuật ngữ dùng trong tiêu chuẩn này được lấy theo quy định trong Quy chuẩn xây dựng công trình để đảm bảo người tàn tật tiếp cận sử dụng QCXDVN 01 : 2002.
4. Quy định chung
4.1. Khi thiết kế đường và hè phố phải đảm bảo cho người tàn tật tiếp cận sử dụng. Bề mặt đường phải không trơn trợt, không có sự thay đổi độ cao đột ngột. Tại các nút giao thông, các lối công trình phải làm đường dốc để người tàn tật đi lại và đến được công trình.
4.2. Lối vào và đường trục chính của đường dạo trong công viên, khu vui chơi - giải trí, khu du lịch phải thiết kế để người tàn tật đi lại được.
4.3. Trên các điểm đỗ xe và điểm chờ xe có tính đến nhu cầu sử dụng của người tàn tật phải bố trí biển báo, biển chỉ dẫn.
4.4. Đường đi phải an toàn, dễ dàng đi lại, không bị vật cản và đủ rộng cho các xe lăn tránh nhau. Tại vị trí của các đường cắt ngang đường giao thông nên có các tấm lát dẫn hướng và tấm lát dừng bước dành cho người khiếm thị.
4.5. Các công trình được xây dựng trên đường và hè phố dành cho người đi bộ như trạm điện thoại công cộng, biển quảng cáo, các vật treo trên cao phải không gây cản trở cho người tàn tật.
4.6. Đường và hè phố phải được chiếu sáng đầy đủ, đảm bảo cho người đi đường không bị chói mắt hoặc bị che khuất nhất là ở nơi có sự thay đổi độ cao.
4.7. Tại các nút giao thông ngoài việc lắp đặt tín hiệu đèn giao thông, biển báo, biển chỉ dẫn nên có thêm các tín hiệu bằng âm thanh hoặc chữ nổi Brain để chỉ dẫn người khiếm thị khi qua đường.
Biển báo, biển chỉ dẫn phải được đặt đúng vị trí và dễ nhận biết. Kí hiệu quy ước về biển báo, biển chỉ dẫn cho người tàn tật được lấy theo quy định trong TCXDVN 264 : 2002 - Nhà và công trình - Nguyên tắc cơ bản xây dựng công trình để đảm bảo người tàn tật tiếp cận sử dụng.
5. Yêu cầu thiết kế
5.1. Nội dung thiết kế đường và hè phố được quy định trong bảng 1.
Bảng 1: Nội dung thiết kế đường và hè phố
| Loại đường | Nội dung thiết kế | Những yêu cầu cơ bản | |
| Phần đường dành cho người đi bộ trên đường dành cho xe cơ giới và xe không có động cơ | Độ dốc dọc và chiều rộng của đường đi | Đảm bảo cho người đi xe lăn có thể tự di chuyển được | |
| Đường dành cho người đi bộ | - Độ dốc dọc của đường đi, đường dốc có tấm vỉa rộng, tấm lát có cảm giác - Hạn chế các vật treo, các vật nhô ra đột ngột - Bề mặt đường | Đảm bảo cho người đi xe lăn, người đi lại khó khăn, người khiếm thị đi lại được | |
| Phần đường dành cho người đi bộ trên cầu vượt và đường hầm | Dạng đường dốc | - Độ dốc dọc - Tay vịn - Bề mặt đường - Tấm lát có cảm giác | Đảm bảo cho người đi xe lăn, người đi lại khó khăn, người khiếm thị đi lại được |
| Dạng đường có bậc | - Mặt bậc - Tay vịn | Thuận tiện cho người đi lại khó khăn đi lại được. | |
| Đường trong công viên, quảng trường, khu du lịch… | Đường dạo trong phạm vi hoạt động vui chơi, tham gia, giải trí - Bề mặt | Đảm bảo cho người đi xe lăn, người đi lại khó khăn, người khiếm thị đi lại được. | |
| Tại các nút giao thông, lối vào công trình | - Đường dốc lên hè phố - Lắp đặt các tín hiệu bằng âm thanh | Đảm bảo cho người đi xe lăn, người đi lại khó khăn, người khiếm thị tiếp cận sử dụng. | |
5.2. Độ dốc mặt đường phải đảm bảo không nhỏ hơn 1/12 nhưng không được lớn hơn 1/20.
5.3. Khi thiết kế đường và cầu vượt có phần đường dành cho người đi bộ phải phù hợp với quy định dưới đây:
- Độ dốc dọc lớn nhất phải phù hợp với quy định của bảng 2;
- Chiều dài dốc dọc phải nhỏ hơn quy định của bảng 3;
- Chiều rộng của phần đường dành cho người đi bộ không nhỏ hơn 2mm.
Bảng 2: Độ dốc mặt đường
| Điều kiện | Độ dốc lớn nhất i (%) |
| Đường ở vùng đồng bằng, thành phố Đường ở vùng địa hình khó khăn | 2,5 3,5 |
Bảng 3: Giới hạn chiều dài dốc dọc
| Độ dốc i (%) | Chiều dài đường dốc (m) |
| <2,5 2,5 3,0 3,5 | Không hạn chế 250 150 100 |
5.4. Tại các nút giao thông, lối sang đường dành cho người đi bộ, lối vào công trình phải bố trí đường dốc lên hè phố bằng đường dốc tấm vỉa. Kiểu loại, điều kiện sử dụng và yêu cầu thiết kế đường dốc tấm vỉa phải phù hợp những quy định dưới đây:
a) Đường dốc tấm vỉa dạng dốc ba mặt ( xem hình 1):
- Chiều cao lộ ra ngoài của tấm vỉa trong dốc mặt chính không được lớn hơn 20mm.
- Độ dốc của dốc mặt chính không được lớn hơn 1/12;
- Độ dốc của dốc hai mặt bên không được lớn hơn 1/12;
- Bề rộng của dốc mặt chính không được nhỏ hơn 1200mm.
Chú thích: Đường dốc tấm vỉa dạng dốc ba mặt thường được sử dụng trong trường hợp trên đường đi bỏ không có công trình hoặc cây xanh.

Hình 1: Đường dốc tấm vỉa dốc ba mặt
b) Đường dốc tấm vỉa dạng dốc một mặt (xem hình 2):
- Chiều cao lộ ra ngoài của tấm vỉa trong dốc mặt chính không được lớn hơn 20mm.
- Độ dốc của mặt dốc chính không được lớn hơn 1/12;
- Bề rộng mặt dốc chính không nhỏ hơn 1200mm;
- Chiều rộng đường đi bộ không được nhỏ hơn 2,0m.
Chú thích: Đường dốc tấm vỉa dạng dốc một mặt thường được sử dụng trong trường hợp giữa đường đi bộ và tấm vỉa có công trình hoặc cây xanh.

Hình 2: Đường dốc tấm vỉa dạng dốc một mặt
c) Đường dốc tâm vỉa hướng dọc theo đường đi bộ (xem hình 3);
- Chiều cao lộ ra ngoài của tấm vỉa trong mặt dốc không được lớn hơn 20mm.
- Độ dốc của mặt dốc không được lớn hơn 1/20.
Chú thích: Loại đường dốc dạng này thường dùng cho đường ra vào các ngõ, sân trước của công trình.

Hình 3: Đường dốc tấm vỉa hướng dọc theo đường đi bộ
5.5. Đường dốc tấm vỉa bố trí ở chỗ sang đường dành cho người đi bộ (xem hình 4).

Hình 4: Vị trí đường dốc tấm vỉa ở chỗ sang đường dành cho người đi bộ
5.6. Tại vị trí có đường dốc tấm vỉa cần có biển cấm không cho xe cơ giới đỗ ở đó.
5.7. Trên đường dốc tấm vỉa không cần thiết kế tay vịn.
5.8. Bề mặt của đường dốc tấm vỉa phải được làm bằng vật liệu không trơn trợt.
5.9. Dải phân cách trong phần đường dành cho người đi bộ phải cắt ngang đường. Trong đảo giao thông không được làm cao hơn mặt ngang đường, như hình 5.

Hình 5: Mối quan hệ giữa dải phân cách, đảo giao thông với phần đường dành cho người đi bộ
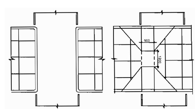
5.10. Các đảo giao thông bố trí trên các nút giao thông nên có đường dốc tấm vỉa 3 mặt ở cả hai bên vỉa hè với chiều dài không nhỏ hơn 1200mm, chiều rộng không nhỏ hơn 900mm (xem hình 6).

Hình 6: Đường dốc lên vỉa hè tại các đảo giao thông
a) Cắt qua đảo: b) Đường dốc tấm vỉa lên hè
5.11. Trên đường dành cho người đi bộ và tại các lối công trình công cộng cần đặt các tấm lát dẫn hướng có cảm giác để dẫn đường cho người khiếm thị. Tấm lát dẫn hướng có cảm giác được phân làm hai loại: Tấm lát dẫn hướng có các dải gồ lên chỉ hướng đi và tấm lát dừng bước có các điểm tròn chỉ phía trước có chướng ngại vật. Mặt của các tấm lát nên là màu vàng thẫm.
5.12. Các tấm lát dẫn hướng có cảm giác được thể hiện trên hình 7 (trong đó loại tròn thường được sử dụng ở nơi ẩm ướt). Vật liệu sản xuất các tấm lát phải không trơn trượt.
Chú thích: Các tấm lát dẫn hướng có thể được chế tạo từ cao su thiên nhiên hoặc cao su tổng hợp.
5.13. Tấm lát dẫn hướng thường được bố trí trên hướng đi đến các công trình, ở cầu thang, thang máy, đường dốc, ở các nút giao thông, ở bãi để xe, sân ga, nhà ga, nơi có sự thay đổi hướng đi và nơi có cảnh báo nguy hiểm trong khu vực.

Hình 7: Các kiểu tấm lát có cảm giác
5.14. Trên đường vào công trình phải liên tục đặt các tấm lát dẫn hướng. Trước lối ra vào phải đặt tấm lát dừng bước. Chiều rộng tấm lát không được nhỏ hơn 600mm, xem hình 8.

Hình 8: Bố trí tấm lát có cảm giác trong đường đi bộ
5.15. Tấm lát có cảm giác ở phần đường dành cho người đi bộ được đặt cách mép đường vỉa hè 300mm hoặc cách một viên gạch lát đường cho người đi. Tấm lát dẫn hướng và tấm lát dừng bước phải đặt vuông góc với nhau. Chiều rộng tấm lát không được nhỏ hơn 600mm. Xem hình 9.

Hình 9: Bố trí tấm lát có cảm giác ở phần đường dành cho người đi bộ
5.16. Tại các điểm chờ xe, cách mép đường vỉa hè 300mm hoặc cách một viên gạch lát đường cho người cần đặt các tấm dẫn hướng. Tại vị trí có cắm biển đỗ xe cần đặt tấm lát dẫn hướng và tấm lát dừng bước vuông góc với nhau. Chiều rộng tấm lát không được nhỏ hơn 600mm, xem hình 10.

Hình 10: Bố trí tấm lát có cảm giác ở các điểm chờ xe
5.17. Nếu phía bên trong lối vào công trình có hàng cây xanh và cao hơn mặt đường đi bộ 100mm thì tại chỗ lối rẽ cần dùng tấm lát dẫn hướng nối tiếp, xem hình 11.

Hình 11: Bố trí tấm vỉa và tấm lát dẫn hướng trong đường đi bộ
5.18. Trên tuyến đường dành cho người đi bộ cần phải hạn chế những chướng ngại vật có trên đường:
a) Nắp đậy của những hố ga, đường ống ngầm có trên đường đi bộ phải ngang bằng với mặt đất và tuyệt đối không được dùng nắp đậy kiểu lưới mắt cao;
b) Kích thước lỗ của các tấm thoát nước mưa đặt trên đường không được lớn hơn 20mm x 20mm;
c) Khoảng cách của các vật treo nằm trong khoảng không gian của người đi bộ không được nhỏ hơn 2,0m;
d) Ở lối sang đường dành cho người đi bộ có tấm lát dẫn hướng và đường dốc tấm vỉa không được bố trí hố thu nước mưa;
e) Trên đường đi bộ nếu cần phải giữ lại cây cổ thụ, di tích hoặc có các vật chướng ngại nhô ra thì cần phải có biện pháp bảo vệ hoặc có biển cảnh báo, chỉ dẫn hoặc đặt các tấm lát dẫn hướng.
5.19. Đối với cầu vượt và đường hầm có phần đường dành cho người đi bộ là đường có bậc thì phải phù hợp những quy định dưới đây:
a) Chiều cao của bậc không được lớn hơn 150mm, chiều rộng mặt bậc không được nhỏ hơn 300mm;
b) Số bậc của mỗi đoạn không được lớn hơn 18 bậc. Nếu lớn hơn 18 bậc phải bố trí chiếu nghỉ. Chiều rộng chiếu nghỉ không nhỏ hơn 1.500mm. Khi đoạn bậc chuyển hướng, chiều rộng thông thủy của chiếu nghỉ không được nhỏ hơn chiều rộng thông thủy của đoạn bậc thang đó.
5.20. Đường dốc phần đường dành cho người đi bộ của cầu vượt và đường hầm phải phù hợp những quy định dưới đây:
a) Độ dốc phải đảm bảo từ 1/10 đến 1/12;
b) Đường dốc mỗi lần lên cao 1,80m hoặc ở chỗ chuyển hướng, phải bố trí chiếu nghỉ có chiều dài không nhỏ hơn 2,0m.
c) Chiều cao thông thủy trên phần đường dành cho người đi bộ của cầu vượt và đường ngầm không được nhỏ hơn 2,0m.
d) Chiều cao thông thủy phía dưới đường dốc và đường có bậc nếu nhỏ hơn 2,0m phải có các biện pháp bảo vệ.
5.21. Hai bên đường dốc và đường có bậc của phần đường dành cho người đi bộ của cầu vượt hoặc đường phải bố trí tay vịn liên tục ở cả hai bên hoặc một bên về phía tường ngăn. Yêu cầu thiết kế chi tiết tay vịn xem trong TCXDVN 264 : 2002. Nhà và công trình - Nguyên tắc cơ bản xây dựng công trình để đảm bảo người tàn tật tiếp cận sử dụng.
Chú thích: Nếu không làm được đường dốc ở phần đường dành cho người đi bộ trên đường hầm thì có thể dùng các thang nâng, hạ hoặc thiết bị chuyên dụng cho xe lăn tiếp cận sử dụng.
5.22. Hai đầu đường có bậc phần đường dành cho người đi bộ của cầu vượt và đường hầm ở vị trí cách bậc 300mm hoặc ở vị trí bằng chiều dài một viên gạch lát cần đặt tấm lát dừng bước có chiều rộng không nhỏ hơn 600mm để cảnh báo cho người khiếm thị.
Ở hai đầu chiếu nghỉ trung gian cũng nên đặt các tấm lát dừng bước cách đầu chiếu nghỉ 300mm, chiều rộng tấm lát không nhỏ hơn 300mm.
5.23. Bề mặt đường dốc hoặc đường có bậc của phần đường dành cho người đi bộ trên cầu vượt và trong đường hầm phải có độ nhám để chống trơn trượt.
5.24. Thời gian bật các tín hiệu đèn giao thông trên đường hoặc tín hiệu bằng âm thanh phải đủ để cho người tàn tật đi qua đường. Thời gian tính toán dựa theo tốc độ đi bộ của người tàn tật là 0,5m/s.
Bạn chưa Đăng nhập thành viên.
Đây là tiện ích dành cho tài khoản thành viên. Vui lòng Đăng nhập để xem chi tiết. Nếu chưa có tài khoản, vui lòng Đăng ký tại đây!