- Tổng quan
- Nội dung
- VB gốc
- Tiếng Anh
- Hiệu lực
- VB liên quan
- Lược đồ
-
Nội dung hợp nhất
Tính năng này chỉ có tại LuatVietnam.vn. Nội dung hợp nhất tổng hợp lại tất cả các quy định còn hiệu lực của văn bản gốc và các văn bản sửa đổi, bổ sung, đính chính... trên một trang. Việc hợp nhất văn bản gốc và những văn bản, Thông tư, Nghị định hướng dẫn khác không làm thay đổi thứ tự điều khoản, nội dung.
Khách hàng chỉ cần xem Nội dung hợp nhất là có thể nắm bắt toàn bộ quy định hiện hành đang áp dụng, cho dù văn bản gốc đã qua nhiều lần chỉnh sửa, bổ sung.
- Tải về
Thông tư 06/2018/TT-BLĐTBXH về Danh mục cơ sở vật chất, trang thiết bị đánh giá kỹ năng nghề Kỹ thuật khai thác mỏ hầm lò
| Cơ quan ban hành: | Bộ Lao động Thương binh và Xã hội |
Số công báo:
Số công báo là mã số ấn phẩm được đăng chính thức trên ấn phẩm thông tin của Nhà nước. Mã số này do Chính phủ thống nhất quản lý.
|
Đã biết
|
| Số hiệu: | 06/2018/TT-BLĐTBXH | Ngày đăng công báo: |
Đã biết
|
| Loại văn bản: | Thông tư | Người ký: | Lê Quân |
| Trích yếu: | Về việc quy định danh mục cơ sở vật chất, trang thiết bị đánh giá kỹ năng nghề quốc gia cho các nghề Kỹ thuật khai thác mỏ hầm lò; Kỹ thuật xây dựng mỏ hầm lò và Kỹ thuật cơ điện mỏ hầm lò ở các bậc trình độ kỹ năng nghề 1, 2, 3 | ||
|
Ngày ban hành:
Ngày ban hành là ngày, tháng, năm văn bản được thông qua hoặc ký ban hành.
|
01/08/2018 |
Ngày hết hiệu lực:
Ngày hết hiệu lực là ngày, tháng, năm văn bản chính thức không còn hiệu lực (áp dụng).
|
Đang cập nhật |
|
Áp dụng:
Ngày áp dụng là ngày, tháng, năm văn bản chính thức có hiệu lực (áp dụng).
|
Đã biết
|
Tình trạng hiệu lực:
Cho biết trạng thái hiệu lực của văn bản đang tra cứu: Chưa áp dụng, Còn hiệu lực, Hết hiệu lực, Hết hiệu lực 1 phần; Đã sửa đổi, Đính chính hay Không còn phù hợp,...
|
Đã biết
|
| Lĩnh vực: | Lao động-Tiền lương Công nghiệp | ||
TÓM TẮT THÔNG TƯ 06/2018/TT-BLĐTBXH
Ngày 01/08/2018, Bộ Lao động - Thương binh và Xã hội ban hành Thông tư 06/2018/TT-BLĐTBXH về danh mục cơ sở vật chất, trang thiết bị đánh giá kỹ năng nghề quốc gia cho các nghề Kỹ thuật khai thác mỏ hầm lò; Kỹ thuật xây dựng mỏ hầm lò và Kỹ thuật cơ điện mỏ hầm lò ở các bậc trình độ kỹ năng nghề 1, 2, 3.
Cụ thể, cơ sở vật chất để đánh giá kỹ năng quốc gia nghề Kỹ thuật khai thác mỏ hầm lò:
- Diện tích tối thiểu sử dụng để thực hiện bài kiểm tra kiến thức phải đáp ứng yêu cầu: 01 phòng kiểm tra kiến thức trên máy tính, diện tích 70m2, bố trí được 50 vị trí kiểm tra và có 2 camera giám sát.
- Dự kiến có 02 khu vực chờ và quan sát người tham dự thực hiện bài kiểm tra, trong đó: 01 phòng, có tổng diện tích 50m2 để làm khu vực chờ và quan sát có màn hình kết nối với các camera gắn trong phòng kiểm tra; 01 khu vực có tổng diện tích 150m2 là khu vực chờ và quan sát tại các mặt bằng kỹ thuật.
- Diện tích tối thiểu sử dụng để thực hiện bài kiểm tra thực hành: Hệ thống đường lò có tổng chiều dài tối thiểu 500m, diện tích 1.500m2, bố trí được 50 vị trí kiểm tra có 04 camera giám sát…
Thông tư này có hiệu lực từ ngày 15/09/2018.
Xem chi tiết Thông tư 06/2018/TT-BLĐTBXH có hiệu lực kể từ ngày 15/09/2018
Tải Thông tư 06/2018/TT-BLĐTBXH
|
BỘ LAO ĐỘNG - THƯƠNG BINH VÀ XÃ HỘI Số: 06/2018/TT-LĐTBXH |
CỘNG HÒA XÃ HỘI CHỦ NGHĨA VIỆT NAM Hà Nội, ngày 01 tháng 8 năm 2018 |
THÔNG TƯ
QUY ĐỊNH DANH MỤC CƠ SỞ VẬT CHẤT, TRANG THIẾT BỊ ĐÁNH GIÁ KỸ NĂNG NGHỀ QUỐC GIA
CHO CÁC NGHỀ KỸ THUẬT KHAI THÁC MỎ HẦM LÒ; KỸ THUẬT XÂY DỰNG MỎ HẦM LÒ
VÀ KỸ THUẬT CƠ ĐIỆN MỎ HẦM LÒ Ở CÁC BẬC TRÌNH ĐỘ KỸ NĂNG NGHỀ 1, 2, 3
Căn cứ Nghị định số 14/2017/NĐ-CP ngày 17 tháng 02 năm 2018 của Chính phủ quy định chức năng, nhiệm vụ, quyền hạn và cơ cấu tổ chức của Bộ Lao động - Thương binh và Xã hội;
Căn cứ Nghị định số 31/2015/NĐ-CP ngày 24 tháng 3 năm 2015 của Chính phủ quy định chi tiết thi hành một số điều của Luật Việc làm về đánh giá, cấp chứng chỉ kỹ năng nghề quốc gia;
Theo đề nghị của Tổng Cục trưởng Tổng cục Giáo dục nghề nghiệp;
Bộ trưởng Bộ Lao động - Thương binh và Xã hội ban hành Thông tư quy định về danh mục cơ sở vật chất, trang thiết bị đánh giá kỹ năng nghề quốc gia cho các nghề Kỹ thuật khai thác mỏ hầm lò; Kỹ thuật xây dựng mỏ hầm lò và Kỹ thuật cơ điện mỏ hầm lò ở các bậc trình độ kỹ năng nghề 1, 2, 3.
Điều 1. Ban hành kèm theo Thông tư này danh mục cơ sở vật chất, trang thiết bị đánh giá kỹ năng nghề quốc gia cho các nghề dưới đây ở các bậc trình độ kỹ năng nghề 1, 2, 3:
1. Nghề “Kỹ thuật khai thác mỏ hầm lò” được quy định tại Phụ lục I;
2. Nghề “Kỹ thuật xây dựng mỏ hầm lò” được quy định tại Phụ lục II;
3. Nghề “Kỹ thuật cơ điện mỏ hầm lò” được quy định tại Phụ lục III;
Điều 2. Thông tư này áp dụng đối với các cơ quan, tổ chức, cá nhân trong việc cấp giấy chứng nhận và thực hiện hoạt động đánh giá, cấp chứng chỉ kỹ năng nghề quốc gia đối với 03 nghề nêu trên ở bậc trình độ kỹ năng nghề 1, 2, 3.
Điều 3. Thông tư này có hiệu lực từ ngày 15 tháng 9 năm 2018.
Điều 4. Tổng cục Giáo dục nghề nghiệp, Sở Lao động - Thương binh và Xã hội các tỉnh, thành phố trực thuộc Trung ương, các tổ chức đã được cấp giấy chứng nhận đánh giá, cấp chứng chỉ kỹ năng nghề quốc gia và các tổ chức đăng ký hoạt động đánh giá, cấp chứng chỉ kỹ năng nghề quốc gia đối với 03 nghề nêu trên và các đơn vị có liên quan chịu trách nhiệm thi hành Thông tư này.
Trong quá trình thực hiện nếu có vướng mắc, đề nghị các cơ quan, tổ chức, cá nhân phản ánh kịp thời về Bộ Lao động - Thương binh và Xã hội để xem xét, giải quyết./.
|
Nơi nhận: |
KT. BỘ TRƯỞNG |
PHỤ LỤC I
DANH MỤC CƠ SỞ VẬT CHẤT, TRANG THIẾT BỊ ĐÁNH GIÁ KỸ NĂNG NGHỀ QUỐC GIA NGHỀ KỸ THUẬT KHAI THÁC MỎ HẦM LÒ Ở CÁC BẬC TRÌNH ĐỘ KỸ NĂNG NGHỀ 1, 2, 3
(Ban hành kèm theo Thông tư số 06/2018/TT-BLĐTBXH ngày 01 tháng 8 năm 2018 của Bộ trưởng Bộ Lao động - Thương binh và Xã hội)
PHẦN THUYẾT MINH
Giới thiệu chung:
Danh mục cơ sở vật chất, trang thiết bị đánh giá kỹ năng nghề quốc gia cho nghề Kỹ thuật khai thác mỏ hầm lò ở các bậc trình độ kỹ năng nghề 1, 2, 3 là danh mục và số lượng tối thiểu về cơ sở vật chất (các phòng chuyên môn, kỹ thuật và nhà, xưởng, mặt bằng) và trang thiết bị (phương tiện, thiết bị, công cụ, dụng cụ tác nghiệp và phương tiện đo kiểm) cần có để tổ chức đánh giá, cấp chứng chỉ kỹ năng nghề quốc gia nghề Kỹ thuật khai thác mỏ hầm lò ở các bậc trình độ kỹ năng nghề 1, 2, 3.
Danh mục cơ sở vật chất, trang thiết bị đánh giá kỹ năng nghề quốc gia cho nghề Kỹ thuật khai thác mỏ hầm lò ở các bậc trình độ kỹ năng nghề 1, 2, 3 là điều kiện để cấp giấy chứng nhận hoạt động đánh giá, cấp chứng chỉ kỹ năng nghề quốc gia nghề Kỹ thuật khai thác mỏ hầm lò ở các bậc trình độ kỹ năng nghề 1, 2, 3 cho các tổ chức đăng ký hoạt động đánh giá, cấp chứng chỉ kỹ năng nghề quốc gia của nghề này.
Các căn cứ xây dựng Danh mục:
- Nghị định số 31/2015/NĐ-CP ngày 24/3/2015 của Chính phủ quy định chi tiết thi hành một số điều của Luật Việc làm về đánh giá, cấp chứng chỉ kỹ năng nghề quốc gia.
- Tiêu chuẩn kỹ năng nghề quốc gia nghề Kỹ thuật khai thác mỏ hầm lò đã được Bộ trưởng Bộ Công Thương ban hành tại Quyết định số 4837/QĐ-BCT ngày 22/9/2011 của Bộ trưởng Bộ Công thương ban hành Tiêu chuẩn kỹ năng nghề quốc gia đối với các nghề thuộc lĩnh vực công nghiệp.
- Ngân hàng câu hỏi trắc nghiệm, đề thi thực hành nghề Kỹ thuật khai thác mỏ hầm lò được Tổng cục Dạy nghề (nay là Tổng cục Giáo dục nghề nghiệp), Bộ Lao động Thương binh và Xã hội tổ chức xây dựng, ban hành và quản lý theo các quy định hiện hành.
- Quy chuẩn kỹ thuật quốc gia QCVN 01:2011/BCT về an toàn trong khai thác than hầm lò (Ban hành kèm theo Thông tư số 03/2011/TT-BCT ngày 15 tháng 02 năm 2011 của Bộ trưởng Bộ Công Thương).
- Quy chuẩn kỹ thuật quốc gia QCVN 04:2017/BCT về an toàn trong khai thác quặng hầm lò (Ban hành theo Thông tư số 31/2017/TT-BCT ngày 28 tháng 12 năm 2017 của Bộ trưởng Bộ Công Thương).
1. Tổng diện tích mặt bằng tối thiểu: 11.800 m2; trong đó:
a) Diện tích xây dựng nhà, xưởng, hệ thống đường lò, hội trường, phòng thi lý thuyết, thực hành, phòng hội đồng: 9.500 m2;
b) Diện tích xây dựng công trình khác (Phòng thay quần áo, nhà ăn, nhà tắm, nhà giặt,...): 1.300 m2;
c) Diện tích mặt bằng kỹ thuật (sân, mặt bằng kỹ thuật): 1.000 m2;
2. Tổng diện tích xây dựng sử dụng tối thiểu: 3.000 m2; trong đó:
a) Diện tích các xưởng, hệ thống đường lò, phòng chuyên môn, kỹ thuật: 1.900 m2;
b) Diện tích các phòng học, hội họp: 800 m2;
c) Diện tích văn phòng, phòng làm việc: 300 m2;
3. Hệ thống phụ trợ:
a) Báo cháy, phòng cháy, chữa cháy: 01 hệ thống.
b) Máy phát điện: 01 máy phát điện dự phòng.
c) Hệ thống kỹ thuật khác (cấp khí, cấp nhiệt, ...): 01 hệ thống cung cấp khí nén.
4. Hệ thống thiết bị giám sát, quan sát, thông tin liên lạc (camera, màn hình): 01 hệ thống camera và màn hình.
5. Trang thông tin điện tử: 01 trang thông tin điện tử riêng.
1. Diện tích tối thiểu sử dụng để thực hiện bài kiểm tra kiến thức:
Số phòng kiểm tra kiến thức có gắn camera giám sát: 01 phòng kiểm tra kiến thức trên máy tính, diện tích 70 m2, bố trí được 50 vị trí kiểm tra và có 2 camera giám sát.
2. Khu vực chờ và quan sát người tham dự thực hiện bài kiểm tra:
Số khu vực chờ và quan sát người tham dự thực hiện bài kiểm tra: 02 khu vực; trong đó:
- Khu vực chờ và quan sát có màn hình kết nối với các camera gắn trong các phòng kiểm tra 01 phòng và có tổng diện tích 50 m2;
- Khu vực chờ và quan sát tại các mặt bằng kỹ thuật 01 khu vực và có tổng diện tích 150 m2.
3. Diện tích tối thiểu sử dụng để thực hiện bài kiểm tra thực hành:
|
TT |
Tên gọi |
ĐVT |
Số lượng |
Yêu cầu kỹ thuật cơ bản |
Ghi chú |
|
1 |
Diện tích mặt bằng khu vực tổ chức đánh giá phần thực hành |
m2 |
8.000 |
Có đủ các công trình xây dựng sử dụng trong kỳ đánh giá và phục vụ phụ trợ. |
|
|
2 |
Hệ thống đường lò |
m |
508 |
- Được cơ quan có tư cách pháp nhân thiết kế và phê duyệt (đơn vị được phép thiết kế mỏ thực hiện) chỉ phục vụ đánh giá kỹ năng nghề và đào tạo nghề; - Không được sử dụng các khai trường mỏ hầm lò đang sản xuất, tạm dừng sản xuất hoặc đã dừng sản xuất để đánh giá phần thực hành. |
Kết nối liên hoàn |
|
|
Bao gồm các đường lò |
|
|
|
|
|
2.1 |
Lò vận tải chính |
m |
50 |
- Kết cấu bằng bê tông cốt thép chiều dầy 0,3 m. - Chống giữ bằng vì chống hình vòm: + Ssd ≥ 9,5 m2; + B ≥ 3.800 mm + H ≥ 2.900 mm |
Hình 1 |
|
2.2 |
Lò thông gió chính |
m |
50 |
- Kết cấu bằng bê tông cốt thép chiều dầy 0,3 m. - Chống giữ bằng vì chống hình vòm: + Ssd ≥ 9,5 m2; + B ≥ 3.800 mm + H ≥ 2.900 mm |
|
|
2.3 |
Lò nghiêng |
m |
40 |
- Kết cấu bằng bê tông cốt thép chiều dầy 0,3 m. - Chống giữ bằng vì chống hình vòm: + Ssd ≥ 6,8 m2; + B ≥ 2.600 mm + H ≥ 2.000 mm + Độ dốc 10° ≤ α ≤ 35° |
Hình 2 |
|
2.4 |
Lò rẽ ngã 3 |
m |
40 |
- Kết cấu bằng bê tông cốt thép chiều dầy 0,3 m. - Chống giữ bằng vì chống hình vòm: + Ssd ≥ 9,5 m2; + B ≥ 3.800 mm + H ≥ 2.900 mm |
|
|
2.5 |
Hầm trạm |
m |
50 |
- Kết cấu bằng bê tông cốt thép chiều dầy 0,3 m. + Ssd ≥ 4,5 m2; + B ≥ 2.200 mm + H ≥ 2.300 mm |
Hình 3 |
|
2.6 |
Đoạn lò dựng vì chống lò bằng |
m |
50 |
- Kết cấu bằng bê tông cốt thép chiều dầy 0,3 m. - Chống giữ bằng vì chống hình vòm: + Ssd ≥ 6,8 m2; + B ≥ 2.600 mm + H ≥ 2.000 mm |
|
|
2.7 |
Đoạn lò dựng vì chống lò nghiêng |
m |
50 |
- Kết cấu bằng bê tông cốt thép chiều dầy 0,3 m. - Chống giữ bằng vì chống hình vòm: + Ssd ≥ 6,8 m2; + B ≥ 2.600 mm + H ≥ 2.000 mm + Độ dốc 10° ≤ α ≤ 35° |
|
|
2.8 |
Đoạn lò dựng vì chống lò giếng đứng |
m |
10 |
- Đường kính giếng ≥ 4 m - Kết cấu bê tông cốt thép, chiều dầy 0,3 m: + Chiều cao đế giếng 0,5 m + Chiều cao thân giếng 8,2 m + Chiều cao cổ giếng 0,8 m - Có đầy đủ thiết bị trục tải, thông gió, thoát nước, hệ thống tín hiệu.. |
Hình 4 |
|
2.9 |
Đoạn lò chống giữ bằng vì neo |
m |
30 |
- Kết cấu bằng bê tông cốt thép 2 lớp chiều dầy giữa 2 lớp ≥ 1,6m. - Chống giữ bằng vì chống hình vòm: + Ssd ≥ 9,0 m2; + B ≥ 3.500 mm + H ≥ 2.950 mm |
Hình 5 |
|
2.10 |
Đoạn lò củng cố và khôi phục vì chống |
m |
30 |
- Kết cấu bằng bê tông cốt thép chiều dầy 0,3 m. - Chống giữ bằng vì chống hình vòm: + Ssd ≥ 9,5 m2; + B ≥ 3.800 mm + H ≥ 2.900 mm - Chiều dài nóc rỗng ≥ 3m |
|
|
2.11 |
Đoạn lò xử lý sự cố cháy nổ khí |
m |
30 |
- Kết cấu bằng bê tông cốt thép chiều dầy 0,3 m. - Chống giữ bằng vì chống hình vòm: + Ssd ≥ 6,8 m2; + B ≥ 2.600 mm + H ≥ 2.000 mm - Ốp gạch chịu nhiệt |
|
|
2.12 |
Đoạn lò đào bằng máy Combain |
m |
30 |
- Kết cấu bằng bê tông cốt thép chiều dầy 0,3 m. - Chống giữ bằng vì chống hình vòm: + Ssd ≥ 9,5 m2; + B ≥ 3.800 mm + H ≥ 2.900 mm |
|
|
2.13 |
Lò khai thác chống giữ bằng cột đơn, xà khớp |
m |
15 |
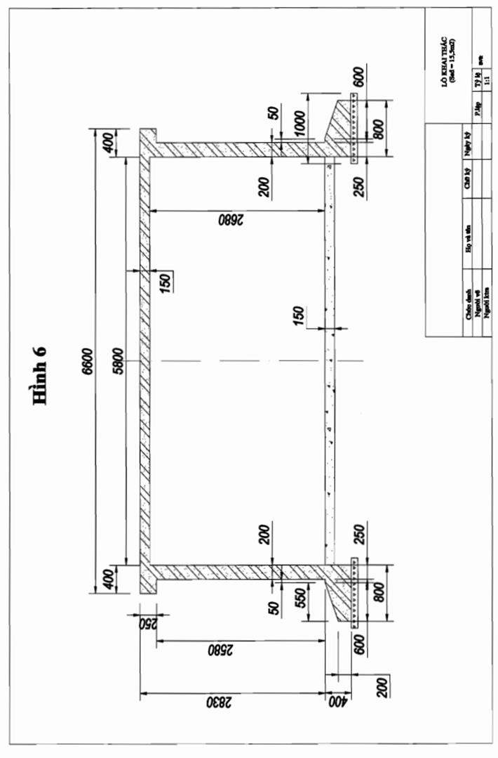
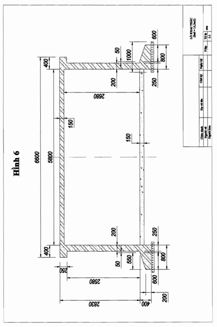
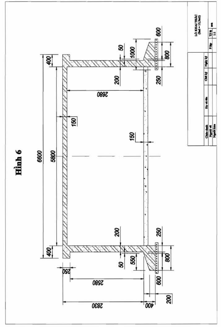
- Kích thước (dài x rộng x cao) ≥ (15,5 x 5,8 x 2,58)m; kết cấu bê tông cốt thép. - Độ dốc 7° ≤ α ≤ 18° |
Hình 6 |
|
2.14 |
Lò khai thác chống giữ giá thủy lực di động (XDY) |
m |
15 |
- Kích thước (dài x rộng x cao) ≥ (15,5 x 5,8 x 2,58)m; kết cấu bê tông cốt thép. - Độ dốc 7° ≤ α ≤ 18° |
|
|
2.15 |
Lò khai thác chống giữ giá khung thủy lực di động (ZH, giá xích). |
m |
15 |
- Kích thước (dài x rộng x cao) ≥ (15,5 x 5,8 x 2,58)m; kết cấu bê tông cốt thép. - Độ dốc 7° ≤ α ≤ 18° |
|
|
2.16 |
Gương khoan |
m |
3 |
- Kết cấu bằng bê tông cốt thép chiều dầy 0,3 m. + Ssd ≥ 4,5 m2; + B ≥ 2.200 mm + H ≥ 2.300 mm |
Hình 7 |
|
3 |
Hệ thống điện |
HT |
1 |
|
|
|
3.1 |
Trạm biến áp |
Trạm |
1 |
- Công suất ≥ 200 KVA - Cấp điện áp sơ cấp/thứ cấp 22/0,4 KV |
|
|
3.2 |
Trạm phát điện điezen |
Trạm |
2 |
- Công suất ≥ 200 KVA - Cấp điện áp 380/220 |
|
|
3.3 |
Hệ thống cung cấp điện cho các thiết bị trong lò |
HT |
2 |
- Trung tính 3 pha cách lý không tiếp đất. - Cáp cao su phòng cháy nổ. |
|
|
3.4 |
Thiết bị đóng cắt cho từng phụ tải |
Cái/phụ tải |
02 |
- Cầu dao tự động phòng nổ hoặc khởi động từ phòng nổ có công suất phù hợp với công suất và điện áp của phụ tải. - Cấp phòng nổ ExdI |
|
|
3.5 |
Đèn chiếu sáng cá nhân |
cái |
100 |
- Điện áp: 3,7 v - Thời gian hoạt động > 11giờ |
|
|
4 |
Hệ thống thông gió |
HT |
1 |
|
|
|
4.1 |
Quạt gió chính |
Chiếc |
2 |
- N ≥ 11 KW - Điện áp 380/660 V - Q ≥ 130 m 3/s - dB (A) ≤ 91 - Hiệu suất (%) ≥ 80 - Cấp phòng nổ EXdI |
|
|
4.2 |
Quạt gió cục bộ |
Chiếc |
2 |
- N ≥ 2,2 KW - Điện áp 380/660 V - Q ≥ 5,2 m3/s - Cấp phòng nổ ExdI - Hệ số hữu ích toàn phần lớn KDP (%) ≥ 64. |
|
|
4.3 |
Trạm quạt thông gió chính |
Trạm |
1 |
- Kích thước (dài x rộng x cao) ≥ (5 x 3 x 2,2) m; kết cấu bê tông cốt thép. - Độ dốc ≤ 7° |
|
|
5 |
Bơm nước |
Chiếc |
2 |
- N ≥ 4,5 KW - Điện áp 380/660 V - Q ≥ 30 m 3/h - Cấp phòng nổ ExdI |
|
|
6 |
Hệ thống vận tải trong lò |
HT |
1 |
|
|
|
6.1 |
Đường xe gòng |
m |
60 |
- B ≥ 600 mm - Ray P 18, tà vẹt gỗ hoặc bê tông - Ghi điều hướng NO618 - 1/2-4 |
|
|
6.2 |
Xe goòng |
Chiếc |
2 |
- Dung tích ≥ 1000 cm3 |
|
|
6.3 |
Xe chở vật liệu |
Chiếc |
2 |
- Kích thước (2500 x 1.200 x 1.000)m |
|
|
6.3 |
Tời trục vận tải |
HT |
1 |
- Năng suất > 10 tấn/giờ - Lực kéo: ≥ 150 kN - Khoảng xa vận tải > 10 m - Cấp phòng nổ: ExdI |
|
|
6.4 |
Tời Manơ |
cái |
2 |
- Lực kéo: ≥ 10 kN - Khoảng xa vận tải > 30 m - Cấp phòng nổ: ExdI |
|
|
6.5 |
Tàu điện ắc quy |
Chiếc |
4 |
- Trọng lượng 2500kg - Điện áp 48V - Kích thước 2150x920x1460 - Cấp phòng nổ: ExdI |
|
|
6.6 |
Bộ ắc quy |
Chiếc |
8 |
- Điện áp 48V - Dung lượng 330ampe/ giờ - Cấp phòng nổ: ExdI |
|
|
6.7 |
Tủ nạp ắc quy |
Chiếc |
4 |
- Điện áp vào AC - 660/380V - Điện áp ra DC71V - Dòng điện 90A - Cấp phòng nổ: ExdI |
|
|
7 |
Hệ thống cung cấp khí nén |
HT |
1 |
|
|
|
7.1 |
Trạm đặt máy nén khí |
Trạm |
1 |
- Dài x rộng x cao: (2,5 x 4,5) - Đế đổ bê tông cốt thép liền khối |
|
|
7.2 |
Máy nén khí |
Chiếc |
2 |
- N ≥ 11 KW - Q = 5m3/ph - P = 7 at - Cấp phòng nổ Ex |
|
|
8 |
Thiết bị phòng chống cháy |
|
|
|
|
|
8.1 |
Thùng cát |
Thùng |
02 |
Loại thông dụng |
|
|
8.2 |
Bình dập lửa bằng bột |
bình |
10 |
Theo tiêu chuẩn Việt Nam (TCVN) về phòng cháy chữa cháy |
|
|
8.3 |
Bình dập lửa bằng bọt |
bình |
10 |
Theo tiêu chuẩn Việt Nam (TCVN) về phòng cháy chữa cháy |
|
|
9 |
Hệ thống chiếu sáng trong đường lò |
HT |
1 |
|
|
|
9.1 |
Máy biến áp chiếu sáng |
Chiếc |
4 |
- Công suất ≤ 4KVA - Điện áp 380,660/133V - Kiểu phòng nổ ExdI |
|
|
9.2 |
Đèn chiếu sáng phòng nổ |
Chiếc |
50 |
- Kiểu phòng nổ KBB - Điện áp 127V; công suất 60W - Kiểu phòng nổ ExdI |
|
|
10 |
Hệ thống đo khí tự động |
HT |
1 |
|
|
|
10.1 |
Tủ trung tâm |
Cái |
2 |
- Điện áp 220-280VAC - Kênh đo: 40max - Kết nối với các đầu đo CPC-2 & TC-100/P |
|
|
10.2 |
Đầu đo khí |
Cái |
10 |
- Điện áp 12 VDC - Imax 40mA. - Dải đo: 5% và 100%. - Độ phân dải 0.01% ở dải 5% và 1% ở dải 100%. - Dạng bảo vệ nổ: ExiaI. |
|
|
10.3 |
Đầu đo gió |
Cái |
10 |
- Điện áp 18 VDC - Dòng điện 1 ÷ 5mA - Đo gió trong phạm vi 0.3 ÷ 5m/s |
|
|
|
|
|
|
|
|
b) Số lượng mặt bằng kỹ thuật: 01 mặt bằng kỹ thuật phục vụ thi thực hành, diện tích 500 m2, bố trí được 50 vị trí kiểm tra.
4. Danh mục trang thiết bị (phương tiện, thiết bị, công cụ, dụng cụ tác nghiệp và phương tiện đo kiểm) tối thiểu để thực hiện bài kiểm tra thực hành:
|
TT |
Tên gọi |
ĐVT |
Số lượng |
Yêu cầu kỹ thuật cơ bản |
Ghi chú |
|
1 |
Biến áp khoan |
Cái |
2 |
- Điện áp định danh cao thế/hạ thế: 660 (380)/133(127). - Tiêu chuẩn phòng nổ 7079:2002 |
|
|
2 |
Biến áp chiếu sáng |
Cái |
2 |
- Công suất ≥ 4KVA - Tỷ số biến áp 380(660)v/127v - Cấp phòng nổ ExdI |
|
|
3 |
Khởi động từ phòng nổ |
Cái |
4 |
- Điện áp 380 (660) - Cấp phòng nổ ExdI |
|
|
4 |
Máy khoan điện cầm tay |
Cái |
2 |
- Điện áp 127 V - Cấp phòng nổ ExdI |
|
|
5 |
Máy khoan khí ép |
Cái |
2 |
- Áp lực (MPa)0.4-0.63 - Lưu lượng (1/s) ≤ 37 - Năng lượng tác dụng (J) ≥ 38 |
|
|
6 |
Pa lăng |
Cái |
8 |
- Tải trọng nâng P ≥ 2.000 kg - Hành trình H= (3 ÷ 5)m |
|
|
7 |
Vì chống kim loại hình thang |
Bộ |
50 |
- Thép chữ U hoặc chữ I - Sc ≥ 5,7 m2 |
|
|
8 |
Vì chống kim loại hình vòm |
Bộ |
50 |
- Thép chữ U - Sc ≥ 5,7 m2 |
|
|
9 |
Vì chống kim loại hình vòm |
Bộ |
50 |
- Thép chữ U - Sc ≥ 7,5 m2 |
|
|
10 |
Vì chống kim loại hình vòm |
Bộ |
50 |
- Thép chữ U - Sc ≥ 8,5 m2 |
|
|
11 |
Vì chống kim loại hình vòm |
Bộ |
50 |
- Thép chữ U - Sc ≥ 9,0 m2 |
|
|
12 |
Xe goòng |
Chiếc |
10 |
- Dung tích ≥ 650 cm3 |
|
|
13 |
Xe chở vật liệu |
Chiếc |
6 |
- Kích thước (2500 x 1.200 x 1.000)m |
|
|
14 |
Máng trượt |
Cái |
15 |
- Vật liệu chế tạo: Kim loại - L ≥ 1000mm; - B ≥ 450mm |
|
|
15 |
Máy nén khí di động 2 cấp |
máy |
2 |
- Năng suất ≥ 5m3/ph - Áp suất: (6÷7)KG/cm2 - Cấp phòng nổ: ExdI |
|
|
TT |
Tên gọi |
ĐVT |
Số lượng |
Yêu cầu kỹ thuật cơ bản |
Ghi chú |
|
1 |
Biến áp khoan |
Cái |
02 |
- Điện áp định danh cao thế/hạ thế: 660 (380)/133(127). - Tiêu chuẩn phòng nổ 7079:2002 |
|
|
2 |
Biến áp chiếu sáng |
Cái |
02 |
- Công suất ≥ 4KVA - Tỷ số biến áp 380(660)v/127v - Cấp phòng nổ ExdI |
|
|
3 |
Khởi động từ phòng nổ |
Cái |
4 |
- Điện áp 380 (660) - Cấp phòng nổ ExdI |
|
|
4 |
Máy khoan điện cầm tay |
Cái |
2 |
- Điện áp 127 V - Cấp phòng nổ ExdI |
|
|
5 |
Máy khoan khí ép |
Cái |
2 |
- Áp lực (MPa)0.4-0.63 - Lưu lượng (l/s) ≤ 37 - Năng lượng tác dụng (J) ≥ 38 |
|
|
6 |
Choòng khoan than |
Cái |
2 |
- L = 1,2 m - Đường kính: 42 mm |
|
|
7 |
Choòng khoan đá |
Cái |
2 |
- L = 1,2 m - Đường kính: 42 mm |
|
|
8 |
Pa lăng xích |
Cái |
2 |
- Tải trọng nâng P ≥ 2.000 kg - Hành trình H= (3÷5)m |
|
|
9 |
Pa lăng cáp |
Cái |
2 |
- Tải trọng nâng P ≥ 500 kg - Hành trình H= (5÷20)m |
|
|
10 |
Cột chống thủy lực di động |
Cột |
30 |
- Tải trọng: (280÷294)kN - Chiều cao: (1000÷2240)mm |
|
|
11 |
Vì chống thủy lực đơn xà khớp |
Bộ |
50 |
- Tải trọng: (950÷1600kN) - Chiều cao: (1760÷2460) mm. - Áp suất: (7÷35) Mpa |
|
|
12 |
Giá thủy lực di động |
Bộ |
12 |
- Tải trọng: (950÷1600kN) - Chiều cao: (1600÷2460) mm. - Áp suất: (7÷35) Mpa |
|
|
13 |
Giá khung di động liên kết khớp |
Bộ |
12 |
- Tải trọng: (950÷1600kN) - Chiều cao: (1600÷2460) mm. - Áp suất: (7÷35) Mpa |
|
|
14 |
Giá khung di động liên kết xích |
Bộ |
12 |
- Tải trọng: (280÷294)kN - Chiều cao: (1000÷2240)mm |
|
|
15 |
Cột thủy lực đơn |
Chiếc |
30 |
- Hành trình (1,2 - 2,5)m - Lực chống > 7 Mpa |
|
|
16 |
Trạm bơm nhũ hóa |
Trạm |
2 |
- Dung tích: (600÷1200)lít - Áp lực: (7÷35)Mpa - Lưu lượng: ≥ 80 lít/phút |
|
|
17 |
Máy nén khí di động 2 cấp |
máy |
2 |
- Năng suất ≥ 5m3/ph - Áp suất: (6÷7)KG/cm2 - Cấp phòng nổ: ExdI |
|
|
TT |
Danh mục |
ĐVT |
Số lượng |
Yêu cầu kỹ thuật cơ bản |
Ghi chú |
|
1 |
Biến áp khoan |
cái |
2 |
- Điện áp định danh cao thế/hạ thế: 660(380)/133(127). - Tiêu chuẩn phòng nổ 7079:2002 |
|
|
2 |
Biến áp chiếu sáng |
cái |
2 |
- Công suất ≥ 4KVA - Tỷ số biến áp 380(660)v/127v - Cấp phòng nổ ExdI |
|
|
3 |
Khởi động từ phòng nổ |
Cái |
4 |
- Điện áp 380 (660)v - Cấp phòng nổ ExdI |
|
|
4 |
Máy khoan điện cầm tay |
Cái |
2 |
- Điện áp 127 V - Cấp phòng nổ ExdI |
|
|
5 |
Máy khoan điện có giá |
Chiếc |
2 |
- Điện áp 127 V - Công suất (1÷1,2) kw - Trọng lượng > 12 kg |
|
|
6 |
Máy khoan khí ép |
Cái |
2 |
- Áp lực (MPa)0.4-0.63 - Lưu lượng (l/s) ≤ 37 - Năng lượng tác dụng (J) ≥ 38 |
|
|
7 |
Chân ben |
chiếc |
2 |
- Lực nâng > 30 KN - Hành trình nâng (0,8 - 2)m |
|
|
8 |
Choòng khoan than |
Cái |
2 |
- L = 1,2 m - Đường kính: 42 mm |
|
|
9 |
Choòng khoan đá |
Cái |
2 |
- L = 1,2 m - Đường kính: 42 mm |
|
|
10 |
Pa lăng xích |
Cái |
2 |
- Tải trọng nâng P ≥ 2.000 kg - Hành trình H= (3 ÷ 5)m |
|
|
11 |
Pa lăng cáp |
Cái |
2 |
- Tải trọng nâng P ≥ 500 kg - Hành trình H= (5 ÷ 20)m |
|
|
12 |
Cột chống thủy lực di động |
Cột |
30 |
- Tải trọng: (280÷294)kN - Chiều cao: (1000÷2240)mm |
|
|
13 |
Vì chống thủy lực đơn xà khớp |
Bộ |
50 |
- Tải trọng: (950÷1600kN) - Chiều cao: (1760÷2460) mm. - Áp suất: (7÷35) Mpa |
|
|
14 |
Giá thủy lực di động |
Bộ |
12 |
- Tải trọng: (950h÷1600kN) - Chiều cao: (1600÷2460) mm. - Áp suất: (7÷35) Mpa |
|
|
15 |
Giá khung di động liên kết khớp |
Bộ |
12 |
- Tải trọng: (950÷1600kN) - Chiều cao:(1600÷2460) mm. - Áp suất: (7÷35) Mpa |
|
|
16 |
Giá khung di động liên kết xích |
Bộ |
12 |
- Tải trọng: (280÷294)kN - Chiều cao: (1000÷2240)mm |
|
|
17 |
Cột thủy lực đơn |
Chiếc |
150 |
- Hành trình (1,2 - 2,5)m - Lực chống > 7 Mpa |
|
|
18 |
Trạm bơm nhũ hóa |
Trạm |
2 |
- Dung tích: (600÷1200)lít - Áp lực: (7÷35)Mpa - Lưu lượng: ≥ 80 lít/phút |
|
|
19 |
Máy nén khí di động 2 cấp |
máy |
2 |
- Năng suất ≥ 5m3/ph - Áp suất: (6÷7)KG/cm2 - Cấp phòng nổ: ExdI |
|







DANH MỤC CƠ SỞ VẬT CHẤT, TRANG THIẾT BỊ ĐÁNH GIÁ KỸ NĂNG NGHỀ QUỐC GIA
NGHỀ KỸ THUẬT XÂY DỰNG MỎ HẦM LÒ Ở CÁC BẬC TRÌNH ĐỘ KỸ NĂNG NGHỀ 1, 2, 3
Danh mục cơ sở vật chất, trang thiết bị đánh giá kỹ năng nghề quốc gia cho nghề Kỹ thuật xây dựng mỏ hầm lò ở các bậc trình độ kỹ năng nghề 1, 2, 3 là danh mục và số lượng tối thiểu về cơ sở vật chất (các phòng chuyên môn, kỹ thuật và nhà, xưởng, mặt bằng) và trang thiết bị (phương tiện, thiết bị, công cụ, dụng cụ tác nghiệp và phương tiện đo kiểm) cần có để tổ chức đánh giá, cấp chứng chỉ kỹ năng nghề quốc gia nghề Kỹ thuật xây dựng mỏ hầm lò ở các bậc trình độ kỹ năng nghề 1, 2, 3.
Danh mục cơ sở vật chất, trang thiết bị đánh giá kỹ năng nghề quốc gia cho nghề Kỹ thuật xây dựng mỏ hầm lò ở các bậc trình độ kỹ năng nghề 1, 2, 3 là điều kiện để cấp giấy chứng nhận hoạt động đánh giá, cấp chứng chỉ kỹ năng nghề quốc gia nghề Kỹ thuật xây dựng mỏ hầm lò ở các bậc trình độ kỹ năng nghề 1, 2, 3 cho các tổ chức đăng ký hoạt động đánh giá, cấp chứng chỉ kỹ năng nghề quốc gia của nghề này.
Các căn cứ xây dựng Danh mục:
- Nghị định số 31/2015/NĐ-CP ngày 24/3/2015 của Chính phủ quy định chi tiết thi hành một số điều của Luật Việc làm về đánh giá, cấp chứng chỉ kỹ năng nghề quốc gia.
- Tiêu chuẩn kỹ năng nghề quốc gia nghề Kỹ thuật xây dựng mỏ hầm lò đã được Bộ trưởng Bộ Công Thương ban hành tại Quyết định số 4837/QĐ-BCT ngày 22/9/2011 của Bộ trưởng Bộ Công thương ban hành Tiêu chuẩn kỹ năng nghề quốc gia đối với các nghề thuộc lĩnh vực công nghiệp.
- Ngân hàng câu hỏi trắc nghiệm, đề thi thực hành nghề Kỹ thuật xây dựng mỏ hầm lò được Tổng cục Giáo dục nghề nghiệp, Bộ Lao động Thương binh và Xã hội tổ chức xây dựng, ban hành và quản lý theo các quy định hiện hành.
- Quy chuẩn kỹ thuật quốc gia QCVN 01:2011/BCT về an toàn trong khai thác than hầm lò (Ban hành kèm theo Thông tư số 03/2011/TT-BCT ngày 15 tháng 02 năm 2011 của Bộ trưởng Bộ Công Thương).
- Quy chuẩn kỹ thuật quốc gia QCVN 04:2017/BCT về an toàn trong khai thác quặng hầm lò (Ban hành theo Thông tư số 31/2017/TT-BCT ngày 28 tháng 12 năm 2017 của Bộ trưởng Bộ Công Thương).
1. Tổng diện tích mặt bằng tối thiểu: 11.800 m2; trong đó:
a) Diện tích xây dựng nhà, xưởng, hệ thống đường lò, hội trường, phòng thi lý thuyết, thực hành, phòng hội đồng: 9.500 m2;
b) Diện tích xây dựng công trình khác (Phòng thay quần áo, nhà ăn, nhà tắm, nhà giặt,...): 1.300 m2;
c) Diện tích mặt bằng kỹ thuật (sân, mặt bằng kỹ thuật): 1.000 m2;
2. Tổng diện tích xây dựng sử dụng tối thiểu: 3.000 m2; trong đó:
a) Diện tích các xưởng, hệ thống đường lò, phòng chuyên môn, kỹ thuật: 1.900 m2;
b) Diện tích các phòng học, hội họp: 800 m2;
c) Diện tích văn phòng, phòng làm việc: 300 m2;
3. Hệ thống phụ trợ:
a) Báo cháy, phòng cháy, chữa cháy: 01 hệ thống.
b) Máy phát điện: 01 máy phát điện dự phòng.
c) Hệ thống kỹ thuật khác (cấp khí, cấp nhiệt, ...): 01 hệ thống cung cấp khí nén.
4. Hệ thống thiết bị giám sát, quan sát, thông tin liên lạc (camera, màn hình): 01 hệ thống camera và màn hình.
5. Trang thông tin điện tử: 01 trang thông tin điện tử riêng.
1. Diện tích tối thiểu sử dụng để thực hiện bài kiểm tra kiến thức:
Số phòng kiểm tra kiến thức có gắn camera giám sát: 01 phòng kiểm tra kiến thức trên máy tính, diện tích 70 m2, bố trí được 50 vị trí kiểm tra và có 2 camera giám sát.
2. Khu vực chờ và quan sát người tham dự thực hiện bài kiểm tra:
Số khu vực chờ và quan sát người tham dự thực hiện bài kiểm tra: 02 khu vực; trong đó:
- Khu vực chờ và quan sát có màn hình kết nối với các camera gắn trong các phòng kiểm tra 01 phòng và có tổng diện tích 50 m2;
- Khu vực chờ và quan sát tại các mặt bằng kỹ thuật 01 khu vực và có tổng diện tích 150 m2.
3. Diện tích tối thiểu sử dụng để thực hiện bài kiểm tra thực hành:
|
TT |
Tên gọi |
ĐVT |
Số lượng |
Yêu cầu kỹ thuật cơ bản |
Ghi chú |
|
1 |
Diện tích mặt bằng khu vực tổ chức đánh giá phần thực hành |
m2 |
8.000 |
Có đủ các công trình xây dựng sử dụng trong kỳ đánh giá và phục vụ phụ trợ. |
|
|
2 |
Hệ thống đường lò |
m |
508 |
- Được cơ quan có tư cách pháp nhân thiết kế và phê duyệt (đơn vị được phép thiết kế mỏ thực hiện) chỉ phục vụ đánh giá kỹ năng nghề và đào tạo nghề; - Không được sử dụng các khai trường mỏ hầm lò đang sản xuất, tạm dừng sản xuất hoặc đã dừng sản xuất để đánh giá phần thực hành. |
Kết nối liên hoàn |
|
|
Bao gồm các đường lò |
|
|
|
|
|
2.1 |
Lò vận tải chính |
|
50 |
- Kết cấu bằng bê tông cốt thép chiều dầy 0,3 m. - Chống giữ bằng vì chống hình vòm: + Ssd ≥ 9,5 m2; + B ≥ 3.800 mm + H ≥ 2.900 mm |
Hình 1 |
|
2.2 |
Lò thông gió chính |
m |
50 |
- Kết cấu bằng bê tông cốt thép chiều dầy 0,3 m. - Chống giữ bằng vì chống hình vòm: + Ssd ≥ 9,5 m2; + B ≥ 3.800 mm + H ≥ 2.900 mm |
|
|
2.3 |
Lò nghiêng |
m |
40 |
- Kết cấu bằng bê tông cốt thép chiều dầy 0,3 m. - Chống giữ bằng vì chống hình vòm: + Ssd ≥ 6,8 m2; + B ≥ 2.600 mm + H ≥ 2.000 mm + Độ dốc 10° ≤ α ≤ 35° |
Hình 2 |
|
2.4 |
Lò rẽ ngã 3 |
m |
40 |
- Kết cấu bằng bê tông cốt thép chiều dầy 0,3 m. - Chống giữ bằng vì chống hình vòm: + Ssd ≥ 9,5 m2; + B ≥ 3.800 mm + H ≥ 2.900 mm |
|
|
2.5 |
Hầm trạm |
m |
50 |
- Kết cấu bằng bê tông cốt thép chiều dầy 0,3 m. + Ssd ≥ 4,5 m2; + B ≥ 2.200 mm + H ≥ 2.300 mm |
Hình 3 |
|
2.6 |
Đoạn lò dựng vì chống lò bằng |
m |
50 |
- Kết cấu bằng bê tông cốt thép chiều dầy 0,3 m. - Chống giữ bằng vì chống hình vòm; + Ssd ≥ 6,8 m2; + B ≥ 2.600 mm + H ≥ 2.000 mm |
|
|
2.7 |
Đoạn lò dựng vì chống lò nghiêng |
m |
50 |
- Kết cấu bằng bê tông cốt thép chiều dầy 0,3 m. - Chống giữ bằng vì chống hình vòm: + Ssd ≥ 6,8 m2; + B ≥ 2.600 mm + H ≥ 2.000 mm + Độ dốc 10° ≤ α ≤ 35° |
|
|
2.8 |
Đoạn lò dựng vì chống lò giếng đứng |
m |
10 |
- Đường kính giếng ≥ 4 m - Kết cấu bê tông cốt thép, chiều dầy 0,3 m: + Chiều cao đế giếng 0,5 m + Chiều cao thân giếng 8,2 m + Chiều cao cổ giếng 0,8 m - Có đầy đủ thiết bị trục tải, thông gió, thoát nước, hệ thống tín hiệu.. |
Hình 4 |
|
2.9 |
Đoạn lò chống giữ bằng vì neo |
m |
30 |
- Kết cấu bằng bê tông cốt thép 2 lớp chiều dầy giữa 2 lớp ≥ 1,6m. - Chống giữ bằng vì chống hình vòm: + Ssd ≥ 9,0 m2; + B ≥ 3.500 mm + H ≥ 2.950 mm |
Hình 5 |
|
2.10 |
Đoạn lò củng cố và khôi phục vì chống |
m |
30 |
- Kết cấu bằng bê tông cốt thép chiều dầy 0,3 m. - Chống giữ bằng vì chống hình vòm: + Ssd ≥ 9,5 m2; + B ≥ 3.800 mm + H ≥ 2.900 mm - Chiều dài nóc rỗng ≥ 3m |
|
|
2.11 |
Đoạn lò xử lý sự cố cháy nổ khí |
m |
30 |
- Kết cấu bằng bê tông cốt thép chiều dầy 0,3 m. - Chống giữ bằng vì chống hình vòm: + Ssd ≥ 6,8 m2; + B ≥ 2.600 mm + H ≥ 2.000 mm - Ốp gạch chịu nhiệt |
|
|
2.12 |
Đoạn lò đào bằng máy Combain |
m |
30 |
- Kết cấu bằng bê tông cốt thép chiều dầy 0,3 m. - Chống giữ bằng vì chống hình vòm: + Ssd ≥ 9,5 m2; + B ≥ 3.800 mm + H ≥ 2.900 mm |
|
|
2.13 |
Lò khai thác chống giữ bằng cột đơn, xà khớp |
m |
15 |
- Kích thước (dài x rộng x cao) ≥ (15,5 x 5,8 x 2,58)m; kết cấu bê tông cốt thép. - Độ dốc 7° ≤ α ≤ 18° |
Hình 6 |
|
2.14 |
Lò khai thác chống giữ giá thủy lực di động (XDY) |
m |
15 |
- Kích thước (dài x rộng x cao) ≥ (15,5 x 5,8 x 2,58)m; kết cấu bê tông cốt thép. - Độ dốc 7° ≤ α ≤ 18° |
|
|
2.15 |
Lò khai thác chống giữ giá khung thủy lực di động (ZH, giá xích). |
m |
15 |
- Kích thước (dài x rộng x cao) ≥ (15,5 x 5,8 x 2,58)m; kết cấu bê tông cốt thép. - Độ dốc 7° ≤ α ≤ 18° |
|
|
2.16 |
Gương khoan |
m |
3 |
- Kết cấu bằng bê tông cốt thép chiều dầy 0,3 m. + Ssd ≥ 4,5 m2; + B ≥ 2.200 mm + H ≥ 2.300 mm |
Hình 7 |
|
3 |
Hệ thống điện |
HT |
1 |
|
|
|
3.1 |
Trạm biến áp |
Trạm |
1 |
- Công suất ≥ 200 KVA - Cấp điện áp sơ cấp/thứ cấp 22/0,4 KV |
|
|
3.2 |
Trạm phát điện điezen |
Trạm |
2 |
- Công suất ≥ 200 KVA - Cấp điện áp 380/220 |
|
|
3.3 |
Hệ thống cung cấp điện cho các thiết bị trong lò |
HT |
2 |
- Trung tính 3 pha cách lý không tiếp đất. - Cáp cao su phòng cháy nổ. |
|
|
3.4 |
Thiết bị đóng cắt cho từng phụ tải |
Cái/phụ tải |
02 |
- Cầu dao tự động phòng nổ hoặc khởi động từ phòng nổ có công suất phù hợp với công suất và điện áp của phụ tải. - Cấp phòng nổ ExdI |
|
|
3.5 |
Đèn chiếu sáng cá nhân |
cái |
100 |
- Điện áp: 3,7 v - Thời gian hoạt động > 11giờ |
|
|
4 |
Hệ thống thông gió |
HT |
1 |
|
|
|
4.1 |
Quạt gió chính |
Chiếc |
2 |
- N ≥ 11 KW - Điện áp 380/660 V - Q ≥ 130 m3/s - dB (A) ≤ 91 - Hiệu suất (%) ≥ 80 - Cấp phòng nổ EXdl |
|
|
4.2 |
Quạt gió cục bộ |
Chiếc |
2 |
- N ≥ 2,2 KW - Điện áp 380/660 V - Q ≥ 5,2 m 3/s - Cấp phòng nổ ExdI - Hệ số hữu ích toàn phần lớn KDP (%) ≥ 64. |
|
|
4.3 |
Trạm quạt thông gió chính |
Trạm |
1 |
- Kích thước (dài x rộng x cao) ≥ (5 x 3 x 2,2) m; kết cấu bê tông cốt thép. - Độ dốc ≤ 7° |
|
|
5 |
Bơm nước |
Chiếc |
2 |
- N ≥ 4,5 KW - Điện áp 380/660 V - Q ≥ 30 m 3/h - Cấp phòng nổ ExdI |
|
|
6 |
Hệ thống vận tải trong lò |
HT |
1 |
|
|
|
6.1 |
Đường xe gòng |
m |
60 |
- B ≥ 600 mm - Ray P 18, tà vẹt gỗ hoặc bê tông - Ghi điều hướng NO618 - 1/2-4 |
|
|
6.2 |
Xe goòng |
Chiếc |
2 |
- Dung tích ≥ 1000 cm3 |
|
|
6.3 |
Xe chở vật liệu |
Chiếc |
2 |
- Kích thước (2500 x 1.200 x 1.000)m |
|
|
6.3 |
Tời trục vận tải |
HT |
1 |
- Năng suất > 10 tấn/giờ - Lực kéo: ≥ 150 kN - Khoảng xa vận tải > 10 m - Cấp phòng nổ: ExdI |
|
|
6.4 |
Tời Manơ |
cái |
2 |
- Lực kéo: ≥ 10 kN - Khoảng xa vận tải > 30 m - Cấp phòng nổ: ExdI |
|
|
6.5 |
Tàu điện ắc quy |
Chiếc |
4 |
- Trọng lượng 2500kg - Điện áp 48 V - Kích thước 2150x920x1460 - Cấp phòng nổ: ExdI |
|
|
6.6 |
Bộ ắc quy |
Chiếc |
8 |
- Điện áp 48 V - Dung lượng 330ampe/ giờ - Cấp phòng nổ: ExdI |
|
|
6.7 |
Tủ nạp ắc quy |
Chiếc |
4 |
- Điện áp vào AC-660/380V - Điện áp ra DC71V - Dòng điện 90A - Cấp phòng nổ: ExdI |
|
|
7 |
Hệ thống cung cấp khí nén |
HT |
1 |
|
|
|
7.1 |
Trạm đặt máy nén khí |
Trạm |
1 |
- Dài x rộng x cao: (2,5 x 4,5) - Đế đổ bê tông cốt thép liền khối |
|
|
7.2 |
Máy nén khí |
Chiếc |
2 |
- N ≥ 11 KW - Q = 5m3/ph - P = 7 at - Cấp phòng nổ Ex |
|
|
8 |
Thiết bị phòng chống cháy |
|
|
|
|
|
8.1 |
Thùng cát |
Thùng |
02 |
Loại thông dụng |
|
|
8.2 |
Bình dập lửa bằng bột |
bình |
10 |
Theo tiêu chuẩn Việt Nam (TCVN) về phòng cháy chữa cháy |
|
|
8.3 |
Bình dập lửa bằng bọt |
bình |
10 |
Theo tiêu chuẩn Việt Nam (TCVN) về phòng cháy chữa cháy |
|
|
9 |
Hệ thống chiếu sáng trong đường lò |
HT |
1 |
|
|
|
9.1 |
Máy biến áp chiếu sáng |
Chiếc |
4 |
- Công suất ≤ 4KVA - Điện áp 380,660/133V - Kiểu phòng nổ ExdI |
|
|
9.2 |
Đèn chiếu sáng phòng nổ |
Chiếc |
50 |
- Kiểu phòng nổ KBB - Điện áp 127V; công suất 60W - Kiểu phòng nổ ExdI |
|
|
10 |
Hệ thống đo khí tự động |
HT |
1 |
|
|
|
10.1 |
Tủ trung tâm |
Cái |
2 |
- Điện áp 220-280VAC - Kênh đo : 40max - Kết nối với các đầu đo CPC-2 & TC-100/P |
|
|
10.2 |
Đầu đo khí |
Cái |
10 |
- Điện áp 12 VDC - Imax 40mA. - Dải đo: 5% và 100%. - Độ phân dải 0.01% ở dải 5% và 1% ở dải 100%. - Dạng bảo vệ nổ: ExiaI. |
|
|
10.3 |
Đầu đo gió |
Cái |
10 |
- Điện áp 18 VDC - Dòng điện 1÷5mA - Đo gió trong phạm vi 0.3÷5m/s |
|
|
|
|
|
|
|
|
b) Số lượng mặt bằng kỹ thuật: 01 mặt bằng kỹ thuật phục vụ thi thực hành, diện tích 500 m2, bố trí được 50 vị trí kiểm tra.
4. Danh mục trang thiết bị (phương tiện, thiết bị, công cụ, dụng cụ tác nghiệp và phương tiện đo kiểm) tối thiểu để thực hiện bài kiểm tra thực hành:
|
TT |
Tên gọi |
ĐVT |
Số lượng |
Yêu cầu kỹ thuật cơ bản |
Ghi chú |
|
1 |
Búa chèn |
Cái |
10 |
- Áp suất khí nén: ≥ 5 kG/cm2 - Lực đập: ≥ 3,5 kG |
|
|
2 |
Khởi động từ an toàn tia lửa |
Chiếc |
10 |
- Dòng điện: ≤ 80A - Phòng nổ: ExdI |
|
|
3 |
Máy nén khí |
Chiếc |
2 |
- Áp suất khí: (6÷7) kG/cm2 - Lưu lượng: ≥ 5 m3/ph |
|
|
4 |
Quạt gió cục bộ |
Chiếc |
6 |
- Công suất: ≥ 2,2 KW - Lưu lượng gió: ≥ 5,2 m3/s - Phòng nổ: ExdI |
|
|
5 |
Vì chống kim loại hình thang |
Bộ |
150 |
- Thép chữ U - Tiết diện: ≥ 5,7 m2 |
|
|
6 |
Vì chống kim loại hình vòm |
Bộ |
150 |
- Thép chữ U - Tiết diện: (6,5÷22,5)m2 |
|
|
7 |
Xe chở vật liệu |
Chiếc |
5 |
- Kích thước (2500 x 1.200 x 1.000)m - Cỡ đường ray: (600 ÷ 900)mm |
|
|
8 |
Ống gió cứng |
Chiếc |
50 |
- Đường kính phù hợp với quạt - Chiều dài: (2,5÷4) m |
|
|
9 |
Ống gió mềm |
Chiếc |
150 |
- Đường kính phù hợp với quạt - Chiều dài: (5÷20) m |
|
|
10 |
Choòng khoan điện |
Chiếc |
10 |
- L = 1,2 m - Đường kính: 42 mm |
|
|
11 |
Biến áp khoan |
Cái |
4 |
- Điện áp định danh cao thế/hạ thế: 660(380)/133(127). - Tiêu chuẩn phòng nổ 7079:2002 |
|
|
12 |
Máy khoan điện |
Cái |
4 |
- Điện áp 127 V - Cấp phòng nổ ExdI |
|
|
|
|
|
|
|
|
|
TT |
Tên gọi |
ĐVT |
Số lượng |
Yêu cầu kỹ thuật cơ bản |
Ghi chú |
|
1 |
Biến áp khoan |
Chiếc |
5 |
- Công suất: ≥ 2,5 kVA - Phòng nổ: ExdI |
|
|
2 |
Dầm tiến gương |
Chiếc |
10 |
Thép chống lò (chữ U hoặc I) |
|
|
4 |
Đường ray |
Thanh |
20 |
- Trọng lượng: (8÷24) kg/m - Dài: (6÷12) m |
|
|
5 |
Tà vẹt |
Thanh |
150 |
- Dài: (1,3÷1,6)m - Rộng: (20÷30)cm - Cao: (15÷25)cm |
|
|
6 |
Khởi động từ an toàn tia lửa |
Chiếc |
20 |
- Dòng điện: ≤ 80A - Phòng nổ: ExdI |
|
|
7 |
Máy khoan điện |
Chiếc |
4 |
- Công suất: (1÷1,2) kW - Phòng nổ: ExdI |
|
|
8 |
Máy khoan khí ép |
Chiếc |
4 |
- Áp suất khí nén: ≥ 5 kG/cm2 - Đường kính mũi khoan: 42mm |
|
|
9 |
Máy nén khí |
Chiếc |
4 |
- Áp suất khí: (6÷7) kG/cm2 - Lưu lượng: ≥ 5 m3/ph |
|
|
10 |
Quạt gió cục bộ |
Chiếc |
6 |
- Công suất: ≥ 2,2 KW - Lưu lượng gió: ≥ 5,2 m3/s - Phòng nổ: ExdI |
|
|
11 |
Vì chống kim loại hình thang |
Bộ |
150 |
- Thép chữ U - Tiết diện: ≥ 5,7 m2 |
|
|
12 |
Vì chống kim loại hình vòm |
Bộ |
150 |
- Thép chữ U - Tiết diện: (6,5÷22,5)m2 |
|
|
13 |
Xe chở vật liệu |
Chiếc |
6 |
- Kích thước (2500 x 1.200 x 1.000)m |
|
|
14 |
Ống gió cứng |
Chiếc |
50 |
- Đường kính phù hợp với quạt - Chiều dài: (2,5÷4) m |
|
|
15 |
Ống gió mềm |
Chiếc |
150 |
- Đường kính phù hợp với quạt - Chiều dài: (5÷20) m |
|
|
16 |
Choòng khoan điện |
Chiếc |
10 |
- L = 1,2 m - Đường kính: 42 mm |
|
|
17 |
Choòng khoan khí ép |
Cái |
10 |
- L = 1,2 m - Đường kính: 42 mm |
|
|
|
|
|
|
|
|
|
TT |
Tên gọi |
ĐVT |
Số lượng |
Yêu cầu kỹ thuật cơ bản |
Ghi chú |
|
1 |
Băng tải |
Bộ |
2 |
- Bề rộng băng: ≥ 400mm - Năng suất: (40÷80) tấn/giờ |
|
|
2 |
Khởi động từ an toàn tia lửa |
Chiếc |
10 |
- Dòng điện: ≤ 80A - Phòng nổ: ExdI |
|
|
3 |
Máng cào |
Bộ |
2 |
- Kích thước cầu máng: - Dài: ≥ 12 m - Rộng: ≥ 450 mm - Năng suất: (30÷40) tấn/giờ |
|
|
4 |
Máy khoan khí ép |
Chiếc |
4 |
- Áp suất khí nén: ≥ 5 kG/cm2 - Đường kính mũi khoan: ≥ 42 mm |
|
|
5 |
Máy nén khí |
Chiếc |
2 |
- Áp suất khí: (6÷7) kG/cm2 - Lưu lượng: ≥ 5 m3/ph |
|
|
6 |
Hệ thống tời trục |
Bộ |
2 |
- Năng suất: ≥ 10 tấn/giờ - Lực kéo: > 150 KN - Cấp phòng nổ: ExdI |
|
|
7 |
Tời manơ |
Chiếc |
2 |
- Lực kéo: >10 KN - Cấp phòng nổ: ExdI |
|
|
8 |
Vì chống kim loại hình thang |
Bộ |
150 |
- Thép chữ U - Tiết diện: ≥ 5,7 m2 |
|
|
9 |
Vì chống kim loại hình vòm |
Bộ |
150 |
- Thép chữ U - Tiết diện: (6,5÷22,5)m2 |
|
|
10 |
Xe goòng |
Chiếc |
10 |
- Dung tích ≥ 650 cm3 |
|
|
11 |
Xe chở vật liệu |
Chiếc |
5 |
- Kích thước (2500 x 1.200 x 1.000)m |
|
|
|
|
|
|
|
|







DANH MỤC CƠ SỞ VẬT CHẤT, TRANG THIẾT BỊ ĐÁNH GIÁ KỸ NĂNG NGHỀ QUỐC GIA
NGHỀ KỸ THUẬT CƠ ĐIỆN MỎ HẦM LÒ Ở CÁC BẬC TRÌNH ĐỘ KỸ NĂNG NGHỀ 1, 2, 3
Bộ trưởng Bộ Lao động - Thương binh và Xã hội)
Danh mục cơ sở vật chất, trang thiết bị đánh giá kỹ năng nghề quốc gia cho nghề Kỹ thuật cơ điện mỏ hầm lò ở các bậc trình độ kỹ năng nghề 1, 2, 3 là danh mục và số lượng tối thiểu về cơ sở vật chất (các phòng chuyên môn, kỹ thuật và nhà, xưởng, mặt bằng) và trang thiết bị (phương tiện, thiết bị, công cụ, dụng cụ tác nghiệp và phương tiện đo kiểm) cần có để tổ chức đánh giá, cấp chứng chỉ kỹ năng nghề quốc gia nghề Kỹ thuật cơ điện mỏ hầm lò ở các bậc trình độ kỹ năng nghề 1, 2, 3.
Danh mục cơ sở vật chất, trang thiết bị đánh giá kỹ năng nghề quốc gia cho nghề Kỹ thuật cơ điện mỏ hầm lò ở các bậc trình độ kỹ năng nghề 1, 2, 3 là điều kiện để cấp giấy chứng nhận hoạt động đánh giá, cấp chứng chỉ kỹ năng nghề quốc gia nghề Kỹ thuật cơ điện mỏ hầm lò ở các bậc trình độ kỹ năng nghề 1, 2, 3 cho các tổ chức đăng ký hoạt động đánh giá, cấp chứng chỉ kỹ năng nghề quốc gia của nghề này.
Các căn cứ xây dựng Danh mục:
- Nghị định số 31/2015/NĐ-CP ngày 24/3/2015 của Chính phủ quy định chi tiết thi hành một số điều của Luật Việc làm về đánh giá, cấp chứng chỉ kỹ năng nghề quốc gia.
- Tiêu chuẩn kỹ năng nghề quốc gia nghề Kỹ thuật cơ điện mỏ hầm lò đã được Bộ trưởng Bộ Công Thương ban hành tại Quyết định số 4837/QĐ-BCT ngày 22/9/2011 của Bộ trưởng Bộ Công thương ban hành Tiêu chuẩn kỹ năng nghề quốc gia đối với các nghề thuộc lĩnh vực công nghiệp.
- Ngân hàng câu hỏi trắc nghiệm, đề thi thực hành nghề Kỹ thuật cơ điện mỏ hầm lò được Tổng cục Giáo dục nghề nghiệp, Bộ Lao động Thương binh và Xã hội tổ chức xây dựng, ban hành và quản lý theo các quy định hiện hành.
- Quy chuẩn kỹ thuật quốc gia QCVN 01:2011/BCT về an toàn trong khai thác than hầm lò (Ban hành kèm theo Thông tư số 03/2011/TT-BCT ngày 15 tháng 02 năm 2011 của Bộ trưởng Bộ Công Thương).
- Quy chuẩn kỹ thuật quốc gia QCVN 04:2017/BCT về an toàn trong khai thác quặng hầm lò (Ban hành theo Thông tư số 31/2017/TT-BCT ngày 28 tháng 12 năm 2017 của Bộ trưởng Bộ Công Thương).
1. Tổng diện tích mặt bằng tối thiểu: 11.800 m2; trong đó:
a) Diện tích xây dựng nhà, xưởng, hệ thống đường lò, hội trường, phòng thi lý thuyết, thực hành, phòng hội đồng: 9.500 m2;
b) Diện tích xây dựng công trình khác (Phòng thay quần áo, nhà ăn, nhà tắm, nhà giặt,...): 1.300 m2;
c) Diện tích mặt bằng kỹ thuật (sân, mặt bằng kỹ thuật): 1.000 m2;
2. Tổng diện tích xây dựng sử dụng tối thiểu: 3.000 m2; trong đó:
a) Diện tích các xưởng, hệ thống đường lò, phòng chuyên môn, kỹ thuật: 1.900 m2;
b) Diện tích các phòng học, hội họp: 800 m2;
c) Diện tích văn phòng, phòng làm việc: 300 m2;
3. Hệ thống phụ trợ:
a) Báo cháy, phòng cháy, chữa cháy: 01 hệ thống.
b) Máy phát điện: 01 máy phát điện dự phòng.
c) Hệ thống kỹ thuật khác (cấp khí, cấp nhiệt, ...): 01 hệ thống cung cấp khí nén.
4. Hệ thống thiết bị giám sát, quan sát, thông tin liên lạc (camera, màn hình): 01 hệ thống camera và màn hình.
5. Trang thông tin điện tử: 01 trang thông tin điện tử riêng.
1. Diện tích tối thiểu sử dụng để thực hiện bài kiểm tra kiến thức:
Số phòng kiểm tra kiến thức có gắn camera giám sát: 01 phòng kiểm tra kiến thức trên máy tính, diện tích 70 m2, bố trí được 50 vị trí kiểm tra và có 2 camera giám sát.
2. Khu vực chờ và quan sát người tham dự thực hiện bài kiểm tra:
Số khu vực chờ và quan sát người tham dự thực hiện bài kiểm tra: 02 khu vực; trong đó:
- Khu vực chờ và quan sát có màn hình kết nối với các camera gắn trong các phòng kiểm tra 01 phòng và có tổng diện tích 50 m2;
- Khu vực chờ và quan sát tại các mặt bằng kỹ thuật 01 khu vực và có tổng diện tích 150 m2.
3. Diện tích tối thiểu sử dụng để thực hiện bài kiểm tra thực hành:
|
TT |
Tên gọi |
ĐVT |
Số lượng |
Yêu cầu kỹ thuật cơ bản |
Ghi chú |
|
1 |
Diện tích mặt bằng khu vực tổ chức đánh giá phần thực hành |
m2 |
8.000 |
Có đủ các công trình xây dựng sử dụng trong kỳ đánh giá và phục vụ phụ trợ. |
|
|
2 |
Hệ thống đường lò |
m |
508 |
- Được cơ quan có tư cách pháp nhân thiết kế và phê duyệt (đơn vị được phép thiết kế mỏ thực hiện) chỉ phục vụ đánh giá kỹ năng nghề và đào tạo nghề; - Không được sử dụng các khai trường mỏ hầm lò đang sản xuất, tạm dừng sản xuất hoặc đã dừng sản xuất để đánh giá phần thực hành. |
Kết nối liên hoàn |
|
|
Bao gồm các đường lò |
|
|
|
|
|
2.1 |
Lò vận tải chính |
m |
50 |
- Kết cấu bằng bê tông cốt thép chiều dầy 0,3 m. - Chống giữ bằng vì chống hình vòm: + Ssd ≥ 9,5 m2; + B ≥ 3.800 mm + H ≥ 2.900 mm |
Hình 1 |
|
2.2 |
Lò thông gió chính |
m |
50 |
- Kết cấu bằng bê tông cốt thép chiều dầy 0,3 m. - Chống giữ bằng vì chống hình vòm: + Ssd ≥ 9,5 m2; + B ≥ 3.800 mm + H ≥ 2.900 mm |
|
|
2.3 |
Lò nghiêng |
m |
40 |
- Kết cấu bằng bê tông cốt thép chiều dầy 0,3 m. - Chống giữ bằng vì chống hình vòm: + Ssd ≥ 6,8 m2; + B ≥ 2.600 mm + H ≥ 2.000 mm + Độ dốc 10° ≤ α ≤ 35° |
Hình 2 |
|
2.4 |
Lò rẽ ngã 3 |
m |
40 |
- Kết cấu bằng bê tông cốt thép chiều dầy 0,3 m. - Chống giữ bằng vì chống hình vòm: + Ssd ≥ 9,5 m2; + B ≥ 3.800 mm + H ≥ 2.900 mm |
|
|
2.5 |
Hầm trạm |
m |
50 |
- Kết cấu bằng bê tông cốt thép chiều dầy 0,3 m. + Ssd ≥ 4,5 m2; + B ≥ 2.200 mm + H ≥ 2.300 mm |
Hình 3 |
|
2.6 |
Đoạn lò dựng vì chống lò bằng |
m |
50 |
- Kết cấu bằng bê tông cốt thép chiều dầy 0,3 m. - Chống giữ bằng vì chống hình vòm: + Ssd ≥ 6,8 m2; + B ≥ 2.600 mm + H ≥ 2.000 mm |
|
|
2.7 |
Đoạn lò dựng vì chống lò nghiêng |
m |
50 |
- Kết cấu bằng bê tông cốt thép chiều dầy 0,3 m. - Chống giữ bằng vì chống hình vòm: + Ssd ≥ 6,8 m2; + B ≥ 2.600 mm + H ≥ 2.000 mm + Độ dốc 10° ≤ α ≤ 35° |
|
|
2.8 |
Đoạn lò dựng vì chống lò giếng đứng |
m |
10 |
- Đường kính giếng ≥ 4 m - Kết cấu bê tông cốt thép, chiều dầy 0,3 m: + Chiều cao đế giếng 0,5 m + Chiều cao thân giếng 8,2 m + Chiều cao cổ giếng 0,8 m - Có đầy đủ thiết bị trục tải, thông gió, thoát nước, hệ thống tín hiệu. |
Hình 4 |
|
2.9 |
Đoạn lò chống giữ bằng vì neo |
m |
30 |
- Kết cấu bằng bê tông cốt thép 2 lớp chiều dầy giữa 2 lớp ≥ 1,6m. - Chống giữ bằng vì chống hình vòm: + Ssd ≥ 9,0 m2; + B ≥ 3.500 mm + H ≥ 2.950 mm |
Hình 5 |
|
2.10 |
Đoạn lò củng cố và khôi phục vì chống |
m |
30 |
- Kết cấu bằng bê tông cốt thép chiều dầy 0,3 m. - Chống giữ bằng vì chống hình vòm: + Ssd ≥ 9,5 m2; + B ≥ 3.800 mm + H ≥ 2.900 mm - Chiều dài nóc rỗng ≥ 3m |
|
|
2.11 |
Đoạn lò xử lý sự cố cháy nổ khí |
m |
30 |
- Kết cấu bằng bê tông cốt thép chiều dầy 0,3 m. - Chống giữ bằng vì chống hình vòm: + Ssd ≥ 6,8 m2; + B ≥ 2.600 mm + H ≥ 2.000 mm - Ốp gạch chịu nhiệt |
|
|
2.12 |
Đoạn lò đào bằng máy Combain |
m |
30 |
- Kết cấu bằng bê tông cốt thép chiều dầy 0,3 m. - Chống giữ bằng vì chống hình vòm: + Ssd ≥ 9,5 m2; + B ≥ 3.800 mm + H ≥ 2.900 mm |
|
|
2.13 |
Lò khai thác chống giữ bằng cột đơn, xà khớp |
m |
15 |
- Kích thước (dài x rộng x cao) > (15,5 x 5,8 x 2,58)m; kết cấu bê tông cốt thép. - Độ dốc 7° ≤ α ≤ 18° |
Hình 6 |
|
2.14 |
Lò khai thác chống giữ giá thủy lực di động (XDY) |
m |
15 |
- Kích thước (dài x rộng x cao) > (15,5 x 5,8 x 2,58)m; kết cấu bê tông cốt thép. - Độ dốc 7° ≤ α ≤ 18° |
|
|
2.15 |
Lò khai thác chống giữ giá khung thủy lực di động (ZH, giá xích). |
m |
15 |
- Kích thước (dài x rộng x cao) > (15,5 x 5,8 x 2,58)m; kết cấu bê tông cốt thép. - Độ dốc 7° ≤ α ≤ 18° |
|
|
2.16 |
Gương khoan |
m |
3 |
- Kết cấu bằng bê tông cốt thép chiều dầy 0,3 m. + Ssd ≥ 4,5 m2; + B ≥ 2.200 mm + H ≥ 2.300 mm |
Hình 7 |
|
3 |
Hệ thống điện |
HT |
1 |
|
|
|
3.1 |
Trạm biến áp |
Trạm |
1 |
- Công suất ≥ 200 KVA - Cấp điện áp sơ cấp/thứ cấp 22/0,4 KV |
|
|
3.2 |
Trạm phát điện điezen |
Trạm |
2 |
- Công suất ≥ 200 KVA - Cấp điện áp 380/220 |
|
|
3.3 |
Hệ thống cung cấp điện cho các thiết bị trong lò |
HT |
2 |
- Trung tính 3 pha cách lý không tiếp đất. - Cáp cao su phòng cháy nổ. |
|
|
3.4 |
Thiết bị đóng cắt cho từng phụ tải |
Cái/phụ tải |
02 |
- Cầu dao tự động phòng nổ hoặc khởi động từ phòng nổ có công suất phù hợp với công suất và điện áp của phụ tải. - Cấp phòng nổ ExdI |
|
|
3.5 |
Đèn chiếu sáng cá nhân |
cái |
100 |
- Điện áp: 3,7 v - Thời gian hoạt động > 11giờ |
|
|
4 |
Hệ thống thông gió |
HT |
1 |
|
|
|
4.1 |
Quạt gió chính |
Chiếc |
2 |
- N ≥ 11 KW - Điện áp 380/660 V - Q ≥ 130 m 3/s - dB (A) ≤ 91 - Hiệu suất (%) ≥ 80 - Cấp phòng nổ EXdl |
|
|
4.2 |
Quạt gió cục bộ |
Chiếc |
2 |
- N ≥ 2,2 KW - Điện áp 380/660 V - Q ≥ 5,2 m 3/s - Cấp phòng nổ ExdI - Hệ số hữu ích toàn phần lớn KDP (%) ≥ 64. |
|
|
4.3 |
Trạm quạt thông gió chính |
Trạm |
1 |
- Kích thước (dài x rộng x cao) ≥ (5 x 3 x 2,2) m; kết cấu bê tông cốt thép. - Độ dốc ≤ 7° |
|
|
5 |
Bơm nước |
Chiếc |
2 |
- N ≥ 4,5 KW - Điện áp 380/660 V - Q ≥ 30 m 3/h - Cấp phòng nổ ExdI |
|
|
6 |
Hệ thống vận tải trong lò |
HT |
1 |
|
|
|
6.1 |
Đường xe gòng |
m |
60 |
- B ≥ 600 mm - Ray P 18, tà vẹt gỗ hoặc bê tông - Ghi điều hướng NO618 - 1/2-4 |
|
|
6.2 |
Xe goòng |
Chiếc |
2 |
- Dung tích ≥ 1000 cm3 |
|
|
6.3 |
Xe chở vật liệu |
Chiếc |
2 |
- Kích thước (2500 x 1.200 x 1.000)m |
|
|
6.3 |
Tời trục vận tải |
HT |
1 |
- Năng suất > 10 tấn/giờ - Lực kéo: ≥ 150 kN - Khoảng xa vận tải > 10 m - Cấp phòng nổ: ExdI |
|
|
6.4 |
Tời Manơ |
cái |
2 |
- Lực kéo: ≥ 10 kN - Khoảng xa vận tải > 30 m - Cấp phòng nổ: ExdI |
|
|
6.5 |
Tàu điện ắc quy |
Chiếc |
4 |
- Trọng lượng 2500kg - Điện áp 48V - Kích thước 2150x920x1460 - Cấp phòng nổ: ExdI |
|
|
6.6 |
Bộ ắc quy |
Chiếc |
8 |
- Điện áp 48V - Dung lượng 330ampe/ giờ - Cấp phòng nổ: ExdI |
|
|
6.7 |
Tủ nạp ắc quy |
Chiếc |
4 |
- Điện áp vào AC - 660/380V - Điện áp ra DC71V - Dòng điện 90A - Cấp phòng nổ: ExdI |
|
|
7 |
Hệ thống cung cấp khí nén |
HT |
1 |
|
|
|
7.1 |
Trạm đặt máy nén khí |
Trạm |
1 |
- Dài x rộng x cao: (2,5 x 4,5) - Đế đổ bê tông cốt thép liền khối |
|
|
7.2 |
Máy nén khí |
Chiếc |
2 |
- N ≥ 11 KW - Q = 5m3/ph - P = 7 at - Cấp phòng nổ Ex |
|
|
8 |
Tàu điện ắc quy |
Chiếc |
4 |
- Trọng lượng 2500kg - Điện áp 48V - Kích thước 2150x920x1460 - Cấp phòng nổ: ExdI |
|
|
9 |
Tủ nạp ắc quy |
Chiếc |
4 |
- Bộ ắc quy điện áp 48V - Dung lượng 330ampe/ giờ - Cấp phòng nổ: ExdI |
|
|
10 |
Máy biến áp chiếu sáng |
Chiếc |
4 |
- Công suất ≤ 4KVA - Điện áp 380,660/133V - Kiểu phòng nổ ExdI |
|
|
11 |
Đèn chiếu sáng phòng nổ |
Chiếc |
50 |
- Kiểu phòng nổ KBB - Điện áp 127V; công suất 60W - Kiểu phòng nổ ExdI |
|
|
12 |
Thiết bị phòng chống cháy |
|
|
|
|
|
12.1 |
Thùng cát |
Thùng |
02 |
Loại thông dụng |
|
|
12.2 |
Bình dập lửa bằng bột |
bình |
10 |
Theo tiêu chuẩn Việt Nam (TCVN) về phòng cháy chữa cháy |
|
|
12.3 |
Bình dập lửa bằng bọt |
bình |
10 |
Theo tiêu chuẩn Việt Nam (TCVN) về phòng cháy chữa cháy |
|
|
13 |
Hệ thống đo khí tự động |
HT |
1 |
|
|
|
13.1 |
Tủ trung tâm |
Cái |
2 |
- Điện áp 220-280VAC - Kênh đo: 40max - Kết nối với các đầu đo CPC-2 & TC-100/P |
|
|
13.2 |
Đầu đo khí |
Cái |
10 |
- Điện áp 12 VDC - Imax 40mA. - Dải đo: 5% và 100%. - Độ phân dải 0.01% ở dải 5% và 1% ở dải 100%. - Dạng bảo vệ nổ: Exial. |
|
|
13.3 |
Đầu đo gió |
Cái |
10 |
- Điện áp 18 VDC - Dòng điện 1÷5mA - Đo gió trong phạm vi 0.3÷5m/s |
|
|
|
|
|
|
|
|
b) Số lượng mặt bằng kỹ thuật: 01 mặt bằng kỹ thuật phục vụ thi thực hành, diện tích 500 m2, bố trí được 50 vị trí kiểm tra.
4. Danh mục trang thiết bị (phương tiện, thiết bị, công cụ, dụng cụ tác nghiệp và phương tiện đo kiểm) tối thiểu để thực hiện bài kiểm tra thực hành:
|
TT |
Tên gọi |
ĐVT |
Số lượng |
Yêu cầu kỹ thuật cơ bản |
Ghi chú |
|
1 |
Máy bơm nước |
cái |
2 |
- Lưu lượng ≤ 20 m3/h; - Công suất ≤ 5,5 KW; - Điện áp 380/660 V - Kiểu phòng nổ ExdI |
|
|
2 |
Quạt gió ly tâm |
Cái |
2 |
- Lưu lượng ≥ 5 m3/giây - Công suất ≤ 5,5 KW; - Điện áp 380/660 V - Kiểu phòng nổ ExdI |
|
|
3 |
Quạt gió dọc trục |
Cái |
2 |
- Lưu lượng ≥ 5 m3/giây - Công suất ≤ 5,5 KW; - Điện áp 380/660 V - Kiểu phòng nổ ExdI |
|
|
3 |
Máng cào |
Cái |
2 |
- Chiều dài ≤ 20m - Công suất ≤ 15 KW; - Điện áp 380/660 V - Kiểu phòng nổ ExdI |
|
|
4 |
Khoan khí ép |
Cái |
10 |
- Áp lực (MPa)0.4-0.63 - Lưu lượng (l/s) ≤ 37 - Năng lượng tác dụng (J) ≥ 38 |
|
|
5 |
Máy nén khí |
Cái |
2 |
- Lưu lượng = 6m3/phút - Áp suất ≤ 7at - Điện áp Uđm = 380(660)V - Kiểu phòng nổ ExdI |
|
|
6 |
Áp tô mát phòng nổ |
Cái |
10 |
I đm ≥ 200A; Uđm = 380(660)V Kiểu phòng nổ ExdI |
|
|
7 |
Khởi động từ phòng nổ |
Cái |
10 |
I đm ≥ 80A; Uđm = 380(660)V Kiểu phòng nổ ExdI |
|
|
8 |
Hộp nút bấm phòng nổ |
Cái |
10 |
LA - 2 ; 36V Kiểu phòng nổ ExdI |
|
|
9 |
Cáp điện phòng nổ |
m |
60 |
3x16+1x10; phòng nổ |
|
|
10 |
Cáp điện |
m |
60 |
3x10+1x6; phòng nổ |
|
|
11 |
Cáp điện phòng nổ |
m |
30 |
3x4+1x2.5; phòng nổ |
|
|
12 |
Ống gió (mềm) |
Chiếc |
30 |
- Φ=(0,2÷0,8)m:L= (5÷20) m |
|
|
13 |
Cọc tiếp đất cục bộ |
Cái |
12 |
L= 1,5m theo tiêu chuẩn |
|
|
14 |
Dây tiếp đất |
m |
|
Φ=16mm |
|
|
|
|
|
|
|
|
|
TT |
Tên gọi |
ĐVT |
Số lượng |
Yêu cầu kỹ thuật cơ bản |
Ghi chú |
|
1 |
Máy bơm nước |
cái |
2 |
- Lưu lượng ≤ 20 m3/h; - Công suất ≤ 5,5 KW; - Điện áp 380/660 V - Kiểu phòng nổ ExdI |
|
|
2 |
Quạt gió ly tâm |
Cái |
2 |
- Lưu lượng ≥ 5 m3/giây - Công suất ≤ 15,5 KW; - Điện áp 380/660 V - Kiểu phòng nổ ExdI |
|
|
3 |
Quạt gió dọc trục |
Cái |
2 |
- Lưu lượng ≥ 5 m3/giây - Công suất ≤ 15,5 KW; - Điện áp 380/660 V - Kiểu phòng nổ ExdI |
|
|
4 |
Máy nén khí |
Cái |
2 |
- Lưu lượng = 6m3/phút - Áp suất ≤ 7at - Điện áp Uđm = 380(660)V - Kiểu phòng nổ ExdI |
|
|
5 |
Máng cào |
Cái |
2 |
- Chiều dài ≤ 20m - Công suất ≤ 15KW; - Điện áp 380/660 V - Kiểu phòng nổ ExdI |
|
|
6 |
Tời trục |
Cái |
2 |
- Đường kính tang ≤ 600mm - Chiều rộng tang ≤ 500mm - Công suất ≤ 15KW - Điện áp 380/660V |
|
|
7 |
Áp tô mát phòng nổ |
Cái |
10 |
I đm ≥ 200A; Uđm = 380(660) V Kiểu phòng nổ ExdI |
|
|
8 |
Khởi động từ đơn phòng nổ |
Cái |
10 |
I đm ≥ 80A; Uđm = 380(660) V Kiểu phòng nổ ExdI |
|
|
9 |
Khởi động từ kép phòng nổ |
|
2 |
I đm ≥ 80A; Uđm = 380(660)V Kiểu phòng nổ ExdI |
|
|
10 |
Hộp nút bấm phòng nổ |
Cái |
10 |
LA - 2 ; 36V Kiểu phòng nổ ExdI |
|
|
11 |
Hộp nút bấm phòng nổ |
Cái |
2 |
LA - 3 ; 36V Kiểu phòng nổ ExdI |
|
|
12 |
Cáp điện phòng nổ |
m |
60 |
3 x 16 + 1 x 10; phòng nổ |
|
|
13 |
Cáp điện phòng nổ |
m |
60 |
3 x 10 + 1 x 6; phòng nổ |
|
|
14 |
Cáp điện phòng nổ |
m |
30 |
3 x 4+1 x 2.5; phòng nổ |
|
|
15 |
Ống gió (mềm) |
Chiếc |
30 |
- Φ=(0,2÷0,8)m:L= (5÷20) m |
|
|
16 |
Cọc tiếp đất cục bộ |
Cái |
12 |
L= 1,5m theo tiêu chuẩn |
|
|
17 |
Dây tiếp đất |
m |
30 |
Φ= 16mm |
|
|
|
|
|
|
|
|
|
TT |
Tên gọi |
ĐVT |
Số lượng |
Yêu cầu kỹ thuật cơ bản |
Ghi chú |
|
1 |
Máy bơm nước |
cái |
3 |
- Lưu lượng ≤ 20 m3/h; - Công suất ≤ 5,5 KW; - Điện áp 380/660 V - Kiểu phòng nổ ExdI |
|
|
2 |
Quạt gió ly tâm |
Cái |
3 |
- Lưu lượng ≥ 5 m3/giây - Công suất ≤ 15,5 KW; - Điện áp 380/660 V - Kiểu phòng nổ ExdI |
|
|
3 |
Tổ hợp khoan |
Cái |
5 |
- Công suất ≤ 4KVA - Điện áp 380,660/133V - Kiểu phòng nổ ExdI |
|
|
4 |
Tời trục |
Cái |
4 |
- Đường kính tang ≤ 600mm - Chiều rộng tang ≤ 500mm - Công suất ≤ 15KW - Điện áp 380/660V |
|
|
5 |
Băng tải |
Cái |
3 |
- Chiều dài ≤ 20m - Công suất ≤ 7,5 KW; - Điện áp 380/660 V - Kiểu phòng nổ ExdI |
|
|
6 |
Áp tô mát phòng nổ |
Cái |
18 |
I đm ≥ 200A; Uđm = 380(660) V Kiểu phòng nổ ExdI |
|
|
7 |
Khởi động từ đơn phòng nổ |
Cái |
12 |
1 đm ≥ 80A; Uđm = 380(660) V Kiểu phòng nổ ExdI |
|
|
8 |
Khởi động từ kép phòng nổ |
|
4 |
I đm ≥ 80A; Uđm = 380(660) V Kiểu phòng nổ ExdI |
|
|
9 |
Hộp nút bấm phòng nổ |
Cái |
10 |
LA - 2 ; 36V Kiểu phòng nổ ExdI |
|
|
10 |
Hộp nút bấm phòng nổ |
Cái |
4 |
LA - 3 ; 36V Kiểu phòng nổ ExdI |
|
|
11 |
Cáp điện phòng nổ |
m |
60 |
3 x 16 + 1 x 10; phòng nổ |
|
|
12 |
Cáp điện phòng nổ |
m |
60 |
3 x 10 + 1 x 6; phòng nổ |
|
|
13 |
Cáp điện phòng nổ |
m |
30 |
3 x 4 + 1 x 2.5; phòng nổ |
|
|
14 |
Ống gió (mềm) |
Chiếc |
30 |
- Φ=(0,2÷0,8)m:L= (5÷20)m |
|
|
15 |
Cọc tiếp đất cục bộ |
Cái |
12 |
L= 1,5m theo tiêu chuẩn |
|
|
16 |
Dây tiếp đất |
m |
30 |
Φ=16mm |
|
|
|
|
|
|
|
|







Bạn chưa Đăng nhập thành viên.
Đây là tiện ích dành cho tài khoản thành viên. Vui lòng Đăng nhập để xem chi tiết. Nếu chưa có tài khoản, vui lòng Đăng ký tại đây!
Bạn chưa Đăng nhập thành viên.
Đây là tiện ích dành cho tài khoản thành viên. Vui lòng Đăng nhập để xem chi tiết. Nếu chưa có tài khoản, vui lòng Đăng ký tại đây!