- Tổng quan
- Nội dung
- VB gốc
- Tiếng Anh
- Hiệu lực
- VB liên quan
- Lược đồ
-
Nội dung hợp nhất
Tính năng này chỉ có tại LuatVietnam.vn. Nội dung hợp nhất tổng hợp lại tất cả các quy định còn hiệu lực của văn bản gốc và các văn bản sửa đổi, bổ sung, đính chính... trên một trang. Việc hợp nhất văn bản gốc và những văn bản, Thông tư, Nghị định hướng dẫn khác không làm thay đổi thứ tự điều khoản, nội dung.
Khách hàng chỉ cần xem Nội dung hợp nhất là có thể nắm bắt toàn bộ quy định hiện hành đang áp dụng, cho dù văn bản gốc đã qua nhiều lần chỉnh sửa, bổ sung.
- Tải về
Thông tư 79/2015/TT-BGTVT Quy chuẩn về Trung tâm sát hạch lái xe cơ giới đường bộ
| Cơ quan ban hành: | Bộ Giao thông Vận tải |
Số công báo:
Số công báo là mã số ấn phẩm được đăng chính thức trên ấn phẩm thông tin của Nhà nước. Mã số này do Chính phủ thống nhất quản lý.
|
Đã biết
|
| Số hiệu: | 79/2015/TT-BGTVT | Ngày đăng công báo: | Đang cập nhật |
| Loại văn bản: | Thông tư | Người ký: | Đinh La Thăng |
|
Ngày ban hành:
Ngày ban hành là ngày, tháng, năm văn bản được thông qua hoặc ký ban hành.
|
10/12/2015 |
Ngày hết hiệu lực:
Ngày hết hiệu lực là ngày, tháng, năm văn bản chính thức không còn hiệu lực (áp dụng).
|
Đã biết
|
|
Áp dụng:
Ngày áp dụng là ngày, tháng, năm văn bản chính thức có hiệu lực (áp dụng).
|
Đã biết
|
Tình trạng hiệu lực:
Cho biết trạng thái hiệu lực của văn bản đang tra cứu: Chưa áp dụng, Còn hiệu lực, Hết hiệu lực, Hết hiệu lực 1 phần; Đã sửa đổi, Đính chính hay Không còn phù hợp,...
|
Đã biết
|
| Lĩnh vực: | Giao thông |
TÓM TẮT THÔNG TƯ 79/2015/TT-BGTVT
Quy chuẩn kỹ thuật quốc gia về Trung tâm sát hạch lái xe cơ giới đường bộ
Ngày 10/12/2015, Bộ Giao thông Vận tải đã ban hành Thông tư 79/2015/TT-BGTVT về việc ban hành Quy chuẩn kỹ thuật quốc gia về Trung tâm sát hạch lái xe cơ giới đường bộ. Thông tư này có hiệu lực từ ngày 01/04/2016.
Thông tư này áp dụng cho các tổ chức và cá nhân có liên quan đến việc xây dựng, quản lý và vận hành các trung tâm sát hạch lái xe cơ giới đường bộ trên toàn quốc.
Ban hành Quy chuẩn kỹ thuật quốc gia
Thông tư ban hành kèm theo Quy chuẩn kỹ thuật quốc gia về Trung tâm sát hạch lái xe cơ giới đường bộ, mã số QCVN 40:2015/BGTVT. Quy chuẩn này quy định các tiêu chuẩn kỹ thuật cần thiết để đảm bảo an toàn và hiệu quả trong việc sát hạch lái xe cơ giới.
Bãi bỏ Thông tư cũ
Thông tư 79/2015/TT-BGTVT cũng bãi bỏ Thông tư số 18/2012/TT-BGTVT ngày 06/06/2012, trước đây đã ban hành Quy chuẩn kỹ thuật quốc gia về Trung tâm sát hạch lái xe cơ giới đường bộ. Việc bãi bỏ này nhằm cập nhật và thay thế bằng các quy chuẩn mới phù hợp hơn với thực tế và yêu cầu hiện tại.
Trách nhiệm thi hành
Các cơ quan, đơn vị thuộc Bộ Giao thông Vận tải, cùng với các tổ chức và cá nhân có liên quan, chịu trách nhiệm thi hành Thông tư này. Điều này đảm bảo rằng các quy chuẩn mới được thực hiện đồng bộ và hiệu quả trên toàn quốc.
Văn bản này được thay thế bởi 49/2024/TT-BGTVT
Xem chi tiết Thông tư 79/2015/TT-BGTVT có hiệu lực kể từ ngày 01/04/2016
Tải Thông tư 79/2015/TT-BGTVT
|
BỘ GIAO THÔNG VẬN TẢI Số: 79/2015/TT-BGTVT |
CỘNG HÒA XÃ HỘI CHỦ NGHĨA VIỆT NAM Hà Nội, ngày 10 tháng 12 năm 2015 |
THÔNG TƯ
BAN HÀNH QUY CHUẨN KỸ THUẬT QUỐC GIA
VỀ TRUNG TÂM SÁT HẠCH LÁI XE CƠ GIỚI ĐƯỜNG BỘ
Căn cứ Luật Tiêu chuẩn và Quy chuẩn kỹ thuật ngày 29 tháng 6 năm 2006;
Căn cứ Nghị định số 127/2007/NĐ-CP ngày 01 tháng 8 năm 2007 của Chính phủ quy định chi tiết thi hành một số điều của Luật Tiêu chuẩn và Quy chuẩn kỹ thuật;
Căn cứ Nghị định số 107/2012/NĐ-CP ngày 20 tháng 12 năm 2012 của Chính phủ quy định chức năng, nhiệm vụ, quyền hạn và cơ cấu tổ chức của Bộ Giao thông vận tải;
Theo đề nghị của Vụ trưởng Vụ Khoa học - Công nghệ và Tổng cục trưởng Tổng cục Đường bộ Việt Nam,
Bộ trưởng Bộ Giao thông vận tải ban hành Thông tư ban hành Quy chuẩn kỹ thuật quốc gia về Trung tâm sát hạch lái xe cơ giới đường bộ.
Điều 1. Ban hành kèm theo Thông tư này Quy chuẩn kỹ thuật quốc gia về Trung tâm sát hạch lái xe cơ giới đường bộ.
Mã số: QCVN 40:2015/BGTVT.
Điều 2. Thông tư này có hiệu lực thi hành kể từ ngày 01 tháng 4 năm 2016. Bãi bỏ Thông tư số 18/2012/TT-BGTVT ngày 06 tháng 6 năm 2012 của Bộ trưởng Bộ Giao thông vận tải ban hành Quy chuẩn kỹ thuật quốc gia về Trung tâm sát hạch lái xe cơ giới đường bộ.
Điều 3. Chánh Văn phòng Bộ, Chánh Thanh tra Bộ, các Vụ trưởng, Tổng cục trưởng Tổng cục Đường bộ Việt Nam, Thủ trưởng các cơ quan, đơn vị thuộc Bộ Giao thông vận tải, các tổ chức và cá nhân có liên quan chịu trách nhiệm thi hành Thông tư này.
|
Nơi nhận: |
BỘ TRƯỞNG |
QCVN 40:2015/BGTVT
QUY CHUẨN KỸ THUẬT QUỐC GIA VỀ TRUNG TÂM SÁT HẠCH LÁI XE CƠ GIỚI ĐƯỜNG BỘ
National technical regulation on road motor vehicles Driving Test Center
Lời nói đầu
Quy chuẩn kỹ thuật quốc gia QCVN 40: 2015/BGTVT về Trung tâm sát hạch lái xe cơ giới đường bộ do Tổng cục Đường bộ Việt Nam biên soạn, Bộ Khoa học và Công nghệ thẩm định, Vụ Khoa học - Công nghệ trình Bộ trưởng Bộ Giao thông vận tải ban hành theo Thông tư số 79/2015/TT-BGTVT ngày 10 tháng 12 năm 2015.
QCVN 40:2015/BGTVT thay thế QCVN 40:2012/BGTVT.
QUY CHUẨN KỸ THUẬT QUỐC GIA VỀ TRUNG TÂM SÁT HẠCH LÁI XE CƠ GIỚI ĐƯỜNG BỘ
National technical regulation on road motor vehicles Driving Test Center
1. QUY ĐỊNH CHUNG
Quy chuẩn này quy định các yêu cầu kỹ thuật về cơ sở vật chất, phương tiện và trang thiết bị đối với Trung tâm sát hạch lái xe cơ giới đường bộ (sau đây gọi chung là Trung tâm).
Quy chuẩn này áp dụng đối với tổ chức và cá nhân liên quan đến xây dựng, cung cấp thiết bị và quản lý hoạt động của Trung tâm.
Trong Quy chuẩn này các từ ngữ dưới đây được hiểu như sau:
1.3.1. Trung tâm loại 1: là nơi thực hiện sát hạch để cấp giấy phép lái xe các hạng A1, A2, A3, A4, B1, B2, C, D, E và các hạng F (FB2, FC, FD, FE);
1.3.2. Trung tâm loại 2: là nơi thực hiện sát hạch để cấp giấy phép lái xe các hạng A1, A2, A3, A4, B1, B2 và hạng C;
1.3.3. Trung tâm loại 3: là nơi thực hiện sát hạch để cấp giấy phép lái xe các hạng A1, A2, A3 và hạng A4;
1.3.4. Máy kéo nhỏ: là phương tiện giao thông cơ giới đường bộ chạy bằng động cơ, được liên kết với thùng chở hàng thông qua khớp nối, lái bằng càng hoặc vô lăng lái, có bốn bánh xe (hai bánh của thùng chở hàng và hai bánh của đầu kéo).
2. QUY ĐỊNH KỸ THUẬT
2.1.1. Trung tâm phải có đủ cơ sở vật chất, trang thiết bị kỹ thuật đáp ứng yêu cầu sát hạch lái xe theo nội dung và quy trình sát hạch lái xe được Bộ trưởng Bộ Giao thông vận tải ban hành, được đặt ở nơi có đường giao thông thuận tiện, có điều kiện về cung cấp điện, nước, thoát nước, thông tin liên lạc, không bị nhiễu loạn điện từ ảnh hưởng đến các thiết bị báo lỗi và chấm điểm lắp đặt tại Trung tâm.
2.1.5. Trung tâm phải có đủ phương tiện, thiết bị, lực lượng lao động thu gom, lưu giữ rác thải sinh hoạt theo quy định; trồng cây xanh xung quanh sân sát hạch hoặc có biện pháp giảm thiểu ảnh hưởng của tiếng ồn, bụi và khí xả từ xe cơ giới dùng để sát hạch; niêm yết quy định về giữ gìn vệ sinh môi trường ở nơi công cộng.
2.1.6. Trung tâm phải xây dựng, lắp đặt và duy trì tình trạng kỹ thuật của hệ thống chống sét và các trang thiết bị phòng, chống cháy nổ theo quy định, được cơ quan có thẩm quyền chứng nhận đảm bảo an toàn.
2.1.7. Trung tâm phải trang bị máy phát điện dự phòng có thể tự động phát điện trong khoảng thời gian không quá 10 phút, kể từ khi mất nguồn điện lưới với công suất tối thiểu 10 kVA đối với Trung tâm loại 3 và 20 kVA đối với Trung tâm loại 1 hoặc loại 2.
2.1.8. Trung tâm phải trang bị các thiết bị hỗ trợ sau:
a. Bộ đàm thông tin nội bộ: tối thiểu 02 bộ đối với Trung tâm loại 3 và 04 bộ đối với Trung tâm loại 1 hoặc loại 2.
b. Hệ thống âm thanh: tối thiểu 01 bộ loa phóng thanh để thông báo công khai kết quả, lỗi trừ điểm của người dự sát hạch.
c. Hệ thống màn hình hiển thị đối với Trung tâm loại 3: có ít nhất 03 màn hình loại 32 inch trở lên tại phòng chờ sát hạch để công khai quá trình giám sát phòng sát hạch lý thuyết, kết quả sát hạch lý thuyết, kết quả sát hạch lái xe trong hình.
d. Hệ thống màn hình hiển thị đối với Trung tâm loại 1 hoặc loại 2: có ít nhất 05 màn hình loại 32 inch trở lên, trong đó, phải bố trí 01 màn hình tại phòng Hội đồng sát hạch để giám sát phòng sát hạch lý thuyết, 04 màn hình tại phòng chờ sát hạch để hiển thị kết quả sát hạch lý thuyết, kết quả sát hạch lái xe trong hình, kết quả sát hạch lái xe trên đường và giám sát phòng sát hạch lý thuyết.
đ. Camera lắp tại phòng sát hạch lý thuyết, có số điểm ảnh tối thiểu 0,3 mega pixels, độ phân dải tối thiểu 320x240, định dạng hình ảnh JPEG, tiêu cự tối thiểu 2,8 mm, góc quan sát tối thiểu 90°, độ sáng tối thiểu 5 Lux, tầm nhìn trong đêm tối thiểu 3 m, có nối với màn hình hiển thị và thiết bị lưu trữ hình ảnh tối thiểu 40 giờ.
2.1.9. Đoạn đường sát hạch lái xe trên đường giao thông công cộng, có độ dài tối thiểu 02 km, có các tình huống như: đường giao nhau đồng mức, đường bị hẹp, có chỗ được phép quay đầu xe, có mật độ giao thông trung bình.
2.2.1. Sân sát hạch: Là nơi bố trí đủ hình của các bài sát hạch lái xe theo quy định; cho phép chưa bố trí hình của các bài sát hạch lái xe hạng A1, A2, A3, A4 và các hạng F khi chưa có nhu cầu sát hạch.
2.2.1.1. Bố trí mặt bằng: Sân sát hạch phải được bố trí trên một thửa đất hoặc nhiều thửa đất liền kề, được chia thành các khu vực riêng biệt, gồm: sân sát hạch lái xe hạng A1, A2, A3, A4 và F; sân sát hạch lái xe hạng B1, B2, C, D và E.
2.2.1.2. Sân sát hạch phải đảm bảo để các xe ô tô sát hạch chỉ tiến về phía trước theo làn đường thuận chiều, không rẽ cắt ngang các làn đường khác (trừ ngã tư có đèn tín hiệu điều khiển giao thông), không vi phạm vạch phân làn trên đường khi chuyển hướng và không được lặp lại quãng đường đã tiến về phía trước.
2.2.1.4. Làn đường trong sân sát hạch có chiều rộng tối thiểu 3,5 m; làn đường và hình sát hạch được thảm bê tông nhựa hoặc bê tông xi măng, bảo đảm chất lượng bề mặt như sau:
+ Đối với mặt làn đường và hình sát hạch thảm bê tông nhựa: Thông số mô đun đàn hồi yêu cầu tối thiểu là 110 Mpa;
+ Đối với mặt làn đường và hình sát hạch thảm bê tông xi măng: Cường độ chịu nén yêu cầu tối thiểu là 30 Mpa
Trong sân sát hạch phải bố trí hệ thống thoát nước đảm bảo làn đường và hình sát hạch không bị đọng nước khi trời mưa.
2.2.1.5. Đèn tín hiệu giao thông, biển báo hiệu đường bộ, vạch tín hiệu giao thông trên mặt đường trong sân sát hạch phải bố trí đầy đủ, đúng quy cách, kiểu loại quy định tại Quy chuẩn kỹ thuật quốc gia QCVN 41: 2015/BGTVT “Quy chuẩn kỹ thuật quốc gia về báo hiệu đường bộ”.
2.2.1.6. Vạch giới hạn hình các bài sát hạch có chiều rộng 0,1 m, cách bó vỉa hình sát hạch tối thiểu 0,1 m.
2.2.1.7. Bó vỉa hình sát hạch có chiều cao tối thiểu 0,15 m (trừ hình sát hạch lái xe hạng A1, A2).
2.2.1.8. Cọc chuẩn trong sân sát hạch được sơn hai màu trắng và đỏ, mỗi khoang sơn dài 0,15 m, đường kính từ 20 mm đến 25 mm có chiều cao 1,6 m.
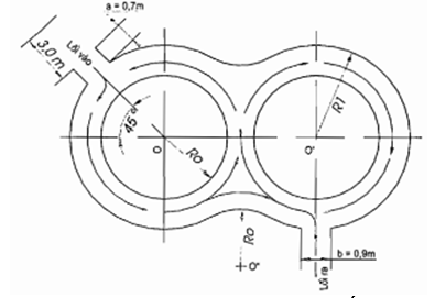
2.2.1.9. Hình của bài sát hạch lái xe hạng A1, A2
a. Hình số 8 (Hình 1)
Bảng 1: Thông số kích thước bài sát hạch hình số 8
Kích thước tính bằng mét
|
Thông số kích thước |
Hạng A1 |
Hạng A2 |
|
Bán kính vòng ngoài R1 |
3,0 |
3,4 |
|
Bán kính vòng trong và bán kính điểm uốn nối tiếp giữa hai vòng tròn ngoài Ro |
2,3 |
2,5 |
|
Khoảng cách tâm giữa hai vòng tròn trong OO’ |
5,7 |
6,3 |
|
Khoảng cách tâm giữa vòng tròn trong và vòng uốn nối tiếp OO” = O’O” |
5,3 |
5,9 |

Hình 1: Hình bài sát hạch hình số 8
b. Vạch đường thẳng (Hình 2)
Bảng 2: Thông số kích thước bài sát hạch vạch đường đi thẳng
Kích thước tính bằng mét
|
Thông số kích thước |
Ký hiệu |
Hạng A1 |
Hạng A2 |
|
Chiều dài |
Lt |
18,0 |
27 |
|
Chiều rộng |
Bt |
0,6 |
0,6 |
|
Màu sơn |
|
Trắng |
Trắng |

Hình 2: Hình bài sát hạch vạch đường đi thẳng
c. Đường có vạch cản (Hình 3)
Bảng 3: Thông số kích thước hình bài sát hạch đường có vạch cản
Kích thước tính bằng mét
|
Thông số kích thước |
Hạng A1 |
Hạng A2 |
|
Chiều dài đoạn đường có vạch cản (Lt) |
18,0 |
27,0 |
|
Khoảng cách giữa các vạch cản |
4,5 |
4,5 |
|
Chiều rộng làn đường có vạch cản |
3,0 |
3,0 |
|
Chiều dài vạch cản |
1,5 |
1,5 |
|
Chiều rộng vạch cản |
0,1 |
0,1 |
|
Màu sơn vạch cản |
Trắng |
Trắng |

Hình 3: Hình bài sát hạch đường có vạch cản
d. Đường gồ ghề (Hình 4)
Bảng 4: Thông số kích thước hình bài sát hạch đường gồ ghề
Kích thước tính bằng mét
|
Thông số kích thước |
Hạng A1 |
Hạng A2 |
|
Chiều dài đoạn đường gồ ghề |
15,0 |
15,0 |
|
Chiều dài dải gồ ghề |
0,9 |
0,9 |
|
Chiều rộng đế dải gồ ghề |
0,2 |
0,2 |
|
Chiều rộng đỉnh dải gồ ghề |
0,1 |
0,1 |
|
Chiều cao dải gồ ghề |
0,05 |
0,05 |
|
Khoảng cách giữa các dải gồ ghề |
1,5 |
1,7 |
|
Vật liệu dải gồ ghề |
Cứng, không đàn hồi |
Cứng, không đàn hồi |
|
Màu sơn trên mặt dải gồ ghề |
Trắng |
Trắng |

Hình 4: Hình bài sát hạch đường gồ ghề
2.2.1.10. Hình của bài sát hạch lái xe hạng A3, A4 (Hình 5)
Là hình chữ chi, do 04 hình bình hành nối tiếp nhau theo chiều ngược lại, có kích thước như sau:
a. BCM (m) là chiều rộng ở đỉnh hình chữ chi: BCM = bM + 0,6 (m).
bM (m) là chiều rộng của xe cơ giới dùng để sát hạch.
b. LCM (m) là chiều dài hình bình hành tính theo phương nằm ngang:
LCM = 1,5aM
aM (m) là chiều dài toàn bộ của xe cơ giới dùng để sát hạch.

Hình 5: Hình bài sát hạch lái xe hạng A3, A4
2.2.1.11. Hình của bài sát hạch lái xe hạng B1, B2, C, D và E
Ký hiệu kỹ thuật sử dụng trong Hình 9, Hình 11, Hình 12 và hình 13 dưới đây được hiểu như sau:
a. B1: Chiều rộng bánh sau bên lái phụ của xe ô tô sát hạch, đơn vị tính là mét.
b. a: Chiều dài toàn bộ của ô tô sát hạch, đơn vị tính là mét.
c. b: Chiều rộng toàn bộ của ô tô sát hạch, đơn vị tính là mét.
d. Rqv: Bán kính quay vòng nhỏ nhất của ô tô sát hạch theo vết bánh xe trước phía ngoài, đơn vị tính là mét.
2.2.1.11.1. Xuất phát và kết thúc (Hình 6)
Trên mặt đường kẻ một vạch ngang vuông góc với trục dọc của đường theo quy cách “vạch dừng lại” của Quy chuẩn kỹ thuật quốc gia QCVN 41: 2015 về báo hiệu đường bộ, phía trước vạch có kẻ chữ: “XUẤT PHÁT” hoặc “KẾT THÚC”.
Ô tô sát hạch dừng trước vạch này chờ tín hiệu và thực hiện các thao tác khi khởi hành xe để thực hiện bài xuất phát.
Ô tô sát hạch đi qua vạch này khi kết thúc bài sát hạch.

Hình 6: Hình bài sát hạch xuất phát
2.2.1.11.2. Dừng xe nhường đường cho người đi bộ (Hình 7)
Tại vị trí người đi bộ qua đường kẻ vạch “vạch dừng lại”, vạch “đi bộ qua đường vuông góc” và lắp các biển báo: “dừng lại” và “đường người đi bộ sang ngang” để yêu cầu ô tô sát hạch dừng xe nhường đường cho người đi bộ.

Hình 7: Hình bài sát hạch nhường đường cho người đi bộ
2.2.1.11.3. Dừng và khởi hành xe trên dốc (Hình 8)
Trên đường dốc lên có chiều dài 15 m, độ dốc 10 %, cách chân dốc tối thiểu 06 m kẻ vạch “vạch dừng lại” và lắp biển báo: “dừng lại” để yêu cầu ô tô sát hạch dừng và khởi hành xe trên dốc.

Hình 8: Hình bài sát hạch dừng và khởi hành xe trên dốc
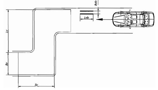
2.2.1.11.4. Qua vệt bánh xe và đường vòng vuông góc (Hình 9)
Mỗi hạng xe sát hạch phải bố trí tối thiểu 01 hình qua vệt bánh xe và đường vòng vuông góc.
Hình vệt bánh xe nằm phía bên phải theo chiều xe chạy, gồm 02 vạch dọc song song với nhau và song song với trục dọc của đường; sau hình vệt bánh xe kẻ 02 hình vuông góc nối tiếp với nhau theo chiều ngược lại, có:
- Bvb (m) là chiều rộng vệt bánh xe: Bvb = B1 + 0,2 (m);
- Lvb (m) là chiều dài vệt bánh xe: Lvb = a;
- Sv (m) là chiều sâu đường vuông góc: Sv = 1,5a
- Lv (m) là chiều dài đường vuông góc: Lv = 2,0a
- Bv (m) là chiều rộng làn đường vuông góc: Bv = 2,2b.

Hình 9: Hình bài sát hạch qua vệt bánh xe và đường vòng vuông góc
2.2.1.11.5. Ngã tư (Hình 10)
Tại nơi giao nhau giữa hai đường hai chiều cùng cấp, lắp hệ thống đèn tín hiệu điều khiển giao thông, kẻ vạch “vạch dừng lại”, vạch “đi bộ qua đường vuông góc” và lắp biển báo “hướng đi phải theo”, biển “đường giao nhau” và biển “giao nhau có tín hiệu đèn” để yêu cầu ô tô sát hạch dừng xe tại ngã tư theo tín hiệu đèn điều khiển giao thông để nhường đường cho người đi bộ.

Hình 10: Hình bài sát hạch qua ngã tư
2.2.1.11.6. Qua đường vòng quanh co (Hình 11)
Mỗi hạng xe sát hạch phải bố trí tối thiểu 01 hình qua đường vòng quanh co.
Hình gồm 02 nửa hình vòng tròn nối tiếp với nhau ngược chiều, tạo thành hình chữ S, có:
- Bqc(m): Chiều rộng đường vòng quanh co: Bqc = 2,2b;
- RN(m) là bán kính cong của vòng tròn phía ngoài: Rn = Rqv + 1,2 m;
- Rtr (m) là bán kính cong của vòng tròn phía trong: Rtr = Rn - Bqc;
- Sqc(m) là khoảng cách tâm của 02 nửa hình vòng tròn: Sqc = RN + Rtr.

Hình 11: Hình bài sát hạch qua đường vòng quanh co
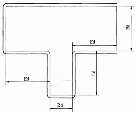
2.2.1.11.7. Ghép xe dọc vào nơi đỗ đối với hạng B và hạng C (Hình 12)
Mỗi hạng xe sát hạch (hạng B, C) phải bố trí tối thiểu 01 hình ghép xe dọc vào nơi đỗ. Hình bố trí bên cạnh làn đường xe chạy, có:
- Ld (m) là chiều dài nơi ghép xe dọc: Ld = a + 1,0 (m);
- Rd (m) là chiều rộng nơi ghép xe dọc: Rd = b + 0,6 (m);
- Ed (m) là khoảng khống chế để lùi vào nơi ghép xe dọc: Ed = 1,2a.

Hình 12: Hình bài sát hạch ghép xe dọc vào nơi đỗ đối với hạng B và hạng C
2.2.1.11.8. Ghép xe ngang vào nơi đỗ đối với hạng B1, B2 (Hình 13)
Phải bố trí tối thiểu 01 hình ghép xe ngang vào nơi đỗ. Hình bố trí phía bên phải làn đường (theo hướng xe chạy), có:
Lg (m) là chiều dài nơi đỗ xe: Lg = 3a/2;
Rg (m) là chiều rộng nơi đỗ xe: Rg = 5b/4.

Hình 13: Hình bài sát hạch ghép xe ngang vào nơi đỗ đối với hạng B1, B2
2.2.1.11.9. Ghép xe ngang vào nơi đỗ đối với hạng D và hạng E (Hình 14)
Mỗi hạng xe sát hạch (hạng D, E) phải bố trí tối thiểu 01 hình ghép xe ngang vào nơi đỗ. Hình bố trí phía bên phải làn đường (theo hướng xe chạy), có:
Lg (m) là chiều dài nơi đỗ xe: Lg = 5a/3;
Rg (m) là chiều rộng nơi đỗ xe: Rg = 5b/4.

Hình 14: Hình bài sát hạch ghép xe ngang vào nơi đỗ đối với hạng D và E
2.2.1.11.10. Tạm dừng ở chỗ có đường sắt chạy qua (Hình 15)
Trên mặt đường bố trí 02 thanh ray đường sắt, tạo tình huống giả định có đường bộ giao nhau với đường sắt không có rào chắn, không có người điều khiển giao thông; cách ray ngoài cùng của đường sắt tối thiểu 5,0 m kẻ vạch “vạch dừng lại” và lắp biển báo “giao nhau với đường sắt không có rào chắn”, biển “nơi đường sắt giao vuông góc với đường bộ” và biển báo: “dừng lại” để yêu cầu dừng ô tô sát hạch ở chỗ có đường sắt chạy qua.

Hình 15: Hình bài sát hạch tạm dừng ở chỗ có đường sắt chạy qua
2.2.1.11.11. Thay đổi số trên đường bằng (Hình 16)
Trên đoạn đường bằng có độ dài tối thiểu 100 m, cách đầu đoạn đường tối thiểu 20 m lắp biển báo phụ thứ nhất “bắt đầu tăng số, tăng tốc độ” và cách biển báo phụ thứ nhất 25 m lắp biển báo phụ thứ hai “bắt đầu giảm số, giảm tốc độ”, cách biển báo phụ thứ hai 25 m lắp biển báo phụ “kết thúc giảm số, giảm tốc độ”.

Hình 16: Hình bài sát hạch thay đổi số trên đường bằng
2.2.1.11.12. Tình huống nguy hiểm
Trong sân sát hạch, ngoài các bài sát hạch, bố trí vị trí xuất hiện tình huống nguy hiểm (05 vị trí đối với Trung tâm loại 1 và 03 vị trí đối với Trung tâm loại 2) để yêu cầu người dự sát hạch phanh dừng xe, bật thông báo tín hiệu nguy hiểm, tắt thông báo tín hiệu nguy hiểm trước khi cho xe khởi hành trong thời gian quy định.
2.2.1.12. Hình của bài sát hạch lái xe hạng FB2, FD và FE (Hình 17)
Là hình đi qua 05 cọc chuẩn A, B, C, D và E với khoảng cách các cọc AB = BC = CD = DE = LCF = 1,4aF.
Trong đó: aF (m) là chiều dài toàn bộ của xe cơ giới dùng để sát hạch.

Hình 17: Hình bài sát hạch đi qua 05 cọc chuẩn hạng FB2, FD và hạng FE
2.2.1.13. Hình của bài sát hạch lái xe hạng FC
2.2.1.13.1. Hình đi qua 05 cọc chuẩn (Hình 18):
Là hình đi qua 05 cọc chuẩn A, B, C, D và E với khoảng cách các cọc AB = BC = CD = DE = LCF = 1,4aF.
Trong đó: aF (m) là chiều dài toàn bộ của xe cơ giới dùng để sát hạch.

Hình 18: Hình bài sát hạch đi qua 05 cọc chuẩn hạng FC
2.2.1.13.2. Hình ghép xe dọc vào nơi đỗ (Hình 19)
Theo hướng xe chạy, bố trí hình ghép xe dọc vào nơi đỗ có:
a. Ld (m) là chiều dài nơi ghép xe dọc:
Ld = chiều dài toàn bộ của xe cơ giới dùng để sát hạch (m) + 1,0 (m).
b. Rd (m) là chiều rộng nơi ghép xe dọc:
Rd = chiều rộng toàn bộ của xe cơ giới dùng để sát hạch (m) + 1,0 (m).
c. Ed (m) là khoảng khống chế để lùi vào nơi ghép xe dọc:
Ed = chiều dài toàn bộ của xe cơ giới dùng để sát hạch (m) x 1,5.

Hình 19: Hình bài sát hạch ghép xe dọc vào nơi đỗ hạng FC
2.2.2. Xe cơ giới dùng để sát hạch
a. Xe cơ giới dùng để sát hạch ngoài việc tuân theo các quy định của Quy chuẩn này còn phải đảm bảo điều kiện tham gia giao thông theo quy định của Luật Giao thông đường bộ.
b. Xe cơ giới dùng để sát hạch phải là các loại xe thông dụng đang được sử dụng phổ biến ở Việt Nam. Xe ô tô sát hạch phải lắp đặt hệ thống phanh phụ đảm bảo hiệu quả lực khi phanh theo quy định.
c. Xe cơ giới dùng để sát hạch lái xe hạng A1: là xe mô tô hai bánh có dung tích làm việc của xy lanh từ 70 cm3 đến dưới 175 cm3.
Số lượng xe sát hạch tối thiểu tại mỗi Trung tâm là 02 xe.
d. Xe cơ giới dùng để sát hạch lái xe hạng A2: là xe mô tô hai bánh có dung tích làm việc của xy lanh trên 200 cm3, trang bị loại ly hợp không tự động, điều khiển ly hợp bằng tay (loại xe số).
Số lượng xe sát hạch tối thiểu tại mỗi Trung tâm là 01 xe.
đ. Xe cơ giới dùng để sát hạch lái xe hạng A3: là xe mô tô ba bánh, có dung tích làm việc của xy lanh không nhỏ hơn 105 cm3, có số lùi, có chiều dài toàn bộ không lớn hơn 3,0 m, chiều rộng toàn bộ không lớn hơn 1,5 m, chiều dài cơ sở không lớn hơn 2,3 m, bán kính quay vòng nhỏ nhất theo vệt bánh xe trước không lớn hơn 3,5 m.
Số lượng xe sát hạch tối thiểu tại mỗi Trung tâm là 01 xe.
e. Xe cơ giới dùng để sát hạch lái xe hạng A4: là máy kéo nhỏ có trọng tải thiết kế từ 750 kG đến 1000 kG, có số lùi, có chiều dài toàn bộ từ 4,5 m đến 5,5 m, chiều rộng toàn bộ từ 1,0 m đến 1,7 m, chiều dài cơ sở từ 2,0 m đến 3,5 m, bán kính quay vòng nhỏ nhất theo vệt bánh xe trước phía ngoài từ 2,0 m đến 4,5 m.
Số lượng xe sát hạch tối thiểu tại mỗi Trung tâm là 01 xe.
g. Xe cơ giới dùng để sát hạch lái xe hạng B1, B2 là xe ô tô con có từ 04 đến 09 chỗ ngồi (kể cả người lái), có chiều dài toàn bộ từ 4,2 m đến 4,8 m, chiều rộng toàn bộ từ 1,6 m đến 1,85 m, chiều dài cơ sở từ 2,40 m đến 2,8 m, bán kính quay vòng nhỏ nhất theo vệt bánh xe trước phía ngoài từ 4,9 m đến 6,0 m.
Số lượng xe sát hạch tối thiểu tại mỗi Trung tâm: Trong hình là 02 xe, trên đường là 01 xe.
h. Xe cơ giới dùng để sát hạch lái xe hạng B1 số tự động là xe ô tô con có từ 04 đến 09 chỗ ngồi (kể cả người lái), sử dụng số tự động, có chiều dài toàn bộ từ 4,2 m đến 4,8 m, chiều rộng toàn bộ từ 1,6 m đến 1,85 m, chiều dài cơ sở từ 2,40 m đến 2,8 m, bán kính quay vòng nhỏ nhất theo vệt bánh xe trước phía ngoài từ 4,9 m đến 6,0 m.
Số lượng xe sát hạch tối thiểu tại mỗi Trung tâm có đăng ký sát hạch lái xe hạng B1 số tự động: Trong hình là 01 xe, trên đường là 01 xe.
j. Xe cơ giới dùng để sát hạch lái xe hạng C là xe ô tô tải có trọng tải thiết kế của nhà sản xuất từ 5000 kG trở lên, có chiều dài toàn bộ từ 7,3 m đến 8,0 m, chiều rộng toàn bộ từ 1,9 m đến 2,5 m, chiều dài cơ sở từ 4,0 m đến 5,0 m, bán kính quay vòng nhỏ nhất theo vệt bánh xe trước phía ngoài từ 7,0 m đến 8,5 m.
Số lượng xe sát hạch tối thiểu tại mỗi Trung tâm: Trong hình là 02 xe, trên đường là 01 xe.
k. Xe cơ giới dùng để sát hạch lái xe hạng D là xe ô tô chở người có thể bố trí từ 24 đến 30 chỗ ngồi (kể cả chỗ người lái), có chiều dài toàn bộ từ 6,2 m đến 7,5 m, chiều rộng toàn bộ từ 2,0 m đến 2,5 m, chiều dài cơ sở từ 3,1 m đến 4,5 m, bán kính quay vòng nhỏ nhất theo vệt bánh xe trước phía ngoài từ 7,0 m đến 8,0 m.
Số lượng xe sát hạch tối thiểu tại mỗi Trung tâm: Trong hình là 01 xe, trên đường là 01 xe.
I. Xe cơ giới dùng để sát hạch lái xe hạng E là xe ô tô chở người có thể bố trí từ 40 chỗ ngồi trở lên (kể cả người lái), có chiều dài toàn bộ từ 8,9 m đến 10,5 m, chiều rộng toàn bộ từ 2,4 m đến 2,5 m, chiều dài cơ sở từ 4,2 m đến 5,2 m, bán kính quay vòng nhỏ nhất theo vệt bánh xe trước phía ngoài từ 7,9 m đến 10,5 m.
Số lượng xe sát hạch tối thiểu tại mỗi Trung tâm: Trong hình là 01 xe, trên đường là 01 xe.
m. Xe cơ giới dùng để sát hạch lái xe hạng FC: là xe ô tô đầu kéo kéo sơ mi rơ moóc để chở công-ten-nơ có kích thước: dài 6,06 m, rộng 2,44 m, cao 2,59 m (tương đương loại 20 feet).
Số lượng xe sát hạch tối thiểu tại mỗi Trung tâm là 01 xe.
n. Xe cơ giới dùng để sát hạch lái xe các hạng FB2, FD và hạng FE: là xe ôtô có thông số kỹ thuật phù hợp với xe ôtô sát hạch hạng tương ứng kéo rơ moóc có trọng tải thiết kế không nhỏ hơn 3000 kG.
Số lượng xe sát hạch tối thiểu tại mỗi Trung tâm là 01 xe.
2.2.3. Thiết bị sát hạch lý thuyết để cấp giấy phép lái xe hạng A1, A2, A3, A4, B1, B2, C, D, E và các hạng F.
2.2.3.1. Máy chủ (Server) cần thỏa mãn các điều kiện sau:
a. Số lượng tối thiểu 02 máy, trong đó, 01 máy để dự phòng.
b. Sử dụng nền tảng công nghệ Intel Quad Core trở lên hoặc tương đương, tối thiểu 4 GB RAM.
c. Dung lượng ổ cứng tối thiểu 520 GB.
d. Sử dụng hệ điều hành Windows Server 2008 SP2 trở lên.
2.2.3.2. Máy trạm cần thỏa mãn các điều kiện sau:
a. Số lượng tối thiểu: 10 máy đối với Trung tâm loại 3 và 20 máy đối với Trung tâm loại 1 hoặc loại 2.
b. Sử dụng máy với bộ vi xử lý Intel, chip Core 2 Duo, tối thiểu 2 GB RAM.
c. Card mạng: Sử dụng chuẩn kết nối phổ dụng RJ-45 (10BASE-T/100BASE-T).
d. Màn hình: tối thiểu 14 inch, độ phân dải tối thiểu 1024x768 pixel.
đ. Hệ điều hành: Sử dụng hệ điều hành Windows 7 trở lên.
e. Dung lượng ổ cứng tối thiểu 320 GB.
2.2.3.3. Hệ thống thiết bị lưu điện tập trung hay cục bộ dùng cho máy tính phòng sát hạch lý thuyết phải có khả năng đảm bảo cấp điện ổn định và không làm gián đoạn trong thời gian tối thiểu 15 phút, kể từ khi mất nguồn điện lưới.
2.2.3.4. Mạng máy tính trong phòng sát hạch lý thuyết được bố trí theo mô hình mạng LAN; sử dụng chuẩn kết nối phổ dụng RJ-45, được đấu nối với Bộ chuyển mạch (Swith).
2.2.3.5. Máy in dùng để in kết quả sát hạch lý thuyết, sử dụng máy in Laser, in khổ A4 tiêu chuẩn, tối thiểu 02 máy, trong đó 01 máy dự phòng.
2.2.3.6. Phần mềm sát hạch lý thuyết do Tổng cục Đường bộ Việt Nam chuyển giao, sử dụng thống nhất trong phạm vi toàn quốc.
2.2.3.7. Cài đặt phần mềm diệt vi rút lên máy chủ và các máy trạm hoặc có giải pháp bảo đảm an toàn dữ liệu.
2.2.3.8. Có khả năng kết nối với máy chủ tại phòng sát hạch thực hành lái xe trong hình; có khả năng kết nối Internet khi có yêu cầu.
2.2.3.9. Có cơ chế bảo vệ và an toàn dữ liệu chống sự can thiệp từ bên ngoài và mất dữ liệu do các sự cố ngẫu nhiên; không cho phép sự can thiệp của con người vào kết quả sát hạch và lưu dấu vết quá trình chỉnh sửa dữ liệu.
2.2.4. Thiết bị sát hạch thực hành lái xe trong hình để cấp giấy phép lái xe hạng A1, A2
2.2.4.1. Thiết bị trên sân và thiết bị đặt tại phòng điều hành
a. Có ít nhất 02 máy tính cài đặt phần mềm điều hành và quản lý sát hạch, trong đó, 01 máy dự phòng.
Máy tính có cấu hình tối thiểu như sau: Tốc độ xử lý Intel Dual Core E5800 (3.2Ghz/2M/800) hoặc tương đương; 2GB Ram; 320GB HDD; màn hình có kích thước tối thiểu 17 inch, độ phân giải tối thiểu 1024x768 pixel; sử dụng hệ điều hành Windows 7/Windows Server 2008 trở lên.
b. Hệ thống kết nối không dây thu, truyền dữ liệu đến thiết bị lắp trên xe sát hạch và sân sát hạch để báo lỗi, trừ điểm các lỗi vi phạm đảm bảo băng thông và tốc độ cho phép đánh giá chính xác cho ít nhất 10 xe cùng sát hạch trong sân sát hạch hoạt động ổn định không bị nhiễu loạn.
c. Báo lỗi và chấm điểm chính xác, ổn định và thông báo đầy đủ, công khai các lỗi vi phạm của thí sinh trong quá trình sát hạch.
d. Có cơ chế bảo vệ và an toàn dữ liệu chống sự can thiệp từ bên ngoài và mất dữ liệu do các sự cố ngẫu nhiên; có cơ chế hiệu chỉnh các thông số làm việc của thiết bị khi có thay đổi quy định chấm điểm và không cho phép sự can thiệp của con người vào kết quả sát hạch.
đ. Có cơ chế kiểm tra trạng thái hoạt động của từng thiết bị từ Trung tâm. Các thiết bị phải làm việc độc lập theo chức năng, những sự cố của thiết bị này không làm ảnh hưởng đến hoạt động hoặc gây ra sự cố cho thiết bị khác cũng như toàn hệ thống, trừ thiết bị cấp nguồn.
e. Có khả năng tự động thông báo các lỗi bị trừ điểm, truất quyền sát hạch, kết quả sát hạch, hiệu lệnh xuất phát, kết thúc, bánh xe đè vạch giới hạn trên loa, màn hình hiển thị tại phòng điều hành và phòng chờ của người dự sát hạch trong thời gian tối đa 03 giây, kể từ lúc vi phạm lỗi.
g. Hiển thị nội dung từng bài sát hạch và lỗi bị trừ điểm, tổng số điểm còn lại của từng người dự sát hạch trên màn hình tại phòng chờ sát hạch.
h. Hệ thống camera giám sát trên sân sát hạch được kết nối với máy tính điều hành để tự động lưu trữ quá trình sát hạch và thời điểm người dự sát hạch vi phạm lỗi chống chân hoặc để 02 bánh xe đi ra ngoài hình sát hạch.
i. Hệ thống cảm biến lắp đặt trên sân phải hoạt động ổn định, chính xác, không bị ảnh hưởng bởi sự thay đổi nhiệt độ, độ ẩm của môi trường.
k. Thiết bị lưu điện đảm bảo cung cấp điện ổn định cho toàn bộ hệ thống trong thời gian tối thiểu 15 phút, kể từ khi mất nguồn điện lưới.
2.2.4.2. Thiết bị trên xe sát hạch
a. Công tắc tắt và bật thiết bị chấm điểm tự động lắp trên xe sát hạch phải đặt trong hộp kín hoặc nằm ngoài tầm với của người dự sát hạch.
b. Lưu được dữ liệu sát hạch của thí sinh đang sát hạch khi bị mất kết nối với máy tính trên phòng điều hành trong thời gian tối thiểu 20 phút.
c. Tự động phát hiện, trừ điểm các lỗi vi phạm của người dự sát hạch khi: Người dự sát hạch thực hiện không đúng trình tự bài sát hạch; đi không đúng hình quy định của hạng xe sát hạch; không đi qua hình sát hạch quy định; không hoàn thành bài sát hạch; bánh xe đè vạch cản, xe bị chết máy, xe sát hạch bị đổ.
d. Sử dụng nguồn điện của xe, mức điện áp sử dụng phải phù hợp với mức điện áp danh định của xe và có khả năng chịu cắm ngược cực theo quy định tại Bảng 5 của Quy chuẩn này.
Bảng 5: Điện áp danh định và điện áp thử nghiệm thiết bị trên xe sát hạch
|
Điện áp danh định (V) |
Điện áp thử nghiệm cắm ngược cực (V) |
|
06 |
06 ± 0,1 |
|
12 |
14 ± 0,1 |
|
24 |
28 ± 0,2 |
đ. Có khả năng tự động chụp ảnh ngẫu nhiên người dự sát hạch ít nhất 03 lần trong quá trình thực hiện các bài sát hạch, gửi dữ liệu ảnh chụp để lưu trữ vào cơ sở dữ liệu của máy tính tại Trung tâm điều hành và in vào biên bản sát hạch thực hành lái xe trong hình.
e. Màn hình hiển thị trên xe sát hạch phải thể hiện được đầy đủ các trạng thái của mô tô sát hạch như: Tình trạng động cơ (tắt, đang hoạt động), bài sát hạch đang thực hiện, điểm trừ từng lỗi vi phạm, tổng số điểm của thí sinh.
g. Có khả năng giao tiếp với phần mềm bên ngoài thông qua ít nhất một trong các giao thức: RF, cổng COM (RS232), cổng USB 2.0 hoặc thẻ nhớ để có thể điều chỉnh khi thay đổi quy định chấm điểm và phục vụ công tác kiểm tra, kiểm chuẩn thiết bị.
h. Có kết nối không dây để thu, truyền dữ liệu đến thiết bị trên phòng điều hành và sân sát hạch hoạt động trong dải tần số quy định của Bộ Thông tin và Truyền thông. Hệ thống phải hoạt động ổn định không bị nhiễu loạn.
2.2.4.3. Phần mềm điều hành và quản lý sát hạch.
a. Có giao diện và hiển thị kết quả bằng tiếng Việt; hiển thị trực tuyến thông số, trạng thái của thiết bị; hiển thị trực tuyến và trên màn hình tại phòng chờ bài thi, điểm thi, hình ảnh chụp ngẫu nhiên của người đang thực hiện bài sát hạch; thể hiện được trạng thái kết nối với thiết bị chấm điểm lắp trên xe sát hạch, sân sát hạch, có chế độ cảnh báo nếu thiết bị mất kết nối, bị sự cố.
b. Có khả năng kết nối với máy chủ tại phòng sát hạch lý thuyết để lựa chọn danh sách sát hạch thực hành lái xe trong hình từ kết quả sát hạch lý thuyết; có khả năng kết nối Internet khi có yêu cầu.
c. Có khả năng tìm, truy cập, lưu trữ, thống kê, lập bảng, biểu đồ các dữ liệu liên quan đến danh sách thí sinh dự sát hạch, đã sát hạch, đang sát hạch, chưa sát hạch, số học viên sát hạch đạt và không đạt.
d. Có chức năng trừ điểm lỗi vi phạm khi người dự sát hạch chống chân hoặc để 02 bánh xe đi ra ngoài hình sát hạch.
đ. Phát âm thanh tín hiệu xuất phát và thông báo lỗi, truất quyền, kết quả sát hạch.
e. Có khả năng xem, lưu trữ hình ảnh của người dự sát hạch; ảnh và đoạn video clip thể hiện quá trình sát hạch và tại thời điểm xảy ra lỗi vi phạm.
2.2.5. Thiết bị sát hạch thực hành lái xe trong hình để cấp giấy phép lái xe hạng B1, B2, C, D và E
2.2.5.1. Thiết bị trên sân và thiết bị đặt tại phòng điều hành
a. Có ít nhất 02 máy tính cài đặt phần mềm điều hành và quản lý sát hạch, trong đó, 01 máy dự phòng.
Máy tính có cấu hình tối thiểu như sau: Tốc độ xử lý Intel Dual Core E5800 (3.2Ghz/2M/800) hoặc tương đương; 2GB Ram; 320GB HDD; Màn hình có kích thước tối thiểu 17 inch, độ phân giải tối thiểu 1024x768 pixel; sử dụng hệ điều hành Windows 7/Windows Server 2008 trở lên.
b. Hệ thống kết nối không dây thu, truyền dữ liệu đến thiết bị lắp trên ô tô sát hạch và sân sát hạch để báo lỗi, trừ điểm các lỗi vi phạm đảm bảo băng thông và tốc độ cho phép đánh giá chính xác cho ít nhất 20 xe ô tô cùng sát hạch trong sân sát hạch hoạt động ổn định không bị nhiễu loạn.
c. Báo lỗi và chấm điểm chính xác, ổn định và thông báo đầy đủ, công khai các lỗi vi phạm của thí sinh trong quá trình sát hạch.
d. Có cơ chế bảo vệ và an toàn dữ liệu chống sự can thiệp từ bên ngoài và mất dữ liệu do các sự cố ngẫu nhiên; có cơ chế hiệu chỉnh các thông số làm việc của thiết bị khi có thay đổi quy định chấm điểm và không cho phép sự can thiệp của con người vào kết quả sát hạch.
đ. Có cơ chế kiểm tra trạng thái hoạt động của từng thiết bị từ Trung tâm. Các thiết bị phải làm việc độc lập theo chức năng, những sự cố của thiết bị này không làm ảnh hưởng đến hoạt động hoặc gây ra sự cố cho thiết bị khác cũng như toàn hệ thống, trừ thiết bị cấp nguồn.
e. Có khả năng tự động thông báo các lỗi bị trừ điểm, truất quyền sát hạch, kết quả sát hạch, hiệu lệnh xuất phát và kết thúc.
g. Hiển thị nội dung từng bài sát hạch và lỗi bị trừ điểm, tổng số điểm còn lại của từng thí sinh dự sát hạch trên màn hình tại phòng chờ sát hạch.
h. Thiết bị lưu điện đảm bảo cung cấp điện ổn định cho toàn bộ hệ thống trong thời gian tối thiểu 15 phút kể từ khi mất nguồn điện lưới.
2.2.5.2. Thiết bị trên xe ô tô sát hạch
a. Công tắc tắt và bật thiết bị chấm điểm tự động lắp trên ô tô sát hạch phải đặt trong hộp kín hoặc nằm ngoài tầm với của người dự sát hạch (ngồi tại ghế lái).
b. Lưu được dữ liệu sát hạch của thí sinh đang sát hạch khi bị mất kết nối với máy tính trên phòng điều hành trong thời gian tối thiểu 20 phút.
c. Tự động phát hiện trừ điểm và thông báo các lỗi vi phạm của người dự sát hạch về: Thực hiện không đúng trình tự bài sát hạch, đi không đúng hình quy định của hạng xe sát hạch, không đi qua hình sát hạch quy định và không hoàn thành bài sát hạch, thắt dây an toàn, bật và tắt xi nhan, thời gian qua vạch xuất phát, tốc độ động cơ, tốc độ xe chạy, xe bị chết máy, khoảng cách dừng xe không đúng vị trí quy định, xe bị tụt dốc, thời gian xe qua dốc, xe qua vệt bánh xe, bánh xe đè vạch giới hạn hình sát hạch, vi phạm đèn tín hiệu giao thông tại ngã tư, thời gian xe qua ngã tư, vi phạm quy tắc giao thông; thay đổi số, tốc độ; thời gian thực hiện bài sát hạch.
đ. Sử dụng nguồn điện của xe ô tô, mức điện áp sử dụng phải phù hợp với mức điện áp danh định của xe ô tô và có khả năng chịu cắm ngược cực theo quy định tại Bảng 6 của Quy chuẩn này.
Bảng 6: Điện áp danh định và điện áp thử nghiệm thiết bị trên xe ô tô sát hạch
|
Điện áp danh định (V) |
Điện áp thử nghiệm cắm ngược cực (V) |
|
12 |
14 ± 0,1 |
|
24 |
28 ± 0,2 |
|
36 |
42 ± 0,2 |
e. Có khả năng tự động chụp ảnh ngẫu nhiên người dự sát hạch ít nhất 03 lần trong quá trình thực hiện các bài sát hạch, gửi dữ liệu ảnh chụp để lưu trữ vào cơ sở dữ liệu của máy tính tại Trung tâm điều hành và in vào biên bản sát hạch thực hành lái xe trong hình.
g. Màn hình hiển thị trên xe ô tô sát hạch phải thể hiện được đầy đủ các trạng thái của xe ô tô sát hạch như: Tình trạng động cơ (tắt, đang hoạt động), tình trạng chuyển động (tiến, lùi, dừng), tay số hiện thời, vị trí bắt đầu và kết thúc từng bài sát hạch, bài sát hạch đang thực hiện, thời gian thực hiện từng bài sát hạch và tổng thời gian đã thực hiện, điểm trừ từng lỗi vi phạm, tổng số điểm của thí sinh.
h. Có đèn tín hiệu 03 màu (xanh - vàng - đỏ) lắp trên nóc và đèn tín hiệu 02 màu (xanh - đỏ) lắp trong ôtô sát hạch:
- Hiệu lệnh xuất phát, thông báo đạt kết quả: Đèn tín hiệu màu xanh;
- Hiệu lệnh dừng xe khi gặp tình huống nguy hiểm: Đèn tín hiệu màu vàng và đèn tín hiệu màu đỏ;
- Hiệu lệnh đang thực hiện sát hạch: Đèn tín hiệu màu vàng.
i. Có khả năng giao tiếp với phần mềm bên ngoài thông qua ít nhất một trong các giao thức: RF, cổng COM (RS232), cổng USB 2.0 hoặc thẻ nhớ để có thể điều chỉnh khi thay đổi quy định chấm điểm và phục vụ công tác kiểm tra, kiểm chuẩn thiết bị.
k. Trong và ngay sau khi thực hiện xong mỗi bài sát hạch (trong khoảng cách 05 mét hoặc thời gian nhỏ hơn 3 giây) phải thông báo tín hiệu kết thúc, các lỗi bị trừ điểm, số điểm còn lại, lỗi bị truất quyền sát hạch, tên của bài sát hạch tiếp theo.
I. Có kết nối không dây để thu, truyền dữ liệu đến thiết bị trên phòng điều hành và sân sát hạch hoạt động trong dải tần số quy định của Bộ Thông tin và Truyền thông. Hệ thống phải hoạt động ổn định không bị nhiễu loạn.
2.2.5.3. Phần mềm điều hành và quản lý sát hạch.
a. Có giao diện và hiển thị kết quả bằng tiếng Việt, thể hiện được trạng thái kết nối với thiết bị chấm điểm lắp trên ô tô sát hạch, sân sát hạch, có chế độ cảnh báo nếu thiết bị mất kết nối, bị sự cố.
b. Có khả năng kết nối với máy chủ tại phòng sát hạch lý thuyết để lựa chọn danh sách sát hạch thực hành lái xe trong hình từ kết quả sát hạch lý thuyết; có khả năng kết nối Internet khi có yêu cầu.
c. Có khả năng tìm, truy cập, lưu trữ, thống kê, lập bảng, biểu đồ các dữ liệu liên quan đến danh sách thí sinh dự sát hạch, đã sát hạch, đang sát hạch, chưa sát hạch, số học viên sát hạch đạt và không đạt.
2.2.6. Thiết bị sát hạch thực hành lái xe trên đường để cấp giấy phép lái xe hạng B1, B2, C, D và E
2.2.6.1. Thiết bị đặt tại phòng điều hành
a. Có ít nhất 02 máy tính cài đặt phần mềm điều hành và quản lý sát hạch, 01 máy tính làm chức năng máy tính chủ và điều hành có đường thuê bao riêng và địa chỉ IP tĩnh (tốc độ tối thiểu 4Mbps), 01 máy để dự phòng; trường hợp, chưa có đường thuê bao riêng và địa chỉ IP tĩnh, Trung tâm phải bổ sung ít nhất 02 máy tính cài đặt phần mềm điều hành, 01 máy tính làm chức năng máy tính chủ đặt ngoài Trung tâm kết nối với nhà cung cấp dịch vụ có đường thuê bao riêng và địa chỉ IP tĩnh (tốc độ tối thiểu 4Mbps), 01 máy để dự phòng;
Máy tính có cấu hình tối thiểu như sau: Tốc độ xử lý Intel Dual Core (3.2Ghz/2M/800) hoặc tương đương; 2GB Ram; 320GB HDD; màn hình có kích thước tối thiểu 17 inch, sử dụng hệ điều hành Windows 7/Windows Server 2008 trở lên.
b. Hệ thống kết nối không dây thu, truyền dữ liệu đến thiết bị lắp trên ô tô sát hạch để báo lỗi, trừ điểm các lỗi vi phạm đảm bảo băng thông và tốc độ cho phép đánh giá chính xác cho ít nhất 15 xe ô tô cùng sát hạch lái xe trên đường hoạt động ổn định không bị nhiễu loạn.
c. Báo lỗi và chấm điểm chính xác, ổn định và thông báo đầy đủ, công khai nội dung từng bài sát hạch, lỗi bị trừ điểm, tổng số điểm còn lại của người dự sát hạch.
d. Có cơ chế bảo vệ và an toàn dữ liệu chống sự can thiệp từ bên ngoài và mất dữ liệu do các sự cố ngẫu nhiên; có cơ chế hiệu chỉnh các thông số làm việc của thiết bị khi có thay đổi quy định chấm điểm và không cho phép sự can thiệp của con người vào kết quả sát hạch.
đ. Thiết bị lưu điện đảm bảo cung cấp điện ổn định cho toàn bộ hệ thống trong thời gian tối thiểu 15 phút kể từ khi mất nguồn điện lưới.
2.2.6.2. Thiết bị trên xe ô tô sát hạch
2.2.6.2.1. Công tắc tắt và bật thiết bị chấm điểm tự động lắp trên xe ô tô sát hạch phải đặt trong hộp kín hoặc nằm ngoài tầm với của người dự sát hạch.
2.2.6.2.2. Lưu được dữ liệu sát hạch của thí sinh đang sát hạch khi bị mất kết nối với máy tính trên phòng điều hành trong thời gian tối thiểu 48 giờ.
2.2.6.2.3. Tự động phát hiện, báo lỗi, trừ điểm khi người dự sát hạch vi phạm các lỗi về: Thắt dây an toàn; bật và tắt xi nhan; xe ô tô bị chết máy; kéo và nhả phanh tay; trong khoảng 15 mét, không điều khiển thay đổi số từ số 1 lên số 3; sử dụng tay số không phù hợp tốc độ xe; không tăng, giảm đúng số; không giảm hết số khi dừng xe.
2.2.6.2.4. Có hệ thống nút bấm để lựa chọn số báo danh, ra hiệu lệnh để người dự sát hạch thực hiện, ghi và trừ điểm các lỗi không chấm tự động như: Vi phạm quy tắc giao thông, bị choạng lái quá làn đường quy định, ô tô bị rung giật mạnh, không thực hiện theo hiệu lệnh của sát hạch viên, xử lý tình huống không hợp lý gây tai nạn. Hệ thống nút bấm được bố trí trên màn hình hiển thị của thiết bị chấm điểm và trên bàn phím kéo dài, đảm bảo thuận tiện cho sát hạch viên trong quá trình chấm điểm và bảo hiểm tay lái cho người dự sát hạch.
2.2.6.2.5. Trên xe ô tô sát hạch được bố trí 01 camera lưu trữ hình ảnh đồng thời phía trước và người lái với các yêu cầu như sau:
a. Độ phân giải video tối thiểu 1280 x 720 pixel và tốc độ lưu trữ tối thiểu 60 ảnh trên giây;
b. Góc nhìn tối thiểu của camera chính 140 độ;
c. Có hình ảnh đồng thời phía trước xe ô tô và người lái theo thời gian thực;
d. Hỗ trợ thẻ nhớ tối thiểu 32 GB, đảm bảo việc sao chép dữ liệu vào thiết bị lưu trữ khi thẻ nhớ chứa hết lưu lượng;
đ. Hỗ trợ giao tiếp qua cổng USB;
e. Tốc độ lưu trữ FPS tối đa lên đến 60fps;
g. Có chức năng chống rung hình ảnh;
h. Có chức năng ghi âm;
i. Có tích hợp pin cho phép hoạt động khi không cần cấp nguồn tối thiểu 30 phút;
k. Có hình ảnh tối thiểu 8 giờ liên tục.
2.2.6.2.6. Sử dụng nguồn điện của xe ô tô, mức điện áp sử dụng phải phù hợp với mức điện áp danh định của xe ô tô và có khả năng chịu cắm ngược cực theo quy định tại Bảng 7 của Quy chuẩn này.
Bảng 7: Điện áp danh định và điện áp thử nghiệm thiết bị trên xe ô tô sát hạch
|
Điện áp danh định (V) |
Điện áp thử nghiệm cắm ngược cực (V) |
|
12 |
14 ± 0,1 |
|
24 |
28 ± 0,2 |
|
36 |
42 ± 0,2 |
2.2.6.2.7. Có khả năng tự động chụp ảnh ngẫu nhiên người dự sát hạch ít nhất 03 lần trong quá trình thực hiện bài sát hạch, gửi dữ liệu ảnh chụp để lưu trữ vào cơ sở dữ liệu của máy tính tại Trung tâm điều hành và in vào bài sát hạch lái xe trên đường.
2.2.6.2.8. Màn hình hiển thị trên xe ô tô sát hạch phải thể hiện được đầy đủ các trạng thái của xe ô tô sát hạch như: Tình trạng động cơ (tắt, đang hoạt động); bài sát hạch đang thực hiện; quãng đường đã sát hạch; điểm trừ lỗi vi phạm; tổng số điểm của người dự sát hạch; tình trạng có sóng, mất sóng GSM; tình trạng có kết nối, mất kết nối với máy chủ; tình trạng có tín hiệu, mất tín hiệu GPS; tình trạng hoạt động của bộ nhớ lưu trữ dữ liệu.
2.2.6.2.9. Hệ thống loa trên xe ô tô phải thông báo được các tín hiệu xuất phát, kết thúc, lỗi vi phạm, hiệu lệnh của sát hạch viên, kết quả sát hạch của người dự sát hạch trong và ngay sau khi thực hiện xong nội dung yêu cầu (không quá 03 giây).
2.2.6.2.10. Có kết nối không dây để tự động nhận trực tuyến danh sách người dự sát hạch lái xe trên đường từ máy tính tại Trung tâm sát hạch; thu và truyền dữ liệu về kết quả sát hạch, quãng đường sát hạch, lỗi vi phạm và ảnh của người dự sát hạch đến máy tính chủ trên phòng điều hành, hệ thống phải hoạt động ổn định không bị nhiễu loạn, không phụ thuộc khoảng cách từ xe ô tô đến Trung tâm, dữ liệu được truyền tự động trực tuyến về máy tính chủ với tần suất không quá 30 giây trên một lần để công khai trên màn hình tại phòng chờ của Trung tâm sát hạch và in có thể in ra kết quả khi cần thiết. Trong trường hợp mất kết nối với máy chủ do gián đoạn đường truyền, thiết bị phải tự động gửi lại đầy đủ dữ liệu đã ghi nhận được trước đó về máy chủ ngay sau khi đường truyền hoạt động trở lại hoặc khi xe ô tô sát hạch về Trung tâm.
2.2.6.2.11. Có máy in trên xe ô tô sát hạch để tự động in kết quả của người dự sát hạch ngay khi kết thúc.
2.2.6.3. Phần mềm điều hành và quản lý sát hạch.
a. Có giao diện và hiển thị kết quả bằng tiếng Việt, thể hiện được trạng thái kết nối với thiết bị chấm điểm lắp trên xe sát hạch, có chế độ cảnh báo nếu thiết bị mất kết nối, bị sự cố. Hiển thị trực tuyến thông số, trạng thái, điểm bị trừ, tổng số điểm, hình ảnh chụp ngẫu nhiên của người dự sát hạch, vị trí của xe sát hạch trên bản đồ số. Hiển thị kết quả khách quan trên màn hình tại phòng chờ.
b. Dữ liệu, danh sách người đạt sát hạch lái xe trong hình hoặc chỉ phải sát hạch lại trên đường được cập nhật tự động, trực tuyến xuống thiết bị trên xe sát hạch trên đường.
c. Có khả năng kết nối Internet khi có yêu cầu và khả năng tìm, truy cập, lưu trữ, thống kê, lập bảng, biểu các dữ liệu liên quan đến danh sách người dự sát hạch, đã sát hạch, đang sát hạch, chưa sát hạch, số học viên sát hạch đạt và không đạt.
d. Cơ sở dữ liệu cho phép đồng bộ với cơ sở dữ liệu trên máy tính điều hành sát hạch lái xe trong hình thành cơ sở dữ liệu tổng hợp chung của thí sinh.
đ. Tự động in kết quả của thí sinh trên xe sát hạch khi kết thúc bài sát hạch, hoặc in lại kết quả bài sát hạch của thí sinh tại Trung tâm theo biểu mẫu quy định.
e. Bài sát hạch của thí sinh có ảnh chụp tự động trong quá trình sát hạch, thể hiện rõ thời gian bắt đầu thi và tổng số quãng đường đi được của thí sinh.
g. Định vị được vị trí xe sát hạch trên bản đồ số, không cho phép ra lệnh kết thúc bài sát hạch khi người dự sát hạch chưa thực hiện đủ 2,0 km.
2.2.7. Nhà điều hành sát hạch
2.2.7.1. Diện tích xây dựng:
a. Trung tâm loại 1 tối thiểu 250 m2.
b. Trung tâm loại 2 tối thiểu 200 m2.
c. Trung tâm loại 3 tối thiểu 100 m2.
2.2.7.2. Vị trí Nhà điều hành phải bố trí gần vị trí bài sát hạch xuất phát hoặc kết thúc.
2.2.7.3. Các phòng chức năng
2.2.7.3.1. Phòng chờ sát hạch: Có bố trí ghế ngồi cho người dự sát hạch, có tối thiểu 04 màn hình để hiển thị quá trình giám sát phòng sát hạch lý thuyết, kết quả sát hạch lý thuyết, sát hạch lái xe trong hình và sát hạch lái xe trên đường, có máy in kết quả sát hạch thực hành lái xe trong hình và trên đường.
2.2.7.3.2. Phòng hướng dẫn sát hạch: Bố trí đủ bàn ghế và các trang thiết bị để người dự sát hạch lý thuyết vào chuẩn bị và tiếp nhận các thông tin liên quan đến kỳ sát hạch.
2.2.7.3.3. Phòng sát hạch lý thuyết:
a. Có lắp máy điều hòa nhiệt độ, bố trí đủ máy tính và máy in phục vụ sát hạch lý thuyết.
b. Có lắp camera giám sát quá trình sát hạch, thiết bị lưu trữ và được nối về màn hình hiển thị tại phòng hội đồng sát hạch và phòng chờ sát hạch.
c. Có vách ngăn giữa các máy tính để tạo không gian riêng biệt cho người dự sát hạch.
2.2.7.3.4. Phòng điều hành thiết bị chấm điểm thực hành lái xe trong hình
a. Có vị trí và kiến trúc phù hợp để người điều hành thiết bị quan sát được tất cả các ôtô sát hạch trong sân sát hạch.
b. Có trang bị thiết bị nhận tín hiệu báo lỗi và chấm điểm, có hệ thống thông tin bộ đàm.
2.2.7.3.5. Phòng Hội đồng sát hạch: có trang bị điện thoại, có điều hòa nhiệt độ, có màn hình theo dõi phòng sát hạch lý thuyết.
2.2.7.3.6. Phòng Giám đốc Trung tâm: Có trang bị thiết bị cần thiết phục vụ công tác quản lý Trung tâm sát hạch.
2.2.7.3.7. Phòng Phó Giám đốc Trung tâm
2.2.7.3.8. Phòng hành chính tổng hợp
2.2.7.3.9. Các công trình phụ trợ khác.
2.2.8. Các công trình phụ trợ khác
Căn cứ nhu cầu thực tế, Trung tâm sát hạch lái xe thiết kế, xây dựng các công trình phụ trợ theo tiêu chuẩn hiện hành, bao gồm: Nhà để xe cơ giới dùng để sát hạch, ga ra sửa chữa, bảo dưỡng xe cơ giới dùng để sát hạch, nhà nghỉ và lưu trú cho các thành viên hội đồng sát hạch, nhà để máy phát điện, nhà đón tiếp và lưu trú thí sinh ở xa về dự sát hạch, khu dịch vụ phục vụ kỳ sát hạch.
3. QUY ĐỊNH QUẢN LÝ
3.1. Trung tâm phù hợp quy định tại Quy chuẩn này sẽ được Tổng cục Đường bộ Việt Nam hoặc Sở Giao thông vận tải cấp Giấy chứng nhận Trung tâm sát hạch lái xe đủ điều kiện hoạt động (gọi chung là Giấy chứng nhận). Giấy chứng nhận có giá trị 05 (năm) năm, kể từ ngày cấp.
3.2. Hàng năm, vào tháng 01, Sở Giao thông vận tải báo cáo việc cấp Giấy chứng nhận Trung tâm sát hạch lái xe loại 3 của năm trước về Tổng cục Đường bộ Việt Nam để tổng hợp tình hình cấp Giấy chứng nhận Trung tâm sát hạch lái xe và báo cáo Bộ Giao thông vận tải (qua Vụ Khoa học - Công nghệ) để theo dõi, quản lý.
3.3. Trình tự, thủ tục cấp mới, cấp lại Giấy chứng nhận được thực hiện theo quy định của Bộ Giao thông vận tải.
4. TỔ CHỨC THỰC HIỆN
4.1. Trách nhiệm của cơ quan quản lý nhà nước
4.1.1. Tổng cục Đường bộ Việt Nam:
4.1.1.1. Hướng dẫn chuyên môn, nghiệp vụ để các Sở Giao thông vận tải chỉ đạo xây dựng Trung tâm theo quy định của Quy chuẩn này.
4.1.1.2. Chấp thuận thiết kế bố trí mặt bằng tổng thể và kích thước hình các bài sát hạch của Trung tâm loại 1 và loại 2.
4.1.1.3. Chủ trì, phối hợp với cơ quan liên quan kiểm tra các điều kiện về cơ sở vật chất, phương tiện, trang thiết bị của Trung tâm loại 1 và loại 2 theo quy định của Quy chuẩn này để cấp mới, cấp lại Giấy chứng nhận theo quy định.
4.1.1.4. Trong thời gian từ 2,5 năm đến 03 năm, tiến hành kiểm tra, đánh giá việc duy trì các điều kiện hoạt động phục vụ sát hạch của Trung tâm như sau:
a. Đánh giá các nội dung quy định tại điểm 2.1.6, 2.1.7, 2.1.8, 2.2.1.1, 2.2.1.4, 2.2.2, 2.2.3, 2.2.4, 2.2.5, 2.2.6, 2.2.7.3 mục 2 và điểm 4.2 mục 4 của Quy chuẩn này;
b. Kết quả kiểm tra, đánh giá được ghi vào Biên bản và thông báo cho Trung tâm ngay khi kết thúc việc kiểm tra, đánh giá.
c. Nếu kết quả kiểm tra, đánh giá không đạt yêu cầu, Tổng cục Đường bộ Việt Nam có văn bản dừng sát hạch để Trung tâm khắc phục các nội dung không đạt.
4.1.2. Sở Giao thông vận tải:
4.1.2.1. Chỉ đạo xây dựng và trực tiếp quản lý hoạt động các Trung tâm trên địa bàn địa phương.
4.1.2.2. Kiểm tra việc lắp đặt và tình trạng kỹ thuật của thiết bị sát hạch lý thuyết, lái xe trong hình và trên đường để đề nghị Tổng cục Đường bộ Việt Nam kiểm tra, cấp mới Giấy chứng nhận đủ điều kiện hoạt động theo quy định.
4.1.2.3. Trước mỗi kỳ sát hạch, tổ chức kiểm tra việc duy trì cơ sở vật chất, phương tiện, trang thiết bị phục vụ sát hạch của Trung tâm loại 1 và loại 2 theo quy định của Quy chuẩn này.
4.1.2.4. Kiểm tra các điều kiện về cơ sở vật chất, phương tiện, trang thiết bị của Trung tâm theo quy định của Quy chuẩn này để cấp mới, cấp lại Giấy chứng nhận Trung tâm loại 3 đủ điều kiện hoạt động.
4.1.3. Vụ Khoa học-Công nghệ (Bộ Giao thông vận tải) chịu trách nhiệm kiểm tra việc áp dụng, thực hiện Quy chuẩn này.
4.2. Trách nhiệm của Trung tâm sát hạch lái xe
4.2.1. Duy trì, bảo đảm cơ sở vật chất, phương tiện, trang thiết bị phục vụ sát hạch lái xe theo quy định để thực hiện các kỳ sát hạch đạt kết quả chính xác, khách quan; không được thay đổi vị trí, kết cấu lắp đặt thiết bị chấm điểm trên xe và sân sát hạch sau khi đã được kiểm tra, kiểm chuẩn; không được thay đổi hình dáng, kết cấu, tổng thành, hệ thống của ô tô sát hạch so với thiết kế của nhà sản xuất; không được trồng cây trên dải phân cách hình các bài sát hạch trong sân sát hạch làm ảnh hưởng đến việc quan sát, theo dõi của sát hạch viên trên phòng điều hành.
4.2.2. Thực hiện các quy định về an toàn điện, an toàn lao động và an toàn phòng chống cháy nổ theo quy định.
4.2.3. Chỉ được cung cấp các phần mềm, trang thiết bị, xe cơ giới đã được kiểm tra, kiểm chuẩn, chứng nhận đủ điều kiện để sát hạch lái xe.
4.2.4. Chấp hành và phối hợp với cơ quan có thẩm quyền trong việc kiểm tra, đánh giá định kỳ và đột xuất việc thực hiện Quy chuẩn này.
4.2.5. Nối mạng thông tin quản lý với Sở Giao thông vận tải và Tổng cục Đường bộ Việt Nam khi có yêu cầu của cơ quan quản lý.
4.3. Trách nhiệm của đơn vị sản xuất, lắp đặt, nhập khẩu thiết bị sát hạch lái xe
Đảm bảo điều kiện cơ sở vật chất, trang thiết bị và nhân lực để duy trì chất lượng sản phẩm dịch vụ cung cấp, lắp đặt thiết bị sát hạch cho khách hàng theo đúng quy định liên quan của Luật Chất lượng sản phẩm, hàng hóa, cụ thể:
4.3.1. Cung cấp dịch vụ, bảo hành sản phẩm, chịu trách nhiệm về chất lượng sản phẩm và đảm bảo việc vận hành, bảo trì thiết bị sát hạch lắp trên xe ô tô trong thời hạn bảo hành sản phẩm;
4.3.2. Trang thiết bị, phương tiện đo lường dùng trong sản xuất, kiểm soát chất lượng thiết bị sát hạch phải được hiệu chuẩn định kỳ theo quy định về đo lường, hiệu chuẩn thiết bị đo;
4.3.3. Đơn vị sản xuất, lắp ráp phải ban hành quy trình sản xuất và kiểm soát chất lượng sản phẩm, đảm bảo phù hợp với từng công đoạn gia công, lắp ráp thực tế;
4.3.4. Đơn vị sản xuất, lắp ráp phải lưu trữ hồ sơ về nguồn gốc nhập khẩu hoặc mua trong nước các linh kiện chính của thiết bị sát hạch (chíp vi xử lý, module GPS, module GSM, bộ nhớ dữ liệu);
4.3.5. Đơn vị nhập khẩu phải lưu trữ hồ sơ khai báo hải quan về nguồn gốc của thiết bị sát hạch nhập khẩu; hợp đồng, địa chỉ của đơn vị sản xuất, lắp ráp thiết bị sát hạch ở nước ngoài đối với từng lô thiết bị sát hạch nhập khẩu;
4.3.6. Đơn vị sản xuất, lắp ráp phải có ít nhất 01 nhân sự cho từng vị trí công việc liên quan (hoặc hợp đồng gia công các bộ phận) như: thiết kế phần cứng, phần mềm, dịch vụ bảo hành, dịch vụ chăm sóc khách hàng (hợp đồng lao động, chứng chỉ, bằng cấp đào tạo phù hợp với vị trí công việc);
4.3.7. Đảm bảo các điều kiện về truyền dẫn dữ liệu từ máy chủ kết nối thiết bị sát hạch lái xe trên đường về Tổng cục Đường bộ Việt Nam, Sở Giao thông vận tải (Sở trực tiếp quản lý hoạt động của Trung tâm sát hạch) theo quy định về cung cấp, quản lý và sử dụng dữ liệu từ thiết bị sát hạch lái xe trên đường;
4.3.8. Báo cáo Tổng cục Đường bộ Việt Nam bằng văn bản trước mỗi lần cập nhật, thay đổi phần mềm của hệ thống thiết bị chấm điểm khi kiểm tra, kiểm chuẩn và cho phép kiểm tra lại khi có yêu cầu. Phần mềm thay đổi ghi trên đĩa CD hoặc USB được đơn vị sản xuất, nhập khẩu thiết bị niêm phong và gửi kèm theo văn bản báo cáo;
4.3.9. Tuân thủ quy định của Luật Bảo vệ quyền lợi người tiêu dùng, Luật Chất lượng sản phẩm, hàng hóa và các quy định pháp luật khác có liên quan.
4.4. Điều khoản chuyển tiếp:
4.4.1. Giấy Chứng nhận đủ điều kiện hoạt động được cấp trước ngày Quy chuẩn này có hiệu lực, vẫn còn giá trị theo thời hạn ghi trên Giấy Chứng nhận. Các Trung tâm đã được cấp Giấy chứng nhận đủ điều kiện hoạt động trước ngày Quy chuẩn có hiệu lực phải có kế hoạch điều chỉnh sân sát hạch, trang bị bổ sung thiết bị phục vụ sát hạch theo quy định của Quy chuẩn này và các quy định liên quan theo lộ trình sau:
a. Đầu tư ô tô sát hạch hạng B1 số tự động có thiết bị chấm điểm tự động và bố trí bài sát hạch ghép xe ngang vào nơi đỗ trong sân sát hạch theo kích thước quy định tại điểm h mục 2.2.1.11 của Quy chuẩn này trước ngày 01 tháng 4 năm 2016;
b. Các nội dung còn lại trước ngày 01 tháng 7 năm 2016.
4.4.2. Các kiểu loại xe cơ giới dùng để sát hạch đã đầu tư trước ngày Quy chuẩn này có hiệu lực, nếu có nhu cầu vẫn tiếp tục được sử dụng để sát hạch đến khi hết thời hạn sử dụng theo quy định hiện hành.
4.4.3. Việc đầu tư xe cơ giới quy định tại điểm h mục 2.2.2 của Quy chuẩn này chỉ áp dụng đối với Trung tâm có nhu cầu sát hạch lái xe hạng B1 số tự động.
4.5. Văn bản áp dụng
Trong trường hợp các tiêu chuẩn, quy chuẩn và quy định pháp luật được viện dẫn trong Quy chuẩn này có sự thay đổi, bổ sung hoặc thay thế thì áp dụng theo các văn bản mới./.
Bạn chưa Đăng nhập thành viên.
Đây là tiện ích dành cho tài khoản thành viên. Vui lòng Đăng nhập để xem chi tiết. Nếu chưa có tài khoản, vui lòng Đăng ký tại đây!
Bạn chưa Đăng nhập thành viên.
Đây là tiện ích dành cho tài khoản thành viên. Vui lòng Đăng nhập để xem chi tiết. Nếu chưa có tài khoản, vui lòng Đăng ký tại đây!