- Tổng quan
- Nội dung
- VB gốc
- Tiếng Anh
- Hiệu lực
- VB liên quan
- Lược đồ
-
Nội dung hợp nhất
Tính năng này chỉ có tại LuatVietnam.vn. Nội dung hợp nhất tổng hợp lại tất cả các quy định còn hiệu lực của văn bản gốc và các văn bản sửa đổi, bổ sung, đính chính... trên một trang. Việc hợp nhất văn bản gốc và những văn bản, Thông tư, Nghị định hướng dẫn khác không làm thay đổi thứ tự điều khoản, nội dung.
Khách hàng chỉ cần xem Nội dung hợp nhất là có thể nắm bắt toàn bộ quy định hiện hành đang áp dụng, cho dù văn bản gốc đã qua nhiều lần chỉnh sửa, bổ sung.
- Tải về
Thông tư 49/2024/TT-BGTVT Quy chuẩn kỹ thuật quốc gia về Trung tâm sát hạch lái xe cơ giới đường bộ
| Cơ quan ban hành: | Bộ Giao thông Vận tải |
Số công báo:
Số công báo là mã số ấn phẩm được đăng chính thức trên ấn phẩm thông tin của Nhà nước. Mã số này do Chính phủ thống nhất quản lý.
|
Đã biết
|
| Số hiệu: | 49/2024/TT-BGTVT | Ngày đăng công báo: |
Đã biết
|
| Loại văn bản: | Thông tư | Người ký: | Nguyễn Duy Lâm |
| Trích yếu: | Ban hành Quy chuẩn kỹ thuật quốc gia về Trung tâm sát hạch lái xe cơ giới đường bộ | ||
|
Ngày ban hành:
Ngày ban hành là ngày, tháng, năm văn bản được thông qua hoặc ký ban hành.
|
15/11/2024 |
Ngày hết hiệu lực:
Ngày hết hiệu lực là ngày, tháng, năm văn bản chính thức không còn hiệu lực (áp dụng).
|
Đang cập nhật |
|
Áp dụng:
Ngày áp dụng là ngày, tháng, năm văn bản chính thức có hiệu lực (áp dụng).
|
Đã biết
|
Tình trạng hiệu lực:
Cho biết trạng thái hiệu lực của văn bản đang tra cứu: Chưa áp dụng, Còn hiệu lực, Hết hiệu lực, Hết hiệu lực 1 phần; Đã sửa đổi, Đính chính hay Không còn phù hợp,...
|
Đã biết
|
| Lĩnh vực: | Giao thông | ||
TÓM TẮT THÔNG TƯ 49/2024/TT-BGTVT
Ngày 15/11/2024, Bộ Giao thông Vận tải đã ra Thông tư 49/2024/TT-BGTVT ban hành Quy chuẩn kỹ thuật quốc gia về Trung tâm sát hạch lái xe cơ giới đường bộ. Dưới đây là một số nội dung đáng chú ý:
1. Quy chuẩn về diện tích sân sát hạch của trung tâm sát hạch lái xe cơ giới đường bộ:
- Đối với trung tâm sát hạch loại 1: diện tích không nhỏ hơn 33.000 m2;
- Đối với trung tâm sát hạch loại 2: diện tích không nhỏ hơn 18.000 m2;
- Đối với trung tâm sát hạch loại 3: diện tích không nhỏ hơn 3.600 m2
2. Quy chuẩn về làn đường trong sân sát hạch như sau:
- Làn đường trong sân sát hạch có chiều rộng tối thiểu 3,5 m;
- Làn đường và hình sát hạch được thảm bê tông nhựa hoặc bê tông xi măng, bảo đảm chất lượng bề mặt như sau:
- Đối với mặt làn đường và hình sát hạch thảm bê tông nhựa: thông số mô đun đàn hồi yêu cầu tối thiểu là 110 Mpa;
- Đối với mặt làn đường và hình sát hạch thảm bê tông xi măng: cường độ chịu nén yêu cầu tối thiểu là 30 Mpa;
- Hệ thống thoát nước của sân sát hạch bảo đảm không đọng nước trên làn đường và hình sát hạch khi trời mưa.
3. Một số nội dung về quy chuẩn của xe sát hạch:
- Xe sát hạch hạng A1: là xe mô tô hai bánh, có dung tích xi-lanh từ 70 cm3 đến 125 cm3 hoặc có công suất động cơ điện từ 6 đến 11 kW;
- Xe sát hạch hạng A: là xe mô tô hai bánh, có dung tích làm việc của xy lanh trên 200 cm3 hoặc có công suất động cơ điện trên 11 kW;
- Xe sát hạch hạng B1: là xe mô tô ba bánh, có dung tích làm việc của xy lanh từ 105 cm3 trở lên, có số lùi, có chiều dài toàn bộ không lớn hơn 3,0 m, chiều rộng toàn bộ không lớn hơn 1,5 m, chiều dài cơ sở không lớn hơn 2,3 m, bán kính quay vòng nhỏ nhất theo vệt bánh xe trước không lớn hơn 3,5 m;…
Thông tư có hiệu lực kể từ ngày 01/01/2025.
Xem chi tiết Thông tư 49/2024/TT-BGTVT có hiệu lực kể từ ngày 01/01/2025
Tải Thông tư 49/2024/TT-BGTVT
|
BỘ GIAO THÔNG VẬN TẢI Số: 49/2024/TT-BGTVT |
CỘNG HÒA XÃ HỘI CHỦ NGHĨA VIỆT NAM Hà Nội, ngày 15 tháng 11 năm 2024 |
THÔNG TƯ
Ban hành Quy chuẩn kỹ thuật quốc gia về
trung tâm sát hạch lái xe cơ giới đường bộ
_________________
Căn cứ Luật Tiêu chuẩn và Quy chuẩn kỹ thuật ngày 29 tháng 06 năm 2006;
Căn cứ Luật Trật tự, an toàn giao thông đường bộ ngày 27 tháng 06 năm năm 2024;
Căn cứ Nghị định số 56/2022/NĐ-CP ngày 24 tháng 8 năm 2022 của Chính phủ quy định chức năng, nhiệm vụ, quyền hạn và cơ cấu tổ chức của Bộ Giao thông vận tải;
Theo đề nghị của Vụ trưởng Vụ Khoa học - Công nghệ và Môi trường và Cục trưởng Cục Đường bộ Việt Nam;
Bộ trưởng Bộ Giao thông vận tải ban hành Thông tư ban hành Quy chuẩn kỹ thuật quốc gia về Trung tâm sát hạch lái xe cơ giới đường bộ.
Điều 1. Ban hành kèm theo Thông tư này Quy chuẩn kỹ thuật quốc gia về Trung tâm sát hạch lái xe cơ giới đường bộ.
Số hiệu: QCVN 40:2024/BGTVT.
Điều 2. Điều khoản thi hành
1. Thông tư này có hiệu lực thi hành kể từ ngày 01 tháng 01 năm 2025.
2. Bãi bỏ Thông tư số 79/2015/TT-BGTVT ngày 10 tháng 12 năm 2015 của Bộ trưởng Bộ Giao thông vận tải ban hành Quy chuẩn kỹ thuật quốc gia về trung tâm sát hạch lái xe cơ giới đường bộ QCVN 40:2015/BGTVT./.
|
Nơi nhận: |
KT. BỘ TRƯỞNG |
QCVN 40:2024/BGTVT
QUY CHUẨN KỸ THUẬT QUỐC GIA
VỀ TRUNG TÂM SÁT HẠCH LÁI XE CƠ GIỚI ĐƯỜNG BỘ
National technical regulation on road motor vehicles Driving Test Center
Lời nói đầu
QCVN 40:2024/BGTVT về Trung tâm sát hạch lái xe cơ giới đường bộ do Cục Đường bộ Việt Nam biên soạn, Bộ Khoa học và Công nghệ thẩm định, Bộ trưởng Bộ Giao thông vận tải ban hành theo Thông tư số 49/2024/TT-BGTVT ngày 15 tháng 11 năm 2024.
QCVN 40:2024/BGTVT thay thế QCVN 40:2015/BGTVT được ban hành kèm theo Thông tư số 79/2015/TT-BGTVT ngày 10 tháng 12 năm 2015 của Bộ trưởng Bộ Giao thông vận tải.
QUY CHUẨN KỸ THUẬT QUỐC GIA VỀ
TRUNG TÂM SÁT HẠCH LÁI XE CƠ GIỚI ĐƯỜNG BỘ
National technical regulation on road motor vehicles
Driving Test Center
1. QUY ĐỊNH CHUNG
1.1. Phạm vi điều chỉnh
Quy chuẩn này quy định các yêu cầu kỹ thuật về cơ sở vật chất, phương tiện và trang thiết bị đối với trung tâm sát hạch lái xe cơ giới đường bộ (sau đây gọi chung là trung tâm sát hạch).
1.2. Đối tượng áp dụng
Quy chuẩn này áp dụng đối với tổ chức, cá nhân có liên quan về xây dựng, sử dụng trung tâm sát hạch.
1.3. Giải thích từ ngữ
Trong Quy chuẩn này các từ ngữ dưới đây được hiểu như sau:
1.3.1. Sân sát hạch: là nơi bố trí hình của các bài sát hạch lái xe trong trung tâm sát hạch.
1.3.2. Dữ liệu kết quả sát hạch: là kết quả các nội dung sát hạch được Phần mềm quản lý sát hạch tổng hợp theo thời gian thực từ các máy chủ sát hạch.
1.3.3. Hình ảnh giám sát sát hạch: là hình ảnh quá trình sát hạch được hệ thống camera giám sát sát hạch ghi lại.
1.3.4. Quãng đường xe chạy: là quãng đường tối thiểu mà xe sát hạch thực hiện đủ các bài sát hạch thực hành lái xe trong hình.
1.3.5. API: là phần mềm trung gian cho phép các phần mềm điều hành sát hạch trên các máy chủ sát hạch giao tiếp với phần mềm giám sát sát hạch trên máy tính giám sát sát hạch.
2. QUY ĐỊNH KỸ THUẬT
2.1. Sân sát hạch.
2.1.1. Có kích thước đảm bảo bố trí đủ hình các bài sát hạch lái xe theo phân loại của trung tâm sát hạch tại Nghị định của Chính phủ quy định về hoạt động đào tạo và sát hạch lái xe.
2.1.2. Phải được chia thành các khu vực riêng biệt, gồm: sân sát hạch lái xe các hạng A1, A, B1; sân sát hạch lái xe các hạng B, C1, C, D2, D1, D và sân sát hạch lái xe các hạng BE, C1E, CE, D1E, D2E, DE.
2.1.3. Phải đảm bảo để các xe sát hạch chỉ tiến về phía trước theo làn đường thuận chiều, không rẽ cắt ngang các làn đường khác (trừ ngã tư có đèn tín hiệu điều khiển giao thông), không vi phạm vạch phân làn trên đường khi chuyển hướng và không được lặp lại quãng đường đã tiến về phía trước.
2.1.4. Trên dải phân cách hình của các bài sát hạch trong sân sát hạch không trồng cây gây khó khăn, ảnh hưởng đến quan sát, giám sát của sát hạch viên trên phòng điều hành.
2.1.5. Diện tích sân sát hạch.
2.1.5.1 . Đối với trung tâm sát hạch loại 1: diện tích không nhỏ hơn 33.000 m2;
2.1.5.2 . Đối với trung tâm sát hạch loại 2: diện tích không nhỏ hơn 18.000 m2;
2.1.5.3 . Đối với trung tâm sát hạch loại 3: diện tích không nhỏ hơn 3.600 m2.
2.1.6. Quãng đường xe chạy.
2.1.6.1. Trung tâm sát hạch loại 1 có chiều dài quãng đường xe chạy không ngắn hơn 1,2 km;
2.1.6.2. Trung tâm sát hạch loại 2 có chiều dài quãng đường xe chạy không ngắn hơn 0,8 km.
2.1.7. Làn đường trong sân sát hạch có chiều rộng tối thiểu 3,5 m; làn đường và hình sát hạch được thảm bê tông nhựa hoặc bê tông xi măng, bảo đảm chất lượng bề mặt như sau:
2.1.7.1. Đối với mặt làn đường và hình sát hạch thảm bê tông nhựa: thông số mô đun đàn hồi yêu cầu tối thiểu là 110 Mpa;
2.1.7.2. Đối với mặt làn đường và hình sát hạch thảm bê tông xi măng: cường độ chịu nén yêu cầu tối thiểu là 30 Mpa;
2.1.7.3. Hệ thống thoát nước của sân sát hạch bảo đảm không đọng nước trên làn đường và hình sát hạch khi trời mưa.
2.1.8. Đèn tín hiệu giao thông, biển báo hiệu đường bộ, vạch tín hiệu giao thông trên mặt đường trong sân sát hạch phải bố trí đầy đủ, đúng quy cách, kiểu loại quy định tại Quy chuẩn kỹ thuật quốc gia về báo hiệu đường bộ.
2.1.9. Vạch giới hạn hình các bài sát hạch màu trắng, có chiều rộng 0,1 m, cách bó vỉa hình sát hạch tối thiểu 0,1 m.
2.1.10. Bó vỉa hình sát hạch có chiều cao tối thiểu 0,15 m (trừ hình sát hạch lái xe hạng A1, A).
2.1.11. Cọc chuẩn trong sân sát hạch được sơn hai màu trắng và đỏ, mỗi khoang sơn dài 0,15 m, đường kính từ 20 mm đến 25 mm có chiều cao 1,6 m; chân đế của cọc chuẩn làm bằng kim loại, đảm bảo giữ được cọc chuẩn cứng vững.
2.1.12. Hình của bài sát hạch lái xe được tính theo thông số kỹ thuật của xe sát hạch có sai số thi công cho phép là 5%; trường hợp thay thế xe sát hạch hoặc sử dụng hình của bài sát hạch cho nhiều hạng xe sát hạch thì sai lệch thông số kích thước bài sát hạch tính theo thông số kỹ thuật của xe sát hạch thay thế hoặc xe sát hạch sử dụng chung hình so với kích thước hình của bài sát hạch thực tế không quá 10%.
2.1.13. Hình của bài sát hạch lái xe hạng A1, A.
2.1.13.1. Hình số 8 (Hình 1).
Bảng 1: Thông số kích thước bài sát hạch hình số 8
Kích thước tính bằng mét
|
Thông số kích thước |
Hạng A1 |
Hạng A |
|
Bán kính vòng ngoài R1 |
3,0 |
3,4 |
|
Bán kính vòng trong và bán kính điểm uốn nối tiếp giữa hai vòng tròn ngoài Ro |
2,3 |
2,5 |
|
Khoảng cách tâm giữa hai vòng tròn trong OO’ |
5,7 |
6,3 |
|
Khoảng cách tâm giữa vòng tròn trong và vòng uốn nối tiếp OO” = O’O” |
5,3 |
5,9 |

Hình 1: Hình bài sát hạch hình số 8
2.1.13.2. Vạch đường thẳng (Hình 2).
Bảng 2: Thông số kích thước bài sát hạch vạch đường đi thẳng
Kích thước tính bằng mét
|
Thông số kích thước |
Ký hiệu |
Hạng A1 |
Hạng A |
|
Chiều dài |
Lt |
18,0 |
27 |
|
Chiều rộng |
Bt |
0,6 |
0,6 |
|
Màu sơn |
|
Trắng |
Trắng |

Hình 2: Hình bài sát hạch vạch đường thẳng
2.1.13.3. Đường có vạch cản (Hình 3).
Bảng 3: Thông số kích thước hình bài sát hạch đường có vạch cản
Kích thước tính bằng mét
|
Thông số kích thước |
Hạng A1 |
Hạng A |
|
Chiều dài đoạn đường có vạch cản (Lt) |
18,0 |
27,0 |
|
Khoảng cách giữa các vạch cản |
4,5 |
4,5 |
|
Chiều rộng làn đường có vạch cản |
3,0 |
3,0 |
|
Chiều dài vạch cản |
1,5 |
1,5 |
|
Chiều rộng vạch cản |
0,1 |
0,1 |
|
Màu sơn vạch cản |
Trắng |
Trắng |

Hình 3: Hình bài sát hạch đường có vạch cản
2.1.13.4. Đường gồ ghề (Hình 4).
Bảng 4: Thông số kích thước hình bài sát hạch đường gồ ghề
Kích thước tính bằng mét
|
Thông số kích thước |
Hạng A1 |
Hạng A |
|
Chiều dài đoạn đường gồ ghề |
15,0 |
15,0 |
|
Chiều dài dải gồ ghề |
0,9 |
0,9 |
|
Chiều rộng đế dải gồ ghề |
0,2 |
0,2 |
|
Chiều rộng đỉnh dải gồ ghề |
0,1 |
0,1 |
|
Chiều cao dải gồ ghề |
0,05 |
0,05 |
|
Khoảng cách giữa các dải gồ ghề |
1,5 |
1,7 |
|
Vật liệu dải gồ ghề |
Cứng, không đàn hồi |
Cứng, không đàn hồi |
|
Màu sơn trên mặt dải gồ ghề |
Trắng |
Trắng |

Hình 4: Hình bài sát hạch đường gồ ghề
2.1.14. Hình của bài sát hạch lái xe hạng B1 (Hình 5).
Là hình chữ chi, do 04 hình bình hành nối tiếp nhau theo chiều ngược lại, có kích thước như sau:
BCM (m) là chiều rộng ở đỉnh hình chữ chi: BCM = bM + 0,6 (m);
bM (m) là chiều rộng của xe cơ giới dùng để sát hạch;
LCM (m) là chiều dài hình bình hành tính theo phương nằm ngang: LCM = 1,5aM;
aM (m) là chiều dài toàn bộ của xe cơ giới dùng để sát hạch.

Hình 5: Hình bài sát hạch lái xe hạng B1
2.1.15. Hình của bài sát hạch lái xe hạng B, C1, C, D2, D1, D.
Ký hiệu kỹ thuật sử dụng dưới đây được hiểu như sau:
B1: Chiều rộng bánh sau bên lái phụ của xe sát hạch, đơn vị tính là mét;
a: Chiều dài toàn bộ của xe sát hạch, đơn vị tính là mét;
b: Chiều rộng toàn bộ của xe sát hạch, đơn vị tính là mét;
Rqv: Bán kính quay vòng nhỏ nhất của xe sát hạch theo vết bánh xe trước phía ngoài, đơn vị tính là mét.
2.1.15.1. Xuất phát và kết thúc (Hình 6).
Trên mặt đường kẻ một vạch ngang vuông góc với trục dọc của đường theo quy cách “Vạch dừng xe”, phía trước vạch có kẻ chữ: “XUẤT PHÁT” hoặc “KẾT THÚC”.
Xe sát hạch dừng trước vạch này chờ tín hiệu và thực hiện các thao tác khi khởi hành xe để thực hiện bài xuất phát.
Xe sát hạch đi qua vạch này khi kết thúc bài sát hạch.

Hình 6: Hình bài sát hạch xuất phát
2.1.15.2. Dừng xe nhường đường cho người đi bộ (Hình 7).
Tại vị trí người đi bộ qua đường kẻ vạch “vạch dừng xe”, vạch “đi bộ qua đường (dạng vuông góc)” và lắp các biển báo: “dừng lại” và “đường người đi bộ cắt ngang” để yêu cầu xe sát hạch dừng xe nhường đường cho người đi bộ.

Hình 7: Hình bài sát hạch nhường đường cho người đi bộ
2.1.15.3. Dừng và khởi hành xe trên dốc (Hình 8).
Trên đường dốc lên có chiều dài 15 m, độ dốc 10 %, cách chân dốc tối thiểu 06 m kẻ vạch “vạch dừng xe” và lắp biển báo: “dừng lại” để yêu cầu xe sát hạch dừng và khởi hành xe trên dốc và biển báo "Dốc lên nguy hiểm", "Dốc xuống nguy hiểm".

Hình 8: Hình bài sát hạch dừng và khởi hành xe trên dốc
2.1.15.4. Qua vệt bánh xe và đường vòng vuông góc (Hình 9).
Hình vệt bánh xe nằm phía bên phải theo chiều xe chạy, gồm 02 vạch dọc song song với nhau và song song với trục dọc của đường; sau hình vệt bánh xe kẻ 02 hình vuông góc nối tiếp với nhau theo chiều ngược lại, có:
Bvb (m) là chiều rộng vệt bánh xe: Bvb = B1 + 0,2 (m);
Lvb (m) là chiều dài vệt bánh xe: Lvb = a;
Sv (m) là chiều sâu đường vuông góc: Sv = 1,5a;
Lv (m) là chiều dài đường vuông góc: Lv = 2,0a;
Bv (m) là chiều rộng làn đường vuông góc: Bv = 2,2b.

Hình 9: Hình bài sát hạch qua vệt bánh xe và đường vòng vuông góc
2.1.15.5. Ngã tư (Hình 10).
Tại nơi giao nhau giữa hai đường hai chiều cùng cấp, lắp hệ thống đèn tín hiệu điều khiển giao thông, kẻ vạch “vạch dừng xe”, vạch “đi bộ qua đường (dạng vuông góc)” và lắp biển báo “hướng đi phải theo”, biển “đường giao nhau” và biển “giao nhau có tín hiệu đèn” để yêu cầu xe sát hạch dừng xe tại ngã tư theo tín hiệu đèn điều khiển giao thông để nhường đường cho người đi bộ.

Hình 10: Hình bài sát hạch qua ngã tư
2.1.15.6. Qua đường vòng quanh co (Hình 11).
Hình gồm 02 nửa hình vòng tròn nối tiếp với nhau ngược chiều, tạo thành hình chữ S, có:
Bqc (m) là chiều rộng đường vòng quanh co: Bqc = 2,2b;
RN (m) là bán kính cong của vòng tròn phía ngoài: Rn = Rqv + 1,2 m;
Rtr (m) là bán kính cong của vòng tròn phía trong: Rtr = Rn - Bqc;
Sqc(m) là khoảng cách tâm của 02 nửa hình vòng tròn: Sqc = RN + Rtr.

Hình 11: Hình bài sát hạch qua đường vòng quanh co
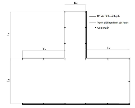
2.1.15.7. Ghép xe dọc vào nơi đỗ đối với hạng B, C1 (Hình 12).
Hình bố trí bên phải làn đường (theo hướng xe chạy), lắp biển báo “Nơi đỗ xe”, có:
Ld (m) là chiều dài nơi ghép xe dọc: Ld = a + 1,0 (m);
Rd (m) là chiều rộng nơi ghép xe dọc: Rd = b + 0,6 (m);
Ed (m) là khoảng khống chế để lùi vào nơi ghép xe dọc: Ed = 1,2a.

Hình 12: Hình bài sát hạch ghép xe dọc vào nơi đỗ đối với hạng B và hạng C1
2.1.15.8. Ghép xe ngang vào nơi đỗ đối với hạng B (Hình 13).
Hình bố trí phía bên phải làn đường (theo hướng xe chạy), lắp biển báo “Nơi đỗ xe”, có:
Lg (m) là chiều dài nơi đỗ xe: Lg = 3a/2;
Rg (m) là chiều rộng nơi đỗ xe: Rg = 5b/4.

Hình 13: Hình bài sát hạch ghép xe ngang vào nơi đỗ đối với hạng B
2.1.15.9. Ghép xe ngang vào nơi đỗ đối với hạng C, D1, D2 và D (Hình 14).
Hình bố trí phía bên phải làn đường (theo hướng xe chạy), có:
Lg (m) là chiều dài nơi đỗ xe: Lg = 5a/3;
Rg (m) là chiều rộng nơi đỗ xe: Rg = 5b/4.

Hình 14: Hình bài sát hạch ghép xe ngang vào nơi đỗ đối với hạng C, D1, D2, D
2.1.15.10. Tạm dừng ở chỗ có đường sắt chạy qua (Hình 15).
Trên mặt đường bố trí 02 thanh ray đường sắt, tạo tình huống giả định có đường bộ giao nhau với đường sắt không có rào chắn, không có người điều khiển giao thông; cách ray ngoài cùng của đường sắt tối thiểu 5,0 m kẻ vạch “vạch dừng xe” và lắp biển báo “giao nhau với đường sắt không có rào chắn”, biển “nơi đường sắt giao vuông góc với đường bộ” và biển báo: “dừng lại” để yêu cầu dừng xe sát hạch ở chỗ có đường sắt chạy qua.

Hình 15: Hình bài sát hạch tạm dừng ở chỗ có đường sắt chạy qua
2.1.15.11. Thay đổi số trên đường bằng (Hình 16).
Trên đoạn đường thẳng có độ dài tối thiểu 100 m, cách đầu đoạn đường tối thiểu 20 m lắp biển báo phụ thứ nhất “bắt đầu tăng số, tăng tốc độ” và cách biển báo phụ thứ nhất 25 m lắp biển báo phụ thứ hai “bắt đầu giảm số, giảm tốc độ”, cách biển báo phụ thứ hai 25 m lắp biển báo phụ “kết thúc giảm số, giảm tốc độ”.

Hình 16: Hình bài sát hạch thay đổi số trên đường bằng
2.1.15.12. Tình huống nguy hiểm.
Trong sân sát hạch, ngoài các bài sát hạch, bố trí vị trí xuất hiện tình huống nguy hiểm (05 vị trí đối với Trung tâm loại 1 và 03 vị trí đối với Trung tâm loại 2) để yêu cầu thí sinh phanh dừng xe, bật thông báo tín hiệu nguy hiểm, tắt thông báo tín hiệu nguy hiểm trước khi cho xe khởi hành trong thời gian quy định.
2.1.15.13. Hình của bài sát hạch lái xe hạng BE, D1E, D2E, DE (Hình 17).
Là hình đi qua 05 cọc chuẩn A, B, C, D và E với khoảng cách các cọc AB = BC = CD = DE = LCF = 1,4aE.
Trong đó: aE (m) là chiều dài toàn bộ của xe cơ giới dùng để sát hạch.

Hình 17: Hình bài sát hạch đi qua 05 cọc chuẩn hạng BE, D1E, D2E, DE
2.1.15.14. Hình của bài sát hạch lái xe hạng C1E và CE.
2.1.15.14.1. Hình đi qua 05 cọc chuẩn (Hình 18).
Là hình đi qua 05 cọc chuẩn A, B, C, D và E với khoảng cách các cọc AB = BC = CD = DE = LCF = 1,4aE.
Trong đó: aE (m) là chiều dài toàn bộ của xe cơ giới dùng để sát hạch.

Hình 18: Hình bài sát hạch đi qua 05 cọc chuẩn hạng C1E, CE
2.1.15.14.2. Hình ghép xe dọc vào nơi đỗ (Hình 19).
Theo hướng xe chạy, bố trí hình ghép xe dọc vào nơi đỗ có:
Ld (m) là chiều dài nơi ghép xe dọc được tính như sau:
Ld = chiều dài toàn bộ của xe cơ giới dùng để sát hạch (m) + 1,0 (m);
Rd (m) là chiều rộng nơi ghép xe dọc;
Rd = chiều rộng toàn bộ của xe cơ giới dùng để sát hạch (m) + 1,0 (m);
Ed (m) là khoảng khống chế để lùi vào nơi ghép xe dọc;
Ed = chiều dài toàn bộ của xe cơ giới dùng để sát hạch (m) x 1,5.

Hình 19: Hình bài sát hạch ghép xe dọc vào nơi đỗ hạng C1E, CE
2.2. Xe sát hạch.
2.2.1. Xe sát hạch ngoài việc tuân theo các quy định tại mục 2.2 của Quy chuẩn này còn phải đảm bảo quy định tại khoản 1 Điều 35 Luật trật tự, an toàn giao thông đường bộ và Nghị định của Chính phủ quy định về hoạt động đào tạo và sát hạch lái xe.
2.2.2. Xe sát hạch hạng A1: là xe mô tô hai bánh, có dung tích xi-lanh từ 70 cm3 đến 125 cm3 hoặc có công suất động cơ điện từ 6 đến 11 kW.
2.2.3. Xe sát hạch hạng A: là xe mô tô hai bánh, có dung tích làm việc của xy lanh trên 200 cm3 hoặc có công suất động cơ điện trên 11 kW.
2.2.4. Xe sát hạch hạng B1: là xe mô tô ba bánh, có dung tích làm việc của xy lanh từ 105 cm3 trở lên, có số lùi, có chiều dài toàn bộ không lớn hơn 3,0 m, chiều rộng toàn bộ không lớn hơn 1,5 m, chiều dài cơ sở không lớn hơn 2,3 m, bán kính quay vòng nhỏ nhất theo vệt bánh xe trước không lớn hơn 3,5 m.
2.2.5. Xe sát hạch hạng B: là xe ô tô con có từ 03 đến 08 chỗ (không kể chỗ của người lái xe), có chiều dài toàn bộ từ 4,2 m trở lên, chiều rộng toàn bộ từ 1,6 m trở lên, chiều dài cơ sở từ 2,4m trở lên, bán kính quay vòng nhỏ nhất theo vệt bánh xe trước phía ngoài từ 4,9 m trở lên.
2.2.6. Xe sát hạch hạng C1 là xe ô tô tải có khối lượng toàn bộ theo thiết kế từ 4.000 kg đến 7.500 kg, có chiều dài toàn bộ từ 5,5 m trở lên, chiều rộng toàn bộ từ 1,7 m trở lên, chiều dài cơ sở từ 3 m trở lên, bán kính quay vòng nhỏ nhất theo vệt bánh xe trước phía ngoài từ 5,7 m trở lên.
2.2.7. Xe sát hạch hạng C là xe ô tô tải có khối lượng toàn bộ theo thiết kế từ 11.000 kg trở lên, có chiều dài toàn bộ từ 8 m trở lên, chiều rộng toàn bộ từ 2,2 m trở lên, chiều dài cơ sở từ 4,2 m trở lên, bán kính quay vòng nhỏ nhất theo vệt bánh xe trước phía ngoài từ 7,2 m trở lên.
2.2.8. Xe sát hạch hạng D1 là ô tô chở người (kể cả xe buýt) trên 08 chỗ (không kể chỗ của người lái xe) đến 16 chỗ (không kể chỗ của người lái xe) hoặc ô tô có thiết kế, cải tạo với số chỗ ít hơn xe cùng loại, kích thước giới hạn tương đương và có số chỗ nhiều nhất, có chiều dài toàn bộ từ 5,2 m trở lên, chiều rộng toàn bộ từ 1,9 m trở lên, chiều dài cơ sở từ 3,1 m trở lên, bán kính quay vòng nhỏ nhất theo vệt bánh xe trước phía ngoài từ 6,1 m trở lên.
2.2.9. Xe sát hạch hạng D2 là ô tô chở người (kể cả xe buýt) trên 16 chỗ (không kể chỗ của người lái xe) đến 29 chỗ (không kể chỗ của người lái xe) hoặc ô tô có thiết kế, cải tạo với số chỗ ít hơn xe cùng loại, kích thước giới hạn tương đương và có số chỗ nhiều nhất, có chiều dài toàn bộ từ 6,2 m trở lên, chiều rộng toàn bộ từ 2,0 m trở lên, chiều dài cơ sở từ 3,1 m trở lên, bán kính quay vòng nhỏ nhất theo vệt bánh xe trước phía ngoài từ 7,0 m trở lên.
2.2.10. Xe sát hạch hạng D là ô tô chở người (kể cả xe buýt) trên 40 chỗ (không kể chỗ của người lái xe) hoặc ô tô có thiết kế, cải tạo với số chỗ ít hơn xe cùng loại, kích thước giới hạn tương đương và có số chỗ nhiều nhất, có chiều dài toàn bộ từ 8,9 m trở lên, chiều rộng toàn bộ từ 2,4 m trở lên, chiều dài cơ sở từ 4,2 m trở lên, bán kính quay vòng nhỏ nhất theo vệt bánh xe trước phía ngoài từ 7,9 m trở lên.
2.2.11. Xe sát hạch hạng CE: là xe ô tô đầu kéo kéo sơ mi rơ moóc để chở công-ten-nơ có kích thước: dài 6,06 m, rộng 2,44 m, cao 2,59 m (tương đương loại 20 feet).
2.2.12. Xe sát hạch các hạng BE, C1E, D1E, D2E và DE: là xe ô tô có thông số kỹ thuật phù hợp với xe ô tô sát hạch hạng tương ứng (B, C1, D1, D2 và D) kéo rơ moóc có khối lượng toàn bộ theo thiết kế không nhỏ hơn 5000 kg.
2.3. Thiết bị và phần mềm sát hạch.
2.3.1. Thiết bị và phần mềm sát hạch lý thuyết hạng A1, A, B1, B, C1, C, D1, D2, D, BE, C1E, CE, D1E, D2E, DE gồm máy chủ, máy trạm, thiết bị lưu điện, mạng máy tính, máy in, phần mềm điều hành sát hạch lý thuyết và phần mềm sát hạch lý thuyết.
2.3.1.1. Máy chủ phải đáp ứng các điều kiện sau:
2.3.1.1.1. Có cấu hình phần cứng đáp ứng việc vận hành phần mềm điều hành sát hạch lý thuyết do Cục Đường bộ Việt Nam chuyển giao ổn định trong trường hợp toàn bộ các máy trạm kết nối và thực hiện nội dung sát hạch lý thuyết;
2.3.1.1.2. Màn hình: kích thước tối thiểu 19 inch, độ phân giải tối thiểu 1366 x 768 pixels;
2.3.1.1.3. Sử dụng hệ điều hành Windows Server 2016 trở lên;
2.3.1.1.4. Được cài đặt phần mềm điều hành sát hạch lý thuyết do Cục Đường bộ Việt Nam chuyển giao theo quy định;
2.3.1.1.5. Có khả năng kết nối với máy tính giám sát sát hạch theo API được quy định tại Phụ lục kèm theo Quy chuẩn này.
2.3.1.2. Máy trạm phải đáp ứng các điều kiện sau:
2.3.1.2.1. Có cấu hình phần cứng đáp ứng vận hành ổn định phần mềm sát hạch lý thuyết do Cục Đường bộ Việt Nam chuyển giao;
2.3.1.2.2. Màn hình: tối thiểu 19 inch, độ phân giải tối thiểu 1366 x 768 pixels;
2.3.1.2.3. Sử dụng hệ điều hành Windows 10 trở lên;
2.3.1.2.4. Được cài đặt phần mềm sát hạch lý thuyết do Cục Đường bộ Việt Nam chuyển giao theo quy định;
2.3.1.3. Thiết bị lưu điện tập trung hay cục bộ dùng cho máy tính phòng sát hạch lý thuyết phải có khả năng đảm bảo cấp điện ổn định và không làm gián đoạn trong thời gian tối thiểu 15 phút, kể từ khi mất nguồn điện lưới.
2.3.1.4. Mạng máy tính trong phòng sát hạch lý thuyết được bố trí theo mô hình mạng LAN; sử dụng chuẩn kết nối phổ dụng RJ-45, được đấu nối với bộ chuyển mạch (Switch).
2.3.1.5. Máy in dùng để in kết quả sát hạch lý thuyết, có khả năng in khổ A4 tiêu chuẩn.
2.3.1.6. Cài đặt phần mềm diệt vi rút lên máy chủ và các máy trạm.
2.3.1.7. Có cơ chế bảo vệ và an toàn dữ liệu chống sự can thiệp từ bên ngoài và mất dữ liệu do các sự cố ngẫu nhiên; không cho phép sự can thiệp trái phép của con người vào kết quả sát hạch và lưu nhật ký quá trình chỉnh sửa dữ liệu.
2.3.2. Thiết bị và phần mềm sát hạch mô phỏng các tình huống giao thông hạng B, C1, C, D1, D2, D, BE, C1E, CE, D1E, D2E, DE gồm máy chủ, máy trạm, thiết bị lưu điện, mạng máy tính, máy in, phần mềm điều hành sát hạch mô phỏng các tình huống giao thông và phần mềm sát hạch mô phỏng các tình huống giao thông.
2.3.2.1. Máy chủ phải đáp ứng các điều kiện sau:
2.3.2.1.1. Có cấu hình phần cứng đáp ứng việc vận hành phần mềm điều hành sát hạch mô phỏng các tình huống giao thông do Cục Đường bộ Việt Nam chuyển giao ổn định trong trường hợp toàn bộ các máy trạm kết nối và thực hiện nội dung sát hạch mô phỏng;
2.3.2.1.2. Màn hình: kích thước tối thiểu 19 inch, độ phân giải tối thiểu 1366 x 768 pixels;
2.3.2.1.3. Sử dụng hệ điều hành Windows Server 2016 trở lên;
2.3.2.1.4. Được cài đặt phần mềm điều hành sát hạch mô phỏng các tình huống giao thông do Cục Đường bộ Việt Nam chuyển giao theo quy định;
2.3.2.1.5. Có khả năng kết nối với máy tính giám sát sát hạch theo API được quy định tại Phụ lục kèm theo Quy chuẩn này.
2.3.2.2. Máy trạm phải đáp ứng các điều kiện sau:
2.3.2.2.1. Có cấu hình phần cứng đáp ứng vận hành ổn định phần mềm sát hạch mô phỏng các tình huống giao thông do Cục Đường bộ Việt Nam chuyển giao;
2.3.2.2.2. Màn hình: tối thiểu 19 inch, độ phân giải tối thiểu 1366 x 768 pixel;
2.3.2.2.3. Sử dụng hệ điều hành Windows 10 trở lên;
2.3.2.2.4. Được cài đặt phần mềm sát hạch mô phỏng các tình huống giao thông do Cục Đường bộ Việt Nam chuyển giao theo quy định.
2.3.2.3. Hệ thống thiết bị lưu điện tập trung hay cục bộ dùng cho máy tính phòng sát hạch lý thuyết phải có khả năng đảm bảo cấp điện ổn định và không làm gián đoạn trong thời gian tối thiểu 15 phút, kể từ khi mất nguồn điện lưới.
2.3.2.4. Mạng máy tính trong phòng sát hạch lý thuyết được bố trí theo mô hình mạng LAN; sử dụng chuẩn kết nối phổ dụng RJ-45, được đấu nối với Bộ chuyển mạch (Switch).
2.3.2.5. Máy in dùng để in kết quả sát hạch lý thuyết, có khả năng in khổ A4 tiêu chuẩn.
2.3.2.6. Cài đặt phần mềm diệt vi rút lên máy chủ và các máy trạm.
2.3.2.7. Có cơ chế bảo vệ và an toàn dữ liệu chống sự can thiệp từ bên ngoài và mất dữ liệu do các sự cố ngẫu nhiên; không cho phép sự can thiệp trái phép của con người vào kết quả sát hạch và lưu nhật ký quá trình chỉnh sửa dữ liệu.
2.3.3. Thiết bị và phần mềm sát hạch thực hành lái xe trong hình hạng A, A1.
Thiết bị và phần mềm sát hạch thực hành lái xe trong hình hạng A, A1 gồm thiết bị đặt tại phòng điều hành, thiết bị trên sân sát hạch, thiết bị trên xe sát hạch và phần mềm điều hành và quản lý sát hạch.
2.3.3.1. Thiết bị trên sân sát hạch và thiết bị đặt tại phòng điều hành.
2.3.3.1.1. Máy tính cài đặt phần mềm điều hành và quản lý sát hạch có cấu hình phần cứng đáp ứng vận hành phần mềm điều hành và quản lý sát hạch hoạt động ổn định trong trường hợp toàn bộ các xe sát hạch kết nối và thực hiện phần thi sát hạch thực hành lái xe trong hình với số lượng không nhỏ hơn 2 xe; màn hình có kích thước tối thiểu 19 inch, độ phân giải tối thiểu 1366 x 768 pixels; sử dụng hệ điều hành Windows 10 hoặc Windows Server 2016 trở lên.
2.3.3.1.2. Hệ thống kết nối không dây thu, truyền dữ liệu đến thiết bị lắp trên xe sát hạch và sân sát hạch để báo lỗi, trừ điểm các lỗi vi phạm đảm bảo băng thông và tốc độ cho phép đánh giá chính xác cho ít nhất 10 xe cùng sát hạch trong sân sát hạch hoạt động ổn định không bị nhiễu loạn.
2.3.3.1.3. Báo lỗi và chấm điểm chính xác, ổn định và thông báo đầy đủ, công khai các lỗi vi phạm của thí sinh trong quá trình sát hạch.
2.3.3.1.4. Có cơ chế bảo vệ và an toàn dữ liệu chống sự can thiệp từ bên ngoài và mất dữ liệu do các sự cố ngẫu nhiên; có cơ chế hiệu chỉnh các thông số làm việc của thiết bị khi có thay đổi quy định chấm điểm và không cho phép sự can thiệp của con người vào kết quả sát hạch.
2.3.3.1.5. Có cơ chế kiểm tra trạng thái hoạt động của từng thiết bị trên sân và trên xe sát hạch từ phòng điều hành. Các thiết bị phải làm việc độc lập theo chức năng, những sự cố của thiết bị này không làm ảnh hưởng đến hoạt động hoặc gây ra sự cố cho thiết bị khác cũng như toàn hệ thống, trừ thiết bị cấp nguồn.
2.3.3.1.6. Có khả năng tự động thông báo các lỗi bị trừ điểm, truất quyền sát hạch, kết quả sát hạch, hiệu lệnh xuất phát, kết thúc, bánh xe đè vạch giới hạn trên loa, màn hình hiển thị tại phòng điều hành và phòng chờ của thí sinh trong thời gian tối đa 03 giây, kể từ lúc vi phạm lỗi.
2.3.3.1.7. Hiển thị nội dung từng bài sát hạch và lỗi bị trừ điểm, tổng số điểm còn lại của từng thí sinh trên màn hình tại phòng chờ sát hạch.
2.3.3.1.8. Hệ thống camera giám sát trên sân sát hạch được kết nối với máy tính điều hành để tự động lưu trữ quá trình sát hạch và thời điểm thí sinh vi phạm lỗi chống chân hoặc để 02 bánh xe đi ra ngoài hình sát hạch.
2.3.3.1.9. Hệ thống cảm biến lắp đặt trên sân phải hoạt động ổn định, chính xác, không bị ảnh hưởng bởi sự thay đổi nhiệt độ, độ ẩm của môi trường.
2.3.3.1.10. Thiết bị lưu điện đảm bảo cung cấp điện ổn định cho toàn bộ hệ thống trong thời gian tối thiểu 15 phút, kể từ khi mất nguồn điện lưới.
2.3.3.2. Thiết bị trên xe sát hạch
2.3.3.2.1. Công tắc tắt và bật thiết bị chấm điểm tự động lắp trên xe sát hạch phải đặt trong hộp kín hoặc nằm ngoài tầm với của thí sinh.
2.3.3.2.2. Lưu được dữ liệu sát hạch của thí sinh đang sát hạch khi bị mất kết nối với máy tính trên phòng điều hành trong thời gian tối thiểu 20 phút.
2.3.3.2.3. Tự động phát hiện, trừ điểm các lỗi vi phạm của thí sinh khi: Thí sinh thực hiện không đúng trình tự bài sát hạch, không hoàn thành bài sát hạch, bánh xe đè vạch giới hạn hình sát hạch, bánh xe đè vạch cản, xe bị chết máy, xe sát hạch bị đổ.
2.3.3.2.4. Sử dụng nguồn điện của xe, mức điện áp sử dụng phải phù hợp với mức điện áp danh định của xe và có khả năng chịu cắm ngược cực theo quy định tại Bảng 5 của Quy chuẩn này.
Bảng 5: Điện áp danh định và điện áp thử nghiệm thiết bị trên xe sát hạch
|
Điện áp danh định (V) |
Điện áp thử nghiệm cắm ngược cực (V) |
|
06 |
06 ± 0,1 |
|
12 |
14 ± 0,1 |
|
24 |
28 ± 0,2 |
2.3.3.2.5. Có khả năng tự động chụp ảnh ngẫu nhiên thí sinh ít nhất 03 lần trong quá trình thực hiện các bài sát hạch, gửi dữ liệu ảnh chụp về phần mềm điều hành và quản lý sát hạch thực hành lái xe trong hình để lưu trữ vào cơ sở dữ liệu và in vào biên bản sát hạch thực hành lái xe trong hình.
2.3.3.2.6. Màn hình hiển thị trên xe sát hạch phải thể hiện được đầy đủ các trạng thái của xe sát hạch như: tình trạng động cơ (tắt, đang hoạt động), bài sát hạch đang thực hiện, điểm trừ từng lỗi vi phạm, tổng số điểm của thí sinh.
2.3.3.2.7. Có khả năng giao tiếp với phần mềm bên ngoài thông qua ít nhất một trong các giao thức: RF, cổng COM (RS232), cổng USB (chuẩn 2.0 trở lên) hoặc thẻ nhớ để có thể điều chỉnh khi thay đổi quy định chấm điểm và phục vụ công tác kiểm tra, kiểm chuẩn thiết bị.
2.3.3.2.8. Có kết nối không dây để thu, truyền dữ liệu đến thiết bị trên phòng điều hành và sân sát hạch. Hệ thống phải hoạt động ổn định không bị nhiễu loạn.
2.3.3.3. Phần mềm điều hành và quản lý sát hạch.
2.3.3.3.1. Có giao diện và hiển thị kết quả bằng tiếng Việt; hiển thị trực tuyến thông số, trạng thái của thiết bị; hiển thị trực tuyến và trên màn hình tại phòng chờ bài thi, điểm thi, hình ảnh chụp ngẫu nhiên của người đang thực hiện bài sát hạch; thể hiện được trạng thái kết nối với thiết bị chấm điểm lắp trên xe sát hạch, sân sát hạch, có chế độ cảnh báo nếu thiết bị mất kết nối, bị sự cố.
2.3.3.3.2. Có khả năng kết nối với máy tính giám sát sát hạch theo API được quy định tại Phụ lục kèm theo Quy chuẩn này.
2.3.3.3.3. Có khả năng tìm, truy cập, lưu trữ, thống kê, lập bảng, biểu đồ các dữ liệu liên quan đến danh sách thí sinh dự sát hạch, đã sát hạch, đang sát hạch, chưa sát hạch, số học viên sát hạch đạt và không đạt.
2.3.3.3.4. Có chức năng trừ điểm lỗi vi phạm khi thí sinh chống chân hoặc để 02 bánh xe đi ra ngoài hình sát hạch.
2.3.3.3.5. Phát âm thanh tín hiệu xuất phát và thông báo lỗi, truất quyền, kết quả sát hạch.
2.3.3.3.6. Có khả năng xem, lưu trữ hình ảnh của thí sinh; ảnh và đoạn video clip thể hiện quá trình sát hạch và tại thời điểm xảy ra lỗi vi phạm.
2.3.4. Thiết bị và phần mềm sát hạch thực hành lái xe trong hình hạng B, C1, C, D2, D1 và D.
Thiết bị và phần mềm sát hạch thực hành lái xe trong hình hạng B, C1, C, D2, D1 và D gồm thiết bị đặt tại phòng điều hành, thiết bị trên sân sát hạch, thiết bị trên xe sát hạch và phần mềm điều hành và quản lý sát hạch.
2.3.4.1. Thiết bị trên sân sát hạch và thiết bị đặt tại phòng điều hành.
2.3.4.1.1. Máy tính cài đặt phần mềm điều hành và quản lý sát hạch có cấu hình phần cứng đáp ứng vận hành phần mềm điều hành và quản lý sát hạch hoạt động ổn định trong trường hợp toàn bộ các xe sát hạch kết nối và thực hiện phần thi sát hạch thực hành lái xe trong hình; màn hình có kích thước tối thiểu 19 inch, độ phân giải tối thiểu 1366 x 768 pixels; sử dụng hệ điều hành Windows 10 hoặc Windows Server 2016 trở lên.
2.3.4.1.2. Hệ thống kết nối không dây thu, truyền dữ liệu đến thiết bị lắp trên xe sát hạch và sân sát hạch để báo lỗi, trừ điểm các lỗi vi phạm đảm bảo băng thông và tốc độ cho phép đánh giá chính xác cho ít nhất 20 xe sát hạch cùng sát hạch trong sân sát hạch hoạt động ổn định không bị nhiễu loạn.
2.3.4.1.3. Báo lỗi và chấm điểm chính xác, ổn định và thông báo đầy đủ, công khai các lỗi vi phạm của thí sinh trong quá trình sát hạch.
2.3.4.1.4. Có cơ chế bảo vệ và an toàn dữ liệu chống sự can thiệp từ bên ngoài và mất dữ liệu do các sự cố ngẫu nhiên; có cơ chế hiệu chỉnh các thông số làm việc của thiết bị khi có thay đổi quy định chấm điểm và không cho phép sự can thiệp của con người vào kết quả sát hạch.
2.3.4.1.5. Có cơ chế kiểm tra trạng thái hoạt động của từng thiết bị trên sân và trên xe sát hạch. Các thiết bị phải làm việc độc lập theo chức năng, những sự cố của thiết bị này không làm ảnh hưởng đến hoạt động hoặc gây ra sự cố cho thiết bị khác cũng như toàn hệ thống, trừ thiết bị cấp nguồn.
2.3.4.1.6. Có khả năng tự động thông báo các lỗi bị trừ điểm, truất quyền sát hạch, kết quả sát hạch, hiệu lệnh xuất phát và kết thúc.
2.3.4.1.7. Hiển thị nội dung từng bài sát hạch và lỗi bị trừ điểm, tổng số điểm còn lại của từng thí sinh dự sát hạch trên màn hình tại phòng chờ sát hạch.
2.3.4.1.8. Thiết bị lưu điện đảm bảo cung cấp điện ổn định cho toàn bộ hệ thống trong thời gian tối thiểu 15 phút kể từ khi mất nguồn điện lưới.
2.3.4.2. Thiết bị trên xe sát hạch.
2.3.4.2.1. Công tắc tắt và bật thiết bị chấm điểm tự động lắp trên xe sát hạch phải đặt trong hộp kín hoặc nằm ngoài tầm với của thí sinh (ngồi tại ghế lái).
2.3.4.2.2. Lưu được dữ liệu sát hạch của thí sinh đang sát hạch khi bị mất kết nối với máy tính trên phòng điều hành trong thời gian tối thiểu 20 phút.
2.3.4.2.3. Tự động phát hiện, trừ điểm và thông báo các lỗi vi phạm của thí sinh về: thực hiện không đúng trình tự bài sát hạch, đi không đúng hình quy định của hạng xe sát hạch, không đi qua hình sát hạch quy định và không hoàn thành bài sát hạch, thắt dây an toàn, bật và tắt xi nhan, thời gian qua vạch xuất phát, tốc độ động cơ, tốc độ xe chạy, xe bị chết máy, khoảng cách dừng xe không đúng vị trí quy định, xe bị tụt dốc, thời gian xe qua dốc, xe qua vệt bánh xe, bánh xe đè vạch giới hạn hình sát hạch, vi phạm đèn tín hiệu giao thông tại ngã tư, thời gian xe qua ngã tư, vi phạm quy tắc giao thông; thay đổi số, tốc độ; thời gian thực hiện bài sát hạch.
2.3.4.2.4. Sử dụng nguồn điện của xe ô tô, mức điện áp sử dụng phải phù hợp với mức điện áp danh định của xe ô tô và có khả năng chịu cắm ngược cực theo quy định tại Bảng 6 của Quy chuẩn này.
Bảng 6: Điện áp danh định và điện áp thử nghiệm thiết bị trên xe sát hạch
|
Điện áp danh định (V) |
Điện áp thử nghiệm cắm ngược cực (V) |
|
12 |
14 ± 0,1 |
|
24 |
28 ± 0,2 |
|
36 |
42 ± 0,2 |
2.3.4.2.5. Có khả năng tự động chụp ảnh ngẫu nhiên thí sinh ít nhất 03 lần trong quá trình thực hiện các bài sát hạch, gửi dữ liệu ảnh chụp để lưu trữ vào cơ sở dữ liệu của máy tính tại phòng điều hành và in vào biên bản sát hạch thực hành lái xe trong hình.
2.3.4.2.6. Màn hình hiển thị trên xe sát hạch phải thể hiện được đầy đủ các trạng thái của xe sát hạch như: tình trạng động cơ (tắt, đang hoạt động), tình trạng chuyển động (tiến, lùi, dừng), tay số hiện thời, vị trí bắt đầu và kết thúc từng bài sát hạch, bài sát hạch đang thực hiện, thời gian thực hiện từng bài sát hạch và tổng thời gian đã thực hiện, điểm trừ từng lỗi vi phạm, tổng số điểm của thí sinh.
2.3.4.2.7. Có đèn tín hiệu 03 màu (xanh - vàng - đỏ) lắp trên nóc và đèn tín hiệu 02 màu (xanh - đỏ) lắp trong ô tô sát hạch:
Hiệu lệnh xuất phát, thông báo đạt kết quả: đèn tín hiệu màu xanh;
Hiệu lệnh dừng xe khi gặp tình huống nguy hiểm: đèn tín hiệu màu vàng và đèn tín hiệu màu đỏ;
Hiệu lệnh đang thực hiện sát hạch: đèn tín hiệu màu vàng.
2.3.4.2.8. Có khả năng giao tiếp với phần mềm bên ngoài thông qua ít nhất một trong các giao thức: RF, cổng COM (RS232), cổng USB (chuẩn 2.0 trở lên) hoặc thẻ nhớ để có thể điều chỉnh khi thay đổi quy định chấm điểm và phục vụ công tác kiểm tra, kiểm chuẩn thiết bị.
2.3.4.2.9. Sau khi thực hiện xong mỗi bài sát hạch (trong khoảng cách 05 mét hoặc thời gian nhỏ hơn 3 giây) phải thông báo tín hiệu kết thúc, các lỗi bị trừ điểm, số điểm còn lại, tên của bài sát hạch tiếp theo; thông báo lỗi bị truất quyền sát hạch ngay khi thí sinh bị truất quyền sát hạch.
2.3.4.2.10. Có kết nối không dây để thu, truyền dữ liệu đến thiết bị trên phòng điều hành và sân sát hạch. Hệ thống phải hoạt động ổn định không bị nhiễu loạn.
2.3.4.3. Phần mềm điều hành và quản lý sát hạch.
2.3.4.3.1. Có giao diện và hiển thị kết quả bằng tiếng Việt, thể hiện được trạng thái kết nối với thiết bị chấm điểm lắp trên xe sát hạch, sân sát hạch, có chế độ cảnh báo nếu thiết bị mất kết nối, bị sự cố.
2.3.4.3.2. Có khả năng kết nối với máy tính giám sát sát hạch theo API được quy định tại Phụ lục kèm theo Quy chuẩn này.
2.3.4.3.3. Có khả năng tìm, truy cập, lưu trữ, thống kê, lập bảng, biểu đồ các dữ liệu liên quan đến danh sách thí sinh dự sát hạch, đã sát hạch, đang sát hạch, chưa sát hạch, số học viên sát hạch đạt và không đạt.
2.3.5. Thiết bị và phần mềm sát hạch thực hành lái xe trên đường hạng B, C1, C, D1, D2 và D.
2.3.5.1. Thiết bị đặt tại phòng điều hành.
2.3.5.1.1. Máy chủ cài đặt phần mềm điều hành và quản lý sát hạch có đường thuê bao riêng, có cấu hình phần cứng đáp ứng vận hành phần mềm điều hành và quản lý sát hạch hoạt động ổn định trong trường hợp toàn bộ các xe sát hạch kết nối và thực hiện phần thi sát hạch thực hành lái xe trên đường; màn hình có kích thước tối thiểu 19 inch, độ phân giải tối thiểu 1366 x 768 pixels; sử dụng hệ điều hành Windows 10 hoặc Windows Server 2016 trở lên.
2.3.5.1.2. Hệ thống kết nối không dây thu, truyền dữ liệu đến thiết bị lắp trên xe sát hạch để báo lỗi, trừ điểm các lỗi vi phạm đảm bảo băng thông và tốc độ cho phép đánh giá chính xác cho ít nhất 15 xe sát hạch cùng sát hạch lái xe trên đường hoạt động ổn định không bị nhiễu loạn.
2.3.5.1.3. Báo lỗi và chấm điểm chính xác, ổn định và thông báo đầy đủ, công khai nội dung từng bài sát hạch, lỗi bị trừ điểm, tổng số điểm còn lại của thí sinh.
2.3.5.1.4. Có cơ chế bảo vệ và an toàn dữ liệu chống sự can thiệp từ bên ngoài và mất dữ liệu do các sự cố ngẫu nhiên; có cơ chế hiệu chỉnh các thông số làm việc của thiết bị khi có thay đổi quy định chấm điểm; không cho phép sự can thiệp trái phép của con người vào kết quả sát hạch và lưu nhật ký quá trình chỉnh sửa dữ liệu.
2.3.5.1.5. Thiết bị lưu điện đảm bảo cung cấp điện ổn định cho toàn bộ hệ thống trong thời gian tối thiểu 15 phút kể từ khi mất nguồn điện lưới.
2.3.5.2. Thiết bị trên xe sát hạch.
2.3.5.2.1. Công tắc tắt và bật thiết bị chấm điểm tự động lắp trên xe sát hạch phải đặt trong hộp kín hoặc nằm ngoài tầm với của thí sinh.
2.3.5.2.2. Lưu được dữ liệu sát hạch của thí sinh đang sát hạch khi bị mất kết nối với máy tính trên phòng điều hành trong thời gian tối thiểu 48 giờ.
2.3.5.2.3. Tự động phát hiện, báo lỗi, trừ điểm khi thí sinh vi phạm các lỗi về: thắt dây an toàn; bật và tắt xi nhan; xe sát hạch bị chết máy; kéo và nhả phanh tay; trong khoảng 15 mét, không điều khiển thay đổi số từ số 1 lên số 3; sử dụng tay số không phù hợp tốc độ xe; không tăng, giảm đúng số; không giảm hết số khi dừng xe.
2.3.5.2.4. Có hệ thống nút bấm để lựa chọn số báo danh, ra hiệu lệnh để thí sinh thực hiện, ghi và trừ điểm các lỗi không chấm tự động như: vi phạm quy tắc giao thông, bị choạng lái quá làn đường quy định, xe sát hạch bị rung giật mạnh, không thực hiện theo hiệu lệnh của sát hạch viên, xử lý tình huống không hợp lý gây tai nạn. Hệ thống nút bấm được bố trí trên màn hình hiển thị của thiết bị chấm điểm và trên bàn phím kéo dài, đảm bảo thuận tiện cho sát hạch viên trong quá trình chấm điểm và bảo hiểm tay lái cho thí sinh. Không cho phép ra lệnh kết thúc bài sát hạch khi thí sinh chưa thực hiện đủ quãng đường sát hạch tối thiểu 2,0 km.
2.3.5.2.5. Trên xe sát hạch được bố trí 01 camera với các yêu cầu như sau:
Độ phân giải video tối thiểu 1280 x 720 pixels và tốc độ khung hình tối thiểu 30 hình trên giây;
Góc nhìn tối thiểu của camera phía trước là 140 độ;
Hỗ trợ thẻ nhớ tối thiểu 32 GB, đảm bảo ghi được hình ảnh tối thiểu 8 tiếng liên tục ở độ phân giải 1280 x 720 pixels và có khả năng sao chép dữ liệu vào thiết bị lưu trữ khi thẻ nhớ chứa hết lưu lượng;
Hỗ trợ giao tiếp qua cổng USB;
Có chức năng chống rung hình ảnh;
Có chức năng ghi âm;
Tích hợp pin, cho phép hoạt động khi không cần cấp nguồn tối thiểu 30 phút;
Camera được bố trí tại vị trí đảm bảo ghi được hình ảnh đồng thời phía trước và toàn bộ khu vực ngồi của thí sinh và sát hạch viên bên trong cabin xe sát hạch, có âm thanh theo thời gian thực;
Có tính năng thông báo trạng thái hoạt động và cảnh báo khi thiết bị xảy ra sự cố.
2.3.5.2.6. Sử dụng nguồn điện của xe ô tô, mức điện áp sử dụng phải phù hợp với mức điện áp danh định của xe ô tô và có khả năng chịu cắm ngược cực theo quy định tại Bảng 7 của Quy chuẩn này.
Bảng 7: Điện áp danh định và điện áp thử nghiệm thiết bị trên xe sát hạch
|
Điện áp danh định (V) |
Điện áp thử nghiệm cắm ngược cực (V) |
|
12 |
14 ± 0,1 |
|
24 |
28 ± 0,2 |
|
36 |
42 ± 0,2 |
2.3.5.2.7. Có khả năng tự động chụp ảnh ngẫu nhiên thí sinh ít nhất 03 lần trong quá trình thực hiện bài sát hạch, gửi dữ liệu ảnh chụp về phần mềm điều hành và quản lý sát hạch thực hành lái xe trên đường để lưu trữ vào cơ sở dữ liệu và in vào biên bản sát hạch thực hành lái xe trên đường.
2.3.5.2.8. Màn hình hiển thị của thiết bị phải thể hiện được đầy đủ các trạng thái của xe sát hạch như: tình trạng động cơ (tắt, đang hoạt động); bài sát hạch đang thực hiện; quãng đường đã sát hạch; điểm trừ lỗi vi phạm; tổng số điểm của thí sinh; tình trạng có sóng, mất sóng của hệ thống thông tin di động toàn cầu (GSM); tình trạng có kết nối, mất kết nối với máy chủ; tình trạng có tín hiệu, mất tín hiệu của hệ thống vệ tinh định vị toàn cầu (GNSS) ; tình trạng hoạt động của bộ nhớ lưu trữ dữ liệu.
2.3.5.2.9. Hệ thống loa trên xe sát hạch phải thông báo được các tín hiệu xuất phát, kết thúc, lỗi vi phạm, hiệu lệnh của sát hạch viên, kết quả sát hạch của thí sinh trong và ngay sau khi thực hiện xong nội dung yêu cầu (không quá 03 giây).
2.3.5.2.10. Có kết nối không dây để tự động nhận trực tuyến danh sách thí sinh lái xe trên đường từ máy chủ đặt tại phòng điều hành; thu và truyền dữ liệu về kết quả sát hạch, quãng đường sát hạch, lỗi vi phạm và ảnh của thí sinh đến máy chủ đặt tại phòng điều hành, hệ thống phải hoạt động ổn định không bị nhiễu loạn, không phụ thuộc khoảng cách từ xe sát hạch đến trung tâm sát hạch, dữ liệu được truyền tự động trực tuyến về máy chủ đặt tại phòng điều hành với tần suất không quá 30 giây trên một lần để công khai trên màn hình tại phòng chờ của trung tâm sát hạch và có khả năng in ra kết quả khi cần thiết. Trong trường hợp mất kết nối với máy chủ do gián đoạn đường truyền, thiết bị phải tự động gửi lại đầy đủ dữ liệu đã ghi nhận được trước đó về máy chủ ngay sau khi đường truyền hoạt động trở lại hoặc khi xe sát hạch về trung tâm sát hạch.
2.3.5.2.11. Có máy in trên xe sát hạch để tự động in kết quả của thí sinh ngay khi kết thúc.
2.3.5.2.12. Có khả năng giao tiếp với phần mềm bên ngoài thông qua ít nhất một trong các giao thức: RF, cổng COM (RS232), cổng USB (chuẩn 2.0 trở lên) hoặc thẻ nhớ để có thể điều chỉnh khi thay đổi quy định chấm điểm và phục vụ công tác kiểm tra, kiểm chuẩn thiết bị.
2.3.5.3. Phần mềm điều hành và quản lý sát hạch.
2.3.5.3.1. Có giao diện và hiển thị kết quả bằng tiếng Việt, thể hiện được trạng thái kết nối với thiết bị chấm điểm lắp trên xe sát hạch, có chế độ cảnh báo nếu thiết bị mất kết nối, bị sự cố. Hiển thị trực tuyến thông số, trạng thái, điểm bị trừ, tổng số điểm, hình ảnh chụp ngẫu nhiên của thí sinh, vị trí của xe sát hạch trên bản đồ số. Hiển thị kết quả khách quan trên màn hình tại phòng chờ;
2.3.5.3.2. Dữ liệu, danh sách người đạt sát hạch lái xe trong hình hoặc chỉ phải sát hạch lại trên đường được cập nhật tự động, trực tuyến xuống thiết bị trên xe sát hạch trên đường;
2.3.5.3.3. Có khả năng kết nối Internet khi có yêu cầu và khả năng tìm, truy cập, lưu trữ, thống kê, lập bảng, biểu các dữ liệu liên quan đến danh sách thí sinh đã sát hạch, đang sát hạch, chưa sát hạch, số học viên sát hạch đạt và không đạt;
2.3.5.3.4. Cơ sở dữ liệu cho phép đồng bộ với cơ sở dữ liệu trên máy tính điều hành sát hạch lái xe trong hình thành cơ sở dữ liệu tổng hợp chung của thí sinh;
2.3.5.3.5. Tự động in kết quả của thí sinh trên xe sát hạch khi kết thúc bài sát hạch, hoặc in lại kết quả bài sát hạch của thí sinh tại trung tâm sát hạch. Kết quả sát hạch của thí sinh phải thể hiện được họ và tên thí sinh, số báo danh, thời điểm bắt đầu bài thi, thời điểm kết thúc bài thi, điểm đạt được, các lỗi bị trừ điểm và đánh giá;
2.3.5.3.6. Bài sát hạch của thí sinh có ảnh chụp tự động trong quá trình sát hạch, thể hiện rõ thời gian bắt đầu thi và tổng số quãng đường đi được của thí sinh;
2.3.5.3.7. Định vị được vị trí xe sát hạch trên bản đồ số.
2.4. Nhà điều hành sát hạch
2.4.1. Diện tích xây dựng:
2.4.1.1. Trung tâm loại 1 tối thiểu 250 m2.
2.4.1.2. Trung tâm loại 2 tối thiểu 200 m2.
2.4.1.3. Trung tâm loại 3 tối thiểu 100 m2.
2.4.2. Vị trí nhà điều hành phải bố trí gần vị trí bài sát hạch xuất phát hoặc kết thúc.
2.4.3. Các phòng chức năng.
2.4.3.1. Phòng chờ sát hạch:
2.4.3.1.1. Đối với trung tâm loại 1 hoặc loại 2: bố trí ghế ngồi cho thí sinh, có tối thiểu 05 màn hình để hiển thị kết quả sát hạch lý thuyết, kết quả sát hạch mô phỏng các tình huống giao thông, kết quả sát hạch thực hành lái xe trong hình, kết quả sát hạch thực hành lái xe trên đường và hình ảnh giám sát sát hạch (trường hợp sử dụng 01 màn hình để hiển thị đồng thời kết quả sát hạch lý thuyết, kết quả sát hạch mô phỏng các tình huống giao thông, kết quả sát hạch thực hành lái xe trong hình, kết quả sát hạch thực hành lái xe trên đường và hình ảnh giám sát sát hạch thì phải đảm bảo vùng hiển thị mỗi nội dung có độ dài đường chéo tối thiểu 50 inch);
2.4.3.1.2. Đối với trung tâm loại 3: bố trí ghế ngồi cho thí sinh, có tối thiểu 03 màn hình để hiển thị kết quả sát hạch lý thuyết, kết quả sát hạch thực hành lái xe trong hình và hình ảnh giám sát sát hạch (trường hợp sử dụng 01 màn hình để hiển thị đồng thời kết quả kết quả sát hạch lý thuyết, kết quả sát hạch thực hành lái xe trong hình và hình ảnh giám sát sát hạch thì phải đảm bảo bảo vùng hiển thị mỗi nội dung có độ dài đường chéo tối thiểu 50 inch).
2.4.3.2. Phòng hướng dẫn sát hạch: bố trí đủ bàn ghế và các trang thiết bị để thí sinh vào chuẩn bị và tiếp nhận các thông tin liên quan đến kỳ sát hạch.
2.4.3.3. Phòng sát hạch lý thuyết.
2.4.3.3.1. Có máy điều hòa nhiệt độ, bố trí đủ máy tính và máy in phục vụ sát hạch lý thuyết;
2.4.3.3.2. Có camera giám sát sát hạch;
2.4.3.3.3. Có vách ngăn giữa các máy tính để tạo không gian riêng biệt cho thí sinh. Phần tính từ mép mặt bàn phía ngoài có chiều dài tối thiểu 50cm và chiều cao tối thiểu 60cm.
2.4.3.4. Phòng sát hạch mô phỏng các tình huống giao thông (có thể sử dụng chung với phòng sát hạch lý thuyết trong trường hợp thiết bị sát hạch mô phỏng các tình huống giao thông dùng chung với thiết bị sát hạch lý thuyết).
2.4.3.4.1. Có máy điều hòa nhiệt độ, bố trí đủ máy tính và máy in phục vụ sát hạch mô phỏng các tình huống giao thông.
2.4.3.4.2. Có camera giám sát sát hạch;
2.4.3.4.3. Có vách ngăn giữa các máy tính để tạo không gian riêng biệt cho thí sinh. Phần tính từ mép mặt bàn phía ngoài có chiều dài tối thiểu 50cm và chiều cao tối thiểu 60cm.
2.4.3.5. Phòng điều hành thiết bị chấm điểm thực hành lái xe trong hình:
2.4.3.5.1. Có vị trí và kiến trúc phù hợp để người điều hành thiết bị quan sát được tất cả các ô tô sát hạch trong sân sát hạch;
2.4.3.5.2. Có trang bị thiết bị nhận tín hiệu báo lỗi và chấm điểm, có hệ thống thông tin bộ đàm;
2.4.3.5.3. Có máy điều hoà nhiệt độ.
2.4.3.6. Phòng hội đồng sát hạch: có điều hòa nhiệt độ, có màn hình để hiển thị hình ảnh giám sát sát hạch tại phòng sát hạch lý thuyết, phòng sát hạch mô phỏng các tình huống giao thông và sân sát hạch.
2.5. Các thiết bị hỗ trợ
2.5.1. Máy phát điện dự phòng:
Có thể tự động phát điện trong khoảng thời gian không quá 10 phút, kể từ khi mất nguồn điện lưới.
2.5.1.1. Công suất máy phát điện:
2.5.1.1.1. Tối thiểu 10 kVA đối với trung tâm sát hạch loại 3.
2.5.1.1.2. Tối thiểu 20 kVA đối với trung tâm sát hạch loại 1 và loại 2.
2.5.2. Màn hình hiển thị tại phòng chờ sát hạch có kích thước từ 50 inch trở lên.
2.5.3. Thiết bị giám sát sát hạch bao gồm hệ thống camera giám sát sát hạch và máy tính giám sát kết quả sát hạch.
2.5.3.1. Hệ thống camera giám sát sát hạch:
2.5.3.1.1. Camera giám sát sát hạch có độ phân giải 1280 x 720 pixels trở lên.
2.5.3.1.2. Có giao diện tương tác, kết nối đáp ứng tối thiểu theo tiêu chuẩn mở ONVIF.
2.5.3.1.3. Được đồng bộ về thời gian với máy chủ sát hạch, máy tính điều hành sát hạch.
2.5.3.1.4. Truyền dữ liệu hình ảnh (dạng video) theo giao thức chuẩn mở sử dụng cho trao đổi dữ liệu hai chiều thời gian thực giữa máy chủ và máy trạm (websocket).
2.5.3.1.5. Đảm bảo tính bảo mật, ngăn chặn các truy cập trái phép từ bên ngoài.
2.5.3.1.6. Có khả năng lưu trữ hình ảnh liên tục tối thiểu 40 giờ và đảm bảo quan sát được toàn bộ phòng sát hạch lý thuyết, phòng sát hạch mô phỏng các tình huống giao thông, toàn bộ hình các bài sát hạch và khu vực xuất phát, kết thúc của sân sát hạch.
2.5.3.2. Máy tính giám sát sát hạch:
2.5.3.2.1. Được kết nối với máy chủ sát hạch lý thuyết, máy chủ sát hạch mô phỏng các tình huống giao thông, máy tính cài đặt phần mềm điều hành và quản lý sát hạch thực hành lái xe trong hình, máy tính cài đặt phần mềm điều hành và quản lý sát hạch thực hành lái xe trên đường và hệ thống thông tin phục vụ quản lý sát hạch lái xe tại Sở Giao thông vận tải theo giao thức quy định tại Phụ lục kèm theo Quy chuẩn này.
2.5.3.2.2. Được cài đặt phần mềm giám sát sát hạch do Cục Đường bộ Việt Nam chuyển giao.
2.5.3.2.3. Có thiết bị lưu điện tập trung hay cục bộ đảm bảo cấp điện ổn định và không làm gián đoạn trong thời gian tối thiểu 15 phút, kể từ khi mất nguồn điện lưới.
2.5.3.2.4. Được cài đặt phần mềm diệt vi rút và có giải pháp bảo đảm an toàn dữ liệu.
2.5.3.2.5. Có cơ chế bảo vệ và an toàn dữ liệu chống sự can thiệp từ bên ngoài và mất dữ liệu do các sự cố ngẫu nhiên; không cho phép sự can thiệp trái phép của con người vào kết quả sát hạch và lưu nhật ký quá trình chỉnh sửa dữ liệu.
2.6. Các công trình phụ trợ khác
Có nhà để xe cơ giới dùng để sát hạch, nhà nghỉ và lưu trú cho các thành viên hội đồng sát hạch, phòng y tế và khu vực vệ sinh.
3. TỔ CHỨC THỰC HIỆN
3.1. Trách nhiệm của cơ quan quản lý nhà nước
3.1.1. Cục Đường bộ Việt Nam:
Kiểm tra việc thực hiện Quy chuẩn này.
3.1.2. Sở Giao thông vận tải:
3.1.2.1. Kiểm tra việc đáp ứng các quy định kỹ thuật của Quy chuẩn này để cấp mới, cấp lại Giấy phép sát hạch theo quy định.
3.1.2.2. Tổ chức kiểm tra, đánh giá độ chính xác của thiết bị chấm điểm tự động khi trung tâm sát hạch lái xe cập nhật, thay đổi phần mềm của hệ thống thiết bị chấm điểm; lưu trữ các phần mềm của hệ thống thiết bị chấm điểm do trung tâm sát hạch lái xe cung cấp.
3.2. Trách nhiệm của trung tâm sát hạch lái xe
3.2.1. Không được thay đổi vị trí, kết cấu lắp đặt thiết bị chấm điểm trên xe và sân sát hạch sau khi đã được kiểm tra, kiểm chuẩn; không được thay đổi hình dáng, kết cấu, tổng thành, hệ thống của xe sát hạch so với thiết kế của nhà sản xuất.
3.2.2. Duy trì hệ thống thông tin, đường truyền trực tuyến để truyền trực tiếp dữ liệu giám sát sát hạch về Sở Giao thông vận tải (cơ quan quản lý trực tiếp hoạt động trung tâm sát hạch lái xe) và Công an tỉnh, thành phố để phục vụ công tác quản lý, kiểm tra và xử lý vi phạm.
3.2.3. Thực hiện các quy định về an toàn điện, an toàn lao động và an toàn phòng chống cháy nổ theo quy định.
3.2.4. Chỉ được sử dụng các phần mềm, trang thiết bị, xe cơ giới đã được kiểm tra, kiểm chuẩn, chứng nhận đủ điều kiện để sát hạch lái xe.
3.2.5. Chấp hành và phối hợp với cơ quan có thẩm quyền trong việc kiểm tra, đánh giá định kỳ và đột xuất việc thực hiện Quy chuẩn này.
3.2.6. Báo cáo Sở Giao thông vận tải bằng văn bản trước mỗi lần cập nhật, thay đổi phần mềm của hệ thống thiết bị chấm điểm, phần mềm thay đổi được ghi trên đĩa CD hoặc USB được niêm phong và gửi kèm theo văn bản báo cáo.
3.3. Điều khoản chuyển tiếp
3.3.1. Trung tâm sát hạch lái xe cơ giới đường bộ đã được cấp giấy chứng nhận trung tâm sát hạch lái xe đủ điều kiện hoạt động trước ngày quy chuẩn này có hiệu lực thi hành thì được tiếp tục hoạt động và sát hạch các hạng lái xe ghi trong giấy chứng nhận để cấp các hạng giấy phép lái xe tương ứng quy định tại khoản 3 Điều 89 Luật Trật tự, an toàn giao thông đường bộ đến hết ngày 30/6/2025. Kể từ ngày 01 tháng 7 năm 2025, các Trung tâm sát hạch lái xe cơ giới đường bộ này phải đảm bảo đáp ứng đủ các điều kiện quy định tại Quy chuẩn này mới được tiếp tục hoạt động sát hạch lái xe theo quy định.
3.3.2. Trung tâm sát hạch lái xe đáp ứng đủ các điều kiện quy định trong Quy chuẩn này được sát hạch các hạng giấy phép lái xe theo quy định tại khoản 1 khoản 2 và khoản 3 Điều 57 Luật Trật tự, an toàn giao thông đường bộ từ ngày 01/01/2025.
3.4. Văn bản áp dụng
Trường hợp các tiêu chuẩn, quy chuẩn và văn bản quy phạm pháp luật được dẫn chiếu trong Quy chuẩn này được sửa đổi, bổ sung hoặc thay thế thì áp dụng theo các văn bản được sửa đổi, bổ sung hoặc thay thế đó./.
PHỤ LỤC
MÔ TẢ GIAO THỨC TRUYỀN DỮ LIỆU GIỮA CÁC
MÁY CHỦ SÁT HẠCH VÀ MÁY CHỦ GIÁM SÁT SÁT HẠCH
1. Các yêu cầu chung
|
Thông số |
Yêu cầu |
|
Mô hình API |
Theo chuẩn RESTful API, hỗ trợ kiểu dữ liệu JSON. |
|
Thông tin server |
Do Cục Đường bộ Việt Nam công bố. |
|
Quy định |
- Thông tin, dữ liệu cung cấp phải đảm bảo đầy đủ theo cấu trúc, định dạng quy định tại phụ lục này - Thông tin, dữ liệu cung cấp phải bảo đảm kịp thời, chính xác, đầy đủ, không được sửa chữa hoặc làm sai lệch dữ liệu trước, trong hoặc sau khi truyền dữ liệu. |
|
Giao thức truyền |
Giao thức kết nối https sử dụng chứng chỉ TLS (được quy định tại Tiêu chuẩn cơ sở TCCS 01:2020/CATTT) |
|
Định dạng dữ liệu gửi đi |
Dữ liệu gửi lên server là định dạng JSON. Thêm header: Content-Type: application/json |
|
Định dạng dữ liệu nhận về |
Để nhận về dữ liệu dạng JSON Thêm header: Accept: application/json |
|
Tiêu chuẩn dữ liệu |
Hệ thống hỗ trợ dữ liệu chuẩn Unicode (UTF-8) (4) |
|
Tiêu chuẩn thời gian |
Sử dụng chuẩn UNIX time (Giờ UTC+7): Thời gian Unix được định nghĩa bằng số giây kể từ 00:00:00 theo giờ Phối hợp Quốc tế ngày 1 tháng 1 năm 1970, trừ đi giây nhuận. Tính đến giây. |
|
Bảo mật |
- Giao thức truyền sử dụng HTTPS - Đăng nhập và phân quyền sử dụng JWT (5) - Chỉ cấp phép truyền dữ liệu cho một số IP định trước trong yêu cầu kết nối của doanh nghiệp. Các IP không được đăng kí sẽ không kết nối được đến phần mềm giám sát sát hạch Sở GTVT. |
|
Độ trễ cho phép cho việc truyền dữ liệu |
2 phút |
|
Kích thước tối đa của một ảnh |
512 KB Đây là kích thước tối đa của một ảnh mà Sở GTVT ghi nhận là một ảnh có kích thước hợp lệ. |
|
Đồng bộ thời gian |
Theo chuẩn NTP. TTSH cần đồng bộ thời gian với máy chủ nhà cung cấp. |
Dữ liệu trả về có định dạng chung như sau:
|
Tên trường |
Mô tả |
|
Code |
Mã lỗi (Giá trị 1 nếu request thành công) |
|
Message |
Thông tin chi tiết về lỗi (“Thành công” hoặc không có nếu request thành công) |
|
Data |
Dữ liệu trả về (Tùy thuộc vào từng API mà có các dữ liệu trả về khác nhau) |
|
Extra |
Thông tin bổ sung (nếu có) |
|
Exception |
Lỗi xảy ra (nếu có). TTSH thường xuyên kiểm tra trường Exception này để xem thông tin nguyên nhân gây lỗi, mã lỗi. |
|
ExceptionMessage |
Mô tả chi tiết về Exception (Nếu có). TTSH thường xuyên kiểm tra trường ExceptionMessage để xem nguyên nhân, cách khắc phục. |
Lưu ý: Do cần thời gian kết nối và thời gian xử lý yêu cầu nên kết quả trả về có thể phải chờ 1 khoảng thời gian (khuyến nghị để thời gian timeout khi gửi yêu cầu khoảng 10 phút)
2. Yêu cầu đối với dữ liệu khi truyền
a. Bảo mật kênh truyền bằng HTTP
Các máy chủ của TTSH tham gia quá trình truyền, phần mềm giám sát sát hạch Sở GTVT đều sử dụng HTTPS. Đây là yêu cầu tất yếu của các trang web hiện nay.
b. Bảo mật bằng IP
- Mỗi một trung tâm sát hạch phải đăng kí danh sách IP tại Việt Nam với Sở GTVT. Các IP không được đăng kí sẽ không truyền được dữ liệu.
- Khi có sự thay đổi, bổ sung IP thì TTSH phải thông báo cho Sở GTVT.
c. Bảo mật JWT
Để đăng nhập và truyền dữ liệu được với phần mềm giám sát sát hạch Sở GTVT phương thức bảo mật là JWT (JSON Web Token).
- Người dùng đăng nhập với tên đăng nhập và mật khẩu của tài khoản truyền dữ liệu qua hàm đăng nhập (hướng dẫn ở mục 2.4.a)
- Máy chủ sẽ nhận được yêu cầu của người dùng, đồng thời kiểm tra thông tin tên đăng nhập và mật khẩu.
- Máy chủ sau khi kiểm tra thông tin người dùng, nếu đúng sẽ trả một JWT về cho người dùng, nếu không quay lại bước 1.
- Người dùng sẽ sử dụng mã JWT để tiếp tục sử dụng cho các yêu cầu kế tiếp trên miền của máy chủ.
- Máy chủ sẽ không cần phải kiểm tra lại thông tin người dùng mà chỉ cần kiểm tra đúng JWT đã được cấp từ đó tăng tốc độ sử dụng trên miền giảm thời gian truy vấn.
- Máy chủ trả phản hồi phù hợp cho người dùng.
3. Các bước của quá trình truyền dữ liệu giữa phần mềm giám sát tại TTSH và Sở GTVT
Bước 1: Trung tâm sát hạch thực hiện đăng ký user với Sở GTVT. Sau bước này thì TTSH có được user & password để truyền dữ liệu vào hệ thống.
Bước 2: Trung tâm sát hạch thực hiện login để lấy Token. Nếu đăng nhập thành công thì TTSH nhận được mã Token. Đây là mã bảo mật truyền dữ liệu qua lại. Mã Token có thời hạn. TTSH chú ý kiểm tra Token có hết hạn hay không.
Bước 3: Khởi tạo quá trình truyền thông qua tập lệnh API được mô tả kèm theo tài liệu này. TTSH tiến hành tra soát các thông tin mà hệ thống trả về. Nếu mã trả về là OK thì hệ thống đã nhận được dữ liệu. Nếu lỗi xảy ra thì TTSH kiểm tra thông báo đi kèm về nguyên nhân gây lỗi để khắc phục.
Bước 4: Trong quá trình truyền TTSH định kì kiểm tra thông tin trạng thái hệ thống. Nếu hệ thống bận thì vui lòng chờ đến chu kì kiểm tra kế tiếp. Chỉ khi máy chủ trả về trạng thái sẵn sàng nhận dữ liệu thì TTSH được phép truyền.
Bước 5: Lặp lại bước 3 và bước 4. TTSH phải có hệ thống cảnh báo những dữ liệu lỗi và kiểm tra toàn bộ các dữ liệu lỗi hàng ngày. Tránh trường hợp bị lỗi kéo dài, ảnh hưởng đến học viên và dữ liệu báo cáo của Sở GTVT. Sở GTVT vẫn ghi nhận các lỗi này để đánh giá chất lượng truyền dẫn, ghi nhận dữ liệu của TTSH.
Bước 6: Hàng ngày TTSH phải có tránh nhiệm đối soát lượng dữ liệu truyền hàng ngày, dữ liệu lỗi, dữ liệu truyền thành công để tiến hành khắc phục ngay lập tức khi có sự cố.
● Lưu ý:
- Kiểm tra thời gian của máy chủ truyền dẫn với máy chủ của CĐBVN để tránh trường hợp lệch thời gian.
- Kiểm tra định kỳ trạng thái truyền nhận/ bận / sẵn sàng của máy chủ để tránh trường hợp gây quá tải đường truyền.
- Có cơ chế giám sát việc truyền nhận, tránh truyền lặp lại dữ liệu số lượng lớn. Máy chủ CĐBVN có thể khóa tạm thời một user nếu thực hiện truyền sai quy định, truyền dữ liệu ảo, truyền dữ liệu quá lớn trong thời gian dài.
4. Các bước của quá trình truyền dữ liệu giữa phần mềm giám sát tại TTSH và các phần mềm sát hạch (Sát hạch lý thuyết/Sát hạch trên đường/Sát hạt Mô phỏng/Sát hạch thực hành)
Bước 1: Trung tâm sát hạch thực hiện đăng ký user của các môn (Sát hạch lý thuyết/Sát hạch trên đường/Sát hạt Mô phỏng/Sát hạch thực hành) với Phần mềm Giám sát sát hạch. Sau bước này thì TTSH có được user & password để truyền dữ liệu vào hệ thống giám sát tại TTSH.
Bước 2: Trung tâm sát hạch thực hiện login để lấy Token. Nếu đăng nhập thành công thì TTSH nhận được mã Token. Đây là mã bảo mật truyền dữ liệu qua lại. Mã Token có thời hạn. TTSH chú ý kiểm tra Token có hết hạn hay không.
Bước 3: Khởi tạo quá trình truyền thông qua tập lệnh API được mô tả kèm theo tài liệu này. TTSH tiến hành tra soát các thông tin mà hệ thống trả về. Nếu mã trả về là OK thì hệ thống đã nhận được dữ liệu. Nếu lỗi xảy ra thì TTSH kiểm tra thông báo đi kèm về nguyên nhân gây lỗi để khắc phục
4.1. Đăng nhập và duy trì phiên truyền dữ liệu
Hàm đăng nhập
|
Thông số |
Mô tả |
||||
|
URL |
api/v1/provider/login |
||||
|
Phương thức |
POST |
||||
|
Mô tả |
API này cho phép các TTSH lấy token của phiên đăng nhập. Token cung cấp quyền giao tiếp với phần mềm giám sát sát hạch Sở GTVT |
||||
|
Dữ liệu đầu vào |
Tên trường |
Kiểu dữ liệu |
Độ dài kí tự |
Bắt buộc |
Mô tả |
|
UserName |
String |
20 |
X |
Tên người dùng |
|
|
Password |
String |
20 |
X |
Mật khẩu của người dùng |
|
|
Dữ liệu trả về |
Tên trường |
Kiểu dữ liệu |
Độ dài kí tự |
Bắt buộc |
Mô tả |
|
Token |
String |
2000 |
X |
Mã token sử dụng để xác thực JWT |
|
● Lưu ý:
- Trong trường hợp đăng nhập thành công thì hệ thống sẽ trả về trường Token là giá trị mã bảo mật phiên hiện tại. Trong token sẽ chứa một vài thông tin liên quan đến thời hạn của token, TTSH trích xuất lấy thông tin này và đăng nhập lại tạo token trong trường hợp cần thiết
- Trong trường hợp đăng nhập không thành công thì hệ thống trả về mã lỗi.
- Tham khảo thêm bảng mã trạng thái lỗi thực hiện lệnh.
- Hệ thống chỉ nhận thao tác sau khi đã đăng nhập thành công
a. Hàm đăng xuất
|
Thông số |
Mô tả |
||||
|
URL |
api/v1/provider/logout |
||||
|
Phương thức |
POST |
||||
|
Mô tả |
API này cho phép đăng xuất một user khỏi hệ thống |
||||
|
Header |
Authorization Token (Được khởi tạo sau quá trình login) |
||||
|
Dữ liệu đầu vào |
Tên trường |
Kiểu dữ liệu |
Độ dài kí tự |
Bắt buộc |
Mô tả |
|
UserName |
String |
20 |
X |
Tên đăng nhập người dùng |
|
|
Dữ liệu trả về |
Tên trường |
Kiểu dữ liệu |
Độ dài kí tự |
Bắt buộc |
Mô tả |
|
|
Code |
Int |
5 |
X |
Trạng thái thực hiện lệnh |
● Lưu ý:
- Code = 1 là thành công
- Tham khảo thêm bảng mã lỗi thực hiện lệnh.
b. Hàm đổi mật khẩu
|
Thông số |
Mô tả |
||||
|
URL |
api/v1/provider/changepassword |
||||
|
Phương thức |
POST |
||||
|
Mô tả |
API này cho phép đổi mật khẩu của một user trên hệ thống |
||||
|
Header |
Authorization Token (Được khởi tạo sau quá trình login) |
||||
|
Dữ liệu đầu vào |
Tên trường |
Kiểu dữ liệu |
Độ dài kí tự |
Bắt buộc |
Mô tả |
|
UserName |
String |
20 |
X |
Tên đăng nhập người dùng |
|
|
Password |
String |
20 |
X |
Mật khẩu của người dùng |
|
|
NewPassword |
String |
20 |
X |
Mật khẩu mới |
|
|
Dữ liệu trả về |
Tên trường |
Kiểu dữ liệu |
Độ dài kí tự |
Bắt buộc |
Mô tả |
|
|
Code |
Int |
5 |
X |
Trạng thái thực hiện lệnh |
c. Hàm kiểm tra thời gian máy chủ
|
Thông số |
Mô tả |
||||
|
URL |
api/v1/server/getcurrentime |
||||
|
Phương thức |
POST |
||||
|
Mô tả |
API này cho phép lấy thông tin thời gian hiện tại của server |
||||
|
Header |
Authorization Token (Được khởi tạo sau quá trình login) |
||||
|
Dữ liệu đầu vào |
Tên trường |
Kiểu dữ liệu |
Độ dài kí tự |
Bắt buộc |
Mô tả |
|
UserName |
String |
20 |
X |
Tên đăng nhập người dùng |
|
|
Dữ liệu trả về |
Tên trường |
Kiểu dữ liệu |
Độ dài kí tự |
Bắt buộc |
Mô tả |
|
|
CurrentTime |
Datetime |
|
X |
Thời gian hiện tại của Server |
4.2. Các hàm truyền dữ liệu từ Sở GTVT
a) Dữ liệu thông tin sát hạch
|
Thông số |
Mô tả |
||||
|
URL |
api/v1/data/exam |
||||
|
Phương thức |
POST |
||||
|
Mô tả |
API cho phép truyền thông tin dữ liệu sát hạch từ phần mềm giám sát sát hạch tại Sở GTVT tới Trung tâm sát hạch |
||||
|
Header |
Authorization Token (Được khởi tạo sau quá trình login) DepartmentTransport: Mã sở GTVT |
||||
|
Dữ liệu đầu vào |
Tên trường |
Kiểu dữ liệu |
Độ dài kí tự |
Bắt buộc |
Mô tả |
|
TotalRecords |
Int |
5 |
|
Tổng số bản ghi |
|
|
ExamCode |
String |
20 |
X |
Mã kỳ sát hạch |
|
|
ExamName |
String |
255 |
X |
Tên kỳ sát hạch |
|
|
CenterID |
String |
10 |
X |
Mã trung tâm sát hạch |
|
|
ExamDate |
Date |
10 |
X |
Ngày sát hạch Định dạng: yyyy-mm-dd VD: 2024-01-01 |
|
|
ExamTime |
Int |
4 |
X |
Giờ sát hạch Định dạng hhmm VD: 730; 1400 |
|
|
DecisionNo |
String |
30 |
|
Số quyết định |
|
|
DecisionDate |
Date |
10 |
|
Ngày quyết định Định dạng: yyyy-mm-dd VD: 2024-01-01 |
|
|
DecisionMaker |
String |
255 |
|
Người ra quyết định |
|
|
BoardExaminers |
List<Boar dData> |
|
|
Danh sách hội đồng sát hạch Tham chiếu mục 2. Dữ liệu hội đồng sát hạch |
|
|
TotalRegister |
Int |
8 |
|
Tổng số học viên đăng ký |
|
|
StudentData |
List<Stud entData> |
|
X |
Danh sách học viên dự sát hạch Tham chiếu mục 3. Dữ liệu học viên dự sát hạch |
|
|
Dữ liệu trả về |
Tên trường |
Kiểu dữ liệu |
Độ dài kí tự |
Bắt buộc |
Mô tả |
|
Code |
Int |
5 |
X |
Mã thực thi lệnh |
|
b) Dữ liệu hội đồng sát hạch
|
Tên trường |
Kiểu dữ liệu |
Độ dài kí tự |
Bắt buộc |
Mô tả |
|
BoardExaminers |
List<BoardData> |
|
|
Danh sách hội đồng sát hạch |
|
Position |
Int |
2 |
|
Chức vụ: 1. Chủ tịch hội đồng sát hạch 2. Ủy viên Giám đốc trung tâm sát hạch 3. Ủy viên Giảm đốc cơ sở đào tạo 4. Ủy viên tổ trưởng tổ sát hạch 5. Ủy viên thư ký 6. Sát hạch viên |
|
ExaminersName |
String |
100 |
|
Họ và tên sát hạch viên |
c) Dữ liệu học viên dự sát hạch
|
Tên trường |
Kiểu dữ liệu |
Độ dài kí tự |
Bắt buộc |
Mô tả |
|
StudentData |
List<StudentData> |
|
X |
Danh sách học viên dự sát hạch |
|
StudentId |
String |
30 |
X |
Mã đăng ký |
|
FullName |
String |
255 |
X |
Họ và tên học viên |
|
Gender |
Int |
1 |
X |
Giới tính 0 - Nam, 1 - Nữ, 2 - Khác |
|
DateOfBirth |
Date |
10 |
X |
Ngày sinh Định dạng: yyyy-mm-dd VD: 2024-01-01 |
|
CCCDID |
String |
50 |
X |
CMND/ CCCD/ Hộ chiếu |
|
CountryCode |
String |
3 |
X |
Danh mục nước Thuộc danh mục |
|
Residence |
String |
255 |
|
Nơi cư trú |
|
ResidenceCode |
String |
30 |
X |
Mã đơn vị hành chính Thuộc danh mục |
|
ResidenceManage |
String |
30 |
X |
Mã đơn vị quản lý Thuộc danh mục |
|
FileNumber |
String |
30 |
|
Số hồ sơ |
|
RegistrationNo |
String |
30 |
X |
Số báo danh |
|
TrainingCode |
String |
5 |
|
Mã cơ sở đào tạo |
|
DepartmentTransp ort |
String |
2 |
X |
Sở GTVT Thuộc danh mục |
|
CourseId |
String |
112 |
|
Mã khóa học |
|
HealthCertificate |
Int |
2 |
|
Giấy chứng nhận sức khỏe: 1: Hợp lệ 0: Không |
|
LicenseAvailableNo |
String |
12 |
|
Số GPLX đã có |
|
LicenseAvailableType |
String |
5 |
|
Hạng GPLX đã có. Thuộc danh mục: + A1: Hạng A1 + A: Hạng A + B1: Hạng B1 + B: Hạng B + C1: Hạng C1 + C: Hạng C + D2: Hạng D2 + D1: Hạng D1 + D: Hạng D + BE: Hạng BE + C1E: Hạng C1E + CE: Hạng CE + D2E: Hạng D2E + D1E: Hạng D1E + DE: Hạng DE |
|
LicenseAvailableUnit |
String |
255 |
|
Đơn vị quản lý GPLX đã có |
|
LicenseAvailableExpired |
Date |
10 |
|
Ngày hết hạn GPLX đã có Định dạng: yyyy-mm-dd VD: 2024-01-01 |
|
YearExperience |
Int |
4 |
|
Số năm lái xe |
|
KmExperience |
Int |
8 |
|
Số km an toàn |
|
GraduationCertificate |
String |
30 |
|
Số giấy chứng nhận tốt nghiệp |
|
VocationalCertificate |
String |
30 |
|
Số chứng chỉ nghề |
|
ExamContent |
Int |
5 |
X |
Nội dung sát hạch. Thuộc danh mục: 1: SH lần đầu (LT+H+D) 2: Lý thuyết 3: Lý thuyết + Trong hình 4: Lý thuyết + Trong hình + Trên đường 5: Trong hình + Trên đường 6: Đường 7: Trong hình 8: GPLX 11: SH lần đầu (L+M+H+Đ) 12: SH lại L+M+H+Đ 13: SH lại M+H+Đ 14: SH lại L+M |
|
ExamType |
String |
5 |
X |
Hạng sát hạch. Thuộc danh mục: + A1: Hạng A1 + A: Hạng A + B1: Hạng B1 + B: Hạng B + C1: Hạng C1 + C: Hạng C + D2: Hạng D2 + D1: Hạng D1 + D: Hạng D + BE: Hạng BE + C1E: Hạng C1E + CE: Hạng CE + D2E: Hạng D2E + D1E: Hạng D1E + DE: Hạng DE |
|
ReasonExamination |
String |
500 |
|
Lý do sát hạch |
|
ImageData |
String |
|
X |
Ảnh học viên Base64 Định dạng: JPEG, PNG |
|
ImageQuality |
Int |
2 |
X |
Chất lượng ảnh: - 1: true - 0: false |
4.3. Các hàm truyền dữ liệu từ máy chủ giám sát trung tâm sát hạch đến Sở GTVT
a. Dữ liệu truyền thông tin kết quả sát hạch từng môn từ Trung tâm sát hạch tới phần mềm giám sát sát hạch tại Sở GTVT:
|
Thông số |
Mô tả |
||||
|
URL |
api/v1/data/result |
||||
|
Phương thức |
POST |
||||
|
Mô tả |
API cho phép truyền thông tin kết quả sát hạch từng môn từ Trung tâm sát hạch tới phần mềm giám sát sát hạch tại Sở GTVT |
||||
|
Header |
Authorization Token (Được khởi tạo sau quá trình login) CenterID: Mã trung tâm sát hạch |
||||
|
Dữ liệu đầu vào |
Tên trường |
Kiểu dữ liệu |
Độ dài kí tự |
Bắt buộc |
Mô tả |
|
StudentData |
List<StudentData> |
|
X |
Danh sách học viên |
|
|
StudentId |
String |
30 |
X |
Mã đăng ký |
|
|
FullName |
String |
255 |
X |
Họ và tên học viên |
|
|
DateOfBirth |
Date |
10 |
X |
Ngày sinh Định dạng: yyyy-mm-dd VD: 2024-01-01 |
|
|
CCCDID |
String |
50 |
X |
CMND/ CCCD/ Hộ chiếu |
|
|
RegistrationNo |
String |
30 |
X |
Số báo danh |
|
|
ExamType |
String |
5 |
X |
Hạng sát hạch. Thuộc danh mục: + A1: Hạng A1 + A: Hạng A + B1: Hạng B1 + B: Hạng B + C1: Hạng C1 + C: Hạng C + D2: Hạng D2 + D1: Hạng D1 + D: Hạng D + BE: Hạng BE + C1E: Hạng C1E + CE: Hạng CE + D2E: Hạng D2E + D1E: Hạng D1E + DE: Hạng DE |
|
|
ExamCode |
String |
20 |
X |
Mã kỳ sát hạch |
|
|
ExamType |
Int |
2 |
X |
Môn sát hạch: 1: Lý thuyết 2: Mô phỏng 3: Trong hình 4: Trên đường |
|
|
StartTime |
Instant |
20 |
X |
Thời gian bắt đầu sát hạch Định dạng: yyyy-mm-dd’T’hh:mm:ss’Z’ |
|
|
EndTime |
Instant |
20 |
|
Thời gian kết thúc kết thúc Định dạng: yyyy-mm-dd’T’hh:mm:ss’Z’ |
|
|
Result |
Int |
5 |
X |
Điểm sát hạch |
|
|
ProviderReceiveTime |
Instant |
|
X |
Thời gian máy chủ NCC, TTSH nhận được dữ liệu sát hạch của thí sinh từ máy chủ các môn sát hạch. Định dạng: yyyy-mm-dd’T’hh:mm:ss’Z’ |
|
|
TimesExam |
Int |
3 |
X |
Số lần sát hạch của thí sinh |
|
|
Reason |
String |
500 |
|
Lý do sát hạch lại Bắt buộc khi số lần sát hạch của thí sinh >1 |
|
|
ImageData |
String |
|
|
Ảnh học viên Base64 Định dạng: JPEG, PNG |
|
|
Dữ liệu trả về |
Tên trường |
Kiểu dữ liệu |
Độ dài kí tự |
Bắt buộc |
Mô tả |
|
Code |
Int |
5 |
X |
Mã thực thi lệnh |
|
b. Dữ liệu truyền thông tin tổng hợp kết quả sát hạch từ Trung tâm sát hạch tới phần mềm giám sát sát hạch tại Sở GTVT:
|
Thông số |
Mô tả |
||||
|
URL |
api/v1/data/summary |
||||
|
Phương thức |
POST |
||||
|
Mô tả |
API cho phép truyền thông tin kết quả sát hạch từng môn từ Trung tâm sát hạch tới phần mềm giám sát sát hạch tại Sở GTVT |
||||
|
Header |
Authorization Token (Được khởi tạo sau quá trình login) CenterID: Mã trung tâm sát hạch |
||||
|
Dữ liệu đầu vào |
Tên trường |
Kiểu dữ liệu |
Độ dài kí tự |
Bắt buộc |
Mô tả |
|
StudentData |
List<StudentData> |
|
X |
Danh sách học viên |
|
|
StudentId |
String |
30 |
X |
Mã đăng ký |
|
|
FullName |
String |
255 |
X |
Họ và tên học viên |
|
|
DateOfBirth |
Date |
10 |
X |
Ngày sinh Định dạng: yyyy-mm-dd VD: 2024-01-01 |
|
|
CCCDID |
String |
50 |
X |
CMND/ CCCD/ Hộ chiếu |
|
|
RegistrationNo |
String |
30 |
X |
Số báo danh |
|
|
ExamType |
String |
5 |
X |
Hạng sát hạch. Thuộc danh mục: + A1: Hạng A1 + A: Hạng A + B1: Hạng B1 + B: Hạng B + C1: Hạng C1 + C: Hạng C + D2: Hạng D2 + D1: Hạng D1 + D: Hạng D + BE: Hạng BE + C1E: Hạng C1E + CE: Hạng CE + D2E: Hạng D2E + D1E: Hạng D1E + DE: Hạng DE |
|
|
ExamCode |
String |
20 |
X |
Mã kỳ sát hạch |
|
|
TheoryResults |
String |
2 |
|
Bắt buộc nhập ít nhất dữ liệu của 1 môn, bao gồm trường kết quả thi và điểm Kết quả thi lý thuyết DA: Đạt RO: Không đạt |
|
|
TheoryPoint |
Int |
5 |
|
Điểm lý thuyết |
|
|
SimulationResults |
String |
2 |
|
Kết quả thi mô phỏng DA: Đạt RO: Không đạt |
|
|
SimulationPoint |
Int |
5 |
|
Điểm mô phỏng |
|
|
TestRoutesResults |
String |
2 |
|
Kết quả thi trong hình DA: Đạt RO: Không đạt |
|
|
TestRoutesPoint |
Int |
5 |
|
Điểm trong hình |
|
|
RoadResults |
String |
2 |
|
Kết quả thi trên đường DA: Đạt RO: Không đạt |
|
|
RoadPoint |
Int |
5 |
|
Điểm trên đường |
|
|
Summary |
String |
5 |
X |
Tổng hợp kết quả sát hạch DA: Đạt RO: Không đạt |
|
|
Dữ liệu trả về |
|
|
|
|
|
|
Code |
Int |
5 |
X |
Mã thực thi lệnh |
|
c. Dữ liệu truyền thông tin điểm danh từ hệ thống giám sát sát hạch trung tâm sát hạch tới phần mềm giám sát hạch tại Sở Giao thông vận tải:
|
Thông số |
Mô tả |
||||
|
URL |
api/v1/data/rollcall |
||||
|
Phương thức |
POST |
||||
|
Mô tả |
API cho phép truyền thông tin điểm danh từ hệ thống giám sát sát hạch Trung tâm sát hạch tới phần mềm giám sát hạch tại Sở GTVT |
||||
|
Header |
Authorization Token (Được khởi tạo sau quá trình login) CenterID: Mã trung tâm sát hạch |
||||
|
Dữ liệu đầu vào |
Tên trường |
Kiểu dữ liệu |
Độ dài kí tự |
Bắt buộc |
Mô tả |
|
StudentData |
List<StudentData> |
|
X |
Danh sách học viên |
|
|
StudentId |
String |
30 |
X |
Mã đăng ký |
|
|
FullName |
String |
255 |
X |
Họ và tên học viên |
|
|
DateOfBirth |
Date |
10 |
X |
Ngày sinh Định dạng: yyyy-mm-dd VD: 2024-01-01 |
|
|
CCCDID |
String |
50 |
X |
CMND/ CCCD/ Hộ chiếu |
|
|
RegistrationNo |
String |
30 |
X |
Số báo danh |
|
|
ExamType |
String |
5 |
X |
Hạng sát hạch. Thuộc danh mục: + A1: Hạng A1 + A: Hạng A + B1: Hạng B1 + B: Hạng B + C1: Hạng C1 + C: Hạng C + D2: Hạng D2 + D1: Hạng D1 + D: Hạng D + BE: Hạng BE + C1E: Hạng C1E + CE: Hạng CE + D2E: Hạng D2E + D1E: Hạng D1E + DE: Hạng DE |
|
|
ExamCode |
String |
20 |
X |
Mã kỳ sát hạch |
|
|
TheoryRollCall |
Int |
5 |
|
Bắt buộc nhập ít nhất 1 giá trị điểm danh Điểm danh thi lý thuyết 0: Vắng mặt 1: Có |
|
|
SimulationRollCall |
Int |
5 |
|
Điểm danh thi mô phỏng 0: Vắng mặt 1: Có |
|
|
TestRoutesRollCall |
Int |
5 |
|
Điểm danh thi trong hình 0: Vắng mặt 1: Có |
|
|
RoadRollCall |
Int |
5 |
|
Điểm danh thi trên đường 0: Vắng mặt 1: Có |
|
|
Dữ liệu trả về |
Tên trường |
Kiểu dữ liệu |
Độ dài kí tự |
Bắt buộc |
Mô tả |
|
Code |
Int |
5 |
X |
Mã thực thi lệnh |
|
d. Dữ liệu truyền thông tin hủy kết quả sát hạch
|
Thông số |
Mô tả |
||||
|
URL |
api/v1/data/cancel |
||||
|
Phương thức |
POST |
||||
|
Mô tả |
API cho phép truyền thông tin hủy kết quả sát hạch |
||||
|
Header |
Authorization Token (Được khởi tạo sau quá trình login) CenterID: Mã trung tâm sát hạch |
||||
|
Dữ liệu đầu vào |
Tên trường |
Kiểu dữ liệu |
Độ dài kí tự |
Bắt buộc |
Mô tả |
|
StudentData |
List<StudentData> |
|
X |
Danh sách học viên |
|
|
StudentId |
String |
30 |
X |
Mã đăng ký |
|
|
FullName |
String |
255 |
X |
Họ và tên học viên |
|
|
DateOfBirth |
Date |
10 |
X |
Ngày sinh Định dạng: yyyy-mm-dd VD: 2024-01-01 |
|
|
CCCDID |
String |
50 |
X |
CMND/ CCCD/ Hộ chiếu |
|
|
RegistrationNo |
String |
30 |
X |
Số báo danh |
|
|
ExamType |
String |
5 |
X |
Hạng sát hạch. Thuộc danh mục: + A1: Hạng A1 + A: Hạng A + B1: Hạng B1 + B: Hạng B + C1: Hạng C1 + C: Hạng C + D2: Hạng D2 + D1: Hạng D1 + D: Hạng D + BE: Hạng BE + C1E: Hạng C1E + CE: Hạng CE + D2E: Hạng D2E + D1E: Hạng D1E + DE: Hạng DE |
|
|
ExamCode |
String |
20 |
X |
Mã kỳ sát hạch |
|
|
ExamType |
Int |
2 |
X |
Môn sát hạch: 1: Lý thuyết 2: Mô phỏng 3: Trong hình 4: Trên đường |
|
|
TimesExam |
Int |
3 |
X |
Số lần sát hạch của thí sinh |
|
|
Reason |
String |
500 |
X |
Lý do hủy kết quả sát hạch |
|
|
Dữ liệu trả về |
Tên trường |
Kiểu dữ liệu |
Độ dài kí tự |
Bắt buộc |
Mô tả |
|
Code |
Int |
5 |
X |
Mã thực thi lệnh |
|
4.4. Các hàm truyền và nhận dữ liệu giữa máy chủ giám sát trung tâm sát hạch và máy chủ sát hạch lý thuyết
4.4.1. Dữ liệu truyền từ máy chủ giám sát sát hạch của Trung tâm sát hạch tới máy chủ sát hạch lý thuyết
a) Dữ liệu danh sách sát hạch lý thuyết
|
Thông số |
Mô tả |
||||
|
URL |
api/v1/data/theoryexam |
||||
|
Phương thức |
POST |
||||
|
Mô tả |
API cho phép truyền dữ liệu từ máy chủ giám sát sát hạch của Trung tâm sát hạch tới máy chủ sát hạch lý thuyết |
||||
|
Header |
Authorization Token (Được khởi tạo sau quá trình login) CenterID: Mã trung tâm sát hạch |
||||
|
Dữ liệu đầu vào |
Tên trường |
Kiểu dữ liệu |
Độ dài kí tự |
Bắt buộc |
Mô tả |
|
ProviderId |
String |
20 |
X |
Đơn vị cung cấp |
|
|
TotalRecords |
Int |
5 |
|
Tổng số bản ghi |
|
|
ExamCode |
String |
20 |
X |
Mã kỳ sát hạch |
|
|
ExamDate |
Date |
10 |
X |
Ngày sát hạch Định dạng: yyyy-mm-dd VD: 2024-01-01 |
|
|
ExamTime |
Int |
4 |
X |
Giờ sát hạch Định dạng hhmm VD: 0730; 1400 |
|
|
DecisionNo |
String |
30 |
|
Số quyết định |
|
|
DecisionDate |
Date |
10 |
|
Ngày quyết định Định dạng: yyyy-mm-dd VD: 2024-01-01 |
|
|
DecisionMaker |
String |
255 |
|
Người ra quyết định |
|
|
BoardExaminers |
List<Board Data> |
|
|
Danh sách hội đồng sát hạch Tham chiếu mục 2. Dữ liệu hội đồng sát hạch |
|
|
StudentData |
List<Stude ntData> |
|
X |
Danh sách học viên dự sát hạch Tham chiếu mục 3. Dữ liệu học viên dự sát hạch lý thuyết |
|
|
Dữ liệu trả về |
Tên trường |
Kiểu dữ liệu |
Độ dài kí tự |
Bắt buộc |
Mô tả |
|
Code |
Int |
5 |
X |
Mã thực thi lệnh |
|
b) Dữ liệu hội đồng sát hạch
|
Tên trường |
Kiểu dữ liệu |
Độ dài kí tự |
Bắt buộc |
Mô tả |
|
BoardExaminers |
List<BoardData> |
|
|
Danh sách hội đồng sát hạch |
|
Position |
Int |
2 |
|
Chức vụ: 1. Chủ tịch hội đồng sát hạch 2. Ủy viên Giám đốc trung tâm sát hạch 3. Ủy viên Giảm đốc cơ sở đào tạo 4. Ủy viên tổ trưởng tổ sát hạch 5. Ủy viên thư ký 6. Sát hạch viên |
|
ExaminersName |
String |
100 |
|
Họ và tên sát hạch viên |
c) Dữ liệu học viên dự sát hạch lý thuyết
|
Tên trường |
Kiểu dữ liệu |
Độ dài kí tự |
Bắt buộc |
Mô tả |
|
StudentData |
List<StudentData> |
|
X |
Danh sách học viên dự sát hạch |
|
StudentId |
String |
30 |
X |
Mã đăng ký |
|
FullName |
String |
255 |
X |
Họ và tên học viên |
|
Gender |
Int |
1 |
X |
Giới tính 0 - Nam, 1 - Nữ, 2 - Khác |
|
DateOfBirth |
Date |
10 |
X |
Ngày sinh Định dạng: yyyy-mm-dd VD: 2024-01-01 |
|
CCCDID |
String |
50 |
X |
CMND/ CCCD/ Hộ chiếu |
|
CountryCode |
String |
3 |
X |
Danh mục nước Thuộc danh mục |
|
Residence |
String |
255 |
|
Nơi cư trú |
|
ResidenceCode |
String |
30 |
X |
Mã đơn vị hành chính Thuộc danh mục |
|
ResidenceManage |
String |
30 |
X |
Mã đơn vị quản lý Thuộc danh mục |
|
FileNumber |
String |
30 |
|
Số hồ sơ |
|
RegistrationNo |
String |
30 |
X |
Số báo danh |
|
TrainingCode |
String |
5 |
|
Mã cơ sở đào tạo |
|
ExamContent |
Int |
5 |
X |
Nội dung sát hạch. Thuộc danh mục: 1: SH lần đầu (LT+H+D) 2: Lý thuyết 3: Lý thuyết + Trong hình 4: Lý thuyết + Trong hình + Trên đường 5: Trong hình + Trên đường 6: Đường 7: Trong hình 8: GPLX 11: SH lần đầu (L+M+H+Đ) 12: SH lại L+M+H+Đ 13: SH lại M+H+Đ 14: SH lại L+M |
|
ExamType |
String |
5 |
X |
Hạng sát hạch. Thuộc danh mục: +A1: Hạng A1 + A: Hạng A + B1: Hạng B1 + B: Hạng B + C1: Hạng C1 + C: Hạng C + D2: Hạng D2 + D1: Hạng D1 + D: Hạng D + BE: Hạng BE + C1E: Hạng C1E + CE: Hạng CE + D2E: Hạng D2E + D1E: Hạng D1E + DE: Hạng DE |
|
ReasonExamination |
String |
255 |
|
Lý do sát hạch |
|
ImageData |
String |
|
X |
Ảnh học viên Base64 Định dạng: JPEG, PNG |
|
ImageQuality |
Int |
2 |
X |
Chất lượng ảnh: - 1: true - 0: false |
|
ContentNote |
String |
500 |
|
Ghi chú |
4.4.2. Dữ liệu truyền thông tin kết quả sát hạch lý thuyết từ phần mềm sát hạch lý thuyết đến phần mềm giám sát sát hạch trung tâm sát hạch
|
Thông số |
Mô tả |
||||
|
URL |
api/v1/data/theoryresult |
||||
|
Phương thức |
POST |
||||
|
Mô tả |
API cho phép cập nhật thông tin kết quả sát hạch lý thuyết từ phần mềm sát hạch lý thuyết đến phần mềm giám sát sát hạch trung tâm sát hạch |
||||
|
Header |
Authorization Token (Được khởi tạo sau quá trình login) ProviderId: Đơn vị cung cấp |
||||
|
Dữ liệu đầu vào |
Tên trường |
Kiểu dữ liệu |
Độ dài kí tự |
Bắt buộc |
Mô tả |
|
CenterID |
String |
20 |
X |
Mã trung tâm sát hạch |
|
|
StudentData |
List<StudentData> |
|
X |
Danh sách học viên dự sát hạch |
|
|
StudentId |
String |
30 |
X |
Mã đăng ký |
|
|
FullName |
String |
255 |
X |
Họ và tên học viên |
|
|
DateOfBirth |
Date |
10 |
X |
Ngày sinh Định dạng: yyyy-mm-dd VD: 2024-01-01 |
|
|
CCCDID |
String |
50 |
X |
CMND/ CCCD/ Hộ chiếu |
|
|
RegistrationNo |
String |
30 |
X |
Số báo danh |
|
|
ExamType |
String |
5 |
X |
Hạng sát hạch. Thuộc danh mục: + A1: Hạng A1 + A: Hạng A + B1: Hạng B1 + B: Hạng B + C1: Hạng C1 + C: Hạng C + D2: Hạng D2 + D1: Hạng D1 + D: Hạng D + BE: Hạng BE + C1E: Hạng C1E + CE: Hạng CE + D2E: Hạng D2E + D1E: Hạng D1E + DE: Hạng DE |
|
|
ExamCode |
String |
20 |
X |
Mã kỳ sát hạch |
|
|
ExamType |
Int |
2 |
X |
Môn sát hạch: 1: Lý thuyết |
|
|
StartTime |
Instant |
20 |
X |
Thời gian bắt đầu sát hạch Định dạng: yyyy-mm-dd’T’hh:mm:ss’Z’ |
|
|
EndTime |
Instant |
20 |
|
Thời gian kết thúc kết thúc Định dạng: yyyy-mm-dd’T’hh:mm:ss’Z’ |
|
|
Result |
Int |
5 |
X |
Điểm sát hạch |
|
|
ImageData |
String |
|
|
Ảnh học viên Base64 Định dạng: JPEG, PNG |
|
|
Dữ liệu trả về |
Tên trường |
Kiểu dữ liệu |
Độ dài kí tự |
Bắt buộc |
Mô tả |
|
Code |
Int |
5 |
X |
Mã thực thi lệnh |
|
4.5. Các hàm truyền và nhận dữ liệu giữa máy chủ giám sát trung tâm sát hạch và máy chủ sát hạch mô phỏng
4.5.1. Dữ liệu truyền dữ liệu từ máy chủ giám sát sát hạch của Trung tâm sát hạch tới máy chủ sát hạch mô phỏng
a) Dữ liệu danh sách sát hạch mô phỏng
|
Thông số |
Mô tả |
||||
|
URL |
api/v1/data/simulationexam |
||||
|
Phương thức |
POST |
||||
|
Mô tả |
API cho phép truyền dữ liệu từ máy chủ giám sát sát hạch của Trung tâm sát hạch tới máy chủ sát hạch mô phỏng |
||||
|
Header |
Authorization Token (Được khởi tạo sau quá trình login) CenterID: Mã trung tâm sát hạch |
||||
|
Dữ liệu đầu vào |
Tên trường |
Kiểu dữ liệu |
Độ dài kí tự |
Bắt buộc |
Mô tả |
|
|
ProviderId |
String |
20 |
X |
Đơn vị cung cấp |
|
TransactionCode |
String |
255 |
X |
Mã giao dịch |
|
|
DateSent |
Date |
20 |
X |
Ngày gửi Định dạng: yyyy-mm-dd’T’hh:mm:ss’Z’ VD: 2024-01-01T00:00:00Z |
|
|
Sender |
String |
255 |
X |
Người gửi |
|
|
TotalRecords |
Int |
5 |
|
Tổng số bản ghi |
|
|
ExamCode |
String |
20 |
X |
Mã kỳ sát hạch |
|
|
ExamDate |
Date |
10 |
X |
Ngày sát hạch Định dạng: yyyy-mm-dd VD: 2024-01-01 |
|
|
ExamTime |
Int |
4 |
X |
Giờ sát hạch Định dạng hhmm VD: 730; 1400 |
|
|
DecisionNo |
String |
30 |
|
Số quyết định |
|
|
DecisionDate |
Date |
10 |
|
Ngày quyết định Định dạng: yyyy-mm-dd VD: 2024-01-01 |
|
|
DecisionMaker |
String |
255 |
|
Người ra quyết định |
|
|
BoardExaminers |
List<BoardData> |
|
|
Danh sách hội đồng sát hạch Tham chiếu mục 2. Dữ liệu hội đồng sát hạch |
|
|
StudentData |
List<StudentData> |
|
X |
Danh sách học viên dự sát hạch Tham chiếu mục 3. Dữ liệu học viên dự sát hạch mô phỏng |
|
|
Dữ liệu trả về |
Tên trường |
Kiểu dữ liệu |
Độ dài kí tự |
Bắt buộc |
Mô tả |
|
Code |
Int |
5 |
X |
Mã thực thi lệnh |
|
b) Dữ liệu hội đồng sát hạch
|
Tên trường |
Kiểu dữ liệu |
Độ dài kí tự |
Bắt buộc |
Mô tả |
|
BoardExaminers |
List<BoardData> |
|
|
Danh sách hội đồng sát hạch |
|
Position |
Int |
2 |
|
Chức vụ: 1. Chủ tịch hội đồng sát hạch 2. Ủy viên Giám đốc trung tâm sát hạch 3. Uỷ viên Giảm đốc cơ sở đào tạo 4. Ủy viên tổ trưởng tổ sát hạch 5. Ủy viên thư ký 6. Sát hạch viên |
|
ExaminersName |
String |
100 |
|
Họ và tên sát hạch viên |
c) Dữ liệu học viên dự sát hạch
|
Tên trường |
Kiểu dữ liệu |
Độ dài kí tự |
Bắt buộc |
Mô tả |
|
StudentData |
List<StudentData> |
|
X |
Danh sách học viên dự sát hạch |
|
StudentId |
String |
30 |
X |
Mã đăng ký |
|
FullName |
String |
255 |
X |
Họ và tên học viên |
|
Gender |
Int |
1 |
X |
Giới tính 0 - Nam, 1 - Nữ, 2 - Khác |
|
DateOfBirth |
Date |
10 |
X |
Ngày sinh Định dạng: yyyy-mm-dd VD: 2024-01-01 |
|
CCCDID |
String |
50 |
X |
CMND/ CCCD/ Hộ chiếu |
|
CountryCode |
String |
3 |
X |
Danh mục nước Thuộc danh mục |
|
Residence |
String |
255 |
|
Nơi cư trú |
|
ResidenceCode |
String |
30 |
X |
Mã đơn vị hành chính Thuộc danh mục |
|
ResidenceManage |
String |
30 |
X |
Mã đơn vị quản lý Thuộc danh mục |
|
FileNumber |
String |
30 |
|
Số hồ sơ |
|
RegistrationNo |
String |
30 |
X |
Số báo danh |
|
TrainingCode |
String |
5 |
|
Mã cơ sở đào tạo |
|
ExamContent |
Int |
5 |
X |
Nội dung sát hạch. Thuộc danh mục: 1: SH lần đầu (LT+H+D) 2: Lý thuyết 3: Lý thuyết + Trong hình 4: Lý thuyết + Trong hình + Trên đường 5: Trong hình + Trên đường 6: Đường 7: Trong hình 8: GPLX 11: SH lần đầu (L+M+H+Đ) 12: SH lại L+M+H+Đ 13: SH lại M+H+Đ 14: SH lại L+M |
|
ExamType |
String |
5 |
X |
Hạng sát hạch. Thuộc danh mục: +A1: Hạng A1 + A: Hạng A + B1: Hạng B1 + B: Hạng B + C1: Hạng C1 + C: Hạng C + D2: Hạng D2 + D1: Hạng D1 + D: Hạng D + BE: Hạng BE + C1E: Hạng C1E + CE: Hạng CE + D2E: Hạng D2E + D1E: Hạng D1E + DE: Hạng DE |
|
ReasonExamination |
String |
255 |
|
Lý do sát hạch |
|
ImageData |
String |
|
X |
Ảnh học viên Base64 Định dạng: JPEG, PNG |
|
ImageQuality |
Int |
2 |
X |
Chất lượng ảnh: - 1: true - 0: false |
|
Tên trường |
Kiểu dữ liệu |
Độ dài kí tự |
Bắt buộc |
Mô tả |
|
ContentNote |
String |
500 |
|
Ghi chú |
4.5.2. Dữ liệu truyền thông tin kết quả sát hạch mô phỏng từ phần mềm sát hạch mô phỏng đến phần mềm giám sát sát hạch trung tâm sát hạch
|
Thông số |
Mô tả |
||||
|
URL |
api/v1/data/simulationresult |
||||
|
Phương thức |
POST |
||||
|
Mô tả |
API cho phép cập nhật thông tin kết quả sát hạch mô phỏng từ phần mềm sát hạch mô phỏng đến phần mềm giám sát sát hạch trung tâm sát hạch |
||||
|
Header |
Authorization Token (Được khởi tạo sau quá trình login) ProviderId: Đơn vị cung cấp |
||||
|
Dữ liệu đầu vào |
Tên trường |
Kiểu dữ liệu |
Độ dài kí tự |
Bắt buộc |
Mô tả |
|
CenterID |
String |
20 |
X |
Mã trung tâm sát hạch |
|
|
DateSent |
Date |
20 |
X |
Ngày gửi Định dạng: yyyy-mm-dd’T’hh:mm:ss’Z’ VD: 2024-01-01T00:00:00Z |
|
|
StudentData |
List<StudentData> |
|
X |
Danh sách học viên dự sát hạch |
|
|
StudentId |
String |
30 |
X |
Mã đăng ký |
|
|
FullName |
String |
255 |
X |
Họ và tên học viên |
|
|
DateOfBirth |
Date |
10 |
X |
Ngày sinh Định dạng: yyyy-mm-dd VD: 2024-01-01 |
|
|
CCCDID |
String |
50 |
X |
CMND/ CCCD/ Hộ chiếu |
|
|
RegistrationNo |
String |
30 |
X |
Số báo danh |
|
|
ExamType |
String |
5 |
X |
Hạng sát hạch. Thuộc danh mục: + A1: Hạng A1 + A: Hạng A + B1: Hạng B1 + B: Hạng B + C1: Hạng C1 + C: Hạng C + D2: Hạng D2 + D1: Hạng D1 + D: Hạng D + BE: Hạng BE + C1E: Hạng C1E + CE: Hạng CE + D2E: Hạng D2E + D1E: Hạng D1E + DE: Hạng DE |
|
|
ExamCode |
String |
20 |
X |
Mã kỳ sát hạch |
|
|
ExamType |
Int |
2 |
X |
Môn sát hạch: 2: Mô phỏng |
|
|
StartTime |
Instant |
20 |
X |
Thời gian bắt đầu sát hạch Định dạng: yyyy-mm- dd’T’hh:mm:ss’Z’ |
|
|
EndTime |
Instant |
20 |
|
Thời gian kết thúc kết thúc Định dạng: yyyy-mm- dd’T’hh:mm:ss’Z’ |
|
|
Result |
Int |
5 |
X |
Điểm sát hạch |
|
|
ImageData |
String |
|
|
Ảnh học viên Base64 Định dạng: JPEG, PNG |
|
|
Dữ liệu trả về |
Tên trường |
Kiểu dữ liệu |
Độ dài kí tự |
Bắt buộc |
Mô tả |
|
Code |
Int |
5 |
X |
Mã thực thi lệnh |
|
4.6. Các hàm truyền và nhận dữ liệu giữa máy chủ giám sát trung tâm sát hạch và máy chủ sát hạch trong hình
4.6.1. Dữ liệu truyền dữ liệu từ máy chủ giám sát sát hạch của Trung tâm sát hạch tới máy chủ sát hạch trong hình
a) Dữ liệu danh sách sát hạch trong hình
|
Thông số |
Mô tả |
||||
|
URL |
api/v1/data/testroutesexam |
||||
|
Phương thức |
POST |
||||
|
Mô tả |
API cho phép truyền dữ liệu từ máy chủ giám sát sát hạch của Trung tâm sát hạch tới máy chủ sát hạch trong hình |
||||
|
Header |
Authorization Token (Được khởi tạo sau quá trình login) CenterID: Mã trung tâm sát hạch |
||||
|
Dữ liệu đầu vào |
Tên trường |
Kiểu dữ liệu |
Độ dài kí tự |
Bắt buộc |
Mô tả |
|
|
ProviderId |
String |
20 |
X |
Đơn vị cung cấp |
|
TransactionCode |
String |
255 |
X |
Mã giao dịch |
|
|
DateSent |
Date |
20 |
X |
Ngày gửi Định dạng: yyyy-mm-dd’T’hh:mm:ss’Z’ VD: 2024-01-01T00:00:00Z |
|
|
Sender |
String |
255 |
X |
Người gửi |
|
|
TotalRecords |
Int |
5 |
|
Tổng số bản ghi |
|
|
ExamCode |
String |
20 |
X |
Mã kỳ sát hạch |
|
|
ExamDate |
Date |
10 |
X |
Ngày sát hạch Định dạng: yyyy-mm-dd VD: 2024-01-01 |
|
|
ExamTime |
Int |
4 |
X |
Giờ sát hạch Định dạng hhmm VD: 730; 1400 |
|
|
DecisionNo |
String |
30 |
|
Số quyết định |
|
|
DecisionDate |
Date |
10 |
|
Ngày quyết định Định dạng: yyyy-mm-dd VD: 2024-01-01 |
|
|
DecisionMaker |
String |
255 |
|
Người ra quyết định |
|
|
BoardExaminers |
List<BoardData> |
|
|
Danh sách hội đồng sát hạch Tham chiếu mục 2. Dữ liệu hội đồng sát hạch |
|
|
StudentData |
List<StudentData> |
|
X |
Danh sách học viên dự sát hạch Tham chiếu mục 3. Dữ liệu học viên dự sát hạch trong hình |
|
|
Dữ liệu trả về |
Tên trường |
Kiểu dữ liệu |
Độ dài kí tự |
Bắt buộc |
Mô tả |
|
Code |
Int |
5 |
X |
Mã thực thi lệnh |
|
b) Dữ liệu hội đồng sát hạch
|
Tên trường |
Kiểu dữ liệu |
Độ dài kí tự |
Bắt buộc |
Mô tả |
|
BoardExaminers |
List<BoardData> |
|
|
Danh sách hội đồng sát hạch |
|
Position |
Int |
2 |
|
Chức vụ: 1. Chủ tịch hội đồng sát hạch 2. Ủy viên Giám đốc trung tâm sát hạch 3. Ủy viên Giảm đốc cơ sở đào tạo 4. Ủy viên tổ trưởng tổ sát hạch 5. Ủy viên thư ký 6. Sát hạch viên |
|
ExaminersName |
String |
100 |
|
Họ và tên sát hạch viên |
c) Dữ liệu học viên dự sát hạch trong hình
|
Tên trường |
Kiểu dữ liệu |
Độ dài kí tự |
Bắt buộc |
Mô tả |
|
StudentData |
List<StudentData> |
|
X |
Danh sách học viên dự sát hạch |
|
StudentId |
String |
30 |
X |
Mã đăng ký |
|
FullName |
String |
255 |
X |
Họ và tên học viên |
|
Gender |
Int |
1 |
X |
Giới tính 0 - Nam, 1 - Nữ, 2 - Khác |
|
DateOfBirth |
Date |
10 |
X |
Ngày sinh Định dạng: yyyy-mm-dd VD: 2024-01-01 |
|
CCCDID |
String |
50 |
X |
CMND/ CCCD/ Hộ chiếu |
|
CountryCode |
String |
3 |
X |
Danh mục nước Thuộc danh mục |
|
Residence |
String |
255 |
|
Nơi cư trú |
|
ResidenceCode |
String |
30 |
X |
Mã đơn vị hành chính Thuộc danh mục |
|
ResidenceManage |
String |
30 |
X |
Mã đơn vị quản lý Thuộc danh mục |
|
FileNumber |
String |
30 |
|
Số hồ sơ |
|
RegistrationNo |
String |
30 |
X |
Số báo danh |
|
TrainingCode |
String |
5 |
|
Mã cơ sở đào tạo |
|
ExamContent |
Int |
5 |
X |
Nội dung sát hạch. Thuộc danh mục: 1: SH lần đầu (LT+H+D) 2: Lý thuyết 3: Lý thuyết + Trong hình 4: Lý thuyết + Trong hình + Trên đường 5: Trong hình + Trên đường 6: Đường 7: Trong hình 8: GPLX 11: SH lần đầu (L+M+H+Đ) 12: SH lại L+M+H+Đ 13: SH lại M+H+Đ 14: SH lại L+M |
|
ExamType |
String |
5 |
X |
Hạng sát hạch. Thuộc danh mục: +A1: Hạng A1 + A: Hạng A + B1: Hạng B1 + B: Hạng B + C1: Hạng C1 + C: Hạng C + D2: Hạng D2 + D1: Hạng D1 + D: Hạng D + BE: Hạng BE + C1E: Hạng C1E + CE: Hạng CE + D2E: Hạng D2E + D1E: Hạng D1E + DE: Hạng DE |
|
ReasonExamination |
String |
255 |
|
Lý do sát hạch |
|
ImageData |
String |
|
X |
Ảnh học viên Base64 Định dạng: JPEG, PNG |
|
ImageQuality |
Int |
2 |
X |
Chất lượng ảnh: - 1: true - 0: false |
|
ContentNote |
String |
500 |
|
Ghi chú |
4.6.2. Dữ liệu truyền thông tin kết quả sát hạch trong hình từ phần mềm sát hạch trong hình đến phần mềm giám sát sát hạch trung tâm sát hạch
|
Thông số |
Mô tả |
||||
|
URL |
api/v1/data/testroutesresult |
||||
|
Phương thức |
POST |
||||
|
Mô tả |
API cho phép cập nhật thông tin kết quả sát hạch trong hình từ phần mềm sát hạch trong hình đến phần mềm giám sát sát hạch trung tâm sát hạch |
||||
|
Header |
Authorization Token (Được khởi tạo sau quá trình login) ProviderId: Đơn vị cung cấp |
||||
|
Dữ liệu đầu vào |
Tên trường |
Kiểu dữ liệu |
Độ dài kí tự |
Bắt buộc |
Mô tả |
|
CenterID |
String |
20 |
X |
Mã trung tâm sát hạch |
|
|
DateSent |
Date |
20 |
X |
Ngày gửi Định dạng: yyyy-mm-dd’T’hh:mm:ss’Z’ VD: 2024-01-01T00:00:00Z |
|
|
StudentData |
List<StudentData> |
|
X |
Danh sách học viên dự sát hạch |
|
|
StudentId |
String |
30 |
X |
Mã đăng ký |
|
|
FullName |
String |
255 |
X |
Họ và tên học viên |
|
|
DateOfBirth |
Date |
10 |
X |
Ngày sinh Định dạng: yyyy-mm-dd VD: 2024-01-01 |
|
|
CCCDID |
String |
50 |
X |
CMND/ CCCD/ Hộ chiếu |
|
|
RegistrationNo |
String |
30 |
X |
Số báo danh |
|
|
ExamType |
String |
5 |
X |
Hạng sát hạch. Thuộc danh mục: + A1: Hạng A1 + A: Hạng A + B1: Hạng B1 + B: Hạng B + C1: Hạng C1 + C: Hạng C + D2: Hạng D2 + D1: Hạng D1 + D: Hạng D + BE: Hạng BE + C1E: Hạng C1E + CE: Hạng CE + D2E: Hạng D2E + D1E: Hạng D1E + DE: Hạng DE |
|
|
ExamCode |
String |
20 |
X |
Mã kỳ sát hạch |
|
|
ExamType |
Int |
2 |
X |
Môn sát hạch: 3: Trong hình |
|
|
StartTime |
Instant |
20 |
X |
Thời gian bắt đầu sát hạch Định dạng: yyyy-mm-dd’T’hh:mm:ss’Z’ |
|
|
EndTime |
Instant |
20 |
|
Thời gian kết thúc kết thúc Định dạng: yyyy-mm-dd’T’hh:mm:ss’Z’ |
|
|
Result |
Int |
5 |
X |
Điểm sát hạch |
|
|
ImageData |
String |
|
|
Ảnh học viên Base64 Định dạng: JPEG, PNG |
|
|
Dữ liệu trả về |
Tên trường |
Kiểu dữ liệu |
Độ dài kí tự |
Bắt buộc |
Mô tả |
|
Code |
Int |
5 |
X |
Mã thực thi lệnh |
|
4.7. Các hàm truyền và nhận dữ liệu giữa máy chủ giám sát trung tâm sát hạch và máy chủ sát hạch trên đường
4.7.1. Dữ liệu truyền dữ liệu từ máy chủ giám sát sát hạch của Trung tâm sát hạch tới máy chủ sát hạch trên đường
a) Dữ liệu danh sách sát hạch trên đường
|
Thông số |
Mô tả |
||||
|
URL |
api/v1/data/roadexam |
||||
|
Phương thức |
POST |
||||
|
Mô tả |
API cho phép truyền dữ liệu từ máy chủ giám sát sát hạch của Trung tâm sát hạch tới máy chủ sát hạch trên đường |
||||
|
Header |
Authorization Token (Được khởi tạo sau quá trình login) CenterID: Mã trung tâm sát hạch |
||||
|
Dữ liệu đầu vào |
Tên trường |
Kiểu dữ liệu |
Độ dài kí tự |
Bắt buộc |
Mô tả |
|
|
ProviderId |
String |
20 |
X |
Đơn vị cung cấp |
|
TransactionCode |
String |
255 |
X |
Mã giao dịch |
|
|
DateSent |
Date |
20 |
X |
Ngày gửi Định dạng: yyyy-mm-dd’T’hh:mm:ss’Z’ VD: 2024-01-01T00:00:00Z |
|
|
Sender |
String |
255 |
X |
Người gửi |
|
|
TotalRecords |
Int |
5 |
|
Tổng số bản ghi |
|
|
ExamCode |
String |
20 |
X |
Mã kỳ sát hạch |
|
|
ExamDate |
Date |
10 |
X |
Ngày sát hạch Định dạng: yyyy-mm-dd VD: 2024-01-01 |
|
|
ExamTime |
Int |
4 |
X |
Giờ sát hạch Định dạng hhmm VD: 730; 1400 |
|
|
DecisionNo |
String |
30 |
|
Số quyết định |
|
|
DecisionDate |
Date |
10 |
|
Ngày quyết định Định dạng: yyyy-mm-dd VD: 2024-01-01 |
|
|
DecisionMaker |
String |
255 |
|
Người ra quyết định |
|
|
BoardExaminers |
List<BoardData> |
|
|
Danh sách hội đồng sát hạch Tham chiếu mục 2. Dữ liệu hội đồng sát hạch |
|
|
StudentData |
List<StudentData> |
|
X |
Danh sách học viên dự sát hạch Tham chiếu mục 3. Dữ liệu học viên dự sát hạch trên đường |
|
|
Dữ liệu trả về |
Tên trường |
Kiểu dữ liệu |
Độ dài kí tự |
Bắt buộc |
Mô tả |
|
Code |
Int |
5 |
X |
Mã thực thi lệnh |
|
b) Dữ liệu hội đồng sát hạch
|
Tên trường |
Kiểu dữ liệu |
Độ dài kí tự |
Bắt buộc |
Mô tả |
|
BoardExaminers |
List<BoardData> |
|
|
Danh sách hội đồng sát hạch |
|
Position |
Int |
2 |
|
Chức vụ: 1. Chủ tịch hội đồng sát hạch 2. Ủy viên Giám đốc trung tâm sát hạch 3. Ủy viên Giảm đốc cơ sở đào tạo 4. Ủy viên tổ trưởng tổ sát hạch 5. Ủy viên thư ký 6. Sát hạch viên |
|
ExaminersName |
String |
100 |
|
Họ và tên sát hạch viên |
c) Dữ liệu học viên dự sát hạch trên đường
|
Tên trường |
Kiểu dữ liệu |
Độ dài kí tự |
Bắt buộc |
Mô tả |
|
StudentData |
List<StudentData> |
|
X |
Danh sách học viên dự sát hạch |
|
StudentId |
String |
30 |
X |
Mã đăng ký |
|
FullName |
String |
255 |
X |
Họ và tên học viên |
|
Gender |
Int |
1 |
X |
Giới tính 0 - Nam, 1 - Nữ, 2 - Khác |
|
DateOfBirth |
Date |
10 |
X |
Ngày sinh Định dạng: yyyy-mm-dd VD: 2024-01-01 |
|
CCCDID |
String |
50 |
X |
CMND/ CCCD/ Hộ chiếu |
|
CountryCode |
String |
3 |
X |
Danh mục nước Thuộc danh mục |
|
Residence |
String |
255 |
|
Nơi cư trú |
|
ResidenceCode |
String |
30 |
X |
Mã đơn vị hành chính Thuộc danh mục |
|
ResidenceManage |
String |
30 |
X |
Mã đơn vị quản lý Thuộc danh mục |
|
FileNumber |
String |
30 |
|
Số hồ sơ |
|
RegistrationNo |
String |
30 |
X |
Số báo danh |
|
TrainingCode |
String |
5 |
|
Mã cơ sở đào tạo |
|
ExamContent |
Int |
5 |
X |
Nội dung sát hạch. Thuộc danh mục: 1: SH lần đầu (LT+H+D) 2: Lý thuyết 3: Lý thuyết + Trong hình 4: Lý thuyết + Trong hình + Trên đường 5: Trong hình + Trên đường 6: Đường 7: Trong hình 8: GPLX 11: SH lần đầu (L+M+H+Đ) 12: SH lại L+M+H+Đ 13: SH lại M+H+Đ 14: SH lại L+M |
|
ExamType |
String |
5 |
X |
Hạng sát hạch. Thuộc danh mục: +A1: Hạng A1 + A: Hạng A + B1: Hạng B1 + B: Hạng B + C1: Hạng C1 + C: Hạng C + D2: Hạng D2 + D1: Hạng D1 + D: Hạng D + BE: Hạng BE + C1E: Hạng C1E + CE: Hạng CE + D2E: Hạng D2E + D1E: Hạng D1E + DE: Hạng DE |
|
ReasonExamination |
String |
255 |
|
Lý do sát hạch |
|
ImageData |
String |
|
X |
Ảnh học viên Base64 Định dạng: JPEG, PNG |
|
ImageQuality |
Int |
2 |
X |
Chất lượng ảnh: - 1: true - 0: false |
|
ContentNote |
String |
500 |
|
Ghi chú |
4.7.2. Dữ liệu truyền thông tin kết quả sát hạch trên đường từ phần mềm sát hạch trên đường đến phần mềm giám sát sát hạch trung tâm sát hạch
|
Thông số |
Mô tả |
||||
|
URL |
api/v1/data/roadresult |
||||
|
Phương thức |
POST |
||||
|
Mô tả |
API cho phép cập nhật thông tin kết quả sát hạch trên đường từ phần mềm sát hạch trên đường đến phần mềm giám sát sát hạch trung tâm sát hạch |
||||
|
Header |
Authorization Token (Được khởi tạo sau quá trình login) ProviderId: Đơn vị cung cấp |
||||
|
Dữ liệu đầu vào |
Tên trường |
Kiểu dữ liệu |
Độ dài kí tự |
Bắt buộc |
Mô tả |
|
CenterID |
String |
20 |
X |
Mã trung tâm sát hạch |
|
|
DateSent |
Date |
20 |
X |
Ngày gửi Định dạng: yyyy-mm-dd’T’hh:mm:ss’Z’ VD: 2024-01-01T00:00:00Z |
|
|
StudentData |
List<StudentData> |
|
X |
Danh sách học viên dự sát hạch |
|
|
StudentId |
String |
30 |
X |
Mã đăng ký |
|
|
FullName |
String |
255 |
X |
Họ và tên học viên |
|
|
DateOfBirth |
Date |
10 |
X |
Ngày sinh Định dạng: yyyy-mm-dd VD: 2024-01-01 |
|
|
CCCDID |
String |
50 |
X |
CMND/ CCCD/ Hộ chiếu |
|
|
RegistrationNo |
String |
30 |
X |
Số báo danh |
|
|
ExamType |
String |
5 |
X |
Hạng sát hạch. Thuộc danh mục: + A1: Hạng A1 + A: Hạng A + B1: Hạng B1 + B: Hạng B + C1: Hạng C1 + C: Hạng C + D2: Hạng D2 + D1: Hạng D1 + D: Hạng D + BE: Hạng BE + C1E: Hạng C1E + CE: Hạng CE + D2E: Hạng D2E + D1E: Hạng D1E + DE: Hạng DE |
|
|
ExamCode |
String |
20 |
X |
Mã kỳ sát hạch |
|
|
ExamType |
Int |
2 |
X |
Môn sát hạch: 4: Trên đường |
|
|
StartTime |
Instant |
20 |
X |
Thời gian bắt đầu sát hạch Định dạng: yyyy-mm-dd’T’hh:mm:ss’Z’ |
|
|
EndTime |
Instant |
20 |
|
Thời gian kết thúc kết thúc Định dạng: yyyy-mm-dd’T’hh:mm:ss’Z’ |
|
|
Result |
Int |
5 |
X |
Điểm sát hạch |
|
|
ImageData |
String |
|
|
Ảnh học viên Base64 Định dạng: JPEG, PNG |
|
|
Dữ liệu trả về |
Tên trường |
Kiểu dữ liệu |
Độ dài kí tự |
Bắt buộc |
Mô tả |
|
Code |
Int |
5 |
X |
Mã thực thi lệnh |
|
4.8. Hàm kiểm tra trạng thái hệ thống
|
Thông số |
Mô tả |
||||
|
URL |
api/v1/server/getserverstatus |
||||
|
Phương thức |
POST |
||||
|
Mô tả |
API này cho phép lấy trạng thái hiện tại của hệ thống. Tùy trạng thái vận hành của hệ thống thì hàm này sẽ trả về trạng thái hệ thống có sẵn sàng tiếp nhận dữ liệu hay không. |
||||
|
Header |
Authorization Token (Được khởi tạo sau quá trình login) CenterID: Mã trung tâm sát hạch |
||||
|
Dữ liệu đầu vào |
Tên trường |
Kiểu dữ liệu |
Độ dài kí tự |
Bắt buộc |
Mô tả |
|
UserName |
String |
20 |
X |
Tên đăng nhập người dùng |
|
|
Dữ liệu trả về |
Tên trường |
Kiểu dữ liệu |
Độ dài kí tự |
Bắt buộc |
Mô tả |
|
|
State |
Int |
1 |
X |
Trạng thái hiện tại của hệ thống |
|
StateMessage |
String |
255 |
X |
Thông báo về trạng thái hiện tại của hệ thống |
|
|
NextUpdateTime |
DateTime |
|
X |
Thời gian có thông tin cập nhật mới. Định dạng: yyyy-mm-dd’T’hh:mm:ss’Z’ |
|
Danh sách các trạng thái hệ thống:
- State = 1. Hệ thống hoạt động bình thường. Sẵn sàng tiếp nhận dữ liệu.
- State = 2. Hệ thống đang bận. Vui lòng kiểm tra chu kì cập nhật tiếp theo.
4.9. Đối soát dữ liệu
Kiểm tra số phiên truyền thành công trong khoảng thời gian
|
Thông số |
Mô tả |
||||
|
URL |
api/v1/server/getstatistic |
||||
|
Phương thức |
POST |
||||
|
Mô tả |
API này cho phép lấy kết quả thống kê kết quả truyền dữ liệu của trung tâm sát hạch |
||||
|
Header |
Authorization Token (Được khởi tạo sau quá trình login) CenterID: Mã trung tâm sát hạch |
||||
|
Dữ liệu đầu vào |
Tên trường |
Kiểu dữ liệu |
Độ dài kí tự |
Bắt buộc |
Mô tả |
|
ExamCode |
String |
20 |
|
Mã kỳ sát hạch |
|
|
TimeFrom |
Instant |
|
X |
Thời gian từ Định dạng: yyyy-mm-dd’T’hh:mm:ss’Z’ |
|
|
TimeTo |
Instant |
|
X |
Thời gian đến (thời gian gian không được quá 7 ngày từ TimeFrom) Định dạng: yyyy-mm-dd’T’hh:mm:ss’Z’ |
|
|
Dữ liệu trả về |
Tên trường |
Kiểu dữ liệu |
Độ dài kí tự |
Bắt buộc |
Mô tả |
|
NumberOfSuccess |
Int |
5 |
X |
Tổng số phiên nhận thành công trong khoảng thời gian tương ứng với điều kiện truy vấn. VD: Nếu chỉ truyền CenterID thì hệ thống trả kết quả số lượng các phiên truyền thành công trong khoảng thời gian yêu cầu. Nếu truyền thêm các thông tin khác như ExamCode thì hệ thống sẽ trả về kết quả chi tiết theo điều kiện truyền. |
|
Bạn chưa Đăng nhập thành viên.
Đây là tiện ích dành cho tài khoản thành viên. Vui lòng Đăng nhập để xem chi tiết. Nếu chưa có tài khoản, vui lòng Đăng ký tại đây!
Bạn chưa Đăng nhập thành viên.
Đây là tiện ích dành cho tài khoản thành viên. Vui lòng Đăng nhập để xem chi tiết. Nếu chưa có tài khoản, vui lòng Đăng ký tại đây!