Danh mục
|
Tổng đài trực tuyến 19006192
|
|
  • Tổng quan
  • Nội dung
  • Tiêu chuẩn liên quan
  • Lược đồ
  • Tải về
Lưu
Đây là tiện ích dành cho tài khoản Tiêu chuẩn hoặc Nâng cao . Vui lòng Đăng nhập tài khoản để xem chi tiết.
Theo dõi VB
Đây là tiện ích dành cho tài khoản Tiêu chuẩn hoặc Nâng cao . Vui lòng Đăng nhập tài khoản để xem chi tiết.
Ghi chú
Báo lỗi
In

Tiêu chuẩn Việt Nam TCVN 343:1986 Cát xây dựng - Xác định thành phần hàm lượng chung bụi, bùn, sét

Số hiệu: TCVN 343:1986 Loại văn bản: Tiêu chuẩn Việt Nam
Cơ quan ban hành: Đang cập nhật Lĩnh vực: Xây dựng
Ngày ban hành:
Ngày ban hành là ngày, tháng, năm văn bản được thông qua hoặc ký ban hành.
1986
Hiệu lực:
Đang cập nhật
Người ký: Đang cập nhật
Tình trạng hiệu lực:
Cho biết trạng thái hiệu lực của văn bản đang tra cứu: Chưa áp dụng, Còn hiệu lực, Hết hiệu lực, Hết hiệu lực 1 phần; Đã sửa đổi, Đính chính hay Không còn phù hợp,...
Đã biết
Tiện ích dành cho tài khoản Tiêu chuẩn hoặc Nâng cao. Vui lòng Đăng nhập tài khoản để xem chi tiết.

TÓM TẮT TIÊU CHUẨN VIỆT NAM TCVN 343:1986

Nội dung tóm tắt đang được cập nhật, Quý khách vui lòng quay lại sau!

Tải tiêu chuẩn Việt Nam TCVN 343:1986

Tải văn bản tiếng Việt (.pdf) Tiêu chuẩn Việt Nam TCVN 343:1986 PDF (Bản có dấu đỏ)

Đây là tiện ích dành cho tài khoản thành viên. Vui lòng Đăng nhập để xem chi tiết. Nếu chưa có tài khoản, Đăng ký tại đây!

Tải văn bản tiếng Việt (.doc) Tiêu chuẩn Việt Nam TCVN 343:1986 DOC (Bản Word)

Đây là tiện ích dành cho tài khoản thành viên. Vui lòng Đăng nhập để xem chi tiết. Nếu chưa có tài khoản, Đăng ký tại đây!

Tình trạng hiệu lực: Đã biết
bgdocquyen
Tình trạng hiệu lực: Đã biết

TIÊU CHUẨN VIỆT NAM

TCVN 343 : 1986

CÁT XÂY DỰNG - PHƯƠNG PHÁP XÁC ĐỊNH THÀNH PHẦN HÀM LƯỢNG CHUNG BỤI, BÙN, SÉT
Sand for construction works – Method for determination of content of dust, and clay

 

Tiêu chuẩn này thay thế TCVN 343 : 1970.

Tiêu chuẩn này quy định phương pháp xác định hàm lượng chung bụi, bùn, sét (hạt nhỏ hơn 0,05mm) trong cát bằng cách rửa.

1. Xác định hàm lượng chung bụi, bùn, sét bằng cách rửa

(Phương pháp trọng tài)

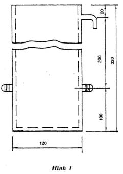
1.1. Thiết bị

Cân kĩ thuật;

Tủ sấy;

Bình rửa cát (hình 1) hay thùng trụ chiều cao 300 mm có ống xiphông;

Đồng hồ bấm giây.

1.2. Chuẩn bị mẫu thử : lấy mẫu rồi sấy khô mẫu đến khối lượng không đổi theo TCVN 337 : 1986, sau đó cân l000g cát đã được sấy khô để làm thí nghiệm.

1.3. Tiến hành thử

1.3.1. Đổ mẫu thử vào bình rồi đổ nước sạch vào cho tới khi chiều cao lớp nước nằm trên cát đạt tới khoảng 200mm. Ngâm cát trong nước khoảng 2 giờ thỉnh thoảng lại khuấy đều một lần, cuối cùng khuấy mạnh một lần nữa rồi để yên trong 2 phút sau đó đổ nước đục ra chỉ để lại trên cát trong lớp nước khoảng 30mm. Lại đổ nước sạch vào đến mức quy định trên và tiếp tục rửa cát như vậy cho đến khi nước đổ ra không còn vẩn đục nữa.

1.3.2. Dùng bình rửa (hình 1) hay thùng trụ có ống xi phông để rửa cát. Khi dùng bình rửa thì phải có nước vào bình cho đến khi nước trào qua vòi trên, còn nước đục thì tháo ra bằng hai vòi dưới (hình l).

Khi dùng thùng trụ thì tháo nước ra bằng ống xi phông, đầu ống phải giữ cách mặt khoảng 30mm.

1.3.3. Sau khi rửa cát xong, sấy khô đến khối lượng không đổi theo TCVN 337 : 1986.

1.4. Tính kết quả

Hàm lượng chung bụi, bùn, sét chứa trong cát (Sc)tính bằng phần trăm (%), chính xác đến 0,l% theo công thức :

Trong đó :

m - Khối lượng mẫu khô tlớc khi rửa, tính bằng g.

m1 - Khối lượng mẫu khô sau khi rửa, tính bằng g.

2. Xác định hàm lượng bụi, bùn, sét bằng phương pháp nhanh.

2.1. Thiết bị

Cân kĩ thuật;

Thùng đựng có vòng vạch mức bên trong ứng với dung tích 5 lít và 10 lít;

Thùng trụ không có vòng vạch mức;

Tủ sấy;

Bộ lưới sàng có kích thước mắt sàng 0,63 và 0,14mm

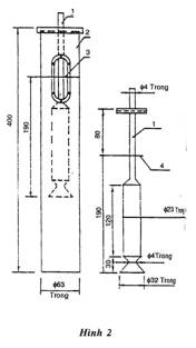
Bình trụ bằng kim loại (hình 2) dung tích l000ml có lỗ quan sát (2 cái);

Pipet định mức 50 ml bằng kim loại (hình 2);

Phễu;

Đồng hồ bấm giây;

Cốc sấy;

2.2. Tiến hành thử

2.2.1. Lấy 1000g cát theo TCVN 337 : 1986

2.2.2. Đổ mẫu vào thùng không có vòng vạch mức lấy 5 lít nước đổ vào thùng khoảng 4,5 lít, số còn lại dành để sau này tráng thùng. Ngâm nước trong cát 10 - 15 phút trộn đều cát vài lần để rửa hết đất sét và bụi chứa trong cát. Sau đó đổ nước vào cát ở thùng lên trên 2 lưới sàng đặt trên chiếc thùng có vạch mức, sàng trên có kích thước mắt sàng 0,63mm sàng dưới có kích thước mắt sàng là 0,1mm.

Để nước đục trong thùng lắng xuống và đổ cẩn thận nước trong ở bên trên sàng thùng không có vòng mạch mức và dùng nước đó để rửa cát trên sàng. Lấy một phần của lượng nước dành lại ở trên để tráng thùng không có vòng vạch mức và cũng đổ nước đó sang thùng có vòng vạch mức làm sao cho mức nước trong thùng đạt tới mức 5l. Trường hợp chưa đạt tới mức 5l thì đổ thêm vào đó cho đạt tới mức

5l.

2.2.3. Sau đó, khuấy đễu nước đục trong thùng, dùng phễu đổ ngay nước đó sang 2 chiếc thùng trụ bằng kim loại dung tích 1000ml (hình 2). Khi đó, vẫn tiếp tục khuấy đều không còn cặn đọng lại. Nước trong mỗi bình trụ phải đạt tới vạch định mức trên lỗ quan sát.

Dùng đũa thuỷ tinh hay đữa kim loại khuấy đễu nước đục trong bình, hoặc đậy nắp lại rồi lắc đều lên.

Sau khi khuấy đều nước trong bình, bấm đồng hồ giây cho chạy và để yên bình trong 15 phút. Trước khi kết thúc thời gian đó độ 5 – 10 giây, cho pipet vào bình như sau: Dùng ngón tay bịt chặt đầu trên pipet, còn dầu dưới cắm vào nước sâu 190mm. Mở ngón tay ra để nước chảy vào pipet rồi lại dùng ngón tay bịt chặt đầu ống lại. Lấy pipet ra khỏi bình mở ngón tay cho 50ml nước chảy vào cốc đã sấy khô và cân sẵn.

Chú thích: Cho phép dùng ống đong thuỷ tinh thay cho bình kim loại có lỗ quan sát và pipet thuỷ tinh thay cho pipet kim loại.

2.2.4. Cô nước đục chứa trong cốc trong tủ sấy ở nhiệt độ 105- 1100C. Cân cốc chứa bột đã cô đặc bằng cân kĩ thuật chính xác đến 0,0lg. Cũng làm như vậy đối với bình thứ 2.

2.3. Tính kết quả

2.3.1. Hàm lượng chung bụi, bùn sét chứa trong mẫu thử (Sc) tính bằng (%), chính xác đến 0,l% theo công thức :

Trong đó :

m - Khối lượng mẫu thử tính bằng g;

m1- Khối lượng cốc dùng để cô đặc, tính bằng g;

m2 - Khối lượng cốc chứa bột đã cô đặc của 50ml nước đục, tính bằng g.

2.3.2. Hàm lượng chung bụi, bùn, sét trong cát là trung bình cộng kết quả của hai lần thử ( lấy từ hai bình trụ).

2.3.3. Trường hợp trong cát có nhiều đất sét và bụi, bẩn thì thể tích nước để rửa cát là 10 lít thay cho 5 lít trong trường hợp trên và nước đổ vào thùng cũng phải đạt tới mức 10 lít. Khi đó kết quả thử, tính bằng phần trăm, theo công thức :

Bạn chưa Đăng nhập thành viên.

Đây là tiện ích dành cho tài khoản thành viên. Vui lòng Đăng nhập để xem chi tiết. Nếu chưa có tài khoản, vui lòng Đăng ký tại đây!

* Lưu ý: Để đọc được văn bản tải trên Luatvietnam.vn, bạn cần cài phần mềm đọc file DOC, DOCX và phần mềm đọc file PDF.

Văn bản liên quan Tiêu chuẩn Việt Nam TCVN 343:1986

01

Tiêu chuẩn Việt Nam TCVN 7572-8:2006 Cốt liệu cho bê tông và vữa - Phương pháp thử - Phần 8: Xác định hàm lượng bùn, bụi, sét trong cốt liệu và hàm lượng sét cục trong cốt liệu nhỏ

02

Tiêu chuẩn Việt Nam TCVN 337:1986 Cát xây dựng - Phương pháp lấy mẫu

03

Tiêu chuẩn ngành 22TCN 271:2001 Thi công và nghiệm thu mặt đường láng nhựa

văn bản cùng lĩnh vực

văn bản mới nhất

Chú thích màu chỉ dẫn
Chú thích màu chỉ dẫn:
Các nội dung của VB này được VB khác thay đổi, hướng dẫn sẽ được làm nổi bật bằng các màu sắc:
Sửa đổi, bổ sung, đính chính
Thay thế
Hướng dẫn
Bãi bỏ
Bãi bỏ cụm từ
Bình luận
Click vào nội dung được bôi màu để xem chi tiết.
×