- Tổng quan
- Nội dung
- Tiêu chuẩn liên quan
- Lược đồ
- Tải về
Tiêu chuẩn xây dựng Việt Nam TCXDVN 365:2007 Bệnh viện đa khoa - Hướng dẫn thiết kế
| Số hiệu: | TCXDVN 365:2007 | Loại văn bản: | Tiêu chuẩn XDVN |
| Cơ quan ban hành: | Đang cập nhật | Lĩnh vực: | Xây dựng |
|
Ngày ban hành:
Ngày ban hành là ngày, tháng, năm văn bản được thông qua hoặc ký ban hành.
|
15/05/2007 |
Hiệu lực:
|
Đã biết
|
| Người ký: | Đang cập nhật |
Tình trạng hiệu lực:
Cho biết trạng thái hiệu lực của văn bản đang tra cứu: Chưa áp dụng, Còn hiệu lực, Hết hiệu lực, Hết hiệu lực 1 phần; Đã sửa đổi, Đính chính hay Không còn phù hợp,...
|
Đã biết
|
TÓM TẮT TIÊU CHUẨN XDVN TCXDVN 365:2007
Nội dung tóm tắt đang được cập nhật, Quý khách vui lòng quay lại sau!
Tải tiêu chuẩn Việt Nam TCXDVN 365:2007
TIÊU CHUẨN XÂY DỰNG VIỆT NAM
TCXDVN 365 : 2007
BỆNH VIỆN ĐA KHOA HƯỚNG DẪN THIẾT KẾ
General hospital – Guideline
LỜI NÓI ĐẦU
TCXDVN 365 : 2007 “Bệnh viện đa khoa- Hướng dẫn thiết kế” thay thế TCVN 4470- 1995 “Bệnh viện đa khoa- Tiêu chuẩn thiết kế”
TCXDVN 365 : 2007 “Bệnh viện đa khoa- Hướng dẫn thiết kế” quy định các yêu cầu kỹ thuật khi thiết kế bệnh viện đa khoa, theo quy mô và phân cấp quản lý do Bộ Y tế quy định, được Bộ Xây dựng ban hành theo Quyết định số 18/2007/QĐ-BXD ngày 15 tháng 5 năm 2007.
MỤC LỤC
| 1. | Phạm vi áp dụng |
|
| 2. | Tài liệu viện dẫn |
|
| 3. | Quy định chung |
|
| 4. | Yêu cầu về khu đất xây dựng và bố cục tổng mặt bằng |
|
| 5. | Nội dung công trình và giải pháp thiết kế |
|
| 5.6. | Khối khám bệnh đa khoa và điều trị ngoại trú |
|
| 5.7. | Khối chữa bệnh nội trú |
|
| 5.8. | Khối kỹ thuật nghiệp vụ cận lâm sàng |
|
| 5.8.1. | Khoa cấp cứu, khoa điều trị tích cực và chống độc |
|
| 5.8.2. | Khoa phẫu thuật- gây mê hồi sức |
|
| 5.8.3. | Khoa chẩn đoán hình ảnh |
|
| 5.8.4. | Các khoa xét nghiệm |
|
| 5.8.5. | Bộ phận y học thực nghiệm |
|
| 5.8.6. | Khoa giải phẫu bệnh lý |
|
| 5.8.7. | Khoa thăm dò chức năng |
|
| 5.8.8. | Khoa truyền máu |
|
| 5.8.9. | Khoa lọc máu |
|
| 5.8.10. | Khoa nội soi |
|
| 5.8.11. | Khoa dược |
|
| 5.9. | Khối hành chính quản trị và dịch vụ tổng hợp |
|
| 5.10. | Khối kỹ thuật hậu cần và công trình phụ trợ |
|
| 5.11. | Khoa chống nhiễm khuẩn và xử lý chất thải |
|
| 6. | Yêu cầu thiết kế hệ thống kỹ thuật |
|
| 6.1. | Yêu cầu về phòng cháy chữa cháy |
|
| 6.2. | Yêu cầu về chiếu sáng tự nhiên và thông gió |
|
| 6.3. | Yêu cầu về kỹ thuật điện - nước |
|
| 6.4. | Yêu cầu về công tác hoàn thiện |
|
|
| Phụ lục A |
|
|
| Phụ lục B |
|
|
| Phụ lục C |
|
|
| Phụ lục D |
|
|
| Phụ lục E |
|
|
| Phụ lục F |
|
|
| Phụ lục G |
|
|
| Phụ lục H |
|
|
| Phụ lục K |
|
|
| Phụ lục L |
|
|
| Phụ lục M |
|
|
| Phụ lục N |
|
|
| Phụ lục P |
|
TIÊU CHUẨN XÂY DỰNG VIỆT NAM
BỆNH VIỆN ĐA KHOA - HƯỚNG DẪN THIẾT KẾ
General hospital - Guideline
1. Phạm vi áp dụng.
Tiêu chuẩn này thay thế TCVN 4470-1995 - Bệnh viện đa khoa – Yêu cầu thiết kế.
1.1. Tiêu chuẩn này áp dụng để thiết kế mới, thiết kế cải tạo các bệnh viện đa khoa.
1.2. Khi thiết kế các bệnh viện chuyên khoa, bệnh viện đông y, nhà điều dưỡng, trung tâm y tế, phòng khám, tư vấn sức khoẻ, có thể tham khảo tiêu chuẩn này.
Chú thích:
1) Khi thiết kế cải tạo, đối với những quy định về diện tích, mật độ xây dựng, khoảng cách, các bộ phận trong các khoa phòng… phải được Bộ Xây dựng cho phép, có sự thoả thuận của Bộ Y tế và không được ảnh hưởng đến công tác khám chữa bệnh.
2) Trong trường hợp bệnh viện đa khoa có những yêu cầu đặc biệt thì phải được ghi rõ trong báo cáo đầu tư và được các cấp có thẩm quyền phê duyệt.
3) Khi thiết kế bệnh viện đa khoa ngoài việc tuân theo những quy định trong tiêu chuẩn này còn phải tuân theo các văn bản pháp quy và các tiêu chuẩn hiện hành có liên quan.
2. Tài liệu viện dẫn.
Quy chế bệnh viện, Quyết định số 1895/1997/BYT-QĐ ngày 19/9/1997 Bộ Y tế.
52 TCN- CTYT 39: 2005 Khoa cấp cứu- Khoa điều trị tích cực- chống độc- Tiêu chuẩn thiết kế
52 TCN- CTYT 38: 2005 Khoa phẫu thuật- Tiêu chuẩn thiết kế
52 TCN- CTYT 37: 2005 Khoa xét nghiệm- Tiêu chuẩn thiết kế
52 TCN- CTYT 40: 2005 Khoa chẩn đoán hình ảnh- Tiêu chuẩn thiết kế
Hướng dẫn thực hiện đề án nâng cấp bệnh viện huyện và bệnh viện đa khoa khu vực giai đoạn 2005- 2008.
TCVN 4470 : 1995 Hướng dẫn áp dụng Bệnh viện đa khoa yêu cầu thiết kế- Bộ Y tế.
Quy chuẩn Xây dựng Việt Nam.
TCXDVN 276 : 2003 Công trình công cộng- Nguyên tắc cơ bản để thiết kế.
TCVN 2737 : 1995 Tải trọng và tác động - Tiêu chuẩn thiết kế.
TCVN 2622 : 1995 Phòng cháy, chống cháy cho nhà và công trình- Yêu cầu thiết kế.
TCVN 5687 : 1992 Thông gió, điều tiết không khí và sưởi ấm- Tiêu chuẩn thiết kế.
TCVN 4474 : 1987 Thoát nước bên trong- Tiêu chuẩn thiết kế.
TCVN 4513 : 1988 Cấp nước bên trong- Tiêu chuẩn thiết kế.
TCXD 16 : 1986 Chiếu sáng nhân tạo trong công trình dân dụng.
TCXD 29 : 1991 Chiếu sáng tự nhiên trong công trình dân dụng.
TCXD 25 : 1991 Đặt đường dây dẫn điện trong nhà ở và công trình công cộng- Tiêu chuẩn thiết kế.
TCXD 27 : 1991 Đặt thiết bị điện trong nhà ở và công trình công cộng- Tiêu chuẩn thiết kế.
3. Quy định chung.
3.1. Bệnh viện đa khoa là bệnh viện ít nhất phải có các khoa: điều trị nội khoa, điều trị ngoại khoa, khoa sản- phụ, khoa nhi, khoa truyền nhiễm, các khoa kỹ thuật cận lâm sàng.
3.2. Bệnh viện đa khoa được thiết kế với quy mô và phân cấp quản lý trên cơ sở Quy chế bệnh viện được ban hành theo Quyết định số1895/1997/BYT-QĐ ngày 19/9/1997 của Bộ trưởng Bộ Y tế.
Chú thích : Quy mô bệnh viện đa khoa được xác định phụ thuộc vào dân số trên địa bàn phục vụ và phù hợp với quy hoạch mạng lưới bệnh viện đã được Bộ Y tế phê duyệt. Quy mô bệnh viện không phụ thuộc vào phân loại theo hạng bệnh viện.
3.3. Bệnh viện đa khoa được thiết kế với cấp công trình phù hợp với quy định trong Nghị định 209/2004/NĐ-CP về quản lý chất lượng công trình.
4. Yêu cầu về khu đất xây dựng và bố cục tổng mặt bằng.
4.1. Khu đất xây dựng bệnh viện đa khoa phải đảm bảo các yêu cầu sau đây :
- Phù hợp với quy hoạch được duyệt, có tính đến phát triển trong tương lai;
- Vệ sinh thông thoáng, yên tĩnh, tránh các khu đất có môi trường bị ô nhiễm. Trong khi xây dựng bệnh viện cũng như trong quá trình sử dụng không được gây ô nhiễm đến môi trường xung quanh.
- Thuận tiện cho bệnh nhân đi lại và liên hệ với các khoa trong bệnh viện, phù hợp với vị trí khu chức năng được xác định trong qui hoạch tổng mặt bằng của đô thị.
4.2. Diện tích khu đất xây dựng bệnh viện đa khoa tính theo số giường bệnh, được qui định trong bảng 1.
Bảng 1. Diện tích khu đất xây dựng bệnh viện đa khoa
| Quy mô (số giường điều trị) | Diện tích khu đất | |
| (m2) giường | Yêu cầu tối thiểu cho phép (ha) | |
| Từ 50 giường đến 200 giường (Bệnh viện quận huyện) | 100 - 150 | 0,75 |
| Từ 250 giường đến 350 giường (Quy mô 1) | 70 - 90 | 2,7 |
| Từ 400 giường đến 500 giường (Quy mô 2) | 65 - 85 | 3,6 |
| Trên 550 giường (Quy mô 3) | 60 - 80 | 4,0 |
Chú thích :
1) Diện tích khu đất xây dựng quy định ở trên, không tính cho các công trình nhà ở và phúc lợi công cộng phục vụ cho đời sống cán bộ công nhân viên. Các công trình này được xây dựng ngoài khu đất xây dựng bệnh viện.
2) Diện tích khu đất xây dựng không tính đến hồ ao, suối, nương đồi quá dốc không sử dụng được cho công trình.
3) Trường hợp diện tích đất xây dựng các bệnh viện trong đô thị không đảm bảo được quy định trong bảng 1, khuyến khích thiết kế bệnh viện hợp khối, cao tầng nhưng phải tuân thủ và đảm bảo dây chuyền hoạt động của bệnh viện.
4) Diện tích khu đất xây dựng phải có diện tích dự phòng cho việc mở rộng và phát triển của bệnh viện trong tương lai.
4.3. Trên khu đất xây dựng bệnh viện, phải dành phần đất riêng cho khu lây đảm bảo mật độ xây dựng, mật độ cây xanh và dải cây cách ly.
4.4. Mật độ xây dựng cho phép từ 30% ¸ 35% diện tích khu đất.
4.5. Khoảng cách giới hạn cho phép từ đường đỏ đến :
a) Mặt ngoài tường của mặt nhà :
- Nhà bệnh nhân, nhà khám bệnh và khối kỹ thuật nghiệp vụ : không nhỏ hơn 15m.
- Nhà hành chính quản trị và phục vụ : không nhỏ hơn 10m.
b) Mặt ngoài tường đầu hồi :
- Nhà bệnh nhân, nhà khám bệnh và khối kỹ thuật nghiệp vụ : không nhỏ hơn 10m.
4.6. Khoảng cách ly vệ sinh nhỏ nhất giữa nhà và công trình bố trí riêng biệt đối với nhà bệnh nhân, được quy định trong Bảng 2.
Bảng 2. Khoảng cách ly vệ sinh nhỏ nhất giữa nhà và công trình đối với nhà bệnh nhân
| Loại nhà hoặc công trình | Khoảng cách ly vệ sinh nhỏ nhất (m) | Ghi chú |
| -Khu lây trên 25 giường | 20 | Có dải cây cách ly |
| - Trạm cung cấp hoặc biến thế điện, hệ thống cấp nước, nhà giặt, sân phơi quần áo. | 15 |
|
| - Trạm khử trùng tập trung, lò hơi, trung tâm cung cấp nước nóng. | 15 |
|
| - Nhà xe, kho, xưởng sửa chữa nhỏ, kho chất cháy. | 20 |
|
| - Nhà xác, khoa giải phẫu bệnh lí, lò đốt bông băng, bãi tích thải rác, khu nuôi súc vật, thí nghiệm, trạm xử lí nước bẩn. | 20 | Có dải cây cách ly |
Chú thích : Ngoài việc đảm bảo khoảng cách ly vệ sinh như quy định ở trên còn cần phải bảo đảm khoảng cách phòng cháy, chữa cháy qui định trong tiêu chuẩn “TCVN 2622 :1995 - Phòng chống cháy cho nhà và công trình. Yêu cầu thiết kế”. Khoảng cách trên có thể tăng hoặc giảm trong trường hợp điều kiện khí hậu đặc biệt.
4.7. Mật độ diện tích cây xanh cho phép từ 40% ¸ 50% tổng diện tích khu đất xây dựng.
4.8. Chiều rộng nhỏ nhất của dải đất trồng cây bảo vệ, cách ly qui định như sau:
- Dải cây bảo vệ quanh khu đất : 5m.
- Dải cây cách ly : 10m.
4.9. Trong bệnh viện không được trồng các loại cây có hoa quả thu hút ruồi muỗi, sâu bọ, loại cây dễ đổ, giữ ẩm và loại cây có nhựa độc.
4.10. Trong tổng mặt bằng khu bệnh viện, cần bố trí các đường đi lại hợp lí và phải có sơ đồ hướng dẫn cụ thể. Phải bố trí các đường đi lại và vận chuyển riêng biệt cho :
- Nhân viên và khách;
- Người bệnh;
- Khu truyền nhiễm trên 25 giường và người bệnh truyền nhiễm;
- Thực phẩm và đồ dùng sạch;
- Xác, rác và đồ vật bẩn;
- Xe cứu hoả trong trường hợp có sự cố.
4.11. Trong bệnh viện phải có các loại đường đi :
- Cho xe cấp cứu, xe chữa cháy, xe vận chuyển, xe thăm bệnh nhân đặc biệt, người tàn tật;
- Liên hệ với các công trình nội trú, kỹ thuật nghiệp vụ- cận lâm sàng và khám bệnh;
- Dạo chơi, đi bộ cho người bệnh.
5. Nội dung công trình và giải pháp thiết kế.
5.1. Giải pháp bố cục mặt bằng kiến trúc bệnh viện đa khoa phải đảm bảo yêu cầu :
- Hợp lí, không chồng chéo giữa các bộ phận và trong từng bộ phận;
- Điều kiện vệ sinh và phòng bệnh tốt nhất cho khu chữa bệnh nội trú;
- Nhu cầu phát triển của bệnh viện trong tương lai;
- Cổng và phòng đợi khám phải có sơ đồ chỉ dẫn đến từng khoa;
- Mỗi khoa phải có bảng chỉ dẫn đến từng phòng, ban cụ thể.
Sơ đồ bố trí các khối trong bệnh viện đa khoa xem trên hình B1-phụ lục B.
5.2. Bố cục từng ngôi nhà, từng bộ phận của các khối trong bệnh viện đa khoa phải đảm bảo các yêu cầu:
- Buồng bệnh riêng cho nam nữ; Giữa các thao tác thủ thuật vô khuẩn và hữu khuẩn phải được ngăn riêng biệt;
- Cách ly giữa người có bệnh truyền nhiễm của các nhóm bệnh khác nhau trong khoa lây;
- Riêng biệt giữa thuốc men, thức ăn, đồ dùng sạch với đồ vật bẩn, nhiễm khuẩn, xác, rác...
5.3. Chiều cao thông thuỷ của các gian phòng trong bệnh viện được qui định là 3,6m và được phép tăng giảm trong các trường hợp sau :
- Tăng đến 4,2m cho phòng X-quang (tuỳ loại thiết bị), phòng mổ (tuỳ loại đèn);
- Giảm đến 3,30m cho các phòng sinh hoạt, hành chính quản trị, bếp kho và xưởng sửa chữa nhỏ; nhà giặt, nhà xe, nhà xác;
- Giảm đến 2,4m cho các phòng tắm rửa, xí tiểu, kho đồ dùng bẩn.
Chú thích: Trong trường hợp sử dụng điều hoà không khí cho phép giảm chiều cao để sử dụng tiết kiệm năng lượng.
5.4. Chiều rộng thông thuỷ tối thiểu cho hành lang, cửa đi và cầu thang trong bệnh viện được qui định như sau :
a) Hành lang trong đơn nguyên nội trú và khám bệnh :
- Có kết hợp chỗ đợi : không nhỏ hơn 2,7m đến 3,0m;
- Không kết hợp chỗ đợi : không nhỏ hơn 2,1m đến 2,4m (hành lang bên);
không nhỏ hơn 2,4m đến 2,7m (hành lang giữa);
- Hành lang của cán bộ công nhân viên: không nhỏ hơn 1,5m.
b) Cửa đi :
- Có di chuyển giường đẩy (hoặc cáng) : không nhỏ hơn 1,2m;
- Không di chuyển giường đẩy (hoặc cáng): không nhỏ hơn 1,0m;
c) Cầu thang và đường dốc được quy định trong Bảng 3.
Bảng 3. Chiều rộng và độ dốc cầu thang
| Loại thang | Chiều rộng thông thuỷ (m) | Độ dốc | Chiếu nghỉ (m) |
| Thang chính Thang phụ Đường dốc | Không nhỏ hơn 1,5 Không nhỏ hơn 1,2 - | Không lớn hơn 1:2 Không lớn hơn 1:1 Không lớn hơn 1:10 | Không nhỏ hơn 2,4 Không nhỏ hơn 1,4 Không nhỏ hơn 1,9 |
Chú thích: Đối với bệnh viện có các khối điều trị trên 3 tầng hoặc có quy mô từ 150 giường trở lên cần bố trí thang máy chuyên dụng có thể vận chuyển cáng cho bệnh nhân nặng, bệnh nhân không tự đi lại được, bệnh nhân là người khuyết tật.
d) Lối vào, hành lang, cửa đi, khu vực khám bệnh, buồng bệnh, khu vệ sinh và nơi dịch vụ công cộng phải đảm bảo cho người tàn tật tiếp cận sử dụng. Yêu cầu thiết kế theo “TCXDVN 264: 2002 - Nhà và công trình - Nguyên tắc cơ bản để thiết kế công trình đảm bảo người tàn tật tiếp cận sử dụng”.
e) Yêu cầu thiết kế cửa đóng mở tự động nhất là ở khoa xét nghiệm, khoa giải phẫu, khoa giải phẫu bệnh.
5.5. Nội dung công trình bệnh viện đa khoa gồm có : (xem phụ lục B, hình B1)
(5.6) - Khối khám bệnh đa khoa và điều trị ngoại trú;
(5.7) - Khối chữa bệnh nội trú;
(5.8) - Khối kỹ thuật nghiệp vụ - cận lâm sàng - thăm dò chức năng;
(5.9) - Khối hành chính quản trị và dịch vụ tổng hợp.
(5.10) - Khối kỹ thuật - hậu cần và công trình phụ trợ;
5.6. Khối khám bệnh đa khoa và điều trị ngoại trú (xem phụ lục B)
5.6.1. Trong dây chuyền của bệnh viện đa khoa, khối khám và điều trị ngoại trú là nơi tiếp xúc đầu tiên với bệnh nhân, được bố trí gần cổng chính liên hệ thuận tiện với khối kỹ thuật nghiệp vụ- cận lâm sàng nhất là khoa hồi sức cấp cứu, khoa xét nghiệm, khoa chẩn đoán hình ảnh, khoa thăm dò chức năng và khối khám và điều trị bệnh nội trú.
5.6.1.1. Chức năng khối khám bệnh đa khoa và điều trị ngoại trú.
- Khám bệnh, chọn lọc người bệnh vào điều trị nội trú, thực hiện công tác điều trị ngoại trú và hướng dẫn chăm sóc sức khoẻ ban đầu.
- Tổ chức khám sức khoẻ định kỳ, theo dõi tình hình bệnh tật trong vùng dân cư được phụ trách để có biện pháp ngăn ngừa bệnh tật.
- Tổ chức dây chuyền khám sức khỏe theo nhiệm vụ được giao.
- Khoa khám bệnh được bố trí một chiều theo quy định, có đủ thiết bị y tế và biên chế phục vụ theo phân hạng của bệnh viện.
5.6.1.2. Tổ chức: khoa khám đa năng và điều trị ngoại trú ở tất cả các quy mô, cơ cấu, số lượng chỗ khám xem trong bảng 4.
5.6.1.3. Bố trí không gian.
- Tiếp đón, phát số.
- Khám bệnh, cấp cứu.
- Thực hiện thủ thuật chuyên khoa.
- Bố trí dây chuyền phòng khám một chiều, thuận tiện; có phòng khám truyền nhiễm riêng, lối đi riêng. Khu vực đón tiếp và chờ khám cần có diện tích thích hợp, diện tích phòng chờ được tính thêm hệ số 2- 2,5 dành cho người nhà bệnh nhân.
Bảng 4. Số lượng chỗ khám tính theo quy mô giường bệnh
| Chuyên khoa | Số chỗ khám bệnh | Tỷ lệ (%) | Ghi chú | |||
| Bệnh viện quận,huyện 50-200 giường | Quy mô 1 250-350 giường | Quy mô 2 400-500 giường | Quy mô 3 Trên 550 giường | |||
| Hạng III | Hạng III | Hạng II | Hạng I | |||
| 1. Nội | 2 - 5 chỗ | 6 - 8 chỗ | 9 - 11 chỗ | trên 12 chỗ | 20 | 4 chỗ khám bố trí 01 phòng thủ thuật chữa bệnh |
| 2. Ngoại | 1 - 2 chỗ | 4 - 6 chỗ | 7 - 8 chỗ | trên 9 chỗ | 15 | 4 chỗ khám bố trí 01 phòng thủ thuật chữa bệnh |
| 3. Sản | 1 chỗ | 2 - 3 chỗ | 3 - 5 chỗ | trên 6 chỗ | 12 | Đặt tại khoa phụ, sản |
| 4. Phụ | 1 chỗ | 1 chỗ | 2 chỗ | trên 3 chỗ | ||
| 5. Nhi | 1 chỗ | 4 - 6 chỗ | 7 - 8 chỗ | trên 9 chỗ | 14 | 4 chỗ khám bố trí 01 phòng thủ thuật chữa bệnh |
| 6. Răng hàm mặt | 1 - 2 chỗ | 2 – 3 chỗ | 3 chỗ | trên 4 chỗ | 6 | Kết hợp khám và chữa |
| 7. Tai mũi họng | 1 chỗ | 2 – 3 chỗ | 3 chỗ | trên 4 chỗ | 6 | Kết hợp khám và chữa |
| 8. Mắt | 1 chỗ | 2 – 3 chỗ | 3 chỗ | trên 4 chỗ | 6 | 3 chỗ khám bố trí 01 phòng thủ thuật chữa bệnh |
| 9. Truyền nhiễm | 1 chỗ | 2 chỗ | 3 - 4 chỗ | trên 5 chỗ | 7 | Chỗ khám, chữa cách ly |
| 10. Y học cổ truyền | 1 chỗ | 2 – 3 chỗ | 3 chỗ | trên 4 chỗ | 6 | Đặt tại khoa YHCT |
| 11. Các chuyên khoa khác | 1 chỗ | 2 chỗ | 3 - 4 chỗ | trên 5 chỗ | 7 |
|
| Tổng cộng | 12 - 17 chỗ | 29 - 41 chỗ | 47 - 59 chỗ | trên 65 chỗ | 100 |
|
Ghi chú: Khám Y học cổ truyền và khám sản, phụ khoa được bố trí tại khu điều trị của khoa.
5.6.2. Diện tích các loại phòng khám và điều trị ngoại trú được thiết kế theo số lần khám trong ngày và được quy định trong bảng 5.
Bảng 5. Diện tích các loại phòng khám và điều trị ngoại trú
| Loại phòng | Diện tích phòng (m2) | ||||
| Từ 50lần ¸150 lần khám trong ngày (50 ¸ 200 giường) BVquận huyện (hạng III) | Trên 150lần ¸ 400lần khám trong ngày (250¸ 350 giường) Quy mô1 (hạng III) | Trên 200lần ¸ 450lần khám trong ngày (400¸ 500 giường) Quy mô 2 (hạng II) | Trên 500 lần khám trong ngày (trên 550 giường) Quy mô 3 (hạng I) | Ghi chú | |
| I. Các phòng phụ trợ: | Nên kết hợp ở sảnh | ||||
| - Chỗ đợi chung | xem điều 5.6.3 | ||||
| -Chỗ đợi phân tán | xem điều 5.6.3 | ||||
| -Chỗ phát số, giao dịch | 5 - 6 |
|
|
| |
| -Khu vệ sinh | xem điều 5.6.4 | 12 - 15 | 15 - 18 | 18 – 24 | |
| II. Các phòng khám bệnh và điều trị ngoại trú. |
| ||||
| 1) Nội |
|
|
|
|
|
| -Phòng khám | (1¸2) x (9¸12) | (2¸3) x (9¸12) | (3¸4) x (12¸15) | (4¸5) x (12¸15) |
|
| -Phòng điều trị | 2 x (9¸12) | (1¸2) x (9¸12) | (2¸3) x (9¸12) | (2¸3) x (9¸12) |
|
| 2) Thần kinh |
|
|
|
|
|
| -Phòng khám | 9 - 12 | 12 - 15 | 12 - 15 | 12 - 15 |
|
| 3) Da liễu |
|
|
|
|
|
| -Phòng khám | 9 - 12 | 9 - 12 | 9 - 12 | 9 - 12 |
|
| -Phòng điều trị | 9 - 12 | 9 - 12 | 9 - 12 | 9 - 12 |
|
| 4) Đông y |
|
|
|
|
|
| -Phòng khám | 9 - 12 | (1¸2) x (9¸12) | 2 x (9¸12) | 2 x (9¸12) |
|
| -Phòng châm cứu | (1¸2) x (9¸12) | 2 x (9¸12) | 2 x (9¸12) | 2 x (9¸12) |
|
| 5) Bệnh truyền nhiễm |
|
|
|
| Dưới 10 giường bệnh truyền nhiễm dùng chung phòng khám của khoa nội |
| -Phòng khám | 12 - 15 | 12 - 15 | 12 - 15 | 12 - 15 | |
| 6) Nhi |
|
|
|
|
|
| -Chỗ đợi | xem điều 5.6.3 |
| |||
| -Phòng khám nhi thường | 9 - 12 | (1¸2) x (9¸12) | (2¸3) x (9¸12) | (2¸3) x (9¸12) |
|
| -Phòng khám bệnh nhi truyền nhiễm | Dùng chung phòng khám của khoa bệnh truyền nhiễm | ||||
| -Khu vệ sinh | xem điều 5.6.4 |
| |||
| 7) Ngoại |
|
|
|
|
|
| -Phòng khám | 9 - 12 | (1¸2) x (9¸12) | (2¸3) x (9¸12 | (2¸3) x (9¸12) |
|
| -Phòng điều trị | - | - | - | - |
|
| -Căn vô khuẩn | 9 - 12 | 12 - 15 | 15 - 18 | 15 - 18 |
|
| -Căn hữu khuẩn | 9 - 12 | 9 - 12 | 9 - 12 | 9 - 12 |
|
| -Chỗ rửa, hấp và chuẩn bị | 9 - 12 | 9 - 12 | 9 - 12 | 9 - 12 |
|
| 8) Phụ và sản |
|
|
|
|
|
| -Chỗ đợi riêng | Xem điều 5.6.3 | ||||
| -Phòng khám sản | 12 - 15 | 12 - 15 | (1¸2) x (12¸15) | (1¸2) x (12¸15) |
|
| -Phòng khám phụ khoa | 12 - 15 | 12 - 15 | (1¸2) x (12¸15) | (1¸2) x (12¸15) |
|
| -Khu vệ sinh | Xem điều 5.6.4 | ||||
| 9) Mắt |
|
|
|
|
|
| -Phòng khám |
|
|
|
|
|
| + Phần sáng | 15 - 18 | 15 - 18 | (1¸2) x (15¸18) | (1¸2) x (15¸18) |
|
| + Phần tối | - | 12 - 15 | 12 - 15 | 12 - 15 |
|
| -Phòng điều trị | 12 - 15 | 18 - 24 | 18 - 24 | 18 - 24 |
|
| 10) Tai mũi họng |
|
|
|
|
|
| -Phòng khám | 12 - 15 | 12 - 15 | (1¸2) x (12¸15) | (1¸2) x (12¸15) |
|
| -Phòng điều trị | - | - | 15 - 18 | 15 - 18 |
|
| 11) Răng hàm mặt |
|
|
|
| Có chỗ rửa, hấp dụng cụ từ 4 ¸ 5m2. Có nghỉ tạm ở chỗ chờ của khoa |
| -Phòng khám (1 ghế) | 9 - 12 | 9 - 12 | 9 - 12 | 9 - 12 | |
| -Phòng tiểu phẫu | - | - | 12 - 15 | 12 - 15 | |
| -Phòng chỉnh hình | - | 9 - 12 | 9 - 12 | 9 - 12 | |
| -Xưởng răng giả | - | 24 - 30 | 24 - 30 | 24 - 30 | |
| III. Bộ phận cấp cứu. Lấy theo diện tích các phòng chức năng quy định tại điều 5.8.1.15 |
| ||||
| IV. Bộ phận nghiệp vụ. |
| ||||
| -Phòng phát thuốc (kho thuốc và quầy bán thuốc) | 9 - 12 | 12 - 15 | 12 - 15 | 12 - 15 |
|
| -Chỗ bán thuốc | 12 - 15 | 12 - 15 | 12 - 15 | 12 - 15 |
|
| -Chỗ đợi | xem điều 5.6.3 | ||||
| -Phòng xét nghiệm thông thường |
|
|
|
|
|
| + Chỗ đợi | xem điều 5.6.3 | ||||
| + Chỗ lấy bệnh phẩm | 6 - 9 | 6 - 9 | 12 - 16 | 12 - 16 |
|
| + Phòng chụp Xquang | - | 20 - 24 | 24 - 36 | 24 - 36 |
|
| + Chỗ đợi của Xquang | - | 6 - 9 | 9 - 12 | 9 - 12 |
|
| -Phòng bác sĩ Xquang (kiêm lưu hồ sơ) | - | 9 - 12 | 12 - 16 | 12 - 16 |
|
| -Phòng lưu hồ sơ của phòng khám | 12 - 15 | 15 - 18 | 18 - 24 | 18 - 24 |
|
| -Phòng giám định y khoa | - | 12-15 | 15-18 | 15-18 |
|
| -Kho sạch | 6 - 9 | 9 - 12 | 12 - 15 | 12 - 15 |
|
| -Phòng quản lí trang thiết bị | 9 - 12 | 12 - 15 | 15 - 18 | 15 - 18 |
|
| -Kho chứa hoá chất | 6 - 9 | 9 - 12 | 12 - 16 | 12 - 16 |
|
| -Kho bẩn | 4 - 6 | 6 - 9 | 6 - 9 | 6 - 9 |
|
| V. Bộ phận tiếp nhận. |
| ||||
| -Phòng thay gửi quần áo | 6 - 9 | 6 - 9 | 6 - 9 | 6 - 9 |
|
| -Phòng tiếp nhận | 9 - 12 | 9 - 12 | 9 - 12 | 9 - 12 |
|
| -Kho quần áo, đồ dùng: |
|
|
|
|
|
| +Đồ sạch của bệnh nhân | 4 - 6 | 4 - 6 | 4 - 6 | 9 - 12 |
|
| +Đồ gửi của bệnh nhân | 4 - 6 | 4 - 6 | 6 - 9 | 9 - 12 |
|
| VI. Bộ phận hành chính - sinh hoạt của nhân viên. |
| ||||
| -Phòng chủ nhiệm | 9 - 12 | 12 - 15 | 15 - 18 | 15 - 18 |
|
| -Phòng sinh hoạt | 12 - 15 | 15 - 18 | 15 - 18 | 15 - 18 |
|
| -Phòng thay quần áo | Xem bảng 18 | ||||
| -Phòng vệ sinh | Xem điều 5.6.4 | ||||
Chú thích :
1) Giường tạm lưu bố trí ở bộ phận tiếp nhận. Tính với 2 giường, từ 5m2¸ 6m2/giường.
2) Trong trường hợp cần đặt các trạm theo dõi bệnh xã hội trong khối khám bệnh, diện tích và số phòng cần có phải được ghi trong báo cáo đầu tư của dự án đầu tư xây dựng công trình.
3) Đối với bệnh viện thiết kế hợp khối, ưu tiên bố trí ở tầng mặt đất theo thứ tự ở các khoa sau : cấp cứu, chẩn đoán hình ảnh, nhi, mắt.
4) Một phòng hội chẩn có thể sử dụng cho 9 lần hội chẩn trong 1 tuần. Công thức tính như sau :
| Số phòng hội chẩn = | Số lần hội chẩn trong 1 tuần lễ |
| 9 |
5.6.3. Trong phòng khám bệnh, chỗ đợi chung và riêng cho từng phòng khám được thiết kế như sau:
- Từ 1,00m2 đến 1,20m2 cho một chỗ đợi của người lớn;
- Từ 1,50m2 đến 1,80 m2 cho một chỗ đợi của trẻ em;
- Số chỗ đợi được tính từ 12% đến 15% số lần khám trong ngày.
Chú thích : Chỗ đợi có thể bố trí tập trung hay phân tán theo các khoa, tuỳ phương án thiết kế nhưng không được vượt quá diện tích chung.
5.6.4. Số lượng thiết bị vệ sinh trong khu vực vệ sinh của khoa khám bệnh được qui định trong bảng 6.
Bảng 6. Số lượng thiết bị vệ sinh
| Quy mô phòng khám (số lần khám/ ngày) | Thiết bị vệ sinh | |||||
| Chậu rửa | Xí | Tiểu | ||||
| Nam | Nữ | Nam | Nữ | Nam | Nữ | |
| Từ 50 lần đến 150 lần | 2 | 2 | 3 | 3 | 2 | 2 |
| Từ 150 lần đến 400 lần | 2 - 3 | 2 - 3 | 4 - 5 | 4 - 5 | 3 | 3 |
| Từ 400 lần đến 500 lần | 3 | 3 | 5 - 6 | 5 - 6 | 3 | 3 |
5.6.5. Các phòng khám:
5.6.5.1. Khám nội khoa
Nằm trong khoa khám và chữa bệnh ngoại trú, có nhiệm vụ khám và điều trị ngoại trú, khám chọn lọc, tiếp nhận bệnh nhân vào nội trú các bệnh nội khoa. Trong mỗi không gian khám đủ diện tích cho 01 bàn làm việc + 01 giường bệnh. Từ 02- 04 phòng khám cần bố trí thêm phòng thủ thuật. Sơ đồ công năng khám- chữa nội khoa xem hình B3- phụ lục B.
5.6.5.2. Khám ngoại khoa
Nằm trong khoa khám và chữa bệnh ngoại trú, có nhiệm vụ chữa trị các bệnh chấn thương, ung nhọt, viêm tấy sơ cứu, tiểu phẫu, chích đắp thuốc… Ngoài khu vực đợi, các phòng khám còn có phòng thuốc, chuẩn bị, phòng thủ thuật. Sơ đồ công năng khám- chữa ngoại khoa xem hình B5- phụ lục B..
5.6.5.3. Phòng khám nhi nên có lối ra vào riêng đồng thời liên hệ thuận tiện với phòng cấp cứu và phòng hồi sức cấp cứu.
5.6.5.4. Phòng khám và điều trị phụ khoa phải riêng biệt với phòng khám sản khoa. Trong trường hợp bố trí chung trong một phòng, phải có chỗ khám phụ khoa riêng.
5.6.5.5. Phòng khám phụ - sản khoa phải có khu vệ sinh riêng cho phụ và sản.
Chú thích : Trong trường hợp phân tán nên bố trí lối vào riêng biệt thường được đặt trong khoa sản- phụ khoa.
5.6.5.6. Khám chữa Răng- Hàm- Mặt (RHM):
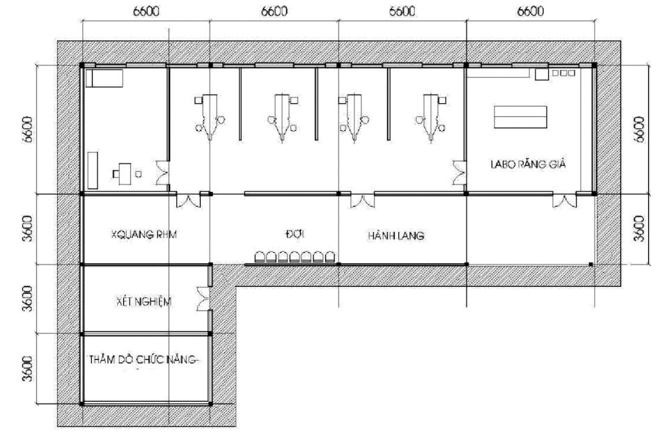
Khám chữa răng có ghế chuyên dùng, được bố trí trong không gian lớn. Mỗi ghế có diện tích đủ để các bác sỹ thao tác và các bộ phận phụ trợ làm răng giả, cấy răng. Sơ đồ công năng khám- chữa RHM minh hoạ theo hình B7- phụ lục B.
5.6.5.7. Khám chữa Tai- Mũi- Họng (TMH):
Cần lưu ý đến hướng bệnh nhân vào và hướng đặt máy. Khám thử tai cần phòng cách âm theo yêu cầu chuyên môn. Khám họng chú ý đến hệ thống cấp và thoát nước khi khám (khạc, nhổ…). Sơ đồ khám chữa TMH xem phụ lục B.
5.6.5.8. Khám chữa mắt:
Phòng khám mắt nên đặt ở tầng dưới của nhà khám bệnh.
Khám mắt ở vị trí thuận lợi nhất trong khoa khám- chữa ngoại trú. Cần có đủ diện tích cho hoạt động của một lượt khám đầy đủ là:
Tiếp đón (đo thị lực, thử kính) ➜ Thủ thuật (lấy gắp dị vật, trích chắp lẹo…) ➜ Buồng tối (đo loạn thị, đo thị trường). Sơ đồ công năng khu vực khám- chữa mắt xem hình B12- phụ lục B.
5.7. Khối điều trị nội trú (xem sơ đồ dây chuyền hình C1, C2- phụ lục C)
Các khoa điều trị nội trú là các khoa lâm sàng, chia theo các chuyên khoa độc lập để quản lý và điều trị.
- Khám chữa bệnh theo đặc thù của từng chuyên khoa.
- Tham gia đào tạo, nghiên cứu khoa học, chỉ đạo tuyến dưới.
- Với khoa truyền nhiễm: phải đảm bảo các quy định về cách ly, chống lây nhiễm chéo, có buồng bệnh khép kín và có lối đi riêng cho người bệnh vào khoa không đi qua các khoa khác, có đủ điều kiện và phương tiện khử khuẩn đối với người bệnh và người tiếp xúc.
- Khoa phụ sản: nhiệm vụ đỡ đẻ, chăm sóc sức khoẻ bà mẹ, trẻ sơ sinh và khám bệnh, chữa bệnh phụ khoa. Khoa được bố trí liên hoàn, hợp lý để đảm bảo công tác chuyên môn, kỹ thuật.
- Khoa y học cổ truyền: Nhiệm vụ thực hiện kết hợp y học cổ truyền với y học hiện đại trong khám bệnh, chữa bệnh ngoại trú, nội trú và dịch vụ đông dược.
Các chuyên khoa lưu bệnh nhân được tổ chức theo từng quy mô khám chữa bệnh tại các cơ sở y tế, tuân thủ phân tuyến và quy định chuyên môn của từng tuyến.
5.7.1. Khối điều trị nội trú gồm có các buồng bệnh, trực hành chính, trưởng khoa, phó khoa, kho, vệ sinh- thay quần áo, phòng thủ thuật, phòng khám tại khoa, phòng làm việc bác sỹ, phòng y tá và hộ lý.
5.7.2. Khối điều trị nội trú của bệnh viện đa khoa phải thiết kế theo đơn nguyên điều trị có quy mô từ 25 đến 30 giường theo yêu cầu của từng khoa riêng biệt. Cơ cấu tỷ lệ giường lưu của các chuyên khoa xem bảng 7.
Được phép thiết kế đơn nguyên riêng biệt cho các trường hợp sau đây :
- Khoa nhi trên 15 giường;
- Khoa sản trên 10 giường;
- Các chuyên khoa khác như tai mũi họng, răng hàm mặt, thần kinh, da liễu trên 20 giường.
Phải thiết kế đơn nguyên riêng biệt cho khoa truyền nhiễm trên 10 giường nhưng không được quá 12 giường cho một đơn nguyên.
Chú thích : Đối với bệnh viện có quy mô nhỏ, cho phép thiết kế kết hợp hai hoặc ba khoa trong một đơn nguyên điều trị.
5.7.3. Đơn nguyên điều trị nội trú bao gồm các bộ phận sau đây :
- Buồng bệnh nhân và sinh hoạt của bệnh nhân;
- Phòng làm việc, sinh hoạt của nhân viên;
- Các phòng nghiệp vụ của đơn nguyên.
Chú thích : Lưu bệnh nhân chia theo các chuyên khoa độc lập để quản lý và điều trị. Trong một khoa được tổ chức theo các đơn nguyên bệnh phòng. Mỗi đơn nguyên có từ 25- 30 giường lưu. Sơ đồ dây chuyền khoa điều trị nội trú được minh hoạ trên hình C1- phụ lục C.
Bảng 7. Cơ cấu tỷ lệ giường lưu của các chuyên khoa
| Tên khoa | Số giường | Tỷ lệ (%) | |||
| Bệnh viện quận,huyện 50-200 giường | Quy mô 1 250-350 giường | Quy mô 2 400-500 giường | Quy mô 3 Trên 550 giường | ||
| Hạng III | Hạng III | Hạng II | Hạng I | ||
| 1. Nội | 17 - 68 | 57 - 80 | 92 - 115 | trên 120 | 23 |
| + Nội 1 | Nội + YHCT | 30 - 38 | 30 - 38 | trên 40 |
|
| + Nội 2 | 30 - 38 | 30 - 38 | trên 40 |
| |
| + Nội 3 |
| 30 - 38 | trên 40 |
| |
| + Nội 4 |
|
| … |
| |
| 2. Ngoại | 11 - 44 | 45 - 63 | 72 - 90 | trên 100 | 18 |
| + Ngoại 1 |
| 20 - 30 | 30 - 36 | trên 40 |
|
| + Ngoại 2 |
| 20 - 30 | 30 - 36 | trên 40 |
|
| + Ngoại 3 |
|
|
| trên 20 |
|
| 3. Phụ | 7 - 28 | 18 - 24 | 28 - 35 | trên 40 | 7 |
| 4. Sản | 18 - 24 | 28 - 35 | trên 40 | 7 | |
| 5. Nhi | 6 - 24 | 22 - 31 | 36 - 45 | trên 50 | 9 |
| 6. Răng hàm mặt | 3 - 12 | 8 - 10 | 12 - 15 | trên 20 | 3 |
| 7. Tai mũi họng | 8 - 10 | 12 - 15 | trên 20 | 3 | |
| 8. Mắt |
| 8 - 10 | 12 - 15 | trên 20 | 3 |
| 9. Truyền nhiễm | 3 -12 | 15 - 21 | 24 - 30 | trên 35 | 6 |
| 10. Cấp cứu hồi sức | 3 -12 | 15 - 21 | 24 - 30 | trên 35 | 6 |
| 10. Y học cổ truyền |
| 18 - 24 | 28 - 35 | trên 40 | 7 |
| 11. Chuyên khoa khác |
| 20 - 28 | 30 - 40 | trên 40 | 8 |
| Tổng cộng | 50 - 200 | 250 - 350 | 400 - 500 | trên 550 | 100 |
5.7.4. Diện tích phòng bệnh nhân được quy định trong bảng 8.
Bảng 8. Diện tích phòng bệnh nhân
| Loại phòng | Diện tích (m2/giường) |
| 1 giường 2 giường 3 giường 4 giường 5 giường | 9 - 12 15 - 18 18 - 20 24 - 28 32 - 36 |
Chú thích : Diện tích trong bảng trên chưa kể đến diện tích của khu vệ sinh (tắm, xí, tiểu, phòng đệm, chỗ giặt rửa).
5.7.5. Diện tích một giường và số giường trong một phòng của khoa trẻ sơ sinh được qui định như sau :
- Cho trẻ sơ sinh và trẻ nhỏ, từ 3m2 ¸ 4m2/giường nhưng không lớn hơn 8 giường trong một phòng.
- Cho trẻ lớn, từ 5m2 ¸ 6m2/giường nhưng không lớn hơn 6 giường trong một phòng.
Chú ý : Trong trường hợp bệnh viện phải tổ chức chỗ ăn, nghỉ cho bà mẹ, cần được Bộ Y tế hoặc cơ quan có thẩm quyền phê duyệt.
5.7.6. Trong đơn nguyên khoa truyền nhiễm phải chia các phòng theo nhóm bệnh. Mỗi phòng không quá 3 giường, mỗi giường có diện tích từ 7m2 ¸ 8m2 (kể cả diện tích đệm).
5.7.7. Diện tích các phòng phục vụ sinh hoạt của bệnh nhân được qui định trong bảng 9.
Bảng 9. Diện tích các phòng phục vụ sinh hoạt của bệnh nhân
| Loại phòng | Diện tích (m2) | Ghi chú | |
| Phòng | Chỗ | ||
| Phòng ăn | - | 0,8 - 1,0 | Không quá 80% số giường |
| Phòng soạn ăn | 6 - 8 | - | Không quá 50%số giường |
| Chỗ tiếp khách | - | 1,0 - 1,2 |
|
| Kho sạch | 4 - 6 | - |
|
| Khu vệ sinh | - | - | Xem điều 5.6.4 |
| Chỗ thu hồi đồ bẩn | 4 -6 | - | 6 - 9m2 cho lây |
Chú thích : Chỗ tiếp khách của bệnh nhân có thể kết hợp với sảnh tầng hoặc hành lang các phòng bệnh, nhưng diện tích mở rộng của sảnh cũng như hành lang không được vượt quá diện tích xây dựng qui định cho chỗ tiếp khách nêu trong bảng.
Khu vệ sinh ở các đơn nguyên điều trị nội trú phải bảo đảm các yêu cầu sau:
- Từ 1 đến 2 phòng có một khu vệ sinh gồm : 1 rửa, 1 xí tiểu, giặt.
- Các trường hợp khác : 1 rửa, 1 xí tiểu, 1 tắm giặt, cho từ 12 đến 15 người.
Khu vệ sinh của bệnh nhân có thể bố trí liền với từng phòng bệnh hoặc tập trung cho một nhóm phòng, một đơn nguyên tuỳ theo điều kiện và yêu cầu sử dụng cụ thể của nơi xây dựng.
5.7.8. Đối với đơn nguyên nhi có từ 25 giường đến 30 giường phải thiết kế các phòng phục vụ sinh hoạt theo bảng 10.
Bảng 10. Diện tích các phòng phục vụ sinh hoạt của khoa nhi
| Loại phòng | Diện tích yêu cầu (m2) | |
| Cho 1 trẻ sơ sinh | Cho trẻ nhỏ | |
| 1. Pha sữa | 4 - 6 | - |
| 2. Cho bú | 9 - 12 | - |
| 3. Chuẩn bị cơm và ăn | - | 15 - 18 |
| 4. Chỗ chơi, tắm nắng | 12 - 15 | 15 - 18 |
| 5. Tắm, rửa | 9 - 12 | 9 - 12 |
| 6. Xí tiểu | 9 - 12 | 9 - 12 |
| 7. Giặt | 9 - 12 | 9 - 12 |
| 8. Kho sạch | 6 - 9 | 6 – 9 |
| 9. Kho thu hồi đồ bẩn | 6 | 6 |
Chú thích : Nên bố trí chỗ phơi tã lót cho đơn nguyên nhi với diện tích không nhỏ hơn 30m2.
5.7.9. Phòng phục vụ sinh hoạt của bệnh nhân khoa truyền nhiễm được quy định trong bảng 11.
Bảng 11. Diện tích các phòng phục vụ sinh hoạt của khoa truyền nhiễm
| Loại phòng | Diện tích (m2) | Ghi chú |
| 1. Chỗ soạn ăn, khử trùng dụng cụ ăn | 9- 12 | khử trùng sơ bộ |
| 2. Kho sạch | 4- 6 | đồ vải, dụng cụ |
| 3. Thu hồi đồ bẩn và khử trùng sơ bộ | 6- 9 | vệ sinh sạch |
| 4. Khu vệ sinh | Bố trí theo buồng bệnh với nơi dùng xí, tiểu, tắm, rửa (xem điều 5.6.4-bảng 6) | |
5.7.10. Diện tích các phòng nghiệp vụ của đơn nguyên được qui định trong bảng 12.
Bảng 12. Diện tích các phòng nghiệp vụ đơn nguyên điều trị nội trú
| Loại phòng | Diện tích (m2) | ||||||
| Bệnh viện quận,huyện 50-200 giường | Quy mô 1 250-350 giường | Quy mô 2 400-500 giường | Quy mô 3 Trên 550 giường | ||||
| Hạng III | Hạng III | Hạng II | Hạng I | ||||
| Phòng điều trị | 24 - 33 | 27 - 36 | 36 - 45 | 36 - 45 | |||
| Thủ thuật vô khuẩn | 9 - 12 | 12 -15 | 18 - 24 | 18 - 24 | |||
| Thủ thuật hữu khuẩn | 9 - 12 | 9 - 12 | 9 -12 | 9 -12 | |||
| Rửa hấp, chuẩn bị dụng cụ | 6 - 9 | 6 - 9 | 6 - 9 | 6 - 9 | |||
| Phòng bác sĩ | 12 | 12 - 18 | 18 - 24 | 18 - 24 | |||
| Chỗ trực và làm việc của y tá | 12 | 12 -18 | 18 - 24 | 18 - 24 | |||
| Phòng y tá trưởng (điều dưỡng trưởng) | 15 | 18 - 21 | 21 - 24 | 21 – 24 | |||
| Phòng trực bác sỹ nam | 12 | 15 | 15 | 15 | |||
| Phòng trực bác sỹ nữ | 12 | 15 | 15 | 15 | |||
| Phòng thay quần áo nam | 9 | 12 | 16 | 16 | |||
| Phòng thay quần áo nữ | 9 | 12 | 16 | 16 | |||
| Phòng vệ sinh nam, nữ | Xem điều 5.6.4 - bảng 6 | ||||||
| Phòng học (sinh viên, thực tập sinh…) | 16 | 24 | 28 | 36 | |||
Chú thích :
1) Phòng điều trị loại lớn được thiết kế khi :
- Dùng chung cho hai đơn nguyên cùng khoa.
- Kết hợp làm chỗ chung, tiểu phẫu hoặc thăm dò chức năng.
2) Phòng bác sĩ có thể bố trí chung cho từ 2 đến 3 đơn nguyên cùng khoa.
3) Nơi trực phải ở vị trí bao quát được các phòng bệnh.
5.7.11. Nơi rửa, hấp, chuẩn bị dụng cụ nên đặt ở giữa 2 phòng thủ thuật vô khuẩn và hữu khuẩn.
5.7.12. Trong đơn nguyên điều trị bệnh truyền nhiễm phải bố trí các phòng điều trị sau :
- Phòng chuẩn bị điều trị : từ 9 m2 ¸ 12 m2;
- Phòng cấp cứu bệnh truyền nhiễm : từ 15 m2 ¸ 18 m2.
Chú thích : Đối với đơn nguyên dưới 10 giường có thể kết hợp phòng chuẩn bị điều trị với phòng cấp cứu của khoa.
5.7.13. Trong đơn nguyên nội, phải bố trí thêm các phòng nghiệp vụ sau :
- Phòng cấp cứu với diện tích :
+ Từ 15m2 ¸ 18m2 cho từ 1 giường ¸ 2 giường;
+ Từ 24m2 ¸ 32m2 cho từ 3 giường ¸ 4 giường.
- Phòng xét nghiệm thông thường bao gồm :
+ Nơi chuẩn bị;
+ Chỗ xét nghiệm : được tính với diện tích từ 15m2 ¸ 18m2/phòng hoặc từ 5m2 ¸ 6m2 cho một nhân viên.
5.7.14. Trong khoa sản- phụ phải có phòng riêng cho nhóm sản phụ có bệnh lý, nhóm sản phụ cách ly.
5.7.15. Thành phần và diện tích các phòng trong bộ phận đỡ đẻ của khoa phụ sản được quy định trong bảng 13. (Sơ đồ dây chuyền khoa sản- phụ khoa xem hình C4- phụ lục C).
5.7.16. Khoa sản của bệnh viện từ 200 giường trở lên phải có khối dưỡng nhi. Bệnh viện từ 100 giường trở lên phải có phòng nuôi trẻ sơ sinh thiếu tháng và sơ sinh cách ly. Thành phần và diện tích các phòng trong khoa sơ sinh quy định trong bảng 14.
Bảng 13. Thành phần và diện tích các phòng trong bộ phận đỡ đẻ của khoa phụ sản
| Loại phòng | Diện tích (m2) | Ghi chú |
| A- Khu vực sạch | ||
| 1. Phòng khám thai | 12 - 15 | không quá 3 bàn/ phòng |
| 2. Mỗi bàn thêm | 8 - 9 | phải chia thành căn riêng cho một bàn đẻ thường |
| 3. Mỗi phòng chờ đẻ (2 giường) | 9 - 12 |
|
| 4. Mỗi giường chờ thêm | 4 - 6 |
|
| 5. Vệ sinh trước khi đẻ | 6 - 9 |
|
| 6. Phòng nghỉ sau khi nạo thai | 9 - 12 | 2 - 3 giường/bàn nạo thai |
| B- Khu vực đẻ | ||
| a- Khu vô khuẩn | ||
| 1. Phòng rửa tay, thay áo | 6 - 9 |
|
| 2. Đỡ đẻ vô khuẩn (1 - 2 bàn) | 15 - 24 | Không quá hai bàn một phòng cho sản phụ cách ly |
| 3. Đỡ đẻ bệnh lý (1 bàn) | 12 - 15 |
|
| 4. Phòng mổ, phụ trợ | xem bảng 31 | Bệnh viện 50 – 100 giường bố trí chung với phòng mổ của khoa phẫu thuật |
| 5. Phòng nạo thai, đặt vòng | 12 - 15 |
|
| b- Khu hữu khuẩn (phải tách riêng) | ||
| 1. Phòng vệ sinh trước khi đẻ | 6 - 9 | Với quy mô 400- 500 giường có thiết bị cách âm giảm nóng |
| 2. Đỡ đẻ hữu khuẩn (1 bàn) | 12 - 15 | Với quy mô 400- 500 giường có thiết bị cách âm giảm nóng |
| C- Khu vực hậu cần | ||
| 1. Kho sạch | 6 - 9 |
|
| 2. Rửa hấp, chuẩn bị dụng cụ | 9 - 12 |
|
| 3. Chỗ thu hồi đồ bẩn | 4 - 6 |
|
Bảng 14. Thành phần và diện tích các phòng trong khoa trẻ sơ sinh
| Loại phòng | Diện tích, (m2) | Ghi chú |
| A- Phòng trẻ sơ sinh | ||
| - Phòng sơ sinh thiếu tháng | 3 - 4 | cho 1 giường |
| - Phòng sơ sinh cách ly | 3 - 4 | cho 1 giường |
| B- Các phòng phụ trợ | ||
| - Phòng tắm rửa | 6 - 9 - 12 | cho một khối từ 25- 30giường |
| - Chỗ giặt tã lót | 6 - 9 | |
| - Chỗ pha sữa | 6 - 9 | |
| - Chỗ trực của hộ sinh | 6 - 9 | |
| - Chỗ cho bú | 12 - 15 | |
| - Phòng nhận trẻ ra viện | 6 - 9 |
|
| - Kho sạch | 6 - 9 |
|
| - Kho thu đồ bẩn | 6 - 9 |
|
Chú thích :
1) Đơn nguyên trẻ sơ sinh xem minh hoạ ở phụ lục C5.
2) Số giường trẻ sơ sinh tính bằng số giường sản phụ. Phòng sơ sinh thiếu tháng và sơ sinh cách ly phải riêng biệt và ngăn thành căn, mỗi căn không quá 2 giường.
3) Phòng điều trị trẻ sơ sinh phải có cửa ngăn rộng hoặc tường ngăn bằng kính để quan sát và theo dõi.
4) Thành phần và diện tích các phòng nghiệp vụ trong đơn nguyên phụ khoa được quy định trong bảng 15.
Bảng 15. Thành phần và diện tích các phòng nghiệp vụ trong đơn nguyên điều trị phụ khoa
| Loại phòng | Diện tích (m2) | Ghi chú |
| - Phòng khám phụ khoa | 12 - 15 | không quá 3 bàn/phòng |
| - Mỗi bàn thêm | 8 - 9 |
|
| - Phòng thủ thuật : |
|
|
| + Chỗ làm thuốc | 18 - 24 |
|
| + Chỗ soi đốt | 18 - 24 |
|
| + Chỗ rửa, hấp, chuẩn bị dụng cụ | 24 |
|
| - Phòng mổ phụ khoa và phụ trợ | Xem bảng 31 |
|
5.7.17. Khoa mắt: Diện tích các phòng điều trị trong khoa mắt được qui định trong bảng 16.
Bảng 16. Diện tích các phòng điều trị trong khoa mắt
| Loại phòng | Diện tích (m2) | |||
| Bệnh viện quận,huyện 50-200 giường | Quy mô 1 250-350 giường | Quy mô 2 400-500 giường | Quy mô 3 Trên 550 giường | |
| Hạng III | Hạng III | Hạng II | Hạng I | |
| 1. Phòng khám mắt : | ||||
| - Phần sáng | Chung với phòng khám mắt - khối khám bệnh. | 18 - 24 | 24 – 30 | 36 - 39 |
| - Phần tối | 9 - 12 | 12 - 15 | 15 - 18 | |
| 2. Phòng điều trị : | ||||
| - Thay băng, nhỏ thuốc, tiểu phẫu, rửa, hấp, chuẩn bị dụng cụ. | 18 – 24 | 24 - 30 | 30 - 36 | 36 - 38 |
Chú thích : Chỗ đo thị lực phải có chiều dài trên 5m.
5.7.18. Khoa tai mũi họng: Diện tích các phòng điều trị trong khoa tai mũi họng được qui định trong bảng 17.
Bảng 17. Diện tích các phòng điều trị trong khoa tai mũi họng
| Loại phòng | Diện tích (m2) | |||
| Bệnh viện quận,huyện 50-200 giường | Quy mô 1 250-350 giường | Quy mô 2 400-500 giường | Quy mô 3 Trên 550 giường | |
| Hạng III | Hạng III | Hạng II | Hạng I | |
| Phòng khám (1ghế) | Chung với phòng điều trị | 9 - 12 | 12 - 15 | / 15 |
| Phòng soi | 2 | 15 - 18 | 18 - 24 | / 24
|
| Phòng trung, tiểu phẫu | 12 - 18 | 18 - 24 | 24 - 36 | / 36 |
| Phòng điều trị: thay băng, bơm rửa, xông phun thuốc, rửa hấp, chuẩn bị dụng cụ | 18 - 24 | 24 - 30 | 30 - 35 | / 38 |
Chú thích : Trong trường hợp cần có phòng đo thính lực diện tích yêu cầu phải được ghi trong báo cáo kinh tế- kỹ thuật của dự án và được thoả thuận của Bộ Y tế.
5.7.19. Nội dung phòng điều trị trong khoa răng - hàm - mặt (RHM) gồm : ghế khám, chỗ tiêm, thay băng, làm thuốc, chỗ rửa, hấp, chuẩn bị dụng cụ.
5.7.20. Diện tích phòng điều trị của khoa răng- hàm- mặt được tính theo qui mô:
- Bệnh viện từ 50 giường ¸ 250 giường : từ 12m2 ¸ 15m2;
- Bệnh viện trên 250 giường ¸ 500 giường : từ 24m2 ¸ 30 m2.
Thành phần và diện tích của phòng làm việc, sinh hoạt của nhân viên, học sinh thực tập trong đơn nguyên điều trị của bệnh viện được qui định trong bảng 18.
Bảng 18. Diện tích của phòng làm việc, sinh hoạt của nhân viên, học sinh thực tập trong đơn nguyên điều trị
| Loại phòng | Diện tích (m2) | Ghi chú |
| 1. Phòng trưởng khoa : |
|
|
| - Bệnh viện loại lớn | 12 -15 |
|
| - Bệnh viện loại vừa, nhỏ | 9 - 12 |
|
| 2. Phòng bác sĩ điều trị | 9 - 12 | hoặc 6m2/chỗ, nếu có lưu trữ hồ sơ bệnh án thêm 2m2 ¸ 3m2 |
| 3. Phòng y tá hành chính | 9 - 12 | |
| 4. Trạm trực | 9 - 12 |
|
| 5. Phòng nhân viên | 18 - 24 | cho 50 giường hoặc 2 đơn nguyên hoặc 0,8m2 ¸ 1m2/người nhưng không quá 24m2 |
| 6. Phòng sinh hoạt của khoa | 15 - 18 | |
| 7. Phòng sinh hoạt của đơn nguyên, hướng dẫn sinh viên | - |
|
| 8. Phòng thay quần áo (cho cả học sinh thực tập) |
|
|
| - Nam | 4 - 6 | hoặc 0,2m2 ¸ 0,3m2/chỗ mắc áo, 0,35m2 ¸ 0,45m2/chỗ treo áo cá nhân. |
| - Nữ | 4 - 6 | |
| 9. Khu vệ sinh | xem điều 5.6.4 |
|
Chú thích : Khoa truyền nhiễm có dưới 10 giường thì có thể dùng chung với khoa nội nhưng phải có phòng cách ly và cửa vào riêng biệt.
5.7.21. Khoa y học cổ truyền : bố trí gồm khám, chữa ngoại trú và nội trú tại khoa, không gian chia thành các khu vực:
+ Khu vực đón tiếp, khám, kê đơn bốc thuốc: Không gian đón tiếp + đợi, bàn bốc thuốc, tủ thuốc, các phòng bắt mạch .
+ Khu vực chữa trị: các phòng xoa bóp, day ấn huyệt, phòng châm cứu, phòng rửa tiệt trùng, phòng chuẩn bị.
+ Khu vực lưu bệnh nhân: các phòng lưu bệnh nhân, phòng sinh hoạt bệnh nhân.
+ Khu vực hành chính, phụ trợ: phòng khành chính, phòng trưởng khoa, kho thuốc, kho dụng cụ.
Sơ đồ công năng minh hoạ theo hình C8- phụ lục C.
5.7.22. Khoa vật lý trị liệu- phục hồi chức năng : là khoa lâm sàng, thực hiện đầy đủ quy chế bệnh viện. Khoa được bố trí ở nơi thuận tiện cho người tàn tật di chuyển và đi lại.
5.7.22.1. Nhiệm vụ.
- Khám, chữa bệnh và phục hồi chức năng cho bệnh nhân.
- Sản xuất và hướng dẫn sử dụng các dụng cụ trợ giúp, chỉnh hình, thay thế.
- Chỉ đạo về mặt kỹ thuật và hoạt động phục hồi chức năng dựa vào cộng đồng.
- Khoa phải có đầy đủ các dụng cụ cơ bản về vận động trị liệu và một số trang thiết bị về vật lý trị liệu, ngôn ngữ trị liệu để phục vụ cho điều trị và phục hồi chức năng.
5.7.22.2. Tổ chức.
- Khoa vật lý trị liệu- phục hồi chức năng phải được tổ chức ở các bệnh viện có quy mô 2 (từ 400- 500 giường)- bệnh viện hạng II và bệnh viện quy mô 3 (trên 550 giường)- bệnh viện hạng I.
5.7.22.3. Bố trí không gian.
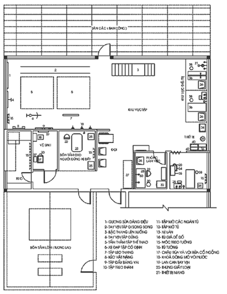
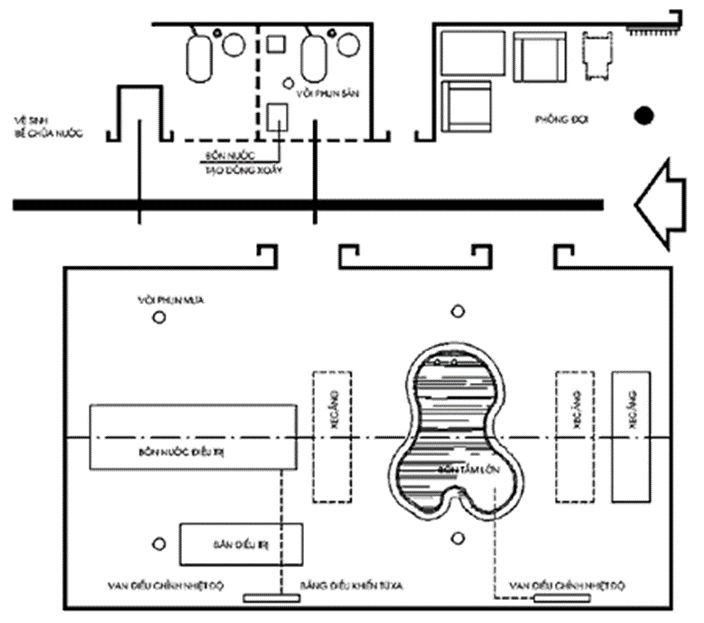
- Khoa vật lý trị liệu- phục hồi chức năng được bố trí thuận tiện cho điều trị nội trú và ngoại trú, với nhiều chuyên ngành riêng biệt (vận động, điện, thuỷ trị liệu…) tổ chức không gian của khoa như một khu liên hợp gồm nhiều chức năng như masage, bể ngâm thuỷ trị liệu, sàn luyện tập thể hình, tập phục hồi chức năng vận động, phòng bấm huyệt, xoa bóp… Sơ đồ minh hoạ xem phụ lục D.
- Khoa vật lý trị liệu- phục hồi chức năng sử dụng kết hợp các biện pháp điều trị y học, tâm lý giáo dục, kỹ thuật để tạo cơ hội cho người bệnh hoà nhập cộng đồng.
5.7.23. Số chỗ điều trị của các phòng phục hồi chức năng được quy định trong bảng 19.
Bảng 19. Số chỗ điều trị tính theo quy mô giường
| Nội dung và thành phần thiết kế | Số chỗ theo qui mô giường | |||
| Bệnh viện quận,huyện 50-200 giường | Quy mô 1 250-350 giường | Quy mô 2 400-500 giường | Quy mô 3 Trên 550 giường | |
| Hạng III | Hạng III | Hạng II | Hạng I | |
| 1- Phòng điều trị bằng quang điện : | ||||
| - Chỗ điều trị bằng tia hồng ngoại | 2 | 2 | 3 | 3 |
| - Chỗ điều trị bằng tử ngoại | 1 | 1 | 2 | 2 |
| - Chỗ điều trị bằng điện | 1 | 1 | 2 | 2 |
| - Chỗ điều trị bằng các máy khác | - | - |
|
|
| 2- Phòng điều trị nhiệt : | ||||
| - Bó paraphin, ngải cứu… | 2 | 2 | 3 | 3 |
| - Xông | 1 | 1 | 2 | 2 |
| 3- Phòng điều trị vận động và thể dục: | ||||
| - Phòng thể dục | 1 | 1 | 2 | 2 |
| - Xoa bóp | 2 | 2 | 3 | 3 |
| 4- Phòng thuỷ trị liệu. | ||||
| - Chỗ tắm, ngâm nước | 3 | 4 | 5 | 5 |
| - Chỗ tắm bùn khoáng | 4 | 8 | 10 | 10 |
5.7.24. Diện tích các chỗ điều trị trong Khoa vật lý trị liệu- phục hồi chức năng được qui định trong bảng 20.
Bảng 20. Diện tích các chỗ điều trị trong Khoa vật lý trị liệu- phục hồi chức năng
| Loại - chỗ điều trị | Diện tích (m2) | Ghi chú |
| Chỗ đợi của bệnh nhân | 1 - 1,2 | Tính cho từ 60%- 80% số chỗ điều trị |
| Chỗ nghỉ sau làm thuốc hoặc tập thể dục, cho 1 giường nghỉ | 2 - 2,5 | Tính cho từ 30%-50% số chỗ điều trị |
| Chỗ điều trị ở tư thế ngồi | 2 - 3 |
|
| Chỗ điều trị nằm (có treo quần áo) | 4 - 5 | Ngăn thành căn để treo quần áo |
5.7.25. Diện tích các phòng trong Khoa vật lý trị liệu- phục hồi chức năng được quy định trong bảng 21.
Bảng 21. Diện tích các phòng trong Khoa vật lý trị liệu- phục hồi chức năng
| Loại phòng | Diện tích theo qui mô (m2) | Ghi chú | |||
| Bệnh viện quận,huyện 50-200 giường | Quy mô 1 250-350 giường | Quy mô 2 400-500 giường | Quy mô 3 Trên 550 giường | ||
| Hạng III | Hạng III | Hạng II | Hạng I | ||
| A. Hành chính- tiếp nhận |
| ||||
| - Bác sĩ trưởng khoa | 6 - 9 | 6 - 9 |
|
|
|
| - Hành chính | 6 - 9 | 6 - 9 |
|
|
|
| - Nhân viên và chỗ bảo quản đồ vải | xem bảng 18 |
| |||
| - Chỗ đợi | xem điều 5.6.3 |
| |||
| - Khu vệ sinh | xem điều 5.6.4 |
| |||
| B. Phòng điều trị quang điện : |
| ||||
| - Chỗ làm việc của y tá | 6 - 9 |
|
| 6 - 9 |
|
| - Phòng điều trị | 12- 15 |
|
| 12- 15 |
|
| C. Phòng điều trị bằng nhiệt : |
| ||||
| - Chỗ làm việc của y tá | 6 - 9 | 6 - 9 | 6 - 9 | 6 - 9 |
|
| - Phòng bó paraphin | 12 - 15 | 12 - 15 | 15 - 18 | 15 - 18 |
|
| - Phòng xông | 6 - 9 | 6 - 9 | 9 - 12 | 9 - 12 |
|
| D. Phòng điều trị bằng vận động và thể dục: | Có thể kết hợp với chỗ tập ngoài trời hoặc hành lang | ||||
| - Phòng luyện tập | 18 | 18 - 24 | 24 – 36 | 24 – 36 | |
| - Phòng xoa bóp | - | 9 - 12 | 12 – 16 | 12 – 16 | |
| - Phòng thay quần áo và kho đồ dùng | 6 - 9 | 6 - 9 | 9 – 12 | 9 – 12 | |
| - Sân tập thể dục | 50 | 50 | 60 | 60 | |
| E. Bộ phận thuỷ trị liệu. |
| ||||
| - Tắm, ngâm nước | 18 | 24 | 24 | 24 |
|
| - Tắm bùn | 18 | 24 | 24 | 24 |
|
Chú thích : Đối với phòng luyện tập, ngoài diện tích đã nêu trong bảng khi có điều kiện có thể làm thêm hành lang hoặc sân luyện tập có mái. Diện tích này tuỳ thuộc vào vị trí cũng như khả năng xây dựng và trang thiết bị của bệnh viện.
5.7.26. Khoa y học hạt nhân và điều trị ung bướu.
5.7.26.1. Chức năng.
- Khoa y học hạt nhân và điều trị ung bướu thực hiện các kỹ thuật chẩn đoán, điều trị bằng phóng xạ và các nguồn bức xạ khác.
- Tiến hành chẩn đoán bệnh, lập kế hoạch điều trị, chăm sóc, theo dõi các biến chứng do tia xạ.
- Cơ sở hạ tầng của khoa phải đảm bảo tuyệt đối an toàn cho các nhân viên y tế, người bệnh và môi trường theo đúng pháp lệnh an toàn kiểm soát bức xạ.
5.7.26.2. Tổ chức.
- Khoa y học hạt nhân và điều trị ung bướu được tổ chức ở các bệnh viện quy mô 3 (bệnh viện trên 550 giường)- bệnh viện hạng I. Với bệnh viện quy mô 2 (từ 400- 500 giường)- bệnh viện hạng II, chỉ tổ chức khoa điều trị ung bướu.
5.7.26.3. Bố trí không gian.
Khoa y học hạt nhân và điều trị ung bướu được tổ chức ở tầng 1 (tầng trệt). Tổ chức mặt bằng thuận tiện cho khám- chữa bệnh, đảm bảo dây chuyền công năng của khoa phân chia thành 02 khu vực chính sau:
- Khu vực kỹ thuật gồm các không gian sau: phòng khám bệnh, phòng chẩn đoán vivo, phòng đặt thiết bị phát tia, phòng đặt thiết bị ghi đo phóng xạ khác, phòng hoá dược phòng vật lý và điện tử hạt nhân, phòng tiêm- uống dược chất phóng xạ, phòng vật lý, phòng chuẩn bị khuôn chì giá đỡ, phòng mô phỏng, phòng xạ trị, phòng điều khiển, phòng điều trị tia xạ áp sát.
- Khu phụ trợ bao gồm: nơi tiếp đón bệnh nhân, không gian chờ bệnh nhân, phòng lập kế hoạch điều trị, phòng chuẩn bị, phòng tạm nghỉ bệnh nhân, phòng kho dược chất phóng xạ, hòm chì bảo vệ…
Sơ đồ công năng khoa y học hạt nhân và điều trị ung bướu xem hình E2 -phụ lục E.
5.7.26.4. Đối với các bệnh viện có số bệnh nhân mắc bệnh tối thiểu là 1% thì mới thành lập khoa ung bướu. Cơ cấu các phòng ban xem bảng 22.
5.7.26.5. Trong khoa ung bướu- y học hạt nhân cần có các phòng, ban sau:
a) Phòng khám chuyên khoa ung bướu: nhằm khám, chẩn đoán phát hiện sơm và theo dõi sau điều trị.
b) Đơn vị điều trị ngoại trú.
c) Đơn vị điều trị nội trú: tổ chức khoa hoặc trung tâm phòng chống ung thư có quy mô từ 30 giường đến 90 giường.
Bảng 22 . Cơ cấu các phòng ban trong khoa ung bướu - y học hạt nhân trong bệnh viện chuyên khoa
| Hoạt động |
| Khoa ung bướu |
| 1- Tổ chức hoạt động | Đơn vị độc lập | Thuộc bệnh viện đa khoa |
| 2- Số giường | 100 - 1.000 | 30 – 90 giường |
| 3- Phẫu thuật | 2 - 10 phòng mổ | 1 phòng mổ |
| 4- Xạ trị | 1 – 6 máy |
|
| - Máy xạ ngoài | 1 – 2 máy | 1 máy |
| - Kỹ thuật mô phỏng | 1 – 6 máy | 0 – 1 máy |
| - Máy xạ trong |
| 0 – 1 máy |
| 5- Hoá trị liệu | 1 – 3 khoa | 01 đơn vị |
| 6- Thiết bị chẩn đoán 6PB | Chuyên sâu | Tối thiểu phải có ở mức thông thường |
| 7- Chỉ đạo chuyên khoa, khám chữa bệnh, tuyên truyền- phòng bệnh, phát hiện sớm. | Hoạt động mạnh toàn diện tích mặt | Chỉ đạo tuyến huyện, xã về phòng và phát hiện sớm ung thư |
5.7.26.6. Phòng xạ trị trong khoa ung bướu- y học hạt nhân để điều trị bệnh nhân mắc bệnh ung thư bằng bức xạ, phóng xạ từ các thiết bị chuyên dùng để tạo ra các tia phóng xạ và đồng vị phóng xạ.
5.7.26.7. Việc thiết kế các phòng xạ trị cần dựa vào:
- Kiểu máy
- Cường độ của nguồn bức xạ
- Yêu cầu về vị trí
- Yêu cầu về kết cấu bao che đối với sàn, tường, trần
- Kết cấu chịu lực
Ghi chú: Ngoài ra khi thiết phòng xạ trị cần tuân thủ theo yêu cầu của thiết bị trong catalo.
5.7.26.8. Vị trí phòng xạ trị:
- Nằm ở tầng 1 hay tầng hầm
- Nằm ở vị trí liên hệ trực tiếp với các phòng thay quần áo, vệ sinh, kiểm tra, phòng tư vấn khám và phòng làm việc
5.7.26.9. Phòng xạ trị được thiết kế phù hợp với kích thước máy móc, thiết bị của nhà sản xuất, thông thường sử dụng kích thước 4,5m x 5,4m.
- Chỉ có 1 lối vào duy nhất với cánh cửa dày toàn khối có các lớp cách phóng xạ chắc chắn.
- Phòng đủ rộng để máy vận hành xoay hoặc di chuyển.
- Phòng bệnh nhân chiếu xạ cần bố trí cạnh phòng máy nhưng phải được cấu tạo đặc biệt ở các lớp tường chống rò rỉ phóng xạ.
- Phải được một cơ quan thẩm định an toàn phóng xạ sau hoàn thiện xác nhận.
- Việc che chắn phải được thực hiện ở mọi phía, ngay ở những lỗ cửa thông gió, ống cấp nhiệt, cửa đi, cửa sổ quan sát và có khoá an toàn không được phép có một lỗ rò nào dù là nhỏ nhất.
5.7.26.10. Lối ra vào (cửa và hành làng) trong khoa cần tính đến chiều cao và chiều rộng để vận chuyển thiết bị được dễ dàng, đảm bảo yêu cầu quan sát được mọi góc trong phòng, không bị ánh sáng đèn làm loá.
5.8. Khối kỹ thuật nghiệp vụ cận lâm sàng.
Khối kỹ thuật nghiệp vụ cận lâm sàng gồm các khoa sau :
a) Khoa cấp cứu, khoa điều trị tích cực và chống độc
b) Khoa phẫu thuật- gây mê hồi sức
c) Khoa chẩn đoán hình ảnh
d) Các khoa xét nghiệm (xét nghiệm hoá sinh, xét nghiệm vi sinh, xét nghiệm huyết học- truyền máu, xét nghiệm ký sinh trùng)
e) Khoa giải phẫu bệnh lý
f) Khoa thăm dò chức năng
g) Khoa nội soi
h) Khoa dược
5.8.1. Khoa cấp cứu, khoa điều trị tích cực và chống độc
5.8.1.1. Chức năng.
- Thực hiện công tác cấp cứu, cứu thương.
- Khoa cấp cứu (cấp cứu, cứu thương): mở cửa 24/24 giờ có nhiệm vụ tiếp đón phân loại bệnh nhân nặng/nhẹ, làm các xét nghiệm theo định hướng chẩn đoán. Cấp cứu- ổn định các chức năng sống trước khi vận chuyển bệnh nhân đến các chuyên khoa hoặc bệnh viện tuyến trên trong vòng 24- 48 giờ đầu.
- Khoa điều trị tích cực và chống độc có nhiệm vụ điều trị, chăm sóc tích cực, hỗ trợ các chức năng sống bị suy yếu của các bệnh nhân thuộc nhiều chuyên khoa khác nhau bằng các thiết bị chuyên dụng hiện đại.
5.8.1.2. Tổ chức.
- Bệnh viện đa khoa quy mô 1: Khoa cấp cứu, khoa điều trị tích cực và chống độc được tổ chức thành khoa cấp cứu- hồi sức gồm bộ phận cấp cứu và bộ phận hồi sức (điều trị tích cực và chống độc).
- Bệnh viện đa khoa quy mô 2, quy mô 3: có vai trò đầu ngành, được tổ chức thành hai khoa riêng biệt: khoa cấp cứu, khoa điều trị tích cực và chống độc.
5.8.1.3. Khoa cấp cứu gồm các bộ phận:
- Bộ phận kỹ thuật: đón nhận phân loại, không gian cấp cứu (băng bó sơ cứu), khu vực chẩn đoán (xét nghiệm nhanh, Xquang di động), không gian làm thủ thuật can thiệp.
- Bộ phận phụ trợ: Dụng cụ thuốc, rửa tiệt trùng, kho (sạch, bẩn), hành chính, giao ban, đào tạo, trực, nhân viên, vệ sinh/ tắm/ thay đồ, trưởng khoa.
Khoa cấp cứu xem hình G1 đến G5- phụ lục G.
5.8.1.4. Bộ phận cấp cứu ban đầu được bố trí ở tầng 1 (trệt), gần cổng chính của bệnh viện, kế cận các khoa cận lâm sàng, có ô tô trực cấp cứu. Khu cấp cứu của bệnh viện đa khoa bao gồm bộ phận tiếp đón và bộ phận tạm lưu cấp cứu (từ 10- 20 giường lưu). Có chỗ trực cho một kíp cấp cứu. Bên cạnh bộ phận trực tiếp đón là phòng phân loại bệnh nhân, phòng chờ cho người nhà bệnh nhân.
5.8.1.5. Khoa điều trị tích cực và chống độc gồm các bộ phận :
- Bộ phận kỹ thuật: sảnh đón, không gian điều trị tích cực và trực theo dõi, không gian làm thủ thuật can thiệp, phòng rửa khử độc và rửa dạ dầy, phòng cho bệnh nhân hấp hối, dụng cụ thuốc, rửa tiệt trùng, kho sạch, kho bẩn.
- Bộ phận phụ trợ: Khu vực đợi của người nhà bệnh nhân, hành chính, giao ban đào tạo, trực, nhân viên, vệ sinh, tắm, thay đồ, trưởng khoa.
Khoa điều trị tích cực và chống độc xem hình G6 đến G8- phụ lục G.
5.8.1.6. Khoa điều trị tích cực và chống độc phải có sảnh đủ rộng phòng khi cấp cứu thảm họa, đặc biệt phải có dàn tắm tập thể khi có thảm họa hoá chất, đồng thời phải có phòng để nghiên cứu khoa học, đào tạo chuyên môn cấp cứu, điều trị tích cực, chống độc cho tuyến dưới.
5.8.1.7. Tỷ lệ số giường của khoa điều trị tích cực và chống độc chiếm tỷ lệ từ 5% ¸ 8% tổng số giường của một bệnh viện đa khoa. Trong đó số giường của khoa cấp cứu 40%, số giường khoa điều trị tích cực và chống độc là 60%.
5.8.1.8. Tại tuyến quận- huyện, khoa điều trị tích cực và chống độc được tổ chức thành khoa Hồi sức cấp cứu, gồm bộ phận cấp cứu và bộ phận hồi sức, chống độc (điều trị tích cực)
5.8.1.9. Khoa điều trị tích cực và chống độc được bố trí ở tầng 1 (tầng trệt) có cổng và đường ra vào riêng, gần với khoa khám bệnh, liên hệ thuận tiện với khối kỹ thuật nghiệp vụ, xét nghiệm và chẩn đoán hình ảnh.
5.8.1.10. Khoa điều trị tích cực và chống độc được bố trí riêng biệt với khoa cấp cứu, kề cận với khoa cấp cứu và khối kỹ thuật nghiệp vụ. Nằm ở khu vực trung tâm bệnh viện, nơi có các điều kiện môi trường và hạ tầng kỹ thuật tốt nhất; Thuận tiện cho việc lắp đặt, vận chuyển các thiết bị và gần khu cấp khí y tế, điện, nước sạch.
5.8.1.11. Dây chuyền hoạt động của khoa điều trị tích cực và chống độc phải đảm bảo yêu cầu sạch bẩn một chiều, thuận tiện, đáp ứng kịp thời trong công tác cấp cứu, điều trị tích cực, được phân chia theo hai khu vực :
- Khu vực sạch : (Khu vực có yêu cầu về môi trường sạch)
+ Không gian điều trị tích cực, y tá trực theo dõi;
+ Phòng thủ thuật can thiệp.
- Khu vực phụ trợ :
+ Sảnh, tiếp nhận phân loại bệnh nhân;
+ Phòng đợi của người nhà bệnh nhân;
+ Không gian tạm lưu cấp cứu;
+ Phòng dụng cụ thuốc;
+ Phòng rửa, tiệt trùng, thụt tháo;
+ Kho sạch;
+ Kho bẩn;
+ Kỹ thuật phụ trợ (X-quang, siêu âm, xét nghiệm nhanh...);
+ Hành chính văn phòng (phòng bác sỹ, hộ lý, giao ban hội chẩn, đào tạo...);
+ Khu vệ sinh (rửa, tắm/ thay đồ).
5.8.1.12. Khi tổ chức các không gian trong khoa điều trị tích cực và chống độc các phòng theo dõi phải được ngăn bằng vách kính để đảm bảo các yêu cầu :
- Quan sát được 100% số giường bệnh;
- Kiểm soát được các bệnh nhân, đặc biệt là trẻ em;
- Kiểm soát người nhà và khách thăm, tiếp xúc qua vách kính, micro với bệnh nhân;
- Đảm bảo độ ồn cho phép :
+ Từ 40dB đến 45dB vào ban ngày;
+ Từ 30dB đến 40dB vào ban đêm.
- Có hệ thống báo gọi y tá. Các bệnh nhân nặng phải có nhân viên y tế quan sát và theo dõi 24 giờ/ngày.
5.8.1.13. Chiều cao phòng trong khoa cấp cứu và khoa điều trị tích cực và chống độc được lấy như sau :
- Chiều cao thông thuỷ phòng và hành lang :
(tuỳ theo yêu cầu lắp đặt của thiết bị). Không nhỏ hơn 3m
- Chiều cao thông thuỷ của tầng kỹ thuật :
(tính từ trần tới giới hạn dưới kết cấu dầm) Không nhỏ hơn 0,2m.
- Chiều cao của các cửa ra vào : Không nhỏ hơn 2,1m.
- Chiều rộng của các cửa ra vào :
+ Cửa ra vào có chuyển xe, giường đẩy Không nhỏ hơn 1,6m.
+ Cửa ra vào thông thường Không nhỏ hơn 0,8m.
- Chiều rộng của cửa cầu thang bộ, đường dốc (nếu có)
+ Chiều rộng bản thang Không nhỏ hơn 1,8m.
+ Chiều rộng chiếu nghỉ Không nhỏ hơn 2,4m.
- Chiều rộng của hành lang :
+ Hành lang bên Không nhỏ hơn 2,1m.
+ Hành lang giữa Không nhỏ hơn 3,0m.
- Kích thước buồng thang máy (cabin) :
+ Cho bệnh nhân Không nhỏ hơn 1,1m x 2,3m.
+ Cho nhân viên Không nhỏ hơn 1,1m x 1,4m.
5.8.1.14. Diện tích sử dụng tối thiểu của các phòng trong khoa điều trị tích cực và chống độc được quy định trong bảng 23.
Bảng 23. Diện tích tối thiểu các phòng trong khoa cấp cứu
| TT | Tên phòng | Diện tích Quy mô (m2) | Ghi chú | |||
| Bệnh viện quận,huyện 50-200 giường | Quy mô 1 250-350 giường | Quy mô 2 400-500 giường | Quy mô 3 Trên 550 giường | |||
| Hạng III | Hạng III | Hạng II | Hạng I | |||
| 1 | Sảnh đón | 16 | 18 - 24 | 24 | 36 |
|
| 2 | Phòng sơ cứu, phân loại | 18 | 24 - 36 | 36 | 36 |
|
| 3 | Phòng tạm lưu cấp cứu | 36 | 60 - 120 | 120 | 180 |
|
| 4 | Phòng tắm rửa khử độc cho bệnh nhân | 12 | 12 | 12 | 18 |
|
| 5 | Phòng chẩn đoán hình ảnh, xét nghiệm nhanh | 24 | 24 | 24 | 24 | Kết hợp với điều khiển |
| 6 | Phòng rửa, tiệt trùng | 12 | 12 | 18 | 24 |
|
| 7 | Phòng trưởng khoa | 16 | 18 | 18 | 24 |
|
| 8 | Phòng bác sỹ | 12 | 12 | 18 | 24 | Kết hợp làm phòng trực |
| 9 | Phòng y tá, hộ lý | 12 | 12 | 18 | 24 | -nt- |
| 10 | Phòng giao ban, đào tạo | 18 | 24 - 48 | 48 | 54 | Cho 25 ¸ 31 CBCNV hoặc nhóm học viên |
| 11 | Kho sạch | 12 | 12 – 18 | 18 | 24 |
|
| 12 | Kho bẩn | 9 | 9 - 18 | 18 | 27 |
|
| 13 | Vệ sinh thay đồ nhân viên | 16 | 18 - 36 | 36 | 48 | Không nhỏ hơn 1,0m2/ người |
| Tổng cộng : | 211 | 255- 408 | 408 | 543 |
| |
5.8.1.15. Diện tích sử dụng tối thiểu của các phòng trong khoa điều trị tích cực và chống độc được quy định trong bảng 24.
Bảng 24. Diện tích tối thiểu các phòng trong khoa điều trị tích cực- chống độc
| TT | Tên phòng | Diện tích Quy mô (m2) | Ghi chú | |||
| Bệnh viện quận,huyện 50-200 giường | Quy mô 1 250-350 giường | Quy mô 2 400-500 giường | Quy mô 3 Trên 550 giường | |||
| Hạng III | Hạng III | Hạng II | Hạng I |
| ||
| 1 | Phòng đợi người nhà | 16 | 18 | 24 | 36 |
|
| 2 | Phòng điều trị tích cực | 120 | 150–300 | 300 | 450 | Không nhỏ hơn 15m2/ người |
| 3 | Phòng làm thủ thuật can thiệp | 18 | 28 | 28 | 56 | Yêu cầu như phòng mổ |
| 4 | Phòng máy | 12 | 12 | 24 | 36 |
|
| 5 | Phòng chuẩn trị | 12 | 12 | 12 | 24 | Kết hợp với điều khiển |
| 6 | Phòng rửa, tiệt trùng | 12 | 12 | 12 | 24 |
|
| 7 | Kho sạch | 12 | 12 | 18 | 24 |
|
| 8 | Kho bẩn | 6 | 6 | 9 | 12 |
|
| 9 | Phòng trưởng khoa | 16 | 18 | 18 | 24 |
|
| 10 | Phòng bác sỹ | 12 | 12 - 24 | 24 | 36 | Đồng thời là phòng trực |
| 11 | Phòng y tá, hộ lý | 12 | 12 – 24 | 24 | 36 | - nt- |
| 12 | Phòng giao ban, đào tạo | 24 | 36 - 48 | 48 | 56 |
|
| 13 | Vệ sinh thay đồ nhân viên | 18 | 24 - 48 | 48 | 56 | Không nhỏ hơn 1,0m2/ người |
| Tổng cộng : | 290 | 352- 589 | 589 | 870 |
| |
Chú thích :
1) Khu vực vô khuẩn được chia làm hai không gian cho nội khoa và cho ngoại khoa.
2) Các phòng điều trị tích cực được ngăn bằng vách kính để theo dõi bệnh nhân.
5.8.1.16. Hệ thống chiếu sáng trong khoa cấp cứu và khoa điều trị tích cực và chống độc phải đáp ứng yêu cầu cho các khu vực sau :
- Khu phụ trợ : ưu tiên chiếu sáng tự nhiên;
- Khu sạch : chiếu sáng tự nhiên kết hợp chiếu sáng nhân tạo.
5.8.1.17. Yêu cầu về độ rọi tối thiểu trong các khu vực của khoa cấp cứu và khoa điều trị tích cực và chống độc được quy định trong bảng 25.
Bảng 25. Độ rọi tối thiểu trong các khu vực của khoa điều trị tích cực và chống độc
| TT | Tên phòng | Độ rọi tối thiểu (lux) | Ghi chú |
| 1 | Phòng đợi, tiếp nhận, phân loại | 140 |
|
| 2 | Phòng vệ sinh, thay quần áo | 140 | Cửa sổ cao trên 1,8m |
| 3 | Phòng tạm lưu cấp cứu, phòng điều trị tích cực- chống độc | 500/ 250 | Điều khiển được 2 mức sáng |
| 4 | Phòng làm thủ thuật can thiệp, xét nghiệm, X quang, siêu âm.... | 750/300 | Điều khiển 2 mức sáng |
| 5 | Phòng rửa, khử trùng | 250 |
|
| 6 | Phòng hành chính, bác sỹ trưởng khoa, sinh hoạt (bộ phận văn phòng) | 140 |
|
| 7 | Kho (dụng cụ, thiết bị, vật phẩm y tế và dược phẩm, đồ bẩn) | 140 | Tính toán đối với mặt phẳng thẳng đứng, cao trên 1,0 m |
| 8 | Hành lang, lối đi | 100 |
|
Chú thích : Độ rọi tối thiểu là lượng ánh sáng tối thiểu trên đơn vị diện tích (được tính đối với mặt phẳng ngang, cao trên 0,8 m tính từ sàn).
5.8.1.18. Khoa cấp cứu và khoa điều trị tích cực và chống độc phải được cấp điện 24 giờ/ngày đáp ứng cho yêu cầu chiếu sáng và sử dụng thiết bị.
Hệ thống cấp điện phải đảm bảo các yêu cầu sau :
- Hệ thống chiếu sáng phải độc lập với hệ thống điện động lực.
- Hệ thống chiếu sáng phải đảm bảo đủ yêu cầu về độ rọi tối thiểu quy định tại bảng 25.
- Hệ thống dây dẫn và thiết bị kiểm soát, cung cấp điện phải đảm bảo an toàn và phù hợp các thông số kỹ thuật của từng thiết bị.
- Thời gian cung cấp điện dự phòng cho các thiết bị y tế và chiếu sáng không được quá 15 giây, kể từ lúc mất điện cấp từ lưới điện quốc gia.
5.8.1.19. Khoa cấp cứu và khoa điều trị tích cực và chống độc phải đảm bảo điều kiện thông gió phải đáp ứng yêu cầu sau :
- Khu phụ trợ : ưu tiên sử dụng giải pháp thông gió tự nhiên.
- Khu sạch sử dụng giải pháp thông gió tự nhiên kết hợp với thiết bị điều hoà không khí được thiết kế theo tiêu chuẩu phòng sạch trong y tế.
5.8.1.20. Nhiệt độ, độ ẩm và luân chuyển không khí các phòng quy định trong bảng 26.
Bảng 26. Nhiệt độ, độ ẩm và luân chuyển không khí trong khoa cấp cứu và khoa điều trị tích cực- chống độc
| Tên phòng | Nhiệt độ (0C) | Độ ẩm (%) | Số lần luân chuyển không khí /giờ | Số lượng hạt bụi >0,5àm trong 1m3 không khí |
| Điều trị tích cực | 21 - 24 | £ 70 | 10 - 15 | £ 3 x 106 |
| Làm kỹ thuật can thiệp | 20 - 24 | £ 70 | 10 - 15 | £ 3 x 106 |
| Phòng xét nghiệm Xquang, siêu âm | 21 - 26 | £ 70 | 3 - 5 |
|
5.8.1.21. Khoa cấp cứu và khoa điều trị tích cực và chống độc phải được cấp nước sạch vô khuẩn, liên tục trong ngày đảm bảo yêu cầu hoạt động chuyên môn.
Tại các phòng tạm lưu cấp cứu, phòng thủ thuật can thiệp, phòng chuẩn bị phải bố trí ít nhất 1 chỗ rửa tay cho 1 phòng cho 1 giường.
5.8.1.22. Hệ thống thoát nước trong khoa cấp cứu và khoa điều trị tích cực phải là hệ thống thoát nước kín và đảm bảo vệ sinh môi trường. Nước thải được dẫn tới hệ thống thoát nước chung của bệnh viện.
5.8.1.23. Chất thải rắn trong khoa phải được thu gom, phân loại và chuyển tới bộ phận xử lý chung của bệnh viện tuân thủ theo quy định của Quy chế quản lý chất thải y tế ban hành kèm theo quyết định số 2575/1999/QĐ - BYT ngày 27/8/1999 của Bộ trưởng Bộ Y tế.
5.8.1.24. Khoa cấp cứu và khoa điều trị tích cực và chống độc được thiết kế tuân theo những quy định trong tiêu chuẩn “TCXDVN 2622-1995 - Phòng cháy chống cháy cho nhà và công trình - Yêu cầu thiết kế”.
Khoảng cách tối đa từ cửa đi các phòng đến lối thoát nạn gần nhất trong khoa cấp cứu và khoa điều trị tích cực và chống độc được quy định tại bảng 27.
Bảng 27. Khoảng cách tối đa từ cửa đi các phòng đến lối thoát nạn gần nhất
| Bậc chịu lửa | Khoảng cách tối đa cho phép (m) | |
| Từ các phòng ở giữa 2 lối thoát nạn | Từ các phòng có lối ra hành lang cụt | |
| I | 30 | 25 |
| II | 30 | 25 |
Chú thích : Đối với các không gian rộng, hành lang dài tuỳ theo yêu cầu cần bố trí cửa ngăn cháy để đảm bảo an toàn.
5.8.1.25. Khoa cấp cứu và khoa điều trị tích cực và chống độc phải có hệ thống kết nối thông tin liên lạc giữa các bộ phận, với các khoa khác trong bệnh viện và các cơ sở bên ngoài bằng hệ thống tổng đài, mạng máy tính nội bộ.
Chú thích : Trong phòng điều trị tích cực còn có thêm hệ thống camera và màn hình để theo dõi tình trạng của bệnh nhân.
5.8.1.26. Khí y tế phải được cấp từ hệ thống trung tâm. Số lượng đầu cấp các loại khí y tế cho các phòng lưu cấp cứu, phòng điều trị tích cực, phòng làm thủ thuật can thiệp, được quy định tại bảng 28 và bảng 29.
Bảng 28. Số lượng đầu cấp các loại khí y tế
| STT | Loại khí y tế | Số đầu khí cấp/giường | Chú thích | |
| Khoa cấp cứu | Khoa điều trị tích cực- chống độc | |||
| 1 | Khí ô xy (02) | 01 | 02 | Thêm 01 đầu phòng |
| 2 | Khí nén (AIR) | 01 | 02 | -nt- |
| 3 | Khí hút (VAC) | 01 | 02 | -nt- |
Bảng 29. Số lượng đầu khí y tế
| TT | Tên phòng | Số đầu khí cấp/ giường, bàn mổ | Chú thích | ||
| Khí ô xy (02) trung tâm | Khí nén (AIR) trung tâm | Khí hút (VAC) trung tâm | |||
| 1 | Phòng mổ | 02 | 02 | 02 | 1 đầu dự phòng |
| 2 | Phòng gây mê, hồi tỉnh | 01 | 01 | 01 |
|
| 3 | Khu vực cấp cứu | Tính theo số giường cấp cứu của khoa, phòng | |||
| 4 | Khu chăm sóc tích cực | 01 | 01 | 01 |
|
| 5 | Phòng bệnh nhân | 01 | - | 01 |
|
5.8.1.27. Kết cấu công trình của khoa cấp cứu và khoa điều trị tích cực và chống độc phải đảm bảo an toàn, bền vững khi sử dụng bề tông cốt thép hoặc khung kim loại.
5.8.1.28. Sàn nhà phải đảm bảo phẳng, nhẵn, không trơn trượt, chịu được hoá chất, chống thấm, có tính kháng khuẩn và giảm tĩnh điện.
Phần tiếp giáp giữa sàn và tường phải đảm bảo dễ cọ rửa, chống bám bụi.
5.8.1.29. Tường của khoa cấp cứu và khoa điều trị tích cực và chống độc phải bằng phẳng, nhẵn có tính kháng khuẩn và sử dụng vật liệu hoàn thiện có chất lượng cao.
Tường bên trong các phòng tạm lưu cấp cứu, điều trị tích cực và chống độc, phòng làm thủ thuật can thiệp phải hoàn thiện bằng vật liệu chống thấm, chống ăn mòn hoá chất, kháng khuẩn, dễ cọ rửa từ sàn tới trần.
Tường bên trong khu vực hành lang và các phòng có chuyển cáng, xe và giường đẩy phải gắn thanh chống va đập ở độ cao từ 0,7m đến 0,9m tính từ bề mặt sàn.
5.8.1.30. Trần bên trong phòng và hành lang của khoa cấp cứu và khoa điều trị tích cực và chống độc phải có bề mặt phẳng, nhẵn không bám bụi, kháng khuẩn, bảo ôn và chống thấm.
Trần được sơn mầu sáng, nhạt.
Trên các phòng, hành lang phải có trần kỹ thuật lắp đặt các thiết bị chiếu sáng, phòng cháy chữa cháy, điều hoà không khí và các thiết bị kỹ thuật khác.
5.8.1.31. Cửa ra vào các phòng trong khoa phải là cửa có khuôn, cánh cửa bằng vật liệu tổng hợp hoặc kim loại kết hợp với kính trong hoặc mờ.
Cửa sảnh, cửa phòng phân loại được đóng mở tự động.
Các cửa đi chính có chuyển xe, giường đẩy dùng cửa bản lề mở 2 chiều.
5.8.1.32. Cửa sổ dùng loại có khuôn, cánh cửa bằng kim loại kết hợp với kính trong hoặc mờ để chiếu sáng tự nhiên, có lưới chắn côn trùng.
5.8.1.33. Lắp đặt các thiết bị kỹ thuật, hệ thống đường ống, các đầu nối khí y tế, đèn đọc phim, tủ dụng cụ... phải tuân theo các quy định hiện hành có liên quan và phải hoàn thiện đảm bảo kỹ thuật, mỹ thuật.
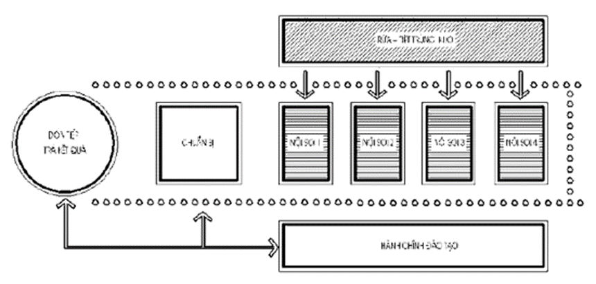
5.8.2. Khoa phẫu thuật- gây mê hồi sức. (Xem phụ lục H)
5.8.2.1. Khoa phẫu thuật- gây mê hồi sức thuộc khối nghiệp vụ kỹ thuật, gồm các phòng thực hiện các thủ thuật, phẫu thuật chữa bệnh.
Khoa phẫu thuật- gây mê hồi sức là khu vực có yêu cầu kỹ thuật cao, chuyên dụng có dây chuyền bẩn - sạch một chiều.
5.8.2.2. Khoa phẫu thuật- gây mê hồi sức gồm có các không gian chức năng sau:
- Thực hiện các kỹ thuật tiền phẫu thuật (thăm khám, hội chẩn, tiền mê...) đối với người bệnh cần phẫu thuật;
- Thực hiện các phẫu thuật chữa bệnh;
- Thực hiện các kỹ thuật sau mổ ( giải mê, hồi tỉnh) và chuyển người bệnh tới các khoa khác để tiếp tục điều trị;
- Bảo đảm an toàn phẫu thuật cho người bệnh;
- Nghiên cứu khoa học, đào tạo chuyên môn phẫu thuật về ngoại khoa;
- Đảm bảo điều kiện vệ sinh môi trường, yêu cầu vô khuẩn.
5.8.2.3. Khoa phẫu thuật- gây mê hồi sức được tổ chức theo quy mô số giường lưu (từ 55 giường ¸ 65 giường/phòng mổ) số lượng phòng mổ quy định trong bảng 30.
Bảng 30. Quy định số lượng phòng mổ trong bệnh viện
| STT | Tên phòng mổ | Số lượng đơn vị mổ | |||
| Bệnh viện quận,huyện 50-200 giường | Quy mô 1 250-350 giường | Quy mô 2 400-500 giường | Quy mô 3 Trên 550 giường | ||
| Hạng III | Hạng III | Hạng II | Hạng I | ||
| 1 | Mổ tổng hợp | 01 | 01 | 01 | 02 |
| 2 | Mổ hữu khuẩn | 01 | 01 | 01 | 02 |
| 3 | Mổ chấn thương | 01 | 01 | 01 | 01 |
| 4 | Mổ cấp cứu | - | 01 | 01 | 01 |
| 5 | Mổ sản | 01 | 01 | 01 | 01 |
| 6 | Mổ chuyên khoa khác | - | - | 01 | 02 |
| Cộng : | 04 | 05 | 06 | 09 | |
5.8.2.4. Khoa phẫu thuật- gây mê hồi sức được bố trí ở khu vực trung tâm bệnh viện, nơi có các điều kiện vệ sinh môi trường, yêu cầu vô khuẩn và hạ tầng kỹ thuật cao nhất trong bệnh viện.
- Gần khu chăm sóc tích cực, liên hệ thuận tiện với khu điều trị ngoại khoa và các khu xét nghiệm, chẩn đoán hình ảnh.
- Đặt tại vị trí cuối đường cụt, dễ dàng kiểm soát được sự ra vào và không có giao thông qua lại.
- Thuận tiện cho việc lắp đặt, vận hành các thiết bị; gần nguồn cung cấp vô khuẩn và hệ thống kỹ thuật, điện, nước, điều hoà, khí y tế.
5.8.2.5. Dây chuyền hoạt động của khoa phẫu thuật- gây mê hồi sức phải đảm bảo yêu cầu sạch bẩn một chiều, riêng biệt và được phân chia cấp độ sạch theo ba khu vực:
- Khu vực vô khuẩn :
+ Các phòng mổ;
+ Hành lang vô khuẩn;
+ Kho cung cấp vật tư tiêu hao.
- Khu vực sạch : vô khuẩn ở mức trung bình, là phần chuyển tiếp giữa khu vực vô khuẩn với khu vực phụ trợ gồm :
+ Tiền mê;
+ Hành lang sạch;
+ Phòng khử khuẩn (lau rửa dụng cụ, thiết bị);
+ Kỹ thuật hỗ trợ (Thiết bị chuyên dùng);
+ Phòng nghỉ giữa ca mổ;
+ Phòng ghi hồ sơ mổ.
- Khu vực phụ trợ gồm các bộ phận:
+ Tiếp nhận bệnh nhân;
+ Hồi tỉnh;
+ Hành chính, giao ban đào tạo;
+ Thay đồ nhân viên, Khu vệ sinh (tắm, rửa, thay quần áo...);
+ Phòng trưởng khoa;
+ Phòng bác sĩ;
+ Phòng y tá, hộ lý ;
+ Sảnh đón tiếp;
+ Nơi đợi của người nhà.
5.8.2.6. Giải pháp thiết kế tổ chức không gian trong khoa phẫu thuật phải đảm bảo các yêu cầu sau:
- Khu vực vô khuẩn, khu sạch và khu phụ trợ phải đảm bảo các yêu cầu về phòng sạch, vô khuẩn;
- Phù hợp với yêu cầu lắp đặt và vận hành các thiết bị cần thiết.
5.8.2.7. Kích thước chiều cao các không gian được lấy như sau :
- Chiều cao khu vô khuẩn, khu sạch (từ sàn tới trần) Không nhỏ hơn 3,1m
- Chiều cao khu phụ trợ (từ sàn tới trần) Không nhỏ hơn 3,0m
- Chiều cao tầng kỹ thuật (từ trần tới giới Không nhỏ hơn 0,2m
hạn dưới kết cấu dầm sàn)
5.8.2.8. Chiều rộng của hành lang, lối đi phải tính đến việc di chuyển giường đẩy (hoặc cáng) và được lấy như sau :
- Hành lang bên :
+ Chiều rộng : không nhỏ hơn 1,8m.
+ Có di chuyển giường đẩy : không nhỏ hơn 2,4m.
- Hành lang giữa :
+ Chiều rộng : không nhỏ hơn 2,4m.
+ Có di chuyển giường đẩy : không nhỏ hơn 3,0m.
- Chiều cao cửa đi không nhỏ hơn 2,1m.
- Chiều rộng cửa đi :
+ Cửa đi một cánh : không nhỏ hơn 0,9m.
+ Cửa đi hai cánh : không nhỏ hơn 1,2m.
+ Cửa chính của phòng mổ : không nhỏ hơn 1,6m
5.8.2.9. Phòng mổ trong khoa phẫu thuật gây mê hồi sức phải được bố trí tập trung và phân theo chuyên khoa có diện tích sử dụng, số lượng quy định trong bảng 31.
Bảng 31. Số lượng và diện tích tối thiểu của phòng mổ trong khoa phẫu thuật - gây mê hồi sức
| TT | Tên phòng | Diện tích Quy mô (m2) | Ghi chú | |||
| Bệnh viện quận,huyện 50-200 giường | Quy mô 1 250-350 giường | Quy mô 2 400-500 giường | Quy mô 3 Trên 550 giường | |||
| Hạng III | Hạng III | Hạng II | Hạng I | |||
| 1 | Mổ tổng hợp | 36 x 1ph | 36 x 1ph | 36 x 1ph | 36 x 2ph |
|
| 2 | Mổ hữu khuẩn | - | 36 x 1ph | 36 x 1ph | 36 x 2ph |
|
| 3 | Mổ chấn thương | - | 36 x 1ph | 36 x 1ph | 36 x 1ph |
|
| 4 | Mổ cấp cứu | 36 x 1ph | 36 x 1ph | 36 x 1ph | 36 x 1ph |
|
| 5 | Mổ sản | 36 x 1ph | 36 x 1ph | 36 x 1ph | 36 x 1ph |
|
| 6 | Mổ chuyên khoa | - | 36 x 1ph | 36 x 1ph | 36 x 2ph |
|
| 7 | Rửa tay vô khuẩn | 15 | 18 | 36 | 42 | kết hợp hành lang |
| 8 | Cung cấp vật tư tiêu hao | 15 | 18 | 36 | 42 |
|
| 9 | Hành lang vô khuẩn |
|
| 36 | 42 | kết hợp cung cấp vật tư tiêu hao |
5.8.2.10. Diện tích sử dụng các phòng chức năng khu sạch được quy định trong bảng 32.
Bảng 32. Diện tích tối thiểu các phòng chức năng trong khu sạch
| TT | Tên phòng | Diện tích Quy mô (m2) | Ghi chú | |||
| Bệnh viện quận,huyện 50-200 giường | Quy mô 1 250-350 giường | Quy mô 2 400-500 giường | Quy mô 3 Trên 550 giường | |||
| Hạng III | Hạng III | Hạng II | Hạng I | |||
| 1 | Tiền mê (lấy bằng 50% số phòng mổ) | 16 | 18 - 27 | 27 | 45 | Tối thiểu 9m2/g có thể kết hợp với hàng lang sạch |
| 2 | Hành lang sạch | 18 | 24 - 36 | 36 | 48 |
|
| 3 | Phòng nghỉ giữa ca mổ | 16 | 18 - 24 | 24 | 24 | Có vệ sinh liền phòng |
| 4 | Phòng ghi hồ sơ mổ | 9 | 9 | 9 | 12 | Có thể kết hợp với hành lang sạch |
| 5 | Phòng khử khuẩn | 12 | 12 - 24 | 24 | 36 |
|
| 6 | Phòng đồ thải | 12 | 12 - 18 | 18 | 24 |
|
| 7 | Kho thiết bị | 18 | 18 - 24 | 24 | 36 |
|
| Tổng cộng : | 102 | 111-162 | 162 | 235 |
| |
5.8.2.11. Diện tích tối thiểu các phòng chức năng khu phụ trợ được quy định trong bảng 33.
Bảng 33. Diện tích phòng chức năng khu phụ trợ
| TT | Tên phòng | Diện tích Quy mô (m2) | Ghi chú | |||
| Bệnh viện quận,huyện 50-200 giường | Quy mô 1 250-350 giường | Quy mô 2 400-500 giường | Quy mô 3 Trên 550 giường | |||
| Hạng III | Hạng III | Hạng II | Hạng I | |||
| 1 | Tiếp nhận bệnh nhân | 24 | 24 - 36 | 36 | 48 |
|
| 2 | Hồi tỉnh (lấy bằng 50% số phòng mổ) | 12 | 24 - 36 | 36 | 60 | Tối thiểu 12m2/ một giường |
| 3 | Hành chính, trực | 12 | 12 - 18 | 18 | 24 | -nt- |
| 4 | Hội chẩn, đào tạo | 12 | 12 - 18 | 36 | 48 | -nt- |
| 5 | Thay quần áo, vệ sinh | 18 x 2ph | 24 x 2ph | 24 x 2ph | 36 x 2ph | -nt- |
| 6 | Trưởng khoa | 12 | 12 | 12 | 12 x 2ph | -nt- |
| 7 | Bác sỹ | 18 | 18 x 2ph | 18 x 2ph | 18 x 3ph | -nt- |
| 8 | Phòng Y tá, hộ lý | 18 | 18 x 2ph | 18 x 2ph | 18 x 3ph | -nt- |
| Tổng cộng : | 132 | 174-264 | 264 | 372 |
| |
5.8.2.12. Để đảm bảo an toàn cho người bệnh, khoa phẫu thuật gây mê hồi sức phải đảm bảo điều kiện chiếu sáng theo yêu cầu cho từng khu vực. Triệt để ưu tiên chiếu sáng nhân tạo cho khu vô khuẩn.
Yêu cầu về độ rọi tối thiểu của ánh sáng được quy định trong bảng 34.
Bảng 34. Độ rọi tối thiểu trong khoa phẫu thuật gây mê hồi sức
| Tên phòng | Độ rọi tối thiểu (lux) | Ghi chú |
| Sảnh đợi, tiếp nhận bệnh nhân | 140 |
|
| Phòng vệ sinh, thay quần áo | 140 | Cửa sổ cao trên 1,8m |
| Phòng khử khuẩn, cung cấp vô khuẩn kỹ thuật, hành lang vô khuẩn | 300 |
|
| Phòng mổ | 700 / 300 | Điều khiển ở 2 mức sáng |
| Phòng tiền mê, hồi tỉnh | 500 / 250 |
|
| Phòng nghỉ thư giãn | 140 |
|
| Phòng hành chính, bác sỹ trưởng khoa, giao ban, đào tạo (bộ phận văn phòng) | 140 |
|
| Kho (dụng cụ, thiết bị, vật phẩm y tế và dược phẩm, đồ bẩn) | 140 | Tính toán đối với mặt phẳng thẳng đứng, cao trên 1,0m |
| Hành lang, lối đi | 100 |
|
Chú thích: Độ rọi tối thiểu là lượng ánh sáng tối thiểu trên đơn vị diện tích (được tính với mặt phẳng ngang, cao trên 0,8m tính từ sàn).
5.8.2.13. Các phòng mổ và hành lang vô khuẩn: phải đạt yêu cầu về điều kiện nhiệt độ, độ ẩm xem trong bảng 35.
Bảng 35. Điều kiện nhiệt độ, độ ẩm
| Tên phòng | Nhiệt độ (0C) | Độ ẩm (%) | Số lần luân chuyển không khí /giờ | Số lượng hạt bụi >0,5àm trong 1m3 không khí |
| Phòng mổ, phòng hồi tỉnh, hành lang vô khuẩn | 21 - 24 | 60 - 70 | 15 - 20 | < 3 x 106 |
| Tiền mê, hành lang sạch | 21 - 26 | < 70 | 5 - 15 |
|
5.8.2.14. Khoa phẫu thuật gây mê hồi sức phải được cấp đủ điện, liên tục 24h/ngày và có nguồn điện dự phòng.
Hệ thống cấp điện của khoa phẫu thuật gây mê hồi sức phải đảm bảo các yêu cầu sau :
- Hệ thống điện chiếu sáng phải độc lập với hệ thống điện động lực cấp cho các thiết bị.
- Hệ thống chiếu sáng phải đảm bảo đủ yêu cầu về độ rọi tối thiểu
- Thiết bị sử dụng điện phải có hệ thống tiếp địa độc lập cấp II.
- Hệ thống dây dẫn và thiết bị kiểm soát, cung cấp điện phải đảm bảo an toàn và phù hợp các thông số kỹ thuật các ổ cắm 3 chạc phải cách sàn 0,6m trong phòng mổ để tránh ẩm.
5.8.2.15. Khoa phẫu thuật gây mê hồi sức phải được cấp nước sạch vô khuẩn đầy đủ, liên tục trong ngày, đảm bảo yêu cầu hoạt động chuyên môn. Phải có hệ thống thu, thoát nước thải hoá chất và nước thải sinh hoạt thu gom xử lý bộ trước vào hệ thống thoát và xử lý nước thải chung của bệnh viện, đảm bảo vệ sinh môi trường.
5.8.2.16. Cần có hệ thống kết nối thông tin liên lạc trong các bộ phận, giữa các khoa khác trong bệnh viện và các cơ sở bên ngoài bằng hệ thống điện thoại tổng đài, truyền dữ liệu, hình ảnh, mạng máy tính nội bộ.
Chú thích: Trong các phòng mổ tuỳ theo yêu cầu có hệ thống thông tin (truyền hình ảnh, và số liệu) liên lạc với bên ngoài và phòng hành chính, đào tạo để phục vụ công tác nghiên cứu khoa học, giảng dạy.
5.8.2.17. Khu mổ phải có đường kết nối với bộ phận chống nhiễm khuẩn và các bệnh phẩm sau phẫu thuật phải phân loại và xử lý theo quy chế quản lý chất thải y tế đã ban hành.
5.8.2.18. Yêu cầu cung cấp khí y tế phải được cấp từ hệ thống trung tâm.
5.8.2.19. Nền sàn của khoa phẫu thuật gây mê hồi sức đảm bảo phẳng, nhẵn, chịu lực không trơn trượt, chịu được hoá chất, chống thấm, chống đọng bám và dễ cọ rửa vệ sinh.
5.8.2.20. Tường của khoa phẫu thuật gây mê hồi sức sử dụng vật liệu hoàn thiện có chất lượng cao đảm bảo bề mặt phẳng, nhẵn, chịu nước, chống ăn mòn hoá chất, chống bám bụi dễ vệ sinh từ sàn tới trần.
5.8.2.21. Tường bên trong khu vực hành lang phải bố trí thanh chống va đập ở độ cao từ 0,7m ¸0,9m (tính từ sàn).
5.8.2.22. Trần bên trong và hành lang của khoa phẫu thuật gây mê hồi sức sơn mầu trắng, có bề mặt phẳng, nhẵn (không bám bụi) chống thấm, kháng khuẩn, bảo ôn và cách âm tốt.
5.8.2.23. Cửa ra vào và cửa sổ trong khoa phẫu thuật gây mê hồi sức nên là cửa có khuôn, cánh cửa bằng nhựa tổng hợp hoặc kim loại kết hợp với kính trong hoặc mờ.
5.8.2.24. Chiều rộng cửa phải đảm bảo yêu cầu chuyển xe, giường đẩy với cửa bản lề mở hai chiều hoặc đóng mở tự động và đều phải có chốt, khoá an toàn.
5.8.2.25. Cửa chuyển dụng cụ (Passbox) được lắp đặt cách sàn tối thiểu 0,9m đảm bảo ngăn cách không khí sạch lạnh và độ chênh áp giữa các khu vực.
Chú thích : Passbox là hộp cửa chuyên dụng.
5.8.2.26. Lắp đặt thiết bị kỹ thuật (tủ điều khiển, đèn đọc phim, passbox, dụng cụ...) phải đảm bảo yêu cầu kỹ thuật, mỹ thuật không để không khí bẩn, bụi lọt vào trong phòng.
5.8.3. Khoa chẩn đoán hình ảnh. (Xem phụ lục K)
5.8.3.1. Khoa chẩn đoán hình ảnh gồm :
a) Phòng phân loại, phòng tối
b) Các phòng X quang (X-quang thường quy, X quang can thiệp, X-quang tiêu hoá)
c) Phòng siêu âm-chẩn đoán.
d) Phòng chụp mạch, chụp vú và đo mật độ xương.
e) Phòng máy chụp cắt lớp vi tính (CT-Scanner).
f) Phòng máy chụp bằng cộng hưởng từ MRI.
5.8.3.2. Khoa chẩn đoán hình ảnh gồm các không gian để thực hiện các chức năng, nhiệm vụ :
- Thực hiện các kỹ thuật chẩn đoán bằng hình ảnh trên cơ thể người bệnh bằng các máy X-quang, cắt lớp vi tính, siêu âm và chụp cộng hưởng từ theo yêu cầu của các khoa lâm sàng, khoa khám bệnh.
- Tập hợp, lưu trữ các kết quả chẩn đoán (hình ảnh, phim...) và gửi cho các khoa lâm sàng, phòng khám, theo yêu cầu.
- Bảo đảm an toàn và kiểm soát bức xạ ion hoá cho người bệnh, nhân viên.
- Tổ chức nghiên cứu khoa học.
- Đào tạo chuyên môn chẩn đoán hình ảnh cho tuyến dưới.
5.8.3.3. Khoa chẩn đoán hình ảnh được tổ chức theo quy mô khám chữa bệnh tại các cơ sở y tế. Số lượng phòng chụp, chiếu được quy định trong bảng 36.
Bảng 36. Số lượng phòng chụp, chiếu khoa chẩn đoán hình ảnh
| Quy mô
Loại máy | Số lượng phòng máy | |||
| Bệnh viện quận,huyện 50-200 giường | Quy mô 1 250-350 giường | Quy mô 2 400-500 giường | Quy mô 3 Trên 550 giường | |
| Hạng III | Hạng III | Hạng II | Hạng I | |
| 1. Máy X-quang | 02 | 03 – 05 | 05 | 07 - 09 |
| 2. Máy siêu âm, chẩn đoán | 02 | 03 – 05 | 05 | 07 - 09 |
| 3. Máy cắt lớp vi tính (CT- Scanner) | - | 01 | 01 | 01 |
| 4. Máy cộng hưởng từ (MRI) | - | - | 01 | 01 |
| Cộng : | 04 | 7-11 | 12 | 16-20 |
5.8.3.4. Khoa chẩn đoán hình ảnh phải đảm bảo tuyệt đối an toàn và kiểm soát bức xạ theo TCVN 6561-1999.
5.8.3.5. Dây chuyền hoạt động của khoa chẩn đoán hình ảnh được tổ chức hoạt động theo các chức năng và phân chia thành các khu vực :
a) Khu vực nghiệp vụ kỹ thuật :
- Phòng chuẩn bị (thay đồ và chuẩn bị bệnh nhân);
- Phòng thủ thuật (tháo thụt, rửa, gây tê);
- Phòng đặt máy chẩn đoán;
- Phòng điều khiển;
- Phòng đọc phim và xử lý hình ảnh;
- Phòng rửa phim, phân loại.
b) Khu vực hành chính, phụ trợ, đào tạo :
- Sảnh đón tiếp kết hợp đợi;
- Đăng ký lấy số và trả kết quả;
- Phòng hành chính, giao ban/đào tạo;
- Phòng trưởng khoa;
- Phòng trực nhân viên;
- Phòng nghỉ bệnh nhân;
- Kho thiết bị dụng cụ;
- Kho phim, hoá chất;
- Phòng thay quần áo, vệ sinh nhân viên nam, nữ;
- Phòng vệ sinh bệnh nhân nam, nữ.
5.8.3.6. Vị trí xây dựng khoa chẩn đoán hình ảnh được đặt ở khu vực trung tâm của bệnh viện, trong khu kỹ thuật cận lâm sàng; Liên hệ thuận tiện với khoa khám- chữa bệnh ngoại trú và khối điều trị nội trú; Liên hệ thuận tiện với các hệ thống kỹ thuật chung (cấp điện, cung ứng nguyên liệu...).
5.8.3.7. Không tổ chức các tuyến giao thông đi qua khoa chẩn đoán hình ảnh tới các khu vực khác và cách biệt với khu vực đông người qua lại.
5.8.3.8. Để thuận tiện cho việc lắp đặt, vận hành các thiết bị, di chuyển người bệnh và kiểm soát an toàn bức xạ ion hoá, khoa chẩn đoán hình ảnh nên đặt ở tầng 1(trệt), mặt nền trên cao độ ngập lụt - ngoại trừ khu vực chẩn đoán bằng máy siêu âm.
5.8.3.9. Giải pháp thiết kế tổ chức không gian trong khoa chẩn đoán hình ảnh đảm bảo các yêu cầu:
- Đủ diện tích đặt máy, các không gian vận hành máy và các không gian dành cho hoạt động của người bệnh và nhân viên, phù hợp với sơ đồ chức năng của khoa chẩn đoán hình ảnh ;
- Khu vực người bệnh và nhân viên riêng biệt : dây chuyền hoạt động một chiều hợp lý, không chồng chéo, kiểm soát an toàn bức xạ;
5.8.3.10. Kích thước các phòng trong khoa chẩn đoán hình ảnh được lấy như sau:
a) Các phòng chức năng :
- Chiều cao trong phòng (từ sàn tới trần không thấp hơn 3,1m.
tuỳ theo yêu cầu lắp đặt của thiết bị)
- Chiều cao khu phụ trợ (từ sàn tới trần) không thấp hơn 2,8m.
- Chiều cao của tầng kỹ thuật từ trần tới
giới hạn dưới kết cấu dầm (dành cho các
hệ thống đường ống, thiết bị kỹ thuật) không thấp hơn 0,2m
b) Cầu thang, đường dốc (nếu có) :
- Chiều rộng bản thang không nhỏ hơn 1,8m.
- Chiều rộng chiếu nghỉ không thấp hơn 2,0m.
c) Thang máy :
- Kích thước buồng thang nhân viên không nhỏ hơn 1,1 x 1,4m
- Kích thước buồng thang bệnh nhân không nhỏ hơn 1,1 x 2,3m
d) Hành lang :
- Chiều rộng hành lang bên : không nhỏ hơn 1,8m.
- Chiều rộng hành lang bên kết hợp đợi : không nhỏ hơn 2,4m.
- Chiều rộng hành lang giữa : không nhỏ hơn 2,4m.
- Chiều rộng hành lang giữa kết hợp đợi : không nhỏ hơn 3,0m.
- Chiều cao của hành lang : không nhỏ hơn 2,8m.
e) Cửa :
- Chiều rộng cửa đi một cánh : không nhỏ hơn 0,9m.
- Chiều rộng cửa đi hai cánh : không nhỏ hơn 1,2m.
- Chiều rộng cửa chính của phòng chiếu chụp : không nhỏ hơn 1,4m.
- Chiều cao : không thấp hơn 2,1m.
5.8.3.11. Đơn vị chẩn đoán hình ảnh bằng máy X-quang được quy định như sau:
- Phòng chuẩn bị :
+ Buồng chuẩn bị tháo, thụt, rửa (1xí, 1 rửa) dành cho X-quang can thiệp;
+ Phòng nghỉ của bệnh nhân (1-2 giường) theo yêu cầu.
- Phòng X-quang :
+ Đủ diện tích đặt máy và không gian để vận hành thiết bị;
+ Cửa vận chuyển người bệnh đủ rộng khi di chuyển bệnh nhân bằng xe hoặc giường đẩy.
- Phòng điều khiển :
+ Liền kề với phòng X-quang và phòng tráng rửa phim;
+ Cửa ra vào riêng có vật liệu cản tia, kính chì quan sát, cửa chuyển phim;
+ Các phòng điều khiển có thể kết hợp với nhau theo kiểu hành lang chung để dễ dàng liên hệ.
5.8.3.12. Đơn vị chẩn đoán hình ảnh bằng máy siêu âm được quy định như sau :
- Cần tổ chức ít nhất 01 đơn vị siêu âm có can thiệp
- Mỗi đơn vị có diện tích đủ đặt 01 giường và 01 thiết bị siêu âm
- Có lối đi riêng cho người bệnh (tự đi, giường đẩy hoặc bằng xe) và vách ngăn, rèm che cho từng đơn vị.
5.8.3.13. Đơn vị chẩn đoán hình ảnh bằng máy cắt lớp vi tính (CT- Scanner)
- Phòng chuẩn bị : Bệnh nhân thay đồ hoặc chuẩn bị khi cần;
- Phòng máy chụp cắt lớp vi tính.
- Phòng điều khiển và đặt máy vi tính, máy in
Mỗi phòng đặt một máy CT - Scanner (cửa quan sát và ra vào đảm bảo chống được tia X)
5.8.3.14. Đơn vị chẩn đoán hình ảnh bằng máy cộng hưởng từ (MRI),
- Phòng chuẩn bị : bệnh nhân thay đồ hoặc chuẩn bị khi cần ;
- Phòng máy MRI (Mỗi phòng đặt một máy MRI và thiết bị phụ trợ, diện tích để vận hành thiết bị).
- Phòng điều khiển, liền kề với phòng đặt máy MRI (cửa quan sát và ra vào đảm bảo chống nhiễu và an toàn sóng điện từ).
5.8.3.15. Diện tích tối thiểu khu vực kỹ thuật khoa chẩn đoán hình ảnh theo từng quy mô của bệnh viện được quy định trong bảng 37.
Bảng 37. Diện tích tối thiểu khu vực kỹ thuật khoa Chẩn đoán hình ảnh
| Quy mô
Loại máy | Số giường | Ghi chú | |||
| Bệnh viện quận,huyện 50-200 giường | Quy mô 1 250-350 giường | Quy mô 2 400-500 giường | Quy mô 3 Trên 550 giường | ||
| Hạng III | Hạng III | Hạng II | Hạng I | ||
| 1. X-quang các loại | 02 đơn vị 96 | 03 đơn vị 96 - 157 | 05 đơn vị 157 | 09 đơn vị 279 |
|
| a. Khu vực đặt máy |
| ||||
| -Phòng chụp | 2đv x 20m2/1đv | 3đv x 20m2/1đv | 5đv x 20m2/1đv | 9đv x 20m2/1đv | Không nhỏ hơn 20m2 /phòng |
| -Phòng điều khiển | 2đv x 6m2/1đv | 3đv x 6m2/1đv | 3đv x 6m2/1đv | 3đv x 6m2/1đv |
|
| b. Khu vực chuẩn bị |
| ||||
| - Buồng tháo, thụt | 9 | 9 | 9 | 9 |
|
| -Phòng nghỉ bệnh nhân | 1 giường x 9m2 | 2 giường x 9m2 | 2 giường x 9m2 | 4 giường x 9m2 |
|
| 2. Siêu âm | 02 đơn vị 24 | 03 đơn vị -05 đơn vị 34 | 05 đơn vị 54 | 09 đơn vị 90 |
|
| -Phòng siêu âm | 2đv x 9m2 | 3đv - 5đv x 9m2 | 5đv x 9m2 | 9đv x 9m2 | Không nhỏ hơn 9m2 /phòng |
| -Phòng chuẩn bị cho đơn vị siêu âm can thiệp | 9 | 9 | 9 | 9 |
|
| 3. Máy CT- Scanner |
|
| 01 đơn vị 60 | 01 đơn vị 60 |
|
| a. Khu vực đặt máy |
| ||||
| -Phòng chụp | - | - | 30 | 30 | Không nhỏ hơn 30m2 /phòng |
| -Phòng điều khiển | - | - | 12 | 12 | Không nhỏ hơn 12m2 /phòng |
| b. Khu vực chuẩn bị |
| ||||
| -Phòng chuẩn bị | - | - | 18m2/1đv | 18m2/1đv |
|
| 4. Cộng hưởng từ MRI | - | - | 60 | 60 |
|
| a. Khu vực đặt máy |
| ||||
| -Phòng chụp | - | - | 30 | 30 | Không nhỏ hơn 30m2/ phòng |
| -Phòng điều khiển | - | - | 12 | 12 |
|
| b. Khu vực chuẩn bị |
| ||||
| - Phòng chuẩn bị | - | - | 18m2/1đv | 18m2/1đv |
|
| 5. Phòng đọc và xử lý hình ảnh | 24 | 24 | 36 | 48 |
|
| 6. Phòng rửa phim, phân loại | 18 | 18 | 18 | 24 |
|
5.8.3.16. Khu vực hành chính, phụ trợ phải đảm bảo các yêu cầu sau :
a) Sảnh đón tiếp :
- Bố trí ghế ngồi và các thiết bị truyền thông (màn hình, loa, bảng).
- Tổ chức vệ sinh kết hợp với thay đồ cho bệnh nhân (nam, nữ riêng).
- Số lượng ghế ngồi đợi bằng 8 đến 12% số lượt người đến khám tại khoa trong ngày :
Diện tích không nhỏ hơn 1,2m2 cho 1 chỗ đợi người lớn.
Diện tích không nhỏ hơn 1,8m2 cho 1 chỗ đợi trẻ em.
b) Nơi đăng ký, lấy số và nhận/ trả kết quả: Liên kết thuận tiện với các phòng hành chính, phòng phân loại phim.
5.8.3.17. Diện tích tối tiểu của khu vực hành chính, phụ trợ khoa chẩn đoán hình ảnh được quy định trong bảng 38.
5.8.3.18. Khoa chẩn đoán hình ảnh phải đựơc thiết kế và xây dựng hoàn thiện với chất lượng cao và kết cấu công trình, nội ngoại thất, sân vườn theo tiêu chuẩn TCVN 5674 - 1992.
5.8.3.19. Tường của khoa chẩn đoán hình ảnh phải được hoàn thiện bằng các giải pháp : trát, ốp vật liệu bền vững, sơn silicat; đảm bảo lớp che phủ bề mặt phẳng, nhẵn, mỹ quan, chống thấm.
- Tường bên trong các phòng chiếu, chụp phải sử dụng vật liệu cản tia xạ (chì lá, vữa barit, cao su chì).
- Tường bên trong khu vực hành lang và các phòng có chuyển cáng, xe và giường đẩy phải gắn thanh chống va đập ở độ cao từ 0,7 đến 0,9m (tính từ sàn).
- Tường bên ngoài khoa chẩn đoán hình ảnh có màu sắc phù hợp chung với bệnh viện.
Bảng 38. Diện tích tối thiểu của khu vực hành chính, phụ trợ khoa chẩn đoán hình ảnh
| Quy mô KCB
Đơn vị CĐHA | Số giường | Ghi chú | |||
| Bệnh viện quận,huyện 50-200 giường | Quy mô 1 250-350 giường | Quy mô 2 400-500 giường | Quy mô 3 Trên 550 giường | ||
| Hạng III | Hạng III | Hạng II | Hạng I | ||
| 1. Phòng đăng ký lấy số, trả kết quả | 14 | 18 - 36 | 36 | 54 |
|
| 2. Phòng vệ sinh bệnh nhân (nam, nữ) | 2ph x 12m2 | 2ph x 24m2 | 2ph x 24m2 | 2ph x 36m2 |
|
| 3. Đợi chụp | 18 | 36 - 60 | 60 | 108 | Không nhỏ hơn 1,2m2 /chỗ/đv CĐ |
| 4. Phòng trưởng khoa | 16 | 18 | 18 | 18 | -nt- |
| 5. Phòng hành chính, giao ban | 18 | 24 - 36 | 36 | 48 | 0,8 ¸ 1,0m2 /chỗ giảng dạy, hội họp |
| 6. Phòng trực nhân viên | 12 | 12 - 18 | 18 | 18 | -nt- |
| 7. Kho thiết bị, dụng cụ | 12 | 12 - 18 | 18 | 24 | -nt- |
| 8. Kho phim, hoá chất | 12 | 12 - 18 | 18 | 24 | -nt- |
| 9. Phòng vệ sinh, thay quần áo nhân viên (nam, nữ) | 2 x 12m2 | 2 x 12m2 2 x 18m2 | 2 x 18m2 | 2 x 24m2 | -nt- |
5.8.3.20. Trần bên trong phòng và hành lang của khoa chẩn đoán hình ảnh phải có bề mặt phẳng, nhẵn (không bám bụi) và chống thấm, cách nhiệt tốt.
- Trần bên trong các phòng, hành lang có lắp đặt các thiết bị chiếu sáng, phòng cháy, chữa cháy, điều hoà không khí và các thiết bi kỹ thuật (có các giải pháp kết cấu đảm bảo lắp đặt thiết bị).
- Trần bên trong các phòng chụp phải trát bằng vữa barit hoặc ốp vật liệu cản tia xạ (nếu có tầng trên).
5.8.3.21. Nền, sàn của khoa chẩn đoán hình ảnh không được có bậc thang hoặc ngưỡng cửa, lát gạch ceramic, granit, tấm vinyl hoặc phủ sơn đặc biệt; đảm bảo tĩnh điện và dễ vệ sinh.
Trường hợp khoa chẩn đoán hình ảnh tại các tầng trên (lầu): sàn phải đảm bảo an toàn bức xạ cho các tầng phía dưới.
5.8.3.22. Cửa ra vào : cửa ra vào trong khoa chẩn đoán hình ảnh gồm các loại :
- Cửa thông thường;
- Cửa chắn tia bức xạ.
Cửa chắn tia bức xạ phải đảm bảo các yêu cầu :
- Cánh cửa bọc vật liệu cản tia (Chì lá, cao su chì...);
- Có đèn hiệu, biển cảnh báo bức xạ ở quanh tầm mắt ở mặt phía bên ngoài phòng;
- Cửa phòng mở nhẹ nhàng, đảm bảo kín không để lọt tia xạ khi chiếu, chụp.
5.8.3.23. Cửa sổ phải đảm bảo các yêu cầu sau :
- Có khuôn, cánh cửa bằng gỗ hoặc kim loại (nhôm, thép) kết hợp với kính trong hoặc mờ để chiếu sáng tự nhiên và có chốt đóng an toàn;
- Các phòng đặt thiết bị X-quang, máy chụp cắt lớp và máy cộng hưởng từ không bố trí cửa sổ để đảm bảo an toàn bức xạ, che chắn sóng điện từ.
5.8.3.24. Phòng đặt thiết bị phải đảm bảo yêu cầu kỹ thuật và đảm bảo an toàn (không để tia xạ lọt ra bên ngoài; không để lọt ánh sáng vào phòng tráng rửa phim...).
5.8.3.25. Hộp chuyển đồ gắn trên phòng tráng rửa phim thông với các bộ phận chức năng. Ô kính quan sát phải đảm bảo các yêu cầu sau :
- Ô kính chì đảm bảo khả năng cản tia bức xạ.
- Ô kính chì quan sát gắn trên tường phòng chụp X-quang, CT-Scanner thông với phòng điều khiển cách sàn 0,9m hoặc 1,2m tuỳ theo kết cấu hình của máy và có kích thước tối thiểu (rộng x cao) : (600mm x 400mm) với chẩn đoán X-quang; (1200mm x 800mm) với CT-Scanner.
5.8.3.26. Tất cả các phòng khoa chẩn đoán hình ảnh phải đảm bảo điều kiện chiếu sáng và thông gió phù hợp với yêu cầu chức năng sử dụng.
5.8.3.27. Khu vực sử dụng giải pháp chiếu sáng và thông gió nhận tạo kết hợp với tự nhiên :
- Sảnh đợi, đón tiếp, nơi đăng ký, nơi đăng ký lấy số và nhận/ trả kết quả;
- Khu phụ trợ và hành lang.
5.8.3.28. Khu vực sử dụng giải pháp chiếu sáng và thông gió nhân tạo :
- Phòng chuẩn bị, thay quần áo, thủ thuật;
- Phòng siêu âm; các phòng X-quang; phòng CT-Scanner và máy MRI ;
- Các phòng điều khiển, phòng tráng rửa phim.
5.8.3.29. Yêu cầu về độ rọi tối thiểu trong khoa chẩn đoán hình ảnh được quy định tại bảng 39.
Bảng 39. Yêu cầu về độ rọi tối thiểu trong khoa chẩn đoán hình ảnh
| Loại phòng | Độ rọi tối thiểu (lux) | Ghi chú |
| Sảnh đợi, đón tiếp | 140 |
|
| Nơi đăng ký (lấy số và nhận trả kết quả) | 200 |
|
| Nơi chuẩn bị, thay quần áo, vệ sinh, tháo thụt Phòng vệ sinh (thay quần áo nhân viên) | 140 | Cửa sổ cao trên 2,0m |
| Phòng chụp X-quang, siêu âm, CT, MRI | 140/140 | Điều khiển ở 2 mức sáng cố định |
| Phòng điều khiển, xử lý hình ảnh | 300 | Hạn chế độ chói, loá |
| Phòng xử lý phim | 75 |
|
| Phòng hành chính, bác sỹ trưởng khoa, sinh hoạt và đọc phim (bộ phim văn phòng) | 140 |
|
| Hành lang, lối đi | 100 |
|
Chú thích : Đội rọi tối thiểu là ánh sáng tối thiểu trên đơn vị diện tích (được tính toán đối với mặt phẳng ngang, cao trên 0,8m tính từ sàn).
5.8.3.30. Trong khoa chẩn đoán hình ảnh phải đảm bảo các điều kiện về nhiệt độ, độ ẩm, thông gió :
- Nhiệt độ trong các phòng từ 21 ¸ 260C (đảm bảo các yêu cầu của các thiết bị, hoá chất);
- Độ ẩm bảo đảm không lớn hơn 70%;
- Số lần luân chuyển không khí các khu vực của khoa chẩn đoán hình ảnh từ 6 lần trong 1 giờ.
5.8.3.31. Khoa Chẩn đoán hình ảnh được thiết kế phòng cháy và chữa cháy tuân theo những quy định trong tiêu chuẩn TCXDVN 2622-1995- Phòng chống cháy cho nhà và công trình- Yêu cầu thiết kế.
5.8.3.32. Các bộ phận của công trình (tường, trần, sàn, cửa quan sát, cửa đi, cửa sổ) phải đảm bảo các yêu cầu về an toàn bức xạ và ion hoá.
5.8.3.33. Khoa chẩn đoán hình ảnh phải được cấp điện đầy đủ cho yêu cầu chiếu sáng, sử dụng các trang thiết bị từ nguồn cấp điện chính (và nguồn dự phòng).
- Hệ thống điện chiếu sáng phải độc lập với hệ thống điện động lực;
- Hệ thống dây dẫn và thiết bị kiểm soát, cung cấp điện phải đảm bảo an toàn và phù hợp các thông số kỹ thuật;
- Tiếp địa toàn bộ hệ thống.
5.8.3.34. Khoa chẩn đoán hình ảnh phải có hệ thống kết nối thông tin liên lạc giữa các bộ phận và các cơ sở bên ngoài bằng hệ thống tổng đài, truyền số liệu và hình ảnh (intercom, telecom, intra NET,...).
5.8.3.35. Khoa chẩn đoán hình ảnh phải được cấp nước đầy đủ, liên tục trong ngày cho yêu cầu hoạt động chuyên môn, sinh hoạt thông thường.
- Tiêu chuẩn cấp nước phải tuân theo quy định (công suất, chất lượng...) cấp nước chung của bệnh viện.
- Hệ thống thoát nước thải hoá chất được thu gom xử lý trước khi thoát ra hệ thống xử lý nước thải chung của bệnh viện.
- Nước thải sinh hoạt thoát ra hệ thống xử lý nước thải chung của bệnh viện.
5.8.3.36. Chất thải sinh hoạt, y tế trong khoa chẩn đoán hình ảnh phải được tập trung, phân loại và chuyển tới bộ phận xử lý chung của bệnh viện tuân thủ theo quy định của quy chế quản lý chất thải y tế ban hành kèm theo quyết định số 2575/1999/QĐ -BYT ngày 27/8/1999 của Bộ trưởng Bộ Y tế.
5.8.4. Các khoa xét nghiệm. (xem phụ lục L)
5.8.4.1. Các khoa xét nghiệm được bố trí trong khối kỹ thuật nghiệp vụ, cận lâm sàng.
5.8.4.2. Các phòng xét nghiệm nhanh được bố trí trong các khối khám và điều trị ngoại trú, các khoa điều trị nội trú.
Chú thích : Các bệnh viện có quy mô dưới 150 giường không triển khai các phòng xét nghiệm tại khoa điều trị mà tập trung tại khoa xét nghiệm trung tâm trong khối kỹ thuật nghiệp vụ, cận lâm sàng.
5.8.4.3. Các phòng xét nghiệm gồm có :
- Khoa vi sinh;
- Khoa hóa sinh;
- Khoa xét nghiệm ký sinh trùng;
- Khoa Huyết học, truyền máu;
5.8.4.4. Các không gian labo xét nghiệm phải đảm bảo an toàn cho kĩ thuật viên, nhân viên làm việc trong khoa và môi trường xung quanh theo yêu cầu chống lây/nhiễm cao nhất trong bệnh viện.
Việc quản lý thiết bị theo đúng quy chế quản lý và sử dụng vật tư thiết bị y tế và việc quản lý chất thải y tế phải tuân theo Quyết định số 2575/1999/QĐ-BYT ngày 27/8/1999.
5.8.4.5. Vị trí xây dựng khoa xét nghiệm nằm trong khu kỹ thuật nghiệp vụ, có các điều kiện môi trường tốt nhất đồng thời thuận tiện cho bệnh nhân nội và ngoại trú.
Liên hệ thuận tiện với các hệ thống kĩ thuật chung điện, nước, điều hoà không khí.
5.8.4.6. Dây chuyền hoạt động của khoa xét nghiệm phải đảm bảo yêu cầu sạch bẩn một chiều riêng biệt để chống nhiễm chéo. Công trình được phân chia cấp độ sạch cho từng khu vực.
5.8.4.7. Khu vực kỹ thuật nghiệp vụ có yêu cầu về môi trường ở mức trung bình, là không gian làm việc chính của các khoa xét nghiệm và không gian chuyển tiếp giữa khu vực vô khuẩn với phụ trợ bao gồm :
- Các labo (labo Vi sinh, labo Hoá sinh, labo Huyết học, labo Giải phẫu bệnh);
- Phòng máy;
- Chuẩn bị môi trường, chuẩn bị mẫu và hoá chất;
- Các phòng chức năng theo chuyên môn của từng khoa (phòng trữ máu, mổ xác...);
- Kho vật phẩm, kho dụng cụ;
- Rửa, tiệt trùng.
5.8.4.8. Khu vực phụ trợ dành cho hoạt động của nhân viên, gồm các bộ phận :
- Sảnh đón tiếp, nhận/trả kết quả;
- Các phòng phụ trợ theo yêu cầu của từng khoa (nghỉ bệnh nhân, lấy mẫu);
- Hành chính, giao ban/đào tạo (phòng bác sỹ, kỹ thuật viên xét nghiệm...);
- Trưởng khoa;
- Kho (hoá chất, vật tư và thiết bị - dụng cụ y tế);
- Khu vệ sinh (tắm, rửa, thayđồ...).
5.8.4.9. Khoa xét nghiệm nằm trong khu kỹ thuật nghiệp vụ - nơi có các điều kiện môi trường tốt nhất đồng thời thuận lợi cho bệnh nhân nội và ngoại trú.
5.8.4.10. Giải pháp thiết kế tổ chức không gian trong khoa xét nghiệm phải đảm bảo các yêu cầu :
- Đảm bảo hoạt động độc lập của các labo;
- Giải pháp thiết kế kiến trúc theo mô đun thống nhất;
- Khu vực rửa, tiệt trùng và khu phụ trợ riêng biệt, dây chuyền hoạt động sạch, bẩn một chiều;
5.8.4.11. Yêu cầu diện tích đối với các khoa được quy định như sau :
a) Khoa Vi sinh : (xem hình L3- phụ lụcL)
Diện tích tối thiểu của các phòng chức năng khoa Vi sinh được quy định trong bảng 40.
Bảng 40. Diện tích tối thiểu của các phòng chức năng khoa Vi sinh
| TT | Tên phòng | Số giường | Ghi chú | |||
| Bệnh viện quận,huyện 50-200 giường | Quy mô 1 250-350 giường | Quy mô 2 400-500 giường | Quy mô 3 Trên 550 giường | |||
| Hạng III | Hạng III | Hạng II | Hạng I | |||
|
| Khu nghiệp vụ kỹ thuật |
|
|
|
|
|
| 1 | Xét nghiệm vi sinh | 30 | 40 | 52 | 70 |
|
| 2 | Phòng vô khuẩn | 9 | 9 | 9 | 9 | Lamina HOT |
| 3 | Chuẩn bị môi trường, mẫu | 18 | 18 | 24 | 32 |
|
| 4 | Phòng rửa/tiệt trùng | 12 | 12 | 18 | 24 |
|
|
| Khu phụ trợ |
|
|
|
|
|
| 5 | Trực + nhận/trả kết quả | 12 | 12 | 18 | 24 | Có thể kết hợp với các khoa xét nghiệm khác |
| 6 | Phòng lấy mẫu | 6 | 9 | 12 | 18 | Liền kề với phòng thủ tục |
| 7 | Kho chung | 12 | 18 | 24 | 36 | -nt- |
| 8 | Phòng Hành chính, giao ban đào tạo | 18 | 24 | 24 | 36 | Có thể kết hợp với các khoa xét nghiệm khác |
| 9 | Phòng trưởng khoa, không nhỏ hơn | 12 | 18 | 18 | 24 |
|
| 10 | Phòng Nhân viên, trực khoa, không nhỏ hơn | 12 | 18 | 24 | 36 |
|
| 11 | Phòng vệ sinh, thay đồ nhân viên | 2 x 9 | 2 x 12 | 2 x 18 | 2 x 34 | Có thể kết hợp với các khoa xét nghiệm khác |
b) Khoa Hoá sinh : (xem hình L2 phụ lục L)
Diện tích tối thiểu của các phòng chức năng khoa Hoá sinh được quy định trong bảng 41.
Bảng 41. Diện tích tối thiểu các phòng chức năng khoa Hoá sinh
| TT | Tên phòng | Số giường | Ghi chú | |||
| Bệnh viện quận,huyện 50-200 giường | Quy mô 1 250-350 giường | Quy mô 2 400-500 giường | Quy mô 3 Trên 550 giường | |||
| Hạng III | Hạng III | Hạng II | Hạng I | |||
|
| Khu nghiệp vụ kỹ thuật |
| ||||
| 1 | Xét nghiệm hoá sinh | 40 | 52 | 70 | 80 |
|
| 2 | Chuẩn bị | 18 | 24 | 32 | 36 |
|
| 3 | Phòng rửa/ tiệt trùng | 12 | 18 | 24 | 36 |
|
| 4 | Kỹ thuật phụ trợ | 12 | 18 | 24 | 36 |
|
| 5 | Kho hoá chất | 12 | 18 | 24 | 36 |
|
|
| Khu phụ trợ |
| ||||
| 6 | Trực + nhận/ trả kết quả | 12 | 18 | 24 | 36 | Có thể kết hợp với các khoa xét nghiệm khác |
| 7 | Phòng lấy mẫu | 6 | 9 | 12 | 18 | Liền kề với phòng thủ tục |
| 8 | Phòng hành chính, giao ban đào tạo | 18 | 24 | 32 | 36 |
|
| 9 | Phòng trưởng khoa, không nhỏ hơn | 12 | 18 | 18 | 24 |
|
| 10 | Phòng nhân viên | 12 | 18 | 24 | 36 |
|
| 11 | Kho chung | 12 | 18 | 18 | 24 |
|
| 12 | Phòng vệ sinh, thay đồ nhân viên | 2 x 9 | 2 x 12 | 2 x 18 | 2 x 24 | Có thể kết hợp với các khoa xét nghiệm khác |
c) Khoa Huyết học và truyền máu : (xem hình L4 phụ lục L)
Diện tích tối thiểu của các phòng chức năng Khoa Huyết học và truyền máu được quy định trong bảng 42.
Bảng 42. Diện tích tối thiểu các phòng chức năng khoa Huyết học và truyền máu
| TT | Tên phòng | Số giường | Ghi chú | |||
| Bệnh viện quận,huyện 50-200 giường | Quy mô 1 250-350 giường | Quy mô 2 400-500 giường | Quy mô 3 Trên 550 giường | |||
| Hạng III | Hạng III | Hạng II | Hạng I | |||
|
| Khu nghiệp vụ kỹ thuật |
| ||||
| 1 | Xét nghiệm huyết học và truyền máu | 40 | 52 | 70 | 80 |
|
| 2 | Phòng trữ máu | 12 | 18 | 24 | 36 |
|
| 3 | Phòng rửa/ tiệt trùng | 12 | 18 | 24 | 36 |
|
| 4 | Kho | 12 | 18 | 18 | 24 |
|
|
| Khu phụ trợ |
| ||||
| 5 | Trực + nhận/ trả kết quả | 18 | 24 | 24 | 36 | Có thể kết hợp với các khoa xét nghiệm khác |
| 6 | Phòng Hành chính giao ban đào tạo | 18 | 24 | 32 | 36 | -nt- |
| 7 | Phòng Trưởng khoa | 12 | 18 | 18 | 24 |
|
| 8 | Phòng nhân viên, trực khoa | 18 | 24 | 32 | 36 |
|
| 9 | Kho chung | 12 | 18 | 24 | 36 |
|
| 10 | Phòng vệ sinh, thay đồ nhân viên | 2 x 9 |
| 2 x 12 | 2 x 18 | Có thể kết hợp với các khoa xét nghiệm khác |
5.8.4.12. Khoa xét nghiệm phải đảm bảo điều kiện chiếu sáng theo yêu cầu cho từng khu vực, đảm bảo điều kiện nhìn rõ trong công tác xét nghiệm.
- Khu phụ trợ : chiếu sáng tự nhiên kết hợp chiếu sáng nhân tạo.
- Khu labo xét nghiệm : chiếu sáng nhân tạo.
5.8.4.13. Yêu cầu về độ rọi tối thiểu các phòng trong khoa xét nghiệm được quy định trong bảng 43.
Bảng 43. Yêu cầu về độ rọi tối thiểu
| Tên phòng | Độ rọi tối thiểu (lux) | Ghi chú |
| Sảnh, thủ tục, trả kết quả | 140 |
|
| Phòng hành chính, trưởng khoa, giao ban, đào tạo (bộ phận văn phòng) | 140 |
|
| Phòng vệ sinh, thay quần áo | 140 | Cửa sổ cao trên 1,8m |
| Phòng rửa tiệt trùng, kỹ thuật phụ trợ | 300 |
|
| Kho (dụng cụ, thiết bị, vật tư y tế và dược phẩm, đồ bẩn) | 140 | Tính toán đối với mặt phẳng thẳng đứng, cao trên 1,0m |
| Không gian labo, khu chuẩn bị môi trường, chuẩn bị mẫu | 750/300 | Điều khiển được 2 mức sáng |
| Hành lang, lối đi | 100 |
|
Chú thích : Độ rọi tối thiểu là lượng ánh sáng tối thiểu trên đơn vị diện tích (được tính toán đối với mặt phẳng ngang, cao trên 0,8m tính từ sàn).
5.8.4.14. Khoa xét nghiệm phải đảm bảo điều kiện thông gió, đáp ứng yêu cầu cho từng khu vực :
- Khu hành chính, phụ trợ sử dụng giải pháp thông gió tự nhiên;
- Khu vực sạch (labo, các phòng kỹ thuật) sử dụng giải pháp thông gió tự nhiên kết hợp thông gió nhân tạo;
- Lamina HOT sử dụng biện pháp điều hoà cục bộ, thông gió nhân tạo.
5.8.4.15. Các yêu cầu nhiệt độ, độ ẩm và luân chuyển không khí quy định trong bảng 44.
Bảng 44. Điều kiện vi khí hậu cho phép
| Tên phòng | Độ ẩm (%) | Nhiệt độ (°C) | Số lần luân chuyển khí /giờ | Ghi chú
|
| LAMINA HOT | £ 60 | 19 - 22 | 20 | Đảm bảo phòng sạch cấp* 10.000 - 100.000 |
| Khu vực sạch | £ 70 | 21 - 26 | 1 - 2 | Không áp dụng với các phòng thay đồ |
Chú thích : Theo FED 209B và 209D (Tiêu chuẩn Liên bang Hoa Kỳ):
(*) Cấp 1000 : + số hạt bụi có đường kính ³ 0,5mm trong 1foot khối (ft3) £ 1.000 hạt.
+ số hạt bụi có đường kính ³ 5,0mm trong 1foot khối (ft3) £ 7 hạt.
5.8.4.16. Khoa xét nghiệm phải được cấp đủ điện và liên tục 24h/ngày, đáp ứng yêu cầu chiếu sáng, sử dụng các thiết bị.
5.8.4.17. Hệ thống mạng cấp điện của khoa xét nghiệm phải đảm bảo các yêu cầu :
- Hệ thống điện cấp chiếu sáng phải độc lập với hệ thống điện cấp cho các thiết bị;
- Hệ thống thiết bị chiếu sáng phải đảm bảo đủ độ rọi tối thiểu theo yêu cầu;
- Hệ thống dây dẫn và thiết bị kiểm soát, cung cấp điện phải đảm bảo an toàn và phù hợp các thông số kỹ thuật (công suất, chất lượng...);
- Tiếp đất toàn bộ hệ thống.
5.8.4.18. Phải được cấp nước sạch, nước khử ion liên tục trong ngày đáp ứng cho yêu cầu hoạt động chuyên môn, sinh hoạt thông thường.
5.8.4.19. Phải có hệ thống thoát nước thải. Nước thải khi làm kỹ thuật độc hại và RIA phải được thu gom xử lý trước khi thoát ra hệ thống xử lý nước thải chung của bệnh viện
5.8.4.20. Chất thải sinh hoạt, y tế phải được tập trung, phân loại và chuyển tới bộ phận xử lý chung của bệnh viện tuân thủ theo quy định của quy chế quản lý chất thải y tế ban hành kèm theo Quyết định số 2575/1999/QĐ - BYT ngày 27/8/1999 của Bộ trưởng Bộ Y tế.
Chú thích : Các bộ phận của cơ thể khi làm sinh thiết, nghiên cứu cần phân loại, tiêu huỷ riêng trong điều kiện kỹ thuật thích hợp.
5.8.4.21. Khoa xét nghiệm phải có hệ thống kết nối thông tin liên lạc giữa các bộ phận, với các khoa khác trong bệnh viện và các cơ sở bên ngoài bằng hệ thống tổng đài, mạng máy tính nội bộ, truyền dữ liệu và hình ảnh.
5.8.4.22. Ngân hàng máu phải được bố trí thuận tiện với khối mổ, khoa hồi sức cấp cứu và phòng xét nghiệm huyết học.
Chú thích : Việc có lập ngân hàng máu hay không tuỳ thuộc vào phân cấp tuyến điều trị và quy mô của từng bệnh viện cụ thể.
5.8.4.23. Nội dung và diện tích các phòng trong ngân hàng máu được quy định trong bảng 45.
Bảng 45. Nội dung và diện tích các phòng trong ngân hàng máu
| Loại phòng | Diện tích theo quy mô (m2) | Ghi chú | |||
| Bệnh viện quận,huyện 50-200 giường | Quy mô 1 250-350 giường | Quy mô 2 400-500 giường | Quy mô 3 Trên 550 giường | ||
| Hạng III | Hạng III | Hạng II | Hạng I | ||
| 1. Chỗ đợi, đăng kí. | 9 - 12 | 12 - 16 | 16 - 20 | 16 - 20 | Có thể cùng với phòng xét nghiệm huyết học |
| 2. Phòng nghỉ của người cho máu | 9 - 12 | 12 - 16 | 16 - 20 | 16 - 20 |
|
| 3. Phòng khám và xét nghiệm huyết học | 6 - 9 | 9 - 12 | 12 - 15 | 12 - 20 | Phòng đệm từ 4 ¸ 6m2 |
| 4. Phòng lấy máu với phòng đệm | 18 - 24 | 24 - 36 | 36 - 42 | 36 - 42 |
|
| 5. Phòng trữ và phát máu |
|
|
|
|
|
| 6. Chỗ hấp, rửa khử trùng đồ dùng | 9 - 12 | 12 - 15 | 12 - 20 | 12 - 20 | Có thể chung với phòng xét nghiệm huyết học |
| 7. Phòng ngủ trực phòng trữ máu | 6 - 9 | 9 - 12 | 12 - 15 | 12 - 15 | Có thể kết hợp với trực của bệnh viện |
| 8. Phòng pha chế dung dịch chống đông máu | 6 - 9 | 6 - 9 | 6 - 9 | 6 - 9 | Có thể làm tại khoa dược |
Chú thích : Bệnh viện quy mô nhỏ (từ 50 đến 150 giường) Ngân hàng máu có thể đặt trong phòng xét nghiệm huyết học của khoa xét nghiệm.
5.8.4.24. Chỗ lấy máu và trữ máu phải riêng biệt, cần phải ngăn cách với các chỗ có đặt thiết bị gây hoặc truyền chấn động và tuyệt đối vô trùng.
Trường hợp quy mô lớn có triển khai làm các chế phẩm về máu, cần phải nêu trong báo cáo khả thi để thiết kế cho phù hợp.
5.8.5. Bộ phận y học thực nghiệm
Diện tích các phòng trong bộ phận y học thực nghiệm tính theo quy mô bệnh viện và được quy định trong bảng 46.
Bảng 46. Diện tích các phòng trong bộ phận y học thực nghiệm
| Loại phòng | Diện tích Quy mô (m2) | |||
| Bệnh viện quận,huyện 50-200 giường | Quy mô 1 250-350 giường | Quy mô 2 400-500 giường | Quy mô 3 Trên 550 giường | |
| Hạng III | Hạng III | Hạng II | Hạng I | |
| 1- Phòng mổ súc vật | 12 - 15 | 15 - 18 | 18 - 24 | 18 - 24 |
| 2- Phòng theo dõi súc vật | 15 - 18 | 15 - 18 | 15 - 18 | 15 - 18 |
| 3- Phòng chuẩn bị và để máy móc | 9 - 12 | 9 - 12 | 9 - 12 | 9 - 12 |
Chú thích : Trong trường hợp không có cơ sở nuôi súc vật thực nghiệm tại địa phương, bộ phận y học thực nghiệm cần có chỗ để nuôi súc vật thực nghiệm, đặt ở vị trí riêng biệt, thông thoáng không làm ảnh hưởng đến điều kiện vệ sinh, môi trường trong bệnh viện.
5.8.6. Khoa giải phẫu bệnh lý (Xem phụ lục N)
5.8.6.1. Chức năng :
- Khoa giải phẫu bệnh lý là cơ sở làm các xét nghiệm sinh thiết, tế bào học, khám nghiệm tử thi và siêu cấu trúc.
- Cơ sở hạ tầng của khoa phải thông thoáng, đủ ánh sáng, đủ nước sạch, có hệ thống thoát nước thải đến khu xử lý nước thải của bệnh viện.
5.8.6.2. Tổ chức :
- Khoa giải phẫu bệnh lý được tổ chức theo quy mô khám chữa bệnh tại các cơ sở y tế với quy mô 2, quy mô 3. Khoa giải phẫu bệnh lý được tổ chức theo chuyên ngành riêng để thực hiện các xét nghiệm sinh thiết, tế bào học, khám nghiệm tử thi chuyên sâu. Đây là các cơ sở kỹ thuật giải phẫu bệnh lý cao nhất trong địa bàn, đóng vai trò nghiên cứu khoa học và đào tạo cho tuyến dưới.
- Với quy mô 1 công tác giải phẫu bệnh lý được tổ chức tích hợp trong khoa xét nghiệm của bệnh viện.
5.8.6.3. Bố trí không gian :
- Được chia thành 02 khu vực.
- Khu vực 01 được tổ chức thành một labor xét nghiệm vị trí đặt gần các khoa xét nghiệm khác trong bệnh viện. Nhiệm vụ xét nghiệm sinh thiết, tế bào học… tổ chức không gian, yêu cầu kỹ thuật hạ tầng tương tự như một khoa xét nghiệm.
- Khu vực 02 thường được kết hợp với khu tang lễ. Nhiệm vụ giải phẫu bệnh, lưu giữ xác và làm các thủ tục mai táng, bộ phận này được bố trí độc lập, cuối hướng gió, có cổng riêng phục vụ tang lễ.
5.8.6.4. Diện tích tối thiểu của các phòng chức năng khoa giải phẫu bệnh được quy định trong bảng 47.
Bảng 47. Diện tích tối thiểu các phòng chức năng khoa giải phẫu bệnh
| TT | Tên phòng | Diện tích theo quy mô (m2) | Ghi chú | ||||
| Bệnh viện quận, huyện 50-200 giường | Quy mô 1 250-350 giường | Quy mô 2 400- 500 giường | Quy mô 3 Trên 550 giường | ||||
| Hạng III | Hạng III | Hạng II | Hạng I | ||||
| La bo giải phẫu bệnh | |||||||
| Khu nghiệp vụ kỹ thuật | |||||||
| 1 | Labo giải phẫu bệnh | 40 | 46 | 52 | 60 |
| |
| 2 | Phòng tối | 9 | 12 | 24 | 36 |
| |
| 3 | Phòng cắt, nhuộm bệnh phẩm | 12 | 18 | 24 | 36 |
| |
| 4 | Phòng chuẩn bị, pha chế hoá chất | 18 | 24 | 30 | 36 |
| |
| 5 | Phòng rửa, tiệt trùng | 12 | 12 | 18 | 24 |
| |
| 6 | Kho | 12 | 18 | 18 | 24 |
| |
| Khu phụ trợ | |||||||
| 7 | Lấy, xử lý bệnh phẩm | 9 | 12 | 18 | 24 |
| |
| 8 | Khoa học | 12 | 18 | 24 | 36 |
| |
| 9 | Phòng nhân viên, trực khoa | 18 | 24 | 30 | 36 |
| |
| 10 | Phòng Trưởng khoa | 12 | 18 | 18 | 18 |
| |
| 11 | Phòng vệ sinh, thay đồ nhân viên | 2x 9 | 2x 12 | 2 x 18 | 2x 24 | Có thể kết hợp với các khoa xét nghiệm khác | |
| 12 | Phòng tang lễ, (nếu có) | 36 | 48 | 48 | 54 | Tùy theo nhu cầu thực tế mà bố trí phòng này trong bệnh viện | |
| 13 | Phòng dịch vụ | 12 | 18 | 24 | 36 |
| |
| 14 | Phòng lưu tử thi | 12 | 18 | 18 | 24 |
| |
| 15 | Phòng khám nghiệm tử thi | 18 | 18 | 18 | 18 |
| |
| 16 | Phòng lưu trữ bệnh phẩm | 12 | 18 | 24 | 36 |
| |
| 17 | Kho | 12 | 18 | 24 | 36 |
| |
| 18 | Phòng rửa, tiệt trùng | 12 | 18 | 18 | 24 |
| |
| 19 | Phòng hành chính | 18 | 24 | 24 |
|
| |
5.8.6.5. Khoa giải phẫu bệnh lý phải bảo đảm các yêu cầu sau đây :
- Có cửa đi trực tiếp từ phòng để xác tới phòng mổ xác và tới phòng tang lễ (nếu có);
- Phòng để xác và mổ xác phải thông thoáng, có lưới ngăn và thiết bị chống ruồi chuột và côn trùng;
- Cửa sổ phải cao ít nhất là 1,6m tính từ mặt hè ngoài nhà. Nền của phòng để xác phải thấp hơn so với nền của các phòng xung quanh và hành lang là 20mm;
- Phải có giải pháp thoát nước bẩn từ nhà để xác tới hệ thống xử lý nước thải cục bộ của bệnh viện trước khi xả ra hệ thống thoát nước chung.
5.8.7. Khoa thăm dò chức năng (Xem phụ lục M)
5.8.7.1. Khoa thăm dò chức năng là khoa sử dụng các thiết bị y tế để kiểm tra chức năng các cơ quan trong cơ thể như : điện tim, điện não, điện cơ, lưu huyết não…
- Cơ sở làm việc phải vệ sinh sạch sẽ, việc quản lý các thiết bị y tế theo đúng quy chế quản lý và sử dụng vật tư, thiết bị y tế.
- Đáp ứng yêu cầu của các khoa lâm sàng và khoa khám bệnh.
5.8.7.2. Khoa thăm dò chức năng được tổ chức ở các bệnh viện quy mô 2 (từ 400 đến 500 giường)- bệnh viện hạng II và quy mô 3 (bệnh viện trên 550 giường)- bệnh viện hạng I. Bệnh viện quận, huyện không tổ chức không tổ chức khoa thăm dò chức năng.
5.8.7.3. Khoa thăm dò chức năng được bố trí trong khu kỹ thuật nghiệp vụ, ở địa điểm thuận tiện cho người bệnh có không gian thoáng mát.
5.8.7.4. Không gian được chia làm hai khu vực : đợi và khu kỹ thuật. Khu đợi tổ chức như phòng khám, khu kỹ thuật là nơi tổ chức không gian thăm dò chức năng như tim, não…, liền kề với kho thiết bị. Các yêu cầu về kỹ thuật hạ tầng (tiếp địa, cấp điện…) rất nghiêm ngặt đảm bảo tính chính xác của thiết bị.
5.8.7.5. Diện tích các phòng khám thăm dò chức năng được quy định trong bảng 48.
Bảng 48. Diện tích các phòng thăm dò chức năng
| Loại phòng | Diện tích Quy mô (m2) | |||
| Bệnh viện quận,huyện 50-200 giường | Quy mô 1 250-350 giường | Quy mô 2 400-500 giường | Quy mô 3 Trên 550 giường | |
| Hạng III | Hạng III | Hạng II | Hạng I | |
| 1. Phòng thăm dò chức năng tiêu hoá có chỗ thủ thuật vô khuẩn và chuẩn bị. |
| 30 - 36 | 40 - 48 | 40 - 48 |
| 2. Phòng thăm dò chức năng tiết niệu có chỗ thủ thuật vô khuẩn và chuẩn bị. |
| 30 - 36 | 40 - 48 | 40 - 48 |
| 3.Phòng thăm dò chức năng tim mạch |
| 18 - 24 | 24 - 36 | 24 - 36 |
| 4. Phòng điện não |
| 18 - 24 | 24 - 36 | 24 - 40 |
| 5. Phòng điện cơ |
| 18 - 24 | 24 - 36 | 24 - 40 |
| 6. Phòng lưu huyết não |
| 18 - 24 | 24 - 36 | 24 - 40 |
| 7. Phòng thăm dò chức năng hô hấp, do chuyển hoá cơ bản và cân đo |
| 18 - 24 | 24 - 36 | 24 - 36 |
| 8. Thận tiết niệu |
| 18 - 24 | 24 - 36 | 24 - 36 |
| 9. Thử, đo lượng đường máu và nước tiểu |
| 18 - 24 | 24 - 36 | 24 - 36 |
| 10. Thần kinh |
| 18 - 24 | 24 - 36 | 24 - 36 |
| 11. Dị ứng miễn dịch |
| 18 - 24 | 24 - 36 | 24 - 36 |
| 12. Hành chính khoa - sinh viên thực tập |
| 30 - 36 | 40 - 48 | |
Chú thích :
1) Nếu trong phòng thăm dò chức năng cần có chỗ làm thủ thuật thông tim thì phải nêu trong dự án khả thi.
2) Trường hợp căn bố trí thêm phòng thăm dò chức năng khác phải được Bộ Y tế chấp nhận và nêu rõ trong dự án khả thi.
3) Sơ đồ dây chuyền khoa thăm dò chức năng được minh hoạ trên hình M1, M2- phụ lục M.
4) Bệnh viện quy mô 50 ¸ 200 giường, không quy định, nếu do nhu cầu, cần được sự đồng ý của Bộ Y tế, Sở Y tế địa phương.
5.8.8. Khoa truyền máu
5.8.8.1. Quy định chung :
- Khoa truyền máu luôn luôn có đủ các nhóm máu dự trữ để phục vụ cho người bệnh cấp cứu.
- Truyền máu phải đảm bảo an toàn tuyệt đối.
- Truyền máu phải đúng chỉ định, càng hạn chế truyền máu càng tránh rủi ro cho người bệnh.
- Phải tổ chức vận động được nhiều người tự động hiến máu nhân đạo.
5.8.8.2. Tổ chức : Khoa truyền máu được tổ chức ở các bệnh viện quy mô 3 (bệnh viện trên 550 giường) - bệnh viện hạng I.
5.8.8.3. Bố trí không gian : Chia thành 03 khu vực chính :
- Khu vực lấy máu, xét nghiệm và phân loại.
- Khu vực bảo quản máu, phát máu.
- Khu vực hành chính, chương trình hiến máu.
5.8.8.4. Sơ đồ công năng khoa truyền máu xem hình M3 phụ lục M.
5.8.9. Khoa lọc máu.
5.8.9.1. Quy định chung :
- Lọc máu gồm các kỹ thuật : lọc màng bụng, thẩm thấu máu, siêu lọc máu, hấp thụ máu, thay máu, thay huyết tương được áp dụng trong điều trị suy thận cấp, suy thận mãn, suy gan cấp và ngộ độc.
- Thực hiện việc lọc máu cho người bệnh phải đúng chỉ định và đúng quy định kỹ thuật bệnh viện.
- Có đủ các phương tiện, dụng cụ phục vụ cho lọc máu. Việc sử dụng thiết bị phải dược thực hiện theo quy chế quản lý và sử dụng vật tư, thiết bị y tế.
- Phải đảm bảo vô khuẩn tuyệt đối, không để lây chéo giữa các người bệnh được lọc máu và viên chức lọc máu.
5.8.9.2. Tổ chức : Khoa truyền máu được tổ chức ở các bệnh viện quy mô 3 (bệnh viện trên 550 giường) - bệnh viện hạng I.
5.8.9.3. Bố trí không gian : Khoa lọc máu được tổ chức ở khối kỹ thuật nghiệp vụ. Tổ chức mặt bằng thuận tiện cho khám - lọc máu, đảm bảo dây chuyền công năng của khoa, phân chi thành hai khu vực chính sau :
- Khu vực kỹ thuật : phòng đặt thiết bị lọc máu, phòng khám bệnh, phòng chuẩn bị.
- Khu phụ trợ bao gồm : nơi tiếp đón bệnh nhân, không gian chờ bệnh nhân, phòng tạm nghỉ bệnh nhân, phòng rửa tiệt trùng thiết bị, phòng đặt thiết bị sử lý nước - dịch lọc, kho bảo quản thiết bị, phụ tùng, kho tiêu hao…
- Sơ đồ công năng khoa lọc máu xem hình M4- phụ lục M.
5.8.10. Khoa nội soi. (Xem hình M5, M6- phụ lục M)
5.8.10.1. Quy định chung :
- Khoa nội soi là nơi tiến hành các kỹ thuật, thủ thuật nội soi để chẩn đoán, điều trị bệnh bằng các phương tiện, thiết bị đưa vào bên trong cơ thể người bệnh.
- Công tác nội soi phải được thực hiện tại các buồng kỹ thuật đảm bảo về diện tích và kỹ thuật hạ tầng.
5.8.10.2. Tổ chức : Khoa nội soi được tổ chức ở các bệnh viện quy mô 2 (bệnh viện từ 400 đến 500 giường) - bệnh viện hạng II và quy mô 3 (bệnh viện trên 550 giường) - bệnh viện hạng I.
5.8.10.3. Bố trí không gian :
- Bố trí liên hoàn, hợp lý đảm bảo công tác chuyên môn, các không gian nội soi đảm bảo đủ rộng, các yêu cầu về vật liệu hoàn thiện, vô khuẩn như đối với phòng mổ.
- Đảm bảo về yêu cầu mức độ sạch, vô trùng theo yêu cầu.
- Bố trí ở khu kỹ thuật nghiệp vụ của bệnh viện, được chia làm hai khu vực : khu kỹ thuật và khu phụ trợ. Khu kỹ thuật bao gồm các phòng nội soi + thủ thuật, khu phụ trợ gồm các phòng chuẩn bị, rửa, tiệt trùng, kho và không gian đào tạo. Các yêu cầu về hoàn thiện và kỹ thuật hạ tầng (cấp điện, nước…) rất nghiêm ngặt tương đương như khoa phẫu thuật.
5.8.11. Khoa dược (Xem phụ lục F)
5.8.11.1. Chức năng :
- Lập kế hoạch, cung cấp và bảo quản số lượng, chất lượng thuốc thông thường và thuốc chuyên khoa, hóa chất, vật dụng y tế tiêu hao : bông, băng, cồn, gạc cho điều trị nội trú và ngoại trú, đáp ứng yêu cầu điều trị hợp lý.
- Kiểm tra, theo dõi việc sử dụng thuốc an toàn, hợp lý trong bệnh viện. Có thể thay thế thuốc cùng chủng loại.
- Tham gia quản lý kinh phí thuốc, thực hiện tiết kiệm đạt hiệu quả cao trong phục vụ người bệnh.
- Tham gia công tác nghiên cứu khoa học, thông tin về thuốc.
5.8.11.2. Tổ chức :
- Khoa dược được tổ chức theo từng quy mô khám chữa bệnh tại các cơ sở y tế, tuân thủ phân tuyến và quy định chuyên môn của từng tuyến.
5.8.11.3. Bố trí không gian :
- Được bố trí trong khối kỹ thuật nghiệp vụ, hiện nay do cơ chế mới không còn bộ phận tự sản xuất thuốc và pha các hoá chất, dịch truyền. Nhiệm vụ của khoa là dự trữ một số cơ thuốc nhỏ để cung ứng cho bệnh viện. Bộ phận bán thuốc lẻ, dụng cụ y tế phát triển kết hợp cùng với dịch vụ tổng hợp.
- Nội dung và diện tích các phòng trong khoa dược được quy định trong bảng 49.
5.8.11.4. Quầy phát thuốc tại phòng khám được thiết kế với diện tích quy định như sau :
- Bệnh viện quy mô từ 50 ¸ 250 giường : từ 9m2 ¸ 12m2;
- Bệnh viện quy mô trên 250 ¸ 500 giường : từ 12m2 ¸ 15m2;
- Bệnh viện quy mô trên 400 ¸ 500 giường : từ 15m2 ¸ 18m2;
- Bệnh viện quy mô trên 550 giường : từ 18m2 ¸ 24m2.
Tại các bệnh viện có quầy bán thuốc lẻ, phục vụ bệnh nhân ngoại trú với diện tích từ 9m2 ¸ 12m2.
Bảng 49. Diện tích các phòng trong khoa dược
| Nội dung thiết kế | Diện tích Quy mô (m2) | Ghi chú | |||
| Bệnh viện quận, huyện 50-200 giường | Quy mô 1 250-350 giường | Quy mô 2 400-500 giường | Quy mô 3 Trên 550 giường | ||
| Hạng III | Hạng III | Hạng II | Hạng I | ||
| A- Khu vực sản xuất |
| ||||
| 1- Phòng rửa hấp : |
| ||||
| - Chỗ thu chai lọ | 9 - 12 | 12 - 15 | 16 - 18 | 18 - 24 |
|
| - Chỗ ngâm, rửa | 15 - 18 | 18 - 24 | 18 - 24 | 18 - 24 |
|
| - Chỗ sấy, hấp | 6 - 9 | 9 - 12 | 12 - 15 | 15 - 18 |
|
| 2- Các phòng pha chế tân dược : |
| ||||
| - Phòng cất nước | 6 - 9 | 6 - 9 | 6 - 9 | 9 - 12 |
|
| - Phòng pha thuốc nước | 15 - 18 | 15 - 18 | 15 - 18 | 18 - 24 |
|
| - Phòng pha chế các loại thuốc khác | 6 - 9 | 6 - 9 | 9 - 12 | 12 - 18 |
|
| - Phòng kiểm nghiệm | 9 | 12 | 15 | 18 |
|
| - Phòng soi dán nhãn | 9 - 12 | 9 - 12 | 9 - 12 | 9 - 12 |
|
| 3- Các phòng bào chế tân, đông dược : |
| ||||
| - Phòng chứa vật liệu tươi | 18 - 24 | 24 - 30 | 24 - 30 | 30 - 36 | Có chỗ chế biến |
| - Chỗ ngâm, rửa, xát | - | - | - | - | |
| - Chỗ hong, phơi , sấy | - | - | - | - | Có chỗ phơi ngoài trời |
| 4- Phòng chế dược liệu khô : |
| ||||
| - Bào chế | - | - | - | - |
|
| - Xay tán | 6 - 9 | 6 - 9 | 9 - 12 | 12 - 15 | Bố trí riêng |
| - Luyện hoàn, đóng gói, bốc thuốc | 15 - 18 | 18 - 24 | 24 - 30 | 30 - 36 |
|
| - Bếp sắc thuốc, nấu cao | 6 - 9 | 6 - 9 | 9 - 12 | 12 - 15 |
|
| - Kho thành phẩm tạm thời | 6 - 9 | 6 - 9 | 9 - 12 | 12 - 15 |
|
| B- Khu vực bảo quản, cấp phát |
| ||||
| 1- Quầy cấp phát : |
| ||||
| - Chỗ đợi | 4 - 6 | 4 - 6 | 4 - 6 | 6 - 9 |
|
| - Quầy phát thuốc | 15 - 18 | 15 - 18 | 15 - 18 | 18 - 24 |
|
| 2- Kho lẻ | - | - | - | - |
|
| 3- Kho thuốc chính | 15 - 18 | 18 - 24 | 18 - 24 | 24 - 28 |
|
| 4- Kho - phòng lạnh | 4 - 6 | 4 - 6 | 6 - 9 | 12 - 15 |
|
| 5- Kho bông băng, dụng cụ y tế | 15 - 18 | 18 - 24 | 24 - 30 | 30 - 36 |
|
| 6- Kho dự trữ dụng cụ y tế | 15 - 18 | 15 - 18 | 18 - 24 | 24 - 30 | Có chỗ kiểm, dỡ hàng |
| 7- Kho chất nổ | - | - | - | - |
|
| 8- Kho chất cháy | - | - | - | - |
|
| 9- Kho phế liệu | 6 - 9 | 9 - 12 | 9 - 12 | 12 - 15 | Để bên ngoài kho |
| C- Các phòng hành chính, sinh hoạt |
| ||||
| 1- Phòng trưởng khoa | 9 - 12 | 9 - 12 | 12 - 15 | 15 - 18 |
|
| 2- Phòng thống kế, kế toán | 9 - 12 | 9 - 12 | 12 - 15 | 18 - 24 |
|
| 3- Phòng sinh hoạt | 9 - 12 | 12 - 15 | 15 - 18 | 18 - 24 |
|
| 4- Phòng thay quần áo | Xem bảng 18 | ||||
| 5- Khu vệ sinh | Xem điều 5.6.4 | ||||
5.9. Khối hành chính quản trị và dịch vụ tổng hợp (Xem phụ lục P).
5.9.1. Khối hành chính quản trị và dịch vụ tổng hợp gồm các khoa phòng sau : phòng kế hoạch tổng hợp; phòng y tá (điều dưỡng); phòng chỉ đạo tuyến (về công tác quản lý bệnh viện và chuyên môn); phòng vật tư thiết bị y tế; phòng hành chính quản trị - tiếp nhận; phòng tổ chức cán bộ; phòng tài chính - kế toán; phòng thư viện - thông tin điện tử thống kê và khoa dinh dưỡng; phòng lưu trữ.
5.9.2. Khối hành chính, quản trị và dịch vụ tổng hợp phải riêng biệt nhưng cần liên hệ thuận tiện với khối nghiệp vụ và các đơn nguyên điều trị, nhưng không được làm cản trở đến dây chuyền chữa bệnh và ảnh hưởng đến sự yên tĩnh cũng như vệ sinh môi trường.
5.9.3. Diện tích các phòng hành chính, quản trị được qui định trong bảng 50.
Bảng 50. Diện tích các phòng chức năng trong bệnh viện đa khoa
| Loại phòng | Số giường | |||
| Bệnh viện quận,huyện 50-200 giường | Quy mô 1 250-350 giường | Quy mô 2 400-500 giường | Quy mô 3 Trên 550 giường | |
| Hạng III | Hạng III | Hạng II | Hạng I | |
| 1. Phòng giám đốc bệnh viện - Phòng khách | 12 - 15 12 - 15 | 12 - 15 12 - 18 | 15 - 15 15 - 18 | 18 - 24 18 – 24 |
| 2. Phòng phó giám đốc bệnh viện | 12 – 15 | 2 x (9 – 12) | 2 x (9 – 12) | 2 x (9 – 12) |
| 3. Tổ chức cán bộ, Đảng ủy | 9 – 12 | 9 – 12 | 12 – 15 | 15 – 18 |
| 4. Đoàn thể quần chúng | 6 – 9 | 9 – 12 | 9 – 12 | 12 – 15 |
| 5. Hành chính | 15 – 18 | 15 – 18 | 18 – 24 | 24 – 36 |
| 6. Tổng đài | 6 – 9 | 6 – 9 | 6 – 9 | 9 – 12 |
| 7. Quản trị | 12 – 15 | 12 – 15 | 15 – 18 | 18 – 24 |
| 8. Tài vụ kế toán | 12 – 15 | 12 – 15 | 15 – 18 | 18 – 24 |
| 9. Kế hoạch, tổng hợp | 12 – 15 | 15 – 18 | 18 – 20 | 20 – 24 |
| 10. Lưu trữ | 9 – 12 | 12 – 15 | 15 – 18 | 18 – 24 |
| 11. Thư viện | 15 – 18 | 15 – 18 | 18 – 24 | 24 – 36 |
| 12. Phòng y tá điều dưỡng | 12 – 15 | 15 – 18 | 18 – 24 | 24 – 36 |
| 13. Phòng chỉ đạo tuyến | 9 – 12 | 12 – 15 | 15 – 18 | 18 – 24 |
| 14. Phòng vật tư, thiết bị y tế | 9 – 12 | 12 – 15 | 30-36 | 36-48 |
| 15. Trung tâm thông tin-điện tử (chỉ bố trí ở những bệnh viện lớn hoặc nhỏ mà có nhu cầu nghiên cứu, học tập, nhất là ở bệnh viện thuộc các trường y) | 12 | 18 | 15 – 18 | 18 – 24 |
| 16. Phòng y vụ | 15 | 24 | 30 | 36 |
| 17. Phòng họp giao ban | 18 | 24 | 39 | 42 |
Chú thích : Nếu giám đốc bệnh viện và phó giám đốc bệnh viện kiêm công tác điều trị thì diện tích phòng làm việc được tăng thêm từ 4m2 ¸ 6m2.
5.9.4. Trong trường hợp cần thiết kế phòng họp lớn, diện tích phòng họp được tính như sau : 0,8m2 cho một chỗ, với số chỗ từ 40% ¸ 60% tổng số nhân viên trong bệnh viện.
5.9.5. Khoa dinh dưỡng trong bệnh viện đa khoa phải có đầy đủ các bộ phận để đảm bảo cung cấp thực phẩm và thức ăn an toàn, phù hợp cho người bệnh. (xem hình P1- phụ lục P)
5.9.6. Vị trí bếp bệnh viện trong khoa dinh dưỡng phải đảm bảo các yêu cầu sau đây :
- Thuận tiện cho việc vận chuyển thức ăn theo đường ngắn nhất tới các buồng bệnh;
- Thuận tiện cho việc vận chuyển thực phẩm vào và đưa rác ra ngoài.
Nội dung và diện tích thiết kế nhà bếp được quy định trong bảng 51.
5.9.7. Chức năng :
- Khoa dinh dưỡng của bệnh viện có nhiệm vụ tổ chức phục vụ ăn uống cho người bệnh, bảo đảm về số lượng, chất lượng, an toàn vệ sinh thực phẩm và qản lý chặt chẽ chế độ ăn uống theo bệnh lý.
- Cơ sở của Khoa dinh dưỡng được xây dựng theo tiêu chuẩn bảo đảm vệ sinh, thoáng mát, thuận tiện cho việc phục vụ người bệnh.
- Tham gia đào tạo cánbộ chuyên khoa, nghiên cứu khoa học về các chế độ dinh dưỡng phục vụ người bệnh.
5.9.8. Khoa dinh dưỡng được tổ chức theo từng quy mô khám chữa bệnh tại các cơ sở y tế, tuân thủ phân tuyến và quy định chuyên môn của từng tuyến.
5.9.9. Khoa dinh dưỡng là một bộ phận của khu kỹ thuật nghiệp vụ, chức năng là nghiên cứu chế độ dinh dưỡng của từng chuyên khoa, kết hợp quản lý vệ sinh an toàn thực phẩm. Các chức năng khác được phát triển tại khu dịch vụ tổng hợp. Vị trí đảm bảo thuận tiện cho việc vận chuyển thực phẩm và đưa rác ra ngoài. Mặt bằng bố trí cho gọn nhẹ hợp lý do hiện tại nguyên liệu đầu vào được sơ chế và cung ứng tại chỗ, bếp nấu dùng nhiên liệu sạch. Dây chuyền minh họa xem hình P2- phụ lục P.
Bảng 51. Diện tích các bộ phận trong nhà bếp
| Nội dung thiết kế | Số giường | Ghi chú | |||||
| Bệnh viện quận,huyện 50-200 giường | Quy mô 1 250-350 giường | Quy mô 2 400-500 giường | Quy mô 3 Trên 550 giường | ||||
| Hạng III | Hạng III | Hạng II | Hạng I | ||||
| A. Khu vực sản xuất |
| ||||||
| 1. Khâu gia công thô: |
|
|
|
|
| ||
| - Sân sản xuất | 18 - 24 | 24 - 36 |
| ||||
| - Bể nước | 6 - 8 | 10 - 12 |
| ||||
| 2. Chỗ gia công kỹ : | 12 - 18 | 18 - 24 | 15 - 18 | 24 - 45 |
| ||
| - Chỗ bếp nấu | 18 - 24 | 24 - 30 | 27 - 30 | 30 - 45 |
| ||
| - Chỗ để bình gas | 6 - 9 | 9 - 18 | 12 - 15 | 18 - 24 |
| ||
| - Chỗ đun nước | 6 - 9 | 6 - 15 | 9 - 12 | 15 - 18 |
| ||
| - Chỗ pha sữa và phân phối sữa | 6 - 12 | 9 - 15 | 12 - 15 | 15 - 18 |
| ||
| 3. Chỗ phân phối: |
| ||||||
| - Chỗ thái chín, giao thức ăn | 15 - 18 | 18 - 24 | 18 - 21 | 24 - 45 |
| ||
| - Chỗ nhận thức ăn xếp xe đẩy thức ăn | 15 - 18 | 18 - 36 | 15 - 18 | 36 - 45 |
| ||
| - Kho lẻ với tủ lạnh | 12 - 15 | 15 - 24 | 12 - 15 | 24 - 36 |
| ||
| - Chỗ rửa bát đĩa, xe đẩy | 18 - 24 | 24 - 36 | 12 - 15 | 36 - 45 |
| ||
| B. Khu vực kho và hành chính | Tuỳ theo qui mô bệnh viện có thiết kế thêm kho lạnh, chỗ để tủ lạnh | ||||||
| 1. Nhà kho : | |||||||
| - Chỗ nhập xuất kho | 12 - 15 | 15 - 18 | 9 - 12 | 18 - 24 | |||
| - Lương thực | 15 - 18 | 18 - 24 | 12 - 15 | 24 - 45 | |||
| - Thực phẩm khô gia vị | 12 - 15 | 15 - 24 | 12 - 15 | 24 - 36 | |||
| - Bát đĩa đồ dùng | 12 - 15 | 15 - 24 | 9 - 12 | 24 - 36 | |||
| 2. Các phòng hành chính, sinh hoạt : |
| ||||||
| - Phòng quản lý, bác sỹ, y sĩ dinh dưỡng, thống kê kế toán | 12 - 15 | 15 - 24 | 15 - 18 | 24 - 36 |
| ||
| - Phòng sinh hoạt | 15 - 18 | 18 - 24 | 12 - 15 | 24 - 36 |
| ||
| - Phòng trực và nghỉ | 12 | 12 - 15 | 9 - 12 | 18 - 24 |
| ||
| - Phòng thay quần áo | xem bảng 18 | ||||||
| - Khu vệ sinh | xem điều 5.6.4 | ||||||
Chú thích : Hiện nay, nếu điều kiện kinh tế cho phép có thể áp dụng hệ thống nấu bếp bằng ga, điện với những thiết bị và dụng cụ nấu hiện đại đồng bộ. Khi đó cần phải dựa vào số liệu trong Catalog của nhà sản xuất thiết bị dụng cụ đun nấu để xác định diện tích không gian và thiết kế kỹ thuật chi tiết.
5.9.10. Trong trường hợp phải phục vụ cho cả nhân viên trực và người nhà bệnh nhân, bệnh viện được thiết kế thêm bếp :
- Bệnh viện có qui mô nhỏ : diện tích từ 4m2 ¸ 6m2;
- Bệnh viện qui mô trung bình và lớn : diện tích từ 6m2 ¸ 9m2;
- Phòng ăn từ 2 ¸ 3 đợt/ca, với 0,8m2 ¸ 1m2/chỗ cho nhân viên, 0,7m2 ¸ 0,8m2/chỗ cho người nhà.
5.10. Khối kỹ thuật hậu cần và công trình phụ trợ.
5.10.1. Diện tích các gian kho và xưởng được qui định trong bảng 52.
Bảng 52. Diện tích các gian kho và xưởng
| Loại phòng | Số giường | |||
| Bệnh viện quận,huyện 50-200 giường | Quy mô 1 250-350 giường | Quy mô 2 400-500 giường | Quy mô 3 Trên 550 giường | |
| Hạng III | Hạng III | Hạng II | Hạng I | |
| 1. Kho dự trữ đồ vải, văn phòng phẩm, đồ dùng sinh hoạt của bệnh nhân, nhân viên. | 36 - 45 | 45 - 65 | 27 - 30 | 65 - 80 |
| 2. Kho đồ cũ, bao bì. | 24 - 36 | 36 - 45 | 15 - 18 | 45 - 60 |
| 3. Xưởng sửa chữa nhỏ : | 24 - 36 |
|
|
|
| - Đồ điện | - | 15 - 18 | 12 - 15 | - |
| - Đồ kim loại | - | 15 - 24 | - | 24 - 36 |
| - Thiết bị nước | - | 18 - 24 | - | - |
| - Đồ gỗ | - | - | - | - |
| - Thiết bị nhà cửa | - | 18 - 24 | 15 - 18 | 24 - 36 |
Chú thích : Thông thường trong bệnh viện đa khoa, chỉ tiêu tính toán kho vật tư, thiết bị y tế thông thường và kho chăn màn, đệm lấy : 20m2/100giường.
5.10.2. Diện tích nhà để xe ô tô của bệnh viện, được qui định như sau :
- Gian đỗ xe : từ 15m2 ¸ 18 m2/xe;
- Gian để phụ tùng, dầu mỡ : 9m2 ¸ 12m2/xe;
- Phòng nghỉ trực của lái xe : 9m2 ¸ 12m2.
Chú thích :
1) Tối thiểu mỗi bệnh viện đa khoa phải có 1 xe cứu thương, 1 xe tải lớn và 1 xe tải nhỏ.
2) Bệnh viện qui mô trên 400 giường cần có thêm cầu rửa xe.
5.10.3. Trong bệnh viện đa khoa cần thiết kế bãi để xe máy, xe đạp, xe ô tô của khách.
- Chỗ để xe ô tô : tính với tiêu chuẩn diện tích là 25m2/xe;
- Chỗ để xe môtô, xe máy : tính với tiêu chuẩn diện tích từ 2,5m2/xe ¸ 3,0m2/xe và xe đạp với tiêu chuẩn diện tích : 0,9m2/xe.
5.10.4. Trong bệnh viện đa khoa có bố trí xưởng sửa chữa máy, điện, nước nhỏ trong đó có một máy phát điện dự phòng và một tổ sửa chữa máy thông dụng.
5.11. Khoa chống nhiễm khuẩn và xử lý chất thải (xem minh họa hình N2- phụ lục N).
5.11.1. Bộ phận giặt là : Nội dung và diện tích thiết kế nhà giặt tuỳ theo quy mô bệnh viện được quy định trong bảng 53.
Bảng 53. Diện tích thiết kế bộ phận giặt là theo qui mô bệnh viện
| Loại phòng | Số giường | |||
| Bệnh viện quận,huyện 50-200 giường | Quy mô 1 250-350 giường | Quy mô 2 400-500 giường | Quy mô 3 Trên 550 giường | |
| Hạng III | Hạng III | Hạng II | Hạng I | |
| 1. Chỗ kiểm nhận | 6 – 9 | 9 – 12 | 12 – 156 | 15 – 18 |
| 2. Gian giặt có : |
|
|
|
|
| - Bể ngâm thô | 4 – 6 | 6 – 9 | 9 – 12 | 12 – 15 |
| - Bể ngâm tẩy | 4 – 6 | 6 – 9 | 9 – 12 | 12 – 15 |
| - Chỗ đặt máy giặt, vắt, sấy | 20 – 24 | 24 – 36 | 36 – 28 | 48 – 54 |
| 3. Phòng phơi trong nhà | 20 – 24 | 24 – 36 | 36 – 28 | 48 – 54 |
| 4. Sân phơi | 36 – 48 | 48 – 54 | 54 – 60 | 60 – 72 |
| 5. Phòng là gấp | 12 – 15 | 12 – 15 | 15 – 18 | 18 -24 |
| 6. Khâu vá | 6 – 9 | 6 – 9 | 9 – 12 | 12 – 15 |
| 7. Kho cấp phát đồ sạch | 6 – 9 | 9 – 12 | 12 – 15 | 15 – 18 |
| 8. Chỗ thay quần áo | 4 – 6 | 4- 6 | 6 – 9 | 9 – 12 |
| 8. Chỗ nghỉ nhân viên | 9 – 12 | 12-15 | 15 – 18 | 18 – 24 |
| 9. Khu vệ sinh | xem điều 5.6.4 | |||
Chú thích : Trong điều kiện cho phép, nếu sử dụng máy giặt, máy vắt, hấp liên hoàn thì khi thiết kế cần dựa vào Catalog loại máy và công suất để tính diện tích không gian của phòng giặt – vắt – sấy hấp.
5.11.2. Bộ phận thu gom rác - chất thải - vệ sinh môi trường.
a) Công tác vệ sinh môi trường, thu gom và xử lý chất thải trong bệnh viện đa khoa bao gồm :
- Thu gom rác, hệ thống thu và xử lý bệnh phẩm;
- Hệ thống xử lý nước thải bệnh viện.
b) Lò thiêu hủy bông băng và một số chất thải rắn loại nhỏ được thiết kế tuỳ theo yêu cầu từng bệnh viện, chú ý đặt cuối hướng gió và không gây ô nhiễm cho khu vực lân cận.
c) Vị trí thu gom rác thải phải ở cuối hướng gió, cách xa khu điều trị. Đường lấy rác thải ra ngoài công trình phải độc lập lối ra vào chính.
d) Chất thải y tế phải được tập trung, phân loại và chuyển tới bộ phận xử lý chung của bệnh viện tuân thủ theo quy định của Quy chế quản lý chất thải y tế ban hành kèm theo quyết định số 2575/1999/QĐ - BYT ngày 27/08/1999 của Bộ trưởng Bộ Y tế.
5.11.3. Trung tâm khử trùng thiết bị và dụng cụ y tế.
Trạm khử trùng là nơi tẩy trùng, vô trùng các dụng cụ, thiết bị y tế để tái sử dụng.
Trạm khử trùng tập trung được thiết kế với các bộ phận :
- Gian lò hơi : diện tích tuỳ theo thiết bị;
- Gian giao nhận : từ 9m2 ¸ 12m2.
5.11.4. Nhà thường trực (bảo vệ).
Chỉ tiêu tính toán nhà thường trực, bảo vệ được quy định như sau :
- 9 m2 ¸ 12 m2 cho bệnh viện có quy mô từ 50 đến 200 giường;
- 15 m2 ¸ 18m2 cho bệnh viện có quy mô từ 250 đến 350 giường;
- 18 m2 ¸ 21m2 cho bệnh viện có quy mô từ 400 đến 500 giường.
5.11.5. Khu vực dịch vụ tổng hợp.
a) Trong bệnh viện đa khoa cần bố trí các quầy điện thoại công cộng với diện tích 6m2/quầy, quầy thu đổi ngoại tệ và quầy tạp hoá… để phục vụ khách và người nhà bệnh nhân.
b) Nội dung và diện tích các bộ phận công trình trong khối dịch vụ tổng hợp xem trong bảng 54.
Bảng 54. Nội dung và diện tích các bộ phận công trình trong khối dịch vụ tổng hợp
| Loại phòng | Số giường | |||
| Bệnh viện quận,huyện 50-200 giường | Quy mô 1 250-350 giường | Quy mô 2 400-500 giường | Quy mô 3 Trên 550 giường | |
| Hạng III | Hạng III | Hạng II | Hạng I | |
| 1. Quầy giải khát | 9 – 12 | 12 – 15 | 15 – 18 | 18 – 24 |
| 2. Quầy tạp hoá | 9 – 12 | 12 – 15 | 15 – 18 | 18 – 24 |
| 3. Quầy sách báo | 6 – 9 | 9 – 12 | 12 – 15 | 15 – 18 |
| 4. Nhà trọ cho người nhà trông nom bệnh nhân | Tính theo tỷ lệ bệnh nhân cấp cứu + bệnh nhân nặng Tiêu chuẩn diện tích 6m2/giường trọ | |||
| 5. Cửa hàng ăn uống (nếu có) | Lấy theo tiêu chuẩn nhà ăn | |||
6. Yêu cầu thiết kế hệ thống kỹ thuật.
6.1. Yêu cầu về phòng cháy, chữa cháy
Khi thiết kế bệnh viện đa khoa phải đảm bảo các yêu cầu về phòng cháy chữa cháy theo các tiêu chuẩn hiện hành với các nội dung sau :
- Bậc chịu lửa công trình;
- Khoảng cách an toàn;
- Quy mô, số tầng (phụ thuộc vào bậc chịu lửa);
- Lối thoát nạn;
- Các giải pháp phòng chống cháy trong các hệ thống kỹ thuật điện, nước, chiếu sáng, thông gió, chống sét...
- Các giải pháp báo cháy và chữa cháy.
Chú thích : Trong trường hợp cần có lối thoát nạn, phương tiện thoát nạn cho người tàn tật và các giải pháp phòng chống cháy cho các kho có chứa các hoá chất có nhiều nguy hiểm cháy nổ, độc hại cần phải được ghi rõ trong Báo cáo kinh tế kỹ thuật và phải được sự thoả thuận của Cục Cảnh sát Phòng cháy chữa cháy - Bộ Công an.
6.2. Yêu cầu về chiếu sáng tự nhiên và thông gió
6.2.1. Trong bệnh viện phải triệt để chiếu sáng tự nhiên và thông gió tự nhiên cho các phòng chủ yếu. Hệ số chiếu sáng tự nhiên của các gian phòng trong bệnh viện được lấy theo phụ lục A của tiêu chuẩn này.
6.2.2. Hướng mở cửa sổ các gian phòng trong bệnh viện xem trong phụ lục B của tiêu chuẩn này.
6.2.3. Trong bệnh viện nếu điều kiện cho phép cần bố trí điều hoà không khí cho các gian phòng sau:
- Phòng mổ (đại phẫu và hậu phẫu);
- Phòng đỡ đẻ và dưỡng nhi;
- Pha pha chế vô trùng;
- Phòng để máy có độ chính xác cao và kho thuốc quý;
- Phòng bệnh nhân trong khoa hồi sức cấp cứu.
6.2.4. Nhiệt độ tính toán, số lần hoặc thể tích trao đổi không khí trong các phòng xem trong phụ lục C của tiêu chuẩn này.
6.3. Yêu cầu về kỹ thuật điện - nước
Kỹ thuật điện
6.3.1. Bệnh viện phải được cung cấp điện đầy đủ cho chiếu sáng, sử dụng trang thiết bị y tế, thiết bị thông tin…
6.3.2. Bệnh viện phải có nguồn điện dự phòng và phải đảm bảo thường xuyên có điện cho các phòng và bộ phận sau :
- Phòng mổ, hậu phẫu, hồi sức cấp cứu, đẻ, dưỡng nhi;
- Tủ lạnh của khoa xét nghiệm;
- Phòng lấy máu và trữ máu của ngân hàng máu;
- Trạm bơm nước chữa cháy;
- Hệ thống chiếu sáng sự cố và chỉ dẫn lối thoát nạn;
- Thang máy đặc biệt để thoát người hoặc để chữa cháy.
6.3.3. Mạng điện trong bệnh viện phải bảo đảm các yêu cầu sau :
- Hệ thống chiếu sáng phải độc lập với hệ thống điện dùng cho máy và thiết bị có công suất lớn…;
- Phải dùng dây dẫn ruột đồng, không cho phép dùng dây dẫn ruột nhôm trong các phòng mổ, chuẩn bị mổ, các phòng vô trùng dây dẫn phải bịt kín.
6.3.4. Độ rọi tối thiểu (lux) của ánh sáng điện trong các phòng, bộ phận phải tuân theo tiêu chuẩn hiện hành “Chiếu sáng nhân tạo trong nhà và công trình dân dụng”.
6.3.5. Các phòng bệnh phải được trang bị hệ thống chuông gọi, chuông báo.
Cấp nước
6.3.6. Bệnh viện phải được cấp nước liên tục suốt ngày đêm cho sinh hoạt, chữa bệnh, chữa cháy. Tiêu chuẩn cấp nước cho bệnh viện được qui định trong “Tiêu chuẩn cấp nước bên trong - TCVN 4513 - 1988”.
6.3.7. Trong điều kiện cho phép, có thể thiết kế hệ thống cấp nước nóng nhưng phải thuyết minh trong Báo cáo kinh tế kỹ thuật đồng thời phải bảo đảm yêu cầu kĩ thuật và an toàn.
6.3.8. Bệnh viện phải có hệ thống cấp nước, thoát nước hoàn chỉnh. Phải thiết kế hệ thống xử lí nước thải cục bộ trước khi xả vào hệ thống thoát chung của thành phố. Tiêu chuẩn thoát nước cho bệnh viện được qui định trong “Tiêu chuẩn thoát nước bên trong - TCVN 4474 - 1987”.
Chú thích : Đối với nước mưa được phép thiết kế hệ thống cống, rãnh nối, có nắp đậy
6.4. Yêu cầu về công tác hoàn thiện
6.4.1. Bệnh viện phải được hoàn thiện với chất lượng cao về cả kết cấu nhà, nội thất và sân vườn.
Vị trí trồng cây, loại cây trồng, vị trí đặt ghế ngồi, bể nước, thảm có phải theo đúng yêu cầu của thiết kế.
6.4.2. Tường của các phòng có yêu cầu vệ sinh vô khuẩn phải được sử dụng các vật liệu phù hợp. Tường các loại phòng bệnh phải được quét sơn.
Sơn vôi trong các phòng phải đảm bảo :
- Màu dịu cho phòng bệnh nhân;
- Màu sáng cho phòng nghiệp vụ, sinh hoạt.
6.4.3. Sàn nền các phòng phải cọ rửa, khử trùng thường xuyên phải làm bằng vật liệu chống thấm, dễ cọ rửa.
Các phòng mổ, điều trị quang điện, xạ trị, X-quang phải tuân theo các yêu cầu về cách điện theo các tiêu chuẩn về an toàn sử dụng điện.
6.4.4. Đối với các phòng có sử dụng axít, sàn và mặt bàn xét nghiệm, chậu rửa và bể phải làm bằng vật liệu chống axít./.
–––––––––––––––––––––
PHỤ LỤC A
A1- Hệ số chiếu sáng tự nhiên của các gian phòng trong bệnh viện
| Loại phòng | Hệ số chiếu sáng tự nhiên tối thiểu (%) |
| 1- Phòng mổ, thay băng | 1,4 |
| 2- Phòng gây mê, chuẩn bị mổ, khử trùng, điều trị, đỡ đẻ, dưỡng nhi, nội soi, cân đo, khám bệnh | 1,0 |
| 3- Phòng bệnh nhân, tạm lưu, hậu phẫu, cách ly, nghỉ ngơi, giải trí, gia công chế biến, sản xuất của khoa dược, vật lý trị liệu, phòng làm thuốc cho bệnh nhân, sản phụ, rửa hấp dụng cụ, hành chính... | 0,7 |
| 4- Phòng X-quang, hành lang, khu vệ sinh, chỗ đợi, nhà xe, kho | 0,5 |
A2- hướng của cửa sổ các gian phòng chủ yếu trong bệnh viện
| Loại phòng | Hướng cửa sổ | ||
| Có lợi | Cho phép | Bất lợi | |
| Phòng mổ, nội soi, cân đo chính xác | Bắc | Lân cận Bắc trong khoảng 300 | Các hướng khác |
| Phòng khám, điều trị, thủ thuật, xét nghiệm, | Nam và Đông Nam | Bắc | Các hướng khác |
| Phòng bệnh nhân, giải trí | Nam | Đông Nam | Các hướng khác |
| Phòng phụ trợ, khu vực hành chính quản trị | Nam và Đông Nam | Tất cả các hướng trừ hướng bất lợi | Tây và lân cận Tây |
| Phòng thay quần áo, cầu thang, hành lang, khu vệ sinh, nơi thu hồi đồ bẩn | Tất cả các hướng | ||
A3- nhiệt độ yêu cầu, số lần trao đổi không khí
| Loại phòng | Nhiệt độ tính toán bên trong ( 0C ) | Số lần hoặc thể tích trao đổi không khí cho trong 1 giờ | |
| Thổi vào | Đẩy ra | ||
| 1- Phòng bệnh nhân (cho 1 giường) | 20 | 10 lần | 8 lần |
| 2- Phòng bệnh nhân nhi (cho 1 giường) | 22 - 26 | 10 lần | 8 lần |
| 3- Phòng sơ sinh thiếu tháng | 30 - 32 | 12 lần | 10 lần |
| 4- Phòng sơ sinh bình thường (cho 1 giường) | 22 - 26 | 10 lần | 8 lần |
| 5- Phòng mổ, đỡ đẻ | 22 - 26 | 10 lần | 8 lần |
| 6- Phòng khám bệnh, điều trị, nghiệp vụ (dược, X-quang) | 18 - 20 | 1 - 3 lần | 3 - 5 lần |
| 7- Phòng giải phẫu bệnh lý | 16 - 18 | 1 lần | 1 lần |
PHỤ LỤC B

Hình B1. Sơ đồ phân khu chức năng Bệnh viện đa khoa

Hình B2. Sơ đồ phân khu và dây chuyền công năng khoa khám chữa bệnh ngoại trú

Hình B3. Sơ đồ khám và chữa bệnh nội khoa

Hình B4. Mặt bằng minh họa khoa khám và chữa bệnh nội khoa

Hình B5. Sơ đồ khám và chữa bệnh ngoại khoa

Hình B6. Mặt bằng minh họa khoa khám và chữa bệnh ngoại khoa

Hình B7. Sơ đồ khám và điều trị RHM

Hình B8. Mặt bằng minh họa khoa khám và điều trị RHM

Hình B9. Sơ đồ khám và điều trị RHM

Hình B10. Mặt bằng minh họa khám và điều trị RHM

Hình B11. Phòng đo thính lực khoa tai mũi họng

Hình B12. Sơ đồ khám và điều trị mắt

Hình B13. Mặt bằng minh họa khám và điều trị mắt
PHỤ LỤC C

Hình C1. Sơ đồ dây chuyền khoa điều trị nội trú

Hình C2. Sơ đồ phân khu chức năng các khoa điều trị nội trú

Hình C3. Mặt bằng minh họa một đơn nguyên điều trị nội trú

Hình C4. Sơ đồ dây chuyền khoa điều trị nội trú sản - phụ khoa

Hình C5. Minh hoạ đơn nguyên điều trị nhi sơ sinh

Hình C6. Mô hình phòng điều trị răng hàm mặt

Hình C7. Sơ đồ nha khoa chỉnh hình răng

Hình C8. Sơ đồ dây chuyền công năng khoa y học cổ truyền
PHỤ LỤC D

Hình D1. Sơ đồ phân khu chức năng khoa Vật lý trị liệu phục hồi chức năng

Hình D2. Mặt bằng minh họa Vật lý trị liệu phục hồi chức năng

Hình D3. Mặt bằng khoa vật lý trị liệu - phục hồi chức năng 250 giường

Hình D4. Phòng vật lý trị liệu quy mô 400 giường

Hình D5. Sơ đồ mặt bằng điển hình phòng vật lý trị liệu quy mô trên 550 giường

Hình D6. Khu vực tập TDTT các nhóm phục hồi chức năng

Hình D7. Sơ đồ bộ phận thủy trị liệu
PHỤ LỤC E

Hình E1. Phòng sử dụng thiết bị Cobalt - 60

Hình E2. Sơ đồ công năng khoa ung bướu - y học hạt nhân
PHỤ LỤC F

Hình F1. Sơ đồ phân khu chức năng khoa dược

Hình F2. Mặt bằng minh học khoa dược
PHỤ LỤC G

Hình G1. Sơ đồ hoạt động cấp cứu ngoài sảnh

Hình G2. Tổ chức sơ đồ cấp cứu

Hình G3. Khoa cấp cứu quy mô 1 (BVĐK từ 250 đến 350 giường)

Hình G4. Khoa cấp cứu quy mô 2 (BVĐK từ 400 đến 500 giường)

Hình G5. Khoa cấp cứu quy mô 3 (BVĐK trên 550 giường)

Hình G6. Khoa điều trị tích cực và chống độc quy mô 1 (BVĐK từ 250 đến 350 giường)

Hình G7. Khoa điều trị tích cực và chống độc quy mô 2 (BVĐK từ 400 đến 500 giường)

Hình G8. Khoa điều trị tích cực và chống độc quy mô 3 (BVĐK trên 550 giường)
PHỤ LỤC H
CÁC HÌNH VẼ MINH HỌA KHOA PHẪU THUẬT - GÂY MÊ HỒI SỨC

Hình H1. Sơ đồ dây chuyền phòng mổ

Hình H2. Phòng mổ


Hình H5. Quy mô 1 (bệnh viện đa khoa 250 đến 350 giường)

Hình H6. Quy mô 1 (bệnh viện đa khoa 250 đến 350 giường)

Hình H7. Quy mô 2 (bệnh viện đa khoa 400 đến 500 giường)

Hình H8. Quy mô 2 (bệnh viện đa khoa 400 đến 500 giường)
PHỤ LỤC K
CÁC HÌNH VẼ MINH HOẠ CHO KHOA CHẨN ĐOÁN HÌNH ẢNH

Hình K1. Sơ đồ dây chuyền khoa chẩn đoán hình ảnh

Hình K2.

Hình K3.

Hình K4. Phòng CT-SCANNER

Hình K5. Phòng MRI

Hình K6. Phòng tối, phòng phân loại

Hình K7. Quy mô 1 (bệnh viện đa khoa 250 đến 350 giường)

Hình K8. Quy mô 2 (bệnh viện đa khoa 400 đến 500 giường)

Hình K9. Quy mô 3 (bệnh viện đa khoa trên 550 giường)
PHỤ LỤC L

Hình L1. Sơ đồ dây chuyền công năng khoa xét nghiệm

Hình L2. Sơ đồ dây chuyền khoa hóa sinh

Hình L3. Sơ đồ dây chuyền khoa vi sinh

Hình L4. Sơ đồ dây chuyền khoa huyết học truyền máu

Hình L5. Khoa vi sinh
Bệnh viện đa khoa từ 400 - 500 giường

Hình L6. Khoa hóa sinh
Bệnh viện đa khoa từ 400 - 500 giường

Hình L7. Khoa huyết học và truyền máu
Bệnh viện đa khoa từ 400 - 500 giường

Hình L8. Labo giải phẫu
Bệnh viện đa khoa từ 400 - 500 giường

Hình L9. Tủ HOT - bộ phận xử lý khí thải
PHỤ LỤC M

Hình M1. Sơ đồ dây chuyền công năng khoa thăm dò chức năng

Hình M2. Sơ đồ dây chuyền khoa khoa thăm dò chức năng

Hình M3. Sơ đồ dây chuyền khoa truyền máu

Hình M4. Sơ đồ dây chuyền khoa lọc máu

Hình M5. Sơ đồ dây chuyền khoa nội soi

Hình M6. Mặt bằng minh họa khoa nội soi
PHỤ LỤC N

Hình N1. Sơ đồ dây chuyền khoa giải phẫu bệnh lý

Hình N2. Sơ đồ dây chuyền khoa chống nhiễm khuẩn
PHỤ LỤC P

Hình P1. Sơ đồ khoa dinh dưỡng

Hình P2. Sơ đồ dây chuyền khoa dinh dưỡng
Bạn chưa Đăng nhập thành viên.
Đây là tiện ích dành cho tài khoản thành viên. Vui lòng Đăng nhập để xem chi tiết. Nếu chưa có tài khoản, vui lòng Đăng ký tại đây!