- Tổng quan
- Nội dung
- Tiêu chuẩn liên quan
- Lược đồ
- Tải về
Tiêu chuẩn TCVN 13881-1:2023 Thiết bị thi công - Lưới an toàn - Yêu cầu an toàn và phương pháp thử
| Số hiệu: | TCVN 13881-1:2023 | Loại văn bản: | Tiêu chuẩn Việt Nam |
| Cơ quan ban hành: | Bộ Khoa học và Công nghệ | Lĩnh vực: | Xây dựng |
| Trích yếu: | Thiết bị thi công - Lưới an toàn - Phần 1: Yêu cầu an toàn và phương pháp thử | ||
|
Ngày ban hành:
Ngày ban hành là ngày, tháng, năm văn bản được thông qua hoặc ký ban hành.
|
28/11/2023 |
Hiệu lực:
|
Đã biết
|
| Người ký: | Đang cập nhật |
Tình trạng hiệu lực:
Cho biết trạng thái hiệu lực của văn bản đang tra cứu: Chưa áp dụng, Còn hiệu lực, Hết hiệu lực, Hết hiệu lực 1 phần; Đã sửa đổi, Đính chính hay Không còn phù hợp,...
|
Đã biết
|
TÓM TẮT TIÊU CHUẨN VIỆT NAM TCVN 13881-1:2023
Tiêu chuẩn quốc gia TCVN 13881-1:2023 về Lưới an toàn trong xây dựng
Ngày 28/11/2023, Bộ Xây dựng đã ban hành Tiêu chuẩn quốc gia TCVN 13881-1:2023 về "Thiết bị thi công - Lưới an toàn - Phần 1: Yêu cầu an toàn và phương pháp thử". Tiêu chuẩn này có hiệu lực từ ngày 28/11/2023, nhằm đảm bảo an toàn khi sử dụng lưới an toàn trong các hoạt động thi công xây dựng và các ngành công nghiệp liên quan.
Đối tượng áp dụng của tiêu chuẩn này là các loại lưới an toàn và các bộ phận đi kèm được sử dụng trong xây dựng dân dụng và các ngành công nghiệp nhằm ngăn chặn tai nạn rơi ngã. Tiêu chuẩn quy định các yêu cầu về an toàn và phương pháp kiểm tra lưới an toàn, chỉ đề cập đến các đặc tính làm việc của vật liệu như poliamit và polipropilen.
Mục đích và tính năng của lưới an toàn
Lưới an toàn là thiết bị bảo vệ quan trọng trong các hoạt động thi công trên cao, giúp ngăn chặn người lao động rơi từ các vị trí cao hoặc vào hố sâu. Lưới an toàn mang lại khả năng hoạt động tự do hơn so với thiết bị chống rơi cá nhân, đồng thời giúp phân tán lực tác động lên cơ thể của người lao động, giảm thiểu chấn thương. Tuy nhiên, lưới cần được kiểm tra định kỳ do ảnh hưởng của thời tiết và tia UV có thể làm giảm chất lượng.
Phân loại lưới an toàn
Tiêu chuẩn phân loại lưới an toàn thành bốn nhóm dựa trên kích thước mắt lưới và khả năng hấp thụ năng lượng, cụ thể:
- Nhóm A1: EA = 2,3 kJ; lM = 60 mm
- Nhóm A2: EA = 2,3 kJ; lM = 100 mm
- Nhóm B1: EB = 4,4 kJ; lM = 60 mm
- Nhóm B2: EB = 4,4 kJ; lM = 100 mm
Yêu cầu kỹ thuật
Lưới an toàn và các bộ phận phải đảm bảo các yêu cầu về độ bền, khả năng chịu lực kéo, khả năng hấp thụ năng lượng, và các điều kiện thử nghiệm nghiêm ngặt. Cụ thể, đầu dây lưới, kích thước lưới và khả năng chịu tải của dây biên, dây buộc cũng phải đạt tiêu chuẩn. Mẫu thử nghiệm của lưới an toàn phải được thực hiện theo quy trình nghiêm ngặt để kiểm tra độ bền và khả năng bảo vệ của lưới.
Phương pháp thử nghiệm
Tiêu chuẩn cung cấp các yêu cầu cụ thể về phương pháp thử nghiệm để xác định tính năng của lưới, bao gồm việc kiểm tra kích thước mắt lưới, độ bền tĩnh của lưới, khả năng hấp thụ năng lượng và kiểm tra độ bền của các dây lưới. Các mẫu thử nghiệm sẽ được kiểm tra trong điều kiện tiêu chuẩn, từ đó đánh giá hiệu quả và độ an toàn của lưới an toàn.
Với Tiêu chuẩn TCVN 13881-1:2023, mục tiêu là nâng cao an toàn lao động trong các công trình xây dựng, giúp ngăn chặn tai nạn và đảm bảo sức khỏe cho người lao động.
Tải tiêu chuẩn Việt Nam TCVN 13881-1:2023
TIÊU CHUẨN QUỐC GIA
TCVN 13881-1:2023
THIẾT BỊ THI CÔNG - LƯỚI AN TOÀN - PHẦN 1: YÊU CẦU AN TOÀN VÀ PHƯƠNG PHÁP THỬ
Temporary works equipment - Safety nets - Part 1: Safety requirements, test methods
Lời nói đầu
TCVN 13881-1:2023 được xây dựng trên cơ sở tham khảo EN 12063 - 1:2014 Temporary works equipment - Safety nets - Part 1: Safety requirements, test methods.
TCVN 13881-1:2023 do Trường Đại học Kiến trúc Hà Nội biên soạn, Bộ Xây dựng đề nghị, Tổng cục Tiêu chuẩn Đo lường Chất lượng thẩm định, Bộ Khoa học và Công nghệ công bố.
Bộ TCVN 13881, “Thiết bị làm việc tạm thời - Lưới an toàn” bao gồm hai phần sau:
TCVN 13881-1:2023 (EN 12063-1:2014), Phần 1: Thông số kỹ thuật của sản phẩm;
TCVN 13881-2:2025 (EN 12063-2:2014), Phần 2: Các yêu cầu an toàn về giới hạn cho các vị trí lắp dựng.
Lời giới thiệu
Lưới an toàn được sử dụng như một thiết bị phòng chống rơi người trong quá trình xây dựng các công trình xây dựng dân dụng, cầu đường và trong các ngành công nghiệp khác. Lưới an toàn được sử dụng như một thiết bị chống rơi người khi thi công trên cao như tại các mặt hở của sàn thi công, khi làm việc trên giàn giáo, khi làm việc trên mái nhà và khi thi công các tuyến ngầm làm xuất hiện các hố sâu. Lưới an toàn là giải pháp kinh tế - kỹ thuật nhằm chống rơi người trong quá trình làm việc trên cao. Lưới an toàn còn được sử dụng để chống rơi vào các hố sâu kể cả các hố sâu có kích thước lớn và nhỏ.
Trên thực tế, để phòng rơi khi làm việc trên cao người ta có hai phương án bảo vệ đó là sử dụng lưới phòng chống rơi và thiết bị chống rơi ngã cá nhân. So sánh giữa lưới phòng chống rơi và thiết bị chống rơi ngã cá nhân thì lưới phòng rơi cho phép người thợ thao tác tự do hơn so với khi sử dụng thiết bị chống rơi ngã cá nhân vì dây treo phải cố định vào điểm neo hoặc vào dây cứu sinh làm hạn chế tầm với và giảm mức tự do để làm việc. Hơn thế nữa, nếu bị rơi vào lưới an toàn, thì phản lực của lưới lên người được chia đều lên thân người với diện tích lớn làm giảm chấn thương so với việc sử dụng thiết bị chống rơi ngã cá nhân.
Một điều cần phải lưu ý khi sử dụng lưới phòng rơi là lưới làm việc ngoài trời nên các sợi lưới chịu ảnh hưởng trực tiếp của tia UV mặt trời làm phong hóa và giảm chất lượng vì vậy tuổi thọ sử dụng lưới phải được xác định và phải loại bỏ khi hết hạn sử dụng. Để xác định ảnh hưởng của thời tiết và sự phong hóa của lưới cần tiến hành thử nghiệm 6 tháng hoặc 24 tháng một lần tùy thuộc vào hai loại vật liệu thường được sử dụng để chế tạo dây đan lưới đó là poliamit và Polipropilen. Các giới hạn năng lượng phá hủy được tính toán và xác định dựa trên các thử nghiệm phong hóa và thử nghiệm thả rơi người giả có khớp và thử nghiệm thả vật khối cầu. Lưới an toàn sau khi chịu tác dụng của người rơi từ trên cao nếu không còn đạt yêu cầu thì phải thay bằng lưới khác.
THIẾT BỊ LÀM VIỆC TẠM THỜI - LƯỚI AN TOÀN - PHẦN 1: YÊU CẦU AN TOÀN VÀ PHƯƠNG PHÁP THỬ
Temporary works equipment - Safety nets - Part 1: Safety requirements, test methods
1 Phạm vi áp dụng
Tiêu chuẩn này áp dụng cho các loại lưới an toàn và các bộ phận đi kèm sử dụng trong xây dựng dân dụng và các ngành công nghiệp khác đề phòng rơi ngã xuống các sàn thấp hơn. Tiêu chuẩn này quy định các yêu cầu an toàn và các phương pháp thử nghiệm dựa trên các đặc tính làm việc của các sợi bằng vật liệu poliamit và polipropilen. Tiêu chuẩn quy định các vật liệu sản xuất lưới phải có các đặc tính cơ lý không thay đổi đáng kể dưới tác động của nhiệt độ môi trường từ - 10 °C đến + 40 °C.
Tiêu chuẩn này không đề cập đến các yêu cầu an toàn trong lắp đặt lưới. TCVN 13881-2:2025 (EN 12063-2:2014) là tiêu chuẩn đề cập tới các yêu cầu này.
2 Tài liệu viện dẫn
Toàn bộ nội dung hoặc một phần nội dung các tiêu chuẩn viện dẫn dưới đây là tài liệu quy định và rất cần thiết không thể thiếu cho việc áp dụng tiêu chuẩn này. Đối với các tài liệu viện dẫn ghi năm công bố thì áp dụng phiên bản được nêu. Đối với các tài liệu viện dẫn không ghi năm công bố thì áp dụng phiên bản mới nhất, bao gồm cả các sửa đổi, bổ sung (nếu có).
TCVN 10600-1:2014 (ISO 7500-1), Vật liệu kim loại - Kiểm tra xác nhận máy thử tĩnh một trục - Phần 1: Máy thử kéo/nén - Kiểm tra xác nhận và hiệu chuẩn hệ thống đo lực
TCVN 11994-1:2017 (ISO 4892-1), Chất dẻo - Phương pháp phơi nhiễm với nguồn sáng phòng thử nghiệm - Phần 1: Hướng dẫn chung
ISO 554, Standard atmospheres for conditioning and/or testing - Specifications (Môi trường chuẩn để điều hòa và/hoặc thử nghiệm - Đặc tính kỹ thuật)
EN 1263-2:2014, Temporary works equipment - Safety nets Part 2: Safety requirements for the positioning limits (Thiết bị làm việc tạm thời - Lưới an toàn - Phần 2: Yêu cầu an toàn khi lắp dựng)
ISO 1806, Fishing nets - Determination of mesh breaking force of netting (Lưới đánh cá - Xác định lực phá hủy lưới)
ISO 2307, Fibre ropes - Determination of certain physical and mechanical properties (dây xơ - Xác định các tính chất cơ lý)
3 Ký hiệu, thuật ngữ và định nghĩa
3.1 Ký hiệu các đại lượng
Các ký hiệu chính được sử dụng trong tiêu chuẩn này xem trong Bảng 1.
Bảng 1 - Ký hiệu các đại lượng
| STT | Ký hiệu | Tên | Đơn vị |
| 1 | γ1 | hệ số an toàn chung trong sản xuất và gia công vật liệu γ1 = 1,5 | - |
| 2 | γ2 | hệ số riêng về giảm chất lượng do phong hóa, xem Trong 7.7 hoặc 7.8. γ2 luôn lớn hơn hoặc bằng 1 và với khoảng thời gian phong hóa tối thiểu 12 tháng | - |
| 3 | IM | kích thước mắt lưới | mm |
| 4 | EA | năng lượng xung kích tác dụng lên lưới nhóm A (đặc tính kỹ thuật) | kJ |
| 5 | EB | năng lượng xung kích tác dụng lên lưới nhóm B (đặc tính kỹ thuật) | kJ |
| 6 | E0 | năng lượng phá hủy của một lưới ở trạng thái như mới trong các điều kiện chuẩn | kJ |
| 7 | E12 | giá trị tính toán năng lượng phá hủy của một mẫu lưới đã bị phong hóa 12 tháng trong các điều kiện chuẩn | kJ |
| 8 | E6 | giá trị tính toán năng lượng phá hủy của mẫu lưới đã bị phong hóa 6 tháng | kJ |
| 9 | Evi | năng lượng xung kích tính toán từ số liệu thử nghiệm của mẫu mắt lưới đã bị phong hóa thứ j dưới tác dụng của lực kéo lớn nhất Fvi | J |
| 10 | Eoj | năng lượng xung kích tính toán từ số liệu thử nghiệm của mẫu mắt lưới như mới thứ j dưới tác dụng của lực kéo lớn nhất Fvj | J |
| 11 | Avi | tích phân xác định trong khoảng 0 ≤ Δv ≤ Δvvi từ các số liệu thử nghiệm phá hủy mẫu mắt lưới đã bị phong hóa thứ j, xem Hình 12 | cm2 |
| 12 | Aoj | tích phân xác định trong khoảng 0 ≤ Δv ≤ Δvvi từ các số liệu thử nghiệm phá hủy mẫu mắt lưới thứ j ở trạng thái như mới, xem Hình 13 | cm2 |
| 13 | Fvi | lực kéo lớn nhất của mẫu mắt lưới đã bị phong hóa thứ i | N |
| 14 | Foj | lực kéo lớn nhất của mẫu mắt lưới thứ j ở trạng thái như mới | N |
| 15 | Δvi | độ giãn của mẫu mắt lưới đã bị phong hóa thứ i (i = 1......10) dưới tác dụng của lực kéo lớn nhất Fvi | m |
| 16 | ΔVoj | độ giãn của mẫu mắt lưới ở trạng thái như mới thứ j (j = 1.......10) dưới tác dụng của lực kéo lớn nhất Foj | m |
| CHÚ THÍCH: Mẫu lưới “ở trạng thái như mới” có nghĩa: Mẫu lưới có đặc tính của một lưới mới xuất xưởng. | |||
3.2 Thuật ngữ và định nghĩa
Tiêu chuẩn này sử dụng các thuật ngữ, định nghĩa sau:
3.2.1
mắt lưới (mesh)
loạt các lỗ có dạng hình học giống nhau (hình vuông hoặc hình thoi) được đan bởi các sợi dây đan lưới với bốn nút ở bốn góc và liên kết nối tiếp với nhau để tạo thành một lưới
3.2.2
lưới (net)
các mắt lưới liên kết nối tiếp với nhau qua các nút hoặc điểm nối để tạo thành lưới
3.2.3
lưới an toàn (safety net)
lưới được lắp vào khung cứng hoặc treo vào dây biên hoặc kết hợp cả khung cứng và đây biên để tạo ra một lưới chắn người rơi khi làm việc trên cao
3.2.4
kích thước mắt lưới (mesh size)
khoảng cách đo từ tâm tới tâm giữa các nút hoặc giữa các điểm nối của mắt lưới
3.2.5
sợi dây đan lưới (mesh rope)
sợi dây xơ dùng để đan hoặc chế tạo ra mắt lưới
3.2.6
dây biên (border rope)
dây xơ dùng được đan mép ngoài đường biên của một lưới và chính là kích thước ngoài của lưới an toàn
3.2.7
dây buộc (tie rope)
dây xơ dùng để buộc dây biên của lưới vào khung đỡ phù hợp để tạo ra lưới an toàn
3.2.8
dây nối (coupling rope)
dây xơ dùng để buộc hai hoặc nhiều lưới vào với nhau
3.2.9
mẫu mắt lưới thử nghiệm (test mesh)
phần của mắt lưới được ghép vào lưới an toàn để thử nghiệm phong hóa và sau thử nghiệm có thể tách ra để xác định mức độ phong hóa mà không làm giảm khả năng làm việc của lưới an toàn
CHÚ THÍCH 1: Mẫu mắt lưới thử nghiệm phải gồm tối thiểu ba mắt lưới
3.2.10
khung đỡ lưới (supporting framework)
kết cấu để liên kết lưới, góp phần hấp thụ và và phân bổ động năng trong trường hợp có vật rơi lên lưới
3.2.11
nhóm lưới (class)
lưới được phân nhóm theo khả năng hấp thụ năng lượng và theo kích thước mắt lưới
3.2.12
hệ thống lưới an toàn (system)
sản phẩm của sự lắp ghép các bộ phận lưới an toàn tuân theo hướng dẫn sử dụng để tạo ra một thiết bị để sử dụng phòng rơi
4 Phân loại
4.1 Lưới
Tiêu chuẩn này quy định bốn nhóm lưới theo kích thước mắt lưới lớn nhất (lM xem Hình 6) và theo giá trị năng lượng danh định có thể tác dụng lên lưới (EA và EB) như sau:
- Nhóm lưới A1: EA = 2,3 kJ; lM = 60 mm
- Nhóm lưới A2: EA = 2,3 kJ; lM = 100mm
- Nhóm lưới B1: EB = 4,4 kJ; lM = 60mm
- Nhóm lưới B2: EB = 4,4 kJ; lM = 100 mm
CHÚ THÍCH: Các giá trị EA và EB nêu ở trên biểu diễn các đặc tính giá trị năng lượng có thể tác dụng lên lưới mà không tính
đến hệ số an toàn chung γ1 và hệ số riêng về giảm chất lượng do phong hóa γ2. Các hệ số này được mô tả trong 6.3.
4.2 Lưới an toàn
Có bốn hệ thống lưới an toàn như sau:
1) Hệ thống lưới an toàn S: Lưới an toàn với dây biên (ví dụ xem Hình 1), diện tích lưới nhỏ nhất phải là 35 m2. Đối với các lưới an toàn hình chữ nhật thì chiều dài cạnh nhỏ nhất phải lớn hơn hoặc bằng 5 m;
Tiêu chuẩn này không áp dụng cho các hệ thống lưới an toàn cỡ nhỏ (có diện tích nhỏ hơn 35 m2 và có chiều dài cạnh nhỏ nhất nhỏ hơn 5 m). Nếu sử dụng các hệ thống lưới an toàn cỡ nhỏ này thì phải tuân thủ các yêu cầu của quy chuẩn quốc gia (nếu có).
2) Hệ thống lưới an toàn T: Lưới an toàn lắp vào khung công xôn tạo ra mặt lưới nằm ngang để phòng rơi (ví dụ xem Hình 2);
3) Hệ thống lưới an toàn U: Lưới an toàn lắp vào khung thẳng đứng để phòng rơi (ví dụ xem Hình 3);
4) Hệ thống lưới an toàn V: Lưới an toàn với dây biên treo vào giá đỡ kiểu khung công xôn (ví dụ xem Hình 4).
|
a) mắt lưới hình vuông (Q) |
b) mắt lưới hình thoi (D) |
Hình 1 - Hệ thống lưới an toàn S (lưới với dây biên)

Hình 2 - Hệ thống lưới an toàn T
(lưới an toàn lắp công xôn tạo ra mặt lưới nằm ngang để phòng rơi)

Hình 3 - Hệ thống lưới an toàn U lắp vào khung thẳng đứng để phòng rơi

Hình 4 - Hệ thống lưới an toàn V (lưới với dây biên treo vào giá đỡ kiểu khung công xon)
4.3 Dây lưới
Dây lưới có thể được dùng với lưới an toàn phải có các đặc tính kỹ thuật và các yêu cầu xem Bảng 2. Để xác định các đặc tính kỹ thuật của dây lưới, xem ISO 2307.
Bảng 2 - Các loại dây, các đặc tính kỹ thuật và các yêu cầu
| Dây lưới | Lực kéo tối thiểu (kN) | Hệ thống lưới an toàn | Ghi chú | Minh họa trong Hình 5 | |||||||
| Ký hiệu dây lưới | Không có đầu dây | Đầu dây thắt lại thành vòng | Đầu dây không thắt lại thành vòng | 7,5 | 10 | 15 | 20 | 30 | |||
| F |
| x |
|
|
|
| xa |
| V | Dây buộc | b |
| G |
|
| x |
|
|
| xa |
| V | Dây buộc | c |
| H |
| x |
|
| xb |
|
|
| V | Dây buộc | b |
| J |
|
| x |
| xb |
|
|
| V | Dây buộc | c |
| K | x |
|
|
|
|
|
| x | S | Dây biên | a |
| L |
| x |
|
|
|
|
| xa | S | Dây buộc | b |
| M |
|
| x |
|
|
|
| xa | S | Dây buộc | c |
| N |
| x |
| x |
|
|
|
| S,T,U,V | Dây nối | d |
| O |
|
| x | x |
|
|
|
| S,T,U,V | Dây nối | e |
| P | x |
|
|
|
|
| x |
| V | Dây biên | a |
| R |
| x |
|
|
| xb |
|
| S | Dây buộc | b |
| W | x |
|
|
|
|
| x |
| T | Dây biên | c |
| Z |
|
| x |
|
| xb |
|
| S | Dây buộc | d |
| CHÚ THÍCH 1: a nếu lưới được buộc bằng dây đơn CHÚ THÍCH 2: b nếu lưới được buộc bằng dây đôi | |||||||||||

a) Dây lưới K1 Dây lưới P/ Dây lưới W (dây biên)

b) Dây lưới L và F (dây buộc, sử dụng đơn với chỉ một đường kính chịu tải) Dây lưới R và dây lưới H (dây buộc, sử dụng đôi với hai đường kính chịu tải)
![]()
c) Dây lưới M và G (dây buộc, sử dụng đơn với chỉ một đường kính chịu tải) Dây lưới Z và J (dây buộc, sử dụng đôi với hai đường kính chịu tải)

d) Dây lưới N (dây nối)
![]()
e) Dây lưới O (dây nối)
CHÚ THÍCH: Bện hoặc đan đầu dây lưới để chống bị tở.
Hình 5 - Các loại dây lưới
5 Ký hiệu qui ước
5.1 Lưới an toàn
Ký hiệu qui ước một lưới an toàn phải bao gồm tên lưới an toàn, số hiệu tiêu chuẩn, tên hệ thống lưới an toàn, hình dạng mắt lưới, kích thước mắt lưới, kích thước lưới và mức kiểm tra chất lượng trong quá trình sản xuất lưới.

5.2 Dây lưới
Ký hiệu qui ước một dây lưới phải bao gồm tên phù hợp với 4.3, Bảng 2 và đáp ứng các yêu cầu của tiêu chuẩn này.
6 Các yêu cầu
6.1 Yêu cầu đối với các bộ phận của lưới an toàn
6.1.1 Sợi dây đan lưới
Sợi dây đan lưới phải có tối thiểu ba sợi xơ độc lập và phải được bện sao cho không bị sổ. Sợi dây đan lưới phải được thử nghiệm tuân thủ theo 7.3. Trong quá trình thử nghiệm, sợi dây đan lưới phải đủ khả năng chịu được khối lượng thử mà không bị hư hại.
CHÚ THÍCH: Sợi dây đan lưới có khuyết tật, có vấu không đáp ứng yêu cầu này.
6.1.2 Lưới
Lưới phải được đan tạo ra các mắt lưới hình vuông (Q) hoặc hình thoi (D), xem Hình 6 a) và Hình 6 b). Kích thước mắt lưới lM không lớn hơn 60 mm đối với nhóm lưới A1 và B1 và không lớn hơn 100 mm đối với nhóm lưới A2 và B2, xem Hình 6.
Phải kiểm tra kích thước lưới theo 7.2.
Các đầu tự do của các sợi dây đan lưới trên các cạnh biên phải được bện, thắt cố định tránh bị tở, xem Hình 6.

Hình 6 - Kích thước mắt lưới và phương án tổ hợp
6.1.3 Dây biên
Dây biên phải sâu qua tất cả các mắt lưới tại các cạnh ngoài của một lưới, bất luận có khâu cố định hoặc không.
Chỗ nối giữa các đầu của dây biên phải được đan, bện hoặc buộc chống tự tháo rời.
Dây biên phải được thử nghiệm tuân thủ theo 7.3.
6.1.4 Các loại dây lưới khác
Đầu của tất cả các dây lưới sử dụng với lưới an toàn phải đan, bện hoặc cố định tránh tự tở ra không chủ ý, ví dụ bằng cách đốt cháy khi nguội làm đầu tao dính vào nhau, bện các đầu tao vào nhau hoặc khâu bằng sợi buộc. Nút hoặc điểm nối giữa các đầu dây mà nằm trong phạm vi cạnh biên của lưới phải cố định chặt tránh tự tháo ra. Điều này có thể kiểm soát bằng cách như khâu vải đệm lên các cạnh biên của lưới với chiều rộng của vải đệm lớn hơn hoặc bằng 200 mm.
Chiều dài nội tiếp của vòng thòng lọng phải lớn hơn hoặc bằng 150 mm, xem Hình 5.
6.1.5 Mẫu mắt lưới thử nghiệm khi kiểm tra định kỳ hàng năm
Lưới an toàn phải đi kèm với tối thiểu một mẫu mắt lưới thử nghiệm. Mẫu mắt lưới thử nghiệm phải treo lỏng (không căng) vào lưới và lắp vào vùng cạnh biên. Mẫu mắt lưới thử nghiệm phải lấy từ lô sản phẩm với cùng một quy trình sản xuất mà trong đó có lưới cần kiểm tra định kỳ hàng năm. Để đảm bảo rằng, mẫu mắt lưới thử nghiệm có cùng nguồn gốc với lưới cần kiểm tra định kỳ hàng năm thì trên mẫu mắt lưới thử nghiệm và lưới cần kiểm tra phải cùng có một dấu xác nhận.
6.1.6 Khung đỡ lưới
Khung đỡ lưới phải có cấu tạo sao cho mỗi sợi dây đan lưới có thể buộc cố định trực tiếp hoặc neo vào khung thông qua dây biên dọc cạnh ngoài của lưới với khoảng cách không vượt quá 2,5 m.
Đối với hệ thống lưới an toàn V, khoảng cách giữa giá đỡ khung công xon phải nhỏ hơn hoặc bằng 5,0 m (xem Hình 4), dây biên buộc vào đầu trên của giá đỡ khung công xon với lực treo tùy thuộc vào khoảng cách giữa hai khung.
6.2 Giới hạn bền kéo của các loại dây lưới
6.2.1 Dây biên
Dây biên K phải có lực kéo đứt tối thiểu là 30,0 kN khi thử nghiệm theo 7.5. Điểm nối các đầu của dây biên K phải có lực kéo đứt tối thiểu là 24,0 kN.
Dây biên P và W phải có lực kéo đứt tối thiểu là 20,0 kN khi thử nghiệm theo 7.5. Điểm nối các đầu của dây biên P và W phải có lực kéo đứt tối thiểu là 16,0 kN.
Dây biên K, P và W phải được chế tạo bằng cách xoắn hoặc bện.
CHÚ THÍCH 1: Các giá trị lực kéo đứt tối thiểu bao gồm hệ số an toàn bằng 2,0.
CHÚ THÍCH 2: Xoắn nghĩa là các dành quấn quanh dành khác để tạo ra một dây lưới. Bện nghĩa là dệt hoặc tết các dảnh để tạo ra một dây lưới.
6.2.2 Dây buộc
Dây buộc L và M phải có lực kéo đứt tối thiểu là 30,0 kN khi thử nghiệm theo 7.5. Dây buộc ký hiệu R và Z phải có lực kéo đứt tối thiểu là 15,0 kN khi thử nghiệm theo 7.5.
Dây buộc F phải có lực kéo đứt tối thiểu là 20,0 kN khi thử nghiệm theo 7.5.
Dây buộc F, G, H, R, J, L, M và Z phải được chế tạo bằng cách xoắn hoặc bện.
CHÚ THÍCH: Các giá trị lực kéo đứt tối thiểu bao gồm hệ số an toàn bằng 2,0.
6.2.3 Dây nối
Dây nối N và O phải có lực kéo đứt tối thiểu là 7,5 kN khi thử nghiệm theo 7.5.
Dây nối N và Q phải được chế tạo bằng cách xoắn hoặc bện.
CHÚ THÍCH: Các giá trị lực kéo đứt tối thiểu bao gồm hệ số an toàn bằng 2,0.
6.3 Khả năng hấp thụ năng lượng của mẫu mắt lưới thử nghiệm
Khi thử nghiệm để kiểm tra định kỳ hàng năm phải chứng minh rằng, mẫu mắt lưới thử nghiệm có đủ khả chống lại sự phong hóa do thời gian một năm. Kiểm tra xác nhận đủ khả năng chống lại sự phong hóa do thời gian phải tuân thủ theo 7.7.
6.4 Độ bền tĩnh của một mẫu lưới
6.4.1 Năng lượng phá hủy
Năng lượng phá hủy của một lưới ở trạng thái như mới trong các điều kiện chuẩn E0, tính bằng kJ, phải có giá trị tối thiểu:
năng lượng phá hủy của một lưới ở trạng thái như mới trong các điều kiện chuẩn
E0 ≥ EN x γ1 x γ2
trong đó
E0 năng lượng phá hủy của một lưới ở trạng thái như mới, xem trong 7.4.3
EN năng lượng xung kích đối với nhóm lưới N = A và nhóm lưới N = B, xem 4.1
γ1 hệ số an toàn chung, γ1 =1,5;
γ2 hệ số riêng về giảm chất lượng do phong hóa, xem trong 7.7 hoặc 7.8
6.4.2 Chuyển vị vật rơi
Khi thử nghiệm theo 7.4, chuyển vị bật lên theo phương thẳng đứng của vật rơi phải nằm trong phạm vi từ 0,8 m tới 1,5 m và tại độ cao đó phải đặt lưới chắn.
6.5 Độ bền đông của hệ thống lưới an toàn S (lưới với dây biên)
Hệ thống lưới an toàn S (lưới với dây biên) phải được thử nghiệm tuân thủ theo 7.9. Độ võng tức thì lớn nhất của lưới dưới tác dụng va đập không vượt quá 75 % chiều dài cạnh ngắn nhất của lưới. Lưới phải giữ được vật rơi trong mỗi lần thử nghiệm. Sau thử nghiệm, nếu có một vài sợi dây đan mắt lưới bị đứt hoặc biến dạng vĩnh cửu thì hệ thống đó vẫn được cho là đạt yêu cầu.
6.6 Độ bền đông của hệ thống lưới an toàn T (lưới an toàn lắp công xôn tạo ra mặt lưới nằm ngang để phòng rơi)
Hệ thống lưới an toàn T phải được thử nghiệm tuân thủ theo 7.10. Độ võng tức thì lớn nhất của lưới dưới tác dụng va đập không vượt quá chiều dài cạnh ngắn nhất của lưới. Lưới phải giữ được vật rơi trong mỗi lần thử nghiệm. Sau thử nghiệm, nếu có một vài sợi dây đan mắt lưới bị đứt hoặc biến dạng vĩnh cửu thì hệ thống đó vẫn được cho là đạt yêu cầu. Vật rơi không được va chạm vào bất cứ bộ phận nào của khung đỡ.
6.7 Độ bền đông của hệ thống lưới an toàn U (lưới lắp vào khung thẳng đứng để phòng rơi)
Hệ thống lưới an toàn U phải được thử nghiệm tuân thủ theo 7.11. Lưới phải giữ được vật rơi trong mỗi lần thử nghiệm. Hệ thống lưới an toàn vẫn đạt yêu cầu nếu sau thử nghiệm có biến dạng vĩnh cửu. Các sợi dây đan mắt cạnh lưới không được đứt.
6.8 Độ bền đông của hệ thống lưới an toàn V (lưới với dây biên treo vào giá đỡ kiểu khung công xon)
Hệ thống lưới an toàn V phải được thử nghiệm tuân thủ theo 7.12. Độ võng tức thì lớn nhất của lưới dưới tác dụng va đập không vượt quá 50 % chiều dài cạnh ngắn nhất của lưới. Lưới phải giữ được vật rơi trong mỗi lần thử nghiệm. Hệ thống lưới an toàn vẫn được cho là đạt yêu cầu nếu sau thử nghiệm có biến dạng vĩnh cửu.
7 Các phương pháp thử
7.1 Quy định chung
Phải tiến hành kiểm tra trực quan, đo kích thước và cân, ngoại trừ khi có chỉ dẫn khác.
Nếu các dây lưới có giấy xác nhận về cường độ kéo theo tiêu chuẩn ISO 2307 thì không phải thử nghiệm các dây lưới đó.
Lưới và dây lưới phải được lưu giữ trong kho với nhiệt độ (20 ± 2) °C và độ ẩm (65 ± 5) % trong thời gian 72 h trước khi đưa vào thử nghiệm.
7.2 Kiểm tra kích thước mắt lưới
Để kiểm tra kích thước mắt lưới, ta cắt một mảnh mẫu lưới có tối thiểu 7 mắt lưới từ dây truyền sản xuất. Móc mắt lưới trên cùng (mắt thứ nhất) của mẫu lưới vào vào móc treo với đường kính thép móc treo (11 ± 1) mm. Treo một vật có trọng lượng từ 1 đến 1,2 kg vào mắt lưới thứ bảy. Vật phải được treo tự do; đường kính thép móc treo (11 ± 1) mm (xem Hình 7).
Khoảng cách L cần đo của 5 mắt lưới tính từ điểm nút dưới của mắt thứ nhất và nút trên của mắt thứ bảy.
Phải bắt đầu ghi số liệu kích thước L sau khi treo vật được khoảng thời gian là (60 ± 10) s. Kích thước mắt lưới LM là kích thước một cạnh của mắt lưới và bằng một phần hai chiều dài chiều dài một mắt lưới khi treo và được xác định bằng cách lấy giá trị đo được L chia cho 10.

CHÚ DẪN:
1 điểm đo;
2 điểm treo, cố định tại mắt lưới thứ nhất.
Hình 7 - Kiểm tra kích thước
7.3 Phương pháp thử nghiệm sợi dây đan lưới
7.3.1 Lựa chọn mẫu thử
Cắt một mảnh lưới từ lưới thử nghiệm sao cho tạo ra một mẫu thử có chiều dài bằng ba lần kích thước mắt lưới tức là bằng 3lM. Mẫu thử gồm chiều dài của ba mắt lưới với hai nút của mắt lưới giữa, xem Hình 8.

CHÚ DẪN:
1 điểm cắt trên sợi dây đan mắt lưới
2 mẫu thử có chiều dài ba lần kích thước mắt lưới (3 lM)
Hình 8 - Mẫu thử nghiệm
7.3.2 Dụng cụ thử nghiệm
Dụng cụ thử nghiệm bao gồm giá đỡ kẹp có khóa cố định đầu trên mẫu thử nghiệm với khả năng giữ vật có khối lượng (2 ± 0,1) kg cùng với khóa cố định đầu dưới của mẫu thử nghiệm. Dụng cụ thử nghiệm phải có khả năng nâng và hạ vật treo tối thiểu 50 mm, xem Hình 9.
7.3.3 Phương pháp thử nghiệm
Trước khi thử nghiệm, cắt ngang hai sợi dây của hai mắt lưới phía ngoài (xem chú dẫn 1 Hình 8). Đầu trên của mẫu thử cố định vào khóa 2 thông qua khóa 1 và đầu dưới cố định vào điểm cuối của mẫu thử với chiều dài bằng ba lần kích thước mắt lưới lM bằng khóa 6 cùng với vật treo 7, xem Hình 9. Mẫu thử phải được treo tự do. Để thực nghiệm, nâng vật treo lên và thả rơi tự do sao cho chiều cao rơi từ 50 ± 5 mm. Lặp lại việc nâng và thả rơi tự do 10 lần. Mẫu thử nghiệm được coi là đạt yêu cầu nếu nó giữ được vật treo và các nút mắt lưới không bị tháo mở.

CHÚ DẪN:
| 1 | khóa buộc cố định |
| 2 | khóa chặt cố định đầu trên của mẫu thử |
| 3 | dây đan mắt lưới |
| 4 | điểm nối mắt lưới (nút) |
| 5 | mắt lưới giữa của mẫu thử |
| 6 | khóa cố định đầu dưới của mẫu thử nghiệm |
| 7 | vật treo thử nghiệm |
Hình 9 - Bố trí dụng cụ thử nghiệm
7.4 Thử nghiệm độ bền tĩnh của lưới
7.4.1 Lựa chọn các mẫu thử
Chọn ba mẫu lưới giống hệt nhau có kích thước (3 ± 0,1) m × (3 ± 0,1) m. Mẫu lưới thử phải được chọn ngẫu nhiên.
7.4.2 Vật thử nghiệm và dụng cụ thử nghiệm
Vật thử nghiệm phải có có các đặc tính sau:
- một quả cầu thép tròn nhẵn có đường kính (500 ± 10) mm và khối lượng không nhỏ hơn 50 kg.
Dụng cụ thử nghiệm phải bao gồm:
- một thiết bị kéo với lực kéo tối thiểu 50 kN tại vận tốc kéo (1 ± 0,1) m/phút;
- một kết cấu khung được ghép cố định với nhau bằng ống thép có đường kính 48,3 mm và chiều dày thành ống 2,9 mm để tạo ra một khung nằm ngang cố định. Ví dụ đặt trên một bệ đỡ neo;
- một lực kế có bộ ghi với độ chính xác ± 1 % trong phạm vi giá trị đo từ 5 kN đến 50 kN;
- một dụng cụ đo để đo chuyển vị với độ chính xác ± 1 % trong phạm vi đo từ 0,25 m đến 2,5 m.

CHÚ DẪN:
1 bệ
2 khung nằm ngang
3 bộ cảm biến đo chuyển vị
4 lưới không treo lỏng (không căng)
5 vật thử nghiệm: một quả cầu thép đường kính Ø 500 mm
6 lưới thử nghiệm
7 lực kế
8 móc và pa lăng
9 chuyển vị của vật thử nghiệm
Hình 10 - Sơ đồ bố trí dụng cụ thử nghiệm để thử độ bền tĩnh của lưới (sơ đồ nguyên lý)
7.4.3 Trình tự thực hiện
Chọn mặt phẳng nằm ngang đi qua đường tâm các ống thép của khung 2 trong Hình 10 làm bề mặt cơ sở để làm mốc đo chuyển vị.
Độ võng của mẫu lưới thử nghiệm trước khi thử nghiệm và không chịu tải phải là (5 ± 1) cm.
Từng mắt lưới trên cạnh biên phải được cố định vào ống của khung nằm ngang bằng vòng móc, xem hình 11.

Hình 11 - Sơ đồ cố định lưới vào khung ống (sơ đồ nguyên lý)
Vật thử nghiệm phải đặt tại tâm lưới và lực kéo phải đặt vào tâm của vật thử cho tới khi lưới phá hủy.
Phải ghi chép kết quả đo năng lượng phá hủy E0 của các thử nghiệm.
Phải ghi chép kết quả chuyển vị của vật thử nghiệm tương ứng với chuyển vị tại tâm của lưới.
7.5 Thử nghiệm tải trọng phá hủy dây biên, dây buộc và dây nối
Tải trọng phá hủy của dây biên, dây buộc và dây nối phải được xác định tuân thủ tiêu chuẩn ISO 2307.
7.6 Thử nghiệm khả năng hấp thụ năng lượng của mắt lưới
Khả năng hấp thụ năng lượng của mắt lưới phải được xác định theo 7.7.4 và 7.8.4.
7.7 Thử nghiệm phong hóa tự nhiên
7.7.1 Quy định chung
Để xác định hệ số riêng về giảm chất lượng do phong hóa γ2 so với độ bền tĩnh của lưới ở trạng thái như mới, ta làm thử nghiệm xác định khả năng hấp thụ năng lượng của 10 mẫu lưới ở trạng thái như mới và làm thử nghiệm xác định khả năng hấp thụ năng lượng của 10 mẫu lưới đã bị phong hóa sau đó xử lý kết quả thử nghiệm của cả hai nhóm trên để xác định hệ số hệ số riêng về giảm chất lượng do phong hóa γ2.
Để có mẫu lưới phong hóa tự nhiên phải lấy mẫu lưới mới đặt nằm ngang ngoài trời trong khoảng thời gian tối thiểu là 12 tháng.
Ngoài ra, khi tính toán mức độ giảm chất lượng do phong hóa, phải xem xét tất các các của điều kiện môi trường xung quanh (ví dụ như nhiệt độ, mưa, thời gian phơi nắng) tại nơi tiến hành thử nghiệm.
7.7.2 Lựa chọn các mẫu thử
Mười mẫu lưới ở trạng thái như mới phải được chọn ngẫu nhiên ngay sau khi hàng được giao với kích thước kích thước đủ lớn để thử nghiệm kéo theo tiêu chuẩn ISO 1806 và thêm mười mẫu lưới đã bị phơi nhiễm phong hóa 12 tháng.
7.7.3 Thiết bị thử nghiệm
Thử nghiệm kéo phải được tiến hành với một máy thử nghiệm đã được kiểm tra tuân thủ theo TCVN 10600-1:2014 (ISO 7500-1:2004).
Máy thử nghiệm phải được trang bị các dụng cụ sau:
- dụng cụ đo độ giãn dài của mẫu tại vị trí phá hủy;
- dụng cụ đo lực kéo;
- thiết bị lưu ghi chép số liệu lực giãn dài.
Độ chính xác của thiết bị phải là ± 1 % của giá trị đo từ 10 % đến 100 % trong phạm vi đo của thiết bị đó.
7.7.4 Xác định khả năng của mẫu mắt lưới thử nghiệm
7.7.4.1 Trình tự thử nghiệm
Các mẫu thử phải lắp vào máy bằng các dụng cụ kẹp buộc đặc biệt, ví dụ như trong tiêu chuẩn ISO 1806. Các bu lông với đường kính (20 ± 1) mm được dùng cho thiết bị khóa kẹp, và bất cứ thiết bị khác ví dụ như trong tiêu chuẩn ISO 1806.
Trình tự thử nghiệm phải theo các yêu cầu tiêu chuẩn ISO 1806 với một số lưu ý sau:
Đầu tự do của các sợi dây đan lưới ở các nút cạnh ngoài phải được cố định để tránh đầu hiện tượng tụt qua các nút của mắt lưới.
Tốc độ thử nghiệm phải là (200 ± 10) mm/phút và không phụ thuộc vào thời gian thử nghiệm.
Trước khi tiến hành thử nghiệm, các mẫu thử phải để trong buồng điều hòa có nhiệt độ (20 ± 2) °C và độ ẩm tương đối (65 ± 5) % tuân thủ theo tiêu chuẩn ISO 554.
7.7.4.2 Giải thích kết quả thử nghiệm
a) Năng lượng Evi được biểu diễn bằng phần diện tích AVi (phần gạch chéo) tạo bởi đồ thị lực kéo giãn dài từ 0 đến lực lớn nhất Fvi của mẫu thử nghiệm đã phong hóa thứ i và phải được tính cho mỗi mẫu thử i (i =1...10), xem Hình 12.

Hình 12 - Đồ thị lực kéo giãn dài của các mắt lưới chịu phong hóa
b) Năng lượng Eoj được biểu diễn bằng phần diện tích Aoj (phần gạch chéo) tạo bởi đồ thị lực kéo giãn dài từ 0 đến lực lớn nhất Foj của mẫu thử nghiệm thứ j ở trạng thái như mới và phải được tính cho mỗi mẫu thử j (j = 1 ...10), xem Hình 13.

Hình 13 - Đồ thị lực kéo giãn dài của các mấu mắt lưới ở trạng thái như mới
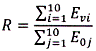
c) Tính tỷ số R giữa tổng năng lượng Evi của 10 mẫu lưới đã phong hóa và tổng năng lượng EOJ của mười mẫu lưới ở trạng thái như mới theo công thức sau:

d) Trung bình cộng
của các lực kéo đứt Fvi của 10 mẫu ở trạng thái như mới và trung bình cộng
của lực kéo đứt Foj của 10 mẫu lưới phong hóa tính theo các công thức sau:


trong đó
Foj lực kéo lớn nhất của mẫu mắt lưới ở trạng thái như mới thứ j, N;
Fvi lực kéo lớn nhất của mẫu mắt lưới đã bị phong hóa thứ i, N,
e) Hệ số tương quan (L12) của mối quan hệ giữa năng lượng phá hủy một mắt lưới và năng lượng phá hủy một lưới, khi thời hạn phong hóa là 12 tháng được xác định theo công thức:

ΔE12 - mức giảm năng lượng phá hủy của một lưới do phong hóa 12 tháng trong điều kiện chuẩn (điều kiện chuẩn có nhiệt độ (20 ± 2) °C và độ ẩm (65 ± 5) %) được tính như sau:
nếu L12 ≤ 0, ΔE12 = 0
nếu L12 > 0, ΔE12 = E0 · L12 và E12 = E0 - ΔE12
trong đó
E0 năng lượng phá hủy của một mẫu lưới ở trạng thái như mới trong các điều kiện chuẩn;
E12 giá trị tính toán năng lượng phá hủy của một mẫu lưới đã bị phong hóa 12 tháng trong các điều kiện chuẩn.
7.7.4.3 Tính toán hệ số riêng về giảm chất lượng do phong hóa γ2
Hệ số riêng về giảm chất lượng do phong hóa γ2 riêng mỗi lưới với khoảng thời gian phong hóa tối thiểu 12 tháng được tính theo công thức:
![]()
7.8 Thử nghiệm phong hóa nhân tạo
7.8.1 Quy định chung
Nếu không có kết quả thử nghiệm của lưới phong hóa tự nhiên thì để xác định hệ số riêng về giảm chất lượng do phong hóa γ2 người ta làm thử nghiệm 3 mẫu lưới ở trạng thái như mới và làm thử nghiệm 3 mẫu lưới bị phong hóa nhân tạo sau đó xử lý kết quả thử nghiêm của cả hai nhóm trên để xác định hệ số riêng do phong hóa γ2.
7.8.2 Lựa chọn các mẫu thử nghiệm
Lựa chọn các mẫu thử nghiệm xem trong 7.7.2
7.8.3 Buồng thử nghiệm phong hóa nhân tạo
7.8.3.1 Hướng dẫn quy trình kỹ thuật thử nghiệm
Để rút ngắn thời gian thử nghiệm phong hóa thì buồng thử nghiệm và phương pháp thử nghiệm phải tuân theo hướng dẫn và quy trình kỹ thuật của TCVN 11994-1:2017 (ISO 4892-1:2016), và nếu trong TCVN 11994-1:2017 (ISO 4892-1:2016) không có hướng dẫn thì tuân theo quy trình kỹ thuật dưới đây:
a) Thiết bị tạo nguồn ánh sáng:
Thiết bị tạo nguồn ánh sáng phải bao gồm một đèn hồ quang xenon loại trụ tròn hoặc loại dài kết hợp các bộ lọc gồm một bộ lọc trong thạch anh và một bộ lọc ngoài bô rô silicat để loại bỏ bức xạ tử ngoại bước sóng ngắn hơn 290 nm, do trên thực tế bức xạ tử ngoại bước sóng ngắn nói trên không có trong quang phổ mặt trời.
b) Giá đỡ mẫu:
Giá đỡ mẫu phải quay với tốc độ từ 1 đến 5 vòng/phút.
c) Thiết bị tạo mưa nhân tạo:
Thiết bị tạo mưa nhân tạo phải gồm một hoặc nhiều dụng cụ phun nước hướng vào tất cả các mặt trước của các mẫu thử với góc của tia phun là 50°. Lưu lượng dòng chảy phải từ 15 l/h đến 25 l/h. Các thiết bị tạo mưa nhân tạo phải lắp trên cùng đường thẳng đứng với nước phun tạo mưa phải có điện trở riêng lớn hơn hoặc bằng 106 Ω·cm.
Hệ thống tạo mưa nhân tạo phải có cấu tạo sao cho không gây ô nhiễm cho nước phun. Nhiệt độ nước phải từ 10 °C đến 30 °C.
d) Thiết bị tạo nguồn ánh sáng bức xạ:
Năng lượng chiếu sáng của đèn phải được kiểm tra trước mỗi lần phơi nhiễm bằng bức xạ kế trong môi trường không khí có độ ẩm thấp (độ ẩm thấp ở đây là độ ẩm không khí không quá 30 %).
Bức xạ kế phải có một bộ lọc giao thoa trung tâm (365 ± 2) nm; dải thông của bức xạ kế biểu thị bằng đường cong trong Hình 14 và 15, dải thông đó tương đương với (20 ± 3) nm đối với tín hiệu truyền
≥ 60 %.
Bức xạ kế phải được kiểm định và phải kiểm định ở điều kiện nhiệt độ môi trường để tránh mọi hư hỏng.
Bức xạ kế phải lắp ở vị trí có khoảng cách đúng bằng khoảng cách từ đèn tạo bức xạ tới bề mặt mẫu thử và trong mặt phẳng trung tuyến của nó.
Khi một đèn tạo bức xạ đã được lắp đặt sẵn thì điều cần thiết là chọn vị trí góc để lắp bức xạ kế sao cho nó đo và nhận được năng lượng bức xạ lớn nhất.
Vì việc vận hành thiết bị tạo nguồn ánh sáng bức xạ tiềm tàng nguy cơ ảnh hưởng tới sức khỏe, vì vậy lời khuyên đưa ra là phải có các giải pháp phòng ngừa để tránh mọi rủi ro trong quá trình tiến hành công việc.
Đèn tạo bức xạ phải được hiệu chỉnh mỗi lần kiểm định để đạt được năng lượng chiếu sáng trung bình Em tương đương với (2,2 ± 0,2) mW/cm2.
Trong trường hợp sử dụng bức xạ kể tính hợp thì việc kiểm định phải tiến hành khi giá đỡ mẫu quay với vận tốc 2 vòng/phút, bằng cách đo giá trị năng lượng bức xạ trên mỗi cm2 mJ/cm2 mà bức xạ kế nhận được trong toàn bộ n vòng quay, n ≥ 4.
Trong các trường hợp khác thì việc kiểm định phải tiến hành bằng 8 phép đo trên đường biên, các điểm đo cách đều bằng 1/4 chu vi và thời gian đo phải nằm trong khoảng 15 đến 20 s.
Bức xạ kế phải hiệu chỉnh định kỳ bởi đơn vị có thẩm quyền và tuân thủ các tiêu chuẩn quy chiếu.
e) Độ ẩm tương đối:
Độ ẩm tương đối của không khí tuần hoàn trong buồng thử nghiệm phong hóa nhân tạo phải được giữ trong các giá trị giới hạn được xác định cho từng chế độ thử nghiệm và phải được kiểm định bằng các các dụng cụ phù hợp chống ảnh hưởng của đèn bức xạ.
f) Nhiệt độ:
Nhiệt độ (ΘE) của buồng thử nghiệm phong hóa nhân tạo, tại các vị trí quanh mẫu thử phải được đo bằng các các dụng cụ phù hợp chống ảnh hưởng của đèn bức xạ.
Nếu đặt nhiệt kế tấm đen cạnh mẫu thử, ở mọi vị trí dọc theo giá đỡ mẫu và nằm trong mặt phẳng giữa của đèn bức xạ thì nhiệt độ của nhiệt kế tấm đen Θ phải nhỏ hơn hoặc bằng các giá trị giới hạn dưới đây:
![]()
Nếu lựa chọn đặt nhiệt kế ở các vị trí khác thì nhiệt độ giới hạn cho phép phải xác định bằng hiệu chỉnh trước, và theo đó phải lưu ý tới các giá trị nhiệt độ nằm trên biên độ.
Một tuần một lần phải kiểm tra tình trạng bề mặt tấm đen của cảm biến nhiệt độ.

CHÚ DẪN:
| Ƭ λ | tín hiệu truyền, tính bằng % bước sóng, tính bằng nm (nanô mét) |
Hình 14 - Bộ lọc bức xạ dải bước sóng từ 300 đến 420 nm

CHÚ DẪN:
| Ƭ λ | tín hiệu truyền, tính bằng % bước sóng, tính bằng nm |
Hình 14 - Bộ lọc bức xạ dải bước sóng từ 280 đến 1000 nm
Trong trường hợp có mâu thuẫn giữa các quy trình kỹ thuật thử nghiệm thì 7.8.3 này phải áp dụng theo hướng dẫn của TCVN 11994-1:2017 (ISO 4892-1).
7.8.3.2 Vị trí các mẫu thử
Ba mẫu thử phải định vị vào giá đỡ mẫu theo Hình 16.
Kích thước tính bằng mm

Hình 16 - Vị trí các mẫu thử trong buồng thử nghiệm phong hóa nhân tạo
7.8.3.2 Chu kỳ phong hóa
Các mẫu thử phải được phơi nhiễm bằng 336 chu kỳ phong hóa (xem Hình 17), một chu kỳ phong hóa gồm:
- 20 phút phun nước chưng cất ở nhiệt độ (20 ± 2) °C;
- 10 phút tăng nhiệt độ quanh vật thử lên tới 80 °C;
- 100 phút làm khô ở nhiệt độ (80 ± 2) °C và độ ẩm tương đối (15 ± 5) %;
- 10 phút giảm nhiệt độ tới 60 °C;
- 90 phút phơi nhiễm tia bức xạ UV ở nhiệt độ 60 °C đo bằng nhiệt kế tấm đen và nhiệt độ quanh vật thử (36 ± 2) °C cùng độ ẩm tương đối (20 ± 5) %;
- 10 phút giảm nhiệt độ tới 20 °C.
Thời gian kéo dài thử nghiệm kể cả lúc nghỉ tối đa phải là 70 ngày sẽ tương ứng với 6 tháng phong hóa tự nhiên. Thời gian thử nghiệm phong hóa nhân tạo phải kéo dài nếu yêu cầu 12 tháng phong hóa tự nhiên.

CHÚ THÍCH:
1 phun nước tạo mưa
2 làm khô
3 phơi nhiễm tia bức xạ UV
t thời gian tính bằng phút
Θ nhiệt độ tính bằng °C
Hình 17 - Một chu kỳ tăng tốc phong hóa
7.8.4 Xác định khả năng của mắt lưới
7.8.4.1 Trình tự tiến hành thử nghiệm
Trình tự tiến hành thử nghiệm, xem 7.7.4.1.
7.8.4.2 Giải thích các kết quả thử nghiệm
Giải thích các kết quả thử nghiệm sau phong hóa nhân tạo, xem 7.7.4.2, ngoại trừ những nội dung sau:
e) Hệ số tương quan (L6) của mối quan hệ giữa năng lượng phá hủy một mắt lưới và năng lượng phá hủy một lưới, khi thời hạn phong hóa là 6 tháng được xác định theo công thức:

ΔE6 - mức giảm năng lượng phá hủy của một lưới do phong hóa 6 tháng trong điều kiện chuẩn (điều kiện chuẩn có nhiệt độ (20 ± 2) °C và độ ẩm (65 ± 5) %) được tính như sau:
nếu L6 ≤ 0, ΔE6 = 0
nếu L6 > 0, ΔE6 = E0 · L6 và E6 = E0 - ΔE6
trong đó
E0 năng lượng phá hủy của một lưới ở trạng thái như mới trong các điều kiện chuẩn;
E6 năng lượng phá hủy của một lưới đã bị phong hóa 6 tháng trong các điều kiện chuẩn.
7.8.4.3 Xác định hệ số riêng về giảm chất lượng do phong hóa γ2
Phần năng lượng bị giảm ΔE12 của một lưới do bị phong hóa trong thời gian tối thiểu 12 tháng được tính như sau:
ΔE6 = E0 - E6
ΔE12 = 2ΔE6 và E12 = E0 - ΔE12
trong đó
E0 năng lượng phá hủy của một mẫu lưới ở trạng thái như mới trong các điều kiện chuẩn;
E12 giá trị tính toán năng lượng phá hủy của một mẫu lưới đã bị phong hóa 12 tháng trong các điều kiện chuẩn.
Hệ số riêng về giảm chất lượng do phong hóa γ2 với khoảng thời gian phong hóa tối thiểu 12 tháng được tính theo công thức
![]()
7.9 Thử nghiệm độ bền đông của hệ thống lưới an toàn S (lưới với dây biên)
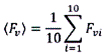
7.9.1 Lựa chọn mẫu thử
Để thử nghiệm độ bền đông phải sử dụng một mẫu lưới của hệ thống lưới an toàn S với kích thước các cạnh là (5 ± 0,1) m × (7 ± 0,1) m đo từ mép đến mép.
7.9.2 Vật thử
Vật thử phải là một quả cầu thép tròn như miêu tả trong 7.4.2, nhưng khác về khối lượng, cụ thể khối lượng phải là (100 ± 1) kg.
7.9.3 Trình tự thử
Mẫu thử phải treo cố định vào bốn góc qua dây biên (xem Hình 18). Đường kính của điểm móc neo cố định vào bốn góc qua dây biên phải bằng (11 ± 1) mm. Để đảm bảo an toàn, trước khi thử nghiệm ta phải kiểm tra khả năng chịu lực của điểm neo bằng cách kéo thử lực 500 ± 50 N. Phải đo độ võng ban đầu của lưới.
Phải thả vật rơi hai lần vào tâm của mẫu thử. Chiều cao rơi của vật phải hiệu chỉnh sao cho động năng của vật rơi khi chạm lưới là 7 kJ với sai số cho phép là ± 1 %.
Thử nghiệm thứ hai phải tiến hành trong khoảng thời gian là (30 ± 15) phút sau thử nghiệm thứ nhất.
Sau mỗi thử nghiệm phải ghi chuyển vị lớn nhất và so sánh với giá trị chuyển vị lớn nhất đã được xác định trong 6.5.
Kích thước tính bằng cm

Hình 18 - Thử nghiệm va đập hệ thống lưới an toàn S
7.10 Thử nghiệm độ bền đông thực của hệ thống lưới an toàn T (lưới an toàn lắp công xôn tạo ra mặt lưới nằm ngang để phòng rơi)
7.10.1 Lựa chọn mẫu thử
Chuẩn bị tối thiểu ba mẫu lưới thử, mỗi mẫu lưới thử phải có kích thước bao chùm qua hai khoang tức là phủ kín tối thiểu ba giá công xôn và chuẩn bị ba giá công xôn chuẩn để dùng cho hai thử nghiệm, xem khuyến cáo trong 7.10.3.
7.10.2 Vật thử
Vật thử phải là một quả cầu thép tròn như miêu tả trong 7.9.2.
7.10.3 Trình tự thử nghiệm
Các mẫu lưới thử phải được lắp dựng tuân thủ theo hướng dẫn của nhà sản xuất.
Thử nghiệm 1: Thả vật rơi hai lần vào tâm của lưới tức là giữa hai giá công xon. Phải hiệu chỉnh chiều cao rơi sao cho động năng của vật rơi là 7 kJ với sai số là ± 1 % khi chạm vào mặt lưới (xem Hình 19 vị trí a)).
Thử nghiệm 2 với mẫu lưới thử khác: Thả vật rơi hai lần vào vị trí lưới phía trên giá công xôn giữa, (xem Hình 19 vị trí b)).
Hệ thống lưới an toàn được đánh giá là đạt yêu cầu nếu không có bộ phận nào bị hư hại hoặc không có bộ phận nào phải thay giữa hai lần thử nghiệm.
Trong quá trình thử nghiệm độ võng tức thì của lưới phải được ghi chép và so sánh với các giá trị xác lập trong 6.6. Ngoài ra, lưới phải được kiểm tra theo Hình 19 vị trí b) để đảm bảo rằng lưới không chạm với khung trong và sau khi thả vật rơi (đặc biệt thử nghiệm 2).
Kích thước tính bằng cm

Hình 19 - Thử nghiệm độ bền đông của hệ thống lưới an toàn T
7.11 Thử nghiệm độ bền đông của hệ thống lưới an toàn U (lưới lắp vào khung thẳng đứng để phòng rơi)
7.11.1 Lựa chọn mẫu thử
Một mẫu lưới thử với kích thước (1,0 × 2,0) m bao gồm các phụ kiện cần để buộc khung cho mỗi thử nghiệm (xem Hình 20). Các cạnh của khung căng lưới phải có chiều dài đủ lớn sao cho đầu mút các cạnh khung vượt qua tim mối ghép tối thiểu 20 cm để tránh tuột đầu khỏi mối ghép không chủ ý.
7.11.2 Vật và thiết bị thử nghiệm
Vật thử phải có dạng hình trụ tròn với trọng lượng (75 ± 1) kg, dài (1000 ± 10) mm và đường kính (300 ± 5) mm. Vật thử hình trụ tròn phải có bề mặt nhẵn, không có cạnh sắc và phải bọc bên ngoài một lớp cao su dày tối thiểu là 25 mm.
Mặt dốc nghiêng thử phải phẳng và góc nghiêng so với phương nằm ngang là (60 ± 3)°. Chiều dài đường dốc thử tối thiểu là 5 m. Xem Hình 20 về cách bố trí mặt dốc nghiêng thử nghiệm.
Kích thước tính bằng cm

Hình 20 - Mặt dốc nghiêng thử nghiệm hệ thống lưới an toàn U
7.11.3 Trình tự thử
Các mẫu lưới thử phải được lắp dựng tuân thủ theo hướng dẫn của Nhà sản xuất. Mỗi mẫu lưới do thử hai lần bằng cách cho vật thử lăn trên mặt dốc nghiêng và đập vào tâm của lưới. Mẫu lưới được đánh giá là đạt yêu cầu nếu không có bộ phận nào bị hư hại hoặc phải thay thế giữa hai lần thử nghiệm.
Kiểm tra xem hệ thống lưới an toàn U có giữ được vật thử hay không.
7.12 Thử nghiệm độ bền đông của hệ thống lưới an toàn V (lưới với dây biên treo vào giá đỡ kiểu khung công xon)
7.12.1 Lựa chọn mẫu thử
Một mẫu lưới thử của hệ thống lưới an toàn V có kích thước tiêu chuẩn các cạnh là (5 ± 0,1) m × (7 ± 0,1) m (đo từ mép đến mép) và hai giá đỡ kiểu khung công xon dùng để treo lưới thử nghiệm độ bền đông.
7.12.2 Vật thử
Vật thử phải là một quả cầu thép tròn như miêu tả trong 7.9.2.
Kích thước tính bằng cm

CHÚ DẪN:
1 vật rơi có trọng lượng = 100 kg
2 điểm cố định giá đỡ kiểu khung công xon
3 dây biên
A chiều dài công xon của khung đỡ
E độ võng của dây biên
Hình 21 - Thử nghiệm độ bền đông của hệ thống lưới an toàn V (Ví dụ)
7.12.3 Trình tự thử
Đầu trên của dây biên cạnh lưới phải buộc vào đầu trên của giá đỡ kiểu khung công xon, đầu dưới của dây biên cạnh phải buôc vào điểm số 2 theo chỉ dẫn của nhà sản xuất (xem hình 21).
Khoảng cách giữa hai giá đỡ kiểu khung công xon phải là (5 ± 0,1) m.
Giá đỡ kiểu khung công xon phải lắp vào kết cấu thẳng đứng theo chỉ dẫn của nhà sản xuất.
Dây biên dưới của lưới phải buộc vào khung dưới bằng móc và cách đều nhau là (0,5 ± 0,02) m.
Thiết bị thử nghiệm phải mô phỏng một sàn bê tông để cố định móc treo vật. Trong mọi thử nghiệm lưới không được di chuyển vượt qua cạnh biên.
Độ võng E của dây biên ngoài dưới tác dung của tự trọng phải là (0,3 ± 0,05) m, (xem Hình 21).
Vị trí thả vật rơi được xác định như sau:
- phía trên lưới thử;
- nằm giữa hai giá đỡ kiểu khung công xon;
- cách bề mặt thẳng đứng có chứa điểm cố định 2 theo phương nằm ngang một khoảng bằng 50 % chiều dài đua công xon A nhưng phải lớn hơn hoặc bằng 1,0 m; và
- cách điểm cố định 2 theo phương thẳng đứng 7 m, (xem Hình 21).
Phải thả vật rơi hai lần.
Chiều cao vật rơi phải hiệu chỉnh sao cho động năng khi chạm lưới là 7 kJ với sai số là ±1 %.
Hệ thống lưới an toàn được đánh giá là đạt yêu cầu nếu không có bộ phận nào bị hư hại hoặc phải thay giữa hai lần thử nghiệm.
Trong quá trình thử nghiệm độ võng tức thì của lưới phải được ghi chép và so sánh với các giá trị đã xác định trong 6.8. Ngoài ra, lưới phải được kiểm tra để chắc chắn răng không bộ phận nào của lưới va chạm với khung trong và sau khi thử nghiệm.
7.13 Báo cáo thử nghiệm
Báo cáo thử nghiệm phải ghi rõ đã tham chiếu tiêu chuẩn này và phải bao gồm các nội dung sau:
a) mô tả về các mẫu thử nghiệm;
b) kết quả thử nghiệm;
c) một xác nhận về lưới đáp ứng tất cả các yêu cầu của tiêu chuẩn này.
8 Ghi nhãn
Lưới an toàn phải ghi nhãn với các nội dung sau:
- tên hoặc nhãn hiệu thương mại của nhà sản xuất hoặc nhà nhập khẩu;
- ký hiệu qui ước lưới an toàn tuân thủ theo 5.1;
- số xác nhận thử nghiệm lưới tuân thủ theo 6.1.5;
- năm và tháng sản xuất lưới;
- khả năng hấp thụ năng lượng và lực phá hủy tối thiểu của mẫu mắt lưới thử nghiệm;
- mã vạch của nhà sản xuất;
- chữ ký của đơn vị kiểm tra độc lập (chỉ dành cho mức kiểm tra chất lượng M), nếu áp dụng Phụ lục B.
Nhãn hiệu của lưới phải bền vĩnh cửu.
CHÚ THÍCH: Ví dụ về ghi nhãn vĩnh cửu như khâu hoặc bắt vít lên lưới sao cho không thể tháo rời nhãn nếu không hủy hoại lưới.
9 Hướng dẫn sử dụng
Hướng dẫn sử dụng phải được cung cấp đi kèm cùng lưới an toàn với các nội dung sau:
a) lắp dựng, sử dụng vào tháo dỡ;
b) bảo quản, bảo dưỡng và kiểm tra;
c) ngày tháng thử nghiệm mẫu mắt lưới;
d) các điều kiện thu hồi không cho sử dụng;
e) cảnh báo các nguy cơ tai nạn (ví dụ nhiệt độ quá cao, nguy cơ hóa chất);
f) công bố hợp chuẩn theo Điều 10.
Hướng dẫn sử dụng phải chỉ rõ rằng lưới an toàn dùng để cản rơi người và vật chỉ được sử dụng sau khi đã được kiểm tra bởi người có thẩm quyền.
Các điều khoản liệt kê trong 4.1 của tiêu chuẩn EN 1263-2:2014 phải được xem xét tuân thủ.
10 Chứng nhận hợp chuẩn
Sản phẩm lưới được chứng nhận hợp chuẩn phải thỏa mãn các yêu cầu của tiêu chuẩn này.
Các yêu cầu xác định của sản phẩm (lưới) phải tuân thủ theo tiêu chuẩn quốc gia này để công bố hợp chuẩn.
Chứng nhận hợp chuẩn có thể được cấp bởi một tổ chức độc lập có năng lực và có thẩm quyền theo Phụ lục A và B, nếu cùng đáp ứng các yêu cầu của cả hai Phụ lục A và B.
Phụ lục A
(Tham khảo)
Chấp nhận mẫu lưới thử nghiệm
Để mẫu lưới thử nghiệm đạt yêu cầu, đơn vị đánh giá mẫu phải là tổ chức độc lập có uy tín.
Đơn vị này phải thực hiện các công việc sau:
- kiểm tra việc tuân thủ các yêu cầu của tiêu chuẩn này;
- độc lập tiến hành kiểm tra tất cả các tính toán;
- giám sát tất cả các thử nghiệm;
- kiểm tra, đánh giá các kích thước hình học của lưới và các chi tiết cấu thành có tuân theo các số liệu cung cấp của nhà sản xuất.
Giấy chứng nhận hợp chuẩn do tổ chức độc lập có uy tín cấp phải trích dẫn số hiệu báo cáo thử nghiệm hoặc số hiệu tài liệu thử nghiệm và phải chỉ rõ loại thiết bị dùng để thử nghiệm và từng bộ phận liên quan theo nguyên tắc viết ký hiệu qui ước trong Điều 5.
Chứng chỉ được cấp phải xác nhận rằng việc đánh giá lưới đã được tiến hành phù hợp với các Điều của tiêu chuẩn EN 1263-1 và tuân thủ các yêu cầu của tiêu chuẩn này.
Phụ lục B
(tham khảo)
Kiểm tra chất lượng trong quá trình sản xuất lưới
B.1 Kiểm tra chất lượng trong quá trình sản xuất lưới
Sản xuất lưới an toàn phải được kiểm tra theo một trong hai phương án sau:
- Kiểm tra chất lượng trong quá trình sản xuất mức L:
Nhà sản xuất lưới an toàn phải tự kiểm tra chất lượng trong quá trình sản xuất lưới tuân thủ theo các tiêu chuẩn TCVN (ISO 9000) và được thông báo tới tổ chức có thẩm quyền.
- Kiểm tra chất lượng trong quá trình sản xuất mức M:
- Nhà sản xuất phải duy trì kiểm tra chất lượng trong quá trình sản xuất lưới phù hợp (ví dụ tuân thủ theo các tiêu chuẩn TCVN (ISO 9000)).
Việc kiểm tra chất lượng trong quá trình sản xuất lưới phải được tiến hành bởi tổ chức có thẩm quyền.
Các yêu cầu tối thiểu của việc kiểm tra chất lượng trong quá trình sản xuất lưới được liệt kê trong Bảng B.1.
Bảng B.1 - Kiểm tra chất lượng trong quá trình sản xuất lưới
| Đối tượng kiểm tra | Các chỉ số, chỉ tiêu cần kiểm tra | Đơn vị kiểm tra/Chu kỳ kiểm tra | |
| Bởi nhà sản xuất | Bởi tổ chức có thẩm quyền | ||
| Lưới | Kích thước mắt lưới theo 4.1 | Đo mỗi lô hàng hoặc mỗi đợt giao hàng | Tối thiểu năm năm một lần kiểm tra đo |
| Các mắt lưới phải được bố trí về cách đan và kích thước tuân thủ 6.1.2 | Kiểm tra trực quan từng sản phẩm | Tối thiểu 5 năm một lần kiểm tra trực quan | |
| Các đầu tự do của các sợi dây đan lưới trên các cạnh biên phải được bện tuân thủ 6.1.2 | |||
| Năng lượng phá hủy phải tuân thủ 6.4.1 | Kiểm tra các báo cáo kết quả thử nghiệm của mỗi lô hàng hoặc mỗi đợt giao hàng theo 2.2 EN 10204- 2004 | Tối thiểu 5 năm một lần thử nghiệm | |
| Dây biên | Lực kéo đứt phải tuân thủ 6.2.1 | Kiểm tra các báo cáo kết quả thử nghiệm của mỗi lô hàng hoặc mỗi đợt giao hàng theo 2.2 EN 10204: 2004 | Tối thiểu 5 năm một lần thử nghiệm |
| Lực kéo đứt của điểm nối các đầu dây phải tuân thủ 6.2.1 | |||
| Độ an toàn của điểm nối phải tuân thủ 6.1.3 | Kiểm tra trực quan từng sản phẩm | Tối thiểu 5 năm một lần kiểm tra trực quan | |
| Lưới an toàn | Lắp ráp dây biên cho các hệ thống S và V phải tuân thủ 6.1.3 | Kiểm tra trực quan từng sản phẩm | Tối thiểu 5 năm một lần kiểm tra trực quan |
| Cường độ chịu va đập của hệ thống S, T, U, V phải tuân thủ các 6.5; 6.6; 6.7; 6.8 | Kiểm tra các báo cáo kết quả thử nghiệm của mỗi lô hàng hoặc mỗi đợt giao hàng theo 2.2 EN 10204: 2004 | Tối thiểu 5 năm một lần thử nghiệm | |
| Khung đỡ lưới | Sự tự tháo không chủ ý của các nút buộc lưới vào khung phải tuân thủ 6.1.6 | Kiểm tra trực quan từng sản phẩm | Tối thiểu 5 năm một lần kiểm tra trực quan |
| Cố định lưới phải tuân thủ 6.1.6 | |||
| Mẫu mắt lưới thử nghiệm | Theo phải tuân thủ 6.1.5 | Kiểm tra trực quan từng sản phẩm | Tối thiểu 5 năm một lần kiểm tra trực quan |
| Ghi nhãn và nhãn hiệu | Phải tuân thủ Điều 8 | Kiểm tra trực quan từng sản phẩm | Tối thiểu 5 năm một lần thử nghiệm |
B.2 Kiểm tra định kỳ hàng năm của mẫu mắt lưới thử nghiệm
Trong quá trình kiểm tra định kỳ mẫu mắt lưới thử nghiệm hàng năm, tối thiểu một mắt lưới phải được thử nghiệm theo 7.7.4. Giá trị khả năng hấp thụ năng lượng hoặc giá trị trung bình của khả năng hấp thụ năng lượng phải bằng hoặc lớn hơn giá trị ghi trong nhãn hiệu. Điều này khẳng định rằng lưới an toàn có đủ khả năng hấp thụ năng lượng để sử dụng trong thời hạn một năm tiếp theo.
CHÚ THÍCH: Nếu giá trị khả năng hấp thụ năng lượng của mắt lưới thử nghiệm có sai số trong khoảng 5 % khả năng hấp thụ năng lượng nhỏ nhất theo quy định của Nhà sản xuất thì cho phép tiến hành thử nghiệm thứ hai.
Thư mục tài liệu tham khảo
[1] TCVN (ISO 9001:2015) Hệ thống quản lí chất lượng - Các yêu cầu (Quality management systems - Requirements)
[2] TCVN (ISO/IEC 17025:2017), Yêu cầu chung về năng lực của các phòng thử nghiệm và hiệu chuẩn (General requirements for the competence of testing and calibration laboratories)
[3] EN 10204: 2002, Metallic products - Types of inspection documents (Sản phẩm kim loại - Các loại giấy tờ kiểm tra)
MỤC LỤC
Lời nói đầu
Lời giới thiệu
1 Phạm vi áp dụng
2 Tài liệu viện dẫn
3 Ký hiệu, thuật ngữ và định nghĩa
3.1 Ký hiệu các đại lượng
3.2 Thuật ngữ và định nghĩa
4 Phân loại
4.1 Lưới
4.2 Lưới an toàn
4.3 Dây lưới
5 Ký hiệu qui ước
5.1 Lưới an toàn
5.2 Dây lưới
6 Các yêu cầu
6.1 Yêu cầu đối với các bộ phận của lưới an toàn
6.2 Giới hạn bền kéo của các loại dây lưới
6.3 Khả năng hấp thụ năng lượng của mẫu mắt lưới thử nghiệm
6.4 Độ bền tĩnh của một mẫu lưới
6.5 Độ bền đông của hệ thống lưới an toàn S
6.6 Độ bền đông của hệ thống lưới an toàn T
6.7 Độ bền đông của hệ thống lưới an toàn U
6.8 Độ bền đông của hệ thống lưới an toàn V
7 Các phương pháp thử
7.1 Quy định chung
7.3 Phương pháp thử nghiệm sợi dây đan lưới
7.4 Thử nghiệm độ bền tĩnh của lưới
7.5 Thử nghiệm tải trọng phá hủy dây biên, dây buộc và dây nối
7.6 Thử nghiệm khả năng hấp thụ năng lượng của mắt lưới
7.7 Thử nghiệm phong hóa tự nhiên
7.8 Thử nghiệm phong hóa nhân tạo
7.9 Thử nghiệm độ bền đông của hệ thống lưới an toàn S
7.10 Thử nghiệm độ bền đông thực của hệ thống lưới an toàn T
7.11 Thử nghiệm độ bền đông của hệ thống lưới an toàn U
7.13 Báo cáo thử nghiệm
8 Ghi nhãn
9 Hướng dẫn sử dụng
10 Chứng nhận hợp chuẩn
Phụ lục A (tham khảo) Chấp nhận mẫu lưới thử nghiệm
Phụ lục B (tham khảo) Kiểm tra chất lượng trong quá trình sản xuất lưới
B.1 Kiểm tra chất lượng trong quá trình sản xuất lưới
B.2 Kiểm tra định kỳ hàng năm của mẫu mắt lưới thử nghiệm
Thư mục tài liệu tham khảo
Bạn chưa Đăng nhập thành viên.
Đây là tiện ích dành cho tài khoản thành viên. Vui lòng Đăng nhập để xem chi tiết. Nếu chưa có tài khoản, vui lòng Đăng ký tại đây!

