- Tổng quan
- Nội dung
- VB gốc
- Tiếng Anh
- Hiệu lực
- VB liên quan
- Lược đồ
-
Nội dung hợp nhất
Tính năng này chỉ có tại LuatVietnam.vn. Nội dung hợp nhất tổng hợp lại tất cả các quy định còn hiệu lực của văn bản gốc và các văn bản sửa đổi, bổ sung, đính chính... trên một trang. Việc hợp nhất văn bản gốc và những văn bản, Thông tư, Nghị định hướng dẫn khác không làm thay đổi thứ tự điều khoản, nội dung.
Khách hàng chỉ cần xem Nội dung hợp nhất là có thể nắm bắt toàn bộ quy định hiện hành đang áp dụng, cho dù văn bản gốc đã qua nhiều lần chỉnh sửa, bổ sung.
- Tải về
Thông tư 32/2018/TT-BGTVT ban hành 02 Quy chuẩn kỹ thuật quốc gia về đường sắt
| Cơ quan ban hành: | Bộ Giao thông Vận tải |
Số công báo:
Số công báo là mã số ấn phẩm được đăng chính thức trên ấn phẩm thông tin của Nhà nước. Mã số này do Chính phủ thống nhất quản lý.
|
Đã biết
|
| Số hiệu: | 32/2018/TT-BGTVT | Ngày đăng công báo: |
Đã biết
|
| Loại văn bản: | Thông tư | Người ký: | Nguyễn Ngọc Đông |
|
Ngày ban hành:
Ngày ban hành là ngày, tháng, năm văn bản được thông qua hoặc ký ban hành.
|
15/05/2018 |
Ngày hết hiệu lực:
Ngày hết hiệu lực là ngày, tháng, năm văn bản chính thức không còn hiệu lực (áp dụng).
|
Đã biết
|
|
Áp dụng:
Ngày áp dụng là ngày, tháng, năm văn bản chính thức có hiệu lực (áp dụng).
|
Đã biết
|
Tình trạng hiệu lực:
Cho biết trạng thái hiệu lực của văn bản đang tra cứu: Chưa áp dụng, Còn hiệu lực, Hết hiệu lực, Hết hiệu lực 1 phần; Đã sửa đổi, Đính chính hay Không còn phù hợp,...
|
Đã biết
|
| Lĩnh vực: | Giao thông |
TÓM TẮT THÔNG TƯ 32/2018/TT-BGTVT
Bộ Giao thông Vận tải ban hành 02 Quy chuẩn kỹ thuật quốc gia về đường sắt tại Thông tư 32/2018/TT-BGTVT ngày 15/05/2018.
Theo đó, ban hành kèm theo Thông tư này 02 Quy chuẩn kỹ thuật quốc gia sau:
- Quy chuẩn kỹ thuật quốc gia về khai thác đường sắt: 08:2018/BGTVT;
- Quy chuẩn kỹ thuật quốc gia về tín hiệu giao thông đường sắt: 06:2018/BGTVT;
Theo quy chuẩn về khai thác đường sắt, để duy trì khai thác vận tải đường sắt thường xuyên, đảm bảo an toàn, công trình đường sắt phải bao gồm:
Đường sắt; Ga đường sắt; Đề-pô; Cầu, cống, công trình thoát nước; Hầm đường sắt; Hệ thống thông tin; Hệ thống tín hiệu; Hệ thống báo hiệu cố định đường sắt; Hệ thống cấp điện và các công trình, thiết bị phụ trợ khác của đường sắt.
Thông tư này có hiệu lực từ ngày 01/07/2018.
Văn bản này được thay thế bởi 44/2025/TT-BXD
Xem chi tiết Thông tư 32/2018/TT-BGTVT có hiệu lực kể từ ngày 01/07/2018
Tải Thông tư 32/2018/TT-BGTVT
|
BỘ GIAO THÔNG VẬN TẢI Số: 32/2018/TT-BGTVT |
CỘNG HÒA XÃ HỘI CHỦ NGHĨA VIỆT NAM Hà Nội, ngày 15 tháng 5 năm 2018 |
THÔNG TƯ
BAN HÀNH 02 QUY CHUẨN KỸ THUẬT QUỐC GIA VỀ ĐƯỜNG SẮT
Căn cứ Luật Tiêu chuẩn và Quy chuẩn kỹ thuật số 68/2006/QH11 ngày 29 tháng 6 năm 2006;
Căn cứ Luật Chất lượng sản phẩm, hàng hóa số 05/2007/QH12 ngày 21 tháng 11 năm 2007;
Căn cứ Luật Đường sắt số 06/2017/QH14 ngày 16 tháng 6 năm 2017;
Căn cứ Nghị định số 127/2007/NĐ-CP ngày 01 tháng 8 năm 2007 của Chính phủ quy định chi tiết thi hành một số điều của Luật Tiêu chuẩn và Quy chuẩn kỹ thuật;
Căn cứ Nghị định số 67/2009/NĐ-CP ngày 03 tháng 8 năm 2009 của Chính phủ sửa đổi một số điều của Nghị định số 127/2007/NĐ-CP ngày 01 tháng 8 năm 2007 của Chính phủ quy định chi tiết thi hành một số điều của Luật Tiêu chuẩn và Quy chuẩn kỹ thuật và Nghị định số 132/2008/NĐ-CP ngày 31 tháng 12 năm 2008 của Chính phủ quy định chi tiết thi hành một số điều của Luật Chất lượng sản phẩm, hàng hóa;
Căn cứ Nghị định số 12/2017/NĐ-CP ngày 10 tháng 02 năm 2017 của Chính phủ quy định chức năng, nhiệm vụ, quyền hạn và cơ cấu tổ chức của Bộ Giao thông vận tải;
Theo đề nghị của Vụ trưởng Vụ Khoa học - Công nghệ và Cục trưởng Cục Đường sắt Việt Nam;
Bộ trưởng Bộ Giao thông vận tải ban hành Thông tư ban hành 02 Quy chuẩn kỹ thuật quốc gia về đường sắt
Điều 1. Ban hành kèm theo Thông tư này 02 Quy chuẩn kỹ thuật quốc gia sau đây:
1. Quy chuẩn kỹ thuật quốc gia về khai thác đường sắt
Số hiệu: QCVN 08:2018/BGTVT.
2. Quy chuẩn kỹ thuật quốc gia về tín hiệu giao thông đường sắt
Số hiệu: QCVN 06:2018/BGTVT.
Điều 2. Thông tư này có hiệu lực thi hành kể từ ngày 01 tháng 7 năm 2018. Bãi bỏ các văn bản sau:
1. Thông tư số 66/2011/TT-BGTVT ngày 28 tháng 12 năm 2011 của Bộ trưởng Bộ Giao thông vận tải về việc ban hành 03 Quy chuẩn kỹ thuật quốc gia về đường sắt
2. Thông tư số 12/2015/TT-BGTVT ngày 20 tháng 4 năm 2015 của Bộ trưởng Bộ Giao thông vận tải ban hành Quy chuẩn kỹ thuật quốc gia về khai thác đường sắt.
Điều 3. Chánh Văn phòng Bộ, Chánh Thanh tra Bộ, các Vụ trưởng, Cục trưởng Cục Đường sắt Việt Nam, Tổng công ty Đường sắt Việt Nam, Thủ trưởng các cơ quan, tổ chức và cá nhân có liên quan chịu trách nhiệm thi hành Thông tư này./.
|
Nơi nhận: |
KT. BỘ TRƯỞNG |
QCVN 08: 2018/BGTVT
QUY CHUẨN KỸ THUẬT QUỐC GIA VỀ KHAI THÁC ĐƯỜNG SẮT
National technical regulations on railway operations
Lời nói đầu
QCVN 08: 2018/BGTVT do Cục Đường sắt Việt Nam chủ trì biên soạn, Bộ Khoa học và Công nghệ thẩm định và được Bộ Giao thông vận tải ban hành theo Thông tư số 32/2018/TT-BGTVT ngày 15 tháng 5 năm 2018, thay thế QCVN 08: 2015/BGTVT - Quy chuẩn kỹ thuật quốc gia về khai thác đường sắt.
QUY CHUẨN KỸ THUẬT QUỐC GIA VỀ KHAI THÁC ĐƯỜNG SẮT
1. QUY ĐỊNH CHUNG
1.1 Phạm vi điều chỉnh
Quy chuẩn kỹ thuật quốc gia về khai thác đường sắt (sau đây gọi tắt là Quy chuẩn) quy định về mức giới hạn của đặc tính kỹ thuật và yêu cầu quản lý đối với các công trình đường sắt, phương tiện giao thông đường sắt, tổ chức chạy tàu trên đường sắt quốc gia và đường sắt chuyên dùng có kết nối ray vào đường sắt quốc gia đang khai thác, khổ đường 1000 mm, khổ đường 1435 mm và đường lồng (khổ 1000 mm và 1435 mm), có tốc độ thiết kế dưới 120 km/h nhằm bảo đảm an toàn giao thông vận tải đường sắt.
1.2 Đối tượng áp dụng
Quy chuẩn này áp dụng cho tổ chức, cá nhân có các hoạt động liên quan đến mạng đường sắt quốc gia, đường sắt chuyên dùng có kết nối ray vào đường sắt quốc gia.
2. QUY ĐỊNH KỸ THUẬT
2.1 Công trình đường sắt
2.1.1 Quy định chung đối với hạng mục công trình thuộc công trình đường sắt
2.1.1.1 Để duy trì khai thác vận tải đường sắt thường xuyên, đảm bảo an toàn, công trình đường sắt phải bao gồm:
a) Đường sắt;
b) Ga đường sắt;
c) Đề-pô;
d) Cầu, cống, công trình thoát nước;
đ) Hầm đường sắt;
e) Hệ thống thông tin;
g) Hệ thống tín hiệu;
h) Hệ thống báo hiệu cố định đường sắt;
i) Hệ thống cấp điện và các công trình, thiết bị phụ trợ khác của đường sắt.
2.1.1.2 Công trình đường sắt phải được kiểm tra thường xuyên, định kỳ và phải có hồ sơ, lý lịch kỹ thuật để theo dõi diễn biến trong quá trình sử dụng.
Nội dung, chế độ kiểm tra, báo cáo của các cấp quản lý và hồ sơ, lý lịch kỹ thuật của công trình đường sắt phải được thực hiện theo quy định của cấp có thẩm quyền.
2.1.1.3 Bất cứ bộ phận nào của công trình và thiết bị cố định hay di động (trừ các thiết bị quy định tại mục 2.1.1.4) đều không được phạm vào khổ giới hạn tiếp giáp kiến trúc quy định trong Phụ lục A và Phụ lục C ban hành kèm theo Quy chuẩn này để đảm bảo an toàn chạy tàu, an toàn công trình.
2.1.1.4 Những thiết bị có quan hệ trực tiếp với đầu máy, toa xe như cột giao nhận thẻ đường đang hoạt động được coi là ngoại lệ, được phạm vào khổ giới hạn tiếp giáp kiến trúc và phải theo quy định của Doanh nghiệp kinh doanh kết cấu hạ tầng đường sắt.
2.1.2 Quy định cụ thể đối với hạng mục công trình thuộc công trình đường sắt
2.1.2.1. Đường sắt
2.1.2.1.1 Mặt cắt dọc
2.1.2.1.1.1 Mặt cắt dọc của tuyến đường sắt
a) Độ dốc đỉnh ray của tuyến đường sắt không được vượt quá độ dốc hạn chế của tuyến (trừ trường hợp nêu tại điểm b mục này) và đáp ứng tiêu chuẩn kỹ thuật áp dụng cho tuyến đường.
b) Khi khối lượng vận tải của tuyến đường theo từng luồng hàng không cân bằng hoặc ở những nơi có bố trí nhiều đầu máy kéo trong một đoàn tàu thì được phép sử dụng độ dốc lớn hơn dốc hạn chế nhưng phải có biện pháp đảm bảo an toàn trong quá trình chạy tàu.
c) Đối với các tuyến đường đang khai thác không thỏa mãn các yêu cầu tại điểm b mục này Doanh nghiệp kinh doanh kết cấu hạ tầng đường sắt, doanh nghiệp kinh doanh vận tải đường sắt phải có giải pháp kỹ thuật đảm bảo an toàn giao thông vận tải đường sắt trong quá trình khai thác, kinh doanh kết cấu hạ tầng đường sắt, kinh doanh vận tải đường sắt.
2.1.2.1.1.2 Mặt cắt dọc của đường ga
Ga phải được xây dựng trên đoạn đường bằng. Trường hợp cá biệt được phép xây dựng ga trên đường có độ dốc không quá 2,5 ‰ nhưng phải phù hợp với tác nghiệp của ga và phải bảo đảm an toàn khai thác. Gặp địa hình thật khó khăn, những ga không có dồn dịch được xây dựng trên độ dốc lớn hơn, nhưng phải xét đến sức cản của dốc khi tàu chuyển bánh để bảo đảm tiêu chuẩn trọng lượng tàu quy định trong khu đoạn và có biện pháp đảm bảo an toàn trong quá trình khai thác.
2.1.2.1.1.3 Bán kính đường cong nối dốc đứng được bố trí tại các vị trí đổi dốc có hiệu số đại số độ dốc lớn theo tiêu chuẩn áp dụng cho tuyến đường. Giá trị bán kính đường cong nối dốc đứng phải đủ lớn để đảm bảo tàu vận hành ổn định, an toàn, không bị trật bánh, tuột móc toa xe khi qua lại vị trí điểm đổi dốc này.
2.1.2.1.1.4 Mặt cắt dọc và mặt bằng của tuyến, ga đường sắt phải được kiểm tra định kỳ bằng máy đo đạc nhằm phòng ngừa, phát hiện và khắc phục các nguyên nhân gây hư hỏng nhằm bảo đảm và duy trì sự làm việc bình thường, an toàn của công trình trong suốt quá trình hoạt động. Doanh nghiệp kinh doanh kết cấu hạ tầng quyết định chu kỳ kiểm tra, nội dung, yêu cầu kiểm tra các nội dung này.
2.1.2.1.2 Khoảng cách giữa hai tim đường
Khoảng cách nhỏ nhất giữa hai tim đường sắt liền kề phải đảm bảo yêu cầu về khổ giới hạn tiếp giáp kiến trúc, an toàn cho người và các phương tiện giao thông đường sắt trong trường hợp bất lợi hai đoàn tàu chạy ngược chiều cùng lúc.
2.1.2.1.3 Bố trí đường trong ga
2.1.2.1.3.1 Số lượng đường trong ga phải phù hợp với loại ga, năng lực tuyến đường, tính năng của các trang thiết bị sử dụng trong ga.
2.1.2.1.3.2 Chiều dài dùng được của đường dùng để đón gửi tàu hoặc tránh tàu trong ga phải lớn hơn chiều dài đoàn tàu lớn nhất khai thác trên tuyến đó.
2.1.2.1.4 Nền đường
2.1.2.1.4.1 Bề rộng nền đường phải đủ để bố trí kết cấu tầng trên đường sắt, các hạng mục công trình phụ trợ khác cần phải bố trí trên nền đường, phục vụ cho công tác bảo trì và đảm bảo an toàn chạy tàu.
2.1.2.1.4.2 Hệ thống thoát nước nền đường phải đảm bảo đủ để thoát nước theo lưu lượng tính toán.
2.1.2.1.4.3 Nền đường phải ổn định trong quá trình khai thác theo tải trọng, tốc độ thiết kế của tuyến đường.
2.1.2.1.5 Kết cấu tầng trên đường sắt
2.1.2.1.5.1 Kết cấu tầng trên đường sắt bao gồm: Ray và phụ kiện nối giữ ray; Tà vẹt và phụ kiện nối giữ ray với tà vẹt; Đá ba lát; Ghi và phụ kiện liên kết; Tà vẹt ghi và phụ kiện liên kết tà vẹt với ray ghi.
2.1.2.1.5.2 Kết cấu tầng trên đường sắt phải đảm bảo tải trọng và tốc độ thiết kế của tuyến đường
2.1.2.1.5.3 Cự ly ray
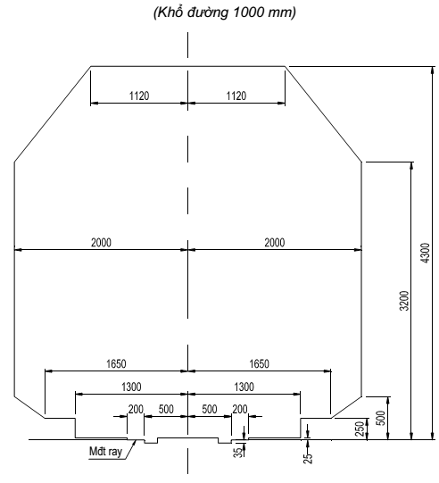
Cự ly ray trên đường thẳng là khoảng cách ngắn nhất giữa hai má tác dụng của hai ray chính, được đo tại vị trí cách đỉnh ray xuống 16 mm, là 1000 mm đối với khổ đường 1000 mm và 1435 mm đối với khổ đường 1435 mm.
Trên đường cong, khoảng cách má trong giữa 2 ray được quy định tại Bảng 1. Độ biến đổi khoảng cách không được sai quá 1 ‰.
Bảng 1 - Khoảng cách má trong giữa 2 ray
|
Đường khổ 1000 mm và lồng |
Đường khổ 1435 mm và lồng |
||
|
Bán kính đường cong |
Khoảng cách má trong giữa 2 ray (mm) |
Bán kính đường cong |
Khoảng cách má trong giữa 2 ray (mm) |
|
Từ 501 trở lên |
1000 |
Từ 651 trở lên |
1435 |
|
Từ 401 đến 500 |
1005 |
Từ 650 đến 451 |
1440 |
|
Từ 301 đến 400 |
1010 |
Từ 450 đến 351 |
1445 |
|
Từ 201 đến 300 |
1015 |
Từ 350 trở xuống |
1450 |
|
Từ 200 trở xuống |
1020 |
|
|
Đối với đường sắt làm mới, cải tạo và sửa chữa lớn, sai lệch khoảng cách má trong giữa 2 ray trên đường thẳng cũng như trên đường cong so với tiêu chuẩn quy định không được lớn quá +4 mm và nhỏ quá -2 mm đối với khổ đường 1000 mm, không lớn quá +6 mm và nhỏ quá -2 mm đối với khổ đường 1435 mm.
Đối với đường sắt đang khai thác, sai lệch về khoảng cách má trong giữa 2 ray phải bảo đảm theo quy định hiện hành.
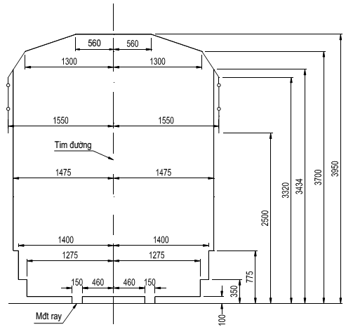
2.1.2.1.5.4 Trên đường thẳng, mặt trên của các ray chạy tàu đối với đường đơn và 3 ray đối với đường lồng phải cao bằng nhau. Trên đường cong, căn cứ vào bán kính đường cong và tốc độ chạy tàu để quy định siêu cao ray lưng cho từng loại khổ đường; Đường lồng thực hiện siêu cao theo khổ đường 1435 mm.
Đối với đường sắt làm mới, cải tạo hoặc sửa chữa lớn, sai lệch về độ cao mặt ray, so với tiêu chuẩn quy định không được quá 3 mm đối với khổ đường 1000 mm và quá 4 mm đối với khổ đường 1435 mm và đường lồng.
Đối với đường đang khai thác, sai lệch về độ cao mặt ray phải bảo đảm theo quy định hiện hành.
2.1.2.1.5.5 Siêu cao đường sắt
Trị số gia tốc ly tâm chưa được cân bằng (o) cho phép là 0,5 m/s2. Trị số siêu cao lớn nhất đối với khổ đường 1000 mm là 95 mm, khổ đường 1435 mm là 125 mm. Độ biến đổi thủy bình không quá 1 ‰.
Đối với đường lồng, thực hiện vuốt siêu cao đường khổ 1000 mm trên cơ sở siêu cao của khổ đường 1435 mm.
2.1.2.1.5.6 Ray
a) Ray chính trên cầu, trong hầm phải cùng loại với ray trên đường, nếu khác loại thì nối tiếp ở trước và sau cầu và hầm phải có ít nhất 2 cầu ray cùng loại với ray trên cầu, trong hầm. Không được phép dùng ray ngắn trên cầu. Mối nối ray trên cầu phải đặt đối xứng và cách tường đầu của mố cầu, đỉnh vòm cuốn và khe co giãn của vòm ít nhất 2 m.
b) Khi cầu có mặt cầu trần dài trên 5,0 m, cầu có ray đặt trực tiếp trên hệ dầm dọc, cầu đi chung với đường bộ, mặt cầu có đá ba lát dài trên 10 m, hoặc cầu trên đường cong có bán kính dưới 500 m phải đặt kết cấu hộ bánh. Khoảng cách giữa má tác dụng của ray chính và má tác dụng của kết cấu hộ bánh được xác định theo tiêu chuẩn bảo trì cầu đường sắt, nhưng không được vượt quá các trị số sau:
- 200 mm đối với cầu trần, cầu có đá ba lát, cầu trên đường cong có bán kính dưới 500 m.
- 85 mm đối với cầu có ray đặt trực tiếp trên hệ dầm dọc.
- 60 mm - 70 mm đối với cầu đi chung đường sắt đường bộ.
Mặt kết cấu hộ bánh không được cao quá 5 mm và thấp quá 20 mm so với mặt ray chính. Kết cấu hộ bánh phải kéo dài ra ngoài tường đầu của mố cầu ít nhất 15 m trong đó ít nhất 10 m để thẳng và 5 m uốn dần thành đầu thoi.
c) Ở những đường cong có bán kính dưới 200 m và những nơi có địa hình đặc biệt cần thiết phải đặt kết cấu chống trật bánh nhằm đảm bảo an toàn trong quá trình khai thác.
2.1.2.1.5.7 Tà vẹt và phụ kiện liên kết ray với tà vẹt
a) Tà vẹt và phụ kiện liên kết ray với tà vẹt phải đảm bảo đủ về số lượng, chất lượng đảm bảo yêu cầu kỹ thuật.
b) Tà vẹt dùng cho đường sắt gồm: Tà vẹt bê tông cốt thép, tà vẹt gỗ, tà vẹt sắt. Trường hợp dùng loại tà vẹt khác quy định trên phải được Bộ Giao thông vận tải chấp thuận.
2.1.2.1.5.8 Nền đá ba lát phải đúng kích thước yêu cầu với từng loại đường đảm bảo tính đàn hồi, giữ ổn định ray, tà vẹt, chống lại sự phá hoại mặt đỉnh nền đường do tác động của đoàn tàu.
2.1.2.1.5.9 Ghi
a) Ray ghi phải cùng loại với ray trên đường, khi ray ghi khác loại thì cầu ray nối tiếp ở đầu và cuối ghi phải cùng loại với ray ghi.
Ghi phải đặt theo quy định dưới đây:
- Ghi trên đường chính tuyến và đường đón gửi tàu khách có tang không lớn hơn 1/9;
- Ghi trên đường đón gửi tàu hàng và các đường ga khác có tang không lớn hơn 1/8.
b) Tà vẹt ghi và phụ kiện nối giữ tà vẹt với ray ghi, phụ kiện nối giữ ray ghi phải đầy đủ, đảm bảo chất lượng, đáp ứng yêu cầu kỹ thuật của từng loại ghi.
c) Mặt bằng, khoảng cách ray và phương hướng của ghi phải chính xác, độ hao mòn và khuyết tật của ghi phải bảo đảm theo quy định hiện hành.
d) Tất cả các ghi, kể cả ghi có thiết bị liên khóa và điều khiển tập trung đều phải có bộ phận khóa, trừ ghi ở bãi dồn dốc gù.
2.1.2.1.5.10 Khi tháo dỡ, thay thế hoặc lắp đặt kiến trúc tầng trên đường sắt trên đường sắt đang khai thác phải đảm bảo an toàn chạy tàu.
2.1.2.1.6 Đường an toàn và đường lánh nạn
2.1.2.1.6.1 Ở những nơi hiện nay mà đường sắt giao nhau trên cùng mặt bằng hoặc có đường nhánh nối vào đường chính trong khu gian, đường chính hoặc đường đón gửi tàu trong ga phải đặt đường an toàn trên đường nhánh hoặc trên cả hai phía của đường sắt thứ yếu. Chiều dài dùng được của đường an toàn không được dưới 50 m.
Khi địa hình hạn chế không thể đặt được đường an toàn thì phải đặt thiết bị trật bánh thay cho đường an toàn.
2.1.2.1.6.2 Khi đường chính hoặc đường nhánh có độ dốc lớn và dài, phải kiểm toán để làm đường lánh nạn nhằm bảo đảm an toàn chạy tàu. Phải duy trì trạng thái kỹ thuật theo đúng hồ sơ thiết kế.
2.1.2.1.7 Biển mốc chỉ dẫn và báo hiệu trên đường sắt
2.1.2.1.7.1 Dọc đường sắt phải đặt các biển mốc chỉ dẫn và báo hiệu sau đây:
a) Loại chỉ dẫn về đường gồm có: Mốc km, 100 m; Biển đường cong, các cọc nối đầu (NĐ), nối cuối (NC), tiếp đầu (TĐ), tiếp cuối (TC); Cọc phương hướng, cọc cao độ, biển đổi dốc, biển cầu, biển hầm, mốc giới hạn quản lý.
b) Các loại báo hiệu bao gồm có: Biển giới hạn ga, biển giảm tốc độ, biển hãm, biển dẫn đường, biển chắn đường, biển kéo còi, mốc đặt pháo, mốc tránh va chạm.
2.1.2.1.7.2 Kiểu mẫu và vị trí đặt các loại biển, mốc chỉ dẫn, báo hiệu phải thực hiện theo quy định của Quy chuẩn kỹ thuật quốc gia về tín hiệu giao thông đường sắt.
Các biển, mốc chỉ dẫn đặt bên trái đường theo hướng tính km, các biển báo hiệu đặt bên trái theo hướng tàu chạy trừ mốc tránh va chạm. Ở khu đoạn đường đôi phải đặt thêm biển, mốc chỉ dẫn và báo hiệu ở bên trái theo hướng tàu chạy.
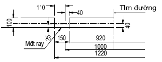
2.1.2.1.7.3 Điểm gần nhất của các biển mốc chỉ dẫn, biển hiệu phải đặt cách mép ngoài ray gần nhất là 1,75 m đối với đường 1000 mm và 2,0 m đối với đường 1435 mm và đường lồng.
Các biển mốc thấp hơn đỉnh ray phải đặt cách mép ngoài ray gần nhất là 1,10 m đối với đường 1000 mm và 1,35 m đối với đường 1435 mm và đường lồng.
Mốc tránh va chạm phải đặt ở giữa hai đường gần nhau về phía ghi, tại chỗ có khoảng cách giữa hai tim đường là 3,5 m đối với đường 1000 mm và 4,0 m đối với đường 1435 mm và đường lồng.
Đối với đường sang toa, mốc tránh va chạm phải đặt ở chỗ có khoảng cách giữa hai tim đường là 3,3 m đối với đường 1000 mm và 3,6 m đối với đường 1435 mm và đường lồng.
Trên đường cong, khoảng cách đặt các biển mốc phải cộng thêm độ nới rộng quy định trong bản vẽ khổ giới hạn tiếp giáp kiến trúc.
2.1.2.2 Thiết bị phụ trợ
2.1.2.2.1 Thiết bị tín hiệu đuôi tàu là thiết bị được sử dụng trên các đoàn tàu hàng không có toa xe trưởng tàu, bao gồm hai bộ phận cơ bản là: Bộ phận tại buồng lái và Bộ phận tại đuôi tàu.
2.1.2.2.2 Thiết bị tín hiệu đuôi tàu trước khi đưa vào sử dụng phải được cấp Giấy chứng nhận an toàn kỹ thuật còn hiệu lực của tổ chức đăng kiểm theo quy định của pháp luật.
2.1.2.3 Công trình và thiết bị chỉnh bị, sửa chữa phương tiện giao thông đường sắt
2.1.2.3.1 Các công trình, thiết bị chỉnh bị và sửa chữa phương tiện giao thông đường sắt phải có quy mô, chủng loại và số lượng phù hợp với kiểu loại và số lượng phương tiện giao thông đường sắt hiện có để bảo đảm chỉnh bị và sửa chữa các cấp với chất lượng kỹ thuật tốt theo đúng kế hoạch quy định, bảo đảm vệ sinh môi trường và an toàn lao động.
2.1.2.3.2 Trạm đầu máy, trạm khám chữa toa xe (bao gồm trạm chỉnh bị toa xe khách, trạm khám chữa tại các địa điểm quy định) phải có đầy đủ trang bị kỹ thuật và phụ tùng, vật tư cần thiết để chỉnh bị, kiểm tra và lâm tu phương tiện giao thông đường sắt kịp thời, nhanh chóng với chất lượng tốt, hạn chế thấp nhất việc hỏng hóc dọc đường cũng như việc sửa chữa cắt móc toa xe, đáp ứng được yêu cầu khi số đôi tàu trong biểu đồ chạy tàu là cao nhất.
2.1.2.3.3 Các công trình, thiết bị cấp nước cho phương tiện giao thông đường sắt phải bảo đảm cung cấp đầy đủ nước sạch cần thiết khi số lượng đôi tàu là cao nhất và các nhu cầu sử dụng nước khác cho đường sắt như vệ sinh đầu máy, toa xe, chữa cháy v.v...
Cổ hạc cấp nước cho đầu máy hơi nước phải có cơ cấu giữ ở vị trí song song với tim đường và có báo hiệu phòng vệ khi ở vị trí nằm ngang với đường.
2.1.2.3.4 Thủ trưởng các đơn vị sửa chữa, quản lý, vận dụng phương tiện giao thông đường sắt phải tổ chức quản lý, bảo dưỡng tốt tất cả các công trình, thiết bị của đơn vị để việc chỉnh bị và sửa chữa phương tiện giao thông đường sắt luôn đạt chất lượng theo tiêu chuẩn quy định.
2.1.2.4 Phương tiện và dụng cụ cứu viện, chữa cháy
2.1.2.4.1 Phải thường xuyên chuẩn bị tốt phương tiện và dụng cụ cứu viện, bao gồm: Tàu cứu viện, cần cẩu, toa xe phục vụ tại các địa điểm theo quy định để sẵn sàng giải quyết các tai nạn (bao gồm cả cần cẩu và một số toa xe phục vụ cần thiết).
2.1.2.4.2 Tại các trạm khám chữa toa xe phải có các tổ ứng phó cứu viện để giải quyết kịp thời các tai nạn nhẹ và khi cần thiết tổ chức luôn công tác cứu chữa trước khi tàu cứu viện đến.
2.1.2.4.3 Phương tiện, dụng cụ cứu viện phải bảo đảm an toàn và khôi phục chạy tàu bình thường nhanh chóng nhất.
2.1.2.4.4 Để phòng ngừa và dập tắt hỏa hoạn, tại các địa điểm quy định, phải tổ chức phòng cháy, chữa cháy với đầy đủ phương tiện, dụng cụ theo đúng quy định của pháp luật về phòng cháy, chữa cháy và bố trí lực lượng để chuẩn bị sẵn sàng cứu chữa khi cần thiết.
2.1.2.5 Ga đường sắt
2.1.2.5.1 Cấp kỹ thuật ga đường sắt
Ga đường sắt được phân thành các cấp kỹ thuật sau:
- Ga cấp I;
- Ga cấp II;
- Ga cấp III.
Yêu cầu tối thiểu đối với tác nghiệp kỹ thuật ga đường sắt và yêu cầu tối thiểu đối với số lượng đường ga được quy định trong Phụ lục D ban hành kèm theo Quy chuẩn này.
2.1.2.5.2 Ke ga
2.1.2.5.2.1 Chiều dài của ke khách tối thiểu phải bằng chiều dài tối đa của đoàn tàu khách lớn nhất đi, đến ga.
2.1.2.5.2.2 Ke khách có hai loại: Ke cao, ke thấp phải bảo đảm cho khách lên xuống tàu nhanh chóng, thuận tiện, an toàn, có lối qua ke (giao ke), cầu vượt hoặc đường ngầm bộ hành cho hành khách khi qua đường sắt để lên xuống tàu được thuận tiện, an toàn.
2.1.2.5.2.3 Ke hàng, bãi hàng phải bảo đảm đủ điều kiện bảo quản hàng hóa tốt, xếp dỡ nhanh chóng.
2.1.2.5.2.4 Ke ga phải tuân thủ khổ giới hạn tiếp giáp kiến trúc quy định tại Quy chuẩn này.
2.1.2.5.2.5 Ở những ga có ke ga đang sử dụng nếu chưa nâng cấp, cải tạo được giữ nguyên hiện trạng nhưng Doanh nghiệp kinh doanh kết cấu hạ tầng đường sắt phải có biện pháp đảm bảo an toàn, thuận tiện cho hành khách lên xuống tàu.
2.1.2.5.3 Các công trình phục vụ hành khách và hàng hóa, quảng trường, ke khách, đường đón gửi tàu khách, bãi dồn, bãi hàng kho, ke hàng, đường cầu cân, nơi chỉnh bị sửa chữa đầu máy, toa xe, đường đi lại trong ga phải có thiết bị chiếu sáng.
Đèn chiếu sáng ngoài trời không được làm ảnh hưởng đến việc nhìn rõ các đèn tín hiệu.
2.1.2.6 Cầu, cống, hầm
2.1.2.6.1 Cầu, cống, hầm phải ổn định trong quá trình khai thác theo tải trọng, tốc độ thiết kế của tuyến đường.
2.1.2.6.2 Cầu, hầm đường sắt phải tuân thủ khổ giới hạn tiếp giáp kiến trúc trong cầu, hầm quy định tại Quy chuẩn này và các điều kiện để lắp đặt thiết bị phụ trợ, đảm bảo an toàn cho nhân viên duy tu, bảo dưỡng.
2.1.2.6.3 Hầm dài, các cầu lớn, cầu trọng yếu, cầu trong thành phố, thị xã, thị trấn có nguồn điện phải lắp hệ thống chiếu sáng và bảo vệ theo quy định.
2.1.2.6.4 Trong hầm phải bố trí những vị trí cần thiết để nhân viên đường sắt tránh tàu nhằm đảm bảo an toàn khi làm nhiệm vụ theo quy định.
2.1.2.6.5 Cầu, cống, hầm phải được tổ chức kiểm định trong quá trình khai thác sử dụng theo quy định, phải phân cấp tải trọng làm cơ sở để khai thác hợp lý.
2.1.2.7 Thiết bị tín hiệu và thông tin
2.1.2.7.1 Thiết bị tín hiệu
2.1.2.7.1.1 Thiết bị tín hiệu bao gồm:
a) Các loại tín hiệu: Tín hiệu cố định gồm tín hiệu đèn mầu và tín hiệu cánh; Tín hiệu di động; Pháo hiệu; Biển báo hiệu; Đèn hiệu; Tín hiệu tay; Tín hiệu tàu; Tín hiệu tai nghe;
b) Hệ thống thiết bị liên khóa bao gồm: Thiết bị quay và khóa ghi; Thiết bị kiểm tra trạng thái đường chạy và thiết bị thực hiện khóa lẫn nhau giữa các biểu thị tín hiệu, giữa trạng thái ghi, trạng thái đường chạy và biểu thị trạng thái tín hiệu;
c) Thiết bị đóng đường bao gồm: Máy thẻ đường; Thiết bị đóng đường nửa tự động (bao gồm cả hệ thống xin đường tự động) và thiết bị đóng đường tự động.
2.1.2.7.1.2 Yêu cầu đối với các loại tín hiệu, hệ thống thiết bị liên khóa, thiết bị đóng đường thực hiện theo quy định tại Quy chuẩn kỹ thuật quốc gia về tín hiệu giao thông đường sắt.
2.1.2.7.2 Thiết bị thông tin
2.1.2.7.2.1 Thiết bị thông tin bao gồm:
a) Điện thoại điều độ chạy tàu;
b) Điện thoại đóng đường;
c) Điện thoại đường dài;
d) Điện thoại khu vực;
đ) Điện thoại khu gian;
e) Điện thoại ghi, chắn đường ngang, cầu, hầm;
g) Điện thoại hành chính ga, bảo dưỡng cầu đường, thông tin tín hiệu;
h) Điện thoại hội nghị;
i) Truyền hình hội nghị;
k) Điện thoại di động;
l) Phát thanh trong ga, trên tàu;
m) Điện thoại vô tuyến trong ga, bãi;
n) Điện thoại điều độ hàng hóa, hành khách, đầu máy, điện sức kéo;
o) Truyền ảnh, truyền số liệu, Fax, xác báo;
p) Điện thoại vô tuyến đoàn tàu - mặt đất;
q) Các trang thiết bị hướng dẫn, bảng chỉ đường, bảng thông báo và các thiết bị tương tự cung cấp thông tin cần thiết cho hành khách trong ga.
2.1.2.7.2.2 Không được phép mắc máy điện thoại và các thiết bị khác vào đường dây điện thoại đóng đường và các đường điện thoại ghi, gác chắn đường ngang, gác cầu, gác hầm.
Trên đường dây điện thoại điều độ chạy tàu chỉ được mắc máy điện thoại của nhân viên điều độ chạy tàu, Trực ban chạy tàu ga, phái ban trạm công tác trên tàu, Trực ban trạm đầu máy.
Đối với các khu gian chưa có đường điện thoại cứu viện, điện thoại thi công thì cho phép người chỉ huy cứu viện, người lãnh đạo thi công, trưởng tàu của tàu bị dừng được tạm thời mắc máy điện thoại chuyên dùng vào đường dây điện thoại điều độ chạy tàu trong thời gian cứu viện.
Không được phép mắc máy điện thoại vào đường dây trung kế đường dài trừ trường hợp mắc tạm thời để giải quyết trở ngại thông tin khi không còn đường thông tin nào khác.
2.1.2.7.2.3 Khoảng cách từ điểm thấp nhất của dây thông tin tín hiệu mắc trên không đến mặt đất, mặt ray quy định như sau:
- Trên đồng ruộng, đất bãi, đất đồi: Không nhỏ hơn 2,5 m;
- Trong ga: Không nhỏ hơn 3,0 m;
- Vượt đường bộ: Tuân thủ quy định của pháp luật về quản lý và bảo vệ kết cấu hạ tầng giao thông đường bộ.
2.1.2.7.2.4 Khoảng cách từ điểm thấp nhất của dây thông tin tín hiệu mắc trên không đến đỉnh ray tuân thủ theo quy định của pháp luật về quản lý, bảo vệ kết cấu hạ tầng giao thông đường sắt.
2.1.2.7.3 Thiết bị tín hiệu và thông tin phải bảo đảm: Tổ chức chỉ huy chạy tàu và dồn tàu được kịp thời, chính xác, an toàn và nâng cao hiệu suất chạy tàu; Việc liên hệ công tác giữa các nhân viên trong ngành được nhanh chóng, thuận tiện. Trên đường sắt, chỉ được dùng những loại thiết bị tín hiệu và thông tin theo đúng thiết kế đã được phê duyệt. Khi thay mới khẩn cấp phải thay thiết bị có tính năng, công suất và tiêu chuẩn kỹ thuật bằng hoặc cao hơn tiêu chuẩn kỹ thuật của thiết bị tương ứng đang sử dụng.
2.1.2.7.4 Các thiết bị và hệ thống đường dây thiết bị nói trên phải được bảo đảm đúng tiêu chuẩn kỹ thuật quy định; Phòng chống được ảnh hưởng nguy hiểm của điện, sét và các tác động cơ học khác.
2.1.2.7.5 Tất cả các thiết bị tín hiệu và thông tin phải được duy trì hoạt động thường xuyên đạt các yêu cầu kỹ thuật theo tiêu chuẩn của hệ thống. Người không có trách nhiệm không được phép vào các phòng máy thông tin, tín hiệu.
Nhân viên trực tiếp quản lý và sử dụng các thiết bị nói trên phải tiến hành công tác theo đúng quy định hiện hành.
2.1.2.7.6 Thiết bị tín hiệu và thông tin dùng trong việc chạy tàu phải được khóa hoặc cặp chì niêm phong theo quy định ở những bộ phận chủ yếu và quan trọng nhằm bảo đảm thiết bị sử dụng được an toàn.
Nhân viên trực tiếp sử dụng các thiết bị đó có trách nhiệm giữ toàn vẹn khóa và niêm phong.
Việc bảo quản khóa, niêm phong thiết bị tín hiệu và thông tin ở trong khu gian do doanh nghiệp kinh doanh kết cấu hạ tầng đường sắt quyết định.
Khi kiểm tra, duy tu, sửa đổi, di chuyển, thay thế, thử nghiệm các thiết bị tín hiệu và thông tin chạy tàu trong ga phải ghi vào sổ kiểm tra thiết bị chạy tàu và chỉ sau khi Trực ban chạy tàu ga đồng ý, ký tên, đóng dấu mới được tiến hành. Sau khi làm xong, phải được Trực ban chạy tàu ga thử và ký nhận thiết bị mới được sử dụng lại.
Biện pháp tiến hành những công tác nói trên đây đối với thiết bị tín hiệu và thông tin trong khu gian do Doanh nghiệp kinh doanh kết cấu hạ tầng đường sắt quy định. Nội dung cải tạo kỹ thuật, sửa đổi, thử nghiệm các thiết bị tín hiệu và thông tin phải được người có thẩm quyền theo quy định của pháp luật phê duyệt rồi mới được thực hiện và sử dụng.
2.1.2.7.7 Chỉ khi nào được Doanh nghiệp kinh doanh kết cấu hạ tầng đường sắt cho phép mới có thể thay đổi quan hệ liên khóa của thiết bị tín hiệu.
2.1.2.7.8 Khi nhiều dây thông tin cùng hỏng phải sửa chữa theo thứ tự sau đây:
a) Dây điện thoại điều độ chạy tàu;
b) Dây điện thoại đóng đường và dây điện thoại ghi, gác cầu, gác hầm, gác đường ngang;
c) Dây thông tin đường dài;
d) Các dây thông tin và tín hiệu khác.
2.1.2.7.9 Khi có tai nạn hoặc trở ngại chạy tàu làm hỏng thiết bị tín hiệu hoặc rối loạn trạng thái hoạt động của thiết bị tín hiệu ở bộ phận thuộc doanh nghiệp thông tin tín hiệu nào quản lý, thủ trưởng đơn vị phải khẩn trương, kịp thời khôi phục trạng thái bình thường của thiết bị tín hiệu.
2.2 Phương tiện giao thông đường sắt
2.2.1 Quy định chung
2.2.1.1 Không được tự ý thay đổi cấu tạo và tính năng của các bộ phận chủ yếu hoặc lắp thêm các thiết bị mới đối với phương tiện giao thông đường sắt khí tham gia giao thông. Trường hợp cần thay đổi thì phải đảm bảo an toàn chạy tàu và tuân theo các quy định của Bộ trưởng Bộ Giao thông vận tải.
2.2.1.2 Khổ giới hạn đầu máy, toa xe là đường bao của mặt cắt ngang lớn nhất của đầu máy, toa xe đặt thẳng đứng với tim đường. Bất kỳ bộ phận nào trên các phương tiện giao thông đường sắt ở trạng thái tĩnh, rỗng, có tải, mới, cũ đã tới tiêu chuẩn hạn độ cuối cùng đặt trên mặt đoạn đường bằng, thẳng đều không được vượt ra khỏi khổ giới hạn đầu máy, toa xe ghi trong các bản vẽ B.1 và B.2 của Phụ lục B ban hành kèm theo Quy chuẩn này.
Những phương tiện giao thông đường sắt đang sử dụng có một số bộ phận nằm ngoài khổ giới hạn đầu máy, toa xe đã được kiểm toán và có quyết định cho vận dụng vẫn tiếp tục được sử dụng.
2.2.2 Quy định về đăng ký, số hiệu, thông tin của phương tiện
2.2.2.1 Trên phương tiện giao thông đường sắt ngoài việc phải ghi số đăng ký, dán tem kiểm định theo quy định của Bộ trưởng Bộ Giao thông vận tải còn phải ghi số hiệu, tên của chủ phương tiện, nơi và ngày tháng năm chế tạo, sửa chữa định kỳ. Ngoài ra:
a) Đầu máy phải ghi ký hiệu thể hiện được kiểu loại, công suất, kiểu truyền động, số hiệu, tự trọng. Riêng ô tô ray phải có ghi số chỗ ngồi;
b) Toa xe phải ghi ký hiệu và số hiệu toa xe, tự trọng, trọng tải, loại ghế, loại giường, chiều dài, chiều rộng, chiều cao, dung tích, thời gian, nơi làm dầu, khám hãm và các ký hiệu riêng khác.
2.2.2.2 Toa xe khách và toa trưởng tàu phải có móc ở hai bên thành toa và hai xà đầu để đặt tín hiệu đuôi tàu. Móc ở hai bên thành toa phải bảo đảm khi lắp đèn loại tiêu chuẩn không vượt quá khổ giới hạn đầu máy, toa xe.
Trường hợp đoàn tàu hàng sử dụng Thiết bị tín hiệu đuôi tàu thay cho toa trưởng tàu, Bộ phận tại đuôi tàu thay thế tín hiệu tàu của toa xe cuối đoàn tàu.
2.2.2.3 Tất cả các toa xe đều phải qua kiểm tra hợp tiêu chuẩn mới được lắp vào đoàn tàu.
2.2.3 Đôi bánh xe của phương tiện giao thông đường sắt
2.2.3.1 Khoảng cách phía trong giữa hai đai bánh hoặc vành bánh của đôi bánh xe phải phù hợp với quy định sau:
a) Khổ đường 1000 mm: 924 ± 3 mm;
b) Khổ đường 1435 mm: 1353 ± 3 mm.
Chiều rộng và chiều dày đai bánh xe, vành bánh phải phù hợp với kích thước quy định đối với từng loại phương tiện giao thông đường sắt.
2.2.3.2 Không được phép đưa phương tiện giao thông đường sắt ra vận dụng và nối vào đoàn tàu khi đôi bánh xe có một trong những khuyết tật dưới đây:
a) Thân trục có vết nứt ngang hoặc chéo lớn hơn 30° so với đường tâm dọc;
b) Thân trục có vết nứt dọc hoặc bị ngậm than chiều dài quá 20 mm;
c) Thân trục có vết mòn sâu quá 4 mm đối với đầu máy và phương tiện động lực chuyên dùng đường sắt, quá 2,5 mm đối với toa xe và xe than nước;
d) Đai bánh xe, bánh xe hoặc ổ trục bị hỏng;
đ) Mặt lăn bánh xe mòn lõm sâu quá:
1) Đầu máy, ô tô ray, toa xe động lực, phương tiện động lực chuyên dùng đường sắt, xe than nước khổ 1000 mm và 1435 mm: 7 mm;
2) Toa xe khổ đường 1000 mm: 7 mm;
3) Toa xe khách khổ đường 1435 mm: 8 mm;
4) Toa xe hàng khổ đường 1435 mm: 9 mm.
e) Mặt lăn bánh xe mòn vẹt sâu quá:
1) Đầu máy diesel, ô tô ray, toa xe động lực, phương tiện động lực chuyên dùng đường sắt: 0,7 mm;
2) Đầu máy hơi nước, xe than nước, toa xe ổ lăn: 1,0 mm;
3) Toa xe ổ trượt: 2,0 mm.
g) Lợi bánh xe đo bằng thước chuyên dùng:
1) Đo chiều dày:
- Khổ đường 1000 mm: Tại vị trí đo cách mặt lăn 10 mm thì không được nhỏ hơn 18 mm và lớn quá 30 mm;
- Khổ đường 1435 mm: Tại vị trí đo cách mặt lăn 10 mm thì không được nhỏ hơn 22 mm và lớn quá 34 mm.
2) Chiều cao của vết mòn thẳng đứng:
- Khổ đường 1000 mm: quá 22 mm;
- Khổ đường 1435 mm: quá 18 mm.
3) Lợi bánh xe bị mòn đùn thành gờ.
h) Chiều dày đai bánh xe hoặc vành bánh toa xe nhỏ hơn quy định tại Bảng 2.
Bảng 2 - Chiều dày đai bánh xe hoặc vành bánh xe
|
Khổ đường (mm) |
Loại toa xe |
Chiều dày đai bánh (mm) |
Chiều dày vành bánh (mm) |
|
1000 |
Toa xe khách Toa xe hàng |
30 25 |
25 25 |
|
1435 |
Toa xe khách Toa xe hàng |
33 25 |
25 25 |
2.2.3.3 Khi nối toa xe hàng vào tàu khách thì chiều dày đai, vành bánh xe cũng như các tiêu chuẩn khác của đôi bánh toa xe đó phải phù hợp với tiêu chuẩn quy định của đôi bánh toa xe khách.
2.2.4 Thiết bị hãm và móc nối, đỡ đấm
2.2.4.1 Đầu máy, toa xe, ô tô ray phải có hãm gió ép. Hãm gió ép phải thường xuyên tốt, thao tác thuận tiện, bảo đảm độ tin cậy trong các điều kiện làm việc khác nhau, bảo đảm tác dụng hãm linh hoạt và khi ống gió đoàn tàu bị đứt, vỡ hoặc khi giật van hãm khẩn cấp phải lập tức phát sinh tác dụng hãm đối với hãm gió ép.
2.2.4.2 Phương tiện giao thông đường sắt phải có hệ thống hãm tay hoạt động tốt, trừ những phương tiện mà thiết kế đã được phê duyệt không có.
Hãm tay phải được bảo dưỡng thường xuyên theo tiêu chuẩn hiện hành.
2.2.4.3 Móc nối và đỡ đấm phải lắp đúng kiểu loại và hoạt động tốt. Khoảng cách từ đường tâm móc nối đến mặt ray quy định tại Bảng 3.
Bảng 3 - Khoảng cách từ đường tâm móc nối đến mặt ray
|
Cho phép |
Loại phương tiện giao thông đường sắt |
Khoảng cách (mm) |
|
|
Khổ đường 1000 mm |
Khổ đường 1435 mm |
||
|
Lớn nhất |
- Đầu máy, ô tô ray, toa xe động lực, xe than nước - Toa xe khách và hàng |
825 |
890 |
|
Nhỏ nhất |
- Đầu máy, ô tô ray, toa xe động lực, xe than nước, toa xe khách và hàng nặng |
755 |
815 |
|
- Toa xe khách rỗng, toa xe động lực rỗng |
795 |
855 |
|
|
- Toa xe hàng rỗng, toa trưởng tàu |
795 |
835 |
|
2.2.5 Bảo dưỡng, sửa chữa và vận dụng phương tiện giao thông đường sắt
2.2.5.1 Quy định chung
2.2.5.1.1 Không được phép đưa vào khai thác các phương tiện giao thông đường sắt có những khuyết tật uy hiếp đến an toàn chạy tàu.
Chủ phương tiện có trách nhiệm quy định danh mục các khuyết tật uy hiếp đến an toàn chạy tàu.
2.2.5.1.2 Việc sửa chữa, bảo dưỡng phương tiện giao thông đường sắt phải thực hiện theo đúng quy trình bảo dưỡng, sửa chữa do Chủ phương tiện ban hành.
2.2.5.2 Doanh nghiệp kinh doanh kết cấu hạ tầng đường sắt quy định hình thức và số định biên của ban lái tàu trên đầu máy, ô tô ray, toa xe động lực, phương tiện động lực chuyên dùng đường sắt chạy trên đường sắt và phải bảo đảm an toàn trong vận dụng.
Đối với đầu máy diesel có thiết bị ghép đôi hoàn chỉnh cho phép chỉ có một ban lái tàu điều khiển nhiều đầu máy ghép liền từ một buồng lái.
2.2.6 Goòng thủ công
Yêu cầu kỹ thuật, biện pháp bảo dưỡng và sử dụng các loại goòng thủ công (goòng bàn, goòng đẩy tay, goòng kiểm tra đường, goòng dò vết nứt ray...) do doanh nghiệp kinh doanh kết cấu hạ tầng đường sắt quyết định.
2.3 Tổ chức chạy tàu
2.3.1 Biểu đồ chạy tàu
2.3.1.1 Cơ sở của việc tổ chức chạy tàu là Biểu đồ chạy tàu. Biểu đồ chạy tàu là mệnh lệnh đối với tổ chức, cá nhân có liên quan đến hoạt động giao thông vận tải đường sắt.
2.3.1.2 Các quy định về: Loại tàu và thứ tự ưu tiên các tàu; Số hiệu tàu; Nội dung cơ bản của biểu đồ chạy tàu; Yêu cầu khi xây dựng, điều chỉnh biểu đồ chạy tàu; Trình tự xây dựng công bố biểu đồ chạy tàu; Điều chỉnh biểu đồ chạy tàu và chạy thêm tàu thực hiện theo quy định của Bộ trưởng Bộ Giao thông vận tải về xây dựng biểu đồ chạy tàu và điều hành giao thông vận tải đường sắt.
2.3.1.3 Quy định về giờ chạy tàu: Giờ chạy tàu lấy theo múi giờ Hà Nội, mỗi ngày là 24 giờ tính từ 18 giờ ngày hôm trước đến 18 giờ ngày hôm sau.
2.3.2 Điểm phân giới
2.3.2.1 Quy định chung
2.3.2.1.1 Việc chạy tàu được thực hiện với giãn cách bằng các điểm phân giới, trường hợp đặc biệt thì thực hiện bằng giãn cách thời gian.
2.3.2.1.2 Điểm phân giới là ga, trạm đóng đường và cột tín hiệu đèn màu thông qua của khu gian đóng đường tự động.
2.3.2.1.3 Các điểm phân giới chia tuyến đường thành những khu gian hoặc phân khu để đóng đường cho tàu chạy.
2.3.2.1.4 Trạm đóng đường là điểm phân giới không có đường phụ.
2.3.2.1.5 Trạm bổ trợ (quản lý ghi trong khu gian), trạm hành khách và trạm hàng hóa không phải là điểm phân giới.
2.3.2.2 Quy định về giới hạn của ga, trạm
2.3.2.2.1 Giới hạn theo chiều dọc của ga được xác định từ vị trí xác định tín hiệu vào ga phía bên này đến vị trí xác định tín hiệu vào ga phía bên kia.
2.3.2.2.2 Giới hạn của trạm đóng đường hoặc phân khu đóng đường tự động là tâm của cột tín hiệu thông qua.
2.3.2.2.3 Trên khu đoạn đường đôi chạy tàu một chiều, phân theo đường chính tuyến, giới hạn ga là cột tín hiệu vào ga (phía tàu đến) và phía đối diện là điểm cách ghi ngoài cùng vào ga không dưới 50 m.
2.3.2.2.4 Trên khu đoạn đường đôi đóng đường tự động chạy tàu hai chiều, giới hạn ga phân theo đường chính tuyến của mỗi chiều là vị trí xác định tín hiệu vào ga.
2.3.2.3 Quy định về đặt tên ga, trạm
2.3.2.3.1 Tất cả các ga, trạm (bao gồm cả trạm đóng đường, trạm hành khách, trạm hàng hóa, trạm bổ trợ) đều phải có tên và không được đặt trùng tên trên cùng một tuyến.
2.3.2.3.2 Các cột tín hiệu đèn màu thông qua của khu gian đóng đường tự động phải có số hiệu.
2.3.2.3.3 Tên các ga, trạm được viết bằng chữ in hoa cỡ lớn ở vị trí dễ quan sát
2.3.2.3.4 Ở ga có nhiều đường đón gửi tàu khách phải đặt thêm bảng tên ga, tên đường ke hướng về phía tàu đến tại các vị trí để hành khách dễ quan sát nhất.
2.3.2.4 Đường sắt được chia ra các loại đường như sau: Đường chính tuyến, đường ga, đường dùng đặc biệt
2.3.2.4.1 Đường chính tuyến là đường nối liền và xuyên qua các điểm phân giới.
2.3.2.4.2 Đường ga gồm có:
a) Đường đón gửi tàu;
b) Đường xếp dỡ;
c) Đường dồn;
d) Đường rút dồn.
2.3.2.4.3 Đường dùng đặc biệt gồm có:
a) Đường an toàn, đường lánh nạn;
b) Đường nhánh, đường chuyên dùng;
c) Đường do các xí nghiệp đầu máy, toa xe quản lý;
d) Các đường khác (tên đường sẽ tùy theo công dụng mà xác định).
2.3.2.5 Các đường trong ga (kể cả đường chính) đều phải có số hiệu riêng. Đường trong một ga hoặc một bãi (đối với ga có nhiều bãi) không được trùng số hiệu. Việc đánh số đường quy định như sau:
a) Đường ga:
1) Đánh số từ 1 trở lên;
2) Đường chính tuyến đánh số La mã, các đường khác đánh số thường.
b) Các đường còn lại do Doanh nghiệp kinh doanh kết cấu hạ tầng đường sắt hoặc chủ sở hữu đường sắt chuyên dùng quy định.
2.3.2.6 Các ga, trạm phải có bản vẽ mặt bằng thu nhỏ của ga, trạm và bản vẽ mặt cắt dọc của các đường trong ga, trạm theo quy định của Doanh nghiệp kinh doanh kết cấu hạ tầng đường sắt hoặc của chủ sở hữu đường sắt chuyên dùng.
2.3.3 Tổ chức công tác kỹ thuật ga, trạm
2.3.3.1 Quy tắc quản lý kỹ thuật ga, trạm
Tất cả các ga, trạm đóng đường và trạm bổ trợ đường nhánh đều phải có Quy tắc quản lý kỹ thuật.
Việc tổ chức quản lý kỹ thuật và biện pháp sử dụng các thiết bị ở ga, trạm nhằm bảo đảm việc đón gửi tàu, dồn dịch được an toàn, chính xác và liên tục phải được quy định trong Quy tắc quản lý kỹ thuật ga, trạm do Doanh nghiệp kinh doanh kết cấu hạ tầng đường sắt hoặc của chủ sở hữu đường sắt chuyên dùng ban hành và sao gửi cho các đơn vị liên quan để tổ chức thực hiện.
Tại các phòng trực ban chạy tàu ga, phòng điều độ ga, chòi ghi và những nơi cần thiết khác phải niêm yết bản trích lục Quy tắc quản lý kỹ thuật ga, trạm. Nội dung trích lục do Doanh nghiệp kinh doanh kết cấu hạ tầng đường sắt hoặc của chủ sở hữu đường sắt chuyên dùng quy định.
Mọi nhân viên của ga, trạm và những nhân viên của các đơn vị khác công tác trong phạm vi ga, trạm có liên quan đến chạy tàu đều phải thông thạo và chấp hành Quy tắc quản lý kỹ thuật ga, trạm.
2.3.3.2 Sử dụng tín hiệu
2.3.3.2.1 Biểu thị của tín hiệu là mệnh lệnh về điều kiện chạy tàu và dồn tàu. Tất cả nhân viên đường sắt làm công tác có liên quan đến chạy tàu và dồn tàu đều phải thông thuộc Quy chuẩn kỹ thuật quốc gia về tín hiệu giao thông đường sắt và phải chấp hành vô điều kiện mệnh lệnh của tín hiệu phát ra.
2.3.3.2.2 Tín hiệu dùng trong ngành đường sắt gồm có tín hiệu mắt thấy và tín hiệu tai nghe.
Tín hiệu mắt thấy bao gồm: Tín hiệu ban ngày, tín hiệu ban đêm và tín hiệu cả ngày lẫn đêm.
Trường hợp ban ngày thời tiết xấu như có sương mù, mưa to, gió lớn ... mà tầm báo hiệu của tín hiệu ban ngày không bảo đảm khoảng cách quy định thì phải dùng tín hiệu ban đêm.
Trong hầm chỉ sử dụng tín hiệu ban đêm hoặc tín hiệu cả ngày lẫn đêm.
Tín hiệu tai nghe được sử dụng cả ngày lẫn đêm.
2.3.3.2.3 Biểu thị của tín hiệu phải bảo đảm rõ ràng, chính xác kịp thời theo quy định.
Khi tín hiệu ra ga, vào ga, ra bãi, vào bãi, tín hiệu thông qua và tín hiệu phòng vệ biểu thị không đúng, không rõ thì coi như báo tín hiệu "ngừng".
Không cho phép tàu hoặc đầu máy vượt quá tín hiệu "ngừng" (trừ trường hợp đặc biệt quy định trong Quy chuẩn này và quy định cụ thể của Doanh nghiệp kinh doanh kết cấu hạ tầng đường sắt hoặc Chủ sở hữu đường sắt chuyên dùng trong Quy trình chạy tàu và công tác dồn đường sắt).
2.3.3.2.4 Khi thời tiết xấu như có sương mù, mưa to, gió lớn... khó xác định tín hiệu và đường không thanh thoát hoặc hư hỏng, không thể đón tàu vào ga được hoặc không thể cho tàu chạy qua địa điểm phòng vệ vào phân khu phía trước thì không kể ngày hay đêm đều phải đặt pháo hiệu phụ trợ cho tín hiệu vào ga, tín hiệu phòng vệ hoặc tín hiệu thông qua nếu các tín hiệu này không có tín hiệu báo trước.
Phương pháp đặt pháo hiệu phụ trợ được quy định trong Quy chuẩn kỹ thuật quốc gia về tín hiệu giao thông đường sắt.
2.3.3.3 Quản lý ghi
2.3.3.3.1 Quy định chung
2.3.3.3.1.1 Các bộ ghi trên đường sắt phải được quản lý để bảo đảm an toàn chạy tàu.
2.3.3.3.1.2 Ghi trên các đường trong ga do Trưởng ga quản lý, ghi trên đường thuộc các tổ chức khác do Thủ trưởng các tổ chức đó quản lý, trừ ghi trên đường nối thông với đường ga (kể cả ghi liên động hoặc liên khóa với ghi nối thông) thì do trưởng ga quản lý.
2.3.3.3.1.3 Ghi đặt trên đường chính tuyến trong khu gian có trạm bổ trợ do trạm này quản lý. Nếu không có trạm bổ trợ thì do doanh nghiệp kinh doanh kết cấu hạ tầng đường sắt chỉ định một ga đầu của khu gian đó quản lý.
Đối với đường sắt chuyên dùng do chủ sở hữu đường sắt chuyên dùng chỉ định.
2.3.3.3.1.4 Trưởng ga, Thủ trưởng các đơn vị chịu trách nhiệm bảo quản, bảo dưỡng những ghi thuộc quyền quản lý của mình luôn sử dụng tốt và bảo đảm đèn ghi chiếu sáng tốt (trừ ghi điều khiển tập trung).
2.3.3.3.2 Mỗi ghi phải có một số hiệu. Việc đánh số hiệu ghi quy định như sau:
a) Lấy trung tâm ga hoặc bãi làm mốc để đánh số thứ tự từ ngoài vào trong, phía tàu số lẻ đến đánh số lẻ, phía tàu số chẵn đến đánh số chẵn;
b) Đối với những ga cá biệt, Doanh nghiệp kinh doanh kết cấu hạ tầng đường sắt quy định cách đánh số riêng.
Đối với những ga cá biệt thuộc đường sắt chuyên dùng do chủ sở hữu đường sắt chuyên dùng quy định.
2.3.3.3.3 Trừ lúc sử dụng, lau chùi hoặc kiểm tra sửa chữa, ghi phải luôn để ở định vị như sau:
a) Ghi vào ga của đường chính tuyến trên khu đoạn đường đơn ở hai đầu ga phải để ở vị trí thông vào hai đường khác nhau;
b) Ghi vào ga của đường chính tuyến trên khu đoạn đường đôi phải để thông vào đường chính tuyến tương ứng;
c) Các ghi khác trên đường chính tuyến trong ga và trong khu gian phải để ở vị trí cho đường chính tuyến được thông (trừ những ghi vào đường an toàn, đường lánh nạn);
d) Ghi vào đường an toàn, đường lánh nạn phải ở vị trí thông vào các đường này;
đ) Định vị các ghi trên đường khác do trưởng ga quy định. Các ghi điều khiển tập trung bằng điện có thể không ở định vị;
e) Định vị của ghi phải được quy định rõ trong Quy tắc quản lý kỹ thuật ga, trạm.
2.3.3.3.4 Trước khi đón tàu hoặc gửi tàu, tất cả những ghi có quan hệ với đường tàu vào, tàu ra đều phải khóa chặt.
Việc quay và khóa những ghi đó do Gác ghi, Trưởng ghi hoặc Trực ban chạy tàu ga tự làm.
Sau khi khóa ghi xong, nếu chìa khóa không được giữ trong đài khống chế hoặc thiết bị giữ chìa khóa thì Trực ban chạy tàu ga phải bảo quản.
2.3.3.3.5 Chìa khóa những ghi dẫn vào những đường quy định đặc biệt dưới đây, nếu không có quan hệ liên khóa thì sau khi khóa xong phải do Trực ban chạy tàu ga bảo quản:
a) Ghi dẫn vào đường để đoàn xe cứu viện, xe xếp chất nổ, chất độc, khí nén và các hàng hóa nguy hiểm khác. Các ghi này phải khóa ở vị trí không cho đường khác thông vào đường này.
b) Ghi dẫn vào đường lánh nạn.
c) Ghi dẫn vào đường đón, gửi tàu ở ga dọc đường mà đường này đang có tàu, đầu máy, toa xe chiếm dụng hoặc đang có chướng ngại. Ghi này phải quay sang vị trí khác không thông vào đường nói trên và khóa chặt ở vị trí đó.
d) Ghi độ tuyến giữa hai đường chính tuyến.
đ) Ghi nối vào đường chính tuyến trong khu gian chưa có quan hệ liên khóa với thiết bị đóng đường. Ghi này phải khóa chặt ở vị trí khai thông đường chính tuyến và chìa khóa ghi do Trực ban chạy tàu ga đầu khu gian bảo quản mặc dù có trạm bổ trợ hay không. Trường hợp có quan hệ liên khóa với thiết bị đóng đường thì chìa khóa dự trữ do Trực ban chạy tàu ga đầu khu gian được chỉ định quản lý, bảo quản.
2.3.3.3.6 Mỗi ghi hoặc mỗi nhóm ghi do một Gác ghi lên ban phụ trách và chịu trách nhiệm về chạy tàu và dồn tàu an toàn qua những ghi đó. Những ghi cá biệt do Trực ban chạy tàu ga phụ trách.
Những ga có nhiều gác ghi lên ban và khối lượng công việc lớn thì phải bố trí một Trưởng ghi.
Ở ga có ghi và tín hiệu điều khiển tập trung phải đặt trạm điều khiển tập trung. Tại mỗi trạm nói trên chỉ do một nhân viên phụ trách (trực ban trạm, trực ban bãi hoặc phụ Trực ban chạy tàu ga). Mọi công tác ở trạm này phải theo sự điều khiển của Trực ban chạy tàu ga, ở bãi dồn dốc gù thi theo sự chỉ huy của Trực ban dốc gù.
Nhiệm vụ cụ thể của Gác ghi, Trưởng ghi và Nhân viên điều khiển tập trung do Doanh nghiệp kinh doanh kết cấu hạ tầng đường sắt hoặc Chủ sở hữu đường sắt chuyên dùng quy định trong Quy trình chạy tàu và công tác dồn đường sắt.
2.3.3.3.7 Việc quay những ghi không sử dụng thiết bị tín hiệu điều khiển tập trung, do gác ghi lên ban trực tiếp thực hiện theo quy định sau đây:
a) Khi chuẩn bị đường đón, gửi tàu phải theo lệnh của Trực ban chạy tàu ga, trạm hoặc Trực ban bãi (nhận lệnh trực tiếp hoặc qua Trưởng ghi truyền đạt);
b) Khi dồn tàu phải theo kế hoạch và tín hiệu khai thông đường của Trưởng dồn hoặc lệnh của Trực ban dốc gù;
c) Người không có phận sự không được phép quay ghi thay Gác ghi, trừ các trường hợp sau đây:
1) Cho phép nhân viên trong tổ dồn hoặc Trưởng tàu quay ghi khi dồn trên đường nhánh ngoài khu gian;
2) Cho phép Trực ban chạy tàu ga, các nhân viên trong tổ dồn quay ghi ở trong ga khi dồn trên đường không có gác ghi phụ trách.
2.3.3.3.8 Việc quay những ghi sử dụng thiết bị tín hiệu điều khiển tập trung, do trực ban chạy tàu ga lên ban trực tiếp thực hiện theo quy định sau đây:
a) Khi chuẩn bị đường chạy đón, gửi tàu, dồn tàu phải theo kế hoạch của nhân viên điều độ chạy tàu tuyến hoặc nhân viên điều độ chạy tàu ga.
b) Trước khi quay ghi để chuẩn bị đường chạy đón, gửi tàu, dồn tàu phải trực tiếp xác nhận qua đài điều khiển là khu vực ghi không có trở ngại.
c) Không được phép cho người không có phận sự quay ghi thay trực ban chạy tàu ga, trừ trường hợp nhân viên tổ dồn hoặc gác ghi trực tiếp quay ghi khi ghi điều khiển tập trung đã được chuyển thành ghi quay thủ công tại chỗ.
d) Trường hợp ở yết hầu ga hoặc bãi dồn có bố trí thiết bị ủy quyền dồn tàu, trực ban chạy tàu ga có thể ủy quyền cho trực ban trạm, trực ban bãi hoặc phụ trực ban chạy tàu ga thực hiện quay ghi để thiết lập đường chạy dồn tàu theo kế hoạch của trực ban chạy tàu ga nhưng phải bảo đảm an toàn chạy tàu.
2.3.3.3.9 Đối với các ga có bố trí gác ghi, khi thấy trạng thái ghi không tốt như: Lưỡi ghi không khít, bị sứt mẻ quá tiêu chuẩn quy định, khóa ghi không sử dụng được, biển ghi, đèn ghi không đúng hướng... Gác ghi lên ban phải báo ngay cho Trực ban chạy tàu ga, trực ban bãi hoặc Trưởng ghi biết. Nếu thấy sự hỏng hóc có nguy hại tới an toàn chạy tàu, Gác ghi lên ban phải đặt tín hiệu phòng vệ ghi, cấm tàu, đầu máy, toa xe qua lại rồi tự mình hoặc qua Trưởng ghi báo cáo tình hình đó cho Trực ban chạy tàu ga biết. Nhận được báo cáo, Trực ban chạy tàu ga phải báo ngay cho đơn vị quản lý ghi đến kiểm tra, sửa chữa.
Khi sửa chữa ghi, Gác ghi lên ban phải theo dõi công việc sửa chữa và nếu có ảnh hưởng đến chạy tàu còn phải kiểm tra việc phòng vệ.
Khi ghi sửa chữa xong, Gác ghi phải cùng với nhân viên sửa chữa tiến hành thử nghiệm. Nếu kết quả tốt, báo cáo để Trực ban chạy tàu ga xác nhận rồi mới được sử dụng.
2.3.3.4 Công tác dồn
2.3.3.4.1 Quy định chung
2.3.3.4.1.1 Dồn tàu phải theo kế hoạch của Trực ban chạy tàu ga hoặc Nhân viên điều độ chạy tàu ga.
2.3.3.4.1.2 Công tác dồn phải thực hiện theo đúng quy trình tác nghiệp kỹ thuật ga, kế hoạch của ga và bảo đảm an toàn chạy tàu, an toàn lao động, bảo đảm đầu máy, toa xe và hàng hóa được nguyên vẹn.
2.3.3.4.1.3 Người lãnh đạo công tác dồn trong ga là Trực ban chạy tàu ga (hoặc nhân viên điều độ chạy tàu ga), trạm, Trực ban đường hoặc Trực ban dốc gù. Việc phân định trách nhiệm giữa các nhân viên nói trên phải được quy định trong Quy tắc quản lý kỹ thuật ga, trạm.
2.3.3.4.2 Trong quá trình dồn, Lái tàu phải tuân theo sự điều khiển của Trưởng dồn. Việc ra lệnh cho đầu máy di chuyển khi dồn chỉ do một người chỉ huy duy nhất là Trưởng dồn.
2.3.3.4.3 Ở những ga có nhiều bãi dồn, mỗi bãi có thể bố trí đầu máy và tổ dồn chuyên trách.
Ở các ga dọc đường và đường nhánh có trạm bổ trợ mà không có tổ dồn, Trực ban chạy tàu ga, trạm làm nhiệm vụ Trưởng dồn với sự tham gia của Trưởng tàu (nếu có).
Ở đường nhánh không có trạm bổ trợ mà không có tổ dồn, Trưởng tàu của tàu có cắt móc toa xe làm nhiệm vụ Trưởng dồn.
Đối với đoàn tàu hàng sử dụng thiết bị tín hiệu đuôi tàu mà không bố trí trưởng tàu thì ga gửi tàu vào đường nhánh phải bố trí Trưởng dồn thực hiện nhiệm vụ theo quy định.
2.3.3.4.4 Lái tàu không được phép cho đầu máy dồn chuyển dịch khi chưa nhận được kế hoạch dồn và tín hiệu của trưởng dồn cho phép. Khi dồn, ban lái tàu có trách nhiệm:
a) Bảo đảm hoàn thành kế hoạch dồn chính xác và kịp thời;
b) Chấp hành nghiêm chỉnh, kịp thời tín hiệu chỉ huy dồn;
c) Chú ý chướng ngại phía trước, người qua lại, vị trí ghi và vị trí đầu máy, toa xe trên đường để dừng tàu kịp thời;
d) Bảo đảm an toàn cho công tác dồn và đầu máy, toa xe, hàng hóa được nguyên vẹn.
2.3.3.4.5 Khi dồn không được phép vượt quá tốc độ quy định dưới đây:
a) 25 km/h khi kéo toa xe trên đường thanh thoát;
b) 15 km/h khi đẩy toa xe trên đường thanh thoát và không kể kéo hay đẩy khi chạy qua ghi vào đường rẽ;
c) 10 km/h khi dồn toa xe có người ngồi (trừ người áp tải), toa xe chở chất nổ, chất độc, khí nén, khí hóa lỏng và các hàng nguy hiểm khác;
d) 3 km/h khi đầu máy đến gần toa xe định nối hoặc gần bục chắn. Tốc độ đẩy hoặc kéo toa xe qua cầu cân để cân toa xe theo quy định tốc độ của cầu cân;
Tốc độ đẩy toa xe trên dốc gù do Doanh nghiệp kinh doanh kết cấu hạ tầng đường sắt quyết định. Đối với đường sắt chuyên dùng do chủ sở hữu đường sắt chuyên dùng quyết định.
2.3.3.4.6 Không được phép dồn phóng và thả trôi từ dốc gù xuống các toa xe sau đây và không được phép phóng hoặc thả trôi các toa xe khác vào chúng:
a) Toa xe có chở người;
b) Toa xe khách và các toa xe có ghi dấu hiệu "CẤM PHÓNG";
c) Toa xe chở chất nổ, chất độc, khí nén, khí hóa lỏng và các hàng nguy hiểm khác, toa xe xi téc rỗng đã lấy hết thể khí hóa lỏng nhưng chưa rửa, toa chở động vật sống và toa chở máy móc, thiết bị tinh vi, hàng dễ vỡ;
d) Toa xếp hàng vượt quá giới hạn từ cấp 1 trở lên, hàng xếp vượt quá 1 toa xe;
đ) Đầu máy không làm việc;
e) Toa xe mặt bằng, mặt võng chở hàng khối to và nặng;
g) Toa xe cần trục đường sắt;
h) Toa xe có trang thiết bị đặc biệt dùng vào công việc riêng (toa vô tuyến điện, toa phát điện, toa kiểm tra cầu đường, toa y tế, toa ướp lạnh, toa xe phục vụ công việc nghiên cứu thí nghiệm khoa học kỹ thuật...);
Những đầu máy, toa xe nói trên chỉ có thể qua dốc gù khi có đầu máy nối đi kèm.
Không được phép phóng vào các đường có toa xe đang tác nghiệp kỹ thuật, sửa chữa hoặc xếp, dỡ hàng, vào đường nhánh trong khu gian, vào đường chưa được chiếu sáng đầy đủ và khi có sương mù, mưa to, gió lớn.
Biện pháp cụ thể về dồn phóng và những ga được phép dồn phóng do Doanh nghiệp kinh doanh kết cấu hạ tầng đường sắt quyết định. Đối với đường sắt chuyên dùng do chủ sở hữu đường sắt chuyên dùng quyết định.
2.3.3.4.7 Phương tiện giao thông đường sắt đỗ trên đường phải ở trong mốc tránh va chạm, trừ các trường hợp đặc biệt sau đây:
a) Ở bãi dồn, toa xe dồn phóng chưa lọt trong mốc tránh va chạm nhưng không ảnh hưởng đến việc dồn vào đường khác và sau đợt dồn nhất thiết phải điều chỉnh lại để toa xe lọt vào trong mốc tránh va chạm.
b) Ở bãi xếp dỡ vì thiếu đường chứa xe hoặc khó khăn về địa điểm xếp dỡ, toa xe được tạm để ngoài mốc tránh va chạm nhưng không được làm trở ngại đến việc đón, gửi tàu, dồn tàu bình thường và phải phòng vệ phía đầu máy, toa xe có thể chạy vào.
Không được phép để phương tiện giao thông đường sắt đỗ trên đường an toàn, đường lánh nạn.
Những toa xe đỗ trên đường mà không xếp, dỡ hàng hóa, không làm vệ sinh toa xe hoặc không sửa chữa phải đóng các cửa lại.
Trước khi cắt đầu máy khỏi toa xe để lại trên đường có độ dốc quá 2,5 ‰ phải xả hết hãm gió đoàn xe, siết chặt hãm tay và chèn chắc chắn.
Những toa xe đỗ trên đường ga, đường nhánh trong khu gian và đường dùng riêng nếu chưa dồn thì phải nối liền với nhau, siết chặt hãm tay ở hai đầu đoàn xe và chèn chắc chắn.
2.3.3.4.8 Những toa xe chở hàng nguy hiểm như chất nổ, chất cháy... chưa lắp vào tàu phải được nối liền với nhau, chèn chắc chắn để riêng trên một đường và phòng vệ bằng tín hiệu di động "ngừng". Các ghi dẫn vào đường này phải để thông sang đường khác, khi cần thiết phải khóa lại để không cho phương tiện giao thông đường sắt khác chạy vào.
2.3.3.4.9 Dồn trên đường chính tuyến hoặc giao cắt đường chính tuyến chỉ được thực hiện khi chưa có lệnh đón tàu vào ga và mỗi lần dồn phải được Trực ban chạy tàu ga cho phép.
Không được phép dồn khỏi giới hạn ga khi chưa được Nhân viên điều độ chạy tàu đồng ý và chưa giao cho Lái tàu bằng chứng chiếm dụng khu gian.
2.3.3.4.10 Đối với những ga có độ dốc quá 2,5 ‰ khi dồn toa xe có thể bị trôi vào khu gian nên cần phải có đường rút dồn. Nếu không có đường rút dồn, trong trường hợp đặc biệt thì chỉ có thể dồn với điều kiện đầu máy nối ở phía dưới dốc, nếu không làm như thế được thì phải nối tất cả hãm gió ép của đoàn xe với đầu máy dồn và phải thử hãm trước khi dồn.
Biện pháp dồn ở những ga có độ dốc như trên phải được quy định trong Quy tắc quản lý kỹ thuật ga.
2.3.3.5 Lập tàu
2.3.3.5.1 Quy định chung
2.3.3.5.1.1 Việc lập tàu phải theo đúng những quy định trong Quy chuẩn này, trong kế hoạch lập tàu và Biểu đồ chạy tàu.
2.3.3.5.1.2 Người chịu trách nhiệm về lập tàu là Nhân viên điều độ ga hoặc Trực ban chạy tàu ga (đối với ga không bố trí Nhân viên điều độ ga).
2.3.3.5.1.3 Khi cần thiết phải cho chạy những đoàn tàu quá dài hoặc quá trọng lượng do Doanh nghiệp kinh doanh kết cấu hạ tầng đường sắt quyết định.
Đối với đường sắt chuyên dùng phải theo lệnh của Chủ sở hữu đường sắt chuyên dùng.
2.3.3.5.1.4 Cách tính chiều dài và trọng lượng đoàn tàu theo Quy trình tính toán sức kéo đoàn tàu đường sắt.
2.3.3.5.2 Không được phép nối vào tàu những toa xe sau đây:
a) Toa xe vi phạm hạn độ kỹ thuật uy hiếp tới an toàn chạy tàu; toa xe có lò xo hay nhíp bị kẹt hoặc oằn xuống không đều làm thân toa xe bị nghiêng quá hạn độ quy định, thân toa xe và bệ xe va vào bộ phận chạy;
b) Toa xe đã bị trật bánh hoặc ở trong tàu đã bị tai nạn nặng nhưng chưa được kiểm tra và xác nhận là có trạng thái kỹ thuật bình thường;
c) Toa xe không có biển xác nhận sửa chữa định kỳ trừ toa xe chạy theo chứng nhận đặc biệt (coi như một thứ hàng hóa chạy được khi nối vào tàu);
d) Toa không mui (mặt bằng, mặt võng, thành thấp, thành cao), xếp hàng và gia cố hàng không đúng quy định;
đ) Toa xe xếp hàng siêu trường, siêu trọng nhưng chưa được Doanh nghiệp kinh doanh kết cấu hạ tầng đường sắt quyết định, chấp nhận vận chuyển. Đối với đường sắt chuyên dùng do Chủ sở hữu đường sắt chuyên dùng quyết định, chấp nhận vận chuyển;
e) Toa xe thành thấp mà các thành toa xe không đóng; Toa xe có cửa mở ra ngoài hoặc có cửa mở đáy nhưng không đóng và gài chốt chắc chắn;
g) Toa xe xếp loại hàng cần đình chỉ sử dụng hãm tay và hãm tự động nhưng các hãm này chưa được đình chỉ.
2.3.3.6 Mối nối toa xe trong tàu
2.3.3.6.1 Chênh lệch cao thấp của đường tâm hai móc nối tự động của hai toa xe nối liền nhau trong đoàn tàu (trong điều kiện tĩnh) không được quá 70 mm đối với toa xe khổ đường 1000 mm và 75 mm đối với toa xe khổ đường 1435 mm.
2.3.3.6.2 Việc cắt hoặc nối toa xe (bao gồm cả cắt hoặc nối ống hãm) trong tàu và bảo đảm các mối nối chính xác do những nhân viên sau đây phụ trách:
a) Cắt, nối giữa các toa xe trong tàu do nhân viên làm công tác dồn phụ trách;
b) Cắt, nối giữa đầu máy ghép và toa xe sát nó do nhân viên khám chữa toa xe phụ trách (ở nơi không có trạm khám xe do nhân viên làm công tác dồn phụ trách).
Trường hợp không có nhân viên làm công tác dồn thì do Phụ lái tàu thực hiện.
c) Người phụ trách kiểm tra các mối nối chính xác trong đoàn tàu là nhân viên khám chữa toa xe. Nếu không có nhân viên khám chữa toa xe thì do Trưởng tàu hoặc Phụ lái tàu của đầu máy chạy đơn có kéo theo toa xe hoặc Phụ lái tàu trong trường hợp đoàn tàu không bố trí trưởng tàu đảm nhiệm.
2.3.3.7 Sắp xếp toa xe trong tàu khách
2.3.3.7.1 Không được phép nối toa xe hàng vào tàu khách liên vận quốc tế, các tàu đặc biệt và tàu khách nhanh chạy suốt.
Khi có lệnh của Doanh nghiệp kinh doanh kết cấu hạ tầng đường sắt: Tàu khách nhanh được nối nhiều nhất không quá hai toa xe hàng, các tàu khách thường được nối nhiều nhất không quá ba toa xe hàng. Các toa xe hàng được nối vào tàu khách phải là loại 4 trục chạy ổ bi, có trạng thái kỹ thuật tốt, bảo đảm chạy tàu an toàn và tốc độ cấu tạo không thấp hơn tốc độ quy định của tàu khách. Trường hợp đặc biệt muốn nối quá số lượng toa xe hàng nói trên, Doanh nghiệp kinh doanh kết cấu hạ tầng đường sắt phải có lệnh cho phép hạ cấp bậc tàu.
2.3.3.7.2 Không được phép nối vào tàu khách những toa xe sau đây:
a) Toa xe mặt bằng, toa xi téc (rỗng hoặc nặng), toa xe chở chất nổ, chất độc, khí nén, khí hỏa lỏng và hàng hóa nguy hiểm khác, hàng có mùi hôi thối, hàng dễ xê dịch xếp cao quá thành đầu toa xe, trừ toa xe dịch vụ có sử dụng bếp ga và toa xe chuyên dụng chở xe máy là hành lý, hàng lẻ gửi theo tàu sau khi được Doanh nghiệp kinh doanh vận tải đường sắt cho phép kèm theo các quy định biện pháp cụ thể đảm bảo an toàn chạy tàu;
b) Toa xe quá hạn sửa chữa định kỳ, quá hạn kiểm tra hãm ép gió và hộp trục;
c) Toa xe có chiều dày vành bánh, đai bánh và các tiêu chuẩn khác không phù hợp với tiêu chuẩn đôi bánh xe của toa xe khách;
d) Ô tô ray và các loại phương tiện động lực chuyên dùng đường sắt đã vượt quá kỳ hạn kiểm tra, sửa chữa định kỳ mà chưa được phép kéo dài kỳ hạn.
2.3.3.7.3 Không được phép nối vào tàu hỗn hợp các toa xe chở chất nổ, chất độc, khí nén, khí hóa lỏng và hàng nguy hiểm khác, hàng có mùi hôi thối, trừ các toa xe dịch vụ có sử dụng bếp ga.
Chỉ trong trường hợp đặc biệt trên các khu đoạn có khối lượng vận chuyển ít, ngoài tàu hỗn hợp không còn tàu nào khác, sau khi được Doanh nghiệp kinh doanh kết cấu hạ tầng đường sắt cho phép và kèm theo quy định biện pháp cụ thể thì mới được nối các toa chở hàng nguy hiểm (trừ toa chở chất nổ, chất độc, chất phóng xạ) vào tàu hỗn hợp.
2.3.3.7.4 Không được phép nối vào tàu chuyên dùng chở công nhân, tàu quân dụng có chở người những toa chở chất nổ, chất độc, chất phóng xạ, khí nén, khí hóa lỏng, toa chở axít, chất dễ cháy cấp 1, hàng có mùi hôi thối, toa xe xi téc đã lấy hết thể khí hóa lỏng nhưng chưa rửa sạch.
Trong trường hợp đặc biệt, Doanh nghiệp kinh doanh kết cấu hạ tầng đường sắt hoặc Chủ sở hữu đường sắt chuyên dùng được quyền cho phép có kèm theo biện pháp cụ thể nối các toa chất nổ, chất độc mạnh vào tàu quân dụng có chở người.
2.3.3.7.5 Các toa xe khách và toa xe hàng có chở người trong tàu hỗn hợp, tàu chuyên dùng chở công nhân, tàu quân dụng có chở người (không kể toa công vụ, toa nghỉ của ban lái máy và tổ công tác trên tàu) phải nối thành một cụm, toa xe hàng nối sát toa xe khách hoặc sát toa xe hàng có chở người phải là loại toa xe có mui.
Trường hợp tàu khách nhanh và tàu khách thường được phép nối thêm toa xe hàng cũng phải tuân theo những quy định tại mục này.
2.3.3.7.6 Cửa đầu phía trước của toa xe có khách thứ nhất và cửa đầu phía sau của toa xe khách cuối cùng (kể cả toa bưu vụ) của đoàn tàu khách hoặc của nhóm toa xe khách trong tàu hỗn hợp, tàu chuyên chở công nhân, tàu quân dụng chở người phải khóa lại. Lan can qua lại phải nâng lên, cửa lan can, dây an toàn phải đóng và cài lại.
2.3.3.8 Sắp xếp toa xe trong tàu hàng
2.3.3.8.1 Các toa xe nối trong tàu hàng không phân biệt nặng, rỗng nhưng phải nối thành từng nhóm theo ga đến (trừ trường hợp toa xe phải nối theo quy định riêng). Khi trong đoàn tàu có lẫn các toa xe hai trục và toa xe bốn trục trở lên thì phải nối các toa xe hai trục phía cuối tàu, không kể toa trưởng tàu.
2.3.3.8.2 Việc sắp xếp các toa xe đặc biệt, toa xe chở hàng siêu trường siêu trọng phải thực hiện theo quy định của Doanh nghiệp kinh doanh kết cấu hạ tầng đường sắt.
Đối với đường sắt chuyên dùng do chủ sở hữu đường sắt chuyên dùng quy định.
2.3.3.8.3 Các toa xe chở chất nổ, chất dễ cháy, chất độc, toa xi téc chở khí hóa lỏng, toa có mui chở hàng nguy hiểm, toa xi téc rỗng đã lấy thể khí hóa lỏng nhưng chưa rửa sạch, khi dồn hoặc khi nối vào tàu phải có toa đệm theo quy định tại Bảng 4 của Quy chuẩn này.
Bảng 4 - Khoảng cách toa đệm trong tàu hàng
|
TT |
Loại hàng chuyên chở |
Số toa đệm ít nhất, tính bằng trục tùy theo loại đầu máy, toa xe |
||||||||||
|
Đầu máy hơi nước |
Đầu máy diesel kéo |
Toa xe có hành khách |
Toa xe chở chất nổ chất độc |
Toa xe không mui xếp hàng dễ cháy |
Đầu máy không có lửa, toa bằng xếp hàng dễ xê dịch, toa có thành xếp hàng dễ xê |
Toa xe trưởng tàu và toa có nhân viên công tác |
Phía cuối cùng đoàn tàu |
|||||
|
Xe than nước |
Đẩy |
Kéo tàu thoi và tàu dồn |
Không có lò đố lửa |
Có lò đốt lửa |
||||||||
|
1 |
2 |
3 |
4 |
5 |
6 |
7 |
8 |
9 |
10 |
11 |
12 |
|
|
I |
CHẤT NỔ, CHẤT ĐỘC |
16 |
4 |
4 |
8 |
16 |
|
8 |
4 |
8 |
8 |
4 |
|
II |
TOA XI TÉC |
|
|
|
|
|
|
|
|
|
|
|
|
2.1 |
Khí nén, khí hóa lỏng |
16 |
4 |
4 |
8 |
16 |
8 |
4 |
|
8 |
8 |
|
|
2.2 |
Toa rỗng đã lấy khí hóa lỏng nhưng chưa rửa sạch |
16 |
4 |
4 |
8 |
8 |
4 |
4 |
|
8 |
8 |
|
|
2.3 |
Thể lỏng dễ cháy cấp 1 |
8 |
4 |
4 |
4 |
4 |
8 |
4 |
|
4 |
4 |
|
|
III |
TOA CÓ MUI |
|
|
|
|
|
|
|
|
|
|
|
|
3.1 |
Khí nén, khí hóa lỏng |
4 |
4 |
|
|
4 |
4 |
|
|
|
4 |
|
|
3.2 |
Thể lỏng dễ cháy cấp 1 |
4 |
4 |
|
|
4 |
4 |
|
|
|
|
|
|
3.3 |
Thể độc, thể cháy, chất tự cháy, chất có thể thành hỗn hợp cháy hoặc nổ, chất gặp nước bốc cháy |
4 |
4 |
|
|
4 |
8 |
8 |
|
|
4 |
|
|
3.4 |
Axít |
4 |
|
4 |
|
4 |
4 |
4 |
4 |
4 |
4 |
|
|
IV |
TOA KHÔNG MUI XẾP HÀNG DỄ CHÁY |
16 |
4 |
4 |
8 |
4 |
8 |
|
|
|
4 |
|
Những toa xe chở hàng lẻ thuộc hàng dễ cháy, hàng nguy hiểm (trừ chất nổ, chất độc mạnh, hàng có thể trở thành hỗn hợp cháy hoặc nổ) khi nối vào tàu hoặc khi dồn có thể không cần toa đệm.
Những toa xe chở hàng không nguy hiểm, hàng không dễ cháy, toa xe có mui chở hàng dễ cháy mà các cửa đều đóng kín hoặc toa xe rỗng có thể dùng làm toa đệm.
2.3.3.8.4 Trong tàu hàng, những toa xe chở loại hàng cần đóng hãm gió ép hoặc những toa xe mà hãm gió ép hỏng không có điều kiện sửa chữa ngay, nhưng ống gió chính vẫn thông, không được nối liền quá 10 trục.
Nếu nối phía đuôi tàu thì không được nối quá 6 trục liền trước toa xe cuối cùng có hãm gió ép tốt (sát toa trưởng tàu nếu có toa trưởng tàu).
Khi có điều kiện sửa chữa thì các toa xe hỏng hãm tự động phải được sửa chữa rồi mới được phép lập tiếp vào tàu.
2.3.3.8.5 Việc nối toa xe khách có chở người vào tàu hàng chỉ được phép khi có lệnh của Doanh nghiệp kinh doanh kết cấu hạ tầng đường sắt.
Đối với đường sắt chuyên dùng do Chủ sở hữu đường sắt chuyên dùng cho phép.
Toa xe khách hoặc toa xe hàng có chở người nếu được phép nối vào tàu hàng phải tuân theo những quy định tại Mục 2.3.3.7.5 và Mục 2.3.3.7.6 của Quy chuẩn này.
2.3.3.8.6 Quy định về trang bị trên toa trưởng tàu hoặc toa xe cuối cùng của đoàn tàu không có toa xe trưởng tàu.
2.3.3.8.6.1 Toa trưởng tàu phải có hãm gió ép, van khẩn cấp, đồng hồ áp suất và hãm tay tốt.
2.3.3.8.6.2 Tại vị trí làm việc trên toa trưởng tàu phải có thiết bị đo tốc độ đoàn tàu, thiết bị thông tin liên lạc giữa Trưởng tàu và Lái tàu.
2.3.3.8.6.3 Trường hợp tàu hàng không có toa trưởng tàu thì toa xe cuối cùng phải có hãm gió ép, hãm tay tốt và có đầy đủ tín hiệu tàu.
2.3.3.8.6.4 Đối với đoàn tàu hàng sử dụng Thiết bị tín hiệu đuôi tàu, Bộ phận tại đuôi tàu được lắp đặt phía cuối đoàn tàu, tín hiệu về áp lực ống hãm đoàn xe cuối đoàn tàu phải được báo về Bộ phận tại buồng lái của Thiết bị tín hiệu đuôi tàu đặt trên ca bin đầu máy. Doanh nghiệp kinh doanh kết cấu hạ tầng đường sắt hoặc Chủ sở hữu đường sắt chuyên dùng có trách nhiệm ban hành Quy trình khai thác sử dụng đối với Thiết bị tín hiệu đuôi tàu khi sử dụng trên các đoàn tàu hàng.
2.3.3.9 Lắp đầu máy vào tàu
2.3.3.9.1 Quy định chung
2.3.3.9.1.1 Đầu máy kéo tàu phải nối thuận chiều ở phía đầu đoàn tàu theo hướng chạy.
2.3.3.9.1.2 Khi có hai hoặc nhiều đầu máy kéo tàu chạy suốt khu đoạn phải nối đầu máy có bơm gió mạnh hơn về trước. Nếu là đầu máy hơi nước có công suất bơm gió như nhau thì phải nối đầu máy có bánh xe dẫn đường về phía trước. Đầu máy nối phía trước gọi là đầu máy chính.
2.3.3.9.1.3 Đầu máy phụ cũng phải nối ở phía đầu tàu (sau đầu máy chính hoặc cả cụm đầu máy kéo) trừ khi đầu máy phụ đẩy tàu vào khu gian rồi trở về hoặc đến ga bên cạnh cắt lại nhưng tàu không phải dừng thì được nối ở phía đuôi tàu và không nối ống gió thông vào đoàn tàu.
2.3.3.9.1.4 Trường hợp không thể nối các đầu máy ghép hoặc đầu máy phụ ở phía đầu tàu hoặc nối đầu máy khác loại liền nhau thì phải làm theo biện pháp nối đầu máy vào tàu do Doanh nghiệp kinh doanh kết cấu hạ tầng đường sắt quyết định. Đối với đường sắt chuyên dùng do chủ sở hữu đường sắt chuyên dùng quy định.
2.3.3.9.2 Đầu máy chỉ được phép chạy ngược chiều trong các trường hợp sau đây:
a) Kéo tàu chạy đường ngắn, tàu thoi, tàu cứu viện, tàu công trình;
b) Chạy trên đường nhánh;
c) Dồn toa;
d) Đầu máy thứ hai trở lên khi đoàn tàu có nhiều đầu máy kéo;
đ) Phụ đẩy tàu rồi quay về ga gửi;
e) Ở ga tàu xuất phát không có thiết bị quay đầu máy hoặc thiết bị này bị hỏng.
2.3.3.9.3 Đầu máy chạy đơn trong khu đoạn có độ dốc nhỏ hơn hoặc bằng 12 ‰ được phép kéo thêm không quá 5 toa xe.
2.3.3.9.3.1 Ở khu đoạn có độ dốc lớn hơn 12 ‰ số lượng toa xe nối thêm vào đầu máy đơn do Doanh nghiệp kinh doanh kết cấu hạ tầng đường sắt quyết định. Đối với đường sắt chuyên dùng do chủ sở hữu đường sắt chuyên dùng quy định.
2.3.3.9.3.2 Khi nối thêm các toa vào đầu máy chạy đơn phải tuân theo các quy định sau đây:
a) Lái tàu kiêm nhiệm trưởng tàu;
b) Toa xe cuối cùng phải có hãm gió ép và có đủ tín hiệu đuôi tàu;
c) Tất cả các toa xe đều phải nối vào hệ thống hãm gió ép và lực hãm cho 100 tấn trọng lượng không dưới tiêu chuẩn quy định;
d) Không được làm ảnh hưởng đến thời gian quay vòng quy định của đầu máy và thời gian lao động của ban lái tàu.
2.3.3.9.4 Đầu máy (kể cả đầu máy nguội) phải được chuẩn bị đầy đủ theo đúng biện pháp quy định của Doanh nghiệp kinh doanh kết cấu hạ tầng đường sắt hoặc Chủ sở hữu đường sắt chuyên dùng quyết định mới được gửi theo tàu. Số lượng đầu máy gửi theo tàu và số toa xe đệm giữa các đầu máy do Doanh nghiệp kinh doanh kết cấu hạ tầng đường sắt quyết định. Đối với đường sắt chuyên dùng do chủ sở hữu đường sắt chuyên dùng quy định.
2.3.3.10 Tính hãm, bố trí hãm, thử hãm trong đoàn tàu
2.3.3.10.1 Khoảng cách hãm quy định cho tàu dùng hãm gió ép không quá 800 m.
2.3.3.10.2 Áp lực guốc hãm cần thiết để đoàn tàu dừng được trong khoảng cách hãm quy định tương ứng với tốc độ, độ dốc hạn chế trong khu đoạn của phương tiện giao thông đường sắt do Doanh nghiệp kinh doanh kết cấu hạ tầng đường sắt hoặc Chủ sở hữu đường sắt chuyên dùng quyết định và ban hành phù hợp với đặc điểm của phương tiện giao thông đường sắt và tuyến đường sắt khai thác bảo đảm an toàn chạy tàu.
2.3.3.10.3 Áp lực guốc hãm trên một trục của phương tiện giao thông đường sắt do Doanh nghiệp kinh doanh kết cấu hạ tầng đường sắt hoặc Chủ sở hữu đường sắt chuyên dùng quyết định và ban hành phù hợp với đặc điểm của phương tiện giao thông đường sắt và tuyến đường sắt khai thác bảo đảm an toàn chạy tàu.
2.3.3.10.4 Hãm gió ép của tất cả các toa xe, đầu máy (kể cả xe than nước) trong tàu đều phải nối thông với nhau, trừ trường hợp đầu máy phụ đẩy cắt lại dọc đường.
2.3.3.10.5 Số trục có hãm tay tốt cần thiết để giữ cho tàu khi dừng lại khỏi trôi được quy định trong bảng tiêu chuẩn số trục hãm tay tốt tối thiểu phải có cho mỗi 100 tấn trọng lượng tàu (không kể đầu máy và xe than nước). (Xem Bảng 5).
Bảng 5- Số trục hãm tay cần thiết cho 100 tấn trọng lượng tàu để chống trôi tàu
|
Độ dốc (‰) |
0-6 |
7-10 |
11-13 |
14-16 |
17-20 |
21-23 |
23-25 |
|
Số trục có hãm tay tốt cần thiết |
2 |
3 |
4 |
5 |
6 |
7 |
8 |
Nếu có số trục hãm tốt không đủ theo quy định ở trên thì được dùng chèn sắt để thay thế. Mỗi chèn sắt thay được hai trục hãm tay.
Khi độ dốc lớn hơn 25 ‰ thì tất cả các trục toa xe đều phải có hãm tay tốt đồng thời phải bổ sung thêm chèn sắt chống trôi tàu. Số lượng chèn sắt do doanh nghiệp kinh doanh kết cấu hạ tầng đường sắt hoặc chủ sở hữu đường sắt chuyên dùng quy định.
2.3.3.10.6 Hãm gió ép của đoàn tàu phải được thử theo quy định sau đây:
a) Thử toàn bộ để kiểm tra sự hoàn hảo của hệ thống hãm và được tiến hành trong các trường hợp sau:
1) Sau khi đoàn tàu đến ga (ở những ga có quy định thử hãm);
2) Trước khi tàu khởi hành ở ga lập tàu;
3) Ở ga dọc đường có nối thêm toa xe vào tàu cũng phải thử hãm toàn bộ để kiểm tra tác dụng hãm của những toa xe nối thêm và toa xe cuối cùng của đoàn tàu.
b) Thử hãm đơn giản để kiểm tra sự thông gió tốt từ đầu máy đến toa xe cuối cùng và được tiến hành trong các trường hợp sau:
1) Sau khi vòi hãm và ống gió chính bị đứt hỏng, bị cắt;
2) Sau khi dừng tàu quá 20 phút;
3) Khi áp suất gió trong thùng gió chính của đầu máy giảm xuống dưới áp suất quy định;
4) Khi hãm gió ép của đầu máy thứ nhất bị hỏng phải giao việc điều khiển hãm cho đầu máy thứ hai;
5) Khi thay ban lái tàu chính mà không thay đầu máy;
6) Khi thay đổi chiều chạy mà không thay đầu máy chính và ban lái tàu.
c) Thử toàn bộ giữ thời gian.
Tàu chạy qua các khu gian có dốc lớn và dài phải thử hãm toàn bộ giữ thời gian. Tên ga và loại tàu có tác nghiệp thử hãm giữ thời gian do Doanh nghiệp kinh doanh kết cấu hạ tầng đường sắt quyết định. Đối với đường sắt chuyên dùng do Chủ sở hữu đường sắt chuyên dùng quy định.
2.3.3.10.7 Nội dung cụ thể về thử hãm, thời gian thử hãm, hãm toàn bộ giữ thời gian, chức danh đảm nhiệm công việc và ghi chép Giấy xác nhận tác dụng hãm Mẫu số 01 tại Phụ lục E ban hành kèm theo Quy chuẩn này do Doanh nghiệp kinh doanh kết cấu hạ tầng đường sắt hoặc Chủ sở hữu đường sắt chuyên dùng quy định.
2.3.3.11 Khám kỹ thuật toa xe trong đoàn tàu
Mọi toa xe trong đoàn tàu phải được khám kỹ thuật và sửa chữa theo quy định để đảm bảo an toàn.
Doanh nghiệp kinh doanh vận tải có trách nhiệm xây dựng nội dung, chức danh đảm nhiệm việc khám kỹ thuật và ban hành sau khi thống nhất với Doanh nghiệp kinh doanh kết cấu hạ tầng đường sắt hoặc chủ sở hữu đường sắt chuyên dùng, tổ chức thực hiện việc khám kỹ thuật toa xe trong đoàn tàu đảm bảo an toàn.
Doanh nghiệp kinh doanh kết cấu hạ tầng đường sắt hoặc chủ sở hữu đường sắt chuyên dùng chịu trách nhiệm quy định địa điểm và giám sát việc khám kỹ thuật của đoàn tàu đảm bảo an toàn.
2.3.4 Phương pháp đóng đường chạy tàu
2.3.4.1 Quy định chung
2.3.4.1.1 Phương pháp đóng đường cơ bản để chạy tàu bao gồm:
a) Đóng đường tự động;
b) Đóng đường nửa tự động;
c) Đóng đường bằng máy thẻ đường.
Khi thiết bị đóng đường cơ bản bị hỏng hoặc không sử dụng được phải đình chỉ sử dụng và chuyển sang phương pháp đóng đường bằng điện tín để thay thế. Phương tiện chuyển, nhận điện tín là điện thoại.
Khi chuyển sang phương pháp đóng đường bằng điện tín hoặc phục hồi phương pháp đóng đường cơ bản đều phải làm theo mệnh lệnh của Nhân viên điều độ chạy tàu.
Trường hợp điện thoại với điều độ không thông, việc chuyển hoặc phục hồi phương pháp đóng đường do Trực ban chạy tàu ga hai ga đầu khu gian trực tiếp dùng điện thoại để làm thủ tục sau khi đã cùng xác nhận khu gian thanh thoát.
2.3.4.1.2 Biện pháp đóng đường của trạm đóng đường chạy tàu, trạm bổ trợ trong khu gian do Doanh nghiệp kinh doanh kết cấu hạ tầng đường sắt hoặc Chủ sở hữu đường sắt chuyên dùng quy định trong Quy trình chạy tàu và công tác dồn đường sắt.
2.3.4.1.3 Chạy tàu với các phương pháp đống đường nửa tự động, tự động, bằng máy thẻ đường, bằng điện tín và chạy tàu khi thông tin bị gián đoạn do Doanh nghiệp kinh doanh kết cấu hạ tầng đường sắt hoặc Chủ sở hữu đường sắt chuyên dùng quy định trong Quy trình chạy tàu và công tác dồn đường sắt.
2.3.4.2 Đóng đường tự động
2.3.4.2.1 Khi sử dụng phương pháp đóng đường tự động, bằng chứng cho phép tàu chiếm dụng phân khu đóng đường là ánh đèn màu vàng hoặc màu lục của tín hiệu ra ga hoặc tín hiệu thông qua. Đối với tàu chở khách (kể cả tàu khách, tàu hỗn hợp, tàu chở người) và tàu chạy liền sau tàu khách (trừ đầu máy đơn không kéo toa xe, tàu hàng dừng rồi tiếp tục chạy, ô tô ray, phương tiện động lực chuyên dùng đường sắt), ít nhất phải có hai phân khu đóng đường phía trước thanh thoát Trực ban chạy tàu ga mới được cho tàu chạy.
2.3.4.2.2 Trên khu đoạn đường đơn, Trực ban chạy tàu ga trước khi làm thủ tục gửi tàu phải được Nhân viên điều độ chạy tàu đồng ý, nếu điện thoại với điều độ không thông, phải được sự đồng ý của Trực ban chạy tàu ga đón tàu.
2.3.4.2.3 Khi tín hiệu đèn màu thông qua biểu thị màu đỏ, biểu thị không đúng, tàu phải dừng trước tín hiệu đó và kéo một tiếng còi dài. Sau 3 phút tín hiệu thông qua vẫn chưa có biểu thị cho phép, Lái tàu kéo một hồi còi dài rồi tiếp tục chạy với tốc độ không lớn hơn 15 km/h và phải chuẩn bị sẵn sàng dừng tàu trước chướng ngại. Khi đến tín hiệu thông qua tiếp theo đó, tàu chạy theo biểu thị của tín hiệu này. Nếu tín hiệu tiếp theo cũng biểu thị như trên thì tàu được tiếp tục chạy theo biện pháp nói trên. Sau khi dừng tàu, Lái tàu nhìn thấy hoặc biết chắc chắn phân khu phía trước có chướng ngại thì trước khi xác định phân khu này thanh thoát, không được cho tàu tiếp tục chạy.
Trong trường hợp trên, Lái tàu phải hết sức chú ý, nếu thời tiết xấu hoặc tầm nhìn hạn chế, phải kịp thời kéo còi và giảm tốc độ thích hợp để bảo đảm tàu chạy an toàn.
2.3.4.2.4 Khi tàu chạy dọc đường nếu phát hiện tín hiệu thông qua không có biểu thị hoặc biểu thị không đúng, Lái tàu phải báo cho Trực ban chạy tàu ga gần nhất phía trước biết số hiệu và trạng thái tín hiệu đó.
Khi trong khu gian có hai tín hiệu thông qua cùng chiều trở lên không có biểu thị hoặc biểu thị không đúng thì coi như thiết bị đóng đường hỏng phải đình chỉ sử dụng.
2.3.4.3 Đóng đường nửa tự động
2.3.4.3.1 Khi sử dụng phương pháp đóng đường nửa tự động, bằng chứng cho phép tàu chiếm dụng khu gian là biểu thị cho phép tàu chạy của tín hiệu ra ga hoặc tín hiệu thông qua.
2.3.4.3.2 Trong khu đoạn đường đơn, trước khi mở tín hiệu ra ga, Trực ban chạy tàu ga gửi tàu phải nhận được biểu thị đồng ý đón tàu do Trực ban chạy tàu ga đón tàu cho phép.
2.3.4.3.3 Khi đã làm thủ tục đóng đường gửi tàu, nếu đã mở tín hiệu ra ga nhưng cần bãi bỏ việc gửi tàu, Trực ban chạy tàu ga phải đóng tín hiệu ra ga, báo lý do cho Trực ban chạy tàu ga đón tàu biết và hủy bỏ thủ tục đóng đường, khôi phục thiết bị đóng đường trở về trạng thái bình thường, khu gian thanh thoát.
2.3.4.4 Đóng đường bằng máy thẻ đường
2.3.4.4.1 Khi sử dụng phương pháp đóng đường bằng máy thẻ đường, bằng chứng cho phép tàu chiếm dụng khu gian là thẻ đường thuộc khu gian đó.
Khi nhận thẻ đường, Lái tàu phải xác nhận thẻ đường đúng với khu gian tàu sắp chạy vào.
2.3.4.4.2 Việc trao đổi điện thoại và chuyển nhận điện tín có liên quan đến chạy tàu, việc lấy thẻ đường ra hoặc trả thẻ đường vào hòm thẻ đường và việc giao, nhận thẻ đường do Trực ban chạy tàu ga tự làm.
Nếu máy thẻ đường đặt ở chòi ghi, việc lấy thẻ đường ra hoặc trả thẻ đường vào hòm thẻ đường cũng như việc giao, nhận thẻ đường do tổ trưởng tổ ghi làm theo mệnh lệnh của Trực ban chạy tàu ga.
2.3.4.4.3 Thẻ đường nhận được của một tàu vừa đến không phải trả vào hòm thẻ đường, được phép giao cho một tàu ngược chiều gửi vào chính khu gian ấy, nhưng phải được ga đón tàu đồng ý trước bằng điện tín và ghi vào sổ nhật ký chạy tàu.
Không được phép làm như trên ở khu gian có sử dụng thẻ hình chìa khóa hoặc đã đồng ý cho ga bên dồn theo đuôi tàu.
2.3.4.4.4 Không được phép:
a) Xin lấy thẻ đường ra trước khi tàu sẵn sàng chạy, trừ khi tàu thông qua hoặc dừng theo quy định không quá 3 phút;
b) Để thẻ đường ngoài hòm thẻ đường;
c) Đem thẻ đường của khu gian này sang khu gian khác.
2.3.4.5 Đóng đường bằng điện tín
2.3.4.5.1 Khi sử dụng phương pháp đóng đường bằng điện tín, bằng chứng cho phép tàu chiếm dụng khu gian là Phiếu đường theo Mẫu số 02 (2A, 2B) tại Phụ lục E ban hành kèm theo Quy chuẩn này.
Khi nhận Phiếu đường, Lái tàu phải kiểm tra nội dung đúng với ngày, số hiệu tàu và tên khu gian tàu sắp chạy vào.
2.3.4.5.2 Điện tín có liên quan đến đóng đường phải do Trực ban chạy tàu ga ghi vào sổ biên bản điện tín, ký tên rồi mới được chuyển đi. Khi nhận điện tín phải đọc lại, cả hai bên xác nhận đúng mới ghi thời gian, số điện tín, tên người nhận, người chuyển vào sổ biên bản điện tín.
Mẫu sổ điện tín và thủ tục đăng ký chuyển điện tín do Doanh nghiệp kinh doanh kết cấu hạ tầng đường sắt hoặc Chủ sở hữu đường sắt chuyên dùng quy định trong Quy trình chạy tàu và công tác dồn đường sắt.
2.3.4.5.3 Những việc liên quan đến đóng đường như:
a) Xin đường;
b) Cho đường;
c) Báo tàu đến đi hoặc thông qua;
d) Hủy bỏ thủ tục đóng đường;
đ) Xin đường để dồn ra ngoài giới hạn ga;
e) Những việc khác mà Trực ban chạy tàu ga xét thấy cần thiết đều phải được thực hiện theo mẫu điện tín do doanh nghiệp kinh doanh kết cấu hạ tầng đường sắt hoặc Chủ sở hữu đường sắt chuyên dùng quy định trong Quy trình chạy tàu và công tác dồn đường sắt.
2.3.4.6 Phương pháp chạy tàu khi thông tin bị gián đoạn
2.3.4.6.1 Khi thiết bị đóng đường cơ bản và mọi thứ điện thoại đều bị gián đoạn (gọi tắt là thông tin gián đoạn) việc chạy tàu ở khu gian đường đơn tiến hành theo phương pháp liên lạc bằng thông tri, ở khu gian đường đôi theo giãn cách thời gian. Bằng chứng cho phép tàu chiếm dụng khu gian là Giấy phép màu đỏ kèm theo Thông tri Mẫu A hoặc B (Mẫu số 03), thông tri Mẫu C hoặc D (Mẫu số 04) tại Phụ lục E ban hành kèm theo Quy chuẩn này.
2.3.4.6.2 Phương pháp liên lạc bằng thông tri do ga ưu tiên quyết định. Chiều ưu tiên là chiều tàu số lẻ chạy. Ga gửi tàu số lẻ là ga ưu tiên.
Biện pháp gửi thông tri và điều kiện xác định phương pháp liên lạc bằng thông tri do Doanh nghiệp kinh doanh kết cấu hạ tầng đường sắt hoặc Chủ sở hữu đường sắt chuyên dùng quy định trong Quy trình chạy tàu và công tác dồn đường sắt.
2.3.4.6.3 Khi ga ưu tiên gửi tàu đầu tiên sau khi thông tin bị gián đoạn, không cần phải có sự đồng ý của ga đón tàu.
Ở khu đoạn đường đơn đóng đường tự động, mặc dù tàu đầu tiên thuộc chiều ưu tiên, nhưng Trực ban chạy tàu ga chỉ được cho tàu chạy khi nào đã xác định khu gian giữa hai ga đã thanh thoát.
Ga không ưu tiên không được cho bất cứ tàu nào chạy vào khu gian thông tin bị gián đoạn, trừ trường hợp tàu đã được phép chạy trước khi thông tin bị gián đoạn hoặc tàu cứu viện gửi vào khu gian theo yêu cầu cứu viện.
2.3.4.6.4 Trước khi thông tin bị gián đoạn, ga ưu tiên đã cho phép ga bên cạnh gửi tàu mà tàu đó chưa đến và cũng chưa nhận được báo hủy bỏ việc gửi tàu thì trước khi xác minh rõ tình hình phải coi như khu gian đã bị chiếm dụng và không được cho phép ga ưu tiên gửi tàu.
2.3.4.6.5 Trong lúc thông tin gián đoạn, không được phép gửi các tàu sau đây:
a) Tàu có dừng để làm việc trong khu gian (trừ tàu cứu viện);
b) Tàu chạy đến đường nhánh trong khu gian;
c) Đầu máy đơn có kéo thêm toa xe hoặc đoàn tàu không bố trí trưởng tàu nếu sau nó có tàu chạy cùng chiều.
2.3.4.6.6 Nếu tàu gửi sau khi thông tin bị gián đoạn có đầu máy phụ đẩy thì đầu máy đẩy không được phép đến dọc đường quay trở về mà phải cùng với tàu đi suốt khu gian. Trước khi tàu này chạy, Trực ban chạy tàu ga gửi tàu phải báo cho Lái tàu và Trưởng tàu biết.
2.3.4.6.7 Ở khu đoạn đường đơn, trong lúc thông tin bị gián đoạn việc gửi tàu cùng chiều được giải quyết theo giãn cách thời gian. Giãn cách thời gian giữa hai tàu này ít nhất phải bằng thời gian tàu trước chạy qua khu gian theo bảng thời trình cộng thêm 3 phút. Đối với khu gian khó khăn, giãn cách thời gian giữa hai do Doanh nghiệp kinh doanh kết cấu hạ tầng đường sắt hoặc Chủ sở hữu đường sắt chuyên dùng về quy định trong Quy trình chạy tàu và công tác dồn đường sắt.
2.3.4.6.8 Ở khu đoạn đường đôi, trong lúc thông tin bị gián đoạn, việc gửi tàu theo đường đúng chiều quy định tiến hành với giãn cách thời gian bằng thời gian tàu trước chạy qua khu gian theo bảng thời trình cộng thêm 3 phút. Đối với khu gian khó khăn, giãn cách thời gian giữa hai tàu do Doanh nghiệp kinh doanh kết cấu hạ tầng đường sắt hoặc Chủ sở hữu đường sắt chuyên dùng về quy định trong Quy trình chạy tàu và công tác dồn đường sắt.
Không được phép bất kỳ ga nào gửi tàu theo đường trái chiều quy định trong lúc thông tin bị gián đoạn.
Nếu khu đoạn đường đôi chạy tàu hai chiều trước khi thông tin bị gián đoạn thì việc chạy tàu tiến hành theo phương pháp liên lạc bằng thông tri như quy định đối với khu gian đường đơn.
2.3.4.6.9 Việc khôi phục phương pháp đóng đường cơ bản hoặc điện thoại phải làm theo mệnh lệnh của Nhân viên điều độ chạy tàu. Trường hợp điện thoại điều độ không thông thì do ga ưu tiên xác định. Trình tự phục hồi phương pháp đóng đường cơ bản hoặc điện thoại do Doanh nghiệp kinh doanh kết cấu hạ tầng đường sắt hoặc Chủ sở hữu đường sắt chuyên dùng về quy định trong Quy trình chạy tàu và công tác dồn đường sắt.
2.3.4.6.10 Trong lúc thông tin bị gián đoạn, nếu cần thiết phải phong tỏa, giải tỏa khu gian, Trực ban chạy tàu ga nhận được yêu cầu phải gửi giấy báo việc phong tỏa hoặc giải tỏa cho Trực ban chạy tàu ga đầu kia của khu gian.
2.3.5 Đón gửi tàu và chạy tàu
2.3.5.1 Quy định chung
2.3.5.1.1 Trong một thời gian nhất định, mỗi điểm phân giới, mỗi đoàn tàu hay mỗi đầu máy chỉ do một người chỉ huy việc chạy tàu:
a) Tại ga: Trực ban chạy tàu ga;
b) Trạm đóng đường: Trực ban chạy tàu trạm;
c) Trên đoàn tàu: Trưởng tàu;
d) Đầu máy đơn, đoàn tàu không bố trí Trưởng tàu: Lái tàu;
đ) Ga lớn có thể bố trí phụ Trực ban chạy tàu ga đảm nhiệm một phần công việc chạy tàu dưới sự chỉ huy của Trực ban chạy tàu ga. Nếu ga có nhiều bãi, có thể có nhiều phụ Trực ban chạy tàu ga, mỗi người chỉ huy chạy tàu ở mỗi bãi phải chịu sự chỉ huy thống nhất của Trực ban chạy tàu ga. Việc phân định khu vực quản lý và trách nhiệm chỉ huy chạy tàu của ga nói trên phải được quy định tại Quy tắc quản lý kỹ thuật ga;
e) Tại điểm phân giới, Trưởng tàu hoặc Lái tàu của đầu máy đơn, của đoàn tàu không bố trí trưởng tàu phải phục tùng mệnh lệnh của Trực ban chạy tàu điểm phân giới, hoặc tuân theo biểu thị của tín hiệu điểm phân giới.
2.3.5.1.2 Trong công tác đón gửi tàu, mọi việc quan trọng như: Chuẩn bị đường, làm thủ tục đóng mở tín hiệu, đón gửi tàu, giao bằng chứng chạy tàu và làm tín hiệu gửi tàu do Trực ban chạy tàu ga trực tiếp làm.
Trường hợp vì điều kiện thiết bị hoặc khối lượng công việc lớn, một phần công việc trên có thể do phụ Trực ban chạy tàu ga làm dưới sự chỉ huy và kiểm tra của Trực ban chạy tàu ga.
Trách nhiệm của Trực ban chạy tàu ga và phụ Trực ban chạy tàu ga do Doanh nghiệp kinh doanh kết cấu hạ tầng đường sắt quyết định. Đối với đường sắt chuyên dùng do chủ sở hữu đường sắt chuyên dùng quy định.
2.3.5.1.3 Ở những ga có thiết bị kiểm tra việc đón, gửi tàu, Trực ban chạy tàu ga phải căn cứ vào biểu thị của thiết bị đó để xác nhận tình hình chuẩn bị đường đón, gửi, trạng thái tàu ra, vào ga. Nếu không có thiết bị kiểm tra phải tự mình hoặc thông qua báo cáo hay tín hiệu an toàn của Gác ghi sau khi đã kiểm tra đường đón, gửi hoặc tín hiệu an toàn của Trưởng tàu để xác nhận tình hình trên.
2.3.5.1.4 Trên nguyên tắc tàu nào không dừng ở ga sẽ cho thông qua đường chính tuyến (trừ trường hợp không thể đón tàu vào đường chính tuyến). Tàu khách, tàu hỗn hợp, tàu chở người và tàu hàng có toa xe chở hàng siêu trường, siêu trọng phải được đón hoặc gửi trên đường quy định. Tàu hàng phải đón, gửi trên cụm đường quy định trong ga. Khi thay đổi đường cố định đón, gửi tàu khách, tàu hỗn hợp, tàu chở người phải được Nhân viên điều độ chay tàu cho phép. Trường hợp buộc phải thay đổi sang một đường khác ngoài đường quy định đón, gửi tàu, phải được phép của Doanh nghiệp kinh doanh kết cấu hạ tầng đường sắt (đối với đường sắt chuyên dùng do chủ sở hữu đường sắt chuyên dùng quy định) và có biện pháp riêng về chuẩn bị đường.
Trình tự chuẩn bị đường để đón gửi tàu phải được quy định tại Quy tắc quản lý kỹ thuật ga.
2.3.5.1.5 Trực ban chạy tàu ga phải bảo đảm luôn luôn có đường thanh thoát để đón, gửi tàu. Không được phép để toa xe và các phương tiện giao thông vận tải đường sắt khác chiếm dụng trên đường chính tuyến.
2.3.5.1.6 Khi đón, gửi tàu, nhân viên phụ trách công việc này phải chú ý quan sát trạng thái toa xe và tín hiệu đuôi tàu. Nếu thấy có hiện tượng không bảo đảm an toàn, đèn tín hiệu đuôi tàu thông qua ban đêm bị tắt thì phải tìm cách bổ cứu.
Nhân viên đón, tiễn tàu không được rời vị trí khi chưa xác nhận đoàn tàu đến hoặc đi an toàn. Trường hợp tránh tàu hoặc cần làm ngay thủ tục đóng đường với ga bên hay báo giờ gửi tàu vào khu gian đặc biệt đối với ga bên, Trực ban chạy tàu ga có thể rời vị trí sau khi tàu chuyển bánh hoặc đầu máy đến qua khỏi vị trí đón gửi.
2.3.5.1.7 Sau khi tàu đến, đi hoặc thông qua ga, Trực ban chạy tàu ga phải ghi vào sổ nhật ký chạy tàu và báo cho Trực ban chạy tàu ga đón, gửi tàu và Nhân viên điều độ chạy tàu số hiệu tàu, giờ thực tế tàu đến, đi, thông qua và các đặc điểm khác của tàu nếu có.
2.3.5.1.8 Trên khu đoạn đường đôi, mỗi đường chính tuyến dành riêng cho tàu chạy theo một chiều nhất định. Trừ trường hợp ngoại lệ (có quy định riêng), tàu chạy một chiều theo đường phía bên trái.
Khi tạm thời cho tàu chạy trái chiều đường quy định hoặc chạy hai chiều trên một đường phải có mệnh lệnh của Nhân viên điều độ chạy tàu.
2.3.5.1.9 Những tàu sau đây được phép chạy đầu máy đẩy toa xe đi trước:
a) Khi tàu chạy vào đường nhánh và trở về ga;
b) Khi tàu vào làm việc trong khu gian (tàu công trình, tàu cứu viện, chuyển tải,...);
c) Khi cần thiết đẩy lùi tàu từ khu gian về ga.
2.3.5.2 Đón tàu
2.3.5.2.1 Sau khi đã cho đường ga bên cạnh hoặc ga bên cạnh báo tàu đã chạy, Trực ban chạy tàu ga phải kịp thời ra lệnh cho Gác ghi hoặc nhân viên trạm tập trung chuẩn bị đường mà tàu sẽ chạy vào ga.
Nhân viên nhận lệnh phải nhắc lại nội dung mệnh lệnh đó với Trực ban chạy tàu ga.
2.3.5.2.2 Trước khi đón tàu, Trực ban chạy tàu ga phải kiểm tra và xác nhận những công việc chuẩn bị sau đây:
a) Việc dồn dịch có ảnh hưởng hoặc trở ngại đến đường đón tàu và đường tàu vào đã được đình chỉ;
b) Đường đón tàu và đường tàu vào đã thanh thoát;
c) Các ghi liên quan đã đúng vị trí cần thiết và đã khóa.
Trực ban chạy tàu ga chỉ được mở hoặc ra lệnh mở tín hiệu vào ga sau khi đã kiểm tra, xác nhận việc chuẩn bị đường đón tàu nói trên đã được thực hiện đầy đủ.
Trình tự và biện pháp chuẩn bị đường đón tàu của Trực ban chạy tàu ga, Gác ghi và nhân viên trạm tập trung do Doanh nghiệp kinh doanh kết cấu hạ tầng đường sắt hoặc Chủ sở hữu đường sắt chuyên dùng quy định trong Quy trình chạy tàu và công tác dồn đường sắt.
2.3.5.2.3 Khi cột tín hiệu vào ga, vào bãi báo tín hiệu ngừng hoặc đèn tắt được phép dùng tín hiệu dẫn đường hoặc cử người dẫn đường để đón tàu vào ga trong các trường hợp đặc biệt dưới đây:
a) Cột tín hiệu vào ga hoặc vào bãi bị hỏng không thể mở được hoặc đèn tín hiệu bị tắt;
b) Ga chưa có cột tín hiệu vào ga hoặc có nhưng chưa sử dụng được, phải dùng tín hiệu di động thay thế;
c) Cột tín hiệu vào ga hoặc vào bãi không có quan hệ liên khóa với ghi của đường đón tàu nếu không mở được.
Biện pháp đón tàu vào ga trong các trường hợp đặc biệt nói trên do Doanh nghiệp kinh doanh kết cấu hạ tầng đường sắt hoặc Chủ sở hữu đường sắt chuyên dùng quy định trong Quy trình chạy tàu và công tác dồn đường sắt.
2.3.5.2.4 Trường hợp trong ga không còn đường nào thanh thoát và có lệnh của Nhân viên điều độ chạy tàu cho phép, được cử nhân viên dẫn đường (không được dùng tín hiệu dẫn đường) để đón tàu vào đường không thanh thoát theo biện pháp dồn dịch, sau khi tàu này đã dừng ngoài cột tín hiệu vào ga đóng.
Không được phép đón tàu liên vận quốc tế, tàu khách nhanh chạy suốt và tàu khách nhanh vào đường không thanh thoát.
Biện pháp đón tàu vào đường không thanh thoát ở những ga có độ dốc cao mà tàu không phải dừng ngoài cột tín hiệu vào ga do Doanh nghiệp kinh doanh kết cấu hạ tầng đường sắt hoặc Chủ sở hữu đường sắt chuyên dùng quy định trong Quy trình chạy tàu và công tác dồn đường sắt.
2.3.5.2.5 Không được phép đón hai tàu vào ga cùng một lúc, nếu:
a) Cuối đường đón tàu này không có thiết bị tách rời với đường đón tàu kia (đường an toàn, thiết bị trật bánh hay những ghi có tác dụng tách rời), trừ trường hợp được doanh nghiệp kinh doanh kết cấu hạ tầng đường sắt hoặc chủ sở hữu đường sắt chuyên dùng có quy định cho phép;
b) Một trong hai tàu là tàu thông qua theo thời trình, trừ khi có mệnh lệnh của Nhân viên điều độ chạy tàu cho tàu thông qua phải dừng lại tại ga theo điều kiện quy định tại điểm a) của mục này.
2.3.5.2.6 Lái tàu chỉ được cho tàu vượt quá cột tín hiệu vào ga hoặc vào bãi ở trạng thái đóng sau khi đã nhận được tín hiệu dẫn đường hoặc Giấy cho phép vào ga hay tín hiệu đón tàu của nhân viên dẫn đường và chạy vào ga với tốc độ không quá 15 km/h nhưng phải đặc biệt cảnh giác chuẩn bị sẵn sàng dừng tàu trước chướng ngại.
Giấy cho phép vào ga theo Mẫu số 05 tại Phụ lục E ban hành kèm theo Quy chuẩn này.
Cách thức giao Giấy cho phép vào ga cho Lái tàu và ghi chép nội dung của Giấy cho phép vào do Doanh nghiệp kinh doanh kết cấu hạ tầng đường sắt hoặc Chủ sở hữu đường sắt chuyên dùng quy định trong Quy trình chạy tàu và công tác dồn đường sắt.
2.3.5.2.7 Ở những ga không được phép đón hai tàu cùng một lúc, nếu có hai tàu cùng đến ga, phải đón vào trước tàu chạy trước tàu kế tiếp hoặc tàu mà để dừng ngoài cột hiệu vào ga sẽ chạy lại khó khăn hoặc tàu không nên để dừng ngoài ga.
2.3.5.2.8 Tàu đến ga phải dừng ở giữa giới hạn hai mốc tránh va chạm của đường đón tàu, ở ga có cột tín hiệu ra ga thì phải dừng giữa giới hạn cột tín hiệu ra ga phía trước và mốc tránh va chạm phía sau.
Nếu đuôi tàu còn ở ngoài mốc tránh va chạm: Trưởng tàu và Gác ghi phải báo tín hiệu ngừng trên đường bên cạnh để phòng vệ được quy định trong Quy chuẩn kỹ thuật quốc gia về tín hiệu giao thông đường sắt; Đối với đoàn tàu hàng không bố trí Trưởng tàu thì Gác ghi phải kiểm tra và báo tín hiệu ngừng trên đường bên cạnh để phòng vệ được quy định trong Quy chuẩn kỹ thuật quốc gia về tín hiệu giao thông đường sắt.
2.3.5.2.9 Tín hiệu vào ga phải được đóng lại ngay khi toàn bộ tàu chạy qua khỏi tín hiệu hoặc tự động đóng lại ngay khi đôi bánh xe đầu tiên của tàu chạy qua tín hiệu ở khu gian đóng đường tự động.
Nếu tàu quá dài mà đầu tàu đã đến mốc tránh va chạm phía ra ga, nhưng đuôi tàu còn nằm ngoài cột tín hiệu vào ga thì cũng phải đóng tín hiệu vào ga.
2.3.5.3 Gửi tàu
2.3.5.3.1 Trước khi gửi tàu, Trực ban chạy tàu ga và gác ghi phải chuẩn bị đường gửi tàu theo trình tự công tác do Doanh nghiệp kinh doanh kết cấu hạ tầng đường sắt hoặc Chủ sở hữu đường sắt chuyên dùng quy định trong Quy trình chạy tàu và công tác dồn đường sắt.
2.3.5.3.2 Trước khi gửi tàu, Trực ban chạy tàu ga phải xác nhận mọi điều kiện về an toàn để gửi tàu vào khu gian và đã làm đầy đủ các thủ tục về đóng đường với ga đón tàu.
2.3.5.3.3 Trước khi gửi tàu, Trực ban chạy tàu ga phải kiểm tra và xác nhận những công việc chuẩn bị sau đây:
a) Việc dồn dịch có ảnh hưởng hoặc trở ngại đến đường gửi tàu và đường tàu ra ga đã được đình chỉ;
b) Đường gửi tàu và đường tàu ra đã thanh thoát;
c) Các ghi liên quan đã đúng vị trí cần thiết và đã khóa.
Trực ban chạy tàu ga chỉ được mở tín hiệu ra ga hoặc giao bằng chứng cho phép tàu chiếm dụng khu gian sau khi đã kiểm tra và xác nhận công việc chuẩn bị đường gửi tàu nói trên đã được thực hiện đầy đủ.
2.3.5.3.4 Không được phép đón một tàu và gửi một tàu cùng chiều một lúc, nếu:
a) Cuối đường đón tàu này không có thiết bị tách rời với đường gửi tàu (đường an toàn, thiết bị trật bánh hoặc ghi có tác dụng tách rời), trừ trường hợp được Doanh nghiệp kinh doanh kết cấu hạ tầng đường sắt hoặc Chủ sở hữu đường sắt chuyên dùng cho phép.
b) Tàu đón vào là tàu thông qua theo thời trình trừ khi có mệnh lệnh của Nhân viên điều độ chạy tàu cho tàu thông qua phải dừng tại ga thì theo điều kiện quy định tại điểm a của mục này.
2.3.5.3.5 Bằng chứng cho phép tàu chiếm dụng khu gian khi không phải là biểu thị cho phép của tín hiệu ra ga, phải do Trực ban chạy tàu ga giao tận tay cho Lái tàu. Đối với tàu thông qua, dùng cột giao nhận để giao bằng chứng chạy tàu cho Lái tàu khi tàu đang chạy.
2.3.5.3.6 Tín hiệu ra ga phải được đóng lại ngay khi tàu chạy vào phạm vi khu gian hoặc sau khi đôi bánh xe đầu tiên của tàu chạy qua tín hiệu ra ga đó nếu đường tàu ra có mạch điện ray hoặc thiết bị truyền tin tương tự như mạch điện ray.
2.3.5.3.7 Trước khi gửi tàu, tại các ga: Ga khu đoạn, ga lập tàu và các ga khác được chỉ định lập tàu, Trực ban chạy tàu ga phải kiểm tra và xác nhận:
a) Tàu đã lập đúng kế hoạch lập tàu;
b) Việc sắp xếp toa xe trong tàu và các điều kiện khác về lập tàu đã đúng quy định nêu trong Quy chuẩn này;
c) Tàu đã có đủ tín hiệu cần thiết.
Ngoài ra, Trực ban chạy tàu ga phải giao cho Trưởng tàu tờ Nhật ký tàu theo mẫu do Doanh nghiệp kinh doanh kết cấu hạ tầng đường sắt hoặc Chủ sở hữu đường sắt chuyên dùng quy định.
Ở ga dọc đường mà tàu nối thêm toa xe, Trực ban chạy tàu ga này phải giao cho Trưởng tàu bảng kê số toa xe nối thêm.
Nội dung và mẫu bảng kê số toa xe nối thêm do Doanh nghiệp kinh doanh kết cấu hạ tầng đường sắt hoặc Chủ sở hữu đường sắt chuyên dùng quy định trong Quy trình về chạy tàu và công tác dồn đường sắt.
2.3.5.3.8 Khi sử dụng phương pháp đóng đường chạy tàu tự động, bán tự động mà đã xin được đường ga bên để gửi tàu nhưng tín hiệu ra ga, ra bãi ở trạng thái đóng hoặc che khuất thì bằng chứng cho tàu chạy vào khu gian là Giấy phép vạch chéo lục theo Mẫu số 06 tại Phụ lục E ban hành kèm theo Quy chuẩn này.
Việc ghi nội dung, giao Giấy phép vạch chéo lục và thủ tục gửi tàu do Doanh nghiệp kinh doanh kết cấu hạ tầng đường sắt hoặc chủ sở hữu đường sắt chuyên dùng quy định trong Quy trình chạy tàu và công tác dồn đường sắt.
2.3.5.4 Trang bị và nhân viên công tác trên đoàn tàu
2.3.5.4.1 Quy định chung
2.3.5.4.1.1 Tàu khách, tàu hỗn hợp, tàu quân sự, tàu chở công nhân phải có các thông tin, chỉ dẫn, trang thiết bị phục vụ khách hàng, thiết bị an toàn theo quy định của Bộ trưởng Bộ Giao thông vận tải.
2.3.5.4.1.2 Khi trong tàu hàng có toa xe chở chất nổ, chất độc phải có dụng cụ, vật liệu chữa cháy và phòng độc theo quy định của Doanh nghiệp kinh doanh kết cấu hạ tầng đường sắt hoặc Chủ sở hữu đường sắt chuyên dùng.
2.3.5.4.2 Mỗi đoàn tàu phải có đủ định viên để làm công tác chạy tàu như Lái tàu, chỉ huy đoàn tàu, phục vụ hành khách, hàng hóa.
Tùy theo loại tàu, Doanh nghiệp kinh doanh kết cấu hạ tầng đường sắt, Chủ sở hữu đường sắt chuyên dùng, Doanh nghiệp kinh doanh vận tải đường sắt quyết định số định biên, nhiệm vụ, chức năng từng chức danh.
2.3.5.4.3 Trưởng tàu, Phó trưởng tàu khách phụ trách an toàn phải phải thực hiện các nhiệm vụ quyền hạn do Bộ trưởng Bộ Giao thông vận tải quy định.
2.3.5.4.4 Ngoài việc tuân thủ Quy định của Bộ trưởng Bộ Giao thông vận tải về tiêu chuẩn, nhiệm vụ, quyền hạn đối với các chức danh nhân viên đường sắt trực tiếp phục vụ chạy tàu thì Lái tàu và Phụ lái tàu phải thực hiện các công việc quy định trong quy trình tác nghiệp của Lái tàu và Phụ lái tàu do Doanh nghiệp kinh doanh kết cấu hạ tầng đường sắt hoặc Chủ sở hữu đường sắt chuyên dùng quy định.
2.3.5.4.5 Nhân viên khám chữa toa xe và nhân viên phục vụ trên tàu.
2.3.5.4.5.1 Các đoàn tàu khách nhất thiết phải có nhân viên khám chữa toa xe và nhân viên phục vụ trên tàu.
2.3.5.4.5.2 Doanh nghiệp kinh doanh vận tải đường sắt căn cứ vào loại tàu khách để bố trí định viên chức danh nhân viên khám chữa toa xe và nhân viên phục vụ trên tàu, xây dựng quy trình tác nghiệp cho các chức danh trên thực hiện.
2.3.5.4.5.3 Tùy theo tính chất của từng loại tàu hàng, Doanh nghiệp kinh doanh vận tải đường sắt hoặc Chủ sở hữu đường sắt chuyên dùng bố trí định biên, nhân viên khám chữa toa xe và xây dựng Quy trình tác nghiệp cho các chức danh trên thực hiện.
2.3.5.5 Tốc độ
2.3.5.5.1 Tốc độ chạy tàu trên các khu gian, khu đoạn, đoạn không được vượt quá tốc độ quy định trong công lệnh tốc độ.
2.3.5.5.2 Khi tàu chạy qua cột tín hiệu đèn màu báo ánh sáng màu vàng hoặc cột tín hiệu báo trước có cánh ở trạng thái bình thường, tàu phải chạy với tốc độ thích hợp để dừng được trước cột tín hiệu tiếp theo báo ngừng.
2.3.5.5.3 Tốc độ chạy tàu qua ghi theo hướng rẽ: Phải theo đúng tốc độ do Doanh nghiệp kinh doanh kết cấu hạ tầng đường sắt quy định căn cứ theo cấu tạo và trạng thái của ghi. Đối với đường sắt chuyên dùng do chủ sở hữu đường sắt chuyên dùng quy định.
2.3.5.5.4 Khi tàu chạy do đầu máy đẩy đoàn xe, tốc độ không vượt quá 20 km/h.
2.3.5.5.5 Khi tàu chạy vào đường cụt trong ga, tàu chạy với tốc độ không vượt quá 10 km/h.
2.3.5.5.6 Khi qua địa điểm phòng vệ bằng tín hiệu giảm tốc độ tàu phải chạy đúng với tốc độ đã quy định giảm ở đó.
2.3.5.5.7 Nếu ở địa điểm đã có công lệnh giảm tốc độ nhưng lại có giấy cảnh báo ghi tốc độ khác với tốc độ quy định trong công lệnh, tàu phải chạy theo tốc độ thấp nhất.
2.3.5.5.8 Khi ở những địa điểm có đặt tín hiệu phòng vệ giảm tốc độ mà không quy định tốc độ cụ thể nhưng không có cảnh báo hoặc công lệnh quy định tốc độ, tàu phải chạy với tốc độ không quá 15 km/h.
2.3.5.5.9 Khi đầu máy hơi nước chạy ngược chiều mà xe than nước có giá chuyển hướng, tốc độ không được vượt quá 55 km/h. Nếu xe than nước không có giá chuyển hướng hoặc đầu máy không có bánh xe dẫn đường thì phải theo đúng tốc độ do Doanh nghiệp kinh doanh kết cấu hạ tầng đường sắt quy định. Đối với đường sắt chuyên dùng do chủ sở hữu đường sắt chuyên dùng quy định.
2.3.5.6 Biện pháp giải quyết khi bị dừng tàu trong khu gian
2.3.5.6.1 Khi buộc phải dừng tàu trong khu gian, Lái tàu có trách nhiệm:
a) Cho tàu dừng ở đoạn đường bằng và thằng khi yêu cầu dừng tàu không khẩn cấp;
b) Sử dụng hãm gió ép để dừng đoàn tàu và khi cần thiết báo tín hiệu cho nhân viên phục vụ trên tàu siết hãm tay;
c) Xem xét đoàn tàu có thể tiếp tục chạy được không, nếu không phải lập tức kéo còi báo cho Trưởng tàu biết;
d) Cử người trong ban lái tàu đi phòng vệ khi có lệnh điều động của Trưởng tàu.
2.3.5.6.2 Khi tàu bị dừng trong khu gian, Trưởng tàu phải tự mình hoặc chỉ huy nhân viên trên tàu tiến hành ngay những công việc sau đây:
a) Ban đêm lập tức kiểm tra ánh sáng đèn tín hiệu đuôi tàu;
b) Siết chặt hãm tay của những toa xe cuối đoàn tàu. Nếu chỗ tàu dừng là dốc lên (hoặc khi gặp bão) phải dùng chèn đặt vào bánh xe của toa xe sau cùng khi Lái tàu báo hiệu tàu không thể tiếp tục chạy được. Trường hợp hãm gió ép mất tác dụng, phải siết chặt hãm tay ít nhất bằng số trục quy định trong Bảng 5 của Quy chuẩn này;
c) Cử người phòng vệ đoàn tàu ngay sau 10 phút tàu đã dừng ở trong khu gian không đóng đường tự động hoặc điện tín, sau 3 phút tàu đã dừng ở trong khu gian đóng đường tự động (kể cả khi dừng phía trước cột tín hiệu vào ga, tín hiệu phòng vệ đóng);
d) Khi có tàu cùng chiều chạy tiếp phía sau phải lập tức đặt tín hiệu phòng vệ. Nếu thiếu người, Trưởng tàu phải tự mình đảm nhiệm công việc phòng vệ cho đến khi có người thay thế mới được trở về đoàn tàu;
đ) Huy động mọi dụng cụ và vật liệu có thể sử dụng được để khôi phục lại việc chạy tàu thật nhanh chóng;
e) Nếu việc chạy tàu không thể khôi phục lại được trong vòng 30 phút thì phải tìm biện pháp báo ngay với Nhân viên điều độ chạy tàu hoặc Trực ban chạy tàu ga một trong hai ga đầu khu gian biết và yêu cầu cứu viện;
g) Khi đầu máy đơn (kể cả khi có nối thêm toa xe) hoặc đoàn tàu hàng không bố trí Trưởng tàu bị dừng trong khu gian, lái tàu phải đảm nhiệm những công việc nói trên của Trưởng tàu. Trường hợp không đủ người làm những việc nói trên, Lái tàu của đầu máy đơn hoặc Lái tàu của đoàn tàu hàng không bố trí Trưởng tàu khẩn trương báo tin cho Nhân viên điều độ chạy tàu. Nhân viên điều độ chạy tàu khi nhận được tin báo phải có biện pháp phong tỏa khu gian (nếu cần thiết) hoặc thông báo lại cho Lái tàu đối với đoàn tàu không bố trí trưởng tàu biết có tàu chạy kế tiếp (nếu có) để Lái tàu có biện pháp phòng vệ theo quy định.
2.3.5.6.3 Sau khi tàu bị dừng trong khu gian phải tổ chức phòng vệ. Biện pháp phòng vệ đoàn tàu bị dừng trong khu gian nói chung và phòng vệ đoàn tàu tổ chức kéo từng phần về ga nói riêng trong mọi trường hợp tuân thủ theo quy định tại Quy chuẩn kỹ thuật quốc gia về tín hiệu giao thông đường sắt do Bộ Giao thông vận tải quy định và Quy trình về chạy tàu và công tác dồn đường sắt do doanh nghiệp kinh doanh kết cấu hạ tầng đường sắt hoặc Chủ sở hữu đường sắt chuyên dùng ban hành.
2.3.5.6.4 Tàu bị dừng trong khu gian, sau khi đã xin cứu viện mà chưa được phép bằng mệnh lệnh thì không được tiếp tục chạy tiến hoặc lùi.
2.3.5.6.5 Tàu bị dừng trong khu gian có thể lùi lấy đà để chạy lại hoặc lùi về ga gửi tàu với tốc độ chạy lùi không quá 15 km/h. Đoàn tàu hàng sử dụng Thiết bị tín hiệu đuôi tàu thay thế toa trưởng tàu khi bị chết dốc, trong điều kiện lái tàu có thể quan sát được phía đuôi tàu, đảm bảo an toàn khi thực hiện việc lùi tàu, tiến hành cử phụ lái tàu làm tín hiệu phía đuôi tàu. Trình tự, biện pháp lùi tàu lấy đà để chạy lại hoặc lùi về ga gửi tàu do Doanh nghiệp kinh doanh kết cấu hạ tầng đường sắt hoặc chủ sở hữu đường sắt chuyên dùng quy định trong Quy trình về chạy tàu và công tác dồn đường sắt.
Giấy xin phép và Giấy cho phép lùi tàu về ga theo Mẫu số 07 và Mẫu số 08 tại Phụ lục E ban hành kèm theo Quy chuẩn này.
2.3.5.6.5.1 Nếu chưa được phép của Trực ban chạy tàu ga gửi tàu, tàu không được chạy lùi về phía trong cột tín hiệu báo trước hoặc biển báo trước của ga đó.
2.3.5.6.5.2 Không cho phép tàu chạy lùi trong các trường hợp sau đây:
a) Khi sương mù, mưa to, gió lớn hoặc điều kiện xấu khác khó xác nhận tín hiệu;
b) Tàu bị dừng là tàu chạy sau khi thông tin gián đoạn mà phía sau nó có tàu chạy cùng chiều;
c) Tàu chạy trong khu gian đóng đường tự động;
d) Tàu đã xin cứu viện;
đ) Tàu có đầu máy đẩy vào khu gian rồi trở về.
2.3.5.6.6 Khi tàu bị dừng trong khu gian vì không kéo nguyên cả đoàn tàu, đầu máy chính hoặc đầu máy cứu viện được phép kéo từng phần về ga. Biện pháp tổ chức kéo từng phần về ga do Doanh nghiệp kinh doanh kết cấu hạ tầng đường sắt hoặc chủ sở hữu đường sắt chuyên dùng quy định chi tiết trong Quy trình về chạy tàu và công tác dồn đường sắt.
Bằng chứng cho phép Lái tàu chạy đơn hoặc kéo phần đầu đoàn tàu về ga để xin cứu viện sau khi đã thu chứng vật chạy tàu là Giấy phép màu trắng kèm đơn xin cứu viện theo Mẫu số 09 tại Phụ lục E ban hành kèm theo Quy chuẩn này.
2.3.5.7 Biện pháp chạy tàu cứu viện
2.3.5.7.1 Tàu cứu viện chạy trong khu gian phong tỏa theo mệnh lệnh của Nhân viên điều độ chạy tàu (hoặc của Trực ban chạy tàu ga trong trường hợp điện thoại giữa ga với điều độ không thông), mệnh lệnh này phải ghi vào Giấy phép vạch chéo đỏ theo Mẫu số 10 tại Phụ lục E ban hành kèm theo Quy chuẩn này để làm bằng chứng cho phép tàu chiếm dụng khu gian.
2.3.5.7.2 Trực ban chạy tàu ga sau khi nhận được yêu cầu cứu viện bằng giấy hoặc điện thoại của Trưởng tàu, Lái tàu của đầu máy đơn hoặc Lái tàu của đoàn tàu hàng không bố trí Trưởng tàu hoặc của nhân viên cầu đường, thông tin tín hiệu phải báo ngay với Nhân viên điều độ chạy tàu.
Nhân viên điều độ chạy tàu phải phát mệnh lệnh phong tỏa khu gian và mệnh lệnh gửi tàu cứu viện, trong đó phải quy định rõ biện pháp chạy tàu của tàu cứu viện. Trường hợp điện thoại giữa hai ga với điều độ không thông, Trực ban chạy tàu ga nhận được yêu cầu cứu viện phải báo ngay cho Trực ban chạy tàu ga đầu kia khu gian và làm thủ tục phong tỏa khu gian. Sau đó căn cứ vào tình hình cụ thể, cùng nhau tổ chức và quy định biện pháp chạy tàu cứu viện. Khi điện thoại điều độ thông hoặc khi tai nạn đã giải quyết xong, Trực ban chạy tàu hai ga phải báo chi tiết công việc đã làm cho Nhân viên điều độ chạy tàu. Sau khi nhận được thông báo của ga xác nhận khu gian thanh thoát, Nhân viên điều độ chạy tàu phát mệnh lệnh giải tỏa khu gian.
Mệnh lệnh phong tỏa và giải tỏa khu do Doanh nghiệp kinh doanh kết cấu hạ tầng đường sắt hoặc Chủ sở hữu đường sắt chuyên dùng về quy định trong Quy trình chạy tàu và công tác dồn đường sắt.
2.3.5.7.3 Mỗi lần tàu cứu viện chạy vào khu gian hay trở về ga phải báo cho Nhân viên điều độ chạy tàu và Trực ban chạy tàu ga đầu kia của khu gian.
Nếu nơi xảy ra tai nạn có đặt trạm chạy tàu tạm thời thì trước khi cho tàu cứu viện chạy, Trực ban chạy tàu ga phải trao đổi và được sự đồng ý của Trực ban chạy tàu trạm.
2.3.5.7.4 Trưởng ga, Phó ga hoặc Trực ban chạy tàu ga xuống ban phải đi áp dẫn tàu cứu viện đầu tiên chạy vào nơi xảy ra tai nạn (không kể đầu máy vào khu gian kéo phần còn lại) nhân viên này điều khiển tại chỗ mọi công việc có liên quan đến chạy tàu cứu viện cho đến khi có người được chỉ định đến thay.
2.3.5.8 Biện pháp phong tỏa khu gian và chạy tàu khi thi công sửa chữa công trình thiết bị
2.3.5.8.1 Trên nguyên tắc, khi thi công sửa chữa cầu, đường, hầm, thiết bị tín hiệu, thông tin và các công trình, thiết bị khác phải bảo đảm an toàn chạy tàu, không được làm gián đoạn việc chạy tàu và giảm tốc độ tàu.
Chỉ trong trường hợp thi công với khối lượng công tác lớn, điều kiện công tác phức tạp mới cho phép gián đoạn việc chạy tàu và giảm tốc độ tàu trong một thời gian ngắn. Trường hợp này do Doanh nghiệp kinh doanh kết cấu hạ tầng đường sắt hoặc Chủ sở hữu đường sắt chuyên dùng quy định trong Quy trình chạy tàu và công tác dồn đường sắt.
2.3.5.8.2 Trường hợp thi công sửa chữa cầu, hầm và làm những công tác lớn như: Cải tuyến, sửa chữa lớn, thay ray... làm gián đoạn chạy tàu, phải bố trí thời gian phong tỏa vào khoảng trống không có tàu trong Biểu đồ chạy tàu.
2.3.5.8.3 Trường hợp thi công phải phong tỏa khu gian do Doanh nghiệp kinh doanh kết cấu hạ tầng đường sắt hoặc chủ sở hữu đường sắt chuyên dùng quy định trong Quy trình chạy tàu và công tác dồn đường sắt.
2.3.5.8.4 Trước khi bắt đầu thi công, căn cứ vào Giấy phong tỏa khu gian, Nhân viên điều độ chạy tàu liên quan phát mệnh lệnh phong tỏa và biện pháp chạy tàu cần thiết cho Trực ban chạy tàu hai ga đầu khu gian và người lãnh đạo thi công.
Nếu một ga đầu khu gian thuộc sự chỉ huy của Nhân viên điều độ chạy tàu liên quan khác thì trước khi phát lệnh phong tỏa, Nhân viên điều độ chạy tàu liên quan phụ trách ga đầu khu gian này phải trao đổi và được sự đồng ý của Nhân viên điều độ chạy tàu liên quan phụ trách ga đầu bên kia. Nếu phải làm khác nội dung ghi trong Giấy phong tỏa, Nhân viên điều độ chạy tàu liên quan phải báo cáo ngay lý do cho người ký Giấy phong tỏa khu gian.
Giấy phong tỏa khu gian do Doanh nghiệp kinh doanh kết cấu hạ tầng đường sắt hoặc Chủ sở hữu đường sắt chuyên dùng quy định trong Quy trình chạy tàu và công tác dồn đường sắt.
2.3.5.8.5 Mệnh lệnh phong tỏa khu gian do Nhân viên điều độ chạy tàu liên quan truyền đạt trực tiếp cho Người lãnh đạo thi công. Nếu không có liên lạc điện thoại trực tiếp, Nhân viên điều độ chạy tàu liên quan chỉ định ga đầu khu gian truyền đạt lại. Trường hợp không có điện thoại ở địa điểm thi công, Người lãnh đạo thi công phải cử người liên lạc với ga gần nhất để nhận mệnh lệnh phong tỏa.
Trong thời gian phong tỏa khu gian, Trực ban chạy tàu ga hai đầu khu gian phải treo biển "KHU GIAN PHONG TỎA" trên máy đóng đường hoặc điện thoại chạy tàu và đặt tín hiệu phòng vệ đường vào khu gian.
2.3.5.8.6 Không được phép khởi công sửa chữa công trình, thiết bị trên đường sắt gây nguy hiểm cho việc chạy tàu khi Người lãnh đạo thi công chưa nhận được mệnh lệnh bắt đầu phong tỏa khu gian của Nhân viên điều độ chạy tàu liên quan và chưa đặt tín hiệu phòng vệ địa điểm thi công đúng theo quy định tại Quy chuẩn kỹ thuật quốc gia về tín hiệu giao thông đường sắt.
Không được phép rút bỏ tín hiệu phòng vệ khi chưa kết thúc toàn bộ công tác thi công, chưa kiểm tra xong trạng thái đường và giới hạn tiếp giáp kiến trúc đủ điều kiện bảo đảm an toàn chạy tàu.
2.3.5.8.7 Trên nguyên tắc, trong khu gian phong tỏa để thi công chỉ cho phép một tàu công trình vào làm việc (kể cả phương tiện động lực chuyên dùng đường sắt và máy làm đường).
Trường hợp cần thiết cho nhiều tàu công trình cùng chạy vào khu gian phong tỏa thì gửi tàu theo biện pháp do Doanh nghiệp kinh doanh kết cấu hạ tầng đường sắt hoặc chủ sở hữu đường sắt chuyên dùng quy định trong Quy trình chạy tàu và công tác dồn đường sắt. Trong mọi trường hợp tàu công trình gửi vào khu gian phong tỏa phải có Giấy phép vạch chéo đỏ do Trực ban chạy tàu ga cấp cho Lái tàu làm bằng chứng cho phép tàu chiếm dụng khu gian căn cứ theo mệnh lệnh của Nhân viên điều độ chạy tàu liên quan.
Khi thi công không ảnh hưởng đến trạng thái của đường, cầu, hầm, thì Người chỉ huy thi công có thể trực tiếp báo cho Trực ban chạy tàu ga hoặc Nhân viên điều độ chạy tàu việc hoàn thành công tác.
Chỉ khi nào nhận được các báo cáo trên và kiểm tra thủ tục xác nhận khu gian thanh thoát, Nhân viên điều độ chạy tàu mới được phát mệnh lệnh giải tỏa khu gian.
2.3.5.8.8 Sau khi kết thúc thi công, bất luận đơn vị nào phụ trách thi công sửa chữa đường sắt và công trình thiết bị trên đường sắt trong trường hợp phong tỏa khu gian, giám đốc đơn vị quản lý kết cấu hạ tầng đường sắt sở tại hoặc nhân viên được ủy quyền (không dưới cấp trưởng cung cầu, đường) phải báo cho Trực ban chạy tàu ga đầu khu gian hoặc Nhân viên điều độ chạy tàu bằng văn bản hay điện tín, xác nhận việc kết thúc thi công và trạng thái đường, giới hạn tiếp giáp kiến trúc đã được khôi phục cho tàu chạy an toàn. Đối với đơn vị thi công khác trong ngành đường sắt đã được phong tỏa khu gian để thi công, khi kết thúc thì Thủ trưởng đơn vị thi công phải làm đầy đủ thủ tục với ga như các đơn vị quản lý kết cấu hạ tầng đường sắt sở tại phải làm khi kết thúc thi công.
Khi thi công không ảnh hưởng đến trạng thái của đường, cầu, hầm, thì Người chỉ huy thi công có thể trực tiếp báo cho Trực ban chạy tàu ga hoặc Nhân viên điều độ chạy tàu việc hoàn thành công tác.
Chỉ khi nào nhận được các báo cáo trên và kiểm tra thủ tục xác nhận khu gian thanh thoát, Nhân viên điều độ chạy tàu mới được phát mệnh lệnh giải tỏa khu gian.
2.3.5.8.9 Trường hợp sử dụng thời gian giãn cách giữa hai tàu trong Biểu đồ chạy tàu để thi công sửa chữa đường, cầu, hầm trong khu gian, người lãnh đạo thi công phải thông qua Trực ban chạy tàu ga, báo kế hoạch công tác và được Nhân viên điều độ chạy tàu cho phép thi công mà không cần phong tỏa khu gian.
2.3.5.8.10 Khi thi công trong khoảng thời gian giãn cách giữa hai tàu mặc dù đã được Nhân viên điều độ chạy tàu đồng ý, trước khi khởi công, người lãnh đạo thi công phải liên hệ trực tiếp hoặc qua Trực ban chạy tàu ga đầu khu gian với Nhân viên điều độ chạy tàu để thống nhất thời gian thực tế bắt đầu, kết thúc thi công và phải đặt tín hiệu phòng vệ địa điểm thi công được quy định trong Quy chuẩn kỹ thuật quốc gia về tín hiệu giao thông đường sắt.
Sau khi thống nhất thời gian trên, Nhân viên điều độ chạy tàu phát mệnh lệnh cho Trực ban chạy tàu ga hai ga đầu khu gian để quy định thời gian thi công.
Trực ban chạy tàu hai ga đầu khu gian không được gửi tàu vào khu gian trước khi hết thời gian thi công quy định trong mệnh lệnh điều độ, trừ tàu cứu viện. Cảnh báo cấp cho Lái tàu và Trưởng tàu cứu viện theo quy định của Doanh nghiệp kinh doanh kết cấu hạ tầng đường sắt, Chủ sở hữu đường sắt chuyên dùng trong Quy trình chạy tàu và công tác dồn đường sắt.
Việc sử dụng thiết bị cơ giới sửa chữa đường sắt mà không phải phong tỏa khu gian do Doanh nghiệp kinh doanh kết cấu hạ tầng đường sắt hoặc Chủ sở hữu đường sắt chuyên dùng quy định trong Quy trình chạy tàu và công tác dồn đường sắt. Chỉ được phép tiến hành thi công khi có Giấy cho phép thi công do Trực ban chạy tàu ga cấp theo Mẫu số 11 tại Phụ lục E ban hành kèm theo Quy chuẩn này.
2.3.5.8.11 Đến giờ kết thúc thi công trong khoảng thời gian giãn cách giữa hai tàu, trạng thái đường phải được khôi phục cho tàu chạy bình thường và rút bỏ tín hiệu phòng vệ.
Trường hợp đặc biệt phải giảm tốc độ chạy tàu, Người lãnh đạo thi công phải yêu cầu phát giấy cảnh báo cho tàu và đặt tín hiệu giảm tốc độ được quy định trong Quy chuẩn kỹ thuật quốc gia về tín hiệu giao thông đường sắt.
2.3.5.8.12 Khi cần thi công sửa chữa đường, thiết bị tín hiệu và công trình thiết bị khác trên đường ga có ảnh hưởng đến việc chạy tàu và dồn dịch, người lãnh đạo thi công phải đăng ký nội dung thi công và thời gian tiến hành vào sổ kiểm tra thiết bị chạy tàu và phải được Trực ban chạy tàu ga đồng ý. Sau khi đã phòng vệ địa điểm thi công theo quy định trong Quy chuẩn kỹ thuật quốc gia về tín hiệu giao thông đường sắt, người lãnh đạo thi công mới được cho khởi công.
Nếu phải phong tỏa đường chính tuyến và đường đón gửi tàu, Trực ban chạy tàu ga phải báo và được sự đồng ý của Nhân viên điều độ chạy tàu mới cho thi công.
2.3.5.8.13 Sau khi thi công xong ở ga, Người lãnh đạo thi công phải ghi vào sổ kiểm tra thiết bị chạy tàu chất lượng thiết bị bảo đảm chạy tàu an toàn. Trực ban chạy tàu ga ký tên xác nhận vào sổ xong mới được ra lệnh sử dụng lại thiết bị.
2.3.5.9 Biện pháp chạy goòng
2.3.5.9.1 Trên nguyên tắc, những loại xe có thể nhấc ra khỏi đường ray (được gọi là goòng) chỉ được di chuyển trên đường sắt vào ban ngày theo biện pháp chạy goòng do Doanh nghiệp kinh doanh kết cấu hạ tầng đường sắt, Chủ sở hữu đường sắt chuyên dùng quy định cụ thể tại Quy trình về chạy tàu và công tác dồn đường sắt.
Goòng chạy vào khu gian không cần có bằng chứng cho phép chiếm dụng khu gian như tàu (trừ loại có động cơ) và trong bất cứ trường hợp nào cũng không được làm trở ngại việc chạy tàu bình thường.
2.3.5.9.2 Khi sử dụng goòng, Người phụ trách goòng phải làm thủ tục và được Trực ban chạy tàu ga thừa nhận về thời gian sử dụng, nếu ở khu gian thì dùng điện thoại liên lạc với Trực ban chạy tàu ga xin thừa nhận. Dù được thừa nhận cũng phải bảo đảm nhấc goòng ra khỏi đường sắt khi cần thiết.
Việc yêu cầu sử dụng gòong và thừa nhận sử dụng gòong theo Phiếu chạy goòng Mẫu số 12 tại Phụ lục E ban hành kèm theo Quy chuẩn này.
Riêng đối với loại goòng dùng trong công tác kiểm tra, sửa chữa đường và thiết bị như: Goòng dò vết nứt, goòng công vụ làm đường, goòng chạy trên một ray... thì chỉ cần người phụ trách hỏi rõ Trực ban chạy tàu ga về tình hình chạy tàu là có thể cho goòng chạy vào khu gian, trừ khi chạy vào khu gian có hầm, cầu lớn và mặt cắt dọc, mặt bằng của đường bất lợi thì vẫn phải làm thủ tục thừa nhận.
2.3.5.9.3 Khi sử dụng goòng trong khu gian có chở vật liệu từ 100 kg đến dưới 500 kg hoặc khi goòng chạy trong khu gian có hầm, cầu lớn hoặc mặt cắt dọc, mặt bằng của đường hạn chế tầm nhìn, phải cử người cầm tín hiệu tay màu đỏ đi phía trước và phía sau cách goòng 800 m cùng chuyển dịch gieo goòng để phòng vệ. Nếu goòng chở từ 500 kg trở lên chạy trong điều kiện tầm nhìn hạn chế (đường đào, đường cong bán kính nhỏ, hầm, cầu lớn hoặc có sương mù, mưa to gió lớn), phải tăng thêm người phòng vệ trung gian đi cách xa hơn người phòng vệ chính ít nhất 200 m.
2.3.5.9.4 Khi sử dụng goòng phải có những điều kiện sau đây:
a) Có người phụ trách;
b) Có đủ số người đi theo để khi tàu gần đến hoặc khi nhận được tín hiệu nguy cấp nhấc goòng nhanh chóng ra khỏi đường ngoài phạm vi khổ giới hạn tiếp giáp kiến trúc đường sắt;
c) Có đủ tín hiệu quy định cho goòng và những tín hiệu cần thiết khác để phòng vệ;
d) Goòng có động cơ nhất thiết phải có thiết bị hãm tốt.
2.3.5.9.5 Khi sử dụng goòng trên các đường ga, Người phụ trách goòng phải ghi yêu cầu vào Sổ đăng ký chạy goòng và được Trực ban chạy tàu ga ký tên chấp nhận. Nếu địa điểm làm việc cách xa phòng Trực ban chạy tàu ga thì liên lạc bằng điện thoại để xin phép.
Ngoài quy định trên, khi sử dụng goòng di chuyển trên đường và ghi ở ga lập tàu hoặc ga đang có đầu máy dồn hoạt động, còn phải cử người cầm tín hiệu tay màu đỏ đi ở hai đầu cách goòng ít nhất 50 m cùng chuyển dịch theo goòng để phòng vệ.
Các trường hợp goòng không được phép chạy do Doanh nghiệp kinh doanh kết cấu hạ tầng đường sắt, Chủ sở hữu đường sắt chuyên dùng quy định cụ thể tại Quy trình về chạy tàu và công tác dồn đường sắt.
2.3.5.10 Cấp cảnh báo
Trừ những địa điểm cần giảm tốc độ chạy tàu đã được quy định bằng công lệnh, những trường hợp dưới đây phải cấp cảnh báo cho các nhân viên trên tàu:
a) Khi sửa chữa theo kế hoạch đường, cầu, hầm hoặc dừng rồi chạy lại (dẫn đường) qua địa điểm thi công;
b) Khi goòng chở vật liệu nặng hoặc khi goòng hoạt động trong khu gian có tầm nhìn hạn chế (đường cong, đường đào, sương mù, mưa to gió lớn, có cầu, hầm lớn dài);
c) Khi đường, cầu, hầm và thiết bị kiến trúc khác trong khu gian bị hư hỏng hoặc có chướng ngại ảnh hưởng đến tàu chạy bình thường;
d) Khi gửi tàu trong lúc có lụt, bão vào khu gian có đoạn đường mà Doanh nghiệp kinh doanh kết cấu hạ tầng đường sắt quy định là điểm xung yếu, nguy hiểm cho tàu chạy bình thường;
Đối với đường sắt chuyên dùng do chủ sở hữu đường sắt chuyên dùng quy định;
đ) Khi không kịp phục hồi trạng thái cầu, đường, hầm cho tàu chạy bình thường trước giờ quy định kết thúc thi công không phong tỏa khu gian;
e) Khi gửi tàu vào khu gian trước giờ quy định kết thúc thi công không phong tỏa khu gian;
g) Khi thi công sửa chữa đường hoặc thiết bị chạy tàu trong ga có ảnh hưởng đến việc đón tàu bình thường mà xét thấy cần thiết phải báo cho tàu biết (dẫn đường, giảm tốc độ ...);
h) Các trường hợp khác xét thấy cần cấp cảnh báo để bảo đảm an toàn chạy tàu.
Việc yêu cầu cấp cảnh báo thuộc quyền hạn của nhân viên đường sắt do Doanh nghiệp kinh doanh kết cấu hạ tầng đường sắt, Chủ sở hữu đường sắt chuyên dùng quy định cụ thể tại Quy trình về chạy tàu và công tác dồn đường sắt.
Giấy cảnh báo theo Mẫu số 13 tại Phụ lục E ban hành kèm theo Quy chuẩn này.
3. QUY ĐỊNH VỀ QUẢN LÝ
3.1 Mỗi nhân viên đường sắt, trước khi nhận chức danh có liên quan đến việc chạy tàu, phải qua sát hạch hợp lệ về những hiểu biết dưới đây, trong phạm vi chức trách của mình:
a) Quy chuẩn kỹ thuật quốc gia về khai thác đường sắt;
b) Quy chuẩn kỹ thuật quốc gia về tín hiệu giao thông đường sắt;
c) Quy trình chạy tàu và công tác dồn đường sắt; Quy trình tác nghiệp;
d) Quy tắc an toàn lao động và an toàn kỹ thuật;
đ) Quy tắc tỷ mỷ về chức vụ;
e) Nội quy lao động.
Những chức danh có tiêu chuẩn cấp bậc kỹ thuật còn phải được sát hạch hợp lệ về trình độ hiểu biết kỹ thuật chuyên môn cần thiết quy định cho chức danh đó.
3.2 Trong thời gian làm nhiệm vụ có liên quan đến việc chạy tàu, mỗi nhân viên đường sắt phải qua kiểm tra định kỳ về trình độ thông hiểu quy chuẩn kỹ thuật, quy trình, quy tắc nghiệp vụ kỹ thuật, nội quy trong phạm vi chức trách của mình và được nhận xét về chất lượng công tác đạt yêu cầu quy định trong khi thi hành nhiệm vụ đó.
3.3 Những nhân viên đường sắt được sử dụng làm công tác có liên quan đến việc chạy tàu phải được định kỳ kiểm tra lại sức khỏe trong hạn kỳ quy định.
3.4 Những người đang trong thời kỳ thực tập, chỉ được phép sử dụng thiết bị tín hiệu, thông tin và các máy móc thiết bị chạy tàu khác khi có sự hướng dẫn và giám sát của nhân viên phụ trách chính thức, nhân viên này phải chịu trách nhiệm về việc làm của người thực tập.
3.5 Nhân viên đường sắt khi thấy tàu đang chạy hoặc đang dồn dịch có hiện tượng rõ rệt nguy hiểm đến an toàn chạy tàu phải lập tức có tín hiệu bắt tàu dừng lại; Khi phát hiện thấy công trình thiết bị đường sắt hoặc các chướng ngại khác có thể uy hiếp an toàn chạy tàu phải lập tức dùng mọi cách phòng vệ địa điểm nguy hiểm, đồng thời báo cho người có trách nhiệm đến giải quyết.
3.6 Nhân viên đường sắt trong phạm vi nhiệm vụ của mình phải có trách nhiệm chấp hành nghiêm chỉnh Quy chuẩn này.
4. TỔ CHỨC THỰC HIỆN
4.1 Doanh nghiệp kinh doanh kết cấu hạ tầng đường sắt, Chủ sở hữu đường sắt chuyên dùng căn cứ các quy định của Quy chuẩn này, chủ trì, phối hợp với Doanh nghiệp kinh doanh vận tải đường sắt xây dựng:
a) Quy trình chạy tàu và công tác dồn đường sắt thuộc phạm vi quản lý để quy định chi tiết việc: Chạy tàu với phương pháp đóng đường tự động; Chạy tàu với phương pháp đóng đường nửa tự động; Chạy tàu với phương pháp đóng đường bằng máy thẻ đường; chạy tàu với phương pháp đóng đường bằng điện tín; Chạy tàu với phương pháp đóng đường bằng thông tri; Biện pháp chạy tàu cứu viện và biện pháp giải quyết khi tua bị dừng trong khu gian; Biện pháp chạy tàu khi tiến hành công tác sửa chữa thiết bị và công trình kiến trúc; Biện pháp đón gửi tàu; Công tác dồn; Công tác điều độ chạy tàu; Công tác cấp cảnh báo;
b) Quy định nội dung các mẫu sổ đăng ký phục vụ công tác chạy tàu và cấp cảnh báo bao gồm: Sổ đăng ký cảnh báo (dùng cho Trực ban chạy tàu ga); Sổ đăng ký lệnh của Nhân viên điều độ (dùng cho Nhân viên điều độ chạy tàu); Sổ đăng ký nhận lệnh của Nhân viên điều độ chạy tàu (dùng cho Trực ban chạy tàu ga); Bản sao lệnh của Nhân viên điều độ chạy tàu (dùng cho Trực ban chạy tàu ga); Sổ nhận điện tín (dùng cho Nhân viên điều độ chạy tàu); Sổ biên bản điện tín chạy tàu (dùng cho Trực ban chạy tàu ga); Sổ đăng ký cảnh báo của Nhân viên điều độ chạy tàu (dùng cho Nhân viên điều độ chạy tàu); Sổ nhận cảnh báo của Nhân viên điều độ chạy tàu (dùng cho Trực ban chạy tàu ga); Giấy phong tỏa khu gian; Các mẫu sổ và ấn chỉ chạy tàu cần thiết khác ban hành kèm theo Quy trình chạy tàu và công tác dồn đường sắt;
c) Nội dung chi tiết Quy tắc quản lý kỹ thuật ga, trạm.
4.2 Khi tổ chức chạy tàu từ đường sắt quốc gia vào đường sắt chuyên dùng có kết nối ray với đường sắt quốc gia và ngược lại, Doanh nghiệp kinh doanh kết cấu hạ tầng đường sắt chủ trì, phối hợp với chủ sở hữu đường sắt chuyên dùng quy định biện pháp chạy tàu tại điểm giao tiếp giữa đường sắt quốc gia và đường sắt chuyên dùng.
4.3 Thủ trưởng các tổ chức liên quan có trách nhiệm phổ biến, tập huấn Quy chuẩn này đến các đơn vị và nhân viên dưới quyền để thực hiện.
4.4 Các tổ chức, đơn vị có liên quan căn cứ nội dung được giao trong Quy chuẩn này có trách nhiệm xây dựng, ban hành, tập huấn các nội dung chi tiết để thực hiện.
4.5 Quá trình thực hiện có khó khăn, vướng mắc, các tổ chức, đơn vị liên quan, tổng hợp, báo cáo gửi Cục Đường sắt Việt Nam, Bộ Giao thông vận tải để giải quyết.
4.6 Cục Đường sắt Việt Nam chủ trì, phối hợp với các tổ chức, đơn vị có liên quan kiểm tra việc thực hiện Quy chuẩn này.
Phụ lục A
Khổ giới hạn tiếp giáp kiến trúc
A.1 - Khổ giới hạn tiếp giáp kiến trúc trên đường thẳng trong khu gian và đường chính trong ga

CHI TIẾT GIỚI HẠN TIẾP GIÁP RAY

a1, a2: Khoảng cách giữa ray cơ bản và ray hộ bánh
A.2 - Khổ giới hạn tiếp giáp kiến trúc trên đường thẳng trong ga

a1, a2: Khoảng cách giữa ray cơ bản và ray hộ bánh
|
|
Giới hạn chung cho các kiến trúc trong ga |
|
|
Giới hạn cầu vượt và mái che mưa trong ga |
|
|
Giới hạn nhà để đầu máy, thiết bị lấy than nước, cầu quay, cầu cân, nơi rửa toa xe và cột tín hiệu |
|
|
Giới hạn các cột trên ke (trừ cột giao nhận thẻ đường) |
|
|
Giới hạn các biển báo trong ga |
|
|
Giới hạn nhà cửa trên ke |
|
|
Giới hạn ke hàng (cách tim đường sắt 1620mm, các ga chưa cải tạo được giữ nguyên) |
Hình A.2
A.3 - Khổ giới hạn tiếp giáp kiến trúc trên đường thẳng trong cầu

|
|
Giới hạn bản thân cầu |
|
|
Giới hạn kiến trúc trong cầu |
(Xem chi tiết giới hạn tiếp giáp ray dưới bản vẽ A.1)
Hình A.3
A.4 - Khổ giới hạn tiếp giáp kiến trúc trên đường thẳng trong hầm

|
|
Giới hạn bản thân hầm |
|
|
Giới hạn kiến trúc trong hầm |
(Xem chi tiết giới hạn tiếp giáp ray dưới bản vẽ A.1)
Hình A.4
Chú thích chung cho các bản vẽ từ A.1 đến A.4
Khổ giới hạn tiếp giáp kiến trúc trên đường cong phải căn cứ khổ giới hạn tiếp giáp kiến trúc trên đường thẳng mà nới rộng thêm theo công thức dưới đây:
1. Nới rộng bụng đường cong:
(mm)
2. Nới rộng lưng đường cong:
(mm)
Trong đó:
- ω1, ω2: Khoảng nới rộng.
- h: Siêu cao ray lưng đường cong (mm).
- R: Bán kính đường cong (m).
A.5 - Khổ giới hạn tiếp giáp kiến trúc trên đường thẳng trong khu gian và đường chính trong ga

CHI TIẾT GIỚI HẠN TIẾP GIÁP RAY

Hình A.5
A.6 - Khổ giới hạn tiếp giáp kiến trúc trên đường thẳng trong ga

|
|
Giới hạn chung cho các kiến trúc trong ga |
|
|
Giới hạn nhà để đầu máy, thiết bị lấy than nước, cầu quay, cầu cân, nơi rửa toa xe và cột tín hiệu |
|
|
Giới hạn các biển báo trong ga |
|
|
Giới hạn ke hàng |
|
|
Giới hạn các cột trên ke (trừ cột giao nhận thẻ đường) |
|
|
Giới hạn nhà cửa trên ke |
Hình A.6
A.7 - Khổ giới hạn tiếp giáp kiến trúc trên đường thẳng trong cầu

(Xem chi tiết giới hạn tiếp giáp ray dưới bản vẽ A.5)
|
|
Giới hạn bản thân cầu |
|
|
Giới hạn kiến trúc trong cầu theo kích thước của khổ giới hạn tiếp giáp kiến trúc trên đường thẳng trong khu gian ở bản vẽ A.5 |
Hình A.7
A.8 - Khổ giới hạn tiếp giáp kiến trúc trên đường thẳng trong hầm

(Xem chi tiết giới hạn tiếp giáp ray dưới bản vẽ A.5)
|
|
Giới hạn bản thân hầm |
|
|
Giới hạn kiến trúc trong hầm theo kích thước của khổ giới hạn tiếp giáp kiến trúc trên đường thẳng trong khu gian ở bản vẽ A.5 |
Hình A.8
Chú thích chung cho các bản vẽ từ A.5 đến A.8
Khổ giới hạn tiếp giáp kiến trúc trên đường cong phải căn cứ khổ giới hạn tiếp giáp kiến trúc trên đường thẳng mà nới rộng thêm theo công thức dưới đây:
1. Nới rộng bụng đường cong:
(mm)
2. Nới rộng lưng đường cong:
(mm)
Trong đó:
- ω1, ω2: Khoảng nới rộng về phía bụng và lưng đường cong (mm).
- H: Chiều cao từ điểm tính toán tới mặt ray (mm).
- h: Siêu cao ray lưng đường cong (mm).
- R: Bán kính đường cong (m).
Phụ lục B
Khổ giới hạn đầu máy, toa xe
B.1 - Khổ giới hạn đầu máy, toa xe (khổ đường 1000 mm)

CHI TIẾT GIỚI HẠN TIẾP GIÁP RAY

|
|
Giới hạn đầu máy, toa xe |
|
|
Giới hạn tín hiệu trên đầu máy, toa xe |
|
|
Giới hạn bộ phận chịu ảnh hưởng lên xuống của lò xo |
|
|
Giới hạn guốc hãm, ống xả cát |
Hình B.1
B.2 - Khổ giới hạn đầu máy, toa xe (khổ đường 1435 mm)

CHI TIẾT GIỚI HẠN TIẾP GIÁP RAY

|
|
Giới hạn đầu máy, toa xe |
|
|
Giới hạn tín hiệu trên đầu máy, toa xe |
|
|
Giới hạn bộ phận chịu ảnh hưởng lên xuống của lò xo |
|
|
Giới hạn guốc hãm, ống xả cát |
Hình B.2
Phụ lục C
Khổ giới hạn áp dụng tạm thời cho các kiến trúc, thiết bị cũ chưa được cải tạo ở gần đường khổ 1000 mm lồng thêm đường khổ 1435 mm

|
|
Giới hạn tiếp giáp kiến trúc đường lồng |
|
|
Khổ giới hạn đường 1435 mm |
|
a1, a2, a3: |
Khoảng cách giữa ray cơ bản và ray hộ bánh |
Hình C
Ghi chú: Những toa xe từ mặt ray lên 1100 mm rộng quá 3000 mm, chạy trên những đường khổ 1000 mm phải có sự cho phép riêng như xếp hàng vượt quá khổ giới hạn đầu máy, toa xe.
Phụ lục D
Cấp kỹ thuật ga đường sắt
D.1 - Yêu cầu tối thiểu đối với tác nghiệp kỹ thuật của ga
|
TT |
Cấp kỹ thuật ga |
Yêu cầu tối thiểu đối với tác nghiệp kỹ thuật của ga |
|
|
1 |
Ga cấp I |
Ga hành khách |
a) Giải thể, lập các loại tàu sau: tàu đặc biệt; tàu khách nhanh chạy suốt; tàu khách nhanh chạy trong khu đoạn; tàu khách thường; tàu quân dụng, tàu hỗn hợp, tàu chở công nhân; tàu hàng đường ngắn, tàu thoi hoặc tàu khách liên vận quốc tế hoặc tàu khách đường sắt đô thị. b) Có tác nghiệp chỉnh bị kỹ thuật toa xe tại ga hoặc tại cơ sở chỉnh bị kỹ thuật toa xe liền kề. c) Có tác nghiệp chỉnh bị kỹ thuật đầu máy tại cơ sở chỉnh bị đầu máy liền kề. d) Có tác nghiệp đón, tiễn hành khách. |
|
Ga hàng hóa |
a) Giải thể, lập các loại tàu sau: tàu đặc biệt; tàu hàng nhanh chạy suốt; tàu quân dụng, tàu hỗn hợp; tàu hàng trong khu đoạn; tàu hàng đường ngắn, tàu thoi; tàu chuyên dùng hoặc tàu hàng liên vận quốc tế. b) Có tác nghiệp chỉnh bị kỹ thuật toa xe tại ga hoặc tại cơ sở chỉnh bị kỹ thuật toa xe liền kề. c) Có tác nghiệp chỉnh bị kỹ thuật đầu máy tại cơ sở chỉnh bị đầu máy liền kề. d) Có tác nghiệp tổ chức xếp, dỡ hàng hóa. |
||
|
Ga hỗn hợp |
Thực hiện đồng thời chức năng của ga hành khách cấp I và ga hàng hóa cấp I. |
||
|
2 |
Ga cấp II |
Ga hành khách |
a) Giải thể, lập các loại tàu sau: tàu đặc biệt; tàu khách nhanh chạy trong khu đoạn; tàu khách thường; tàu quân dụng, tàu hỗn hợp, tàu chở công nhân; tàu hàng đường ngắn, tàu thoi hoặc tàu khách liên vận quốc tế. b) Có tác nghiệp chỉnh bị kỹ thuật toa xe tại ga hoặc tại cơ sở chỉnh bị kỹ thuật toa xe liền kề hoặc có tác nghiệp chỉnh bị kỹ thuật đầu máy tại cơ sở chỉnh bị đầu máy liền kề. c) Có tác nghiệp đón, tiễn hành khách. |
|
Ga hàng hóa |
a) Giải thể, lập các loại tàu sau: tàu đặc biệt; tàu quân dụng, tàu hỗn hợp; tàu hàng trong khu đoạn; tàu hàng đường ngắn, tàu thoi; tàu chuyên dùng hoặc tàu hàng liên vận quốc tế. b) Có tác nghiệp chỉnh bị kỹ thuật toa xe tại ga hoặc tại cơ sở chỉnh bị kỹ thuật toa xe liền kề hoặc có tác nghiệp chỉnh bị kỹ thuật đầu máy tại cơ sở chỉnh bị đầu máy liền kề. c) Có tác nghiệp tổ chức xếp, dỡ hàng hóa. |
||
|
Ga hỗn hợp |
Thực hiện đồng thời chức năng của ga hành khách cấp II và ga hàng hóa cấp II. |
||
|
3 |
Ga cấp III |
Là các ga không đáp ứng các tiêu chí của các ga cấp I, ga cấp II |
|
D.2 - Yêu cầu tối thiểu đối với số lượng đường ga
|
TT |
Cấp kỹ thuật ga |
Số lượng đường đón gửi |
Số lượng bãi dồn |
Số lượng đường xếp dỡ |
|
|
1 |
Ga cấp I |
Ga hành khách |
3 |
3 |
- |
|
Ga hàng hóa và ga hỗn hợp |
3 |
3 |
3 |
||
|
2 |
Ga cấp II |
Ga hành khách |
2 |
2 |
- |
|
Ga hàng hóa và ga hỗn hợp |
2 |
3 |
2 |
||
|
3 |
Ga cấp III |
Ga hành khách |
2 |
- |
- |
|
Ga hàng hóa và ga hỗn hợp |
2 |
- |
1 |
||
Ghi chú:
- Đối với những ga cấp I hiện tại mà có sử dụng đường đón gửi chung với đường dồn hoặc ngược lại thì số lượng đường bãi dồn tối thiểu là 02 đường.
- Ngoài thỏa mãn quy định về số đường trong ga như bảng trên, đối với từng cấp kỹ thuật ga theo quy định phải có đầy đủ số lượng và chiều dài đường ga khác đáp ứng yêu cầu khối lượng vận chuyển, tương ứng với tính chất tác nghiệp và cấp kỹ thuật ga.
Phụ lục E
Các biểu mẫu
Mẫu số: 01
|
|
||||||||||||||||||||||||||||||
|
Thử hãm: ………………………...... Số …………………………………… Hội đồng kiểm tra hãm đoàn tàu số: ………do đầu máy số.................... Kéo tại ga:......................…………. lúc ………….giờ……..phút ……...... Ngày ……………… tháng …………. năm …………………. |
Thử hãm: ………………………...... Số …………………………………… Hội đồng kiểm tra hãm đoàn tàu số: ………do đầu máy số.................... Kéo tại ga:......................…………. lúc ………….giờ……..phút ……...... Ngày ……………… tháng …………. năm …………………. |
||||||||||||||||||||||||||||||
Kết luận: Sau khi kiểm tra và tính toán Hội đồng xác nhận đoàn tàu có hãm tốt và có đủ lực hãm theo quy định và bảo đảm chạy tàu an toàn. |
Kết luận: Sau khi kiểm tra và tính toán Hội đồng xác nhận đoàn tàu có hãm tốt và có đủ lực hãm theo quy định và bảo đảm chạy tàu an toàn. |
||||||||||||||||||||||||||||||
|
|
||||||||||||||||||||||||||||||
Mẫu số: 02
|
Mẫu số: 2A PHIẾU ĐƯỜNG (Dùng cho tàu số lẻ)
Ghi chú: 1. Phiếu đường gồm hai (02) phần: Phần giao cho Lái tàu và phần làm tồn căn. 2. Khi viết phải dùng bút mực, không tẩy xoá. 3. Giấy nền màu trắng |
Mẫu số: 2B PHIẾU ĐƯỜNG (Dùng cho tàu số chẵn)
Ghi chú: 1. Phiếu đường gồm hai (02) phần: Phần giao cho Lái tàu và phần làm tồn căn. 2. Khi viết phải dùng bút mực, không tẩy xoá. 3. Giấy nền màu xanh. |
Mẫu số: 03
|
GIẤY PHÉP MÀU ĐỎ KÈM THEO THÔNG TRI MẪU A HOẶC B
Ghi chú: 1. Giấy phép màu đỏ gồm ba (03) phần: Phần tồn căn, phần giao cho Lái tàu và phần giao cho Trưởng tàu. 2. Khi dùng: Gạch bỏ những chữ và mục không cần thiết; 3. Điền bằng bút mực, không được xoá, tẩy sửa; 4. Giấy nền màu đỏ. |
Mẫu số: 04
THÔNG TRI C HOẶC D
|
ĐƯỜNG SẮT VIỆT NAM Ga.............................. (dấu ga)
THÔNG TRI số............ Ngày ...... tháng ...... năm ........... Kính gửi: TBCT ga .................. ..................................................................... C. Đồng ý đón tàu từ ga ......................... đến. D. Xin đường gửi tàu số .............................. đến ga ................................................... TBCT ga ký tên
|
ĐƯỜNG SẮT VIỆT NAM Ga.............................. (dấu ga)
THÔNG TRI số............ Ngày ...... tháng ...... năm ........... Kính gửi: TBCT ga .................. ..................................................................... C. Đồng ý đón tàu từ ga ......................... đến. D. Xin đường gửi tàu số .............................. đến ga ................................................... TBCT ga ký tên
|
Ghi chú:
1. Thông tri gồm hai (02) phần: Phần tồn căn và phần gửi ga bên;
2. Khi dùng: Gạch bỏ phần C hoặc D không thích hợp;
3. Điền bằng bút mực, không được tẩy xoá.
Mẫu số: 05
|
ĐƯỜNG SẮT VIỆT NAM Ga …………………… (dấu ga) GIẤY CHO PHÉP VÀO GA số …………………….. Cho phép tàu số: ………….. ngày ……….. tháng ……… năm ……… chạy vào ga theo dẫn đường vì: ……………………………………….. ……………………………………………………………………………….. ……………………………………………………………………………….. ……………………………………………………………………………….. ……………………………………………………………………………….. ……………………………………………………………………………….. ……………………………………………………………………………….. ……………………………………………………………………………….. ………………………………………………………………………………..
|
ĐƯỜNG SẮT VIỆT NAM Ga …………………… (dấu ga) GIẤY CHO PHÉP VÀO GA số …………………….. Cho phép tàu số: ………….. ngày ……….. tháng ……… năm ……… chạy vào ga theo dẫn đường vì: ……………………………………….. ……………………………………………………………………………….. ……………………………………………………………………………….. ……………………………………………………………………………….. ……………………………………………………………………………….. ……………………………………………………………………………….. ……………………………………………………………………………….. ……………………………………………………………………………….. ………………………………………………………………………………..
|
Mẫu số: 06
GIẤY PHÉP VẠCH CHÉO LỤC

Ghi chú:
1. Giấy phép vạch chéo lục khi sử dụng phương pháp đóng đường tự động và nửa tự động. Giấy phép này gồm hai (02) phần: Phần giao cho Lái tàu và phần làm tồn căn.
2. Khi dùng gạch bỏ mục không cần thiết và những chữ trong mục không thích hợp.
3. Điền bằng bút mực, không tẩy xoá.
4. Gạch chéo màu lục, giấy màu trắng.
Mẫu số: 07
Kính gửi: TBCT ga: …………………………… Ví (Nêu lý do phải lùi tàu) ………………………………………………………. ………………………………………………………………………………… ………………………………………………………………………………… ………………………………………………………………………………… ………………………………………………………………………………… ………………………………………………………………………………… Đề nghị TBCT ga (tên ga) ……………..… cho phép tàu số …………… được lùi về ga (tên ga) …………………………………………
|
Kính gửi: TBCT ga: …………………………… Ví (Nêu lý do phải lùi tàu) ………………………………………………………. ………………………………………………………………………………… ………………………………………………………………………………… ………………………………………………………………………………… ………………………………………………………………………………… ………………………………………………………………………………… Đề nghị TBCT ga (tên ga) ……………..… cho phép tàu số …………… được lùi về ga (tên ga) …………………………………………
|
Mẫu số: 08
TBCT ga (tên ga) …………… cấp cho Trưởng tàu, Lái tàu của tàu số ………………………………… Cho phép tàu số ……….. được lùi về ga (tên ga) ……. theo các biện pháp sau: (nêu rõ các biện pháp chạy tàu khi lùi tàu vào trong ga) …………………………………………………………………. ………………………………………………….……………… ………………………………………………….……………… ………………………………………………….……………… ………………………………………………….……………… ………………………………………………….……………… ……….., ngày … tháng … năm …. TBCT ga (Ký và ghi rõ họ tên) |
TBCT ga (tên ga) …………… cấp cho Trưởng tàu, Lái tàu của tàu số ………………………………… Cho phép tàu số ……….. được lùi về ga (tên ga) ……. theo các biện pháp sau: (nêu rõ các biện pháp chạy tàu khi lùi tàu vào trong ga) …………………………………………………………………. ………………………………………………….……………… ………………………………………………….……………… ………………………………………………….……………… ………………………………………………….……………… ………………………………………………….……………… ……….., ngày … tháng … năm …. TBCT ga (Ký và ghi rõ họ tên) |
TBCT ga (tên ga) …………… cấp cho Trưởng tàu, Lái tàu của tàu số ………………………………… Cho phép tàu số ……….. được lùi về ga (tên ga) ……. theo các biện pháp sau: (nêu rõ các biện pháp chạy tàu khi lùi tàu vào trong ga) …………………………………………………………………. ………………………………………………….……………… ………………………………………………….……………… ………………………………………………….……………… ………………………………………………….……………… ………………………………………………….……………… ……….., ngày … tháng … năm …. TBCT ga (Ký và ghi rõ họ tên) |
Mẫu số: 09
GIẤY PHÉP MÀU TRẮNG KÈM ĐƠN XIN CỨU VIỆN
|
ĐƯỜNG SẮT VIỆT NAM Tồn căn GIẤY PHÉP số ........ và ĐƠN XIN CỨU VIỆN Trưởng tàu ....... gửi TBCT ga ........................ Tàu số ...... ngày ..... tháng .... năm ......., đầu máy số ........ kéo........ toa xe, tổng trọng ….. tấn, bị dừng ở Km …... lúc ….. giờ........ phút, vì ...................... ................................................ ................................................ ................................................ ................................................ Yêu cầu: 1. Gửi tàu cứu viện với cần trục, dụng cụ, vật liệu, đội cứu viện, thuốc, y tá ............................. 2. Cho đầu máy số ....... trở lại km ...... để ...................... ......................................... Tôi đã thu bằng chứng chạy tàu (thẻ đường số ..., phiếu đường số ……..., giấy phép số ……...). Đã nhận giấy phép màu trắng số ...............................
Nhân viên làm nhiệm vụ Trưởng tàu ký tên |
ĐƯỜNG SẮT VIỆT NAM GIẤY PHÉP số ........ Ngày ....... tháng ..... năm ..... Cho phép Lái tàu số ..... bị dừng ở km .... cho đầu máy chạy đến ga ......... có kéo theo ...... toa xe ..... tấn. Tôi đã thu bằng chứng chạy tàu số .... và cử ông .............. làm nhiệm vụ Trưởng tàu. (mục này không ghi khi tàu chạy theo phương pháp đóng đường tự động và nửa tự động). Trưởng tàu Ký tên |
ĐƯỜNG SẮT VIỆT NAM ĐƠN XIN CỨU VIỆN Trưởng tàu ..... gửi Trực ban chạy tàu ga ........................ Tàu số ..... ngày ..... tháng .... năm ......., đầu máy số .......... kéo....... toa xe, tổng trọng … tấn, bị dừng ở Km ….. lúc …. giờ ........ phút, vì ................... ............................................... ............................................... ............................................... ............................................... Yêu cầu: 1. Gửi tàu cứu viện với cần trục, dụng cụ, vật liệu, đội cứu viện, thuốc, y tá ...................... 2. Cho đầu máy số ....... trở lại km...... để ............................. ............................................. Tôi đã thu bằng chứng chạy tàu (thẻ đường số ..., phiếu đường số …..., giấy phép số ............). Đã nhận giấy phép màu trắng số...............................
|
Ghi chú:
1. Ấn chỉ này gồm: 01 Giấy phép màu trắng giao cho Lái tàu, 01 Đơn xin cứu viện, 01 tồn căn;
2. Dùng bút mực điền vào các chỗ trống và gạch bỏ những chữ, những câu không cần thiết.
Mẫu số: 10
GIẤY PHÉP VẠCH CHÉO ĐỎ

Ghi chú
1. Điền vào chỗ trống ở đoạn thích hợp và gạch bỏ các đoạn còn lại không thích hợp;
2. Khi ghi phải dùng bút mực, viết rõ ràng, không tẩy xoá;
3. Giấy phép vạch chéo đỏ gồm hai (02) phần: Phần giao Lái tàu và phần làm tồn căn;
4. Giấy nền màu trắng, gạch chéo màu đỏ.
Mẫu số: 11
(Phần tồn căn lưu ở ga) GIẤY CHO PHÉP THI CÔNG số:........... (Dùng cho thiết bị cơ giới thi công sửa chữa đường trong khu gian không phải phong tỏa) - Căn cứ mệnh lệnh số...................... ngày ................................. của điều độ chạy tàu .................. (Tên điều độ) ......................................... 1 - Cho phép đơn vị ................................................ Thị công sửa chữa đường bằng thiết bị cơ giới trong khu gian ............... Tại Km................ Từ giờ .................................. đến ....................... giờ.................. Hết giờ quy định trên phải đưa thiết bị cơ giới ra khỏi giới hạn tiếp giáp kiến trúc đảm bảo khu gian thanh thoát. 2 - Đơn vị thi công phải thực hiện đầy đủ các quy định tại văn bản số ............. ngày ............................. của ĐSVN.
Phần trả lại đường của đơn vị thi công “Lúc ............ giờ ........... Thiết bị cơ giới tại Km ................. đã được đưa ra khỏi giới hạn tiếp giáp kiến trúc đường sắt. Khu gian đã thanh thoát”.
|
(Phần giao đơn vị thi công) GIẤY CHO PHÉP THI CÔNG số:........... (Dùng cho thiết bị cơ giới thi công sửa chữa đường trong khu gian không phải phong tỏa) - Căn cứ mệnh lệnh số...................... ngày ................................. của điều độ chạy tàu .................. (Tên điều độ) ......................................... 1 - Cho phép đơn vị ................................................ Thị công sửa chữa đường bằng thiết bị cơ giới trong khu gian ............... Tại Km................ Từ giờ .................................. đến ....................... giờ.................. Hết giờ quy định trên phải đưa thiết bị cơ giới ra khỏi giới hạn tiếp giáp kiến trúc đảm bảo khu gian thanh thoát. 2 - Đơn vị thi công phải thực hiện đầy đủ các quy định tại văn bản số ............. ngày ............................. của ĐSVN.
Phần trả lại đường của đơn vị thi công “Lúc ............ giờ ........... Thiết bị cơ giới tại Km ................. đã được đưa ra khỏi giới hạn tiếp giáp kiến trúc đường sắt. Khu gian đã thanh thoát”.
|
Mẫu số: 12
|
ĐƯỜNG SẮT VIỆT NAM |
PHIẾU CHẠY GOÒNG Số:................ |
A. Phần yêu cầu:
Tôi ................ (họ tên) chức danh................ thuộc đơn vị............................... Yêu cầu sử dụng goòng .............. (tên goòng) chạy vào khu gian từ ...................... (ga, km) đến ......................... (ga, km) trong thời gian từ ..... giờ ..... phút đến ....... giờ phút theo biện pháp thừa nhận có người đi phòng vệ.
Tôi bảo đảm sẽ nhấc goòng ra khỏi Đường sắt không quá 3 phút.
|
|
............. ngày .... tháng .... năm .......... |
B. Phần thừa nhận:
Tôi ....................... (họ tên) Trực ban chạy tàu ga ................................... Sau khi đã kiểm tra các điều kiện sử dụng goòng; được sự thoả thuận của ông ............................ thừa nhận cho goòng trên đây được chạy vào khu gian từ ........... (ga, km) đến ............ (ga, km) trong thời gian từ ...... giờ..... phút đến ........ giờ ...... phút theo điều kiện có người đi phòng vệ.
Tình hình tàu chạy vào khu gian trong thời gian sử dụng goòng:
Hướng lẻ: Tàu số ................ chạy ở ga ....... lúc ...... giờ ..... phút.
Hướng chẵn: Tàu số ............ chạy ở ga ....... lúc ...... giờ ..... phút.
Phải nhấc goòng ra khỏi Đường sắt chậm nhất lúc .......... giờ ....... phút.
C. Phần cảnh báo:
………………………........................................................................................................................
………………………........................................................................................................................
………………………........................................................................................................................
|
|
............. ngày ....... tháng ....... năm .......... |
Ghi chú: Phiếu chạy goòng gồm hai (02) bản cùng một số: Bản A giao cho người phụ trách goòng, bản B giữ ở ga.
Mẫu số: 13

Ghi chú:
1. Cảnh báo (giấy trắng có vạch chéo vàng) gồm ba (03) tờ, tờ nọ để lên trên tờ kia: Một (01) tờ giao cho Lái tàu, một (01) tờ bản sao giao cho Trưởng tàu, một (01) tờ làm tồn căn;
2. Dùng bút bi hoặc chì tím và giấy than để điền nội dung cảnh báo vào các chỗ quy định;
3. Khi giao phải yêu cầu Lái tàu, Trưởng tàu ký nhận;
4. Giấy nền màu trắng, gạch chéo màu vàng.
MỤC LỤC
1. QUY ĐỊNH CHUNG
1.1 Phạm vi điều chỉnh
1.2 Đối tượng áp dụng
2. QUY ĐỊNH KỸ THUẬT
2.1 Công trình đường sắt
2.1.1 Quy định chung đối với hạng mục công trình thuộc công trình đường sắt
2.1.2 Quy định cụ thể đối với hạng mục công trình thuộc công trình đường sắt
2.2 Phương tiện giao thông đường sắt
2.2.1 Quy định chung
2.2.2 Quy định về đăng ký, số hiệu, thông tin của phương tiện
2.2.3 Đôi bánh xe của phương tiện giao thông đường sắt
2.2.4 Thiết bị hãm và móc nối, đỡ đấm
2.2.5 Bảo dưỡng, sửa chữa và vận dụng phương tiện giao thông đường sắt
2.2.6 Goòng thủ công
2.3 Tổ chức chạy tàu
2.3.1 Biểu đồ chạy tàu
2.3.2 Điểm phân giới
2.3.3 Tổ chức công tác kỹ thuật ga, trạm
2.3.4 Phương pháp đóng đường chạy tàu
2.3.5 Đón gửi tàu và chạy tàu
3. QUY ĐỊNH VỀ QUẢN LÝ
4. TỔ CHỨC THỰC HIỆN
Phụ lục A Khổ giới hạn tiếp giáp kiến trúc
Phụ lục B Khổ giới hạn đầu máy, toa xe
Phụ lục C Khổ giới hạn áp dụng tạm thời cho các kiến trúc, thiết bị cũ chưa được cải tạo ở gần đường khổ 1000 mm lồng thêm đường khổ 1435 mm
Phụ lục D Cấp kỹ thuật ga đường sắt
Phụ lục E Các biểu mẫu
QCVN 06: 2018/BGTVT
QUY CHUẨN KỸ THUẬT QUỐC GIA VỀ TÍN HIỆU GIAO THÔNG ĐƯỜNG SẮT
National technical regulation on railway signalling
Lời nói đầu
QCVN 06: 2018/BGTVT do Cục Đường sắt Việt Nam chủ trì biên soạn, Bộ Khoa học và Công nghệ thẩm định và được Bộ Giao thông vận tải ban hành theo Thông tư số 32/2018/TT-BGTVT ngày 15 tháng 5 năm 2018, thay thế QCVN 06:2011/BGTVT - Quy chuẩn kỹ thuật quốc gia về tín hiệu đường sắt.
QUY CHUẨN KỸ THUẬT QUỐC GIA VỀ TÍN HIỆU GIAO THÔNG ĐƯỜNG SẮT
National technical regulation on railway signalling
1. QUY ĐỊNH CHUNG
1.1 Phạm vi điều chỉnh
Quy chuẩn kỹ thuật quốc gia về tín hiệu giao thông đường sắt (sau đây gọi tắt là Quy chuẩn) quy định về yêu cầu kỹ thuật đối với công trình và thiết bị tín hiệu, phương thức báo hiệu, phương pháp sử dụng tín hiệu và yêu cầu quản lý trên tuyến đường đơn thuộc mạng đường sắt quốc gia, đường sắt chuyên dùng có nối ray với đường sắt quốc gia.
1.2 Đối tượng áp dụng
Những tín hiệu chưa được quy định trong Quy chuẩn này do Bộ trưởng Bộ Giao thông vận tải quy định bổ sung.
2. YÊU CẦU KỸ THUẬT VỀ CÔNG TRÌNH VÀ THIẾT BỊ TÍN HIỆU ĐƯỜNG SẮT
2.1.1 Màu cơ bản dùng để biểu thị tín hiệu trong việc chạy tàu bao gồm 3 loại sau đây:
a) Đỏ: dừng;
b) Vàng: chạy với sự chú ý hoặc giảm tốc độ;
c) Lục: chạy với tốc độ quy định;
Ngoài các màu cơ bản trên đây, có thể sử dụng thêm các màu xanh lam, trắng, sữa quy định tại phần III của Quy chuẩn này.
2.1.2 Mọi tín hiệu, biển báo phải bảo đảm tầm nhìn tín hiệu liên tục, rõ ràng trong khoảng cách quy định sau:
a) Tín hiệu vào ga, thông qua, phòng vệ, ngăn đường ít nhất 800 m;
b) Tín hiệu ra ga, ra bãi trên đường chính tuyến, tín hiệu vào bãi, tín hiệu báo trước và tín hiệu dốc gù ít nhất 400 m;
c) Tín hiệu ra ga, ra bãi trên các đường phụ, tín hiệu dồn tàu, tín hiệu dẫn đường và các loại biểu thị khác ít nhất 200 m;
d) Ở những nơi do đường cong, địa hình hoặc kiến trúc che khuất không bảo đảm tầm nhìn quy định trên thì cho phép giảm tầm nhìn của tín hiệu vào ga, thông qua, phòng vệ, ngăn đường xuống còn ít nhất 400 m, trường hợp đặc biệt có thể ít dưới 400 m nhưng phải lớn hơn 200 m.
2.1.3 Trong khu đoạn đóng đường không tự động phải đặt tín hiệu báo trước cho tín hiệu vào ga, thông qua, phòng vệ, khi gặp một trong những trường hợp sau đây:
a) Tầm nhìn của các tín hiệu nói trên dưới 800 m;
b) Các tín hiệu nói trên là tín hiệu đèn màu;
c) Tín hiệu phòng vệ ở nơi đường sắt giao cắt trên mặt bằng hoặc cầu chung đường sắt và đường bộ trên cùng một mặt bằng.
2.1.4 Khoảng cách từ tín hiệu báo trước đến tín hiệu chính không dưới 800 m.
Tầm nhìn của tín hiệu báo trước và tín hiệu chính có tín hiệu báo trước không được dưới 400 m, ở những địa hình khó khăn mà tầm nhìn của cả hai tín hiệu được phép ít nhất là 200 m thì khoảng cách giữa cột tín hiệu chính và cột tín hiệu báo trước không dưới 1000 m.
2.1.5 Tín hiệu cố định phải đặt ở bên trái đường sắt theo hướng tàu chạy.
Nếu địa hình khó khăn không thể đặt tín hiệu ở cạnh đường, cho phép đặt tín hiệu trên không giữa tim đường sắt.
Trường hợp đặc biệt, có thể đặt tín hiệu ở bên phải đường sắt theo hướng tàu chạy.
Vị trí đặt tín hiệu của từng đường phải bảo đảm cho lái tàu không nhầm lẫn với tín hiệu của đường bên cạnh.
2.1.6 Ga phải có tín hiệu vào ga. Tín hiệu này đặt cách ghi đầu tiên vào ga ít nhất 50 m tính từ mũi ghi ngược chiều hoặc từ mốc tránh va chạm của ghi thuận chiều. Khi tín hiệu vào ga không bảo đảm tầm nhìn thì phải có tín hiệu lặp lại.
2.1.7 Mỗi đường gửi tàu vào khu gian đóng đường nửa tự động hoặc tự động phải có tín hiệu ra ga. Tín hiệu này đặt ở địa điểm thích hợp ở trong mốc tránh va chạm của mỗi đường gửi tàu sao cho chiều dài dùng được của đường là lớn nhất.
Ở bãi dồn có thể đặt tín hiệu ra ga chung cho các đường để gửi tàu, vị trí đặt tín hiệu ra ga chung phải bảo đảm tầm nhìn quy định cho mỗi đường và phải có thêm đèn chỉ đường gửi tàu.
Tín hiệu ra ga không bảo đảm tầm nhìn quy định phải có tín hiệu lặp lại.
2.1.8 Tín hiệu vào ga chỉ được biểu thị thông qua khi tín hiệu ra ga đường chính tuyến cùng hướng đã mở.
2.1.9 Tín hiệu thông qua đặt ở điểm phân giới của các phân khu đóng đường tự động hoặc ở điểm phân giới của trạm đóng đường.
Chiều dài phân khu đóng đường tự động đèn 3 màu biểu thị không được nhỏ hơn cự ly hãm quy định.
Mỗi tín hiệu thông qua trong đóng đường tự động phải có số hiệu.
2.1.10 Tín hiệu ngăn đường đặt ở trước đường ngang, cầu, hàm lớn có người gác, nơi đất đá thường sụt lở. Tín hiệu này đặt cách điểm phòng vệ ít nhất 100 m. Nơi không đủ điều kiện đặt tín hiệu ngăn đường phải được đặt tín hiệu phòng vệ.
2.1.11 Tại nơi giao nhau giữa đường sắt và đường bộ có mật độ giao thông cao phải đặt tín hiệu đường ngang. Nếu tín hiệu đường ngang tự động có thêm thiết bị chắn tự động thì khi tàu sắp đến đường ngang, thiết bị chắn phải tự động đóng lại và giữ nguyên trạng thái đóng cho tới khi tàu qua khỏi đường ngang.
2.1.12 Trước nơi đường sắt giao nhau cùng mặt bằng trong khu gian, phải đặt tín hiệu phòng vệ. Khoảng cách từ tín hiệu này đến mốc tránh va chạm hoặc đầu lưỡi ghi dẫn vào đường an toàn (nếu có) hoặc điểm giao nhau cùng mặt bằng ít nhất là 100 m. Các tín hiệu nói trên phải có quan hệ liên khóa với nhau bảo đảm chỉ mở được một tín hiệu khi các tín hiệu đối nghịch với nó đã ở trạng thái đóng.
2.1.13 Phía trước hai đầu cầu đường sắt mà mặt cầu dùng chung với đường bộ phải đặt tín hiệu phòng vệ. Khoảng cách từ mố cầu đến tín hiệu cùng bên ít nhất 100 m.
2.1.14 Ở ga có nhiều bãi đón, gửi tàu phải có tín hiệu vào bãi, ra bãi. Vị trí đặt các tín hiệu này như quy định đối với tín hiệu vào ga, ra ga.
2.1.15 Tín hiệu ra ga, ra bãi để gửi tàu đi nhiều hướng phải có biểu thị chỉ hướng tàu chạy.
2.1.16 Cột tín hiệu vào ga, vào bãi loại đèn màu phải có biểu thị dẫn đường.
2.1.17 Trong ga điều khiển tập trung:
a) Có thể đặt tín hiệu dồn chung với cột tín hiệu ra ga, vào bãi hoặc ra bãi;
b) Có thể đặt tín hiệu dồn - phòng vệ ở nơi đường nhánh nối vào ga mà không có quan hệ đóng đường hoặc để phân chia đường chạy tàu trong ga.
2.1.18 Trạng thái bình thường của các loại tín hiệu cố định như sau:
a) Tín hiệu vào ga, ra ga, vào bãi, ra bãi, tín hiệu phòng vệ, tín hiệu của trạm đóng đường, tín hiệu dồn tàu, tín hiệu dồn - phòng vệ phải biểu thị ngừng;
b) Tín hiệu thông qua trong khu gian đóng đường tự động (trừ tín hiệu thông qua liền trước tín hiệu vào ga) phải biểu thị tàu chạy với tốc độ quy định;
c) Tín hiệu báo trước, cánh thông qua trên tín hiệu vào ga hoặc bãi phải biểu thị chạy với chú ý hoặc giảm tốc độ.
2.1.19 Tín hiệu cố định khi hỏng phải trở về trạng thái bình thường hoặc biểu thị ngừng. Tín hiệu thông qua ở khu gian đóng đường tự động khi hỏng phải tự động biểu thị ngừng.
2.1.20 Tín hiệu cánh (trừ tín hiệu báo trước) về ban đêm phải có ánh đèn ở mặt sau để Trực ban chạy tàu ga hoặc người điều khiển tín hiệu xác nhận được trạng thái tín hiệu.
Trường hợp không xác nhận được trạng thái tín hiệu, phải có thiết bị lặp lại tín hiệu.
2.1.21 Ghi phải có biển ghi và đèn ghi, trừ các trường hợp sau:
a) Ghi ở khu vực dồn tàu và ghi không dùng để đón gửi tàu có thể dùng loại không có đèn ghi;
b) Ghi điện khí tập trung có thể không có biển ghi và đèn ghi.
2.2 Hệ thống liên khóa
2.2.1 Ghi quay bằng thủ công đều phải lắp khóa khống chế hoặc khóa điện trong các trường hợp sau đây:
a) Ghi trên đường chạy đón, gửi tàu, ghi phòng hộ;
b) Ghi thông vào đường chuyên để các toa xe chở chất nổ, chất độc, khí nén, khí hóa lỏng;
c) Ghi thông vào đường để tàu cứu viện;
d) Ghi thông vào đường an toàn, đường lánh nạn;
đ) Ghi trên đường chính tuyến trong khu gian;
e) Ghi trên đường chạy đón gửi, ghi phòng hộ, ghi thông vào đường an toàn, đường lánh nạn phải có quan hệ liên khóa với tín hiệu liên quan.
2.2.2 Hệ thống liên khóa phải bảo đảm thực hiện được quan hệ khóa lẫn nhau giữa các biểu thị tín hiệu, giữa trạng thái ghi, đường chạy và biểu thị trạng thái tín hiệu theo yêu cầu và trình tự đã xác định cho từng loại thiết bị.
2.2.3 Thiết bị liên khóa bằng ổ khóa khống chế lắp ở ghi và tay kéo tín hiệu phải bảo đảm:
a) Chỉ lấy được chìa khóa khi ghi đã quay đúng và đã khóa chắc chắn, lưỡi ghi khít chặt với ray cơ bản;
b) Không thể khóa được ghi khi giữa lưỡi ghi và ray cơ bản ở vị trí thanh giằng thứ nhất có khe hở từ 4 mm trở lên;
c) Chỉ mở được tín hiệu khi các ghi liên quan đã khai thông đúng đường chạy và đã khóa, khi tín hiệu đã mở thì không thể mở khóa của các ghi này.
2.2.4 Không được phép lắp đặt, sử dụng khóa khống chế ghi có chìa khóa cùng số trong các trường hợp sau:
a) Trong phạm vi một ga;
b) Trong hai khu vực ghi liền nhau của ga có nhiều bãi;
c) Khóa khống chế ghi trong khu gian có chìa khóa cùng số với khóa ghi ở hai ga đầu khu gian;
d) Khóa khống chế ghi có chìa cùng số ở hai khu gian liền nhau.
2.2.5 Thiết bị liên khóa bằng hộp khóa điện phải bảo đảm:
a) Chỉ khóa được ghi khi lưỡi ghi khít chặt với ray cơ bản;
b) Các ghi có bộ khóa chặt không thể khóa được ghi này khi giữa lưỡi ghi và 4 ray cơ bản ở vị trí thanh giằng thứ nhất có khe hở từ 4 mm trở lên;
c) Chỉ mở được tín hiệu khi các ghi liên quan với đường chạy đã ở đúng vị trí quy định;
d) Chỉ mở được tín hiệu khi các tín hiệu đối nghịch với nó đều đã ở trạng thái đóng;
đ) Sau khi tín hiệu mở, các ghi trên đường chạy liên quan với tín hiệu đó đều không thể mở khóa được;
e) Trực ban chạy tàu ga phải khống chế được ghi và tín hiệu.
2.2.6 Thiết bị liên khóa tập trung bằng điện phải bảo đảm:
a) Khi các ghi liên quan với đường chạy ở không đúng vị trí quy định, hoặc tín hiệu đối nghịch chưa đóng thì tín hiệu liên quan với đường chạy đó không thể mở được;
b) Tín hiệu liên quan với đường chạy đã mở thì các ghi liên quan với đường chạy không thể mở khóa được, các tín hiệu đối nghịch cũng không thể mở được;
c) Khi tàu đang chạy trên ghi, ghi đó không thể mở khóa được;
d) Khi ghi khai thông vào đường đang bị chiếm dụng thì tín hiệu liên quan không thể mở vào đường chạy đó được;
2.3 Thiết bị đóng đường
2.3.1 Hòm thẻ đường cùng số hiệu phải đặt cách nhau ít nhất 3 khu gian. Thẻ đường phải có biển tên khu gian và số thứ tự.
2.3.2 Thiết bị đóng đường bằng máy thẻ đường phải bảo đảm chỉ có thể lấy từ hòm thẻ ra được một thẻ đường khi ga đầu kia cùng khu gian đó cấp điện.
Khi thẻ đường đã lấy ra chưa được trả vào một trong hai hòm thẻ thuộc cùng khu gian thì không thể lấy ra được một thẻ đường khác từ một hòm thẻ đường nào thuộc khu gian đó.
2.3.3 Máy thẻ đường bổ trợ phải liên khóa với máy thẻ đường chính tuyến của ga có liên quan.
2.3.4 Ở ga có quy định cho đầu máy phụ đẩy tàu vào khu gian rồi quay trở về thì phải đặt thêm bộ phận thẻ đường kiểu hình chìa khóa có quan hệ liên khóa với máy thẻ đường để bảo đảm khi chưa lấy được thẻ chính ra khỏi máy thì không thể lấy được thẻ hình chìa khóa và khi chưa trả thẻ hình chìa khóa vào máy thi không thể rút được thẻ chính.
2.3.5 Ga trong khu đoạn đóng đường bằng máy thẻ đường có quy định tàu thông qua phải có cột giao nhận thẻ đường.
2.3.6 Thiết bị đóng đường nửa tự động phải bảo đảm chỉ mở được tín hiệu ra ga khi đã được ga đón tàu đồng ý, hai máy liên quan đã hoàn thành thủ tục đóng đường, các ghi liên quan với đường chạy gửi tàu đã ở vị trí quy định và đã khóa.
2.3.7 Thiết bị đóng đường nửa tự động trên khu gian đường đơn phải bảo đảm sau khi tín hiệu ra ga đã mở thì các tín hiệu ra ga ngược chiều qua khu gian đó đều không thể mở được.
2.3.8 Thiết bị đóng đường nửa tự động có sử dụng với thiết bị kiểm tra khu gian thanh thoát phải bảo đảm tự động trả đường cho ga gửi tàu sau khi toàn bộ đoàn tàu chạy qua cột tín hiệu vào ga của ga đón tàu.
2.3.9 Thiết bị đóng đường tự động nhiều phân khu phải đảm bảo chỉ mở được tín hiệu ra ga khi phân khu tiếp giáp đã thanh thoát hoặc khu gian tiếp giáp đã thanh thoát đối với thiết bị đóng đường tự động một phân khu.
Thiết bị đóng đường tự động một phân khu phải đảm bảo xin đường tự động cho ga gửi tàu, tự động cho đường khi khu gian tiếp giáp thanh thoát và tự động trả đường cho ga gửi tàu sau khi toàn bộ đoàn tàu chạy qua cột tín hiệu vào ga của ga đón tàu.
Ở khu gian đóng đường tự động nhiều phân khu và đóng đường tự động một phân khu kiểu đường đơn hoặc đường đôi 2 chiều, sau khi tín hiệu ra ga của chiều này đã mở thì phải bảo đảm tất cả các tín hiệu ra ga và thông qua chiều ngược lại của khu gian đó đều không mở được.
2.3.10 Ở khu gian đóng đường tự động, khi phân khu có tàu chiếm dụng hoặc thiết bị phát hiện tàu bị hỏng thì tín hiệu thông qua phòng vệ phân khu đó phải tự động biểu thị ngừng.
2.3.11 Ghi nối vào đường chính tuyến trong khu gian phải liên khóa với thiết bị đóng đường và tín hiệu liên quan.
2.3.12 Ở khu gian đóng đường nửa tự động hoặc tự động, để cho tàu hoặc đầu máy phụ đẩy tàu đến giữa khu gian rồi chạy trở về ga gửi tàu, đài điều khiển của ga này phải được trang bị thêm thẻ đường hình chìa khóa. Thẻ này phải có quan hệ liên khóa với thiết bị đóng đường để khi chưa trả thẻ đường hình chìa khóa vào đài điều khiển thì không thể mở được tín hiệu ra ga.
3. QUY ĐỊNH VỀ PHƯƠNG THỨC BÁO HIỆU VÀ PHƯƠNG PHÁP SỬ DỤNG TÍN HIỆU
3.1 Các yêu cầu chung về kỹ thuật
3.1.1 Hệ thống tín hiệu giao thông đường sắt bao gồm hiệu lệnh của người tham gia điều khiển chạy tàu, tín hiệu đèn màu, tín hiệu cánh, biển báo hiệu, pháo hiệu phòng vệ, đuốc và tín hiệu của tàu. Biểu thị của tín hiệu là mệnh lệnh và điều kiện chạy tàu, dồn tàu.
Hiệu lệnh của người tham gia điều khiển chạy tàu gồm cờ, còi, điện thoại, đèn và tín hiệu tay.
Tín hiệu đèn màu là tín hiệu để báo cho lái tàu điều khiển tàu ra, vào ga, thông qua ga, dừng tàu, dồn tàu.
Tín hiệu cánh là tín hiệu để báo cho lái tàu điều khiển tàu ra, vào ga, thông qua ga, dừng ở những nơi chưa có tín hiệu đèn màu.
Biển báo hiệu gồm hai nhóm sau đây:
a) Biển báo để cung cấp những thông tin cần biết cho lái tàu;
b) Biển hiệu, mốc hiệu để bắt buộc lái tàu phải chấp hành.
Pháo hiệu phòng vệ, đuốc, đèn đỏ, vật cầm trên tay quay tròn để báo hiệu dừng tàu khẩn cấp.
Tín hiệu của tàu gồm đèn, còi, biển báo ở đuôi tàu và cờ.
3.1.2 Trạng thái biểu thị thường xuyên của các cột tín hiệu như sau:
a) Ngừng đối với tín hiệu vào ga, vào bãi, ra ga, ra bãi, dốc gù, phòng vệ, cột tín hiệu dồn, cột tín hiệu dồn - phòng vệ và cột tín hiệu ở điểm phân giới của trạm đóng đường;
b) Chú ý đối với tín hiệu báo trước và cánh thông qua của cột tín hiệu vào ga;
c) Cho phép chạy qua đối với các tín hiệu đèn màu thông qua theo hướng cho phép chạy tàu trên khu gian đóng đường tự động.
Những cột tín hiệu sau đây thường xuyên không có biểu thị: tín hiệu lặp lại, ngăn đường, báo trước của tín hiệu ngăn đường và tín hiệu đèn màu thông qua theo hướng không cho phép chạy tàu trong khu gian đóng đường tự động.
3.1.3 Các tín hiệu khi đã ở trạng thái mở đều phải được kịp thời đóng lại trong các trường hợp dưới đây:
3.1.3.1 Ở ga có liên khóa điều khiển không tập trung:
a) Tín hiệu vào ga, vào bãi: khi toàn bộ đoàn tàu đi vào bên trong mốc tránh va chạm của đường đón tàu;
b) Tín hiệu ra ga: khi đầu máy bắt đầu chiếm dụng khu gian.
3.1.3.2 Ở ga có liên khóa điều khiển tập trung:
Các tín hiệu vào ga, vào bãi, ra bãi, ra ga: sau khi đôi bánh xe thứ nhất của đoàn tàu vượt qua tín hiệu đó; đối với cột tín hiệu dồn là sau khi cả đoàn tàu dồn đi qua cột tín hiệu đó.
3.1.3.3 Ở khu gian đóng đường tự động: tín hiệu đèn màu thông qua tự động biểu thị tín hiệu ngừng ngay sau khi đôi bánh xe thứ nhất của tàu vượt qua tín hiệu đó.
3.1.3.4. Tín hiệu phòng vệ, tín hiệu ở điểm phân giới của trạm đóng đường: sau khi toàn bộ đoàn tàu vượt qua tín hiệu đó.
3.1.4 Khi cột tín hiệu không sử dụng (vì hư hỏng hoặc do các nguyên nhân khác) phải lắp bộ biểu thị tín hiệu không có hiệu lực, cụ thể như sau:
a) Đối với cột tín hiệu đèn màu: cắt mạch điện của đèn và lắp bộ biểu thị tín hiệu không có hiệu lực lên trên cột đó và ở ngay dưới cơ cấu tín hiệu (hình 1a);
b) Đối với cột tín hiệu cánh: cố định cánh trên cùng ở vị trí nằm ngang và lắp lên cánh tín hiệu trên cùng bộ biểu thị tín hiệu không có hiệu lực, không thắp đèn (ban đêm) (hình 1b).
3.1.5 Các biểu thị tín hiệu phải rõ ràng, chính xác và kịp thời theo quy định tại Quy chuẩn này.
Tiêu chuẩn kỹ thuật của biển hiệu, mốc hiệu, cờ và đèn,... phải tuân theo quy định tại Quy chuẩn này.
3.2.1 Tín hiệu đèn màu
3.2.1.1 Tín hiệu đèn màu vào ga, tín hiệu đèn màu vào bãi báo những tín hiệu sau:
a) Sáng một đèn màu đỏ: không cho phép tàu vượt quá tín hiệu này (hình 2);
b) Sáng một đèn màu lục: cho phép tàu qua ghi theo hướng thẳng thông qua ga (hoặc bãi) trên đường chính (hình 3);
c) Sáng một đèn màu vàng: cho phép tàu qua ghi theo hướng thẳng vào đường chính và chuẩn bị dừng (hình 4);
d) Sáng hai đèn màu vàng: cho phép tàu qua ghi theo hướng rẽ vào đường phụ và chuẩn bị dừng (hình 5);
đ) Sáng một đèn màu lục và sáng một đèn màu vàng: cho phép tàu qua ghi theo hướng thẳng vào ga và chuẩn bị dừng, báo cho biết tín hiệu vào bãi đã mở (hình 6);
e) Sáng một đèn màu sữa và sáng một đèn màu đỏ: cho phép tàu đi vào với tốc độ không quá 15 km/h và phải chuẩn bị sẵn sàng dừng lại khi có chướng ngại (hình 7).
3.2.1.2 Tín hiệu đèn màu ra ga báo những tín hiệu sau:
3.2.1.2.1 Khu gian đóng đường tự động:
a) Sáng một đèn màu đỏ: không cho phép tàu vượt quá tín hiệu này (hình 8);
b) Sáng một đèn màu lục: biểu thị phía trước có ít nhất hai phân khu đóng đường thanh thoát, cho phép tàu chạy vào khu gian với tốc độ quy định (hình 9);
c) Sáng một đèn màu vàng: cho phép tàu chạy vào khu gian và chú ý phía trước chỉ có một phân khu đóng đường thanh thoát (hình 10);
d) Sáng hai đèn màu lục: cho phép tàu chạy vào khu gian theo hướng rẽ (hình 11);
3.2.1.2.2 Khu gian đóng đường nửa tự động:
a) Sáng một đèn màu đỏ: không cho phép tàu vượt qua tín hiệu này (hình 12);
b) Sáng một đèn màu lục: cho phép tàu chạy vào khu gian (hình 13);
c) Sáng hai đèn màu lục: cho phép tàu chạy vào khu gian theo hướng rẽ (hình 14).
3.2.1.3 Tín hiệu đèn màu ra ga kiêm dồn:
a) Ngoài việc báo những tín hiệu như quy định tại Mục 3.2.1.2 của Quy chuẩn này, còn sáng một đèn màu sữa khi cho phép đoàn dồn vượt qua tín hiệu này;
b) Tín hiệu ra ga kiêm dồn đối với khu gian đóng đường nửa tự động (hình 15);
c) Tín hiệu ra ga kiêm dồn đối với khu gian đóng đường tự động ba biểu thị (hình 16).
3.2.1.4 Tín hiệu đèn màu ra bãi báo những tín hiệu sau:
a) Sáng một đèn màu đỏ: không cho phép tàu vượt quá tín hiệu này (hình 17);
b) Sáng một đèn màu lục: cho phép tàu chạy ra bãi và ra ga (hình 18);
c) Sáng một đèn màu vàng: cho phép tàu chạy ra bãi và chuẩn bị dừng ở tín hiệu phía trước (hình 19).
d) Sáng một đèn màu lục và sáng một đèn màu vàng: biểu thị phía trước theo chiều tàu chạy có ít nhất một tín hiệu ở trạng thái cho phép (hình 20).
3.2.1.5 Tín hiệu đèn màu ra bãi kiêm dồn:
Ngoài việc báo những tín hiệu như những tín hiệu ra bãi quy định tại Mục 3.2.1.4 Quy chuẩn này còn có ánh đèn màu sữa cho phép đoàn tàu dồn vượt qua tín hiệu này (hình 21).
3.2.1.6 Tín hiệu đèn màu thông qua ở điểm phân giới của phân khu đóng đường tự động biểu thị những tín hiệu và có ý nghĩa sau:
a) Sáng một đèn màu đỏ: không cho phép tàu vượt quá tín hiệu này (hình 22);
b) Sáng một đèn màu lục: cho phép tàu chạy qua với tốc độ quy định, thể hiện phía trước có ít nhất hai phân khu đóng đường thanh thoát (hình 23);
c) Sáng một đèn màu vàng: cho phép tàu chạy qua tín hiệu và chú ý phía trước chỉ có một phân khu đóng đường thanh thoát (hình 24).
3.2.1.7 Cột tín hiệu ở điểm phân giới của trạm đóng đường biểu thị những tín hiệu sau:
a) Sáng một đèn màu đỏ: không cho phép tàu vượt quá tín hiệu này (hình 25);
b) Sáng một đèn màu lục: cho phép tàu chạy qua với tốc độ quy định (hình 26).
3.2.1.8 Tín hiệu đèn màu lặp lại có các loại sau:
3.2.1.8.1 Tín hiệu lặp lại của tín hiệu đèn màu vào ga sử dụng cơ cấu xếp đèn biểu thị các tín hiệu sau:
a) Sáng hai đèn màu sữa xếp chéo tạo thành góc 60° với phương nằm ngang: biểu thị tín hiệu vào ga biểu thị đèn màu lục hoặc một đèn màu vàng (hình 27);
b) Sáng hai đèn màu sữa ở vị trí nằm ngang: biểu thị tín hiệu vào ga biểu thị hai đèn vàng (hình 28);
c) Không sáng đèn: biểu thị tín hiệu vào ga ở trạng thái đóng (hình 29).
3.2.1.8.2 Tín hiệu lặp lại của tín hiệu đèn màu ra ga và ra bãi biểu thị các tín hiệu sau:
a) Sáng một đèn màu lục: biểu thị tín hiệu ra ga hoặc ra bãi ở trạng thái mở (hình 30);
b) Không sáng đèn: biểu thị tín hiệu ra ga hoặc ra bãi ở trạng thái đóng;
3.2.1.8.3 Tín hiệu lặp lại của tín hiệu dồn biểu thị các tín hiệu sau:
a) Sáng một đèn màu sữa: biểu thị tín hiệu dồn ở trạng thái mở (hình 31 );
b) Không sáng đèn: biểu thị tín hiệu dồn ở trạng thái đóng;
Các cột tín hiệu đèn màu lặp lại của tín hiệu vào ga, ra ga, ra bãi và dồn đều sử dụng tấm nền hình vuông đặt chéo để phân biệt với các cột tín hiệu khác.
3.2.1.9 Tín hiệu đầu máy thuộc khu đoạn đóng đường tự động ba biểu thị:
a) Sáng đèn màu lục: cho phép chạy tàu với tốc độ quy định, biểu thị tín hiệu mặt đất mà đoàn tàu tới gần biểu thị ánh đèn màu lục;
b) Sáng đèn màu vàng: yêu cầu tàu chạy với sự chú ý, biểu thị tín hiệu mặt đất mà tàu tới gần biểu thị màu vàng;
c) Sáng hai đèn màu vàng: cho phép tàu qua hướng rẽ của ghi, hạn chế tốc độ biểu thị tín hiệu mặt đất mà tàu tới gần biểu thị sáng hai đèn màu vàng;
d) Sáng đèn màu đỏ và đèn màu vàng: yêu cầu kịp thời dùng biện pháp dừng tàu, biểu thị tín hiệu mặt đất mà tàu tới gần biểu thị một ánh đèn màu đỏ;
đ) Sáng đèn màu đỏ: báo tàu đã vượt qua tín hiệu mặt đất biểu thị ánh đèn màu đỏ.
3.2.1.10 Tín hiệu đèn màu phòng vệ báo những tín hiệu sau:
a) Sáng một đèn màu đỏ: không cho phép tàu vượt quá tín hiệu này (hình 32);
b) Sáng một đèn màu lục: cho phép tàu chạy qua tín hiệu với tốc độ quy định (hình 33).
3.2.1.11 Tín hiệu đèn màu ngăn đường:
Ở trạng thái thường xuyên không có biểu thị. Khi biểu thị sáng một đèn màu đỏ báo hiệu không cho phép tàu vượt quá tín hiệu này (hình 34).
Tín hiệu đèn màu ngăn đường dùng tấm nền hình vuông đặt chéo lắp trên cột có sơn vạch chéo xen kẽ trắng đen.
3.2.1.12 Tín hiệu đèn màu báo trước báo những tín hiệu sau:
a) Sáng một đèn màu vàng: báo cho biết cột tín hiệu chính đang ở trạng thái đóng (hình 35);
b) Sáng một đèn màu lục: báo cho biết cột tín hiệu chính đang ở trạng thái mở (hình 36);
c) Ở trạng thái thường xuyên không sáng đèn. Khi biểu thị sáng một đèn màu vàng báo cho biết cột tín hiệu đèn màu ngăn đường đang có ánh đèn màu đỏ (hình 37).
Cột tín hiệu báo trước của tín hiệu ngăn đường có cấu tạo như cột tín hiệu ngăn đường.
3.2.1.13 Tín hiệu đèn màu dồn báo những tín hiệu sau:
a) Sáng một đèn màu lam: cấm dồn toa vượt qua tín hiệu này (hình 38);
b) Sáng một đèn màu sữa: cho phép dồn toa qua tín hiệu này (hình 39).
3.2.1.14 Tín hiệu dồn - phòng vệ biểu thị những tín hiệu sau:
a) Sáng một đèn màu đỏ: không cho phép vượt qua tín hiệu này (hình 40);
b) Sáng một đèn màu sữa: cho phép dồn qua tín hiệu này (hình 41).
3.2.1.15 Tín hiệu đèn màu dốc gù báo những tín hiệu sau:
a) Sáng một đèn màu đỏ: không cho phép đẩy đoàn tàu dồn về phía đỉnh dốc gù (hình 42);
b) Sáng một đèn màu vàng: cho phép đẩy đoàn tàu dồn về phía đỉnh dốc gù và giảm tốc độ (hình 43);
c) Sáng một đèn màu lục: cho phép đẩy đoàn tàu dồn về phía đỉnh dốc gù theo tốc độ quy định (hình 44);
d) Sáng một đèn màu đỏ nhấp nháy: cho phép đoàn tàu dồn chạy từ đỉnh dốc gù về (hình 45);
đ) Một ánh đèn màu sữa: cho phép đầu máy vượt qua đỉnh dốc gù (hình 46).
3.2.2 Tín hiệu cánh
3.2.2.1 Tín hiệu cánh vào ga biểu thị những tín hiệu sau:
3.2.2.1.1 Tín hiệu vào ga hai cánh:
a) Không cho phép tàu vượt qua tín hiệu:
1) Ban ngày: cánh trên màu đỏ nằm ngang tạo với thân cột thành góc 90°, cánh dưới màu đỏ nằm xuôi theo thân cột (hình 47a);
2) Ban đêm: sáng một đèn màu đỏ ở vị trí tương ứng với cánh trên (hình 47b).
b) Cho phép tàu qua ghi theo hướng thẳng vào đường chính và chuẩn bị dừng:
1) Ban ngày: cánh trên màu đỏ nằm nghiêng xuống tạo với thân cột thành góc 45°, cánh dưới màu đỏ nằm xuôi theo thân cột (hình 48a);
2) Ban đêm: sáng một đèn màu vàng ở vị trí tương ứng với cánh trên (hình 48b).
c) Cho phép tàu qua ghi theo hướng rẽ vào đường đón gửi và chuẩn bị dừng:
1) Ban ngày: cánh trên màu đỏ và cánh dưới màu đỏ đều nằm nghiêng xuống tạo với thân cột thành góc 45° (hình 49a);
2) Ban đêm: sáng một đèn màu vàng ở vị trí tương ứng với cánh trên và sáng một đèn màu vàng ở vị trí tương ứng với cánh dưới (hình 49b).
3.2.2.1.2 Tín hiệu vào ga ba cánh:
a) Không cho phép tàu vượt quá tín hiệu:
1) Ban ngày: cánh trên màu đỏ, cánh giữa màu vàng đều nằm ngang tạo với thân cột thành góc 90°, cánh dưới màu đỏ nằm xuôi theo thân cột (hình 50a);
2) Ban đêm: sáng một đèn màu đỏ ở vị trí tương ứng với cánh trên (hình 50b).
b) Cho phép tàu qua ghi theo hướng thẳng và thông qua ga trên đường chính với tốc độ quy định:
1) Ban ngày: cánh trên màu đỏ và cánh giữa màu vàng đều nằm nghiêng xuống tạo với thân cột thành góc 45°, cánh dưới màu đỏ nằm xuôi theo thân cột (hình 51a);
2) Ban đêm: sáng một đèn màu vàng ở vị trí tương ứng với cánh trên và sáng một đèn màu lục ở vị trí tương ứng với cánh giữa (hình 51 b).
c) Cho phép tàu qua ghi theo hướng thẳng vào đường chính và chuẩn bị dừng:
1) Ban ngày: cánh trên màu đỏ nằm nghiêng xuống tạo với thân cột thành góc 45°, cánh giữa màu vàng nằm ngang tạo với thân cột thành góc 90°, cánh dưới màu đỏ nằm xuôi theo thân cột (hình 52a);
2) Ban đêm: sáng một đèn màu vàng ở vị trí tương ứng với cánh trên (hình 52b).
d) Cho phép tàu qua ghi theo hướng rẽ vào đường đón gửi và chuẩn bị dừng:
1) Ban ngày: cánh trên màu đỏ và cánh dưới màu đỏ nằm nghiêng xuống tạo với thân cột thành góc 45°, cánh giữa màu vàng nằm ngang tạo với thân cột thành góc 90° (hình 53a);
2) Ban đêm: sáng hai đèn màu vàng: một đèn màu vàng ở vị trí tương ứng với cánh trên, một đèn màu vàng ở vị trí tương ứng với cánh dưới (hình 53b).
3.2.2.2 Tín hiệu cánh ra ga biểu thị những tín hiệu sau:
a) Không cho phép tàu vượt quá tín hiệu:
1) Ban ngày: một cánh màu đỏ nằm ngang tạo với thân cột thành góc 90° (hình 54a);
2) Ban đêm: sáng một đèn màu đỏ ở vị trí tương ứng với cánh (hình 54b).
b) Cho phép tàu chạy vào khu gian:
1) Ban ngày: một cánh màu đỏ nằm nghiêng xuống tạo với thân cột thành góc 45° (hình 55a);
2) Ban đêm: sáng một đèn màu lục ở vị trí tương ứng với cánh (hình 55b).
3.2.2.3 Tín hiệu cánh lặp lại của tín hiệu cánh ra ga biểu thị những tín hiệu sau:
a) Khi cột tín hiệu ra ga ở trạng thái đóng:
1) Ban ngày: một cánh màu đỏ nằm dọc theo thân cột (hình 56a);
2) Ban đêm: không sáng đèn (hình 56b).
b) Khi cột tín hiệu ra ga ở trạng thái mở:
1) Ban ngày: một cánh màu đỏ nằm nghiêng xuống tạo với thân cột thành góc 45° (hình 57a);
2) Ban đêm: sáng một đèn màu lục ở vị trí tương ứng với cánh tín hiệu (hình 57b).
3.2.2.4 Tín hiệu cánh phòng vệ biểu thị những tín hiệu sau:
a) Không cho phép tàu vượt quá tín hiệu:
1) Ban ngày: một cánh màu đỏ nằm ngang tạo với thân cột thành góc 90° (hình 54a);
2) Ban đêm: sáng một đèn màu đỏ ở vị trí tương ứng với cánh tín hiệu (hình 54b);
b) Cho phép tàu chạy qua tín hiệu với tốc độ quy định:
1) Ban ngày: một cánh màu đỏ nằm nghiêng xuống tạo với thân cột thành góc 45° (hình 55a);
2) Ban đêm: sáng một đèn màu lục ở vị trí tương ứng với cánh tín hiệu (hình 55b).
3.2.2.5 Tín hiệu cánh báo trước biểu thị những tín hiệu sau:
a) Khi cột tín hiệu chính đang ở trạng thái đóng:
1) Ban ngày: một cánh màu vàng hình đuôi cá nằm ngang tạo với thân cột thành góc 90° (hình 58a);
2) Ban đêm: sáng một đèn màu vàng ở vị trí tương ứng với cánh tín hiệu (hình 58b);
b) Khi cột tín hiệu chính đang ở trạng thái mở:
1) Ban ngày: cánh màu vàng hình đuôi cá nằm nghiêng xuống tạo với thân cột thành góc 45° (hình 59a);
2) Ban đêm: sáng một đèn màu lục ở vị trí tương ứng với cánh tín hiệu (hình 59b);
3.3 Tín hiệu di động, pháo hiệu
3.3.1 Tín hiệu di động
3.3.1.1 Tín hiệu di động báo hiệu ngừng biểu thị như sau:
a) Ban ngày: biển màu đỏ hình chữ nhật (hình 60a). Có hai loại biển màu đỏ hình chữ nhật: biển một mặt màu đỏ, một mặt màu trắng và biển hai mặt màu đỏ;
Trường hợp không có biển màu đỏ, có thể dùng cờ đỏ mở;
b) Ban đêm: ánh đèn màu đỏ của đèn tay cắm trên trụ như hình 60b.
3.3.1.2 Tín hiệu di động báo hiệu giảm tốc độ và hết giảm tốc độ biểu thị như sau:
a) Giảm tốc độ:
1) Ban ngày: dùng biển hình vuông màu vàng như hình 61a. Khi không có biển màu vàng có thể dùng cờ vàng mở;
2) Ban đêm: sáng một đèn màu vàng của đèn cắm trên trụ như hình 61b;
b) Hết giảm tốc độ:
1) Ban ngày: dùng biển hình vuông màu lục như hình 62a;
2) Ban đêm: sáng một đèn màu lục của đèn cắm trên trụ như hình 62b.
3.3.2 Pháo hiệu và đuốc
3.3.2.1 Pháo hiệu của đường sắt là tín hiệu dùng để biểu thị tín hiệu ngừng khẩn cấp.
Khi nghe tiếng pháo nổ, lái tàu phải lập tức cho tàu dừng.
Pháo hiệu được bố trí trên đường khổ 1000 mm và khổ đường 1435 mm theo hình 63.
Trên các đường lồng phải bảo đảm đặt đầy đủ pháo trên các thanh ray theo hình 64 và hình 65.
Cấm đặt pháo ở những vị trí sau đây:
a) Trong hầm, trong cầu (trường hợp đặc biệt cần phải đặt pháo trong cầu, trong hầm thì giao cho doanh nghiệp kinh doanh kết cấu hạ tầng đường sắt quy định);
b) Trên ghi và vị trí mối nối ray;
c) Mối nối, mối hàn dây dẫn điện của mạch điện ray, nơi đặt thiết bị đếm trục.
d) Đường ngang;
đ) Chỗ ray bị ngập nước.
3.3.2.2 Đuốc là loại tín hiệu tạm thời dùng để báo hiệu ngừng khẩn cấp như hình 66.
Khi thấy ánh lửa đuốc, lái tàu phải lập tức cho tàu dừng.
3.3.2.3 Khi tàu đã dừng theo báo hiệu của tiếng pháo nổ hoặc ánh lửa đuốc, lái tàu phải xác nhận tình hình đường phía trước.
3.4 Biện pháp phòng vệ
Mọi chướng ngại chạy tàu, dồn tàu trong khu gian hoặc trong ga, bất cứ có tàu chạy hay không đều phải được phòng vệ bằng tín hiệu ngừng.
Việc phòng vệ phải được thực hiện ngay sau khi phát hiện chướng ngại hoặc trước khi bắt đầu thi công.
Cấm rút bỏ tín hiệu phòng vệ trước khi kết thúc thi công hoặc chưa loại bỏ chướng ngại, chưa kiểm tra xong trạng thái đường và giới hạn tiếp giáp kiến trúc của đường đủ điều kiện bảo đảm an toàn chạy tàu.
3.4.1 Phòng vệ nơi thi công hoặc chướng ngại trong khu gian
3.4.1.1 Khi cần bắt tàu dừng trong khu gian vì lý do thi công hoặc có chướng ngại, phải tiến hành phòng vệ về hai phía theo quy định chung như sau: đặt tín hiệu di động báo hiệu ngừng cách địa điểm thi công hoặc chướng ngại 50 m về hai phía: cách tín hiệu này 800 m phải đặt pháo (Mục 3.3.2.1 Quy chuẩn này) và cử nhân viên cầm tín hiệu tay báo ngừng trông coi.
Các trường hợp phòng vệ cụ thể như sau:
a) Phòng vệ nơi thi công hoặc chướng ngại trong khu gian đường đơn như hình 67;
b) Phòng vệ nơi thi công hoặc chướng ngại trong khu gian ở đó có một đường thi công không gây chướng ngại cho đường bên cạnh (hình 68);
c) Phòng vệ nơi thi công hoặc chướng ngại trong khu gian ở đó có một đường thi công gây chướng ngại cho đường bên cạnh như hình 69;
d) Phòng vệ nơi thi công hoặc chướng ngại trong khu gian nhưng địa điểm phòng vệ cách cột tín hiệu vào ga trong khoảng từ 60 m đến 890 m như hình 70;
đ) Phòng vệ nơi thi công hoặc chướng ngại trong khu gian nhưng địa điểm phòng vệ cách cột tín hiệu vào ga dưới 60 m như hình 71.
Trong tất cả các trường hợp phòng vệ, trước khi rút bỏ tín hiệu phòng vệ, người chỉ huy thi công hoặc người phụ trách giải quyết chướng ngại phải tự mình kiểm tra và xác nhận trạng thái an toàn của địa điểm vừa được phòng vệ. Khi xét thấy cần thiết giảm tốc độ tàu chạy qua địa điểm này, phải đặt tín hiệu giảm tốc độ màu vàng cách địa điểm vừa mới phòng vệ 800 m.
3.4.1.2 Khi xẩy ra chướng ngại bất ngờ trong khu gian mà ở đó không có sẵn tín hiệu di động để phòng vệ theo quy định ở Mục 3.4.1.1 Quy chuẩn này thì phải lập tức dùng tín hiệu tay, pháo và đuốc để phòng vệ chướng ngại.
Việc phòng vệ tiến hành như sau: tại nơi có chướng ngại đặt tín hiệu ngừng (cờ đỏ mở, ánh đèn màu đỏ hoặc đuốc), đặt pháo cách nơi có chướng ngại 800 m về hai phía như hình 72.
a) Trong những trường hợp sau đây, trước khi áp dụng biện pháp phòng vệ nói trên, phải lập tức đốt đuốc hoặc dùng các biện pháp khác ngay tại nơi có chướng ngại:
1) Bất kỳ ngày hay đêm, nếu điều kiện thời tiết xấu (sương mù, mưa bão) không bảo đảm tầm nhìn rõ tín hiệu;
2) Ban đêm, mặc dù thời tiết tốt;
3) Trong hầm, trong cầu, đường đào, đường cong tầm nhìn bị che khuất thì trong bất kỳ thời tiết nào và bất luận là ban ngày hay ban đêm.
b) Khi không đủ điều kiện để phòng vệ hai phía cùng một lúc thì việc phòng vệ địa điểm có chướng ngại theo thứ tự ưu tiên sau đây:
1) Phía có tàu đang chạy đến chướng ngại (biết trước hoặc đã nghe thấy tàu đang đến);
2) Phía có dốc xuống, đường cong, đường đào.
c) Sau khi đã đặt pháo phòng vệ ở hai phía, nếu có đủ người, thì mỗi người đứng một phía cách quả pháo trong cùng (bên có chướng ngại) 20 m tay cầm cờ (hoặc đèn) biểu thị tín hiệu ngừng. Nếu chỉ có một người thì người này sau khi đã đi phòng vệ hai phía, phải đến phía có nhiều bất lợi cho việc hãm tàu của Lái tàu hoặc phía có tàu đang đến để biểu thị tín hiệu ngừng.
3.4.1.3 Ở những quãng đường xung yếu, tàu chỉ có thể chạy qua với tốc độ không quá 5 km/h, nhất thiết phải có nhân viên dẫn đường đứng tại địa điểm đặt tín hiệu di động màu đỏ biểu thị tín hiệu tay cho tàu qua như hình 67.
Tại những nơi này phải bố trí phòng vệ theo quy định tại Mục 3.4.1.1 Quy chuẩn này và không cần đặt pháo nếu đã cấp cảnh báo cho tàu.
3.4.1.4 Ở những quãng đường cần giảm tốc độ chạy tàu trong một thời gian dài phải bố trí phòng vệ như sau:
a) Giảm tốc độ cả hai hướng: như hình 73;
b) Giảm tốc độ một hướng: như hình 74;
c) Địa điểm cần giảm tốc độ cách cột tín hiệu vào ga dưới 800 m thì bố trí như hình 75.
3.4.2 Phòng vệ tàu bị dừng trong khu gian đóng đường không tự động
3.4.2.1 Sau khi tàu bị dừng trong khu gian quá 10 phút phải tiến hành phòng vệ như sau:
a) Khi đã biết phía tàu cứu viện đến phải tiến hành phòng vệ ở phía đó bằng pháo hiệu và tín hiệu tay như hình 76;
b) Khi chưa biết phía tàu cứu viện đến phải tiến hành phòng vệ ở hai phía như hình 77;
c) Những tàu sau đây bị dừng trong khu gian phải tiến hành phòng vệ ngay phía sau tàu bị ngừng như hình 78;
1) Tàu đã chạy sau khi thông tin bị gián đoạn mà phía sau nó có tàu chạy cùng chiều;
2) Tàu bị đuối sức.
d) Khi tàu bị dừng trong khu gian đã được kéo một phần về ga, phần còn lại trong khu gian phải phòng vệ hai phía: phía có đầu máy sẽ ra kéo phần còn lại phòng vệ 300 m, phía kia phòng vệ theo quy định 800 m như hình 79;
đ) Nếu tàu dừng trước cột tín hiệu mà khoảng cách từ đầu máy đến cột tín hiệu không đủ để đặt pháo hiệu phòng vệ phía trước (khi cần thiết) thì chỉ đặt tín hiệu phòng vệ sau phía sau, cách toa cuối tàu 800 m.
3.4.3 Phòng vệ tàu bị dừng trong khu gian đóng đường tự động
3.4.3.1 Việc phòng vệ tàu bị dừng trong khu gian đóng đường tự động tiến hành theo những trường hợp sau đây:
a) Tàu bị dừng trong khu gian vì tín hiệu thông qua biểu thị trạng thái ngừng, biểu thị không chính xác hoặc đèn tắt:
1) Ban ngày: trưởng tàu rời khỏi toa trưởng tàu, đứng phía sau toa cuối tàu báo ngừng bằng tín hiệu tay (cờ đỏ mở) về phía sau tàu;
2) Ban đêm (kể cả ban ngày thời tiết xấu không bảo đảm tầm nhìn rõ tín hiệu): trưởng tàu phải kiểm tra và tăng cường độ chiếu sáng của các đèn đuôi tàu, sau đó đứng phía sau toa cuối báo ngừng bằng tín hiệu tay (ánh đèn màu đỏ của đèn tay) về phía sau tàu.
Khi đứng phòng vệ phía sau, trưởng tàu phải tập trung quan sát phía sau, khi thấy có tàu đến gần phía mình, phải lập tức báo ngừng bằng tín hiệu tay đồng thời phát tín hiệu ngừng bằng âm thanh của còi (Mục 3.8.1.2 Quy chuẩn này) để bắt tàu sắp đến ngừng lại.
b) Tàu dừng trong khu gian vì những lý do đe dọa an toàn chạy tàu (do chính trưởng tàu phát hiện, do lái tàu hoặc một người nào khác thông báo) hoặc ngừng quá 3 phút mà trưởng tàu chưa biết được lý do: trưởng tàu phải tổ chức ngay việc phòng vệ theo từng yêu cầu cụ thể tương ứng với từng trường hợp cụ thể đã quy định khoản 1, 2, 3, 4 và 5 tại Mục 3.4.2.1 Quy chuẩn này; riêng vị trí đặt quả pháo đầu tiên cho phép cách toa cuối tàu ít nhất 300 m.
3.4.4 Thu hồi tín hiệu phòng vệ
3.4.4.1 Tín hiệu thu hồi tín hiệu phòng vệ là ba hồi còi dài của đầu máy. Khi nghe tín hiệu này, nhân viên phòng vệ lập tức thu hồi tín hiệu phòng vệ và trở về tàu.
Trên các khu gian đóng đường không tự động, nếu phía sau tàu bị dừng có tàu chạy với thông tri mẫu B sau khi thông tin bị gián đoạn thì trước khi thu hồi pháo phòng vệ, nhân viên phòng vệ phải đốt đuốc để lại tại nơi đã thu hồi pháo. Nếu không có đuốc thì không thu hồi pháo và khi trở về tàu, nhân viên phòng vệ phải vừa đi vừa biểu thị tín hiệu ngừng về phía sau.
3.4.5 Phòng vệ trong ga
3.4.5.1 Khi tiến hành thi công hoặc có chướng ngại xẩy ra trên đường hoặc ghi trong ga mà không thể cho các phương tiện chạy trên đường sắt chạy qua đó thì phải tiến hành phòng vệ như sau:
a) Địa điểm thi công hoặc chướng ngại xẩy ra trên một đường trong ga: các ghi gần địa điểm thi công hoặc chướng ngại nhất đều phải cùm hoặc khóa ở vị trí không cho các phương tiện chạy trên đường sắt chạy thông vào đường ấy như hình 80;
Nếu không thể cùm hoặc khóa được các ghi này phải đặt tín hiệu ngừng di động cách địa điểm thi công hoặc chướng ngại 50 m như hình 81. Nếu từ mũi lưỡi ghi đến địa điểm thi công (hoặc chướng ngại) dưới 50 m thì đặt tín hiệu ngừng ở tim đường, ngang mũi lưỡi ghi như hình 82;
b) Địa điểm thi công hoặc chướng ngại xẩy ra ở một ghi trong ga: cách mũi lưỡi ghi đó 50 m cắm tín hiệu di động biểu thị tín hiệu ngừng; trên các đường trực tiếp liên quan đến ghi đó, cắm tín hiệu ngừng di động ở vị trí ngang với mốc tránh va chạm như hình 83;
c) Địa điểm thi công hoặc chướng ngại xẩy ra ở ghi vào ga: cột tín hiệu vào ga biểu thị tín hiệu ngừng; trên các đường trực tiếp liên quan đến ghi này phải cắm tín hiệu ngừng di động ở vị trí tương ứng với mốc tránh va chạm như hình 84;
d) Địa điểm thi công hoặc chướng ngại xẩy ra trên đoạn đường giữa cột tín hiệu vào ga và ghi vào ga: cột tín hiệu vào ga biểu thị tín hiệu ngừng, cắm tín hiệu di động báo hiệu ngừng ở tim đường ngang mũi lưỡi ghi vào ga như hình 85.
3.4.5.2 Khi cần giảm tốc độ (so với tốc độ quy định) trên đường trong ga hoặc qua ghi, phải đặt tín hiệu báo hiệu di động như sau:
a) Khi cần giảm tốc độ trên đường chính trong ga hoặc qua ghi trên đường chính: đặt tín hiệu di động báo hiệu giảm tốc độ ở gần chân cột tín hiệu vào ga như hình 86;
b) Khi cần giảm tốc độ trên đường đón gửi tàu hoặc đường khác trong ga: đặt tín hiệu giảm tốc độ di động về phía bên trái theo hướng tàu vào đường cần giảm tốc độ, biển giảm tốc độ đặt ở vị trí ngang với mốc tránh va chạm như hình 87;
c) Khi cần giảm tốc độ qua ghi trên đường đón gửi tàu hoặc đường khác trong ga: đặt tín hiệu di động báo hiệu giảm tốc độ về phía bên trái theo hướng tàu vào ghi cần giảm tốc độ, biển giảm tốc độ đặt ở vị trí ngang mũi lưỡi ghi và mốc tránh va chạm như hình 88.
3.4.5.3 Khi phong tỏa khu gian phải đặt tín hiệu di động báo hiệu ngừng ở giữa lòng đường chính thông ra khu gian phong tỏa (theo hướng từ trong ga đi ra khu gian) ngang với mũi lưỡi ghi ngoài cùng. Nếu cần dồn dịch thì có thể chuyển vị trí đặt tín hiệu di động báo hiệu ngừng đến đặt ngang với cột tín hiệu vào ga. Tín hiệu di động báo hiệu ngừng phải quay mặt đỏ vào phía trong ga và có gác ghi trông coi như hình 89.
3.4.5.4 Khi tàu đã ngừng lại trên đường trong ga mà toa cuối tàu chưa đứng trong mốc tránh va chạm thuộc đường đó thì trưởng tàu phải báo ngừng bằng tín hiệu tay để phòng vệ đuôi tàu của mình. Trong trường hợp này, gác ghi ở khu vực có tàu đứng ngoài mốc tránh va chạm cũng phải làm tín hiệu báo ngừng và phải phòng vệ như hình 90.
3.4.5.5 Khi trên đường trong ga có toa xe đang sửa chữa hoặc toa xe có chất nổ, chất độc, khí nén, khí hóa lỏng đứng đợi tác nghiệp phải phòng vệ bằng tín hiệu di động báo hiệu ngừng cắm trên bộ trật bánh, bộ trật bánh này đặt trên ray bên trái theo hướng đi vào toa xe (hoặc nhóm toa xe) và cách đầu toa xe đó 50 m. Việc phòng vệ này tiến hành về hai phía, trên đường cụt chỉ phòng vệ phía có ghi.
Khi những toa xe nói trên đứng cách mốc tránh va chạm từ 20 m đến 50 m thì tín hiệu di động báo hiệu ngừng ở phía có mốc tránh va chạm được đặt ở vị trí ngang với mốc tránh va chạm như hình 91.
Khi những toa xe nói trên đứng cách mốc tránh va chạm dưới 20 m (hoặc trên 20 m nhưng ở ga không có bộ trật bánh hoặc có mà không đặt được) thì ghi thông vào đường có toa xe đứng phải cùm hoặc khóa ở vị trí không thông vào nơi nguy hiểm như hình 92.
3.4.5.6 Khi có đoàn tàu đứng ở ga lập tàu đợi giải thể hoặc xuất phát hoặc có toa xe đang được kiểm tra kỹ thuật, tác nghiệp xếp dỡ phải phòng vệ bằng tín hiệu ngừng (ban ngày: cờ đỏ mở; ban đêm: ánh đèn màu đỏ) đặt ở bên trái xà ngang của toa xe đầu và toa xe cuối (theo hướng đi tới toa đó) như hình 93.
Khi cần thiết phải chui vào gầm toa để kiểm tra hoặc trong đoàn tàu có toa xe chứa hàng nguy hiểm thì phải áp dụng biện pháp phòng vệ theo quy định tại Mục 3.4.5.5 Quy chuẩn này.
3.4.6 Biện pháp xử lý khi tín hiệu bị hỏng
3.4.6.1 Khi tín hiệu vào ga, vào bãi, ra bãi, ra ga, phòng vệ, tín hiệu dồn, tín hiệu dồn phòng vệ, tín hiệu thông qua và tín hiệu ở trạm đóng đường bị hỏng phải để ở trạng thái ngừng. Nếu ban ngày có thời tiết xấu (sương mù, mưa bão) không bảo đảm tầm nhìn rõ tín hiệu thì trên các cột tín hiệu cánh phải thắp đèn báo hiệu ngừng.
Trong trường hợp này, việc đón và gửi tàu tiến hành theo những biện pháp sau đây:
a) Đón tàu vào ga: dùng tín hiệu dẫn đường trên tín hiệu vào ga hoặc cử nhân viên làm tín hiệu dẫn đường; nếu chưa thể đón tàu vào ga vì lý do an toàn thì phải phòng vệ theo quy định tại Mục 3.4.6.6 Quy chuẩn này;
b) Gửi tàu: trực ban ga phải báo cho lái tàu, trưởng tàu biết tín hiệu bị hỏng và cấp bằng chứng cho phép tàu chạy qua tín hiệu ra bãi, ra ga có biểu thị ngừng;
c) Cho tàu thông qua ga hoặc trạm đóng đường:
1) Nếu tàu đã được cảnh báo trước, ngoài những thủ tục thông qua, trực ban còn phải giao bằng chứng cho phép tàu chạy qua tín hiệu ra bãi, ra ga có biểu thị ngừng;
2) Nếu tàu chưa được cảnh báo trước, phải bắt tàu dừng lại và áp dụng biện pháp quy định tại khoản b) Mục này.
d) Khi tín hiệu phòng vệ bị hỏng, tàu dừng trước tín hiệu, nhân viên dẫn đường trực tiếp báo cho lái tàu biết lý do giữ tàu ngoài tín hiệu, sau đó làm tín hiệu tay dẫn đường cho tàu chạy qua tín hiệu ở trạng thái báo ngừng.
3.4.6.2 Khi tín hiệu vào ga, vào bãi, ra bãi, ra ga, phòng vệ, tín hiệu dồn, tín hiệu dồn - phòng vệ, tín hiệu thông qua và tín hiệu trạm đóng đường bị hỏng mà không thể biểu thị ngừng được thì xử lý như sau:
a) Thực hiện theo quy định tại Mục 3.1.4 Quy chuẩn này;
b) Đặt tín hiệu di động báo hiệu ngừng (ban ngày: biển màu đỏ; ban đêm: đèn màu đỏ) ở ngang cột tín hiệu bị hỏng và có nhân viên trông coi. Việc đón tàu vào ga hoặc thông qua ga áp dụng các biện pháp quy định tại khoản a, c và d Mục 3.4.6.1 Quy chuẩn này.
Trong hai trường hợp trên, nếu không thể đón tàu vào ga hoặc cho tàu thông qua ga thì ga có tín hiệu bị hỏng phải yêu cầu ga bên cấp cảnh báo cho tàu dừng trước tín hiệu di động báo hiệu ngừng (cột hiệu). Nếu không kịp cấp cảnh báo thì phải báo cho nhân viên trông coi tín hiệu đi đặt pháo phòng vệ cách tín hiệu 800 m. Nếu nhân viên phòng vệ chưa đến đúng nơi quy định đặt pháo phòng vệ mà đã phát hiện tàu đang đến thì nhân viên này phải chạy về phía tàu đang đến và liên tục báo ngừng bằng tín hiệu tay và còi.
3.4.6.3 Khi cột tín hiệu cảnh báo trước bị hỏng, phải cố định cánh ở vị trí nằm ngang và phải tách rời quan hệ liên động với cột tín hiệu chính.
3.4.6.4 Khi đèn chỉ đường gửi tàu hoặc chỉ hướng tàu chạy bị hỏng, trực ban chạy tàu ga cấp cảnh báo cho lái tàu và trưởng tàu biết lý do, sau đó cho tàu chạy theo biểu thị của tín hiệu ra ga.
3.4.6.5 Khi cột tín hiệu dồn toa bị hỏng phải biểu thị ngừng hoặc tắt đèn. Trường hợp này, việc dồn toa tiến hành theo lệnh báo miệng của người chỉ huy dồn cho lái tàu sau khi người này đã được trực ban chạy tàu ga hoặc trực ban bãi cho phép.
3.4.6.6 Bất luận ban ngày hay ban đêm, nếu vì thời tiết xấu (sương mù, mưa bão) không bảo đảm tầm nhìn rõ tín hiệu của các tín hiệu vào ga, thông qua, phòng vệ mà những tín hiệu này bị hỏng hoặc không có tín hiệu báo trước (hoặc tín hiệu báo trước không sử dụng); nếu không thể đón tàu vào ga được hoặc không thể cho phép tàu chạy qua địa điểm phòng vệ vì lý do an toàn thì phải đặt pháo phòng vệ theo quy định tại Mục 3.3.2.1 Quy chuẩn này.
3.5 Biển hiệu, đèn hiệu và mốc hiệu
3.5.1 Đối với ghi không điều khiển tập trung bộ biểu thị ghi báo hiệu như sau:
a) Ghi để theo hướng thẳng:
1) Ban ngày: biển ghi ở vị trí song song với đường sắt (hình 94a);
2) Ban đêm: sáng đèn màu trắng hoặc màu tím (hình 94b).
b) Ghi để theo hướng rẽ:
1) Ban ngày: biển ghi ở vị trí vuông góc với đường sắt (hình 95a);
2) Ban đêm: sáng đèn màu vàng (hình 95b).
3.5.2 Bộ biểu thị trật bánh báo hiệu như sau:
a) Khi đường ở trạng thái trật bánh:
1) Ban ngày: biển chữ nhật, màu đỏ, viền trắng ở vị trí vuông góc với đường sắt (hình 96a);
2) Ban đêm: sáng đèn màu đỏ (hình 96b).
b) Khi đường thanh thoát:
1) Ban ngày: biển tròn màu lục, viền trắng ở vị trí vuông góc với đường sắt (hình 97a);
2) Ban đêm: sáng đèn màu sữa (hình 97b).
3.5.3 Bộ biểu thị bục chắn đặt ở cuối đường cụt (trừ đường an toàn và đường lánh nạn) báo hiệu như sau:
a) Ban ngày: biển chữ nhật màu đỏ có lỗ trống ở giữa, đặt vuông góc với đường sắt (hình 98a);
b) Ban đêm: sáng đèn màu đỏ (hình 98b).
3.5.4 Báo hiệu khi cổ hạc quay ngang vào đường sắt:
a) Ban ngày: đoạn giữa của cổ hạc phần quay ngang với đường sắt sơn màu đỏ dài 600 mm (hình 99a);
b) Ban đêm: sáng đèn màu đỏ (hình 99b).
3.5.5 Đèn chỉ đường gửi tàu đặt bên trái (theo hướng tàu ra ga) của mỗi đường gửi tàu khi các đường này có chung một cột tín hiệu ra ga. Đèn này biểu thị một ánh đèn màu sữa cho phép tàu đứng ở đường bên phải cột đèn chỉ đường (theo hướng tàu ra ga) được ra ga (hình 100).
3.5.6 Đèn chỉ hướng tàu chạy đặt trên thân cột tín hiệu ra bãi, ra ga có gửi tàu đi hai hoặc ba hướng. Đèn chỉ hướng tàu chạy chỉ có hiệu lực khi cột tín hiệu đèn màu ra bãi, ra ga mở. Đèn chỉ hướng báo hiệu như sau:
a) Sáng một đèn màu trắng bên trái: tàu ra ga, ra bãi theo hướng bên trái (hình 101a);
b) Sáng một đèn màu trắng ở giữa: tàu ra ga, ra bãi theo hướng thẳng (hình 101 b);
c) Sáng một đèn màu trắng bên phải: tàu ra ga, ra bãi theo hướng bên phải (hình 101 c).
3.5.7 Mốc tránh va chạm quy định giới hạn để các phương tiện chạy trên đường sắt khi ngừng không được vượt qua nó về phía ghi (giữa hai đường có ghi) hoặc về phía trung tâm của hai đường giao nhau không có ghi (hình 102).
3.5.8 Mốc dẫn đường quy định vị trí nhân viên dẫn đường đứng để làm tín hiệu dẫn tàu vào ga. Mốc dẫn đường chỉ đặt trong trường hợp khi tàu đến cách cột tín hiệu vào ga 200 m mà không nhìn thấy tín hiệu tay của nhân viên dẫn đường đứng ngang vị trí cột tín hiệu vào ga (hình 103).
3.5.9 Mốc đặt pháo quy định vị trí tương ứng đặt quả pháo thứ nhất trên ray. Mốc đặt pháo chỉ đặt ở trước cột tín hiệu vào ga nơi không có tín hiệu báo trước. Mốc đặt pháo đặt ở bên trái đường sắt (theo hướng tàu vào ga) ở phía ngoài cột tín hiệu vào ga 800 m (hình 104).
3.5.10 Biển báo trạm báo cho lái tàu biết sắp đến trạm (trạm đóng đường, trạm bổ trợ, trạm hành khách) như hình 105.
Biển báo trạm đặt ở bên trái đường theo hướng tàu chạy và cách đường tim của trạm 1000 m.
3.5.11 Biển kéo còi như hình 106 báo cho lái tàu phải kéo còi.
Biển kéo còi cố định đặt bên trái theo hướng tàu chạy vào cầu lớn, cầu chung, đường ngang, đường sắt giao nhau, hầm hoặc những địa điểm cố định xung yếu khác.
Biển kéo còi di động đặt bên trái theo hướng tàu chạy vào những nơi xung yếu tạm thời (người làm việc trên đường sắt hoặc gần đường sắt, những hoạt động đông người bên cạnh đường sắt).
Biển kéo còi đặt cách nơi bắt đầu địa điểm xung yếu từ 500 m đến 800 m.
3.5.12 Biển báo nguy hiểm như hình 107a báo cho lái tàu biết bắt đầu vào nơi nguy hiểm.
Biển này dùng phòng vệ ở những nơi theo quy định tại Mục 3.4.1.4 Quy chuẩn này.
3.5.13 Biển báo hết nguy hiểm như hình 107b báo cho lái tàu biết sắp ra khỏi địa điểm nguy hiểm.
Biển này dùng phòng vệ ở những nơi theo quy định tại Mục 3.4.1.4 Quy chuẩn này.
3.5.14 Trên mặt biển báo nguy hiểm và biển báo giảm tốc độ phải có chữ số báo tốc độ cần giảm. Chữ số theo kiểu và kích thước như quy định chữ số trong Quy chuẩn này. Chữ số viết bằng sơn đen. Ban đêm phải treo đèn có ánh sáng màu trắng.
3.5.15 Biển đỗ lại báo cho lái tàu tàu khách biết vị trí đỗ của đầu máy chính kéo đoàn tàu vào ngừng lại trong ga (trạm).
Biển đỗ lại đặt ở vị trí thích hợp trên ke hành khách đủ bảo đảm cho đoàn tàu khách có chiều dài trung bình ngừng trong phạm vi chiều dài có ích của đường trong ga và thuận lợi cho hành khách lên xuống như hình 108.
3.5.16 Biển báo đẩy như hình 109a và báo thôi đẩy như hình 109b báo cho lái tàu đầu máy phụ biết địa điểm bắt đầu đẩy tàu và địa điểm thôi đẩy tàu.
Biển báo đẩy, thôi đẩy đặt ở những nơi do doanh nghiệp kinh doanh kết cấu hạ tầng đường sắt quy định.
3.6 Tín hiệu tay
3.6.1 Tín hiệu tay báo hiệu ngừng như sau:
a) Khi có cờ đỏ, đèn màu đỏ:
1) Ban ngày: cờ đỏ mở (hình 112a);
2) Ban đêm: ánh đèn màu đỏ (hình 112b).
b) Khi không có cờ đỏ, đèn màu đỏ:
1) Ban ngày: tay không hoặc tay cầm bất cứ dụng cụ gì quay thành hình vòng tròn (hình 113a);
2) Ban đêm: ánh sáng của bất cứ dụng cụ gì quay thành hình vòng tròn (hình 113b).
Tín hiệu tay báo ngừng liên tục cho đến khi tàu dừng mới thôi.
3.6.2 Tín hiệu tay báo giảm tốc độ báo hiệu như sau:
a) Khi có cờ vàng, đèn màu vàng:
1) Ban ngày: cờ vàng mở (hình 114a);
2) Ban đêm: ánh đèn màu vàng (hình 114b).
b) Khi không có cờ vàng, đèn màu vàng:
1) Ban ngày: cánh tay giơ ngang, đưa lên xuống nhiều lần (hình 115a);
2) Ban đêm: ánh đèn màu trắng đưa lên xuống nhiều lần (hình 115b).
Tín hiệu tay báo giảm tốc độ báo liên tục cho đến khi nhận thấy tàu đã giảm tốc độ mới thôi.
3.6.3 Tín hiệu tay báo đón gửi tàu của trực ban chạy tàu ga gồm có:
a) Tín hiệu tay gửi tàu báo hiệu như sau:
1) Ban ngày: cờ vàng cuộn giơ cao thẳng đứng ở tay bên phía có tàu cần gửi (hình 116a);
2) Ban đêm: ánh đèn màu lục của đèn tay giơ cao thẳng đứng ở tay bên phía có tàu cần gửi (hình 116b);
b) Tín hiệu tay thông qua báo hiệu như sau:
1) Ban ngày: cờ vàng cuộn thẳng đứng với cánh tay đưa ngang hướng về phía có tàu sắp thông qua (hình 117a);
2) Ban đêm: ánh đèn màu lục của đèn tay hướng về phía có tàu sắp thông qua (hình 117b);
c) Tín hiệu "bắt" tàu thông qua ở những ga không có tín hiệu ra ga, khi cần bắt giữ tàu quy định thông qua phải ngừng lại, trực ban chạy tàu ga báo hiệu ngừng theo quy định tại khoản a) Mục 3.6.1 Quy chuẩn này. Tín hiệu ngừng phải báo liên tục kèm theo còi miệng cho đến khi tàu dừng hẳn mới thôi.
d) Tín hiệu tay đón tàu vào ga có dừng quy định như sau:
1) Ban ngày: tư thế trực ban chạy tàu ga đứng nghiêm, quan sát theo dõi tàu. Cờ đỏ, cờ vàng cuộn (hoặc túm) buông xuôi. Nếu cần yêu cầu lái tàu tiến sát mốc tránh va chạm thì sử dụng tín hiệu dồn;
2) Ban đêm: sử dụng ánh đèn màu trắng buông xuôi hướng về phía đầu tàu. Nếu cần yêu cầu lái tàu tiến sát mốc tránh va chạm thì sử dụng tín hiệu dồn.
3.6.4 Tín hiệu tay báo đón tiễn tàu của gác ghi gồm có:
a) Đón tàu thông qua trên đường chính báo hiệu như sau:
1) Ban ngày: cờ vàng cuộn (hoặc túm) thẳng đứng với cánh tay đưa ngang hướng về phía tàu sắp thông qua (hình 118a);
2) Ban đêm: ánh đèn màu trắng của đèn tay hướng về phía có tàu sắp thông qua (hình 118b);
b) Đón tàu vào ga có ngừng lại ga báo hiệu như sau:
1) Ban ngày: cờ vàng mở hướng về phía có tàu đang tiến vào ga (hình 119a);
2) Ban đêm: ánh đèn màu vàng của đèn tay hướng về phía có tàu đang tiến vào ga (hình 119b);
c) Tiễn tàu ra ga báo hiệu như sau:
1) Ban ngày: Cờ vàng cuộn (hoặc túm) thẳng đứng với cánh tay đưa ngang hướng về phía tàu đang ra ga (hình 118a);
2) Ban đêm: ánh đèn màu trắng của đèn tay hướng về phía có tàu đang ra ga (hình 118b).
3.6.5 Tín hiệu tay báo cho tàu chạy báo hiệu như sau:
a) Ban ngày: cờ vàng mở, phất qua lại trên đầu hướng về phía có tàu cần xuất phát (hình 120a);
b) Ban đêm: ánh đèn màu lục của đèn tay đưa qua lại trên đầu hướng về phía có tàu cần xuất phát (hình 120b).
Sau khi tàu đã dừng, trưởng tàu hoặc phó trưởng tàu phụ trách an toàn là người có trách nhiệm phát tín hiệu cho tàu chạy. Lái tàu chỉ được cho tàu chạy sau khi đã nhận được tín hiệu cho tàu chạy của trưởng tàu (hoặc phó trưởng tàu phụ trách an toàn) và trực ban chạy tàu ga mặc dù đã có đủ bằng chứng cho phép tàu chạy vào khu gian.
Trong những trường hợp sau đây, lái tàu được phép cho tàu chạy không cần phải chờ tín hiệu cho tàu chạy của trưởng tàu (hoặc phó trưởng tàu phụ trách an toàn) nhưng phải có đủ điều kiện bảo đảm an toàn chạy tàu theo quy định:
- Tàu dừng ngoài tín hiệu vào ga dưới 10 phút vì tín hiệu này báo hiệu ngừng;
- Khi tàu dừng trước tín hiệu đèn màu thông qua (trong khu gian đóng đường tự động) dưới 3 phút vì tín hiệu này báo hiệu ngừng;
- Khi đoàn tàu không bố trí trưởng tàu.
3.6.6 Tín hiệu tay báo dẫn đường báo hiệu như sau:
a) Cho phép tàu chạy vào ga khi tín hiệu vào ga báo hiệu ngừng.
1) Ban ngày: cờ vàng cuộn đưa qua lại trên đầu (hình 121a);
2) Ban đêm: ánh đèn màu trắng của đèn đưa qua lại trên đầu (hình 121b).
Tín hiệu này báo nhiều lần cho đến khi đầu máy chính qua khỏi vị trí nhân viên dẫn đường đang đứng làm tín hiệu mới thôi.
b) Nếu không cho phép tàu chạy vào ga, nhân viên dẫn đường báo ngừng bằng tín hiệu tay (khoản a) Mục 3.6.1 Quy chuẩn này, hình 112a và hình 112b).
3.6.7 Tín hiệu tay báo dồn gồm có:
3.6.7.1 Tín hiệu cho phép đầu máy dồn tiến về phía trước (tiến xa vị trí người biểu thị tín hiệu dồn đang đứng) báo hiệu như sau:
a) Ban ngày: cờ vàng mở phất qua lại trên đầu (hình 122a);
b) Ban đêm: ánh đèn màu vàng của đèn tay đưa qua lại trên đầu (hình 122b). Đồng thời với tín hiệu tay, người biểu thị tín hiệu dồn còn thổi một tiếng còi dài.
3.6.7.2 Tín hiệu cho phép đầu máy dồn chạy về phía sau (tiến lại gần vị trí người báo hiệu dồn đang đứng) báo hiệu như sau:
a) Ban ngày: cờ vàng mở phất qua lại ngang đầu gối (hình 123a);
b) Ban đêm: ánh đèn màu vàng của đèn tay đưa qua ngang đầu gối (hình 123b). Đồng thời với tín hiệu tay, người biểu thị tín hiệu dồn còn thổi hai tiếng còi dài.
3.6.7.3 Tín hiệu báo khoảng cách nối toa xe (tín hiệu 3 xe) gồm có:
a) Báo khoảng cách "3 xe" khi đoàn tàu dồn (hoặc máy dồn) tiến gần đến toa xe cần móc nối trong khoảng 3 toa xe, nhân viên tổ dồn báo hiệu như sau:
1) Ban ngày: nhân viên móc nối một tay giơ cao và hô lớn "3 xe", người chỉ huy dồn một tay cầm cờ đỏ túm (hoặc tay không) giơ cao, tay kia cầm cờ vàng mở phát mạnh từ trên xuống một lần đồng thời thổi một tiếng còi dài và tiếp tục làm tín hiệu cho phép đoàn tàu dồn chạy về phía sau.
2) Ban đêm: nhân viên móc nối giơ cao ánh đèn màu trắng và hô lớn "3 xe" người chỉ huy dồn giơ cao ánh đèn màu vàng (hoặc màu trắng) một lần đồng thời thổi một tiếng còi dài và tiếp tục làm tín hiệu cho phép đoàn tàu dồn chạy về phía sau.
Lái tàu của đầu máy dồn, sau khi nhận được tín hiệu "3 xe" trả lời bằng một tiếng còi ngắn và giảm tốc độ xuống 10 km/h.
b) Báo khoảng cách "2 xe": Khi đoàn tàu dồn (hoặc máy dồn) tiến gần đến toa xe cần móc nối trong khoảng hai toa xe, nhân viên tổ dồn báo hiệu như sau:
1) Ban ngày: nhân viên móc nối một tay giơ cao và hô lớn "2 xe" người chỉ huy dồn một tay cầm cờ đỏ túm (hoặc tay không) giơ cao, tay kia cầm cờ vàng mở phất mạnh từ trên xuống hai lần đồng thời thổi một tiếng còi dài và tiếp tục làm tín hiệu cho phép đoàn tàu dồn chạy về phía sau;
2) Ban đêm: nhân viên móc nối giơ cao ánh đèn màu trắng và hô lớn "2 xe" người chỉ huy dồn giơ cao ánh đèn màu vàng (hoặc màu trắng) hai lần đồng thời thổi một tiếng còi dài và tiếp tục làm tín hiệu cho phép đoàn tàu dồn chạy về phía sau.
Lái tàu của đầu máy dồn, sau khi nhận được tín hiệu "2 xe" trả lời bằng một tiếng còi ngắn và giảm tốc độ xuống 5 km/h.
c) Báo khoảng cách "1 xe" khi đoàn tàu dồn (hoặc máy dồn) tiến gần đến toa xe cần móc nối trong khoảng một toa xe, nhân viên tổ dồn báo hiệu như sau:
1) Ban ngày: nhân viên móc nối giơ một tay và hô lớn "1 xe"; người chỉ huy dồn một tay cầm cờ đỏ túm (hoặc tay không) giơ cao, tay kia cầm cờ vàng mở phất mạnh từ trên xuống ba lần đồng thời thổi một tiếng còi dài, sau đó làm tín hiệu nhích nhẹ (Mục 3.6.7.4, hình 124a);
2) Ban đêm: nhân viên móc nối giơ cao ánh đèn màu trắng và hô lớn "1 xe"; người chỉ huy dồn giơ cao ánh đèn màu vàng (hoặc màu trắng) ba lần đồng thời thổi một tiếng còi dài, sau đó làm tín hiệu nhích nhẹ (Mục 3.6.7.4, hình 124b).
Lái tàu của đầu máy dồn, sau khi nhận được tín hiệu "1 xe" trả lời bằng một tiếng còi ngắn và giảm tốc độ xuống 3 km/h theo tín hiệu nhích nhẹ và chuẩn bị sẵn sàng để nhận tín hiệu ngừng.
3.6.7.4 Tín hiệu nhích nhẹ: khi đầu máy dồn (hoặc đoàn tàu dồn) tiến gần sát đến toa xe cần móc nối trong khoảng từ 3 mét đến 1 mét nhân viên tổ dồn báo hiệu như sau:
a) Ban ngày: nhân viên móc nối hai tay giơ cao quá đầu và hô lớn "3 mét"; người chỉ huy dồn một tay cầm cờ đỏ túm (hoặc tay không) giơ cao, tay kia cầm cờ vàng mở phất nhẹ qua lại ngang đầu gối (hình 124a);
b) Ban đêm: nhân viên móc nối giơ cao đèn màu đỏ xoay và hô lớn "3 mét"; người chỉ huy dồn dùng ánh đèn màu vàng (hoặc màu trắng) giơ lên xuống hai lần rồi lay động nhẹ ngang đầu gối (hình 124b).
Đồng thời với tín hiệu tay, nhân viên móc nối và người chỉ huy dồn còn thổi nhịp còi hai tiếng ngắn.
3.6.7.5 Tín hiệu giảm tốc độ dồn: khi đoàn tàu dồn (hoặc đầu máy dồn) đang chuyển dịch, nếu cần giảm tốc độ phải báo hiệu như sau:
a) Ban ngày: cờ vàng mở hoặc cánh tay phất mạnh từ trên xuống nhiều lần;
b) Ban đêm: ánh đèn màu vàng (hoặc màu trắng) của đèn tay giơ lên xuống nhiều lần.
3.6.7.6 Thông báo nối toa báo hiệu như sau:
a) Ban ngày: một tay cầm cờ vàng cuộn (hoặc túm) và một tay cầm cờ đỏ cuộn (hoặc túm) giơ cao quá đầu, chạm hai đầu mút cán cờ vào nhau (hình 125a);
b) Ban đêm: ánh đèn màu thay nhau lúc vàng lúc đỏ (hình 125b).
3.6.7.7 Thông báo phóng toa xe báo hiệu như sau:
a) Ban ngày: một tay cầm cờ vàng mở, một tay cầm cờ đỏ mở giơ ngang vai và vung chéo qua đầu (hình 126a);
b) Ban đêm: ánh đèn màu vàng (hoặc màu trắng) của đèn tay quay hình số 8 nằm ngang (hình 126b).
Trong mọi trường hợp dồn, nhân viên báo truyền tín hiệu có thể dùng cánh tay thay thế cho cờ vàng và ánh đèn màu trắng của đèn tay.
3.6.8 Trước khi chấp hành tín hiệu dồn, lái tàu kéo một tiếng còi ngắn.
Khi đầu máy đang dừng mà lái tàu nghe tín hiệu còi nhưng chưa thấy tín hiệu tay thì lái tàu không chấp hành tín hiệu còi.
Khi đầu máy đang chuyển dịch mà lái tàu nghe tín hiệu còi giảm tốc độ hoặc ngừng phải chấp hành ngay mặc dù chưa nhìn thấy tín hiệu tay.
3.6.9 Tín hiệu tay báo hiệu an toàn
3.6.9.1 Tín hiệu tay báo hiệu an toàn như sau:
a) Ban ngày: cờ vàng cuộn (hoặc túm) giơ cao quá đầu (hình 127a);
b) Ban đêm: ánh đèn màu trắng của đèn tay giơ cao quá đầu (hình 127b).
3.6.9.2 Tín hiệu tay báo hiệu an toàn sử dụng trong những trường hợp sau:
3.6.9.2.1 Trưởng tàu (đối với đoàn tàu có bố trí trưởng tàu):
a) Biểu thị tín hiệu an toàn cho gác ghi sau khi tàu vào nguyên vẹn bên trong mốc tránh va chạm của đường đón tàu hoặc đã ra khỏi ghi ra của ga gửi tàu;
b) Khi tàu thông qua ga trưởng tàu biểu thị tín hiệu an toàn với:
1) Gác ghi vào, khi toa trưởng tàu qua ghi này;
2) Trực ban chạy tàu ga, khi toa trưởng tàu chạy qua trước mặt trực ban chạy tàu ga;
3) Gác ghi ra, khi toa trưởng tàu chạy qua ghi này;
c) Tàu chạy dọc đường, trưởng tàu báo tín hiệu an toàn với nhân viên gác cầu, gác hầm, gác chắn, tuần đường, nhân viên phòng vệ, gác ghi đường nhánh khi tàu chạy an toàn qua những nơi này;
3.6.9.2.2 Gác ghi biểu thị tín hiệu an toàn cho trực ban chạy tàu ga khi:
a) Xác nhận tàu đã vào nguyên vẹn và an toàn bên trong mốc tránh va chạm của đường đón tàu hoặc ra khỏi ghi ra nguyên vẹn và an toàn;
b) Chuẩn bị xong đường, khai thông ghi theo đúng mệnh lệnh của trực ban chạy tàu ga (hoặc người chỉ huy dồn).
3.6.9.2.3 Trực ban chạy tàu ga dùng tín hiệu an toàn để trả lời cho trưởng tàu hoặc gác ghi khi nhận được tín hiệu an toàn của họ.
Khi giữa trực ban chạy tàu ga và gác ghi có liên lạc điện thoại hoặc thiết bị khống chế thì dùng những máy móc, thiết bị này để trao đổi và xác nhận tình hình tàu ra vào ga, khai thông đường mà không cần trao đổi tín hiệu an toàn giữa gác ghi và trực ban chạy tàu ga.
3.6.9.2.4 Nhân viên gác cầu, gác hầm, gác chắn, tuần đường, gác ghi đường nhánh biểu thị tín hiệu an toàn khi tàu đi vào phạm vi công tác của mình. Nhân viên phòng vệ địa điểm xung yếu biểu thị tín hiệu an toàn khi tàu đi khỏi địa điểm xung yếu.
3.6.10 Tín hiệu tay báo khai thông đường gồm có:
a) Đường số 1:
1) Ban ngày: hai tay cầm cờ cuộn (hoặc túm) đưa ngang vai (hình 128a);
2) Ban đêm: ánh đèn màu trắng của đèn tay đưa ngang trước ngực (hình 128b).
b) Đường số 2:
1) Ban ngày: hai tay cầm cờ cuộn (hoặc túm) tay phải giơ thẳng lên cao, tay trái buông xuôi (hình 129a);
2) Ban đêm: ánh đèn màu trắng của đèn tay đưa lên xuống (hình 129b).
c) Đường số 3:
1) Ban ngày: hai tay cầm cờ cuộn (hoặc túm) giơ thẳng lên cao quá đầu (hình 130a);
2) Ban đêm: ánh đèn màu trắng của đèn đưa qua lại thành hình vòng cung trước mặt (hình 130b).
d) Đường số 4:
1) Ban ngày: hai tay cầm cờ cuộn (hoặc túm) lập thành đường chéo 45° so với mặt đất (hình 131a);
2) Ban đêm: ánh đèn màu trắng của đèn tay đưa thành đường chéo 45° so mặt đất (hình 131b).
đ) Đường số 5:
1) Ban ngày: hai tay cầm cờ cuộn (hoặc túm) tay trái giơ thẳng lên quá đầu, tay phải đưa qua lại ngang đùi (hình 132a);
2) Ban đêm: ánh đèn màu trắng của đèn tay tạo thành hình chữ V trước ngực (hình 132b).
e) Đường số 6:
1) Ban ngày: hai tay cầm cờ cuộn (hoặc túm) để xuôi chếch 45° so với thân người (hình 133a);
2) Ban đêm: ánh đèn màu trắng của đèn tay đưa thành hình vòng cung quá đầu (hình 133b).
g) Đường số 7:
1) Ban ngày: hai tay cầm cờ cuộn (hoặc túm) tay phải giơ thẳng lên cao, tay trái đưa ngang vai (hình 134a);
2) Ban đêm: ánh đèn màu trắng của đèn tay đưa thành hình chữ "L" (hình 134b).
h) Đường số 8:
1) Ban ngày: hai tay cầm cờ cuộn (hoặc túm) tay phải đưa ngang vai, tay trái buông xuôi (hình 135a);
2) Ban đêm: ánh đèn màu trắng của đèn tay quay thành hình vòng tròn rồi đưa lên hạ xuống (hình 135b).
i) Đường số 9:
1) Ban ngày: hai tay cầm cờ cuộn (hoặc túm) tay phải đưa ngang vai, tay trái đưa chéo qua ngực tạo thành góc 45° so với tay phải (hình 136a);
2) Ban đêm: ánh đèn màu trắng của đèn tay quay thành hình vòng tròn rồi đưa ngang (hình 136b).
k) Đường số 10:
1) Ban ngày: hai tay cầm cờ cuộn (hoặc túm) giơ cao qua đầu bắt chéo thành hình chữ X (hình 137a);
2) Ban đêm: ánh đèn màu trắng của đèn tay đưa ngang rồi đưa dọc tạo thành hình chữ thập (hình 137b).
l) Đường số 11 đến số 19:
Biểu thị tín hiệu đường số 10 rồi báo tiếp số đơn vị theo quy định tương ứng trên đây.
Khi cần khai thông đường, trực ban chạy tàu ga hoặc trưởng dồn dùng các tín hiệu tương ứng quy định trên báo cho gác ghi; gác ghi nhắc lại tín hiệu của trực ban chạy tàu ga (hoặc trưởng dồn) trước khi chấp hành tín hiệu khai thông đường. Sau khi đã khai thông đường đúng chiều, kiểm tra độ ép sát lưỡi ghi, gác ghi biểu thị tín hiệu an toàn (Mục 3.6.9 Quy chuẩn này, hình 127a và hình 127b) cho trực ban chạy tàu ga (hoặc trưởng dồn). Trực ban chạy tàu ga (hoặc trưởng dồn) cũng dùng tín hiệu an toàn để trả lời cho gác ghi.
3.6.11 Tín hiệu tay ra lệnh "mở tín hiệu", "đóng tín hiệu" gồm có:
a) Mở tín hiệu cánh vào ga báo hiệu như sau:
1) Ban ngày: tay phải cầm cờ cuộn (hoặc túm) đưa ngang vai, xong hạ xuống 45° (hình 138a);
2) Ban đêm: ánh đèn màu trắng của đèn cầm tay đưa ngang từ vai ra, xong hạ xuống 45° (hình 138b).
b) Mở tín hiệu cánh ra ga báo hiệu như sau:
1) Ban ngày: tay phải cầm cờ cuộn (hoặc túm) để ngang vai, xong nhấc lên 45° (hình 139a);
2) Ban đêm: ánh đèn màu trắng của đèn tay đưa ngang từ vai ra, xong nhấc lên 45° (hình 139b).
c) Đóng tín hiệu cánh báo hiệu như sau:
1) Ban ngày: cờ đỏ mở quay vòng tròn (hình 140a);
2) Ban đêm: ánh đèn màu đỏ quay vòng tròn (hình 140b).
Tín hiệu đóng tín hiệu cánh chỉ sử dụng khi trực ban chạy tàu ga thay đổi trình tự đón, gửi tàu sau khi đã mở tín hiệu cánh.
Các tín hiệu quy định tại khoản a, b và c mục này chỉ sử dụng khi giữa trực ban chạy tàu ga và gác ghi không có liên lạc điện thoại hoặc điện thoại bị hỏng.
3.6.12 Các tín hiệu tay bổ trợ gồm có:
a) Tín hiệu hủy bỏ tín hiệu báo hiệu như sau:
1) Ban ngày: hai tay cầm cờ mở vắt chéo thành hình chữ X trước đùi rồi vung ra hai bên (hình 141a);
2) Ban đêm: ánh đèn màu vàng của đèn tay quay vòng tròn, xong đưa qua lại ngang đùi (hình 141b).
b) Tín hiệu yêu cầu báo lại tín hiệu báo hiệu như sau:
1) Ban ngày: tay phải cầm cờ cuộn (hoặc túm) giơ lên xuống nhiều lần (hình 142a);
2) Ban đêm: ánh đèn màu vàng của đèn tay giơ lên xuống nhiều lần (hình 142b).
c) Tín hiệu yêu cầu chú ý tín hiệu báo hiệu như sau:
1) Ban ngày: hai tay cầm cờ cuộn (hoặc túm) đưa ngang vai và đưa lên xuống nhiều lần (hình 143a);
2) Ban đêm: ánh đèn màu đỏ của đèn tay lắc ngang đùi (hình 143b).
Khi biểu thị tín hiệu yêu cầu chú ý tín hiệu còn phải kèm tín hiệu còi theo quy định ở Mục 3.8.1.2 Quy chuẩn này.
2.6.13 Tín hiệu tay thử hãm tự động gồm có:
a) Siết hãm báo hiệu như sau:
1) Ban ngày: tay cầm búa (hoặc cờ đỏ túm hoặc tay không) giơ thẳng quá đầu rồi đưa lên xuống nhiều lần (hình 144a);
2) Ban đêm: ánh đèn màu trắng của đèn giơ cao quá đầu rồi đưa lên xuống nhiều lần (hình 144b).
Sau khi nhận được tín hiệu này, lái tàu trả lời bằng một tiếng còi ngắn và tiến hành siết hãm.
b) Nhả hãm báo hiệu như sau:
1) Ban ngày: tay cầm búa (hoặc cờ đỏ túm hoặc tay không) giơ cao quá đầu và lắc qua lại (hình 145a);
2) Ban đêm: ánh đèn màu trắng của đèn tay giơ cao qua đầu và đưa qua lại (hình 145b).
Sau khi nhận được tín hiệu này, lái tàu trả lời bằng hai tiếng còi ngắn và tiến hành nhả hãm.
c) Tín hiệu thử hãm xong báo hiệu như sau:
1) Ban ngày: tay cầm búa (hoặc cờ đỏ túm hoặc tay không) đưa chéo tạo thành với mặt đất 45° (hình 146a);
2) Ban đêm: ánh đèn trắng của đèn tay đưa chéo, tạo thành với mặt đất góc 45° (hình 146b).
3) Sau khi nhận được tín hiệu này, lái tàu trả lời bằng hai tiếng còi dài.
3.7 Tín hiệu tàu
3.7.1 Khi tàu chạy do đầu máy kéo có những tín hiệu sau đây:
a) Mặt trước đầu máy có tín hiệu:
1) Ban đêm: một đèn pha ở giữa, trên cao, mặt trước đầu máy và một đèn pha bên trái xà đầu (theo hướng tàu chạy) chiếu ánh sáng trắng về phía trước (hình 147a). Nếu đầu máy kéo chạy lùi thì phải có một đèn pha trên cao mặt trước toa than nước ở vị trí tương ứng như mặt trước đầu máy (nếu là đầu máy hơi nước);
2) Ban ngày: không có tín hiệu (hình 147b).
b) Mặt sau toa xe cuối tàu có tín hiệu:
1) Ban ngày: trên mặt sau toa xe cuối tàu có một biển tròn màu đỏ (quay mặt đỏ về phía sau tàu) để ở góc trái xà đầu theo hướng tàu chạy và hai bên sườn toa xe có hai đèn tai không thắp sáng (hình 148a);
2) Ban đêm: trên mặt sau toa xe cuối tàu có ba ánh đèn màu đỏ ở các vị trí tương ứng với hai đèn tai và biển tròn màu đỏ (ban ngày) chiếu sáng về phía sau (hình 148b). Hai đèn tai chiếu ánh sáng màu trắng về phía đầu máy.
Khi hai bên sườn toa xe cuối tàu không có móc treo đèn tai thì có thể chuyển hai đèn tai đến cắm hai bên sườn toa xe có móc treo ở gần toa xe cuối tàu nhất.
Các tàu chạy đường ngắn có thể không treo đèn tai nhưng phải có đủ tín hiệu khác theo quy định.
3.7.2 Khi tàu chạy do đầu máy đẩy (tàu chạy lùi) có những tín hiệu sau đây:
a) Mặt trước toa xe đầu tiên có tín hiệu:
1) Ban ngày: một biển tròn màu đỏ ở bên phải xà đầu (theo hướng tàu chạy lùi), 2 đèn tai không thắp sáng (hình 149a);
2) Ban đêm: ba ánh đèn màu đỏ ở các vị trí tương ứng với hai đèn tai và biển tròn màu đỏ (ban ngày) chiếu ánh sáng màu đỏ về phía trước (theo hướng tàu chạy lùi) (hình 149b). Hai đèn tai chiếu ánh sáng màu trắng về phía sau.
b) Mặt sau đầu máy đẩy có tín hiệu:
1) Ban ngày: cờ đỏ mở hoặc biển tròn màu đỏ cắm bên trái mặt sau đầu máy theo hướng tàu chạy;
2) Ban đêm: ánh đèn màu đỏ đặt ở phía trên hoặc ngang xà đầu bên trái chiếu sáng màu đỏ về phía sau.
3.7.3 Khi tàu chạy có đầu máy phụ đẩy có những tín hiệu sau đây:
a) Mặt sau toa xe cuối tàu có các tín hiệu như quy định tại khoản b) Mục 3.7.1 Quy chuẩn này;
b) Mặt sau đầu máy phụ đẩy có các tín hiệu như quy định tại khoản b) Mục 3.7.2 Quy chuẩn này.
2.7.4 Các phương tiện chạy đơn trên đường sắt (chạy một mình không kéo toa xe) phải có các tín hiệu sau đây:
a) Mặt trước của phương tiện có các tín hiệu như quy định tại khoản a) Mục 3.7.1 Quy chuẩn này.
b) Mặt sau của phương tiện có các tín hiệu quy định tại khoản b), Mục 2.7.2 Quy chuẩn này.
Nếu phía sau của phương tiện có kéo một số toa xe trong điều kiện cho phép, thì chuyển tín hiệu quy định cho mặt sau của phương tiện chạy đơn đến đặt vào mặt sau toa xe cuối cùng.
3.7.5 Tín hiệu đuôi tàu của tàu chạy trước mà sau nó có tàu chạy cùng chiều báo hiệu như sau:
Trên mặt sau toa xe cuối cùng của tàu chạy trước (sau nó có tàu chạy cùng chiều) ngoài những tín hiệu quy định tại khoản b, Mục 3.7.1 Quy chuẩn này còn phải treo thêm cờ vàng ở vị trí đèn tai bên trái theo hướng tàu chạy.
3.7.6 Tín hiệu goòng
Khi goòng làm việc trên đường sắt (chạy hoặc đứng trên đường sắt) phải có tín hiệu sau đây:
a) Ban ngày: cờ đỏ mở hoặc biển chữ nhật hai mặt màu đỏ cắm trên goòng;
b) Ban đêm: ánh đèn hai mặt màu đỏ cắm trên goòng.
3.8 Tín hiệu tai nghe
3.8.1 Tín hiệu tai nghe được phát ra bằng âm thanh còi của các loại phương tiện chạy trên đường sắt, âm thanh của pháo và các loại còi do người thổi.
Phương thức báo hiệu của tín hiệu tai nghe như sau:
3.8.1.1 Tín hiệu bằng âm thanh còi của các loại phương tiện chạy trên đường sắt:
|
Số TT |
Tên tín hiệu |
Phương thức báo hiệu |
Trường hợp sử dụng |
|
(1) |
(2) |
(3) |
(4) |
|
1 |
Xuất phát, chú ý |
Một tiếng dài (-) |
a) Khi tàu xuất phát; b) Khi tàu có đầu máy ghép, máy chính phát một tiếng còi dài, máy phụ nhắc lại tín hiệu này, máy chính phát một tiếng còi ngắn rồi mở máy xuất phát; c) Khi tàu chạy qua những địa điểm cần lưu ý người qua lại (tín hiệu màu vàng, đến gần ga, trạm, dẫn đường, biển kéo còi,...) |
|
2 |
Thông báo |
Ba tiếng dài (- - -) |
a) Thông báo cho trưởng tàu biết tàu bị ngừng trong khu gian không tiếp tục chạy được; b) Gọi nhân viên phòng vệ trở về; c) Thông báo đầu máy ra vào kho. |
|
3 |
Đẩy |
Hai tiếng ngắn, một tiếng dài (. . -) |
a) Khi tàu có đầu máy phụ (đẩy), đầu máy chính biểu thị tín hiệu này, đầu máy phụ nhắc lại, đầu máy chính phát một tiếng còi ngắn và mở máy; b) Đầu máy phụ gặp biển đẩy. |
|
4 |
Thôi đẩy |
Một tiếng dài, hai tiếng ngắn (- . .) |
a) Đầu máy chính biểu thị tín hiệu cho đầu máy phụ thôi đẩy, đầu máy phụ nhắc lại và thôi đẩy; b) Đầu máy phụ gặp biển thôi đẩy. |
|
5 |
Chạy lùi |
Hai tiếng dài (- -) |
a) Khi tàu chạy lùi; b) Bắt đầu mở máy chạy lùi. |
|
6 |
Đứt tàu |
Một tiếng dài, một tiếng ngắn và một tiếng dài (- . -) |
Khi tàu chạy trong khu gian bị đứt, lái tàu biểu thị tín hiệu này. |
|
7 |
Cảnh giác |
Một tiếng dài và một tiếng ngắn (- .) |
a) Khi thời tiết xấu không đảm bảo nhìn rõ tín hiệu và mặt đường; b) Khi tàu chạy sắp đến đường cong hoặc sắp qua nhiều đường cong. |
|
8 |
Nguy cấp |
Một tiếng dài, ba tiếng ngắn (- . . .) |
a) Lái tàu phát hiện chướng ngại uy hiếp an toàn chạy tàu; b) Tàu gặp tai nạn yêu cầu cấp cứu. |
|
9 |
Chấp hành |
Một tiếng ngắn (.) |
Nhận chấp hành tín hiệu. |
|
10 |
Nhả hãm, phóng toa xe |
Hai tiếng ngắn (. .) |
a) Lái tàu nhả hãm tự động theo yêu cầu tín hiệu tay; b) Lái tàu yêu cầu gác hãm nhả hãm tay; c) Lái tàu phóng toa xe theo tín hiệu tay. |
|
11 |
Siết hãm tay |
Ba tiếng ngắn (. . .) |
Lái tàu yêu cầu gác hãm siết hãm tay. |
3.8.1.2 Tín hiệu bằng âm thanh của còi do người thổi:
|
Số TT |
Tên tín hiệu |
Phương thức báo hiệu |
Trường hợp sử dụng |
|
(1) |
(2) |
(3) |
(4) |
|
1 |
Tàu đến gần |
Tàu số lẻ: Một tiếng dài (-); tàu số chẵn: Hai tiếng dài (- -) |
Nhân viên đường sắt công tác dọc đường sắt (tuần đường, tuần hầm, gác cầu, gác ghi, người chỉ huy thi công, phụ trách goòng,...) khi phát hiện có tàu đến gần cần báo cho mọi người biết. |
|
2 |
Gửi tàu, chú ý tín hiệu, cho tàu chạy |
Tàu số lẻ: Một tiếng dài (-); tàu số chẵn: Hai tiếng dài (- -) |
Trực ban chạy tàu ga thổi còi khi làm tín hiệu tay gửi tàu (khoản a Mục 3.6.3 Quy chuẩn này, hình 121a và 121b), yêu cầu chú ý tín hiệu (khoản b, Mục 3.6.12 Quy chuẩn này, hình 148a và 148b. Trưởng tàu thổi còi khi làm tín hiệu cho tàu chạy (Mục 3.6.5 Quy chuẩn này, hình 125a và 125b). |
|
3 |
"Tiến" khi dồn |
Một tiếng dài (-) |
Trưởng dồn thổi còi khi làm tín hiệu tay cho đầu máy dồn tiến về phía trước (Mục 3.6.7.1 Quy chuẩn này, hình 127a và 127b). |
|
4 |
"Lùi" khi dồn |
Hai tiếng dài (- -) |
Trưởng dồn thổi còi khi làm tín hiệu tay cho đầu máy dồn chạy về phía sau (Mục 3.6.7.2 Quy chuẩn này, hình 128a và 128b). |
|
5 |
Nhích nhẹ, giảm tốc độ dồn |
Hai tiếng ngắn một nhịp (. . , . .) |
Trưởng dồn thổi còi khi làm tín hiệu tay nhích nhẹ (Mục 3.6.7.4 Quy chuẩn này, hình 129a và 129b) hoặc tín hiệu tay giảm tốc độ dồn (Mục 3.6.7.5 Quy chuẩn này). |
|
6 |
Nguy cấp |
Một tiếng dài, ba tiếng ngắn (- . . .) |
a) Nhân viên đường sắt công tác trên tàu hoặc dọc đường sắt phát hiện đường hỏng hoặc có chướng ngại vật uy hiếp an toàn chạy tàu; b) Tàu gặp tai nạn yêu cầu cấp cứu. |
|
7 |
Ngừng |
Nhiều tiếng ngắn liên tiếp (. . . . .) |
Trong mọi trường hợp cần bắt tàu dừng. Người bắt tàu dừng thổi còi đồng thời với tín hiệu tay ngừng (khoản a, b Mục 3.6.1 Quy chuẩn này, hình 117a và 117b; 118a và 118b). |
3.8.2 Hạn độ âm thanh của tiếng còi:
a) Tiếng dài: 3 giây;
b) Tiếng ngắn: 1 giây.
Khi phát tín hiệu còi của các phương tiện chạy trên đường sắt, lái tàu phải thận trọng, không sử dụng tiếng còi quá mức cần thiết ảnh hưởng không tốt đến môi trường xung quanh.
4. QUY ĐỊNH VỀ QUẢN LÝ
4.1 Tất cả nhân viên đường sắt thuộc phạm vi chức trách của mình đều phải nắm vững Quy chuẩn này và phải nghiêm chỉnh thi hành.
4.2 Trong những trường hợp khẩn cấp, uy hiếp an toàn chạy tàu thì mọi cá nhân thuộc phạm vi điều chỉnh của Quy chuẩn này có nhiệm vụ phát tín hiệu ngừng.
5. TỔ CHỨC THỰC HIỆN
5.1 Thủ trưởng các tổ chức liên quan có trách nhiệm phổ biến Quy chuẩn này đến các đơn vị liên quan và các nhân viên dưới quyền để thực hiện.
5.2 Trong quá trình thực hiện có khó khăn, vướng mắc các đơn vị báo cáo doanh nghiệp kinh doanh kết cấu hạ tầng đường sắt, chủ sở hữu đường sắt chuyên dùng có nối ray với đường sắt quốc gia, tổng hợp gửi Cục Đường sắt Việt Nam, Bộ Giao thông vận tải để giải quyết.
5.3 Cục trưởng Cục Đường sắt Việt Nam chủ trì, phối hợp với các cơ quan có liên quan kiểm tra việc thực hiện Quy chuẩn này./.
MỤC LỤC
Lời nói đầu
1. QUY ĐỊNH CHUNG
2. YÊU CẦU KỸ THUẬT VỀ CÔNG TRÌNH VÀ THIẾT BỊ TÍN HIỆU ĐƯỜNG SẮT
2.1 Tín hiệu
2.2 Hệ thống liên khóa
2.3 Thiết bị đóng đường
3. QUY ĐỊNH VỀ PHƯƠNG THỨC BÁO HIỆU VÀ PHƯƠNG PHÁP SỬ DỤNG TÍN HIỆU
3.1 Các yêu cầu chung về kỹ thuật
3.2 Tín hiệu cố định
3.2.1 Tín hiệu đèn màu
3.2.2 Tín hiệu cánh
3.3 Tín hiệu di động, pháo hiệu
3.3.1 Tín hiệu di động
3.3.2 Pháo hiệu và đuốc
3.4 Biện pháp phòng vệ
3.4.1 Phòng vệ nơi thi công hoặc chướng ngại trong khu gian
3.4.2 Phòng vệ tàu bị dừng trong khu gian đóng đường không tự động
3.4.3 Phòng vệ tàu bị dừng trong khu gian đóng đường tự động
3.4.4 Thu hồi tín hiệu phòng vệ
3.4.5 Phòng vệ trong ga
3.4.6 Biện pháp xử lý khi tín hiệu bị hỏng
3.5 Biển hiệu, đèn hiệu và mốc hiệu
3.6 Tín hiệu tay
3.7 Tín hiệu tàu
3.8 Tín hiệu tai nghe
4. QUY ĐỊNH VỀ QUẢN LÝ
5. TỔ CHỨC THỰC HIỆN
Phụ lục A Các hình vẽ
Phụ lục B Quy cách biển hiệu và mốc hiệu
Bạn chưa Đăng nhập thành viên.
Đây là tiện ích dành cho tài khoản thành viên. Vui lòng Đăng nhập để xem chi tiết. Nếu chưa có tài khoản, vui lòng Đăng ký tại đây!
Bạn chưa Đăng nhập thành viên.
Đây là tiện ích dành cho tài khoản thành viên. Vui lòng Đăng nhập để xem chi tiết. Nếu chưa có tài khoản, vui lòng Đăng ký tại đây!




























