- Tổng quan
- Nội dung
- Tiêu chuẩn liên quan
- Lược đồ
- Tải về
Tiêu chuẩn Quốc gia TCVN 6693:2000 ISO 9150:1988 Quần áo bảo vệ - Xác định diễn thái của vật liệu khí các giọt nhỏ kim loại nóng chảy bắn vào
| Số hiệu: | TCVN 6693:2000 | Loại văn bản: | Tiêu chuẩn Việt Nam |
| Cơ quan ban hành: | Bộ Khoa học, Công nghệ và Môi trường | Lĩnh vực: | Khoa học-Công nghệ |
|
Ngày ban hành:
Ngày ban hành là ngày, tháng, năm văn bản được thông qua hoặc ký ban hành.
|
2000 |
Hiệu lực:
|
Đã biết
|
| Người ký: | Đang cập nhật |
Tình trạng hiệu lực:
Cho biết trạng thái hiệu lực của văn bản đang tra cứu: Chưa áp dụng, Còn hiệu lực, Hết hiệu lực, Hết hiệu lực 1 phần; Đã sửa đổi, Đính chính hay Không còn phù hợp,...
|
Đã biết
|
TÓM TẮT TIÊU CHUẨN VIỆT NAM TCVN 6693:2000
Nội dung tóm tắt đang được cập nhật, Quý khách vui lòng quay lại sau!
Tải tiêu chuẩn Việt Nam TCVN 6693:2000
TCVN 6693:2000
ISO 9150:1988
QUẦN ÁO BẢO VỆ XÁC ĐỊNH DIỄN THÁI CỦA VẬT LIỆU KHÍ CÁC GIỌT NHỎ KIM LOẠI NÓNG CHẢY BẮN VÀO
Protective clothing - Determination of behaviour of materials on impact of small splashes of molten metal
Lời nói đầu
TCVN 6693:2000 tương đương với ISO 9150:1988 với các thay đổi biên tập cho phép.
TCVN 6693:2000 do Ban kỹ thuật Tiêu chuẩn TCVN/TC94 “Phương tiện bảo vệ cá nhân” biên soạn, Tổng cục Tiêu chuẩn Đo lường Chất lượng đề nghị, Bộ Khoa học Công nghệ và Môi trường (nay là Bộ Khoa học và Công nghệ) ban hành.
Tiêu chuẩn này được chuyển đổi năm 2008 từ Tiêu chuẩn Việt Nam cùng số hiệu thành Tiêu chuẩn Quốc gia theo quy định tại khoản 1 Điều 69 của Luật Tiêu chuẩn và Quy chuẩn kỹ thuật và điểm a khoản 1 Điều 6 Nghị định số 127/2007/NĐ-CP ngày 1/8/2007 của Chính phủ quy định chi tiết thi hành một số điều của Luật Tiêu chuẩn và Quy chuẩn kỹ thuật.
Lời giới thiệu
Quần áo thiết kế để bảo vệ người mặc chống lại sự phun bắn của các giọt kim loại nóng chảy thường phải chịu tải nhiệt cao. Tiêu chuẩn này tạo thành một phần trong một loạt tài liệu liên quan đến quần áo được thiết kế để bảo vệ chống lại nhiệt và lửa.
Sự đa dạng của các tình huống trong đó kim loại nóng chảy phun bắn có thể tiếp xúc với vật liệu được sử dụng làm quần áo bảo vệ gây khó khăn trong việc đánh giá các nguy hiểm có thể nảy sinh trong các điều kiện sử dụng.
Kinh nghiệm đã chỉ ra rằng chức năng bảo vệ quan trọng nhất là khả năng cản lại sự truyền nhiệt, qua quần áo bảo vệ, từ các giọt kim loại nóng chảy đập vào nhưng nảy ra khỏi bề mặt quần áo.
Phương pháp thử mô tả trong tiêu chuẩn này cho phép đánh giá được sự truyền nhiệt đó.
QUẦN ÁO BẢO VỆ - XÁC ĐỊNH DIỄN THÁI CỦA VẬT LIỆU KHI CÁC GIỌT NHỎ KIM LOẠI NÓNG CHẢY BẮN VÀO
Protective clothing - Determination of behaviour of materials on impact of small splashes of molten metal
1. Lĩnh vực và phạm vi áp dụng
Tiêu chuẩn này quy định phương pháp thử được dùng để đánh giá diễn thái của vật liệu được sử dụng làm quần áo bảo vệ khi vật liệu đó bị va đập bởi các giọt kim loại lỏng, đặc biệt là khi các hạt thép nóng chảy hướng thẳng vào vật liệu.
Tiêu chuẩn này áp dụng cho mọi vật liệu mềm dễ uốn, hoặc tổ hợp vật liệu, dùng để bảo vệ công nhân chống lại các giọt nhỏ kim loại bắn vào.
Kết quả thu được bằng phương pháp này tạo ra khả năng so sánh diễn thái của các loại vật liệu khác nhau cùng được thử trong một điều kiện đã được tiêu chuẩn hóa. Chúng không cho phép kết luận đối với vật liệu khi tiếp xúc với các giọt lớn thép đúc nóng chảy hoặc kim loại nóng chảy khác, chúng cũng không dự báo được diễn thái của các bộ quần áo sử dụng trong điều kiện công nghiệp.
2. Tiêu chuẩn trích dẫn
TCVN 1748-91 (ISO 139) Vật liệu dệt - Môi trường chuẩn để điều hòa và thử.
NFC 42-330. Dụng cụ đo điện - Cảm ứng nhiệt độ bằng điện trở bạch kim - Bảng tham khảo và dung sai.
3. Định nghĩa và ký hiệu
Trong tiêu chuẩn này, áp dụng các định nghĩa và ký hiệu sau:
3.1. Giọt
Một lượng kim loại nóng chảy được tạo ra từ sự nung nóng chảy một thanh kim loại bằng một đèn hàn, rơi xuống do tác động đồng thời của khối lượng riêng của nó và luồng khí thổi của đèn hàn
3.2. Các ký hiệu
f Tần số giọt, biểu thị bằng số giọt trên phút
m Khối lượng của một giọt, biểu thị bằng gam.
p1 Mật độ dài của thanh thép, biểu thị bằng g/cm.
X Số các giọt 0,5g, được tạo ra ở tần số 20 giọt/phút, cần để tăng nhiệt độ của bộ cảm biến đặt sau mẫu thử lên 40K, nhiệt độ bộ cảm biến nằm trong khoảng ± 2K của nhiệt độ môi trường ở lúc bắt đầu phép thử.
4. Nguyên tắc
Hướng các giọt kim loại nóng chảy vào một điểm trên mẫu thử đặt thẳng đứng và đo số các giọt cần để gây ra sự tăng nhiệt độ 40K trong bộ cảm biến đằng sau mẫu thử.
5. Thiết bị
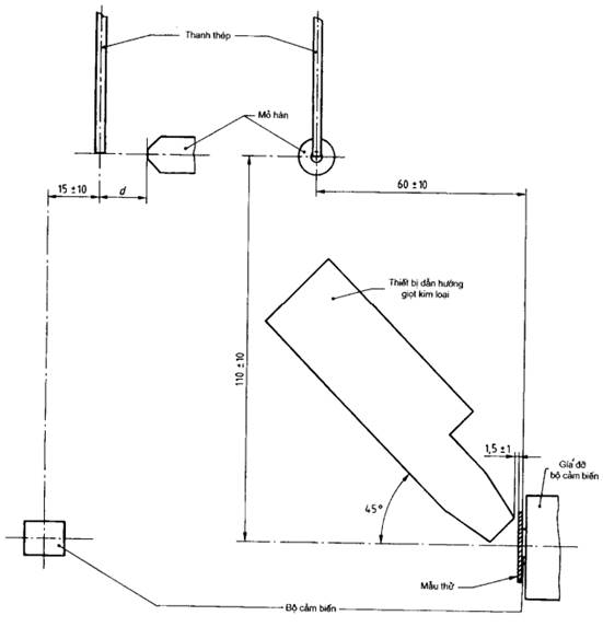
5.1. Thiết bị tạo giọt kim loại nóng chảy (xem Hình 1)
Làm nóng chảy một đầu thanh thép (5.5) trong ngọn lửa của đèn hàn oxyacetylen có đường kính lỗ phun 1,2mm ± 0,1mm. Thanh thép chuyển động tiến nhờ một động cơ tốc độ thay đổi có một hệ thống các ròng rọc và dây cáp, và được gắn chặt vào thanh thép đỡ có gắn một đối trọng.
Trục của mỏ hàn vuông góc với thanh thép. Khoảng cách d giữa thanh thép và đầu mỏ hàn có thể điều chỉnh được (xem Hình 2)
Tốc độ nạp oxy và acetylen được khống chế bởi các lưu lượng kế.
5.2. Thiết bị dẫn hướng giọt kim loại (xem Hình 3)
Thiết bị này được thiết kế để tập hợp các giọt kim loại và dẫn hướng chúng về phía mẫu thử đặt thẳng đứng.
Thiết bị bao gồm một chiếc phễu được làm bằng nhựa polytetrafluoroetylen, có bệ đỡ điều chỉnh được theo ba mặt. Phễu nghiêng một góc 45o so với mặt phẳng ngang. Phần hình trụ của nó có thể cho phép một thanh thép đường kính 5mm ± 0,2 mm đi qua.
Trang bị một lắp đậy lên trên thiết bị dẫn hướng giọt kim loại và đậy nắp khi không sử dụng
5.3. Bộ cảm biến đo nhiệt độ nối với thiết bị ghi
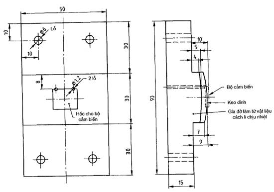
Giá đỡ bộ cảm được chế tạo bằng máy từ vật liệu cách điện, chịu nhiệt có độ dẫn nhiệt 0,125W/(m.K) ± 0,015W/(m.K) ở 40oC và có nhiệt dung riêng là 1,15 J/(g.K) ± 0,1 J/(g.K) có kích thước như trong Hình 4. Có hai lỗ nằm cạnh tâm để dây chì đi qua đến bộ cảm biến và 4 lỗ ở các góc để gắn giá đỡ mẫu.
Đối với bộ cảm biến, người ta dùng một điện trở bằng platin tương ứng với NF C 42-330 (100Ω tại 0oC, phẳng, kích thước 12,5mm ´ 10mm, phủ polytetrafluoroetylen).
Trên bề mặt ngoài của bộ đỡ cảm biến có làm một cái hốc 13,5mm x 11mm vừa đủ sâu để gắn bộ cảm biến sao cho bề mặt của nó trồi lên 0,5mm ± 0,2mm. Gắn chặt bộ cảm biến vào hốc bằng một loại keo dính bền nhiệt. Nối bộ cảm biến với một thiết bị điện tử thích hợp để chuyển sự biến thiên điện trở thành chênh lệch nhiệt độ. Cho phép phân biệt đến ± 0,5 K.
5.4. Khung đỡ mẫu thử
Khung đỡ mẫu thử cũng dùng để đỡ bộ cảm biến (5.3). Khung đỡ này cho phép giữ mẫu ở trạng thái căng bằng hệ thống puli-kẹp và bởi một đối trọng (xem Hình 5). Sử dụng các đối trọng 175g ± 5g trên ròng rọc cả hai phía của mẫu thử hoặc, cố định một đầu của mẫu thử bằng một cái kẹp và gắn một đối trọng 175g ± 5g ở đầu kia. Vị trí của khung giữ mẫu có thể điều chỉnh được theo phương nằm ngang và thẳng đứng.
5.5. Thanh thép
Thanh thép có mật độ dài p1 = 0,5 g/cm ± 0,2 g/cm
6. Mẫu thử
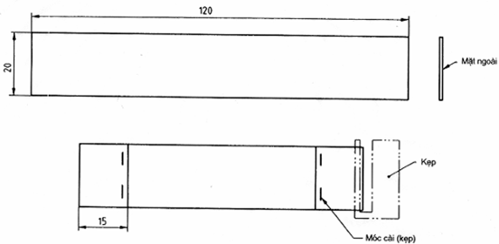
Cắt mẫu thử với kích thước 120mm x 20mm từ mẫu phòng thí nghiệm ở khoảng cách ít nhất 50mm từ các mép của mẫu. Gấp mép ở hai đầu mẫu với chiều rộng 15 mm và dập ghim để tạo khả năng xiết chặt chúng vào các kẹp (xem Hình 6).
Cắt ít nhất 10 mẫu thử.
Điều hòa mẫu thử trong 24 h theo TCVN 1749-91 (ISO 139:1973), điều 2.2.1 (65% RH ± 2% RH tại 20oC ± 2oC).
7. Tiến hành thử
Cảnh báo: Sức khỏe và an toàn cho người thao tác.
Khi bị tiếp xúc với kim loại nóng chảy, các chất hữu cơ có thể phân hủy nhiệt tạo ra các chất độc hại. Do đó, các thử nghiệm theo phương pháp này cần phải được thực hiện ở chỗ kín gió, ở đó có thể thực hiện việc hút không khí khi hoàn thành mỗi phép thử.
Phải đeo găng tay bảo vệ khi cầm các vật nóng. Nếu trong quá trình thử phải giám sát gần thiết bị hoặc mẫu thử, thì mắt và mặt phải được bảo vệ.
Hứng giọt kim loại trong một lỗ thích hợp nằm sát dưới bộ đỡ mẫu.
7.1. Điều kiện thử
Thực hiện phép thử trong buồng kín gió không có bất kỳ nguồn nhiệt nào ngoài nhiệt cần cho thử nghiệm. Trong quá trình thử từng mẫu, nhiệt độ thử không được thay đổi quá ± 5K. Trước khi thử, đưa nhiệt độ của bộ cảm biến (bộ đỡ cách ly và đầu bò) đến nhiệt độ môi trường ± 2K.
7.2. Chuẩn bị và điều chỉnh thanh kim loại
Đặt tốc độ động cơ sao cho thanh thép (5.5) có được tốc độ 10 g/ph ± 1 g/ph. Chỉnh vị trí mỏ hàn và dòng khí để tạo ra các giọt kim loại khối lượng m tần số f.
Xác định khối lượng m của một giọt bằng cách cân thanh thép trước và sau khi nóng chảy 20 giọt và chia chênh lệch khối lượng cho 20.
Xác định tần số bằng cách dùng đồng hồ bấm giây ghi thời gian cần thiết để tạo ra số giọt đã cho, không tính giọt đầu tiên.
Xác định khối lượng (7.3) của một giọt m và tần số f như sau:
m = 0,50 g ± 0,03 g
f = 20 giọt trên 60s ± 3s
Lúc bắt đầu, có thể dùng các thông số chỉ dẫn dưới đây:
áp lực oxy = 250 kPa 1)
áp lực axetylen = 50 kPa;
khoảng cách từ thanh thép đến đầu phun của mỏ hàn = 12 mm
độ dài phần lửa hình nón xanh thẫm = 8 mm.
Nên để lưu lượng khí thực tế thấp nhất để giảm tối thiểu rủi ro do các hạt kim loại bị thổi bay hoặc bắn tung tóe vào lửa. Vị trí của thanh kim loại đặt sao cho nằm ở điểm nóng nhất của ngọn lửa, nghĩa là ngay trên đầu phun vùng hình nón xanh thẫm.
7.3. Xác định
Định vị khung đỡ mẫu (5.4) sao cho khoảng cách thẳng đứng giữa tâm mỏ đốt và đường qua tâm nằm ngang của bộ cảm biến (5.3) là 110 mm ± 10 mm. Điều chỉnh khoảng cách giữa trục của thanh thép và mặt phẳng đi qua đường trực tâm thẳng đứng của bộ cảm biến vuông góc với mặt của nó là 15 mm ± 10 mm ở phần đối diện với đầu mỏ đốt đèn hàn (xem hình 1).
Để nghiêng bộ hướng gió kim loại (5.2) một góc 45o, đảm bảo để các giọt kim loại dễ dàng được tập hợp và để chúng va đập vào mẫu thử ở ngang mức của bộ cảm biến. Đặt khoảng cách giữa mặt ngoài của mẫu thử và đỉnh bộ dẫn hướng ở 1,5 mm ± 1 mm (xem hình 1).
Gắn chặt mẫu thử vào khung giữ mẫu bằng các kẹp sao cho bộ cảm biến được che toàn bộ. Gắn chặt (các) đối trọng. Nếu mẫu thử có mặt ngoài thì bề mặt này phải tiếp xúc với các giọt kim loại.
Đối với mỗi thử nghiệm, ghi số giọt, X, cần tăng nhiệt độ trên bề mặt trong của mẫu thử là 40K. Thử nghiệm tất cả 10 mẫu thử.
Để tránh làm tắc bộ dẫn hướng giọt kim loại bởi giọt đầu tiên (nó có thể là quá cỡ nếu thanh kim loại được làm nguội từ lần thử trước có một giọt gần rơi). Nên sử dụng một thanh gạt hoặc cửa chắn để làm lệch giọt đầu tiên đó khỏi phễu. Bắt đầu thử nghiệm với giọt tiếp theo.
8. Báo cáo kết quả
Báo cáo kết quả bao gồm các nội dung sau:
a) giới thiệu và mô tả mẫu vật liệu từ đó lấy mẫu thử; đặc biệt là có nêu mật độ bề mặt của nó theo g/m2;
b) theo tiêu chuẩn này;
c) các kết quả thu được trên mỗi mẫu thử và giá trị trung bình của các kết quả;
d) nêu các quan sát về bất kỳ hiện tượng đáng ghi nhớ nào (khói lửa v.v.);
e) ghi các chi tiết không quy định trong tiêu chuẩn này cũng như mọi vấn đề xảy ra ngẫu nhiên có thể tác động đến các kết quả thử hoặc chúng có thể hiện rõ hơn khả năng gây nguy hiểm.
Kích thước tính bằng milimet

Hình 1 - Cách bố trí thiết bị tạo giọt kim loại nóng chảy
Kích thước tính bằng milimet

Hình 2 - Thiết bị tạo giọt kim loại nóng chảy
Kích thước tính bằng milimet

Hình 3 - Thiết bị hướng giọt kim loại

Hình 4 - Giá đỡ bộ cảm biến

Hình 5 - Giá đỡ mẫu
Kích thước tính bằng milimet

Hình 6 - Mẫu thử
1) 1 kPa = 103 N/m2
Bạn chưa Đăng nhập thành viên.
Đây là tiện ích dành cho tài khoản thành viên. Vui lòng Đăng nhập để xem chi tiết. Nếu chưa có tài khoản, vui lòng Đăng ký tại đây!