- Tổng quan
- Nội dung
- VB gốc
- Tiếng Anh
- Hiệu lực
- VB liên quan
- Lược đồ
-
Nội dung hợp nhất
Tính năng này chỉ có tại LuatVietnam.vn. Nội dung hợp nhất tổng hợp lại tất cả các quy định còn hiệu lực của văn bản gốc và các văn bản sửa đổi, bổ sung, đính chính... trên một trang. Việc hợp nhất văn bản gốc và những văn bản, Thông tư, Nghị định hướng dẫn khác không làm thay đổi thứ tự điều khoản, nội dung.
Khách hàng chỉ cần xem Nội dung hợp nhất là có thể nắm bắt toàn bộ quy định hiện hành đang áp dụng, cho dù văn bản gốc đã qua nhiều lần chỉnh sửa, bổ sung.
- Tải về
Quyết định 456/QĐ-CHK 2022 Tài liệu Hướng dẫn an toàn khai thác tại sân bay
| Cơ quan ban hành: | Cục Hàng không Việt Nam |
Số công báo:
Số công báo là mã số ấn phẩm được đăng chính thức trên ấn phẩm thông tin của Nhà nước. Mã số này do Chính phủ thống nhất quản lý.
|
Đang cập nhật |
| Số hiệu: | 456/QĐ-CHK | Ngày đăng công báo: | Đang cập nhật |
| Loại văn bản: | Quyết định | Người ký: | Phạm Văn Hảo |
|
Ngày ban hành:
Ngày ban hành là ngày, tháng, năm văn bản được thông qua hoặc ký ban hành.
|
10/03/2022 |
Ngày hết hiệu lực:
Ngày hết hiệu lực là ngày, tháng, năm văn bản chính thức không còn hiệu lực (áp dụng).
|
Đã biết
|
|
Áp dụng:
Ngày áp dụng là ngày, tháng, năm văn bản chính thức có hiệu lực (áp dụng).
|
Đã biết
|
Tình trạng hiệu lực:
Cho biết trạng thái hiệu lực của văn bản đang tra cứu: Chưa áp dụng, Còn hiệu lực, Hết hiệu lực, Hết hiệu lực 1 phần; Đã sửa đổi, Đính chính hay Không còn phù hợp,...
|
Đã biết
|
| Lĩnh vực: | Giao thông, Hàng không |
TÓM TẮT QUYẾT ĐỊNH 456/QĐ-CHK
Ngày 10/3/2022, Cục Hàng không Việt Nam đã ra Quyết định 456/QĐ-CHK về việc ban hành Tài liệu Hướng dẫn các nội dung liên quan đến thiết kế, khai thác, bảo đảm an toàn khai thác tại sân bay. Dưới đây là một số nội dung đáng chú ý:
1. Mỗi sân bay phải có một điểm quy chiếu. Điểm quy chiếu sân bay đặt ở gần tâm hình học ban đầu hoặc tâm hình học thiết kế của sân bay với nguyên tắc không được thay đổi vị trí ban đầu đã chọn.
2. Cao độ và địa hình mặt Geoid ở vị trí cần xác định của sân bay được đo chính xác đến 0,5m và được thông báo tin tức hàng không theo quy định.
3. Phải đo hoặc mô tả các dữ liệu từng công trình trên sân bay như sau:
- Đường cất hạ cánh - góc phương vị thực chính xác đến 1% độ, hướng, chiều dài, chiều rộng, vị trí ngưỡng dịch chuyển làm tròn đến mét gần nhất, độ dốc, loại bề mặt, loại đường cất hạ cánh, đối với đường cất hạ cánh tiếp cận chính xác CAT I - hiện trạng tĩnh không;
- Dải bay, khu vực an toàn cuối đường cất hạ cánh, đoạn dừng: chiều dài, chiều rộng làm tròn đến mét gần nhất, loại bề mặt;
- Đường lăn: ký hiệu, chiều rộng, loại bề mặt;
- Sân đỗ tàu bay: loại bề mặt, các vị trí đỗ tàu bay;…
4. Tình trạng mặt đường cất hạ cánh phải được đánh giá và báo cáo thông qua báo cáo tình trạng mặt đường cất hạ cánh. Có 04 tình trạng mặt đường cất hạ cánh gồm:
- Đường cất hạ cánh khô;
- Đường cất hạ cánh ướt;
- Đường cất hạ cánh ướt trơn trượt;
- Đường cất hạ cánh có chất bám.
Quyết định này có hiệu lực kể từ ngày ký.
Xem chi tiết Quyết định 456/QĐ-CHK có hiệu lực kể từ ngày 10/03/2022
Tải Quyết định 456/QĐ-CHK
|
BỘ GIAO THÔNG VẬN TẢI Số: 456/QĐ-CHK |
CỘNG HÒA XÃ HỘI CHỦ NGHĨA VIỆT NAM Hà Nội, ngày 10 tháng 3 năm 2022 |
QUYẾT ĐỊNH
VỀ VIỆC BAN HÀNH TÀI LIỆU HƯỚNG DẪN CÁC NỘI DUNG LIÊN QUAN ĐẾN THIẾT KẾ,
KHAI THÁC, BẢO ĐẢM AN TOÀN KHAI THÁC TẠI SÂN BAY
(TU CHỈNH LẦN 2)
__________
CỤC TRƯỞNG CỤC HÀNG KHÔNG VIỆT NAM
Căn cứ Luật Hàng không dân dụng Việt Nam số 66/2006/QH11 ngày 29/6/2006; Luật sửa đổi, bổ sung một số điều của Luật Hàng không dân dụng Việt Nam số 61/2014/QH13 ngày 21/11/2014;
Căn cứ Nghị định số 66/2015/NĐ-CP ngày 12/8/2015 của Chính phủ quy định về Nhà chức trách hàng không;
Căn cứ Nghị định số 05/2021/NĐ-CP ngày 25/01/2021 của Chính phủ quy định về quản lý, khai thác cảng hàng không, sân bay;
Căn cứ Thông tư số 29/2021/TT-BGTVT ngày 30/11/2021 của Bộ trưởng Bộ Giao thông vận tải quy định chi tiết về quản lý, khai thác cảng hàng không, sân bay;
Căn cứ Quyết định số 2606/QĐ-BGTVT ngày 07/9/2017 của Bộ trưởng Bộ Giao thông vận tải quy định chức năng, nhiệm vụ, quyền hạn và cơ cấu tổ chức của Cục Hàng không Việt Nam; Quyết định số 1055/QĐ-BGTVT ngày 31/5/2019 về việc sửa đổi, bổ sung Quyết định số 2606/QĐ-BGTVT ngày 07/9/2017 của Bộ trưởng Bộ Giao thông vận tải quy định chức năng, nhiệm vụ, quyền hạn và cơ cấu tổ chức của Cục Hàng không Việt Nam;
Xét đề nghị của Trưởng phòng Quản lý cảng hàng không, sân bay,
QUYẾT ĐỊNH:
Điều 1. Ban hành kèm theo Quyết định này “Tài liệu Hướng dẫn các nội dung liên quan đến thiết kế, khai thác, bảo đảm an toàn khai thác tại sân bay” (được tu chỉnh lần 2 để cập nhật điều chỉnh bỏ các nội dung đã được quy định tại văn bản quy phạm pháp luật, bỏ các nội dung hết thời gian hiệu lực thực hiện, cập nhật theo các quy định hiện hành). Tài liệu hướng dẫn được đăng tải trên Trang thông tin điện tử của Cục Hàng không Việt Nam tại mục “Văn bản”.
Điều 2. Quyết định này có hiệu lực kế từ ngày ký và thay thế Quyết định số 336/QĐ-CHK ngày 03/02/2021 của Cục trưởng Cục Hàng không Việt Nam về việc ban hành Tài liệu Hướng dẫn thực hiện các quy định về an toàn khai thác sân bay và Quyết định số 1368/QĐ-CHK ngày 07/8/2018 của Cục trưởng Cục Hàng không Việt Nam ban hành hướng dẫn quy tắc đặt tên các đường lăn, sân đỗ tàu bay tại cảng hàng không, sân bay.
Điều 3. Các ông/bà: Tổng giám đốc Tổng công ty Cảng hàng không Việt Nam - CTCP; Tổng giám đốc Tổng công ty Quản lý bay Việt Nam; Tổng giám đốc Cảng hàng không quốc tế Vân Đồn; Giám đốc Cảng vụ hàng không miền Bắc, miền Trung, miền Nam; Trưởng phòng Quản lý cảng hàng không, sân bay; Thủ trưởng các cơ quan, đơn vị liên quan chịu trách nhiệm thi hành Quyết định này./.
|
Nơi nhận: |
KT. CỤC TRƯỞNG |
HƯỚNG DẪN
CÁC NỘI DUNG LIÊN QUAN ĐẾN THIẾT KẾ, KHAI THÁC, BẢO ĐẢM AN TOÀN KHAI THÁC TẠI SÂN BAY
(Ban hành kèm theo Quyết định số 456/QĐ-CHK ngày 10/3/2022 của Cục trưởng Cục Hàng không Việt Nam)
(Tu chỉnh lần 2)
MỤC LỤC
CĂN CỨ PHÁP LÝ
CHƯƠNG I: QUY ĐỊNH CHUNG
Điều 1. Mục tiêu, phạm vi điều chỉnh và đối tượng áp dụng
Điều 2. Giải thích từ ngữ, chữ viết tắt
CHƯƠNG II: HƯỚNG DẪN CÁC NỘI DUNG LIÊN QUAN ĐẾN THIẾT KẾ, KHAI THÁC, BẢO ĐẢM AN TOÀN KHAI THÁC TẠI SÂN BAY THEO ANNEX 14
MỤC 1: THÔNG SỐ SÂN BAY
Điều 3. Các dữ liệu hàng không
Điều 4. Điểm quy chiếu sân bay
Điều 5. Mức cao sân bay và đường cất hạ cánh
Điều 6. Nhiệt độ không khí tham chiếu của sân bay
Điều 7. Kích thước sân bay và thông tin liên quan
Điều 8. Sức chịu tải của mặt đường sân bay (áp dụng đến ngày 27/11/2024)
Điều 8A. Sức chịu tải của mặt đường sân bay (áp dụng từ ngày 28/11/2024)
Điều 9. Vị trí kiểm tra đo độ cao trước khi bay
Điều 10. Các cự ly công bố
Điều 11. Tình trạng khu vực hoạt động tại sân bay và các hạ tầng liên quan
Điều 12. Tình trạng mặt đường cất hạ cánh để sử dụng trong báo cáo
Điều 13. Di dời tàu bay mất khả năng di chuyển và khẩn nguy cứu nạn
Điều 14. Hệ thống chỉ thị độ dốc tiếp cận bằng mắt
MỤC 2: ĐƯỜNG CẤT HẠ CÁNH
Điều 15. Số lượng và hướng đường cất hạ cánh
Điều 16. Vị trí ngưỡng đường CHC
Điều 17. Chiều dài thực tế của đường CHC
Điều 18. Chiều rộng đường CHC
Điều 19. Độ dốc dọc đường CHC
Điều 20. Đảm bảo tầm nhìn trên đường CHC trong trường hợp đường CHC không tránh được sự thay đổi độ dốc
Điều 21. Khoảng cách giữa các điểm thay đổi độ dốc đường CHC
Điều 22. Độ dốc ngang đường CHC
Điều 23. Bề mặt đường cất hạ cánh
Điều 24. Lề đường CHC
Điều 25. Sân quay đầu đường CHC
Điều 26. Dải bay
Điều 27. Vật thể nằm trên dải bay
Điều 28. San gạt dải bay
Điều 29. Độ dốc của dải bay
Điều 30. Sức chịu tải dải bay
Điều 31. Khu vực an toàn cuối đường CHC (Runway end safety area - RESA)
Điều 32. Khoảng trống (clearway)
Điều 33. Đoạn dừng
Điều 34. Khu vực hoạt động của thiết bị vô tuyến đo độ cao
MỤC 3: ĐƯỜNG LĂN
Điều 35. Quy định chung
Điều 36. Chiều rộng đường lăn
Điều 37. Các đoạn vòng của đường lăn
Điều 38. Vị trí giao nhau giữa đường lăn với đường lăn, đường cất hạ cánh hoặc sân đỗ
Điều 39. Các khoảng cách đối với đường lăn
Điều 40. Độ dốc của đường lăn
Điều 41. Sức chịu tải và bề mặt của đường lăn
Điều 42. Đường lăn thoát nhanh
Điều 43. Đường lăn trên cầu vượt
Điều 44. Lề đường lăn
Điều 45. Dải lăn (taxiway strip)
Điều 46. Sân chờ, vị trí chờ lên đường CHC, vị trí chờ trung gian và vị trí chờ tại đường công vụ
MỤC 4: SÂN ĐỖ TÀU BAY
Điều 47. Yêu cầu chung của sân đỗ tàu bay
Điều 48. Khoảng cách an toàn giữa các vị trí đỗ tàu bay
Điều 49. Vị trí đỗ tàu bay cách ly (biệt lập)
MỤC 5. ĐẶT TÊN ĐƯỜNG CHC, ĐƯỜNG LĂN, SÂN ĐỖ TÀU BAY
Điều 50. Đặt tên đường CHC
Điều 51. Đặt tên đường lăn
Điều 52. Quy tắc đặt tên các sân đỗ, vị trí đỗ tàu bay
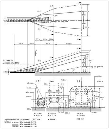
MỤC 6: TĨNH KHÔNG SÂN BAY VÀ CÁC BỀ MẶT GIỚI HẠN
Điều 53. Các bề mặt giới hạn chướng ngại vật (OLS)
Điều 54. Bề mặt ngang ngoài
Điều 55. Bề mặt hình nón
Điều 56. Bề mặt ngang trong
Điều 57. Bề mặt tiếp cận
Điều 58. Bề mặt tiếp cận trong
Điều 59. Bề mặt chuyển tiếp
Điều 60. Bề mặt chuyển tiếp trong
Điều 61. Bề mặt hủy bỏ hạ cánh
Điều 62. Bề mặt lấy độ cao cất cánh
Điều 63. Giới hạn chướng ngại vật đối với đường CHC không có thiết bị
Điều 64. Giới hạn chướng ngại vật đối với đường CHC tiếp cận giản đơn
Điều 65. Giới hạn chướng ngại vật đối với đường CHC tiếp cận chính xác
Điều 66. Yêu cầu giới hạn chướng ngại vật đối với đường CHC dùng cho cất cánh
Điều 67. Yêu cầu về vật thể ngoài các bề mặt giới hạn chướng ngại vật
Điều 68. Những vật thể khác
MỤC 7: HỆ THỐNG THIẾT BỊ DẪN ĐƯỜNG BẰNG MẮT
Điều 69. Ống gió
Điều 70. Thiết bị chỉ hướng hạ cánh
Điều 71. Đèn tín hiệu
Điều 72. Các bảng tín hiệu và các khu vực tín hiệu
Điều 73. Sơn tín hiệu
Điều 74. Yêu cầu chung đối với hệ thống đèn phụ trợ dẫn đường hàng không
Điều 75. Yêu cầu đối với hệ thống đèn dự phòng
Điều 76. Yêu cầu chung đối với đèn mốc dẫn đường hàng không
Điều 77. Yêu cầu đối với đèn tín hiệu sân bay
Điều 78. Yêu cầu đối với đèn định vị sân bay
Điều 79. Yêu cầu chung đối với hệ thống đèn tiếp cận
Điều 80. Yêu cầu đối với hệ thống đèn tiếp cận giản đơn
Điều 81. Yêu cầu đối với hệ thống đèn tiếp cận chính CAT I
Điều 82. Yêu cầu đối với hệ thống đèn tiếp cận chính xác CAT II và III
Điều 83. Hệ thống đèn chỉ dẫn độ dốc tiếp cận bằng mắt (VASIS)
Điều 84. Yêu cầu đối với hệ thống PAPI và APAPI
Điều 85. Yêu cầu đối với đèn hướng dẫn bay vòng
Điều 86. Yêu cầu đối với hệ thống đèn dẫn vào đường CHC
Điều 87. Yêu cầu đối với đèn đánh dấu ngưỡng đường CHC
Điều 88. Yêu cầu đối với đèn lề đường CHC
Điều 89. Yêu cầu đối với đèn ngưỡng đường CHC
Điều 90. Yêu cầu đối với đèn cánh ngang đường CHC
Điều 91. Yêu cầu đối với đèn cuối đường CHC (xem Hình II-22)
Điều 92. Yêu cầu đối với đèn tim đường CHC
Điều 93. Yêu cầu chung đối với đèn vùng chạm bánh đường CHC
Điều 94. Yêu cầu đối với đèn vùng chạm bánh giản đơn
Điều 95. Yêu cầu đối với đèn nhận biết đường lăn thoát nhanh
Điều 96. Yêu cầu đối với đèn dừng
Điều 97. Yêu cầu đối với đèn tim đường lăn
Điều 98. Yêu cầu đối với đèn lề đường lăn
Điều 99. Yêu cầu đối với đèn sân quay đầu đường CHC
Điều 100. Yêu cầu đối với đèn vạch dừng
Điều 101. Yêu cầu đối với đèn vị trí chờ lăn trung gian
Điều 102. Yêu cầu đối với đèn bảo vệ đường CHC
Điều 103. Yêu cầu đèn chiếu sáng sân đỗ tàu bay
Điều 104. Yêu cầu đối với hệ thống dẫn đỗ tàu bay (VDGS)
Điều 105. Yêu cầu đối với đèn chỉ phương vị
Điều 106. Đèn chỉ dẫn di chuyển ở vị trí đỗ tàu bay
Điều 107. Hệ thống dẫn đỗ tàu bay A-VDGS
Điều 108. Đèn chỉ dẫn di chuyển ở vị trí đỗ tàu bay
Điều 109. Đèn vị trí chờ trên đường lăn
Điều 110. Hàng đèn cấm vào
Điều 111. Đèn trạng thái đường CHC
Điều 112. Khái quát về mốc
Điều 113. Mốc cạnh đường CHC không có mặt đường nhân tạo
Điều 114. Mốc cạnh đoạn dừng
Điều 115. Mốc cạnh dùng cho đường CHC khó nhận biết
Điều 116. Mốc cạnh đường lăn
Điều 117. Mốc tim đường lăn
Điều 118. Mốc cạnh đường lăn không có mặt đường nhân tạo
Điều 119. Mốc đường biên
MỤC 8: ĐÁNH DẤU CẢNH BÁO CHƯỚNG NGẠI VẬT NHÌN BẰNG MẮT
Điều 120. Đánh dấu cảnh báo chướng ngại vật nhìn bằng mắt
Điều 121. Quy định chung đánh dấu/hoặc chiếu sáng các vật thể
Điều 122. Đánh dấu hoặc chiếu sáng vật thể di dộng
Điều 123. Đánh dấu và chiếu sáng đối với vật thể cố định
Điều 124. Chiếu sáng các vật thể có độ cao dưới 45 m so với mặt đất
Điều 125. Chiếu sáng vật thể có chiều cao từ 45 m đến cao dưới 150 m so với mặt đất
Điều 126. Chiếu sáng vật thể có chiều cao từ 150 m trở lên trên mặt đất
Điều 127. Tuabin gió
Điều 128. Đánh dấu và cảnh báo trên dây điện trên cao, dây cáp và tháp
MỤC 9: ĐÁNH DẤU CẢNH BÁO KHU VỰC HẠN CHẾ BẰNG MẮT
Điều 129. Đóng cửa đường cất hạ cánh và đường lăn hoặc từng bộ phận của chúng
Điều 130. Các bề mặt không chịu tải
Điều 131. Khu vực trước ngưỡng đường cất hạ cánh
Điều 132. Các khu vực không sử dụng
MỤC 10: HỆ THỐNG ĐIỆN
Điều 133. Hệ thống cấp điện cho thiết bị phụ trợ dẫn đường hàng không
Điều 134. Quy định thiết kế hệ thống điện
Điều 135. Giám sát hệ thống đèn
MỤC 11: KHẨN NGUY CỨU HỎA TRỪ KHẨN NGUY ĐỐI PHÓ VỚI TÌNH HUỐNG CAN THIỆP BẤT HỢP PHÁP
Điều 136. Lập kế hoạch khẩn nguy sân bay
Điều 137. Cứu hỏa sân bay
Điều 138. Di dời tàu bay mất khả năng di chuyển
Điều 139. Giảm rủi ro do động vật hoang dã
Điều 140. Dịch vụ điều hành sân đỗ tàu bay
Điều 141. Phục vụ mặt đất cho tàu bay
Điều 142. Hoạt động của phương tiện phục vụ mặt đất trong sân bay
Điều 143. Hệ thống chỉ dẫn và kiểm soát di chuyển trên mặt đất
Điều 144. Vị trí, xây dựng và lắp đặt trang thiết bị trên các khu vực khai thác
Điều 145. Hệ thống cảnh báo xâm nhập đường cất hạ cánh chủ động
CHƯƠNG III: DUY TRÌ ĐIỀU KIỆN KHAI THÁC SÂN BAY
Điều 146. Quy định chung
Điều 147. Loại bỏ các chất bám
Điều 148. Các lớp bảo vệ mặt đường CHC
Điều 149. Các phương tiện nhìn bằng mắt
PHỤ LỤC 1: Màu sắc cho đèn hàng không mặt đất, sơn tín hiệu, biển báo và bảng hiệu
1. Khái quát
2. Màu sắc cho đèn hàng không mặt đất
3. Màu sắc cho sơn tín hiệu, biển báo và bảng hiệu.
PHỤ LỤC 2: Các đặc tính đèn hàng không mặt đất
PHỤ LỤC 3: Vị trí đèn trên chướng ngại vật
PHỤ LỤC 4. Yêu cầu thiết kế các biển báo chỉ dẫn lăn
PHỤ LỤC A: Hướng dẫn bổ sung
1. Số lượng, vị trí và hướng đường cất hạ cánh
2. Khoảng trống và đoạn dừng
3. Tính các cự ly công bố
4. Các độ dốc trên đường cất hạ cánh
5. Độ bằng phẳng của bề mặt đường cất hạ cánh
6. Báo cáo tình trạng mặt đường CHC
7. Đặc tính thoát nước của khu vực di chuyển và khu vực lân cận xung quanh
8. Dải bay
9. Khu vực an toàn cuối đường CHC
10. Vị trí của ngưỡng đường cất hạ cánh
11. Hệ thống đèn tiếp cận
12.Thứ tự ưu tiên lắp đặt hệ thống chỉ dẫn độ dốc tiếp cận nhìn bằng mắt
13. Đèn tín hiệu cảnh báo khu vực không sử dụng
14. Đèn nhận biết đường lăn thoát nhanh
15. Kiểm soát cường độ chiếu sáng của đèn tiếp cận và đèn đường cất hạ cánh
16. Khu vực tín hiệu
17. Công tác khẩn nguy và cứu hỏa
18. Người điều khiển, vận hành phương tiện, thiết bị hàng không hoạt động thường xuyên tại khu vực hạn chế cảng hàng không, sân bay (sau đây gọi tắt là người điều khiển phương tiện)
19. Phương pháp ACN-PCN công bố sức chịu tải của mặt đường sân bay (áp dụng đến ngày 27/11/2024)
19A. Phương pháp ACR-PCR công bố sức chịu tải của mặt đường sân bay (áp dụng từ ngày 28/11/2024)
20. Hệ thống tự động cảnh báo xâm nhập đường CHC (ARIWS)
21. Hướng dẫn thiết lập đường lăn để giảm thiểu khả năng xâm nhập đường CHC
22. Dữ liệu bản đồ sân bay
PHỤ LỤC B: Các bề mặt giới hạn chướng ngại vật
PHỤ LỤC C: Hệ thống biển báo
CĂN CỨ PHÁP LÝ
Căn cứ Luật hàng không dân dụng Việt Nam ngày 29 tháng 6 năm 2006 và Luật sửa đổi, bổ sung một số điều của Luật hàng không dân dụng Việt Nam ngày 21 tháng 11 năm 2014;
Căn cứ Nghị định số 66/2015/NĐ-CP ngày 12 tháng 8 năm 2015 của Chính phủ quy định về nhà chức trách hàng không;
Căn cứ Nghị định số 05/2021/NĐ-CP ngày 25 tháng 01 năm 2021 của Chính phủ về quản lý, khai thác cảng hàng không, sân bay;
Căn cứ Nghị định số 32/2016/NĐ-CP ngày 06 tháng 5 năm 2016 của Chính phủ quy định về quản lý độ cao chướng ngại vật hàng không và các trận địa quản lý, bảo vệ vùng trời tại Việt Nam;
Căn cứ Nghị định số 125/2015/NĐ-CP ngày 04 tháng 12 năm 2015 của Chính phủ quy định chi tiết về quản lý hoạt động bay;
Căn cứ Thông tư số 34/2014/TT-BGTVT ngày 11 tháng 8 năm 2014 của Bộ trưởng Bộ Giao thông vận tải ban hành quy chuẩn kỹ thuật quốc gia về sơn tín hiệu trên đường cất hạ cánh, đường lăn, sân đỗ tàu bay;
Căn cứ Thông tư số 19/2017/TT-BGTVT ngày 06 tháng 6 năm 2017 của Bộ trưởng Bộ Giao thông vận tải quy định về quản lý và bảo đảm hoạt động bay; Thông tư số 32/2021/TT-BGTVT ngày 14 tháng 12 năm 2021 của Bộ trưởng Bộ Giao thông vận tải sửa đổi, bổ sung một số điều của Thông tư số 19/2017/TT-BGTVT ngày 06 tháng 6 năm 2017 của Bộ trưởng Bộ Giao thông vận tải quy định về quản lý và bảo đảm hoạt động bay;
Căn cứ Thông tư 29/2021/TT-BGTVT ngày 30 tháng 11 năm 2021 của Bộ trưởng Bộ Giao thông vận tải quy định chi tiết về quản lý cảng hàng không, sân bay.
CHƯƠNG I: QUY ĐỊNH CHUNG
Điều 1. Mục tiêu, phạm vi điều chỉnh và đối tượng áp dụng
1. Mục tiêu:
- Ban hành hướng dẫn thực hiện các quy định về an toàn khai thác đường cất hạ cánh, đường lăn, sân đỗ tàu bay theo quy định tại khoản 10 Điều 8 Nghị định 05/2021/NĐ-CP và khoản 1 Điều 4 Thông tư 29/2021/TT-BGTVT.
- Rà soát và thông báo cho ICAO sự khác biệt giữa các quy định của pháp luật Việt Nam về khai thác cảng hàng không, sân bay và tiêu chuẩn của ICAO theo quy định tại khoản 13 Điều 4 Thông tư 29/2021/TT-BGTVT.
- Hướng dẫn việc thực hiện quy định, nghị quyết, tiêu chuẩn, khuyến cáo thực hành của Tổ chức Hàng không dân dụng quốc tế theo quy định tại Điều 11 Nghị định 66/2015/NĐ-CP.
2. Phạm vi áp dụng: Tại các cảng hàng không của Việt Nam có hoạt động bay dân dụng.
3. Đối tượng áp dụng: Hướng dẫn này áp dụng đối với hoạt động thiết kế, khai thác, cung cấp dịch vụ tại sân bay; người, phương tiện hoạt động tại cảng hàng không.
4. Khả năng áp dụng
a) Việc giải thích, trích dẫn để giải thích một số thông số kỹ thuật trong Hướng dẫn nếu có sự sai lệch so với các văn bản quy phạm pháp luật thì áp dụng theo văn bản quy phạm pháp luật; nếu có sự sai khác theo các tiêu chuẩn và khuyến cáo thực hành, hướng dẫn của ICAO thì áp dụng theo các tiêu chuẩn, khuyến cáo thực hành và hướng dẫn của ICAO.
b) Các thông số kỹ thuật, trừ khi có quy định khác trong trường hợp cụ thể, sẽ được áp dụng thống nhất cho tất cả các cảng hàng không khai thác dân dụng tại Việt Nam theo các yêu cầu của Điều 15 của Công ước;
c) Màu được đề cập trong Hướng dẫn này, các thông số kỹ thuật cho màu đó được nêu trong Phụ lục 1.
Điều 2. Giải thích từ ngữ, chữ viết tắt
1. Báo cáo tình trạng mặt đường CHC (Runway condition report - RCR): Đã được quy định tại khoản 1 Điều 2 Thông tư 29/2021/TT-BGTVT, theo đó là báo cáo được chuẩn hóa toàn diện liên quan đến tình trạng mặt đường cất hạ cánh và ảnh hưởng của nó đến hoạt động cất cánh và hạ cánh của tàu bay.
2. Biển báo (Sign):
a) Biển báo thông tin cố định (Fixed message sign): Biển báo chỉ thể hiện một thông tin.
b) Biển báo thông tin thay đổi - Biển báo điện tử (Variable message sign): Biển báo thông tin thay đổi có khả năng thể hiện một vài thông tin dự kiến trước hoặc có thể không có thông tin.
3. Các cự ly công bố (Declared Distances):
a) Cự ly chạy đà cất cánh (Take-off run available - TORA): Phần chiều dài thực của đoạn đường CHC được công bố và thích hợp cho tàu bay tính toán chạy đà trên mặt đất để cất cánh.
b) Cự ly có thể cất cánh (Take-off distance available - TODA): Phần chiều dài thực của đoạn đường chạy đà có thể (TORA) cộng với chiều dài của khoảng trống nếu có.
c) Cự ly có thể dừng khẩn cấp (Accelerate-stop distance available - ASDA): Phần chiều dài thực của đoạn đường chạy đà có thể (TORA) cộng với chiều dài của đoạn dừng (stopway), hay còn gọi là dải hãm đầu.
d) Cự ly có thể hạ cánh (Landing distance available - LDA): Phần chiều dài hạ cánh thực của đoạn đường CHC được công bố, thích hợp cho tàu bay tính toán hạ cánh chạy trên mặt đất.
4. Cảng hàng không (Airport): Cảng hàng không được định nghĩa theo khoản 1 Điều 47 của Luật HKDDVN, cụ thể: Cảng hàng không là khu vực xác định, bao gồm sân bay, nhà ga và trang thiết bị, công trình cần thiết khác được sử dụng cho tàu bay bay đến, bay đi và thực hiện vận chuyển hàng không.
5. Cất cánh song song độc lập (Independent parallel departures): Cất cánh đồng thời từ các đường CHC có thiết bị song song hay gần song song.
6. Cơ sở dữ liệu bản đồ sân bay (Aerodrome mapping database - AMDB): Một tập hợp dữ liệu bản đồ sân bay được tổ chức và sắp xếp thành một tập dữ liệu có cấu trúc.
7. Cường độ hiệu dụng (Effective intensity): Cường độ hiệu dụng của một đèn nháy bằng cường độ của một đèn sáng liên tục cùng màu sắc tạo ra cùng một tầm nhìn trong cùng điều kiện quan sát.
8. Chất lượng dữ liệu (Data quality): Cấp độ hoặc mức độ tin cậy mà dữ liệu được cung cấp đáp ứng yêu cầu người sử dụng dữ liệu về độ chính xác, độ phân giải, tính toàn vẹn (hoặc mức độ đảm bảo tương đương), khả năng truy nguyên, tính kịp thời, sự đầy đủ và định dạng.
9. Chỉ số phân cấp mặt đường (Pavement classification number - PCN) (áp dụng đến ngày 27/11/2024): Số biểu thị khả năng chịu lực của mặt đường.
10. Chỉ số phân cấp mặt đường (Pavement classification rating - PCR) (áp dụng từ ngày 28/11/2024): Số biểu thị khả năng chịu lực của mặt đường.
11. Chỉ số phân cấp tàu bay (Aircraft classification number - ACN) (áp dụng đến ngày 27/11/2024): Số biểu thị tác động tương đối của tàu bay lên mặt đường đặt trên nền đường có cấp chịu lực cụ thể.
12. Chỉ số phân cấp tàu bay (Aircraft classification rating - ACR) (áp dụng từ ngày 28/11/2024): Số biểu thị tác động tương đối của tàu bay lên mặt đường đặt trên nền đường có cấp chịu lực cụ thể.
13. Chiều cao trực tâm (Orthometric height): Chiều cao của một điểm trên mặt Geoid, được so sánh với mực nước biển trung bình MLS.
14. Chiều dài đường cất hạ cánh tham chiếu của tàu bay (Aeroplane reference field length): Chiều dài đường CHC tối thiểu cần thiết cho tàu bay cất cánh với tải trọng cất cánh tối đa ở độ cao mực nước biển, điều kiện khí quyển tiêu chuẩn, lặng gió và độ dốc đường CHC bằng không, như ghi trong sổ tay bay của tàu bay được cơ quan có thẩm quyền chứng nhận, hoặc các số liệu tương tự do nhà sản xuất tàu bay cung cấp. Chiều dài CHC tham chiếu là chiều dài CHC cân bằng thích hợp cho tàu bay tính toán được chấp nhận hoặc là cự ly cất cánh có thể trong những trường hợp khác.
Ghi chú: Xem Phụ lục A phần 2 trình bày khái niệm chiều dài cân bằng của dải bay
15. Chướng ngại vật - CNV (Obstacle): Đã được quy định tại khoản 1 Điều 3 Nghị định 32/2016/NĐ-CP, theo đó là những vật thể tự nhiên hoặc nhân tạo (cố định hoặc di động) nằm trên mặt đất, mặt nước hoặc công trình nhân tạo có thể ảnh hưởng đến bảo đảm an toàn cho hoạt động bay hoặc hoạt động bình thường của các trận địa quản lý, bảo vệ vùng trời và các đài, trạm vô tuyến điện hàng không. Chúng có thể:
a) Nằm trên khu vực dự định cho tàu bay hoạt động trên mặt đất, hoặc
b) Nhô lên khỏi mặt phẳng giới hạn an toàn bay, hoặc
c) Đứng bên ngoài những bề mặt an toàn nhưng được đánh giá là nguy hiểm cho giao thông hàng không.
16. Chương trình an toàn (Safety programme): Chương trình tích hợp các quy định và các hoạt động nhằm cải thiện an toàn bay.
17. Dải bay (Runway strip): Đã được quy định tại khoản 3 Điều 2 Thông tư 29/2021/TT-BGTVT, theo đó là khu vực được xác định bao gồm đường cất hạ cánh và đoạn dừng (nếu có) với mục đích giảm hư hỏng tàu bay khi vượt ra khỏi đường cất hạ cánh và bảo đảm an toàn cho tàu bay bay qua phía trên đường cất hạ cánh khi hạ cánh hoặc cất cánh.
18. Dải lăn (Taxiway strip): Đã được quy định tại khoản 4 Điều 2 Thông tư 29/2021/TT-BGTVT, theo đó là khu vực bao gồm đường lăn và phần mở rộng để bảo vệ tàu bay hoạt động trên đường lăn và giảm nguy cơ hư hại khi tàu bay bị lăn ra ngoài đường lăn.
19. Dấu hiệu nhận biết sân bay (Aerodrome identification sign): Dấu hiệu trên sân bay được dùng để nhận biết sân bay từ trên không.
20. Dịch vụ điều hành sân đỗ tàu bay (Apron management service): Dịch vụ nhằm điều hành tàu bay và phương tiện cơ giới hoạt động, di chuyển trên sân đỗ tàu bay.
21. Dữ liệu bản đồ sân bay (Aerodrome mapping data - AMD): Dữ liệu được thu thập cho mục đích biên soạn thông tin bản đồ sân bay sử dụng cho ngành hàng không.
Ghi chú: Dữ liệu bản đồ sân bay được thu thập cho các mục đích bao gồm cải thiện nhận thức của người dùng, hoạt động điều hướng bề mặt, đào tạo, lập biểu đồ và lập quy hoạch.
22. Dữ liệu trắc địa (Geodetic datum): Một tập hợp tối thiểu những số liệu cần thiết cho việc xác định vị trí và hướng của hệ thống định vị cục bộ so với hệ thống định vị chung toàn cầu.
23. Đèn barret (Barrette): Còn có thể gọi là thanh sáng, đó là dãy ba hay nhiều đèn hàng không mặt đất đặt gần nhau theo hàng ngang sao cho từ xa chúng được nhìn thấy như một dải sáng ngắn.
24. Đèn cảnh báo nguy hiểm (Hazard beacon): Đèn tín hiệu giao thông hàng không dùng để cảnh báo mối nguy hiểm đối với giao thông hàng không.
25. Đèn chiếu sáng cố định (Fixed light): Đèn có cường độ chiếu sáng không đổi khi nhìn từ một điểm cố định.
26. Đèn định vị hàng không (Identification beacon): Đèn tín hiệu giao thông hàng không phát tín hiệu mã phục vụ cho việc xác định một điểm cần thiết.
27. Đèn gác đường CHC (Runway guard light): Hệ thống đèn dùng để thông báo cho phi công hoặc lái xe biết sắp vào đường CHC đang hoạt động.
28. Đèn nháy (Capacitor discharge light): Loại đèn chiếu sáng trong thời gian ngắn có cường độ cao được tạo ra nhờ sự phóng điện cao áp qua chất khí chứa trong ống.
29. Đèn tín hiệu giao thông hàng không (Aeronautical beacon): Đèn tín hiệu hàng không trên mặt đất sáng liên tục hoặc không liên tục được nhìn thấy từ mọi hướng dùng để đánh dấu một điểm cụ thể trên mặt đất.
30. Đèn tín hiệu giao thông hàng không mặt đất (Aeronautical ground light): Đèn tín hiệu chuyên dùng cho mục đích phụ trợ dẫn đường hàng không mà không phải là đèn gắn trên tàu bay.
31. Đèn tín hiệu sân bay (Aerodrome beacon): Đèn tín hiệu giao thông hàng không được dùng để xác định vị trí sân bay từ trên không.
32. Địa hình (độ lồi lõm) của mặt Geoid (Geoid undulation): Khoảng cách của điểm thuộc mặt Geoid ở cao hơn (dương) hoặc thấp hơn (âm) so với elipsoid toán học chuẩn.
Ghi chú: Theo hệ thống đo đạc toàn cầu - 1984 (World Geodetic System - WSG-84): elipsoid xác định sự khác nhau giữa độ cao elipsoid WGS-84 và độ cao trực tâm (orthometrical) cho ta khái niệm địa hình (độ lồi lõm) của mặt Geoid WGS-84.
33. Điểm đen (Hot spot): Đã được quy định tại khoản 10 Điều 2 Thông tư 29/2021/TT-BGTVT, theo đó là một vị trí trên khu vực hoạt động của sân bay đã từng hoặc tiềm ẩn nguy cơ xảy ra va chạm hoặc xâm nhập đường cất hạ cánh, là nơi tổ lái và người điều khiển phương tiện cần tăng cường chú ý, quan sát.
34. Điểm quy chiếu sân bay (Aerodrome reference point): Điểm đánh dấu vị trí địa lý của sân bay, còn gọi là điểm chuẩn sân bay.
35. Đoạn dừng (Stopway): Đã được quy định tại khoản 5 Điều 2 Thông tư 29/2021/TT-BGTVT, theo đó là một đoạn đường được xác định trên mặt đất hình chữ nhật ở cuối chiều dài đoạn đường chạy đà có thể công bố, được chuẩn bị cho tàu bay dừng trong trường hợp cất cánh bỏ dở, còn có thể gọi là dải hãm đầu.
36. Độ cao Elipsoid (Ellipsoid height (Geodetic height)): Độ cao so với mặt độ cao trắc địa chuẩn (độ cao elipsoid chuẩn) được đo theo pháp tuyến xuyên từ mặt elipsoid qua điểm xét (Còn gọi là độ cao trắc địa).
37. Độ chính xác (Accuracy): Sự phù hợp giữa giá trị tính toán hoặc đo đạc so với giá trị thực.
38. Độ chính xác dữ liệu (Data accuracy): Mức độ gần giữa giá trị ước tính hoặc đo lường với giá trị thực.
39. Độ lệch kim la bàn của đài (Station declination): Độ lệch giữa tia không độ của đài dẫn đường đa hướng sóng cực ngắn (VOR) và hướng bắc thực, được xác định ở thời điểm hiệu chỉnh đài VOR.
40. Độ tin cậy của hệ thống đèn (Lighting system reliability): Xác suất đảm bảo hệ thống đèn làm việc bình thường với giới hạn dung sai qui định.
41. Đường công vụ (Road): Đã được quy định tại khoản 8 Điều 2 Thông tư
29/2021/TT-BGTVT, theo đó là tuyến đường nằm trong khu vực hoạt động để dùng cho phương tiện cơ giới.
42. Đường CHC (Runway): Đã được quy định tại khoản 7 Điều 2 Thông tư 29/2021/TT-BGTVT, theo đó là khu vực hình chữ nhật được xác định trên mặt đất tại khu bay dùng cho tàu bay cất cánh và hạ cánh.
43. Đường CHC cất cánh (Take - off runway): Đường CHC chỉ sử dụng cho tàu bay cất cánh.
44. Đường CHC có thiết bị (Instrument runway): Một trong các loại đường CHC sau đây dùng cho tàu bay hoạt động theo qui tắc tiếp cận có thiết bị:
a) Đường CHC tiếp cận giản đơn (Non-precision approach runway): Đường CHC được trang bị các phương tiện phụ trợ hạ cánh bằng mắt và không bằng mắt (bằng dụng cụ) để phục vụ cho việc hạ cánh theo phương thức tiếp cận có thiết bị loại A và trong tầm nhìn xa không dưới 1000 m.
b) Đường CHC tiếp cận chính xác CAT I (Precision approach runway, category I): Đường CHC được trang bị các phương tiện phụ trợ hạ cánh bằng mắt và không bằng mắt (bằng dụng cụ) để phục vụ cho việc hạ cánh theo phương thức tiếp cận có thiết bị loại B với độ cao quyết định (DH) không dưới 60 m (200 ft) và hoặc trong tầm nhìn không dưới 800m hoặc tầm nhìn đường CHC không dưới 550 m.
c) Đường CHC tiếp cận chính xác CAT II (Precision approach runway, category II): Đường CHC được trang bị hệ thống hệ thống hạ cánh bằng mắt và không bằng mắt (bằng dụng cụ) để phục vụ cho việc hạ cánh theo phương thức tiếp cận có thiết bị loại B với độ cao quyết định (DH) dưới 60 m (200 ft) nhưng không dưới 30 m (100 ft) và tầm nhìn đường CHC không dưới 300 m.
d) Đường CHC tiếp cận chính xác CAT III (Precision approach runway, category III): Đường CHC được trang bị hệ thống hạ cánh bằng mắt và không bằng mắt (bằng dụng cụ) để phục vụ cho việc hạ cánh theo phương thức tiếp cận có thiết bị loại B với độ cao quyết định (DH) dưới 30 m (100 ft) hoặc không có độ cao quyết định và tầm nhìn đường CHC dưới 300 m, hoặc không giới hạn tầm nhìn đường CHC.
Ghi chú 1: Các phương tiện phụ trợ hạ cánh bằng mắt không nhất thiết phải phù hợp với quy mô của các phương tiện phụ trợ hạ cánh không bằng mắt. Tiêu chí để lựa chọn các phương tiện phụ trợ hạ cánh bằng mắt là các điều kiện khai thác thực tế.
Ghi chú 2: Tham chiếu Annex 6 - Khai thác tàu bay cho các loại phương thức tiếp cận bằng thiết bị.
45. Đường CHC chính (Primary runway): Đường CHC được sử dụng ưu tiên hơn so với các đường CHC khác khi mọi điều kiện đều cho phép.
46. Đường CHC gần song song (Near - parallel runways): Những đường CHC không cắt nhau có các tim kéo dài với góc hội tụ/phân kỳ bằng hoặc nhỏ hơn 15 độ.
47. Đường CHC không có trang thiết bị (Non - instrument runway): Đường CHC dùng cho tàu bay hoạt động theo quy tắc bay bằng mắt.
48. Đường CHC tiếp cận chính xác (Precision approach runway): Xem đường CHC có thiết bị.
49. Đường lăn (Taxiway): Đã được quy định tại khoản 9 Điều 2 Thông tư 29/2021/TT-BGTVT, theo đó là khu vực được xác định trong khu bay dùng cho tàu bay lăn, di chuyển từ bộ phận này đến bộ phận khác của khu bay.
50. Đường lăn thoát nhanh (Rapid exit taxiway): Đường lăn nối với đường CHC theo một góc nhọn và dùng cho tàu bay hạ cánh rời đường CHC với tốc độ lớn nhằm giảm thời gian chiếm đường CHC.
51. Đường lăn trên sân đỗ tàu bay (Apron taxiway): Một phần của hệ thống đường lăn nằm trên sân đỗ tàu bay dùng làm đường lăn qua sân đỗ tàu bay.
52. Giấy chứng nhận khai thác cảng hàng không, sân bay (Aerodrome certificate): Giấy chứng nhận khai thác cảng hàng không, sân bay được định nghĩa theo Điều 51 Luật HKDDVN, cụ thể: Giấy do cơ quan có thẩm quyền theo luật hàng không cấp, chứng nhận sân bay đủ điều kiện hoạt động theo quy định đối với loại sân bay đó.
53. Hành vi con người (Human performance): Những giới hạn và khả năng của con người có thể ảnh hưởng đến độ an toàn và hiệu quả của hoạt động hàng không.
54. Hệ quy chiếu đứng
Dữ liệu mực nước biển trung bình (MSL), cho biết quan hệ giữa cao độ liên quan đến lực hấp dẫn ứng với bề mặt của Geoid, được sử dụng làm hệ qui chiếu đứng.
Ghi chú 1: Toàn bộ mặt Geoid xấp xỉ MSL. Nó được định nghĩa như bề mặt đẳng thế đồng nhất của trái đất với MSL tĩnh lặng mở rộng liên tục xuyên qua các lục địa.
Ghi chú 2: Độ cao ứng với lực hấp dẫn được hiểu như là độ cao trực đạc, nghĩa là chiều cao của các điểm phía trên đường elipsoit, cũng là độ cao elipsoid.
55. Hệ quy chiếu ngang
Hệ quy chiếu hay hệ trắc địa quốc tế - 1984 (WGS-84) được sử dụng làm hệ qui chiếu ngang. Hệ tọa độ địa lý hàng không (kinh độ và vĩ độ) được biểu thị bằng các thuật ngữ của hệ dữ liệu trắc địa chuẩn quốc tế WGS-84.
56. Hệ quy chiếu thời gian
a) Hệ thống lịch Gregorian và Hệ tọa độ giờ quốc tế (UTC) được dùng làm hệ qui chiếu thời gian.
b) Khi dùng hệ quy chiếu thời gian khác, thì phải chỉ rõ điều này trong phần 1 Tổng quan mục 2.1.2 ( GEN 2.1.2) của Tập thông báo tin tức hàng không - AIP (Aeronautical Information Publication) - theo quy định của ICAO.
57. Hệ số sử dụng (Usability factor): Số phần trăm thời gian sử dụng đường CHC hay hệ đường CHC không bị thành phần gió ngang hạn chế.
Ghi chú: Gió ngang là gió gần mặt đất, có hướng vuông góc với tim đường CHC.
58. Hệ tham chiếu gốc (Datum): Một số liệu hoặc một tập hợp các số liệu dùng để tham chiếu hoặc là cơ sở để tính ra các số liệu khác (ISO Standard 19104).
59. Hệ thống giảm tốc độ (Arresting system): Hệ thống được thiết kế để giảm tốc độ tàu bay khi chạy vượt quá đường cất hạ cánh.
60. Hệ thống quản lý an toàn (Safety management system): Đã được quy định tại khoản 1 Điều 68 Thông tư 29/2021/TT-BGTVT, theo đó bao gồm các chính sách, mục tiêu an toàn, quản lý rủi ro an toàn, đảm bảo an toàn và thúc đẩy an toàn đối với các tổ chức tham gia vào hoạt động hàng không dân dụng tại cảng hàng không, sân bay của Việt Nam.
61. Hệ thống tự động cảnh báo xâm nhập đường cất hạ cánh (Autonomous runway incursion warning system (ARIWS): Hệ thống cung cấp khả năng phát hiện tự động về khả năng xâm nhập hoặc chiếm dụng đường cất hạ cánh đang hoạt động và cảnh báo trực tiếp cho tổ lái hoặc người điều khiển phương tiện.
62. Hoạt động song song tách chiều (Segregated parallel operations): Các hoạt động đồng thời trên đường CHC có thiết bị song song hoặc gần song song, trong đó một đường CHC chỉ sử dụng cho hạ cánh và đường CHC kia chỉ sử dụng cho cất cánh.
63. Hủy bỏ hạ cánh (Balked landing): Quá trình hạ cánh khi mà tàu bay không được phép hạ cánh nữa ở tại điểm bất kỳ nằm dưới chiều cao vượt chướng ngại vật (OCA/H)
64. Kiểm tra độ dư định kỳ (Cyclic redundancy check - CRC): Một thuật toán được dùng để biểu thị bằng số các dữ liệu bổ sung nhằm cung cấp độ chính xác bảo đảm chống mất mát hoặc thay đổi của dữ liệu.
65. Khoảng trống (Clearway): Đã được quy định tại khoản 12 Điều 2 Thông tư 29/2021/TT-BGTVT, theo đó là khu vực mặt đất hoặc mặt nước hình chữ nhật không có chướng ngại vật được người khai thác cảng hàng không, sân bay lựa chọn hoặc chuẩn bị, tạo thành khu vực thuận tiện cho tàu bay thực hiện đoạn cất cánh ban đầu đến độ cao quy định.
66. Khu vực an toàn cuối đường cất hạ cánh - RESA (Runway end safety area): Đã được quy định tại khoản 13 Điều 2 Thông tư 29/2021/TT-BGTVT, theo đó là vùng nằm đối xứng ở hai bên đường tim kéo dài của đường cất hạ cánh tiếp giáp với cạnh cuối đường cất hạ cánh nhằm giảm nguy cơ hư hỏng tàu bay khi chạm bánh trước đường cất hạ cánh hoặc chạy vượt ra ngoài đường cất hạ cánh.
67. Vùng chạm bánh (Touch down zone): Một phần đường CHC kể từ ngưỡng đường CHC trở vào cho phép tàu bay tiếp xúc bánh đầu tiên với đường CHC khi hạ cánh.
68. Khu vực di chuyển (Manoeuvring area): Đã được quy định tại khoản 14 Điều 2 Thông tư 29/2021/TT-BGTVT, theo đó là một phần của sân bay được sử dụng cho tàu bay cất cánh, hạ cánh và lăn bánh, không bao gồm sân đỗ tàu bay.
69. Khu vực hạ cánh (Landing area): Một phần của khu bay dành cho tàu bay hạ cánh hay cất cánh.
70. Khu vực hoạt động (Movement area): Đã được quy định tại khoản 15 Điều 2 Thông tư 29/2021/TT-BGTVT, theo đó là một phần của sân bay được sử dụng cho tàu bay cất cánh, hạ cánh, lăn bánh, bao gồm khu vực di chuyển và sân đỗ tàu bay.
71. Khu vực tín hiệu (Signal area): Một phần ở trong sân bay dùng để bố trí tín hiệu mặt đất.
72. Lề đường (Shoulder): Khu vực tiếp giáp với mép mặt đường được chuẩn bị tốt nhằm chuyển tiếp êm thuận giữa mặt đường và bề mặt tiếp giáp.
73. Lịch (Calendar):
Hệ thống lịch chuẩn đo các khoảng thời gian tương đối theo trục thời gian dùng làm căn cứ xác định thời điểm kết thúc một ngày (ISO 19108).
Ghi chú: ISO 19108, Geographic information - Temporal schema: Tiêu chuẩn ISO 19108 Thông tin địa lý - Lịch thời gian.
74. Lịch Gregorian (Calendar Gregorian):
Lịch phổ thông đang dùng được áp dụng lần đầu năm 1582 xác định một năm xích đạo gần đúng hơn so với lịch Julian (ISO 19108).
Ghi chú 1: Trong lịch Gregorian một năm nói chung có 365 ngày hoặc năm nhuận 366 ngày được chia thành 12 tháng.
Ghi chú 2: ISO 19108, Geographic information - Temporal schema: Tiêu chuẩn ISO 19108 Thông tin địa lý- Lịch thời gian.
75. Mã tình trạng mặt đường cất hạ cánh (Runway condition code - RWYCC): Là số mô tả tình trạng mặt đường cất hạ cánh được sử dụng trong báo cáo tình trạng mặt đường cất hạ cánh.
Lưu ý: Mục đích của mã tình trạng mặt đường CHC là để cho phép tính toán hoạt động tàu bay của tổ lái. Trình tự xác định mã tình trạng mặt đường CHC được thể hiện trong PANS-Sân bay (Doc 9981).
76. Ma trận đánh giá tình trạng mặt đường CHC (Runway condition assessment matrix - RCAM): Là ma trận cho phép đánh giá mã tình trạng mặt đường CHC, sử dụng các quy trình liên quan, từ một tập hợp tình trạng mặt đường CHC và báo cáo từ phi công về hoạt động phanh.
77. Mặt Geoid (Geoid): Bề mặt đẳng trọng lực của trái đất theo giả thiết trùng với mực nước biển trung bình tĩnh lặng (MLS) mở rộng liên tục xuyên qua các lục địa.
Ghi chú: Mặt Geoid có hình dạng không đều do điều kiện địa phương (gió thổi, độ mặn, dòng nước v.v...) và hướng trọng lực vuông góc với mặt Geoid thay đổi tại mọi điểm.
78. Mật độ giao thông sân bay (Aerodrome traffic density):
a) Thấp: Khi số lần hoạt động trung bình trong giờ cao điểm của tàu bay không vượt quá 15 lần trên một đường CHC, hoặc tổng số lần hoạt động trên toàn sân bay dưới 20 lần trong trường hợp đặc biệt;
b) Trung bình: Khi số lần hoạt động trung bình trong giờ cao điểm của tàu bay từ 16 đến 25 lần trên một đường CHC, hoặc tổng số lần hoạt động trên toàn sân bay nằm trong khoảng từ 20 đến 35 lần trong trường hợp đặc biệt;
c) Cao: Khi số lần hoạt động trung bình trong giờ cao điểm của tàu bay từ 26 lần hoặc lớn hơn trên một đường CHC, hoặc tổng số lần hoạt động trên toàn sân bay lớn hơn 35 lần trong trường hợp đặc biệt.
Ghi chú 1: Số lần hoạt động của tàu bay trung bình trong giờ cao điểm là giá trị trung bình số học số lần tàu bay hoạt động tại giờ cao điểm hàng ngày trong một năm.
Ghi chú 2: Một lần cất cánh hoặc hạ cánh được coi là một lần hoạt động.
79. Mốc (Marker): Vật thể nhô lên khỏi mặt đất để đánh dấu một chướng ngại vật (CNV) hay để phân định đường biên.
80. Mức cao sân bay (Aerodrome elevation): Độ cao của điểm cao nhất trên khu hạ cánh.
81. Nút giao đường lăn (Taxiway intersection): Nơi giao nhau của hai hoặc nhiều đường lăn.
82. Nguyên tắc nhân tố con người (Human factors principles): Nguyên tắc này được áp dụng cho quá trình thiết kế, cấp chứng chỉ, huấn luyện, hoạt động, bảo dưỡng hàng không nhằm đảm bảo độ an toàn trong mối quan hệ giữa con người với những bộ phận của hệ thống khác bằng cách xem xét cụ thể hành vi của con người.
83. Ngưỡng dịch chuyển của đường CHC (Displaced threshold): Ngưỡng đường CHC không nằm trên cạnh cuối đường CHC.
84. Ngưỡng đường CHC (Threshold): Đã được quy định tại khoản 18 Điều 2 Thông tư 29/2021/TT-BGTVT, theo đó là nơi bắt đầu của phần đường cất hạ cánh dùng cho tàu bay hạ cánh.
85. Phân cấp sân bay - Mã hiệu sân bay
Ghi chú: Mục đích phân cấp sân bay bằng mã hiệu sân bay là cung cấp một phương pháp đơn giản liên kết những quy định về các đặc tính của sân bay cũng như xây lắp công trình trong sân bay thích hợp với các tàu bay dự định khai thác tại sân bay. Mã hiệu sân bay không có mục đích xác định chiều dài đường CHC hoặc các yêu cầu về sức chịu tải mặt đường. Mã hiệu sân bay gồm hai thành phần là mã chữ và mã số có liên quan đến các đặc tính và kích thước của tàu bay. Thành phần 1- mã số là một "số" dựa trên chiều dài đường cất hạ cánh tham chiếu của tàu bay. Thành phần 2- mã chữ là một "chữ" dựa trên sải cánh tàu bay. Có quy định riêng hướng dẫn chọn từng thành phần thích hợp trong hai thành phần hoặc tổ hợp hợp lý của hai thành phần. Mã số hoặc mã chữ được lựa chọn cho mục đích thiết kế dựa trên các đặc tính của tàu bay tính toán đối với công trình. Khi áp dụng tiêu chuẩn này, trước hết phải xác định tàu bay thiết kế của sân bay sau đó xác định hai thành phần của mã hiệu sân bay.
a) Mã hiệu sân bay - gồm 2 thành phần là mã chữ và mã số được chọn cho mục đích quy hoạch sân bay phù hợp với những tính năng của tàu bay mà sân bay dự kiến phục vụ.
b) Mã chữ và mã số của sân bay được nêu trong Bảng mã hiệu sân bay.
c) Thành phần 1 của hiệu sân bay là một số xác định theo Bảng mã hiệu sân bay, bằng cách chọn mã số tương ứng mã với giá trị chiều dài đường CHC tham chiếu lớn nhất tính toán cho các loại tàu bay dùng đường CHC đó.
GHI CHÚ: Việc xác định chiều dài đường CHC tham chiếu cho một loại tàu bay chỉ nhằm mục đích lựa chọn mã số mà không ảnh hưởng đến chiều dài thực tế của đường CHC.
d) Mã chữ sân bay được xác định theo Bảng mã hiệu sân bay, bằng cách chọn mã chữ tương ứng với sải cánh lớn nhất và được lấy theo mã chữ lớn hơn trong số mã chữ của các loại tàu bay sử dụng sân bay.
Bảng: Mã hiệu sân bay
|
Thành phần 1 |
|
|
Mã số |
Chiều dài đường CHC tham chiếu cho tàu bay |
|
1 2 3 4 |
Nhỏ hơn 800m Từ 800m đến dưới 1200m Từ 1200m đến dưới 1800m Từ 1800m trở lên |
|
Thành phần 2 |
|
|
Mã chữ |
Sải cánh tàu bay |
|
A B C D E F |
Dưới 15m Từ 15m đến dưới 24m Từ 24m đến dưới 36m Từ 36m đến dưới 52m Từ 52m đến dưới 65m Từ 65m đến dưới 80m |
86. Phân cấp tính toàn vẹn - dữ liệu hàng không (Intergrity classification - aeronautical data):
Phân cấp tính toàn vẹn dữ liệu hàng không dựa trên kết quả đánh giá tiềm ẩn rủi ro từ việc sử dụng dữ liệu bị hỏng. Tính toàn vẹn dữ liệu hàng không được phân cấp gồm:
a) Cấp dữ liệu thông thường: Có khả năng rất thấp xảy ra nguy cơ mất an toàn hoạt động bay khi sử dụng dữ liệu thông thường bị hỏng;
b) Cấp dữ liệu chủ yếu: Có khả năng thấp xảy ra nguy cơ mất an toàn hoạt
động bay khi sử dụng dữ liệu chủ yếu bị hỏng;
c) Cấp dữ liệu quan trọng: Có khả năng cao xảy ra nguy cơ mất an toàn hoạt động bay khi sử dụng dữ liệu quan trọng bị hỏng.
87. Quy hoạch và thiết kế cảng hàng không, sân bay (áp dụng từ ngày 03/11/2022)
a) Quy hoạch cảng hàng không, sân bay cần đảm bảo:
- Bao gồm kế hoạch phát triển chi tiết cơ sở hạ tầng cảng hàng không, sân bay, định hướng ưu tiên phát triển theo từng giai đoạn.
- Xét đến lưu lượng vận tải hiện tại và tương lai trong thời kỳ lập quy hoạch.
- Tham vấn, lấy ý kiến các bên liên quan, đặc biệt là người khai thác tàu bay. Các thông tin, dữ liệu cần tham vấn, thu thập bao gồm loại tàu bay, đặc điểm, kế hoạch phát triển đội tàu bay, dự kiến tăng trưởng chuyến bay, khối lượng vận chuyển hành khách, hàng hóa.
b) Trong thiết kế kiến trúc, xây lắp công trình mới và thay thế công trình hiện hữu trên cảng hàng không, sân bay phải xem xét thống nhất yêu cầu về kiến trúc và cơ sở hạ tầng có liên quan nhằm đảm bảo tiêu chuẩn an toàn hàng không tối ưu.
c) Bản thiết kế cảng hàng không, sân bay cần đáp ứng các yêu cầu sử dụng đất và kiểm soát môi trường.
88. Sân bay (Aerodrome): Sân bay được định nghĩa theo khoản 2 Điều 47 của Luật HKDDVN, cụ thể: Một khu vực xác định trên mặt đất hoặc mặt nước bao gồm nhà cửa, công trình và trang thiết bị được dùng một phần hay toàn bộ cho tàu bay bay đến, bay đi và di chuyển.
89. Sân bay có giấy chứng nhận (Certified aerodrome): Sân bay mà người khai thác cảng hàng không, sân bay đã được cấp Giấy chứng nhận khai thác cảng hàng không, sân bay.
90. Sân bay trực thăng (Heliport): Sân bay trực thăng có thể gồm một phần của sân bay hoặc một khu vực xác định trên công trình được dùng một phần hay toàn bộ cho tàu bay trực thăng bay đến, bay đi và di chuyển.
91. Sân chờ (Holding bay): Một khu vực mà ở đó cho phép tàu bay dừng lại hoặc vòng tránh nhằm tạo điều kiện thuận lợi an toàn cho hoạt động của các tàu bay khác.
92. Sân đỗ tàu bay (Apron): Đã được quy định tại khoản 20 Điều 2 Thông tư 29/2021/TT-BGTVT, theo đó là khu vực được xác định trong sân bay dành cho tàu bay đỗ để phục vụ hành khách lên, xuống; chất xếp, bốc dỡ hành lý, bưu gửi, hàng hóa; tiếp nhiên liệu, cung cấp suất ăn; phục vụ kỹ thuật hoặc bảo dưỡng tàu bay.
93. Sân quay đầu đường CHC (Runway turn pad): Khu vực xác định giáp cạnh bên đường CHC sân bay dùng cho tàu bay quay đầu 180 độ để trở về đường CHC.
94. Sơn tín hiệu (Marking): Đã được quy định tại khoản 22 Điều 2 Thông tư 29/2021/TT-BGTVT, theo đó là một vệt hay một nhóm vệt sơn kẻ trên bề mặt của khu bay nhằm mục đích thông tin, thông báo tin tức hàng không.
95. Tầm nhìn đường CHC - RVR (Runway visual range): Khoảng cách mà trong giới hạn đó phi công ở phía trên tim đường CHC có thể nhìn thấy vạch sơn tín hiệu bề mặt đường CHC, đèn đánh dấu đường CHC hoặc tín hiệu nhận dạng tim đường CHC.
96. Tiếp cận hạ cánh song song độc lập (Independent parallel approaches): Tiếp cận hạ cánh đồng thời trên các đường CHC có thiết bị song song hoặc gần song song, trong đó không quy định khoảng cách tối thiểu bằng ra đa giữa các tàu bay trên tim kéo dài của các đường CHC cạnh nhau.
97. Tiếp cận song song phụ thuộc (Dependent parallel approaches): Tiếp cận hạ cánh đồng thời trên các đường CHC có thiết bị song song hoặc gần song song, trong đó có quy định khoảng cách tối thiểu theo ra đa giữa các tàu bay trên tim kéo dài của các đường CHC cạnh nhau.
98. Tính toàn vẹn của dữ liệu (mức đảm bảo) (Data integrity (assurance level)): Mức độ đảm bảo dữ liệu và giá trị hàng không không bị mất hoặc bị thay đổi kể từ ban đầu đến khi sửa đổi được phê duyệt.
99. Tình trạng mặt đường CHC (Runway surface condition): Đã được quy định tại khoản 23 Điều 2 Thông tư 29/2021/TT-BGTVT, theo đó là mô tả về tình trạng mặt đường cất hạ cánh được sử dụng trong báo cáo tình trạng mặt đường cất hạ cánh.
100. Thiết kế cảng hàng không, sân bay (áp dụng đến ngày 02/11/2022)
a) Trong thiết kế kiến trúc, xây lắp công trình mới và thay thế công trình hiện hữu trên cảng hàng không, sân bay phải xem xét thống nhất yêu cầu về kiến trúc và cơ sở hạ tầng có liên quan nhằm đảm bảo tiêu chuẩn an toàn hàng không tối ưu.
b) Bản thiết kế cảng hàng không, sân bay cần đáp ứng các yêu cầu sử dụng đất và kiểm soát môi trường.
101. Thời gian chuyển mạch (nguồn cấp điện) đèn (Switch-over time (light)): Thời gian cần thiết để cường độ thực tế của đèn ở hướng xác định tăng từ dưới 50% phục hồi đến 50% khi chuyển đổi nguồn cấp điện, đối với đèn hoạt động với 25% cường độ hoặc lớn hơn.
102. Vật chỉ hướng hạ cánh (Landing direction indicator): Thiết bị chỉ hướng bằng mắt cho phép nhận biết hướng đang thực hiện hạ cánh hoặc cất cánh.
103. Vật dễ gãy (Frangible object): Một vật có khối lượng nhỏ được thiết kế dễ gãy, dễ uốn, dễ biến hình nhằm giảm thiểu nguy hiểm cho tàu bay khi có va chạm.
104. Vật ngoại lai (FOD): Là một vật bất kỳ, có thể là động vật còn sống hoặc đã chết nằm tại vị trí không phù hợp trong khu bay mà có thể gây nguy hiểm cho nhân viên hàng không hoặc làm hư hỏng tàu bay hoặc phương tiện hoạt động trên khu bay.
105. Vệt lăn vào vị trí đỗ tàu bay (Aircraft stand taxilane): Một phần sân đỗ tàu bay được xác định làm đường lăn chỉ dùng cho tàu bay lăn vào từng vị trí đỗ tàu bay.
106. Vị trí chờ đường cất hạ cánh (Runway - holding position): Vị trí được lựa chọn trên đường cất hạ cánh, đường lăn hoặc khu vực ILS/MLS tới hạn mà ở đó tàu bay và phương tiện đang vận hành phải dừng lại chờ lệnh của kiểm soát viên không lưu cho phép lăn tiếp, nhằm mục đích đảm bảo an toàn khai thác cho đường cất hạ cánh, không ảnh hưởng đến bề mặt giới hạn chướng ngại vật (OLS).
Ghi chú: Theo thuật ngữ thông tin vô tuyến, vị trí chờ được hiểu là vị trí chờ đường CHC.
107. Vị trí chờ trên đường công vụ (Road - holding position): Một vị trí được quy định cho phương tiện cơ giới đang lăn được phép dừng.
108. Vị trí chờ trung gian (Intermediate holding position): Vị trí được lựa chọn nhằm kiểm soát giao thông điều hành tàu bay đang lăn và các phương tiện giao thông dừng lại tại đó chờ đài kiểm soát sân bay cho phép đi tiếp.
109. Vị trí đỗ tàu bay (Aircraft stand): Đã được quy định tại khoản 26 Điều 2 Thông tư 29/2021/TT-BGTVT, theo đó là khu vực trên sân đỗ tàu bay dành cho một tàu bay đỗ.
110. Vùng bay bình thường (Normal flight zone - NFZ): Khoảng không gian không phải là LFFZ, LCFZ hoặc LSFZ nhưng phải được bảo vệ tránh bức xạ Laze làm hỏng mắt.
111. Vùng bay chịu ảnh hưởng của Laze (Laser-beam sensitive flight zone - LFFZ): Vùng nằm ngoài nhưng không nhất thiết nối liền với các vùng LFFZ và LCFZ, trong đó bức xạ được giảm đến mức không làm chói mắt.
112. Vùng bay độc lập không Laze (Laser-beam free flight zone - LFFZ): Khoảng không gian giới hạn giáp sân bay mà ở đó bức xạ được giảm đến mức không gây ra bất kỳ sự nhầm lẫn nào.
113. Vùng bay được bảo vệ (Protected flight zone): Khoảng không gian được thiết kế đặc biệt nhằm giảm ảnh hưởng nguy hiểm của bức xạ laze.
114. Vùng bay giới hạn bởi Laze (Laser-beam critical flight zone - LCFZ): Khoảng không gian giới hạn gần sân bay nhưng ở ngoài vùng bay độc lập không Laze (LFFZ) mà ở đó bức xạ được giảm đến mức không gây chói mắt.
115. Vùng phi chướng ngại vật - OFZ (Obstacle free zone): Khoảng không gian phía trên bề mặt tiếp cận trong, bề mặt chuyển tiếp trong, bề mặt hủy bỏ hạ cánh OFZ và phần của dải được giới hạn bởi các bề mặt đó, không được có CNV cố định nào nhô lên, trừ CNV nhẹ dễ gãy, phục vụ mục đích dẫn đường hàng không.
116. Các chữ viết tắt:
• Luật HKDDVN: Luật Hàng không dân dụng Việt Nam số 66/2006/QH11 và số 61/2014/QH13.
• Nghị định 66/2015/NĐ-CP: Nghị định 66/2015/NĐ-CP ngày 12/8/2015 của Chính phủ quy định về nhà chức trách hàng không.
• Nghị định 32/2016/NĐ-CP: Nghị định số 32/2016/NĐ-CP ngày 06/5/2016 của Chính phủ quy định về quản lý độ cao chướng ngại vật hàng không và các trận địa quản lý, bảo vệ vùng trời tại Việt Nam.
• Nghị định 05/2021/NĐ-CP: Nghị định 05/2021/NĐ-CP ngày 25/01/2021 của Chính phủ về quản lý, khai thác cảng hàng không, sân bay.
• Thông tư 34/2014/TT-BGTVT: Thông tư số 34/2014/TT-BGTVT ngày 11/8/2014 của Bộ trưởng Bộ Giao thông vận tải ban hành quy chuẩn kỹ thuật quốc gia về sơn tín hiệu trên đường cất hạ cánh, đường lăn, sân đỗ tàu bay.
• Thông tư 29/2021/TT-BGTVT: Thông tư 29/2021/TT-BGTVT ngày 30/11/2021 của Bộ trưởng Bộ Giao thông vận tải quy định chi tiết về quản lý, khai thác cảng hàng không, sân bay.
• ACN: Chỉ số phân cấp tàu bay (Aircraft classification number) (áp dụng đến ngày 27/11/2024)
• ACR: Chỉ số phân cấp tàu bay (Aircraft classification rating) (áp dụng từ ngày 28/11/2024)
• AIS: Dịch vụ thông báo tin tức hàng không (Aeronautical information services)
• Annex: Phụ ước
• ASDA: Cự ly có thể dừng khẩn cấp (Accelerate - Stop Distance Available)
• ATS: Dịch vụ không lưu (Air traffic services)
• CAT: Cấp sân bay theo phương thức dẫn đường cất hạ cánh (Category)
• CBR: Chỉ số sức chịu tải Caliphocnia (California bearing ratio)
• cd: Đơn vị đo cường độ chiếu sáng (candela)
• CIE: Ủy ban chiếu sáng quốc tế (Commission Internationale L‘Eclairage)
• CNV: Chướng ngại vật hàng không (Obstacle)
• CHC: Cất hạ cánh
• DME: Thiết bị đo cự ly (Distance measuring equipment)
• E: Mô đun đàn hồi (Modulus of elasticity)
• ICAO: Tổ chức Hàng không dân dụng quốc tế (Interrnational Civil Aviation Organization).
• ILS: Hệ thống hạ cánh bằng thiết bị (Instrument Landing System)
• IMC: Điều kiện thời tiết bay bằng thiết bị (Instrument meteorological condition)
• ISO: Tổ chức Tiêu chuẩn hóa quốc tế (International Organization for Standardization)
• LDA: Cự ly có thể hạ cánh (Landing Distance Available)
• max: Cực đại (maximum)
• MLS: Hệ thống hạ cánh bằng sóng ngắn (Viba) (Microwave Landing System)
• MN: Mega niu tơn
• mnm: Cực tiểu (Minimum)
• MPa: Mega pascal
• OCA/H: Độ cao/chiều cao vượt chướng ngại vật (Obstacle clearance altitude/height)
• OFZ: Vùng phi chướng ngại vật (Obstacle free zone)
• OLS: Bề mặt giới hạn chướng ngại vật (Obstacle Limitation Surface)
• OMGWS: Khoảng cách mép ngoài của bánh ngoài càng tàu bay (Outer main gear wheel span)
• OPS: Bề mặt bảo vệ chướng ngại vật (Obstacle protection surface)
• PCN: Chỉ số phân cấp mặt đường (Pavement classification number) (áp dụng đến ngày 27/11/2024)
• PCR: Chỉ số phân cấp mặt đường (Pavement classification rating) (áp dụng từ ngày 28/11/2024)
• RAOA: Thiết bị vô tuyến đo độ cao (Radio altimeter operating area)
• RNA: Thiết bị vô tuyến dẫn đường hàng không (Radio navigation aid)
• RVR: Tầm nhìn đường đường CHC (Runway Visual Range).
• TODA: Cự ly có thể cất cánh (Take - Off Distance Available)
• TORA: Cự ly chạy đà cất cánh (Take - Off Run Available)
• VMC: Điều kiện thời tiết bay bằng mắt (Visual meteorological conditions)
• VOR: Đài vô tuyến đa hướng song VHF (Very high frequency omnidirectional radio range).
CHƯƠNG II: HƯỚNG DẪN CÁC NỘI DUNG LIÊN QUAN ĐẾN THIẾT KẾ, KHAI THÁC, BẢO ĐẢM AN TOÀN KHAI THÁC TẠI SÂN BAY THEO ANNEX 14
MỤC 1: THÔNG SỐ SÂN BAY
Điều 3. Các dữ liệu hàng không
1. Việc xác định và thông báo các dữ liệu hàng không liên quan của sân bay phải đáp ứng các yêu cầu về độ chính xác và tính toàn vẹn để đáp ứng nhu cầu của người sử dụng cuối cùng.
2. Dữ liệu bản đồ sân bay phải được cung cấp cho dịch vụ thông báo tin tức hàng không.
3. Các đặc tính kỹ thuật của dữ liệu bản đồ sân bay sau khi thu thập, tổng hợp phải được Cục Hàng không Việt Nam xem xét, chấp thuận trước khi công bố áp dụng.
4. Dữ liệu hàng không được số hóa phải có phương án kiểm soát phát hiện các lỗi, đảm bảo độ chính xác của dữ liệu trong suốt quá trình sử dụng, lưu trữ và truyền dữ liệu.
Điều 4. Điểm quy chiếu sân bay
1. Mỗi sân bay phải có một điểm quy chiếu.
2. Điểm quy chiếu sân bay đặt ở gần tâm hình học ban đầu hoặc tâm hình học thiết kế của sân bay với nguyên tắc không được thay đổi vị trí ban đầu đã chọn.
3. Vị trí điểm quy chiếu sân bay được đo và thông báo cho cơ quan thông báo tin tức hàng không (AIS) đến độ (0), phút (min) và giây (s).
Điều 5. Mức cao sân bay và đường cất hạ cánh
1. Cao độ và địa hình mặt Geoid ở vị trí cần xác định của sân bay được đo chính xác đến 0,5m và được thông báo tin tức hàng không theo quy định.
2. Đối với đường cất hạ cánh tiếp cận không chính xác, độ cao và địa hình mặt Geoid tại mỗi ngưỡng, độ cao tại cuối đường cất hạ cánh và của các điểm trung gian cao và thấp đặc biệt được đo chính xác đến 0,5m và được thông báo tin tức hàng không theo quy định.
3. Đối với đường cất hạ cánh tiếp cận chính xác, độ cao và địa hình mặt Geoid của ngưỡng, độ cao cuối đường cất hạ cánh và độ cao lớn nhất của vùng chạm bánh được đo chính xác đến 0,25m và được thông báo tin tức hàng không theo quy định.
Điều 6. Nhiệt độ không khí tham chiếu của sân bay
1. Nhiệt độ không khí tham chiếu của sân bay còn được gọi là nhiệt độ chuẩn của sân bay được xác định theo độ Celsius (độ C).
2. Nhiệt độ không khí tham chiếu của sân bay là nhiệt độ trung bình của tháng nóng nhất, được xác định bằng trung bình cộng của các nhiệt độ cao nhất hàng ngày của tháng nóng nhất trong năm (tháng nóng nhất là tháng có nhiệt độ trung bình tháng cao nhất). Nhiệt độ đó được lấy bình quân càng nhiều năm càng tốt, nhưng không dưới 5 năm.
Điều 7. Kích thước sân bay và thông tin liên quan
1. Phải đo hoặc mô tả các dữ liệu từng công trình trên sân bay như sau:
a) Đường cất hạ cánh - góc phương vị thực chính xác đến 1% độ, hướng, chiều dài, chiều rộng, vị trí ngưỡng dịch chuyển làm tròn đến mét gần nhất, độ dốc, loại bề mặt, loại đường cất hạ cánh, đối với đường cất hạ cánh tiếp cận chính xác CAT I - hiện trạng tĩnh không;
b) Dải bay, khu vực an toàn cuối đường cất hạ cánh, đoạn dừng: chiều dài, chiều rộng làm tròn đến mét gần nhất, loại bề mặt;
c) Đường lăn: ký hiệu, chiều rộng, loại bề mặt;
d) Sân đỗ tàu bay: loại bề mặt, các vị trí đỗ tàu bay;
đ) Ranh giới dịch vụ kiểm soát không lưu, vùng thông báo bay;
e) Khoảng trống: chiều dài làm tròn đến mét gần nhất, trắc dọc mặt đất;
g) Các thiết bị phục vụ bay nhìn bằng mắt theo các phương thức tiếp cận, sơn tín hiệu và đèn tín hiệu đường cất hạ cánh, đường lăn và sân đỗ tàu bay, các thiết bị dẫn đường và chỉ dẫn bay bằng mắt khác trên đường lăn và sân đỗ tàu bay, bao gồm cả các vị trí chờ lăn và các vạch dừng, vị trí và loại của hệ thống hướng dẫn vào vị trí đỗ bằng mắt;
h) Vị trí và tần số vô tuyến của điểm kiểm tra đài VOR sân bay;
i) Vị trí và số hiệu của đường lăn nối;
k) Khoảng cách làm tròn đến mét gần nhất của đài định vị và đài lướt của hệ thống hạ cánh bằng thiết bị (ILS) hoặc góc phương vị và độ cao ăng ten của hệ thống thiết bị hạ cánh sóng ngắn (Viba - MLS) móc nối với các đầu mút đường cất hạ cánh có liên quan.
2. Tọa độ địa lý của từng ngưỡng đường cất hạ cánh cần được đo chính xác đến độ, phút, giây và phần trăm giây và được thông báo tin tức hàng không theo quy định.
3. Tọa độ địa lý của các điểm thích hợp trên tim đường lăn được đo chính xác đến độ, phút, giây và phần trăm giây và được thông báo tin tức hàng không theo quy định.
4. Tọa độ địa lý của từng vị trí đỗ tàu bay được đo chính xác đến độ, phút, giây và phần trăm giây và được thông báo tin tức hàng không theo quy định.
5. Tọa độ địa lý của chướng ngại vật trong ranh giới sân bay, khu vực vùng tiếp cận và khu vực vùng cất cánh được đo chính xác đến độ, phút, giây và phần trăm giây và được thông báo tin tức hàng không theo quy định. Các chướng ngại vật phải được xác định chiều cao, loại chướng ngại vật, sơn tín hiệu và đèn cảnh báo (nếu có) và được thông báo tin tức hàng không theo quy định.
Điều 8. Sức chịu tải của mặt đường sân bay (áp dụng đến ngày 27/11/2024)
1. Phải xác định sức chịu tải của mặt đường sân bay.
2. Sức chịu tải mặt đường sân bay đối với tàu bay có trọng lượng đỗ lớn hơn 5700 kg được xác định theo phương pháp Chỉ số phân cấp tải trọng tàu bay - chỉ số phân cấp sức chịu tải mặt đường sân bay, gọi tắt là chỉ số phân cấp của tàu bay - chỉ số phân cấp mặt đường (ACN- PCN) bằng các thông số sau:
a) Chỉ số phân cấp mặt đường (PCN);
b) Loại mặt đường cần xác định ACN-PCN;
c) Cấp chịu lực của nền đất;
d) Cấp áp suất bánh lớn nhất cho phép hay trị số áp suất bánh lớn nhất cho phép;
đ) Phương pháp đánh giá;
3. Tàu bay có ACN bằng hoặc nhỏ hơn PCN được công bố được phép hoạt động trên bề mặt sân đường sân bay với tải trọng tối đa và giới hạn áp suất bánh được công bố theo quy định.
4. ACN của tàu bay được xác định phù hợp với phương pháp ACN-PCN do nhà sản xuất công bố hoặc quy trình do cơ quan có thẩm quyền phê chuẩn.
5. Chỉ số ACN được xác định theo mặt đường kết cấu cứng hoặc mềm.
6. Việc công bố loại mặt đường sân bay để xác định ACN-PCN, cấp chịu lực của nền, áp suất bánh lớn nhất cho phép và phương pháp đánh giá được thể hiện bằng các mã sau đây:
a) Loại mặt đường sân bay theo phương pháp ACN-PCN;
|
|
Mã |
|
Mặt đường cứng |
R |
|
Mặt đường mềm |
F |
b) Cấp chịu lực của nền;
|
|
Mã |
|
Cường độ cao: Đặc trưng bởi trị số K = 150 MN/m3 đại diện cho tất cả giá trị K lớn hơn 120 MN/m3 đối với mặt đường cứng và CBR = 15 (chỉ số Califorlia về sức chịu tải của nền đất) đại diện cho tất cả các giá trị CBR lớn hơn 13 đối với mặt đường mềm. |
A |
|
Cường độ trung bình: Đặc trưng bởi trị số K = 80 MN/m3 đại diện cho K thay đổi từ 60 đến 120 MN/m3 đối với mặt đường cứng và CBR = 10 đại diện cho CBR thay đổi từ 8 đến 13 đối với mặt đường mềm. |
B |
|
Cường độ thấp: Đặc trưng bởi trị số K = 40 MN/m3 đại diện cho K thay đổi từ 25-60 MN/ m3 đối với mặt đường cứng và CBR = 6 đại diện cho CBR thay đổi từ 4-8 đối với mặt đường mềm. |
C |
|
Cường độ rất thấp: Đặc trưng bởi trị số K = 20 MN/ m3 đại diện cho mọi giá trị của K nhỏ hơn 25 MN/m3 đối với mặt đường cứng và CBR = 3 đại diện cho mọi giá trị của CBR nhỏ hơn 4 đối với mặt đường mềm. |
D |
c) Cấp áp suất bánh lớn nhất cho phép;
|
|
Mã |
|
Cao: Áp suất không hạn chế |
W |
|
Trung bình: Áp suất giới hạn đến 1,75 MPa |
X |
|
Thấp: Áp suất giới hạn đến 1,25 MPa. |
Y |
|
Rất thấp: Áp suất giới hạn đến 0,50 MPa. |
Z |
d) Phương pháp đánh giá.
|
|
Mã |
|
Đánh giá kỹ thuật: Nghiên cứu chuyên đề về các đặc tính của mặt đường sân bay và áp dụng công nghệ đánh giá trạng thái mặt đường sân bay. |
T |
|
Sử dụng kinh nghiệm tàu bay khai thác: Công nhận theo thực tế mặt đường sân bay đã chịu được tàu bay có trọng lượng cụ thể hoạt động thường xuyên an toàn. |
U |
7. Trường hợp tàu bay có chỉ số ACN lớn hơn PCN công bố của mặt đường thì phải tính toán cụ thể và tuân thủ các quy định tại tài liệu này.
8. Sức chịu tải của mặt đường sân bay phục vụ tàu bay có trọng lượng đỗ bằng hoặc nhỏ hơn 5700kg được công bố như sau:
a) Trọng lượng tàu bay lớn nhất cho phép;
b) Áp suất bánh hơi lớn nhất cho phép.
Điều 8A. Sức chịu tải của mặt đường sân bay (áp dụng từ ngày 28/11/2024)
1. Phải xác định sức chịu tải của mặt đường sân bay.
2. Sức chịu tải mặt đường sân bay đối với tàu bay có trọng lượng đỗ lớn hơn 5700 kg được xác định theo phương pháp chỉ số phân cấp của tàu bay - chỉ số phân cấp mặt đường sân bay (ACR-PCR) bằng các thông số sau:
a) Chỉ số phân cấp mặt đường (PCR);
b) Loại mặt đường cần xác định ACR-PCR;
c) Cấp chịu lực của nền đất;
d) Cấp áp suất bánh lớn nhất cho phép hay trị số áp suất bánh lớn nhất cho phép;
đ) Phương pháp đánh giá;
3. Tàu bay có ACR bằng hoặc nhỏ hơn PCR được công bố được phép hoạt động trên bề mặt sân đường sân bay với tải trọng tối đa và giới hạn áp suất bánh được công bố theo quy định.
4. Chỉ số ACR của tàu bay được xác định phù hợp với phương pháp ACR- PCR do nhà sản xuất công bố hoặc quy trình do cơ quan có thẩm quyền phê chuẩn.
5. Chỉ số ACR được xác định theo mặt đường kết cấu cứng hoặc mềm.
6. Việc công bố loại mặt đường sân bay để xác định ACR-PCR, cấp chịu lực của nền, áp suất bánh lớn nhất cho phép và phương pháp đánh giá được thể hiện bằng các mã sau đây:
a) Loại mặt đường sân bay theo phương pháp ACR-PCR;
|
|
Mã |
|
Mặt đường cứng |
R |
|
Mặt đường mềm |
F |
b) Cấp chịu lực của nền;
|
|
Mã |
|
Cường độ cao: Đặc trưng bởi trị số E = 200 MPa, đại diện cho tất cả giá trị E bằng hoặc lớn hơn 150 MPa đối với mặt đường cứng và mặt đường mềm. |
A |
|
Cường độ trung bình: Đặc trưng bởi trị số E = 120 MPa, đại diện cho giá trị E thay đổi từ 100 MPa đến dưới 150 MPa đối với mặt đường cứng và mặt đường mềm. |
B |
|
Cường độ thấp: Đặc trưng bởi trị số E = 80 MPa, đại diện cho giá trị E thay đổi từ 60 MPa đến dưới 100 MPa đối với mặt đường cứng và mặt đường mềm. |
C |
|
Cường độ rất thấp: Đặc trưng bởi trị số E = 50 MPa, đại diện cho tất cả giá trị E nhỏ hơn 60 MPa đối với mặt đường cứng và mặt đường mềm. |
D |
c) Cấp áp suất bánh lớn nhất cho phép;
|
|
Mã |
|
Cao: Áp suất không hạn chế |
W |
|
Trung bình: Áp suất giới hạn đến 1,75 MPa |
X |
|
Thấp: Áp suất giới hạn đến 1,25 MPa. |
Y |
|
Rất thấp: Áp suất giới hạn đến 0,50 MPa. |
Z |
d) Phương pháp đánh giá.
|
|
Mã |
|
Đánh giá kỹ thuật: Nghiên cứu chuyên đề về các đặc tính của mặt đường sân bay và loại tàu bay dự kiến hoạt động. |
T |
|
Sử dụng kinh nghiệm tàu bay khai thác: Công nhận theo thực tế mặt đường sân bay đã chịu được tàu bay có trọng lượng cụ thể hoạt động thường xuyên an toàn. |
U |
7. Trường hợp tàu bay có chỉ số ACR lớn hơn PCR công bố của mặt đường thì phải tính toán cụ thể và tuân thủ các quy định tại tài liệu này.
8. Sức chịu tải của mặt đường sân bay phục vụ tàu bay có trọng lượng đỗ bằng hoặc nhỏ hơn 5700 kg được công bố như sau:
a) Trọng lượng tàu bay lớn nhất cho phép;
b) Áp suất bánh hơi lớn nhất cho phép.
Điều 9. Vị trí kiểm tra đo độ cao trước khi bay
1. Tại mỗi sân bay phải thiết lập một hoặc nhiều vị trí kiểm tra độ cao trước khi bay.
2. Vị trí kiểm tra độ cao trước khi bay nên đặt tại sân đỗ tàu bay.
3. Độ cao của vị trí kiểm tra độ cao trước khi bay là độ cao trung bình của cả khu vực và được làm tròn đến mét. Độ chênh lệch của các vị trí kiểm tra so với độ cao trung bình của cả khu vực cũng không được quá 3m.
Điều 10. Các cự ly công bố
1. Người khai thác cảng hàng không, sân bay phải xác định các cự ly công bố trong tài liệu khai thác sân bay và thực hiện quy trình thông báo cho cơ sở cung cấp dịch vụ thông báo tin tức hàng không gồm các cự ly TORA, TODA, ASDA, LDA.
2. Việc tính toán các cự ly công bố được thực hiện theo Phụ lục A, Phần 3 tại tài liệu này.
Điều 11. Tình trạng khu vực hoạt động tại sân bay và các hạ tầng liên quan
1. Thông tin về tình trạng khu vực hoạt động tại sân bay, trạng thái hoạt động của các thiết bị, hạ tầng có liên quan phải được cung cấp đến cơ sở cung cấp dịch vụ thông báo tin tức hàng không để thông báo cho các tàu bay đi và đến. Thông tin phải thường xuyên được cập nhật và những thay đổi về trạng thái khu vực hoạt động tại sân bay phải được thông báo kịp thời.
2. Điều kiện của khu vực hoạt động tại sân bay và trạng thái hoạt động của thiết bị, hạ tầng có liên quan phải được giám sát; trường hợp có ảnh hưởng đến hoạt động khai thác tàu bay, người khai thác cảng hàng không, sân bay phải cung cấp thông tin phục vụ việc thông báo tin tức hàng không và đưa ra các hành động phù hợp, đặc biệt là các vấn đề sau:
a) Công tác xây dựng hoặc bảo trì;
b) Độ gồ ghề hoặc hư hỏng trên đường cất hạ cánh, đường lăn hay sân đỗ tàu bay;
c) Nước, tuyết, tuyết tan, băng hoặc băng giá trên đường cất hạ cánh, đường lăn, sân đỗ tàu bay;
d) Hóa chất lỏng chống đóng băng hoặc làm tan băng hoặc chất bám khác trên đường cất hạ cánh, đường lăn, sân đỗ tàu bay;
đ) Các gờ hoặc ụ tuyết cạnh đường cất hạ cánh, đường lăn, sân đỗ tàu bay;
e) Các rủi ro tạm thời khác, kể cả tàu bay đang đỗ;
g) Một phần hoặc toàn bộ thiết bị bằng mắt của sân bay bị hỏng hoặc hoạt động sai;
h) Nguồn cấp điện thông thường hoặc nguồn cấp điện dự phòng bị hỏng.
3. Để đáp ứng các quy định tại khoản 1, khoản 2 Điều này, người khai thác cảng hàng không sân bay phải kiểm tra giám sát theo quy định như sau:
a) Đối với khu vực hoạt động tại sân bay, thực hiện kiểm tra ít nhất 1 lần
đối với sân bay có mã số 1 và 2 và ít nhất 2 lần trong ngày với mã số 3 và 4;
b) Đối với đường cất hạ cánh, ngoài số lần kiểm tra theo quy định tại mục a, tình trạng mặt đường cất hạ cánh phải được kiểm tra bất cứ khi nào có sự thay đổi đáng kể do điều kiện khí tượng.
4. Nhân viên thực hiện việc đánh giá và báo tình trạng mặt đường cất hạ cánh theo quy định tại khoản 2 của Điều này phải được huấn luyện và có đủ khả năng để thực hiện nhiệm vụ. Chi tiết theo tài liệu hướng dẫn được Cục Hàng không Việt Nam công bố tại Quyết định số 68/QĐ-CHK ngày 12/1/2022 của Cục trưởng Cục Hàng không Việt Nam về việc ban hành Hướng dẫn đánh giá và báo cáo tình trạng mặt đường cất hạ cánh tại các cảng hàng không, sân bay của Việt Nam.
Điều 12. Tình trạng mặt đường cất hạ cánh để sử dụng trong báo cáo
1. Tình trạng mặt đường cất hạ cánh phải được đánh giá và báo cáo thông qua báo cáo tình trạng mặt đường cất hạ cánh. Có 04 tình trạng mặt đường cất hạ cánh gồm:
a) Đường cất hạ cánh khô;
b) Đường cất hạ cánh ướt;
c) Đường cất hạ cánh ướt trơn trượt;
d) Đường cất hạ cánh có chất bám.
2. Bất cứ khi nào đường cất hạ cánh có chất bám, việc đánh giá độ sâu và độ bao phủ của chất bám của mỗi 1/3 đường cất hạ cánh phải được thực hiện và báo cáo.
3. Đường cất hạ cánh hoặc một phần đường cất hạ cánh bị trơn do ướt phải được thông báo đến các cơ quan, đơn vị có liên quan theo quy định.
4. Người khai thác cảng hàng không, sân bay phải thông báo tình trạng mặt đường cất hạ cánh đến người sử dụng sân bay khi hệ số ma sát của đường cất hạ cánh hoặc một phần đường cất hạ cánh thấp hơn mức quy định.
5. Chi tiết theo tài liệu hướng dẫn được Cục Hàng không Việt Nam công bố tại Quyết định số 68/QĐ-CHK ngày 12/01/2022 của Cục trưởng Cục Hàng không Việt Nam về việc ban hành Hướng dẫn đánh giá và báo cáo tình trạng mặt đường cất hạ cánh tại các cảng hàng không, sân bay của Việt Nam.
Điều 13. Di dời tàu bay mất khả năng di chuyển và khẩn nguy cứu nạn
1. Di dời tàu bay mất khả năng di chuyển
Đã được quy định tại Mục 6 Chương II Thông tư 29/2021/TT-BGTVT.
2. Khẩn nguy cứu nạn
1. Người khai thác cảng hàng không, sân bay phải thiết lập hệ thống và phương án khẩn nguy cứu nạn theo phù hợp với cấp cứu hỏa công bố.
2. Mức độ sẵn sàng thông thường tại sân bay được biểu thị bằng cấp cứu hỏa kèm theo chủng loại và số lượng xe chữa cháy mà sân bay có.
3. Khi cấp cứu hỏa có thay đổi, người khai thác cảng hàng không, sân bay phải cập nhật, thực hiện các quy trình sửa đổi tài liệu khai thác sân bay và công bố lại cấp cứu hỏa, thông báo tin tức hàng không theo quy định tại Thông tư 29/2021/TT-BGTVT.
Điều 14. Hệ thống chỉ thị độ dốc tiếp cận bằng mắt
1. Cảng hàng không, sân bay phải lắp đặt hệ thống chỉ thị độ dốc tiếp cận bằng mắt.
2. Hệ thống chỉ thị độ dốc tiếp cận bằng mắt bao gồm các thông tin sau:
a) Hướng đường CHC;
b) Hệ thống thiết bị CHC theo khoản 2 Điều 83. Đối với thiết bị AT- VASIS, PAPI hoặc APAPI phải chỉ rõ đèn ở phía nào của đường CHC, nghĩa là bên phải hay bên trái đường CHC;
c) Khi trục hệ thống thiết bị không song song với tim đường CHC thì phải chỉ ra góc lệch và hướng lệch tức là lệch sang phải hay sang trái;
d) Độ dốc danh định của đường tiếp cận: Đối với thiết bị loại T-VASIS hoặc AT- VASIS thì góc này là Ɵ theo công thức trên Hình II-18, đối với PAPI và APAPI thì góc này là (B+C)/2 và (A+B)/2 theo Hình II-20;
đ) Độ cao tối thiểu của mắt phi công so với ngưỡng đường CHC nhìn trên đường dốc tín hiệu: Đối với T- VASIS hay AT-VASIS thì độ cao này là độ cao thấp nhất mà từ đó có thể nhìn thấy vạch đèn cánh. Cần thông báo các độ cao bổ sung mà từ đó có thể nhìn thấy các vạch đèn cánh cộng thêm 1, 2 hay 3 đèn bay xuống nhằm phục vụ tốt hơn cho tàu bay tiếp cận. Đối với một PAPI thì đây là góc đặt của đèn thứ ba tính từ đường CHC trừ 2' nghĩa là góc B trừ 2' và đối với AT-VASIS đây là góc đặt đèn xa hơn của đường CHC trừ 2', tức là góc A trừ 2'.
MỤC 2: ĐƯỜNG CẤT HẠ CÁNH
Điều 15. Số lượng và hướng đường cất hạ cánh
1. Chọn số lượng và hướng đường CHC trên sân bay sao cho đảm bảo được hệ số sử dụng sân bay theo yêu cầu về gió càng cao càng tốt, khuyến khích không nhỏ hơn 95% đối với các loại tàu bay mà sân bay dự kiến khai thác.
2. Nghiên cứu chọn vị trí và hướng đường CHC đảm bảo cho tuyến bay đến và bay đi ảnh hưởng ít nhất đến các công trình của địa phương ở khu tiếp cận và các công trình lân cận sân bay ít chịu ảnh hưởng của tiếng ồn để hạn chế các vấn đề về tiếng ồn trong tương lai.
3. Chọn thành phần gió cạnh lớn nhất cho phép: theo khoản 1 Điều này, có thể giả định là trong điều kiện bình thường không cho tàu bay cất hạ cánh nếu thành phần gió cạnh vượt quá:
a) 37 km/h cho tàu bay có chiều dài đường CHC tham chiếu là 1500m hoặc lớn hơn; trong trường hợp thực tế nếu hiệu quả hãm phanh của đường CHC kém do hệ số ma sát dọc không đủ, thì thành phần gió cạnh không quá 24 km/h;
b) 24 km/h cho tàu bay cần chiều dài đường CHC tham chiếu bằng hoặc lớn hơn 1200 m nhưng nhỏ hơn 1500 m;
c) 19 km/h cho tàu bay cần chiều dài đường CHC tham chiếu nhỏ hơn 1200m.
4. Khi chọn các thông số để tính toán hệ số sử dụng đường CHC cần dựa vào những số liệu thống kê tin cậy về sự phân bố gió trong thời kỳ càng dài càng tốt nhưng không dưới 5 năm. Những thông số sử dụng được đo ít nhất 8 lần trong ngày, với những khoảng thời gian bằng nhau.
Điều 16. Vị trí ngưỡng đường CHC
1. Ngưỡng đường CHC được bố trí ở cạnh cuối đường CHC, trừ các trường hợp do các điều kiện khai thác yêu cầu, có thể chọn vị trí khác.
2. Trong các trường hợp dịch chuyển vị trí thông thường của ngưỡng đường CHC tạm thời hay lâu dài thì phải xem xét các yếu tố ảnh hưởng đến vị trí ngưỡng đường CHC. Khi dịch chuyển ngưỡng do tình trạng đường CHC không đảm bảo thì cần dự kiến một khu vực không có chướng ngại vật có chiều dài tối thiểu 60 m nằm giữa khu vực đường CHC không sử dụng được và ngưỡng dịch chuyển. Đồng thời phải bổ sung một khu vực làm dải bảo hiểm đầu đáp ứng các yêu cầu kỹ thuật.
Điều 17. Chiều dài thực tế của đường CHC
1. Đường CHC chính: trừ các trường hợp quy định tại khoản 3 Điều này, chiều dài thực tế đường CHC chính cần thoả mãn các yêu cầu khai thác của tàu bay sử dụng đường CHC và không nhỏ hơn chiều dài lớn nhất được xác định bằng các hệ số điều chỉnh điều kiện tại chỗ theo tính năng cất hạ cánh của tàu bay sử dụng đường CHC.
2. Đường CHC phụ: xác định chiều dài đường CHC phụ tương tự như cách xác định chiều dài đường CHC chính. Tuy nhiên đường CHC phụ chỉ cần tính cho tàu bay sẽ sử dụng đường CHC phụ đó nhằm bổ trợ cho đường CHC chính hoặc bổ sung để hệ số sử dụng các đường CHC tăng lên bằng 95% hoặc hơn.
3. Đường CHC với đoạn dừng hoặc khoảng trống: trong những trường hợp có đoạn dừng hoặc khoảng trống tiếp giáp với đường CHC, có thể cho phép chiều dài thực của đường CHC nhỏ hơn chiều dài tính được theo khoản 2 hoặc khoản 3 Điều này nhưng trong trường hợp này bất cứ sự sử dụng kết hợp nào của đường CHC với đoạn dừng và khoảng trống cũng phải đáp ứng những yêu cầu khai thác của tàu bay cất hạ cánh trên đường CHC đó.
Điều 18. Chiều rộng đường CHC
1. Chiều rộng đường CHC không nhỏ hơn giá trị theo bảng sau:
|
Khoảng cách giữa 2 mép ngoài của bánh ngoài càng chính (OMGWS) |
||||
|
Mã số |
Nhỏ hơn 4,5m |
Từ 4,5m đến nhỏ hơn 6m |
Từ 6m đến nhỏ hơn 9m |
Từ 9m đến nhỏ hơn 15m |
|
1a |
18m |
18m |
23m |
- |
|
2a |
23m |
23m |
30m |
|
|
3 |
30m |
30m |
30m |
45m |
|
4 |
- |
- |
45m |
45m |
|
a. Chiều rộng của đường CHC tiếp cận chính xác không nên nhỏ hơn 30m đối với mã số 1 hoặc 2 |
||||
Bảng II.1 Chiều rộng đường cất hạ cánh
2. Khoảng cách tối thiểu giữa 2 tim đường CHC song song
a) Khoảng cách tối thiểu giữa hai tim đường CHC song song và không có thiết bị, được sử dụng đồng thời là:
- 210m khi mã số đường CHC lớn hơn là 3 hoặc 4;
- 150m khi mã số đường CHC lớn hơn là 2;
- 120m khi mã số đường CHC lớn hơn là 1.
b) Tuỳ thuộc vào điều kiện cụ thể, khoảng cách tối thiểu giữa hai tim đường CHC song song có thiết bị là:
- 1035m cho tiếp cận song song độc lập;
- 915m cho tiếp cận song song phụ thuộc;
- 760m cho cất cánh song song độc lập;
- 760m cho hoạt động song song tách chiều; Trừ những trường hợp:
- Đối với hoạt động song song tách chiều, khoảng cách tối thiểu có thể:
+ Giảm 30m cho từng khoảng so le 150m mà đường CHC dịch về phía tàu bay tiếp cận, nhưng không giảm quá 300m;
+ Tăng thêm 30m cho từng khoảng 150m mà đường CHC dịch xa khỏi tàu bay tiếp cận.
- Trong các trường hợp tiếp cận song song độc lập, kết hợp các khoảng cách tối thiểu và các điều kiện liên quan khác với các chỉ dẫn trong PANS-ATM (Doc 4444) có thể được áp dụng khi chỉ ra các kết hợp đó sẽ không làm ảnh hưởng nghiêm trọng đến an toàn hoạt động khai thác bay.
Điều 19. Độ dốc dọc đường CHC
1. Độ dốc dọc trung bình đường CHC được xác định bằng tỷ số giữa hiệu số cao độ điểm cao nhất và thấp nhất dọc tim đường CHC và chiều dài của đường CHC. Độ dốc dọc đường CHC phải đảm bảo:
a) Không vượt quá 1% khi mã số là 3 hoặc 4
b) Không vượt quá 2% khi mã số là 1 hoặc 2.
2. Độ dốc dọc tại bất kỳ phần nào của đường CHC không vượt quá:
a) 1,25% đối với đường CHC có mã số 4, trừ khu vực 1/4 chiều dài đường CHC ở đầu và 1/4 chiều dài đường CHC ở cuối, độ dốc dọc không vượt quá 0,8%;
b) 1,5% khi đường CHC có mã số 3, trừ khu vực ở 1/4 chiều dài đường CHC ở đầu và 1/4 chiều dài đường CHC ở cuối, có thiết bị hạ cánh chính xác CAT II hoặc CAT III, độ dốc dọc không vượt quá 0,8%;
c) 2% đối với đường CHC có mã số 1 hoặc 2.
3. Trong trường hợp không tránh khỏi phải thay đổi độ dốc dọc thì hiệu số giữa 2 độ dốc kề nhau không vượt quá:
a) 1,5% đối với đường CHC có mã số 3 hoặc 4;
b) 2% đối với đường CHC có mã số 1 hoặc 2.
4. Chuyển tiếp từ độ dốc này sang độ dốc khác theo bề mặt cong với sự thay đổi dốc không vượt quá:
a) 0,1% trên 30m (bán kính tối thiểu đường cong đứng là 30.000m) đối với đường CHC có mã số 4;
b) 0,2% trên 30m (bán kính tối thiểu đường cong đứng là 15.000m) đối với đường CHC có mã số 3; và
c) 0,4% trên 30m (bán kính tối thiểu đường cong đứng là 7.500m) đối với đường CHC có mã số 1 hoặc 2.
Điều 20. Đảm bảo tầm nhìn trên đường CHC trong trường hợp đường CHC không tránh được sự thay đổi độ dốc
1. Phải đảm bảo cho phép nhìn rõ từ một điểm bất kỳ ở độ cao 3m trên đường cất hạ cánh đến mọi điểm khác ở độ cao 3m trên đường cất hạ cánh với khoảng cách ít nhất bằng nửa chiều dài đường cất hạ cánh mã chữ C, D, E hoặc F.
2. Phải đảm bảo cho phép nhìn rõ từ một điểm bất kỳ ở độ cao 2m trên đường cất hạ cánh đến mọi điểm khác ở độ cao 2m trên đường cất hạ cánh với khoảng cách ít nhất bằng nửa chiều dài đường cất hạ cánh mã chữ B.
3. Phải đảm bảo cho phép nhìn rõ từ một điểm bất kỳ ở độ cao 1,5m trên đường cất hạ cánh đến mọi điểm khác ở độ cao 1,5m trên đường cất hạ cánh với khoảng cách ít nhất bằng nửa chiều dài đường cất hạ cánh mã chữ A.
Điều 21. Khoảng cách giữa các điểm thay đổi độ dốc đường CHC
1. Việc thay đổi độ dốc đường cất hạ cánh phải đảm bảo yêu cầu tránh mặt cắt dọc đường cất hạ cánh hình sóng hoặc thay đổi nhiều độ dốc dọc cục bộ cạnh nhau.
2. Khoảng cách giữa các đỉnh của hai đường cong liên tiếp không nhỏ hơn giá trị lớn hơn trong các trường hợp tương ứng dưới đây:
a) Tổng giá trị tuyệt đối các trị số thay đổi độ dốc (độ biến dốc) nhân với các giá trị tương ứng 30.000m khi mã số đường cất hạ cánh là 4; 15.000m khi mã số đường cất hạ cánh là 3; 5.000m khi mã số đường cất hạ cánh là 1 hoặc 2.
b) 45m.
Điều 22. Độ dốc ngang đường CHC
1. Độ dốc ngang đường cất hạ cánh phải đảm bảo thoát nước nhanh. Độ dốc ngang lý tưởng nhất bằng:
a) 1,5% khi mã chữ C, D, E hoặc F;
b) 2% khi mã chữ A hoặc B;
c) Trong bất kỳ trường hợp nào cũng không vượt quá 1,5% và 2% tương ứng, cũng không được nhỏ hơn 1%, trừ những chỗ giao nhau giữa đường cất hạ cánh hay đường lăn vì ở đó cần có những độ dốc nhỏ hơn.
2. Độ dốc ngang phải giống nhau trên toàn bộ chiều dài của đường cất hạ cánh ngoại trừ tại khu vực giao với với đường cất hạ cánh khác hoặc đường lăn.
Điều 23. Bề mặt đường cất hạ cánh
1. Bề mặt đường cất hạ cánh phải được xây dựng đảm bảo đủ ma sát và không ảnh hưởng xấu khác đến việc cất cánh và hạ cánh của tàu bay.
2. Bề mặt đường cất hạ cánh khi xây dựng hoặc nâng cấp, cải tạo, sửa chữa có hệ số ma sát bằng hoặc lớn hơn hệ số ma sát được quy định.
3. Bề mặt đường cất hạ cánh phải được đánh giá khi xây dựng hoặc sửa chữa để đảm bảo rằng đặc tính ma sát phù hợp với mục tiêu thiết kế.
4. Việc đo đặc tính ma sát đối với đường cất hạ cánh mới hoặc đường cất hạ cánh được sửa chữa được khuyến khích thực hiện bằng thiết bị đo hệ số ma sát liên tục sử dụng tính năng tự làm ướt.
5. Chiều sâu trung bình của rãnh nhám trên bề mặt mới không nhỏ hơn 1,0mm.
6. Bề mặt có rãnh hoặc gờ tạo nhám cần vuông góc với tim đường cất hạ cánh hoặc song song với khe ngang, nếu khe ngang không vuông góc với tim.
Điều 24. Lề đường CHC
1. Đường cất hạ cánh tại sân bay có mã chữ D, E, F phải có lề đường cất hạ cánh.
2. Đối với tàu bay có OMGWS từ 9m đến nhỏ hơn 15m, lề đường cất hạ cánh nên bố trí đối xứng hai bên đường cất hạ cánh sao cho tổng chiều rộng đường cất hạ cánh và các lề của nó không nhỏ hơn:
a) 60m nếu đường cất hạ cánh tại sân bay có mã chữ D hoặc E;
b) 60m nếu đường cất hạ cánh tại sân bay có mã chữ F với tàu bay có 2 hoặc 3 động cơ;
c) 75m nếu đường cất hạ cánh tại sân bay có mã chữ F với tàu bay có 4 động cơ (hoặc nhiều hơn).
3. Bề mặt lề giáp với đường cất hạ cánh bắt đầu từ mép đường cất hạ cánh với độ dốc ngang hướng xuôi ra ngoài không lớn hơn 2,5%.
4. Một phần của lề đường cất hạ cánh tính từ mép đường cất hạ cánh đến khoảng cách 30m (tính từ tim đường cất hạ cánh) phải đảm bảo có thể chịu được tải trọng của tàu bay lăn ra ngoài đường cất hạ cánh mà không làm hư cấu trúc tàu bay và các phương tiện mặt đất hoạt động trên lề.
5. Lề đường cất hạ cánh cần được đảm bảo để chống lại độ xói mòn hoặc ăn mòn bề mặt do động cơ tàu bay gây ra.
6. Lề của đường cất hạ cánh khai thác tàu bay code F cần phải đảm bảo chiều rộng của đường cất hạ cánh và phần lề đường cất hạ cánh có tầng phủ đạt tối thiểu 60m.
Điều 25. Sân quay đầu đường CHC
1. Cuối đường cất hạ cánh mã chữ là D, E hoặc F không có đường lăn nối hoặc đường lăn quay đầu, thì phải có sân quay đầu đường cất hạ cánh để cho tàu bay quay đầu 180 độ.
2. Cuối đường cất hạ cánh mã chữ là A, B hoặc C không có đường lăn nối hoặc đường lăn quay đầu, thì nên có sân quay đầu đường cất hạ cánh để cho tàu bay quay đầu 180 độ, nếu có điều kiện hoặc có yêu cầu.
3. Sân quay đầu đường cất hạ cánh có thể đặt ở cả hai phía trái hoặc phải của đường cất hạ cánh ở cả hai đầu đường cất hạ cánh và ở vị trí trung gian nào đó theo yêu cầu.
4. Góc giao nhau của sân quay đầu đường cất hạ cánh với đường cất hạ cánh không vượt quá 300.
5. Góc quay của bánh lái mũi dùng để thiết kế sân quay đầu đường cất hạ cánh không vượt quá 450.
6. Sân quay đầu đường cất hạ cánh phải đảm bảo sao cho khi cabin của tàu bay ở trên vạch sơn tín hiệu sân quay đầu, thì khoảng cách giữa bất kỳ mép ngoài bánh nào của càng tàu bay và mép của sân quay đầu cũng không nhỏ hơn giá trị trong bảng sau:
|
Khoảng cách mép ngoài của bánh ngoài càng tàu bay (OMGWS) |
||||
|
|
Dưới 4,5m |
Từ 4,5m đến dưới 6m |
Từ 6m đến dưới 9m |
Từ 9m đến dưới 15m |
|
Khoảng cách |
1,5m |
2,25m |
3ma hoặc 4mb |
4m |
|
a. Nếu sân quay đầu đường CHC sử dụng cho tàu bay có khoảng cách từ càng mũi tới tim của càng chính nhỏ hơn 18m. b. Nếu sân quay đầu đường CHC sử dụng cho tàu bay có khoảng cách từ càng mũi tới tim của càng chính lớn hơn 18m. |
||||
Bảng II. 2. Khoảng cách tối thiểu giữa bất kỳ mép ngoài bánh nào của càng tàu bay và mép của sân quay đầu
7. Độ dốc dọc và độ dốc ngang trên sân quay đầu đường cất hạ cánh phải đủ để thoát nước, không cho nước đọng trên bề mặt. Các độ dốc này có thể bằng độ dốc mặt đường cất hạ cánh.
8. Sức chịu tải của sân quay đầu đường cất hạ cánh đảm bảo tối thiểu phải bằng sức chịu tải của đường cất hạ cánh.
9. Bề mặt của sân quay đầu đường cất hạ cánh phải đảm bảo:
a) Không có sự bất thường về bề mặt mà chúng có thể gây hư hỏng cho tàu bay khi tàu bay sử dụng sân quay đầu;
b) Có hệ số ma sát tối thiểu bằng bề mặt đường cất hạ cánh.
10. Lề của sân quay đầu đường cất hạ cánh phải đảm bảo:
a) Kết cấu để chống lại sự xói mòn bởi luồng phòng phụt động cơ tàu bay và đảm bảo đủ chiều rộng để phần động cơ tàu bay nằm trong lề sân bay đầu, ngăn cản các vật thể lạ cuốn vào động cơ tàu bay;
b) Có sức chịu tải đảm bảo chịu được tải trọng của tàu bay trong trường hợp tàu bay di chuyển trên lề trong một số trường hợp mà không làm hư hỏng tàu bay và đảm bảo chịu được tải trọng của các loại phương tiện phục vụ mặt đất khác hoạt động ở trên lề.
Điều 26. Dải bay
1. Đường cất hạ cánh và đoạn dừng phải nằm trong dải bay. Chiều dài dải bay gồm đường cất hạ cánh và các đoạn kéo dài thêm nằm trước ngưỡng kể từ mép đường cất hạ cánh hoặc đoạn dừng với chiều dài không nhỏ hơn:
a) 60m khi đường cất hạ cánh có mã số là 2, 3 hoặc 4;
b) 60m khi đường cất hạ cánh có mã số là 1 và đường cất hạ cánh có thiết bị;
c) 30m khi đường cất hạ cánh có mã số là 1 và đường cất hạ cánh không có thiết bị.
2. Chiều rộng dải bay của đường cất hạ cánh tiếp cận chính xác được mở rộng theo phương ngang khi điều kiện cho phép tới một khoảng cách không được nhỏ hơn:
a) 140m khi mã số là 3 hoặc 4 về mỗi phía của tim đường cất hạ cánh và kéo dài hết chiều dài dải bay;
b) 70m khi mã số là 1 hoặc 2 về mỗi phía của tim đường cất hạ cánh và kéo dài hết chiều dài dải bay.
3. Chiều rộng dải bay của đường cất hạ cánh tiếp cận giản đơn được mở rộng về mỗi phía theo phương ngang tới một khoảng cách không nhỏ hơn:
a) 140m khi mã số là 3 hoặc 4 về mỗi phía của tim đường cất hạ cánh và kéo dài hết chiều dài dải bay;
b) 70m khi mã số là 1 hoặc 2 về mỗi phía của tim đường cất hạ cánh và kéo dài hết chiều dài dải bay.
4. Chiều rộng dải bay của đường cất hạ cánh không có thiết bị được mở rộng về mỗi phía theo phương ngang hết chiều dài dải bay với một khoảng cách không được nhỏ hơn:
a) 75m khi mã số là 3 hoặc 4;
b) 40m khi mã số là 2;
c) 30m khi mã số là 1.
Điều 27. Vật thể nằm trên dải bay
1. Nếu vật thể nằm trên dải bay có thể uy hiếp an toàn bay thì cần xem nó như chướng ngại vật và phải di chuyển càng xa càng tốt. Trường hợp chưa thể di chuyển các chướng ngại vật, người khai thác cảng hàng không, sân bay phải thực hiện phân tích đánh giá an toàn và đưa vào danh mục không đáp ứng trong tài liệu khai thác sân bay để báo cáo Cục Hàng không Việt Nam theo quy định.
2. Trên dải bay của đường cất hạ cánh tiếp cận chính xác phân định bằng cạnh dưới của bề mặt chuyển tiếp trong không được có bất kỳ vật thể cố định nào ngoài các thiết bị bằng mắt cần thiết cho mục đích dẫn đường hàng không và thoả mãn các yêu cầu dễ gãy theo quy định. Không được có vật thể di động trong phạm vi của dải bay trong thời gian tàu bay cất hạ cánh trên đường cất hạ cánh.
Điều 28. San gạt dải bay
1. Đối với đường cất hạ cánh có thiết bị, dải bay được san nền trong phạm vi khoảng cách tối thiểu về mỗi phía tính từ tim đường cất hạ cánh kéo dài nhằm đảm bảo cho tàu bay sử dụng đường cất hạ cánh an toàn trong trường hợp lăn ra khỏi phạm vi đường cất hạ cánh như sau:
a) 75m khi mã số là 3 hoặc 4;
b) 40m khi mã số là 1 hoặc 2.
2. Đối với đường cất hạ cánh không có thiết bị, dải bay được san nền trong phạm vi khoảng cách tối thiểu về mỗi phía tính từ tim đường cất hạ cánh kéo dài nhằm đảm bảo cho tàu bay sử dụng đường cất hạ cánh an toàn trong trường hợp lăn ra khỏi phạm vi đường cất hạ cánh như sau:
a) 75m khi mã số là 3 và 4;
b) 40m khi mã số 2;
c) 30m khi mã số 1.
3. Một phần bề mặt dải bay trong phạm vi đường cất hạ cánh, lề hay đoạn dừng chính là bề mặt của đường cất hạ cánh, lề hay đoạn dừng.
4. Trong dải bay, ít nhất trong phạm vi 30m trước ngưỡng đường cất hạ cánh phải được xây dựng cẩn thận, nhằm chống xói do luồng khí từ động cơ tàu bay và khi tàu bay chạm bánh không bị va đập vào mép đường cất hạ cánh nhô lên. Bề mặt của khu vực này cần có sức chịu tải đảm bảo cho hoạt động không thường xuyên của tàu bay.
Điều 29. Độ dốc của dải bay
1. Độ dốc dọc dải bay không vượt quá:
a) 1,5% khi mã số là 4;
b) 1,75% khi mã số là 3;
c) 2% khi mã số là 1 hoặc 2.
2. Độ dốc ngang trên dải bay phải đảm bảo không cho đọng nước mặt nhưng không lớn hơn:
a) 2,5% khi mã số là 3 hoặc 4;
b) 3% khi mã số là 1 hoặc 2;
c) Trường hợp cần thoát nước nhanh trong phạm vi 3m đầu tiên ngoài mép đường cất hạ cánh, lề hoặc đoạn dừng có dốc theo hướng từ đường cất hạ cánh ra có thể lấy bằng 5%.
3. Thay đổi độ dốc dọc dải bay càng ít càng tốt, tránh chuyển tiếp độ dốc đột ngột hay các độ dốc ngược chiều quá lớn.
4. Độ dốc ngang bất kỳ phần nào vượt ra ngoài giới hạn của dải bay cần được san gạt để đảm bảo không vượt quá độ dốc 5% theo hướng lên khi nhìn từ phía đường cất hạ cánh.
Điều 30. Sức chịu tải dải bay
1. Sức chịu tải của dải bay đối với đường cất hạ cánh có thiết bị được quy định như sau:
a) Đối với đường cất hạ cánh có mã số là 3, 4: trong giới hạn tối thiểu 75m tính từ tim đường cất hạ cánh kéo dài cần được gia cố hoặc xây dựng sao cho khi các loại tàu bay dự kiến khai thác lăn ra ngoài đường cất hạ cánh ít bị nguy hiểm nhất;
b) Đối với đường cất hạ cánh có mã số là 1, 2: trong giới hạn tối thiểu 40m tính từ tim đường cất hạ cánh kéo dài cần được gia cố hoặc xây dựng sao cho khi các loại tàu bay dự kiến khai thác lăn ra ngoài đường cất hạ cánh ít bị nguy hiểm nhất.
2. Sức chịu tải của dải bay đối với đường cất hạ cánh không có thiết bị được quy định như sau:
a) Đối với đường cất hạ cánh có mã số là 3, 4: trong giới hạn tối thiểu 75m tính từ tim đường cất hạ cánh kéo dài cần được gia cố hoặc xây dựng sao cho khi các loại tàu bay dự kiến khai thác lăn ra ngoài đường cất hạ cánh ít bị nguy hiểm nhất;
b) Đối với đường cất hạ cánh có mã số là 2: trong giới hạn tối thiểu 40m tính từ tim đường cất hạ cánh kéo dài cần được gia cố hoặc xây dựng sao cho khi các loại tàu bay dự kiến khai thác lăn ra ngoài đường cất hạ cánh ít bị nguy hiểm nhất;
c) Đối với đường cất hạ cánh có mã số là 1: trong giới hạn tối thiểu 30m tính từ tim đường cất hạ cánh kéo dài cần được gia cố hoặc xây dựng sao cho khi các loại tàu bay dự kiến khai thác lăn ra ngoài đường cất hạ cánh ít bị nguy hiểm nhất.
Điều 31. Khu vực an toàn cuối đường CHC (Runway end safety area - RESA)
1. Phải xác định và thiết lập khu vực an toàn cuối đường CHC tại điểm cuối dải bay của đường CHC khi sân bay có:
a) Mã số là 3 hoặc 4;
b) Mã số là 1 hoặc 2 và đường CHC có thiết bị.
2. Khuyến khích việc xác định và thiết lập khu vực an toàn cuối đường cất hạ cánh đối với mã số là 1 hoặc 2 và đường cất hạ cánh không có thiết bị.
3. Khu vực an toàn cuối đường cất hạ cánh được kéo dài từ cuối dải bay đến khoảng cách tối thiểu 90m với các trường hợp:
a) Mã số là 3 hoặc 4;
b) Mã số là 1 hoặc 2 và đường cất hạ cánh có thiết bị;
c) Nếu có thể thiết lập một hệ thống hãm tàu bay, chiều dài trên có thể được giảm xuống dựa trên đặc điểm kỹ thuật thiết kế của hệ thống hãm tàu bay.
4. Trong điều kiện cho phép, khuyến khích áp dụng khu vực an toàn cuối đường cất hạ cánh được kéo dài càng xa càng tốt; có thể kéo dài chiều dài khu vực an toàn cuối đường cất hạ cánh bắt đầu từ điểm cuối của dải bay tới khoảng cách tối thiểu là:
a) 240m đối với mã số là 3 hoặc 4; hoặc giảm độ dài khi có hệ thống hãm;
b) 120m đối với mã số là 1 hoặc 2 và đường cất hạ cánh có thiết bị; hoặc giảm độ dài khi có hệ thống hãm;
c) 30m đối với mã số là 1 hoặc 2 và đường cất hạ cánh không có thiết bị.
5. Chiều rộng khu vực an toàn cuối đường cất hạ cánh ít nhất bằng hai lần chiều rộng thực tế của đường cất hạ cánh. Trong điều kiện cho phép, chiều rộng khu vực an toàn cuối đường cất hạ cánh khuyến khích lấy bằng với chiều rộng dải bay.
6. Một vật thể nằm trên khu vực an toàn cuối đường cất hạ cánh có thể gây nguy hiểm cho tàu bay nên được coi là một chướng ngại vật và cần di dời đảm bảo khoảng cách an toàn theo quy định hoặc được loại bỏ.
7. Khu vực an toàn cuối đường cất hạ cánh phải được làm sạch và san ủi để sẵn sàng cho các tàu bay cần đáp xuống đường cất hạ cánh đột xuất hoặc tàu bay trượt ra ngoài đường cất hạ cánh.
8. Độ dốc khu vực an toàn cuối đường cất hạ cánh được chọn sao cho mọi phần của khu vực an toàn cuối đường cất hạ cánh không nhô lên khỏi bề mặt tiếp cận hoặc bề mặt lấy độ cao cất cánh.
9. Độ dốc của khu vực an toàn cuối đường cất hạ cánh
a) Độ dốc dọc của khu vực an toàn cuối đường cất hạ cánh không được vượt quá 5% theo hướng giảm; Việc thay đổi dốc dọc cần tránh chuyển tiếp độ dốc đột ngột hay các độ dốc ngược chiều quá lớn;
b) Độ dốc ngang của khu vực an toàn cuối đường cất hạ cánh không được vượt quá 5% trong cả trường hợp tăng hoặc giảm độ dốc. Việc thay đổi dốc ngang cần tránh chuyển tiếp độ dốc đột ngột.
10. Sức chịu tải của các khu vực an toàn cuối đường cất hạ cánh phải được tính toán để đảm bảo giảm nguy cơ hư hỏng tàu bay và đảm bảo cho các phương tiện cứu nạn chữa cháy có thể di chuyển được.
Điều 32. Khoảng trống (clearway)
1. Khoảng trống được bắt đầu ở cuối cự ly chạy đà cất cánh.
2. Chiều dài khoảng trống không vượt quá nửa chiều dài cự ly chạy đà cất cánh.
3. Chiều rộng khoảng trống mở rộng từ tim đường cất hạ cánh kéo dài về mỗi phía tối thiểu:
a) 75m cho đường cất hạ cánh có thiết bị;
b) Một nửa chiều rộng của dải bay cho đường cất hạ cánh không có thiết bị.
4. Bề mặt của khoảng trống không được nhô lên khỏi mặt nghiêng với độ dốc lên 1,25%. Giới hạn dưới của mặt phẳng đó là mặt nằm ngang có tính chất:
a) Vuông góc với mặt phẳng đứng đi qua tim đường cất hạ cánh;
b) Đi qua một điểm nằm trên tim đường cất hạ cánh ở cuối cự ly chạy đà cất cánh.
5. Tránh việc thay đổi đột ngột độ dốc của khoảng trống nếu độ dốc khoảng trống tương đối nhỏ hay độ dốc trung bình là dốc lên. Trong những trường hợp khoảng trống nằm trong phạm vi 22,5m hoặc một nửa chiều rộng của đường cất hạ cánh, tuỳ theo giá trị nào lớn hơn, về mỗi phía tim đường cất hạ cánh kéo dài; độ dốc, sự thay đổi độ dốc cũng như sự chuyển tiếp của độ dốc từ đường cất hạ cánh đến khoảng trống phải phù hợp với yêu cầu của đường cất hạ cánh đó.
6. Vật thể trên khoảng trống có nguy cơ làm mất an toàn cho tàu bay được coi như chướng ngại vật và phải được dời đi.
Điều 33. Đoạn dừng
1. Đoạn dừng của đường cất hạ cánh có chiều rộng bằng chiều rộng đường cất hạ cánh mà nó nối tiếp.
2. Độ dốc và sự thay đổi độ dốc của đoạn dừng cũng như chuyển tiếp từ đường cất hạ cánh đến đoạn dừng phải đồng bộ với độ dốc của đường cất hạ cánh, trừ những trường hợp khi:
a) Đường cất hạ cánh mã số 4 có độ dốc dọc 0,8% tại khu vực 1/4 chiều dài đường cất hạ cánh ở đầu và 1/4 chiều dài đường cất hạ cánh ở cuối, thì đoạn dừng không nhất thiết có độ dốc dọc là 0,8%.
b) Ở chỗ tiếp giáp giữa đoạn dừng với đường cất hạ cánh và dọc theo đoạn dừng, sự thay đổi độ dốc tối đa có thể bằng 0,3% trên đoạn 30m (bán kính tối thiểu của đường cong đứng bằng 10.000m) đối với đường cất hạ cánh có mã số 3 hoặc 4.
3. Đoạn dừng được gia cố hay xây dựng sao cho khi tàu bay bị trượt ra khỏi đường cất hạ cánh, nó có thể chịu được tải trọng tàu bay mà không làm hỏng cấu trúc tàu bay.
4. Bề mặt đoạn dừng được xây dựng sao cho bảo đảm được hệ số ma sát tương đương hoặc hơn hệ số ma sát trên đường cất hạ cánh.
Điều 34. Khu vực hoạt động của thiết bị vô tuyến đo độ cao
1. Khu vực hoạt động của thiết bị vô tuyến đo độ cao (Radio altimeter operating area- RAOA) được bố trí tại khu vực trước ngưỡng vào của đường cất hạ cánh tiếp cận chính xác.
2. Chiều dài khu vực hoạt động của RAOA được kéo dài ra phía trước ngưỡng ít nhất là 300m.
3. Chiều rộng của khu vực hoạt động của RAOA được mở rộng ra hai phía cách tim đường cất hạ cánh là 60m, trừ những tình huống đặc biệt cho phép, khoảng cách đó có thể được giảm xuống nhưng không dưới 30m, nếu việc giảm đó không ảnh hưởng đến an toàn hoạt động của tàu bay.
4. Không thay đổi độ dốc địa hình hoặc thay đổi ít nhất có thể độ dốc dọc trên khu vực hoạt động của RAOA. Khi không tránh được thay đổi độ dốc thì phải thay đổi từ từ, tránh đột ngột hoặc đổi chiều độ dốc. Sự thay đổi giữa 2 độ dốc cạnh nhau không vượt quá 2% trên 30m.
MỤC 3: ĐƯỜNG LĂN
Điều 35. Quy định chung
1. Đường lăn được xây dựng để đảm bảo cho tàu bay di chuyển nhanh và an toàn trên mặt đất. Việc xác định vị trí đường lăn, đường lăn thoát nhanh phụ thuộc vào đặc điểm loại tàu bay khai thác và nhu cầu thực tế khai thác, tần suất khai thác tại từng cảng hàng không, sân bay.
2. Đường lăn phải đảm bảo sao cho khi vị trí cabin tàu bay nằm phía trên tim đường lăn thì bánh ngoài của càng chính cách mép đường lăn không nhỏ hơn các giá trị trong bảng sau:
|
Khoảng cách mép ngoài của bánh ngoài càng tàu bay (OMGWS) |
||||
|
|
Dưới 4,5m |
Từ 4,5m đến dưới 6m |
Từ 6m đến dưới 9m |
Từ 9m đến dưới 15m |
|
Khoảng cách |
1,5m |
2,25m |
3ma,b hoặc 4mc |
4m |
|
a. Trên đoạn thẳng. b. Trên đoạn cong nếu đường lăn sử dụng cho tàu bay có khoảng cách từ càng mũi tới tim của càng chính nhỏ hơn 18m. c. Trên đoạn cong nếu đường lăn sử dụng cho tàu bay có khoảng cách từ càng mũi tới tim của càng chính bằng hoặc lớn hơn 18m. |
||||
Bảng II.3. Khoảng cách tối thiểu mép ngoài của bánh ngoài càng tàu bay
Điều 36. Chiều rộng đường lăn
Chiều rộng đường lăn trên đoạn thẳng không nhỏ hơn giá trị trong bảng dưới đây:
|
|
Khoảng cách mép ngoài của bánh ngoài càng tàu bay (OMGWS) |
|||
|
Dưới 4,5m |
Từ 4,5m đến dưới 6m |
Từ 6m đến dưới 9m |
Từ 9m đến dưới 15m |
|
|
Chiều rộng đường lăn |
7,5m |
10,5m |
15m |
23m |
Bảng II.4. Chiều rộng tối thiểu đường lăn trên đoạn đường thẳng
Điều 37. Các đoạn vòng của đường lăn
Hạn chế tối đa các đoạn vòng của đường lăn. Trường hợp đường lăn bắt buộc phải có đoạn vòng, đoạn vòng của đường lăn phải đảm bảo sao cho khi vị trí cabin tàu bay nằm trên vạch tim đường lăn thì khoảng cách từ mép đường lăn tới bánh ngoài của càng không nhỏ hơn giá trị nêu tại Điều 34.
Điều 38. Vị trí giao nhau giữa đường lăn với đường lăn, đường cất hạ cánh hoặc sân đỗ
Vị trí giao nhau giữa đường lăn với đường lăn, đường cất hạ cánh hoặc sân đỗ cần mở rộng để tàu bay di chuyển được dễ dàng. Phần mở rộng có hình dạng đảm bảo cho tàu bay đi qua vị trí giao nhau vẫn giữ được khoảng cách tối thiểu của bánh tới mép đường lăn nêu tại Điều 35.
Hình II.1. Đoạn vòng đường lăn

Điều 39. Các khoảng cách đối với đường lăn
1. Khoảng cách giữa tim đường lăn với tim đường CHC, tim đường lăn song song hoặc vật thể không nhỏ hơn kích thước quy định ở Bảng dưới đây.
|
Mã chữ |
Khoảng cách giữa tim đường lăn với tim đường CHC (m) |
Từ tim đường lăn tới tim đường lăn (m) |
Từ tim đường lăn không phải là vệt lăn vị trí đỗ tàu bay tới vật thể (m) |
Từ tim vệt lăn vị trí đỗ tàu bay đến tim vệt lăn vị trí đỗ tàu bay (m) |
Từ tim đường lăn trên sân đỗ tàu bay tới vật thể (m) |
|||||||
|
Đường CHC có thiết bị |
Đường CHC không có thiết bị |
|||||||||||
|
Mã số |
Mã số |
|||||||||||
|
1 |
2 |
3 |
4 |
1 |
2 |
3 |
4 |
|||||
|
(1) |
(2) |
(3) |
(4) |
(5) |
(6) |
(7) |
(8) |
(9) |
(10) |
(11) |
(12) |
(13) |
|
A |
77,5 |
77,5 |
- |
- |
37,5 |
47,5 |
- |
- |
23 |
15,5 |
19,5 |
12 |
|
B |
82 |
82 |
152 |
- |
42 |
52 |
87 |
- |
32 |
20 |
28,5 |
16,5 |
|
C |
88 |
88 |
158 |
158 |
48 |
58 |
93 |
93 |
44 |
26 |
40,5 |
22,5 |
|
D |
- |
- |
166 |
166 |
- |
- |
101 |
101 |
63 |
37 |
59,5 |
33,5 |
|
E |
- |
- |
172,5 |
172,5 |
- |
- |
107,5 |
107,5 |
76 |
43,5 |
72,5 |
40 |
|
F |
- |
- |
180 |
180 |
- |
- |
115 |
115 |
91 |
51 |
87,5 |
47,5 |
|
Chú thích: - Khoảng cách trong các cột (2) đến (9) là khoảng cách thông thường giữa đường CHC và đường lăn. - Các khoảng cách trong cột từ (2) đến (9) chưa phải là đã đủ khoảng trống phía sau tàu bay đang chờ cho tàu bay khác đi qua trên đường lăn song song. |
||||||||||||
Bảng II.5. Các khoảng cách tối thiểu của đường lăn
2. Việc xác định đường lăn, đường lăn thoát nhanh, vệt lăn trên sân đỗ, vệt lăn vị trí đỗ tàu bay được quy định tại hình vẽ dưới đây và phân biệt theo màu sắc hoặc theo đánh dấu số.

Hình II.2. Xác định đường lăn, đường lăn thoát nhanh, vệt lăn
Điều 40. Độ dốc của đường lăn
1. Độ dốc dọc không được vượt quá:
a) 1,5% đối với sân bay mã chữ là C, D, E hoặc F;
b) 3% đối với sân bay mã chữ là A hoặc B.
2. Trong các trường hợp không thể tránh được thay đổi độ dốc dọc đường lăn, việc chuyển từ độ dốc này sang độ dốc khác với các giá trị thay đổi dốc không lớn hơn:
a) 1% trên 30m (bán kính cong tối thiểu 3.000m), khi mã chữ C, D, E hoặc F;
b) 1% trên 25m (bán kính cong tối thiểu là 2.500m) khi mã chữ A hoặc B.
3. Trong trường hợp đường lăn không tránh được sự thay đổi độ dốc dọc thì phải đảm bảo cho phép nhìn rõ từ một điểm bất kỳ trên đường lăn ở độ cao:
a) 3m có thể nhìn thấy toàn bộ bề mặt đường lăn cách xa điểm nhìn ít nhất 300m đối với sân bay mã chữ là C, D E hoặc F;
b) 2m có thể nhìn thấy toàn bộ bề mặt đường lăn cách xa điểm nhìn ít nhất 200m đối với sân bay mã chữ là B;
c) 1,5m có thể nhìn thấy toàn bộ bề mặt đường lăn cách xa điểm nhìn ít nhất 150m đối với sân bay mã chữ là A.
4. Độ dốc ngang của đường lăn phải đủ lớn để tránh đọng nước trên bề mặt đường lăn nhưng không vượt quá:
a) 1,5% đối với sân bay mã chữ là C, D, E hoặc F;
b) 2% đối với sân bay mã chữ là A hoặc B.
Điều 41. Sức chịu tải và bề mặt của đường lăn
1. Sức chịu tải của đường lăn tối thiểu phải bằng sức chịu tải của đường cất hạ cánh.
2. Trong trường hợp đường lăn có mật độ hoạt động của tàu bay cao, tàu bay di chuyển chậm, có thể thiết kế, xây dựng đường lăn có sức chịu tải lớn hơn đường cất hạ cánh.
3. Bề mặt đường lăn không nên có các yếu tố bất thường gây hư hỏng cấu trúc tàu bay.
4. Bề mặt đường lăn nên được xây dựng hoặc sửa chữa có độ ma sát bề mặt phù hợp.
Ghi chú: Độ ma sát bề mặt phù hợp là những đặc tính bề mặt cần có được yêu cầu trên đường lăn đảm bảo an toàn cho hoạt động của tàu bay.
Điều 42. Đường lăn thoát nhanh
1. Đường lăn thoát nhanh có bán kính cong nhỏ nhất cho tàu bay rời đường cất hạ cánh là:
a) 550m đối với đường cất hạ cánh đối với mã số 3 hoặc 4;
b) 275m đối với đường cất hạ cánh đối với mã số 1 hoặc 2.
2. Đường lăn thoát nhanh đảm bảo vận tốc lăn ra ở điều kiện mặt đường ẩm ướt là:
a) 93 km/h cho đường cất hạ cánh đối với mã số 3 hoặc 4;
b) 65 km/h cho đường cất hạ cánh đối với mã số 1 hoặc 2.

Hình II.3. Đường lăn thoát nhanh
3. Bán kính cong của tim đường lăn thoát nhanh tại vị trí giao với đường cất hạ cánh phải đảm bảo đủ rộng và dễ nhận biết kịp thời lối vào và ra của đường lăn.
4. Đường lăn thoát nhanh phải có một đoạn thẳng đủ cho tàu bay có thể dừng lại đảm bảo khoảng cách an toàn đối với đường cất hạ cánh và đường lăn.
5. Góc giao nhau của đường lăn thoát nhanh với đường cất hạ cánh không lớn hơn 45o và không nhỏ hơn 25o, tốt nhất là bằng 30o.
Điều 43. Đường lăn trên cầu vượt
1. Trường hợp xây dựng đường lăn trên cầu vượt, chiều rộng của các đoạn đường lăn trên cầu vượt phải đảm bảo an toàn cho tàu bay lăn, chiều rộng của cầu vượt không được nhỏ hơn chiều rộng của dải lăn.
2. Phải có đường cho phương tiện khẩn nguy và cứu hỏa vào được theo cả hai hướng trên cầu vượt.
3. Cầu vượt nên được xây trên đoạn thẳng đường lăn và có đoạn nối thẳng với cả hai đầu cầu để thuận tiện cho việc khai thác.
Điều 44. Lề đường lăn
1. Lề đường lăn được bố trí ở hai phía đối xứng với đường lăn sao cho tổng chiều rộng của đường lăn và các lề trên các đoạn thẳng không nhỏ hơn:
a) 44m, khi mã chữ F;
b) 38m, khi mã chữ E;
c) 34m, khi mã chữ D;
d) 25m, khi mã chữ C.
2. Tại nút giao nhau của đường lăn, chiều rộng của lề đường lăn tại các vị trí này không nhỏ hơn chiều rộng của lề trên đoạn đường lăn thẳng liền kề.
3. Bề mặt lề đường lăn phải đảm bảo kết cấu nhằm chống xói mòn và chống vật liệu bề mặt bị hút vào động cơ tàu bay.
Điều 45. Dải lăn (taxiway strip)
1. Mọi đường lăn phải có dải lăn, trừ đường lăn trên sân đỗ tàu bay.
2. Dải lăn được bố trí dọc theo chiều dài đường lăn đối xứng về hai phía so với tim đường lăn, có chiều rộng tối thiểu bằng các khoảng cách nêu trong cột 11 Bảng II.5 Điều 39.
3. Trên dải lăn không được có các vật thể ảnh hưởng đến an toàn cho tàu bay lăn.
4. Phần san gạt của dải lăn phải đảm bảo cự ly tối thiểu cách tim đường lăn là:
a) 10,25 m khi OMGWS dưới 4,5m;
b) 11 m khi OMGWS từ 4,5m đến dưới 6m;
c) 12,5 m khi OMGWS từ 6m đến dưới 9m;
d) 18,5 m khi OMGWS từ 9m đến dưới 15m khi mã số là D;
đ) 19 m khi OMGWS từ 9m đến dưới 15m khi mã số là E;
e) 22 m khi OMGWS từ 9m đến dưới 15m khi mã số là F.
5. Bề mặt của dải lăn tại mép đường lăn hoặc lề, nếu có và phần được san gạt có độ dốc ngang hướng lên không vượt quá:
a) 2,5% đối với dải lăn mã chữ C, D, E hoặc F.
b) 3% đối với dải lăn mã chữ A hoặc B.
Trong đó hướng lên của độ dốc được so với độ dốc ngang của bề mặt đường lăn tiếp giáp, không so với mặt phẳng ngang. Độ dốc ngang đi xuống không vượt quá 5% so với mặt phẳng ngang.
6. Độ dốc ngang của bất kỳ phần nào nằm ngoài phần san gạt của dải lăn không vượt quá độ dốc lên hoặc xuống 5% theo hướng nhìn từ đường lăn.
Điều 46. Sân chờ, vị trí chờ lên đường CHC, vị trí chờ trung gian và vị trí chờ tại đường công vụ
1. Khi mật độ giao thông trung bình hoặc cao cần xây dựng sân chờ đường CHC.
2. Vị trí chờ lên đường CHC và các vị trí chờ khác phải được thiết lập tại các vị trí:
a) Trên đường lăn tại nút giao của đường lăn với đường CHC;
b) Trên nút giao của một đường CHC với đường CHC khác.
3. Vị trí chờ lên đường CHC được thiết lập trên đường lăn tại vị trí mà tàu bay và phương tiện có thể làm cản trở hoạt động hoặc vi phạm bề mặt giới hạn chướng ngại vật của thiết bị dẫn đường.
4. Vị trí chờ trung gian có thể được thiết kế tại bất kỳ chỗ nào trên đường lăn ngoài vị trí chờ lên đường CHC nếu nó thỏa mãn yêu cầu kỹ thuật giới hạn vị trí chờ.
5. Vị trí chờ trên đường công vụ được thiết lập tại nút giao của đường công vụ với đường CHC.
6. Khoảng cách từ tim đường CHC đến sân chờ, vị trí chờ lên đường CHC, vị trí chờ trên đường công vụ được xác định theo Bảng II.6. Đối với đường CHC tiếp cận chính xác, vị trí chờ của tàu bay và phương tiện không được cản trở hoạt động của thiết bị dẫn đường hoặc vi phạm mặt chuyển tiếp trong.
7. Tại các sân bay có độ cao trên 700m, khoảng cách 90m nêu trong Bảng II.6 của đường CHC tiếp cận chính xác mã số 4 cần được tăng lên như sau:
a) Độ cao đến 2.000m: thêm 1m đối với mỗi 100m cao thêm kể từ độ cao 700m;
b) Độ cao từ 2.000m đến 4.000m: 13m cộng thêm 1,5m cho mỗi 100m cao thêm kể từ độ cao 2.000m;
c) Độ cao từ 4.000m đến độ cao 5.000m: 43m cộng thêm 2m cho mỗi 100m cao thêm kể từ độ cao 4.000m.
|
Loại đường CHC |
Mã số đường CHC |
|||
|
1 |
2 |
3 |
4 |
|
|
Đường CHC không có thiết bị |
30 |
40 |
75 |
75 |
|
Đường CHC tiếp cận giản đơn |
40 |
40 |
75 |
75 |
|
Đường CHC tiếp cận chính xác CAT I |
60b |
60b |
90a,b |
90a,b |
|
Đường CHC tiếp cận chính xác CAT II và III |
-- |
-- |
90a,b |
90a,b |
|
Đường CHC cất cánh |
30 |
40 |
75 |
75 |
|
a. Nếu độ cao sân chờ hoặc vị trí chờ lên đường cất hạ cánh, vị trí chờ trên đường công vụ thấp hơn ngưỡng đường cất hạ cánh, khoảng cách trên có thể giảm đi 5m đối với mỗi mét thấp hơn ngưỡng phía trên sân chờ hoặc vị trí chờ nhưng không được vi phạm mặt chuyển tiếp trong. b. Khoảng cách đó có thể phải tăng để tránh nhiễu đối với hoạt động của các thiết bị vô tuyến dẫn đường hàng không - RNA, đặc biệt là các thiết bị glide path và localizer. Khoảng cách 90m đối với mã số 3 hoặc 4 dựa trên cơ sở đuôi tàu bay cao 20m, khoảng cách từ mũi tới điểm cao nhất của đuôi 52,7m và chiều cao phần mũi 10 m tạo thành góc 450 hoặc lớn hơn so với tim đường cất hạ cánh ở ngoài OFZ và khoảng cách này không được kể vào trong tính toán OCA/H. Khoảng cách 60m đối với mã số 2 được dựa trên cơ sở xem xét tàu bay có chiều cao đuôi 8m, khoảng cách từ mũi tới điểm cao nhất của đuôi 24,6m và chiều cao mũi 5,2m tạo thành góc 450 hoặc lớn hơn so với tim đường cất hạ cánh và ở ngoài OFZ. Đối với mã số 4 khi chiều rộng của cạnh trong của bề mặt tiếp cận trong lớn hơn 120 m, khoảng cách cần lớn hơn 90m để đảm bảo vị trí chờ ở ngoài OFZ. Ví dụ: Khoảng cách 100m dựa trên cơ sở tàu bay có chiều cao đuôi là 24m, còn khoảng cách từ mũi tàu bay đến phần cao nhất của đuôi là 62,2m và chiều cao của mũi là 10m tạo thành góc 450 hoặc lớn hơn so với tim đường cất hạ cánh và ở ngoài OFZ. |
||||
Bảng II.6. Khoảng cách tối thiểu từ tim đường CHC đến sân chờ, vị trí chờ lên đường CHC hoặc vị trí chờ trên đường công vụ (m)
8. Nếu độ cao của sân chờ, vị trí chờ đường lên cất hạ cánh hoặc vị trí chờ trên đường công vụ đối với đường cất hạ cánh tiếp cận chính xác mã số 4 lớn hơn độ cao của ngưỡng đường cất hạ cánh, khoảng cách theo yêu cầu kỹ thuật tương ứng nêu trong Bảng II.6 phải tăng thêm 5m đối với mỗi mét chênh cao giữa độ cao của sân chờ hoặc vị trí chờ so với độ cao của ngưỡng đường cất hạ cánh.
9. Vị trí chờ đường lên cất hạ cánh được phải được thiết lập theo khoản 3 của Điều này phải đảm bảo cho tàu bay và phương tiện đang đỗ không xâm phạm vùng OFZ, bề mặt tiếp cận, bề mặt lấy độ cao cất cánh hoặc vùng ảnh hưởng của thiết bị ILS/MLS hay cản trở hoạt động của thiết bị dẫn đường.
MỤC 4: SÂN ĐỖ TÀU BAY
Điều 47. Yêu cầu chung của sân đỗ tàu bay
1. Sân đỗ tàu bay được đặt tại nơi thuận lợi cho việc đưa đón hành khách, thực hiện bốc dỡ hành lý, bưu kiện lên xuống tàu bay và phục vụ tàu bay mà không cản trở giao thông trên sân bay.
2. Diện tích sân đỗ tàu bay phải đủ đáp ứng năng lực thông qua trên sân bay với mật độ tính toán lớn nhất.
3. Sức chịu tải của sân đỗ phải lớn hơn hoặc bằng sức chịu tải của đường cất hạ cánh, đường lăn.
4. Độ dốc của sân đỗ tàu bay phải đảm bảo điều kiện thoát nước của sân đỗ. Độ dốc tối đa của sân đỗ tàu bay không vượt quá 1%.
Điều 48. Khoảng cách an toàn giữa các vị trí đỗ tàu bay
Vị trí đỗ của tàu bay phải đảm bảo đủ khoảng cách an toàn tối thiểu cho tàu bay ra/vào vị trí đỗ với công trình liền kề, vật thể, tàu bay tại vị trí đỗ tàu bay khác; khoảng an toàn tối thiểu được quy định tại bảng sau:
|
Mã chữ |
Khoảng cách an toàn (m) |
|
A |
3 |
|
B |
3 |
|
C |
4,5 |
|
D |
7,5 |
|
E |
7,5 |
|
F |
7,5 |
|
Đối với trường hợp đặc biệt, tại sân bay có mã chữ D, E hoặc F, khoảng cách an toàn tại vị trí mũi tàu bay được giảm trong các trường hợp sau: a) Giữa khoảng cách đến nhà ga, bao gồm cả cầu hành khách đến mũi tàu bay. b) Tại vị trí đỗ tàu bay có hệ thống dẫn đỗ tự động. |
|
Bảng II.7. Khoảng cách an toàn tối thiểu giữa tàu bay và công trình liền kề, vật thể, vị trí đỗ tàu bay khác
Điều 49. Vị trí đỗ tàu bay cách ly (biệt lập)
1. Người khai thác cảng hàng không, sân bay phải bố trí tối thiểu 01 vị trí đỗ tàu bay cách ly phục vụ cho các tình huống khẩn nguy sân bay, chống dịch bệnh lây lan hoặc trong các tình huống bảo đảm an ninh hàng không, an ninh quốc phòng.
2. Vị trí đỗ tàu bay cách ly phải bố trí cách xa các vị trí đỗ tàu bay khác, nhà cửa hoặc các công trình công cộng khác và trong mọi trường hợp không được dưới 100m, đảm bảo thuận lợi cho công tác an ninh, an toàn, phòng cháy chữa cháy và xử lý nghiệp vụ.
3. Không bố trí vị trí đỗ tàu bay cách ly phía trên các công trình ngầm như bể chứa nhiên liệu tàu bay, hệ thống đường ống cung cấp nhiên liệu cho tàu bay, tuyến cáp điện lực hoặc cáp thông tin.
MỤC 5. ĐẶT TÊN ĐƯỜNG CHC, ĐƯỜNG LĂN, SÂN ĐỖ TÀU BAY
Điều 50. Đặt tên đường CHC
1. Đường cất hạ cánh được đặt tên theo hướng đường cất hạ cánh, trên đường cất hạ cánh song song thì thêm một chữ bên cạnh số đó.
2. Trên đường cất hạ cánh đơn, đường cất hạ cánh đôi song song và đường cất hạ cánh ba song song, hướng đường cất hạ cánh là một số nguyên gồm hai chữ số được xác định bằng góc phương vị từ của tim đường cất hạ cánh tính theo chiều kim đồng hồ kể từ phía Bắc nam châm xét theo chiều tiếp cận hạ cánh chia cho 10 và làm tròn. Theo quy tắc trên nếu có một chữ số thì trước nó phải thêm một số 0.
3. Trên 4 hay nhiều đường cất hạ cánh song song thì đường cất hạ cánh gần nhất được đánh số bằng 1/10 góc phương vị từ làm tròn, các đường cất hạ cánh tiếp theo được đánh số bằng 1/10 góc phương vị từ làm tròn. Theo quy tắc trên nếu có một chữ số thì trước nó phải thêm một số 0.
4. Khi có các đường cất hạ cánh song song, mỗi ký hiệu hướng đường cất hạ cánh được kèm thêm một trong các chữ cái dưới đây đặt theo thứ tự từ trái sang phải, nếu nhìn từ phía tiếp cận hạ cánh:
a) Hai đường cất hạ cánh song song "L", "R";
b) Ba đường cất hạ cánh song song "L", "C", "R";
c) Bốn đường cất hạ cánh song song "L", "R", "L", "R"; năm đường cất hạ cánh song song "L", "C", "R", "L", "R" hoặc "L","R", "L", "C", "R"; sáu đường cất hạ cánh song song "L", "C", "R", "L", "C", "R".
Điều 51. Đặt tên đường lăn
1. Hệ thống đường lăn, sân đỗ tàu bay phải được đặt tên với nguyên tắc đơn giản, lôgic, dễ hiểu.
2. Sử dụng ký tự chữ cái và ký tự số để đặt tên cho các đường lăn, vệt lăn chính trên sân đỗ tàu bay. Thứ tự đặt tên các đường lăn tăng dần theo một hướng nhất định, phù hợp với điều kiện, địa hình của từng cảng hàng không, sân bay.
3. Sử dụng ký tự chữ cái đơn (như: A, B,....,) để đặt tên cho các đường lăn:
a) Đường lăn song song với đường cất hạ cánh (để đảm bảo quỹ chữ cái đặt tên cho hệ thống đường lăn, nên đặt tên đường lăn đầu tiên song song với đường cất hạ cánh theo hướng về phía nhà ga hành khách là chữ E);
b) Đường lăn có mật độ tàu bay lăn cao (người khai thác cảng hàng không, sân bay có trách nhiệm phối hợp với đài kiểm soát tại sân bay để thống nhất và đề xuất đường lăn có mật độ tàu bay lăn cao), cắt qua nhiều đường lăn, đường cất hạ cánh;
c) Vệt lăn chính trên sân đỗ tàu bay có mật độ tàu bay lăn cao.
4. Sử dụng ký tự chữ cái và ký tự số (như: A1, A2, A3, B1, B2....) để đặt tên cho các đường lăn nối (phần ký tự số nên đặt tăng dần theo hướng hạ cánh chủ yếu của đường cất hạ cánh):
a) Đường lăn nối giữa đường cất hạ cánh và đường lăn song song;
b) Đường lăn nối giữa 02 đường lăn song song;
c) Đường lăn nối giữa 02 đường cất hạ cánh;
d) Đường lăn nối từ đường lăn song song hoặc đường cất hạ cánh với sân đỗ tàu bay.
5. Quy tắc lựa chọn ký tự chữ cái và ký tự số để đặt tên cho các đường lăn nối như sau:
a) Đường lăn nối giữa đường cất hạ cánh và đường lăn song song: ký tự chữ cái được lấy theo tên đường lăn song song, ký tự số tăng dần theo một hướng nhất định (thứ tự nên đặt tăng dần theo hướng hạ cánh chủ yếu của đường cất hạ cánh);
b) Đường lăn nối giữa 02 đường lăn song song: ký tự chữ cái được lấy theo tên đường lăn song song xếp thứ tự trước (thứ tự bảng chữ cái), ký tự số tăng dần theo một hướng nhất định (thứ tự nên đặt tăng dần theo hướng hạ cánh chủ yếu của đường cất hạ cánh);
c) Đường lăn nối giữa 02 đường cất hạ cánh: ký tự chữ cái là chữ cái có thứ tự tiếp theo của tên đường lăn song song hoặc vệt lăn chính trên sân đỗ tàu bay, ký tự số tăng dần theo một hướng nhất định (thứ tự nên đặt tăng dần theo hướng hạ cánh chủ yếu của đường cất hạ cánh);
d) Đường lăn nối từ đường lăn song song hoặc đường cất hạ cánh với sân ỗ tàu bay: ký tự chữ cái là ký tự tiếp theo của tên vệt lăn song song trên sân đỗ tàu bay, ký tự số tăng dần theo một hướng nhất định (thứ tự nên đặt tăng dần theo hướng hạ cánh chủ yếu của đường cất hạ cánh).
6. Không sử dụng chữ cái "I" và "O" để đặt tên cho đường lăn, vì 02 chữ cái này dễ gây nhầm lẫn sang ký tự chữ số "1", "0".
7. Không sử dụng chữ cái "X" để đặt tên đường lăn, vì dấu hiệu "X" có thể bị hiểu sai thành đường cất hạ cánh hoặc đường lăn đang tạm ngừng khai thác.
8. Không sử dụng chữ cái "L" và "R" kết hợp với số (như: L1, L2...., R1, R2....) để đặt tên cho đường lăn, vì cách đặt tên này dễ gây nhầm lẫn sang tên đường cất hạ cánh (như 1L, 2L, ....., 1R, 2R.....).
9. Không sử dụng chữ cái "C" đặt tên cho đường lăn để tránh gây nhầm lẫn trong quá trình đàm thoại giữa tổ lái và kiểm soát viên không lưu.
10. Không sử dụng chữ cái "F" để đặt tên cho đường lăn để tránh gây nhầm lẫn với chữ E.
11. Không sử dụng chữ cái "Z" để đặt tên cho đường lăn để tránh gây nhầm lẫn với số 2.
12. Các đường lăn không được đặt tên trùng nhau, không đặt tên đường lăn trùng với tên sân đỗ tàu bay.
13. Tại những cảng hàng không có số lượng đường lăn nhiều hơn số lượng chữ cái, sau khi sử dụng hết chữ cái để đặt tên cho đường lăn, thì sử dụng 02 chữ cái giống nhau (như: AA, BB,....,) để đặt tên cho các đường lăn còn lại. Không được sử dụng 02 chữ cái khác nhau (như: AB, DE, ....) để đặt tên cho đường lăn.
14. Khi đặt tên hệ thống đường lăn, nên đặt tên liên tục theo bảng chữ cái để đảm bảo tính thống nhất, đồng bộ, logic, dễ hiểu.
15. Việc đặt tên hệ thống đường lăn cần tính toán để đảm bảo phải phù hợp với số lượng đường lăn được xác định trong quy hoạch cảng hàng không, sân bay được duyệt.
* Một số ví dụ phương án đặt tên đường lăn.
- Đối với đường cất hạ cánh có 01 đường lăn song song, các đường lăn nối được đặt tên gồm các ký tự chữ và số theo thứ tự tăng dần từ đầu đường cất hạ cánh đến cuối đường cất hạ cánh (ví dụ như: A1, A2, A3 ....).
- Đối với đường cất hạ cánh có nhiều đường lăn song song nằm về 02 phía của đường cất hạ cánh, các đường lăn nối được đặt tên gồm ký tự chữ cái và ký tự số, ký tự chữ cái theo tên của đường lăn song song tương ứng, ký tự số tăng dần từ đầu đường cất hạ cánh đến cuối đường cất hạ cánh (như A1, B1, ...). Trong trường hợp này, ký tự số của tên các đường lăn nối đối xứng hai bên của đường cất hạ cánh có thể cùng hoặc khác nhau về ký tự số (ví dụ như, D1 và B1, hoặc E1 và D8).
Điều 52. Quy tắc đặt tên các sân đỗ, vị trí đỗ tàu bay
1. Cảng hàng không có 01 sân đỗ tàu bay, thì đặt tên sân đỗ tàu bay là APRON.
2. Cảng hàng không có phân chia nhiều khu vực sân đỗ tàu bay để thuận tiện cho công tác điều hành tàu bay di chuyển, thì các khu vực sân đỗ tàu bay nên đặt tên là APRON 1, APRON 2 ....
3. Cảng hàng không có sân đỗ tàu bay Hangar, thì đặt tên sân đỗ tàu bay Hangar đặt tên là APRON H1, APRON H2 ...
4. Tên các vị trí đỗ trên tất cả các sân đỗ tàu bay tại cảng hàng không được đặt tên bằng ký tự số tăng dần theo một hướng nhất định, riêng đối với các trường hợp sau vị trí đỗ tàu bay được đặt tên gồm ký tự số và ký tự chữ cái:
a) Vị trí chỉ cho tàu bay đỗ không khai thác thương mại (đỗ qua đêm) và vị trí đỗ tàu bay khai thác linh hoạt trên sân đỗ hàng không dân dụng thì được đặt tên gồm cả số và chữ theo thứ tự tịnh tiến như 1A, 2A, 3A, 1B, 2B ...;
b) Vị trí đỗ tàu bay trên sân đỗ hangar được đặt tên gồm cả số và chữ theo thứ tự tịnh tiến như 1H, 2H, 3H ....

Hình II.5. Ví dụ sơ đồ phương án đặt tên đường lăn
MỤC 6: TĨNH KHÔNG SÂN BAY VÀ CÁC BỀ MẶT GIỚI HẠN
Điều 53. Các bề mặt giới hạn chướng ngại vật (OLS)
1. Phạm vi không gian xung quanh sân bay mà trên nó không được có chướng ngại vật ảnh hưởng đến an toàn cất hạ cánh của tàu bay gọi là tĩnh không sân bay. Tĩnh không sân bay có các bề mặt giới hạn chướng ngại vật (OLS) phù hợp với cấp sân bay.
2. Các bề mặt giới hạn chướng ngại vật bao gồm:
a) Bề mặt ngang ngoài;
b) Bề mặt hình nón;
c) Bề mặt ngang trong;
d) Bề mặt tiếp cận;
đ) Bề mặt chuyển tiếp;
e) Bề mặt lấy độ cao cất cánh.
Điều 54. Bề mặt ngang ngoài
Những thông số liên quan đến bề mặt ngang ngoài được hướng dẫn tại tài liệu Airport Services Manual (Doc 9137), Part 6 của ICAO.
Điều 55. Bề mặt hình nón
1. Bề mặt hình nón là bề mặt có độ dốc hướng lên và hướng ra ngoài kể từ đường biên của bề mặt ngang trong.
2. Giới hạn của bề mặt hình nón bao gồm:
a) Đường biên dưới trùng với đường biên của bề mặt ngang trong;
b) Đường biên trên nằm ở độ cao xác định trên bề mặt ngang trong.
3. Độ dốc bề mặt hình nón được đo trong mặt thẳng đứng vuông góc với cạnh biên ngoài của bề mặt ngang trong.

Hình II.6. Giới hạn bề mặt tĩnh không

Hình II.7. Bề mặt tiếp cận trong, chuyển tiếp trong và bề mặt hủy bỏ hạ cánh
Điều 56. Bề mặt ngang trong
1. Bề mặt ngang trong là mặt phẳng nằm ngang phía trên sân bay và vùng lân cận sân bay.
2. Bán kính hay đường biên ngoài của bề mặt ngang trong được đo từ điểm quy chiếu hoặc các điểm được thiết lập cho mục đích đó.
3. Hình dáng của bề mặt ngang trong không nhất thiết là hình tròn. Hướng dẫn xác định phần mở rộng của bề mặt ngang trong được quy định tại Tài liệu Airport Services Manual (Doc 9137), Phần 6.
4. Chiều cao bề mặt ngang trong được đo trên mốc độ cao được thiết lập cho mục đích đó.
Điều 57. Bề mặt tiếp cận
1. Bề mặt tiếp cận là bề mặt nghiêng hoặc tổ hợp của nhiều bề mặt nằm ở phía trước ngưỡng đường cất hạ cánh.
2. Bề mặt tiếp cận có các đặc điểm sau:
a) Đường biên trong có chiều dài quy định, nằm ngang và vuông góc với trục tim kéo dài của đường cất hạ cánh và cách ngưỡng đường cất hạ cánh một khoảng quy định;
b) Hai cạnh biên bắt đầu từ hai đầu mút đường biên trong và loe dần đều cách đều đường tim kéo dài;
c) Đường biên ngoài song song với đường biên trong;
d) Trường hợp không thực hiện tiếp cận thẳng (tiếp cận lệch trục theo phương ngang, lệch trục, vòng cung), các bề mặt trên sẽ thay đổi theo trục tim kéo dài của vệt tiếp cận tương ứng;
đ) Mức cao của đường biên trong bằng mức cao điểm chính giữa của ngưỡng đường cất hạ cánh;
e) Độ dốc bề mặt tiếp cận được đo trong mặt phẳng thẳng đứng chứa trục tim đường cất hạ cánh và trục tim kéo dài của hình chiếu vệt tiếp cận lệch trục hoặc vòng cung tùy ý.
Điều 58. Bề mặt tiếp cận trong
1. Bề mặt tiếp cận trong là một phần hình chữ nhật nằm trong bề mặt tiếp cận xuất phát ở sát ngay ngưỡng đường cất hạ cánh.
2. Bề mặt tiếp cận trong có các đặc điểm sau:
a) Một đường biên trong với chiều dài quy định trùng với đường biên trong của bề mặt tiếp cận;
b) Hai cạnh biên bắt đầu từ các đầu mút của đường biên trong và kéo dài song song với mặt phẳng đứng chứa trục tim đường cất hạ cánh;
c) Một đường biên ngoài song song với đường biên trong.
Điều 59. Bề mặt chuyển tiếp
1. Bề mặt chuyển tiếp là một bề mặt phức hợp nằm dọc theo một cạnh bên của dải bay và một phần của mặt bên bề mặt tiếp cận kéo dài lên cao hướng ra ngoài cho đến khi gặp bề mặt ngang trong.
2. Bề mặt chuyển tiếp có các đặc điểm sau:
a) Đường biên phía dưới, bắt đầu từ đường giao của bề mặt tiếp cận với bề mặt ngang trong và kéo dài xuống phía dưới dọc theo đường biên sườn của bề mặt tiếp cận cho đến khi gặp đường biên trong của bề mặt tiếp cận và sau đó chạy dọc theo dải bay song song với tim đường cất hạ cánh;
b) Đường biên phía trên nằm trong mặt phẳng của bề mặt ngang trong;
c) Độ dốc của bề mặt chuyển tiếp được đo trong mặt phẳng thẳng đứng vuông góc với trục tim đường cất hạ cánh;
d) Mức cao của một điểm trên đường biên dưới:
(i) Dọc theo đường biên sườn của bề mặt tiếp cận bằng mức cao của bề mặt tiếp cận tại điểm đó;
(ii) Dọc theo dải bay bằng mức cao của điểm gần nhất trên trục tim hoặc trục tim kéo dài của đường cất hạ cánh.
Điều 60. Bề mặt chuyển tiếp trong
1. Bề mặt chuyển tiếp trong là bề mặt tương tự như bề mặt chuyển tiếp nhưng ở gần đường cất hạ cánh hơn.
2. Bề mặt chuyển tiếp trong có các đặc điểm sau:
a) Đường biên dưới bắt đầu từ cuối bề mặt tiếp cận trong và kéo xuống dưới dọc theo bề mặt tiếp cận trong đến khi gặp đường biên trong của bề mặt đó, sau đó chạy dọc theo dải bay song song với tim đường cất hạ cánh đến khi gặp đường biên trong của bề mặt hủy bỏ hạ cánh và từ đó đi lên đến giao điểm của đường biên sườn đó với bề mặt ngang trong;
b) Đường biên trên nằm trong mặt phẳng của bề mặt ngang trong;
c) Mức cao của một điểm trên đường biên dưới được xác định theo quy định khoản 3 Điều này.
3. Mức cao của một điểm trên đường biên dưới được xác định như sau:
a) Dọc theo đường biên của bề mặt tiếp cận trong và bề mặt hủy bỏ hạ cánh - bằng mức cao của bề mặt cụ thể tại điểm đó;
b) Dọc theo dải bay bằng mức cao của điểm gần nhất trên tim đường cất hạ cánh hoặc trên tim kéo dài;
c) Độ dốc của bề mặt chuyển tiếp trong đo trong mặt phẳng thẳng đứng vuông góc với tim đường cất hạ cánh.
Điều 61. Bề mặt hủy bỏ hạ cánh
1. Bề mặt hủy bỏ hạ cánh là mặt phẳng nghiêng bắt đầu từ một khoảng cách nhất định sau ngưỡng đường cất hạ cánh và mở rộng đến bề mặt chuyển tiếp trong.
2. Bề mặt hủy bỏ hạ cánh có các đặc điểm sau:
a) Đường biên trong nằm ngang, vuông góc với tim đường cất hạ cánh và nằm cách ngưỡng đường cất hạ cánh một khoảng cách nhất định;
b) Hai đường biên sườn bắt đầu từ các đầu mút của đường biên trong và loe dần đều về hai bên so với mặt phẳng đứng chứa tim đường cất hạ cánh;
c) Đường biên ngoài song song với đường biên trong và nằm trong mặt phẳng của bề mặt ngang trong.
3. Mức cao của đường biên trong bằng mức cao của tim đường cất hạ cánh tại vị trí của đường biên trong.
4. Độ dốc của bề mặt hủy bỏ hạ cánh được đo trong mặt phẳng thẳng đứng, dựng dọc theo tim đường cất hạ cánh.
Điều 62. Bề mặt lấy độ cao cất cánh
1. Bề mặt lấy độ cao cất cánh là mặt phẳng nghiêng hoặc một bề mặt đặc biệt khác nằm ngoài đầu mút đường cất hạ cánh hoặc ngoài khoảng trống.
2. Bề mặt lấy độ cao cất cánh có đặc điểm sau:
a) Đường biên trong nằm ngang và vuông góc với tim đường cất hạ cánh và ở cách đầu mút đường cất hạ cánh hoặc khoảng trống (nếu có) một khoảng cách quy định và chiều dài khoảng trống lớn hơn khoảng cách quy định;;
b) Hai đường biên sườn bắt đầu từ mút của đường biên trong và loe dần đều về hai bên so với vệt bay khởi hành đến chiều rộng quy định và tiếp tục kéo dài chiều rộng đó đến hết phần chiều dài còn lại của bề mặt lấy độ cao cất cánh;
c) Đường biên ngoài chạy theo phương nằm ngang và vuông góc với vệt bay khởi hành.
3. Mức cao của đường biên trong phải bằng mức cao của điểm cao nhất trên tim đường cất hạ cánh và đường biên trong, trừ khi có khoảng trống thì mức cao này bằng mức cao của điểm cao nhất trên khoảng trống.
4. Độ dốc của bề mặt cất cánh được tính trong mặt thẳng đứng có chứa trục tim đường cất hạ cánh trong trường hợp cất cánh thẳng.
5. Trong trường hợp cất cánh vòng rẽ, bề mặt cất cánh phải là bề mặt phức hợp chứa các đường pháp tuyến nằm trong mặt phẳng ngang so với đường tim của bề mặt cất cánh. Độ dốc tương tự như độ dốc khi cất thẳng.
Điều 63. Giới hạn chướng ngại vật đối với đường CHC không có thiết bị
1. Đường cất hạ cánh không có thiết bị có các OLS sau đây:
a) Bề mặt hình nón;
b) Bề mặt ngang trong;
c) Bề mặt tiếp cận;
d) Các bề mặt chuyển tiếp.
2. Chiều cao và độ dốc của các bề mặt không được lớn hơn chiều cao và độ dốc ở Bảng II.8 và những kích thước khác của các bề mặt không được nhỏ hơn những kích thước tương ứng trong bảng đó trừ phần nằm ngang của bề mặt tiếp cận.
3. Không được xây dựng các công trình mới hoặc mở rộng các công trình hiện hữu vượt trên bề mặt tiếp cận hoặc bề mặt chuyển tiếp, trừ khi theo ý kiến của cơ quan có thẩm quyền, công trình mới hoặc công trình mở rộng được núp bóng bởi một công trình cố định hiện hữu.
4. Không được có các công trình mới hoặc mở rộng công trình hiện hữuvượt trên bề mặt hình nón hoặc bề mặt ngang trong, trừ khi được cấp có thẩm quyền chấp thuận; các công trình đó được núp bóng bởi một công trình cố định hiện hữu,hoặc trên cơ sở kết quả nghiên cứu về hàng không cho thấy; hoặc công trình đó không ảnh hưởng bất lợi đến an toàn hoặc không ảnh hưởng đến các chuyến bay.
5. Các công trình hiện hữu vượt ra ngoài bất kỳ bề mặt nào quy định tại khoản 1 Điều này đều phải di chuyển càng xa càng tốt, trừ khi được cấp có thẩm quyền chấp thuận theo quy định trên cơ sở kết quả nghiên cứu về hàng không cho thấy các công trình đó được che khuất bởi một công trình cố định cho phép trước; hoặc công trình đó không ảnh hưởng bất lợi đến an toàn hoặc không ảnh hưởng đến các chuyến bay.
6. Khi xem xét xây dựng một công trình mới thì phải xem xét đến sự phù hợp với bề mặt giới hạn chướng ngại vật của đường cất cánh có thiết bị trong tương lai (theo quy hoạch được duyệt).
Điều 64. Giới hạn chướng ngại vật đối với đường CHC tiếp cận giản đơn
1. Đường cất hạ cánh tiếp cận giản đơn có các OLS sau đây:
a) Bề mặt hình nón;
b) Bề mặt ngang trong;
c) Bề mặt tiếp cận;
d) Các bề mặt chuyển tiếp.
2. Chiều cao và độ dốc của các bề mặt không được lớn hơn chiều cao và độ dốc ở Bảng II.8 và những kích thước khác của các bề mặt không được nhỏ hơn những kích thước tương ứng trong bảng đó trừ phần nằm ngang của bề mặt tiếp cận.
3. Bề mặt tiếp cận bắt đầu nằm ngang kể từ giao điểm của mặt phẳng có độ dốc 2,5% với:
a) Mặt phẳng ngang ở mức cao 150m so với độ cao của ngưỡng đường cất hạ cánh;
b) Bặt phẳng ngang đi qua đỉnh của bất kỳ công trình nào có ý nghĩa quyết định đến độ cao an toàn vượt chướng ngại vật (OCA/H).
4. Không được xây dựng các công trình mới hoặc mở rộng các công trình hiện hữu vượt trên bề mặt tiếp cận trong phạm vi 3000m kể từ cạnh trong của bề mặt tiếp cận hoặc cao hơn bề mặt chuyển tiếp, trừ trường hợp theo ý kiến của cơ quan có thẩm quyền, công trình được che khuất bởi một công trình cố định đã tồn tại.
5. Không được xây dựng các công trình mới hoặc mở rộng các công trình hiện hữu ngoài phạm vi 3000m đối với bề mặt tiếp cận tính từ đường biên trong; bề mặt hình nón; bề mặt ngang trong trừ các trường hợp theo ý kiến của cơ quan có thẩm quyền, công trình đó được che khuất bởi một công trình cố định đã tồn tại hoặc kết quả nghiên cứu về hàng không cho thấy công trình đó không ảnh hưởng đáng kể đến an toàn hoặc không ảnh hưởng đến hoạt động khai thác tàu bay.
6. Các công trình cao hơn bất cứ bề mặt nào đã được quy định khoản 1 Điều này cần được loại bỏ/ di dời/ tháo dỡ, trừ các trường hợp theo ý kiến của cơ quan có thẩm quyền, công trình đó được che khuất bởi một công trình cố định đã tồn tại hoặc kết quả nghiên cứu về hàng không cho thấy công trình đó không ảnh hưởng đáng kể đến an toàn hoặc không ảnh hưởng đến hoạt động khai thác tàu bay.
Bảng II.8. Kích thước và độ dốc OLS - các loại đường CHC tiếp cận
|
Các bề mặt và Kích thướca |
PHÂN CẤP ĐƯỜNG CHC |
|||||||||
|
Đường CHC không có thiết bị |
Đường CHC tiếp cận giản đơn |
Đường CHC tiếp cận chính xác CAT I; II hoặc III |
||||||||
|
Mã số |
Mã số |
Mã số |
||||||||
|
1 |
2 |
3 |
4 |
1, 2 |
3 |
4 |
1, 2 |
3, 4 |
3, 4 |
|
|
(1) |
(2) |
(3) |
(4) |
(5) |
(6) |
(7) |
(8) |
(9) |
(10) |
(11) |
|
HÌNH NÓN |
||||||||||
|
- Độ dốc, % |
5 |
5 |
5 |
5 |
5 |
5 |
5 |
5 |
5 |
5 |
|
- Chiều cao, m |
35 |
55 |
75 |
100 |
60 |
75 |
100 |
60 |
100 |
100 |
|
MẶT NGANG TRONG |
||||||||||
|
- Độ cao, m |
45 |
45 |
45 |
45 |
45 |
45 |
45 |
45 |
45 |
45 |
|
- Bán kính, m |
2000 |
2500 |
4000 |
4000 |
3500 |
4000 |
4000 |
3500 |
4000 |
4000 |
|
MẶT TIẾP CẬN TRONG |
||||||||||
|
- Chiều rộng, m |
- |
- |
- |
- |
- |
- |
- |
90 |
120e |
120e |
|
- Khoảng cách từ ngưỡng, m |
- |
- |
- |
- |
- |
- |
- |
60 |
60 |
60 |
|
- Chiều dài, m |
- |
- |
- |
- |
- |
- |
- |
900 |
900 |
900 |
|
- Độ dốc, % |
|
|
|
|
|
|
|
2,5 |
2 |
2 |
|
MẶT TIẾP CẬN |
||||||||||
|
- Chiều dài cạnh trong, m |
60 |
80 |
150 |
150 |
150 |
300 |
300 |
150 |
300 |
300 |
|
- Khoảng cách từ ngưỡng, m |
30 |
60 |
60 |
60 |
60 |
60 |
60 |
60 |
60 |
60 |
|
- Góc mở ra mỗi bên, % |
10 |
10 |
10 |
10 |
15 |
15 |
15 |
15 |
15 |
15 |
|
ĐOẠN THỨ NHẤT |
||||||||||
|
- Chiều dài, m |
1600 |
2500 |
3000 |
3000 |
2500 |
3000 |
3000 |
3000 |
3000 |
3000 |
|
- Độ dốc, % |
5 |
4 |
3,33 |
2,5 |
3,33 |
2 |
2 |
2,5 |
2 |
2 |
|
ĐOẠN THỨ HAI |
||||||||||
|
- Chiều dài, m |
- |
- |
- |
- |
- |
3600b |
3600b |
12000 |
3600b |
3600b |
|
- Độ dốc, % |
- |
- |
- |
- |
- |
2,5 |
2,5 |
3 |
2,5 |
2,5 |
|
ĐOẠN NẰM NGANG |
||||||||||
|
- Chiều dài, m |
- |
- |
- |
- |
- |
8400b |
8400b |
- |
8400b |
8400b |
|
- Tổng chiều dài, m. |
- |
- |
- |
- |
- |
15000 |
15000 |
15000 |
15000 |
15000 |
|
MẶT CHUYỂN TIẾP |
||||||||||
|
- Độ dốc (%). |
20 |
20 |
14,3 |
14,3 |
20 |
14,3 |
14,3 |
14,3 |
14,3 |
14,3 |
|
MẶT CHUYỂN TIẾP TRONG |
||||||||||
|
- Độ dốc (%). |
- |
- |
- |
- |
- |
- |
- |
40 |
33,3 |
33,3 |
|
MẶT HỦY BỎ HẠ CÁNH |
||||||||||
|
- Chiều dài đường giới hạn trong, m |
- |
- |
- |
- |
- |
- |
- |
90 |
120e |
120e |
|
- Khoảng cách từ ngưỡng, m. |
- |
- |
- |
- |
- |
- |
- |
c |
1800d |
1800d |
|
- Góc mở ra mỗi bên (%). |
- |
- |
- |
- |
- |
- |
- |
10 |
10 |
10 |
|
- Độ dốc (%). |
- |
- |
- |
- |
- |
- |
- |
4 |
3,33 |
3,33 |
|
a) Các kích thước được đo theo phương nằm ngang nếu không có quy định nào khác; b) Chiều dài thay đổi (xem khoản 3 Điều này hoặc khoản 5 Điều 65); c) Khoảng cách đến cuối dải bay; d) Hoặc đến cuối đường CHC nếu nó nhỏ hơn; e) Khi mã chữ là F, chiều rộng được tăng đến 140m trừ trường hợp các sân bay có khai thác tàu bay mã chữ F được trang bị hệ thống kỹ thuật số cho phép duy trì các vệt bay đã thiết lập trong suốt giai đoạn bay lại |
||||||||||
Điều 65. Giới hạn chướng ngại vật đối với đường CHC tiếp cận chính xác
1. Đường CHC tiếp cận chính xác CAT I bao gồm các bề mặt giới hạn chướng ngại vật như sau:
a) Bề mặt hình nón;
b) Bề mặt ngang trong;
c) Bề mặt tiếp cận;
d) Các bề mặt chuyển tiếp.
2. Đường CHC tiếp cận chính xác CAT I nên bao gồm các bề mặt giới hạn chướng ngại vật sau đây:
a) Bề mặt tiếp cận trong;
b) Các bề mặt chuyển tiếp trong;
c) Bề mặt hủy bỏ hạ cánh.
3. Đường CHC tiếp cận chính xác CAT II hay CAT III bao gồm các bề mặt giới hạn chướng ngại vật như sau:
a) Bề mặt hình nón;
b) Bề mặt ngang trong;
c) Bề mặt tiếp cận và bề mặt tiếp cận trong;
d) Các bề mặt chuyển tiếp;
đ) Các bề mặt chuyển tiếp trong;
e) Bề mặt hủy bỏ hạ cánh.
4. Chiều cao và độ dốc của các bề mặt tương ứng không được vượt quá chiều cao và độ dốc ở Bảng II.8 và các kích thước khác của các bề mặt này không nhỏ hơn các kích thước tương ứng ở bảng này, trừ các kích thước trong đoạn nằm ngang của bề mặt tiếp cận.
5. Bề mặt tiếp cận theo phương nằm ngang bắt đầu từ giao điểm của mặt phẳng có độ dốc 2,5%, chọn cao hơn:
a) Mặt phẳng ngang ở độ cao 150 m so với mức cao ngưỡng đường CHC;
b) Mặt phẳng ngang đi qua đỉnh của bất kỳ công trình nào ảnh hưởng quyết định đến khoảng cách giới hạn an toàn bay trên chướng ngại vật;
6. Không được có các vật thể cố định vượt khỏi bề mặt tiếp cận trong, bề mặt chuyển tiếp trong và bề mặt hủy bỏ hạ cánh, trừ những vật dễ gẫy cần bố trí trên dải bay. Không được có các vật thể di động vượt quá các bề mặt này trong khi tàu bay hạ cánh trên đường CHC.
7. Không được xây dựng các công trình mới hoặc mở rộng các công trình hiện hữu vượt trên bề mặt tiếp cận, bề mặt chuyển tiếp trừ trường hợp có ý kiến của cơ quan có thẩm quyền, các công trình mới hoặc các công trình mở rộng bị che khuất bởi một công trình cố định đã tồn tại.
8. Không được xây dựng các công trình mới hoặc mở rộng các công trình hiện hữu vượt trên bề mặt hình nón và bề mặt ngang trong trừ trường hợp có ý kiến cơ quan có thẩm quyền, công trình bị che khuất bởi một công trình cố định đã tồn tại, hoặc có nghiên cứu hàng không xác định công trình này không ảnh hưởng đáng kể đến an toàn hoặc ảnh hưởng đến hoạt động khai thác tàu bay.
9. Các công trình hiện hữu vượt trên bề mặt tiếp cận, bề mặt chuyển tiếp, bề mặt hình nón và bề mặt ngang trong cần được loại bỏ, trừ trường hợp có ý kiến cơ quan có thẩm quyền, công trình bị che khuất bởi một công trình cố định đã tồn tại, hoặc có nghiên cứu hàng không xác định công trình này không ảnh hưởng đáng kể đến an toàn hoặc ảnh hưởng đến hoạt động khai thác tàu bay
Điều 66. Yêu cầu giới hạn chướng ngại vật đối với đường CHC dùng cho cất cánh
1. Đường CHC dùng cho cất cánh có bề mặt giới hạn chướng ngại vật là bề mặt lấy độ cao cất cánh. Bề mặt giới hạn chướng ngại vật phải được thiết lập
2. Kích thước của bề mặt không nhỏ hơn kích thước ghi trong Bảng II.9, trừ trường hợp có thể lấy chiều dài nhỏ hơn cho bề mặt cất cánh khi kích thước phù hợp với phương thức bay.
3. Phải kiểm tra các đặc tính khai thác của tàu bay sử dụng đường CHC xem có đảm bảo an toàn không khi giảm độ dốc cho ở Bảng II.9 trong các điều kiện bay tới hạn. Nếu độ dốc đã cho giảm đi thì cần tiến hành hiệu chỉnh chiều dài bề mặt cất cánh lấy độ cao đủ bảo đảm an toàn đến độ cao 300m.
4. Không được xây dựng các công trình mới hoặc mở rộng các công trình hiện hữu vượt trên bề mặt cất cánh, trừ trường hợp có ý kiến cơ quan có thẩm quyền, công trình bị che khuất bởi một công trình cố định đã tồn tại.
5. Nếu không có công trình nào đạt đến độ cao của bề mặt cất cánh với độ dốc 2,0% (1/50) thì các công trình mới được khống chế dưới OLS hoặc bề mặt có độ dốc 1,6% (1/62,5).
6. Cần loại bỏ các công trình hiện hữu vượt trên bề mặt lấy độ cao cất cánh, trừ trường hợp có ý kiến cơ quan có thẩm quyền, công trình bị che khuất bởi một công trình cố định đã tồn tại, hoặc có nghiên cứu hàng không xác định công trình này không ảnh hưởng đáng kể đến an toàn hoặc ảnh hưởng đến hoạt động khai thác tàu bay.
Bảng II.9. Kích thước và độ dốc các OLS
Các đường CHC cho cất cánh
|
Bề mặt và kích thướca |
Mã số |
||
|
1 |
2 |
3 hoặc 4 |
|
|
(1) |
(2) |
(3) |
(4) |
|
Bề mặt cất cánh |
|||
|
- Chiều dài cạnh trong, m |
60 |
80 |
180 |
|
- Khoảng cách từ đầu mút đường cất hạ cánhb, m |
30 |
60 |
60 |
|
- Độ mở về hai phía, % |
10 |
10 |
12,5 |
|
- Chiều rộng cuối cùng, m |
380 m |
580 m |
1.200 m 1.800mc |
|
- Chiều dài, m |
1.600 |
2.500 |
15.000 |
|
- Độ dốc, % |
5% |
4% |
2%d |
|
a. Tất cả các kích thước được đo theo phương nằm ngang nếu không có quy định nào khác; b. Bề mặt cất cánh bắt đầu từ cuối khoảng trống nếu chiều dài của nó vượt quá khoảng cách đã quy định; c. 1800 m, khi vệt bay dự kiến bao gồm cả sự thay đổi hướng bay quá 15o đối với các chuyến bay thực hiện theo IMC và VMC vào ban đêm; d. Xem khoản 3, 5 Điều này. |
|||
Điều 67. Yêu cầu về vật thể ngoài các bề mặt giới hạn chướng ngại vật
1. Cần thỏa thuận với cơ quan có thẩm quyền việc xây dựng các công trình nằm ngoài chướng ngại vật có độ cao lớn hơn độ cao do cơ quan có thẩm quyền quy định nhằm mục đích nghiên cứu ảnh hưởng của nó đến các chuyến bay. Cần phải xin ý kiến của cơ quan có thẩm quyền về việc xây dựng công trình có độ cao vượt quá giới hạn của bề mặt giới hạn chướng ngại vật quy định để cho phép thực hiện một nghiên cứu hàng không về tác động của việc xây dựng đó đối với hoạt động khai thác tàu bay.
2. Ngoài khu vực OLS, ít nhất, mọi vật thể có chiều cao 150m hay lớn hơn so với mặt đất đều được coi là chướng ngại vật, trừ khi kết quả nghiên cứu đặc biệt về hàng không cho thấy chúng không gây nguy hiểm cho tàu bay. Trong các khu vực vượt qua giới hạn bề mặt giới hạn chướng ngại vật, những vật thể/công trình có độ cao đến 150m hoặc hơn so với mặt đất phải được coi là chướng ngại vật, trừ trường hợp nghiên cứu đặc biệt về hàng không chỉ ra rằng chúng không gây nguy hiểm cho tàu bay.
Điều 68. Những vật thể khác
1. Những vật thể không nhô lên khỏi bề mặt tiếp cận, nhưng ảnh hưởng bất lợi đến việc bố trí tối ưu hoặc đến hoạt động của các thiết bị hạ cánh bằng mắt và không bằng mắt thì cần di chuyển đi càng xa càng tốt.
2. Tất cả các vật thể, theo ý kiến của cơ quan có thẩm quyền sau khi có kết quả nghiên cứu về hàng không cho thấy chúng có thể gây nguy hiểm cho tàu bay ở khu bay hay trên không gian trong phạm vi đường biên của bề mặt ngang trong và bề mặt hình nón thì chúng được xem là chướng ngại vật và cần di chuyển đi càng xa càng tốt.
MỤC 7: HỆ THỐNG THIẾT BỊ DẪN ĐƯỜNG BẰNG MẮT
Điều 69. Ống gió
1. Sân bay phải trang bị ít nhất ít nhất một ống gió để đo hướng và tốc độ gió.
2. Ống gió được bố trí tại vị trí dễ nhận biết hoặc dễ nhìn thấy đối với phi công từ trên tàu bay đang bay hoặc tàu bay đang trong vực di chuyển, hoạt động của ống gió không bị ảnh hưởng bởi nhiễu động không khí do các chướng ngại vật gần ống gió sinh ra.
3. Ống gió có dạng hình nón cụt làm bằng vải dài không dưới 3,6m, đường kính đầu lớn không dưới 0,9m. Ống gió được chế tạo nhằm chỉ rõ hướng gió trên mặt đất và cho phép hình dung khái quát được tốc độ gió. Màu sắc ống gió phải nổi bật, đảm bảo dễ quan sát từ độ cao tối thiểu 300m. Nên sử dụng ống gió một màu, tốt nhất là màu trắng hoặc màu da cam. Trong trường hợp cần bảo đảm sự tương phản cần thiết do màu sắc nền khu vực nơi đặt ống gió không đồng nhất thì có thể phối hợp 2 màu. Ưu tiên phối hợp màu da cam với màu trắng, màu đỏ với màu trắng hoặc màu đen với màu trắng, trong đó cần sắp đặt 5 dải liên tiếp nhau sao cho dải đầu tiên và sau cùng đều có màu sẫm hơn.
4. Ít nhất một vị trí đặt ống gió nên được đánh dấu bằng vệt sơn hình tròn đường kính 15m, rộng 1,2m. Ống gió đặt ở tâm của vệt sơn hình tròn có màu sắc bảo đảm độ tương phản, trong đó ưu tiên màu trắng.
5. Tại sân bay hoạt động vào ban đêm phải có ít nhất có một ống gió được chiếu sáng.
Điều 70. Thiết bị chỉ hướng hạ cánh
1. Trong trường hợp cần thiết, thiết bị chỉ hướng hạ cánh phải được lắp đặt tại vị trí dễ nhìn thấy trên sân bay.
2. Chỉ hướng hạ cánh có hình chữ "T".

Hình II.8. Sơn tín hiệu chỉ hướng hạ cánh
3. Hình dạng và kích thước tối thiểu của chữ "T" như Hình II.8. Việc chọn màu trắng hay màu da cam phụ thuộc vào độ tương phản với màu nền khu vực đặt thiết bị. Nếu sử dụng chữ “T” vào ban đêm thì "T" phải được chiếu sáng hoặc được viền quanh bằng đèn sáng trắng.
Điều 71. Đèn tín hiệu
1. Trên đài kiểm soát tại sân bay phải đặt đèn tín hiệu.
2. Đèn tín hiệu phát các tín hiệu màu đỏ, xanh lục, trắng và phải:
a) Hướng được về bất cứ mục tiêu cần thiết nào bằng phương pháp thủ công;
b) Phát tín hiệu một màu bất kì trong 3 màu nói trên và sau đó phát tín hiệu màu bất kì trong hai màu khác;
c) Truyền tín hiệu bất kì màu nào trong ba màu bằng tín hiệu Moóc - sơ, với tốc độ ít nhất 4 từ /phút.
Trường hợp chọn đèn màu xanh lục thì sử dụng đường biên giới hạn màu xanh lục, như trình bày trong mục 2.1.2 Phụ lục 1.
3. Luồng sáng của tia sáng tạo thành góc không nhỏ hơn 10 và không lớn hơn 30 với cường độ chiếu sáng yếu ở ngoài phạm vi 30. Nếu đèn tín hiệu được dùng vào ban ngày thì cường độ chiếu sáng của đèn màu không nhỏ hơn 6.000cd.
Điều 72. Các bảng tín hiệu và các khu vực tín hiệu.
1. Khu vực tín hiệu được đặt tại vị trí sao cho có thể nhìn thấy tất cả các góc phương vị trên một góc 10° so với chiều ngang khi nhìn từ độ cao 300m.
2. Khu vực tín hiệu hình vuông ít nhất bằng 9m2 trên mặt phẳng nằm ngang.
3. Màu sắc khu vực tín hiệu được lựa chọn phải tương phản với màu của bảng tín hiệu sử dụng. Khu vực tín hiệu được bao quanh bằng một dải trắng rộng ít nhất 0,3m.
Điều 73. Sơn tín hiệu
1. Sơn tín hiệu hai đường CHC giao nhau được quy định như sau:
a) Tại vị trí nút giao của hai hay nhiều đường CHC, phải kẻ sơn tín hiệu trên đường CHC quan trọng hơn bằng một dải liền nổi bật đánh dấu mép đường CHC và vạch sơn tín hiệu đường CHC khác được đánh dấu ngắt quãng. Vạch sơn tín hiệu đánh dấu các mép của đường CHC quan trọng hơn có thể là đường liền đi qua vị trí giao nhau hoặc ngắt quãng;
b) Sơn tín hiệu đánh dấu đường CHC với thứ tự ưu tiên theo tầm quan trọng được quy định tại khoản 2 Điều này.
2. Thứ tự ưu tiên theo tầm quan trọng được quy định như sau:
a) Đường CHC thứ nhất: đường CHC tiếp cận chính xác;
b) Đường CHC thứ hai: đường CHC tiếp cận giản đơn;
c) Đường CHC thứ ba: đường CHC không có thiết bị.
3. Khi đường CHC và đường lăn giao nhau thì sơn tín hiệu đánh dấu đường CHC là đường kẻ liền, sơn tín hiệu đánh dấu đường lăn sẽ ngắt quãng, trong trường hợp đặc biệt sơn tín hiệu đánh dấu mép đường CHC có thể ngắt quãng.
4. Đường lăn không có mặt đường nhân tạo được kẻ sơn tín hiệu đánh dấu như quy định đối với đường lăn có mặt đường nhân tạo.
5. Tại ngưỡng đường CHC không có mặt đường nhân tạo, sơn tín hiệu chỉ hướng đường CHC nên được sơn một cách phù hợp.
6. Đối với sơn tín hiệu đánh dấu vị trí dừng chờ lên đường CHC
a) Đến ngày 26/11/2026, kích thước vạch dừng chờ đường CHC được thể hiện tại Hình II.9, chi tiết A1 (hoặc A2) hoặc chi tiết B1 (hoặc B2), nếu phù hợp.
b) Từ ngày 26/11/2026, kích thước vạch dừng chờ đường CHC được thể hiện tại Hình II.9, chi tiết hoặc A2 hoặc chi tiết B2, nếu phù hợp.
c) Khi cần làm rõ hơn vị trí chờ đường CHC, sơn tín hiệu vị trí chờ đường CHC có thể được trình bày như trên Hình II.9, chi tiết A2 hoặc B2, nếu phù hợp.

Hình II.9. Sơn tín hiệu đánh dấu vị trí dừng chờ lên đường CHC
Ghi chú: Chi tiết A1, B1 không được áp dụng sau năm 2026
7. Sơn tín hiệu đánh dấu điểm kiểm tra đài VOR trên sân bay
a) Khi ở sân bay có điểm kiểm tra đài VOR, phải có sơn tín hiệu đánh dấu điểm kiểm tra đài VOR;
b) Hướng dẫn lựa chọn điểm kiểm tra đài VOR được trình bày trong Annex 10, Tập I, phụ lục E;
c) Sơn tín hiệu đánh dấu điểm kiểm tra đài VOR được vẽ ở trung tâm vị trí tàu bay đậu để tiếp nhận tín hiệu kiểm tra của đài VOR;
d) Sơn tín hiệu điểm kiểm tra đài VOR ở sân bay có hình tròn đường kính 6m và đường viền rộng 15cm (xem Hình II.10 (A));
đ) Khi cần đặt tàu bay theo hướng nào đó thì có thể thể vẽ một đường qua tâm của vòng tròn tương ứng với góc phương vị đặt tàu bay. Đường này phải vượt ra ngoài phạm vi vòng tròn 6m ở phía đầu và tận cùng bằng mũi tên. Chiều rộng của vệt sơn là 15cm (xem Hình II.10 (B)).

GHI CHÚ: Chỉ cần mũi tên chỉ hướng khi tàu bay phải đỗ theo hướng quy định trước
Hình II.10. Sơn tín hiệu đánh dấu điểm kiểm tra đài VOR sân bay
8. Sơn tín hiệu "NO ENTRY" gồm chữ "NO ENTRY" màu trắng trên nền đỏ. Khi không đủ độ tương phản giữa sơn tín hiệu và mặt đường, sơn tín hiệu chỉ dẫn bắt buộc phải có đường viền thích hợp, tốt nhất là màu trắng hoặc đen.
9. Các quy định sơn tín hiệu khác được thực hiện theo Quy chuẩn quốc gia về sơn kẻ tín hiệu trên đường cất hạ cánh, đường lăn, sân đỗ và được Bộ GTVT ban hành tại Thông tư 34/2014/TT-BGTVT.
Điều 74. Yêu cầu chung đối với hệ thống đèn phụ trợ dẫn đường hàng không
1. Các loại đèn lắp trên mặt đất mà không phải là đèn dẫn đường hàng không ở gần sân bay phải được loại bỏ để tránh gây nguy hiểm, đe dọa an toàn hoạt động bay.
2. Để tránh các ảnh hưởng của đèn laze an toàn hoạt động bay, người khai thác cảng hàng không, sân bay phải thiết lập sơ đồ vùng ảnh hưởng của hoạt động đèn laze đến an toàn hoạt động bay; thông báo, phối hợp với chính quyền địa phương để quản lý hoạt động của đèn laze xung quanh sân bay. Vùng ảnh hưởng của hoạt động đèn laze đến an toàn hoạt động bay quanh sân bay được quy định như sau:
a) Vùng bay không được phép có hoạt động chiếu đèn Laze (LFFZ);
b) Vùng bay bị ảnh hưởng lớn bởi hoạt động chiếu đèn Laze (LCFZ);
c) Vùng bay có ảnh hưởng bởi hoạt động chiếu đèn Laze (LFFZ).

Hình II.11. Vùng bay được bảo vệ

Hình II.12. Vùng bay không được có hoạt động chiếu đèn Laze đối với nhiều đường CHC (LFFZ)

Hình II.13. Các vùng bay được bảo vệ với độ bức xạ Laze max nhìn thấy
3. Không lắp đặt các loại đèn không phải là đèn dẫn đường hàng không nhưng có cường độ chiếu sáng cao, hình dáng bên ngoài hoặc màu sắc giống đèn dẫn đường hàng không trên sân bay để tránh gây nhầm lẫn cho phi công, đặc biệt trong các khu vực sau:
a) Đối với đường cất hạ cánh có thiết bị mã số 4: Trong phạm vi các khu vực trước ngưỡng đường cất hạ cánh và về phía sau của phần cuối đường CHC có chiều dài tính từ ngưỡng đường cất hạ cánh ít nhất là 4.500m và chiều rộng là 750m về cả hai phía của tim đường cất hạ cánh kéo dài;
b) Đối với đường cất hạ cánh có thiết bị mã số 2, hoặc 3: Trong phạm vi các khu vực trước ngưỡng đường cất hạ cánh và về phía sau của phần cuối đường CHC có chiều dài tính từ ngưỡng đường cất hạ cánh ít nhất là 3.000m và chiều rộng là 750m về cả hai phía của tim đường cất hạ cánh kéo dài;
c) Đối với đường cất hạ cánh có thiết bị mã số 1 và đường cất hạ cánh không có thiết bị: trong khu vực tiếp cận.
4. Trong trường hợp đèn dẫn đường hàng không đặt gần mặt nước có tàu thuyền đi lại thì cần được thiết kế sao cho chúng không gây nhầm lẫn cho tàu thuyền.
5. Yêu cầu đối với kết cấu đèn tiếp cận lắp nổi:
a) Đèn tiếp cận lắp nổi và trụ đèn phải có cấu trúc dễ gãy, trừ các đèn ngoài phạm vi 300m tính từ ngưỡng đường cất hạ cánh, các đèn lắp ngoài phạm vi 300m tính từ ngưỡng đường cất hạ cánh phải đảm bảo các điều kiện điểm b, điểm c khoản 5 Điều này;
b) Tại nơi trụ đèn có chiều cao vượt quá 12m thì phần trên 12m phải dễ gãy;
c) Tại nơi các vật thể xung quanh trụ đèn có kết cấu không dễ gãy, thì phần kết cấu đỡ đèn cao hơn vật thể xung quanh phải dễ gãy;
d) Khi phần kết cấu của chân đèn khó nhận biết được, thì phần kết cầu này phải được sơn đánh dấu theo quy định.
6. Đèn lắp nổi trên đường cất hạ cánh, đoạn dừng, đường lăn và sân bay phải được đặt thấp sát mặt đất để có khoảng cách an toàn đến đầu mút cánh quạt và bụng động cơ của tàu bay phản lực.
7. Yêu cầu đối với kết cấu đèn lắp chìm:
a) Cấu trúc của đèn chìm dưới mặt đường, đoạn dừng, đường lăn và các sân đỗ được cấu tạo và bố trí sao cho chúng chịu được tải trọng từ bánh tàu bay mà không bị hỏng và không làm hư hại tàu bay. Các đèn chìm được lắp cố định tại bề mặt đường cất hạ cánh, đoạn dừng, đường lăn và sân đỗ phải có kết cấu và được bố trí sao cho chịu được tải trọng từ bánh tàu bay mà không bị hỏng và làm hư hại tàu bay;
b) Nhiệt độ sinh ra trên bề mặt tiếp xúc của đèn chìm với lốp tàu bay do dẫn nhiệt hay bức xạ nhiệt, không được vượt quá 1600C trong 10 phút tiếp xúc.
8. Yêu cầu về cường độ của đèn và điều chỉnh cường độ đèn:
a) Cường độ chiếu sáng của đường CHC phải phù hợp với các điều kiện tối thiểu về tầm nhìn và điều kiện ánh sáng xung quanh, và phù hợp với quy định của hệ thống đèn tiếp cận.
b) Tại những khu vực có hệ thống chiếu sáng cường độ cao, phải thiết lập một hệ thống điều chỉnh để điều chỉnh cường độ chiếu sáng phù hợp với điều kiện ánh sáng xung quanh. Các hệ thống điều chỉnh cường độ ánh sáng phải đảm bảo có cường độ ánh sáng đồng bộ với các hệ thống đèn quy định tại khoản 9 Điều này;
c) Trên và trong chu vi của hình elip xác định chùm sáng chính thể hiện trong Phụ lục 2, Hình A2-1 đến A2-10, giá trị cường độ ánh sáng tối đa không được lớn hơn ba lần giá trị cường độ ánh sáng tối thiểu được đo theo Phụ lục 2, các chú ý của các hình từ A2-1 đến A2-11 và A2-26, ghi chú 2;
d) Trên và trong chu vi hình chữ nhật xác định chùm sáng chính thể hiện trong Phụ lục 2, Hình A2-12 đến A2-20, giá trị cường độ ánh sáng tối đa không được lớn hơn ba lần giá trị cường độ ánh sáng tối thiểu đo được theo Phụ lục 2, tập thể ghi chú cho các hình từ A2-12 đến A2-21, ghi chú 2.
9. Các hệ thống điều chỉnh cường độ ánh sáng phải đảm bảo có cường độ ánh sáng đồng bộ với các hệ thống đèn sau:
a) Hệ thống đèn tiếp cận;
b) Đèn lề đường cất hạ cánh;
c) Đèn ngưỡng đường cất hạ cánh;
d) Đèn cuối đường cất hạ cánh;
đ) Đèn tim đường cất hạ cánh;
e) Đèn vùng chạm bánh;
g) Đèn tim đường lăn.
Điều 75. Yêu cầu đối với hệ thống đèn dự phòng
1. Sân bay có trang bị hệ thống đèn đường cất hạ cánh mà không có nguồn cấp điện dự phòng thì phải chuẩn bị đèn dự phòng để trong trường hợp hệ thống đèn đang dùng ngừng làm việc thì có thể thay thế ngay đèn hỏng của hệ thống đó, ít nhất là trên đường cất hạ cánh chính. Có thể sử dụng đèn dự phòng để đánh dấu chướng ngại vật hay khoanh vùng khu vực đường lăn và sân đỗ.
2. Đèn dự phòng được lắp đặt trên đường cất hạ cánh, ít nhất cũng phải đáp ứng được yêu cầu của đường cất hạ cánh không có thiết bị.
3. Màu sắc của đèn dự phòng phải phù hợp với yêu cầu màu ánh sáng đèn đường cất hạ cánh, trừ trường hợp trên đường cất hạ cánh không thể lắp đặt đèn màu tại ngưỡng và đèn giới hạn cuối đường cất hạ cánh thì các đèn ấy có thể là màu trắng hoặc càng gần màu trắng càng tốt.
Điều 76. Yêu cầu chung đối với đèn mốc dẫn đường hàng không
1. Đèn tín hiệu hàng không là đèn tín hiệu sân bay hoặc đèn định vị sân bay cần được thiết lập ở các sân bay có mục đích sử dụng vào ban đêm.
2. Yêu cầu khai thác đèn hiệu hàng không được xác định theo yêu cầu kiểm soát không lưu tại sân bay, sân bay phải nổi bật so với xung quanh, các thiết bị bằng mắt và không bằng mắt khác hỗ trợ cho việc xác định vị trí của sân bay.
Điều 77. Yêu cầu đối với đèn tín hiệu sân bay
1. Đèn tín hiệu sân bay phải được sử dụng ở sân bay có mục đích hoạt động ban đêm đối với sân bay có một hoặc các điều kiện sau đây:
a) Dẫn đường tàu bay chủ yếu bằng mắt;
b) Tầm nhìn thường xuyên bị giảm;
c) Khó xác định vị trí sân bay từ trên không do đèn hoặc địa hình xung quanh cản trở.
2. Đèn tín hiệu sân bay được đặt ngay tại sân bay hoặc gần sân bay ở khu vực có ánh sáng nền yếu.
3. Đèn tín hiệu sân bay được bố trí sao cho ở những hướng sử dụng không bị các chướng ngại vật khác che khuất và không làm chói mắt phi công khi tiếp cận hạ cánh.
4. Đèn tín hiệu sân bay phải hiện thị dạng đèn nháy với ánh sáng màu xen kẽ với ánh sáng trắng hoặc chỉ dạng đèn nháy ánh sáng trắng. Tần số của tổng số lần nháy sáng phải từ 20 đến 30 lần trên một phút. Đèn định vị sân bay có ánh sáng nháy màu xanh lá cây đối với sân bay trên đất liền và ánh sáng nháy màu vàng tại sân bay trên mặt nước. Trong trường hợp sân bay kết hợp một phần mặt đất và một phần mặt nước, màu sắc của đèn hiệu sân bay được xác định theo phần sân bay chính.
5. Ánh sáng đèn tín hiệu được nhìn thấy từ mọi hướng. Theo phương thẳng đứng, ánh sáng chiếu lên trên từ góc không lớn hơn 10 so với mặt phẳng nằm ngang đến góc được cơ quan có thẩm quyền chấp nhận để cung cấp hướng dẫn tại độ cao tối đa mà đèn hiệu được sử dụng, cường độ chiếu sáng hiệu quả của đèn không dưới 2000 cd.
Điều 78. Yêu cầu đối với đèn định vị sân bay
1. Đèn định vị sân bay phải được sử dụng tại sân bay có mục đích khai thác ban đêm và khó nhận biết từ trên không bởi các thiết bị khác.
2. Đèn định vị sân bay phải được đặt tại sân bay trong vùng có ánh sáng nền xung quanh thấp.
3. Đèn định vị sân bay được bố trí sao không bị che khuất bởi các chướng ngại vật và không làm chói mắt phi công khi tiếp cận hạ cánh.
4. Để định vị sân bay trên mặt đất, ánh sáng đèn phải được nhìn thấy từ mọi hướng. Theo phương thẳng đứng, ánh sáng chiếu lên trên từ góc không lớn hơn 10 so với mặt phẳng nằm ngang đến góc được cơ quan có thẩm quyền chấp nhận để cung cấp hướng dẫn tại độ cao tối đa mà đèn hiệu nhận dạng được sử dụng, cường độ chiếu sáng hiệu quả của đèn không dưới 2000 cd.
5. Đèn định vị sân bay có ánh sáng nháy màu xanh lá cây và ánh sáng nháy màu vàng tại sân bay trên mặt nước.
6. Đèn định vị sân bay được bật tắt nhằm phát tín hiệu dạng mã Morse quốc tế. Tốc độ truyền tin là 6 đến 8 từ/phút, tương ứng với tốc độ truyền một tín hiệu mã Morse từ 0,15 đến 0,2 giây đối với thời lượng dấu chấm trong mã Morse.
Điều 79. Yêu cầu chung đối với hệ thống đèn tiếp cận
Hệ thống đèn tiếp cận được sử dụng cho sân bay theo các mức:
A - Đường CHC không được trang bị hệ thống hạ cánh bằng thiết bị: Trong trường hợp điều kiện thực tế cho phép, để phục vụ đường CHC mã số là 4 hoặc 3 không có hệ thống hạ cánh bằng thiết bị, có mục đích khai thác ban đêm thì cần có hệ thống đèn tiếp cận giản đơn như ở khoản 1 đến khoản 8 Điều 80, trừ những trường hợp chỉ sử dụng đường CHC trong các điều kiện tầm nhìn tốt và có thiết bị phụ trợ bay bằng mắt khác đủ bảo đảm dẫn đường hiệu quả.
B - Đường CHC tiếp cận giản đơn: Trong trường hợp điều kiện thực tế cho phép, để phục vụ đường CHC tiếp cận giản đơn thì cần có hệ thống đèn tiếp cận giản đơn như ở khoản 1 đến khoản 8 Điều 80, trừ những trường hợp chỉ sử dụng đường CHC trong các điều kiện tầm nhìn tốt hoặc khi có các thiết bị phụ trợ bay bằng mắt khác đủ bảo đảm dẫn đường hiệu quả.
C - Đường CHC tiếp cận chính xác CAT I: Trong trường hợp điều kiện thực tế cho phép, để phục vụ cho đường CHC tiếp cận chính xác CAT I thì cần có hệ thống đèn tiếp cận chính xác CAT I như ở khoản 1 đến khoản 12 Điều 81.
D - Đường CHC tiếp cận chính xác CAT II và III: Để phục vụ cho đường CHC tiếp cận chính xác CAT II và III thì cần có hệ thống đèn tiếp cận chính xác CAT II và III như ở khoản 1 đến khoản 16 Điều 82.
Điều 80. Yêu cầu đối với hệ thống đèn tiếp cận giản đơn
1. Hệ thống đèn tiếp cận giản đơn bao gồm một dãy đèn bố trí trên tim đường cất hạ cánh kéo dài trong cự ly không dưới 420m tính từ ngưỡng đường cất hạ cánh nếu có thể, và một hàng đèn tạo thành một đường ánh sáng ngang dài 18m hoặc 30m cách ngưỡng đường cất hạ cánh 300m.
2. Cần bố trí các đèn tạo thành đường ánh sáng ngang thẳng nằm ngang vuông góc với các dải đèn tim đường cất hạ cánh và cách đều đèn đường tim. Các đèn tạo thành đường ánh sáng ngang có khoảng cách sao cho chúng tạo thành đường sáng thẳng, trừ các trường hợp khi chiều dài đường ánh sáng ngang là 30m cho phép có các khoảng trống ở hai phía của tim đường cất hạ cánh. Các khoảng trống đó phụ thuộc vào yêu cầu tại chỗ và mỗi khoảng không vượt quá 6m.
3. Các đèn đường tim được bố trí với khoảng cách là 60m theo chiều dọc, trừ trường hợp có thiết bị định hướng tốt hơn thì có thể để khoảng cách 30m. Đèn gần nhất được bố trí cách đầu ngưỡng đường cất hạ cánh 60m hoặc 30m tuỳ thuộc vào khoảng cách dọc của các đèn đường tim.
GHI CHÚ 1: Giữa các đèn của đường ánh sáng nằm ngang có một khoảng cách từ 1m đến 4m. Khoảng trống ở hai phía tim đường cất hạ cánh có thể giúp định hướng tốt hơn khi tiếp cận bị lệch ngang và cho phép các trang thiết bị khẩn nguy và xe chữa cháy đi lại.
GHI CHÚ 2: Xem hướng dẫn dung sai lắp đặt đèn tiếp cận ở Phụ lục A, phần 11.
4. Nếu trên thực tế không thể kéo dài đường tim ra cách ngưỡng đường cất hạ cánh 420m, thì đường tim cũng phải kéo dài ra một khoảng 300m đến đèn dải ngang. Nếu không thể thực hiện được như vậy thì các đèn đường tim cần lắp đặt càng dài càng tốt, tại mỗi đèn tim có đèn dải ngang dài ít nhất là 3m. Đối với hệ thống đèn tiếp cận, khi đèn dải ngang bố trí cách ngưỡng đường cất hạ cánh 300m thì có thể bổ sung một đèn dải ngang cách ngưỡng đường cất hạ cánh 150m.
5. Bố trí hệ thống đèn cần thiết càng sát mặt phẳng nằm ngang đi qua ngưỡng đường cất hạ cánh càng tốt với yêu cầu:
a) Không vật thể nào ngoài ăngten định hướng ILS và MLS được nhô lên trên mặt phẳng đèn tiếp cận trong phạm vi 60m tính từ đường tim của hệ thống;
b) Không một đèn nào ngoài đèn ở phần trung tâm đèn cánh ngang hoặc đèn tim dải ngang (không phải là đèn cạnh) được nhìn thấy từ tàu bay đang tiếp cận;
c) Bất kì một ăng ten định hướng ILS hoặc MLS nào nhô lên trên mặt phẳng đèn đều được coi là chướng ngại vật và được đánh dấu hoặc chiếu sáng thích hợp.
6. Các đèn của hệ thống đèn tiếp cận giản đơn là những đèn sáng liên tục và có màu cho phép phân biệt được dễ dàng với các đèn dẫn đường hàng không mặt đất khác và các đèn lạ, nếu có. Mỗi đèn tim có thể gồm một trong các trường hợp sau:
a) Một đèn đơn;
b) Đèn dải ngang(barret) với chiều dài tối thiểu 3m.
GHI CHÚ 1: Nếu đèn barret ghi ở mục b) khoản này, bao gồm các đèn gần giống các nguồn sáng điểm thì khoảng cách 1,5m giữa chúng là phù hợp.
GHI CHÚ 2: Có thể sử dụng các đèn barret sáng dài 4m nếu có kế hoạch chuyển hệ thống đèn tiếp cận giản đơn sang hệ thống đèn tiếp cận chính xác.
GHI CHÚ 3: Tại những vị trí khó phân biệt hệ thống đèn tiếp cận giản đơn về ban đêm do các đèn xung quanh làm nhiễu thì có thể trang bị thêm các đèn nháy ngoài hệ thống.
7. Hệ thống đèn đảm bảo phi công nhìn thấy các đèn trên đường cất hạ cánh không có thiết bị từ mọi hướng trong giai đoạn tiếp cận chót và hạ cánh. Hệ thống đèn được tính để đảm bảo cường độ đủ sáng ở mọi điều kiện tầm nhìn và ánh sáng xung quanh nó.
8. Phi công phải nhìn thấy các đèn trên đường cất hạ cánh tiếp cận giản đơn từ mọi hướng trong giai đoạn tiếp cận chót và hạ cánh khi mà tàu bay không vượt ra ngoài giới hạn độ lệch bình thường của quỹ đạo hạ cánh theo thiết bị không nhìn bằng mắt. Hệ thống đèn được tính để bảo đảm đủ sáng cho việc định hướng chính xác cả ban ngày lẫn ban đêm ở điều kiện tầm nhìn bất lợi nhất mà hệ thống dự kiến phục vụ.
Điều 81. Yêu cầu đối với hệ thống đèn tiếp cận chính CAT I
1. Hệ thống đèn tiếp cận chính xác CAT I bao gồm dãy đèn tạo thành những dải sáng ngang dài 30m, được bố trí trên phần tim đường cất hạ cánh kéo dài cách ngưỡng đường cất hạ cánh từ 300m đến 900m.
2. Cần bố trí các đèn tạo nên dải sáng ngang theo một đường thẳng nằm ngang vuông góc với tuyến đèn tim cách đều tim về hai phía. Các đèn của dải sáng ngang được bố trí với khoảng cách giữa các đèn sao cho tạo được đường thẳng sáng liên tục, trừ trường hợp có khoảng trống ở hai bên của tim đường cất hạ cánh kéo dài. Số lượng những khoảng trống càng ít càng tốt tuỳ theo điều kiện tại chỗ, nhưng khoảng trống không vượt quá 6m.
3. Các đèn tim được bố trí với khoảng cách dọc 30m, trong đó đèn đầu tiên được đặt cách ngưỡng đường cất hạ cánh 30m.
4. Hệ thống đèn được lắp thật sát với mặt phẳng nằm ngang đi qua ngưỡng đường cất hạ cánh để bảo đảm sao cho:
a) Không một vật thể nào ngoài ăngten định hướng ILS và MLS được nhô ra ngoài mặt phẳng đèn tiếp cận trong phạm vi 60m tính từ đường tim của hệ thống;
b) Không đèn nào ngoài đèn ở phần trung tâm của đèn ngang và đèn dải ngang (không phải là đèn cạnh) được nhìn thấy từ tàu bay đang tiếp cận;
c) Trong trường hợp ILS hoặc MLS phải nhô lên trên mặt phẳng đèn, thì nó được coi như chướng ngại vật và cần được đánh dấu hoặc chiếu sáng thích hợp.
5. Các đèn tim đường và các đèn đường ngang trong hệ thống đèn tiếp cận chính xác CAT I là đèn sáng liên tục có màu trắng thay đổi. Mỗi vị trí đèn tim đường phải bao gồm một trong hai trường hợp sau:
a) Một nguồn ánh sáng trong 300m trong cùng của đường tim, hai nguồn ánh sáng ở trung tâm 300m của đường tim, và ba nguồn ánh sáng ở ngoài 300m của đường tim để thông báo khoảng cách;
b) Hoặc đèn dải ngang.
6. Khi đèn tiếp cận đáp ứng được yêu cầu khai thác thể hiện trong khoản 10 Điều 149 thì mỗi vị trí đèn tim đường có thể là một trong hai trường hợp sau:
a) Một nguồn sáng đơn;
b) Hoặc đèn dải ngang.
7. Dãy đèn dải ngang dài ít nhất 4m. Khi dãy đèn dải ngang bao gồm các đèn là nguồn sáng điểm, thì chúng phải cách đều nhau một khoảng không lớn hơn 1,5m.
8. Nếu đèn tim bao gồm các dãy đèn dải ngang như mô tả ở điểm b khoản 5, điểm b khoản 6 của Điều này thì mỗi dãy đèn dải ngang như vậy cần được bổ sung đèn nháy, ngoại trừ những trường hợp có thể không cần đèn nháy do đặc tính của hệ thống đèn và các điều kiện khí tượng.
9. Mỗi đèn nháy tại khoản 8 Điều này phát ra hai chớp sáng trong một giây theo trình tự quy định, bắt đầu từ đèn xa hơn theo hướng tới ngưỡng đường CHC và kết thúc ở đèn gần đường CHC. Ở đây cần sử dụng sơ đồ mạng điện cho phép điều khiển các đèn đó không phụ thuộc vào các đèn khác của hệ thống đèn tiếp cận.
10. Nếu đường tim bao gồm những đèn được mô tả ở điểm a khoản 5 và điểm a khoản 6 Điều này thì cần bổ sung cho đường ánh sáng ngang cách ngưỡng 300m các dãy đèn cách ngưỡng đường cất hạ cánh 150m, 450m, 600m và 750m. Bố trí các đèn tạo thành đường ánh sáng ngang theo đường thẳng nằm ngang vuông góc với đèn đường tim và cách đều tim về hai phía. Các đèn được lắp đặt với khoảng trống giữa chúng đủ để tạo thành hiệu quả của một đường sáng liên tục, trừ trường hợp cho phép ngắt quãng về hai phía của đường tim đường cất hạ cánh kéo dài. Các đoạn ngắt quãng đó phải thật ít tuỳ theo yêu cầu tại chỗ và mỗi đoạn không được dài quá 6m.
GHI CHÚ: Mô tả chi tiết hơn xem Phụ lục A, phần 11.
11. Khi cần bổ sung hệ thống thanh sáng ngang được mô tả ở khoản 10 Điều này, các đèn ngoài cùng của chúng nằm trên hai đường thẳng hoặc song song với đèn đường tim, hoặc hội tụ trên tim đường CHC tại điểm cách ngưỡng đường CHC là 300m.
12. Các đèn cần thoả mãn những yêu cầu kỹ thuật trong Phụ lục 2, Hình A2-1.
GHI CHÚ: Yêu cầu vỏ và đèn nêu trong Phụ lục A, Hình A-6.
Điều 82. Yêu cầu đối với hệ thống đèn tiếp cận chính xác CAT II và III.
1. Hệ thống đèn tiếp cận bao gồm một dãy đèn trên phần kéo dài tim đường CHC ở nơi có thể trên chiều dài 900m cách ngưỡng đường CHC. Ngoài ra hệ thống đó còn có hai dãy đèn cách ngưỡng đường CHC 270m và hai hàng đèn ngang, một cách ngưỡng đường CHC 150m và một cách ngưỡng 300m, chúng được thể hiện trên Hình II-14. Ở nơi có thể dùng đèn tiếp cận như đối tượng khai thác trong khoản 7 Điều 149 có thể có hai dãy đèn cạnh kéo dài cách ngưỡng đường CHC 240m và 2 dãy đèn ngang, một cách ngưỡng 150m và một cách ngưỡng 300m, chúng được thể hiện trên Hình II-15.
2. Các đèn tim được bố trí với khoảng cách dọc 30m, trong đó đèn gần nhất được bố trí cách ngưỡng đường CHC 30m.
3. Các đèn của dãy đèn cạnh được bố trí ở hai bên tim đường với khoảng cách dọc giống như đối với đèn tim đường và đèn đầu tiên gần nhất cách ngưỡng đường CHC 30m. Ở nơi không thể dùng đèn tiếp cận như đối tượng khai thác trong khoản 7 Điều 149 các đèn tạo nên dãy đèn cạnh được bố trí ở hai bên tim đường với khoảng cách dọc 60m và đèn đầu tiên gần nhất cách ngưỡng đường CHC 60m. Khoảng cách ngang (chiều rộng) giữa các đèn ở trong cùng của dãy đèn cạnh không nhỏ hơn 18m và không lớn hơn 22,5m, tốt nhất là bằng 18m, trong bất kỳ trường hợp nào khoảng cách ngang cũng phải bằng khoảng cách giữa các đèn của vùng chạm bánh.

Hình II-14. Đèn vùng tiếp cận trong 300 m và đèn đường CHC cho tiếp cận chính xác CAT II và CAT III

Hình II-15. Đèn vùng tiếp cận trong 300 m và đèn đường CHC cho tiếp cận chính xác CAT II và III ở nơi phải bảo đảm tầm nhìn khai thác như yêu cầu nêu trong Chương III
4. Thanh sáng ngang đặt ở cách ngưỡng đường CHC 150m sẽ chèn giữa khoảng trống các đèn tim và các đèn cạnh.
5. Thanh sáng ngang đặt cách ngưỡng 300 m sẽ được kéo dài về hai bên của các đèn tim một khoảng là 15m tính từ tim đường CHC kéo dài.
6. Nếu đường tim ở ngoài phạm vi 300m tính từ ngưỡng đường CHC bao gồm những đèn ghi ở điểm b khoản 10 Điều này hoặc điểm b khoản 11 Điều này thì đặt bổ sung các thanh sáng ngang cách ngưỡng đường CHC 450m, 600m và 750m.
7. Khi hệ thống có những thanh sáng ngang bổ sung theo khoản 6 Điều này thì các đèn ngoài cùng của thanh sáng ngang đó nằm trên hai đường thẳng hoặc chạy song song với dãy đèn tim hoặc hội tụ trên tim đường cất hạ cánh tại một điểm cách ngưỡng đường cất hạ cánh là 300m.
8. Hệ thống đèn được lắp thật sát với mặt phẳng nằm ngang đi qua ngưỡng đường cất hạ cánh để bảo đảm:
a) Không một đối tượng nào ngoài ăngten định hướng ILS và MLS được nhô ra ngoài mặt phẳng đèn tiếp cận trong phạm vi 60m tính từ đường tim của hệ thống;
b) Không đèn nào ngoài đèn ở phần trung tâm của thanh sáng ngang và đèn dải ngang (không phải là đèn cạnh) được nhìn thấy từ tàu bay đang tiếp cận;
c) Trong trường hợp ILS hoặc MLS phải nhô lên trên mặt phẳng đèn, thì nó được coi như chướng ngại vật và được đánh dấu hoặc chiếu sáng thích hợp.
9. Các đèn tim của hệ thống đèn tiếp cận chính xác CAT II và III cho 300m đầu tiên kể từ ngưỡng đường CHC là các đèn dải ngang có màu trắng biến đổi, trừ trường hợp ngưỡng đường CHC dịch chuyển đi 300 m hoặc lớn hơn, đèn tim có thể bao gồm các nguồn sáng đơn phát ánh sáng màu trắng biến đổi. Ở nơi có thể cho phép dùng đèn tiếp cận như đối tượng khai thác trong khoản 7 Điều 149 thì đèn tim của hệ thống đèn tiếp cận chính xác CAT II và III trong 300m đầu tiên tính từ ngưỡng đường CHC gồm các nguồn phát ánh sáng màu trắng biến đổi như sau:
a) Đèn dải ngang, ở đường tim nằm ngoài ngưỡng đường CHC 300 m bao gồm các đèn dải ngang mô tả trong điểm a khoản 11 Điều này;
b) Hoặc xen kẽ nguồn sáng đơn và đèn dải ngang, trên đường tim nằm ngoài ngưỡng đường CHC 300 m với nguồn sáng đơn như nêu trong điểm b khoản 11 Điều này và nguồn sáng đơn trong cùng được đặt cách ngưỡng đường CHC 30m và các đèn dải ngang trong cùng được đặt cách ngưỡng đường CHC 60m;
c) Hoặc các nguồn sáng đơn khi ngưỡng đường CHC dịch chuyển đi 300m hoặc lớn hơn.
10. Ngoài phạm vi 300m cách ngưỡng đường CHC, mỗi dãy đèn tim bao gồm các đèn sáng trắng biến đổi như sau:
a) Đèn dải ngang sử dụng trong khoảng cách ngưỡng đường CHC 300m;
b) Hoặc hai nguồn sáng ở khoảng 300m giữa và ba nguồn sáng ở 300m cuối của đường tim.
11. Ở nơi có thể cho phép dùng đèn tiếp cận như đối tượng khai thác trong khoản 7 Điều 149 thì ngoài 300m tính từ ngưỡng đường CHC mỗi vị trí đèn tim đường có thể bao gồm các đèn phát ánh sáng màu trắng biến đổi như sau:
a) Đèn dải ngang;
b) Hoặc một nguồn sáng đơn.
12. Dãy đèn dải ngang dài tối thiểu 4m. Khi dãy đèn dải ngang bao gồm các đèn như nguồn sáng điểm, các đèn được đặt cách nhau một khoảng không nhỏ hơn 1,5m.
13. Nếu đường tim cách ngưỡng đường CHC ngoài phạm vi 300 m bao gồm các dãy đèn ngang được nêu tại điểm a khoản 10 Điều này và điểm a khoản 11 Điều này thì mỗi dãy đèn nằm ngoài phạm vi 300 m có thể bổ sung đèn nháy, ngoại trừ những trường hợp có thể không cần đèn nháy do đặc tính của hệ thống đèn và điều kiện khí tượng.
14. Mỗi một đèn nháy được mô tả tại khoản 13 Điều này phát ra hai chớp sáng trong một giây theo trình tự quy định bắt đầu từ đèn xa ngưỡng đường CHC nhất và kết thúc ở đèn gần đường CHC. Trong trường hợp đó cần sử dụng sơ đồ lưới điện cho phép điều khiển các đèn không phụ thuộc vào những đèn khác của hệ thống đèn tiếp cận.
15. Dãy đèn cạnh bao gồm những đèn dải ngang màu đỏ. Chiều dài dãy đèn dải ngang biên và khoảng cách giữa các đèn cũng giống như đối với các đèn dải ngang vùng chạm bánh.
16. Những đèn tạo thành thanh sáng ngang là đèn liên tục chiếu ánh sáng trắng biến đổi. Các đèn được bố trí cách đều nhau với khoảng cách giữa hai đèn cạnh nhau không vượt quá 2,7m.
a) Cường độ đèn ánh sáng màu đỏ cũng phải bằng cường độ các đèn ánh sáng màu trắng;
b) Đèn phải đáp ứng các yêu cầu kỹ thuật trong Phụ lục 2, Hình A2-1 và A2-2.
GHI CHÚ: Có thể sử dụng vỏ và đèn này như nêu trong Phụ lục A, Hình A-6.
Điều 83. Hệ thống đèn chỉ dẫn độ dốc tiếp cận bằng mắt (VASIS)
1. Phải lắp đặt hệ thống chỉ dẫn độ dốc tiếp cận bằng mắt phục vụ cho tiếp cận mà không phụ thuộc vào đường cất hạ cánh có hoặc không có thiết bị nhìn bằng mắt hoặc không nhìn bằng mắt để tiếp cận do một hoặc một số những điều kiện dưới đây:
a) Đường cất hạ cánh sử dụng cho các loại tàu bay có động cơ tuốc-bin phản lực hay các loại tàu bay khác có yêu cầu dẫn đường tiếp cận tương tự;
b) Phi công của bất kỳ loại tàu bay nào cũng có thể gặp khó khăn khi đánh giá tiếp cận nếu vào ban ngày không có đầy đủ những vật định hướng bằng mắt khi tiếp cận trên mặt đất hay trên mặt nước, thiếu vật chuẩn ban ngày hay vào ban đêm không có đủ ánh sáng ở vùng tiếp cận; hoặc thiếu thông tin, không đánh giá đúng địa vật xung quanh hoặc độ dốc của đường cất hạ cánh;
c) Những công trình ở vùng tiếp cận có thể gây ra hậu quả nghiêm trọng nếu như tàu bay bay thấp hơn quỹ đạo bình thường của vùng tiếp cận, đặc biệt nếu thiếu những thiết bị nhìn được bằng mắt và không nhìn được bằng mắt cảnh báo những công trình đó;
d) Trạng thái vật lý bề mặt của cả hai đầu đường cất hạ cánh ảnh hưởng nhiều đến an toàn nếu tàu bay hạ cánh sớm hay lăn ra ngoài phạm vi đường cất hạ cánh;
đ) Bị địa hình hay các điều kiện khí tượng ảnh hưởng làm cho tàu bay có thể rơi vào vùng nhiễu động trong quá trình tiếp cận.
GHI CHÚ: Hướng dẫn lắp đặt hệ thống chỉ dẫn độ dốc tiếp cận bằng mắt được trình bày ở Phụ lục A, phần 12.

Hình II-16. Hệ thống chỉ dẫn độ dốc tiếp cận nhìn bằng mắt
2. Hệ thống chỉ dẫn bằng mắt độ dốc tiếp cận tiêu chuẩn bao gồm:
a) T-VASIS và AT-VASIS đáp ứng được những yêu cầu kỹ thuật từ khoản 7 đến khoản 23 Điều này;
b) PAPI và APAPI đáp ứng được những yêu cầu kỹ thuật theo quy định từ khoản 1 đến khoản 18 Điều 84 và Hình II-16.
3. Phải đảm bảo hệ thống PAPI, T-VASIS hoặc AT-VASIS cho mã số là 3 hoặc 4, khi có một hoặc nhiều điều kiện trong khoản 1 Điều này.
4. Các cơ quan, đơn vị có liên quan có trách nhiệm rà soát và xây dựng kế hoạch chuyển dần việc sử dụng T-VASIS và AT-VASIS làm hệ thống chỉ dẫn bằng mắt độ dốc tiếp cận tiêu chuẩn sang các thiết bị tiên tiến, hiện đại hơn.
5. Phải đảm bảo hệ thống PAPI, APAPI cho mã số là 1 hoặc 2, khi có một hoặc nhiều điều kiện trong khoản 1 Điều này.
6. Khi đường CHC có ngưỡng dịch chuyển tạm thời khỏi vị trí thông thường và có một hoặc nhiều điều kiện nêu trong khoản 1 Điều này thì có thể trang bị hệ thống PAPI, trừ trường hợp mã số là 1 hoặc 2 đã có hệ thống APAPI.
Hệ thống T-VASIS và AT-VASIS
7. Hệ thống T-VASIS bao gồm 20 đèn được lắp đặt đối xứng qua tim đường CHC dưới dạng hai đèn cánh ngang, mỗi đèn cánh ngang gồm 4 đèn, với tuyến đèn chạy dọc hai bên đường CHC mỗi bên có 6 đèn như Hình II-17.
8. Hệ thống AT-VASIS bao gồm 10 đèn đặt về một bên của đường cất hạ cánh dưới dạng vạch đèn cánh đơn 4 đèn, và tuyến 6 đèn dọc.
9. Các bộ đèn được lắp đặt sao cho phi công đang tiếp cận :
a) Khi ở phía trên đường dốc tiếp cận sẽ nhìn thấy các vạch đèn cánh có màu trắng, và 1, 2 hoặc 3 đèn "bay xuống"; phi công càng ở cao hơn đường dốc tiếp cận bao nhiêu thì các đèn "bay xuống" càng rõ bấy nhiêu;
b) Khi ở phía trên đường dốc tiếp cận sẽ nhìn thấy các vạch đèn cánh có màu trắng;
c) Khi ở phía dưới đường dốc tiếp cận sẽ nhìn thấy các vạch đèn cánh và 1, 2 hoặc 3 đèn màu trắng "bay lên"; phi công càng ở thấp hơn đường dốc tiếp cận bao nhiêu thì các đèn "bay lên" càng rõ bấy nhiêu và khi thấp quá xuống dưới đường dốc tiếp cận, sẽ nhìn thấy vạch đèn cánh và ba đèn "bay lên" có màu đỏ;
d) Khi ở trong hoặc ở trên đường dốc tiếp cận, không nhìn thấy đèn nào từ các bộ đèn "bay lên"; khi ở trong hay dưới đường dốc tiếp cận không nhìn thấy đèn nào từ các bộ đèn "bay xuống".
10. Các đèn được bố trí như ở Hình II-17 theo các khoảng cách lắp đặt ghi ở đó.
GHI CHÚ: Vị trí của hệ thống T-VASIS đảm bảo độ dốc 30 và độ cao chuẩn của mắt phi công ở độ cao 15m so với ngưỡng đường cất hạ cánh, còn mắt phi công ở độ cao 13m đến 17m chỉ nhìn thấy các đèn cánh ngang. Nếu cần tăng chiều cao ở ngưỡng đường cất hạ cánh (để có đủ khoảng trống đến càng tàu bay), thì khi tiếp cận có thể nhìn thấy một hay nhiều hơn đèn "bay xuống". Chiều cao mắt phi công phía trên ngưỡng đường cất hạ cánh lúc đó sẽ như sau:
- Nhìn thấy các đèn cánh và một đèn "bay xuống": 17-22 m
- Nhìn thấy các đèn cánh và hai đèn "bay xuống": 22-28 m
- Nhìn thấy các đèn cánh và ba đèn "bay xuống": 28-54 m
11. Hệ thống đèn chiếu sáng dùng cho các hoạt động vào ban ngày và ban đêm.
12. Sự phân bố ánh sáng của từng đèn có hình quạt chiếu dưới một cung
phủ toàn bộ chiều rộng ở hướng tiếp cận. Các đèn cánh ngang tạo nên chùm sáng màu trắng giữa góc đứng từ 1054' đến 60 và chùm sáng màu đỏ với góc đứng từ 00 đến 1054'. Các đèn "bay xuống" tạo thành chùm sáng màu trắng chiếu từ góc cao 60 xuống đến sát độ dốc tiếp cận rối tắt hẳn. Các đèn "bay lên" tạo thành chùm sáng màu trắng từ xấp xỉ độ dốc tiếp cận xuống đến góc đứng 1054' và chùm sáng màu đỏ ở dưới góc đứng 1054'. Góc ở đỉnh chùm sáng đỏ thuộc đèn cánh ngang và các đèn "bay lên" được tăng phù hợp với khoản 22 Điều này.
13. Phân bố độ sáng của đèn cánh, đèn bay xuống và đèn bay lên được trình bày trên Hình A2-22 của Phụ lục 2.
14. Sự chuyển tiếp từ màu đỏ sang mầu trắng trong mặt phẳng đứng được người quan sát nhìn thấy từ khoảng cách không dưới 300m dưới một góc đứng không lớn hơn 15'.
15. Ở độ sáng lớn nhất đèn đỏ phải có tung độ Y không quá 0,320.
16. Phải kiểm tra độ sáng của đèn nhằm điều chỉnh cho nó đáp ứng những điều kiện dự kiến, tránh làm chói mắt phi công trong quá trình tiếp cận và hạ cánh.
17. Những đèn tạo thành dãy đèn cánh ngang hoặc những đèn tạo thành cặp chuyển vị "bay xuống" hoặc "bay lên" được thiết kế sao cho phi công trên tàu bay tiếp cận thấy chúng xuất hiện trên cùng một đường nằm ngang. Các đèn đặt càng thấp càng tốt và có kết cấu dễ gãy.
18. Đèn cần được thiết kế sao cho sản phẩm ngưng tụ bụi, bẩn v.v.. khó bám lên những bộ phận quang học hay trên những bề mặt phản quang, ít ảnh hưởng đến sự tán xạ các tín hiệu ánh sáng và không ảnh hưởng đến độ sáng hoặc độ tương phản giữa những tín hiệu đỏ và trắng. Các đèn cũng được cấu tạo sao cho khó bị bùn đất làm bẩn ở nơi có thể có những điều kiện như vậy.
|
|
DUNG SAI LẮP ĐẶT Người có thẩm quyền có thể: a) Thay đổi chuẩn cao độ mặt người lái trên ngưỡng đường CHC khi tín hiệu trên đường dốc ở giữa giới hạn 12m đến 16m, trừ những trường hợp đạt đường dốc chuẩn ILS và/hoặc đường dốc MLS tối thiểu; độ cao trên ngưỡng có thể thay đổi để tránh mâu thuẫn giữa chỉ báo độ dốc tiếp cận bằng mắt và phần đường dốc của MLS tối thiểu; b) Thay đổi cự ly dọc của các đèn riêng biệt hoặc toàn bộ chiều dài của hệ thống không quá 10%; c) Thay đổi cự ly cuối cùng của hệ thống kể từ mép đường CHC không quá +-3 m; Chú thích: Hệ thống phải đối xứng qua tim đường CHC. d) Nơi mặt đất có độ dốc dọc, khoảng cách dọc cạnh nhau của các đèn phải chú ý khắc phục cao độ khác nhau so với ngưỡng; đ) Nơi mặt đất có độ dốc ngang, khoảng cách dọc cạnh nhau của hai đèn hoặc hai đèn cánh phải chú ý khắc phục cao độ khác nhau giữa chúng để đáp ứng yêu cầu của khoản 17 Điều 83. Khoảng cách giữa các đèn cánh và đèn ngưỡng dựa trên cơ sở độ dốc 3 độ so với đường CHC khi độ cao chuẩn của mặt người lái so với ngưỡng là 15m. Trên thực tế khoảng cách từ ngưỡng đến đèn cánh được xác định bởi: a) Độ dốc tiếp cận lựa chọn; b) Độ dốc dọc đường CHC; c) Cao độ chuẩn lựa chọn từ mặt người lái đến ngưỡng. |
Hình II-17. Vị trí đèn của T-VASIS
19. Độ dốc tiếp cận của tia sáng đèn phải phù hợp với tính năng các tàu bay tiếp cận.
20. Khi đường cất hạ cánh có hệ thống T-VASIS và được trang bị cả hệ thống ILS và (hoặc) MLS thì vị trí và độ cao của đèn được chọn sao cho độ dốc tiếp cận bằng mắt càng sát với đường tiếp cận của ILS và/hoặc MLS càng tốt.
21. Độ cao của những tia sáng đèn thuộc các đèn cánh ngang ở hai bên đường cất hạ cánh phải bằng nhau. Độ cao của đường giới hạn trên của chùm tia sáng đèn "bay lên" gần nhất với mỗi cánh ngang và độ cao của tia sáng biên phía dưới của chùm sáng đèn "bay xuống" gần nhất với mỗi đèn cánh ngang phải bằng nhau và phù hợp với độ dốc tiếp cận. Góc chấm dứt của đường biên trên của những chùm sáng đèn "bay lên" được tăng 5' theo góc chiếu tại mỗi bên tiếp theo từ cánh ngang. Góc chấm dứt của đáy dưới chùm sáng đèn "bay xuống" cần tăng một cung 7' tại mỗi đèn tiếp theo tính từ đèn cánh ngang (xem Hình II-18).
22. Độ cao đường biên trên của các chùm sáng đỏ thuộc đèn cánh ngang và đèn "bay lên" được thiết kế sao cho trong quá trình tiếp cận, khi phi công nhìn thấy đèn cánh ngang và 3 đèn "bay xuống" và ở cách tất cả các vật thể trong vùng tiếp cận một độ cao dự phòng an toàn thì phi công sẽ không nhìn thấy một đèn đỏ nào.
23. Góc phương vị của chùm tia sáng được mở rộng phù hợp ở nơi đối tượng nằm ngoài các OPS của hệ thống nhưng trong miền của các tia sáng bên cạnh sẽ nhìn rõ nó nhô lên khỏi OPS nếu đối tượng có thể ảnh hưởng xấu đến an toàn bay. Cần mở rộng phạm vi bảo vệ sao cho đối tượng có thể nằm ngoài chùm tia sáng.

Hình II-18. Chùm tia và các góc lắp đặt của T-VASIS và AT-VASIS
Điều 84. Yêu cầu đối với hệ thống PAPI và APAPI
1. Hệ thống đèn PAPI gồm một dãy bốn đèn cánh ngang mỗi đèn có nhiều bóng (hoặc hai bóng đơn ghép thành cặp) đặt cách đều nhau. Hệ thống này được bố trí phía bên trái đường cất hạ cánh, trừ những trường hợp trên thực tế không thể bố trí được. Khi đường cất hạ cánh sử dụng cho các tàu bay theo chỉ dẫn độ dốc bằng mắt không có các thiết bị khác, thì có thể lắp đặt đèn cánh ngang thứ 2 trên phía đối diện của đường cất hạ cánh.
2. Hệ thống APAPI bao gồm một dãy bốn đèn cánh ngang mỗi đèn có nhiều bóng (hoặc hai bóng đơn ghép thành cặp) đặt cách đều nhau. Hệ thống này được bố trí phía bên trái đường cất hạ cánh, trừ những trường hợp trên thực tế không thể bố trí được. Khi đường cất hạ cánh sử dụng cho các tàu bay theo chỉ dẫn độ dốc bằng mắt không có các thiết bị khác, thì có thể lắp đặt đèn cánh ngang thứ 2 trên phía đối diện của đường cất hạ cánh.
3. Đèn cánh ngang của hệ thống PAPI được cấu tạo và bố trí sao cho phi công trong quá trình tiếp cận sẽ:
a) Nhìn thấy hai đèn gần đường cất hạ cánh nhất có màu đỏ và hai đèn xa đường cất hạ cánh nhất có màu trắng khi ở ngay trên hay gần đường dốc tiếp cận;
b) Nhìn thấy một đèn gần đường cất hạ cánh nhất màu đỏ và ba đèn xa đường cất hạ cánh nhất màu trắng khi ở phía trên đường dốc tiếp cận, khi ở quá cao so với đường dốc tiếp cận sẽ nhìn thấy tất cả các đèn màu trắng;
c) Nhìn thấy 3 đèn gần đường cất hạ cánh nhất màu đỏ và một đèn xa đường cất hạ cánh nhất màu trắng khi ở thấp hơn đường dốc tiếp cận, khi ở quá thấp so với đường dốc tiếp cận sẽ nhìn thấy tất cả các đèn màu đỏ.
4. Đèn cánh ngang của hệ thống APAPI được cấu tạo và bố trí sao cho phi công trong quá trình tiếp cận sẽ:
a) Nhìn thấy một đèn đường cất hạ cánh gần hơn màu đỏ và một đèn đường cất hạ cánh xa hơn màu trắng, khi ở trên hoặc gần dốc tiếp cận;
b) Nhìn thấy cả hai đèn màu trắng, khi ở cao hơn đường dốc tiếp cận;
c) Nhìn thấy cả hai đèn màu đỏ, khi ở thấp hơn đường dốc tiếp cận.
5. Các đèn được bố trí như sơ đồ cơ bản được minh hoạ ở Hình II-19, trong đó có yêu cầu dung sai lắp đặt cho phép. Các đèn tạo nên đèn cánh ngang cần được thiết kế sao cho phi công đang tiếp cận nhìn thấy chúng về cơ bản cùng trên một đường thẳng nằm ngang. Các đèn cần được lắp đặt càng thấp càng tốt và dễ gãy.
6. Hệ thống đèn phải thích hợp với hoạt động cả ban ngày và ban đêm
7. Sự chuyển tiếp từ màu đỏ sang màu trắng trong mặt phẳng thẳng đứng cho phép người quan sát nhìn thấy từ một khoảng cách không nhỏ hơn 300m, bao quát dưới một góc đứng không lớn hơn 3'.
8. Ở độ sáng nhất, đèn đỏ phải có tung độ Y không quá 0,320.
9. Sự phân bố cường độ chiếu sáng của đèn như trình bày trên Hình A2-23, Phụ lục 2.
10. Phải kiểm tra độ sáng phù hợp của đèn để điều chỉnh nó cho thoả mãn những điều kiện dự kiến nhằm tránh chói mắt phi công trong quá trình tiếp cận và hạ cánh.
11. Mỗi đèn được điều chỉnh độ cao sao cho giới hạn dưới của phần trắng chùm tia sáng được cố định ở góc chiếu dự kiến yêu cầu giữa 1030' và ít nhất đến 4030' phía trên mặt phẳng ngang.
12. Đèn cần được thiết kế sao cho sản phẩm ngưng tụ bụi, bẩn v.v.. khó bám lên những bộ phận quang học hay trên những bề mặt phản quang, ít ảnh hưởng đến sự tán xạ các tín hiệu ánh sáng và không ảnh hưởng đến độ sáng hoặc độ tương phản giữa những tín hiệu đỏ và trắng cũng như độ cao của phần hình quạt chuyển tiếp.
|
CÁC DUNG SAI LẮP ĐẶT CHO PHÉP a) Khi lắp đặt PAPI hoặc APAPI trên đường CHC không trang bị ILS hoặc MLS ta phải tính khoảng cách D1 nhằm đảm bảo chiều cao tối thiểu sao cho tại đó nếu người lái tàu bay nhìn thấy dấu hiệu chỉ đường tiếp cận hạ cánh chính xác (Hình II-20, góc B đối với PAPI và góc A đối với APAPI) thì đảm bảo được khoảng cách an toàn của bánh tàu bay trên ngưỡng đường CHC theo yêu cầu kỹ thuật trong Bảng II-10 đối với các loại tàu bay có yêu cầu cao nhất thường xuyên sử dụng đường CHC. b) Khi lắp đặt PAPI hoặc APAPI trên đường CHC có trang bị ILS và/hoặc MLS ta phải tính khoảng cách D1 nhằm đảm bảo sự tương thích tối ưu giữa hai thiết bị trợ giúp bằng mắt và không bằng mắt từ các độ cao mắt đến ăng ten cho các loại tàu bay thường xuyên sử dụng đường CHC (xem Bảng II-10). Khoảng cách này phải bằng khoảng cách giữa ngưỡng đường CHC và điểm gốc hiệu quả của đường dốc ILS hoặc đường dốc MLS nhỏ nhất cộng với độ hiệu chỉnh sai số liên quan đến các độ cao từ mắt đến ăng ten. Độ hiệu chỉnh này bằng cao độ trung bình của mắt và ăng ten nhân với cootang của góc tiếp cận. Tuy nhiên phải đảm bảo khoảng cách này sao cho không có trường hợp nào khoảng cách từ ngưỡng đến bánh tàu bay trên ngưỡng đường CHC nhỏ hơn khoảng cách được nêu trong cột (3) Bảng II-10. Ghi chú: Xem tại Thông tư 34/2014/TT-BGTVT/Chương II/Mục 1.4. Sơn tín hiệu đánh dấu điểm ngắm. Hướng dẫn về sự hài hòa giữa các tín hiệu của PAPI, ILS và/hoặc MLS được nêu trong các Sổ tay hướng dẫn thiết kế sân bay (Doc 9157), Phần 4. c) Nếu khoảng cách của bánh tàu bay lớn hơn khoảng cách quy định tại mục a) trên đối với tàu bay đặc biệt thì có thể thỏa mãn khoảng cách đó bằng cách tăng D1. d) Khoảng cách D1 phải khắc phục sự chênh lệch cao độ giữa các hàng đèn tim và đèn ngưỡng đường CHC. đ) Để đảm bảo được các đèn lắp càng thấp càng tốt và để điều chỉnh theo mọi độ dốc ngang, có thể chấp nhận sai lệch cao độ giữa các đèn tới 5 cm. Có thể chấp nhận gradien cuối cùng không quá 1,25% khi góng thẳng hàng ngang các đèn. e) Có thể lấy khoảng cách 6m (+-1m) giữa các đèn ngưỡng đường CHC của hệ PAPI khi mã số là 1 hay 2. Trong trường hợp như vậy, đèn PAPI phía trong được bố trí các mép đường CHC không nhỏ hơn 10m (+-1m). Chú thích: Việc giảm khoảng cách giữa các đèn có thể làm giảm tầm nhìn hữu ích của hệ thống. g) Khoảng cách giữa các đèn cuối APAPI có thể được tăng tới 9m (+-1m) nếu yêu cầu tầm nhìn lớn hơn hoặc có thể thay đổi hệ PAPI. Trong trường hợp sau đèn APAPI phía trong được bố trí cách mép đường CHC 15m (+-1m). |
Hình II-19. Vị trí của PAPI và APAPI

Hình II-20 Chùm tia và các góc lắp đặt PAPI và APAPI
Bảng II-10. Lưu không bánh tàu bay trên ngưỡng đường CHC cất cánh cho PAPI và APAPI
|
Chiều cao mắt-Bánh tàu bay theo dạng tiếp cận (m)a |
Lưu không bánh tàu bay yêu cầu (m)b,c |
Lưu không bánh tàu bay tối thiểu (m)d |
|
(1) |
(2) |
(3) |
|
Dưới 3 |
6 |
3e |
|
Từ 3 đến dưới 5 |
9 |
4 |
|
Từ 5 đến dưới 8 |
9 |
5 |
|
Từ 8 đến dưới 14 |
9 |
6 |
|
Lưu không được hiểu là “khoảng trống từ bánh máy bay đến bề mặt đường CHC tại vị trí thềm” a. Khi chọn nhóm chiều cao mắt- bánh tàu bay, chỉ xem xét những tàu bay sẽ sử dụng hệ thống trên thường xuyên, loại tàu bay có yêu cầu cao nhất trong những tàu bay đó cho ta nhóm chiều cao mắt- bánh tàu bay. b. Ở nơi có điều kiện cần thỏa mãn các khoảng lưu không bánh tàu bay yêu cầu ở cột (2). c. Có thể chấp nhận các khoảng lưu không bánh tàu bay ở cột (2) giảm đi nhưng không nhỏ hơn giá trị ở cột (3). Nghiên cứu về hàng không cho thấy có thể giảm các khoảng lưu không bánh tàu bay như vậy có thể chấp nhận được. d. Khi khoảng lưu không bánh tàu bay giảm được cung cấp ở ngưỡng dịch chuyển, nó phải đảm bảo rằng khoảng lưu không bánh tàu bay mong muốn tương ứng được yêu cầu ở cột (2) sẽ khả dụng khi một tàu bay ở đầu trên cùng của nhóm chiều cao mắt - bánh tàu bay được chọn vượt qua phần cuối của đường CHC. e. Trên đường CHC chủ yếu dùng cho tàu bay phản lực, các khoảng lưu không bánh tàu bay có thể giảm đi 1,5 m. |
||
13. Độ dốc tiếp cận đèn được xác định theo Hình II-20 phải thoả mãn các tàu bay tiếp cận.
14. Khi đường CHC được lắp đặt hệ thống ILS, MLS, vị trí và trị số góc của đèn cần được lắp đặt sao cho đường dốc tiếp cận bằng mắt càng trùng với đường tiếp cận của hệ thống ILS, MLS càng tốt.
15. Góc chiếu đặt các đèn trong dải đèn cánh ngang PAPI phải đảm bảo trong quá trình tiếp cận, khi người lái quan sát được tín hiệu 1 trắng và 3 đỏ thì sẽ nhìn thấy mọi chướng ngại vật trong khu tiếp cận với một khoảng cách an toàn (xem Bảng II-10).
16. Góc chiếu đặt các đèn trong dải đèn cánh ngang APAPI phải đảm bảo trong quá trình tiếp cận, khi người lái quan sát được tín hiệu trên đường dốc thấp nhất, nghĩa là một tín hiệu trắng và một tín hiệu đỏ thì sẽ thấy mọi chướng ngại vật trong khu vực tiếp cận từ một khoảng cách an toàn (xem Bảng II-10).
17. Góc phương vị của chùm tia sáng được mở rộng phù hợp ở nơi đối tượng nằm ngoài các bề mặt chướng ngại vật của hệ PAPI hay APAPI nhưng trong miền của các tia sáng bên cạnh sẽ nhìn rõ nó nhô lên khỏi bề mặt chướng ngại vật nếu đối tượng có thể ảnh hưởng xấu đến an toàn bay. Phạm vi của giới hạn phải đảm bảo vật thể nằm ngoài giới hạn của chùm sáng.
18. Khi các đèn cánh ngang được lắp đặt ở hai bên đường cất hạ cánh đóng vai trò dẫn đường thì các đèn tương ứng cần có góc chiếu như nhau, sao cho tín hiệu của từng đèn cánh ngang đối xứng có thể thay đổi ở cùng một thời điểm.
19. Phải thiết lập một bề mặt chướng ngại vật đối với hệ thống chỉ dẫn độ dốc tiếp cận bằng mặt.
20. Các đặc tính của bề mặt chướng ngại vật: Đường gốc, độ mở, chiều dài và độ dốc phải phù hợp với các quy định ở cột tương ứng ở Bảng II-11 và Hình II-21.
21. Các chướng ngại vật mới hoặc các phần mở rộng của các chướng ngại vật đã có từ trước, không được nằm ngoài bề mặt bảo vệ chướng ngại vật , trừ khi nhà chức trách cho phép hoặc chướng ngại vật mới hay phần mở rộng đó được che khuất bởi một chướng ngại vật cố định hiện hữu.
22. Các chướng ngại vật hiện hữu vượt ra ngoài phía trên của bề mặt bảo vệ chướng ngại vật phải được di chuyển, trừ khi được nhà chức trách cho phép sau khi xác định chướng ngại vật đó không ảnh hưởng xấu đến an toàn hoặc chướng ngại vật này được che khuất bởi một vật thể cố định hiện hữu.
Bảng II-11: Kích thước và độ dốc của bề mặt chướng ngại vật
|
Kích thước bề mặt |
Không có thiết bị |
Có thiết bị |
||||||
|
Mã số |
Mã số |
|||||||
|
1 |
2 |
3 |
4 |
1 |
2 |
3 |
4 |
|
|
Chiều dài cạnh trong |
60 m |
80 ma |
150 m |
150 m |
150 m |
150 m |
300 m |
300 m |
|
Khoảng cách từ hệ thống chỉ dẫn tiếp cận bằng mắte |
D1+30 m |
D1+60 m |
D1+60 m |
D1+60 m |
D1+60 m |
D1+60 m |
D1+60 m |
D1+60 m |
|
Độ mở (từng phía) (%) |
10 |
10 |
10 |
10 |
15 |
15 |
15 |
15 |
|
Tổng chiều dài |
7500 m |
7500 mb |
15000 m |
15000 m |
7500 m |
7500 mb |
15000 m |
15000 m |
|
Độ dốc (độ) |
||||||||
|
a) T-VASIS and AT- VASIS |
_c |
1.90 |
1.90 |
1.90 |
- |
1.90 |
1.90 |
1.90 |
|
b) PAPId |
_ |
A-0.570 |
A-0.570 |
A-0.570 |
A-0.570 |
A-0.570 |
A-0.570 |
A-0.570 |
|
c) APAPId |
A-0.90 |
A-0.90 |
- |
- |
A-0.90 |
A-0.90 |
- |
- |
|
Chiều dài này được tăng đến 150m cho hệ thống T-VASIS hoặc AT-VASIS. Chiều dài này được tăng đến 15000m cho hệ thống T-VASIS hoặc AT-VASIS. Không có độ dốc nếu như hệ thống không sử dụng trên đường CHC tương ứng. Góc chỉ ra trong Hình II-20. D1 là khoảng cách của hệ thống chỉ dẫn độ dốc tiếp cận bằng mắt từ ngưỡng đường CHC đến vị trí dịch ngưỡng để khắc phục đối tượng xâm nhập vào bề mặt bảo vệ chướng ngại vật (như Hình II-19). Điểm bắt đầu của bề mặt bảo vệ chướng ngại vật được cố định theo vị trí của hệ thống chỉ dẫn độ dốc tiếp cận bằng mắt, do đó sự dịch chuyển của PAPI dẫn đến sự dịch chuyển của điểm bắt đầu bề mặt bảo vệ chướng ngại vật. Xem điểm e khoản 23 Điều này. |
||||||||

Hình II-21. OPS cho hệ thống chỉ dẫn độ dốc tiếp cận bằng mắt
23. Trong trường hợp có vật thể vượt qua bề mặt chướng ngại vật, có thể ảnh hưởng xấu đến an toàn bay thì phải áp dụng một hoặc các biện pháp sau đây:
a) Nâng cao một cách thích hợp độ dốc tiếp cận của hệ thống;
b) Giảm độ mở phương vị của hệ thống sao cho chướng ngại vật nằm ngoài các đường bao của chùm tia sáng;
c) Di chuyển tim của hệ thống và bề mặt chướng ngại vật gắn liền với nó đi không quá 50;
d) Di chuyển ngưỡng đường cất hạ cánh phù hợp;
đ) Khi việc di chuyển ngưỡng đường cất hạ cánh không thể thực hiện được thì di chuyển cả hệ thống về phía ngược với ngưỡng đường cất hạ cánh một cách hợp lý để tạo ra độ cao gia tăng trên ngưỡng đường cất hạ cánh bằng độ cao chướng ngại vật.
Điều 85. Yêu cầu đối với đèn hướng dẫn bay vòng
1. Cần bố trí đèn hướng dẫn bay vòng khi các hệ thống đèn tiếp cận và đèn đường cất hạ cánh không đủ đảm bảo cho tàu bay bay theo đường vòng nhận biết đường cất hạ cánh và/hoặc các khu vực tiếp cận trên không trong điều kiện đường cất hạ cánh được sử dụng cho tiếp cận theo đường vòng.
2. Phải chọn vị trí và số lượng đèn hướng dẫn bay theo đường vòng sao cho phi công trong các trường hợp bay vòng có thể:
a) Bay vào theo chiều gió hoặc lượn vòng ngược hướng tiếp cận bay vào đường cất hạ cánh ở cự ly cần thiết và nhận biết được ngưỡng đường cất hạ cánh khi bay qua;
b) Có đủ tầm nhìn đến ngưỡng đường cất hạ cánh và/hoặc những vật chuẩn định hướng phân biệt khác cho phép phi công quyết định bay vào vòng lượn cơ sở và hoàn thành tiếp cận chót theo chỉ dẫn của các thiết bị nhìn bằng mắt khác.
3. Đèn hướng dẫn bay vòng gồm:
a) Đèn tín hiệu ở phần kéo dài tim đường cất hạ cánh và /hoặc các phần của hệ thống đèn tiếp cận bất kỳ nào; hoặc
b) Đèn tín hiệu vị trí ngưỡng đường cất hạ cánh; hoặc
c) Đèn tín hiệu chỉ hướng hoặc chỉ vị trí đường cất hạ cánh;
Hoặc tổ hợp các đèn trên thích hợp cho đường cất hạ cánh khai thác.
4. Đèn sáng liên tục hoặc nháy hướng dẫn bay vòng có cường độ và góc chiếu sáng thích hợp trong các điều kiện tầm nhìn và đèn xung quanh mà trong đó dự kiến tiếp cận bằng mắt theo đường vòng. Các đèn nháy có màu trắng, còn các đèn sáng liên tục có màu trắng hoặc là đèn phóng điện qua chất khí.
5. Các đèn được cấu tạo và lắp đặt sao cho không làm chói mắt và không làm phi công lạc hướng trong quá trình tiếp cận hạ cánh, cất cánh hoặc khi lăn.
Điều 86. Yêu cầu đối với hệ thống đèn dẫn vào đường CHC
1. Có thể bố trí hệ thống đèn dẫn vào đường cất hạ cánh khi cần chỉ dẫn bay bằng mắt dọc quỹ đạo tiếp cận, đặc biệt do phải tránh địa hình nguy hiểm hoặc để giảm tiếng ồn.
2. Có thể bố trí hệ thống đèn dẫn vào đường cất hạ cánh bao gồm những nhóm đèn định hướng chỉ dẫn đường tiếp cận cần thiết để khi bay qua các nhóm đèn trước thì thấy được nhóm đèn tiếp theo. Khoảng cách giữa các nhóm đèn cạnh nhau không được vượt quá 1.600m. Hệ thống đèn dẫn vào đường cất hạ cánh có thể cong, thẳng hoặc kết hợp 2 trường hợp.
3. Hệ thống đèn cửa dẫn vào đường cất hạ cánh được bắt đầu từ điểm do cơ quan có thẩm quyền quy định đến điểm mà từ đó nhìn thấy được hệ thống đèn tiếp cận, nếu có, hoặc nhìn thấy đường cất hạ cánh hoặc hệ thống đèn đường cất hạ cánh.
4. Mỗi nhóm đèn của hệ thống đèn dẫn vào đường cất hạ cánh cần bao gồm tối thiểu ba (03) đèn nháy thẳng hàng hoặc cụm đèn. Hệ thống này có thể được tăng cường bằng đèn sợi đốt sáng liên tục ở nơi cần nhận biết hệ thống.
5. Các đèn nháy có màu trắng, thường là đèn phóng điện qua chất khí.
6. Khi cần, các đèn nháy của mỗi nhóm lần lượt phát các tín hiệu nhấp nháy nối tiếp nhau trên hướng dẫn tới đường cất hạ cánh.
Điều 87. Yêu cầu đối với đèn đánh dấu ngưỡng đường CHC
1. Lắp đặt đèn đánh dấu ngưỡng đường cất hạ cánh tại:
a) Tại ngưỡng đường cất hạ cánh tiếp cận giản đơn nhằm bổ sung sơn tín hiệu nhận biết ngưỡng đường cất hạ cánh hoặc khi không đảm bảo được bằng các đèn tín hiệu tiếp cận khác;
b) Tại vị trí ngưỡng đường cất hạ cánh dịch chuyển khỏi đầu đường cất hạ cánh hoặc ngưỡng đường cất hạ cánh được dịch ngưỡng tạm thời khỏi vị trí thông thường và khi cần làm rõ ngưỡng đường cất hạ cánh.
2. Các đèn đánh dấu ngưỡng đường cất hạ cánh được bố trí đối xứng qua tim đường cất hạ cánh trên cùng đường thẳng với ngưỡng đường cất hạ cánh và ở ngoài các đèn lề đường cất hạ cánh khoảng 10m.
3. Các đèn đánh dấu ngưỡng đường cất hạ cánh là đèn nháy màu trắng với tần số chớp sáng từ 60 đến 120 lần/phút.
4. Các đèn đánh dấu ngưỡng đường cất hạ cánh chỉ được nhìn thấy ở hướng tiếp cận đường cất hạ cánh.
Điều 88. Yêu cầu đối với đèn lề đường CHC
1. Các đèn lề đường cất hạ cánh được lắp đặt cho đường cất hạ cánh sử dụng vào ban đêm, hoặc đường cất hạ cánh tiếp cận chính xác dùng ban ngày hoặc ban đêm.
2. Các đèn lề đường cất hạ cánh có thể được lắp đặt trên đường cất hạ cánh dùng cho cất cánh vào ban ngày sử dụng ở tầm nhìn trên đường cất hạ cánh dưới mức tối thiểu 800m.
3. Các đèn lề đường cất hạ cánh gồm hai dãy đèn song song cách đều tim đường cất hạ cánh được bố trí dọc theo toàn bộ chiều dài đường cất hạ cánh.
4. Các đèn lề đường cất hạ cánh bố trí dọc mép khu vực công bố làm đường cất hạ cánh, hoặc ngoài phạm vi đường cất hạ cánh nhưng không cách xa các mép đường cất hạ cánh quá 3m.
5. Khi chiều rộng khu vực dùng làm đường cất hạ cánh lớn hơn 60m thì khoảng cách giữa các dãy đèn được xác định phụ thuộc vào tính chất hoạt động của tàu bay, sự phân bố của các đèn lề đường cất hạ cánh và những thiết bị bằng mắt khác phục vụ đường cất hạ cánh.
6. Các đèn lề đường cất hạ cánh được bố trí theo hàng cách nhau không quá 60m đối với đường cất hạ cánh có thiết bị, và không quá 100m đối với đường cất hạ cánh không có thiết bị. Các đèn ở hai phía đối diện qua tim đường cất hạ cánh nằm trên đường vuông góc với tim. Trên vị trí giao nhau của các đường cất hạ cánh khoảng cách giữa các đèn có thể không đều hoặc có vị trí không có đèn nếu có thiết bị chỉ dẫn khác cho phi công.
7. Đèn lề đường cất hạ cánh là đèn sáng liên tục có ánh sáng màu trắng biến đổi, trừ trường hợp:
a) Khi có ngưỡng dịch chuyển của đường cất hạ cánh, các đèn giữa mép đầu đường cất hạ cánh và ngưỡng dịch chuyển có ánh sáng màu đỏ theo hướng tiếp cận;
b) Một phần các đèn trong khoảng 600m hoặc 1/3 chiều dài đường cất hạ cánh (lấy theo khoảng cách nhỏ hơn), nằm ở đầu bên kia của đường cất hạ cánh so với vị trí xuất phát khi cất cánh, có ánh sáng màu vàng.
8. Các đèn lề đường CHC phải được nhìn thấy từ mọi góc nhằm chỉ dẫn cho phi công khi hạ cánh hoặc cất cánh ở cả hai hướng. Trong trường hợp các đèn lề dùng để hướng dẫn bay vòng thì chúng phải được nhìn thấy được từ mọi góc phương vị (xem khoản 1 Điều 85).
9. Ở mọi góc được yêu cầu trong khoản 8 Điều này, đèn lề đường cất hạ cánh phải được nhìn thấy ở mọi góc trên 150 so với đường nằm ngang, cường độ phụ thuộc vào các điều kiện tầm nhìn và ánh sáng xung quanh khi dùng đường cất hạ cánh cho cất cánh hoặc hạ cánh. Trong mọi trường hợp cường độ chiếu sáng ít nhất là 50 cd, trừ khi sân bay không có ánh sáng ngoài, cường độ của đèn có thể giảm xuống đến 25cd để tránh làm chói mắt phi công.
10. Các đèn lề trên đường CHC tiếp cận chính xác phải đáp ứng những yêu cầu kỹ thuật ở Phụ lục 2, Hình A2-9 hoặc A2-10.
Điều 89. Yêu cầu đối với đèn ngưỡng đường CHC
1. Các đèn ngưỡng đường cất hạ cánh được lắp đặt cho đường cất hạ cánh có đèn lề đường cất hạ cánh, trừ đường cất hạ cánh tiếp cận không có thiết bị hoặc tiếp cận giản đơn trong trường hợp ngưỡng đường cất hạ cánh bị dịch chuyển và có lắp đặt các đèn cánh ngang.
2. Nếu ngưỡng đường cất hạ cánh trùng với mép đầu của đường cất hạ cánh, các đèn ngưỡng được bố trí thành một dãy vuông góc với tim đường cất hạ cánh càng gần mép đầu của đường cất hạ cánh càng tốt, và trong bất kỳ trường hợp nào cũng không được xa quá mép đường cất hạ cánh 3m.
3. Khi ngưỡng đường cất hạ cánh bị dịch chuyển khỏi mép đầu đường cất hạ cánh thì các đèn ngưỡng được bố trí theo một dãy vuông góc với tim đường cất hạ cánh tại ngưỡng dịch chuyển.
4. Các đèn ngưỡng đường cất hạ cánh bao gồm:
a) Ít nhất 6 đèn trên đường cất hạ cánh không có thiết bị hoặc trên đường cất hạ cánh tiếp cận giản đơn;
b) Ít nhất có số lượng đèn cần thiết đủ để bố trí các đèn cách đều nhau 3m ở giữa các dãy đèn lề đường cất hạ cánh trên đường cất hạ cánh tiếp cận chính xác CAT I;
c) Các đèn phân bố đều giữa các dãy đèn lề đường cất hạ cánh với khoảng cách không lớn hơn 3m trên đường cất hạ cánh tiếp cận chính xác CAT II hoặc III.
5. Các đèn được dự kiến ở điểm a, điểm b khoản 4 Điều này có thể:
a) Có khoảng cách giữa các đèn lề đường cất hạ cánh bằng nhau;
b) Hoặc gồm hai nhóm đối xứng qua tim đường cất hạ cánh trong đó các đèn trong từng nhóm được đặt cách đều nhau và khoảng trống giữa các nhóm bằng khoảng cách giữa các đèn hoặc các vệt sơn tín hiệu đánh dấu vùng chạm bánh nếu được, hoặc trong trường hợp khác khoảng cách đó không được lớn hơn 1/2 khoảng cách giữa các hàng đèn lề đường cất hạ cánh.
Điều 90. Yêu cầu đối với đèn cánh ngang đường CHC
1. Trên đường cất hạ cánh tiếp cận chính xác khi cần phải chỉ rõ hơn đường cất hạ cánh thì lắp đặt các đèn cánh ngang.
2. Bố trí các đèn cánh ngang trên đường cất hạ cánh không thiết bị hoặc trên đường cất hạ cánh tiếp cận giản đơn khi ngưỡng bị dịch chuyển và trên các đường cất hạ cánh không có đèn ngưỡng đường cất hạ cánh.
3. Các đèn cánh ngang được bố trí thành hai nhóm đối xứng với tim đường cất hạ cánh tại ngưỡng. Mỗi đèn cánh ngang được tạo bởi ít nhất 5 đèn kéo dài ra phía ngoài cạnh đường cất hạ cánh tối thiểu 10m và vuông góc với dãy đèn lề đường cất hạ cánh, trong đó đèn gần nhất của mỗi đèn cánh ngang nằm trên đường nối các đèn lề đường cất hạ cánh.
4. Các đèn ngưỡng đường cất hạ cánh và đèn cánh ngang sáng sáng liên tục một hướng màu xanh lục chiếu sáng ở hướng tiếp cận đường cất hạ cánh. Cường độ và góc chiếu sáng của các đèn đó phải phù hợp với các điều kiện tầm nhìn và độ chiếu sáng xung quanh của đường cất hạ cánh.
5. Các đèn ngưỡng đường cất hạ cánh trên đường cất hạ cánh tiếp cận chính xác phải thoả mãn các yêu cầu kỹ thuật nêu ở Phụ lục 2, Hình A2-3.
6. Các đèn cánh ngang trên ngưỡng đường cất hạ cánh tiếp cận chính xác phải thoả mãn các yêu cầu kỹ thuật nêu ở Phụ lục 2, Hình A2-4.
Điều 91. Yêu cầu đối với đèn cuối đường CHC (xem Hình II-22)
1. Các đèn cuối đường cất hạ cánh được lắp đặt cho đường cất hạ cánh có đèn lề. Khi ngưỡng nằm ở cạnh cuối đường cất hạ cánh, đèn ngưỡng đường cất hạ cánh có thể được sử dụng làm đèn giới hạn cuối đường cất hạ cánh.
2. Các đèn cuối đường cất hạ cánh được bố trí trên một đường thẳng vuông góc với tim đường cất hạ cánh càng gần mép cuối đường cất hạ cánh càng tốt, và ở bất kỳ trường hợp nào cũng không được cách xa mép cuối đường cất hạ cánh quá 3m.
3. Cần tối thiểu 6 đèn cuối đường cất hạ cánh và bố trí thoả mãn 1 trong 2 điều kiện sau:
a) Khoảng cách bằng nhau giữa các dãy đèn lề đường cất hạ cánh;
b) Gồm hai nhóm đối xứng qua tim đường cất hạ cánh, trong đó các đèn trong từng nhóm được đặt cách đều nhau và khoảng trống giữa các nhóm không được lớn hơn 1/2 khoảng cách giữa các hàng đèn lề đường cất hạ cánh.
Trên đường cất hạ cánh tiếp cận chính xác CAT III, khoảng cách giữa những đèn cuối đường cất hạ cánh không được vượt quá 6m, trừ khoảng trống giữa hai đèn trong cùng, nếu có.
4. Các đèn cuối đường cất hạ cánh là những đèn sáng liên tục có màu đỏ theo một hướng đường cất hạ cánh. Cường độ và góc chiếu sáng phải phù hợp với điều kiện tầm nhìn và độ chiếu sáng xung quanh của đường cất hạ cánh.
5. Các đèn cuối đường cất hạ cánh tiếp cận chính xác phải thoả mãn những yêu cầu kỹ thuật ở Phụ lục 2 Hình A2-8.

Hình II-22. Bố trí đèn ngang đường CHC và đèn cạnh cuối đường CHC
Điều 92. Yêu cầu đối với đèn tim đường CHC
1. Đèn tim đường cất hạ cánh được bố trí trên đường cất hạ cánh có thiết bị tiếp cận chính xác CAT II hoặc CAT III.
2. Khi cần, có thể lắp đặt đèn tim đường cất hạ cánh trên đường cất hạ cánh tiếp cận chính xác CAT I, đặc biệt khi đường cất hạ cánh được dùng cho các tàu bay có tốc độ hạ cánh lớn hoặc khi khoảng cách giữa các dãy đèn lề đường cất hạ cánh lớn hơn 50m.
3. Lắp đặt đèn tim đường cất hạ cánh trên đường cất hạ cánh dùng để cất cánh trong điều kiện khai thác tối thiểu với tầm nhìn đường cất hạ cánh (RVR) nhỏ hơn 400m.
4. Khi cần, có thể lắp đặt đèn tim đường cất hạ cánh trên đường cất hạ cánh dùng cho cất cánh ở tầm nhìn trên đường cất hạ cánh tối thiểu 400m hoặc lớn hơn khi đường cất hạ cánh sử dụng cho các loại tàu bay có tốc độ cất cánh rất lớn, đặc biệt, nếu khoảng cách giữa các dãy đèn lề đường cất hạ cánh lớn hơn 50m.
5. Các đèn tim đường CHC được bố trí dọc tim đường CHC. Khi không thể bố trí trên đường tim, chúng được đặt lệch về một phía cách đều tim đường CHC không quá 60cm. Các đèn tim đường CHC được bố trí từ ngưỡng đến cuối đường CHC với khoảng cách dọc bằng khoảng 15m. Khi phải bảo dưỡng đèn tim đường CHC theo yêu cầu khai thác trình bày trong khoản 7, khoản 11 Điều 149 và đường CHC sử dụng ở tầm nhìn là 350m hoặc lớn hơn thì khoảng cách dọc bằng khoảng 30m.
GHI CHÚ: Không phải thay thế hệ thống chiếu sáng tim đường hiện hữu nếu các đèn được bố trí cách nhau 7,5 m.
6. Chỉ dẫn đường ra tim đường CHC cho tàu bay cất cánh kể từ đầu đường CHC đến ngưỡng dịch chuyển bằng một trong những hệ thống sau:
a) Hệ thống đèn tiếp cận, nếu đặc tính và cường độ của nó bảo đảm đủ hướng dẫn cho tàu bay trong quá trình cất cánh và không làm chói mắt phi công khi cất cánh;
b) Đèn tim đường CHC;
c) Những dãy đèn dải ngang dài tối thiểu 3m, được bố trí cách đều nhau 30m, như ở Hình II-23, và được thiết kế sao cho những đặc tính quang học và cường độ của chúng bảo đảm dẫn đường được trong quá trình cất cánh mà không làm chói mắt phi công.
Khi cần thiết, có thể tắt các đèn tim được nêu trong điểm b của khoản này, hoặc điều chỉnh cường độ của hệ thống đèn tiếp cận hoặc của các dãy đèn dải ngang trong trường hợp đường cất hạ cánh sử dụng để hạ cánh. Nói chung, các đèn tim đường cất hạ cánh không phải là chỉ dẫn ra đường tim duy nhất từ đầu đường cất hạ cánh tới ngưỡng dịch chuyển khi đường cất hạ cánh sử dụng để hạ cánh.
7. Các đèn tim đường cất hạ cánh là các đèn sáng liên tục màu trắng biến đổi lắp đặt từ ngưỡng đường cất hạ cánh đến điểm cách cuối đường cất hạ cánh 900m, xen kẽ màu đỏ và màu trắng biến đổi từ điểm cách 900m đến điểm cách 300m tính từ cuối đường cất hạ cánh và các đèn màu đỏ từ điểm cách cuối đường cất hạ cánh 300m tới mép cuối cùng, trừ trường hợp chiều dài đường cất hạ cánh nhỏ hơn 1800m các đèn xen kẽ màu đỏ và màu trắng biến đổi được lắp đặt từ một điểm giữa đường cất hạ cánh dùng cho hạ cánh đến điểm ở vị trí 300m cách mép cuối đường cất hạ cánh.
8. Đèn tim đường cất hạ cánh phải phù hợp với thông số kỹ thuật tại Phụ lục 2, hình A2-6 hoặc A2-7.

Hình II-23. Ví dụ về hệ thống đèn tiếp cận và đèn đường CHC có ngưỡng bị dịch chuyển
Điều 93. Yêu cầu chung đối với đèn vùng chạm bánh đường CHC
1. Phải bố trí các đèn trong vùng chạm bánh cho đường cất hạ cánh tiếp cận chính xác CAT II hoặc III.
2. Các đèn vùng chạm bánh được lắp đặt bắt đầu từ ngưỡng đường cất hạ cánh kéo dài trên đoạn 900 m, trừ trường hợp đường cất hạ cánh ngắn hơn 1800 m thì chiều dài khu vực lắp đặt đó không được vượt quá một nửa chiều dài đường cất hạ cánh. Các đèn được lắp đặt theo từng cặp đèn dải ngang đối xứng qua tim đường cất hạ cánh. Khoảng cách ngang giữa các đèn phía trong cùng của từng cặp dãy đèn dải ngang bằng khoảng cách ngang lựa chọn cho các vạch sơn tín hiệu vùng chạm bánh. Khoảng cách dọc giữa các cặp dãy đèn dải ngang là 60m. Khi tầm nhìn thấp hơn tối thiểu thì bố trí các dãy đèn dải ngang cách nhau theo chiều dọc là 30m.
3. Dãy đèn dải ngang bao gồm tối thiểu 3 đèn với khoảng cách giữa chúng không lớn hơn 1,5m.
4. Dãy đèn dải ngang cần có chiều dài từ 3,5m đến 4,5m.
5. Các đèn vùng chạm bánh là các đèn sáng liên tục một hướng với màu trắng biến đổi.
6. Các đèn vùng chạm bánh phải đáp ứng các yêu cầu kỹ thuật của Phụ lục 2, Hình A2-5.
Điều 94. Yêu cầu đối với đèn vùng chạm bánh giản đơn
1. Ngoài hệ thống đèn vùng chạm bánh đường CHC được quy định tại Điều 93, tại sân bay mà có góc tiếp cận lớn hơn 3,5 độ và cự ly có thể hạ cánh cùng với các yếu tố khác làm tăng nguy cơ tàu bay lăn vượt quá đường CHC, đèn vùng chạm bánh giản đơn nên được lắp đặt.
2. Đèn vùng chạm bánh giản đơn phải là một cặp đèn ở mỗi bên của tim đường CHC nằm cách 0,3m mép ngoài của vạch sơn tín hiệu cuối cùng của vùng chạm bánh. Khoảng cách giữa các đèn bên trong của 02 cặp đèn phải bằng khoảng cách vạch sơn vùng chạm bánh. Khoảng cách giữa các đèn của cùng một cặp không được nhỏ hơn 1,5m hoặc một nửa của chiều rộng vạch sơn vùng chạm bánh, tùy theo giá trị nào lớn hơn. (Xem Hình II-24)
3. Tại đường CHC không có sơn tín hiệu vùng chạm bánh, đèn vùng chạm bánh giản đơn nên được lắp đặt tại vị trí đủ để cung cấp thông tin vùng chạm bánh tương ứng.
4. Đèn vùng chạm bánh giản đơn phải là những đèn đơn hướng cố định, hiển thị màu trắng, được căn chỉnh sao cho phi công có thể nhìn thấy được hướng tiếp cận đường CHC trong quá trình hạ cánh.
5. Đèn vùng chạm bánh giản đơn phải tuân theo các thông số kỹ thuật trong Phụ lục 2, Hình A2-05. Để khai thác tốt, đèn vùng chạm bánh giản đơn được cấp điện bởi một mạch điện riêng biệt với hệ thống đèn khác của đường CHC để chúng có thể được sử dụng khi mà hệ thống đèn khác của đường CHC tắt.

Hình II-24. Đèn vùng chạm bánh giản đơn
Điều 95. Yêu cầu đối với đèn nhận biết đường lăn thoát nhanh
1. Các đèn nhận biết đường lăn thoát nhanh nên được lắp đặt trên đường CHC dự kiến sử dụng ở tầm nhìn trên đường CHC nhỏ hơn 350 m và/hoặc ở nơi có mật độ giao thông cao.
2. Các đèn nhận biết đường lăn thoát nhanh không được bật sáng trong trường hợp có đèn hỏng hoặc có sự cố làm cho các đèn không đủ sáng bình thường như ở Hình II-25.
3. Một bộ các đèn nhận biết đường lăn thoát nhanh được đặt trên đường CHC cùng phía của tim đường lăn thoát nhanh, theo Hình II-25. Trong mỗi bộ, các đèn đặt cách nhau 2m và đèn gần tim đường CHC nhất cách đường tim 2m.
4. Khi có nhiều hơn một đường lăn thoát nhanh trên đường CHC, các bộ đèn nhận biết của các đường lăn thoát nhanh không được hiển thị chồng chéo nhau.

Hình II-25. Đèn nhận biết đường lăn thoát nhanh (RETILS)
5. Đèn nhận biết đường lăn thoát nhanh là các đèn màu vàng sáng liên tục một hướng, được lắp đặt sao cho phi công khi hạ cánh có thể nhìn thấy từ hướng tiếp cận đường CHC.
6. Các đèn nhận biết đường lăn thoát nhanh phải thoả mãn các yêu cầu kỹ thuật nêu trong Phụ lục 2, Hình A2-6 hoặc A2-7.
7. Các đèn nhận biết đường lăn thoát nhanh cần được cấp điện độc lập với các đèn đường CHC khác để có thể sử dụng chúng khi các đèn khác bị mất điện.
Điều 96. Yêu cầu đối với đèn dừng
1. Sân bay khai thác vào ban đêm phải lắp đặt đèn dừng.
2. Các đèn dừng được đặt trên suốt chiều dài đoạn dừng bao gồm hai dãy song song cách đều nhau ở hai bên tim đường cất hạ cánh và trùng với tuyến đèn lề đường cất hạ cánh. Các đèn dừng cũng được đặt càng gần mép ngang cuối của đoạn dừng vuông góc với trục đoạn dừng càng tốt, nhưng trong bất kỳ trường hợp nào cũng không được cách xa mép ngang cuối quá 3m.
3. Các đèn dừng là những đèn sáng liên tục một hướng, có màu đỏ theo hướng đường cất hạ cánh.
Điều 97. Yêu cầu đối với đèn tim đường lăn
1. Phải lắp đặt các đèn tim trên các đường lăn ra, sân đỗ sử dụng trong những điều kiện tầm nhìn trên đường cất hạ cánh nhỏ hơn 350m nhằm bảo đảm chỉ dẫn liên tục cho tàu bay di chuyển từ tim đường cất hạ cánh đến vị trí đỗ tàu bay, trừ trường hợp khi mật độ giao thông thấp thì không nhất thiết phải lắp đặt các đèn tim đường lăn nếu các đèn cạnh đường lăn và sơn tín hiệu đường tim của nó đủ đảm bảo dẫn đường.
2. Cơ quan có thẩm quyền có thể cho phép lắp đặt đèn tim đường lăn sử dụng ban đêm khi tầm nhìn trên đường cất hạ cánh bằng 350m hoặc lớn hơn và trên nút giao đường lăn và đường lăn thoát nhanh. Có thể không cần lắp đặt các đèn đó nếu mật độ giao thông thấp, khi đèn lề đường lăn và sơn tín hiệu tim đường lăn đủ đảm bảo dẫn đường.
3. Khi cần, cơ quan có thẩm quyền có thể quyết định lắp đặt các đèn tim đường lăn trên đường lăn ra, vệt lăn trên sân đỗ cho mọi điều kiện tầm nhìn. Chúng được coi như một phần của hệ thống chỉ dẫn và kiểm soát di chuyển trên mặt đất nhằm dẫn đường liên tục từ tim đường cất hạ cánh vào vị trí đỗ tàu bay.
4. Đối với đường cất hạ cánh có sử dụng một phần để làm đường lăn, phần đường cất hạ cánh đó phải được lắp đặt đèn tim đường lăn theo tiêu chuẩn để sử dụng cho tàu bay lăn trong những điều kiện tầm nhìn trên đường cất hạ cánh nhỏ hơn 350m, trừ trường hợp khi mật độ hoạt động thấp, đường lăn có đèn cạnh đường lăn và có sơn tín hiệu đường tim đủ đảm bảo dẫn đường thì có thể không cần lắp đèn tim đường lăn trên một phần đường cất hạ cánh.
5. Khi cần, cơ quan có thẩm quyền có thể cho phép lắp đặt đèn tim đường lăn cho tất cả các trường hợp tầm nhìn trên một phần đường cất hạ cánh là đường lăn tiêu chuẩn như là một bộ phận của hệ thống chỉ dẫn và kiểm soát di chuyển trên mặt đất.
6. Đèn tim đường lăn trên đường lăn không phải là đường lăn thoát nhanh và trên đường lăn tiêu chuẩn là một phần đường cất hạ cánh là các đèn màu xanh lục với kích thước chùm tia chỉ cho nhìn thấy từ tàu bay lăn ngay phía trên hoặc bên cạnh đường lăn.
7. Các đèn tim đường lăn trên đường lăn thoát là đèn sáng liên tục. Đèn tim đường lăn có màu xanh lục và vàng bắt đầu từ điểm xa đường CHC nhất trong hai vị trí sau:
a) Vị trí từ tim đường CHC đến biên của khu vực ILS/MLS tới hạn/nguy hiểm;
b) Vị trí từ tim đường CHC đến cạnh thấp hơn của bề mặt chuyển tiếp trong, các đèn sau đó có màu xanh lục (Hình II-26). Đèn đầu tiên của đường lăn thoát nhanh luôn là màu xanh lục, đèn gần biên nhất bao giờ cũng có màu vàng.
8. Ở những nơi cần chỉ rõ phạm vi gần đường cất hạ cánh, đèn tim đường lăn đường lăn phải được lắp bởi các đèn có màu xanh lục và màu vàng xen kẽ từ ranh giới khu vực quan trọng/nhạy cảm ILS/MLS hoặc cạnh dưới của bề mặt chuyển tiếp bên trong, tùy theo khoảng cách xa nhất so với đường cất hạ cánh, đến đường cất hạ cánh và tiếp tục xen kẽ màu xanh lá cây và màu vàng cho đến khi:
a) Điểm cuối cùng đèn tim đường lăn gần tim đường cất hạ cánh;
b) Hoặc trong trường hợp đèn tim đường lăn cắt qua đường cất hạ cánh, đến ranh giới đối diện của khu vực quan trọng/nhạy cảm ILS/MLS hoặc cạnh dưới của bề mặt chuyển tiếp bên trong, tùy theo khoảng cách xa nhất so với đường cất hạ cánh.

Hình II-26. Đèn đường lăn
9. Đèn tim đường lăn phải thoả mãn các yêu cầu kỹ thuật như sau:
a) Phụ lục 2, hình A2-12, A2-13, hoặc A2-14 đối với đường lăn dùng ở tầm nhìn trên đường CHC nhỏ hơn 350 m;
b) Phụ lục 2, hình A2-15, hoặc A2-16 cho đường lăn khác.
10. Ở nơi cần cường độ chiếu sáng cao hơn, theo quan điểm khai thác thì đèn tim đường lăn thoát nhanh ở tầm nhìn trên đường CHC dưới 350m cần có Đặc tính kỹ thuật như trong Phụ lục 2, Hình A2-12. Độ chiếu sáng của các đèn này giống như đèn tim đường CHC.
11. Ở nơi các đèn tim đường lăn là bộ phận hữu cơ của hệ thống chỉ dẫn và kiểm soát di chuyển trên mặt đất và ở nơi, xét về mặt yêu cầu khai thác, mật độ giao thông cao hơn nhưng cần duy trì tốc độ di chuyển trên mặt đất cần thiết khi tầm nhìn kém hoặc trong điều kiện lóa mắt ban ngày, thì các đèn tim đường lăn cần thoả mãn những Đặc tính kỹ thuật của Phụ lục 2, Hình A2-17, A2-18 hoặc A2-19.
12. Thông thường lắp đặt đèn tim đường lăn trên sơn tín hiệu tim đường lăn, trừ trường hợp đặc biệt không thể được thì lắp đặt cách sơn tín hiệu tim trong khoảng 30cm.
13. Các đèn tim đường lăn trên đoạn thẳng của đường lăn nên được lắp cách nhau ở các khoảng cách không quá 30m, trừ khi:
a) Điều kiện khí tượng cho phép, các đèn có thể cách nhau xa hơn nhưng không quá 60m
b) Trên những đoạn thẳng ngắn, các đèn có thể cách nhau dưới 30m
c) Trên đường lăn dùng cho điều kiện tầm nhìn trên đường cất hạ cánh nhỏ hơn 350m, các đèn cách nhau không quá 15m
14. Đèn tim đường lăn trên đoạn vòng được lắp đặt tiếp với các khoảng cách đến mép ngoài đường cong giống như trên đoạn thẳng. Các đèn cần có khoảng cách đủ để nhận thấy đường cong.
15. Trong điều kiện tầm nhìn trên đường cất hạ cánh dưới 350m, các đèn tim đường lăn trên đoạn cong cách nhau không quá 15m, trên đường cong bán kính nhỏ hơn 400m các đèn cách nhau không quá 7,5m. Khoảng cách lắp đặt này có thể mở rộng cho 60m trước và sau đoạn cong.
16. Đèn tim trên đoạn cong của đường lăn thoát nhanh được lắp đặt bắt đầu từ một điểm trước tiếp đầu của tim đoạn cong ít nhất 60m và tiếp tục vượt quá tiếp cuối của đoạn cong đến điểm trên tim đường lăn mà tàu bay có thể đạt tốc độ lăn bình thường. Các đèn trên đoạn song song với tim đường CHC luôn cách hàng đèn tim của đường CHC ít nhất 60cm như trình bày trên Hình II-27.
17. Đèn tim đường lăn cách nhau theo chiều dọc không quá 15m, trừ nơi không có đèn tim đường CHC thì khoảng cách này có thể lớn hơn nhưng không quá 30m.
18. Đèn tim đường lăn trên các đường lăn thoát mà không phải là đường lăn thoát nhanh được bắt đầu từ điểm tiếp đầu đường cong tính từ tim đường CHC và theo vệt sơn tim đường lăn cong cho đến điểm đánh dấu tách khỏi đường CHC. Đèn đầu tiên cách hàng đèn tim đường CHC bất kỳ ít nhất 60cm như trên Hình II-27. Khoảng cách dọc các đèn không quá 7,5m.
19. Đối với đèn tim đường lăn trên đường CHC: Các đèn tim của đường lăn tiêu chuẩn trên một phần đường CHC cho tàu bay lăn qua và lăn vào đường CHC ở tầm nhìn trên đường CHC nhỏ hơn 350m được lắp đặt với khoảng cách dọc không quá 15m.

Hình II-27. Khoảng cách giữa đèn tim đường lăn và đường CHC
Điều 98. Yêu cầu đối với đèn lề đường lăn
1. Đèn lề đường lăn phải được lắp đặt tại lề của sân quay đầu, khu vực dừng chờ lên đường cất hạ cánh, sân đỗ tàu bay để phục vụ khai thác ban đêm; trên đường lăn và không có đèm tim đường lăn để phục vụ khai thác ban đêm, ngoại trừ trường hợp phương tiện chiếu sáng bề mặt khác có thể đạt được đầy đủ các hướng dẫn.
2. Đèn lề đường lăn phải được lắp đặt trên phần đường cất hạ cánh được sử dụng để lăn vào ban đêm đối với những đường cất hạ cánh không có đèn tim đường lăn.
3. Các đèn lề của đường lăn trên đoạn thẳng và trên phần đường cất hạ cánh được sử dụng để lăn nên được đặt cách nhau theo chiều dọc một khoảng cách không quá 60 m. Các đèn trên đoạn cong nên được đặt cách nhau một khoảng cách dưới 60 m để nhìn rõ đường cong.
4. Đèn lề đường lăn trên sân chờ, sân cạnh đường cất hạ cánh, sân đỗ... được bố trí với khoảng cách dọc đều nhau không quá 60 m.
5. Đèn lề đường lăn trên sân quay đầu được lắp đặt cách đều nhau không quá 30 m.
6. Đèn lề đường lăn được lắp đặt thật sát mép đường lăn, sân chờ, sân cạnh đường cất hạ cánh, sân đỗ, hoặc đường cất hạ cánh, v.v. hoặc ở ngoài nhưng không xa mép quá 3 m.
7. Đèn lề đường lăn là đèn sáng liên tục màu xanh dương. Đèn chiếu lên ít nhất góc 75o so với đường nằm ngang theo mọi hướng đủ để chỉ dẫn phi công theo cả hai hướng. Ở vị trí giao nhau, đường lăn thoát hay đoạn cong đèn được che không cho ánh sáng chiếu về phía dễ bị lẫn với đèn khác.
8. Cường độ của đèn lề đường lăn không dưới 2cd từ 0° đến 6° theo chiều thẳng đứng và 0,2cd ở góc thẳng đứng bất kỳ giữa 6° và 75°.
Điều 99. Yêu cầu đối với đèn sân quay đầu đường CHC
1. Các đèn sân quay đầu đường cất hạ cánh được lắp đặt nhằm tiếp tục chỉ dẫn trên sân quay đầu đường cất hạ cánh khai thác trong điều kiện tầm nhìn trên đường cất hạ cánh nhỏ hơn 350m, cho phép phi công quay đầu tàu bay 1800 trở về tim đường cất hạ cánh.
2. Phải lắp đặt đèn sân quay đầu đường cất hạ cánh cho sân quay đầu đường cất hạ cánh sử dụng vào ban đêm.
3. Thông thường lắp đặt các đèn sân quay đầu đường cất hạ cánh trên sơn tín hiệu sân quay đầu đường cất hạ cánh, trừ khi không lắp đặt được thì có thể dịch chúng đi nhưng không xa quá 30cm.
4. Các đèn sân quay đầu đường cất hạ cánh trên phần đoạn thẳng của sơn tín hiệu sân quay đầu đường cất hạ cánh cách nhau không quá 15m.
5. Các đèn sân quay đầu đường cất hạ cánh lắp đặt trên đường cong của sơn tín hiệu sân quay đầu đường cất hạ cánh cách nhau không quá 7,5m.
6. Các đèn sân quay đầu đường cất hạ cánh là đèn sáng liên tục một hướng ánh sáng xanh lục với kích thước chùm tia sao cho các đèn chỉ được nhìn thấy từ các tàu bay đang lăn trên sân quay đầu đường cất hạ cánh hoặc đang tiếp cận nó.
7. Các đèn sân quay đầu đường CHC phải đáp ứng các đặc tính kỹ thuật nêu trong Phụ lục 2, Hình A2-13, A2-14 hoặc A2-15.
Điều 100. Yêu cầu đối với đèn vạch dừng
1. Đèn vạch dừng phải được lắp đặt tại tất cả vị trí chờ đường CHC để khai thác trong điều kiện tầm nhìn trên đường CHC nhỏ hơn 550 m, trừ các trường hợp sau:
a) Có chỉ dẫn và quy trình phù hợp hỗ trợ việc ngăn chặn tàu bay và phương tiện giao thông xâm nhập vào đường CHC;
b) Có các quy trình gồm quy trình khai thác hạn chế khi tầm nhìn trên đường cất hạ cánh nhỏ hơn 550m; quy trình khống chế số lượng tàu bay trên khu cất hạ cánh hoạt động tại một thời điểm; quy trình kiểm soát phương tiện tham gia giao thông trên khu cất hạ cánh giảm đến tối thiểu.
2. Trong trường hợp có nhiều hơn một vạch dừng tại giao điểm đường lăn/đường cất hạ cánh, chỉ có 01 vạch dừng được được chiếu sáng tại bất cứ thời điểm nào.
3. Đèn vạch dừng nên được lắp đặt tại vị trí dừng chờ trung gian khi cần thiết để tăng cường cho vạch sơn tín hiệu, để cung cấp điều khiển giao thông bằng phương tiện trực quan.
4. Đèn vạch dừng được đặt ngang qua đường lăn tại điểm dừng. Nếu có đèn bổ sung quy định tại khoản 7 Điều này, thì những đèn này được đặt cách mép đường lăn không dưới 3m.
5. Đèn vạch dừng bao gồm những đèn cách nhau với khoảng cách đồng đều không quá 3 m ngang qua đường lăn có màu đỏ về hướng dự kiến tiếp cận đến vị trí giao nhau hoặc vị trí chờ đường cất hạ cánh. Trường hợp cần thiết để tăng cường sự nhận biết của đèn vạch dừng, có thể lắp đặt bổ sung theo đèn với khoảng cách đồng đều.
6. Một cặp đèn cao hơn cần được thêm vào mỗi đầu của đèn vạch dừng ở vị trí mà có thể bị che khuất khỏi tầm nhìn của phi công, ví dụ, bởi tuyết hoặc mưa, hoặc khi một phi công có thể được yêu cầu dừng tàu bay tại một vị trí rất gần với đèn mà chúng bị chặn khỏi tầm nhìn bởi cấu trúc của tàu bay.
7. Đèn vạch dừng đặt ở vị trí chờ đường cất hạ cánh phải là đèn một hướng và có màu đỏ theo hướng tiếp cận đường cất hạ cánh.
8. Khi có đèn bổ sung bố trí theo yêu cầu ở khoản 6 Điều này thì các đèn này phải có những đặc tính giống như đèn vạch dừng, nhưng phải đảm bảo nhìn thấy khi tàu bay tiếp cận đến vị trí đèn vạch dừng.
9. Cường độ của ánh sáng đỏ và chùm sáng của đèn vạch dừng phải phù hợp với các thông số kỹ thuật trong Phụ lục 2 Hình vẽ từ A2-12 đến A2-16.
10. Nếu đèn vạch dừng là một bộ phận của hệ thống chỉ dẫn và kiểm soát di chuyển trên mặt đất và theo quan điểm khai thác, cường độ ánh sáng cao hơn được yêu cầu để duy trì hoạt động di chuyển mặt đất với một tốc độ nhất định trong điều kiện tầm nhìn rất thấp hoặc trong điều kiện lóa mắt ban ngày, thì cường độ chiếu sáng màu đỏ và góc chiếu sáng của các đèn vạch dừng cần thỏa mãn các tiêu chuẩn của Phụ lục 2, Hình A2-17, A2-18 hoặc A2-19. Cường độ sáng cao của đèn vạch dừng chỉ nên sử dụng trong trường hợp thật sự cần thiết và phải có nghiên cứu cụ thể.
11. Trong trường phải yêu cầu một trùm sáng rộng hỗn hợp, thì cường độ trong ánh sáng đỏ và chùm tia của đèn vạch dừng phải phù hợp với thông số kỹ thuật của Phụ lục 2, Hình A2-17 hoặc A2-19.
12. Mạch đèn được thiết kế sao cho:
a) Đèn vạch dừng cắt ngang qua lối vào đường lăn được tắt, sáng theo lựa chọn;
b) Các đèn vạch dừng đặt ngang qua đường lăn khi dự kiến chỉ sử dụng làm đường lăn thoát, được tắt, sáng theo lựa chọn hay theo nhóm;
c) Khi đèn vạch dừng phát sáng, phải tắt hết đèn tim đường lăn kể từ đèn vạch dừng trong khoảng ít nhất 90 m;
d) Đèn vạch dừng cần hoạt động thống nhất với đèn tim đường lăn ở ngoài đèn vạch dừng sao cho khi đèn vạch dừng chiếu sáng thì đèn tim tắt và ngược lại.
Điều 101. Yêu cầu đối với đèn vị trí chờ lăn trung gian
1. Trừ nơi đã lắp đặt đèn vạch dừng, đèn vị trí chờ lăn trung gian được bố trí tại vị trí chờ lăn trung gian để sử dụng khi tầm nhìn trên đường cất hạ cánh dưới 350 m.
2. Có thể lắp đặt đèn chờ lăn trung gian tại vị trí chờ lăn trung gian ở nơi không có biển báo chỉ dẫn dừng-và-đi như đèn vạch dừng.
3. Lắp đặt đèn chờ lăn trung gian dọc theo phía trước sơn tín hiệu vị trí chờ lăn trung gian 0,3m.
4. Đèn vị trí chờ lăn trung gian bao gồm 3 đèn sáng liên tục chiếu sáng cùng một hướng màu vàng theo hướng tiếp cận vị trí chờ lăn trung gian với sự phân bố ánh sáng giống như đèn tim đường lăn, nếu có. Các đèn được sắp xếp đối xứng hai phía và vuông góc với tim đường lăn và các đèn riêng biệt cách nhau 1,5m về mỗi bên.
Điều 102. Yêu cầu đối với đèn bảo vệ đường CHC
1. Đèn bảo vệ đường cất hạ cánh dạng A phải được lắp đặt cho nút giao đường lăn/đường cất hạ cánh khi đường cất hạ cánh được sử dụng trong điều kiện:
a) Tầm nhìn trên đường cất hạ cánh nhỏ hơn 550m khi không có vạch đèn dừng;
b) Tầm nhìn trên đường cất hạ cánh từ 550m đến 1200m khi mật độ giao thông cao.
Ghi chú: Đèn bảo vệ đường cất hạ cánh dạng B có thể thay thế dạng A khi được đánh giá là cần thiết.
2. Để ngăn chặn sự cố xâm nhập đường cất hạ cánh, đèn bảo vệ đường cất hạ cánh dạng A hoặc B có thể được trang bị tại mỗi giao điểm đường cất hạ cánh nơi điểm hot spot đã được ghi nhận có các sự cố hoặc nguy cơ xâm nhập đường cất hạ cánh, đèn bảo vệ đường cất hạ cánh được sử dụng dưới mọi điều kiện thời tiết cả ngày và đêm.
3. Đèn bảo vệ đường cất hạ cánh dạng B không nên kết hợp với đèn vạch dừng.
4. Khi có nhiều hơn một vị trí chờ lên đường cất hạ cánh tại mỗi giao điểm đường cất hạ cánh/đường lăn, chỉ các đèn bảo vệ đường cất hạ cánh liên quan đến vị trí chờ lên đường cất hạ cánh khai thác được phát sáng.
5. Đèn bảo vệ đường cất hạ cánh dạng A bố trí ở hai phía đường lăn về phía chờ của sơn tín hiệu vị trí chờ lên đường cất hạ cánh.
6. Đèn bảo vệ đường cất hạ cánh dạng B bố trí ngang qua đường lăn về
phía chờ của sơn tín hiệu vị trí chờ lên đường cất hạ cánh.
7. Đèn bảo vệ đường cất hạ cánh dạng A bao gồm 2 đôi đèn màu vàng.

Hình II-28. Đèn bảo vệ đường CHC
8. Trường hợp cần tăng tầm nhìn hiệu quả khi đèn bảo vệ đường CHC dạng A tắt, sáng, vào ban ngày thì có thể dùng tấm che nắng đủ kích thước bố trí ở trên mỗi đèn để ngăn ánh nắng chiếu vào thấu kính tạo nên giao thoa ánh sáng.
9. Đèn bảo vệ đường CHC dạng B bao gồm các đèn màu vàng đặt ngang qua đường lăn cách nhau 3m.
10. Bố trí đèn chiếu sáng theo một hướng và chiếu sáng màu vàng theo hướng tiếp cận đối với vị trí chờ lên đường CHC.
11. Cường độ chiếu sáng đèn màu vàng và loa chiếu sáng của đèn dạng A có đặc tính kĩ thuật như trong Phụ lục 2, Hình A2-24.
12. Khi đèn bảo vệ đường CHC sử dụng vào ban ngày thì cường độ chiếu sáng đèn màu vàng và loa chiếu sáng của đèn dạng A có Đặc tính kỹ thuật như trên Phụ lục 2, Hình A2-25.
13. Khi đèn bảo vệ đường CHC là một thành phần chỉ dẫn và kiểm soát di chuyển trên mặt đất có yêu cầu cường độ chiếu sáng cao hơn thì cường độ chiếu sáng đèn màu vàng và loa chiếu sáng của đèn dạng A có Đặc tính kĩ thuật như trên Phụ lục 2, Hình A2-25.
14. Cường độ sáng đèn màu vàng và loa chiếu sáng của đèn dạng B có Đặc tính kĩ thuật như trên Phụ lục 2, Hình A2-12.
15. Đèn bảo vệ đường CHC sử dụng ban ngày thì cường độ đèn màu vàng và loa chiếu sáng của đèn dạng B có Đặc tính kĩ thuật như trên Phụ lục 2, Hình A2-20.
16. Nếu đèn bảo vệ đường CHC được dùng để chỉ dẫn và kiểm soát di chuyển trên mặt đất cần cường độ chiếu sáng cao hơn thì cường độ đèn màu vàng và loa chiếu sáng của đèn dạng B có Đặc tính kĩ thuật như trên Phụ lục 2, Hình A2-20.
17. Các đèn trong bộ đèn dạng A luân phiên nhau phát sáng.
18. Với đèn dạng B, những đèn kề nhau sẽ luân phiên nhau phát sáng và các đèn cách nhau phát sáng đồng thời.
19. Các đèn phải nhấp nháy trong khoảng 30 đến 60 chu kỳ trong một phút và chu kỳ tắt, sáng đối với các đèn đối diện ở mỗi bên phải bằng nhau.
Điều 103. Yêu cầu đèn chiếu sáng sân đỗ tàu bay
1. Đèn chiếu sáng trên sân đỗ tàu bay nên được lắp đặt để khai thác vào ban đêm. Đối với sân đỗ tàu bay gần đường cất hạ cánh, nên có phương án chiếu sáng khác để không gây nhầm lẫn cho phi công.
2. Đèn chiếu sáng sân đỗ nên được bố trí tại vị trí phù hợp để đảm bảo tất cả các vị trí trên sân đỗ được chiếu sáng, với độ sáng tối thiểu phục vụ cho phi công trên tàu bay đang bay hoặc đang lăn, nhân viên kiểm soát tại sân bay và nhân viên làm việc trên sân đỗ tàu bay. Nên chọn vị trí và hướng đèn sao cho một vị trí đỗ tàu bay có thể nhận được ánh sáng từ hai hoặc nhiều hướng chiếu sáng để giảm bóng xuống tối thiểu.
3. Phân bố ánh sáng của đèn chiếu sáng sân đỗ sao cho dễ phân biệt rõ màu sắc của sơn tín hiệu tàu bay với sơn tín hiệu đường công vụ, sơn tín hiệu bề mặt sân đỗ và chướng ngại vật.
4. Độ sáng trung bình tại vị trí đỗ tàu bay tối thiểu cần đảm bảo:
a) Độ chiếu sáng ngang: 20 lux với hệ số đồng đều (tỷ số độ chiếu sáng trung bình/ độ chiếu sáng tối thiểu) không quá 4/1;
b) Độ chiếu sáng đứng: 20 lux ở độ cao 2m so với mặt sân đỗ ở những hướng cần thiết.
5. Độ sáng trung bình tại các khu vực khác của sân đỗ tàu bay tối thiểu phải đảm bảo độ chiếu sáng ngang đạt 50% độ chiếu sáng trung bình của các vị trí đỗ tàu bay với hệ số đồng đều (tỷ số độ chiếu sáng trung bình/độ chiếu sáng tối thiểu) không quá 4/1.
Điều 104. Yêu cầu đối với hệ thống dẫn đỗ tàu bay (VDGS)
1. Hệ thống dẫn đỗ tàu bay được sử dụng khi các phương thức hướng dẫn khác không đảm bảo.
2. Hệ thống VDGS cung cấp thông tin cho tàu bay về góc phương vị và chỉ dẫn tàu bay dừng.
3. Màn hình chỉ dẫn phương vị và báo vị trí dừng cần đáp ứng nhu cầu sử dụng trong mọi thời tiết, tầm nhìn và trạng thái mặt đường khi mà hệ thống dự kiến sử dụng cả ban ngày và ban đêm, nhưng không làm chói mắt phi công.
4. Đèn chỉ phương vị và đèn chỉ dẫn dừng cần được thiết kế sao cho:
a) Phi công thấy rõ sự khác biệt đối với một hoặc cả hai loại đèn;
b) Có thể tắt.
5. Đèn chỉ phương vị và đèn chỉ dẫn dừng cần đặt ở vị trí đảm bảo chỉ dẫn tiếp tục giữa các vạch sơn tín hiệu vị trí đỗ tàu bay, các đèn chỉ dẫn di chuyển vào vị trí đỗ tàu bay, nếu có và hệ thống biển báo bằng mắt.
6. Độ chính xác của hệ thống dẫn đỗ tàu bay phải phù hợp với mọi loại cầu hành khách và các thiết bị phục vụ tàu bay.
7. Hệ thống dẫn đỗ tàu bay có thể dùng cho mọi loại tàu bay khi sử dụng vị trí đỗ có lắp đặt hệ thống, không phụ thuộc vào mục đích khai thác.
8. Khi hệ thống dẫn đỗ tàu bay chỉ được sử dụng cho khai thác loại tàu bay cụ thể, doanh nghiệp cung cấp dịch vụ hành ga hành khách phải thông báo loại tàu bay được khai thác tại vị trí đỗ có lắp đặt hệ thống cho các hãng hàng không, người khai thác cảng hàng không, sân bay và các đơn vị có liên quan để phối hợp khai thác an toàn, hiệu quả.
Điều 105. Yêu cầu đối với đèn chỉ phương vị
1. Đèn chỉ phương vị được đặt phía trên hoặc gần vệt dẫn đỗ tàu bay kéo dài phía trước mũi tàu bay để từ cabin tàu bay, phi công đều nhìn thấy các tín hiệu trong suốt thời gian lăn vào vị trí đỗ và khi vào vị trí đỗ, ít nhất phi công nhìn thấy đèn từ hướng trái.
2. Nên lắp đặt đèn chỉ phương vị sao cho cho cả phi công ngồi bên trái và bên phải đều nhìn thấy.
3. Đèn chỉ phương vị cần chỉ rõ hướng trái/phải giúp cho phi công xử lý và giữ được hướng vào mà không phải nhờ đến chỉ lệnh.
4. Đèn chỉ phương vị khi dùng màu sắc thay đổi để chỉ phương vị thì màu xanh lục được sử dụng để nhận biết đường tim và màu đỏ dùng để chỉ độ lệch khỏi đường tim.
Điều 106. Đèn chỉ dẫn di chuyển ở vị trí đỗ tàu bay
1. Đèn chỉ dẫn di chuyển ở vị trí đỗ tàu bay cần được lắp đặt cùng vị trí hoặc gần vị trí đèn chỉ phương vị sao cho phi công có thể quan sát thấy cả góc phương vị và sơn tín hiệu dừng mà không cần quay đầu.
2. Đèn chỉ dẫn di chuyển ở vị trí đỗ tàu bay ít nhất cũng phải đảm bảo cho phi công ngồi bên trái nhìn thấy.
3. Nên lắp đặt đèn chỉ dẫn di chuyển ở vị trí đỗ tàu bay sao cho cả phi công ngồi bên trái và bên phải đều nhìn thấy.
4. Khi biển báo cho biết thông tin về vị trí dừng đối với một loại tàu bay riêng biệt thì phải xét đến khoảng thay đổi lớn của chiều cao mắt phi công và góc nhìn.
5. Đèn báo vị trí dừng phải chỉ rõ vị trí dừng cho tàu bay, cho biết thông tin về tốc độ cuối cùng để phi công hãm dần tàu bay cho đến khi dừng hoàn toàn ở vị trí dừng.
6. Đèn chỉ dẫn di chuyển ở vị trí đỗ tàu bay cho biết thông tin về tốc độ ở trước khoảng cách ít nhất là 10m.
7. Khi chỉ dẫn dừng được biểu thị bằng màu sắc thay đổi, màu xanh lục sẽ được sử dụng để chỉ dẫn tàu bay được tiếp tục lăn, màu đỏ được sử dụng để chỉ tàu bay đã đến điểm dừng; ngoài ra, có thể sử dụng màu thứ ba để cảnh báo tàu bay khi tàu bay đến gần điểm dừng.
Điều 107. Hệ thống dẫn đỗ tàu bay A-VDGS
1. Cần bố trí hệ thống A-VDGS ở nơi cần bổ sung thông tin ngay trong quá trình tàu bay đỗ nhằm xác định vị trí chính xác của từng loại tàu bay vào đỗ hoặc chỉ rõ tim đường đỗ nếu có nhiều hơn một vị trí đỗ.
2. Hệ thống A-VDGS phải thích hợp đối với mọi loại tàu bay dự định đỗ.
3. Chỉ được sử dụng A-VDGS trong điều kiện có đủ đặc tính kỹ thuật khai thác tàu bay cụ thể.
4. Các thông tin hướng dẫn đỗ do hệ thống A-VDGS cung cấp không được mâu thuẫn với thông tin do hệ thống chỉ dẫn đỗ tàu bay bằng mắt thông thường dẫn tàu bay vào đỗ, nếu cả hai hệ thống được trang bị và sử dụng đồng thời. Cần có chỉ dẫn cho biết khi nào A-VDGS không hoạt động hoặc không được sử dụng.
5. Cần bố trí hệ thống A-VDGS sao cho người có trách nhiệm và những người hỗ trợ tàu bay di chuyển vào đỗ dễ nhận biết và chỉ hiểu theo một nghĩa.
6. Hệ thống A-VDGS cần cung cấp các thông tin hướng dẫn tối thiểu sau đây tương ứng với các giai đoạn tàu bay vào đỗ:
a) Chỉ dẫn dừng khẩn cấp;
b) Chỉ dẫn riêng cho các loại tàu bay và tàu bay mô hình;
c) Chỉ dẫn độ lệch của tàu bay vào đỗ so với đường tim vạch đỗ;
d) Hướng điều chỉnh góc phương vị cần thiết để hiệu chỉnh khi tàu bay chệch khỏi đường tim vạch đỗ;
đ) Chỉ dẫn khoảng cách đến vị trí dừng hẳn;
e) Chỉ dẫn cho biết tàu bay đã ở đúng vị trí đỗ;
g) chỉ dẫn cảnh báo tàu bay vượt khỏi vị trí đỗ quy định.
7. Hệ thống A-VDGS cần có khả năng cung cấp thông tin hướng dẫn đỗ cho mọi tốc độ tàu bay lăn trong quá trình di chuyển vào đỗ.
8. Thời gian xác định độ dịch chuyển ngang theo màn hình không làm cho vị trí đỗ tàu bay so với đường tim lệch quá 1m, khi nó hoạt động trong điều kiện bình thường.
9. Thông tin hiển thị độ lệch cho phép của tàu bay tương đối so với tim vạch đỗ ở vị trí đỗ theo quy định trong Bảng II-12.
10. Ký hiệu và hình ảnh hướng dẫn thông báo chỉ dẫn được thể hiện theo mẫu
|
Thông tin |
Độ lệch tối đa của vị trí dừng (Khu vực đỗ) |
Độ lệch tối đa cách vị trí dừng 9m |
Độ lệch tối đa cách vị trí dừng 15m |
Độ lệch tối đa cách vị trí dừng 25 m |
|
Phương vị |
±250 mm |
±340 mm |
±400 mm |
±500 mm |
|
Khoảng cách |
±500 mm |
±1 000 mm |
±1 300 mm |
Không xác định |
Bảng II-12. Độ lệch cho phép của hệ thống A-VDGS
11. Thông tin về độ lệch ngang tương đối của tàu bay so với tim vạch đỗ cần được cung cấp trước vị trí đỗ tàu bay ít nhất 25m.
12. Khoảng cách dừng và tốc độ dừng phải được cung cấp liên tục từ khi tàu bay còn cách vị trí đỗ ít nhất 15m.
13. Ở những nơi cần thiết, cần ghi khoảng cách đến vị trí đỗ bằng mét làm tròn đến một chữ số sau dấu phảy, cách ít nhất 3m trước vị trí đỗ.
14. Trong quá trình tàu bay di chuyển vào chỗ đỗ, cần có phương tiện thích hợp do hệ thống A-VDGS cung cấp để ra lệnh dừng tàu bay tức thì khi cần. Trong trường hợp đó, khi hệ thống A-VDGS không sử dụng được thì sẽ không hiển thị được các thông tin khác.
15. Người khai thác cảng hàng không, sân bay cần quy định cụ thể trách nhiệm của nhân viên vận hành hệ thống A-VDGS và nhân viên chịu trách nhiệm về an toàn khai thác sân đỗ trong việc được phép dừng tàu bay tức thì trong quá trình vận hành hệ thống A-VDGS để đưa tàu bay vào vị trí đỗ.
16. Ký hiệu "STOP” hiện màu đỏ khi cần ngừng tức thời quá trình lăn vào đỗ.
Điều 108. Đèn chỉ dẫn di chuyển ở vị trí đỗ tàu bay
1. Đèn chỉ dẫn tàu bay di chuyển vào vị trí đỗ được lắp đặt cho từng vị trí đỗ tàu bay trên mặt đường sân đỗ và sân cạnh đường cất hạ cánh khi tầm nhìn hạn chế, trừ trường hợp phương tiện khác đủ chỉ dẫn.
2. Đèn chỉ dẫn di chuyển vào vị trí đỗ được lắp đặt thống nhất với sơn tín hiệu vị trí đỗ tàu bay.
3. Hệ thống đèn chỉ dẫn tàu bay vào đỗ, trừ đèn dừng, có màu vàng cố định, được lắp đặt sao cho trong khu vực chỉ dẫn tàu bay di chuyển vào vị trí đỗ nhìn thấy được hết.
4. Các đèn dùng để chỉ dẫn lăn vào, quay vòng, và lăn ra cách nhau không quá 7,5m trên đoạn cong và không quá 15m trên đoạn thẳng.
5. Các đèn chỉ vị trí dừng là đèn sáng liên tục màu đỏ một hướng.
6. Cường độ chiếu sáng của đèn phụ thuộc vào điều kiện tầm nhìn và môi trường chiếu sáng ở vị trí đỗ tàu bay.
7. Mạch điện đèn cần được thiết kế sao cho khi các đèn bật sáng khi vị trí đỗ tàu bay được sử dụng và tắt thì vị trí đỗ tàu bay không được sử dụng.
Điều 109. Đèn vị trí chờ trên đường lăn
1. Đèn vị trí chờ trên đường lăn được trang bị ở từng vị trí chờ trên đường lăn vào đường cất hạ cánh khi đường cất hạ cánh được thiết kế sử dụng cho điều kiện tầm nhìn dưới 350m.
2. Có thể cho phép lắp đặt đèn vị trí chờ trên đường lăn vào đường cất hạ cánh khi đường cất hạ cánh được thiết kế sử dụng cho điều kiện tầm nhìn từ 350 m đến 550m.
3. Đèn vị trí chờ trên đường lăn được bố trí bên cạnh sơn tín hiệu vị trí chờ lăn cách mép đường 1,5m (±0,5m) tức là phía bên trái hoặc bên phải theo luật giao thông.
4. Đèn vị trí chờ trên đường lăn bao gồm:
a) Đèn hướng dẫn di chuyển màu đỏ là tín hiệu dừng, đèn màu xanh lục cho phép đi;
b) Hoặc đèn nháy (xung) màu đỏ.
GHI CHÚ: Cần chú ý rằng, cơ sở cung cấp dịch vụ không lưu cần phải có quyền kiểm soát các đèn trong mục a) này.
5. Chùm ánh sáng phải được định hướng và sắp xếp sao cho người lái phương tiện đang lăn đến vị trí chờ trên đường lăn có thể nhìn thấy.
6. Cường độ chiếu sáng phải thích hợp với điều kiện tầm nhìn và môi trường chiếu sáng theo điều kiện sử dụng vị trí chờ lăn mà không làm chói mắt người lái.
GHI CHÚ: Đèn giao thông nói chung sử dụng theo yêu cầu trong khoản 5, khoản 6 Điều 108.
7. Đèn đỏ có tần số nháy từ 30 đến 60 chu kỳ/phút.
Điều 110. Hàng đèn cấm vào
GHI CHÚ. Việc xâm nhập đường CHC có thể diễn ra trong mọi điều kiện tầm nhìn hoặc điều kiện thời tiết. Việc sử dụng các hàng đèn cấm vào có thể là một phần của các biện pháp phòng ngừa xâm nhập đường CHC hiệu quả.
1. Hàng đèn cấm vào nên được cung cấp trên một đường lăn dự định sẽ được sử dụng như một lối thoát duy nhất để hỗ trợ ngăn chặn sự di chuyển vô ý của tàu bay và phương tiện vào đường lăn đó.
2. Hàng đèn cấm vào nên được đặt ngang qua đường lăn ở cuối lối ra duy nhất để tránh phương tiện, tàu bay di chuyển sai hướng vào đường lăn.
3. Hàng đèn cấm vào nên gồm đồng thời dấu hiệu cấm vào và/hoặc sơn tín hiệu cấm vào.
4. Hàng đèn cấm vào nên gồm các đèn đơn hướng được đặt cách nhau ở các khoảng cách không quá 3m hiển thị màu đỏ theo hướng dự định của đường tiếp cận với đường cất hạ cánh. Khi cần thiết để tăng cường sự nhận biết, cần lắp bổ sung đèn một cách đồng đều.
5. Một cặp đèn chiếu sáng nên được thêm vào mỗi đầu của hàng đèn cấm vào nơi mà hàng đèn có thể bị che khuất khỏi tầm nhìn của phi công, ví dụ, bởi tuyết hoặc mưa, hoặc nơi mà một phi công có thể được yêu cầu dừng tàu bay tại vị trí gần với hàng đèn đến mức hàng đèn bị chặn khỏi tầm nhìn bởi cấu trúc của tàu bay.
6. Cường độ ánh sáng đỏ và sự lan truyền chùm ánh sáng của hàng đèn cấm vào phải phù hợp với các thông số kỹ thuật trong Phụ lục 2, Hình A2-2 tới A2-16, nếu phù hợp.
7. Trong trường hợp hàng đèn cấm vào được chỉ định là thành phần của hệ thống điều khiển và hướng dẫn di chuyển trên bề mặt, với góc độ hoạt động khai thác, cường độ cao hơn được yêu cầu để duy trì hoạt động di chuyển trên bề mặt ở tốc độ nhất định trong tầm nhìn rất thấp hoặc trong điều kiện ánh sáng ban ngày, cường độ ánh sáng đỏ và sự lan truyền sáng của đèn cấm vào phải phù hợp với thông số kỹ thuật của Phụ lục 2, Hình A2-17, A2-18 hoặc A2-19.
GHI CHÚ: Hàng đèm cấm vào có cường độ cao thường chỉ được sử dụng trong trường hợp thật sự cần thiết và phải được nghiên cứu một cách cụ thể.
8. Khi cần một chùm sáng rộng, cường độ ánh sáng đỏ và sự lan truyền chùm sáng của cấm vào phải phù hợp với thông số kỹ thuật của Phụ lục 2, Hình A2-17 hoặc A2-19.
9. Đèn chiếu sáng tim đường lăn được lắp đặt phía ngoài hàng đèn cấm vào nhìn theo hướng đường cất hạ cánh sẽ không nhìn thấy khi quan sát từ đường lăn.
Điều 111. Đèn trạng thái đường CHC
1. Đèn trạng thái đường CHC (RWSL) là một loại hệ thống tự động cảnh báo xâm nhập đường CHC (ARIWS). Hai thành phần trực quan cơ bản của RWSL là đèn lối vào đường CHC (REL) và đèn chờ cất cánh (THL). Một trong hai thành phần có thể được cài đặt độc lập, nhưng hai thành phần được thiết kế để bổ sung cho nhau.
2. Trong trường hợp cần thiết, đèn lối vào đường cất hạ cánh (REL) phải được lắp đặt cách tim đường lăn 0,6m về mỗi bên và bắt đầu 0,6m trước vị trí chờ lên đường cất hạ cánh và kéo dài ra đến mép đường cất hạ cánh. Một đèn chiếu sáng bổ sung sẽ được đặt trên đường cất hạ cánh cách tim đường cất hạ cánh 0,6m và thẳng hàng với hai hàng đèn lối vào đường cất hạ cánh (REL) trên đường lăn.
GHI CHÚ: Khi có từ 2 vạch dừng chờ lên đường CHC, thì vạch dừng chờ để xác định vị trí của REL là vạch dừng chờ gần đường CHC nhất.
3. Đèn lối vào đường cất hạ cánh phải bao gồm ít nhất năm đơn vị ánh sáng và được đặt cách nhau tối thiểu 3,8m và tối đa 15,2m theo chiều dọc, tùy thuộc vào chiều dài đường lăn có liên quan, ngoại trừ một đèn duy nhất được lắp đặt gần tim đường cất hạ cánh.
4. Trong trường hợp cần thiết, đèn chờ cất cánh (THL) phải được lắp đặt cách tim đường cất hạ cánh về mỗi bên 1,8m, và được kéo dài theo cặp bắt đầu từ 115m cách đầu đường cất hạ cánh đến chiều dài ít nhất là 450, trong đó cứ 30m có 01 cặp đèn.
GHI CHÚ: Đèn chờ cất cánh có thể được lắp bổ sung tại điểm bắt đầu cất cánh.
5. Trong trường hợp cần thiết, đèn lối vào đường cất hạ cánh phải bao gồm các đèn lắp cố định trên mặt đường và hiển thị màu đỏ theo hướng tàu bay tiếp cận đường cất hạ cánh.
6. Đèn lối vào đường cất hạ cánh sẽ phát sáng tại những giao điểm đường cất hạ cánh trong vòng chưa đầy 2 giây kể từ khi hệ thống xác định cảnh báo là cần thiết.
7. Cường độ và độ lan truyền sáng của đèn lối vào đường CHC phải tuân theo các thông số kỹ thuật của Phụ lục 2, Hình A2-12 và A2-14.
GHI CHÚ: Việc xem xét giảm độ rộng sáng có thể được yêu cầu đối với một số đèn lối vào đường CHC tại các giao điểm đường CHC/ đường lăn để đảm bảo đèn lối vào đường CHC không nhìn thấy được từ tàu bay trên đường CHC.
8. Trong trường hợp cần thiết, đèn chờ cất cánh phải được lắp cố định trên mặt đường gồm hai hàng màu đỏ đối diện với tàu bay cất cánh.
9. Đèn chờ cất cánh sẽ phát sáng trên đường cất hạ cánh dưới hai giây sau khi hệ thống xác định cảnh báo là cần thiết.
10. Cường độ và sự lan truyền chùm sáng của đèn chờ cất cánh phải phù hợp với các thông số kỹ thuật của Phụ lục 2, Hình A2-26.
11. Đèn chờ cất cánh và đèn lối vào đường CHC nên được tự động đến mức chỉ có quyền kiểm soát đối với mỗi hệ thống là vô hiệu hóa một hoặc cả hai hệ thống.
Điều 112. Khái quát về mốc
Mốc dùng để đánh dấu các khu vực trong khu bay phải dễ gẫy. Những mốc đặt gần đường CHC hoặc đường lăn phải thấp để có đủ khoảng trống dưới cánh quạt và động cơ tàu bay.
Điều 113. Mốc cạnh đường CHC không có mặt đường nhân tạo
1. Phải lắp đặt mốc trên phần mở rộng của đường cất hạ cánh không có mặt đường nhân tạo khi bề mặt không đủ độ tương phản với mặt đất xung quanh.
2. Nơi có đèn đường cất hạ cánh, mốc được kết hợp với kết cấu cố định của đèn. Tại những nơi không có đèn, cần có mốc hình hộp chữ nhật hoặc hình nón để phân định rõ ranh giới đường cất hạ cánh.
3. Mốc hình hộp chữ nhật có kích thước tối thiểu 1x3 m với cạnh dài song song với tim đường cất hạ cánh. Các mốc hình nón có độ cao không quá 50cm.
Điều 114. Mốc cạnh đoạn dừng
1. Lắp đặt mốc cạnh đoạn dừng ở đoạn dừng mở rộng khi không thể phân biệt rõ vì nó không đủ độ tương phản với mặt đất xung quanh.
2. Mốc cạnh đoạn dừng phải khác biệt so với các mốc cạnh đường cất hạ cánh để không gây nhầm lẫn.
Điều 115. Mốc cạnh dùng cho đường CHC khó nhận biết
1. Đường cất hạ cánh khó nhận biết là đường cất hạ cánh có mặt đường bị che phủ bởi vật liệu khác. Mốc cạnh dùng cho đường cất hạ cánh khó nhận biết nhằm phân biệt giới hạn của đường cất hạ cánh nếu không có cách nào khác làm rõ các giới hạn này. Đèn đường cất hạ cánh có thể được sử dụng để đánh dấu các giới hạn này.
2. Các mốc cạnh dùng cho đường cất hạ cánh khó nhận biết được đặt dọc theo các bên đường cất hạ cánh với khoảng cách không quá 100m, đối xứng qua tim đường cất hạ cánh và có đủ khoảng trống dưới mút cánh và động cơ tàu bay. Phải đặt đủ các mốc ngang qua ngưỡng đường cất hạ cánh và mép cuối đường cất hạ cánh.
3. Các mốc cạnh đường cất hạ cánh khó nhận biết gồm những vật thể nổi bật như cây xanh cao khoảng 1,5m hoặc các mốc có trọng lượng nhẹ.
Điều 116. Mốc cạnh đường lăn
1. Lắp đặt mốc cạnh đường lăn cho đường lăn mã số 1 hoặc 2 và khi không có đèn tim đường lăn hoặc đèn lề đường lăn hoặc không có đường kẻ đánh dấu tim đường lăn.
2. Lắp đặt mốc cạnh đường lăn thật gần các vị trí dùng cho đèn lề đường lăn.
3. Mốc cạnh đường lăn có vật liệu phản quang màu xanh dương.
4. Lắp đặt mốc cạnh đường lăn sao cho phi công nhìn được bề mặt hình chữ nhật với diện tích nhìn thấy tối thiểu là 150cm2.
5. Mốc cạnh đường lăn là mốc dễ gãy. Chiều cao của chúng phải thấp để có đủ khoảng trống dưới cánh quạt và động cơ tàu bay.
Điều 117. Mốc tim đường lăn
1. Mốc tim đường lăn đặt trên đường lăn mã số là 1 hoặc 2 và đường lăn không có đèn tim đường lăn hoặc đèn lề đường lăn hoặc mốc cạnh đường lăn.
2. Mốc tim đường lăn đặt trên đường lăn mã số là 3 hoặc 4 và đường lăn không có đèn tim đường lăn, hoặc khi cần bổ sung cho sơn tín hiệu tim đường lăn.
3. Mốc tim đường lăn đặt ở vị trí tương tự như vị trí của đèn tim đường lăn.
4. Mốc tim đường lăn thường đặt trên vị trí sơn tín hiệu tim đường lăn trừ khi điều kiện không cho phép đặt đúng trên vị trí sơn tín hiệu tim đường lăn thì có thể đặt mốc ngoài vị trí tim nhưng không xa quá 30 cm.
5. Mốc tim đường lăn có vật liệu phản quang màu xanh lục.
6. Mốc bề mặt phải đảm bảo cho phi công nhìn được hình chữ nhật với diện tích nhìn tối thiểu là 20 cm2.
7. Các mốc tim đường lăn được thiết kế và lắp đặt sao cho chúng chịu được bánh tàu bay lăn qua mà không gây hư hại cho tàu bay và cho bản thân mốc.
Điều 118. Mốc cạnh đường lăn không có mặt đường nhân tạo
1. Lắp đặt các mốc cạnh đường lăn khi phần mở rộng của đường lăn không có mặt đường nhân tạo không được nổi bật so với phần đất xung quanh.
2. Tại nơi có đèn đường lăn, các mốc được kết hợp với kết cấu cố định đèn. Ở nơi không lắp đặt đèn, cần lắp đặt các mốc hình nón để đánh dấu rõ ranh giới đường lăn.
Điều 119. Mốc đường biên
1. Các mốc đường biên được đặt tại sân bay ở khu hạ cánh không có đường CHC.
2. Các mốc đường biên được đặt dọc theo đường biên khu vực hạ cánh với khoảng cách không quá 200 m, nếu dùng loại mốc như trình bày trên Hình II-29 hoặc khoảng cách 90 m nếu dùng loại mốc hình nón với góc bất kì.

Hình II-29. Mốc đường biên
3. Các mốc đường biên có hình dáng giống như trên Hình II-29 hoặc dạng hình nón cao không dưới 50cm và đường kính đáy không dưới 75cm. Các mốc có màu tương phản phân biệt rõ với nền xung quanh. Có thể dùng màu đơn như da cam hay đỏ hoặc hai màu tương phản như da cam và trắng hoặc đỏ và trắng xen kẽ, trừ ở nơi các màu đó bị lẫn với nền xung quanh.
MỤC 8: ĐÁNH DẤU CẢNH BÁO CHƯỚNG NGẠI VẬT NHÌN BẰNG MẮT
Điều 120. Đánh dấu cảnh báo chướng ngại vật nhìn bằng mắt
1. Phương tiện và các thiết bị di động, trừ tàu bay trên khu vực di chuyển của sân bay là những chướng ngại vật và phải được đánh dấu; nếu các phương tiện và sân bay khai thác vào ban đêm hoặc trong điều kiện tầm nhìn thấp phải được thắp sáng, ngoại trừ thiết bị và phương tiện phục vụ tàu bay hoạt động trên sân đỗ là được miễn.
2. Đèn hàng không lắp nổi trong khu vực di chuyển phải được đánh dấu để dễ thấy trong ngày.Đèn cảnh báo chướng ngại vật không được phép lắp đặt trên đèn lắp nổi hoặc biển báo trong khu vực di chuyển.
3. Tất cả các chướng ngại vật trong khoảng cách được quy định trong Bảng II-5, cột 11 hoặc 12, từ tim đường lăn, vệt lăn trên sân đỗ hoặc vệt lăn vào vị trí đỗ được đánh dấu và nếu đường lăn, vệt lăn trên sân đỗ hoặc vệt lăn vào vị trí đỗ được sử dụng vào ban đêm thì tất cả các chướng ngại vật này phải được thắp sáng.
4. Một chướng ngại vật cố định nhô lên khỏi bề mặt cất cánh lấy độ cao trong phạm vi 3000m bắt đầu từ mép trong cần được đánh dấu và cần chiếu sáng chướng ngại vật nếu đường cất hạ cánh sử dụng vào ban đêm, trừ trường hợp :
a) Không đánh dấu và chiếu sáng khi chướng ngại vật được che khuất bởi một chướng ngại vật cố định khác theo nguyên lý che khuất;
b) Không đánh dấu khi chướng ngại vật được chiếu sáng bằng các đèn cảnh báo chướng ngại vật cường độ trung bình loại A, vào ban ngày và độ cao của chướng ngại vật so với mặt đất xung quanh không vượt quá 150m;
c) Không đánh dấu khi chướng ngại vật được chiếu sáng bằng các đèn cảnh báo chướng ngại vật cường độ cao, vào ban ngày;
d) Không chiếu sáng khi chướng ngại vật là một ngôi nhà có đèn đủ sáng và đã được một nghiên cứu hàng không công nhận ánh sáng đó đạt tiêu chuẩn.
5. Một vật thể cố định tuy không phải là chướng ngại vật nhưng ở ngay cạnh bề mặt cất cánh lấy độ cao phải được đánh dấu, trong trường hợp đường cất hạ cánh sử dụng vào ban đêm thì vật thể cố định phải được chiếu sáng, việc đánh dấu và chiếu này là cần thiết để đảm bảo an toàn, trừ trường hợp:
a) Chướng ngại vật được chiếu sáng bằng đèn cảnh báo chướng ngại vật cường độ trung bình loại A vào ban ngày và chiều cao của nó so với mặt đất xung quanh không vượt quá 150m;
b) Hoặc vật thể được chiếu sáng bằng đèn cảnh báo chướng ngại vật cường độ cao vào ban ngày.
6. Phải đánh dấu chướng ngại vật cố định cao hơn bề mặt tiếp cận hay trong phạm vi 3000m từ cạnh trong của bề mặt tiếp cận, hoặc cao hơn bề mặt chuyển chuyển tiếp, nếu đường cất hạ cánh sử dụng vào ban đêm, thì chướng ngại vật được chiếu sáng, trừ khi:
a) Không đánh dấu và chiếu sáng khi chướng ngại vật được che khuất bởi một chướng ngại vật cố định khác;
b) Không đánh dấu và chiếu sáng khi chướng ngại vật đã được chiếu sáng bằng đèn cảnh báo chướng ngại vật cường độ trung bình, loại A ban ngày và chiều cao của nó so với mặt đất xung quanh không vượt quá 150m;
c) Không đánh dấu khi chướng ngại vật được chiếu sáng bằng đèn cảnh báo chướng ngại vật cường độ cao vào ban ngày;
d) Không lắp đèn chiếu sáng nếu chướng ngại vật là ngôi nhà có đủ ánh sáng đã được một nghiên cứu hàng không công nhận ánh sáng đó đạt tiêu chuẩn.
7. Một chướng ngại vật cố định vượt khỏi bề mặt nằm ngang cần được đánh dấu, trong trường hợp sân bay được sử dụng vào ban đêm thì chướng ngại vật cố định phải được chiếu sáng, trừ trường hợp:
a) Không đánh dấu và chiếu sáng khi chướng ngại vật được che khuất bởi một chướng ngại vật cố định khác;
b) Không đánh dấu và chiếu sáng đối với khu vực rộng có nhiều các chướng ngại vật nhân tạo không thể di chuyển hoặc địa hình, mà các phương thức đã được thiết lập đảm bảo khoảng cách an toàn so với vệt bay đã được quy định;
c) Không đánh dấu và chiếu sáng khi chướng ngại vật đó không ảnh hưởng đến hoạt động bay;
d) Không đánh dấu khi chướng ngại vật đã được chiếu sáng bằng đèn cảnh báo chướng ngại vật cường độ trung bình loại A ban ngày và độ cao của chướng ngại vật so với mặt đất xung quanh không vượt quá 150m;
đ) Không đánh dấu khi chướng ngại vật đã được chiếu sáng bằng đèn cảnh báo chướng ngại vật cường độ cao về ban ngày;
e) Không chiếu sáng khi chướng ngại vật là ngôi nhà có đủ ánh sáng và đã được một nghiên cứu hàng không công nhận ánh sáng đó đạt tiêu chuẩn.
8. Phải đánh dấu chướng ngại vật cố định vượt lên trên OLS và nếu đường cất hạ cánh được dùng về ban đêm thì nó được chiếu sáng.
9. Các vật thể nằm trong OLS cần được đánh dấu và/hoặc chiếu sáng trong trường hợp có một nghiên cứu hàng không chỉ ra rằng nó gây nguy hiểm cho hoạt động của tàu bay.
10. Các đường dây, đường cáp cao đi qua sông, thung lũng hay đường cũng cần đánh dấu và/hoặc chiếu sáng các cột đỡ chúng, nếu các đường dây và cáp đó có thể nguy hiểm cho tàu bay.
11. Các chướng ngại vật tại khoản 2 Điều 67 phải được đánh dấu và chiếu sáng, ngoại trừ chướng ngại vật đã được chiếu sáng bởi các chướng ngại vật cường độ cao vào ban ngày.
12. Các vật thể bên ngoài ranh giới OLS phải được đánh dấu và/hoặc sáng nếu một nghiên cứu hàng không cho thấy chướng ngại vật có thể tạo thành một mối nguy hiểm cho tàu bay.
13. Các loại dây cáp, đường dây điện ngang qua sông, suối, đường cao tốc phải được đánh dấu và những cột trụ của chúng phải được đánh dấu và chiếu sáng nếu một nghiên cứu hàng không cho thấy chướng ngại vật có thể tạo thành một mối nguy hiểm cho tàu bay.
Điều 121. Quy định chung đánh dấu/hoặc chiếu sáng các vật thể
1. Sự xuất hiện của các vật thể phải được chiếu sáng, như được quy định tại Điều 120, phải được biểu thị bằng các đèn cường độ thấp, trung bình hoặc cao hoặc kết hợp các đèn này lại.
2. Đèn cảnh báo CNV cường độ thấp, loại A B, C, D và E, đèn cảnh báo chướng ngại vật cường độ trung bình, loại A, B và C, đèn cảnh báo chướng ngại vật cường độ cao Loại A và B, phải phù hợp với các thông số kỹ thuật trong Bảng II-13 và Phụ lục 1.
3. Số lượng và cách sắp xếp của các đèn cảnh báo chướng ngại vật chướng ngại vật cường độ thấp, trung bình hoặc cường độ cao ở mỗi mức được đánh dấu sao cho vật thể có thể được nhận biết từ mọi góc phương vị. Trường hợp ánh sáng của đèn cảnh báo chướng ngại vật bị che khuất bởi một phần khác của vật thể, hoặc bởi vật thể lân cận thì đèn bổ sung cần được lắp đặt trên vật thể liền kề đó hoặc một phần của vật thể che khuất ánh sáng theo quy định chung về chiếu sáng vật thể. Nếu đèn chiếu sáng vật thể bị che khuất không góp phần vào việc xác định vật thể được chiếu sáng thì đèn chiếu sáng đó có thể được bỏ qua.
Điều 122. Đánh dấu hoặc chiếu sáng vật thể di dộng
1. Mọi vật thể di động cần đánh dấu thì đều phải sơn màu hoặc cắm cờ.
2. Khi vật thể di dộng cần đánh dấu bằng cách sơn màu, thì phải sử dụng màu đơn sắc dễ nhận biết, tốt nhất là màu đỏ hoặc màu vàng lục cho xe khẩn nguy và vàng cho xe dịch vụ.
3. Cờ được sử dụng để đánh dấu các vật thể di động được lắp đặt xung quanh hoặc trên đỉnh hoặc xung quanh cạnh cao nhất của vật thể. Cờ không được tăng nguy cơ cho vật thể được đánh dấu.
4. Cờ được sử dụng để đánh dấu các vật thể di động không được nhỏ hơn 0,9m ở mỗi bên và phải có họa tiết kẻ ô, mỗi ô vuông có cạnh không nhỏ hơn 0,3 m. Màu sắc của các ô vuông sẽ tương phản với nhau và với nền. Màu cam và màu trắng hoặc màu đỏ và trắng sẽ được sử dụng, ngoại trừ ở nơi các màu đó bị lẫn với nền xung quanh.
Bảng II-13. Các đặc tính của đèn cảnh báo chướng ngại vật
|
1 |
2 |
3 |
4 |
5 |
6 |
7 |
|
Loại đèn |
Màu |
Loại tín hiệu/tốc độ chớp sáng |
Cường độ sáng tối đa (cd) trên m2 Độ chói (b) |
Phân bổ ánh sáng |
||
|
Ban ngày > 500 cd/m2 |
Chạng vạng 50-500 cd/m2 |
Đêm <50 cd/m2 |
|
|||
|
Cường độ thấp loại A (CNV cố định) |
Đỏ |
Cố định |
N/A (Không áp dụng) |
N/A |
10 |
Bảng II-14 |
|
Cường độ thấp loại B (CNV cố định) |
Đỏ |
Cố định |
N/A |
N/A |
32 |
Bảng II-14 |
|
Cường độ thấp loại C (CNV di động) |
Vàng/ xanh dương (a) |
Chớp sáng (60-90 fpm) |
N/A |
40 |
40 |
Bảng II-14 |
|
Cường độ thấp loại D (xe dẫn đường- folow me) |
Vàng |
Chớp sáng (60-90 fpm) |
N/A |
200 |
200 |
Bảng II-14 |
|
Cường độ thấp, loại E |
Đỏ |
Chớp sáng (c) |
N/A |
N/A |
32 |
Bảng II-14 (loại B) |
|
Cường độ trung bình loại A |
Trắng |
Chớp sáng (20-60 fpm) |
20.000 |
20.000 |
2.000 |
Bảng II-15 |
|
Cường độ trung bình loại B |
Đỏ |
Chớp sáng (20-60 fpm) |
N/A |
N/A |
2.000 |
Bảng II-15 |
|
Cường độ trung bình loại C |
Đỏ |
Cố định |
N/A |
N/A |
2.000 |
Bảng II-15 |
|
Cường độ cao loại A |
Trắng |
Chớp sáng (40-60 fpm) |
200.000 |
20.000 |
2.000 |
Bảng II-15 |
|
Cường độ cao loại B |
Trắng |
Chớp sáng (40-60 fpm) |
100.000 |
20.000 |
2.000 |
Bảng II-15 |
|
a) Xem khoản 6 Điều này. b) Đối với đèn nhấp nháy, hiệu ứng của cường độ được xác định theo Sổ tay Thiết kế sân bay (Doc 9157), Phần 4. c) Đối với tuabin gió, để nháy sáng với tần suất như ánh sáng trên vỏ động cơ tuabin. |
||||||
Bảng II-14 Phân bổ ánh sáng của đèn cảnh báo giới hạn chướng ngại vật cường độ thấp
|
|
Cường độ sáng thấp nhất (a) |
Cường độ sáng cao nhất (a) |
Luồng sáng theo phương thẳng đứng (e) |
|
|
Luồng sáng thấp nhất |
Cường độ sáng |
|||
|
Loại A |
10cd (b) |
N/A |
100 |
5cd |
|
Loại B |
32cd (b) |
N/A |
100 |
16cd |
|
Loại C |
40cd (b) |
400cd |
120 (d) |
20cd |
|
Loại D |
200cd (c) |
400cd |
N/A (đ) |
N/A |
|
Chú ý: Bảng này không bao gồm việc khuyến cáo luồng sáng ngang. Khoản 3 Điều 121 yêu cầu bao phủ 3600 xung quanh chướng ngại vật. Do vậy số lượng đèn cần đáp ứng yêu cầu sẽ phụ thuộc vào luồng sáng ngang của mỗi đèn cũng như hình dạng của chướng ngại vật. Do đó với luồng sáng hẹp sẽ cần nhiều đèn hơn. a) 3600 ngang: Đối với đèn chớp, cường độ được xác định phù hợp với Doc 9157, Phần 4. b) Từ 2 đến 10° dọc. Góc Elevation vertical được xác định theo chiều ngang khi đèn cùng mức độ. c) Từ 2 đến 20° dọc. Góc Elevation vertical được xác định theo chiều ngang khi đèn cùng mức độ. d) Cường độ lớn nhất được xác định ở khoảng 2,5° thẳng đứng. đ) Cường độ lớn nhất được xác định ở khoảng 17° thẳng đứng. e) Luồng sáng tỏa được xác định là góc giữa mặt phẳng phương ngang và các hướng đối với mà cường độ vượt quá cường độ được đề cập trong cột cường độ. |
||||
Bảng II-15. Phân bổ ánh sáng của đèn cảnh báo giới hạn chướng ngại vật cường độ trung bình, cao theo Bảng II-13
|
|
Yêu cầu tối thiểu |
Khuyến cáo |
||||||||
|
Góc nâng theo phương thẳng đứng (b) |
Luồng sáng theo phương thẳng đứng (c) |
Góc nâng theo phương thẳng đứng (b) |
Luồng sáng theo phương thẳng đứng (c) |
|||||||
|
00 |
-10 |
00 |
-10 |
100 |
||||||
|
Cường độ trung bình nhỏ nhất (a) |
Cường độ nhỏ nhất (a) |
Cường độ nhỏ nhất (a) |
Luồng sáng nhỏ nhất (a) |
Cường độ |
Cường độ lớn nhất (a) |
Cường độ lớn nhất (a) |
Cường độ lớn nhất (a) |
Luồng sáng lớn nhất (a) |
Cường độ (a) |
|
|
200000 |
200000 |
150000 |
75000 |
30 |
75000 |
250000 |
112500 |
7500 |
70 |
75000 |
|
100000 |
100000 |
75000 |
37500 |
30 |
37500 |
125000 |
56250 |
3750 |
70 |
37500 |
|
20000 |
20000 |
15000 |
7500 |
30 |
7500 |
25000 |
11250 |
750 |
N/A |
N/A |
|
2000 |
2000 |
1500 |
750 |
30 |
750 |
2500 |
1125 |
75 |
N/A |
N/A |
|
Chú ý: Bảng này không bao gồm việc khuyến cáo luồng sáng ngang. Khoản 3 Điều 117 yêu cầu bao phủ 3600 xung quanh chướng ngại vật. Do vậy số lượng đèn cần đáp ứng yêu cầu sẽ phụ thuộc vào luồng sáng ngang của mỗi đèn cũng như hình dạng của chướng ngại vật. Do đó với luồng sáng hẹp sẽ cần nhiều đèn hơn. a) 3600 ngang: Đối với đèn chớp, cường độ được xác định phù hợp với Doc 9157, Phần 4. b) Các góc thẳng đứng của độ cao được tham chiếu theo chiếu sáng ngang khi đơn vị ánh sáng được cân bằng c) Luồng sáng tỏa được xác định là góc giữa mặt phẳng phương ngang và các hướng đối với mà cường độ vượt quá cường độ được đề cập trong cột cường độ. Chú ý: Luồng sáng mở rộng có thể cần thiết theo cấu hình cụ thể và được chứng minh bằng một nghiên cứu hàng không. |
||||||||||
5. Đèn cảnh báo CNV cường độ thấp, Loại C, được lắp đặt trên phương tiện và các vật thể di động khác nhưng không bao gồm tàu bay.
6. Đèn cảnh báo CNV cường độ thấp, Loại C, được lắp đặt trên các phương tiện liên quan đến trường hợp khẩn cấp hoặc an ninh sẽ là màu xanh lam nhấp nháy và được lắp đặt trên các phương tiện khác sẽ có màu vàng nhấp nháy.
7. Đèn cảnh báo cường độ thấp, Loại D, sẽ được lắp đặt trên các xe dẫn tàu bay.
8. Các đèn cảnh báo CNV cường độ thấp trên các vật thể có tính di động hạn chế như cầu hành khách phải cố định màu đỏ, và phù hợp với thông số kỹ thuật đối với đèn cảnh báo CNV cường độ thấp, Loại A, trong Bảng II-13. Cường độ của đèn là đủ để đảm bảo sự dễ thấy khi xem xét cường độ của các đèn lân cận và mức độ chung của đèn chiếu sáng mà chúng thường được nhìn thấy.
Điều 123. Đánh dấu và chiếu sáng đối với vật thể cố định
1. Mọi vật thể cố định cần đánh dấu đều phải sơn màu khi có điều kiện, nhưng khi không thể đánh dấu thì phải đặt mốc hay cờ ở trên hoặc phía trên các vật thể đó, ngoài trừ trường hợp vật thể đó có mầu sắc, kích thước nổi bật thì không cần đánh dấu.
2. Sơn họa tiết kẻ ô cho vật thể để làm nổi rõ hình dáng nếu vật thể không dễ gãy và hình chiếu của nó trên bất kỳ mặt phẳng đứng nào đều bằng hoặc lớn hơn 4,5m theo cả hai chiều. Mỗi họa tiết gồm nhiều hình chữ nhật, mỗi cạnh không nhỏ hơn 1,5m và không lớn hơn 3m. Các góc có ô màu sẫm hơn. Các màu phải tương phản với nhau và tương phản với nền xung quanh nó. Thông dụng nhất là màu da cam và màu trắng hoặc đỏ, trắng xen nhau trừ khi những
màu sắc đó bị lẫn với nền xung quanh (xem Hình II-30).

Hình II-30. Mẫu đánh dấu cơ bản
3. Một vật thể nên được sơn màu hiển thị các dải tương phản xen kẽ nếu:
a) Chủ yếu gồm những bề mặt không dễ gãy và một chiều có kích thước lớn hơn 1,5m và chiều còn lại nhỏ hơn 4,5m;
b) Bao gồm các ô có cạnh lớn hơn 1,5m.
Các dải sơn vuông góc với cạnh dài nhất và có chiều rộng bằng giá trị nhỏ hơn trong hai giá trị sau: 1/7 của cạnh dài nhất hoặc 30m. Màu sắc của các dải sơn tương phản với nền xung quanh nó. Cần dùng màu da cam hay trắng, trừ khi những màu này không nổi rõ trên nền quan sát. Các dải ở đầu mút của vật thể có màu sẫm hơn (xem Hình II-30, II-31).
Bảng II-16 chỉ dẫn xác định chiều rộng của dải với một số lẻ các dải, các dải đỉnh và đáy có màu sẫm hơn.
Bảng II-16. Chiều rộng của các vạch sơn tín hiệu
|
Kích thước lớn nhất, m |
Chiều rộng của vạch sơn tín hiệu |
|
|
Lớn hơn |
Không quá |
|
|
1,5 210 270 330 390 450 510 570 |
210 270 330 390 450 510 570 630 |
1/7 so với chiều có kích thước lớn nhất 1/9 so với chiều có kích thước lớn nhất 1/11 so với chiều có kích thước lớn nhất 1/13 so với chiều có kích thước lớn nhất 1/15 so với chiều có kích thước lớn nhất 1/17 so với chiều có kích thước lớn nhất 1/19 so với chiều có kích thước lớn nhất 1/21 so với chiều có kích thước lớn nhất |
4. Sơn vật thể một màu nếu hình chiếu của nó trên bất kỳ một mặt phẳng đứng nào cũng có hai chiều nhỏ hơn 1,5m. Dùng màu da cam hay màu đỏ, trừ khi những màu này bị lẫn với màu nền.
5. Các cờ được sử dụng để đánh dấu các vật thể cố định sẽ được lắp đặt xung quanh, trên đỉnh hoặc xung quanh cạnh cao nhất của vật thể. Khi cờ được sử dụng để đánh dấu các vật thể rộng lớn hoặc các nhóm vật thể có khoảng cách gần nhau, chúng cần được cắm cách nhau ít nhất 15m một cờ. Cờ không được tăng nguy cơ cho vật thể mà nó đánh dấu.
6. Cờ được sử dụng để đánh dấu các vật cố định không được nhỏ hơn 0,6m ở mỗi bên.
7. Cờ được sử dụng để đánh dấu các vật thể cố định phải có màu cam hoặc kết hợp của hai phần hình tam giác, một màu cam và màu trắng khác, hoặc một màu đỏ và một màu trắng khác; ngoại trừ việc các màu đó đồng nhất với nền, màu sắc dễ thấy khác sẽ được sử dụng.
8. Lắp đặt các mốc ở trên hoặc bên cạnh các CNV tại những vị trí dễ nhận biết hình dáng chung của vật thể và trong thời tiết tốt có thể nhận biết ở cự ly tối thiểu 1000m từ trên không và 300m từ mặt đất ở mọi hướng mà tàu bay có thể tiến đến vật thể đó. Hình dáng của mốc phải rõ trong phạm vi cần thiết để chúng không bị nhầm lẫn với các mốc dùng cho mục đích thông tin khác và không làm tăng mối nguy hiểm cho tàu bay do mốc đánh dấu vật thể gây ra.
9. Mỗi mốc cần được sơn một màu. Lắp đặt các mốc trắng và đỏ hoặc trắng và cam xen kẽ nhau. Màu được chọn phải tương phản với nền để dễ nhận biết.
10. Trong trường hợp vật thể được thắp sáng, một hoặc nhiều đèn cảnh báo CNV cường độ thấp, trung bình hoặc cường độ cao phải là đặt càng gần càng tốt phía đỉnh của vật thể.
11. Trong trường hợp ống khói hoặc cấu trúc khác của chức năng tương tự, cần đặt đèn trên cùng đủ dưới đầu để giảm thiểu ô nhiễm do khói, vv (xem Hình II-31).
12. Trong trường hợp cấu trúc tháp hoặc ăng-ten được chỉ báo bởi đèn cảnh báo CNV cường độ cao ban ngày với phụ kiện, chẳng hạn như một thanh hoặc ăng-ten, lớn hơn 12m, nơi nó không thể đặt được đèn cảnh báo CNV cường độ cao trên đỉnh, một đèn cảnh báo CNV tương tự sẽ được đặt ở điểm thực tế cao nhất và, nếu có thể, một đèn cảnh báo CNV cường độ trung bình, loại A, được lắp trên đỉnh.

Hình II-31. Ví dụ sơn và chiếu sáng chiều cao công trình
13. Trong trường hợp vật thể lớn hoặc một nhóm các vật thể có khoảng cách gần nhau được lắp đèn cảnh báo cần đảm bảo:
a) Vượt qua bề mặt giới hạn chướng ngại vật ngang (OLS) hoặc nằm bên ngoài một OLS, các đèn trên cùng sẽ được bố trí ít nhất là chỉ ra các điểm hoặc cạnh của vật thể cao nhất liên quan đến bề mặt giới hạn chướng ngại vật hoặc trên mặt đất và để xác định khu vực chung và mức độ của các vật thể;
b) Vượt qua độ dốc của bề mặt OLS, các đèn trên sẽ được bố trí ít nhất để chỉ ra các điểm hoặc các cạnh của vật thể cao nhất liên quan đến OLS và để xác định khu vực chung và mức độ của các vật thể. Nếu hai hoặc nhiều cạnh có cùng độ cao, cạnh gần nhất so với khu vực hạ cánh sẽ được đánh dấu.
14. Khi bề mặt giới hạn CNV có liên quan là đến độ dốc và điểm cao nhất ở trên các OLS không phải là điểm cao nhất của vật thể, đèn cảnh báo CNV bổ sung nên được đặt trên điểm cao nhất của vật thể.
15. Nơi đèn cảnh báo được lắp đặt để xác định vật thể mở rộng hoặc một nhóm vật thể có khoảng cách gần nhau và:
a) Sử dụng đèn cường độ thấp, khoảng cách đều nhau theo chiều dọc không quá 45m; và
b) Sử dụng đèn cường độ trung bình, được đặt cách nhau theo chiều dọc không quá 900m.
16. Đèn cảnh báo CNV cường độ cao, loại A và đèn cảnh báo CNV cường độ trung bình, loại A và B, nằm trên một vật thể sẽ được chớp đồng thời.
17. Các góc thiết lập cài đặt cho đèn cảnh báo CNV cường độ cao, Loại A cần phù hợp với quy định tại Bảng II-17.
18. Ở các vị trí, theo ý kiến của cơ quan có thẩm quyền, việc sử dụng đèn cảnh báo CNV cường độ cao, Loại A hoặc đèn cảnh báo CNV cường độ trung bình, Loại A, vào ban đêm có thể làm chói các phi công trong vùng lân cận của sân bay (trong khoảng 10 000m bán kính) hoặc gây ra mối quan tâm khác như môi trường. Vì vậy một hệ thống đèn cảnh báo kép nên được được cung cấp. Hệ thống này phải bao gồm các đèn cảnh báo CNV cường độ cao, loại A, hoặc đèn cảnh báo CNV độ trung bình, Loại A, khi thích hợp, để sử dụng ban ngày và chạng vạng và đèn cảnh báo CNV cường độ trung bình, Loại B hoặc C, để sử dụng vào ban đêm.
Điều 124. Chiếu sáng các vật thể có độ cao dưới 45 m so với mặt đất
1. Đèn cảnh báo CNV cường độ thấp, loại A hoặc B, nên được sử dụng khi vật thể là vật thể có phạm vi hạn chế và chiều cao của nó trên mặt đất xung quanh là ít hơn 45m.
2. Khi sử dụng đèn cảnh báo CNV cường độ thấp, Loại A hoặc B, có thể sẽ không đủ chiếu sàng và cần có cảnh báo sớm về việc này, sau đó sử dụng đèn cảnh báo CNV cường độ trung bình hoặc cường độ cao để thay thế.
3. Đèn cảnh báo CNV cường độ thấp, Loại B, nên được sử dụng một mình hoặc kết hợp với đèn cảnh báo cường độ trung bình, Loại B.
4. Nên sử dụng đèn cảnh báo CNV cường độ trung bình, loại A, B hoặc C khi vật thể lớn hoặc khu vực có vật thể rộng. Đèn cảnh báo CNV cường độ trung bình, loại A và C, nên được sử dụng một mình, trong khi đèn cảnh báo CNV cường độ trung bình đèn, loại B, nên được sử dụng một mình hoặc kết hợp với đèn cảnh báo CNV cường độ thấp, loại B.
Điều 125. Chiếu sáng vật thể có chiều cao từ 45 m đến cao dưới 150 m so với mặt đất
1. Nên sử dụng đèn cảnh báo CNV cường độ trung bình, loại A, B hoặc C. Cường độ trung bình đèn cảnh báo CNV, loại A và C, nên được sử dụng một mình, trong khi đèn cảnh báo CNV độ trung bình, Loại B, nên được sử dụng một mình hoặc kết hợp với đèn cảnh báo CNV cường độ thấp, Loại B.
2. Trường hợp vật thể được chỉ báo bằng đèn cảnh báo CNV cường độ trung bình, loại A và một phần của vật thể là cao hơn 105m so với mặt đất xung quanh hoặc độ cao của đỉnh của các tòa nhà gần đó (khi vật thể được bao quanh bởi các tòa nhà), các đèn bổ sung sẽ được lắp đặt ở các mức trung gian. Các đèn lắp đặt bổ sung này sẽ được đặt cách đều nhau, tuy nhiên giữa các đèn trên cùng và mặt đất hoặc mức đỉnh gần đó các tòa nhà phải đảm bảo khoảng cách không quá 105 m.
3. Trường hợp vật thể được chỉ báo bằng đèn cảnh báo CNV cường độ trung bình, loại B và một phần của vật thể cao hơn 45 m so với mặt bằng xung quanh hoặc độ cao của các tòa nhà gần đó (khi đối tượng được bao quanh bởi các tòa nhà), các đèn bổ sung sẽ được cung cấp ở các mức trung gian. Các đèn bổ sung này là các đèn cảnh báo CNV cường độ thấp, loại B và đèn cảnh báo CNV cường độ trung bình, loại B, và khoảng cách giữa các đèn chiếu sáng và mặt đất hoặc mức đỉnh của các tòa nhà lân cận không quá 52 m.
4. Trong trường hợp vật thể được chỉ báo bằng đèn cảnh báo CNV cường độ trung bình, loại C và một phần của vật thể cao hơn 45 m so với mặt bằng xung quanh hoặc độ cao của các tòa nhà gần đó (khi đối tượng được bao quanh bởi các tòa nhà), các đèn bổ sung sẽ được cung cấp ở các mức trung gian. Các đèn bổ sung này sẽ được đặt cách đều nhau và khoảng cách giữa các đèn trên cùng và mặt đất hoặc mức đỉnh gần đó các tòa nhà, với khoảng cách không quá 52 m.
5. Khi đèn cảnh báo cường độ cao, loại A, được sử dụng, chúng sẽ được đặt cách đều nhau trong khoảng thống nhất không vượt quá 105 m giữa mặt đất và (các) đèn chiếu sáng trên đỉnh CNV được quy định tại mục 10 Điều này, trừ trường hợp vật thể cần đánh dấu được bao quanh bởi các tòa nhà, khi đó độ cao của các đỉnh của các tòa nhà có thể được sử dụng với mục đích tương đương khi xác định số lượng đèn cần cảnh báo
Điều 126. Chiếu sáng vật thể có chiều cao từ 150 m trở lên trên mặt đất
1. Đèn cảnh báo CNV cường độ cao, Loại A, nên được sử dụng để cảnh báo sự hiện diện của vật thể nếu chiều cao của nó cao hơn cao độ của mặt đất xung quanh vượt quá 150 m và có một nghiên cứu hàng không chỉ ra là cần thiết lắp đèn để nhận biết vật thể vào ban ngày.
2. Trường hợp đèn cảnh báo cường độ cao, loại A, được sử dụng, chúng sẽ được đặt cách đều nhau trong khoảng không vượt quá 105 m giữa mặt đất và (các) đèn chiếu sáng trên đỉnh được quy định trong khoản 10 Điều 123, trừ trường hợp CNV cần đánh dấu được bao quanh bởi các tòa nhà, độ cao của các đỉnh của các tòa nhà có thể được sử dụng tương đương với mặt đất khi xác định số lượng đèn cần cảnh báo.
3. Ở các vị trí xác định theo ý kiến của cấp có thẩm quyền, việc sử dụng đèn cảnh báo CNV cường độ cao, Loại A, vào ban đêm có thể làm chói các phi công trong vùng lân cận của sân bay (trong bán kính khoảng 10 000m) hoặc gây ra mối quan tâm về môi trường đáng kể, đèn cảnh báo CNV cường độ trung bình, Loại C, nên được sử dụng một mình, trong khi đèn cảnh báo CNV cường độ trung bình, loại B, nên được sử dụng một mình hoặc kết hợp với đèn cảnh báo CNV cường độ thấp, loại B.
4. Trong trường hợp vật thể được chỉ báo bằng đèn cản trở cường độ trung bình, loại A, đèn bổ sung sẽ được cung cấp ở cấp độ trung gian. Các đèn trung gian bổ sung này sẽ được đặt cách nhau bằng nhau, giữa các đèn trên cùng và mặt đất hoặc mức đỉnh của các tòa nhà lân cận, nếu thích hợp, với khoảng cách không quá 105 m.
5. Trong trường hợp CNV được chỉ báo bằng đèn cảnh báo CNV cường độ trung bình, loại B, đèn bổ sung sẽ được cung cấp ở cấp độ trung gian. Các đèn bổ sung này là các đèn cảnh báo CNV cường độ thấp xen kẽ, loại B và đèn cảnh báo CNV cường độ trung bình, loại B, được đặt cách đều nhau giữa các đèn cảnh báo trên đỉnh và mặt đất hoặc đỉnh của các tòa nhà lân cận với khoảng cách không quá 52 m.
6. Trong trường hợp vật thể chỉ được cảnh báo bằng đèn cảnh báo CNV cường độ trung bình, loại C, đèn bổ sung sẽ được cung cấp ở cấp độ trung gian. Các đèn bổ sung này sẽ được đặt cách đều nhau, giữa các đèn trên đỉnh với mặt đất hoặc mức đỉnh của các tòa nhà lân cận, với khoảng cách không quá 52 m.
Điều 127. Tuabin gió
1. Tuốc bin gió phải được đánh dấu và/hoặc chiếu sáng nếu xác định nó là CNV.
2. Các cánh quạt, vỏ động cơ và trên 2/3 chiều cao cột đỡ tuabin gió cần được sơn màu trắng, trừ khi có chỉ định khác theo kết quả nghiên cứu chi tiết.
3. Khi cần phải chiếu sáng CNV thì nên sử dụng cường độ chiếu sáng trung bình. Trong trường hợp có bãi tuốc bin gió, tức là một nhóm gồm hai hay nhiều tua bin gió thì phải coi đó là một vật thể khối và phải lắp đặt đèn cảnh báo:
a) Theo chu vi của bãi tuốc bin gió;
b) Khoảng cách tối đa giữa các đèn chiếu sáng dọc theo chu vi khu tuốc bin tuân thủ theo khoảng 15 Điều 123, trừ khi nghiên cứu cho thấy có thể dùng khoảng cách lớn hơn;
c) Nếu dùng đèn chớp thì chúng phải chớp sáng đồng thời;
d) Chiếu sáng mọi tuốc bin gió cao hơn hẳn bãi tuabin gió;
đ) Các quy định tại điểm a, b và d cần đảm bảo các tiêu chí quy định tại khoản 4 Điều này.
4. Các quy định tại điểm a, b và d khoản 3 Điều này cần đảm bảo các tiêu chí sau:
a) Đối với tuabin gió dưới 150 m ở chiều cao tổng thể (chiều cao từ mặt đất đỉnh của tuabin có tính cả chiều dài cánh quạt), đèn cảnh báo CNV cường độ trung bình trên thân tuabin cần được đảm bảo;
b) Đối với tuabin gió từ 150 m đến 315 m ở chiều cao tổng thể, ngoài đèn cảnh báo CNV cường độ trung bình được lắp đặt trên vỏ bọc, một đèn cảnh báo CNV thứ hai nên được cung cấp để đề phòng đèn cảnh báo CNV không hoạt động. Đèn cảnh báo CNV phải được lắp đặt để đảm bảo rằng đầu ra của ánh sáng một trong hai đèn không bị chặn bởi đèn kia;
c) Ngoài ra, đối với tuabin gió từ 150 m đến 315 m ở chiều cao tổng thể, trên nửa chiều cao thân tuabin cần lắp đặt ít nhất ba đèn cảnh báo CNV loại E cường độ thấp như được quy định trong khoản 1 Điều 123. Nếu một nghiên cứu hàng không cho thấy đèn loại E cường độ thấp không phù hợp, đèn loại A hoặc B cường độ thấp có thể được dùng.
5. Không áp dụng khoản 4 Điều này đối với tuabin có chiều cao tổng thể lớn hơn 315m. Khi có một nghiên cứu hàng không cụ thể chỉ ra cần thiết phải áp dụng các biện pháp tăng cường cảnh báo với tuabin gió, Cục Hàng không Việt Nam phối hợp với cơ quan nhà nước có thẩm quyền để yêu cầu đánh dấu và chiếu sáng tuabin gió.
6. Các đèn cảnh báo CNV nên được lắp đặt trên thân tuabin bằng cách để đảm bảo tầm nhìn không bị cản trở cho tàu bay tiếp cận từ bất kỳ hướng nào.
7. Khi đèn cảnh báo được coi là cần thiết cho một tuabin gió, việc lắp đặt phải phù hợp với khoản 4 Điều này hoặc theo quyết định của cơ quan có thẩm quyền theo một nghiên cứu hàng không.
Điều 128. Đánh dấu và cảnh báo trên dây điện trên cao, dây cáp và tháp
1. Các dây dẫn, dây cáp, vv, phải đánh dấu cần được đánh dấu theo quy định; tháp cần được sơn màu theo quy định.
2. Các tháp của dây dẫn, dây cáp, vv… phải đánh dấu cần được đánh dấu theo khoản 1 đến khoản 4 Điều 123, ngoại trừ việc đánh dấu các tháp có thể bị bỏ qua khi chúng được chiếu sáng bởi những chướng ngại vật cường độ cao vào ban ngày.
3. Các mốc được đặt trên hoặc liền kề với các vật thể phải được đặt ở các vị trí dễ thấy để xác định vật thể và phải được nhận biết trong thời tiết rõ ràng từ khoảng cách tối thiểu 1.000m đối với một vật thể nhìn từ trên không và 300m cho một vật thể được quan sát từ mặt đất theo mọi hướng mà tàu bay có khả năng tiếp cận vật thể. Hình dạng của mốc phải khác biệt trong phạm vi cần thiết để đảm bảo rằng chúng không bị nhầm lẫn các dấu hiệu được sử dụng để truyền đạt thông tin khác, và chúng không làm tăng thêm các mối rủi ro của vật thể.
4. Mốc phía trên dây điện, cáp trên không.v.v. có dạng hình cầu đường kính không dưới 60 cm.
5. Khoảng cách giữa hai mốc cạnh nhau hoặc giữa một mốc và một cột đỡ cần phù hợp với đường kính của mốc, trong mọi trường hợp không được xa hơn:
a) 30 m khi đường kính của mốc là 60 cm;
b) 35 m khi đường kính của mốc là 80 cm;
c) 40 m khi đường kính của mốc nhỏ nhất là 130 cm.
6. Khi có nhiều tuyến đường dây, đường cáp gần nhau thì điểm đặt mốc đánh dấu không thấp hơn tuyến đường dây cao nhất.
7. Mỗi mốc được sơn một màu. Lắp đặt các mốc trắng và đỏ hoặc trắng và da cam xen kẽ nhau. Chọn màu sắc tương phản với nền xung quanh để dễ nhìn thấy.
8. Khi một đường dây trên không, cáp, cần phải được đánh dấu nhưng nó không thể thực hiện để lắp đặt các mốc trên dây, cáp, vv, có thể sử dụng đèn cảnh báo CNV cường độ cao, Loại B.
9. Đèn cảnh báo CNV cường độ cao, Loại B, nên được sử dụng để biểu thị sự hiện diện của tháp hỗ trợ dây điện trên không, cáp, trong đó:
a) Một nghiên cứu hàng không cho thấy các đèn như vậy là cần thiết cho việc công nhận sự hiện diện của dây, cáp;
b) Hoặc không tìm được vị trí để đặt mốc trên dây, cáp.
10. Khi sử dụng đèn cảnh báo cường độ cao, loại B, chúng được đặt ở ba vị trí:
a) Ở trên đỉnh tháp;
b) Ở điểm thấp nhất của dây hoặc cáp;
c) Ở khoảng giữa chừng giữa hai cấp độ này.
11. Đèn cảnh báo CNV cường độ cao, loại B, xác định sự hiện diện của tháp, dây dẫn trên không, cáp, vv, cần nhấp nháy liên tục; đầu tiên đèn giữa, thứ 2 là đèn đỉnh và cuối cùng là đèn dưới cùng. Khoảng cách giữa các nhấp nháy của đèn sẽ gần đúng các tỷ lệ sau:
|
Khoảng thời gian chớp giữa các đèn |
Tỷ số của chu kỳ thời gian |
|
Đèn giữa và đèn đỉnh |
1/13 |
|
Đèn đỉnh và đèn đáy |
2/13 |
|
Đèn đáy và đèn giữa |
10/13 |
12. Ở các vị trí xác định theo ý kiến của cấp có thẩm quyền, việc sử dụng đèn cảnh báo CNV cường độ cao, loại B, vào ban đêm có thể làm chói các phi công trong vùng lân cận của sân bay (trong bán kính khoảng 10.000 m) hoặc gây ra mối quan tâm về môi trường đáng kể, đèn cảnh báo CNV cường độ trung bình, loại B, nên được sử dụng vào ban ngày hoặc chạng vạng, trong khi đèn cảnh báo CNV cường độ cao, loại B được sử dụng vào ban đêm. Khi sử dụng đèn cường độ trung bình, chúng phải được lắp đặt ở cùng mức với đèn cảnh báo CNV cường độ cao loại B.
13. Các góc thiết lập cài đặt cho đèn cảnh báo CNV cường độ cao, loại B phải phù hợp với quy định tại Bảng II-17.
Bảng II-17. Bố trí góc lắp đặt đèn cảnh báo CNV cường độ cao
|
Độ cao của đèn so với địa hình, m |
Góc của tia cao nhất so với mặt phẳng ngang, độ |
|
|
Lớn hơn |
Không vượt quá |
|
|
151 |
|
00 |
|
122 |
151 |
10 |
|
92 |
122 |
20 |
|
|
92 |
30 |
MỤC 9: ĐÁNH DẤU CẢNH BÁO KHU VỰC HẠN CHẾ BẰNG MẮT
Điều 129. Đóng cửa đường cất hạ cánh và đường lăn hoặc từng bộ phận của chúng
1. Khi đường CHC, đường lăn hoặc một phần của chúng không phù hợp cho tàu bay sử dụng thì phải sơn tín hiệu cảnh báo. Sơn tín hiệu này là sơn tín hiệu đóng cửa.
2. Phải có sơn tín hiệu đóng cửa trên đường CHC, đường lăn hoặc các khu vực tạm thời không cho tàu bay sử dụng. Không cần sơn tín hiệu đóng cửa nếu thời gian đóng cửa rất ngắn và cơ sở cung cấp dịch vụ không lưu đã thông báo.
3. Sơn tín hiệu đóng cửa và các dấu hiệu bổ trợ ở cả hai đầu của đường CHC hoặc đoạn đường CHC đóng cửa với khoảng cách tối đa giữa chúng không quá 300m. Trên đường lăn, sơn tín hiệu đóng cửa ít nhất được kẻ ở từng đầu đường lăn hay đoạn đường lăn cần thông báo đóng cửa.
4. Sơn tín hiệu đóng cửa đường cất hạ cánh có hình dạng và tỷ lệ như Hình II-32 a) và sơn tín hiệu đóng cửa đường lăn có hình dạng và tỷ lệ như Hình II-32, b) Sơn đóng cửa đường cất hạ cánh có màu trắng và sơn đóng cửa đường lăn có màu vàng.
5. Khi đường CHC hay đường lăn hay một phần của chúng phải đóng cửa lâu dài thì phải xoá mọi ký hiệu thông thường của đường CHC hay đường lăn đó.
6. Không được bật đèn trên đường CHC hay đường lăn hay một phần của chúng đã đóng cửa, trừ khi bảo dưỡng đèn.
7. Bổ sung cho dấu hiệu đóng cửa khi đường CHC hay đường lăn hay một phần của chúng đã đóng cửa bị đường CHC hay đường lăn khác đang sử dụng cắt qua, về ban đêm bằng những đèn báo khu vực không sử dụng được đặt ngang qua lối vào khu đóng cửa với khoảng cách đèn không quá 3m (xem khoản 4 Điều 132).
8. Khi xây dựng hoặc cải tạo sửa chữa đường cất hạ cánh, đường lăn mà hình thành bề mặt đường cất hạ cánh hoặc đã sơn kẻ nhưng chưa đưa vào sử dụng thì phải sơn tín hiệu đóng cửa đường cất hạ cánh, đường lăn.
9. Quy định chi tiết về sơn đóng cửa đường CHC, đường lăn được thực hiện theo Thông tư 34/2014/TT-BGTVT về ban hành quy chuẩn kỹ thuật quốc gia về sơn tín hiệu trên đường cất hạ cánh, đường lăn, sân đỗ tàu bay.

Hình II-32. Dấu hiệu đóng cửa đường CHC, đường lăn
Điều 130. Các bề mặt không chịu tải
1. Khi các lề của đường lăn, sân quay đầu đường CHC, sân chờ và sân đỗ tàu bay và các bề mặt không chịu tải khác không thể phân biệt được với các bề mặt chịu tải thì giữa khu vực đó và bề mặt chịu tải được đánh dấu bằng các vạch sọc ở phía tàu bay lăn.
2. Sơn tín hiệu kẻ sọc ở phía tàu bay lăn dọc theo mép của mặt đường chịu tải sao cho mép ngoài của sơn tín hiệu gần hơn trùng với mép của mặt đường chịu tải.
3. Sơn tín hiệu kẻ cạnh đường lăn gồm một cặp vạch đậm, mỗi vạch rộng 15cm cách nhau 15cm cùng màu sắc với sơn tín hiệu tim đường lăn.
Điều 131. Khu vực trước ngưỡng đường cất hạ cánh
1. Nếu bề mặt phía trước ngưỡng đường CHC (phần nằm trên mặt đường CHC) có mặt đường nhân tạo dài quá 60m không thích hợp cho tàu bay sử dụng, thì toàn bộ chiều dài đó trước ngưỡng đường CHC đánh dấu hình mái nhà (>).
2. Dấu hiệu mái nhà “>” kẻ theo hướng đường CHC, sắp xếp như Hình II-33.

Hình II-33. Dấu hiệu trước ngưỡng đường CHC
3. Dấu hiệu “>” có màu sắc phân biệt so với màu sắc của các ký hiệu đường CHC, tốt nhất là màu vàng, chiều rộng vạch sơn tín hiệu tối thiểu là 0,9m.
Điều 132. Các khu vực không sử dụng
1. Các mốc báo hiệu khu vực không sử dụng gọi là mốc tránh được bố trí trên những khu vực của đường lăn, sân đỗ hoặc sân chờ không cho tàu bay lăn qua nhưng vẫn có thể cho tàu bay lăn vòng tránh khu vực một cách an toàn. Nếu khu vực này được sử dụng vào ban đêm thì phải có đèn tránh.
2. Các mốc tránh và đèn tránh được bố trí càng gần nhau càng tốt ở khoảng cách đủ làm nổi bật khu vực tránh.
3. Các mốc tránh gồm những thiết bị thẳng đứng nổi bật như cờ, mốc hình chóp, đèn hay biển báo.
4. Đèn báo tránh có màu đỏ sáng liên tục. Đèn phải có cường độ đủ sáng cho phép phân biệt với loại đèn khác bên cạnh và nền sáng chung của toàn khu vực nhưng không được chói quá. Trong mọi trường hợp cường độ đèn đỏ không được nhỏ hơn 10cd.
5. Hình chóp báo tránh phải cao ít nhất 0,5m màu đỏ, da cam hay vàng hoặc một trong các màu đó kết hợp với màu trắng.
6. Cờ báo tránh hình vuông có cạnh tối thiểu 0,5m màu đỏ, da cam vàng hoặc một trong các màu đó kết hợp với màu trắng.
7. Biển báo tránh cao ít nhất 0,5m và dài ít nhất 0,9m với những sọc thẳng đứng đỏ và trắng hoặc da cam và trắng xen kẽ nhau.
MỤC 10: HỆ THỐNG ĐIỆN
Điều 133. Hệ thống cấp điện cho thiết bị phụ trợ dẫn đường hàng không
1. Sân bay phải có nguồn cấp điện chính đảm bảo cho các hệ thống dẫn đường hoạt động an toàn.
2. Phải đảm bảo hệ thống cấp điện cho thiết bị phụ trợ dẫn đường bằng mắt hoặc bằng vô tuyến sao cho nếu thiết bị bị hỏng cũng không làm phi công bị mất tín hiệu chỉ dẫn bằng mắt hoặc bị nhầm lẫn.
3. Phải nối hệ thống điện dự phòng với các phương tiện cần điện dự phòng sao cho các phương tiện được tự động nối vào hệ thống điện dự phòng khi hệ thống điện đang dùng bị hỏng.
4. Thời gian từ khi hệ thống điện chính hỏng đến khi khôi phục hoàn toàn các dịch vụ yêu cầu ở Khoản 10 Điều này càng ngắn càng tốt, trừ trường hợp các phương tiện tiếp cận chính xác bằng mắt, giản đơn hoặc các đường CHC theo yêu cầu thời gian chuyển nguồn tối đa ghi trong Bảng II-18.
5. Thời gian chuyển nguồn trong tiêu chuẩn này đã xác định yêu cầu phải thay thế nguồn cấp điện dự phòng hiện hữu trong thời hạn do Người có thẩm quyền quy định sau khi Tiêu chuẩn này có hiệu lực. Tuy nhiên, đối với nguồn cấp điện dự phòng được lắp đặt sau ngày tiêu chuẩn này có hiệu lực thì phải nối nguồn cấp điện dự phòng đến những trang thiết bị cần có nguồn cấp điện dự phòng sao cho những trang thiết bị đó phù hợp với những yêu cầu trong Bảng II-18 về thời gian chuyển nguồn tối đa.
6. Đối với đường CHC tiếp cận chính xác, cần hệ thống cấp điện dự phòng đáp ứng được các yêu cầu của Bảng II-18, tương ứng với cấp cất hạ cánh của đường CHC. Đường nối giữa nguồn cấp điện với các thiết bị cần cấp điện dự phòng được thiết kế sao cho nguồn cấp điện dự phòng dùng cho các thiết bị đó tự động kết nối với thiết bị khi xảy ra sự cố ở nguồn cấp điện chính.
7. Đối với đường CHC chỉ dùng cho cất cánh khi tầm nhìn đường cất hạ cánh dưới 800 m phải có nguồn cấp điện dự phòng đáp ứng được các yêu cầu của Bảng II-18.
8. Tại sân bay với đường CHC chính tiếp cận giản đơn, cần có nguồn cấp điện dự phòng đáp ứng các yêu cầu của Bảng II-18, ngoại trừ các phương tiện nhìn bằng mắt trên đường CHC tiếp cận giản đơn thứ hai trở đi không cần nguồn cấp điện dự phòng.
9. Tại sân bay mà đường CHC chính là đường CHC không có thiết bị, cần có nguồn cấp điện dự phòng đáp ứng được các yêu cầu của khoản 4 Điều này, ngoại trừ thiết bị nhìn bằng mắt khi mà hệ thống đèn dự phòng theo quy định của Điều 75 có thể đáp ứng yêu cầu chậm nhất là 15 phút thì Cục Hàng không Việt Nam quy định cần hoặc không cần nguồn cấp điện dự phòng.
10. Những thiết bị sân bay sau đây cần có nguồn cấp điện dự phòng để cấp điện ngay khi nguồn cấp điện chính bị mất:
a) Đèn tín hiệu và chiếu sáng tối thiểu đảm bảo cho kiểm soát viên không lưu hoàn thành nhiệm vụ khi trực;
b) Mọi đèn cảnh báo CNV đảm bảo cho tàu bay hoạt động an toàn;
c) Đèn tiếp cận, đèn đường CHC và đường lăn đáp ứng yêu cầu kỹ thuật nêu tại khoản 6 và khoản 9 Điều này;
d) Trang thiết bị khí tượng;
đ) Đèn bảo vệ chiếu sáng cần thiết, nếu được trang bị theo quy định về đèn chiếu sáng đảm bảo an ninh;
e) Trang thiết bị thiết yếu của sân bay nhằm đáp ứng trường hợp khẩn cấp;
g) Đèn chiếu sáng vị trí đỗ tàu bay cách ly, nếu được trang bị theo quy định của Khoản 1 Điều 103;
h) Đèn chiếu sáng khu vực sân đỗ nơi hành khách qua lại;
i) Hệ thống làm thủ tục check-in cho hành khách, hệ thống soi chiếu an ninh hàng không, chiếu sáng trong nhà ga hành khách.
11. Có thể sử dụng các loại nguồn cấp điện sau làm nguồn cấp điện dự phòng:
a) Nguồn cấp điện công cộng độc lập với nguồn cấp chính, đường dây độc lập với nguồn và đường dây chính để khi nguồn chính bị hỏng thì nguồn cấp điện công cộng khác đó có thể cấp điện được ngay;
b) Trạm phát điện dự phòng có máy phát điện, acqui hoặc các thiết bị tương tự có thể cung cấp điện được ngay.
|
Đường CHC |
Các phương tiện cần cấp điện |
Thời gian chuyển nguồn tối đa |
|
Không Thiết bị |
Chỉ dẫn độ dốc tiếp cận bằng mắt(a) Mép đường CHC(b) Ngưỡng đường CHC(b) Cuối đường CHC(b) CNV(a) |
Xem khoản 4 và khoản 9 Điều này. |
|
Thiết bị tiếp cận giản đơn |
Hệ đèn tiếp cận Chỉ dẫn độ dốc tiếp cận bằng mắt(a,d) Mép đường CHC(d) Ngưỡng đường CHC(d) Cuối đường CHC CNV(a) |
15 s 15 s 15 s 15 s 15 s 15 s |
|
Thiết bị tiếp cận chính xác CAT I |
Hệ đèn tiếp cận Mép đường CHC(d) Chỉ dẫn độ dốc tiếp cận bằng mắt(a,d) Ngưỡng đường CHC Cuối đường CHC Đường lăn chính(a) CNV(a) |
15 s 15 s 15 s 15 s 15 s 15 s 15 s |
|
Thiết bị tiếp cận chính xác CAT II/III |
Trong 300m của hệ đèn tiếp cận Các phần khác của hệ đèn tiếp cận CNV(a) Mép đường CHC Ngưỡng đường CHC Cuối đường CHC Tim đường CHC Vùng chạm bánh trên đường CHC Đèn dừng các loại Đường lăn chính |
1 s 15 s 15 s 15 s 1 s 1 s 1 s 1 s 1 s 15 s |
|
Đường CHC dùng cho cất cánh khi tầm nhìn dưới 800 m. |
Cạnh đường CHC Cuối đường CHC Tim đường CHC Đèn dừng các loại Đường lăn chính(a) CNV(a) |
15 s c 1 s 1 s 1 s 15 s 15 s |
|
a) Sử dụng nguồn cấp điện dự phòng chủ yếu đảm bảo an toàn cho các hoạt động bay; b) Xem Điều 75 sử dụng đèn dự phòng; c) Sử dụng 1s khi đường CHC không có đèn tim; d) Sử dụng 1s khi hướng tiếp cận nguy hiểm hoặc địa thế cao nguy hiểm. |
||
Bảng II-18. Các yêu cầu về nguồn cấp điện dự phòng
Điều 134. Quy định thiết kế hệ thống điện
1. Đối với đường CHC sử dụng trong các điều kiện tầm nhìn trên đường CHC nhỏ hơn 550 m, hệ thống điện nối với nguồn cấp điện cho đèn và điều khiển hệ thống đèn kèm theo trong Bảng II-18 được thiết kế sao cho khi một thiết bị hỏng cũng không làm phi công bị mất tín hiệu chỉ dẫn bằng mắt hoặc bị nhầm lẫn.
2. Khi nguồn cấp điện dự phòng của sân bay dùng hệ dây dự phòng thì phải đảm bảo chúng độc lập cả về mặt vật lý lẫn điện thế để luôn sẵn sàng và độc lập làm việc.
3. Khi đường cất hạ cánh có một phần là đường lăn tiêu chuẩn được trang bị đèn đường cất hạ cánh và đèn đường lăn, với hệ thống dự phòng là nguồn kép thì phải phối hợp chặt chẽ để ngăn ngừa khả năng cùng một lúc cả hai hệ thống hoạt động.
Điều 135. Giám sát hệ thống đèn
1. Phải duy trì hệ thống giám sát đảm bảo hệ thống đèn hoạt động tin cậy.
2. Khi hệ thống đèn được sử dụng cho mục đích điều hành tàu bay thì nó được điều khiển để tự động cung cấp ngay lập tức mọi tín hiệu chỉ dẫn khi có bất kì sự cố nào xảy ra có nguy cơ ảnh hưởng đến chức năng giám sát. Thông tin này sẽ được tự động chuyển đến cơ sở cung cấp dịch vụ không lưu.
3. Khi thay đổi nguồn cấp điện, trong vòng 2s nguồn dự phòng cần cung cấp điện cho đèn dừng ở vị trí chờ đường cất hạ cánh và trong vòng 5s đối với tất cả các loại đèn dẫn đường bằng mắt khác.
4. Đối với đường CHC sử dụng trong các điều kiện tầm nhìn trên đường CHC dưới 550m, hệ thống đèn đáp ứng yêu cầu trong Bảng II-18 được giám sát tự động để cung cấp ngay những chỉ dẫn khi có sự cố làm cho khả năng của bất kì bộ phận nào giảm xuống dưới mức tối thiểu cho phép được quy định từ khoản 7 đến khoản 11 Điều 149 tương ứng. Thông tin này được chuyển đến cơ sở bảo dưỡng liên quan ngay lập tức.
5. Đối với đường CHC sử dụng trong các điều kiện tầm nhìn trên đường CHC dưới 550m, hệ thống đèn đáp ứng yêu cầu trong Bảng II-18 được giám sát tự động để cung cấp ngay những chỉ dẫn khi có sự cố có nguy cơ làm cho khả năng của bất kì bộ phận nào giảm xuống dưới mức tối thiểu cho phép làm cho các hoạt động phải ngừng. Thông tin này được tự động chuyển đến cơ sở cung cấp dịch vụ không lưu và được thông báo đến người có trách nhiệm.
MỤC 11: KHẨN NGUY CỨU HỎA TRỪ KHẨN NGUY ĐỐI PHÓ VỚI TÌNH HUỐNG CAN THIỆP BẤT HỢP PHÁP
Điều 136. Lập kế hoạch khẩn nguy sân bay
1. Kế hoạch khẩn nguy sân bay được lập phù hợp với các hoạt động của tàu bay và những hoạt động khác trên sân bay.
2. Kế hoạch khẩn nguy sân bay phải đề ra qui trình phối hợp hành động trong tình huống khẩn cấp tại sân bay và vùng lân cận sân bay.
3. Kế hoạch khẩn nguy nhằm phối hợp các đơn vị khẩn nguy hoặc triển khai khẩn nguy trong các tình huống khẩn cấp, gồm tối thiểu các đơn vị:
a) Trong sân bay: cơ sở cung cấp dịch vụ không lưu, khẩn nguy, cứu hoả, dịch vụ cấp cứu y tế sân bay, khai thác tàu bay, an ninh hàng không;
b) Ngoài sân bay: đơn vị cứu hoả, cảnh sát, dịch vụ cấp cứu y tế, bệnh viện, lực lượng quân đội, tuần tra, canh gác bờ biển, bến cảng của địa phương.
4. Bản kế hoạch khẩn nguy sân bay có nội dung phối hợp và hợp tác với trung tâm khẩn nguy của địa phương khi cần thiết.
5. Bản kế hoạch khẩn nguy sân bay phải gồm ít nhất:
a) Các loại khẩn nguy dự kiến khắc phục;
b) Các cơ quan (đơn vị) tham gia vào kế hoạch;
c) Trách nhiệm và vai trò của từng đơn vị, của trung tâm khẩn nguy và sở chỉ huy khẩn nguy đối với từng loại tình huống khẩn cấp;
d) Thông tin về tên và số điện thoại của các đơn vị hay người cần quan hệ trong các trường hợp khẩn nguy cụ thể;
đ) Bản đồ phân chia ô vuông sân bay và vùng lân cận sân bay.
6. Bản kế hoạch phải xem xét nhân tố con người để đảm bảo phối hợp tối ưu các hoạt động khẩn nguy của các đơn vị liên quan.
7. Phải có Trung tâm khẩn nguy cố định và một sở chỉ huy khẩn nguy lưu động hoạt động trong suốt thời gian khẩn nguy.
8. Trung tâm hoạt động khẩn nguy là một thành phần của sân bay đảm nhiệm mọi việc phối hợp chung và hướng dẫn giải quyết công tác khẩn nguy.
9. Sở chỉ huy có trang bị để có thể cơ động nhanh đến nơi xảy ra sự cố khi cần thiết và phối hợp tại chỗ các đơn vị đến khẩn nguy.
10. Người khai thác cảng hàng không, sân bay chỉ định rõ một người quản lý trung tâm khẩn nguy, và nếu cần thiết bổ sung một người khác quản lý sở chỉ huy.
11. Phải có hệ thống thông tin liên lạc thích hợp nối sở chỉ huy với trung tâm khẩn nguy và với các đơn vị tham gia theo kế hoạch và đáp ứng các yêu cầu cụ thể của sân bay.
12. Kế hoạch khẩn nguy cần có cả những quy trình nhằm định kì thử nghiệm tính hợp lý và xem xét các kết quả nhằm nâng cao hiệu quả của nó.
13. Bản kế hoạch khẩn nguy được thử nghiệm bằng cách tiến hành:
a) Tổng diễn tập khẩn nguy không quá 2 năm một lần toàn Cảng hàng không;
b) Diễn tập khẩn nguy cục bộ giữa hai lần tổng diễn tập để khắc phục những thiếu sót phát hiện trong lần tổng diễn tập toàn cảng hàng không;
c) Rà xét kịch bản hoặc sau một sự cố xảy ra nhằm bổ sung càng nhanh càng tốt những thiếu sót phát hiện trong lần tổng diễn tập hay sau sự cố cụ thể.
14. Kế hoạch khẩn nguy trong môi trường đặc biệt bao gồm công tác chuẩn bị tiềm lực và phối hợp để đáp ứng việc khẩn nguy tại sân bay gần ao hồ, đầm lầy, biển và có phần tiếp cận hạ cánh hoặc cất cánh đi qua chúng.
15. Trên những sân bay này ở vùng gần ao hồ và/hoặc đầm lầy hoặc địa hình đặc biệt, khó khăn, kế hoạch khẩn nguy có thể gồm việc thành lập, kiểm tra, đánh định kỳ đối với dịch vụ khẩn nguy qua những khoảng thời gian nhất định.
16. Đánh giá các khu vực tiếp cận và khởi hành cất cánh trong phạm vi 1000m đường cất hạ cánh.
17. Các nội dung khác thực hiện theo quy định tại Điều 98 Thông tư 29/2021/TT-BGTVT.
Điều 137. Cứu hỏa sân bay
1. Người khai thác cảng hàng không, sân bay phải cung cấp các dịch vụ và trang thiết bị khẩn nguy và cứu hỏa.
2. Khi sân bay ở gần khu vực có nước, đầm lầy hoặc ở địa hình khó khăn và nơi mà phần lớn các hoạt động tiếp cận hay cất cánh được tiến hành phía trên các khu vực đó, cần phải có trang thiết bị khẩn nguy, cứu hỏa thích hợp để giảm nguy hiểm và rủi ro.
3. Cấp cứu hỏa của sân bay, còn gọi là cấp bảo vệ sân bay được xác định theo nguyên tắc trong khoản 5 và khoản 6 Điều này, trừ khi số lần hoạt động của tàu bay ứng với cấp bảo vệ cao nhất thông thường của sân bay nhỏ hơn 700 lần hoạt động liên tục trong 3 tháng thì cấp cứu hỏa không thấp hơn một cấp so với cấp đã xác định.
4. Nếu cấp cứu hỏa ở sân bay chưa thoả mãn với cấp cứu hỏa sân bay theo khoản 5 và khoản 6 Điều này thì phải bổ sung trang thiết bị cho phù hợp trong thời hạn do cơ quan có thẩm quyền quy định.
5. Cấp khẩn nguy cứu hỏa sân bay được xác định theo Bảng II-19 dựa trên chiều dài và chiều rộng của thân tàu bay lớn nhất thường sử dụng sân bay.
6. Nếu sau khi đã lựa chọn được cấp tương ứng với toàn bộ chiều dài của tàu bay dài nhất mà chiều rộng của thân tàu bay lớn hơn chiều rộng lớn nhất trong Bảng II-19, cột 3 cho cấp đó, thì loại tàu bay đó được nâng nhu cầu về cấp bảo vệ lên một cấp cao hơn.
7. Trong thời kỳ ít hoạt động, cấp cứu hỏa phải luôn được duy trì không nhỏ hơn cấp cứu hỏa cao nhất dự tính cho loại tàu bay lớn nhất sử dụng sân bay trong thời gian đó, không phụ thuộc vào mật độ bay.
|
Cấp cứu hỏa |
Toàn bộ chiều dài tàu bay |
Độ rộng tối đa của thân tàu bay |
|
1 |
0 đến dưới 9 m |
2 m |
|
2 |
9 m đến dưới 12 m |
2 m |
|
3 |
12 m đến dưới 18 m |
3 m |
|
4 |
18 m đến dưới 24 m |
4 m |
|
5 |
24 m đến dưới 28 m |
4 m |
|
6 |
28 m đến dưới 39 m |
5 m |
|
7 |
39 m đến dưới 49 m |
5 m |
|
8 |
49 m đến dưới 61 m |
7 m |
|
9 |
61 m đến dưới 76 m |
7 m |
|
10 |
76 m đến dưới 90 m |
8 m |
Bảng II-19. Phân cấp cứu hỏa sân bay
8. Phải cung cấp đủ chất chữa cháy chính và phụ theo quy định cho sân bay.
9. Chất chữa cháy chính gồm:
a) Bọt chống cháy đáp ứng chất lượng tối thiểu cấp A;
b) Bọt chống cháy đáp ứng chất lượng tối thiểu cấp B;
c) Bọt chống cháy đáp ứng chất lượng tối thiểu cấp C;
d) Phối hợp các loại trên;
đ) Riêng chất chữa cháy chính cho sân bay cấp 1 đến cấp 3 có thể sử dụng bọt đáp ứng chất lượng bọt tối thiểu cấp B hoặc C.
10. Chất chữa cháy phụ là hỗn hợp bột hoá học khô chữa cháy và các chất chữa cháy khác nhưng tối thiểu phải có hiệu quả tương đương với chất chữa cháy trên.
11. Lượng nước cho sản xuất bọt và các chất phụ cần thiết cho các xe khẩn nguy, cứu hỏa phải phù hợp với cấp sân bay xác định tại khoản 3, khoản 4, khoản 5, khoản 6 và Bảng II-20. Riêng đối với sân bay cấp cứu hỏa đạt cấp 1 và 2 có thể thay đến 100% nước bằng chất phụ. Nếu dùng bọt chất lượng A thì có thay thế tương đương 1kg chất phụ cho 1 lít nước.
12. Tại sân bay có tàu bay lớn hơn kích thước trung bình dự kiến khai thác cần tính toán lại lượng nước cần thiết và có thể tăng thêm lượng nước cho bọt cứu hỏa và tăng thêm giải pháp xả bọt.
|
Cấp sân bay |
Bọt chất lượng cấp A |
Bọt chất lượng cấp B |
Bọt chất lượng cấp C |
Các chất phụ |
||||
|
Nước (lít) |
Tốc độ xả bọt (lít/phút) |
Nước (lít) |
Tốc độ xả bọt (lít/phút) |
Nước (lít) |
Tốc độ xả bọt (lít/phút) |
Bột hoá học khô (kg) |
Tốc độ xả (kg/phút) |
|
|
(1) |
(2) |
(3) |
(4) |
(5) |
(6) |
(7) |
(8) |
(9) |
|
1 |
350 |
350 |
230 |
230 |
160 |
160 |
45 |
2,25 |
|
2 |
1 000 |
800 |
670 |
550 |
460 |
360 |
90 |
2,25 |
|
3 |
1 800 |
1 300 |
1 200 |
900 |
820 |
630 |
135 |
2,25 |
|
4 |
3 600 |
2 600 |
2 400 |
1 800 |
1700 |
1100 |
135 |
2,25 |
|
5 |
8 100 |
4 500 |
5 400 |
3 000 |
3900 |
2200 |
180 |
2,25 |
|
6 |
11 800 |
6 000 |
7 900 |
4 000 |
5800 |
2900 |
225 |
2,25 |
|
7 |
18 200 |
7 900 |
12 100 |
5 300 |
8800 |
3800 |
225 |
2,25 |
|
8 |
27 300 |
10 800 |
18 200 |
7 200 |
12800 |
5100 |
450 |
4,5 |
|
9 |
36 400 |
13 500 |
24 300 |
9 000 |
17100 |
6300 |
450 |
4,5 |
|
10 |
48 200 |
16 600 |
32 300 |
11 200 |
22800 |
7900 |
450 |
4,5 |
|
Ghi chú: Chất lượng nước trong cột 2, 4, 6 phụ thuộc vào chiều dài trung bình loại tàu bay khai thác. |
||||||||
Bảng II-20. Số lượng tối thiểu các chất chữa cháy
13. Tại các cảng hàng không khai thác loại tàu bay lớn hơn tàu bay đã công bố theo cấp sân bay, lượng nước phải được tính toán lại và tỷ lệ nước cho chất tạo bọt phải được tăng lên phù hợp.
14. Lượng bọt chữa cháy cung ứng riêng cho các xe để sản xuất bọt phải tỷ lệ với lượng nước được cung ứng và loại bọt chữa cháy được lựa chọn.
15. Tổng số bọt chữa cháy cung cấp cho các xe phải đủ để sản xuất ít nhất 2 lần lượng chất bọt khi hoà tan.
16. Phải có đủ nước cung cấp bổ sung cho xe khẩn nguy, cứu hỏa khi tàu bay gặp tai nạn.
17. Khi kết hợp các loại bọt khác nhau, thì tổng số lượng nước cung cấp phải tính toán dựa vào lượng nước yêu cầu cho từng loại bọt tương ứng và được ghi cụ thể trong tài liệu sử dụng của từng xe và đưa vào yêu cầu tổng thể của hệ thống khẩn nguy cứu hỏa.
18. Tốc độ xả dung dịch không được nhỏ hơn các tốc độ ghi ở Bảng II-20. Các chất chữa cháy cần đáp ứng các quy định của tổ chức quốc tế về tiêu chuẩn hoá (ISO).
19. Tốc độ xả của dung dịch khi có các tác nhân bổ sung không được nhỏ hơn giá trị được hiển thị trong Bảng II-20.
20. Bột khô hóa học chỉ được thay thế bằng chất chữa cháy tương đương hoặc tốt hơn mọi chất chữa cháy, nếu chất bổ sung dự kiến sẽ được sử dụng.
21. Phải duy trì tại sân bay một lượng cung ứng dự trữ chất bọt chữa cháy và chất phụ tương đương với 200% của lượng các chất cần cung ứng cho các xe chữa cháy theo cấp cứu hỏa công bố.
22. Phải duy trì một lượng dự trữ chất phụ tương đương 100% số lượng được xác định trong Bảng II-20 để dự trữ cho các phương tiện cứu hỏa.
23. Các sân bay cấp 1 và 2 đã thay thế tới 100% lượng nước bằng chất phụ thì cần đảm bảo một nguồn dự trữ bổ sung cho chất phụ là 200%.
24. Khi dự kiến có sự khó khăn dẫn đến việc chậm trễ lớn trong việc bổ sung chất chữa cháy, số lượng dự trữ các chất quy định tại khoản 21, 22, 23 Điều này phải được tăng lên theo kết quả dự báo và đánh giá rủi ro.
25. Thiết bị cứu hộ đồng bộ và tương ứng với loại tàu bay khai thác cần được cung cấp trên xe chữa cháy.
26. Các xe chữa cháy phải đảm bảo thời gian phản ứng không quá 2 phút để đi đến bất cứ điểm nào của đường cất hạ cánh trong điều kiện tầm nhìn tốt và trạng thái mặt đường sạch, không bị ướt.
27. Các xe chữa cháy phải đảm bảo thời gian phản ứng không quá 3 phút để đi đến bất cứ bộ phận nào của khu vực di chuyển trong điều kiện tầm nhìn tốt và trạng thái mặt đường sạch, không bị ướt.
28. Thời gian phản ứng là thời gian giữa thời điểm báo động đầu tiên đến thời điểm khi chiếc xe chữa cháy đầu tiên đến vị trí tàu bay lâm nạn xả bọt với tốc độ tối thiểu đạt 50% tốc độ xả quy định tại Bảng II-20.
29. Điều kiện tối ưu về tầm nhìn và mặt đường được xác định là ban ngày, tầm nhìn tốt, không có các yếu tố tác động như mưa hoặc nước, băng, tuyết trên mặt đường.
30. Khi sân bay có khai thác trong điều kiện tầm nhìn hạn chế, người khai thác cảng hàng không, sân bay cần rà soát và lập quy trình hướng, khai thác phương tiện khẩn nguy cứu hoả nếu cần thiết.
31. Bất kỳ phương tiện nào ngoại trừ xe chữa cháy đầu tiên, phải đến điểm cứu hỏa không muộn quá 4 phút, tốt nhất là 3 phút từ khi có thông báo đầu tiên để đảm bảo yêu cầu cung cấp chất chữa cháy liên tục được quy định trong Bảng II-20.
32. Phải có quy trình bảo trì hệ thống các xe chữa cháy để đảm bảo trang thiết bị làm việc hiệu quả và phù hợp với thời gian được quy định trong suốt thời gian hoạt động của xe.
33. Trường hợp không đảm bảo thời gian khẩn nguy theo quy định, phải làm đường khẩn nguy để đảm bảo thời gian khẩn nguy quy định. Cần đặc biệt chú ý điều kiện sử dụng đường, sân và các khu vực tiếp cận đến cách ngưỡng đường cất hạ cánh 1000m, hoặc ít nhất trong đường vành đai sân bay. Nếu có hàng rào thì cần có lối ra các khu vực bên ngoài sân bay.
34. Các đường khẩn nguy phải chịu được tải trọng của các xe nặng nhất đi qua và dùng được trong mọi điều kiện thời tiết. Các đường trong phạm vi 90m của đường CHC cần có lớp mặt để chống xói mòn bề mặt và không làm bẩn đường CHC.
35. Khi bề mặt đường khẩn nguy khó phân biệt với các khu vực xung quanh hoặc do bùn đất, cây cỏ che khuất, thì phải đặt mốc cạnh đường cách nhau khoảng 10m.
36. Các xe chữa cháy được đặt ở trạm cứu hỏa. Khi một trạm cứu hoả không đảm bảo được thời gian phản ứng quy định, người khai thác cảng hàng không, sân bay phải thiết lập bổ sung các trạm cứu hoả trung gian hay còn gọi là trạm cứu hoả vệ tinh.
37. Trạm cứu hỏa được bố trí sao cho xe chữa cháy chạy đến khu vực đường CHC ít phải đi vòng.
38. Người khai thác cảng hàng không, sân bay phải thiết lập riêng hệ thống thông tin liên lạc riêng biệt giữa một trạm cứu hỏa với đài kiểm soát tại sân bay, với các trạm cứu hỏa khác trên sân bay và với các xe chữa cháy.
39. Người khai thác cảng hàng không, sân bay phải trang bị hệ thống báo động tại mọi trạm cứu hỏa trên sân bay và tại đài kiểm soát tại sân bay.
40. Số lượng xe chữa cháy tối thiểu ở sân bay theo bảng sau:
|
Cấp cứu hỏa |
Số xe chữa cháy, đơn vị |
|
1 2 3 4 5 6 7 8 9 10 |
01 01 01 01 01 02 02 03 03 03 |
41. Nhân viên khẩn nguy cứu hỏa phải được huấn luyện đầy đủ để hoàn thành phận sự của họ hiệu quả nhất và phải tham gia các cuộc diễn tập khẩn nguy, cứu hỏa với tất cả các loại tàu bay và các phương tiện khẩn nguy, cứu hỏa được sử dụng ở sân bay, bao gồm cả nhiên liệu cháy có áp suất. Hướng dẫn chi tiết nêu trong Phụ lục A, phần 17.
42. Chương trình huấn luyện nhân viên khẩn nguy, cứu hỏa phải bao gồm huấn luyện kỹ năng hành động của từng người và khả năng phối hợp trong đội.
43. Trong quá trình hoạt động khai thác, nhân viên được đào tạo đầy đủ và có trình độ cần được bố trí để vận hành xe chữa cháy và các thiết bị có liên quan với công suất tối đa. Những nhân viên này được bố trí để đảm bảo có thể đạt được thời gian phản ứng tối thiểu và duy trì liên tục các trạm khẩn nguy. Cần trang bị cho nhân viên các trang thiết bị cầm tay và bảo hộ lao động khác phù hợp.
44. Số nhân viên tối thiểu cần cho hoạt động khẩn nguy, cứu hỏa phụ thuộc vào loại tàu bay được sử dụng ở sân bay.
45. Đối với nhân viên thực hiện nhiệm vụ khẩn nguy, cứu hỏa phải được trang bị trang phục bảo hộ theo quy định. Riêng nhân viên trực tiếp tham gia công tác chữa cháy và cứu nạn phải được trang bị mặt nạ phòng độc và bình khí thở oxy bảo đảm an toàn khi thực hiện nhiệm vụ.
46. Cấp cứu hỏa sân bay được xác định theo tiêu chuẩn của ICAO. Cấp cứu hỏa sân bay được công bố trong AIP, quy chế bay trong khu vực sân bay và trong tài liệu khai thác cảng hàng không, sân bay; được triển khai tới các cơ quan, đơn vị liên quan.
47. Khi hệ thống phương tiện, trang thiết bị cứu hỏa gặp sự cố làm thay đổi về cấp cứu hỏa sân bay, người khai thác cảng hàng không, sân bay phải báo cáo Cục Hàng không Việt Nam, thông báo cho các cơ sở cung cấp dịch vụ bảo đảm hoạt động bay, thực hiện quy trình thông báo tin tức hàng không để thông báo cho tàu bay đi, đến cảng hàng không, sân bay. Khi khắc phục xong sự cố, người khai thác cảng hàng không, sân bay phải thông báo lại các thông tin về cấp cứu hỏa sân bay theo quy định.
Điều 138. Di dời tàu bay mất khả năng di chuyển
1. Phải có kế hoạch di dời tàu bay mất khả năng di chuyển ở trên hoặc ở gần khu bay của sân bay và phải có một người chỉ huy để thực thi kế hoạch khi cần thiết.
2. Kế hoạch di dời tàu bay mất khả năng di chuyển được lập dựa trên các đặc tính của tàu bay dự kiến sử dụng ở sân bay và có những nội dung sau đây:
a) Danh sách thiết bị và nhân viên tại sân bay hoặc trong vùng lân cận sân bay có thể huy động cho mục đích đó;
b) Kế hoạch tiếp nhận thiết bị phục hồi tàu bay nhanh có thể huy động từ các sân bay khác.
3. Yêu cầu về trách nhiệm di dời, tổ chức di dời và các yêu cầu khác được quy định tại Mục 6 Chương II Thông tư 29/2021/TT-BGTVT.
Điều 139. Giảm rủi ro do động vật hoang dã
1. Rủi ro va chạm với động vật hoang dã tại sân bay và vùng lân cận sân bay được đánh giá thông qua việc:
a) Lập quy trình quốc gia ghi nhận và thông báo nguy cơ va chạm của động vật hoang dã với tàu bay;
b) Thu thập thông tin từ nhà khai thác tàu bay, nhân viên cảng hàng không... về sự có mặt của động vật hoang dã tại sân bay và xung quanh sân bay và mối nguy hiểm va chạm với tàu bay hoạt động.
2. Khi nhận được thông tin động vật hoang dã va chạm với tàu bay tại sân bay, Cục Hàng không Việt Nam thông báo cho ICAO để đưa vào dữ liệu thông báo nguy cơ va chạm với động vật hoang dã (Hệ thống IBIS).
3. Để giảm rủi ro cho tàu bay hoạt động cần áp dụng các biện pháp để giảm thiểu nguy cơ va chạm giữa tàu bay và động vật hoang dã.
4. Khi khẳng định có nguy cơ chim va chạm với tàu bay tại sân bay, cơ quan có thẩm quyền phải có hành động làm giảm số chim có nguy cơ tiềm ẩn đối với hoạt động của tàu bay bằng cách dùng các biện pháp xua đuổi chúng khỏi sân bay hoặc khu vực xung quanh sân bay.
5. Cần loại bỏ các đống rác hay mọi nguồn thu hút chim đến sân bay và khu lân cận sân bay, trừ khi chúng không tạo điều kiện thu hút chim và không có nguy cơ tàu bay va chạm với chim.
6. Yêu cầu về kiểm soát chim, động vật hoang dã, vật nuôi được quy định tại Mục 10 Chương II Thông tư 29/2021/TT-BGTVT.
Điều 140. Dịch vụ điều hành sân đỗ tàu bay
1. Dịch vụ điều hành sân đỗ tàu bay nhằm:
a) Điều hành hoạt động ngăn ngừa va quệt giữa các tàu bay với nhau và giữa tàu bay với các chướng ngại vật;
b) Điều hành tàu bay ra, vào sân đỗ tàu bay từ đài kiểm soát tại sân bay;
c) Đảm bảo an toàn và di chuyển nhanh chóng của xe và các hoạt động khác.
2. Khi đài kiểm soát tại sân bay không tham gia vào dịch vụ điều hành sân đỗ tàu bay thì cần thiết lập các phương thức để tàu bay di chuyển có trật tự và dễ dàng bàn giao được tàu bay giữa đơn vị quản lý điều hành sân đỗ và đài kiểm soát tại sân bay.
3. Cơ sở dịch vụ điều hành sân đỗ tàu bay được trang bị các phương tiện thông tin vô tuyến liên lạc.
4. Khi tầm nhìn kém thì phải hạn chế đến mức tối thiểu người và phương tiện cơ giới trên sân đỗ tàu bay.
5. Xe khẩn nguy tương ứng với mức khẩn nguy phải được ưu tiên so với các phương tiện di chuyển trên mặt đất khác.
6. Phương tiện cơ giới hoạt động trên sân đỗ phải:
a) Nhường đường cho các xe khẩn nguy, tàu bay đang lăn, xe kéo đẩy tàu bay chuẩn bị lăn, hoặc đang kéo, đẩy tàu bay;
b) Nhường đường cho các phương tiện khác trong trường hợp có quy định riêng.
7. Vị trí đỗ tàu bay phải đảm bảo quan sát được bằng mắt khoảng trống yêu cầu cho tàu bay sử dụng vị trí đỗ.
Điều 141. Phục vụ mặt đất cho tàu bay
1. Phải chuẩn bị sẵn sàng thiết bị cứu hỏa để chữa cháy được ngay khi bắt đầu xảy ra cháy nhiên liệu và nhân viên được huấn luyện cứu hỏa có thể nhanh chóng phục vụ khẩn nguy, cứu hỏa trong tình huống cháy hoặc tràn nhiên liệu.
2. Trừ trường hợp không được phép nạp nhiên liệu cho tàu bay theo quy định của pháp luật về bảo đảm kỹ thuật nhiên liệu hàng không, khi nạp nhiên liệu có thể cho hành khách lên, xuống hoặc ở trên tàu bay trong trường hợp đáp ứng các yêu cầu quy định tại khoản 2 Điều 50 Thông tư 29/2021/TT-BGTVT..
Điều 142. Hoạt động của phương tiện phục vụ mặt đất trong sân bay
1. Phương tiện phục vụ mặt đất được phép hoạt động:
a) Trên khu vực đường CHC theo chỉ dẫn của đài kiểm soát không lưu;
b) Trên sân đỗ tàu bay.
2. Lái xe trên các phương tiện trong khu bay phải tuân thủ tất cả các quy định, chỉ dẫn bắt buộc, trừ khi:
a) Được sự cho phép của đài kiểm soát không lưu khi di chuyển trên khu vực CHC; hoặc
b) Được sự cho phép của cơ quan có thẩm quyền khi di chuyển trên sân đỗ tàu bay.
3. Lái xe trên các phương tiện trong khu vực CHC phải tuân thủ tất cả các chỉ dẫn bắt buộc bằng đèn tín hiệu.
4. Lái xe trên các phương tiện trong khu vực CHC phải được huấn luyện phù hợp để thực hiện công việc và phải tuân thủ những chỉ dẫn của:
a) Đài kiểm soát không lưu khi di chuyển trên khu vực CHC; và
b) Cơ quan có thẩm quyền khi di chuyển trên sân đỗ tàu bay.
5. Lái xe trên các phương tiện trong khu vực CHC phải được trang bị bộ đàm hai chiều liên lạc với đài kiểm soát không lưu trước khi vào khu bay và với người có thẩm quyền trước khi vào sân đỗ. Lái xe phải thường xuyên nghe, quan sát và giữ tần số liên lạc khi ở trên khu bay.
Điều 143. Hệ thống chỉ dẫn và kiểm soát di chuyển trên mặt đất
1. Trên sân bay phải có hệ thống chỉ dẫn và kiểm soát di chuyển trên mặt đất.
2. Khi thiết lập hệ thống chỉ dẫn và kiểm soát di chuyển trên mặt đất xét đến:
a) Mật độ giao thông đường không;
b) Điều kiện tầm nhìn cho phép hoạt động;
c) Nhu cầu dẫn đường cho phi công;
d) Độ phức tạp của sơ đồ qui hoạch các khu vực sân bay;
đ) Việc di chuyển của các phương tiện vận tải.
3. Các thành phần hỗ trợ cho SMGCS gồm sơn tín hiệu, đèn tín hiệu và biển báo được lắp đặt phù hợp với yêu cầu kĩ thuật theo quy định về sơn tín hiệu, đèn và biển báo.
4. Hệ thống SMGCS được thiết lập để giúp ngăn ngừa tàu bay và những phương tiện cơ giới không cho xâm nhập đường cất hạ cánh đang hoạt động.
5. Hệ thống SMGCS được thiết lập để ngăn ngừa va chạm giữa tàu bay với tàu bay và với các phương tiện cơ giới hoặc các vật thể khác trên khu bay.
6. Tại những nơi SMGCS được thực hiện bằng cách lựa chọn đóng mở công tắc của đèn vạch dừng, đèn tim đường lăn, thì cần đảm bảo những yêu cầu dưới đây:
a) Đèn tim đường lăn hướng dẫn lăn sáng đến tận vạch dừng;
b) Đèn được bố trí sao cho khi tàu bay phải dừng trước vạch dừng được chiếu sáng thì phần đèn tim phía ngoài vạch dừng không hoạt động;
c) Đèn tim đường lăn ở đầu tàu bay phải sáng khi vạch dừng bị che khuất.
7. Cần trang bị rađa hoạt động cho khu cất hạ cánh trên bề mặt sân bay khi điều kiện tầm nhìn trên đường cất hạ cánh nhỏ hơn 350m.
8. Ngoài yêu cầu tại khoản 7 Điều này, cần trang bị rađa quản lý cho khu cất hạ cánh khi mật độ giao thông cao trên bề mặt sân bay khó hướng dẫn hoạt động bằng những thiết bị và qui tắc thông thường.
Điều 144. Vị trí, xây dựng và lắp đặt trang thiết bị trên các khu vực khai thác
1. Trừ khi theo yêu cầu phục vụ dẫn đường tàu bay, không thiết bị nào được có mặt trên:
a) Dải bay, khu vực an toàn cuối đường CHC, dải lăn hoặc trong phạm vi quy định ở Bảng II-5, cột 11 nếu nó gây nguy hiểm cho tàu bay;
b) Khoảng trống, nếu nó gây nguy hiểm cho tàu bay trên không.
2. Mọi thiết bị phụ trợ dẫn đường phải dễ gãy và được bố trí càng thấp càng tốt ở:
a) Trên phần của dải bay trong phạm vi 75m cách tim đường CHC có mã số 3 và 4; hoặc 45m cách tim đường CHC có mã số 1 và 2;
b) Trên khu vực an toàn cuối đường CHC, dải lăn hoặc trong khoảng cách theo Bảng II-5;
c) Trên khoảng trống và nơi dễ gây nguy hiểm cho tàu bay trên không.
3. Mọi công trình hoặc thiết bị cần lắp đặt cho mục đích dẫn đường hàng không cao hơn mặt phẳng của dải bay được coi là chướng ngại vật, phải dễ gãy và càng thấp càng tốt.
4. Trừ khi yêu cầu phục vụ dẫn đường hàng không, không thiết bị nào được đặt bên trong phạm vi 240m tính từ cuối dải bay tiếp cận chính xác CAT I, II hoặc III trong khoảng:
a) 60m cách tim đường cất hạ cánh kéo dài khi có mã số 3 hoặc 4;
b) 45m cách tim đường cất hạ cánh kéo dài khi có mã số 1 hoặc 2.
5. Mọi thiết bị cần thiết cho mục đích dẫn đường được bố trí trên hoặc gần dải bay đối với đường cất hạ cánh tiếp cận chính xác CAT I, II hoặc III phải dễ gãy và càng thấp càng tốt ở:
a) Trong phạm vi 240m xét từ cuối dải bay và trong khoảng 60m cách tim đường cất hạ cánh khi mã số là 3, 4 và 45m cách tim đường cất hạ cánh khi mã số là 1, 2;
b) Trên bề mặt tiếp cận trong, bề mặt chuyển tiếp trong hoặc bề mặt hủy bỏ hạ cánh.
6. Bất kỳ công trình hoặc thiết bị nào được dùng cho mục đích dẫn đường hàng không có thể là CNV bất lợi xét theo khoản 4 Điều 63, khoản 5 Điều 64, khoản 6 Điều 66 phải dễ gãy và càng thấp càng tốt.
Điều 145. Hệ thống cảnh báo xâm nhập đường cất hạ cánh chủ động
1. Hệ thống tự động cảnh báo xâm nhập đường cất hạ cánh - ARIWS được lắp đặt tại sân bay cần đảm bảo:
a) Cung cấp sự phát hiện tự động về khả năng xâm nhập hoặc chiếm dụng đường cất hạ cánh đang hoạt động và cảnh báo trực tiếp cho phi công hoặc người điều khiển phương tiện, trang thiết bị;
b) Hoạt động và được điều khiển độc lập với bất kỳ hệ thống dẫn đường nào khác trên sân bay;
c) Có hệ thống đèn hỗ trợ và đèn phải được tính toán để phù hợp với các thông số kỹ thuật liên quan trong 5.3 tại Phụ lục A;
d) Trường hợp hỏng một phần hoặc toàn bộ hệ thống, nó sẽ không ảnh hưởng đến các hoạt động bình thường của sân bay. Để đạt được mục tiêu này, phải giao quyền cho ATC được phép đóng một phần hoặc toàn bộ hệ thống;
đ) Một ARIWS có thể được cài đặt cùng với các vạch sơn tín hiệu tim đường lăn, đoạn dừng hoặc đèn bảo vệ đường cất hạ cánh;
e) Hệ thống hoạt động trong mọi điều kiện thời tiết, bao gồm khả năng hiển thị thấp;
g) Một ARIWS có thể chia sẻ các thành phần cảm biến chung của SMGCS hoặc A-SMGCS, tuy nhiên nó hoạt động độc lập với cả hai hệ thống.
2. Trường hợp ARIWS được lắp đặt tại sân bay, thông tin về đặc tính và trạng thái của ARIWS phải được cung cấp cho các cơ quan có liên quan và được thông báo tin tức hàng không trên AIP với mô tả hệ thống điều khiển và hướng dẫn chuyển động như được nêu trong Annex 15, Phụ lục 1, AD 2.9.
CHƯƠNG III: DUY TRÌ ĐIỀU KIỆN KHAI THÁC SÂN BAY
Điều 146. Quy định chung
1. Cần phải có quy trình bảo trì các công trình tại sân bay để duy trì các công trình trong trạng thái an toàn, ổn định và hiệu quả cho dẫn đường hàng không. Việc thực hiện bảo trì đảm bảo tuân thủ theo quy định của pháp luật về xây dựng và pháp luật chuyên ngành.
2. Bề mặt của mặt đường trong khu bay phải được kiểm tra và giám sát thường xuyên như là một phần của chương trình quản lý vật ngoại lai và bảo trì sân bay với mục tiêu loại bỏ vật ngoại lai có thể gây thiệt hại cấu trúc tàu bay, động cơ tàu bay, hoặc cản trở khai thác các hệ thống của tàu bay.
3. Bề mặt mặt đường phải bằng phẳng, không có biến dạng lớn. Chi tiết tại Phụ lục A Mục 5.
4. Phải đảm bảo hệ số ma sát đường cất hạ cánh lớn hơn hệ số ma sát tối thiểu theo quy định.
5. Phải định kỳ đo các đặc tính ma sát của bề mặt đường CHC bằng thiết bị đo ma sát và công bố hệ số ma sát đường cất hạ cánh. Chỉ dẫn đánh giá hệ số ma sát trình bày tại Phụ lục A, Mục 7.
6. Hệ số ma sát đường CHC được đo đạc bằng thiết bị chuyên dụng và các thông số, kết quả đo đạc phải tuân thủ các tiêu chuẩn hoặc được sự chấp thuận của cấp có thẩm quyền theo quy định.
7. Nhân viên đo đạc hệ số ma sát đường CHC cần được đào tạo để đáp ứng đầy đủ nhiệm vụ của họ theo yêu cầu.
8. Phải bảo dưỡng khi các đặc tính ma sát của toàn bộ hay một phần đường CHC nhỏ hơn giá trị tiêu chuẩn ma sát tối thiểu theo quy định.
9. Bề mặt đường cất hạ cánh phải được đánh giá trực quan, dưới điều kiện mưa tự nhiên hoặc mô phỏng điều kiện mưa của khu vực sân bay nếu phát hiện vấn đề thoát nước trên đường cất hạ cánh hoặc trên các phần của đường cất hạ cánh gây ảnh hưởng đến an toàn khai thác sân bay hoặc khi có yêu cầu, thì cần thực hiện biện pháp khắc phục, bảo trì.
10. Khi đường lăn được sử dụng cho máy bay có động cơ tua-bin, bề mặt của lề đường lăn phải được đảm bảo để không có đá hoặc các vật thể khác có thể bị cuốn vào động cơ máy bay.
Điều 147. Loại bỏ các chất bám
1. Các chất bám như tuyết, tuyết tan, băng, nước đọng, bùn, bụi, cát, dầu, cao su phải được di dời, loại bỏ khỏi bề mặt đường đường cất hạ cánh càng nhanh càng tốt.
2. Đường lăn, sân đỗ tàu bay phải được giữ sạch khỏi các chất bám trong phạm vi cần thiết để cho phép tàu bay vận hành an toàn.
3. Khi không thể đồng thời dọn các chất bám trên nhiều bộ phận của khu bay, thì theo thứ tự ưu tiên tuần tự như sau:
a) Đường cất hạ cánh đang sử dụng;
b) Đường lăn phục vụ cho đường cất hạ cánh đang sử dụng;
c) Sân đỗ tàu bay;
d) Sân chờ lăn;
đ) Các khu vực khác.
4. Có thể dùng các loại hoá chất để tẩy sạch hoặc ngăn ngừa việc hình thành chất bám trên mặt đường sân bay khi cần, tuy nhiên người khai thác cảng hàng không, sân bay phải tiến hành thử nghiệm và đánh giá và xác định hoá chất không làm cho mặt đường bị trơn trượt trước khi áp dụng.
5. Không được dùng hoá chất có hại cho tàu bay hoặc mặt đường, hoặc những hoá chất gây độc hại cho môi trường tại cảng hàng không.
Điều 148. Các lớp bảo vệ mặt đường CHC
1. Những quy định sau đây dùng cho các dự án tăng cường lớp phủ bề mặt đường cất hạ cánh khi đường cất hạ cánh cần khôi phục trạng thái hoạt động giống như lớp tăng cường trên toàn bộ đường cất hạ cánh, do đó thường có một đoạn chuyển tiếp dốc nối giữa các bề mặt cũ và mới của đường cất hạ cánh.
2. Độ dốc dọc của đoạn nối chuyển tiếp so với bề mặt của bề mặt hiện tại hoặc lớp phủ cũ phải là:
a) 0,5-1,0% cho lớp tăng cường dày dưới 5cm;
b) Không lớn hơn 0,5% cho độ dày lớn hơn 5cm.
3. Lớp phủ tăng cường mặt đường có thể được làm từ đầu mút này đến đầu mút kia của đường cất hạ cánh sao cho tàu bay sử dụng phần lớn đường cất hạ cánh với độ dốc nhỏ.
4. Cần phải tăng cường hết toàn bộ chiều rộng của đường cất hạ cánh trong từng đợt thi công.
5. Trước khi làm lớp phủ cho đường cất hạ cánh trở lại trạng thái hoạt động tạm thời, phải đánh dấu tim đường cất hạ cánh phù hợp với yêu cầu kỹ thuật về sơn kẻ tín hiệu tim đường cất hạ cánh. Thêm vào đó, tại vị trí bất kỳ của ngưỡng tạm thời phải làm dải ngang rộng 3,6m.
6. Bề mặt lớp phủ phải đảm bảo quy định về mức ma sát tối thiểu.
Điều 149. Các phương tiện nhìn bằng mắt
1. Đèn được coi là không hiệu quả khi cường độ trung bình của chùm tia chính nhỏ hơn 50% giá trị trên hình tương ứng trong Phụ lục 2. Đối với những đèn có cường độ trung bình của chùm tia thiết kế chính vuợt quá 50% giá trị nêu trong Phụ lục 2 thì được coi là giá trị thiết kế.
2. Phải bảo dưỡng các phương tiện phụ trợ nhìn bằng mắt để duy trì độ tin cậy của hệ thống đèn và sơn tín hiệu.
3. Hệ thống bảo dưỡng cho đường cất hạ cánh tiếp cận chính xác CAT II hoặc III phải bao gồm tối thiểu những việc kiểm tra sau:
a) Kiểm tra bằng mắt và đo cường độ tại hiện trường, kích thước chùm tia và hướng của các đèn bao gồm hệ thống đèn tiếp cận và hệ thống đèn đường cất hạ cánh;
b) Kiểm tra và đánh giá các đặc tính về điện của từng sơ đồ điện bao gồm hệ thống đèn tiếp cận và hệ thống đèn đường cất hạ cánh;
c) Kiểm tra sự phù hợp của cường độ đèn dùng cho kiểm soát không lưu.
4. Việc đánh giá cường độ tại hiện trường, kích thước chùm tia và hướng của các đèn bao gồm hệ thống đèn tiếp cận và hệ thống đèn đường cất hạ cánh, đối với đường cất hạ cánh tiếp cận chính xác CAT II hoặc III thì cần xem xét các đèn càng nhiều càng tốt theo yêu cầu kỹ thuật tương ứng của Phụ lục 2.
5. Việc đánh giá cường độ chiếu sáng, kích thước, chùm tia và hướng của các đèn bao gồm hệ thống đèn tiếp cận và hệ thống đèn đường cất hạ cánh tiếp cận chính xác CAT II hoặc III cần được thực hiện bằng hệ thống đo lường di động có độ chính xác cao để phân tích những đặc tính của từng loại đèn.
6. Tần suất đánh giá các đèn chiếu sáng đường cất hạ cánh tiếp cận chính xác CAT II hoặc III dựa trên cơ sở mật độ giao thông, mức độ ô nhiễm khu vực, thực tế thiết bị lắp đặt đèn và kết quả đánh giá đo liên tục tại hiện trường, nhưng trong bất kỳ tình huống nào cũng không được dưới 2 lần/năm đối với đèn mặt đường và không dưới 1 lần/năm với các loại đèn khác.
7. Hệ thống bảo dưỡng dự phòng sử dụng cho đường cất hạ cánh tiếp cận chính xác CAT II hoặc III phải đạt được mục tiêu là trong quá trình hoạt động tất cả các đèn đường cất hạ cánh và đèn tiếp cận CAT II hoặc III đều dùng được và trong mọi trường hợp tối thiểu:
a) 95% đèn phải sử dụng được từng bộ phận riêng biệt quan trọng trong các trường hợp hệ thống đèn tiếp cận chính xác CAT II và III, trong khoảng 450m; đèn tim đường cất hạ cánh; đèn ngưỡng đường cất hạ cánh; đèn lề đường cất hạ cánh;
b) 90% đèn phải sử dụng được ở vùng chạm bánh của tàu bay;
c) 85% đèn trong hệ thống đèn tiếp cận ngoài 450 m đầu tiên phải sử dụng được;
d) 75% đèn trong số đèn ở cuối đường cất hạ cánh phải sử dụng được;
đ) Để hướng dẫn tàu bay được liên tục, tỷ lệ cho phép đèn hỏng không được ảnh hưởng đến sơ đồ cơ bản của hệ thống đèn. Ngoài ra, không được có một đèn hỏng nằm cạnh một đèn hỏng khác trừ vị trí đèn dải ngang hay dải đèn đường ngang có thể cho phép hai đèn hỏng cạnh nhau.
8. Hệ thống bảo dưỡng phòng ngừa cho một dãy đèn dừng ở vị trí chờ đường cất hạ cánh dùng để nối với đường cất hạ cánh khai thác khi tầm nhìn trên đường cất hạ cánh nhỏ hơn 350 m phải đạt những mục tiêu sau đây:
a) Số đèn hỏng không quá 2;
b) Hai đèn kề nhau không được phép hỏng, trừ khi khoảng cách giữa hai đèn rất nhỏ so với khoảng cách quy định. Trường hợp hỏng 2 đèn kề nhau thì phải thay thế ngay.
9. Hệ thống bảo dưỡng dự phòng cho đường lăn khi tầm nhìn nhỏ hơn 350 m phải đạt mục tiêu không có hai đèn tim đường lăn hỏng cạnh nhau.
10. Hệ thống bảo dưỡng dự phòng cho đường cất hạ cánh tiếp cận chính xác CAT I phải đạt mục tiêu là trong quá trình hoạt động tiếp cận CAT I tất cả các đèn tiếp cận và đèn đường cất hạ cánh lúc nào cùng phải sử dụng được và trong mọi trường hợp ít nhất 85% số đèn phải sử dụng được trong từng khu vực sau:
a) Hệ thống đèn tiếp cận chính xác cấp 1;
b) Đèn ngưỡng đường cất hạ cánh;
c) Đèn lề đường cất hạ cánh;
d) Đèn cuối đường cất hạ cánh;
đ) Để đảm bảo dẫn đường tàu bay liên tục không được có một đèn hỏng nằm cạnh một đèn hỏng khác, trừ khi khoảng cách giữa hai đèn rất nhỏ so với khoảng cách quy định.
11. Hệ thống bảo dưỡng cho đường cất hạ cánh khi cất cánh ở tầm nhìn nhỏ hơn 550m phải đạt mục tiêu là trong các hoạt động tiếp cận tất cả đèn đường cất hạ cánh lúc nào cũng hoạt động và trong bất kỳ trường hợp nào:
a) Ít nhất 95% đèn tim đường cất hạ cánh (nơi có lắp đặt) và đèn lề đường cất hạ cánh phải hoạt động;
b) Ít nhất 75% số đèn cuối đường cất hạ cánh phải hoạt động;
c) Để đảm bảo dẫn đường tàu bay liên tục, không được có một đèn hỏng nằm cạnh một đèn hỏng khác.
12. Người khai thác cảng hàng không, sân bay phải thực hiện việc bảo dưỡng dự phòng cho đường cất hạ cánh cất cánh ở tầm nhìn trên đường cất hạ cánh là 550m hoặc lớn hơn sao cho khi tiếp cận tất cả các đèn đường cất hạ cánh đều hoạt động, ít nhất 85% đèn cuối đường và đèn lề đường cất hạ cánh cũng phải hoạt động. Để đảm bảo dẫn đường tàu bay liên tục, không được có hai đèn hỏng nằm cạnh nhau.
13. Trong thời gian giảm tầm nhìn, phải tránh xây dựng hoặc bảo dưỡng gần hệ thống điện sân bay.
PHỤ LỤC 1: Màu sắc cho đèn hàng không mặt đất, sơn tín hiệu, biển báo và bảng hiệu
1. Khái quát
Các quy định sau đây xác định những giới hạn về màu sắc cho các đèn hàng không mặt đất, sơn tín hiệu, biển báo và bảng hiệu. Các quy định này phù hợp với các quy định năm 1983 của Ủy ban chiếu sáng Quốc tế (CIE), ngoại trừ quy định màu cam trong hình A1-2.
Không thể quy định đến mức loại trừ triệt để khả năng nhầm lẫn màu sắc. Thực tế, điều quan trọng là độ sáng bằng mắt phải cao hơn hẳn ngưỡng nhận biết, màu sắc không bị biến đổi lớn bởi những tác động làm làm mờ của khí quyển và người quan sát phải có đủ thị lực phân biệt màu sắc. Cũng có thể có nguy cơ nhầm lẫn màu sắc khi độ sáng quá lớn ví dụ như nguồn sáng cường độ cao ở phạm vi quá gần.
Các màu sắc được biểu thị qua người quan sát mẫu và hệ tọa độ tiêu chuẩn được công nhận bởi CIE tại khoá thứ 8 ở Cambridge - Anh năm 1931.
Màu sắc cho ánh sáng trạng dạng khối (ví dụ: LED) được dựa trên các đường giới hạn được xác định trong tiêu chuẩn S 004 / E-2001 của Ủy ban Chiếu sáng Quốc tế (CIE), ngoại trừ đường giới hạn màu xanh lam của màu trắng.
2. Màu sắc cho đèn hàng không mặt đất
2.1. Màu sắc cho đèn có nguồn sáng dạng sợi đốt
2.1.1. Các màu sắc của các đèn hàng không mặt đất cơ nguồn sáng dạng sợi đốt phải nằm trong các giới hạn dưới đây
Các phương trình của CIE (Xem Hình A-1a).
a) Đỏ:
Giới hạn đỏ tía y = 0,980 - x
Giới hạn vàng y = 0,335, ngoại trừ hệ thống chỉ dẫn độ dốc tiếp cận bằng mắt
Giới hạn vàng y = 0,330, cho hệ thống chỉ dẫn độ dốc tiếp cận bằng mắt
b) Vàng:
Giới hạn đỏ y = 0,382
Giới hạn trắng y = 0,790 - 0,667x
Giới hạn xanh lục y = x - 0,120
c) Xanh lục:
Giới hạn vàng x = 0,360 - 0,080y
Giới hạn trắng x = 0,650y
Giới hạn xanh dương y = 0,390 - 0,171x
d) Xanh dương:
Giới hạn xanh lục y = 0,805x + 0,065
Giới hạn trắng y = 0,400 - x
Giới hạn đỏ tía x = 0,600y + 0,133
e) Trắng:
Giới hạn vàng x = 0,500
Giới hạn xanh dương x = 0,285
Giới hạn xanh lục y = 0,440 và y = 0,150 + 0,640x
Giới hạn đỏ tía y = 0,050 + 0,750x và y = 0,382
f) Trắng biến đổi:
Giới hạn vàng x = 0,225 + 0,750y và x = 1,185 - 1,500y
Giới hạn xanh dương x = 0,285
Giới hạn xanh lục y = 0,440 và y = 0,150 + 0,640x
Giới hạn đỏ tía y = 0,050 + 0,750x và y = 0,382
Ghi chú. Hướng dẫn về thay đổi màu sắc do ảnh hưởng của nhiệt độ được đưa ra trong Hướng dẫn thiết kế sân bay (Doc 9157), Phần 4.
2.1.2. Khi bị mờ hay khi những người quan sát có thị lực màu sắc kém muốn xác định được màu của đèn, thì các tín hiệu xanh lục ở trong những giới hạn sau đây:
Giới hạn vàng: y = 0,726 - 0,726x
Giới hạn trắng: x = 0,650y
Giới hạn xanh dương: y = 0,390 - 0,171x
Ghi chú: Trường hợp tín hiệu màu được nhìn thấy từ khoảng cách xa, việc sử dụng màu sắc trong ranh giới của mục 2.1.2 cần phải tiến hành thực tế
2.1.3. Khi độ cần độ tin cậy cao về nhận biết hơn là cự ly tầm nhìn tối đa, các tín hiệu xanh lục cần nằm trong những giới hạn sau:
Giới hạn vàng: y = 0,726 - 0,726x
Giới hạn trắng: x = 0,265y - 0,041
Giới hạn xanh dương: y = 0,390 - 0,171x
2.2. Phân biệt giữa các đèn có nguồn sáng dạng sợi đốt
2.2.1. Nếu có yêu cầu phân biệt màu vàng và trắng thì các màu này cần hiển thị gần nhau về thời gian và không gian, chẳng hạn được phát đi nhấp nháy liên tục từ một đèn mốc.
2.2.2. Nếu có yêu cầu phân biệt màu vàng với màu xanh lục và (hoặc) màu trắng chẳng hạn như các đèn trong đường tim đường lăn thoát thì tọa độ y của đèn vàng không quá 0,40.
Ghi chú: Các giới hạn của đèn trắng dựa trên giả định là chúng được sử dụng trong những điều kiện mà trong đó các đặc tính (nhiệt độ màu sắc) của đèn rất ổn định.
2.2.3. Màu trắng biến đổi được dùng riêng cho những đèn cần biến đổi về cường độ, chẳng hạn như để tránh chói mắt. Nếu như cần phân biệt với màu vàng thì các đèn được thiết kế và điều chỉnh sao cho:
a) Tọa độ "x" của đèn vàng ít nhất lớn hơn tọa độ "x" của đèn trắng là 0,05; và
b) Bố trí đèn sao cho các đèn vàng được sáng đồng thời và thật gần các đèn trắng.
2.3. Màu sắc cho đèn có nguồn sáng dạng khối
2.3.1. Màu sắc của đèn mặt đất hàng không có nguồn sáng dạng khối (như đèn LED) phải nằm trong đường giới dưới đây:
Các phương trình của CIE (Xem Hình A-1b).
a) Đỏ:
Giới hạn đỏ tía y = 0,980 - x
Giới hạn vàng y = 0,335, ngoại trừ hệ thống chỉ dẫn độ dốc tiếp cận bằng mắt
Giới hạn vàng y = 0,330, cho hệ thống chỉ dẫn độ dốc tiếp cận bằng mắt
b) Vàng:
Giới hạn đỏ y = 0,387
Giới hạn trắng y = 0,980 - x
Giới hạn xanh lục y = 0,727x - 0,054
c) Xanh lục (cũng được tham chiếu mục 2.3.2 và 2.3.3 của phụ lục):
Giới hạn vàng x = 0,310
Giới hạn trắng x = 0,625y - 0,041
Giới hạn xanh dương y = 0,400
d) Xanh dương:
Giới hạn xanh lục y = 1,141x + 0,037
Giới hạn trắng y = 0,400 - x
Giới hạn đỏ tía x = 590y + 0,134
đ) Trắng:
Giới hạn vàng x = 0,440
Giới hạn xanh dương x = 0,320
Giới hạn xanh lục y = 0,150 + 0,643x
Giới hạn đỏ tía y = 0,050 + 0,757x
e) Trắng biến đổi:
Giới hạn trắng biến đổi của ánh sáng có nguồn sáng dạng khối là các yêu cầu về màu trắng nhu mục e) bên trên.
2.3.2. Khi những người quan sát có thị lực màu sắc kém muốn xác định được màu của đèn, thì các tín hiệu xanh lục ở trong những giới hạn sau đây:
Giới hạn vàng: y = 0,726 - 0,726x
Giới hạn trắng: x = 0,650y - 0,041
Giới hạn xanh dương: y = 0,400
2.3.3. Khi độ cần độ tin cậy cao về nhận biết hơn là cự ly tầm nhìn tối đa, các tín hiệu xanh lục cần nằm trong những giới hạn sau:
Giới hạn vàng: y = 0,726 - 0,726x
Giới hạn trắng: x = 0,265y - 0,041
Giới hạn xanh dương: y = 0,390 - 0,171x
Để tránh sự thay đổi lớn của các sắc thái của màu xanh lục, nếu các màu trong các giới hạn bên dưới được chọn, thì các màu trong các giới hạn của mục
2.3.2 không nên được sử dụng.
Giới hạn vàng: y = 0,310
Giới hạn trắng: x = 0,265y - 0,041
Giới hạn xanh dương: y = 0,726 - 0,726x
2.4. Đo màu sắc cho các nguồn sáng dạng sợi đốt và dạng khối
2.4.1. Màu của đèn hàng không mặt đất phải nằm trong phạm vi giới hạn như trên Hình A1-1a hoặc A1-1b, việc đo màu sắc đèn thực hiện bằng cách đo 5 điểm trong giới hạn đường cong đẳng sáng (theo biểu đồ đường cong đẳng sáng ở Phụ lục 2) khi đèn hoạt động tại cường độ và hiệu điện thế định mức. Trong trường hợp đường đẳng sáng cong elip hoặc tròn, việc đo màu sắc phải thực hiện ở giữa và đường giới hạn nằm ngang và thẳng đứng. Trong trường hợp đường đẳng sáng hình chữ nhật, việc đo màu sắc phải được thực hiện tại điểm giữa và giới hạn đường chéo (góc). Hơn nữa, màu của đèn phải được kiểm tra ở điểm xa nhất của đường cong đẳng sáng để khẳng định rằng không có tia màu nào có thể làm phi công nhầm lẫn.
Ghi chú 1: Ở điểm xa nhất của đường cong đẳng sáng, số liệu đo tọa độ màu được cơ quan có thẩm quyền xem xét và phê duyệt.
Chi chú 2: Có thể sử dụng đèn sao cho phi công có thể nhìn thấy điểm xa nhất của đường cong đẳng sáng (đèn vạch dừng ở vị trí chờ đường CHC mở rộng). Số liệu đo tọa độ màu được cơ quan có thẩm quyền xem xét và phê duyệt. Trong các trường hợp như vậy, khi cần cơ quan có thẩm quyền sẽ kiểm tra tia màu trên miền góc xa nhất của đường cong.
2.4.2. Trong trường hợp chỉ dẫn độ dốc tiếp cận bằng mắt và các bộ đèn khác có miền chuyển tiếp màu thì màu cần được đo tại các điểm tương ứng mục 2.4.1, trừ phần màu riêng biệt và không có điểm ở trong phạm vi 0,5 độ của miền chuyển tiếp.
3. Màu sắc cho sơn tín hiệu, biển báo và bảng hiệu.
Ghi chú 1: Những quy định về màu sắc bề mặt dưới đây chỉ áp dụng cho những bề mặt mới sơn màu. Màu sắc dùng cho những sơn tín hiệu, biển báovà bảng hiệu thường thay đổi theo thời gian do đó cần được khôi phục.
Ghi chú 2: Chỉ dẫn màu sắc bề mặt được nêu trong tài liệu của CIE phần Khuyến nghị về các màu sắc bề mặt của tín hiệu nhìn bằng mắt - Ấn phẩm N039-2(TC-106) 1983.
Ghi chú 3: Các quy định được nêu ở A.3.4 dưới đây cho những bảng truyền sáng về bản chất chỉ là tạm thời và dựa trên các quy định của CIE về các tín hiệu truyền sáng. Các quy định này được kiểm tra lại và cập nhật khi CIE ban hành các quy định về bảng truyền sáng.
3.1. Các màu sắc và hệ số chiếu sáng của các màu thông thường, các màu sắc của các vật liệu phản quang và màu sắc của các tín hiệu và các bảng truyền sáng (chiếu sáng bên trong) được xác định theo những điều kiện tiêu chuẩn như sau:
a) Góc chiếu sáng: 45o.
b) Hướng nhìn: vuông góc với bề mặt; và
c) Độ chiếu sáng: độ chiếu sáng CIE tiêu chuẩn D65 .
3.2. Màu sắc và các hệ số chiếu sáng của các màu thông thường dùng cho sơn tín hiệu bề mặt cần nằm trong phạm vi các giới hạn sau đây khi được xác định trong những điều kiện tiêu chuẩn:
Các phương trình của CIE (xem Hình A1-2).
a) Màu đỏ:
Giới hạn đỏ tía: y = 0,345 - 0,051x
Giới hạn trắng: y = 0,910 - x
Giới hạn da cam: y = 0,314 + 0,047x
Hệ số chiếu sáng: β= 0,07 (mnm)
b) Màu da cam:
Giới hạn đỏ: y = 0,285 + 0,100x
Giới hạn trắng: y = 0,940 - x
Giới hạn vàng: y = 0,250 + 0,220x
Hệ số chiếu sáng: β = 0,20 (mnm)
c) Màu vàng:
Giới hạn da cam: y = 0,108 + 0,707x
Giới hạn trắng: y = 0,910 - x
Giới hạn xanh lục: y = 1,35x - 0,093
Hệ số chiếu sáng: β = 0,45 (mnm)
d) Màu trắng:
Giới hạn đỏ tía: y = 0,010 + x
Giới hạn xanh dương y = 0,610 - x
Giới hạn xanh lục: y = 0,030 + x
Giới hạn vàng: y = 0,710 - x
Hệ số chiếu sáng: β = 0,75(mnm)
đ) Màu đen:
Giới hạn đỏ tía: y = x - 0,030
Giới hạn xanh dương: y = 0,570 - x
Giới hạn xanh lục: y = 0,050 + x
Giới hạn vàng: y = 0,740 - x
Hệ số chiếu sáng: β = 0,03 (max)
e) Màu xanh lục pha vàng nhạt:
Giới hạn xanh lục: y = 1,317x + 0,4
Giới hạn trắng: y = 0,910 - x
Giới hạn vàng: y = 0,867x + 0,4
g) Màu xanh lục:
Giới hạn vàng: y = 0,313
Giới hạn trắng: y = 0,243 + 0,670x
Giới hạn xanh dương y = 0,493 -0,524 x
Hệ số chiếu sáng: β= 0,10(mnm)
Ghi chú: Do sự khác biệt quá nhỏ giữa bề mặt đỏ và bề mặt vàng da cam nên rất khó phân biệt các màu này.
3.3. Màu sắc và các hệ số chiếu sáng màu của các vật liệu phản quang dùng cho dấu hiệu bề mặt nằm trong phạm vi các đường biên sau đây khi được xác định trong các điều kiện tiêu chuẩn:
Các phương trình CIE (Xem A1-3).
a) Màu đỏ:
Giới hạn đỏ tía: y = 0,345 - 0,051x
Giới hạn trắng: y = 0,910 - x
Giới hạn da cam: y = 0,314 + 0,047x
Hệ số chiếu sáng: β = 0,03 (mnm)
b) Màu da cam:
Giới hạn đỏ: y = 0,265 + 0,205x
Giới hạn trắng: y = 0,910 - x
Giới hạn vàng: y = 0,207 + 0,390x
Hệ số chiếu sáng: β = 0,14 (mnm)
c) Màu vàng:
Giới hạn da cam: y = 0,160 + 0,540x
Giới hạn trắng: y = 0,910 - x
Giới hạn xanh lục: y = 1,35 - 0,093x
Hệ số chiếu sáng: β = 0,16 (mnm)
d) Màu trắng:
Giới hạn đỏ tía: y = x
Giới hạn xanh dương y = 0,610 - x
Giới hạn xanh lục: y = 0,040 + x
Giới hạn vàng: y = 0,710 - x
Hệ số chiếu sáng: β = 0,27 (mnm)
đ) Màu xanh dương:
Giới hạn xanh lục: y = 0,118 + 0,675x
Giới hạn trắng: y = 0,370 - x
Giới hạn đỏ tía: y = 1,65x - 0,187
Hệ số chiếu sáng: β = 0,01 (mnm) f,
e) Màu xanh lục:
Giới hạn vàng: y = 0,711 - 1,22x
Giới hạn trắng: y = 0,243 + 0,670x
Giới hạn xanh dương: y = 0,405 - 0,243x
Hệ số chiếu sáng: β = 0,03 (mnm)
3.4. Màu sắc và các hệ số chiếu sáng của các màu dùng cho các dấu hiệu và bảng truyền sáng (chiếu sáng bên trong) nằm trong phạm vi các đường biên khi được xác định trong các điều kiện tiêu chuẩn dưới đây.
Các phương trình CIE (Xem A1-4).
a) Màu đỏ:
Giới hạn đỏ tía: y = 0,345 - 0,051x
Giới hạn trắng: y = 0,910 - x
Giới hạn da cam: y = 0,314 + 0,047x
Hệ số chiếu sáng (ban ngày): β = 0,07 (mnm)
Độ sáng so với màu trắng (ban đêm): 5% (mnm) 20% (max)
b) Màu vàng:
Giới hạn da cam: y = 0,108 + 0,707x
Giới hạn trắng: y = 0,910 - x
Giới hạn xanh lục: y = 1,35x - 0,093
Hệ số chiếu sáng (ban ngày): β = 0,45 (mnm)
Độ sáng so với màu trắng (ban đêm): 30% (mnm) 80% (max)
c) Màu trắng:
Giới hạn đỏ tía: y = 0,010 + x
Giới hạn xanh dương: y = 0,610 - x
Giới hạn xanh lục: y = 0,030 + x
Giới hạn vàng: y = 0,710 - x
Hệ số chiếu sáng (ban ngày): β = 0,75 (mnm)
Độ sáng so với màu trắng (ban đêm): 100%
d) Màu đen:
Giới hạn đỏ tía: y = x - 0,030
Giới hạn xanh dương: y = 0,570 - x
Giới hạn xanh lục: y = 0,050 + x
Giới hạn vàng: y = 0,740 - x
Hệ số chiếu sáng (ban ngày): β = 0,03 (max)
Độ sáng so với màu trắng (ban đêm): 0% (mnm) 2% (max)
đ) Màu xanh lục:
Giới hạn vàng: y = 0,313
Giới hạn trắng: y = 0,243 + 0,670x
Giới hạn xanh dương y = 0,493 -0,524x
Hệ số chiếu sáng: β = 0,10(mnm) (ban ngày)
Độ sáng so với màu trắng (ban đêm): 5% (mnm) 30% (max)

Hình A1-1a Màu sắc của đèn hàng không mặt đất (nguồn sáng sợi đốt)

Hình A1-1b Màu sắc của đèn hàng không mặt đất (nguồn sáng dạng khối)

Hình A1-2 Các màu sắc thông thường để đánh dấu và chiếu sáng cho biển báo và bảng hiệu

Hình A1-3 Màu sắc các vật liệu phản quang để sơn tín hiệu, biển báo và bảng hiệu

Hình A1-4 Màu sắc của biển báo và bảng hiệu truyền sáng (chiếu sáng trong)
PHỤ LỤC 2: Các đặc tính đèn hàng không mặt đất

Ghi chú:
1. Các đường cong được tính theo công thức:

|
a |
10 |
14 |
15 |
|
b |
5,5 |
6,5 |
8,5 |
2. Góc đứng của đèn tạo thành các chùm tia đứng chính có giới hạn như sau:
|
Khoảng cách tính từ ngưỡng |
Các giá trị góc chùm tia giới hạn chính |
|
Từ ngưỡng tới 315 m 316 m - 475 m 476 m - 640 m 641m và xa hơn |
0° - 11° 0,5°- 11,5° 1,5° - 12,5° 2,5° - 13,5° (minh hoạ ở hình trên) |
3. Các đèn cánh ngang ở ngoài phạm vi 22,5m tính từ tim đường có độ chụm 2°. Tất cả các đèn được bố trí song song với đường tim của đường CHC.
4. Xem các ghi chú cho các Hình A2-1 đến Hình A2-11 và A2-26.
Hình A2-1. Biểu đồ đẳng sáng cho đèn tim đường tiếp cận và đèn cánh ngang (đèn trắng)

Ghi chú:
1. Các đường cong được tính toán theo công thức:

|
a |
7,0 |
11,5 |
16,5 |
|
b |
5,0 |
6,0 |
8,0 |
2. Độ chụm 2°.
3. Góc đứng của đèn tạo thành các chùm tia đứng chính có giới hạn như sau:
|
Khoảng cách tính từ ngưỡng |
Các giá trị góc chùm tia giới hạn chính |
|
Từ ngưỡng tới 115 m 116 m - 215 m 216m và xa hơn |
0,5° - 10,5° 1° - 11° 1,5° - 11,5° (minh hoạ ở hình trên) |
4. Xem các ghi chú cho các Hình A2-1 đến Hình A2-11 và A2-26.
Hình A2-2. Biểu đồ đẳng sáng cho đèn tiếp cận (đèn đỏ)

Ghi chú:
1. Các đường cong được tính toán theo công thức:

|
a |
5,5 |
7,5 |
9,0 |
|
b |
4,5 |
6,0 |
8,5 |
2. Độ chụm 3,5°.
3. Xem các ghi chú cho các Hình A2-1 đến Hình A2-11 và A2-26.
Hình A2-3. Biểu đồ đẳng sáng cho đèn ngưỡng (đèn màu xanh lục)

Ghi chú:
1. Các đường cong được tính toán theo công thức:

|
a |
7,0 |
11,5 |
16,5 |
|
b |
5,0 |
6,0 |
8,0 |
2. Độ chụm 20.
3. Xem các ghi chú cho các Hình A2-1 đến Hình A2-11 và A2-26.
Hình A2-4. Biểu đồ đường cong đẳng sáng cho đèn cánh ở ngưỡng (đèn xanh lục)

Ghi chú:
1. Các đường cong được tính toán theo công thức:

|
a |
5,0 |
7,0 |
8,5 |
|
b |
3,5 |
6,0 |
8,5 |
2. Độ chụm 4°.
3. Xem các ghi chú cho các Hình A2-1 đến Hình A2-11 và A2-26.
Hình A2-5. Biểu đồ đẳng sáng cho đèn vùng chạm bánh (đèn trắng)

Ghi chú:
1. Các đường cong được tính toán theo công thức:

|
a |
5,0 |
7,0 |
8,5 |
|
b |
3,5 |
6,0 |
8,5 |
2. Đối với đèn đỏ nhân các giá trị với 0,15.
3. Đối với đèn vàng nhân các giá trị với 0,04.
4. Xem các ghi chú cho các Hình A2-1 đến Hình A2-11 và A2-26.
Hình A2-6. Biểu đồ đẳng sáng cho đèn tim đường CHC với khoảng cách dọc 30 m (đèn trắng) và đèn nhận biết đường lăn thoát nhanh (đèn vàng)

Ghi chú:
1. Các đường cong được tính toán theo công thức:

|
a |
5,0 |
7,0 |
8,5 |
|
b |
4,5 |
8,5 |
10,0 |
2. Đối với đèn đỏ nhân các giá trị với 0,15.
3. Đối với đèn vàng nhân các giá trị với 0,40.
4. Xem các ghi chú cho các Hình A2-1 đến Hình A2-11 và A2-26.
Hình A2-7. Biểu đồ đẳng sáng cho đèn tim đường CHC với khoảng cách dọc 15m (đèn trắng) và đèn nhận biết đường lăn thoát nhanh (đèn vàng)

Ghi chú:
1. Các đường cong được tính toán theo công thức:

|
a |
6,0 |
7,6 |
9,0 |
|
b |
2,25 |
5,0 |
6,5 |
2. Xem các ghi chú cho các Hình A2-1 đến Hình A2-11 và A2-26.
Hình A2-8. Biểu đồ đẳng sáng cho đèn cuối đường CHC (đèn đỏ)

Ghi chú:
1. Các đường cong được tính toán theo công thức:

|
a |
5,5 |
7,5 |
9,0 |
|
b |
3,5 |
6,0 |
8,5 |
2. Độ chụm 3,50.
3. Với đèn đỏ nhân các giá trị với 0,15.
4. Với đèn vàng nhân các giá trị với 0,4.
5. Xem các ghi chú cho các Hình A2-1 đến Hình A2-11 và A2-26.
Hình A2-9. Biểu đồ đẳng sáng cho đèn lề đường CHC khi chiều rộng đường CHC là 45 m (đèn trắng)

Ghi chú:
1. Các đường cong được tính toán theo công thức:

|
a |
6,5 |
8,5 |
10,0 |
|
b |
3,5 |
6,0 |
8,5 |
2. Độ chụm 4,50.
3. Với đèn đỏ nhân các giá trị với 0,15.
4. Đối với đèn vàng nhân các giá trị với 0,4.
5. Xem các ghi chú cho các Hình A2-1 đến Hình A2-11 và A2-26.
Hình A2-10. Biểu đồ đẳng sáng cho đèn lề đường CHC khi chiều rộng đường CHC là 60 m (đèn trắng)

Hình A2-11. Lưới điểm trên biểu đồ dùng để tính cường độ trung bình của đèn tiếp cận và đèn đường CHC
Ghi chú chung cho các Hình từ A2-1 đến A2-11 và A2-26:
1. Các đường elíp trên mỗi hình vẽ đối xứng nhau qua hệ trục tọa độ chung đứng và ngang.
2. Các Hình từ A2-1 đến A2-10 cũng như A2-26 cho biết cường độ sáng tối thiểu có thể chấp nhận. Cường độ trung bình của tia sáng chính được tính toán bằng các điểm lưới tọa độ xác định trên Hình A2-11 và việc sử dụng những giá trị cường độ tại tất cả các điểm của lưới ô vuông được đo trong phạm vi và trên biên các đường elip tương ứng của tia sáng chính. Giá trị trung bình là giá trị trung bình số học của các cường độ sáng đo tại tất cả các điểm tọa độ lưới.
3. Không được có sai lệch nào trong mô hình chùm tia sáng chính khi bộ đèn được đặt đúng.
4. Tỷ lệ cường độ sáng trung bình. Tỷ lệ giữa cường độ trung bình trong phạm vi đường elip xác định chùm tia chính của một đèn mới điển hình và cường độ trung bình của chùm tia chính của một đèn mới ở cạnh đường CHC như sau:
|
Hình A2-1 |
Đèn tim tiếp cận và đèn cánh ngang |
1,5 - 2,0 (Đèn trắng) |
|
Hình A2-2 |
Đèn khu vực tiếp cận |
0,5 - 1,0 (Đèn đỏ) |
|
Hình A2-3 |
Đèn ngưỡng |
1,0 - 1,5 (Đèn xanh lục) |
|
Hình A2-4 |
Đèn cánh ngưỡng |
1,0 - 1,5 (Đèn xanh lục) |
|
Hình A2-5 |
Đèn vùng chạm bánh |
0,5 - 1,0 (Đèn trắng) |
|
Hình A2-6 |
Đèn tim đường CHC (khoảng phân cách dọc 30 m) |
0,5 - 1,0 (Đèn trắng) |
|
Hình A2-7 |
Đèn tim đường CHC (khoảng phân cách dọc 15 m) |
0,5 - 1,0 cho CAT III (Đèn trắng) |
|
|
|
0,25 - 0,5 cho CAT I, II (Đèn trắng) |
|
Hình A2-8 |
Đèn cuối đường CHC |
0,25 - 0,5 (Đèn đỏ) |
|
Hình A2-9 |
Đèn lề đường CHC (chiều rộng đường CHC 45 m) |
1,0 (Đèn trắng) |
|
Hình A2-10 |
Đèn lề đường CHC (chiều rộng đường CHC 60 m) |
1,0 (Đèn trắng) |
5. Xác định phạm vi giới hạn trên các hình vẽ nhằm chỉ dẫn cho tiếp cận hạ cánh với tầm nhìn đường CHC RVR khoảng 150 m và cất cánh với tầm nhìn đường CHC RVR khoảng 100 m.
6. Các góc ngang được xác định so với mặt phẳng đứng đi qua tim đường CHC. Đối với các đèn không phải là đèn tim, hướng về phía tim đường CHC được coi là dương. Các góc đứng được xác định so với mặt phẳng nằm ngang.
7. Tại nơi có các đèn tim tiếp cận và dãy đèn ngang và đèn khu vực tiếp cận thì có thể dùng các đèn tăng cường chôn ngầm thay thế cho đèn nhô cao để tăng độ chiếu sáng, ví dụ, trên đường CHC có ngưỡng dịch chuyển, cần tăng cường độ chiếu sáng bằng cách lắp đặt thêm 2 hoặc 3 đèn bổ sung (với cường độ chiếu sáng yếu hơn) cho mỗi một vị trí.
8. Việc bảo dưỡng chưa phải đã là quan trọng nhất. Cường độ trung bình không được thấp hơn 50% so với cường độ tối thiểu đã chỉ ra trên các hình vẽ và đó chính là mục tiêu mà Nhà khai thác cảng hàng không phải duy trì để độ chiếu sáng gần bằng cường độ trung bình nhỏ nhất qui định.
9. Một bộ đèn được lắp đặt sao cho tia chính được nằm trong khoảng 1/2 độ so với yêu cầu.

Ghi chú:
1. Các đường bao những chùm tia này cho phép dịch chuyển cabin khỏi tim đường CHC trong khoảng 12 m và được sử dụng trước và sau đường cong.
2. Xem tập hợp ghi chú chung cho các Hình A2-12 đến Hình A2-21.
3. Tăng cường độ cho đèn tim đường lăn thoát nhanh bổ sung bằng bốn lần cường độ tương ứng trên hình vẽ (tức là 800cd cho tia trung bình tối thiểu).
Hình A2-12. Biểu đồ đẳng sáng cho hệ thống đèn tim đường lăn (cách nhau 15 m) đèn lối vào đường CHC (RELs), đèn cấm vào, và vạch đèn dừng trên các đoạn thẳng dùng cho tầm nhìn trên đường CHC dưới 350 m khi cho phép sai lệnh lớn và các đèn bảo vệ đường CHC cường độ thấp, dạng B

Ghi chú:
1. Các đường bao những chùm tia này cho phép di chuyển an toàn cabin khỏi tim đường trong khoảng 3 m.
2. Xem tập hợp ghi chú chung cho các Hình A2-12 đến Hình A2-21.
Hình A2-13. Biểu đồ đẳng sáng cho hệ thống đèn tim đường lăn (cách nhau 15 m), đèn cấm vào và đèn vạch dừng trên các đoạn thẳng dùng cho tầm nhìn đường CHC dưới 350 m

Ghi chú:
1. Các đèn trên đường cong có độ chụm 15,750 so với tiếp tuyến của đường cong.
2. Xem tập hợp ghi chú chung cho các Hình A2-12 đến Hình A2-21.
Hình A2-14. Biểu đồ đẳng sáng cho hệ thống đèn tim đường lăn (cách nhau 7,5 m) và đèn vạch dừng trên đường cong được sử dụng cho tầm nhìn trên đường CHC dưới 350 m

Ghi chú:
1. Tại những khu vực mà độ sáng phông nền thường cao và hiệu quả chiếu sáng bị giảm đi bởi các điều kiện sương mù, mưa hoặc điều kiện khu vực, cường độ chiếu sáng phải tăng lên 2,5 lần.
2. Ở những nơi có các đèn đa hướng thì chúng phải tuân thủ theo các yêu cầu về chum tia sáng đứng trên hình.
3. Xem tập hợp ghi chú chung cho các Hình A2-12 đến Hình A2-21.
Hình A2-15. Biểu đồ cường độ chiếu sáng cho đèn tim đường lăn (khoảng cách 30 m, 60 m), đèn cấm vào và đèn vạch dừng trên đoạn thẳng sử dụng cho điều kiện tầm nhìn trên đường CHC 350 m hoặc lớn hơn

Ghi chú:
1. Các đèn trên đường cong có độ chụm 15,750 so với tiếp tuyến của đường cong.
2. Tại những khu vực mà độ sáng phông nền thường cao và hiệu quả chiếu sáng bị giảm đi bởi các điều kiện sương mù, mưa hoặc điều kiện khu vực, cường độ chiếu sáng phải tăng lên 2,5 lần.
3. Các đường bao những chùm tia này cho phép dịch chuyển cabin khỏi tim đường CHC trong khoảng 12 m và được sử dụng cho cuối đường cong.
4. Xem tập hợp ghi chú chung cho các Hình A2-12 đến Hình A2-21.
Hình A2-16. Biểu đồ cường độ chiếu sáng cho hệ thống đèn tim đường lăn (khoảng cách 7,5 m, 15 m, 30 m), đèn cấm vào và đèn dừng trên đường thẳng cho tầm nhìn trên đường CHC 350 m hoặc lớn hơn

|
Đường cong |
a |
b |
c |
d |
e |
|
Cường độ, (cd) |
8 |
20 |
100 |
450 |
1800 |
Ghi chú:
1. Các đường bao những chùm tia này cho phép dịch chuyển cabin khỏi tim đường CHC trong khoảng 12 m và được sử dụng trước và sau đường cong.
2. Xem tập hợp ghi chú chung cho các Hình A2-12 đến Hình A2-21.
Hình A2-17. Biểu đồ đẳng sáng cho đèn tim đường lăn cường độ cao (khoảng cách 15m) và đèn vạch dừng trên đoạn thẳng nhằm chỉ dẫn cho chuyển động bề mặt và hệ thống kiểm soát ở nơi cần cường độ chiếu sáng cao hơn

|
Đường cong |
a |
b |
c |
d |
e |
|
Cường độ |
8 |
20 |
100 |
450 |
1800 |
Ghi chú:
1. Các đường bao những chùm tia này cho phép dịch chuyển cabin về phía bánh xe ngoài an toàn trên mép đường lăn.
2. Xem tập hợp ghi chú chung cho các Hình A2-12 đến Hình A2-21.
Hình A2-18. Biểu đồ đẳng sáng cho đèn tim đường lăn cường độ cao (khoảng cách 15m), đèn cấm vào và đèn thanh sáng dừng trên đoạn thẳng nhằm chỉ dẫn cho chuyển động bề mặt và hệ thống kiểm tra ở nơi cần cường độ chiếu sáng cao hơn

|
Đường cong |
a |
b |
c |
d |
|
Cường độ (cd) |
8 |
100 |
200 |
400 |
Ghi chú:
1. Các đèn trên dường cong cho góc tụ 17 độ so với tiếp tuyến của đường cong.
2. Xem tập hợp ghi chú chung cho các Hình A2-12 đến Hình A2-21.
Hình A2-19. Biểu đồ đẳng sáng cho đèn tim đường lăn cường độ cao (khoảng cách 7,5m), đèn cấm vào và đèn thanh sáng dừng trên đoạn thẳng nhằm chỉ dẫn cho chuyển động bề mặt và hệ thống kiểm tra ở nơi cần cường độ chiếu sáng cao hơn

Ghi chú:
1. Khi đèn chớp hoạt động bình thường, cường độ chiếu sáng phải đảm bảo như đèn cao áp sáng liên tục.
2. Xem tập hợp ghi chú chung cho các Hình A2-12 đến Hình A2-21.
Hình A2-20. Biểu đồ đẳng sáng đèn bảo vệ đường CHC cường độ cao, Dạng B

Hình A2-21. Biểu đồ ô vuông đường đẳng sáng sử dụng cho tính toán cường độ trung bình của đèn tim đường lăn và đèn vạch dừng
Tập hợp ghi chú chung cho các Hình vẽ từ A2-12 đến A2-21.
1. Cường độ xác định trong các Hình vẽ từ A2-12 đến A2-20 là đèn màu xanh lục và màu vàng cho đèn tim đường lăn, màu vàng cho đèn bảo vệ đường CHC và đèn màu đỏ cho đèn vạch dừng.
2. Các Hình vẽ từ A2-12 đến A2-20 cho biết cường độ chiếu sáng nhỏ nhất của đèn cho phép. Cường độ trung bình của các tia sáng chính trên lưới ô vuông xác định như trên Hình A2-21 và giá trị của các đường trung bình này được đo tại mọi điểm tọa độ trong và trên chu vi của hình chữ nhật của chùm tia chính. Các giá trị trung bình là giá trị trung bình số học của các cường độ chiếu sáng đo tại mọi tọa độ.
3. Không được có sai số trong đường giới hạn của các chùm tia chính hoặc chùm tia trong cùng nếu đèn chiếu đúng hướng.
4. Các góc ngang được xác định so với mặt phẳng đứng đi qua tim đường lăn trừ trên đoạn cong được xác định so với tiếp tuyến của đường cong.
5. Các góc đứng xác định theo độ dốc dọc của bề mặt đường lăn.
6. Việc bảo dưỡng chưa phải đã là quan trọng nhất. Cường độ trung bình không được thấp hơn 50% so với cường độ tối thiểu đã chỉ ra trên các hình vẽ và đó chính là mục tiêu mà Nhà khai thác cảng hàng không phải duy trì để độ chiếu sáng gần bằng cường độ trung bình nhỏ nhất qui định.
7. Các đèn sẽ được lắp đặt sao cho các tia sáng chính hoặc chùm tia trong cùng phù hợp phải thẳng hàng trong giới hạn 1/2 độ yêu cầu.

Hình A2-22. Phân bố cường độ chiếu sáng của T-VASIS và AT-VASIS

Ghi chú:
1. Các đường cong này dùng cho cường độ tối thiểu màu đỏ
2. Giá trị cường độ ở miền chùm tia trắng không nhỏ hơn 2 và có thể cao tới 6,5 lần cường độ tương ứng ở miền đỏ.
3. Giá trị cường độ ở trong ngoặc là cho APAPI
Hình A2-23. Phân bố cường độ chiếu sáng của PAPI và APAPI

Ghi chú
1. Khi đèn chớp hoạt động bình thường, cường độ chiếu sáng phải đảm bảo như đèn cao áp sáng liên tục
2. Đèn tín hiệu quy định màu vàng
Hình A2-24. Biểu đồ đẳng sáng cho đèn bảo vệ đường CHC cường độ thấp, dạng A

Ghi chú:
1. Khi đèn chớp hoạt động bình thường, cường độ chiếu sáng phải đảm bảo như đèn cao áp sáng liên tục
2. Đèn tín hiệu quy định màu vàng
Hình A2-25. Biểu đồ đẳng sáng của đèn bảo vệ đường CHC cường độ cao, dạng A

Ghi chú:
1. Các đường cong được tính toán theo công thức:

|
a |
5,0 |
7,0 |
|
b |
4,5 |
8,5 |
2. Xem các ghi chú cho các Hình A2-1 đến Hình A2-11 và A2-26.
Hình A2-26 Biểu đồ đẳng sáng cho đèn chờ cất cánh (THL) (đèn đỏ)
PHỤ LỤC 3: Vị trí đèn trên chướng ngại vật

Ghi chú.- Đèn chiếu sáng CNV cường độ cao được đặt ở độ cao trên 150m so với mặt đất. Nếu sử dụng đèn cường độ trung bình thì cần sơn tín hiệu.
Hình A5-1. Hệ thống đèn chiếu sáng CNV chớp sáng trắng cường độ trung bình, Loại A

Ghi chú- Chỉ sử dụng ban đêm.
Hình A5-2. Hệ thống đèn cảnh báo CNV chớp sáng đỏ cường độ trung bình, Loại B

Ghi chú.- Chỉ sử dụng ban đêm.
Hình A5-3. Hệ thống đèn cảnh báo CNV đỏ cường độ trung bình sáng liên tục, Loại C

Ghi chú: Đèn chiếu sáng CNV cường độ cao được đặt ở độ cao trên 150m so với mặt đất. Nếu sử dụng đèn cường độ trung bình thì cần sơn tín hiệu.
Hình A5-4. Hệ thống đèn cảnh báo CNV kép cường độ trung bình, Loại A/ Loại B

Ghi chú: Đèn chiếu sáng CNV cường độ cao được đặt ở độ cao trên 150m so với mặt đất. Nếu sử dụng đèn cường độ trung bình thì cần sơn tín hiệu.
Hình A5-5. Hệ thống đèn cảnh báo CNV kép cường độ trung bình, Loại A/ Loại C

Hình A5-6. Hệ thống đèn cảnh báo CNV chớp sáng trắng, Loại A

Hình A5-7. Hệ thống đèn cảnh báo CNV kép cường độ cao/ trung bình, Loại A/Loại B

Hình A5-8. Hệ thống đèn cường độ cao/ trung bình cảnh báo CNV kép, Loại A/Loại C
PHỤ LỤC 4. Yêu cầu thiết kế các biển báo chỉ dẫn lăn
Ghi chú: Xem Phụ lục C yêu cầu kỹ thuật về việc áp dụng, vị trí và đặc tính biển báo
1. Độ cao biển báo phù hợp với bảng sau đây:
|
Mã số đường CHC |
Độ cao nhỏ nhất của biển báo |
||
|
Biển báo chỉ dẫn bắt buộc |
Biển báo thông tin |
||
|
Biển báo cửa ra đường CHC và các biển báo đường CHC trống |
Biển báo khác |
||
|
1 hoặc 2 3 hoặc 4 |
300 mm 400 mm |
300 mm 400 mm |
200 mm 300 mm |
CHÚ THÍCH: ở những chỗ biển báo vị trí đường lăn được lắp đặt kết hợp với biển báo đường CHC, kích cỡ ký tự được xác định theo biển báo chỉ dẫn bắt buộc.
2. Kích thước mũi tên như sau:
|
Chiều cao ký tự |
Độ đậm |
|
200 mm 300 mm 400 mm |
32 mm 48 mm 64 mm |
3. Bề rộng khoảng trống giữa các chữ cái đơn như sau:
|
Chiều cao ký tự |
Độ đậm |
|
200 mm 300 mm 400 mm |
32 mm 48 mm 64 mm |
4. Chiếu sáng biển báo như sau:
a) Khi tàu bay hoạt động ở tầm nhìn trên đường CHC nhỏ hơn 800 m, độ sáng trung bình tối thiểu như sau:
|
Màu đỏ Màu vàng Màu trắng |
30 cd/m2 150 cd/ m2 300 cd/ m2 |
b) Khi các hoạt động tàu bay theo C.1.7 b) và c) và C.1.8, độ sáng trung bình tối thiểu như sau:
|
Màu đỏ Màu vàng Màu trắng |
10 cd/m2 50 cd/ m2 100 cd/ m2 |
Ghi chú: Khi điều kiện tầm nhìn trên đường CHC nhỏ hơn 400 m các ký tự khó phân biệt hơn
5. Tỷ lệ ánh sáng giữa màu đỏ và màu trắng của biển báo bắt buộc sẽ ở trong khoảng 1:5 và 1:10.
6. Độ chiếu sáng trung bình biển báo được tính toán theo các điểm lưới như Hình A4-1 và sử dụng độ sáng đo tại tất cả các điểm trong phạm vi lưới ô vuông của ký tự.
7. Giá trị trung bình là giá trị trung bình cộng của tất cả các giá trị độ sáng ở mọi điểm của lưới.
8. Tỷ lệ giữa các giá trị độ sáng của các điểm cạnh nhau trên luới không được vượt quá 1,5:1. Đối với các khu vực trên bề mặt biển báo khi khoảng cách luới là 7,5 cm, tỷ lệ giữa các giá trị độ sáng của các điểm cạnh nhau trên luới không được vượt quá 1,25:1. Tỷ lệ giữa giá trị độ sáng lớn nhất và nhỏ nhất trên toàn bộ bề mặt biển báo không được vượt quá 5:1.
9. Hình dạng ký tự tức là chữ, số, mũi tên và các biểu tượng, phù hợp theo hướng dẫn trên Hình A4-2. Chiều rộng của các ký tự và khoảng trống giữa các ký tự riêng lẻ được xác định như trong Bảng A4-1.
10. Chiều cao của ký tự như sau:
|
Chiều cao ký tự |
Chiều cao mặt biển báo (tối thiểu) |
|
200 mm 300 mm 400 mm |
300 mm 450 mm 600 mm |
11. Độ rộng mặt biển báo được xác định theo Hình A4-4, trừ khi biển báo chỉ dẫn bắt buộc chỉ đặt ở một phía đường lăn thì độ rộng bề mặt không được nhỏ hơn:
a) 1,94 m khi mã số là 3 hoặc 4; và.
b) 1,46 m khi mã số là 1 hoặc 2
Ghi chú. Hướng dẫn bổ sung về việc xác định chiều rộng của mặt biển báo có trong Hướng dẫn thiết kế sân bay (Doc 9157), Phần 4.
12. Đường viền
a) Vạch thẳng đứng màu đen phân cách những ký hiệu chỉ hướng cạnh nhau rộng bằng 0,7 độ rộng chỗ ngắt quãng.
b) Ký hiệu đường viền màu vàng trên biển báo vị trí đứng một mình rộng bằng 0,5 độ rộng chỗ ngắt quãng.
13. Màu của biển báo phải phù hợp với chi tiết kỹ thuật tương ứng trong Phụ lục A.

Ghi chú 1: Độ chiếu sáng trung bình của biển báo được tính bằng cách xác định các điểm lưới của ký tự trên bề mặt biển báo và màu nền tương ứng ( màu đỏ đối với biển báo bắt buộc và màu vàng đối với biển báo chỉ hướng và ký tự) như sau:
a) Xuất phát từ góc trên bên trái của bề mặt biển báo, xác định điểm lưới của đường kẻ ô 7,5 cm từ mép trái và phần trên của biển báo.
b) Kẻ lưới cách 15 cm theo chiều ngang và đứng kể từ điểm chuẩn đường kẻ ô. Loại bỏ các điểm bên trong 7,5 cm đường kẻ ô từ mép của biển báo .
c) Ở điểm cuối cùng trên hàng/cột của các điểm lưới kẻ ô giữa 22,5 cm và 15 cm từ mép của mặt biển báo (nhưng không bao gồm), thêm điểm cách điểm này 7,5 cm.
d) Ở điểm lưới trên ranh giới của ký tự và nền, điểm lưới được dịch chuyển chút ít ra ngoài ký tự.
Ghi chú 2: Các điểm lưới kẻ thêm phải đảm bảo cho mỗi ký tự chiếm 5 khoảng trống của lưới.
Ghi chú 3: Khi một biển báo bao gồm 2 loại ký hiệu thì phải lập lưới riêng cho từng loại.
Hình A4-1. Lưới kẻ ô để tính độ chiếu sáng trung bình của biển báo

Hình A4-2. Mẫu chữ

Hình A4-2. (tiếp theo 1)

Hình A4-2. (tiếp theo 2)

Hình A4-2. (tiếp theo 3)

Hình A4-2. (tiếp theo 4)
|
|
CHÚ THÍCH 1.- Chiều rộng mũi tên, đường kính dấu chấm, chiều rộng và dài dấu gạch ngang có tỷ lệ như chiều rộng chữ CHÚ THÍCH 2.- Kích thước mũi tên không đổi đối với kích thước biển báo cụ thể, không phụ thuộc vào hướng. |
|
A- Mũi tên, dấu chấm và dấu gạch ngang. |
|
Hình A4-2. (tiếp theo 5)

Biển báo đường CHC trống (có biển báo ký hiệu vị trí)

Biển báo cấm
Hình A4-3: Biển báo đường CHC trống và biển báo cấm

Ghi chú: H là viết tắt của chiều cao dòng chữ
Hình A4-4. Kích thước biển báo
Bảng A4-1. Độ rộng của chữ, số và khoảng trống giữa các chữ hoặc số.
|
a) Mã số từ chữ đến chữ |
|||
|
Chữ cái trước |
Chữ cái tiếp theo |
||
|
B, D, E, F, H, I, K, L, M, N, P, R, U |
C, G, O, Q, S, X, Z |
A, J, T, V, W, Y |
|
|
Mã số |
|||
|
A |
2 |
2 |
4 |
|
B |
1 |
2 |
2 |
|
C |
2 |
2 |
3 |
|
D |
1 |
2 |
2 |
|
E |
2 |
2 |
3 |
|
F |
2 |
2 |
3 |
|
G |
1 |
2 |
2 |
|
H |
1 |
1 |
2 |
|
I |
1 |
1 |
2 |
|
J |
1 |
1 |
2 |
|
K |
2 |
2 |
3 |
|
L |
2 |
2 |
4 |
|
M |
1 |
1 |
2 |
|
N |
1 |
1 |
2 |
|
O |
1 |
2 |
2 |
|
P |
1 |
2 |
2 |
|
Q |
1 |
2 |
2 |
|
R |
1 |
2 |
2 |
|
S |
1 |
2 |
2 |
|
T |
2 |
2 |
4 |
|
U |
1 |
1 |
2 |
|
V |
2 |
2 |
4 |
|
W |
2 |
2 |
4 |
|
X |
2 |
2 |
3 |
|
Y |
2 |
2 |
4 |
|
Z |
2 |
2 |
3 |
Bảng A4-1. (Tiếp theo 1)
|
b) Mã số từ số đến số |
|||||||
|
Số trước |
Số tiếp theo |
||||||
|
1, 5 |
2, 3, 6, 8, 9, 0 |
4, 7 |
|||||
|
Mã số |
|||||||
|
1 |
1 |
1 |
2 |
||||
|
2 |
1 |
2 |
2 |
||||
|
3 |
1 |
2 |
2 |
||||
|
4 |
2 |
2 |
4 |
||||
|
5 |
1 |
2 |
2 |
||||
|
6 |
1 |
2 |
2 |
||||
|
7 |
2 |
2 |
4 |
||||
|
8 |
1 |
2 |
2 |
||||
|
9 |
1 |
2 |
2 |
||||
|
0 |
1 |
2 |
2 |
||||
|
c) Khoảng trống giữa các ký tự |
|||||||
|
Mã số |
Chiều cao của chữ cái (mm) |
||||||
|
200 |
300 |
400 |
|||||
|
Khoảng trống (mm) |
|||||||
|
1 |
48 |
71 |
96 |
||||
|
2 |
38 |
57 |
76 |
||||
|
3 |
25 |
38 |
50 |
||||
|
4 |
13 |
19 |
26 |
||||
|
d) Độ rộng của chữ cái |
|||||||
|
Chữ cái |
Chiều cao của chữ cái (mm) |
||||||
|
200 |
300 |
400 |
|||||
|
Chiều rộng (mm) |
|||||||
|
A |
170 |
255 |
340 |
||||
|
B |
137 |
205 |
274 |
||||
|
C |
137 |
205 |
274 |
||||
|
D |
137 |
205 |
274 |
||||
|
E |
124 |
186 |
248 |
||||
|
F |
124 |
186 |
248 |
||||
|
G |
137 |
205 |
274 |
||||
|
H |
137 |
205 |
274 |
||||
|
I |
32 |
48 |
64 |
||||
|
J |
127 |
190 |
254 |
||||
|
K |
140 |
210 |
280 |
||||
|
L |
124 |
186 |
248 |
||||
|
M |
157 |
236 |
314 |
||||
|
N |
137 |
205 |
274 |
||||
|
O |
143 |
214 |
286 |
||||
|
P |
137 |
205 |
274 |
||||
|
Q |
143 |
214 |
286 |
||||
|
R |
137 |
205 |
274 |
||||
|
S |
137 |
205 |
274 |
||||
|
T |
124 |
186 |
248 |
||||
|
U |
137 |
205 |
274 |
||||
|
V |
152 |
229 |
304 |
||||
|
W |
178 |
267 |
356 |
||||
|
X |
137 |
205 |
274 |
||||
|
Y |
171 |
257 |
342 |
||||
|
Z |
137 |
205 |
274 |
||||
Bảng A4-1. (Tiếp theo 2)
|
e) Độ rộng của số |
|||
|
Số |
Chiều cao của số (mm) |
||
|
200 |
300 |
400 |
|
|
Độ rộng (mm) |
|||
|
1 |
50 |
74 |
98 |
|
2 |
137 |
205 |
274 |
|
3 |
137 |
205 |
274 |
|
4 |
149 |
224 |
298 |
|
5 |
137 |
205 |
274 |
|
6 |
137 |
205 |
274 |
|
7 |
137 |
205 |
274 |
|
8 |
137 |
205 |
274 |
|
9 |
137 |
205 |
274 |
|
0 |
143 |
214 |
286 |
Ghi chú:
1. Để xác định khoảng cách thích hợp giữa các chữ và các số, tìm mã số
từ Bảng a hoặc b và vào Bảng c theo mã số này tìm chiều cao của chữ hoặc số.
2. Khoảng cách giữa các từ hoặc nhóm các ký tự tạo nên chữ viết tắt hoặc ký tự bằng 0,5 đến 0,75 chiều cao của ký tự, trừ trường hợp một mũi tên được bố trí với một ký tự đơn như _A →‘, khoảng cách được giảm xuống không dưới 1/4 của chiều cao ký tự theo quy định để mắt nhìn được cân đối.
3. Khi số theo sau chữ hoặc ngược lại sử dụng mã 1.
4. Ở chỗ gạch nối, dấu chấm hoặc nét chéo sau ký tự hoặc ngược lại sử dụng mã 1.
Đối với biển báo cất cánh tại giao điểm, chiều cao của chữ “m” là 0,75 chiều cao của chữ số “0” (không) phía trước và cách chữ số “0” phía trước tại mã 1 cho chiều cao ký tự của các chữ số.
PHỤ LỤC A: Hướng dẫn bổ sung
1. Số lượng, vị trí và hướng đường cất hạ cánh
1.1. Các yếu tố ảnh hưởng đến quá trình xác định hướng đường cất hạ cánh và vị trí của đường cất hạ cánh cần được nghiên cứu bao gồm 04 nhóm như sau:
1.1.1. Nhóm liên quan đến hoạt động: xác định điều kiện khai thác sân bay trong mọi điều kiện khí tượng hoặc chỉ trong điều kiện khí tượng bay bằng mắt, ban ngày hoặc ban đêm.
1.1.2. Nhóm các điều kiện thời tiết: nghiên cứu sự phân bố của gió để xác định hệ số sử dụng qua các yếu tố sau:
a) Các số liệu thống kê về gió để tính toán hệ số sử dụng được xác định theo miền tốc độ gió và hướng gió. Độ chính xác của các kết quả thu được phụ thuộc nhiều vào số lần quan trắc sự phân bố trong miền cấp gió và hướng gió. Khi thiếu số liệu tin cậy về phân bố gió trên thực tế thì có thể giả định sự phân bổ theo số liệu đã dùng trước đây vì điều này cho giá trị gần đúng của hệ số sử dụng liên quan đến hướng đường cất hạ cánh thuận lợi nhất;
b) Ngoài các thành phần gió ngang trung bình cực đại quy định tại khoản 3 Điều 15, có thể phải xem xét đến một số yếu tố dẫn tới giảm những giá trị cực đại đó. Những yếu tố này gồm:
- Đặc tính và thành phần gió cạnh cực đại cho phép, đối với các loại tàu bay mỗi nhóm trong 3 nhóm tàu bay quy định tại khoản 3 Điều 15 có thể có những sự khác nhau lớn;
- Ưu thế và tính chất của gió mạnh;
- Ưu thế và tính chất của gió rối;
- Sự có mặt của đường CHC phụ;
- Chiều rộng của các đường CHC;
- Trạng thái bề mặt của đường CHC - nước trơn, bùn đất làm giảm đáng kể thành phần gió cạnh cho phép;
- Cường độ của gió liên quan với thành phần gió cạnh giới hạn.
c) Cũng cần phải nghiên cứu trường hợp tầm nhìn xấu hoặc trần mây thấp, phải xét đến tần suất của chúng cũng như hướng và tốc độ gió kèm theo.
1.1.3. Nhóm địa hình khu vực sân bay, các đường tiếp cận và vùng lân cận sân bay, đặc biệt là:
a) Sự phù hợp của các bề mặt giới hạn chướng ngại vật;
b) Việc sử dụng đất hiện tại và nhu cầu mở rộng, các ảnh hưởng tiếng ồn tàu bay;
c) Chiều dài hiện tại và chiều dài sau nâng cấp, mở rộng của đường CHC;
d) Chi phí xây dựng;
đ) Khả năng có thể lắp đặt những thiết bị dẫn đường hàng không.
1.1.4. Nhóm vùng trời trong vùng lân cận sân bay, đặc biệt là:
a) Các ảnh hưởng đến vùng trời, đường hàng không khi sân bay gần các sân bay khác;
b) Mật độ bay đông;
c) Kiểm soát không lưu và các phương thức hủy bỏ hạ cánh.
1.2. Số lượng đường CHC phụ thuộc vào số lần hoạt động của tàu bay.
2. Khoảng trống và đoạn dừng
2.1. Việc xây dựng đoạn dừng và khoảng trống để tăng chiều dài đường cất hạ cánh, phụ thuộc vào các đặc tính vật lý của khu vực cuối đường cất hạ cánh, phục thuộc vào các yêu cầu hoạt động của tàu bay dự kiến khai thác. Chiều dài của đường cất hạ cánh, đoạn dừng và khoảng trống được xác định bởi tính năng cất cánh của tàu bay và được xem xét cả cự ly có thể hạ cánh đối với tàu bay dự kiến khai thác để đảm bảo rằng chiều dài của đường cất hạ cánh đủ cho tàu bay hạ cánh. Tuy nhiên chiều dài của một khoảng trống không được lớn hơn một nửa chiều dài chạy đà cất cánh.
2.2. Các tính năng giới hạn hoạt động của tàu bay đòi hỏi chiều dài đường cất hạ cánh đủ đảm bảo cho tàu bay sau khi bắt đầu chạy đà cất cánh có thể dừng được hoặc tiếp tục cất cánh một cách an toàn. Khi đường cất hạ cánh có kích thước khoảng trống và đoạn dừng phù hợp với cự ly cất cánh dài nhất và cự ly có thể dừng khẩn cấp của một loại tàu bay, có tính đến trọng lượng cất cánh, đặc tính đường cất hạ cánh và điều kiện khí quyển xung quanh. Tàu bay cất cánh cần đạt một tốc độ được gọi là tốc độ quyết định; tàu bay có tốc độ dưới tốc độ quyết định, việc cất cánh phải được hủy bỏ nếu một động cơ bị hỏng; tàu bay có tốc độ cất cánh trên tốc độ quyết định, việc cất cánh được thực hiện bình thường. Khi một động cơ bị hỏng trước khi đạt được tốc độ quyết định, do tốc độ không đủ và công suất giảm, cự ly chạy đà và cự ly cất cánh sẽ dài ra để đảm bảo hoàn thành việc cất cánh. Khi đó việc dừng tàu bay trong cự ly có thể dừng khẩn cấp còn lại được đảm bảo khi hãm kịp thời.
2.3. Nếu động cơ hỏng sau khi đã vượt tốc độ quyết định thì tàu bay có thể cất cánh được với một động cơ hỏng trên cự ly có thể cất cánh còn lại. Ngược lại, với tốc độ cao, tàu bay khó hãm được trong đoạn dừng còn lại.
2.4. Tốc độ quyết định không phải là một tốc độ cố định cho mọi loại tàu bay nhưng có thể được phi công lựa chọn trong phạm vi các giới hạn phù hợp với cự ly có thể dừng khẩn cấp và cự ly có thể cất cánh, trọng lượng cất cánh của tàu bay, các đặc tính của đường cất hạ cánh và các điều kiện về khí quyển xung quanh sân bay.
2.5. Sân bay khai thác nhiều loại tàu bay nên yêu cầu về cự ly dừng khẩn cấp và cự ly cất cánh tương ứng với từng tàu bay là khác nhau, phụ thuộc vào trọng lượng cất cánh của tàu bay, các đặc tính của đường cất hạ cánh và các điều kiện khí quyển xung quanh.
2.6. Trường hợp quan trọng nhất là khi tốc độ quyết định có giá trị làm cho cự ly có thể cất cánh bằng với cự ly có thể dừng khẩn cấp, giá trị này gọi là cự ly cân bằng của dải bay. Khi không có đoạn dừng và khoảng trống, những cự ly này đều bằng chiều dài của đường cất hạ cánh. Tuy nhiên nếu chưa rõ cự ly hạ cánh thì đường cất hạ cánh không nhất thiết bằng toàn bộ cự ly cân bằng của dải bay, vì thông thường cự ly chạy đà cất cánh nhỏ hơn chiều dài cân bằng của dải bay. Chiều dài cân bằng của dải bay có thể bằng chiều dài đường cất hạ cánh cộng với chiều dài khoảng trống và đoạn dừng. Nếu đường cất hạ cánh được sử dụng cho cất cánh cả hai chiều thì phải có khoảng trống và đoạn dừng dài bằng nhau ở cả hai đầu đường cất hạ cánh.
2.7. Trong trường hợp không làm đoạn dừng mà chỉ có đường cất hạ cánh và khoảng trống thì chiều dài đường cất hạ cánh (bỏ qua các yêu cầu về hạ cánh) có thể bằng giá trị lớn hơn trong hai giá trị sau: cự ly có thể dừng khẩn cấp hoặc cự ly chạy đà cất cánh. Cự ly có thể cất cánh thực tế à chiều dài của đường cất hạ cánh cộng thêm chiều dài của khoảng trống.
2.8. Chiều dài tối thiểu của đường cất hạ cánh và chiều dài tối đa của đoạn dừng hoặc khoảng trống có thể được xác định như sau:
a) Chiều dài đoạn dừng nằm trong phần chiều dài cân bằng của dải bay là phù hợp nhất. Chiều dài đường cất hạ cánh được lấy theo giá trị lớn hơn trong các trường hợp: cự ly chạy đà cất cánh hoặc cự ly có thể hạ cánh. Nếu cự ly có thể dừng khẩn cấp lớn hơn chiều dài đường cất hạ cánh đã chọn thì thêm hai đoạn dừng ở hai đầu đường cất hạ cánh. Ngoài ra cần thêm khoảng trống ở hai đầu bằng chiều dài đoạn dừng.
b) Nếu không có đoạn dừng thì chiều dài đường cất hạ cánh bằng cự ly có thể hạ cánh, hoặc bằng cự ly có thể dừng khẩn cấp, nếu nó phù hợp với tốc độ quyết định nhỏ nhất. Phần cự ly có thể cất cánh lớn hơn chiều dài đường cất hạ cánh có thể được khắc phục bằng khoảng trống, thường đặt ở hai đầu đường cất hạ cánh.
2.9. Ngoài những nội dung xem xét trên, có thể bố trí khoảng trống khi cự ly có thể cất cánh trong trường hợp toàn bộ các động cơ đang hoạt động lớn hơn cự ly có thể cất cánh trong trường hợp động cơ bị hỏng.
2.10. Đoạn dừng cần đảm bảo kết cấu để chịu được tải trọng của tàu bay mà không gây hư hại kết cấu tàu bay.
3. Tính các cự ly công bố
3.1. Những cự ly công bố cần tính toán cho mỗi huớng của đường cất hạ cánh gồm: TORA, TODA, ASDA, LDA.
3.2. Khi đường cất hạ cánh không có đoạn dừng hoặc khoảng trống và ngưỡng đường cất hạ cánh nằm ở đầu mút đường cất hạ cánh thì cả 4 cự ly trên đều bằng chiều dài của đường cất hạ cánh như trên Hình A-1 (A).
3.3. Khi đường cất hạ cánh có khoảng trống (CWY) thì TODA sẽ bao gồm cả chiều dài của khoảng trống. Xem Hình A-1 (B).
3.4. Khi đường cất hạ cánh có đoạn dừng (SWY) thì ASDA sẽ bao gồm cả chiều dài của đoạn dừng như trên Hình A-1 (C).
3.5. Khi đường cất hạ cánh có ngưỡng dịch chuyển thì LDA sẽ bị giảm đi cự ly dịch chuyển ngưỡng như trên Hình A-1 (D). Ngưỡng dịch chuyển chỉ ảnh hưởng tới LDA khi hạ cánh theo ngưỡng dịch chuyển. Tất cả các cự ly công bố của đường cất hạ cánh theo hướng ngược lại đều không bị ảnh hưởng.
3.6. Các Hình A-1 (B) đến Hình A-1 (D) thể hiện đường cất hạ cánh có đoạn dừng hoặc khoảng trống hoặc có ngưỡng dịch chuyển. Khi có một trong các yếu tố trên thì sẽ có nhiều hơn một khoảng cách công bố thay đổi theo, nhưng sự thay đổi sẽ tuân theo cùng một nguyên tắc đã trình bày. Hình A-1 (E) thể hiện chi tiết về trường hợp có tất cả các yếu tố trên.
3.7. Hình A-1 (F) trình bày một hình thức thông tin về các khoảng cách công bố. Nếu ở một hướng của đường cất hạ cánh không thể dùng để cất cánh hoặc hạ cánh, hoặc cả hai bị cấm vì lý do khai thác thì phải được công bố và phải dùng các từ “not usable” -"không dùng được" hoặc chữ viết tắt "NU".
4. Các độ dốc trên đường cất hạ cánh
4.1. Khoảng cách giữa các vị trí đổi độ dốc:
Hình A-2 thể hiện cách xác định khoảng cách giữa các vị trí thay đổi độ dốc
Với một đường CHC có số mã là 3, D ít nhất phải bằng:
15000 (| x-y| + |y-z|) m
|x-y| là giá trị tuyệt đối của x-y
|y-z| là giá trị tuyệt đối của y-z
Giả định: x = +0,01.
y = -0,005
z = +0,005
Khi đó: |x-y| =0,015
|y-z| =0,01
Để phù hợp với quy định, D không được nhỏ hơn: 15000 (0,015 + 0,01)m
Tức là: 15 000 x 0,025m = 375m
4.2. Xét độ dốc dọc và dốc ngang
Khi một đường CHC được thiết kế theo tổ hợp các các độ dốc và các thay đổi độ dốc cực trị cho phép quy định từ Điều 19 đến Điều 22 thì phải luận chứng để khẳng định rằng mặt cắt sử dụng không cản trở hoạt động của tàu bay.

Hình A-1. Cách xác định các cự ly công bố của đường cất hạ cánh

Hình A-2. Trắc dọc tim đường CHC
4.3. Khu vực hoạt động của thiết bị vô tuyến đo độ cao
Để khai thác tàu bay tiếp cận kép tự động và hạ cánh tự động (không phụ thuộc vào điều kiện thời tiết) thì cần tránh thay đổi độ dốc hoặc chỉ thay đổi độ dốc nhỏ nhất trên một khu vực dải hình chữ nhật dài ít nhất 300m trước ngưỡng của đường cất hạ cánh tiếp cận chính xác. Khu vực này đối xứng qua tim đường cất hạ cánh kéo dài, rộng 120m. Trong tình huống đặc biệt cho phép, chiều rộng này có thể giảm xuống nhưng không dưới 60m khi có kết quả nghiên cứu hàng không chỉ ra rằng độ giảm này không ảnh hưởng đến an toàn bay. Điều này cho phép khi các tàu bay được trang bị thiết bị vô tuyến đo độ cao dùng để chỉ dẫn độ cao cuối cùng và tín hiệu ánh sáng dẫn đường, khi tàu bay bay ở phía trên của khu đất trước ngưỡng đường cất hạ cánh, thiết bị vô tuyến đo độ cao sẽ bắt đầu thông báo cho bộ phận lái tự động để phát tín hiệu ánh sáng. Khi không thể tránh được sự thay đổi độ dốc thì sự thay đổi giữa hai độ dốc kề nhau không được quá 2% trên cự ly 30m.
5. Độ bằng phẳng của bề mặt đường cất hạ cánh
5.1. Khi chấp nhận giá trị độ mấp mô (gồ ghề) của địa hình bề mặt đường cất hạ cánh cho phép, có thể theo hướng dẫn sau đây cho những khoảng cách ngắn 3m phù hợp với yêu cầu kỹ thuật trên thực tế:
"Trừ những chỗ vồng lên hoặc chỗ vượt qua mương thoát nước, bề mặt xây dựng cần có độ bằng phẳng sao cho khi dùng một thước thẳng dài 3m đặt ở bất kỳ chỗ nào theo hướng bất kỳ, khe hở giữa bề mặt đường cất hạ cánh và bất cứ điểm nào của mép thước cũng không được vượt quá 3mm".
5.2. Khi lắp đèn đường cất hạ cánh hay nắp rãnh thoát nước trên bề mặt đường cất hạ cánh vẫn phải đảm bảo độ êm thuận của bề mặt đường cất hạ cánh.
5.3. Do hoạt động của tàu bay và độ lún không đều của mặt đường cất hạ cánh nên độ mấp mô của bề mặt có thể tăng lên một cách bất thường. Những mấp mô nhỏ trong phạm vi cự ly trên sẽ không cản trở nghiêm trọng đến hoạt động của tàu bay. Cho phép có những mấp mô khoảng 2,5-3cm trên chiều dài trên 45m như hình A-3. Mặc dù độ mấp mô tối đa chấp nhận được thay đổi theo loại và tốc độ của tàu bay, giới hạn của các bất thường bề mặt chấp nhận được có thể được ước tính ở mức độ hợp lý. Bảng dưới đây mô tả các giới hạn chấp nhận, có thể chấp nhận và quá mức:
a) Nếu độ mấp mô của bề mặt vượt quá chiều cao đường giới hạn chấp nhận được, nhưng nhỏ hơn chiều cao của đường giới hạn có thể chấp nhận được, ở độ dài tối thiểu chấp nhận được, được ghi chú trong vùng có thể chấp nhận được, thì cần lên kế hoạch bảo trì. Đường cất hạ cánh có thể tiếp tục duy trì khai thác.
b) Nếu độ mấp mô của bề mặt vượt quá chiều cao đường giới hạn có thể chấp nhận được nhưng thấp hơn chiều cao của đường giới hạn quá mức, ở độ dài tối thiểu chấp nhận được, được ghi chú trong vùng quá mức, thì cần phải có hành động khắc phục để khôi phục tình trạng có thể chấp nhận được. Đường cất hạ cánh có thể duy trì để khai thác nhưng phải được sửa chữa trong thời gian phù hợp. Khu vực này có thể ảnh hưởng đến cấu trúc tàu bay.
c) Nếu độ mấp mô của bề mặt vượt quá chiều cao của đường giới hạn quá mức, ở độ dài tối thiểu chấp nhận được, được ghi chú trong vùng không chấp nhận được, thì khu vực đường cất hạ cánh có độ mấp mô không chấp nhận được cần được đóng cửa. Việc sửa chữa cần được thực hiện để khôi phục tình trạng mặt đường ở mức độ chấp nhận được. Khu vực này có nguy cơ cao xảy ra các sự cố liên quan đến cấu trúc tàu bay và khu vực này phải được xử lý ngay.
|
Bề mặt gồ ghề |
Chiều dài đoạn gồ ghề (m) |
||||||||
|
3 |
6 |
9 |
12 |
15 |
20 |
30 |
45 |
60 |
|
|
Chiều cao độ gồ ghề chấp nhận được (cm) |
2.9 |
3.8 |
4.5 |
5 |
5.4 |
5.9 |
6.5 |
8.5 |
10 |
|
Chiều cao độ gồ ghề có thể chấp nhận được (cm) |
3.9 |
5.5 |
6.8 |
7.8 |
8.6 |
9.6 |
11 |
13.6 |
16 |
|
Chiều cao độ gồ ghề không thể chấp nhận được (cm) |
5.8 |
7.6 |
9.1 |
10 |
10.8 |
11.9 |
13.9 |
17 |
20 |
Lưu ý rằng độ mấp mô theo quy định khoản này là sự chênh lệch chiều cao một phần mặt đường so với độ dốc dọc đồng nhất của bất kỳ phần nào của đường cất hạ cánh. Phần của đường cất hạ cánh là một đoạn của đường cất hạ cánh có sự thay đổi về độ dốc như lên, xuống hoặc bằng phẳng. Chiều dài của đoạn này thường từ 30m đến 60m, có thể lớn hơn tùy thuộc vào mặt cắt dọc và tình trạng của mặt đường.
Các chỗ lồi lớn nhất có thể chấp nhận là chiều cao vết lồi tương ứng với chiều dài vết lồi bằng không ở đầu trên của vùng có thể chấp nhận được của tiêu chí độ nhám của Hình A-3. Chiều cao vết lồi tại vị trí này là 1,75cm.
5.4. Hình A-3 thể hiện chỉ tiêu độ gồ ghề bề theo quy định của Cục Hàng không liên bang Mỹ (FAA).

Hình A-3. So sánh tiêu chuẩn về độ nhám
Ghi chú. Tiêu chuẩn này áp dụng cho các vệt gồ ghề đơn lẻ, không áp dụng cho đoạn lượn sóng dài cũng như vệt gồ ghệ lặp lại nhiều.
5.5. Biến dạng theo thời gian của đường cất hạ cánh có thể làm tăng khả năng hình thành những vũng nước. Những vũng nhỏ sâu khoảng 3mm, nhất là ở những vị trí tàu bay thường hạ cánh với vận tốc lớn có thể tạo ra trơn trượt. Hiện tượng tàu bay trượt trên nước có thể kéo dài trên đường cất hạ cánh ướt ngay cả khi chiều sâu nước rất nhỏ. Chỉ dẫn đầy đủ về chiều dài và chiều sâu của các vũng nước là cần thiết.
6. Báo cáo tình trạng mặt đường CHC
Thực hiện theo hướng dẫn được Cục HKVN tại Quyết định số 68/QĐ-CHK ngày 12/01/2022 của Cục trưởng Cục Hàng không Việt Nam về việc ban hành Hướng dẫn đánh giá và báo cáo tình trạng mặt đường cất hạ cánh tại các cảng hàng không, sân bay của Việt Nam.
7. Đặc tính thoát nước của khu vực di chuyển và khu vực lân cận xung quanh
7.1. Tổng quát
7.1.1. Thoát nước nhanh là vấn đề an toàn chính trong khai thác và bảo trì khu vực di chuyển và khu vực lân cận. Mục tiêu là để giảm thiểu độ sâu của nước trên bề mặt bằng cách thoát nước ra khỏi đường cất hạ cánh nhanh nhất có thể và đặc biệt là ra khỏi khu vực vệt lăn của bánh càng tàu bay. Có hai quá trình thoát nước riêng biệt gồm:
a) Thoát nước tự nhiên từ bề mặt sân đường ra đến nơi chứa cuối cùng như sông, suối, hệ thống thoát nước chung của địa phương quanh sân bay hoặc các khu vực chứa nước được xác định trong cảng hàng không;
b) Thoát nước động của nước mặt bị kẹt dưới lốp tàu bay, lốp phương tiện đang di chuyển cho đến khi nước thoát ra ngoài khu vực tiếp xúc giữa lốp với mặt đường.
7.1.2. Cả hai quá trình có thể được kiểm soát thông qua các công việc để ngăn chặn sự tích tụ nước trên bề mặt sân đường gồm :
a) Thiết kế;
b) Xây dựng;
c) Bảo trì.
7.2. Thiết kế mặt đường
7.2.1. Thoát nước bề mặt là một yêu cầu cơ bản để giảm độ sâu của nước trên bề mặt. Mục tiêu là thoát nước ra khỏi đường cất hạ cánh nhanh nhất. Thoát nước bề mặt đường cất hạ cánh được thực hiện chủ yếu thông qua độ dốc đường cất hạ cánh (bao gồm cả độ dốc dọc và độ dốc ngang).
7.2.2. Thoát nước động thông qua kết cấu bề mặt đường. Lốp lăn tạo ra áp lực nước và ép nước ra khỏi qua các khe được tạo ra bởi kết cấu bề mặt đường. Việc tạo ranh mặt đường để phục vụ việc thoát nước động phải tuân thủ các quy định, tiêu chuẩn, quy chuẩn cụ thể.
7.3. Kết cấu mặt đường
7.3.1. Thoát nước của bề mặt phụ thuộc đặc điểm bề mặt bao gồm:
a) Độ dốc;
b) Cấu trúc, bao gồm loại cấu trúc microtexture và macrotexture.
7.3.2. Độ dốc cho các phần khác nhau của khu vực chuyển động và các khu vực lân cận liền kề trong sân bay được mô tả trong Mục 2 đến Mục 5 Chương II.
7.3.3. Cấu trúc được mô tả trong phụ lục này là microtexture hoặc macrotexture. Những thuật ngữ này được hiểu khác nhau khi áp dụng cụ thể trong từng lĩnh vực của ngành hàng không.
7.3.4. Microtexture là kết cấu của từng viên đá và khó có thể phát hiện bằng mắt. Microtexture được coi là thành phần chính trong khả năng chống trượt khi tốc độ chậm.
7.3.5. Microtexture là chất lượng tích hợp của bề mặt đường. Bằng cách chỉ định vật liệu đảm bảo microtexture, việc thoát nước của các màng nước mỏng được đảm bảo trong một thời gian dài hơn.
7.3.6. Một vấn đề lớn với microtexture là nó có thể thay đổi trong khoảng thời gian ngắn mà không dễ bị phát hiện. Một ví dụ điển hình của điều này là sự tích tụ cao su trong khu vực hạ cánh.
7.3.7. Macrotexture là kết cấu giữa các viên đá riêng lẻ. Tỷ lệ kết cấu này có thể được đánh giá bằng mắt. Macrotexture chủ yếu được tạo ra bởi kích thước cốt liệu được sử dụng hoặc xử lý bề mặt của mặt đường và là yếu tố chính ảnh hưởng đến khả năng thoát nước ở tốc độ cao. Vật liệu cần lựa chọn để đạt được macrotexture tốt.
7.3.8. Mục đích chính của việc tạo rãnh trên bề mặt đường CHC là để tăng cường thoát nước bề mặt. Thoát nước tự nhiên có thể bị chậm lại bởi kết cấu bề mặt, nhưng rãnh có thể tăng tốc độ thoát nước bằng cách cung cấp một đường thoát nước ngắn hơn và tăng tốc độ thoát nước.
7.3.9. Để đo macrotexture, các phương pháp đơn giản như phương pháp phễu rắc cát và bơm mỡ được mô tả trong Hướng dẫn sử dụng dịch vụ sân bay (Doc 9137), Phần 2. Những phương pháp này đề cập đến phân loại macrotexture từ A đến E. Phân loại này được phát triển, sử dụng các kỹ thuật rắc cát hoặc bơm mỡ và được ban hành năm 1971 bởi ESDU.
Phân loại đường CHC dựa trên thông tin kết cấu từ ESDU 71026:
|
Phân loại |
Chiều sâu cấu trục (mm) |
|
A |
0.10 - 0.14 |
|
B |
0.15 - 0.24 |
|
C |
0.25 - 0.50 |
|
D |
0.51 - 1.00 |
|
E |
1.01 - 2.54 |
7.3.10. Sử dụng phân loại này, giá trị ngưỡng giữa microtexture và macrotexture là độ sâu kết cấu trung bình 0,1mm (MTD). Liên quan đến thang đo này, hiệu suất tàu bay trên đường cất hạ cánh ướt thông thường dựa trên kết cấu mang lại khả năng thoát nước và ma sát giữa phân loại B và C (0,25 mm). Cải thiện hệ thống thoát nước thông qua kết cấu tốt hơn có thể đủ điều kiện để hiệu suất tàu bay tốt hơn. Tuy nhiên, điều này phải phù hợp với tài liệu của các nhà sản xuất tàu bay và phải có quy chuẩn, tiêu chuẩn áp dụng cụ thể.
7.4. Duy trì đặc tính thoát nước của bề mặt
7.4.1. Macrotexture không thay đổi trong khoảng thời gian ngắn nhưng sự tích lũy cao su trên bề mặt đường cất hạ cánh có thể lấp đầy kết cấu và do đó làm giảm khả năng thoát nước, có thể dẫn đến suy giảm an toàn. Hơn nữa, cấu trúc đường cất hạ cánh có thể thay đổi theo thời gian, dẫn đến khả năng thoát nước kém. Hướng dẫn về loại bỏ cao su trên bề mặt đường cất hạ cánh có thể áp dụng theo Hướng dẫn dịch vụ sân bay (Tài liệu 9137), Phần 2. Hướng dẫn về các phương pháp cải thiện kết cấu bề mặt có thể áp dụng theo Hướng dẫn thiết kế sân bay (Doc 9157), Phần 3.
7.4.2. Khi cắt rãnh trên mặt đường cất hạ cánh, tình trạng của các rãnh phải được kiểm tra thường xuyên để bảo trì kịp thời nhằm đảm bảo khả năng thoát nước tốt của bề mặt đường cất hạ cánh. Hướng dẫn bảo trì mặt đường được thể thể hiện trong Hướng dẫn dịch vụ sân bay (Tài liệu 9137, Phần 2 - Tình trạng mặt lề đường, Phần 9 - Thực hành bảo trì sân bay) và Hướng dẫn thiết kế sân bay (Tài liệu 9157), Phần 2.
8. Dải bay
8.1. Lề
8.1.1. Lề của các đường CHC hoặc đoạn dừng được được xây dựng sao cho giảm đến mức tối thiểu mọi rủi ro cho tàu bay chạy ra ngoài đường CHC hay đoạn dừng.
8.1.2. Trong một số trường hợp sức chịu tải của nền đất thiên nhiên có thể đủ mà không cần nâng cấp theo yêu cầu đối với lề đường. Khi không đảm bảo sức chịu tải thì phải nâng cấp lề với bề mặt nhân tạo.
8.1.3. Lề cần đảm bảo chống các viên đá nhỏ hay vật thể khác lọt vào động cơ tuốc bin, tương tự như đối với yêu cầu của lề đường lăn.
8.1.4. Khi lề đã được nâng cấp để đảm bảo sức chịu tải cần thiết hoặc để ngăn ngừa các viên đá và vật ngoại lai, có thể phát sinh khó khăn do thiếu độ tương phản trực quan giữa bề mặt đường CHC và bề mặt của dải bay. Khó khăn này có thể khắc phục bằng cách tạo ra sự tương phản bề mặt trong quá trình xây dựng bề mặt đường CHC hay dải bay, hoặc là dùng sơn tín hiệu kẻ sọc cạnh đường CHC.
8.2. Các vật thể trên dải bay
Trong phạm vi diện tích chung của dải kế cận đường cất hạ cánh phải có biện pháp ngăn ngừa bánh tàu bay lún sâu vào đất không đập vào một mặt cứng thẳng đứng. Nhiều vấn đề đặc biệt có thể phát sinh đối với đèn đường cất hạ cánh hoặc các vật thể khác trong dải bay hoặc ở chỗ giao nhau với đường cất hạ cánh hoặc đường lăn.
Trong trường hợp có các công trình như đường cất hạ cánh, đường lăn thì bề mặt của đường cất hạ cánh, đường lăn phải cùng mức với bề mặt của dải bay. Các mặt thẳng đứng được loại bỏ bằng cách vát mép từ đỉnh của công trình cao hơn độ cao của dải bay xuống ít nhất 30cm. Các vật thể khác mà chức năng không yêu cầu cần phải ở độ cao bề mặt thì được hạ xuống độ sâu ít nhất 30 cm.
8.3. San gạt cho các đường CHC tiếp cận chính xác
Phần của dải bay có thiết bị trong phạm vi tối thiểu 75m tính từ tim đường cất hạ cánh được xác định khi đường cất hạ cánh có mã số 3 hoặc 4. Đối với đường cất hạ cánh tiếp cận chính xác nó có thể rộng hơn so với yêu cầu của đường cất hạ cánh có mã số 3 hoặc 4. Hình A-4 chỉ ra hình dáng và kích thước của dải rộng hơn cho đường cất hạ cánh như vậy. Dải này được thiết kế cho trường hợp tàu bay chạy ra ngoài đường cất hạ cánh. Quy hoạch tính từ tim đường cất hạ cánh rộng 105m, trừ phần cự ly giảm xuống ở cách hai đầu mút của đường cất hạ cánh 150m, tính từ tim rộng 75m.

Hình A-4. Hình dạng dải bay tiếp cận chính xác mã số 3 hoặc 4
9. Khu vực an toàn cuối đường CHC
9.1. Khi có khu vực an toàn cuối đường CHC cần đảm bảo đủ dài để dự phòng tàu bay lăn quá đường CHC. Trên đường CHC tiếp cận chính xác, đài ILS thường là chướng ngại vật cao đầu tiên và khu an toàn cuối đường CHC được mở rộng cho đến đài này. Trong những trường hợp khác, Chướng ngại vật đầu tiên có thể là công trình xây dựng hoặc tự nhiên và khu vực an toàn cuối đường CHC được mở rộng đến các chướng ngại vật này.
9.2. Trong trường hợp việc xây dựng khu an toàn cuối đường CHC không thực hiện được, cần xem xét giảm bớt các cự ly công bố của đường CHC để thiết lập khu vực an toàn cuối đường CHC, đồng thời xây dựng hệ thống hãm tàu bay khi cần thiết.
9.3. Các chương trình nghiên cứu, cũng như việc đánh giá thực tế tàu bay lăn quá đường CHC vào hệ thống hãm tàu bay đã chứng minh hiệu quả của hệ thống hãm tàu bay trong việc hãm tàu bay lăn quá đường CHC.
9.4. Hoạt động của hệ thống hãm tàu bay được chứng minh bằng phương pháp thiết kế theo các quy chuẩn, tiêu chuẩn cụ thể. Hệ thống hãm tàu bay được tính toán dựa trên loại tàu bay dự kiến khai thác, đảm bảo đưa ra yêu cầu lớn nhất về điều kiện khai thác đối với hệ thống hãm tàu bay.
9.5. Việc thiết kế hệ thống hãm tàu bay phải xem xét nhiều thông số tàu bay, bao gồm ít nhất những yếu tố: tải trọng bánh tàu bay cho phép, cấu hình bánh tàu bay, áp suất bánh hơi, trọng tâm tàu bay và tốc độ tàu bay. Việc chạm bánh sớm trước đường CHC cũng phải được tính toán đến. Ngoài ra, thiết kế hệ thống hãm tàu bay phải cho phép vận hành an toàn các phương tiện cứu hộ và chữa cháy với tải trọng tối đa, bao gồm cả lối vào và lối ra của phương tiện.
9.6. Thông tin liên quan đến việc cung cấp khu vực an toàn cuối đường CHC và hệ thống hãm tàu bay phải được công bố trong AIP.
9.7. Thông tin bổ sung có trong Doc 9157, part 1

Hình A-5: Khu vực an toàn cuối đường CHC của sân bay mã số 3 hoặc 4
10. Vị trí của ngưỡng đường cất hạ cánh
10.1. Khái quát
10.1.1 Ngưỡng đường cất hạ cánh thông thường được định vị ở cạnh cuối đường cất hạ cánh nếu ở đó không có chướng ngại vật vi phạm vào bề mặt tiếp cận. Trường hợp do các điều kiện khai thác hạn chế, không khắc phục được ngay thì phải dịch ngưỡng đường cất hạ cánh. Khi lựa chọn vị trí dịch ngưỡng đường cất hạ cánh, phải xét đánh giá sự phù hợp, đồng bộ với hệ thống ILS hoặc MLS theo quy định tại Annex 10, tập I.
10.1.2. Khi xác định không có chướng ngại vật nào xâm phạm bề mặt tiếp cận, phải xem xét các vật di động (phương tiện cơ giới, trên đường bộ hoặc tàu hỏa trên đường sắt) ít nhất trong phạm vi của khu vực tiếp cận trong vòng 1200m theo chiều dọc tính từ ngưỡng đường cất hạ cánh với chiều rộng không dưới 150m.
10.2. Dịch ngưỡng đường CHC
10.2.1. Khi có vật thể nhô lên quá bề mặt tiếp cận và không thể dời đi được thì phải xem xét việc di chuyển ngưỡng đường cất hạ cánh để khai thác lâu dài.
10.2.2 Để đáp ứng các mục tiêu giới hạn chướng ngại vật theo quy định, đường cất hạ cánh cần dịch chuyển vào trong đường cất hạ cánh, đảm bảo cự ly cần thiết để bề mặt tiếp cận không có chướng ngại vật.
1102.3. Việc dịch chuyển ngưỡng khỏi cạnh cuối đường cất hạ cánh sẽ làm giảm cự ly có thể hạ cánh đã được công bố và ảnh hưởng đến khai thác nên phải nghiên cứu tổng thể để xem xét khả năng đánh dấu và chiếu sáng chướng ngại vật vượt khỏi bề mặt tiếp cận, điều chỉnh các phương thức khai thác. Quyết định dịch chuyển ngưỡng và khoảng cách dịch chuyển cần xem xét đến loại tàu bay khai thác, các điều kiện hạn chế tầm nhìn và trần mây của đường cất hạ cánh. Trong trường hợp đường cất hạ cánh có hệ thống tiếp cận hạ cánh chính xác phải xét đến tầm quan trọng của các chướng ngại vật và xác định giới hạn vượt chướng ngại vật.
10.2.4. Dù cự ly có thể hạ cánh thế nào, thì vị trí được chọn của ngưỡng cũng không được làm cho bề mặt không chướng ngại vật đến ngưỡng dốc quá 3,3% với đường cất hạ cánh có mã số 4 hoặc dốc quá 5% với đường cất hạ cánh có mã số 3.
10.2.5. Trong những trường hợp ngưỡng được đặt đúng tiêu chuẩn đối với các bề mặt không chướng ngại vật nói ở mục trước, các yêu cầu về đánh dấu chướng ngại vật quy định tại Mục 8 Chương II vẫn phải thoả mãn đối với ngưỡng bị dịch chuyển.
10.2.6. Tùy thuộc vào độ dài dịch chuyển, tầm nhìn (RVR) ở ngưỡng đường cất hạ cánh có thể khác so với điểm bắt đầu đường cất hạ cánh khi cất cánh. Việc sử dụng đèn đỏ cạnh đường cất hạ cánh với cường độ chiếu sáng thấp hơn giá trị định danh 10 000 cd đối với ánh sáng trắng làm tăng sự khác biệt này. Ảnh hưởng của ngưỡng đường cất hạ cánh dịch chuyển lên các tiêu chuẩn tối thiểu để cất cánh sẽ do Người khai thác cảng hàng không đánh giá.
10.2.7. Việc đánh dấu và chiếu sáng ngưỡng đường cất hạ cánh dịch chuyển được quy định tại mục điểm b mục 1.3.2 Thông tư 34/2014/TT-BGTVT, khoản 1 Điều 88, khoản 7 Điều 89, khoản 3 Điều 90, khoản 2 Điều 91, và khoản 6 Điều 93.
11. Hệ thống đèn tiếp cận
11.1. Các loại đèn và các đặc tính của đèn
11.1.1. Những quy định trong phần này cung cấp những đặc tính cơ bản cho hệ thống đèn tiếp cận giản đơn và chính xác. Trong một số trường hợp, cho phép một khoảng dao động, chẳng hạn như khoảng cách giữa đèn tim và đèn ngang. Các chi tiết hướng dẫn hạ cánh của đèn tiếp cận phổ biến được nêu ở các Hình A-7, A-8. Sơ đồ đèn tiếp cận ở trong khoảng 300 m của đường cất hạ cánh tiếp cận chính xác CAT II và III được trình bày ở Hình A-6 Annex 14.
11.1.2. Phải đảm bảo sơ đồ đèn tiếp cận không phụ thuộc vào vị trí của ngưỡng tức là ngưỡng ở đầu mút đường cất hạ cánh hay bị dịch chuyển khỏi đầu mút đường cất hạ cánh. Ở cả hai trường hợp, hệ thống đèn tiếp cận đầu phải kéo dài đến tận ngưỡng. Tuy nhiên trong trường hợp ngưỡng dịch chuyển, các đèn chìm được bố trí từ đầu mút đường cất hạ cánh cho đến ngưỡng để đạt được hình dạng đã quy định. Những đèn chìm này được thiết kế để đáp ứng các yêu cầu kết cấu đã quy định ở điểm a khoản 8 Điều 74 và các yêu cầu chiếu sáng đặc biệt trên sân đỗ ở Phụ lục 2 Hình A2-1 hoặc Hình A2-2.
11.1.3. Các đường bao vệt bay sử dụng trong thiết kế đèn được nêu ở Hình A-6.

Hình A-6. Miền bao đường bay sử dụng để thiết kế đèn cho khai thác theo CAT I, II và III

Hình A-7. Hệ thống đèn tiếp cận giản đơn
11.2. Dung sai lắp đặt
Dung sai ngang
11.2.1. Các dung sai (ngang) về kích thước được nêu ở Hình A-8.
11.2.2. Tim của hệ thống đèn tiếp cận phải trùng với tim kéo dài của đường cất hạ cánh với dung sai tối đa là ±15'.
11.2.3. Khoảng cách dọc giữa các đèn tim phải bố trí sao cho một đèn tim (hay một cụm đèn) ở chính giữa mỗi hàng đèn ngang và các đèn tim phải nằm ở khoảng giữa hai hàng đèn ngang hoặc giữa một hàng đèn ngang và ngưỡng đường cất hạ cánh.
11.2.4. Các dãy đèn ngang và các dãy đèn barret phải vuông góc với đèn tim của hệ thống đèn tiếp cận với dung sai ±30' nếu theo chi tiết Hình A-8 (A) hoặc ±2o nếu theo chi tiết Hình A-8 (B).
11.2.5. Khi phải dịch chuyển một dãy đèn ngang ra khỏi vị trí tiêu chuẩn của nó thì dãy đèn ngang bất kì cạnh nó cũng phải dịch chuyển đến nơi thích hợp có thể để giảm những chênh lệch về khoảng cách giữa các đèn ngang.
11.2.6. Khi một đèn ngang trong hệ thống đèn ở Hình A-8 (A) được điều chỉnh ra khỏi vị trí tiêu chuẩn của nó, thì tổng chiều dài dịch chuyển vẫn bằng 1/12 khoảng cách hiện tại giữa các đèn ngang tính từ điểm gốc. Tuy nhiên không nhất thiết phải điều chỉnh khoảng cách tiêu chuẩn 2,7 m giữa các đèn trong vạch đèn ngang, nhưng các dãy đèn ngang phải giữ đối xứng qua đường tim của đèn tiếp cận.
Dung sai dọc
11.2.7. Bố cục đèn (dung sai đứng) lý tưởng là lắp đặt tất cả các đèn tiếp cận trên một mặt phẳng ngang đi qua ngưỡng đường cất hạ cánh (xem Hình A-9) và điều đó thuận lợi cho việc định hướng theo các điều kiện tại chỗ cho phép. Tuy nhiên, các toà nhà, cây cối... sẽ làm giảm đường nhìn của phi công 1o dưới đường dốc điện tử trong vùng lân cận của đài mốc xa.
11.2.8. Trong phạm vi đoạn dừng hay khoảng trống và trong 150m kể từ mút đường cất hạ cánh các đèn được lắp đặt thật sát gần mặt đất theo điều kiện tại chỗ cho phép để giảm hư hại cho tàu bay khi chạy vượt đường cất hạ cánh hoặc hạ cánh trước đường cất hạ cánh. Ngoài phạm vi đoạn dừng và khoảng trống, các đèn không nhất thiết phải lắp đặt sát mặt đất và do đó những mấp mô của đường bao trên bề mặt đất có thể được khắc phục bằng cách lắp các đèn trên các cột có độ cao.
11.2.9. Yêu cầu đèn được lắp đặt càng cao càng tốt sao cho không có chướng ngại vật nào trong cự ly 60m ở hai bên đường tim nhô lên khỏi mặt phẳng của hệ thống đèn tiếp cận. Nếu có một vật cao trong phạm vi 60m của đường tim và trong phạm vi 1350m tính từ ngưỡng đường cất hạ cánh đối với hệ thống đèn tiếp cận chính xác hoặc 900m đối với hệ thống đèn tiếp cận giản đơn thì nên lắp đặt các đèn sao cho mặt phẳng của nửa bên ngoài của hệ thống đèn chiếu sáng đỉnh của vật thể đó.
11.2.10. Để tránh gây cảm giác sai về mặt phẳng mặt đất các đèn không nên lắp đặt dưới độ dốc xuống 1/66 kể từ ngưỡng đường cất hạ cánh đến một điểm cách ngưỡng 300m và dưới độ dốc 1/40 ngoài điểm 300m. Đối với hệ thống đèn tiếp cận chính xác CAT II và CAT III yêu cầu tiêu chuẩn khắt khe hơn, chẳng hạn như không được có các độ dốc âm trong phạm vi 450m tính từ ngưỡng đường cất hạ cánh.
11.2.11. Đường tim: Các độ dốc của đường tim trong phạm vi bất kỳ đoạn nào (gồm cả đoạn dừng hay khoảng trống ) phải thật nhỏ, ít thay đổi; độ dốc thay đổi nhỏ và không vượt quá 1/60. Kinh nghiệm cho thấy nếu tính từ đường cất hạ cánh ra phía ngoài, thì các độ dốc lên của bất kỳ đoạn nào dưới 1/66 và dốc xuống dưới 1/40 đều chấp nhận được.
11.2.12. Dãy đèn ngang: Các đèn ngang phải nằm trên đường vuông góc với dãy đèn tim và phải nằm ngang ở nơi có thể. Tuy nhiên có thể cho phép sai số độ dốc ngang các đèn trên đường ngang thay đổi không quá 1/80, nếu điều đó có thể cho phép lắp các đèn ngang trong phạm vi đoạn dừng hay khoảng trống ở những nơi có độ dốc ngang xuống.
11.3. Khoảng cách an toàn đối với chướng ngại vật
11.3.1. Một phần diện tích khu vực gọi là mặt phẳng đèn được thiết kế để đảm bảo khoảng cách an toàn chướng ngại vật và tất cả các đèn của hệ thống đều nằm trong mặt phẳng này. Mặt phẳng này có hình chữ nhật và được đặt đối xứng qua tim của hệ thống đèn tiếp cận. Nó bắt đầu từ ngưỡng đường cất hạ cánh và kéo dài đến 60m ngoài mút tiếp cận của hệ thống đèn và rộng 120m.
11.3.2. Trong phạm vi đường biên của mặt phẳng đèn không được có các vật thể cao quá mặt phẳng đèn trừ những vật thể được nói sau đây. Tất cả các đường và đường ô tô đều coi là chướng ngại vật ở cao hơn đỉnh đường 4,8 m, trừ những đường công vụ của sân bay ở đó mọi chuyển động của phương tiện cơ giới được đặt dưới sự kiểm soát của Người khai thác cảng hàng không và có hiệp đồng với đài kiểm soát sân bay. Đường sắt, bất kể lượng giao thông là bao nhiêu, điểm cao hơn đỉnh ray 5,4m đều bị coi là chướng ngại vật.
11.3.3. Một vài thành phần của hệ thống phụ trợ hạ cánh điện tử như đèn phản chiếu, ăng - ten, vô tuyến điều khiển phải lắp đặt cao hơn mặt phẳng đèn. Phải cố gắng đưa những đèn này ra ngoài đường biên mặt phẳng đèn. Có thể thực hiện được điều đó bằng cách dùng đèn phản chiếu và đèn có điều khiển.
11.3.4. Khi vị trí của đài ILS ở phía trong đường biên của mặt phẳng đèn thì đài hoặc màn chắn của nó nhô lên trên mặt phẳng đèn. Trong những trường hợp như vậy chiều cao của những công trình đó phải hết sức thấp và càng xa ngưỡng đường cất hạ cánh càng tốt. Nói chung qui tắc cho phép chiều cao là 15cm trên mỗi khoảng cách 30m tính từ công trình đến ngưỡng đường cất hạ cánh. Ví dụ nếu đài đặt cách ngưỡng là 300m, thì màn chắn được cao hơn mặt phẳng của hệ thống đèn tiếp cận tối đa là 10 x 15=150cm, nhưng càng thấp càng tốt tùy thuộc vào sự hoạt động của ILS.
11.3.5. Lắp đặt ăngten trên đài MLS ở vị trí theo hướng dẫn trong các quy trình liên quan (Annex 10, Volume I, Attachment G). Lắp đặt ăngten đài MLS phù hợp với đài ILS: đài MLS được đặt phía trong đường biên mặt phẳng đèn khi nó không thể ở vị trí xa hơn phía ngoài đèn tiếp cận hoặc đối diện thẳng với hướng tiếp cận. Nếu đài MLS nằm trên vị trí kéo dài của tim đường cất hạ cánh thì nó phải nằm ở vị trí đủ xa so với đèn gần MLS nhất kể từ cuối đường cất hạ cánh. Ngoài ra, đài MLS trung tâm phải cao hơn tối thiểu 0,3m so với đèn trung tâm của khu vực gần đài MLS nhất về phía cuối đường cất hạ cánh (có thể giảm đến 0,15m nếu vị trí đó ít phụ thuộc vào các loại tia sáng). Nếu đáp ứng yêu cầu này sẽ đảm bảo cho chất lượng tín hiệu của đài MLS không bị ảnh hưởng bởi hệ thống đèn tiếp cận, nhưng có thể đài MLS cản trở hệ thống đèn. Để không làm giảm tầm nhìn bằng mắt, đài MLS không được gần cạnh cuối đường cất hạ cánh dưới 300m và phải ở ngoài khoảng 25m so với đường ngang 300m (Phải đặt ăng ten 5m sau vị trí của đèn cách cạnh cuối đường cất hạ cánh 330m). Khi ăng ten phương vị của đài MLS như vậy thì phần trung tâm của đèn ngang tiếp cận tại 300m sẽ bị cản trở một phần. Tuy nhiên, điều quan trọng là các đèn ngang còn lại không bị cản trở có thể phục vụ bất kỳ lúc nào.
11.3.6. Các vật thể trong đường biên của mặt phẳng đèn làm cho mặt phẳng đèn phải nâng cao để đáp ứng các tiêu chuẩn nói ở đây, cần di chuyển, hạ thấp hoặc chuyển vị trí, nếu cách này kinh tế hơn so với nâng mặt phẳng đèn.

Hình A-8. Hệ thống đèn tiếp cận chính xác CAT I

Hình A-9. Các dung sai lắp đèn thẳng đứng
11.3.7. Trong một số trường hợp có những vật thể không thể di chuyển, hạ thấp hay chuyển vị trí sao cho kinh tế nhất. Những vật thể này có thể ở gần ngưỡng đến mức chúng không thể nằm dưới đường độ dốc 2%. Nếu gặp những điều kiện đó và không còn phương án nào khác thì có thể nâng độ dốc 2% lên hoặc có thể theo "bậc thang" để giữ cho các đèn tiếp cận ở phía trên các vật thể. Cách dùng "bậc thang" hoặc độ dốc gia tăng chỉ áp dụng khi không thể giữ được các tiêu chuẩn về độ dốc tối thiểu. Với tiêu chuẩn này không được có có độ dốc âm nằm ở phần ngoài cùng của hệ thống.
11.4. Xét ảnh hưởng của các chiều dài bị rút ngắn
11.4.1. Cần có hệ thống đèn tiếp cận đầy đủ hỗ trợ cho tiếp cận chính xác đảm bảo cho phi công có những vật chuẩn dễ dàng nhìn rõ trước khi hạ cánh. Những hoạt động này được đảm bảo thường xuyên và an toàn khi nhìn rõ các vật chuẩn bằng mắt. Độ cao phía trên ngưỡng đường CHC để phi công quyết định phải có đủ tầm nhìn bằng mắt cho phi công tiếp tục tiếp cận chính xác và hạ cánh thay đổi phụ thuộc vào loại tiếp cận được thực hiện và phụ thuộc vào những yếu tố khác như điều kiện khí tượng và trang thiết bị mặt đất và các thiết bị trên tàu bay. Chiều dài yêu cầu của hệ thống đèn tiếp cận đáp ứng được mọi sự thay đổi là 900m và nó được đảm bảo ở mọi nơi có thể.
11.4.2. Tuy nhiên, có một số hướng đường CHC không thể có đủ chiều dài 900 m cho hệ thống đèn tiếp cận đáp ứng các hoạt động tiếp cận chính xác.
11.4.3. Trong những trường hợp như vậy phải cố gắng đảm bảo đủ hệ thống đèn tiếp cận. Cơ quan có thẩm quyền có thể đặt ra những hạn chế hoạt động đối với những đường CHC không có đủ chiều dài của hệ thống đèn tiếp cận. Có nhiều yếu tố xác định độ cao cho phi công tiếp cận hạ cánh hoặc thực hiện hủy bỏ hạ cánh. Phi công không thể phán đoán tức thời về việc đạt độ cao quyết định. Quyết định thực sự để tiếp tục tiếp cận và hạ cánh là một quá trình tích luỹ chỉ kết thúc ở độ cao quy định, trừ phi thấy đèn trước khi đến điểm quyết định. Quá trình đánh giá bằng mắt là không chắc chắn và khả năng hủy bỏ hạ cánh sẽ tăng lên nhiều. Có nhiều vấn đề khai thác đường CHC mà cơ quan có thẩm quyền phải xem xét để quyết định có cho tiếp cận chính xác hay không.
12.Thứ tự ưu tiên lắp đặt hệ thống chỉ dẫn độ dốc tiếp cận nhìn bằng mắt
12.1. Không thể có các chỉ dẫn cho phép phân tích đầy đủ các yếu tố khách quan để chọn đường CHC của sân bay được ưu tiên lắp đặt hệ thống chỉ dẫn độ dốc tiếp cận nhìn bằng mắt. Tuy nhiên, những yếu tố phải xét khi quyết định vấn đề trên là:
a) Tần suất sử dụng;
b) Mức độ nghiêm trọng của mối nguy hiểm;
c) Sự hiện diện của các phương tiện chỉ dẫn không nhìn bằng mắt và bằng mắt khác
d) Loại tàu bay sử dụng đường CHC;
e) Tần suất và loại thời tiết xuất hiện khi sử dụng đường CHC.
12.2. Xét tính chất nghiêm trọng của mối nguy hiểm, thứ tự áp dụng các quy định đối với hệ thống chỉ dẫn độ dốc tiếp cận bằng mắt quy định từ điểm b đến điểm e, khoản 1 Điều 83 có thể được sử dụng làm chỉ dẫn chung. Chúng có thể được tóm tắt như sau:
a) Chỉ dẫn bằng mắt không đầy đủ do:
(i) Tiếp cận phía trên mặt nước hoặc địa hình đặc biệt, hoặc không có đèn chiếu sáng đầy đủ khu vực tiếp cận vào ban đêm;
(ii) Khu vực dễ nhầm lẫn với xung quanh. b) Mối nguy hiểm nghiêm trọng khi tiếp cận;
c) Mối nguy hiểm nghiêm trọng nếu tàu bay hạ cánh sớm hay chạy vượt ra ngoài đường CHC;
d) Nhiễu động bất thường.
12.3. Sự có mặt của những phương tiện không nhìn bằng mắt hay bằng mắt khác là một yếu tố rất quan trọng. Các đường cất hạ cánh có thiết bị ILS hoặc MLS nói chung ở mức ưu tiên thấp nhất là lắp đặt hệ thống chỉ dẫn độ dốc tiếp cận. Các hệ thống chỉ dẫn độ dốc tiếp cận bằng mắt là những phương tiện tiếp cận bằng mắt độc lập và có thể hỗ trợ cho các phương tiện điện tử. Khi có nguy cơ nghiêm trọng hoặc một số lượng lớn tàu bay không có thiết bị ILS hoặc MLS sử dụng đường cất hạ cánh thì có thể ưu tiên lắp đặt một hệ thống chỉ dẫn độ dốc tiếp cận bằng mắt cho đường cất hạ cánh đó.
12.4. Phải ưu tiên đối với những đường cất hạ cánh dùng cho tàu bay tua bin phản lực.
13. Đèn tín hiệu cảnh báo khu vực không sử dụng
Khi có những khu tạm thời không sử dụng thì có thể cảnh báo bằng đèn đỏ sáng liên tục. Ít nhất phải sử dụng 4 đèn đánh dấu biên giới tiềm ẩn nguy hiểm của khu vực đó, trừ khi khu vực có hình tam giác chỉ cần 3 đèn. Số đèn tăng lên khi diện tích lớn hoặc có hình dạng phức tạp. Cần lắp đặt tối thiểu 1 đèn cho mỗi cự ly 7,5m theo chu vi khu vực. Nếu là đèn định hướng chung nên hướng sao cho các chùm tia của chúng trùng với hướng đi đến của tàu bay hoặc phương tiện cơ giới trên cự ly càng xa càng tốt. Nếu tàu bay và phương tiện cơ giới đến từ nhiều hướng, cần xem xét bổ sung thêm đèn hoặc đèn đặc biệt nhiều hướng để chỉ khu vực theo các hướng đó. Các đèn khu vực không sử dụng được phải dễ gãy. Chiều cao của chúng phải đủ thấp để có đủ tĩnh không thích hợp cho cánh quạt và động cơ tàu bay phản lực.
14. Đèn nhận biết đường lăn thoát nhanh
14.1. Đèn nhận biết đường lăn thoát nhanh (RETIL) màu vàng một hướng lắp đặt cạnh tim đường cất hạ cánh. Đèn được lắp đặt theo trình tự 3-2-1 cánh nhau 100 m trước điểm tiếp tuyến của tim đường lăn thoát nhanh, chúng chỉ hướng cho phi công đến đường lăn thoát nhanh tiếp theo
14.2. Khi tầm nhìn kém, các RETIL cung cấp những dấu hiệu nhận biết có lợi cho phi công tập trung giữ tàu bay theo tim đường cất hạ cánh
14.3. Sau khi hạ cánh, tàu bay chiếm đường cất hạ cánh nhiều thời gian. Các RETIL cho phép phi công giảm từ tốc độ cao đến tốc độ an toàn rời đường cất hạ cánh vào đường lăn thoát nhanh. Tốc độ rời đường cất hạ cánh đến 110km/h đến RETILL đầu tiên (ba đèn barret - thanh sáng) là tốc độ tối ưu.
15. Kiểm soát cường độ chiếu sáng của đèn tiếp cận và đèn đường cất hạ cánh
15.1. Việc nhận biết đèn phụ thuộc vào cảm giác về độ tương phản giữa đèn và nền của nó. Nếu bay ban ngày, trên đường tiếp cận cần cường độ chiếu sáng tối thiểu 2000 hoặc 3000cd, đèn tiếp cận phải có cường độ chiếu sáng khoảng 20.000cd. Trong điều kiện sương mù ban ngày rất sáng, có thể không có đèn đủ cường độ chiếu sáng hiệu quả. Mặt khác, khi thời tiết quang trong đêm tối có thể cần cường độ chiếu sáng khoảng 100cd cho đèn tiếp cận và 50cd cho đèn mép đường cất hạ cánh. Tuy nhiên ngay cả khi đèn gần hơn miền chiếu sáng nhìn thấy được thì phi công đôi khi vẫn cho rằng các đèn mép đường cất hạ cánh không đủ sáng.
15.2. Trong sương mù ánh sáng bị tán xạ rất cao. Ban đêm ánh sáng tán xạ này làm tăng độ sáng của sương mù trên khu vực tiếp cận và đường cất hạ cánh cho nên, để tăng tầm nhìn của đèn thì phải tăng cường độ của chúng lên trên
2000 hay 3000cd. Khi cố gắng tăng tầm xa chiếu sáng để các đèn có thể được nhìn thấy chủ yếu vào ban đêm thì cường độ của chúng không được tăng quá mức làm cho phi công bị chói ở khoảng cách gần.
Từ những điều nói trên cho thấy việc điều chỉnh cường độ các đèn trong hệ thống đến tiếp cận của sân bay cho phù hợp với các điều kiện dự kiến là rất quan trọng nhằm đạt được hiệu quả tốt nhất mà không gây chói mắt phi công. Cường độ thích hợp cho những trường hợp riêng biệt phụ thuộc vào cả độ sáng của nền và tầm nhìn.
16. Khu vực tín hiệu
Khu vực tín hiệu chỉ sử dụng các tín hiệu nhìn bằng mắt trên mặt đất để liên lạc với tàu bay đang bay. Những tín hiệu này cần thiết cho sân bay không có đài kiểm soát tại sân bay hoặc cơ sở dịch vụ thông báo tin tức hàng không hoặc sân bay cho tàu bay không có thiết bị vô tuyến sử dụng. Các đèn tín hiệu mặt đất bằng mắt có giá trị trong trường hợp hỏng thông tin vô tuyến 2 chiều với tàu bay. Tuy nhiên cần lưu ý rằng loại thông tin mà các tín hiệu nhìn bằng mắt trên mặt đất có thể truyền đi thường đã được công bố trong AIP hoặc NOTAM. Do đó phải luận chứng nhu cầu các tín hiệu trên mặt đất bằng mắt trước khi xây dựng khu vực tín hiệu này.
17. Công tác khẩn nguy và cứu hỏa
17.1. Các yêu cầu chung
17.1.1. Người đứng đầu cảng hàng không là người chịu trách nhiệm cao nhất trong việc đảm bảo công tác khẩn nguy và cứu hỏa tại sân bay, bao gồm việc tổ chức lực lượng, trang bị các công cụ và thiết bị cần thiết, đào tạo và tổ chức thực hiện công tác khẩn nguy, cứu hỏa tại sân bay.
17.1.2. Trong khi lập kế hoạch chi tiết tiến hành tìm kiếm và khẩn nguy, Người đứng đầu cảng hàng không cần thống nhất kế hoạch của mình với các trung tâm phối hợp khẩn nguy để bảo đảm xác định các giới hạn tương ứng về trách nhiệm đối với tai nạn tàu bay trong vùng lân cận sân bay.
17.1.3. Sự phối hợp giữa các bộ phận khẩn nguy, cứu hỏa ở một sân bay và những cơ sở của địa phương như đội cứu hỏa địa phương, công an, quân đội và các bệnh viện cần được thực hiện bằng một hợp đồng thoả thuận trước về việc phân công trách nhiệm hỗ trợ khi có tai nạn tàu bay.
17.1.4. Cần có bản đồ tọa độ ô vuông của sân bay và vùng phụ cận của sân bay để cung cấp cho các bộ phận hữu quan của sân bay. Phải chỉ rõ địa hình, đường vào sân bay và vị trí các nguồn cấp nước liên quan trên bản đồ. Bản đồ này được treo công khai ở đài kiểm soát sân bay và trạm cứu hỏa và được cung cấp cho các xe khẩn nguy, cứu hỏa và các xe hỗ trợ khác cần thiết phục vụ cho việc ứng phó trước tai nạn hay sự cố tàu bay. Các bản sao cũng cần được cấp cho các cơ quan bảo vệ công cộng.
17.1.5. Các bản hướng dẫn phối hợp phải nêu trách nhiệm của các bên liên quan và cách hoạt động ứng phó trong tình huống khẩn cấp. Các hướng dẫn này phải được nghiên cứu và phổ biến đến các đối tượng liên quan.
17.2. Huấn luyện
Chương trình huấn luyện bao gồm hướng dẫn ban đầu và định kỳ huấn luyện ít nhất về những lĩnh vực sau:
a) Hiểu biết về sân bay;
b) Hiểu biết về tàu bay;
c) An toàn cho nhân viên khẩn nguy cứu hỏa;
d) Hệ thống thông tin khẩn nguy trên sân bay, bao gồm cả báo cháy liên quan đến tàu bay;
e) Sử dụng bình cứu hỏa, vòi nước, thang và những thiết bị khác theo đúng với yêu cầu quy định tại Điều 137;
f) Sử dụng các loại chất chữa cháy theo như yêu cầu quy định tại Điều 137;
g) Trợ giúp khẩn, cấp cứu người khỏi tàu bay;
h) Thực hiện chữa cháy;
i) Làm quen với cấu tạo và sử dụng thiết bị khẩn nguy và cứu hỏa, khẩn nguy và chữa cháy cho tàu bay;
j) Hàng hoá nguy hiểm;
k) Hiểu biết về nhiệm vụ đội cứu hỏa theo kế hoạch khẩn nguy của sân bay;
l) Quần áo bảo vệ và phòng hơi độc.
17.3. Mức bảo vệ cho phép
17.3.1. Sân bay được phân loại theo mục đích khẩn nguy và cứu hỏa với mức bảo vệ tương ứng.
17.3.2. Cho phép mức bảo vệ thấp hơn trong thời gian ngắn khi số lần hoạt động cao nhất của tàu bay thường sử dụng sân bay dưới 700 lần trong 3 tháng liên tiếp bận nhất.
17.4. Thiết bị khẩn nguy trong các điều kiện môi trường khó khăn
17.4.1. Thiết bị khẩn nguy và các dịch vụ phù hợp sẵn có trong sân bay ở khu vực có bề mặt nước, khu vực đầm lầy và các môi trường khó khăn khác mà các xe có bánh có thể không hoạt động được. Cần đặc biệt chú ý điều này khi một trong các giai đoạn hoạt động tiếp cận/xuất phát được thực hiện phía trên các khu vực đó.
17.4.2. Thiết bị khẩn nguy được đặt trên thuyền hoặc các phương tiện cơ giới khác như trực thăng và xe lội nước hoặc các xe trên đệm không khí có thể hoạt động trong khu vực lân cận. Các phương tiện cơ giới được bố trí sao cho có thể nhanh chóng đến các khu vực cần phục vụ để ứng phó.
17.4.3. Tại sân bay có nước bao quanh, thuyền hoặc phương tiện cơ giới khác được ưu tiên bố trí trên sân bay và ở vị trí thuận lợi để hạ thủy. Nếu các phương tiện này bố trí ngoài sân bay, các phương tiện này có thể do người khai thác cảng hàng không, sân bay hoặc các cơ quan, tổ chức và cá nhân khác (như công an, quân đội, thanh tra cảng, bảo vệ bờ biển) có văn bản phối hợp, thỏa thuận cùng người khai thác cảng hàng không, sân bay.
17.4.4. Thuyền hoặc các phương tiện cơ giới khác phải đảm bảo được tốc độ càng cao càng tốt để tới hiện trường tai nạn trong thời gian ngắn nhất. Để giảm khả năng thương vong trong khi khẩn nguy, các thuyền phản lực được ưu tiên sử dụng hơn các thuyền có cánh quạt nước, trừ khi cánh quạt của các thuyền sử dụng hiệu quả hơn. Phải chọn các thiết bị phù hợp với các khu vực có nước xung quanh. Các phương tiện cơ giới sử dụng trong dịch vụ này được trang bị kèm theo thuyền cứu hộ và phao theo nhu cầu của các tàu bay lớn hơn thường sử dụng sân bay, có trang bị thông tin vô tuyến hai chiều, đèn pha cho các hoạt động ban đêm. Nếu tàu bay hoạt động trong các thời kỳ có tầm nhìn thấp thì cần có hướng dẫn phù hợp cho các xe khẩn nguy ứng phó trong trường hợp này.
17.4.5. Nhân viên phụ trách sử dụng thiết bị được đào tạo đầy đủ và thành thạo công tác khẩn nguy trong môi trường phù hợp.
17.5. Các phương tiện thông tin, khẩn nguy
17.5.1. Để đảm bảo truyền phát tin chắc chắn trong các trường hợp khẩn cấp và trao đổi thông tin thường xuyên thì cần có quy định riêng về dùng điện thoại, thông tin vô tuyến hai chiều và các hệ thống báo động cho bộ phận cứu hỏa của sân bay. Tuỳ thuộc vào các yêu cầu cụ thể của từng sân bay, các phương tiện này phục vụ cho các mục đích sau:
a) Thông tin trực tiếp giữa các đơn vị với người khai thác cảng hàng không, sân bay, trạm cứu hỏa sân bay để đảm bảo báo động kịp thời và điều hành xe khẩn nguy và cứu hỏa và nhân viên kịp thời khi tàu bay gặp tai nạn hoặc sự cố;
b) Thông tin trực tiếp giữa bộ phận cứu hỏa và tổ bay của tàu bay trong trường hợp khẩn cấp;
c) Các tín hiệu khẩn cấp dùng để triệu tập các nhân viên không trực ca;
d) Khi cần, tập hợp được các cơ sở chính liên quan đến dịch vụ trong hoặc ngoài sân bay;
đ) Duy trì thông tin bằng bộ đàm hai chiều với các xe khẩn nguy và cứu hỏa tại hiện trường tàu bay gặp nạn hoặc sự cố.
17.5.2. Xe cứu thương và các phương tiện y tế để di chuyển các trường hợp thương vong do tai nạn tàu bay theo sự chỉ đạo trực tiếp của người có thẩm quyền và theo kế hoạch dự phòng khẩn nguy trong mọi trường hợp cấp cứu.
18. Người điều khiển, vận hành phương tiện, thiết bị hàng không hoạt động thường xuyên tại khu vực hạn chế cảng hàng không, sân bay (sau đây gọi tắt là người điều khiển phương tiện)
18.1. Người điều khiển phương tiện phải có trình độ phù hợp về:
a) Mặt bằng sân bay;
b) Các ký hiệu của sân bay như các biển báo, sơn tín hiệu và đèn;
c) Các quy tắc dụng bộ đàm;
d) Các thuật ngữ và cụm từ dùng cho khai thác sân bay bao gồm cả bảng chữ cái ICAO;
đ) Các quy tắc dịch vụ không lưu liên quan đến các hoạt động mặt đất;
e) Các quy tắc và quy trình khai thác của cảng hàng không có liên quan;
g) Các chức năng chuyên môn đặc biệt yêu cầu, ví dụ trong khẩn nguy và cứu hoả.
18.2. Người điều khiển phương tiện phải có bằng người điều khiển, vận hành phương tiện, trang thiết bị theo quy định, được đào tạo và được cấp giấy phép điều khiển, vận hành phương tiện, thiết bị tại khu vực hạn chế cảng hàng không.
18.3. Nếu có các quy trình đặc biệt cho các hoạt động ở tầm nhìn hạn chế thì cần kiểm tra kiến thức của nhân viên người điều khiển, vận hành phương tiện, trang thiết bị về các quy trình đó qua các lần kiểm tra định kỳ.
19. Phương pháp ACN-PCN công bố sức chịu tải của mặt đường sân bay (áp dụng đến ngày 27/11/2024)
19.1. Hoạt động quá tải
19.1.1. Quá tải mặt đường có thể do tải trọng quá lớn hoặc số lần sử dụng tăng đáng kể hoặc cả hai. Tải trọng lớn hơn tải trọng tính toán (theo thiết kế hoặc đánh giá) sẽ làm giảm tuổi thọ sử dụng, trong khi tải trọng nhỏ hơn sẽ làm tăng tuổi thọ. Do quá tải, mặt đường với bản chất kết cấu không chịu được tải lớn hơn nhiều giới hạn đặc thù nên dễ bị hỏng đột biến. Theo tính chất, mặt đường có thể chịu tải đối với số lượng tải tính toán tác dụng trong suốt thời kỳ sử dụng. Việc quá tải nhỏ có thể chấp nhận được nếu có lợi cho dù giảm tuổi thọ của mặt đường làm mặt đường nhanh hỏng. Đối với các hoạt động mà mức độ quá tải và tần suất sử dụng cao hơn, nếu không có phân tích chi tiết thì cần theo các tiêu chí:
a) Đối với mặt đường mềm, tàu bay hoạt động không thường xuyên với ACN không vượt quá 10% PCN đã công bố thì không ảnh hưởng xấu đến mặt đường;
b) Đối với các mặt đường cứng hoặc hỗn hợp, trong đó tấm mặt đường là chính, tàu bay hoạt động không thường xuyên với ACN không vượt quá 5% PCN đã công bố thì không ảnh hưởng xấu tới mặt đường;
c) Nếu không biết được kết cấu của mặt đường thì áp dụng mức quá tải không vượt quá 5%;
d) Số lần hoạt động quá tải của mặt đường hàng năm không vượt quá 5% tổng hoạt động của tàu bay hằng năm.
19.1.2. Các hoạt động quá tải của tàu bay như vậy không làm cho mặt đường có dấu hiệu quá tải hoặc hỏng. Ngoài ra phải tránh quá tải trong thời kỳ ẩm ướt khi cường độ mặt đường hay nền đất có thể bị yếu đi do ảnh hưởng của nước. Tại các cảng hàng không có hoạt động khai thác quá tải, người khai thác cảng hàng không, sân bay phải duy trì hệ thống kiểm tra, đánh giá các tình trạng mặt đường và các tiêu chuẩn hoạt động quá tải trong từng thời kỳ hoạt động để tránh các hoạt động quá tải làm giảm tuổi thọ mặt đường; báo cáo kịp thời Cục Hàng không Việt Nam và kiến nghị cụ thể việc điều chỉnh lại việc khai thác quá tải tại cảng hàng không.
19.2. ACN đối với một số loại tàu bay
Để thuận lợi, một số loại tàu bay có thể được đánh giá qua phân cấp CAN tuỳ thuộc vào mặt đường cứng và mềm theo quy định.
19A. Phương pháp ACR-PCR công bố sức chịu tải của mặt đường sân bay (áp dụng từ ngày 28/11/2024)
19A.1. Hoạt động quá tải
19A.1.1. Quá tải mặt đường có thể do tải trọng quá lớn hoặc số lần sử dụng tăng đáng kể hoặc cả hai. Tải trọng lớn hơn tải trọng tính toán (theo thiết kế hoặc đánh giá) sẽ làm giảm tuổi thọ sử dụng, trong khi tải trọng nhỏ hơn sẽ làm tăng tuổi thọ. Do quá tải, mặt đường với bản chất kết cấu không chịu được tải lớn hơn nhiều giới hạn đặc thù nên dễ bị hỏng đột biến. Theo tính chất, mặt đường có thể chịu tải đối với số lượng tải tính toán tác dụng trong suốt thời kỳ sử dụng. Việc quá tải nhỏ có thể chấp nhận được nếu có lợi cho dù giảm tuổi thọ của mặt đường làm mặt đường nhanh hỏng. Đối với các hoạt động mà mức độ quá tải và tần suất sử dụng cao hơn, nếu không có phân tích chi tiết thì cần theo các tiêu chí:
a) Đối với mặt đường cứng và mềm, tàu bay hoạt động không thường xuyên với ACR không vượt quá 10% PCR đã công bố thì không ảnh hưởng xấu đến mặt đường;
b) Số lần hoạt động quá tải của mặt đường hàng năm không vượt quá 5% tổng hoạt động hằng năm, ngoại trừ tàu bay hạng nhẹ.
19A.1.2. Các hoạt động quá tải của tàu bay như vậy không làm cho mặt đường có dấu hiệu quá tải hoặc hỏng. Ngoài ra phải tránh quá tải trong thời kỳ ẩm ướt khi cường độ mặt đường hay nền đất có thể bị yếu đi do ảnh hưởng của nước. Tại các cảng hàng không có hoạt động khai thác quá tải, người khai thác cảng hàng không, sân bay phải duy trì hệ thống kiểm tra, đánh giá các tình trạng mặt đường và các tiêu chuẩn hoạt động quá tải trong từng thời kỳ hoạt động để tránh các hoạt động quá tải làm giảm tuổi thọ mặt đường; báo cáo kịp thời Cục Hàng không Việt Nam và kiến nghị cụ thể việc điều chỉnh lại việc khai thác quá tải tại cảng hàng không.
19A.2. ACR đối với một số loại tàu bay
Người khai thác cảng hàng không, sân bay có thể sử dụng một phần mềm chuyên dụng có sẵn trên website của ICAO để tính toán ACR đối với các loại tàu bay trên mặt đường cứng và mềm cho 4 loại cấp chịu lực của nền đất theo quy định..
20. Hệ thống tự động cảnh báo xâm nhập đường CHC (ARIWS)
20.1. Mô tả chung
20.1.1. Hoạt động của ARIWS dựa trên hệ thống giám sát theo dõi tình hình thực tế trên đường cất hạ cánh và tự động trả lại thông tin này cho đèn cảnh báo ở ngưỡng và lối vào của đường cất hạ cánh. Khi một chiếc tàu bay đang khởi hành từ đường cất hạ cánh (lăn) hoặc đến đường cất hạ cánh (short final), đèn cảnh báo màu đỏ ở lối vào sẽ sáng lên, cho thấy không an toàn khi đi vào hoặc di chuyển qua đường cất hạ cánh. Khi một tàu bay được căn chỉnh trên đường cất hạ cánh để cất cánh và một tàu bay hoặc phương tiện khác đi vào hoặc di chuyển qua đường cất hạ cánh, đèn cảnh báo màu đỏ sẽ sáng ở khu vực ngưỡng, cho thấy không an toàn để bắt đầu cất cánh.
20.1.2. ARIWS bao gồm một hệ thống giám sát độc lập (radar chính, đa phương tiện, camera chuyên dụng, radar chuyên dụng, v.v.) và hệ thống cảnh báo dưới dạng hệ thống chiếu sáng sân bay bổ trợ được kết nối thông qua bộ xử lý tạo ra cảnh báo trực tiếp cho các phi hành đoàn chuyến bay và điều hành phương tiện, hệ thống này độc lập với Đài kiểm soát tại sân bay.
20.1.3. Hệ thống ARISWS không yêu cầu xen kẽ mạch, nguồn điện dự phòng hoặc kết nối hoạt động với các hệ thống hỗ trợ bằng mặt khác.
20.1.4. Trong thực tế, không phải mọi lối vào đường cất hạ cánh hay ngưỡng đường cất hạ cánh đều cần được trang bị đèn cảnh báo. Mỗi sân bay sẽ phải đánh giá nhu cầu riêng của mình tùy thuộc vào đặc điểm của sân bay.
20.2. Hành động của tổ bay
20.2.1. Điều quan trọng là các phi hành đoàn phải hiểu cảnh báo được cung cấp từ hệ thống ARIWS. Các cảnh báo được cung cấp gần thời gian thực, trực tiếp cho tổ lái chuyến bay vì không có thời gian "trễ" cho các loại thông tin liên lạc. Nói cách khác, một cảnh báo xung đột được tạo ra từ ATS phải thực hiện các công việc: giải thích, diễn tả nội dung cảnh báo, đánh giá tình huống và liên lạc với tàu bay, việc này sẽ dẫn đến vài giây để thực hiện cảnh báo, trong khi mỗi giây là rất quan trọng để dừng tàu bay một cách an toàn và ngăn chặn một vụ va chạm. Các phi công được yêu cầu một tín hiệu nhất quán toàn cầu, đó là “ngừng ngay lập tức” và phải được đào tạo để phản ứng phù hợp. Hơn nữa, trường hợp các phi công nhận được thông tin đường cất hạ cánh chống từ ATS để cất cánh hoặc di chuyển qua đường cất hạ cánh, và khi nhìn thấy dải đèn đỏ, phải “dừng” và phi công sẽ thông báo cho ATS rằng họ phải huy bỏ việc cất cánh hoặc dừng lại không di chuyển qua đường cất hạ cánh vì đèn đỏ.
20.2.2. Việc đèn đỏ tự động tắt không chỉ ra rằng đường cất hạ cánh đã trống. Việc thông báo đường cất hạ cánh vẫn được đưa ra từ đài kiểm soát tại sân bay. Việc đèn cảnh báo màu đỏ không sáng chỉ có nghĩa là nguy cơ va chạm chưa được phát hiện.
20.2.3. Trong trường hợp một hệ thống trở nên không thể quan sát được, một trong hai điều sẽ xảy ra. Nếu lỗi hệ thống trong tình trạng đèn bị tắt, thì không cần phải thay đổi thủ tục. Điều duy nhất sẽ xảy ra là mất hệ thống cảnh báo độc lập tự động. Các hoạt động của ATS và của tàu bay là không thay đổi.
20.2.4. Người khai thác cảng hàng không, sân bay lập kế hoạch theo dõi tình hình khai thác và từ đó cải tiến các quy trình để giải quyết lỗi hệ thống trong tình trạng đèn vẫn sáng. Kế hoạch này phải có sự phối hợp giữa ATS và người khai thác cảng hàng không, sân bay để thiết lập các quy trình phù hợp. Lưu ý tổ bay được hướng dẫn luôn “dừng” đối với tất cả các đèn đỏ. Nếu phần bị ảnh hưởng của hệ thống, hoặc toàn bộ hệ thống bị tắt, tình huống sẽ triển khai theo trường hợp được mô tả trong 20.2.3.
20.3. Sân bay
20.3.1. Không cần phải cung cấp ARIWS tại tất cả các sân bay. Việc xem xét lắp đặt hệ thống như vậy tại một sân được đánh giá theo nhu cầu của từng sân bay, tùy thuộc vào mức độ giao thông, địa hình sân bay, hệ thống đường lăn, v.v. Tổ an toàn đường cất hạ cánh tại sân bay (LRST) có thể hỗ trợ trong quá trình này. Ngoài ra, không phải mọi đường cất hạ cánh hoặc đường lăn đều cần được trang bị hệ thống này và không phải mọi việc lắp đặt hệ thống đều yêu cầu lắp dặt một hệ thống giám sát mặt đất toàn diện để cung cấp thông tin về phát hiện xung đột cho máy tính.
20.3.2. Mặc dù có thể có các yêu cầu cụ thể cục bộ, một số yêu cầu hệ thống cơ bản được áp dụng cho tất cả các ARIWS:
a) Hệ thống điều khiển và nguồn điện của hệ thống phải độc lập với tất cả hệ thống khác được sử dụng tại sân bay, đặc biệt là các bộ phận của hệ thống đèn;
b) Hệ thống phải hoạt động độc lập với hệ thống liên lạc ATS;
c) Hệ thống phải cung cấp tín hiệu bằng mắt được chấp nhận trên toàn cầu, phù hợp và được các tổ lái hiểu ngay lập tức;
d) Các quy trình địa phương nên được phát triển trong trường hợp hỏng hóc hoặc hỏng một phần hoặc toàn bộ hệ thống.
20.4. Dịch vụ không lưu
20.4.1. ARIWS được thiết kế để bổ sung cho các chức năng ATS thông thường, cung cấp các cảnh báo cho tổ lái và người điều khiển phương tiện khi một số xung đột đã vô tình được tạo ra hoặc mất liên lạc trong hoạt động thông thường tại sân bay. ARIWS sẽ đưa ra cảnh báo trực tiếp như trường hợp kiểm soát mặt đất hoặc đài kiểm soát tại sân bay đã ra huấn lệnh không xâm nhập đường cất hạ cánh, nhưng tổ bay hoặc người điều khiển phương tiện đã không nhận được huấn lệnh này và đài kiểm soát tại sân bay đã cho phép một chuyến cất cánh hoặc hạ cánh cho cùng một đường cất hạ cánh, và không có phản hồi nào của tổ bay hoặc người điều khiển phương tiện khi bị mất liên lạc với đài kiểm soát tại sân bay.
20.4.2. Trong trường hợp đã giải phóng mặt bằng và tổ bay báo cáo sự không tuân thủ huấn lệnh của kiểm soát viên không lưu do đèn đỏ của Cameron, hoặc hủy bỏ vì đèn đỏ, khi đó bắt buộc kiểm soát viên không lưu phải đánh giá tình hình và cung cấp hướng dẫn bổ sung khi cần thiết.Có thể là hệ thống đã tạo ra một cảnh báo sai hoặc sự xâm nhập tiềm năng không còn tồn tại; tuy nhiên, cảnh báo đó cũng có thể là một cảnh báo hợp lệ. Trong mọi trường hợp, kiểm soát viên không lưu cần cung cấp hướng dẫn bổ sung hoặc thay đổi phương án di chuyển tàu bay bằng huấn lệnh mới. Trong trường hợp hệ thống bị lỗi, thì các quy trình được áp dụng như tại mục 21.2.3 và 21.2.4. Khi có hướng dẫn mới hoặc huấn lệnh mới của kiểm soát viên không lưu, tổ bay thực hiện theo huấn lệnh của kiểm soát viên không lưu mà không cần xác nhận rằng trên thực tế không có xung đột.
20.4.3. Mỗi sân bay nơi hệ thống ARIWS được cài đặt sẽ phát triển các quy trình tùy thuộc vào tình huống của sân bay đó. Việc sử dụng lực lượng kiểm tra thường xuyên khu bay sẽ hỗ trợ rất nhiều cho quá trình hoạt động của hệ thống ARIWS.
20.5. Phát hành thông báo
20.5.1. Thông tin về các đặc điểm và trạng thái của ARIWS tại sân bay được ban hành trong phần AIP AD 2.9 trong Pans-AIM (Doc 10066) và trạng thái của nó được cập nhật khi cần thiết thông qua NOTAM hoặc ATIS theo quy định.
20.5.2. Người khai thác tàu bay phải đảm bảo rằng tổ bay được cung cấp tài liệu hướng dẫn bao gồm các quy trình liên quan đến ARIWS và thông tin hướng dẫn phù hợp, tuân thủ Phụ ước 6, Phần I.
20.5.3. Sân bay có thể cung cấp các tài liệu hướng dẫn bổ sung về các hoạt động và quy trình cho nhân viên của họ, người khai thác tàu bay, ATS và nhân viên bên thứ ba có liên quan để phối hợp khai thác và xử lý các tình huống phát sinh của hệ thống ARIWS.
21. Hướng dẫn thiết lập đường lăn để giảm thiểu khả năng xâm nhập đường CHC
21.1. Thiết lập các đường lăn nhằm hạn chế số lượng tàu bay hoặc phương tiện đi vào hoặc di chuyển qua đường cất hạ cánh là phương án vừa hiệu quả trong việc giảm thiểu khả năng xâm nhập đường cất hạ cánh và duy trì năng lực khai thác của sân bay, đồng thời đảm bảo an toàn cho tàu bay cất hạ cánh hoặc lăn trên đường cất hạ cánh.
21.2. Đường trung tâm của đường lăn vào phải vuông góc với đường trung tâm đường cất hạ cánh, nếu có thể. Nguyên tắc này giúp phi công quan sát toàn bộ đường cất hạ cánh, theo cả hai hướng để xác nhận rằng đường cất hạ cánh và các hướng tiếp cận không bị cản trở. Trường hợp góc đường lăn bị cản trở tầm nhìn, cần ưu tiên phương án cho phép phi công quan sát được phần đường lăn tiếp giáp đường cất hạ cánh để phi công có thể quan sát toàn bộ khu vực lên đường cất hạ cánh trước khi quyết định di chuyển lên hoặc lăn qua đường cất hạ cánh.
21.3. Đối với lăn giao nhau với đường cất hạ cánh, tránh thiết kế đường lăn rộng hơn đề xuất trong Phụ lục này. Nguyên tắc thiết kế này giúp cải thiện khả năng nhận biết về vị trí của vị trí chờ lên đường cất hạ cánh và hệ thống biển báo, đèn, sơn kẻ tín hiệu kèm theo.
21.4. Đối với đường lăn hiện hữu rộng hơn chiều rộng được quy định trong Hướng dẫn này, có thể sơn các vạch kẻ sọc bên taxi theo chiều rộng phù hợp.
22. Dữ liệu bản đồ sân bay
22.1 Giới thiệu
Các tính năng dữ liệu bản đồ sân bay được thu thập và cung cấp cho các dịch vụ thông báo tin tức hàng không.
22.2 Các ứng dụng
22.2.1 Dữ liệu lập bản đồ sân bay bao gồm thông tin địa lý sân bay giúp cải thiện nhận thức tình huống cho các đơn vị hoạt động tại sân bay, tăng an toàn khai thác và hiệu quả hoạt động. Độ chính xác của dữ liệu giúp hỗ trợ cho việc ra quyết định phối hợp, nhận thức tình huống chung. Các dữ liệu sẽ được sử dụng trong các tình huống sau đây:
a) Định vị trên tàu bay và nhận định hướng tuyến bao gồm các bản đồ thể hiện vị trí và hướng dẫn di chuyển;
b) Nhận định về hướng di chuyển, bao gồm phát hiện và cảnh báo sự cố phát hiện khi tiếp cận hoặc di chuyển trên đường cất hạ cánh (tương tự như cấp độ A-SMGCS 1 và 2);
c) Định vị vị trí và nhận biết hướng di chuyển, bao gồm hiển thị vị trí tàu bay và phương tiện và đường lăn, hướng di chuyển (như A-SMGCS cấp 3 và 4);
d) Tạo thuận lợi cho thông tin hàng không, bao gồm cả các thông báo tin tức hàng không;
đ) Quản lý cơ sở hạ tầng tại sân bay;
e) Xây dựng các biểu đồ hàng không.
22.2.2 Dữ liệu có thể được sử dụng trong các ứng dụng khác như mô phỏng huấn luyện bay và hệ thống quan sát nâng cao trên mặt đất (EVS), hệ thống tầm nhìn tổng hợp (SVS) và hệ thống tầm nhìn kết hợp (CVS).
22.3 Việc thu thập các dữ biệu bản đồ sân bay cần được xem xét đầy đủ các yếu tố gồm:
a) Rủi ro an toàn tại sân bay;
b) Điều kiện tầm nhìn;
c) Bố trí sân bay;
d) Mật độ giao thông.
Lưu ý. Hướng dẫn thêm về dữ liệu bản đồ sân bay có thể được tìm thấy trong Hướng dẫn sử dụng dịch vụ sân bay, Phần 8 - Dịch vụ khai thác sân bay (Tài liệu 9137).
PHỤ LỤC B: Các bề mặt giới hạn chướng ngại vật

PHỤ LỤC C: Hệ thống biển báo
C.1. Tổng quan
GHI CHÚ: Biển báo có thể có thông tin cố định hoặc thông tin thay đổi. Có thể tham khảo thêm Sổ tay Thiết kế sân bay (Doc 9157), phần 4.
Yêu cầu áp dụng
C.1.1. Biển báo bao gồm biển báo chỉ dẫn bắt buộc, thông báo về vị trí hoặc hướng di chuyển trong khu bay hoặc các thông tin khác theo yêu cầu của Điều 143.
GHI CHÚ: Chị tiết tại Thông tư 34/2014/TT-BGTVT ngày 11/8/2014 của Bộ Giao thông vận tải ban hành Quy chuẩn quốc gia về “Sơn kẻ tín hiệu trên đường cất hạ cánh, đường lăn, sân đỗ tàu bay”.
C.1.2. Có thể lắp đặt biển báo điện tử (biển báo thông tin thay đổi) khi có nhu cầu sau:
a) Chỉ dẫn hoặc thông tin trên biển báo trong một khoảng thời gian nào đó;
b) Cung cấp thông tin thay đổi xác định trước cho biển báo theo yêu cầu của Điều 143.
Đặc tính
C.1.3. Biển báo phải dễ gẫy. Những biển báo nằm gần đường lăn hoặc đường cất hạ cánh phải thấp đảm bảo đủ khoảng cách an toàn dưới cánh quạt tàu bay và động cơ tàu bay phản lực. Độ cao của biển báo không được lớn hơn độ cao ghi trong cột tương ứng ở Bảng C.1.
C.1.4. Biển báo có hình chữ nhật, cạnh dài đặt nằm ngang như trên Hình C.1- và C.2.
C.1.5. Trên khu bay những biển báo màu đỏ là biển báo chỉ dẫn bắt buộc. C.1.6. Ký tự trên biển báo phù hợp với các quy định trong Phụ lục 4.
Bảng C.1. Vị trí, khoảng cách đối với biển báo chỉ dẫn lăn và biển báo rời đường CHC
|
Chiều cao biển báo (mm) |
Khoảng cách vuông góc từ cạnh mặt đường nhân tạo đường lăn đến cạnh gần của biển báo, m |
Khoảng cách vuông góc từ cạnh mặt đường CHC đến cạnh gần của biển báo, m |
|||
|
Mã số |
Chữ chú thích |
Bề mặt chính (min) |
Chiều cao lắp đặt (max) |
||
|
1 hoặc 2 |
200 |
300 |
700 |
5-11 |
3-10 |
|
1 hoặc 2 |
300 |
450 |
900 |
5-11 |
3-10 |
|
3 hoặc 4 |
300 |
450 |
900 |
11-21 |
8-15 |
|
3 hoặc 4 |
400 |
600 |
1100 |
11-21 |
8-15 |
C.1.7. Biển báo được chiếu sáng phù hợp với các quy định tại Phụ lục 4 dùng trong các trường hợp:
a) Điều kiện tầm nhìn trên đường cất hạ cánh nhỏ hơn 800m;
b) Ban đêm cho đường cất hạ cánh có thiết bị;
c) Ban đêm cho đường cất hạ cánh không có thiết bị với mã số là 3 hoặc 4. C.1.8. Những biển báo phản quang hoặc được chiếu sáng sử dụng ban đêm phù hợp với các quy định tại Phụ lục 4 cho đường cất hạ cánh không có thiết bị mã số là 1 hoặc 2.
C.1.9. Biển báo điện tử có bề mặt trống khi không sử dụng.
C.1.10. Trong trường hợp bị hỏng, biển báo điện tử không được thay đổi nội dung làm thông tin sai lệch gây ra mất an toàn đối với phi công hoặc các phương tiện giao thông.
C.1.11. Thời gian chuyển đổi từ tín hiệu này sang tín hiệu khác trên biển báo điện tử càng ngắn càng tốt nhưng không quá 5s.
C.2. Biển báo bắt buộc
GHI CHÚ: Xem Hình C.1 trình bày biển báo bắt buộc và Hình C.2. trình bày ví dụ biển báo vị trí trên nút giao đường lăn/đường CHC.

Hình C.1. Biển báo bắt buộc

Hình C.2. Biển báo chỉ dẫn
Yêu cầu áp dụng
C.2.1. Biển báo bắt buộc được đặt tại vị trí mà ở phía sau nó không cho tàu bay hoặc phương tiện cơ giới hoạt động, trừ khi đài kiểm soát tại sân bay tại sân bay cho phép.
C.2.2. Biển báo bắt buộc bao gồm biển báo hướng đường cất hạ cánh, biển báo vị trí chờ CAT I, II hoặc III, biển báo vị trí chờ lên đường cất hạ cánh, biển báo vị trí chờ trên đường lăn và biển báo cấm vào (NO ENTRY).
GHI CHÚ: Xem C.7 Đặc tính kĩ thuật trên biển báo vị trí chờ trên đường công vụ.
C.2.3. Chi tiết "A" đánh dấu vị trí chờ đường cất hạ cánh bổ sung cho sơn tín hiệu trên vị trí giao nhau của đường lăn và đường cất hạ cánh hoặc đường cất hạ cánh và đường cất hạ cánh cùng với biển báo chỉ hướng đường cất hạ cánh.
C.2.4. Chi tiết "B" đánh dấu vị trí chờ đường cất hạ cánh bổ sung cho biển báo vị trí chờ CAT I, II hay III.
C.2.5. Chi tiết “A” đánh dấu vị trí chờ lên đường CHC trên vị trí chờ đường CHC phù hợp với quy định tại Điều 46 bổ sung cho biển báovị trí chờ đường CHC.
GHI CHÚ: Chi tiết tại Thông tư số 34/2014/TT-BGTVT ngày 11/8/2014 của Bộ Giao thông vận tải ban hành Quy chuẩn quốc gia về “Sơn kẻ tín hiệu trên đường cất hạ cánh, đường lăn, sân đỗ tàu bay”.
C.2.6. Biển báochỉ hướng đường CHC tại giao điểm đường lăn và đường CHC được bổ sung bằng biển báovị trí ở ngoài đường biên (vị trí xa đường lăn nhất).
GHI CHÚ: Xem C.3 về biển thông tin.
C.2.7. Khi đường vào một khu vực bị cấm thì phải có biển báo cấm vào "NO ENTRY".
Vị trí
C.2.8. Biển báo chỉ hướng đường cất hạ cánh trên nút giao đường lăn và đường cất hạ cánh hoặc nút giao đường cất hạ cánh và đường cất hạ cánh được bố trí ở hai bên của vị trí chờ lên đường cất hạ cánh đối diện với hướng tiếp cận đường cất hạ cánh.
C.2.9. Biển báo chỉ vị trí chờ CAT I, II hay CAT III đặt ở hai bên của sơn tín hiệu vị trí chờ lên đường cất hạ cánh đối diện với hướng tiếp cận đến khu vực quan trọng/nhạy cảm.
C.2.10. Biển báo "NO ENTRY" được đặt ở đầu khu vực cấm, theo hướng nhìn của phi công ở cả hai phía của đường lăn.
C.2.11. Biển báovị trí chờ đường CHC được bố trí ở hai bên vị trí chờ đường CHC phù hợp với Điều 46, đối diện với hướng tiếp cận bể mặt giới hạn chướng ngại vật hoặc khu vực nhạy cảm của ILS/MLS.
Đặc tính
C.1.12. Biển báo chỉ dẫn bắt buộc là biển báo có chữ màu trắng trên nền màu đỏ.
C.2.13. Trường hợp, do yếu tố môi trường hoặc các yếu tố khác, cần nâng cao độ nét của dòng chữ trên biển báo chỉ dẫn bắt buộc, các cạnh bên ngoài của các dòng chữ màu trắng có thể được bổ sung bằng màu đen rộng khoảng 10mm cho đường cất hạ cánh có mã số 1 và 2, và 20mm cho đường cất hạ cánh có mã số 3 và 4.
C.2.14. Ký tự trên biển báo hướng đường cất hạ cánh bao gồm hướng các đường cất hạ cánh giao nhau theo hướng chỉ của biển báo, trừ biển báo chỉ hướng đường cất hạ cánh bên cạnh đặt ở mép cùng đường cất hạ cánh chỉ ghi hướng đường cất hạ cánh liên quan ở xa.

GHI CHÚ: Khoảng cách X được xác định theo Bảng II.6. Khoảng cách Y được xác định tại cạnh của khu vực ảnh hưởng của ILS/MLS
Hình C.3. Các vị trí điển hình lắp đặt biển báo nơi giao nhau của đường lăn và đường cất hạ cánh
C.2.15. Ký tự trên biển báo vị trí chờ CAT I, II, III, kết hợp II/III hoặckết hợpI/II/III bao gồm hướng đường cất hạ cánh với CAT I, CAT II, CAT III, CAT II/III hoặc CAT I/II/III, khi thích hợp.
C.2.16. Ký tự trên biển báo "NO ENTRY" ghi như Hình C.1.
C.2.17. Ký tự trên biển báo chờ đường CHC ở vị trí chờ đường CHC được ghi phù hợp với Điều 46 bao gồm chữ số hiệu đường lăn và con số.
C.2.18. Những ký tự hoặc ký hiệu tại Hình C.1 được sử dụng ở nơi thích hợp.
C.3. Biển báo chỉ dẫn
GHI CHÚ: Xem Hình C.2 thể hiện bằng hình ảnh các biển báo chỉ dẫn
Yêu cầu áp dụng
C.3.1. Phải có biển báo chỉ dẫn thông tin ở nơi cần cung cấp thông tin cho hoạt động như vị trí đặc biệt, hoặc đường đi (hướng hoặc đích).
C.3.2. Biển thông tin bao gồm: biển chỉ hướng, biển chỉ vị trí, biển chỉ đích, biển rời đường cất hạ cánh, biển đường cất hạ cánh trống và biển chỉ nút giao cất cánh.
C.3.3. Biển rời đường cất hạ cánh được đặt ở vị trí cần rời đường cất hạ cánh để nhận biết vị trí rời đường cất hạ cánh.
C.3.4. Biển báo rời đường cất hạ cánh được đặt ở lối ra của đường lăn rời đường cất hạ cánh khi không có đèn tim đường lăn và để cho phi công rời đường cất hạ cánh theo giới hạn của hệ thống ILS/MLS báo vùng nguy cấp/nhạy, hoặc theo cạnh thấp hơn của mặt chuyển tiếp phía trong tuỳ theo vị trí nào xa hơn so với tim đường cất hạ cánh.
GHI CHÚ: Xem Điều 97 về màu của đèn tim đường lăn.
C.3.5. Biển chỉ dẫn giao điểm cất cánh cho biết khoảng cách còn lại của đoạn đường chạy đà có thể (TORA) đến nút giao cất cánh.
C.3.6. Khi cần, phải có biển chỉ đích, cho biết hướng và vị trí đặc biệt trên sân bay, như khu vực chuyên cho hàng hoá, cho tàu bay chung v.v.
C.3.7. Phải có biển kết hợp chỉ hướng và vị trí cho phi công biết vị trí và hướng di chuyển trước khi đến nút giao đường lăn.
C.3.8. Phải có biển chỉ hướng để khi xác định được số hiệu và hướng đường lăn trên vị trí giao nhau.
C.3.9. Có thể bố trí biển báo vị trí ở những vị trí chờ trung gian.
C.3.10. Biển báo vị trí được kết hợp với biển chỉ hướng đường cất hạ cánh, trừ nút giao đường cất hạ cánh và đường cất hạ cánh.
C.3.11. Biển báo vị trí kết hợp với biển báo chỉ hướng, khi không cần thiết thì có thể không có.
C.3.12. Khi cần thiết, có thể trang bị biển chỉ vị trí để nhận biết đường lăn vào sân đỗ hoặc đường lăn bên cạnh nút giao.
C.3.13. Khi đường lăn kết thúc tại nút giao, có thể dùng chữ "T" để thông báo, cũng có thể sử dụng barrie chặn, biển chỉ hướng hoặc các dấu hiệu nhìn bằng mắt khác.
Vị trí
C.3.14. Ngoài những chỉ dẫn ở C.3.16 và C.3.24 biển thông tin sẽ được đặt ở bên tay trái của đường lăn, tại nơi có thể đặt được theo Bảng C.1.
C.3.15. Tại nút giao đường lăn, biển báo sẽ được đặt trước điểm giao nhau và cùng hàng với sơn tín hiệu đường lăn giao nhau. Khi không có vạch sơn tín hiệu đường lăn giao nhau, biển báo sẽ được lắp đặt cách tim của đường lăn giao nhau tối thiểu 60m khi mã số là 3 hoặc 4, tối thiểu 40m khi mã số là 1 hoặc 2.
GHI CHÚ: Biển báo vị trí ở ngoài nút giao của đường lăn được đặt ở hai bên đường lăn.
C.3.16. Biển báo rời đường cất hạ cánh được đặt ở cùng phía rời đường cất hạ cánh (có nghĩa là bên phải hoặc bên trái) với vị trí đặt theo Bảng C.1.
C.3.17. Biển báo rời đường cất hạ cánh được đặt trước lối rời đường cất hạ cánh, ở cách tiếp điểm ít nhất là 60 m khi mã số là 3 hoặc 4 và cách ít nhất là 30 m khi mã số là 1 hoặc 2.
C.3.18. Biển báo trống của đường cất hạ cánh được đặt ít nhất ở cùng phía với đường lăn. Khoảng cách giữa biển báo và tim đường cất hạ cánh không nhỏ hơn khoảng cách lớn hơn trong các khoảng cách sau:
a) Khoảng cách giữa tim đường cất hạ cánh và đường ranh giới khu vực nhạy cảm hệ thống ILS/MLS;
b) Khoảng cách giữa tim đường cất hạ cánh và mép thấp của mặt tiếp cận trong.
C.3.19. Khi kết hợp với biển báo chỉ đường cất hạ cánh trống, ký hiệu chỉ vị trí đường lăn được đặt ở phía ngoài ký hiệu đường cất hạ cánh trống.
C.3.20. Biển báo nút giao cất cánh được bố trí bên trái đường lăn vào. Khoảng cách giữa biển báo và tim đường cất hạ cánh không nhỏ hơn 60m khi mã số là 3 hoặc 4 và không nhỏ hơn 45m khi mã số là 1 hoặc 2.
C.3.21. Trên biển báo kết hợp đường cất hạ cánh và đường lăn, ký hiệu đường lăn sẽ ở phía ngoài của ký hiệu đường cất hạ cánh.
C.3.22. Biển báo đích thông thường có thể không kết hợp với biển báo chỉ vị trí hoặc biển báo chỉ hướng.
C.3.23. Biển thông tin không phải là biển vị trí thì không kết hợp với biển báo cấm.
C.3.24. Biển báo chỉ hướng, barrie, và chỉ dẫn bằng mắt thường được dùng để nhận biết nút giao, chữ "T" được đặt ở phía đối diện nút giao đường lăn.
Đặc tính
C.3.25. Biển báo không phải là biển báo vị trí có ký tự màu đen trên nền màu vàng.
C.3.26. Biển báo vị trí có ký tự màu vàng trên nền màu đen và khi đứng một mình biển báo có đường viền màu vàng.
C.3.27. Ký tự trên biển báo rời đường cất hạ cánh sẽ gồm số hiệu đường lăn rời đường cất hạ cánh và mũi tên chỉ hướng đi.
C.3.28. Ký tự trên biển chỉ đường cất hạ cánh trống theo sơn tín hiệu vị trí chờ đường cất hạ cánh như chi tiết A trình bày trên Hình C.2.
C.3.29. Ký tự ở biển chỉ nút giao cất cánh gồm chữ số chỉ đoạn đường chạy đà có thể còn lại đo bằng mét với một mũi tên tương ứng định vị và hướng theo chiều cất cánh như trình bày trên Hình C.2.
C.3.30. Ký tự ở biển báo gồm một chữ cái, chữ số hoặc số để chỉ số hiệu với một mũi tên chỉ hướng theo chiều như trình bày trên Hình C.2.
C.3.31. Ký tự ở biển chỉ hướng gồm một chữ cái, hoặc chữ số để chỉ đường lăn với một hoặc nhiều mũi tên chỉ hướng như trình bày trên Hình C.2.
C.3.32. Ký tự ở biển chỉ vị trí gồm số hiệu và vị trí đường lăn, đường cất hạ cánh hoặc mặt đường mà tàu bay đỗ trên đó hoặc vị trí rẽ không có các mũi tên.
C.3.33 Khi cần phân biệt một hoặc nhiều vị trí chờ đường cất hạ cánh trung gian trên cùng một đường lăn thì biển chỉ vị trí có thể ghi số hiệu của đường lăn và một số.
C.3.34. Khi một biển chỉ vị trí và những biển chỉ hướng được sử dụng kết hợp thì:
a) Tất cả các biển chỉ hướng rẽ trái sẽ được đặt bên trái của biển chỉ vị trí và tất cả những biển chỉ hướng rẽ phải được đặt ở phía bên phải của biển chỉ vị trí, trừ trường hợp ở vị trí cắt nhau với một đường lăn thì biển chỉ vị trí có thể ưu tiên lựa chọn để đặt bên trái;
b) Những biển chỉ hướng được đặt sao cho hướng của những mũi tên xuất phát tăng dần theo chiều thẳng đứng lớn dần về phía đường lăn tương ứng;
c) Một biển chỉ hướng thích hợp được đặt tiếp sau biển chỉ vị trí khi hướng của đường lăn thay đổi sau nút giao;
d) Bên cạnh kí hiệu chỉ hướng sẽ vẽ đường thẳng đứng màu đen như trình bày ở Hình C.2.
C.4. Biển báovị trí kiểm tra đài VOR sân bay
Yêu cầu áp dụng
C.4.1. Khi có điểm kiểm tra đài VOR sân bay thì phải có biển báo và sơn tín hiệu chỉ dẫn điểm kiểm tra đài VOR sân bay.
GHI CHÚ: Chi tiết tại Thông tư số 34/2014/TT-BGTVT ngày 11/8/2014 của Bộ Giao thông vận tải ban hành Quy chuẩn quốc gia về “Sơn kẻ tín hiệu trên đường cất hạ cánh, đường lăn, sân đỗ tàu bay”.
Vị trí
C.4.2. Biển báo điểm kiểm tra đài VOR sân bay được đặt thật gần điểm kiểm tra sao cho từ cabin tàu bay đỗ trên sơn tín hiệu điểm kiểm tra đài VOR sân bay nhìn rõ các ký tự.
Đặc tính
C.4.3. Biển báo điểm kiểm tra đài VOR trên sân bay gồm ký tự màu đen trên nền vàng.
C.4.4. Có thể ghi phần ký tự trên biển chỉ dẫn điểm kiểm tra đài VOR theo một trong những mẫu ở Hình C.4, trong đó:
VOR Là chữ viết tắt chỉ điểm kiểm tra đài VOR.
116,3 Tần số vô tuyến ví dụ của đài VOR.
147o Góc phương vị của VOR ví dụ ghi đến độ gần nhất trên điểm kiểm tra đài VOR
4.3 NM Cự ly ví dụ tính bằng dặm đến đài DME trùng với điểm của đài VOR.

Hình C.4. Biển báo điểm kiểm tra đài VOR
GHI CHÚ: Các dung sai cho các giá trị góc phương vị chỉ trên biển báo được nêu ở các tài liệu về hoạt động bay liên quan. Điểm kiểm tra được dùng khi các lần kiểm tra định kỳ xác định nó chỉ sai lệch ±20 so với góc phương vị quy ước.
C.5. Biển báonhận biết sân bay
Yêu cầu áp dụng
C.5.1. Có thể đặt biển báo nhận biết sân bay tại sân bay khi mà sơn tín hiệu nhận biết nhìn bằng mắt không đủ rõ.
Vị trí
C.5.2. Có thể đặt biển báo nhận biết sân bay tại vị trí sao cho từ xa ở mọi góc phía trên đường nằm ngang có thể nhìn thấy.
Đặc tính
C.5.3. Biển báo nhận biết sân bay phải ghi rõ tên của sân bay.
C.5.4. Nên chọn màu sắc sao cho biển báo nổi bật trên nền.
C.5.5. Chiều cao ký tự không dưới 3m.
C.6. Biển báo vị trí đỗ tàu bay
Yêu cầu áp dụng
C.6.1. Có thể sơn tín hiệu vị trí đỗ tàu bay bổ sung cho biển báo vị trí đỗ tàu bay.
Vị trí
C.6.2. Cần lắp đặt biển báo vị trí đỗ tàu bay ở nơi dễ nhìn thấy nhất từ cabin tàu bay trước khi tàu bay lăn vào vị trí đỗ.
Đặc tính
C.6.3. Biển báo vị trí đỗ tàu bay gồm ký tự màu đen trên nền màu vàng.
C.7. Biển báovị trí chờ trên đường lăn
C.7.1. Biển báo vị trí chờ trên đường lăn được trang bị tại tất cả các đường lăn vào đường cất hạ cánh.
Vị trí
C.7.2. Biển báo vị trí chờ trên đường lăn được đặt cách cạnh đường 1,5m (bên phải) tại vị trí chờ.
Đặc tính
C.7.3. Biển báo vị trí chờ trên đường lăn bao gồm ký tự màu trắng trên nền màu đỏ.
C.7.4. Trên biển báo vị trí chờ trên đường lăn ký tự được ghi bằng tiếng Việt và có thể được viết thêm bằng tiếng Anh theo quy định của cơ quan có thẩm quyền, phù hợp với luật giao thông quốc gia và gồm các chỉ dẫn trong những trường hợp sau:
a) yêu cầu dừng lại;
b) phù hợp với nơi:
b1) cần có hiệu lệnh của kiểm soát không lưu;
b2) cần có chỉ dẫn vị trí.
C.7.5. Biển báo vị trí chờ trên đường lăn sử dụng vào ban đêm cần được chiếu sáng hoặc có phản quang.
Bạn chưa Đăng nhập thành viên.
Đây là tiện ích dành cho tài khoản thành viên. Vui lòng Đăng nhập để xem chi tiết. Nếu chưa có tài khoản, vui lòng Đăng ký tại đây!
Bạn chưa Đăng nhập thành viên.
Đây là tiện ích dành cho tài khoản thành viên. Vui lòng Đăng nhập để xem chi tiết. Nếu chưa có tài khoản, vui lòng Đăng ký tại đây!


