- Tổng quan
- Nội dung
- Tiêu chuẩn liên quan
- Lược đồ
- Tải về
Tiêu chuẩn Quốc gia TCVN 11361-3:2016 Máy kiểu bàn trượt và bàn xoay
| Số hiệu: | TCVN 11361-3:2016 | Loại văn bản: | Tiêu chuẩn Việt Nam |
| Cơ quan ban hành: | Bộ Khoa học và Công nghệ | Lĩnh vực: | Công nghiệp |
|
Ngày ban hành:
Ngày ban hành là ngày, tháng, năm văn bản được thông qua hoặc ký ban hành.
|
2016 |
Hiệu lực:
|
Đã biết
|
| Người ký: | Đang cập nhật |
Tình trạng hiệu lực:
Cho biết trạng thái hiệu lực của văn bản đang tra cứu: Chưa áp dụng, Còn hiệu lực, Hết hiệu lực, Hết hiệu lực 1 phần; Đã sửa đổi, Đính chính hay Không còn phù hợp,...
|
Đã biết
|
TÓM TẮT TIÊU CHUẨN VIỆT NAM TCVN 11361-3:2016
Nội dung tóm tắt đang được cập nhật, Quý khách vui lòng quay lại sau!
Tải tiêu chuẩn Việt Nam TCVN 11361-3:2016
TIÊU CHUẨN QUỐC GIA
TCVN 11361-3:2016
EN 12629-3:2002
WITH AMENDMENT 1:2010
MÁY SẢN XUẤT CÁC SẢN PHẨM XÂY DỰNG TỪ HỖN HỢP BÊ TÔNG VÀ VÔI CÁT - AN TOÀN - PHẦN 3: MÁY KIỂU BÀN TRƯỢT VÀ BÀN XOAY
Machines for the manufacture of constructional products from concrete and calcium-silicate - Safety - Part 3: Slide and turntable machines
Lời nói đầu
TCVN 11361-3:2016 hoàn toàn tương đương EN 12629-3:2002 và sửa đổi 1:2010.
TCVN 11361-3:2016 do Trường Đại học Xây dựng biên soạn, Bộ Xây dựng đề nghị, Tổng cục Tiêu chuẩn Đo lường Chất lượng thẩm định, Bộ Khoa học và Công nghệ công bố.
Bộ TCVN 11361 “Máy sản xuất sản phẩm xây dựng từ hỗn hợp bê tông và vôi cát - An toàn” bao gồm các phần sau:
TCVN 11361-1:2016 (EN 12629-1:2000/A1:2010). Phần 1: Yêu cầu chung
TCVN 11361-2:2016 (EN 12629-2:2002/A1:2010), Phần 2: Máy sản xuất gạch Block
TCVN 11361-3:2016 (EN 12629-3:2002/A1:2010), Phần 3: Máy kiểu bàn trượt và bàn xoay
TCVN 11361-4:2016 (EN 12629-4:2001/A1:2010). Phần 4: Máy sản xuất ngói bê tông
Bộ EN 12629 “Machines for the manufacture of constructional products from concrete and calcium- silicate - Safety (Máy sản xuất sản phẩm xây dựng từ hỗn hợp bê tông và vôi cát - An toàn)” còn các phần sau:
Part 5-1: Pipe making machines manufacturing in the vertical axis (Phần 5-1: Máy sản xuất ống bê tông có trục thẳng đứng khi tạo hình)
Part 5-2: Pipe making machines manufacturing in the horizontal axis (Phần 5-2: Máy sản xuất ống bê tông có trục nằm ngang khi tạo hình)
Part 5-3: Pipe prestressing machines (Phần 5-3: Máy tạo ống bê tông ứng suất trước)
Part 5-4: Concrete pipe coating machines (Phần 5-4: Máy bọc ống bê tông)
Part 6: Stationary and mobile equipment for the manufacture of precast reinforced products (Phần 6: Thiết bị cố định và di động sản xuất các sản phẩm đúc sẵn được gia cường)
Part 7: Stationary and mobile equipment for long line manufacture of prestressed products (Phần 7: Thiết bị cố định và di động sản xuất các sản phẩm ứng suất trước)
Part 8: Machines and equipment for the manufacture of constructional products from calcium- silicate (and concrete) (Phần 8: Máy và thiết bị sản xuất các sản phẩm xây dựng từ silicat (và hỗn hợp bê tông))
Lời giới thiệu
Tiêu chuẩn này là tiêu chuẩn loại/nhóm C như đã nói đến trong TCVN 7383-2:2004 (ISO 12100- 2:2003).
Các máy có liên quan và các mối nguy hiểm, các tình huống nguy hiểm, các trường hợp nguy hiểm được quy định trong phạm vi áp dụng của tiêu chuẩn này.
Khi các điều khoản của tiêu chuẩn loại/nhóm C này khác với các điều khoản trong các tiêu chuẩn loại/nhóm A hoặc B thì các điều khoản của tiêu chuẩn loại/nhóm C phải được ưu tiên hơn các điều khoản của các tiêu chuẩn khác. Máy phải được thiết kế và chế tạo theo các điều khoản của tiêu chuẩn loại/nhóm C này.
Tiêu chuẩn này quy định các yêu cầu bổ sung đối với và/hoặc các khác biệt so với TCVN 11361- 1:2016 (EN 12629-1:2000/A1:2010), cụ thể cho các máy kiểu bàn trượt và bàn xoay như đã mô tả trong Điều 1.1.
Các yêu cầu dưới đây được đưa vào khi biên soạn tiêu chuẩn này:
- Các điều kiện sử dụng cụ thể hoặc các điều kiện về môi trường không nằm trong phạm vi của tài liệu sẽ là chủ đề của các cuộc đàm phán giữa nhà chế tạo và người sử dụng/người sở hữu.
- Chỉ những người có thẩm quyền và người được chỉ định mới được sử dụng máy.
- Nơi sử dụng/lắp đặt phải được chiếu sáng đầy đủ.
- Tất cả các công việc phải được thực hiện bởi người thợ có tay nghề đã được đào tạo chuyên sâu.
MÁY SẢN XUẤT CÁC SẢN PHẨM XÂY DỰNG TỪ HỖN HỢP BÊ TÔNG VÀ VÔI CÁT - AN TOÀN - PHẦN 3: MÁY KIỂU BÀN TRƯỢT VÀ BÀN XOAY
Machines for the manufacture of constructional products from concrete and calcium-silicate - Safety - Part 3: Slide and turntable machines
1 Phạm vi áp dụng
1.1 Tiêu chuẩn này cùng với TCVN 11361-1:2016 (EN 12629-1:2000/A1:2010) áp dụng cho các máy sản xuất các sản phẩm xây dựng từ hỗn hợp bê tông và vôi cát, ở đó có một hoặc nhiều khuôn được gắn trên máy kiểu bàn xoay hoặc kiểu bàn trượt. Nguồn động lực để làm chặt hỗn hợp trộn được dẫn động bằng cơ khi (xem Phụ lục A, B) hoặc thủy lực (xem Phụ lục C, D).
TCVN 11361-1:2016 (EN 12629-1:2000/A1:2010) quy định các yêu cầu chung áp dụng cho các máy sản xuất các sản phẩm xây dựng từ hỗn hợp bê tông và vôi cát.
Tiêu chuẩn này quy định các yêu cầu bổ sung và/hoặc các khác biệt đối với TCVN 11361-1:2016 (EN 12629-1:2000/A1:2010) quy định cho các máy được đề cập đến trong tiêu chuẩn này.
1.2 Tiêu chuẩn này đề cập đến tất cả các mối nguy hiểm đáng kể ứng với các máy kiểu bàn trượt và bàn xoay, khi chúng được sử dụng đúng mục đích thiết kế và cả khi sử dụng sai mục đích thiết kế nhưng hợp lý mà nhà chế tạo có thể đã dự đoán trước được (xem Điều 4). Tiêu chuẩn này quy định các biện pháp kỹ thuật phù hợp để loại trừ hoặc giảm các rủi ro phát sinh từ các mối nguy hiểm đáng kể.
1.3 Tiêu chuẩn này áp dụng cho các máy nằm trong khoảng từ vị trí hỗn hợp trộn được đưa vào máy (xem Điểm 1 của Phụ lục A, B, C, D) đến vị trí các tấm pallet được đưa vào tổ hợp (xem Điểm 8 của Phụ lục C và D) và cuối cùng là vị trí mà các sản phẩm tươi được đưa ra khỏi tổ hợp máy đến hệ thống dưỡng hộ (xem Điểm 2 của Phụ lục A, B, C, D).
1.4 Tiêu chuẩn này quy định tất cả các mối nguy hiểm đã liệt kê trong Điều 4 có thể phát sinh trong quá trình vận hành và bảo dưỡng của các máy kiểu bàn trượt và bàn xoay, bao gồm cả các vị trí tiếp giáp khi làm việc tuân theo các chỉ dẫn kỹ thuật do nhà chế tạo hoặc đại diện được ủy quyền đưa ra.
Tiêu chuẩn này quy định các yêu cầu về an toàn và/hoặc các biện pháp bảo vệ áp dụng cho các máy này.
CHÚ THÍCH: Tiêu chuẩn này không áp dụng đối với các máy được sản xuất trước ngày công bố tiêu chuẩn này.
2 Tài liệu viện dẫn
Các tài liệu viện dẫn sau cần thiết cho việc áp dụng tiêu chuẩn này. Đối với các tài liệu viện dẫn ghi năm công bố thì áp dụng phiên bản được nêu. Đối với các tài liệu viện dẫn không ghi năm công bố thì áp dụng phiên bản mới nhất bao gồm cả bổ sung và sửa đổi (nếu có).
TCVN 7383-1:2004 (ISO 12100-1:2003), An toàn máy - Khái niệm cơ bản, nguyên tắc chung cho thiết kế - Phần 1: Thuật ngữ cơ bản, phương pháp luận.
TCVN 7383-2:2004 (ISO 12100-2:2003), An toàn máy - Khái niệm cơ bản, nguyên tắc chung cho thiết kế - Phần 2: Nguyên tắc kỹ thuật.
TCVN 11361-1:2016 (EN 12629-1:2000/A1:2010), Máy sản xuất các sản phẩm xây dựng từ hỗn hợp bê tông và vôi cát - An toàn - Phần 1: Yêu cầu chung.
3 Thuật ngữ và định nghĩa
Tiêu chuẩn này áp dụng các thuật ngữ, định nghĩa nêu trong TCVN 7383-1:2004 (ISO 12100-1:2003), TCVN 11361-1:2016 (EN 12629-1:2000/A1:2010) và các thuật ngữ, định nghĩa sau:
Các thuật ngữ bổ sung xem Phụ lục A, B, C và D.
3.1
Bàn máy (table)
Bộ phận máy cùng với khuôn gắn trên đó có chuyển động quay (bàn xoay) hoặc chuyển động tịnh tiến qua lại (bàn trượt).
3.2
Chày ép (ram)
Bộ phận chuyển động của máy dùng để truyền lực ép vào hỗn hợp đã được trộn trong khuôn.
3.3
Tay đòn truyền lực (transmission levers)
Bộ phận máy biến chuyển động quay của hệ truyền lực và cam thành chuyển động tịnh tiến.
3.4
Thiết bị gắp sản phẩm (take off device)
Bộ phận tách rời của máy dùng để lấy các sản phẩm đã được tạo hình và đặt chúng vào hệ thống thu gom sản phẩm tươi hoặc sắp xếp các sản phẩm có khả năng gắp được để đưa trực tiếp ra khỏi máy.
3.12
Cơ cấu cung cấp tấm pallet (pallet feeding unit)
Thiết bị chỉ được sử dụng với các máy sản xuất sản phẩm bê tông. Nó tự động đưa các tấm pallet từ nguồn cung cấp ở sát máy đến cơ cấu đẩy các tấm pallet hoặc thiết bị gắp sản phẩm.
4 Danh mục các mối nguy hiểm đáng kể
Điều này bao gồm tất cả các mối nguy hiểm, các tình huống nguy hiểm và các trường hợp nguy hiểm đáng kể được đề cập đến trong tiêu chuẩn này. Chúng được nhận biết thông qua đánh giá rủi ro được coi là đáng kể cho từng loại máy, đồng thời yêu cầu phải có các biện pháp để loại bỏ hoặc giảm các rủi ro này.
4.1 Mối nguy hiểm cơ học (xem Phụ lục E, F, G, H)
Phụ lục E,F,G,H (tham khảo) đưa ra các ví dụ của các loại máy thông dụng.
Các khu vực nguy hiểm quy định theo Điều 4 của TCVN 11361-1:2016 (EN 12629-1:2000/A1:2010) được đánh số từ 1 đến 12 tại Phụ lục từ A đến D trong tiêu chuẩn này và được mô tả trong các bảng dưới đây (cũng có thể xem từ 4.1.1 đến 4.1.8 để biết chi tiết các mối nguy hiểm cơ học).
Bảng 1 - Mối nguy hiểm cơ học và khu vực nguy hiểm
| Khu vực nguy hiểm | Mối nguy hiểm | Xem 4 |
| 1 | Chèn ép | 4.1.1 |
| 2 | Cắt | 4.1.2 |
| Cắt hoặc đứt | 4.1.3 | |
| 3 | Cắt | 4.1.2 |
| Cắt hoặc đứt | 4.1.3 | |
| Cuốn vào hoặc mắc lại | 4.1.5 | |
| 4 | Chèn ép | 4.1.1 |
| Cắt | 4.1.2 | |
| Cắt hoặc đứt | 4.1.3 | |
| Cuốn vào hoặc mắc lại | 4.1.5 | |
| 5 | Các mối nguy hiểm do bị vướng vào | 4.1.4 |
| 6 | Chèn ép | 4.1.1 |
| Cuốn vào hoặc mắc lại | 4.1.5 | |
| Va chạm | 4.1.6 | |
| 7 | Cắt | 4.1.2 |
| Cắt hoặc đứt | 4.1.3 | |
| Vướng vào | 4.1.4 | |
| Cuốn vào hoặc mắc lại | 4.1.5 |
3.5
Hệ thống thu gom sản phẩm tươi (green product collection system)
Hệ thống vận chuyển tách rời của máy để vận chuyển sản phẩm bê tông tươi từ thiết bị gắp sản phẩm đến thiết bị xếp sản phẩm hoặc đến vị trí sản phẩm được đưa ra khỏi máy.
3.6
Thiết bị xếp sản phẩm (stacking equipment)
Bộ phận tách rời của hệ thống vận chuyển để tiếp nhận sản phẩm từ hệ thống thu gom sản phẩm tươi hoặc từ thiết bị gắp sản phẩm và xếp chúng vào giá đỡ đẻ đưa ra khỏi máy.
3.7
Hộp rải liệu (drawing box)
Thiết bị chứa có dạng hình hộp với đáy có thể mở hoặc di động. Hộp rải liệu làm đầy khuôn bằng hỗn hợp đã được trộn.
3.8
Phễu nạp liệu (feed hopper)
Thiết bị chứa hỗn hợp trộn được vận chuyển đến hộp rải liệu hoặc đến khuôn thông qua cửa xả. Phễu nạp liệu chỉ được sử dụng trên các máy sản xuất các sản phẩm từ bê tông.
3.9
Thiết bị định lượng vật liệu lớp dưới (front mix dosing installation)
Thiết bị định lượng một lượng vật liệu cho lớp dưới dạng dẻo hoặc lỏng vào khuôn trước khi hộp rải liệu lấp đầy lớp bê tông lên trên. Thiết bị này chỉ được sử dụng khi sản xuất các tấm bê tông hai lớp.
3.10
Cơ cấu đẩy xe chở sản phẩm cứng (brick wagon pusher)
Thiết bị vận chuyển, là bộ phận tách rời của máy, có nhiệm vụ đẩy xe chờ sản phẩm đã đông cứng từ vị trí này đến vị trí khác trong khu vực của thiết bị xếp sản phẩm. Nó chỉ được sử dụng ở các máy sản xuất các sản phẩm từ vôi cát.
3.11
Cơ cấu đẩy các tấm pallet (pallet pusher)
Thiết bị vận chuyển, là bộ phận tách rời của máy, có nhiệm vụ đẩy các tấm pallet từ vị trí này đến vị trí khác hoặc đẩy trực tiếp đến vùng mà thiết bị gắp sản phẩm sắp xếp các sản phẩm đã tạo hình trên các tấm pallet. Nó chỉ được sử dụng ở các máy sản xuất các sản phẩm từ bê tông.
Bảng 1 - Mối nguy hiểm cơ học và khu vực nguy hiểm (kết thúc)
| Khu vực nguy hiểm | Mối nguy hiểm | Xem 4 |
| 8 | Cắt hoặc đứt | 4.1.3 |
| Cuốn vào hoặc mắc lại | 4.1.5 | |
| 9 | Cắt hoặc đứt | 4.1.3 |
| 10 | Cắt hoặc đứt | 4.1.3 |
| 11 | Chèn ép | 4.1.1 |
| Cắt | 4.1.2 | |
| Cắt hoặc đứt | 4.1.3 | |
| 12 | Cắt | 4.1.2 |
| Vướng vào | 4.1.4 | |
| Cuốn vào hoặc mắc lại | 4.1.5 | |
| Thiết bị | Tia có áp lực cao | 4.1.7 |
| Sàn | Trượt, vấp và té ngã | 4.1.8 |
| Khu vực xung quanh máy | Rung | 4.3 |
4.1.1 Mối nguy hiểm do chèn ép
Giữa chày ép và khuôn trong (xem khu vực nguy hiểm 1, Phụ lục E, F, G, H)
Phần phía dưới của thiết bị xếp sản phẩm (xem khu vực nguy hiểm 4. Phụ lục E, F)
Giữa các tấm pallet di động và phần kết cấu cố định (xem khu vực nguy hiểm 11, Phụ lục G, H)
Giữa các tay đòn truyền lực và các bộ phận cố định (xem khu vực nguy hiểm 6, Phụ lục E. F, G, H)
4.1.2 Mối nguy hiểm do cắt
Giữa khuôn bên trong và khuôn bên ngoài (xem khu vực nguy hiểm 2, Phụ lục E, F, G, H)
Giữa thiết bị gắp sản phẩm và các bộ phận máy khác (xem khu vực nguy hiểm 3, Phụ lục E, F, G, H)
Toàn bộ khu vực thiết bị xếp sản phẩm hoạt động (xem khu vực nguy hiểm 4, Phụ lục E, F)
Giữa bộ phận cố định và bộ phận chuyển động của cơ cấu cung cấp các tấm pallet hoặc giữa phần cố định và chuyển động của cơ cấu đẩy các tấm pallet (xem khu vực nguy hiểm 11, Phụ lục G, H).
Tất cả bộ phận đang chuyển động của hệ truyền lực (xem khu vực nguy hiểm 7, Phụ lục E, F, G, H)
Giữa các bộ phận cố định của thiết bị định lượng vật liệu bổ sung và bản chuyển động (xem khu vực nguy hiểm 12, Phụ lục G).
4.1.3 Mối nguy hiểm do cắt hoặc đứt
Xem Điều 4.1.2 và các ví dụ về khu vực nguy hiểm 2, 3, 4 và 8, Phụ lục E, F, G, H.
Giữa các khu vực chuyển động của bàn (xem khu vực nguy hiểm 9, Phụ lục G, H)
Giữa hộp rải liệu chuyển động và mép khuôn (xem khu vực nguy hiểm 9, Phụ lục G, H).
Giữa các bộ phận cố định và chuyển động của cơ cấu cung cấp các tấm pallet hoặc giữa cơ cấu đẩy các tấm pallet và các tấm pallet phía dưới (xem khu vực nguy hiểm 11, Phụ lục G, H).
Giữa các bộ phận cố định của phễu nạp liệu với thiết bị định lượng và cửa xả di động (xem khu vực nguy hiểm 9, Phụ lục G, H).
Khu vực giữa cơ cấu đẩy xe chở sản phẩm cứng và các bộ phận cố định của tổ hợp thiết bị (xem khu vực nguy hiểm 10, Phụ lục E, F).
Tất cả bộ phận chuyển động của hệ truyền lực (xem khu vực nguy hiểm 7, Phụ lục E, F, G, H)
4.1.4 Mối nguy hiểm do bị vướng vào
Trong khu vực xung quanh cơ cấu trộn, gần thiết bị định lượng vật liệu lớp dưới (xem khu vực nguy hiểm 12, Phụ lục G).
Trong khu vực mà hỗn hợp trộn được đưa vào trong khuôn (xem khu vực nguy hiểm 5, Phụ lục E, F). Tất cả bộ phận chuyển động của hệ truyền lực (xem khu vực nguy hiểm 7, Phụ lục E, F, G, H)
4.1.5 Mối nguy hiểm do bị cuốn vào hoặc mắc lại
Trong khu vực chuyển động quay của thiết bị khuấy trên thiết bị định lượng vật liệu lớp dưới (xem khu vực nguy hiểm 12, Phụ lục G).
Trong khu vực chuyển động của bàn máy (xem khu vực nguy hiểm 8, Phụ lục E, F, G, H).
Trong khu vực chuyển động của hộp rải liệu vá/hoặc phễu nạp liệu (xem khu vực nguy hiểm 6, Phụ lục G, H)
Trong khu vực có chuyển động qua lại của thiết bị gắp sản phẩm (xem khu vực nguy hiểm 3, Phụ lục E, F, G, H).
Trong khu vực chuyển động của thiết bị xếp sản phẩm (xem khu vực nguy hiểm 4, Phụ lục E, F).
4.1.6 Mối nguy hiểm do va chạm
Trong khu vực chuyển động của các tay đòn truyền lực dẫn động các bộ phận của máy (xem khu vực nguy hiểm 6, Phụ lục E, F, G, H).
4.1.7 Mối nguy hiểm do các tia có áp lực cao
Ở các thiết bị thủy lực và thiết bị khí nén của máy.
4.1.8 Mối nguy hiểm do trượt, vấp và té ngã
Nền hoặc khu vực xung quanh tổ hợp thiết bị sản xuất sản phẩm bê tông.
4.2 Mối nguy hiểm về điện
Lắp đặt và trang thiết bị điện trên máy.
4.3 Mối nguy hiểm do rung
Toàn bộ khu vực hoặc xung quanh máy.
4.4 Mối nguy hiểm gây ra bởi vật liệu và sản phẩm
Do sự tiếp xúc với bê tông ướt có thể gãy tổn thương hoặc dị ứng da, bao gồm cả viêm da.
Do hít phải bụi dầu khi phun và tiếp xúc với dầu bôi trơn khuôn.
4.5 Mối nguy hiểm gây ra do bỏ qua các nguyên tắc thiết kế Ecgônômi
Do không trang bị hệ thống vận chuyển tự động dẫn đến phải vận chuyển bằng thủ công (xem TCVN 11361-1:2016 (EN 12629-1:2000/A1:2010)).
4.6 Mối nguy hiểm gây ra do sự cố của nguồn cung cấp năng lượng
Sự cố mất điện có thể dẫn tới các bộ phận của máy bị dừng ở bất cứ vị trí nào.
Sự cố mất điện có thể dẫn đến các sản phẩm bị rơi khỏi thiết bị gắp hoặc thiết bị xếp sản phẩm.
5 Yêu cầu về an toàn và/ hoặc các biện pháp bảo vệ
Máy phải tuân thủ các yêu cầu về an toàn và/hoặc các biện pháp bảo vệ được quy định trong Điều này và các yêu cầu có liên quan quy định trong TCVN 11361-1:2016 (EN 12629-1:2000/A1:2010). Ngoài ra, máy phải được thiết kế tuân thủ theo các nguyên tắc của bộ TCVN 7383 (ISO 12100) đối với các mối nguy hiểm có liên quan nhưng không phải là chủ yếu và không được nêu trong tiêu chuẩn này.
CHÚ THÍCH: Đối với các mối nguy hiểm phải được giảm bằng việc áp dụng tiêu chuẩn nhóm/loại A hoặc B, ví dụ như TCVN 6719 (ISO 13850), ISO 13857, EN 60204-1, cũng như đối với các máy được dẫn động bằng thủy lực hoặc khí nén hoặc các máy khác được đề cập đến trong các tiêu chuẩn được sử dụng chung, thì nhà chế tạo phải thực hiện việc đánh giá rủi ro để chứng minh việc phải áp dụng các yêu cầu của nhóm/loại A hoặc của nhóm/loại B hoặc các tiêu chuẩn khác được áp dụng. Sự đánh giá rủi ro riêng này sẽ là một phần của việc đánh giá rủi ro chung của máy.
Nếu biết nơi lắp đặt có các bộ phận có thể được xem như là biện pháp giảm bớt rủi ro thì các bộ phận này có thể được xem xét khi thiết kế (xem Điều 7).
5.1 Các khu vực nguy hiểm được đánh số từ 1 đến 12 trong Phụ lục E, F, G, H phải được bảo vệ bằng các biện pháp được quy định trong TCVN 11361-1:2016 (EN 12629-1:2000/A1:2010), như được nêu trong Bảng 2 của tiêu chuẩn này.
Bảng 2 - Yêu cầu đối với các khu vực nguy hiểm đã nêu
| Khu vực nguy hiểm | Mối nguy hiểm | Xem 4 | Yêu cầu và biện pháp bảo vệ, xem TCVN 11361-1:2016 (EN 12629-1:2000/A1:2010), 5 |
| 1 | Chèn ép | 4.1.1 | 5.2 |
| 2 | Cắt | 4.1.2 | 5.2 |
| Cắt hoặc đứt | 4.1.3 | ||
| 3 | Cắt | 4.1.2 | 5.11 |
| Cắt hoặc đứt | 4.1.3 | ||
| Cuốn vào hoặc mắc lại | 4.1.5 | ||
| 4 | Chèn ép | 4.1.1 | 5.11 |
| Cắt | 4.1.2 | ||
| Cắt hoặc đứt | 4.1.3 | ||
| Cuốn vào hoặc mắc lại | 4.1.5 | ||
| 5 | Vướng vào | 4.1.4 | 5.2 |
| 6 | Chèn ép | 4.1.1 | 5.1 |
| Cuốn vào hoặc mắc lại | 4.1.5 | ||
| Va chạm | 4.1.6 | ||
| 7 | Cắt | 4.1.2 | 5.1 |
| Cắt hoặc đứt | 4.1.3 | ||
| Vướng vào | 4.1.4 | ||
| Cuốn vào hoặc mắc lại | 4.1.5 | ||
| 8 | Cắt hoặc đứt | 4.1.3 | 5.2 |
| Cuốn vào hoặc mắc lại | 4.1.5 | ||
| 9 | Cắt hoặc đứt | 4.1.3 | 5.2 |
| 10 | Cắt hoặc đứt | 4.1.3 | 5.11 |
| 11 | Chèn ép | 4.1.1 | 5.2 |
| Cắt | 4.1.2 | ||
| Cắt hoặc đứt | 4.1.3 | ||
| 12 | Cắt | 4.1.2 | 5.2 |
| Vướng vào | 4.1.4 | ||
| Cuốn vào hoặc mắc lại | 4.1.5 | ||
| Thiết bị | Tia có áp lực cao | 4.1.7 | 5.10 |
| Sàn | Trượt, vấp và té ngã | 4.1.8 | 7 |
5.2 Mối nguy hiểm về điện
Xem TCVN 11361-1:2016 (EN 12629-1:2000/A1:2010). 5.6.
5.3 Rung
Ở nơi có thể áp dụng, máy phải đặt trên móng bê tông có khả năng hấp thụ rung (xem Điều 7).
5.4 Thiết kế Ecgônômi
Xem TCVN 11361-1:2016 (EN 12629-1:2000/A1:2010), 5.9.
Ngoài ra, phải trợ lực cho các chuyển động của các sản phẩm từ khuôn đến vị trí mà các sản phẩm được đưa ra khỏi máy.
5.5 Sự cố nguồn điện
Sự cố nguồn điện trong quá trình sản xuất với thiết bị gắp sản phẩm và/hoặc thiết bị xếp sản phẩm không được phép dẫn đến tình huống nguy hiểm.
6 Kiểm tra xác nhận các yêu cầu về an toàn và/hoặc các biện pháp bảo vệ
Để kiểm tra sự phù hợp với các yêu cầu an toàn và/hoặc các biện pháp bảo vệ xem trong TCVN 11361-1:2016 (EN 12629-1:2000/A1:2010).
Đối với các yêu cầu đã được nêu trong TCVN 11361-1:2016 (EN 12629-1:2000/A1:2010), thì các biện pháp kiểm tra cũng được nêu trong tiêu chuẩn này.
Đối với các yêu cầu đã nêu trong tiêu chuẩn này, các biện pháp kiểm tra xác nhận là đã có hoặc các biện pháp kiểm tra xác nhận bổ sung được nêu dưới đây.
Việc đánh giá các yêu cầu này phải được áp dụng cho máy ở trạng thái làm việc đầy đủ, tuy nhiên có thể ngắt một phần đối với một số kiểm tra. Việc ngắt một phần phải không làm ảnh hưởng đến kết quả kiểm tra xác nhận. Một phương pháp kiểm tra tiếp theo được mô tả dưới đây.
Bảng 3 - Kiểm tra xác nhận các yêu cầu an toàn trong Điều 5
| Điều | Hệ thống an toàn cho | Kiểm tra bằng trực quan | Kiểm tra bằng thử nghiệm | Đo | Ghi chú |
| 5.4 | Thao tác | X |
|
|
|
| 5.5 | Sự cố nguồn điện |
| X |
| TCVN 7383-1:2004 (ISO 12100- 1:2003), 3.26.7 |
7 Thông tin cho sử dụng
Xem TCVN 11361-1:2016 (EN 12629-1:2000/A1:2010), 7.
Về mặt thiết bị bảo vệ cá nhân, người sử dụng phải được chỉ dẫn về việc sử dụng găng tay bảo vệ để tránh da tiếp xúc với dầu khi làm việc với khuôn và các tấm pallet.
Nhà chế tạo phải thông tin cho người sử dụng phải bố trí rãnh thoát nước hợp lý trong trường hợp nền hoặc khu vực xung quanh máy sản xuất gạch quá ướt.
Nhà chế tạo phải đưa ra tất cả các thông tin cần thiết (VÍ DỤ: khối lượng máy, tần số, lực ly tâm) để xây dựng móng máy có khả năng hấp thụ được rung do máy sinh ra trong quá trình làm việc.
Tại những nơi các rủi ro được giảm thông qua việc bố trí hoặc lắp đặt máy (VÍ DỤ: được bảo vệ bằng tường của tòa nhà) thì nhà chế tạo phải giải thích trong Hướng dẫn sử dụng, phải cung cấp các biện pháp thích hợp và nếu cần, phải cung cấp cả biện pháp kiểm tra xác nhận.
Nhà chế tạo phải chỉ rõ cụ thể về hệ thống an toàn và về đào tạo an toàn cho người vận hành.
8 Ghi nhãn
Xem TCVN 11361-1:2016 (EN 12629-1:2000/A1:2010).
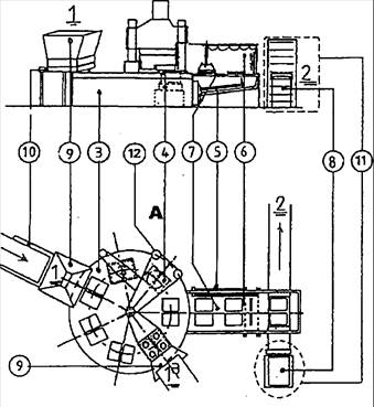
Phụ lục A
(Tham khảo)
Thuật ngữ cho máy kiểu bàn trượt thông dụng
|
| Kí hiệu | Tên gọi |
| 1 | Vị trí hỗn hợp trộn được đưa vào tổ hợp (máy) | |
| 2 | Vị trí các sản phẩm bê tông tươi được đưa ra khỏi máy | |
| 3 | Bàn trượt | |
| 4 | Chày ép | |
| 5 | Tay đòn truyền lực | |
| 6 | Thiết bị gắp sản phẩm | |
| 7 | Hệ thống thu gom sản phẩm tươi | |
| 8 | Cơ cấu đẩy xe chở sản phẩm cứng | |
| 9 | Thiết bị xếp sản phẩm | |
| 10 | Phễu nạp liệu | |
| 11 | Hộp rải liệu | |
| Hình A.1 |
|
|
Phụ lục B
(tham khảo)
Thuật ngữ cho máy kiểu bàn xoay thông dụng
|
| Kí hiệu | Tên gọi |
| 1 | Vị trí hỗn hợp trộn được đưa vào tổ hợp (máy) | |
| 2 | Vị trí các sản phẩm bê tông tươi được đưa ra khỏi máy | |
| 3 | Bàn xoay | |
| 4 | Chày ép | |
| 5 | Tay đòn truyền lực | |
| 6 | Thiết bị gắp sản phẩm | |
| 7 | Hệ thống thu gom sản phẩm tươi | |
| 8 | Cơ cấu đẩy xe chở sản phẩm cứng | |
| 9 | Thiết bị xếp sản phẩm | |
| 10 | Phễu nạp liệu | |
| 11 | Hộp rải liệu | |
| Hình B.1 |
|
|
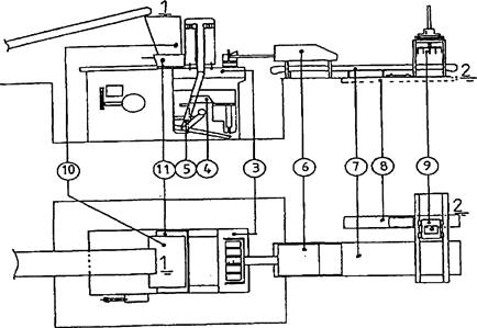
Phụ lục C
(Tham khảo)
Thuật ngữ cho máy kiểu bàn xoay dẫn động thủy lực thông dụng để sản xuất các sản phẩm bê tông
|
| Kí hiệu | Tên gọi |
| 1 | Vị trí hỗn hợp trộn được đưa vào tổ hợp (máy) | |
| 1a | Vị trí các vật liệu bổ sung được đưa vào tổ hợp (máy) | |
| 2 | Vị trí các sản phẩm tươi được đưa ra khỏi máy | |
| 3 | Bàn xoay | |
| 4 | Chày ép - búa đóng dấu sản phẩm - bộ phận gây rung | |
| 5 | Tay đòn truyền lực | |
| 6 | Thiết bị gắp sản phẩm | |
| 7 | Hệ thống thu gom sản phẩm tươi | |
| 8 | Cơ cấu cung cấp tấm pallet | |
| 9 | Phễu nạp liệu | |
| 10 | Hộp rải liệu | |
| 11 | Cơ cấu đẩy các tấm pallet | |
| 12 | Thiết bị định lượng hỗn hợp bổ sung | |
| A | Hệ thống thủy lực | |
| Hình C.1 |
|
|
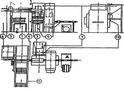
Phụ lục D
(tham khảo)
Thuật ngữ cho máy kiểu bàn trượt dẫn động thủy lực phổ biến để sản xuất các sản phẩm bê tông
|
| Kí hiệu | Tên gọi |
| 1 | Vị trí hỗn hợp trộn được đưa vào tổ hợp (máy) | |
| 2 | Vị trí các sản phẩm tươi được đưa ra khỏi máy | |
| 3 | Bàn trượt | |
| 4 | Chày ép - búa đóng dấu sản phẩm - bộ phận gây rung | |
| 5 | Tay đòn truyền lực | |
| 6 | Thiết bị gắp sản phẩm | |
| 7 | Hệ thống thu gom sản phẩm tươi | |
| 8 | Cơ cấu cung cấp tấm pallet | |
| 9 | Phễu nạp liệu | |
| 10 | Hộp rải liệu | |
| 11 | Cơ cấu đẩy các tấm pallet | |
| A | Hệ thống thủy lực | |
| Hình D.1 |
|
|
Phụ lục E
(tham khảo)
Khu vực nguy hiểm và yêu cầu đặc biệt đối với máy kiểu bàn trượt thông dụng
|
| Khu vực nguy hiểm | Mối nguy hiểm cơ học | Xem 4 | Yêu cầu và biện pháp bảo vệ, xem TCVN 11361-1:2016 (EN 12629- 1:2000/A1:2010), 5 |
| 1 | Chèn ép | 4.1.1 | 5.2 | |
| 2 | Cắt | 4.1.2 | 5.2 | |
| Cắt hoặc đứt | 4.1.3 | |||
| 3 | Cắt | 4.1.2 | 5.11 | |
| Cắt hoặc đứt | 4.1.3 | |||
| Cuốn vào hoặc mắc lại | 4.1.5 | |||
| 4 | Chèn ép | 4.1.1 | 5.11 | |
| Cắt | 4.1.2 | |||
| Cắt hoặc đứt | 4.1.3 | |||
| Cuốn vào hoặc mắc lại | 4.1.5 | |||
| 5 | Nguy hiểm do vướng vào | 4.1.4 | 5.2 | |
| 6 | Chèn ép | 4.1.1 | 5.1 | |
| Cuốn vào hoặc mắc lại | 4.1.5 | |||
| Va chạm | 4.1.6 | |||
| 7 | Cắt | 4.1.2 | 5.1 | |
| Cắt hoặc đứt | 4.1.3 | |||
| Vướng vào | 4.1.4 | |||
| Cuốn vào hoặc mắc lại | 4.1.5 | |||
| 3 | Cắt | 4.1.3 | 5.2 | |
| Cuốn vào hoặc mắc lại | 4.1.5 | |||
| Hình E.1 | 9 | Cắt hoặc đứt | 4.1.3 | 5.11 |
Phụ lục F
(tham khảo)
Khu vực nguy hiểm và yêu cầu đặc biệt đối với máy kiểu bàn xoay thông dụng
|
| Khu vực nguy hiểm | Mối nguy hiểm cơ học | Xem 4 | Yêu cầu và biện pháp bảo vệ, xem TCVN 11361-1:2016 (EN 12629- 1:2000/A1:2010), 5 |
| 1 | Chèn ép | 4.1.1 | 5.2 | |
| 2 | Cắt | 4.1.2 | 5.2 | |
| Cắt hoặc đứt | 4.1.3 | |||
| 3 | Cắt | 4.1.2 | 5.11 | |
| Cắt hoặc đứt | 4.1.3 | |||
| Cuốn vào hoặc mắc lại | 4.1.5 | |||
| 4 | Chèn ép | 4.1.1 | 5.11 | |
| Cắt | 4.1.2 | |||
| Cắt hoặc đứt | 4.1.3 | |||
| Cuốn vào hoặc mắc lại | 4.1.5 | |||
| 5 | Nguy hiểm do vướng vào | 4.1.4 | 5.2 | |
| 6 | Chèn ép | 4.1.1 | 5.1 | |
| Cuốn vào hoặc mắc lại | 4.1.5 | |||
| Va chạm | 4.1.6 | |||
|
| Cắt | 4.1.2 | 5.1 | |
|
| Cắt hoặc đứt | 4.1.3 | ||
| 7 | Vướng vào | 4.1.4 | ||
|
| Cuốn vào hoặc mắc lại | 4.1.5 | ||
| 8 | Cắt | 4.1.3 | 5.2 | |
| Cuốn vào hoặc mắc lại | 4.1.5 | |||
| Hình F.1 | 9 | Cắt hoặc đứt | 4.1.3 | 5.11 |
Phụ lục G
(tham khảo)
Khu vực nguy hiểm và yêu cầu đặc biệt đối với máy kiểu bàn xoay dẫn động thủy lực sản xuất các sản phẩm bê tông
|
| A | Hệ thống thủy lực |
|
|
| Khu vực nguy hiểm | Mối nguy hiểm cơ học | Xem 4 | Yêu cầu và biện pháp bảo vệ, xem TCVN 11361-1:2016 (EN 12629-1:2000/A1:2010), 5 | |
| 1 | Chèn ép | 4.1.1 | 5.2 | |
| 2 | Cắt | 4.1.2 | 5.2 | |
| Cắt hoặc đứt | 4.1.3 | |||
| 3 | Cắt | 4 1.2 | 5.11 | |
| Cắt hoặc đứt | 4.1.3 | |||
| Cuốn vào hoặc mắc lại | 4.1.5 | |||
| 6 | Chèn ép | 4.1.1 | 5.1 | |
| Cuốn vào hoặc mắc lại | 4.1 5 | |||
| Va chạm | 4.1.6 | |||
| 7 | Cắt | 4.1.2 | 5.1 | |
| Cắt hoặc đứt | 4.1.3 | |||
| Vướng vào Cuốn vào hoặc mắc lại | 4.1.4 4.1.5 | |||
| 8 | Cắt | 4.1.3 | 5.2 | |
| Cuốn vào hoặc mắc lại | 4.1.5 | |||
| 9 | Cắt hoặc đứt | 4.1.3 | 5.2 | |
| 11 | Chèn ép | 4.1.1 | 5.2 | |
| Cắt | 4.1.4 | |||
| Cắt hoặc đứt | 4.1 5 | |||
| 12 | Cắt | 4.1.1 | 5.2 | |
| Vướng vào | 4.1.4 | |||
| Hình G.1 | Cuốn vào hoặc mắc lại | 4 1.5 |
Phụ lục H
(tham khảo)
Khu vực nguy hiểm và yêu cầu đặc biệt đối với máy kiểu bàn trượt dẫn động thủy lực sản xuất các sản phẩm bê tông
|
| A | Hệ thống thủy lực |
|
|
| Khu vực nguy hiểm | Mối nguy hiểm cơ học | Xem 4 | Yêu cầu và biện pháp bảo vệ, xem TCVN 11361-1:2016 (EN 12629-1:2000/A1:2010), 5 | |
| 1 | Chèn ép | 4.1.1 | 5.2 | |
| 2 | Cắt | 4.1.2 | 5.2 | |
| Cắt hoặc đứt | 4.1.3 | |||
| 3 | Cắt | 4.1.2 | 5.11 | |
| Cắt hoặc đứt Cuốn vào hoặc mắc lại | 4.1.3 4.1.5 | |||
| 6 | Chèn ép | 4.1.1 |
| |
| Cuốn vào hoặc mắc lại | 4.1 5 | 5.1 | ||
| Va chạm | 4.1.6 | |||
| 7 | Cắt | 4.1.2 | 5.1 | |
| Cắt hoặc đứt | 4.1.3 | |||
| Vướng vào Cuốn vào hoặc mắc lại | 4.1.4 4.1.5 | |||
| 8 | Cắt hoặc đứt | 4.1.3 | 5.2 | |
| Cuốn vào hoặc mắc lại | 4.1.5 | |||
| 9 | Cắt hoặc đứt | 4.1.3 | 5.2 | |
| Chèn ép | 4.1.1 | 5.2 | ||
| 11 | Cắt | 4.1.2 |
| |
| Hình H.1 | Cắt hoặc đứt | 4.1.3 |
|
Thư mục tài liệu tham khảo
[1] EN 60204-1, Safety of machinery - Electrical equipment of machines - Part 1: General requirements (An toàn máy - Thiết bị điện trên máy - Phần 1: Các yêu cầu chung).
[2] TCVN 6719:2008 (ISO 13850:2008), An toàn máy- Dừng khẩn cấp - Nguyên tắc thiết kế.
[3] ISO 13857:2008, Safety of machinery - Safety distances to prevent hazard zones being reached by upper and lower limbs (An toàn máy - Khoảng cách an toàn để ngăn không cho chân và tay người chạm tới khu vực nguy hiểm).
MỤC LỤC
Lời nói đầu
Lời giới thiệu
1 Phạm vi áp dụng
2 Tài liệu viện dẫn
3 Thuật ngữ và định nghĩa
4 Danh mục các mối nguy hiểm đáng kể
5 Yêu cầu về an toàn và/ hoặc các biện pháp bảo vệ
6 Kiểm tra xác nhận các yêu cầu về an toàn và/hoặc các biện pháp bảo vệ
7 Thông tin cho sử dụng
8 Ghi nhãn
Phụ lục A Thuật ngữ cho máy kiểu bàn trượt thông dụng
Phụ lục B Thuật ngữ cho máy kiểu bàn xoay thông dụng
Phụ lục C Thuật ngữ cho máy kiểu bàn xoay dẫn động thủy lực thông dụng để sản xuất các sản phẩm bê tông
Phụ lục D Thuật ngữ cho máy kiểu bàn trượt dẫn động thủy lực phổ biến để sản xuất các sản phẩm bê tông
Phụ lục E Khu vực nguy hiểm và yêu cầu đặc biệt đối với máy kiểu bàn trượt thông dụng
Phụ lục F Khu vực nguy hiểm và yêu cầu đặc biệt đối với máy kiểu bàn xoay thông dụng
Phụ lục G Khu vực nguy hiểm và yêu cầu đặc biệt đối với máy kiểu bàn xoay dẫn động thủy lực sản xuất các sản phẩm bê tông
Phụ lục H Khu vực nguy hiểm và yêu cầu đặc biệt đối với máy kiểu bàn trượt dẫn động thủy lực sản xuất các sản phẩm bê tông
Thư mục tài liệu tham khảo
Bạn chưa Đăng nhập thành viên.
Đây là tiện ích dành cho tài khoản thành viên. Vui lòng Đăng nhập để xem chi tiết. Nếu chưa có tài khoản, vui lòng Đăng ký tại đây!







