• Tổng quan
  • Nội dung
  • VB gốc
  • Tiếng Anh
  • Hiệu lực
  • VB liên quan
  • Lược đồ
  • Nội dung hợp nhất 

    Tính năng này chỉ có tại LuatVietnam.vn. Nội dung hợp nhất tổng hợp lại tất cả các quy định còn hiệu lực của văn bản gốc và các văn bản sửa đổi, bổ sung, đính chính... trên một trang. Việc hợp nhất văn bản gốc và những văn bản, Thông tư, Nghị định hướng dẫn khác không làm thay đổi thứ tự điều khoản, nội dung.

    Khách hàng chỉ cần xem Nội dung hợp nhất là có thể nắm bắt toàn bộ quy định hiện hành đang áp dụng, cho dù văn bản gốc đã qua nhiều lần chỉnh sửa, bổ sung.

    =>> Xem hướng dẫn chi tiết cách sử dụng Nội dung hợp nhất

  • Tải về
Lưu
Đây là tiện ích dành cho tài khoản Tiêu chuẩn hoặc Nâng cao . Vui lòng Đăng nhập tài khoản để xem chi tiết.
Theo dõi VB
Đây là tiện ích dành cho tài khoản Tiêu chuẩn hoặc Nâng cao . Vui lòng Đăng nhập tài khoản để xem chi tiết.
Ghi chú
Báo lỗi
In

Văn bản hợp nhất 63/VBHN-BNNMT 2025 quy định về kiểm nghiệm và hiệu chỉnh một số thiết bị đo đạc bản đồ biển

Ngày cập nhật: Thứ Tư, 03/09/2025 10:58 (GMT+7)
Số hiệu: 63/VBHN-BNNMT Ngày ký xác thực: 29/08/2025
Loại văn bản: Văn bản hợp nhất Cơ quan hợp nhất: Bộ Nông nghiệp và Môi trường
Ngày đăng công báo:
Đang cập nhật
Người ký:
Lê Minh Ngân
Trích yếu: Thông tư quy định về kiểm nghiệm và hiệu chỉnh một số thiết bị đo đạc bản đồ biển
Số công báo:
Số công báo là mã số ấn phẩm được đăng chính thức trên ấn phẩm thông tin của Nhà nước. Mã số này do Chính phủ thống nhất quản lý.
Đang cập nhật
Ngày hết hiệu lực:
Ngày hết hiệu lực là ngày, tháng, năm văn bản chính thức không còn hiệu lực (áp dụng).
Đang cập nhật

TÓM TẮT VĂN BẢN HỢP NHẤT 63/VBHN-BNNMT

Văn bản hợp nhất 63/VBHN-BNNMT năm 2025: Kiểm nghiệm và hiệu chỉnh thiết bị đo đạc bản đồ biển

Văn bản hợp nhất 63/VBHN-BNNMT năm 2025 được Bộ Nông nghiệp và Môi trường ban hành, có hiệu lực từ ngày 01 tháng 7 năm 2025, nhằm hợp nhất và sửa đổi các quy định tại Thông tư số 27/2011/TT-BTNMT về kiểm nghiệm và hiệu chỉnh một số thiết bị đo đạc bản đồ biển. Văn bản này có ý nghĩa quan trọng trong việc quản lý chất lượng thiết bị đo đạc phục vụ cho công tác nghiên cứu và khai thác tài nguyên biển.

Theo quy định tại Điều 1 của Thông tư, phạm vi điều chỉnh bao gồm chín loại thiết bị đo đạc bản đồ biển, trong đó có máy định vị, máy đo tốc độ âm thanh và máy đo sâu hồi âm cả đơn tia và đa tia. Thông tư này áp dụng cho tổ chức và cá nhân sử dụng những thiết bị này, tạo ra một khung pháp lý rõ ràng và thống nhất cho các hoạt động đo đạc biển.

Điều 4 quy định các yêu cầu chung đối với việc kiểm nghiệm và hiệu chỉnh thiết bị đo đạc. Tất cả thiết bị phải được kiểm nghiệm, hiệu chỉnh trước khi đưa vào sử dụng và chỉ những người có chuyên môn từ 3 năm trở lên và đã hoàn thành các khóa đào tạo về an toàn lao động mới được thực hiện kiểm định. Việc này không chỉ đảm bảo an toàn mà còn nâng cao chất lượng công việc.

Một nội dung quan trọng trong văn bản là về quy trình kiểm nghiệm các thiết bị, được trình bày chi tiết trong Chương 2. Các quy trình kiểm nghiệm máy định vị, la bàn, cảm biến sóng,… được quy định rõ ràng. Ví dụ, máy định vị phải được kiểm nghiệm tại điểm chuẩn hoặc sau khi lắp đặt trên tàu, yêu cầu về độ chính xác phải được đảm bảo trong từng lần đo nhằm đảm bảo tính chính xác cao nhất cho các thiết bị.

Về việc kiểm nghiệm máy cảm biến sóng (Điều 7), văn bản quy định rõ cần sử dụng máy thủy chuẩn đã được kiểm nghiệm và phải đảm bảo quy trình kết nối và ghi lại các số liệu một cách chính xác. Kết quả kiểm tra phải được lưu trữ cùng với tất cả tài liệu gốc liên quan đến sản phẩm của dự án.

Một khía cạnh quan trọng khác là quy trình kiểm nghiệm đối với máy đo sâu hồi âm đa tia (Điều 11), yêu cầu thực hiện các bước kiểm nghiệm cụ thể để đảm bảo đối chiếu giữa các số liệu đo được và độ chính xác theo tiêu chuẩn kỹ thuật đã quy định.

Cuối cùng, văn bản cũng đề cập đến việc kiểm nghiệm và hiệu chỉnh hệ thống đo sâu, trong đó cần thực hiện các bước chi tiết để xác định các sai lệch trong quá trình đo đạc và đưa ra các giải pháp hiệu chỉnh kịp thời, đảm bảo quá trình kiểm tra chất lượng thiết bị được diễn ra hiệu quả và an toàn.

Với các quy định chi tiết và rõ ràng trong Văn bản hợp nhất 63/VBHN-BNNMT năm 2025, các tổ chức, cá nhân tham gia vào hoạt động quản lý và sử dụng thiết bị đo đạc bản đồ biển sẽ có hướng dẫn cụ thể và một nền tảng pháp lý chắc chắn để hoạt động trong lĩnh vực này.

Tải văn bản hợp nhất 63/VBHN-BNNMT

Tải văn bản tiếng Việt (.pdf) Văn bản hợp nhất 63/VBHN-BNNMT PDF (Bản có dấu đỏ)

Đây là tiện ích dành cho tài khoản thành viên. Vui lòng Đăng nhập để xem chi tiết. Nếu chưa có tài khoản, Đăng ký tại đây!

Tải văn bản tiếng Việt (.doc) Văn bản hợp nhất 63/VBHN-BNNMT DOC (Bản Word)

Đây là tiện ích dành cho tài khoản thành viên. Vui lòng Đăng nhập để xem chi tiết. Nếu chưa có tài khoản, Đăng ký tại đây!

Tình trạng hiệu lực: Đã biết
Tình trạng hiệu lực: Đã biết

 

CỘNG HÒA XÃ HỘI CHỦ NGHĨA VIỆT NAM
Độc lập - Tự do - Hạnh phúc
_____________________

 

 

THÔNG TƯ

Quy định về kiểm nghiệm và hiệu chỉnh một số thiết bị đo đạc bản đồ biển

 

Thông tư số 27/2011/TT-BTNMT ngày 20 tháng 7 năm 2011 của Bộ trưởng Bộ Tài nguyên và Môi trường quy định về kiểm nghiệm và hiệu chỉnh một số thiết bị đo đạc bản đồ biển, có hiệu lực kể từ ngày 05 tháng 9 năm 2011, được sửa đổi, bổ sung bởi:

Thông tư số 15/2025/TT-BNNMT ngày 19 tháng 6 năm 2025 của Bộ trưởng Bộ Nông nghiệp và Môi trường quy định phân quyền, phân cấp, phân định thẩm quyền và sửa đổi, bổ sung một số điều của các thông tư trong lĩnh vực biển và hải đảo, có hiệu lực kể từ ngày 01 tháng 7 năm 2025.

Căn cứ Luật Ban hành văn bản quy phạm pháp luật;

Căn cứ Nghị định số 25/2008/NĐ-CP ngày 04 tháng 3 năm 2008 của Chính phủ quy định chức năng, nhiệm vụ, quyền hạn và cơ cấu tổ chức của Bộ Tài nguyên và Môi trường, đã được sửa đổi, bổ sung tại Nghị định số 19/2010/NĐ-CP ngày 08 tháng 3 năm 2010 và Nghị định số 89/2010/NĐ-CP ngày 16 tháng 8 năm 2010 của Chính phủ;

Căn cứ Nghị định số 12/2002/NĐ-CP ngày 22 tháng 01 năm 2002 của Chính phủ về hoạt động đo đạc và bản đồ;

Xét đề nghị của Tổng cục trưởng Tổng cục Biển và Hải đảo Việt Nam, Vụ trưởng Vụ Khoa học và Công nghệ và Vụ trưởng Vụ Pháp chế [1] ,

Chương 1.

QUY ĐỊNH CHUNG

 

Điều 1. Phạm vi điều chỉnh

Thông tư này quy định về việc kiểm nghiệm và hiệu chỉnh một số thiết bị dùng trong đo đạc bản đồ biển, bao gồm:

1. Máy định vị;

2. La bàn số;

3. Máy cảm biến sóng;

4. Máy đo tốc độ âm thanh;

5. Máy đo sâu hồi âm đơn tia;

6. Máy đo sâu hồi âm đa tia;

7. Hệ thống đo sâu bằng máy đo hồi âm đơn tia;

8. Hệ thống đo sâu bằng máy đo hồi âm đa tia.

Điều 2. Đối tượng áp dụng

Thông tư này áp dụng đối với tổ chức, cá nhân khi sử dụng các thiết bị quy định tại Điều 1 của Thông tư này.

Điều 3. Giải thích từ ngữ

Trong Thông tư này, các từ ngữ sau đây được hiểu như sau:

1. Fix là việc đánh dấu hoặc lấy số liệu từ một hệ thống hoặc một máy đang đo đạc liên tục tại một thời điểm.

2. La bàn vệ tinh là máy sử dụng số liệu định vị vệ tinh thu được bằng 2 ăng ten định vị để tính ra hướng chuẩn của đường nối tâm 2 ăng ten.

3. Đầu biến âm (tiếng Anh là: Transducer) là bộ phận của máy đo sâu hồi âm thực hiện việc phát và thu sóng âm thanh để đo đạc. Khoảng cách đo đạc được tính từ mặt của đầu biến âm này tới bề mặt phản xạ sóng âm.

4. Độ ngập đầu biến âm (tiếng Anh là: Draft hoặc Draught) là khoảng cách từ mặt nước yên tĩnh đến mặt của đầu biến âm.

5. Chỉ số lệch độ sâu (Index) của một máy đo sâu hồi âm là sai lệch hệ thống trong số liệu đo đạc của máy đo sâu hồi âm, chủ yếu do sự trễ trong quá trình xử lý tín hiệu đo đạc của máy gây ra.

6. Độ lệch nghiêng dọc là góc lệch của thiết bị theo hướng nghiêng dọc tàu đo.

7. Độ lệch nghiêng ngang là góc lệch của thiết bị theo hướng nghiêng ngang tàu đo.

8. Độ lệch hướng là góc lệch của thiết bị theo hướng trục chính của tàu đo.

9. Máy cảm biến sóng là máy xác định và cung cấp các ảnh hưởng của sóng nước gây ra như nghiêng ngang tàu, nghiêng dọc tàu, độ dập dềnh để các máy móc, thiết bị khác sử dụng cho việc cải chính các kết quả đo của mình.

Điều 4. Yêu cầu chung đối với việc kiểm nghiệm, hiệu chỉnh thiết bị đo đạc biển

1. Tất cả các thiết bị và toàn hệ thống đo đạc trước khi thi công phải được kiểm nghiệm, hiệu chỉnh theo quy định tại Thông tư này. Chỉ được đưa vào sử dụng các thiết bị có kết quả kiểm nghiệm, hiệu chỉnh đạt yêu cầu.

2. Chỉ cho phép những người có trình độ chuyên môn, chuyên ngành trắc địa hoặc liên quan, có ít nhất 3 năm kinh nghiệm làm việc, đã học qua các lớp an toàn lao động và được trang bị đầy đủ các phương tiện an toàn lao động được thực hiện các công việc kiểm nghiệm, hiệu chỉnh thiết bị đo đạc biển.

3. Việc kiểm nghiệm, hiệu chỉnh thiết bị tại thực địa phải được tiến hành tại khu vực nêu trong thiết kế kỹ thuật chi tiết của dự án. Chỉ được tiến hành các công việc kiểm nghiệm, hiệu chỉnh khi điều kiện môi trường, thời tiết, khí hậu thỏa mãn điều kiện làm việc của tất cả các máy móc thiết bị dùng trong quá trình kiểm nghiệm, hiệu chỉnh.

4. Kết quả kiểm nghiệm phải được cán bộ giám sát kỹ thuật ký xác nhận.

5. Các số liệu, kết quả, báo cáo kiểm nghiệm, hiệu chỉnh phải được lưu trữ cùng với tài liệu gốc sản phẩm của dự án.

Chương 2.

KIỂM NGHIỆM THIẾT BỊ ĐO ĐẠC BẢN ĐỒ BIỂN

 

Điều 5. Kiểm nghiệm máy định vị

1. Mỗi máy định vị được kiểm nghiệm bằng một trong hai phương pháp sau:

a) Kiểm nghiệm tại điểm chuẩn;

b) Kiểm nghiệm sau khi lắp máy lên tàu đo.

2. Kiểm nghiệm tại điểm chuẩn được thực hiện như sau:

a) Đặt ăng ten định vị trên một điểm đã biết tọa độ (tương đương điểm cơ sở đo vẽ);

b) Kết nối máy định vị với máy tính;

c) Sau khi máy định vị đã hoàn tất quá trình khởi động và đi vào hoạt động ổn định, sử dụng một chương trình ghi số liệu định vị để ghi số liệu liên tục trong vòng 1 giờ, khoảng giãn cách giữa 2 lần ghi là 10 giây. Các số liệu định vị phải được tính chuyển về tọa độ phẳng (X, Y, H) theo các tham số tính chuyển được quy định trong yêu cầu kỹ thuật của dự án;

d) Lập báo cáo kết quả kiểm nghiệm theo mẫu quy định tại Phụ lục số 01 ban hành kèm theo Thông tư này sau khi đo kiểm nghiệm. Báo cáo bao gồm các nội dung sau:

- Bảng kết quả tính các độ lệch:

DX = X gốc - X thu

DY = Y gốc - Y thu

DH = H gốc - H thu

- Độ chính xác định vị mặt bằng: , (n là số lần ghi số liệu)

- Độ chính xác định vị độ cao:

 

- Kết luận: máy đáp ứng yêu cầu để đưa vào sản xuất, nếu độ chính xác mặt bằng, độ cao tính được không vượt quá độ chính xác nêu tại các chỉ tiêu kỹ thuật của máy; hoặc máy không đáp ứng yêu cầu, không được đưa vào sản xuất.

3. Kiểm nghiệm sau khi lắp máy lên tàu đo thực hiện như sau:

a) Tàu đo phải được neo, buộc chắc chắn tại cầu cảng nơi có các điểm cao tọa độ gốc có độ chính xác của các điểm khống chế đo vẽ trở lên;

b) Máy định vị phải được lắp đặt đúng yêu cầu kỹ thuật;

c) Máy toàn đạc điện tử dùng để đo kiểm nghiệm phải được kiểm nghiệm, hiệu chỉnh các nguồn sai số và phải có các tính năng kỹ thuật tối thiểu sau:

- Độ chính xác đo góc bằng 6”;

- Độ chính xác đo góc nghiêng bằng 10”;

- Độ chính xác đo cạnh bằng ±(3+3ppm)mm x D (D là độ dài cạnh đo);

d) Khoảng cách từ nơi đặt máy toàn đạc điện tử để đo kiểm nghiệm tới điểm định hướng, điểm đặt ăng ten GPS phải đảm bảo được sai số vị trí điểm đo không vượt quá 10 cm;

đ) Trước khi đo kiểm nghiệm phải kết nối và khởi động sẵn máy định vị, chương trình ghi số liệu; đồng bộ đồng hồ của hệ thống chương trình ghi số liệu định vị với đồng hồ của người đo;

e) Quá trình đo kiểm nghiệm được bắt đầu khi người phụ trách đo phát lệnh cho tổ đo bằng bộ đàm hoặc ký hiệu. Trước mỗi lần phát lệnh đo, người phụ trách phải yêu cầu những người tham gia chuẩn bị sẵn sàng. Khi tất cả đã sẵn sàng, người phụ trách phát lệnh để đồng thời đo đến ăng ten GPS bằng máy toàn đạc và fix số liệu định vị GPS. Mỗi người đo ghi số liệu đo vào sổ theo mẫu, thời điểm đo được ghi đến giây. Trường hợp máy toàn đạc có chức năng tính tọa độ tức thời thì số liệu ghi ra là tọa độ;

g) Số lần đo kiểm nghiệm không ít hơn 20 lần, khoảng cách giữa các lần đo tối thiểu là 3 phút;

h) Sau khi đo kiểm nghiệm, số liệu tọa độ của ăng ten tại các thời điểm đo kiểm được lọc ra từ tệp số liệu fix tọa độ trên tàu và số liệu đo toàn đạc để đưa vào bảng tính báo cáo kết quả kiểm nghiệm;

i) Lập báo cáo kết quả kiểm nghiệm với các nội dung như quy định tại Khoản 2 Điều này.

Điều 6. Kiểm nghiệm máy la bàn

1. Kiểm nghiệm la bàn vệ tinh

a) Việc kiểm nghiệm đối với la bàn vệ tinh thực hiện bằng cách đặt 2 ăng ten của máy lên 2 điểm đã biết hướng (hoặc đã biết tọa độ để tính được hướng chuẩn);

b) Sau khi máy hoạt động ổn định, dùng một phần mềm máy tính ghi lại số liệu hướng do máy đưa ra liên tục trong vòng 1 giờ, khoảng giãn cách giữa 2 lần ghi là 10 giây;

c) So sánh các số liệu với hướng chuẩn;

d) Lập báo cáo kết quả kiểm nghiệm theo mẫu quy định tại Phụ lục số 02 ban hành kèm theo thông tư này với các thông tin tối thiểu sau:

- Độ lệch hướng Δα = α LB - αgoc, trong đó α LB là hướng la bàn, αgoc là hướng gốc;

- Độ chính xác la bàn: , trong đó n là số lần đo.

- Kết luận: máy đáp ứng yêu cầu để đưa vào sản xuất nếu có độ chính xác tính được không vượt quá độ chính xác nêu tại các chỉ tiêu kỹ thuật của máy; hoặc máy không đáp ứng yêu cầu, không được đưa vào sản xuất.

2. Kiểm nghiệm la bàn đã lắp đặt trên tàu đo:

a) Tàu phải được neo chắc chắn tại cảng, đảm bảo hướng tàu không dao động quá 1° khi đo kiểm nghiệm;

b) Bật máy la bàn và phần mềm ghi số liệu hướng la bàn. Đồng hồ của máy tính ghi số liệu và các đồng hồ của các cán bộ thực hiện việc kiểm nghiệm phải được đồng bộ, chính xác tới 0,5 giây;

c) Sử dụng máy toàn đạc và mạng lưới tọa độ cơ sở trong khu vực kiểm nghiệm với yêu cầu đảm bảo được độ chính xác phương vị của 2 điểm đo hướng tàu không vượt quá 10’;

d) Sử dụng 2 gương đo đặt trên 2 điểm thể hiện được hướng tàu;

đ) Sau khi hệ thống ghi số liệu la bàn trên tàu hoạt động ổn định, máy toàn đạc và các gương đo đã sẵn sàng cho việc kiểm nghiệm thì bắt đầu thực hiện quá trình đo kiểm nghiệm dưới sự chỉ huy của tổ trưởng qua bộ đàm hoặc bằng ký hiệu;

e) Mỗi lần đo được thực hiện như sau:

- Người đo toàn đạc ngắm đến gương đặt phía mũi tàu, báo cho tổ trưởng khi đã sẵn sàng. Tổ trưởng phát lệnh để đồng thời đo tới gương và fix số liệu hướng la bàn;

- Người đo toàn đạc chuyển nhanh hướng ngắm tới gương đặt ở đuôi tàu, báo cho tổ trưởng khi đã sẵn sàng. Tổ trưởng phát lệnh để đồng thời đo tới gương và fix số liệu hướng la bàn;

g) Mỗi lần kiểm nghiệm thực hiện 20 lần đo. Thời gian cho một lần đo không quá 2 phút;

h) Kết quả đo đạc được tính bằng bảng tính như sau:

- Hướng tàu thực ở mỗi lần đo được tính qua tọa độ 2 điểm gương đuôi tàu - mũi tàu. Hướng la bàn được tính bằng giá trị trung bình của các giá trị ghi được trong các mốc thời gian trong mỗi lần đo;

- Độ lệch hướng mỗi lần đo tính bằng: hướng thực - hướng la bàn;

- Số cải chính tính bằng giá trị độ lệch trung bình.

Điều 7. Kiểm nghiệm máy cảm biến sóng

1. Các máy móc, thiết bị sử dụng trong kiểm nghiệm máy cảm biến sóng gồm:

a) Máy thủy chuẩn đã được kiểm nghiệm, hiệu chỉnh các hạng mục theo quy định và phải có độ chính xác xác định chênh cao đo đi và đo về đạt từ 1mm/1km trở lên;

b) Thước đo có vạch chia mm;

c) Bộ giá kiểm nghiệm có một mặt đế đặt máy cảm biến sóng, mặt đế này có vạch dấu cho hướng nghiêng dọc, nghiêng ngang của máy, tâm máy. Bộ giá có các bộ phận có thể làm nghiêng mặt đế theo các trục nghiêng dọc, nghiêng ngang của máy cảm biến sóng.

2. Quy trình thực hiện kiểm nghiệm như sau:

a) Lắp máy cảm biến sóng lên mặt đế đúng tâm và theo đúng các hướng nghiêng dọc, nghiêng ngang đã được vạch dấu;

b) Khởi động máy và kết nối máy với phần mềm kèm theo máy để ghi được các số liệu máy đo được. Dùng máy thủy chuẩn để đặt cho giá máy ở vị trí nằm ngang. Dùng phần mềm để đọc ra các giá trị lệch ban đầu của các bộ cảm biến (Roll, Pitch, Heave);

c) Thay đổi độ nghiêng của đế đặt máy theo hướng nghiêng ngang theo từng độ trên toàn dải đo nghiêng ngang của máy, dùng máy thủy chuẩn đo để xác định chính xác độ nghiêng đó. Ghi kết quả đo độ nghiêng và giá trị nghiêng ngang vào sổ đo. Nếu dải đo nghiêng ngang của máy nhỏ, số lần đo kiểm nghiệm (n) ít hơn 10 lần thì phải giảm bước thay đổi độ nghiêng đế kiểm nghiệm để có số lần đo n≥10;

d) Thay đổi độ nghiêng của đế đặt máy theo hướng nghiêng dọc theo từng độ trên toàn dải đo nghiêng dọc của máy, dùng máy thủy chuẩn đo để xác định chính xác độ nghiêng đó. Ghi kết quả đo độ nghiêng và giá trị nghiêng dọc vào sổ đo. Nếu dải đo nghiêng dọc của máy nhỏ, số lần đo kiểm nghiệm (n) ít hơn 10 lần thì phải giảm bước thay đổi độ nghiêng đế kiểm nghiệm để có số lần đo n≥10;

đ) Thay đổi độ cao của máy theo từng nấc 0,2m với độ chính xác 1cm, ghi các mực thay đổi và các số liệu đo sóng do máy đưa ra trên các mực độ cao đó ra sổ;

e) Tính sai số nghiêng ngang, nghiêng dọc và đo sóng đã đo được theo công thức , trong đó ∆ là độ lệch giữa giá trị thực tế và giá trị do máy cải chính sóng đưa ra;

g) Lập báo cáo kết quả kiểm nghiệm theo mẫu quy định tại Phụ lục số 03 ban hành kèm theo Thông tư này. Máy đạt yêu cầu nếu sai số tính được không vượt quá độ chính xác nêu tại các chỉ tiêu kỹ thuật của máy.

Điều 8. Kiểm nghiệm máy đo tốc độ âm thanh

Quy trình kiểm nghiệm máy đo tốc độ âm thanh thực hiện như sau:

1. Dùng máy kiểm nghiệm đo tốc độ âm thanh trong một thùng đựng nước tinh khiết đồng thời với việc đo nhiệt độ thùng nước đó bằng một nhiệt kế chính xác. Ghi số liệu đo tốc độ âm, nhiệt độ nước trong vòng 15 phút với giãn cách 1 phút 1 lần đọc số liệu.

2. Tính tốc độ âm thanh trong từng lần đo theo công thức:

V = 1449,2+4,67xT-0,0569xT2+0,00029xT3+(1,39-0,012xT)(S-35)+0,01625xD

Trong đó:

V là vận tốc truyền âm

T nhiệt độ nước

S độ mặn, trong trường hợp này bằng không.

D độ ngập của máy đo tốc độ âm

3. Lập bảng so sánh giữa 2 tốc độ âm đo được.

Độ lệch tính theo công thức: ΔV = V đo - V tính

Độ chính xác được tính bằng công thức

Trong đó n là số lần đo.

4. Lập báo cáo kết quả kiểm nghiệm theo mẫu quy định tại Phụ lục số 04 ban hành kèm theo Thông tư này. Máy đạt chất lượng nếu độ chính xác thu được không vượt quá độ chính xác của máy đo tốc độ âm.

Điều 9. Kiểm nghiệm máy đo sâu hồi âm đơn tia khi có máy đo tốc độ

âm thanh

1. Công tác chuẩn bị:

a) Máy đo tốc độ âm đã kiểm nghiệm đạt chất lượng kỹ thuật;

b) Đĩa kiểm nghiệm được cố định chắc chắn vào dây cáp thép không co giãn. Trên dây cáp có các dấu khoảng cách theo từng mét tính từ mặt đĩa. Sai số của các vạch dấu không quá 0,5cm;

c) Xác định và cài đặt độ ngập đầu biến âm vào máy đo;

d) Vạch dấu hạ đĩa phải được đánh dấu trên tàu đo với độ chính xác 5mm so với mặt đầu biến âm. Vạch dấu phải thuận tiện cho việc hạ đĩa kiểm nghiệm xuống theo từng nấc đo tính từ mặt đĩa tới mặt đầu biến âm;

đ) Ghi chỉ số lệch độ sâu của máy sẵn có (nếu có) ra sổ.

2. Quy trình kiểm nghiệm thực hiện như sau:

a) Dùng máy đo tốc độ âm đo tốc độ âm đi qua cột nước nơi kiểm nghiệm. Giãn cách độ sâu lấy số liệu là 0,5m;

b) Thả đĩa kiểm nghiệm xuống độ sâu nhỏ nhất máy có thể đo được, nhập số liệu tốc độ âm đã đo được cho cột nước từ đầu biến âm tới đĩa kiểm nghiệm vào máy đo sâu. Ghi số liệu đo được bằng máy đo sâu ra sổ;

c) Tính độ lệch độ sâu đo được bằng máy đo sâu (D ds ) với độ ngập thực của đĩa kiểm nghiệm (D dia ). Dùng độ lệch này để cải chính lại chỉ số lệch độ sâu ban đầu. Sau bước này, độ lệch độ sâu giữa (D ds ) và (D dia ) phải bằng 0. Với các máy không có mục riêng để nhập chỉ số lệch độ sâu này vào thì độ lệch này được cộng thêm vào mục độ ngập đầu biến âm;

d) Hạ tiếp đĩa kiểm nghiệm xuống từng nấc 2m đồng thời thay đổi tốc độ âm thanh đã đo được cho cột nước từ đầu biến âm tới đĩa kiểm nghiệm trong máy đo sâu. Ghi số liệu đo sâu (D ds ) và độ ngập (D ng ) ra sổ. Tính độ lệch độ sâu giữa (D ds ) và (D ng ). Δ i = D dsi - D ngi , trong đó D dsi - là số liệu đo sâu tại mực đo kiểm nghiệm i, D ngi - là độ ngập của đĩa kiểm nghiệm tại mực đo kiểm nghiệm i. Bước này phải được thực hiện cho tới độ sâu tối đa có thể thực hiện được và phải đo lặp lại nếu số lần đo (n) chưa vượt quá 10;

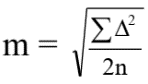
đ) Tính sai số đo sâu của máy theo công thức: ;

e) Lập báo cáo kết quả kiểm nghiệm theo mẫu quy định tại Phụ lục số 05 ban hành kèm theo Thông tư này. Máy đạt chất lượng đưa vào sử dụng nếu sai số thu được nằm trong giới hạn độ chính xác của máy.

Điều 10. Kiểm nghiệm máy đo sâu hồi âm đơn tia khi không có máy đo tốc độ âm thanh

1. Công tác chuẩn bị:

a) Đĩa kiểm nghiệm được cố định chắc chắn vào dây cáp thép không co giãn. Trên dây cáp có các dấu khoảng cách theo từng mét tính từ mặt bảng. Sai số của các vạch dấu không quá 0,5cm;

b) Xác định và cài đặt độ ngập đầu biến âm vào máy đo;

c) Vạch dấu hạ bảng phải được đánh dấu trên tàu đo với độ chính xác 5mm so với mặt đầu biến âm. Vạch dấu phải thuận tiện cho việc hạ đĩa kiểm nghiệm xuống theo từng nấc đo tính từ mặt bảng tới mặt đầu biến âm;

d) Ghi chỉ số lệch độ sâu của máy sẵn có (nếu có) ra sổ.

2. Quy trình thực hiện kiểm nghiệm:

a) Cài đặt tốc độ âm cho máy đo sâu ở giá trị thích hợp nhất mà ta có thể biết tại khu vực kiểm nghiệm. Xác định và hiệu chỉnh chỉ số lệch độ sâu ban đầu của máy;

b) Hạ đĩa xuống theo nấc 2m với độ chính xác 0,5cm, thay đổi tốc độ âm cho tới khi số đo độ sâu tới mặt đĩa trùng với độ sâu thực của đĩa. Ghi tốc độ âm tại độ sâu đó ra sổ. Bước này phải được thực hiện cho tới độ sâu tối đa có thể thực hiện được và phải điều chỉnh nấc hạ đĩa để đảm bảo số lần đo (n) nhỏ nhất là 10 lần;

c) Kéo đĩa lên từng độ sâu đã hạ đĩa với độ chính xác 0,5cm, cài đặt tốc độ âm đã ghi được cho từng độ sâu đó. Đọc và ghi số liệu độ sâu máy đo được ra sổ;

d) Tính độ lệch giữa 2 độ sâu lúc hạ đĩa và lúc kéo đĩa lên tại từng vạch kiểm nghiệm theo công thức: Δ i = D ix – D il . Trong đó D ix - là độ sâu đo được tại mực độ sâu kiểm nghiệm i khi hạ đĩa xuống. D il - là độ sâu đo được tại mực độ sâu kiểm nghiệm i khi kéo đĩa lên;

đ) Sai số đo sâu của máy được tính theo công thức: , trong đó n là số mực độ sâu tiến hành kiểm nghiệm;

e) Trường hợp sai số đo sâu thu được đảm bảo được tính năng kỹ thuật của máy thì kết luận máy đảm bảo chất lượng, đưa vào sản xuất được. Nếu sai số thu được vượt quá sai số nêu trong tính năng kỹ thuật của máy thì phải thực hiện các bước kiểm nghiệm đã nêu từ điểm b đến điểm đ khoản này thêm 2 lần nữa. Trường hợp cả 2 lần kiểm nghiệm sau cho kết quả sai số đo sâu thu được đảm bảo được tính năng kỹ thuật của máy thì kết luận máy đảm bảo chất lượng, đưa vào sản xuất được. Nếu có ít nhất 1 lần nữa không đảm bảo thì kết luận máy không đủ chất lượng đưa vào sản xuất.

Điều 11. Kiểm nghiệm máy đo sâu hồi âm đa tia

1. Việc kiểm nghiệm được thực hiện cho tia ở giữa vệt.

2. Quy trình kiểm nghiệm thực hiện như sau:

a) Sử dụng máy đo tốc độ âm đo được tốc độ âm thanh tại nơi kiểm nghiệm, nhập số liệu đã đo vào máy đo sâu;

b) Thả đĩa kiểm nghiệm xuống độ sâu nhỏ nhất máy có thể đo được. Độ sâu của bảng kiểm tra được xác định với độ chính xác 0.5cm;

c) Đo độ sâu của bảng kiểm tra bằng máy đo sâu (50 Fix với giãn cách 5 giây/1 fix);

d) Tính độ lệch độ sâu hệ thống của máy (index) bằng hiệu của độ sâu đĩa kiểm nghiệm bằng thước (D1) với độ sâu trung bình của bảng (đo bằng máy đo sâu, sau khi đã loại các số liệu sai thô) (D2);

đ) Nhập số hiệu chỉnh (index) đã tính theo công thức: I = D1 - D2 vào máy đo sâu. Sau bước này D1 phải bằng D2;

e) Hạ bảng kiểm tra xuống từng nấc 2m một với độ chính xác 0,5cm cho tới hết khả năng cho phép của điều kiện khu đo (độ sâu, dòng chảy, sóng), ở mỗi độ sâu, dùng máy đo sâu đo 25 fix với giãn cách 5 giây; Tính độ sâu trung bình đo được sau khi loại những số liệu độ sâu sai thô.

3. Lập báo cáo kết quả kiểm nghiệm theo mẫu quy định tại Phụ lục số 06 ban hành kèm theo Thông tư này với các nội dung chính sau:

a) Tính độ lệch độ sâu: Δ i = D dsi - D ngi , trong đó D dsi - là số liệu đo sâu tại mực đo kiểm nghiệm i, D ngi - là độ ngập của đĩa kiểm nghiệm tại mực đo kiểm nghiệm đó;

b) Tính sai số đo sâu của máy theo công thức:

c) Kết luận: máy đạt chất lượng đưa vào sử dụng nếu sai số thu được nằm trong giới hạn độ chính xác của máy.

Chương 3.

KIỂM NGHIỆM VÀ HIỆU CHỈNH HỆ THỐNG ĐO SÂU HỒI ÂM ĐƠN TIA VÀ ĐO SÂU HỒI ÂM ĐA TIA

 

MỤC 1. KIỂM NGHIỆM VÀ HIỆU CHỈNH HỆ THỐNG ĐO SÂU BẰNG MÁY ĐO HỒI ÂM ĐƠN TIA

Điều 12. Hệ thống đo sâu bằng máy đo hồi âm đơn tia

1. Hệ thống đo sâu bằng máy đo hồi âm đơn tia hoàn chỉnh gồm các máy sau đây kết nối lại:

a) Máy định vị;

b) Máy la bàn;

c) Máy đo sâu hồi âm đơn tia;

d) Máy cảm biến sóng;

đ) Máy tính cài phần mềm khảo sát.

2. Sau khi lắp đặt, đo đạc các độ lệch tâm, cài đặt các tham số cần thiết phải tiến hành kiểm nghiệm toàn bộ hệ thống để xác định được các số hiệu chỉnh cho toàn hệ thống hoặc cho việc xử lý số liệu.

Điều 13. Kiểm nghiệm độ lún đầu biến âm do chuyển động của tàu

1. Để xác định được độ lún của đầu biến âm khi tàu chuyển động phải sử dụng phương pháp đo thủy chuẩn hình học từ một trạm máy đặt trên bờ đến mia thủy chuẩn đặt trên vị trí của đầu biến âm trên tàu. Nếu trong khi kiểm nghiệm mực thủy triều thay đổi mạnh thì cần thêm 1 mia để đo tới mực nước thủy triều.

2. Vùng kiểm nghiệm phải đảm bảo:

a) Thuận lợi cho việc đo thủy chuẩn tới mia trên tàu;

b) Khi tàu đạt tốc độ ổn định cần thiết vẫn an toàn khi chạy theo hướng tiến vào bờ;

c) Trong khu đo không có các chướng ngại ảnh hưởng tới chuyển động của tàu.

3. Quy trình đo thực hiện như sau:

a) Đưa tàu ra vùng kiểm nghiệm, thả nổi tĩnh. Đo tới mia trên tàu và mia đo mực nước thủy triều;

b) Chạy tàu theo hướng từ bờ ra với vận tốc (số vòng quay máy) ổn định, khi chạy tới vùng kiểm nghiệm thì đọc số mia trên tàu, ghi vào cột Chạy xuôi. Sau đó quay tàu lại, chạy theo hướng vào bờ với vùng vận tốc trước đó, khi chạy tới vùng kiểm nghiệm thì đọc số đo mia trên tàu, ghi vào cột Chạy ngược;

c) Đo tới mia đo mực nước thủy triều.

4. Các lần đo theo điểm b khoản 3 Điều này được thực hiện cho các tốc độ lần lượt là 2 Knt, 3 Knt, 4 Knt, 5 Knt, 6 Knt, 7 Knt và 8 Knt (Hải lý/giờ).

5. Số liệu đo ghi theo mẫu:

Bảng 1: Mẫu bảng kiểm nghiệm độ lún đầu biến âm

Tốc độ tàu

Số đọc khi

Thủy triều

Lún

Số hiệu chỉnh

Chạy ngược

Chạy xuôi

Đứng yên

0.70

 

1.12

0.00

 

2 Knt

0.73

0.73

1.19

-0.10

0.10

3 Knt

0.65

0.63

1.33

-0.15

0.15

4 Knt

0.62

0.58

1.43

-0.21

0.21

5 Knt

0.58

0.58

1.50

-0.26

0.26

6 Knt

0.43

0.41

1.60

-0.20

0.20

Độ lún = H 0 - (H ix - H in )/2 + TT 0 - TT i

Trong đó:

H 0 - Số đọc kiểm lún khi tàu đứng yên

H ix - Số đọc kiểm lún khi tàu chạy xuôi với vận tốc i

H in - Số đọc kiểm lún khi tàu chạy ngược với vận tốc i

TT 0 - Số đọc trên mực nước thủy triều khi tàu đứng yên

TT i - Số đọc trên mực nước thủy triều khi tàu chạy với vận tốc i

6. Số hiệu chỉnh thu được này được đưa vào phần mềm khảo sát để tự động hiệu chỉnh số liệu đo theo tốc độ tàu nếu phần mềm có chức năng đó. Nếu phần mềm không có chức năng hiệu chỉnh độ lún theo tốc độ thì bảng số hiệu chỉnh này được sử dụng cho việc xử lý số liệu sau.

Điều 14. Xác định độ trễ định vị

1. Chọn khu vực có địa hình tương đối nhẵn, dốc khoảng 10-20 độ, độ sâu dưới 100m, thiết kế đường kiểm nghiệm chạy vuông góc với các đường bình độ, hướng chạy theo hướng lên dốc. Mặt nghiêng cần đủ dài (500-1000m) để có được mẫu tốt và cần đều, nhẵn (không dốc ngang, không gập gềnh);

2. Chạy đo 2 lần theo đường đã thiết kế với 2 tốc độ tàu khác nhau. Tốc độ tàu 2 lần chạy chênh nhau ít nhất 9 km/h (hình 1)

Hình 1: Đồ hình chạy tàu xác định độ trễ định vị theo mặt dốc

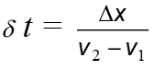
Độ trễ định vị được tính bằng công thức

v 2 là tốc độ tàu chạy nhanh;

v 1 là tốc độ tàu chạy chậm;

Δx là độ lệch vị trí mặt bằng giữa hai mặt cắt âm gần thiên đế.

Nếu mặt địa hình nơi kiểm nghiệm bằng phẳng thì có thể chạy trên một địa vật dễ nhận biết (một đụn cát chẳng hạn) với đồ hình chạy tàu như mô tả ở hình 2.

Hình 2: Đồ hình chạy tàu xác định độ trễ định vị theo mặt bằng phẳng.

 

MỤC 2. KIỂM NGHIỆM VÀ HIỆU CHỈNH HỆ THỐNG ĐO SÂU BẰNG MÁY ĐO HỒI ÂM ĐA TIA

Điều 15. Yêu cầu đối với việc kiểm nghiệm và hiệu chỉnh hệ thống đo sâu bằng máy đo hồi âm đa tia

1. Thực hiện sau khi lắp đặt hệ thống hoàn chỉnh và hoàn tất việc đo đạc xác định được các độ lệch của các thiết bị: bộ cảm biến máy cảm biến sóng, máy la bàn, đầu biến âm của máy đo sâu hồi âm đa tia, xác định được bảng độ lún đầu biến âm do chuyển động của tàu. Các tham số cần thiết (hệ tọa độ, độ cao, tham số tính chuyển, các hạn sai của định vị, đo sâu, đo hướng tàu, đo các góc nghiêng ngang, nghiêng dọc, đo độ cao của sóng) phải được cài đặt hoàn chỉnh cho hệ thống. Phải đo được số liệu mặt cắt tốc độ âm thanh ở khu vực đo kiểm tra và đưa vào hệ thống.

2. Việc kiểm nghiệm, hiệu chỉnh này chỉ được thực hiện khi thời tiết tốt, sóng dưới 1m để đảm bảo được việc đo sâu chất lượng và ít bị sóng lắc nhất.

3. Máy định vị dùng trong hệ thống phải có độ chính xác mặt bằng tốt hơn ±3m.

4. Trên tàu đo phải có ít nhất một bộ máy tính có cài đặt phần mềm xử lý số liệu kiểm nghiệm, số liệu khảo sát. Phần mềm này có các tính năng tính số hiệu chỉnh cho độ trễ định vị, độ lệch nghiêng dọc, độ lệch hướng la bàn, độ lệch nghiêng ngang của hệ thống qua các số liệu đo kiểm nghiệm.

5. Phải đo kiểm nghiệm ít nhất 2 cặp đường.

6. Lập báo cáo kết quả kiểm nghiệm theo mẫu quy định tại Phụ lục số 07 ban hành kèm theo Thông tư này.

Điều 16. Kiểm nghiệm độ lún đầu biến âm

Kiểm nghiệm độ lún đầu biến âm do chuyển động của tàu được thực hiện như đối với hệ thống đo sâu đơn tia quy định tại Điều 13 Thông tư này.

Điều 17. Kiểm nghiệm toàn hệ thống

1. Việc kiểm nghiệm toàn hệ thống được thực hiện bằng cách “đo chỉnh” để tìm ra các sai lệch sau: độ trễ định vị (đối với các hệ thống không có thiết bị đồng bộ số liệu); độ lệch nghiêng dọc; độ lệch phương vị và độ lệch nghiêng ngang.

2. Xác định độ trễ định vị: thực hiện như đối với hệ thống đo sâu hồi âm đơn tia nêu tại Điều 14 Thông tư này.

3. Xác định độ lệch nghiêng dọc:

a) Chọn khu vực có địa hình tương đối nhẵn, dốc (càng dốc càng tốt), độ sâu dưới 100m, thiết kế đường kiểm nghiệm chạy vuông góc với các đường bình độ. Chiều dài của đường chạy phải ít nhất là từ 500 đến 1000m;

b) Chạy đo 2 lần theo đường đã thiết kế cùng tốc độ tàu. Hướng chạy của 2 lần chạy là ngược nhau như mô tả tại hình 3;

Hình 3: Đồ hình chạy tàu xác định độ lệch nghiêng dọc

c) Sau khi cải chính được độ trễ định vị, độ lệch nghiêng dọc được xác định theo công thức δθ p = tg -1 , Trong đó: δθ p là độ lệch nghiêng dọc cần tìm, Δx là độ rời của 2 mặt cắt theo 2 lần đo tại điểm có độ sâu z.

4. Xác định độ lệch phương vị:

a) Độ lệch phương vị là ảnh hưởng tích hợp của các độ lệch: hướng của la bàn, hướng của đầu biến âm máy đo sâu so với trục tàu;

b) Để xác định được độ lệch còn lại này, phải chọn khu vực có địa vật rõ nét (ví dụ một đụn cát chẳng hạn). Việc đo kiểm phải được thực hiện bằng 2 đường đo theo 2 hướng ngược nhau sao hai 2 vệt đo có độ chồng phủ của các tia rìa từ 10 đến 20% vệt quét và phần chồng phủ này trùm gọn địa vật đó;

c) Để tránh nhiễu do độ trễ định vị và lệch nghiêng dọc tới việc xác định độ lệch phương vị, phải cải chính các độ trễ đó trước khi thực hiện tính toán độ lệch phương vị này;

d) Độ lệch phương vị được tính bằng công thức δα = tg-1 theo mô tả tại hình 4

Δx là độ rời của địa vật đo kiểm theo số liệu đo của 2 đường đo kiểm nghiệm.

ΔL là khoảng cách giữa 2 đường đo kiểm nghiệm.

δα là độ lệch phương vị cần tìm.

Hình 4: Đồ hình chạy tàu xác định độ lệch phương vị

5. Xác định độ lệch nghiêng ngang:

a) Độ lệch nghiêng ngang này gây ra bởi độ lệch nghiêng ngang của máy cảm biến sóng và độ lệch của đầu biến âm theo trục nghiêng ngang của tàu đo. Để đo được độ lệch này phải chọn vùng có đáy biển bằng phẳng, đo trên một đường theo 2 chiều ngược nhau. Tốc độ 2 lần chạy không đổi;

b) Để tránh nhiễu, hệ thống phải được cải chính độ trễ, nghiêng dọc và

phương vị đã xác định được;

c) Độ lệch nghiêng ngang này được xác định bằng cách đo khoảng dịch theo phương đứng của các số liệu đo sâu bởi các tia rìa của các đường đo và được tính bằng công thức δθ R = tg-1 (Δz/2.Δy) theo mô tả trên hình 5.

δθ R là độ lệch nghiêng ngang cần xác định.

z là độ sâu;

Δz là độ lệch độ sâu của 1 tia rìa

Δy là khoảng cách từ tâm đường chạy tới điểm đo Δz

 

Hình 5: Xác định độ lệch nghiêng ngang

 

 

Chương 4.

TỔ CHỨC THỰC HIỆN [2]

 

Điều 18. Hiệu lực thi hành

Thông tư này có hiệu lực thi hành kể từ ngày 05 tháng 9 năm 2011.

Điều 19. Trách nhiệm tổ chức thực hiện

Cục trưởng Cục Biển và Hải đảo Việt Nam [3] chịu trách nhiệm hướng dẫn, theo dõi, kiểm tra việc thực hiện Thông tư này.

Trong quá trình thực hiện, nếu có vướng mắc, các cơ quan, tổ chức, cá nhân phản ánh kịp thời về Bộ Nông nghiệp và Môi trường [4] để nghiên cứu, sửa đổi, bổ sung cho phù hợp./.

 

BỘ NÔNG NGHIỆP VÀ MÔI TRƯỜNG
______________

Số: 63/VBHN-BNNMT

XÁC THỰC VĂN BẢN HỢP NHẤT

Hà Nội, ngày 29 tháng 8 năm 2025

Nơi nhận:
- Văn phòng Chính phủ (để đăng công báo);
- Các Bộ, cơ quan ngang Bộ, cơ quan thuộc Chính phủ;
- UBND tỉnh, thành phố trực thuộc trung ương;
- Các Sở NN&MT tỉnh, thành phố trực thuộc trung ương;
- Cục Kiểm tra văn bản và Quản lý xử lý vi phạm hành chính, Bộ Tư pháp;
- Bộ trưởng (để báo cáo);
- Cổng TTĐT Chính phủ (để đăng tải);
- Cơ sở dữ liệu quốc gia về văn bản pháp luật (để đăng tải);
- Các đơn vị trực thuộc Bộ NN&MT;
- Cổng thông tin điện tử Bộ NN&MT;
- Lưu: VT, PC, BHĐ.

KT. BỘ TRƯỞNG
THỨ TRƯỞNG




Lê Minh Ngân

 

PHỤ LỤC SỐ 01

MẪU BÁO CÁO KẾT QUẢ KIỂM NGHIỆM MÁY ĐỊNH VỊ
(Ban hành kèm theo Thông tư số 27/2011/TT-BTNMT ngày 20 tháng 7 năm 2011 của Bộ trưởng Bộ Tài nguyên và Môi trường)

Tên dự án:..........................................................................................................

Tàu đo:...............................................................................................................

Loại máy

 

 

Ngày kiểm nghiệm

 

Tên máy

 

 

Nơi kiểm nghiệm

 

Số máy

 

 

Điều kiện thời tiết

 

Độ chính xác mặt bằng

 

 

Hệ tọa độ

 

Độ chính xác độ cao

 

 

Hệ cao độ

 

Điểm đặt máy

KT-01

 

Phương pháp kiểm nghiệm

 

X

 

 

Y

 

 

Máy đo

 

H

 

 

Chiều cao máy

 

Điểm ngắm

KT-02

 

Chiều cao gương

 

X

 

 

Phương vị định hướng

 

Y

 

 

 

 

H

 

 

 

 

 

Stt

Thời gian

Đo được từ điểm gốc

Ghi được từ máy định vị

X

Y

H

X

Y

H

1

 

 

 

 

 

 

 

2

 

 

 

 

 

 

 

3

 

 

 

 

 

 

 

4

 

 

 

 

 

 

 

 

 

 

 

 

 

 

20

 

 

 

 

 

 

 

Tổng số lần đo (n):

Độ lệch trung bình DX=

Độ lệch trung bình DY=

Độ lệch trung bình DH=

Kết luận:

Chỉ tiêu

Đạt

Không đạt

Độ chính xác mặt bằng

 

 

Độ chính xác độ cao

 

 

Máy đạt yêu cầu

 

 

 

Người kiểm nghiệm 1

 

 

Ngày thực hiện:

Người kiểm nghiệm 2

 

 

Người kiểm tra

 

 

Duyệt

 

 

 

 

PHỤ LỤC SỐ 02

MẪU BÁO CÁO KẾT QUẢ KIỂM NGHIỆM MÁY LA BÀN
(Ban hành kèm theo Thông tư số 27/2011/TT-BTNMT ngày 20 tháng 7 năm 2011 của Bộ trưởng Bộ Tài nguyên và Môi trường)

Tên dự án:..........................................................................................................

Tàu đo:...............................................................................................................

Loại máy

 

 

Ngày kiểm nghiệm

 

Tên máy

 

 

Nơi kiểm nghiệm

 

Số máy

 

 

Điều kiện thời tiết

 

Độ chính xác

 

 

Hệ tọa độ

 

Điểm đặt ăng ten 1

KT-01

 

Hệ cao độ

 

X

 

 

Phương pháp kiểm nghiệm

 

Y

 

 

Điểm đặt ăng ten 2

KT-02

 

Độ chính xác máy

 

X

 

 

Hướng gốc

 

Y

 

 

 

 

 

Stt

Thời gian

Hướng la bàn

Độ lệch

Δα = α LH - αgoc

Stt

Thời gian

Hướng la bàn

Độ lệch

Δα = α LH - αgoc

1

 

 

 

 

 

 

 

2

 

 

 

 

 

 

 

3

 

 

 

 

 

 

 

4

 

 

 

 

 

 

 

 

 

 

 

 

 

 

20

 

 

 

 

 

 

 

Tổng số lần đo (n):

Độ lệch trung bình Δα =

Kết luận:

Chỉ tiêu

Đạt

Không đạt

Độ chính xác đo hướng

 

 

Máy đạt yêu cầu

 

 

 

Người kiểm nghiệm 1

 

 

Ngày thực hiện:

Người kiểm nghiệm 2

 

 

Người kiểm tra

 

 

Duyệt

 

 

 

 

PHỤ LỤC SỐ 03

MẪU BÁO CÁO KẾT QUẢ KIỂM NGHIỆM MÁY CẢM BIẾN SÓNG
(Ban hành kèm theo Thông tư số 27/2011/TT-BTNMT ngày 20 tháng 7 năm 2011 của Bộ trưởng Bộ Tài nguyên và Môi trường)

Tên dự án:..........................................................................................................

Tàu đo:...............................................................................................................

Loại máy

 

 

Ngày kiểm nghiệm

 

Tên máy

 

 

Nơi kiểm nghiệm

 

Số máy

 

 

Điều kiện thời tiết

 

Độ chính xác nghiêng ngang

 

 

Máy thủy chuẩn

Ni…

Dải đo nghiêng ngang

 

 

Ngày kiểm nghiệm thước đo

 

Độ chính xác nghiêng dọc

 

 

Khoảng cách giữa 2 thước đo nghiêng ngang

 

Dải đo nghiêng dọc

 

 

Khoảng cách giữa 2 thước đo nghiêng dọc

 

Độ chính xác độ cao

 

 

Độ lệch nghiêng ngang sẵn có

 

Dải đo độ cao sóng

 

 

Độ lệch nghiêng dọc sẵn có

 

1. Kiểm nghiệm nghiêng ngang

St t

Số đọc thước đo 1

Số đọc thước đo 2

Chên h cao

Góc nghiêng

Góc nghiêng ghi được

Độ lệch

Δv = v1 col - v1 obs

1

 

 

 

 

 

 

2

 

 

 

 

 

 

3

 

 

 

 

 

 

4

 

 

 

 

 

 

 

 

 

 

 

 

20

 

 

 

 

 

 

Tổng số lần đo (n):

Độ lệch trung bình Δv1=

2. Kiểm nghiệm nghiêng dọc

Stt

Số đọc thước đo 1

Số đọc thước đo 2

Chênh cao

Góc nghiêng

Góc nghiêng ghi được

Độ lệch

Δv 2= v2 col – v2 obs

1

 

 

 

 

 

 

2

 

 

 

 

 

 

3

 

 

 

 

 

 

4

 

 

 

 

 

 

 

 

 

 

 

 

20

 

 

 

 

 

 

Tổng số lần đo (n):

Độ lệch trung bình Δv2 =

3. Kiểm nghiệm đo sóng

Stt

Độ cao máy trên giá đo (m)

Độ cao ghi được

Chênh cao thực

Chênh cao ghi được

Độ lệch

Δh = h reol - h obs

1

0

 

 

 

 

2

0.2

 

 

 

 

3

0.4

 

 

 

 

4

 

 

 

 

 

 

 

 

 

 

20

 

 

 

 

 

Tổng số lần đo (n):

Độ lệch trung bình Δh =

Kết luận:

Chỉ tiêu

Đạt

Không đạt

Độ chính xác đo nghiêng ngang

 

 

Độ chính xác đo nghiêng dọc

 

 

Độ chính xác đo sóng

 

 

Máy đạt yêu cầu

 

 

 

Người kiểm nghiệm 1

 

 

Ngày thực hiện:

Người kiểm nghiệm 2

 

 

Người kiểm tra

 

 

Duyệt

 

 

 

 

PHỤ LỤC SỐ 04

MẪU BÁO CÁO KẾT QUẢ KIỂM NGHIỆM MÁY ĐO TỐC ĐỘ ÂM
(Ban hành kèm theo Thông tư số 27/2011/TT-BTNMT ngày 20 tháng 7 năm 2011 của Bộ trưởng Bộ Tài nguyên và Môi trường)

Tên dự án:..........................................................................................................

Tàu đo:...............................................................................................................

Loại máy

 

 

Ngày kiểm nghiệm

 

Tên máy

 

 

Nơi kiểm nghiệm

 

Số máy

 

 

Điều kiện thời tiết

 

Độ chính xác

 

 

 

 

 

Stt

Thời gian

Độ ngập máy (Dm)

Nhiệt độ (ToC)

Độ mặn (S‰)

Tốc độ âm (m/s)

Độ lệch DV (m/s)

Tính được

Ghi được

1

 

 

 

 

 

 

 

2

 

 

 

 

 

 

 

3

 

 

 

 

 

 

 

4

 

 

 

 

 

 

 

 

 

 

 

 

 

 

20

 

 

 

 

 

 

 

Công thức tính: V = 1449,2+4,67xT-0,0569xT 2 +0,00029xT 3 +(1,39-0,012xT)(S-35)+0,01625xD

Tổng số lần đo (n):

Độ lệch trung bình: Dv=

Kết luận:

Chỉ tiêu

Đạt

Không đạt

Độ chính xác đo tốc độ âm

 

 

Máy đạt yêu cầu

 

 

 

Người kiểm nghiệm 1

 

 

Ngày thực hiện:

Người kiểm nghiệm 2

 

 

Người kiểm tra

 

 

Duyệt

 

 

 

 

PHỤ LỤC SỐ 05

MẪU BÁO CÁO KẾT QUẢ KIỂM NGHIỆM MÁY ĐO SÂU ĐƠN TIA
(Ban hành kèm theo Thông tư số 27/2011/TT-BTNMT ngày 20 tháng 7 năm 2011 của Bộ trưởng Bộ Tài nguyên và Môi trường)

Tên dự án:..........................................................................................................

Tàu đo:...............................................................................................................

Loại máy

 

 

Ngày kiểm nghiệm

 

Tên máy

 

 

Nơi kiểm nghiệm

 

Số máy

 

 

Điều kiện thời tiết

 

Độ chính xác đo sâu

 

 

Máy đo tốc độ âm loại

 

Chỉ số lệch độ sâu

 

 

Số máy

 

Độ ngập đầu biến âm

 

 

 

 

1- Kiểm nghiệm chỉ số lệch độ sâu

Khoảng cách nhỏ nhất từ đĩa tới đầu biến âm

 

 

Đo được bằng máy đo sâu

 

Tốc độ âm

 

 

Chênh

 

 

 

 

Chỉ số lệch độ sâu đã cải chính

 

2- Kiểm nghiệm máy đo sâu

Stt

Thời gian

Độ sâu đĩa

Tốc độ âm

Độ sâu máy đo

Độ lệch

1

 

 

 

 

 

2

 

 

 

 

 

3

 

 

 

 

 

4

 

 

 

 

 

 

 

 

 

 

20

 

 

 

 

 

Tổng số lần đo (n):

Độ lệch trung bình

Σ Δd 2 =

Kết luận:

Chỉ tiêu

Đạt

Không đạt

Độ chính xác đo sâu

 

 

Máy đạt yêu cầu, đưa vào sản xuất

 

 

 

Người kiểm nghiệm 1

 

 

Ngày thực hiện:

Người kiểm nghiệm 2

 

 

Người kiểm tra

 

 

Duyệt

 

 

 

 

PHỤ LỤC SỐ 06

MẪU BÁO CÁO KẾT QUẢ KIỂM NGHIỆM MÁY ĐO SÂU ĐA TIA
(Ban hành kèm theo Thông tư số 27/2011/TT-BTNMT ngày 20 tháng 7 năm 2011 của Bộ trưởng Bộ Tài nguyên và Môi trường)

Tên dự án:..........................................................................................................

Tàu đo:...............................................................................................................

Loại máy

 

 

Ngày kiểm nghiệm

 

Tên máy

 

 

Nơi kiểm nghiệm

 

Số máy

 

 

Điều kiện thời tiết

 

Độ chính xác đo sâu

 

 

Máy đo tốc độ âm loại

 

Chỉ số lệch độ sâu

 

 

Số máy

 

Độ ngập đầu biến âm

 

 

 

 

1- Kiểm nghiệm chỉ số lệch độ sâu

Khoảng cách nhỏ nhất từ đĩa tới đầu biến âm

 

 

Đo được bằng máy đo sâu

 

Tốc độ âm

 

 

Chênh

 

 

 

 

Chỉ số lệch độ sâu đã cải chính

 

2- Kiểm nghiệm máy đo sâu

Stt

Thời gian

Độ sâu đĩa

Tốc độ âm

Độ sâu máy đo

Độ lệch

1

 

 

 

 

 

2

 

 

 

 

 

3

 

 

 

 

 

4

 

 

 

 

 

 

 

 

 

 

20

 

 

 

 

 

Tổng số lần đo (n):

Độ lệch trung bình

Σ Δd 2 =

Kết luận:

Chỉ tiêu

Đạt

Không đạt

Độ chính xác đo sâu

 

 

Máy đạt yêu cầu, đưa vào sản xuất

 

 

 

Người kiểm nghiệm 1

 

 

Ngày thực hiện:

Người kiểm nghiệm 2

 

 

Người kiểm tra

 

 

Duyệt

 

 

 

 

PHỤ LỤC SỐ 07

MẪU BÁO CÁO KIỂM NGHIỆM HỆ THỐNG ĐO SÂU HỒI ÂM ĐA TIA
(Ban hành kèm theo Thông tư số 27/2011/TT-BTNMT ngày 20 tháng 7 năm 2011 của Bộ trưởng Bộ Tài nguyên và Môi trường)

CỤC BIỂN VÀ HẢI ĐẢO VIỆT NAM [5]

TRUNG TÂM TRẮC ĐỊA BẢN ĐỒ BIỂN

BÁO CÁO KIỂM NGHIỆM HỆ THỐNG ĐO SÂU HỒI ÂM ĐA TIA

TÀU :

ĐỊA ĐIỂM :

NGÀY :

DỰ ÁN :

 

Ngày

Họ và tên

Chữ ký

Thực hiện

 

 

 

Kiểm tra

 

 

 

Duyệt

 

 

 

 

MỤC LỤC

1. TÓM TẮT ..................................................................................................

2. MÔ TẢ CHUNG........................................................................................

2.1. Phạm vi công việc ....................................................................................

2.2. Nhân lực ...................................................................................................

2.3. Thiết bị .....................................................................................................

3. SƠ ĐỒ VỊ TRÍ CÁC THIẾT BỊ TRÊN TÀU ĐO..................................

4. CÔNG TÁC KIỂM NGHIỆM .................................................................

4.1. Xác định tốc độ âm...................................................................................

4.2. Các đường chạy kiểm nghiệm..................................................................

4.3. Quá trình đo kiểm nghiệm........................................................................

4.4. Xác định các số hiệu chỉnh.......................................................................

TÓM TẮT

Báo cáo này mô tả quá trình và kết quả kiểm nghiệm hệ thống đo sâu hồi âm đa tia EM1002 trên tàu Đo Đạc Biển 01, tại Hải Phòng trước khi thực hiện công tác đo đạc khảo sát cho dự án…

Quá trình kiểm nghiệm được tiến hành từ ngày 22 đến 23 tháng 7 năm 2006 khi tàu Đo Đạc Biển 01 khu vực cảng Hải Phòng.

Quá trình kiểm nghiệm đã tìm ra các số hiệu chỉnh vào hệ thống đo sâu hồi âm đa tia như sau:

Độ trễ (Latency)

0s

Độ nghiêng dọc (Pitch)

-0.75°

Độ nghiêng ngang (Roll)

-0.23°

Hướng (Yaw/Heading)

-0.40°

Các số cải chính này đã được nhập vào hệ thống để thực hiện các công tác đo đạc khảo sát tiếp theo của dự án.

1. MÔ TẢ CHUNG

1.1. Phạm vi công việc

Quá trình kiểm nghiệm được tiến hành theo thứ tự như sau:

- Thiết kế và lập đường chạy cho công tác kiểm nghiệm hệ thống MBES (dựa theo độ sâu có sẵn tại khu vực).

- Chạy các tuyến đường kiểm tra.

- Xử lý số liệu đo và tìm ra các số hiệu chỉnh vào hệ thống.

1.2. Nhân lực

Phạm Vũ Vinh Quang

Kỹ sư trắc địa

Trần Như Hưng

Kỹ sư trắc địa

Nguyễn Thế Hào

Kỹ sư trắc địa

Ngô Hoàng Giang

Kỹ sư trắc địa

- Sử dụng phần mềm xử lý số liệu độ sâu đa tia Stafix.Surface.

- Hệ thống đo sâu hồi âm đa tia EM1002 với dải 111 tia.

- Máy la bàn số: Meridian SG Brown - Gyro

- Máy cải chính sóng Seatex MRU

- Hệ thống định vị Stafix HP

- Máy đo đạc xác định tốc độ âm MiniSVP và SVP plus - Valeport

Tất cả các thiết bị, máy móc được dùng cho hệ thống này đều được qua kiểm nghiệm và thỏa mãn các chỉ tiêu kỹ thuật của nhà sản xuất.

Độ lún đầu biến âm theo tốc độ tàu được cải chính theo kết quả kiểm nghiệm đã tiến hành ngày … tháng … năm … cho tàu Đo đạc biển 01.

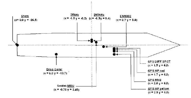
2. SƠ ĐỒ VỊ TRÍ CÁC THIẾT BỊ TRÊN TÀU ĐO

Sơ đồ các vị trí điểm đặt thiết bị trên tàu – Mặt cắt dọc

Sơ đồ các vị trí điểm đặt thiết bị trên tàu – Mặt cắt ngang

Vị trí lắp đặt các thiết bị được đo đạc vào ngày … tháng … năm … tại….. Các giá trị này được đo với độ chính xác ±5cm

3. CÔNG TÁC KIỂM NGHIỆM

3.1. Xác định tốc độ âm

Mặt cắt tốc độ âm ở khu kiểm nghiệm được xác định bằng máy đo tốc độ âm SVP Plus. Số liệu đo và tính toán được giao nộp kèm với báo cáo kiểm nghiệm.

Mặt cắt tốc độ âm thu được có đồ thị như sau:

Tốc độ âm cài đặt vào phần mềm định vị là: 1540.7 m/sec (MEAN Sound Velocity). Đối với công tác xử lý số liệu, file số liệu tốc độ âm ở các độ sâu khác nhau được nhập trực tiếp vào phần mềm xử lý.

Đồ thị tốc độ âm trên phần mềm Stafix.Surface sau khi cập nhật số liệu tốc độ âm đo được

3.2. Đường chạy kiểm nghiệm:

Công tác kiểm nghiệm được tiến hành tại khu vực có độ sâu là …m.

Tọa độ các đường chạy

L1

L2

Các số hiệu chỉnh được xác định thông qua các đường chạy như sau:

Số hiệu chỉnh

Đường chạy

Độ trễ của hệ thống (System Latency)

Tổng cộng chạy hai lần trên đường L-1 với cùng hướng chạy nhưng ở hai tốc độ khác nhau (3 hải lý và 6 hải lý)

Độ nghiêng dọc (Pitch)

Tổng cộng chạy hai lần trên đường L-1 với chiều ngược nhau và cùng tốc độ. Sử dụng đoạn dốc để kiểm nghiệm

Độ nghiêng ngang (Roll)

Tổng cộng chạy hai lần trên đường L-1 với hai hướng ngược nhau và cùng tốc độ. Sử dụng đoạn phẳng để kiểm nghiệm

Hướng (Yaw)

Tổng cộng chạy hai đường L-1, L-2 với hai hướng ngược nhau và cùng tốc độ, khoảng cách giữa hai đường được thiết kế cách nhau 250m.

Đường chạy và ảnh địa hình đáy biển thu được với độ sâu ghi chú bên cạnh.

3.3. Quá trình đo kiểm nghiệm

Quá trình đo đạc trong kiểm nghiệm này được thực hiện theo thiết kế đã nêu ở mục 4.2 trên đây. Trong quá trình đo đạc các yếu tố sau đây được đo đạc cùng một lúc:

• Độ sâu đáy biển được đo bởi máy đo sâu hồi âm đa tia Kongsberg-Simrad EM1002 với dải 111 tia. Độ sâu đặc trưng của khu đo là 75m.

• Tốc độ âm của nước ở phía bề mặt được xác định thông qua máy đo tốc độ âm bề mặt lắp đặt gần đầu biến âm của máy đo sâu hồi âm đa tia.

• Mặt cắt tốc độ âm được đo bởi máy SVP Plus ngay trước khi chạy các đường kiểm nghiệm.

• Vị trí đo được xác định bằng máy định vị Starfix HP, độ chính xác 10cm.

• Hướng tàu được xác định bằng qua la bàn (Gyro) Meridian SG BROWN.

• Các ảnh hưởng của sóng như dập dềnh, lắc nghiêng ngang, nghiêng dọc được xác định bằng máy cải chính sóng Seatex MRU.

3.4. Xác định các số hiệu chỉnh

Sau khi thực hiện việc đo đạc kiểm nghiệm theo các đường chạy thiết kế trên đây các số hiệu chỉnh được tính toán bằng các mô-đun tính toán các số hiệu chỉnh trong phần mềm xử lý số liệu Stafix Surface.

Kết quả kiểm nghiệm thu được như sau:

Độ trễ định vị (Latency)

0s

Độ nghiêng dọc (Pitch)

-0.75o

Độ nghiêng ngang (Roll)

-0.23o

Độ lệch hướng (Yaw)

-0.40o

Hình ảnh màn hình xử lý số liệu dưới đây thể hiện số liệu thu được từ các đường chạy kiểm nghiệm đã được hiệu chỉnh Pitch, Roll, Latency và Yaw. Ở cửa sổ mặt cắt, trục X thể hiện dữ liệu quét dọc tuyến đo, trục Y thể hiện độ sâu.

4.4.1. Xác định độ trễ định vị (latency)

Dữ liệu thu qua việc chạy cùng tuyến đo, có cùng hướng (28°) và tốc độ khác nhau (một đường 5.7 hải lý, một đường 3.5 hải lý).

Chọn 2 đường này để xử lý tính độ trễ định vị. Kết quả nhận được:

Độ trễ định vị (latency) = 0 giây.

Với kết quả này ta nhận thấy bằng mắt thường không có độ xê dịch nào trong mặt cắt dữ liệu thu được từ 2 lần chạy.

Kết luận: Hệ thống định vị Stafix HP hoạt động không có độ trễ trong xử lý và xuất số liệu định vị.

4.4.2. Xác định độ lệch nghiêng ngang (roll)

Sử dụng dữ liệu thu được bằng việc chạy 2 đường kiểm nghiệm với cùng vận tốc 4.5 hải lý ở hai hướng ngược nhau (28° và 208°). Chọn số liệu để tính toán là mặt cắt ngang so với đường chạy, nơi mặt địa hình bằng phẳng nhất.

Khi đặt số cải chính nghiêng ngang bằng 0, trong đồ thị ta thấy ngay dữ liệu thu được từ 2 lần chạy tạo ra độ lệch ngang của 2 mặt cắt rất rõ ràng.

Dữ liệu thu được với số hiệu chỉnh Roll = 0°

Sau khi tính toán, phần mềm cho kết quả Số hiệu chỉnh nghiêng ngang là 0.23°. Nhìn trên đồ thị mặt cắt sau khi áp dụng giá trị hiệu chỉnh Roll = 0.23° ta thấy số liệu đo trùng khớp hợp lý.

Dữ liệu với giá trị hiệu chỉnh Roll = 0.23°

4.4.3. Xác định độ lệch nghiêng dọc (Roll)

Sử dụng dữ liệu thu được từ 2 lần chạy trên một tuyến kiểm nghiệm (L-1) với hướng ngược nhau và cùng tốc độ 4.7 hải lý. Chọn số liệu để tính toán là mặt cắt dọc theo với đường chạy, nơi mặt địa hình dốc nhất.

Khi để số hiệu chỉnh Pitch = 0, ta thấy mặt cắt địa hình từ hai lần chạy vênh nhau rõ rệt.

Dữ liệu thu được với số hiệu chỉnh Pitch = 0°

Dữ liệu thu được với số hiệu chỉnh nghiêng dọc (Pitch) = -0.75°

Sau khi tính toán, phần mềm cho kết quả Số hiệu chỉnh nghiêng dọc là -0.75°. Nhìn trên đồ thị mặt cắt sau khi áp dụng giá trị hiệu chỉnh Pitch = -0.75° ta thấy số liệu đo trùng khớp hợp lý.

4.4.4. Xác định độ lệch nghiêng dọc (roll)

Sử dụng dữ liệu thu được từ 2 lần chạy trên 2 tuyến kiểm nghiệm (L-1, L-2) cách nhau 250m. Với số hiệu chỉnh Yaw = 0° cho số liệu sai lệch nhỏ trong độ phủ gối dữ liệu

Dữ liệu thu được với số hiệu chỉnh Yaw/Heading = 0°

Sau khi tính toán, kết quả Số hiệu chỉnh lệch hướng (Yaw) là -0.40°

Dữ liệu thu được với số hiệu chỉnh Yaw/Heading = -0.40°

 

Bạn chưa Đăng nhập thành viên.

Đây là tiện ích dành cho tài khoản thành viên. Vui lòng Đăng nhập để xem chi tiết. Nếu chưa có tài khoản, vui lòng Đăng ký tại đây!

Văn bản hợp nhất 63/VBHN-BNNMT năm 2025 do Bộ Nông nghiệp và Môi trường ban hành hợp nhất Thông tư quy định về kiểm nghiệm và hiệu chỉnh một số thiết bị đo đạc bản đồ biển

Bạn chưa Đăng nhập thành viên.

Đây là tiện ích dành cho tài khoản thành viên. Vui lòng Đăng nhập để xem chi tiết. Nếu chưa có tài khoản, vui lòng Đăng ký tại đây!

* Lưu ý: Để đọc được văn bản tải trên Luatvietnam.vn, bạn cần cài phần mềm đọc file DOC, DOCX và phần mềm đọc file PDF.
Từ khóa liên quan: Thông tư 27/2011/TT-BTNMT

văn bản cùng lĩnh vực

văn bản mới nhất

CHÍNH SÁCH BẢO VỆ DỮ LIỆU CÁ NHÂN
Yêu cầu hỗ trợYêu cầu hỗ trợ
Chú thích màu chỉ dẫn
Chú thích màu chỉ dẫn:
Các nội dung của VB này được VB khác thay đổi, hướng dẫn sẽ được làm nổi bật bằng các màu sắc:
Sửa đổi, bổ sung, đính chính
Thay thế
Hướng dẫn
Bãi bỏ
Bãi bỏ cụm từ
Bình luận
Click vào nội dung được bôi màu để xem chi tiết.
×