- Tổng quan
- Nội dung
- Tiêu chuẩn liên quan
- Lược đồ
- Tải về
Tiêu chuẩn Việt Nam TCVN 8:1993 Các nét vẽ
| Số hiệu: | TCVN 8:1993 | Loại văn bản: | Tiêu chuẩn Việt Nam |
| Cơ quan ban hành: | Đang cập nhật | Lĩnh vực: | Khoa học-Công nghệ |
|
Ngày ban hành:
Ngày ban hành là ngày, tháng, năm văn bản được thông qua hoặc ký ban hành.
|
1993 |
Hiệu lực:
|
Đang cập nhật |
| Người ký: | Đang cập nhật |
Tình trạng hiệu lực:
Cho biết trạng thái hiệu lực của văn bản đang tra cứu: Chưa áp dụng, Còn hiệu lực, Hết hiệu lực, Hết hiệu lực 1 phần; Đã sửa đổi, Đính chính hay Không còn phù hợp,...
|
Đã biết
|
TÓM TẮT TIÊU CHUẨN VIỆT NAM TCVN 8:1993
Nội dung tóm tắt đang được cập nhật, Quý khách vui lòng quay lại sau!
Tải tiêu chuẩn Việt Nam TCVN 8:1993
TIÊU CHUẨN VIỆT NAM
TCVN 8 : 1993
CÁC NÉT VẼ
Lines
Tiêu chuẩn này quy định tổng quát các loại nét sử dụng trên các bản vẽ kĩ thuật. Các ngành công nghiệp có thể vận dụng tiêu chuẩn này để ban hành thêm tiêu chuẩn ngành khi cần thiết.
1. Các loại nét vẽ
Chỉ được sử dụng những loại nét vẽ liệt kê trong bảng dưới đây. Khi cần phải thay đổi chiều rộng của nét trong một lĩnh vực công nghiệp đặc biệt nào đó hoặc nếu các nét vẽ này có những áp dụng khác nhau với những áp dụng đã ghi ở cột thứ ba trong bảng thì phải có giải thích trên bản vẽ.
| Nét vẽ | Tên gọi | Áp dụng tổng quát |
| 1 | 2 | 3 |
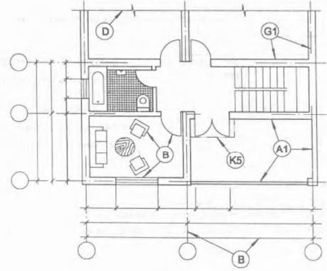
| A | Nét liền đậm | A1 Cạnh thấy, đường bao thấy. A2 Đường ren thấy, đường đỉnh răng thấy. |
| B | Nét liền mảnh | B1 Giao tuyến tưởng tượng. B2 Đường kích thước. B3 Đường dẫn, đường dóng kích thước. B4 Thân mũi tên chỉ hướng nhìn B5 Đường gạch gạch trên mặt cắt. B6 Đường bao mặt cắt chập. B7 Đường tâm ngắn. B8 Đường chân ren thấy. |
|
| Nét lượn sóng Nét dích dắc (1) | Đường giới hạn hình cắt hoặc hình chiếu khi không dùng đường trục làm đường giới hạn |
| E
F | Nét đứt đậm Nét đứt mảnh | Đường bao khuất, cạnh khuất. Đường bao khuất, cạnh khuất (2). |
| G | Nét gạch chấm mảnh | G1 Đường tâm. G2 Đường trục đối xứng. G3 Quỹ đạo. G4 Mặt chia của bánh răng. |
|
| Nét cắt | Vết của mặt phẳng cắt. |
| J | Nét gạch chấm đậm | Chỉ dẫn các đường hoặc mặt cần có xử lí riêng. |
| K | Nét gạch hai chấm mảnh | K1 Đường bao của chi tiết lân cận. K2 Các vị trí đầu, cuối và trung gian của chi tiết di động. K3 Đường trọng tâm. K4 Đường bao của chi tiết trước khi hình thành. K5 Bộ phận của chi tiết nằm ở phí trước mặt phẳng cắt. |
Chú thích của bảng
(1) Thích hợp khi sử dụng máy vẽ.
(2) Chỉ được dùng một trong hai loại trên cùng một bản vẽ.
Các hình vẽ dưới đây minh họa một số áp dụng của các nét đã quy định.

Hình 1.

Hình 2.

Hình 3.
2. Chiều rộng của các nét vẽ
Quy định sử dụng hai chiều rộng nét trên một bản vẽ, tỉ số chiều rộng của nét đậm và nét mảnh không được nhỏ hơn 2:1.
Các chiều rộng của nét cần chọn sao cho phù hợp kích thước, loại bản vẽ và căn cứ vào dãy kích thước sau: 0,18-0,25, 0,35-0,5-0,7-1-1,4 và 2mm.
Chiều rộng của cùng một nét trong một bản vẽ phải được đảm bảo không thay đổi trên các hình khác nhau của chi tiết vẽ theo cùng tỉ lệ.
Chú thích: Không khuyến khích sử dụng chiều rộng 0,18mm do những khó khăn của một số phương tiện ấn loát.
3. Quy tắc vẽ
3.1. Khoảng cách nhỏ nhất giữa hai đường song song, bao gồm cả trường hợp các đường gạch gạch mặt cắt, không được nhỏ hơn hai lần chiều rộng của nét đậm nhất. Khoảng cách này không bao giờ chọn nhỏ hơn 0,7mm.
3.2. Khi hai hay nhiều nét khác loại trùng nhau thì cần tuân theo thứ tự ưu tiên sau (hình 4):
a) Đường bao thấy, cạnh thấy (nét liền đậm, loại A).
b) Đường bao khuất, cạnh khuất (nét đứt, loại E hay F).
c) Mặt phẳng cắt (nét gạch chấm mảnh, tô đậm ở hai đầu và ở chỗ thay đổi mặt phẳng cắt, loại H).
d) Đường tâm và trục đối xứng ( nét gạch chấm mảnh, loại G).
e) Đường trọng tâm ( nét gạch hai chấm mảnh, loại K).
f) Đường dóng kích thước (nét liền mảnh, loại B).
3.3. Các đường dẫn liên quan đến một phần tử nào đó (kích thước, vật thể, đường bao v.v..) phải vẽ nghiêng so với các đường khác của bản vẽ để tránh gây nhầm lẫn và phải tận cùng:
- Bằng một dấu chấm nếu đường dẫn kết thúc ở bên trong đường bao của vật thể ( hình 5a).
- Bằng một mũi tên nếu đường dẫn kết thúc ở đường bao của vật thể (hình 5b).
- Không có dấu hiệu gì nếu đường dẫn kết thúc ở một đường kích thước (hình 5c).
3.4. Tâm các cung tròn, các vòng tròn, giao điểm của các nét phải được vẽ bằng giao điểm của hai gạch (hình 6).
3.5. Các nét gạch chấm hoặc hai chấm phải được bắt đầu, kết thúc bằng các gạch và kẻ quá đường bao một đoạn bằng 3 đến 5 lần chiều rộng của nét đậm
3.6 Đối với những đường tâm, đường trục dài, cho phép thay thế dấu chấm trong nét gạch chấm mảnh bởi một gạch nhỏ và mảnh nếu điều này không gây nhầm lẫn trên bản vẽ.

Bạn chưa Đăng nhập thành viên.
Đây là tiện ích dành cho tài khoản thành viên. Vui lòng Đăng nhập để xem chi tiết. Nếu chưa có tài khoản, vui lòng Đăng ký tại đây!

