- Tổng quan
- Nội dung
- Tiêu chuẩn liên quan
- Lược đồ
- Tải về
Tiêu chuẩn Quốc gia TCVN 7022:2002 Yêu cầu thiết kế trạm y tế cơ sở
| Số hiệu: | TCVN 7022:2002 | Loại văn bản: | Tiêu chuẩn Việt Nam |
| Cơ quan ban hành: | Bộ Khoa học và Công nghệ | Lĩnh vực: | Y tế-Sức khỏe , Xây dựng |
|
Ngày ban hành:
Ngày ban hành là ngày, tháng, năm văn bản được thông qua hoặc ký ban hành.
|
2002 |
Hiệu lực:
|
Đã biết
|
| Người ký: | Đang cập nhật |
Tình trạng hiệu lực:
Cho biết trạng thái hiệu lực của văn bản đang tra cứu: Chưa áp dụng, Còn hiệu lực, Hết hiệu lực, Hết hiệu lực 1 phần; Đã sửa đổi, Đính chính hay Không còn phù hợp,...
|
Đã biết
|
TÓM TẮT TIÊU CHUẨN VIỆT NAM TCVN 7022:2002
Nội dung tóm tắt đang được cập nhật, Quý khách vui lòng quay lại sau!
Tải tiêu chuẩn Việt Nam TCVN 7022:2002
TIÊU CHUẨN QUỐC GIA
TCVN 7022 : 2002
TRẠM Y TẾ CƠ SỞ - YÊU CẦU THIẾT KẾ
Local medical care - Design requirements
Lời nói đầu
TCVN 7022 : 2002 do Ban kỹ thuật tiêu chuẩn TCVN/TC210 "Quản lý chất lượng trang thiết bị và công trình y tế" biên soạn, Tổng cục Tiêu chuẩn Đo lường Chất lượng đề nghị, Bộ Khoa học và Công nghệ ban hành.
Tiêu chuẩn này được chuyển đổi năm 2008 từ Tiêu chuẩn Việt Nam cùng số hiệu thành Tiêu chuẩn Quốc gia theo quy định tại khoản 1 Điều 69 của Luật Tiêu chuẩn và Quy chuẩn kỹ thuật và điểm a khoản 1 Điều 6 Nghị định số 127/2007/NĐ-CP ngày 1/8/2007 của Chính phủ quy định chi tiết thi hành một số điều của Luật Tiêu chuẩn và Quy chuẩn kỹ thuật.
TRẠM Y TẾ CƠ SỞ - YÊU CẦU THIẾT KẾ
Local medical care - Design requirements
1. Phạm vi áp dụng
Tiêu chuẩn này quy định các yêu cầu cơ bản để lập dự án đầu tư, thiết kế xây dựng mới và thiết kế cải tạo trạm y tế cơ sở.
Chú thích - Trường hợp cải tạo trạm y tế cơ sở, những quy định về diện tích, mật độ xây dựng không nhất thiết phải theo quy định trong tiêu chuẩn này, nhưng không được ảnh hưởng đến công tác khám chữa bệnh tại trạm y tế cơ sở.
2. Tiêu chuẩn viện dẫn
TCVN 2748 : 1991 Phân cấp công trình xây dựng - Nguyên tắc chung.
TCVN 2622 : 1995 Phòng chống cháy cho nhà và công trình - Yêu cầu thiết kế.
3 Quy định chung
3.1. Trạm y tế cơ sở - là đơn vị y tế đầu tiên trong bậc thang điều trị để thực hiện các hoạt động chăm sóc sức khỏe ban đầu và khám chữa bệnh thông thường cho cộng đồng dân cư, trong phạm vi một xã, phường, thị trấn (sau đây gọi là trạm).
Chú thích - Các công trường, xí nghiệp tùy theo số lượng nhân viên có thể tổ chức một trạm.
3.2. Trạm gồm các không gian để thực hiện nhiệm vụ chuyên môn sau:
a) đón tiếp, tuyên truyền và tư vấn về chăm sóc sức khỏe ban đầu;
b) dịch vụ phòng bệnh: tiêm chủng, uống vắc xin, ….;
c) khám và chữa bệnh: tây y, y học cổ truyền;
d) chăm sóc sức khỏe bà mẹ, trẻ em và dịch vụ kế hoạch hóa gia đình;
e) lưu bệnh nhân để theo dõi và điều trị;
f) các xét nghiệm đơn giản;
g) cung ứng dược phẩm thông thường;
h) khu phụ trợ (kho, bếp, khu vệ sinh) sân vườn và đường nội bộ.
3.3. Trạm được thiết kế phù hợp với đặc điểm địa lý của ba vùng miền:
a) vùng không lũ lụt (xem phụ lục A), cần chú ý tới đặc điểm khí hậu;
b) vùng lũ lụt (xem phụ lục B), cần chú ý tới yêu cầu phòng chống thiên tai;
c) vùng sâu, vùng xa (núi cao, hải đảo) (xem phụ lục C), tùy theo thực tế xây dựng cần triệt để sử dụng vật liệu sẵn có tại địa phương.
Tại mỗi vùng cần chú ý đến qui mô dân số:
a) vùng có qui mô dân số lớn hơn 10 000 dân;
b) vùng có qui mô dân số từ 5 000 dân đến 10 000 dân;
c) vùng có qui mô dân số không lớn hơn 5 000 dân.
3.4. Trạm phải có kết cấu xây dựng bền vững đạt tiêu chuẩn công trình cấp II phù hợp với quy định tại TCVN 2748 : 1991.
4 Yêu cầu về khu đất xây dựng
Khu đất xây dựng trạm phải đảm bảo các yêu cầu sau:
a) vị trí khu đất xây dựng trạm cần đặt gần trục giao thông qua các khu vực trung tâm liên xã, phường, thị trấn; thuận tiện cho cư dân tới trạm khi có nhu cầu; phù hợp với yêu cầu qui hoạch chung và đảm bảo bán kính phục vụ;
b) khu đất xây dựng trạm phải thoáng, cao ráo, ít tốn kém về xử lý nền móng hoặc thoát nước thải, nước mặt;
c) khu đất xây dựng trạm phải đảm bảo có nguồn cung cấp nước sạch thường xuyên và đầy đủ.
5 Yêu cầu về mặt bằng tổng thể
5.1 Diện tích đất xây dựng trạm cần khoảng 600 m2 ¸ 1 200 m2 đủ để bố trí các hạng mục:
a) nhà trạm và công trình phụ trợ;
b) sân vườn cây xanh (cây tạo bóng mát, vườn hoa, vườn cây thuốc);
c) đường giao thông nội bộ, cổng và tường rào
5.2 Nhà trạm gồm các hạng mục:
- sảnh đón tiếp (hoặc không gian đa năng);
- phòng khám chữa bệnh tây y;
- phòng khám chữa bệnh theo phương pháp y học cổ truyền;
- phòng đẻ;
- phòng thực hiện dịch vụ kế hoạch hóa gia đình;
- phòng rửa, tiệt trùng dụng cụ;
- phòng lưu sau đẻ;
- phòng lưu bệnh nhân thông thường;
- quầy thuốc.
Công trình phụ trợ gồm có:
- phòng vệ sinh;
- kho dụng cụ;
- nhà bếp;
- nguồn cấp nước sạch và hệ thống thoát nước;
- sân vườn.
Mật độ xây dựng cho phép khoảng 30 % ¸ 35 % diện tích khu đất.
Chú thích - Khoảng cách giới hạn từ mép ngoài tường rào cổng chính tới mặt trước nhà trạm phải không nhỏ hơn 6 m.
5.3. Tỷ lệ diện tích sân vườn cây xanh chiếm 30 % ¸ 40 % diện tích khu đất.
Chú thích:
- vườn cây thuốc phải cách mép tường ngoài nhà trạm lớn hơn 2 m;
- không được trồng các loại cây có gai, cây có nhựa độc hoặc cây có hoa quả thu hút côn trùng.
5.4. Đường đi giữa các bộ phận trong khuôn viên trạm có chiều rộng không nhỏ hơn 1,2 m. Phía ngoài nhà trạm phải có sân chờ và bãi để xe, hoặc ở vùng ngập nước, cần bố trí xây dựng bến thuyền để đưa đón nhân viên y tế và bệnh nhân.
6. Yêu cầu về giải pháp thiết kế các hạng mục công trình
6.1. Yêu cầu chung
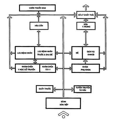
6.1.1. Giải pháp mặt bằng kiến trúc trạm phải đảm bảo các yêu cầu:
a) phù hợp với yêu cầu sử dụng chăm sóc sức khỏe ban đầu và phòng, chống bệnh dịch cho cộng đồng;
b) sơ đồ chức năng được bố trí phải đảm bảo nguyên lý một chiều, như minh họa tại sơ đồ hình 1;
c) các phòng khám chữa bệnh, phòng đẻ và phòng thực hiện các dịch vụ kế hoạch hóa gia đình phải bố trí riêng biệt, đảm bảo vô khuẩn.

Hình 1 - Sơ đồ chức năng của trạm y tế cơ sở
6.1.2. Chiều cao thông thường
a) ở các phòng trong trạm, phải không nhỏ hơn 3,3 m;
b) ở các phòng phụ trợ, phải không nhỏ hơn 2,8 m.
6.1.3. Chiều rộng thông thường cho hành lang
a) hành lang có chỗ đợi: 1,5 m đến 2,8 m;
b) hành lang không có chỗ đợi: 1,2 m đến 1,5 m.
Hành lang phải có mái hiên đủ rộng tránh được mưa, nắng.
6.1.4. Cửa đi
a) chiều cao cửa 2,1 m ¸ 2,4 m;
b) cửa phòng thông thường có chiều rộng 1 m;
c) cửa đi để chuyển cáng, đòn võng có chiều rộng không nhỏ hơn 1,4 m;
d) cửa phòng đẻ có chiều rộng không nhỏ hơn 1,2 m;
e) cửa phòng phụ trợ có chiều rộng không nhỏ hơn 0,7 m.
6.1.5. Cầu thang
Độ dốc, không lớn hơn 30°
Chiều rộng thông thường, không nhỏ hơn 1,2 m
Chiều rộng chiếu nghỉ, không nhỏ hơn 1,2 m
Chú thích - Đối với vùng ngập nước, có lũ lụt, cầu thang phải có nơi đón, neo đậu xuồng thuyền.
6.2. Yêu cầu đối với các bộ phận công trình
6.2.1. Sảnh đón tiếp đặt ngay lối cửa chính có hành lang liên hệ trực tiếp với các không gian chức năng, diện tích 8 m2 đến 12 m2.
6.2.1.1. Sảnh đón tiếp phải có đủ diện tích bố trí bàn làm thủ tục và ghế đợi khám bệnh.
6.2.1.2. Sảnh có thể bố trí kết hợp với không gian đa năng, không gian khám bệnh.
6.2.1.3. Quầy, tủ thuốc có thể đặt trong không gian sảnh.
6.2.2. Không gian đa năng là nơi tuyên truyền, tư vấn phục vụ các chương trình tiêm chủng mở rộng và uống vắc xin, diện tích từ 14 m2 đến 16 m2.
6.2.2.1. Không gian đa năng bố trí gần lối vào, có thể kết hợp các chức năng sảnh tiếp đón, khám bệnh thông thường.
6.2.2.2. Không gian đa năng phải có diện tích bố trí các băng ghế đợi, nghe tuyên truyền tư vấn và hội họp; có bảng panô tuyên truyền, cổ động công tác chăm sóc sức khỏe; có tủ trưng bày, lưu trữ.
6.2.3. Phòng khám - chữa bệnh tây y thực hiện công tác khám chữa các bệnh thông thường và tổ chức sơ cứu ban đầu, có diện tích không nhỏ hơn 12 m2.
6.2.3.1. Phòng phải có diện tích bố trí bàn làm việc, giường khám, chậu rửa tay.
6.2.3.2. Nếu có kết hợp chức năng thực hiện thủ thuật, tiêm tại chỗ thì có thể tăng thêm diện tích 2 m2 đến 4 m2.
6.2.4. Phòng khám - chữa bệnh theo phương pháp y học cổ truyền có diện tích không nhỏ hơn 12 m2.
6.2.4.1. Phòng phải có diện tích bố trí giường xoa bóp, bấm huyệt và châm cứu.
6.2.4.2. Phòng có thể kết hợp với hành lang phụ để phơi sấy, chặt, thái thuốc.
6.2.4.3. Đối với trạm có lương y kê đơn bốc thuốc tại chỗ, phải có bàn bắt mạch, bốc thuốc và tủ thuốc.
6.2.5. Phòng đẻ có diện tích không nhỏ hơn 14 m2.
6.2.5.1. Phòng đẻ bố trí bàn đẻ và bàn đón trẻ sơ sinh, chỗ rửa tay, xe đẩy đựng dụng cụ.
6.2.5.2. Phòng đẻ liên hệ với khu tiệt trùng cần phải có vách ngăn và có cửa riêng chuyển đồ bẩn và nhiễm khuẩn. Dây chuyền sạch bẩn một chiều. Có tủ đựng dụng cụ sạch.
6.2.6. Phòng thực hiện các dịch vụ kế hoạch hóa gia đình đặt liền sát phòng đẻ và khu rửa tiệt trùng, có diện tích không nhỏ hơn 14 m2.
6.2.6.1 Phòng có bố trí bàn thủ thuật, chậu rửa tay và xe đẩy đựng dụng cụ.
6.2.6.2. Phòng có lối liên hệ với khu tiệt trùng (chung với khu tiệt trùng phòng đẻ). Dây chuyền sạch bẩn một chiều.
6.2.7 Phòng rửa, tiệt trùng dụng cụ đặt giữa phòng đẻ và phòng thực hiện các dịch vụ kế hoạch hóa gia đình, có diện tích không nhỏ hơn 5 m2.
Phòng phải có cửa riêng thoát ra ngoài, đảm bảo dây chuyền sạch bẩn một chiều.
6.2.8. Phòng lưu sau đẻ ở liền kề phòng đẻ, có diện tích không nhỏ hơn 12 m2.
6.2.8.1. Phòng có bố trí hai giường bệnh nhân, có cửa liên hệ trực tiếp với phòng đẻ.
6.2.8.2. Điều kiện cho phép:
- nên tách riêng bệnh nhân chờ đẻ và sản phụ sau đẻ, thực hiện kế hoạch hóa gia đình thành hai phòng, diện tích không nhỏ hơn 8 m2/phòng;
- nên có nơi vệ sinh riêng cho sản phụ, diện tích không nhỏ hơn 5 m2, liền phòng khép kín.
6.2.9. Phòng lưu bệnh nhân thông thường có diện tích không nhỏ hơn 12 m2 (đối với phòng 2 giường) hoặc không nhỏ hơn 16 m2 (đối với phòng 3 giường).
6.2.9.1. Tùy theo qui mô phục vụ, phòng bố trí 2 đến 3 giường bệnh.
6.2.9.2. Phòng lưu bệnh nhân nên gần khu vệ sinh chung.
6.2.10. Phòng vệ sinh chung có diện tích không nhỏ hơn 4 m2.
6.2.10.1. Nên đặt trong khối nhà trạm và có bể tự hoại.
6.2.10.2 Vùng sâu vùng xa nếu do phong tục tập quán, có thể để phòng vệ sinh bên ngoài nhà trạm, nhưng khoảng cách tới trạm không nhỏ hơn 10 m và phải đảm bảo các điều kiện vệ sinh, mỹ quan.
6.2.11. Kho thiết bị dụng cụ có thể tận dụng phần xép phía trên phòng rửa tiệt trùng. Có diện tích 4 m2 đến 6 m2.
6.2.12. Nhà bếp đặt ở cuối hướng gió, phía sau công trình chính. Có diện tích không nhỏ hơn 8 m2.
6.2.13. Quầy thuốc đặt ở vị trí dễ tiếp cận trực tiếp gần cổng chính, sảnh. Quầy có tủ quản lý thuốc, dược phẩm. Có diện tích không nhỏ hơn 4 m2.
6.2.14. Hành lang, lối đi bên trong nhà có diện tích không được vượt quá 35 % diện tích xây dựng trạm.
7. Yêu cầu về giải pháp kỹ thuật
7.1. Chiếu sáng và thông gió
7.1.1. Trong trạm, các phòng phải được chiếu sáng tự nhiên trực tiếp và thông gió tự nhiên.
7.1.2. Hệ thống chiếu sáng tự nhiên cho các phòng theo tiêu chuẩn ghi ở bảng 1.
Bảng 1 - Hệ thống chiếu sáng
Tính bằng phần trăm
| Loại phòng | Tỷ lệ diện tích cửa/diện tích sàn |
| Các phòng chủ yếu, không nhỏ hơn | 20 |
| Các phòng tạm lưu, phòng phụ trợ, không nhỏ hơn | 10 |
7.2. Kỹ thuật hạ tầng
7.2.1. Cấp điện
7.2.1.1. Trạm phải được cấp điện chiếu sáng và điện cho thiết bị.
7.2.1.2. Trạm phải có nguồn điện dự phòng.
7.2.1.3. Mạng điện phải đảm bảo an toàn chống điện giật và chập điện.
7.2.2. Cấp nước
Trạm phải được cấp đủ nước sạch liên tục cho hoạt động của trạm.
7.2.3. Hệ thống thoát nước
Trạm phải có hệ thống xử lý nước thải và thoát nước mặt không ảnh hưởng đến môi trường.
Phòng đẻ và phòng thực hiện các dịch vụ kế hoạch hóa gia đình phải có hệ thống ống kín thu nước sàn khi cọ rửa.
7.2.4. Chất thải rắn
Phải có nơi đốt, hố chôn chất thải rắn. Nơi đốt hoặc hố chôn phải bố trí ở ngoài nhà, cuối hướng gió và cách công trình chính không nhỏ hơn 20 m.
7.2.5. Thông tin liên lạc: trạm được trang bị điện thoại cố định.
7.3. Yêu cầu về phòng cháy, chữa cháy
7.3.1. Trạm y tế cơ sở là công trình chịu lửa bậc III phù hợp với quy định tại TCVN 2748 : 1991.
7.3.2. Trạm phải có đủ các phương tiện chữa cháy: bình bọt, bể nước. Nguồn nước dự trữ không được cách trạm quá xa. Thể tích bể không nhỏ hơn 6 m3.
7.4. Yêu cầu về kết cấu hoàn thiện công trình
7.4.1. Tường
Tường có thể sơn hoặc quét vôi màu sáng. Phòng khám, chữa bệnh phải được ốp gạch chân tường cao từ 1,8 m đến 2,0 m. Tường phòng đẻ, phòng thực hiện các dịch vụ kế hoạch hóa gia đình phải ốp gạch men kính hoặc sơn chống thấm từ sàn tới trần nhà.
7.4.2. Sàn
Sàn được lát bằng gạch hoa.
Sàn phòng đẻ, phòng thực hiện các dịch vụ kế hoạch hóa gia đình phải có biện pháp chống trơn và dễ vệ sinh cọ rửa.
7.4.3. Trần
Trần có thể phẳng hoặc dốc nhưng phải đủ điều kiện cách nhiệt, cách ẩm, chống thấm tốt. Có thể kết hợp chiếu sáng từ trần. Phải sơn hoặc quét vôi màu sáng. Trần liền, không hoa văn.
7.4.4. Cửa sổ
Dùng cửa sổ bằng panô hoặc chớp có hoa sắt bảo vệ. Ở vùng có mùa lạnh cần có thêm lớp cửa panô kính. Chống được xâm nhập của côn trùng.
7.4.5 Cửa đi
Cửa đi phải có khuôn, panô gỗ, nhôm hoặc sắt, đảm bảo an toàn, bền vững.
Các cửa bên trong phòng khám, phòng đẻ, phòng thực hiện dịch vụ kế hoạch hóa gia đình phải kín đáo.
7.4.6. Công trình trạm phải có kết cấu đơn giản bền vững, dễ thi công xây dựng, vật liệu phù hợp với điều kiện xây dựng tại địa phương và các hoàn cảnh cụ thể.
7.4.7. Công trình phải được hoàn thiện tốt theo các yêu cầu chức năng, cả nội thất, ngoại thất và sân vườn.
7.4.8. Hình thức kiến trúc của trạm phải đẹp, hiện đại, thể hiện tính đặc thù công trình, chú ý tới các yếu tố kiến trúc truyền thống, nông thôn Việt Nam, phù hợp với cảnh quan và qui hoạch chung.
PHỤ LỤC A
(tham khảo)
Mẫu số 1: Trạm ở vùng không lũ lụt
A.1 Phạm vi áp dụng
Mẫu số 1 áp dụng cho trạm ở vùng không lũ lụt.
A.2 Yêu cầu thiết kế
A.2.1 Số tầng công trình: 1 tầng.
A.2.2 Cấp công trình: cấp 2.
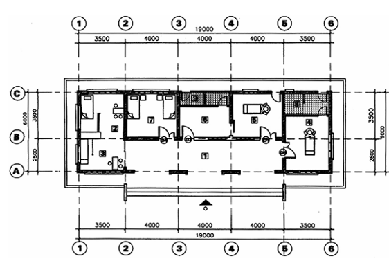
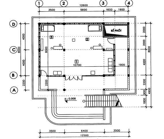
A.2.3 Đối với trạm có qui mô dân số lớn hơn 10 000 dân: mặt bằng tổng thể nêu ở hình A.1; mặt bằng khối kỹ thuật nêu ở hình A.2.
A.2.4 Đối với trạm có qui mô dân số nhỏ hơn 10 000 dân: mặt bằng tổng thể nêu ở hình A.3; mặt bằng khối kỹ thuật nêu ở hình A.4.
A.2.5 Diện tích xây dựng khối kỹ thuật ghi ở bảng A.1.
Bảng A.1 - Diện tích xây dựng khối kỹ thuật
| Hạng mục | Diện tích, m2 | |
| Trạm lớn hơn | Trạm nhỏ hơn | |
| 1. Sảnh đón tiếp kết hợp không gian đa năng | 40,0 | 30,0 |
| 2. Phòng khám chữa bệnh tây y (có tủ thuốc) 3. Phòng khám - chữa bệnh theo phương pháp y học cổ truyền | 27,0 | 24,0 |
| 4. Phòng thực hiện dịch vụ kế hoạch hóa gia đình | 14,0 | 14,0 |
| 5. Phòng đẻ | 14,0 | 14,0 |
| 6. Phòng sau đẻ | 14,0 | 8,0 |
| 7. Phòng lưu bệnh nhân | 15,8 | 14,0 |
| 8. Phòng rửa tiệt trùng | 7,0 | 7,0 |
| 9. Phòng vệ sinh | 5,2 | 4,0 |
| Tổng diện tích sử dụng: | 135,0 | 115,0 |

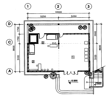
Hình A.1 - Mặt bằng tổng thể trạm theo mẫu số 1 có qui mô dân số lớn hơn 10 000 dân
Kích thước tính bằng milimét

| 1. Sảnh đón tiếp kết hợp không gian đa năng; | 5. Phòng đẻ; |
| 2. Phòng khám chữa bệnh tây y (có tủ thuốc); | 6. Phòng sau đẻ; |
| 3. Phòng khám - chữa bệnh theo phương pháp y học cổ truyền; | 7. Phòng lưu bệnh nhân; |
| 4. Phòng thực hiện dịch vụ kế hoạch hóa gia đình; | 8. Phòng rửa tiệt trùng; |
|
| 9. Phòng vệ sinh. |
Hình A.2 - Mặt bằng khối kỹ thuật trạm theo mẫu số 1 có qui mô dân số lớn hơn 10 000 dân

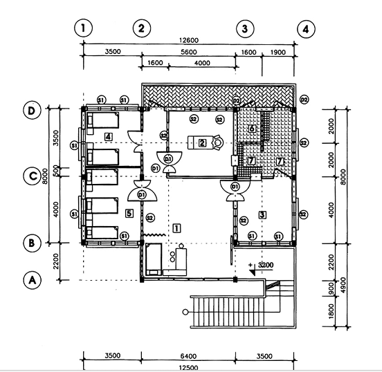
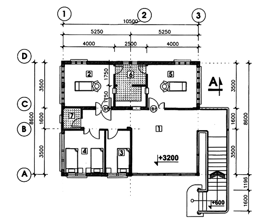
Hình A.3 - Mặt bằng tổng thể trạm theo mẫu số 1 có qui mô dân số nhỏ hơn 10 000 dân
Kích thước tính bằng milimét

| 1. Sảnh đón tiếp kết hợp không gian đa năng; | 5. Phòng đẻ; |
| 2. Phòng khám chữa bệnh tây y (có tủ thuốc); | 6. Phòng sau đẻ; |
| 3. Phòng khám - chữa bệnh theo phương pháp y học cổ truyền; | 7. Phòng lưu bệnh nhân; |
| 4. Phòng thực hiện dịch vụ kế hoạch hóa gia đình; | 8. Phòng rửa tiệt trùng; |
|
| 9. Phòng vệ sinh. |
Hình A.4 - Mặt bằng khối kỹ thuật trạm theo mẫu số 1 có qui mô dân số nhỏ hơn 10 000 dân
A.3 Phần kết cấu
A.3.1 Móng: Móng gạch hoặc đá, chịu lực.
A.3.2 Thân nhà: Tường gạch chịu lực.
A.3.3 Mái: Mái bằng bê tông cốt thép đổ tại chỗ.
A.3.4 Chống thấm, chống nóng bằng mái tôn.
A.4 Cấp điện, nước và xử lý chất thải
A.4.1 Cung cấp điện
Mạng lưới điện dùng dây dẫn bọc PVC đi chìm trong tường trần.
A.4.2 Cung cấp nước
Hệ thống ống cấp nước dùng ống thép tráng kẽm hoặc ống nhựa. Nguồn nước dự trữ gồm bể nước xây ngoài nhà và bể nước trên mái.
A.4.3 Xử lý chất thải
Nước thải được xử lý trước khi đưa ra cống chung, nước thải sinh hoạt qua bể tự hoại. Nước thải từ các phòng kỹ thuật qua ngăn xử lý tiệt khuẩn trước khi đổ vào bể tự hoại.
Các chất thải rắn được thu gom tập trung bên ngoài để xử lý riêng.
PHỤ LỤC B
(tham khảo)
Mẫu số 2: Trạm ở vùng lũ lụt
B.1 Phạm vi áp dụng
Mẫu số 2 áp dụng cho trạm ở vùng lũ lụt.
B.2 Yêu cầu thiết kế
B.2.1 Số tầng công trình: 2 tầng.
B.2.2 Cấp công trình: cấp 2.
B.2.3 Phần tầng 1 (trệt) không có tường bao che cố định khi không có lũ lụt làm không gian đa năng, tuyên truyền tư vấn, khám chữa bệnh tây y, khám chữa bệnh theo phương pháp y học cổ truyền. Khi xảy ra ngập lụt ở tầng 1, các hoạt động chủ yếu của trạm thực hiện ở tầng 2 (lầu 1), liên hệ bằng cầu thang bên ngoài.
B.2.4 Đối với trạm có qui mô dân số lớn hơn 10 000 dân: tổng mặt bằng nêu ở hình B.1; mặt bằng khối kỹ thuật nêu ở hình B.2 (tầng 1) và hình B.3 (tầng 2).
B.2.5 Đối với trạm có qui mô dân số nhỏ hơn 10 000 dân: tổng mặt bằng nêu ở hình B.4; mặt bằng khối kỹ thuật nêu ở hình B.5 (tầng 1) và hình B.6 (tầng 2).
B.2.6 Diện tích xây dựng khối kỹ thuật ghi ở bảng B.1.
Bảng B.1 - Diện tích xây dựng khối kỹ thuật
| Hạng mục | Diện tích, m2 | |
| Trạm lớn hơn 10 000 dân | Trạm nhỏ hơn 10 000 dân | |
| Tầng 1 (trệt) |
|
|
| 1. Không gian đa năng tuyên truyền tư vấn |
|
|
| 2. Phòng khám chữa bệnh tây y | 70,0 | 60,0 |
| 3. Phòng khám chữa bệnh theo phương pháp y học cổ truyền |
|
|
| Tầng 2 (lầu 1) |
|
|
| 1. Sảnh đón tiếp kết hợp không gian đa năng | 44,5 | 31,5 |
| 2. Phòng đẻ | 14,0 | 14,0 |
| 3. Phòng thực hiện dịch vụ kế hoạch hóa gia đình | 14,0 | 14,0 |
| 4. Phòng sau đẻ | 12 5 | 8 5 |
| 5. Phòng lưu bệnh nhân | 16,0 | 10,0 |
| 6. Khu vệ sinh | 3,5 | 3,0 |
| 7. Phòng rửa, tiệt trùng | 10,5 | 9,0 |
| Tổng diện tích sử dụng tầng 2: | 115,0 | 90,0 |

Hình B.1 - Mặt bằng tổng thể trạm theo mẫu số 2 có qui mô dân số lớn hơn 10 000 dân
Kích thước bằng milimét

1. Không gian đa năng tuyên truyền tư vấn;
2. Phòng khám chữa bệnh tây y;
3. Phòng khám chữa bệnh theo phương pháp y học cổ truyền.
Hình B.2 - Mặt bằng tầng 1 khối kỹ thuật trạm theo mẫu số 2 có qui mô dân số lớn hơn 10 000 dân
Kích thước tính bằng milimét

| 1. Sảnh đón tiếp kết hợp không gian đa năng; | 4. Phòng sau đẻ; |
| 2. Phòng đẻ | 5. Phòng lưu bệnh nhân; |
| 3. Phòng thực hiện dịch vụ kế hoạch hóa gia đình; | 6. Khu vệ sinh; |
|
| 7. Phòng rửa tiệt trùng. |
Hình B.3 - Mặt bằng tầng 2 khối kỹ thuật trạm theo mẫu số 2 có qui mô dân số lớn hơn 10 000 dân

| 1. Vườn thuốc; | 2. Sân; | 3. Khối kỹ thuật; | 4. Khối phụ trợ. |
Hình B.4 - Mặt bằng tổng thể trạm theo mẫu số 2 có qui mô dân số nhỏ hơn 10 000 dân
Kích thước tính bằng milimét

1. Không gian đa năng tuyên truyền tư vấn;
2. Phòng khám chữa bệnh tây y;
3. Phòng khám chữa bệnh theo phương pháp y học cổ truyền.
Hình B.5 - Mặt bằng tầng 1 khối kỹ thuật trạm theo mẫu số 2 có qui mô dân số nhỏ hơn 10 000 dân
B.3 Phần kết cấu
B.3.1 Móng: Bê tông cốt thép.
B.3.2 Thân nhà: Khung bê tông cốt thép chịu lực.
B.3.3 Mái: Mái bằng bê tông cốt thép đổ tại chỗ.
B.3.4 Chống thấm, chống nóng: mái tôn lợp dốc.
B.4 Cấp điện, nước và xử lý chất thải
B.4.1 Cung cấp điện
Mạng lưới điện dùng dây dẫn bọc PVC đi chìm trong tường trần.
B.4.2 Cung cấp nước
Hệ thống ống cấp nước dùng ống thép tráng kẽm hoặc ống nhựa. Nguồn nước dự trữ gồm bể nước xây ngoài nhà và bể nước trên mái.
B.4.3 Xử lý chất thải
Nước thải được xử lý trước khi đưa ra cống chung, nước thải sinh hoạt qua bể tự hoại. Nước thải từ các phòng kỹ thuật qua ngăn xử lý tiệt khuẩn trước khi đổ vào bể tự hoại.
Các chất thải rắn được thu gom tập trung bên ngoài để xử lý riêng.
Kích thước tính bằng milimét

1. Sảnh đón tiếp kết hợp không gian đa năng;
2. Phòng đẻ;
3. Phòng thực hiện dịch vụ kế hoạch hoá gia đinh;
4. Phòng sau đẻ;
5. Phòng lưu bệnh nhân;
6. Khu vệ sinh;
7. Phòng rửa tiệt trùng.
Hình B.6 - Mặt bằng tầng 2 khối kỹ thuật trạm theo mẫu số 2 có qui mô dân số nhỏ hơn 10 000 dân
PHỤ LỤC C
(tham khảo)
Mẫu số 3: Trạm ở vùng sâu, vùng xa
C.1 Phạm vi áp dụng
Mẫu số 3 áp dụng cho trạm ở vùng sâu, vùng xa (núi cao, hải đảo) và có qui mô dân số nhỏ hơn 5 000 dân.
C.2 Yêu cầu thiết kế
C.2.1 Số tầng công trình: 1 tầng.
C.2.2 Cấp công trình: cấp 2.
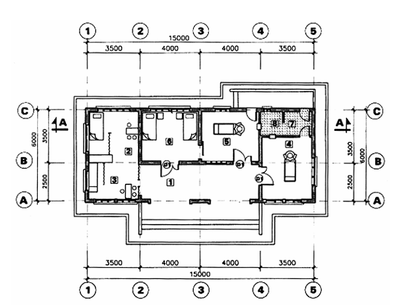
C.2.3 Tổng mặt bằng của trạm nêu ở hình C.1.
C.2.4 Mặt bằng khối kỹ thuật của trạm nêu ở hình C.2.
C.2.5 Diện tích xây dựng khối kỹ thuật ghi ở bảng C.1.

| 1. Vườn thuốc; | 3. Khối kỹ thuật; |
| 2. Sân; | 4. Khối phụ trợ. |
Hình C.1 - Mặt bằng tổng thể trạm theo mẫu số 3
Kích thước tính bằng milimét

1. Sảnh đón tiếp kết hợp phòng đa năng
2. Phòng khám tây y
3. Phòng khám chữa bệnh theo phương pháp y học cổ truyền
4. Phòng thực hiện các dịch vụ kế hoạch hóa gia đình
5. Phòng đẻ
6. Phòng lưu bệnh nhân
7. Phòng rửa
8. Phòng tiệt trùng
Hình C.2 - Mặt bằng khối kỹ thuật theo mẫu số 3
Bảng C.1 - Diện tích xây dựng khối kỹ thuật
| Hạng mục | Diện tích, m2 |
| 1. Sảnh đón tiếp kết hợp phòng đa năng | 20,0 |
| 2. Phòng khám tây y (có tủ thuốc) | 21,0 |
| 3. Phòng khám - chữa bệnh theo phương pháp y học cổ truyền | |
| 4. Phòng thực hiện các dịch vụ kế hoạch hóa gia đình | 14,0 |
| 5. Phòng đẻ | 14,0 |
| 6. Phòng lưu bệnh nhân | 14,0 |
| 7. Phòng rửa | 7,0 |
| 8. Phòng tiệt trùng | |
| Tổng diện tích sử dụng: | 90,0 |
C.3 Phần kết cấu
C.3.1 Móng: Móng gạch hoặc đá chịu lực.
C.3.2 Thân nhà: Tường gạch chịu lực.
C.3.3 Mái: Bằng bê tông cốt thép đổ tại chỗ.
C.3.4 Chống thấm, chống nóng bằng mái tôn.
C.4 Cấp điện, nước và xử lý chất thải
C.4.1 Cung cấp điện
Mạng lưới điện dùng dây dẫn bọc PVC đi chìm trong tường trần.
C.4.2 Cung cấp nước
Hệ thống ống cấp nước dùng ống thép tráng kẽm hoặc ống nhựa. Nguồn nước dự trữ gồm bể nước xây ngoài nhà và bể nước trên mái.
C.4.3 Xử lý chất thải
Nước thải được xử lý trước khi đưa ra cống chung, nước thải sinh hoạt qua bể tự hoại. Nưóc thải từ các phòng kỹ thuật qua ngăn tiệt khuẩn trước khi đổ vào bể tự hoại.
Các chất thải rắn được thu gom tập trung bên ngoài để xử lý riêng.
Bạn chưa Đăng nhập thành viên.
Đây là tiện ích dành cho tài khoản thành viên. Vui lòng Đăng nhập để xem chi tiết. Nếu chưa có tài khoản, vui lòng Đăng ký tại đây!