- Tổng quan
- Nội dung
- Tiêu chuẩn liên quan
- Lược đồ
- Tải về
Tiêu chuẩn Xây dựng Việt Nam TCXDVN 264:2002 Thiết kế công trình đảm bảo người tàn tật tiếp cận sử dụng
| Số hiệu: | TCXDVN 264:2002 | Loại văn bản: | Tiêu chuẩn XDVN |
| Cơ quan ban hành: | Đang cập nhật | Lĩnh vực: | Xây dựng |
|
Ngày ban hành:
Ngày ban hành là ngày, tháng, năm văn bản được thông qua hoặc ký ban hành.
|
17/01/2002 |
Hiệu lực:
|
Đã biết
|
| Người ký: | Đang cập nhật |
Tình trạng hiệu lực:
Cho biết trạng thái hiệu lực của văn bản đang tra cứu: Chưa áp dụng, Còn hiệu lực, Hết hiệu lực, Hết hiệu lực 1 phần; Đã sửa đổi, Đính chính hay Không còn phù hợp,...
|
Đã biết
|
TÓM TẮT TIÊU CHUẨN XDVN TCXDVN 264:2002
Nội dung tóm tắt đang được cập nhật, Quý khách vui lòng quay lại sau!
Tải tiêu chuẩn Việt Nam TCXDVN 264:2002
TIÊU CHUẨN XÂY DỰNG VIỆT NAM
TCXDVN 264:2002
NHÀ VÀ CÔNG TRÌNH – NGUYÊN TẮC CƠ BẢN XÂY DỰNG CÔNG TRÌNH ĐỂ ĐẢM BẢO NGƯỜI TÀN TẬT TIẾP CẬN SỬ DỤNG
Buildings and facilities – Basic rules of accessible design and construction for people with disabilities
1. Phạm vi áp dụng
1.1. Tiêu chuẩn này được áp dụng khi xây dựng mới các công trình để đảm bảo những người khó khăn về vận động và những người khiếm thị tiếp cận sử dụng.
Trong trường hợp cần cải tạo, nâng cấp đối với những công trình có yêu cầu đảm bảo người tàn tật tiếp cận sử dụng phải tuân theo các quy định trong tiêu chuẩn này.
1.2. Khi áp dụng các quy định trong tiêu chuẩn này cần phải tuân theo các quy định trong Quy chuẩn xây dựng công trình để đảm bảo người tàn tật tiếp cận sử dụng.
1.3. Phải đảm bảo lối đi và tiện nghi an toàn khi người tàn tật tiếp cận sử dụng trong các công trình theo quy định ở điều 2.1 của Quy chuẩn xây dựng công trình để đảm bảo người tàn tật tiếp cận sử dụng.
2. Tiêu chuẩn viện dẫn
- Quy chuẩn xây dựng Việt Nam
- Quy chuẩn xây dựng công trình để đảm bảo người tàn tật tiếp cận sử dụng.
- TCXD 228 : 1998 – Lối đi cho người tàn tật trong công trình. Phần 1. Lối đi cho người tàn tật dùng xe lăn. Yêu cầu thiết kế.
3. Thuật ngữ - Định nghĩa
Các thuật ngữ sử dụng trong tiêu chuẩn này được quy định trong Quy chuẩn xây dựng công trình để đảm bảo người tàn tật tiếp cận sử dụng QCXDVN 01: 2002.
4. Quy định chung
4.1. Nội dung thiết kế nhà và công trình để đảm bảo người tàn tật tiếp cận sử dụng phải phù hợp những quy định ở bảng 1.
Bảng 1: Nội dung thiết kế nhà và công trình
| Loại công trình | Phạm vi khu vực cần thiết kế để đảm bảo người tàn tật tiếp cận sử dụng | Yêu cầu cơ bản |
| 1 | 2 | 3 |
| - Trụ sở Ủy ban hành chính các cấp, Tòa án, Viện kiểm sát, trụ sở cơ quan và tổ chức quản lý Nhà nước | - Lối đi lại, bãi để xe - Cửa ra vào - Nơi đón tiếp và khu vực hoạt động công cộng - Vị trí ngồi làm việc và các thiết bị đặc biệt chuyên dùng | - Bố trí cơ cấu và chức năng các bộ phận công trình để đảm bảo người tàn tật tiếp cận sử dụng. - Nơi hội họp phải bố trí các chỗ ngồi cho người tàn tật. |
| Các công trình văn hóa, thể thao như: Công viên, các khu vui chơi, vườn thú, nhà hát, rạp chiếu bóng, bảo tàng, triển lãm, nhà văn hóa – câu lạc bộ, thư viện, khu du lịch, các di tích danh lam thắng cảnh, sân vận động, sân thể thao, nhà thi đấu… | - Lối đi lại, bãi để xe - Cửa ra vào - Nơi đón tiếp và khu vực hoạt động công cộng - Lối thoát nạn khi có sự cố - Các thiết bị trợ giúp - Khu vực khán giả | - Bố trí cơ cấu và chức năng các bộ phận công trình để đảm bảo người tàn tật tiếp cận sử dụng. - Phòng đọc, phòng khán giả, khán đài phải bố trí các chỗ ngồi cho người tàn tật. |
| Các công trình dịch vụ công cộng: khách sạn, nhà nghỉ, nhà trọ, cửa hàng, cửa hiệu và các cơ sở dịch vụ ăn uống, bưu điện, trung tâm thương mại, siêu thị, chợ, ngân hàng. | - Lối đi lại, bãi để xe - Cửa ra vào - Nơi đón tiếp và khu vực hoạt động công cộng, khu vực hoạt động kinh doanh - Lối thoát nạn khi có sự cố - Các thiết bị trợ giúp - Khu vực buồng phòng | - Bố trí cơ cấu và chức năng các bộ phận công trình để đảm bảo người tàn tật tiếp cận sử dụng. - Phải có bố trí thang máy lên tất cả các tầng phục vụ. - Tại các cửa hàng, cửa hiệu phải bố trí đường dốc ở cửa ra vào, chỗ ngồi, chỗ giao tiếp… - Bố trí giường và thiết bị tiện nghi trong khu vực buồng phòng dành cho người tàn tật. |
| Các công trình y tế: bệnh viện, trung tâm chỉnh hình và phục hồi chức năng, các cơ sở y tế khám, chữa bệnh, trung tâm điều dưỡng. | Phạm vi người bệnh sử dụng | - Bố trí cơ cấu và chức năng các bộ phận công trình để đảm bảo người tàn tật tiếp cận sử dụng.
|
| Các công trình giáo dục: trường học phổ thông các cấp, trường dạy nghề, trường đại học, trung học chuyên nghiệp. | - Lối đi lại, bãi để xe - Cửa ra vào - Khu học tập – thực hành - Vị trí ngồi học và các thiết bị đặc biệt chuyên dùng | - Bố trí cơ cấu và chức năng các bộ phận công trình để đảm bảo người tàn tật tiếp cận sử dụng. - Lớp học phải bố trí các chỗ ngồi cho người tàn tật. |
| Nhà ở chung cư | - Lối đi lại, bãi để xe - Cửa ra vào - Các không gian trong nhà - Bố trí các trang thiết bị, đồ dùng | - Bố trí cơ cấu và chức năng các bộ phận công trình để đảm bảo người tàn tật tiếp cận sử dụng. |
| Các công trình giao thông: đường, hè phố, bến xe, nhà ga xe lửa, ga hàng không, bến cảng vận chuyển hành khách, các điểm chờ xe. | Phạm vi sử dụng của hành khách | - Bố trí cơ cấu và chức năng các bộ phận công trình để đảm bảo người tàn tật tiếp cận sử dụng. - Các tuyến đường để người tàn tật có thể đi lại được. |
Chú thích:
1) Cơ cấu và chức năng các bộ phận trong công trình để đảm bảo người tàn tật tiếp cận sử dụng bao gồm đường dốc, cửa ra vào, hành lang, lối đi, cầu thang, thang máy, khu vệ sinh, phòng tắm, các không gian công cộng đặc biệt như chỗ ngồi, nơi giao tiếp, điện thoại. Nội dung bố trí cụ thể cần dựa vào yêu cầu sử dụng để xác định.
2) Đối với các công trình cải tạo cần căn cứ vào hiện trạng của công trình để lựa chọn giải pháp cho phù hợp.
3) Đối với những công trình dành riêng cho người tàn tật có thể tham khảo tiêu chuẩn này để thiết kế cho phù hợp.
4.2. Trong các ngôi nhà, các công trình công cộng hoặc các khu vực tập trung đông người phải có ít nhất một lối vào để đảm bảo người tàn tật tiếp cận sử dụng. Độ cao của lối vào phải cùng độ cao của sàn nhà hoặc mặt đất. Nếu không cùng độ cao phải có đường dốc thích hợp.
4.3. Nếu lối vào có bậc phải bố trí tay vịn ở hai bên để những người đi lại khó khăn như người chống nạng, người dùng gậy chống có thể đi lại được.
4.4. Tại các bãi để xe phải có chỗ để xe cho người tàn tật. Chỗ để xe của người tàn tật được bố trí ngay cạnh đường dốc hoặc lối ra vào của công trình. Tại vị trí chỗ để xe của người tàn tật cần có biển chỉ dẫn.
4.5. Thang máy ở các công trình cần đảm bảo các yêu cầu sau:
a) Phục vụ tất cả các tầng;
b) Lối vào phải thuận tiện cho xe lăn;
c) Kích thước thông thủy của buồng thang máy phải đảm bảo người tàn tật tiếp cận sử dụng;
d) Hệ thống bảng điều khiển thang máy phải phù hợp với sử dụng của người ngồi xe lăn và người khiếm thị.
e) Có bố trí tay vịn ở các thành buồng thang máy.
d) Trong buồng thang máy nên bố trí thiết bị âm thanh các kí tự nổi và hệ thống chữ nổi Brain cho những người khiếm thị.
4.6. Trên đường vào, lối vào công trình và tại các không gian công cộng trong công trình để đảm bảo người tàn tật tiếp cận sử dụng phải bố trí biển báo, biển chỉ dẫn theo quy ước quốc tế và được đặt ở vị trí dễ nhìn thấy và nhận biết.
5. Yêu cầu thiết kế
5.1. Đường dốc
5.1.1. Đường vào công trình để đảm bảo người tàn tật tiếp cận sử dụng phải bằng phẳng, không gồ ghề, có độ nhám và không có sự thay đổi độ cao đột ngột. Nếu có sự thay đổi độ cao phải thiết kế đường dốc.
5.1.2. Đường dốc của lối vào dành cho người tàn tật dùng xe lăn lấy như sau:
- Độ dốc: - Không lớn hơn 1/12 – đối với công trình công cộng;
- Từ 1/10 đến 1/20 – đối với nhà ở chung cư.
- Chiều rộng đường dốc không nhỏ hơn 1000mm đến 1200mm;
- Khi chiều dài đường dốc lớn hơn 9000mm phải bố trí chiếu nghỉ. Chiều dài chiếu nghỉ không được nhỏ hơn 2000mm và ở các khoảng cách đều nhau không quá 9000mm (xem hình 1 và hình 2).

Hình 1: Mặt bằng đường dốc ở ngoài nhà

Hình 2: Mặt bằng đường dốc có chiếu nghỉ nằm ở góc
- Hai bên đường dốc phải bố trí tay vịn. Chi tiết thiết kế tay vịn xem ở điều 5.6.
Chú thích:
1) Khi đường dốc chuyển hướng phải bố trí chiếu nghỉ hình chữ L mỗi chiều dài 2000mm.
2) Đối với các công trình cải tạo, nâng cấp thì cho phép độ dốc của đường dốc là 1/10 và chiều dài cho phép là 6000mm.
5.1.3. Ở phía đầu và phía cuối của đường dốc phải để khoảng trống có chiều dài không nhỏ hơn 1500mm để cho xe lăn di chuyển.
5.1.4. Phải bố trí lan can, tay vịn ở cả 2 phía đường dốc. Nếu một bên đường dốc có khoảng trống thì phía chân lan can, tay vịn nên bố trí gờ an toàn có chiều cao không nhỏ hơn 50mm hoặc bố trí rào chắn, xem hình 3.

Hình 3: Lan can an toàn của đường dốc
5.2. Lối vào
5.2.1. Đối với những công trình do yêu cầu bảo tồn hoặc những công trình không thể bố trí đường dốc thì phải xây dựng lối vào có bậc cho người đi lại khó khăn như người chống nạng, chống gậy và người khiếm thị. Lối vào có bậc phải đảm bảo những yêu cầu sau (xem hình 4):
- Chiều cao bậc nhỏ hơn hoặc bằng 150 mm;
- Bề rộng mặt bậc không nhỏ hơn 300 mm;
- Không dùng bậc thang hở;
- Phải bố trí chiếu nghỉ ở bậc phía trên cùng;
- Nếu bậc thềm quá 3 bậc thì hai phía của bậc thềm phải bố trí tay vịn. Chi tiết thiết kế tay vịn xem quy định ở điều 5.6.
Chú thích: Đối với nhà ở chung cư cho phép chiều cao bậc từ 120mm đến 160mm. Bề rộng mặt bậc từ 250mm đến 400mm.

Hình 4: Lối vào có bậc
1. Kích thước nhỏ nhất của khoảng không trước lối vào (1500mm x 1500mm); 2. Cửa lối vào đặt trong hốc tường; 3. Tay vịn kéo dài ở đỉnh đường dốc; 4. Tay vịn kéo dài ở chân đường dốc; 5. Lối vào có bậc; 6. Lề đường; 7. Tay vịn bố trí ở độ cao 900mm; 8. Đường dốc có độ dốc 11/12 rộng 1200mm
5.2.2. Lối vào sảnh, hành lang nếu không cùng một độ cao phải bố trí đường dốc. Độ dốc của đường dốc không được lớn hơn 1/12. Chiều rộng đường dốc không được nhỏ hơn 900mm (xem hình 5, hình 6 và hình 7).

Hình 5: Phối cảnh đường dốc (đáy rộng)

Hình 6: Phối cảnh đường dốc (kéo dài)

Hình 7: Phối cảnh đường dốc có lề liên tục
5.3. Bãi để xe và điểm chờ xe
5.3.1. Chỉ tiêu tính toán chỗ để xe cho người tàn tật được lấy như sau:
- Xe lăn, xe máy: từ 2,35 m2/xe đến 3,0 m2/xe
- Xe đạp: 0,9 m2/xe
- Xe ôtô: từ 15 m2/xe đến 18 m2/xe
Chú thích: Đối với chỗ để xe ôtô cần bố trí khoảng không gian thông thủy ở bên cạnh hoặc ở phía sau xe để người tàn tật đi xe lăn lên xuống. Chiều rộng từ 900mm đến 1200mm (đối với xe buýt là 2500mm). Nếu bố trí hai xe liền nhau thì có thể dùng chung một đường cho xe lăn (xem hình 8).
5.3.2. Tại các điểm chờ xe phải thiết kế vệt dốc hay đường dốc đảm bảo cho người tàn tật đến được các phương tiện giao thông. Chi tiết thiết kế đường dốc, vệt dốc lấy như quy định ở điều 5.1.2.

Hình 8: Kích thước quy định cho một chỗ đỗ xe.
5.4. Cửa
5.4.1. Cửa đi trong các công trình đảm bảo cho người tàn tật sử dụng phải được bố trí ở nơi đi lại thuận tiện và an toàn. Nếu trong công trình có bố trí thang máy thì nên bố trí gần buồng thang.
Chú thích: Cửa đi bao gồm cổng, lối vào không có cửa, cửa ra vào sảnh.
5.4.2. Bề mặt sàn phía trong và ngoài cửa đi phải ở cùng một độ cao. Nếu sàn phía trong và phía ngoài không cùng một độ cao thì phải thiết kế đường dốc.
5.4.3. Phía trong và phía ngoài cửa đi phải có khoảng không gian thông thủy kích thước 1500mm x 1500mm.
5.4.4. Nếu cửa đi có hai lớp cửa, thì khoảng cách thông thủy giữa hai lớp cửa không nhỏ hơn 1200mm.
5.4.5. Nên sử dụng cửa đi mở ra cả hai phía và loại cửa đi đóng mở tự động, cửa đẩy, cửa xoay thay cho loại cửa mở bằng tay. Không bố trí các loại cửa quá nặng hoặc loại cửa quay có nhiều cánh. Chiều rộng cửa không được nhỏ hơn 800mm – đối với nhà ở; 900mm – đối với công trình công cộng và không nên bố trí sát vào góc tường.
Chú thích: Lực đóng mở cho các loại cửa không nên lớn hơn 30N (3 kg.m/s2) và phải mở được một góc 900.
5.4.6. Các tay nắm cửa phải dễ sử dụng và liền với ổ khóa. Tay nắm cửa phải xoay theo chiều từ trên xuống dưới và bố trí ở độ cao từ 800mm đến 1100mm tính từ mặt sàn.
5.4.7. Khi cửa đi mở ra ngược với hướng lối đi thì cần bố trí một khoảng không gian thông thủy có chiều rộng lớn hơn 500mm về phía tay nắm cửa (xem hình 9).

Hình 9: Hướng tiếp cận với cửa ra vào
5.4.8. Không nên làm ngưỡng cửa hoặc gờ bên trong đối với cửa có khoảng không gian thông thủy nhỏ hơn 800mm.
Chú thích:
1) Chỉ cho phép làm ngưỡng cửa và gờ bên trong đối với cửa có khoảng không gian thông thủy lớn hơn 800mm nhưng cũng không được cao hơn 10mm.
2) Các hình thức mở cửa xem hình 10.
5.4.9. Đối với các loại cửa kéo, cửa trượt, cửa xếp thì khoảng không gian thông thủy đối với từng loại cửa được lấy theo bảng 2 và bảng 3.
Chú thích: Đối với các công trình mà chiều rộng cửa lớn hơn hoặc bằng 1100mm như cửa của các phòng trong bệnh viện thì những yêu cầu về kích thước này không quy định.
a) Cửa kéo: Khoảng không gian thông thủy để cho xe lăn di chuyển xem hình 11.
Trường hợp cửa đóng hoặc khóa thì kích thước này lấy rộng thêm 300mm.

Hình 10: Các hình thức mở cửa

Hình 11: Khoảng không gian thông thủy cho cửa kéo thông thường
Bảng 2: Khoảng không gian thông thủy cho xe lăn đối với cửa kéo
| Loại cửa | Khoảng không gian thông thủy, không được nhỏ hơn, mm | ||
| Hướng lối đi | Mặt cửa | Vuông góc với cửa | Phía dưới ổ khóa song song với cửa |
| Từ phía trước Từ phía trước Từ phía bản lề
Từ phía bản lề Từ phía khóa Từ phía khóa | Kéo Đẩy Kéo
Đẩy Kéo Đẩy | 1500 1200 1500 1300 1000 1200 1000 | 500 - 900 1000 1300 600 600 |
b) Cửa trượt và cửa xếp: Khoảng không gian thông thủy cho xe lăn di chuyển lấy theo bảng 3 và xem hình 12.
Bảng 3: Khoảng không gian thông thủy dành cho xe lăn đối với cửa trượt và cửa xếp
| Hướng lối đi | Khoảng không gian thông thủy, không nhỏ hơn (mm) | |
| Vuông góc với cửa | Song song với cửa | |
| Từ phía trước Từ phía bên cạnh bản lề Từ phía bên cạnh khóa | 1200 1000 1000 | - 1300 600 |

Hình 12: Khoảng không gian thông thủy đối với cửa đẩy và cửa xếp
c) Đối với các lối vào không có cửa: Khoảng không gian thông thủy cho xe lăn di chuyển nếu lối vào nhỏ hơn 800mm là 1200mm.
d) Đối với hai cửa đối diện nhau: Khoảng không gian thông thủy cho xe lăn di chuyển giữa hai cửa khi hai cửa mở theo hai hướng khác nhau không nhỏ hơn 1200mm cộng thêm chiều rộng của cửa. Cửa trong cùng một dãy có thể mở cùng một hướng hoặc theo hai hướng khác nhau.
5.4.10. Đối với loại cửa đóng mở tự động cũng phải đảm bảo chiều rộng thông thủy là 900mm. Trên bề mặt cửa tự động phải có biển chỉ dẫn đồng thời có bề mặt tiếp xúc ở cả hai mặt cửa để báo hiệu và có tín hiệu âm thanh dành cho những người khiếm thị.
5.4.11. Các phụ kiện của cửa như tay nắm, tay kéo, ổ khóa, khóa và những chi tiết khác trên cửa để đảm bảo người tàn tật tiếp cận sử dụng cần được lắp đặt ở độ cao cách mặt sàn hay mặt đất từ 800mm đến 1100mm. Đối với loại cửa trượt các phụ kiện cửa phải được sử dụng từ cả hai phía.
Chú thích: Khóa chỉ được sử dụng cho mục đích an ninh, không được sử dụng cho những hoạt động thông thường ở bất kì nơi nào.
5.4.12. Thời gian đóng mở cửa từ vị trí cửa mở 900 đến vị trí 120 phải đảm bảo không ít hơn 5 giây.
5.4.13. Thời gian đóng mở cửa có bản lề lò so từ vị trí cửa mở 700 đến vị trí đóng phải không ít hơn 1,5 giây.
5.4.14. Đối với cửa kính thì phải đánh dấu mũi tên theo chiều đứng của cửa để cảnh báo cho người sử dụng. Màu sắc giữa tường và cửa phải tương phản nhau để dễ phân biệt.
5.4.15. Ô nhìn bố trí trên cửa được lắp đặt cách mặt sàn không được lớn hơn 1000mm.
5.5. Hành lang, lối đi
5.5.1. Chiều rộng thông thủy của hành lang, lối đi được lấy như sau:
- Một xe lăn đi qua: không nhỏ hơn 1200mm;
- Một xe lăn đi qua và một người đi ngược chiều: không nhỏ hơn 1500mm;
- Hai xe lăn đi qua: không nhỏ hơn 1800mm (xem hình 13).
5.5.2. Tại chỗ hành lang đổi hướng thì hành lang phải rộng 900mm và nếu có cửa thì phải rộng 1200mm (xem hình 14).
5.5.3. Nếu hai bên hành lang có gờ tường thì chiều rộng thông thủy phải lấy như quy định ở điều 5.5.1.
5.5.4. Phải bố trí tay vịn hai bên lối đi ở độ cao 900mm. Góc quay ở những chỗ rẽ nên là mặt tường vòng cung hoặc mặt tường vuông góc.
Nếu ở đầu lối đi hoặc ở phía cuối lối đi chênh lệch độ cao với mặt sàn hoặc mặt đất thì phải có lan can, tấm chắn hoặc giờ chắn và phải lắp đặt biển báo an toàn.

Hình 13: Chiều rộng lối đi

Hình 14: Chiều rộng của hành lang đổi hướng
5.5.5. Kích thước thông thủy để xe lăn di chuyển trên hành lang, lối đi được quy định như sau:
a) Lối vào thẳng vuông góc (xem hình 15): kích thước thông thủy là 1200mm x 900mm.

Hình 15: Lối vào thẳng vuông góc
b) Lối vào song song (xem hình 16): kích thước thông thủy là 1500mm x 800mm

Hình 16: Lối vào song song
5.5.6. Trên lối đi cho phép các vật nhô ra khỏi tường là 100mm và được lắp đặt ở độ cao cách mặt sàn 600mm và nếu nhô ra khỏi trần thì cách mặt sàn trên 2000 mm (xem hình 17).

Hình 17: Giới hạn cho phép của vật nhô ra trên lối đi
Chú thích: Tay vịn của cầu thang và đường dốc được phép nhô ra lớn nhất là 115mm
5.5.7. Những vật được gắn trên trục như biển quảng cáo, cột điện thoại công cộng, thùng thư… cho phép nhô ra mỗi bên 300mm và được lắp đặt ở độ cao cách mặt sàn 600mm và trên 2000mm (xem hình 18).

Hình 18: Giới hạn cho phép nhô ra của các vật gắn trên trục
5.5.8. Lối đi có chiều cao thông thủy thấp dần và nhỏ hơn 2000mm thì phải bố trí thanh chắn. Độ cao lắp đặt thanh chắn cách mặt sàn tối thiểu 700mm (xem hình 19).

Hình 19: Chiều cao thông thủy thấp dần
5.5.9. Khoảng không gian thông thủy phía dưới đầu gối và chỗ để chân của người tàn tật đi xe lăn được quy định như sau (xem hình 20):
- Khoảng cách từ mặt sàn đến trên đầu gối: 650mm;
- Khoảng cách từ mặt sàn đến dưới đầu gối: 500mm;
- Chỗ để chân: 200mm.
5.5.10. Độ cao tầm với của người đi xe lăn (tính từ mặt sàn hoặc mặt đất) được lấy như sau:
a) Phía trước không có vật cản: lớn nhất là 1200mm và thấp nhất là 400mm (xem hình 21).

Hình 20: Khoảng trống dành cho đầu gối và chân

Hình 21: Tầm với cao của người ngồi xe lăn không có vật cản
b) Phía trước có vật cản và nhô ra 500mm thì độ cao tầm với lớn nhất là 1200mm; nếu độ nhô ra của vật cản lớn hơn 500mm và nhỏ hơn 650mm thì độ cao của tầm với sẽ là 1100mm (xem hình 22).

Hình 22: Độ cao tầm với của người ngồi xe lăn khi phía trước có vật cản
c) Hai bên không có vật cản thì độ cao của tầm với lớn nhất là 1200mm và thấp nhất là 400mm (xem hình 23);

Hình 23: Tầm với sang bên không có vật cản
d) Hai bên có vật cản và độ nhô ra của vật cản là 250mm thì độ cao lớn nhất của tầm với sẽ là 1200mm;
Nếu vật cản nhô ra lớn hơn 250mm và nhỏ hơn 600mm thì độ cao lớn nhất của tầm với sẽ là 1150mm (xem hình 24).

Hình 24: Tầm với sang bên có vật cản
5.6. Tay vịn
5.6.1. Tay vịn phải được bố trí liên tục ở cả hai bên đường dốc, lối vào có bậc và hành lang. Tay vịn phải dễ nắm và được liên kết chắc chắn với tường. Nên dùng tay vịn tròn đường kính từ 25mm đến 50mm và được lắp đặt ở độ cao 900mm so với mặt sàn. Khoảng cách giữa tay vịn và bức tường gắn không nhỏ hơn 40mm. Chi tiết thiết kế tay vịn xem hình 25.
Chú thích: Có thể bố trí một bên đường dốc có hai tay vịn. Tay vịn dưới được lắp đặt ở độ cao từ 700mm đến 800mm tính từ mặt sàn cho người đi xe lăn (xem hình 26).
5.6.2. Tay vịn ở điểm đầu và điểm cuối đường dốc, phải được kéo dài thêm 300mm.
5.6.3. Tay vịn không được xoay trong các mối liên kết và được chế tạo từ các vật liệu đảm bảo chịu được một lực là 1.100N (110 kg.m/s2) tại bất kì mọi điểm.

Hình 25: Chi tiết thiết kế tay vịn

Hình 26: Vị trí bố trí hai tay vịn về một bên
5.7. Cầu thang, bậc lên xuống
5.7.1. Cầu thang để đảm bảo người đi lại khó khăn tiếp cận sử dụng được quy định như sau:
- Không dùng cầu thang hình vòng cung, xoắn ốc;
- Chiều rộng vế cầu thang không nên nhỏ hơn 1200mm;
- Mặt bậc thang phải không trơn trượt và không làm mũi bậc có hình vuông;
- Không dùng cầu thang loại bậc hở;
- Tay vịn phải bố trí liên tục và ở độ cao 900mm. Ở điểm bắt đầu và điểm kết thúc cầu thang, tay vịn được kéo dài thêm 300mm. Chi tiết tay vịn theo quy định ở điều 5.6.
Chú thích: Nếu cầu thang có trải thảm thì phải được lót chắc chắn. Mép ngoài của thảm phải được gắn chặt với sàn để không trở thành vật cản người tàn tật. Mũi bậc không được lõm vào làm vướng mũi giầy hoặc nạng chống.
5.7.2. Bề rộng mặt bậc thang không nhỏ hơn 300mm. Độ cao bậc thang không được lớn hơn 150mm (xem hình 27).

Hình 27: Bề rộng mặt bậc và chiều cao bậc
5.7.3. Mũi bậc thang được thiết kế không lớn hơn 25mm. Nếu mũi bậc được thiết kế vượt ra ngoài thân bậc thì mũi bậc phải được lượn cong hoặc vê tròn (xem hình 28).

Hình 28: Mũi bậc thang
5.7.4. Chiều cao của một đợt thang không được lớn hơn 1800mm và phải bố trí chiếu nghỉ. Chiều rộng chiếu nghỉ không nhỏ hơn 1200mm. Khoảng cách giữa mặt trên tay vịn với mặt bậc thang đầu tiên và mặt dốc phía cuối không được lớn hơn 1000mm theo chiều thẳng đứng (xem hình 29).

Hình 29: Kích thước cầu thang
5.7.5. Đối với các công trình cải tạo không lắp đặt được thang máy thì có thể dùng hệ thống nâng hoặc hạ xuống bằng các thiết bị chuyên dụng gắn vào lan can hoặc ròng rọc (xem hình 30, 31 và 32). Hai bên cầu thang đặt tay vịn cao 900mm.

Hình 30: Thiết bị thang nâng

Hình 31: Thiết bị nâng

Hình 32: Các thiết bị chuyên dụng
5.8. Thang máy
5.8.1. Yêu cầu về an toàn khi lắp đặt và sử dụng thang máy và thang máy điện phải tuân theo các quy định trong tiêu chuẩn TCVN 5744: 1993. Thang máy – Yêu cầu an toàn trong lắp đặt và sử dụng và TCVN 6395:1998. Thang máy điện – Yêu cầu an toàn về cấu tạo và lắp đặt.
5.8.2. Cửa thang máy được mở theo chiều ngang và kích thước thông thủy sau khi mở không được nhỏ hơn 900mm. Tùy theo vị trí đặt cửa, kích thước thông thủy bên trong của buồng thang máy được lấy theo quy định trong bảng 4 và xem hình 33.
Bảng 4: Kích thước nhỏ nhất của buồng thang máy
| Vị trí cửa | Chiều rộng thông thủy của cửa | Chiều rộng bên trong buồng thang máy, | Chiều sâu từ tường phía sau đến mặt tường phía trước |
| Đặt giữa Đặt lệch Bất kì | 900 900 900 900 | 2100 1800 1400 1500 | 1300 1300 2100 1500 |

Hình 33: Kích thước buồng thang máy
5.8.3. Diện tích khoảng không gian đợi trước khi vào thang máy không được nhỏ hơn 1500mm x 1500mm.
5.8.4. Cửa thang máy được lắp thiết bị tự đóng mở. Thời gian đóng mở cửa phải lớn hơn 20 giây.
5.8.5. Bảng điều khiển trong buồng thang máy được lắp đặt ở độ cao không lớn hơn 1200mm và không thấp hơn 900mm tính từ mặt sàn thang máy đến tâm nút điều khiển cao nhất. Trên các nút điều khiển nên có các kí tự hoặc tín hiệu cảm nhận được từ xúc giác và hệ thống chữ nổi Brain dành cho người khiếm thị. Các kí tự và chữ nổi Brain xem trên hình 34.
Chú thích: Hệ thống điều khiển thang máy bao gồm cả nút gọi khẩn cấp, còi báo động, báo cháy được tập hợp thành một nhóm bố trí ở phía dưới bảng điều khiển.

Hình 34: Các kí hiệu và tín hiệu trên lối vào thang máy dành cho người khiếm thị
5.8.6. Nút gọi trước cửa buồng thang máy được lắp đặt ở độ cao không quá 1200mm và không thấp hơn 900mm so với mặt sàn. Độ cao này được tính từ tâm của nút gọi.
5.8.7. Các kí tự nổi và hệ chữ Brain sẽ được đặt ngay bên trái nút mà chúng kí hiệu. Quy cách nhận dạng các kí hiệu chữ nổi lấy theo quy định trong bảng 5.
5.8.8. Trong buồng thang máy nên lắp đặt cả tín hiệu âm thanh lẫn các số hiển thị để nhận dạng vị trí tầng mà thang máy sẽ đến.
Tín hiệu âm thanh sẽ phát tiếng một lần đối với hướng lên và 2 lần cho hướng xuống hoặc có thông báo bằng lời nói nhấn mạnh “lên” hoặc “xuống”. Tín hiệu âm thanh sẽ có tần số tối đa 1500Hz. Tín hiệu âm thanh thông báo qua lời nói tối thiểu là 10dBA nhưng không được vượt quá 80dBA được đo tại nút gọi của sảnh. Tín hiệu này sẽ tự động thông báo về số tầng mà buồng thang máy dừng lại.
5.8.9. Mức độ chiếu sáng tại bảng điều khiển thang máy, mặt sàn, ngưỡng cửa và không gian đợi trước khi vào thang máy không được nhỏ hơn 60lux.
Bảng 5: Kí hiệu các nút gọi và điều khiển thang máy

5.9. Sàn nhà và nền
5.9.1. Mặt sàn hay mặt đất nằm trong khoảng không gian thông thủy để di chuyển xe lăn cần phải bằng phẳng, không trơn trượt. Nếu có sự thay đổi độ cao đột ngột phải có độ dốc thích hợp. Nếu trên mặt sàn có trải thảm thì phải được dán chắc chắn. Mép ngoài của thảm phải được gắn chặt xuống sàn.
5.9.2. Bề mặt sàn cho xe lăn di chuyển phải bằng phẳng không bị dốc nghiêng. Nếu nền xung quanh không cùng cao độ cần lắp đặt lan can hoặc tấm chắn cao 850mm.
5.9.3. Mặt sàn phải chắc chắn và sử dụng vật liệu không trơn và không bị biến dạng.
5.9.4. Cho phép thay đổi độ cao theo chiều thẳng đứng lớn nhất là 6mm, theo cạnh xiên với độ dốc không lớn hơn 1 : 2.
Chú thích: Những thay đổi độ cao lớn hơn 15mm phải tạo thành đường dốc theo như quy định trong điều 5.1.2.
5.9.5. Tấm chùi giầy dép đặt ở cửa không được dày hơn 20mm.
5.9.6. Kích thước lỗ thoát nước mưa của các tấm đan đặt trên đường đi, bên ngoài nhà và ở cửa ra vào không được lớn hơn 20mm x 20mm để đầu gậy, đầu nạng của người tàn tật không bị lọt vào.
5.9.7. Trong khu vệ sinh nếu có các rãnh bố trí trên mặt sàn thì đường kính rãnh không lớn hơn 10mm đến 15mm. Kích thước rãnh được kéo dài và vuông góc với hướng đi (xem hình 35).

Hình 35. Bố trí rãnh trên mặt sàn khu vệ sinh
5.9.8. Trước điểm bắt đầu và điểm kết thúc của bậc thềm và trước cửa ra vào để sử dụng thang máy nên dùng các tấm lát có cảm giác để cảnh báo cho những người khiếm thị nhận biết được.
5.10. Khu vệ sinh
5.10.1. Kích thước không gian thông thủy của phòng vệ sinh để đảm bảo người đi xe lăn tiếp cận sử dụng không được nhỏ hơn 1500mm x 1400mm đối với cửa mở ra ngoài và 1800mm x 1400mm đối với cửa mở vào trong (xem hình 30). Khoảng không gian để dịch chuyển từ xe lăn sang bệ xí cho phép có thể từ bên phải hoặc bên trái bệ xí.
Chú thích: Khoảng không gian thông thủy trong phòng vệ sinh có tính cả vị trí cho các vật như: tay vịn, hộp đựng giấy vệ sinh, đường đi, khu vực sàn trống hoặc các vật dụng khác và khu vực dịch chuyển xe lăn.
5.10.2. Cửa dùng cho khu vệ sinh nên là loại cửa mở ra ngoài hoặc cửa trượt. Chỉ cho phép cửa mở vào trong khi bên trong phòng vệ sinh có không gian đủ rộng. Chiều rộng của cửa không nhỏ hơn 800mm.
5.10.3. Phòng vệ sinh cho người tàn tật phải được lắp đặt xí bệt. Có thể dùng rèm kéo hoặc các tấm ngăn để phân cách với các bộ phận khác.

Hình 36: Phòng vệ sinh cho người đi xe lăn
5.10.4. Độ cao lắp đặt bệ xí cách mặt sàn từ 400mm đến 450mm. Khoảng cách từ mép trước của bệ xí đến mặt tường phía sau của phòng vệ sinh không nhỏ hơn 760mm. Khoảng cách từ đường trục đặt bệ xí đến mặt tường bên xa nhất không nhỏ hơn 960mm (xem hình 37).

Hình 37: Mặt bằng phòng vệ sinh dành cho người tàn tật dùng xe lăn
5.10.5. Hộp đựng giấy vệ sinh đặt cách mép trước bệ xí một khoảng từ 180mm đến 230mm và cách mặt sàn không nhỏ hơn 400mm và không lớn hơn 1200mm.
Hộp đựng giấy đặt cách tay vịn không nhỏ hơn 40mm khi đặt phía dưới tay vịn và không nhỏ hơn 300mm khi đặt trên tay vịn (xem hình 38).

Hình 38: Vị trí bố trí hộp đựng giấy vệ sinh
5.10.6. Trên tường xung quanh bệ xí phải lắp đặt các tay vịn an toàn chịu được trọng lượng của cơ thể. Chi tiết tay vịn lấy theo quy định ở điều 5.6 của tiêu chuẩn này. Kích thước lắp đặt tay vịn được lấy như sau (xem hình 39):

Hình 39: Kích thước bố trí tay vịn trong phòng vệ sinh
- Tay vịn nằm ngang thứ nhất ở mặt tường bên có chiều dài không nhỏ hơn 1000mm và cách mặt tường phía sau 300mm;
- Tay vịn nằm ngang thứ hai ở mặt tường phía sau có chiều dài không nhỏ hơn 600mm nằm phía trên chính giữa bệ xí. Nếu có không gian cho phép thì được kéo dài về phía tường cách xa bệ xí hơn một khoảng 300mm;
- Tay vịn thẳng đứng thứ nhất được bố trí cách mép trước bệ xí 300mm, cách đường trục bệ xí 250mm;
- Tay vịn thẳng đứng thứ hai được bố trí cách đường trục bệ xí 450mm về phía tường cách xa bệ xí hơn.
- Tay vịn nằm ngang được lắp đặt ở độ cao 900mm, tay vịn thẳng đứng được lắp đặt ở độ cao từ 850mm đến 1300mm, tính từ mặt sàn. Cũng có thể bố trí tay vịn thẳng đứng từ mặt sàn tới trần.
Chú thích: Đối với các phòng vệ sinh có chiều dài từ 1400mm đến 1500mm và chiều rộng là 900mm thì không cần lắp đặt tay vịn thẳng đứng nếu tay vịn nằm ngang được bẻ xiên một góc 300 đến 450 với chiều dài 700mm (xem hình 40).

Hình 40: Kích thước bố trí tay vịn bẻ xiên trong phòng vệ sinh
5.10.7. Nếu khu vệ sinh có bố trí bồn tiểu thì phải có tay vịn cho người tàn tật. Kích thước lắp đặt tay vịn xem trên hình 41.
Độ cao lắp đặt bồn tiểu dạng ngồi hoặc gắn vào tường không được cách mặt sàn lớn hơn 400mm.

Hình 41: Kích thước lắp đặt bồn tiểu treo và tay vịn dùng cho người tàn tật
5.10.8. Chậu rửa được lắp đặt ở độ cao không lớn hơn 800mm tính từ mép trên của chậu tới mặt sàn. Chậu rửa có thể bố trí bên trong hoặc bên ngoài phòng vệ sinh (xem hình 42).

Hình 42: Chiều cao lắp đặt chậu rửa
Chú thích: Khi lắp đặt chậu rửa phải chú ý đến khoảng không gian thông thủy phía dưới đầu gối và chỗ để chân của người tàn tật đi xe lăn như quy định ở điều 5.5.9. Các ống dẫn nước và thoát nước phía dưới chậu rửa cần có đường bao để tránh sự va chạm. Phía dưới chậu rửa không được có bề mặt nhọn sắc mà phải mài nhẵn
5.10.9. Các thiết bị xả nước hoặc vòi rửa phải sử dụng loại có cần gạt hoặc tự động để đảm bảo cho người tàn tật sử dụng. Vòi nước tự động đóng mở sẽ duy trì độ mở trong khoảng thời gian ít nhất là 10 giây.
5.10.10. Móc và giá treo quần áo lắp đặt trong phòng vệ sinh cách mặt sàn từ 1100mm đến 1200mm.
5.10.11. Gương soi trong phòng vệ sinh được treo ở độ cao không được lớn hơn 900mm tính từ mặt sàn đến mép trên của gương.
5.11. Phòng tắm
5.11.1. Kích thước không gian thông thủy của phòng tắm dành cho người tàn tật được lấy như sau:
a) Cửa mở ra ngoài kích thước không nhỏ hơn 1200mm x 800mm.
b) Phòng tắm có gắn vòi hoa sen di động: kích thước không nhỏ hơn 1200mm x 1800mm (xem hình 43).
c) Phòng tắm có vòi hoa sen kết hợp với chậu rửa: kích thước không nhỏ hơn 1500mm x 1500mm (xem hình 44).
d) Phòng tắm có lắp đặt bồn tắm: kích thước không nhỏ hơn 1500mm x chiều dài bồn (xem hình 45).
5.11.2. Phòng tắm bố trí để đảm bảo người tàn tật tiếp cận sử dụng phải ở vị trí ra vào thuận lợi. Trong khu vực phòng tắm phải có diện tích để quay xe lăn.
5.11.3. Để phân cách khu vực tắm của người tàn tật với các bộ phận khác nên dùng rèm kéo hoặc vách ngăn di động.
5.11.4. Trong phòng tắm phải lắp đặt các tay vịn an toàn, chắc chắn.
5.11.5. Đối với phòng tắm vòi hoa sen có ghế ngồi thì tay vịn được gắn trên ba mặt tường. Khoảng cách giữa tay vịn với bức tường gần kề không lớn hơn 150mm. Vị trí lắp đặt các tay vịn xem hình 46.
Chú thích:
1) Khi lắp đặt ghế ngồi trong phòng tắm dùng vòi hoa sen thì tay vịn tại mặt tường bên không được vượt quá chiếc ghế đó và không được lắp ở phía sau ghế.
2) Tay vịn và bề mặt tường hoặc kề sát với tay vịn không được có các chi tiết sắc nhọn.
3) Tay vịn không được xoay trong các mối liên kết và được chế tạo từ vật liệu chịu được một lực 1100N (110 kg.m/s2).


Hình 45: Phòng tắm có bồn

Hình 46: Vị trí lắp đặt các tay vịn trong phòng tắm vòi hoa sen
5.11.6. Trong phòng tắm có bồn cần lắp đặt các tay vịn để đảm bảo người tàn tật tiếp cận sử dụng. Kích thước lắp đặt được quy định như sau:
a) Bồn tắm có ghế cố định: các tay vịn được lắp trên tường dọc theo bồn. Tay vịn trên được gắn cách mặt sàn từ 850mm đến 900mm. Tay vịn dưới cách mép trên bồn tắm 250mm. Các tay vịn này cách mặt tường phía đầu một khoảng không lớn hơn 350mm và cách mặt tường phía chân một khoảng không lớn hơn 300mm. Một tay vịn khác dài 600mm được bố trí trên mặt tường phía chân của bồn tắm tính từ mép tường ngoài (xem hình 47).
b) Bồn tắm không có ghế cố định: các tay vịn được gắn trên tường như quy định ở a). Ngoài ra phía trên tường đầu bồn tắm có lắp một tay vịn dài 300mm tính từ mép tường ngoài (xem hình 48).

Hình 47: Kích thước lắp đặt tay vịn trong phòng tắm có bồn với ghế ngồi cố định

Hình 48: Kích thước lắp đặt tay vịn trong phòng tắm có bồn với ghế ngồi không cố định
5.11.7. Trong phòng tắm cần bố trí chỗ ngồi cho người tàn tật. Ghế ngồi có dạng hình chữ L và hình chữ nhật được gắn hoặc ghép thành khối cố định hoặc không cố định. Trong phòng tắm dùng vòi hoa sen ghế được lắp dưới dạng ghế gập được gắn cố định trên tường. Đối với phòng tắm có bồn thì ghế ngồi được bố trí ở phía đầu của bồn tắm hoặc ở trên mặt bồn. Chỗ ngồi phải được gắn an toàn và không bị trượt trong quá trình sử dụng. Mặt ghế cách mặt sàn từ 400mm đến 450mm.
5.11.8. Khi lắp đặt ghế ngồi dạng hình chữ nhật thì mép sau của ghế cách mặt tường kề sát không lớn hơn 65mm. Đối với phòng tắm dùng vòi hoa sen di động thì các mép bên của ghế cách mặt tường kề sát không nhỏ hơn 40mm. Chiều rộng mặt ghế từ 350mm đến 400mm (xem hình 49).

Hình 49: Kích thước lắp đặt loại ghế ngồi hình chữ nhật
5.11.9. Khi lắp đặt ghế ngồi dạng hình chữ L thì mép sau của ghế cách mặt tường kề sát không lớn hơn 65mm. Chiều rộng mặt ghế từ 350mm đến 400mm. Mép sau tại phần gập của chữ L cách mặt tường kề sát một khoảng không lớn hơn 40mm. Phần cuối của chữ L cách mặt sàn kê ghế từ 550mm đến 580mm (xem hình 50).

Hình 50: Kích thước lắp đặt loại ghế ngồi hình chữ L
5.11.10. Ghế ngồi được sử dụng từ những vật liệu chịu được một lực ngang hoặc đứng là 1100N (110 kg.m/s2).
5.11.11. Trong phòng tắm phải bố trí vòi hoa sen di động dài 1500mm và có bộ hòa trộn nước nóng nước lạnh. Vòi và các bộ phận điều khiển phải đảm bảo sử dụng của người tàn tật. Các bộ phận điều khiển được lắp ở phía trên thanh vịn nhưng không được cách mặt sàn quá 1200mm và cách đường tâm của ghế 350mm về phía bên phải hoặc bên trái tùy ý.
5.11.12. Nếu phòng tắm có ngưỡng cửa thì độ cao cho phép từ 10mm đến 12mm.
5.12. Các không gian công cộng khác trong công trình
5.12.1. Chỗ ngồi
5.12.1.1. Khoảng không gian thông thủy dành cho xe lăn tập kết trong các không gian công cộng trong công trình phải đảm bảo có chiều rộng không nhỏ hơn 900mm. Khi có nhiều xe lăn cùng đi thì chiều rộng không được nhỏ hơn 850mm.
Ở những nơi xe lăn có thể đi vào từ phía trước hay phía sau thì khu vực dành cho xe lăn phải đảm bảo không nhỏ hơn 1200mm. Ở những nơi xe lăn có thể đi vào từ hai bên thì cho phép là 1500mm (xem hình 51).

Hình 51: Kích thước khu vực dành cho người tàn tật sử dụng xe lăn
5.12.1.2. Trong khu vực chờ đợi phải bố trí ghế ngồi cho người tàn tật. Các loại ghế thường dùng là ghế tựa có tay vịn hoặc ghế gập (phù hợp với những chỗ chật hẹp). Độ cao lắp đặt từ mặt sàn đến mặt ngồi của loại ghế tựa có tay vịn từ 450mm đến 500mm, còn của ghế gập từ 500mm đến 600mm.
5.12.1.3. Khu vực bố trí chỗ ngồi đợi phải trong phạm vi quan sát và nên có các hệ thống tín hiệu bằng âm thanh hoặc biển báo.
5.12.1.4. Trong nhà hát, rạp chiếu bóng, nhà thi đấu thể thao, các phòng hội họp, mít tinh, giảng đường cần phải bố trí chỗ ngồi và không gian di chuyển cho người đi xe lăn. Vị trí chỗ ngồi của người tàn tật đi xe lăn thường được bố trí gần lối đi ở dưới cùng hoặc ở gần lối ra vào ở tầng trên và phải đảm bảo tầm nhìn của người tàn tật khi ngồi xe lăn (xem hình 52).
Kích thước không gian thông thủy chỗ ngồi dành cho người đi xe lăn có chiều rộng từ 800mm đến 900mm và có chiều dài từ 1100mm đến 1400mm (xem hình 53).
Chú thích: Số lượng chỗ ngồi dành cho xe lăn ở hội trường, phòng họp, sân vận động được quy định trong quy chuẩn xây dựng công trình đảm bảo sử dụng của người tàn tật.
5.12.1.5. Bên cạnh khu vực dành cho xe lăn cần có ít nhất một ghế đôi đặt bên cạnh để người tàn tật có thể di chuyển sang hoặc để người đi cùng có thể sử dụng.

Hình 52: Tầm nhìn của người đi xe lăn trong phòng khán giả, hội trường

Hình 53: Kích thước bố trí chỗ ngồi cho người đi xe lăn
5.12.2. Nơi giao tiếp
5.12.2.1. Đối với các công trình công cộng có khu vực tiếp đón, giao tiếp thì cần phải có không gian, biển báo, biển chỉ dẫn, chỗ ngồi đợi và các tiện nghi trợ giúp người tàn tật.
5.12.2.2. Phía trước nơi giao tiếp với khách hàng là người tàn tật phải có một khoảng cách phía trước quầy không nhỏ hơn 1200mm. Chiều cao bề mặt giao tiếp từ 700mm đến 800mm, chiều dài không nhỏ hơn 600mm, chiều sâu dưới bàn quầy không nhỏ hơn 400mm.
5.12.2.3. Trong khu vực giao tiếp ít nhất phải có một điện thoại công cộng được lắp đặt ở độ cao như hình 54.

Hình 54: Điện thoại công cộng cho người tàn tật sử dụng
5.12.3. Các không gian khác
5.12.3.1. Các khu vực và buồng phòng dành cho người tàn tật trong các công trình như khách sạn, nhà nghỉ, nhà trọ, nhà ở cần được bố trí ở tầng dưới, gần lối ra vào, liên hệ trực tiếp với không gian công cộng trong công trình.
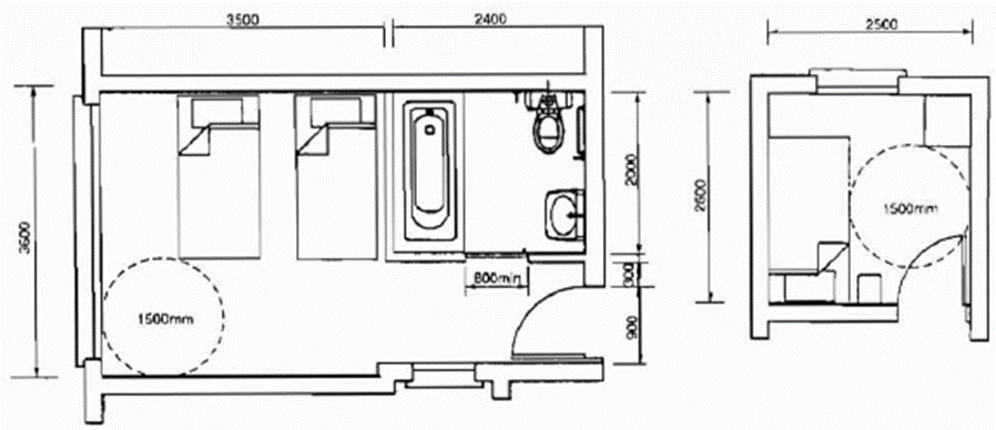
5.12.3.2. Các phòng chức năng như phòng khách, phòng ngủ, phòng ăn phải có khoảng không gian thông thủy bán kính không nhỏ hơn 1500mm để xe lăn di chuyển được.
5.12.3.3. Các phòng ở phải được chiếu sáng đầy đủ, thoáng mát.
5.12.3.4. Khi bố trí giường phải để một khoảng không gian rộng 1500mm x 1500mm về một phía của giường để người đi xe lăn có thể quay xe lăn hoặc di chuyển xe lăn. Giường ngủ có chiều cao phù hợp với người tàn tật, thông thường nhỏ hơn hoặc bằng 450mm. Phòng ngủ phải được bố trí thuận tiện với các phòng khác của ngôi nhà (xem hình 55).

Hình 55: Mặt bằng bố trí phòng ngủ
5.12.3.5. Đối với trụ sở cơ quan phải bố trí chỗ làm việc cho người tàn tật ở gần lối ra vào hoặc ở dưới tầng một. Kích thước đặt bàn làm việc phải đảm bảo không gian thông thủy để di chuyển xe lăn và khoảng trống dưới đầu gối và ngón chân như quy định ở điều 5.5. Chiều cao mặt bàn làm việc so với mặt sàn từ 700mm đến 800mm.
5.12.3.6. Chiều cao lắp đặt cửa sổ và các thiết bị điện, đồ dùng trong phòng khách và buồng ở phải tính đến yêu cầu an toàn và kích thước về tầm với của người tàn tật trong công trình.
5.12.3.7. Đối với hệ thống tủ tường, các giá đỡ, mắc treo quần áo, bàn làm việc trong các buồng phòng khách sạn, nhà ở, nhà trọ phải có đủ không gian để đầu gối, chân và mũi giầy không chạm phải khi sử dụng các mặt phẳng làm việc. Các ngăn, giá đựng đồ cần phải làm nhiều nấc ở các độ cao khác nhau để người tàn tật có thể sử dụng. Chiều cao thích hợp là từ 1000mm đến 1200mm. Các ngăn tủ, hộc bàn nên dùng dạng kéo hoặc trượt.
5.12.3.8. Nếu trong công trình có bố trí bếp thì các bệ bếp và kệ bếp phải có chiều cao điều chỉnh được. Khoảng cách giữa tất cả những bệ tủ bếp, thiết bị hoặc giữa các mặt tường đối diện nhau phải đảm bảo không nhỏ hơn 1000mm.
5.12.3.9. Khi trên cả ba mặt của tường đều có tủ bếp và các thiết bị thì khoảng cách giữa tất cả bệ bếp, tủ bếp, thiết bị hoặc các mặt tường đối diện trong khu vực làm bếp không được nhỏ hơn 1500mm. Chiều sâu các tủ tường không được lớn hơn 300mm. Phải chú ý đến khoảng trống chỗ đầu gối cho người ngồi xe lăn khi tiếp cận các thiết bị như quy định ở điều 5.5.9.
5.12.3.10. Chiều cao lắp đặt các chậu rửa trong khu vực bếp được lấy theo quy định ở điều 5.10.8.
5.12.3.11. Các kho chứa của bếp hoặc trong khu vực nhà ở phải có kích thước không nhỏ hơn 1500mm x 1500mm để người đi xe lăn có thể di chuyển được.
5.12.3.12. Các bộ phận điều khiển trong khu vực bếp phải dễ dàng sử dụng. Tuyệt đối không sử dụng các thiết bị dạng vít, xoáy.
5.12.3.13. Các thiết bị xả nước hoặc vòi rửa phải sử dụng loại có cần gạt hoặc tự động để đảm bảo sử dụng của người tàn tật. Máy rửa bát có cửa mở ra không ảnh hưởng đến các hoạt động khác và có khoảng rộng thông thủy ở vị trí sát cạnh máy rửa bát.
5.12.3.14. Các khu vực dịch vụ công cộng phải tạo ra các điều kiện an toàn và tiện nghi cho người tàn tật. Các thiết bị sử dụng hoặc điều khiển chỉ cần tác động một lực nhỏ khoảng 30N (3 kg.m/s2) là có thể bấm nút, vặn hoặc xoay. Các thiết bị phải dễ nắm, chắc chắn và được lắp đặt ở độ cao phù hợp.
5.12.3.15. Trên các thiết bị nên có các kí hiệu hoặc kí tự bằng chữ nổi Brain để người khiếm thị có thể nhận biết được bằng cảm giác hoặc sờ tay.
5.12.3.16. Tại khu vực có các phương tiện trợ giúp hoặc dịch vụ công cộng phải có các bảng hướng dẫn được diễn đạt ngắn gọn, đơn giản và dùng các hình tượng dễ hiểu.
5.12.3.17. Hệ thống sưởi, thông gió phải đảm bảo an toàn cho người sử dụng, được lắp đặt ở vị trí không gây cản trở cho người tàn tật và người khiếm thị chạm phải. Hệ thống cấp nước nóng phải đảm bảo an toàn về nhiệt (tránh gây bỏng do chạm vào các bề mặt thiết bị có nhiệt độ cao). Chi tiết các thiết bị không được làm cạnh sắc, nhọn.
5.13. Lối thoát nạn
5.13.1. Trên đường thoát nạn phải có chỗ dành cho người tàn tật ở cùng một độ cao và đầu đường thoát nạn phải có cầu thang bộ.
5.13.2. Chiều rộng đường thoát nạn phải từ 900mm đến 1200mm. Ở những nơi tập trung đông người phải rộng 1800mm. Trên đường thoát không được có sự thay đổi độ cao. Nếu dùng các cửa tự động hoặc dùng thẻ từ thì các cửa này phải tự mở khi có cháy.
5.13.3. Phải đảm bảo độ rọi chiếu sáng trên đường thoát nạn từ 0,1 đến 0,2 lux. Tại các cửa ra vào và các bậc thang lên xuống cũng phải đảm bảo chiếu sáng.
6. Kí hiệu quy ước quốc tế về người tàn tật
6.1. Trong các công trình để đảm bảo người tàn tật tiếp cận sử dụng cần hướng sự chú ý của người sử dụng vào các phương tiện trợ giúp cho người tàn tật. Kí hiệu quy ước quốc tế về người tàn tật (sau đây gọi tắt là biểu tượng quy ước) được sử dụng và thể hiện để chỉ ra vị trí các phương tiện trợ giúp khác nhau cho người tàn tật có trong công trình. Biểu tượng quy ước xem hình 56.
Chú thích: Ở những vị trí có sự thay đổi hướng hoặc ở những chỗ có phương tiện trợ giúp cho người tàn tật cần thể hiện biểu tượng quy ước tại đó

Hình 56: Biểu tượng quy ước quốc tế về người tàn tật
6.2. Màu của biểu tượng quy ước được quy định là màu trắng trên nền xanh nhạt.
6.3. Kích thước của biểu tượng quy ước và khoảng cách quan sát lấy theo quy định trong bảng 8.
Bảng 8: Kích thước của biểu tượng quy ước quốc tế về người tàn tật
| Khoảng cách quan sát (m) | Kích thước (mm) |
| Tới 7,0 Từ 7,0 đến 18,0 Trên 18 | 60 x 60 110 x 110 200 x 200 tới 450 x 450 |
6.4. Biểu tượng quy ước thường được đặt tại các vị trí sau:
- Đường vào công trình, lối vào;
- Bãi để xe, điểm chờ xe;
- Tại các hành lang chính hoặc tại các nút giao thông chính trong công trình;
- Khu vệ sinh;
- Tại các vị trí khác mà người tàn tật có thể đến được.
Chú thích: Tại những vị trí có sự thay đổi hướng hoặc ở những chỗ có phương tiện trợ giúp cho người tàn tật cần đặt biểu tượng quy ước tại đó.
6.5. Biển chỉ dẫn dùng để chỉ phương hướng và cung cấp những thông tin sau:
- Chỉ lối ra vào của công trình và lối thoát khẩn cấp;
- Chỉ đường đi bên trong và bên ngoài công trình;
- Chỉ vị trí không gian chuyên dụng;
- Chỉ vị trí có lối vào trên tường (xem hình 57).
6.6. Chiều cao của các chữ viết trên biển báo tùy thuộc vào khoảng cách quan sát và lấy theo quy định như trong bảng 9.
Bảng 9: Chiều cao chữ viết trên biển báo
| Khoảng cách quan sát yêu cầu (m) | Chiều cao tối thiểu của chữ viết (mm) |
| 2 3 6 8 12 15 25 35 40 50 | 6 12 20 25 40 50 80 100 130 150 |

Hình 57: Vị trí về biển chỉ dẫn cho người tàn tật
Phụ lục A
CÁC THÔNG SỐ CƠ BẢN CỦA NGƯỜI TÀN TẬT ĐI XE LĂN, NGƯỜI CHỐNG NẠNG, CHỐNG GẬY
A.1. Thông số cơ bản của xe lăn
Đơn vị tính: mm
Bảng A1: Thông số tính toán cơ bản của xe lăn
| Chiều rộng phủ bì | Chiều rộng khi xếp lại | Chiều rộng trong lòng xe | Độ cao từ mặt ngồi đến tay vịn | Đường kính bánh xe | Chiều cao từ mặt sàn đến tay vịn | Chiều dài xe | Chiều rộng mặt ghế | Trọng lượng (kg) |
| 540 | 290 | 370 | 170 | 510 | 920 | 980 | 350 | 14 |
| 560 | 300 | 390 | 220 | 510 | 920 | 1100 | 430 | 14 |
| 590 | 300 | 420 | 220 | 510 | 920 | 1100 | 430 | 14 |
| 610 | 300 | 440 | 220 | 510 | 920 | 1100 | 430 | 14 |
| 650 | 300 | 450 | 220 | 510 | 920 | 1100 | 430 | 14 |
| 710 | 320 | 480 | 240 | 510 | 920 | 1100 | 430 | 16 |

Hình A1: Ví dụ minh họa kích thước của một xe lăn
A.2. Đối với người chống nạng, chống gậy
- Khi dùng một nạng: chiều rộng cần thiết là 750mm.
- Khi dùng hai nạng: chiều rộng cần thiết là từ 800mm đến 950mm

Hình A2: Chiều rộng nhỏ nhất đi ngang của người chống nạng và chống gậy
A.3. Không gian hoạt động của gậy đối với người khiếm thị
Chiều rộng khi di chuyển với độ khua của gậy không nhỏ hơn 900mm và chiều dài dao động của gậy từ 900mm đến 1500mm.

Hình A3: Không gian hoạt động của gậy dẫn người mù
Bạn chưa Đăng nhập thành viên.
Đây là tiện ích dành cho tài khoản thành viên. Vui lòng Đăng nhập để xem chi tiết. Nếu chưa có tài khoản, vui lòng Đăng ký tại đây!