- Tổng quan
- Nội dung
- Tiêu chuẩn liên quan
- Lược đồ
- Tải về
Tiêu chuẩn TCVN 8242-1:2009 Quy định chung về cần trục
| Số hiệu: | TCVN 8242-1:2009 | Loại văn bản: | Tiêu chuẩn Việt Nam |
| Cơ quan ban hành: | Bộ Khoa học và Công nghệ | Lĩnh vực: | Công nghiệp |
|
Ngày ban hành:
Ngày ban hành là ngày, tháng, năm văn bản được thông qua hoặc ký ban hành.
|
2009 |
Hiệu lực:
|
Đã biết
|
| Người ký: | Đang cập nhật |
Tình trạng hiệu lực:
Cho biết trạng thái hiệu lực của văn bản đang tra cứu: Chưa áp dụng, Còn hiệu lực, Hết hiệu lực, Hết hiệu lực 1 phần; Đã sửa đổi, Đính chính hay Không còn phù hợp,...
|
Đã biết
|
TÓM TẮT TIÊU CHUẨN VIỆT NAM TCVN 8242-1:2009
Nội dung tóm tắt đang được cập nhật, Quý khách vui lòng quay lại sau!
Tải tiêu chuẩn Việt Nam TCVN 8242-1:2009
TIÊU CHUẨN QUỐC GIA
TCVN 8242-1: 2009
ISO 4306-1: 2007
CẦN TRỤC - TỪ VỰNG - PHẦN 1: QUY ĐỊNH CHUNG
Cranes - Vocabulary - Part 1: General
Lời nói đầu
TCVN 8242-1: 2009 hoàn toàn tương đương ISO 4306-1: 2007.
TCVN 8242-1: 2009 do Ban kỹ thuật tiêu chuẩn quốc gia TCVN/TC 96 Cần cẩu biên soạn, Tổng cục Tiêu chuẩn Đo lường Chất lượng đề nghị, Bộ Khoa học và Công nghệ công bố.
Bộ TCVN 8242 (ISO 4306), Cần trục - Từ vựng gồm các phần sau:
TCVN 8242-1: 2009 (ISO 4306-1: 2007), Phần 1: Quy định chung.
TCVN 8242-2: 2009 (ISO 4306-2: 1994), Phần 2: Cần trục tự hành.
TCVN 8242-3: 2009 (ISO 4306-3: 2003), Phần 3: Cần trục tháp.
TCVN 8242-5: 2009 (ISO 4306-5: 2005), Phần 5: Cầu trục và cổng trục.
CẦN TRỤC - TỪ VỰNG - PHẦN 1: QUY ĐỊNH CHUNG
Cranes - Vocabulary - Part 1: General
Phạm vi áp dụng
Tiêu chuẩn này quy định từ vựng về các thuật ngữ được sử dụng phổ biến nhất trong lĩnh vực cần trục.
Tiêu chuẩn này quy định những thuật ngữ về các loại cần trục chính và phân loại cần trục, các thông số, các khái niệm cơ bản và các bộ phận của cần trục.
CHÚ THÍCH: Các sơ đồ minh họa kèm theo một số định nghĩa chỉ để hướng dẫn chung.
Thuật ngữ và định nghĩa
Cần trục
Máy làm việc theo chu kỳ, dùng để nâng và dịch chuyển trong không gian tải trọng được treo bởi móc treo hoặc bằng thiết bị mang tải khác.
1. Loại cần trục
1.1. Phân loại cần trục theo cấu tạo
| 1.1.1 | Cần trục kiểu cầu Cần trục có thiết bị mang tải được treo dưới xe con hoặc palăng, hoặc cần trục kiểu cần, chạy dọc theo dầm cầu. |
|
| 1.1.1.1. | Cầu trục Cần trục có kết cấu chịu lực của dầm cầu tựa trực tiếp trên đường ray bằng các cụm bánh xe di chuyển |
|
| 1.1.1.2 | Cổng trục Cần trục có dầm cầu tựa trên đường ray bằng các chân cổng. |
|
| 1.1.1.3. | Bán cổng trục Cần trục có dầm cầu tựa trực tiếp trên đường ray ở một đầu và tựa trên chân cổng ở đầu kia. |
|
| 1.1.2 | Cần trục kiểu cáp Cần trục có thiết bị mang tải được treo dưới xe con chạy dọc theo cáp chịu tải được cố định chắc chắn vào cột. |
|
| 1.1.2.1. | Cần trục cáp Cần trục có bộ phận chịu tải là cáp được cố định chắc chắn vào các đầu cột. |
|
| 1.1.2.2. | Cần trục cáp dạng cổng Cần trục có bộ phận chịu tải là cáp được cố định chắc chắn vào hai đầu dầm của kết cấu dạng cổng. |
|
| 1.1.3 | Cần trục kiểu cần Cần trục có thiết bị mang tải được treo dưới cần hoặc xe con chạy dọc theo cần. Xem cần trục tay cần (1.1.3.10). |
|
| 1.1.3.1 | Cần trục chân đế (cần trục cảng) Cần trục quay (1.5.1), di chuyển, được lắp đặt trên chân đế dạng cổng để các phương tiện vận tải đường sắt hoặc đường bộ có thể di chuyển qua chân đế. |
|
| 1.1.3.2 | Cần trục bán chân đế Cần trục quay (1.5.1), di chuyển, được lắp trên chân đế dạng bán cổng để các phương tiện giao thông đường sắt hoặc đường bộ có thể di chuyển qua chân đế. |
|
| 1.1.3.3 | Cần trục tự hành Cần trục kiểu cần (1.1.3), có thể lắp đặt kết cấu dạng tháp-cần, có khả năng di chuyển trong điều kiện có tải hoặc không tải mà không cần đường riêng và đảm bảo được ổn định cần trục dưới tác dụng của trọng lực. |
|
| 1.1.3.4 | Cần trục tháp Cần trục quay, có cần lắp với phần đỉnh tháp thẳng đứng. |
|
| 1.1.3.5 | Cần trục đường sắt Cần trục lắp trên toa (bệ) chuyên dụng, chạy trên ray đường sắt. |
|
| 1.1.3.6 | Cần trục nổi Cần trục lắp trên thiết bị nổi tự hành hoặc không tự hành được thiết kế để đỡ và di chuyển nó. |
|
| 1.1.3.7 | Cần trục tàu thủy Cần trục quay (1.5.1), lắp trên boong tàu thủy để xếp dỡ hàng trên tàu. |
|
| 1.1.3.8 | Cần trục cột buồm Cần trục quay (1.5.1) có cần liên kết bằng khớp bản lề với phần dưới của cột thẳng đứng được đỡ bằng các gối tựa trên và dưới. |
|
| 1.1.3.8.1 | Cần trục cột buồm kiểu cáp chằng Cần trục cột buồm có gối tựa trên đỉnh cột được neo giữ bằng các cáp chằng. |
|
| 1.1.3.8.2 | Cần trục cột buồm kiểu chân cứng Cần trục cột buồm có gối tựa trên đỉnh cột được giữ bằng các thanh giằng cứng. |
|
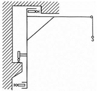
| 1.1.3.9 | Cần trục công xôn Cần trục tay cần (1.1.3.10) có thiết bị mang tải được treo dưới công xôn cứng vững (cần) hoặc dưới xe con chạy dọc theo công xôn (cần). |
|
| 1.1.3.9.1 | Cần trục công xôn trên cột Cần trục công xôn, có khả năng quay quanh cột có đế cố định trên móng máy, hoặc cố định vào cột quay trên gối đỡ chặn lắp trong móng máy. |
|
| 1.1.3.9.2 | Cần trục (lắp) trên tường Cần trục được cố định trên tường hoặc có khả năng di chuyển dọc theo đường ray gắn trên tường hay trên kết cấu chịu lực. |
|
| 1.1.3.9.3 | Cần trục hai bánh (Cần trục xe đạp) Cần trục công xôn di chuyển trên ray lắp đặt trên nền và được đỡ bằng dẫn hướng ở phía trên. |
|
| 1.1.3.10 | Cần trục tay cần Cần trục kiểu cần (1.1.3), loại trừ cần trục tự hành (1.1.3.3), cần trục tháp (1.1.3.4), cần trục đường sắt (1.1.3.5), cần trục nổi (1.1.3.6) và các cần trục lắp đặt xa bờ (ở ngoài khai). |
|
1.2 Phân loại cần trục theo thiết bị mang tải
| 1.2.1. | Cần trục móc treo Cần trục có thiết bị mang tải là móc treo. |
|
| 1.2.2 | Cần trục gầu ngoạm Cần trục có thiết bị mang tải là gầu ngoạm. |
|
| 1.2.3 | Cần trục nam châm Cần trục có thiết bị mang tải là nam châm điện. |
|
| 1.2.4 | Cần trục mang thùng nạp liệu có nam châm Cần trục kiểu cầu (1.1.1) có thiết bị mang tải là nam châm điện và thiết bị mang thùng nạp liệu. |
|
| 1.2.5 | Cần trục mang thùng nạp liệu có gầu ngoạm Cần trục kiểu cầu (1.1.1) có thiết bị mang tải là gầu ngoạm và thiết bị mang thùng nạp liệu. |
|
| 1.2.6. | Cần trục nạp liệu lò Martin Cần trục kiểu cầu (1.1.1) được trang bị thiết bị cặp thùng nạp liệu. |
|
| 1.2.7 | Cầu trục mang điện cực Cần trục kiểu cầu (1.1.1) được trang bị thiết bị cặp để thu hồi điện cực từ thùng điện phân. |
|
| 1.2.8 | Cần trục xếp chồng Cần trục kiểu cầu (1.1.1) được trang bị cột treo thẳng đứng với bàn nâng (dạng nĩa) để xếp hàng hóa thành chồng. |
|
| 1.2.9 | Cần trục đúc Cần trục kiểu cầu (1.1.1) được trang bị các cơ cấu nâng và lật gầu đúc. |
|
| 1.2.10 | Cần trục nạp thỏi đúc Cần trục kiểu cầu (1.1.1) được trang bị cột quay với cơ cấu kẹp nằm ngang ở phần dưới của cột để cặp và nạp thỏi đúc vào lò. |
|
| 1.2.11 | Cần trục rèn Cần trục kiểu cầu (1.1.1) được trang bị thiết bị để nâng, dịch chuyển và xoay vật rèn. |
|
| 1.2.12 | Cần trục dỡ thỏi đúc Cần trục kiểu cầu (1.1.1) được trang bị thiết bị để dỡ thỏi đúc ra khỏi khuôn đúc. |
|
| 1.2.13 | Cần trục lò giếng Cần trục kiểu cầu (1.1.1) được trang bị thiết bị cặp vật để nạp liệu và phục vụ lò giếng. |
|
| 1.2.14 | Cần trục dầm nâng Cần trục kiểu cầu (1.1.1) được trang bị dầm nâng với móc treo, nam châm điện hoặc thiết bị mang tải khác để vận chuyển tải trọng có kích thước dài (có độ dài lớn). |
|
| 1.2.15. | Cần trục công ten nơ Cần trục được trang bị khung treo với các chốt khóa để vận chuyển công ten nơ. |
|
1.3 Phân loại cần trục theo khả năng dịch chuyển
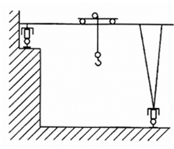
| 1.3.1 | Cần trục tĩnh tại (Cần trục cố định) Cần trục được cố định trên móng hoặc trên nền cố định khác. |
|
| 1.3.2 | Cần trục tự nâng Cần trục được lắp đặt trên kết cấu của công trình xây dựng và dịch chuyển lên cao theo độ cao của công trình bằng các cơ cấu của cần trục. |
|
| 1.3.3. | Cần trục dịch chuyển được Cần trục đặt trên nền và có khả năng dịch chuyển từ chỗ này sang chỗ khác bằng tay hoặc bằng thiết bị khác |
|
| 1.3.4 | Cần trục hướng tâm Cần trục có khả năng di chuyển vòng quanh một gối trục cố định thẳng đứng trong điều kiện làm việc. |
|
| 1.3.5 | Cần trục di chuyển Cần trục có khả năng tự di chuyển trong điều kiện làm việc. |
|
| 1.3.5.1 | Cần trục tự di chuyển Cần trục di chuyển được trang bị cơ cấu để di chuyển cần trục trong điều kiện làm việc và di chuyển cần trục tới nơi làm việc. |
|
| 1.3.5.2. | Cần trục kéo theo Cần trục di chuyển không được trang bị cơ cấu di chuyển và được kéo theo bằng đầu kéo (máy kéo, xe kéo). |
|
1.4. Phân loại cần trục theo phương pháp dẫn động
| 1.4.1 | Cần trục dẫn động bằng tay Cần trục với các cơ cấu được dẫn động bằng tay. |
|
| 1.4.2 | Cần trục dẫn động điện (cần trục điện) Cần trục với các cơ cấu được dẫn động bằng động cơ điện. |
|
| 1.4.3 | Cần trục thủy lực Cần trục với các cơ cấu được dẫn động bằng động cơ thủy lực. |
|
1.5. Phân loại cần trục theo khả năng quay
| 1.5.1 | Cần trục quay Cần trục có khả năng quay phần quay cùng với tải trọng quanh trục thẳng đứng so với nền tựa của cần trục. |
|
| 1.5.1.1 | Cần trục quay không toàn vòng Cần trục quay (1.5.1) có khả năng quay phần quay với góc quay giữa hai vị trí giới hạn nhỏ hơn 360°. |
|
| 1.5.1.2. | Cần trục quay toàn vòng Cần trục quay (1.5.1) có khả năng quay phần quay với góc quay giữa hai vị trí giới hạn lớn hơn 360°. |
|
| 1.5.2. | Cần trục không quay Cần trục không có khả năng quay tải trọng quanh trục thẳng đứng so với nền tựa của cần trục. |
|
1.6. Phân loại cần trục theo cách lắp đặt
| 1.6.1 | Cần trục đỡ Cần trục kiểu cầu (1.1.1) hoặc cần trục treo (1.6.2) di chuyển trên đường ray đỡ lắp ở trên cao. |
|
| 1.6.2 | Cần trục treo Cần trục kiểu cầu (1.1.1) di chuyển trên đường ray treo lắp ở trên cao. |
|
1.7. Phân loại cần trục theo phương pháp điều khiển
| 1.7.1 | Cần trục điều khiển từ cabin Cần trục có các chuyển động được điều khiển bởi người vận hành bằng các thiết bị điều khiển đặt trong cabin cố định trên cần trục. |
|
| 1.7.2 | Cần trục điều khiển từ dưới nền Cần trục được điều khiển bởi người vận hành từ dưới nền bằng bảng điều khiển treo hoặc bảng điều khiển không dây. |
|
| 1.7.2.1 | Cần trục với bảng điều khiển treo Cần trục được điều khiển từ bảng điều khiển treo, được nối bằng cáp điện với xe con mang tải hoặc với đường cấp điện riêng. |
|
| 1.7.3 | Cần trục điều khiển từ xa Cần trục được điều khiển từ bảng điều khiển đặt cách cần trục một khoảng cách. |
|
| 1.7.3.1 | Cần trục điều khiển từ xa không dây Cần trục được điều khiển bằng các lệnh điều khiển của người vận hành truyền đến cần trục không qua bất kỳ mối liên kết vật lý nào giữa bảng điều khiển và cần trục. |
|
| 1.7.3.1.1 | Cần trục điều khiển bằng sóng radio Cần trục được điều khiển từ xa không dây bằng sóng radio (sóng điện từ có dải tần số radio). |
|
| 1.7.3.1.2 | Cần trục điều khiển bằng tia hồng ngoại Cần trục được điều khiển từ xa không dây bằng tia hồng ngoại. |
|
| 1.7.3.2 | Cần trục điều khiển từ xa bằng dây dẫn Cần trục được điều khiển bằng các lệnh điều khiển của người vận hành truyền đến cần trục nhờ mối liên kết điện, thủy lực hoặc cáp quang giữa bảng điều khiển và cần trục. |
|
2. Thông số
2.1. Thông số tải trọng
| 2.1.1. | Mômen tải trọng M= L.Q Tích số giữa tầm với L và tải trọng nâng tương ứng Q. |
|
| 2.1.2. | Mômen lật do tải trọng MA= A.Q tích số giữa khoảng cách theo phương ngang tính từ tâm tải trọng đến cạnh lật A và tải trọng nâng tương ứng Q. |
|
| 2.1.3 | Khối lượng thiết kế m0 Khối lượng cần trục không kể đến tải dằn (ba lát), đối trọng, nhiên liệu, dầu, mỡ bôi trơn và nước. CHÚ THÍCH: Đối với cần trục tay cần, khối lượng thiết kế được lấy đầy đủ với tay cần chính và đối trọng nhưng không kể đến tải dằn (ba lát), nhiên liệu, dầu, mỡ bôi trơn hoặc nước. |
|
| 2.1.4. | Tổng khối lượng mt0t Khối lượng cần trục kể cả khối lượng tải dằn (ba lát), đối trọng, nhiên liệu, dầu, mỡ bôi trơn và nước được đổ đầy tới mức quy định. |
|
| 2.1.5. | Tải trọng bánh xe P Tải trọng thẳng đứng lớn nhất truyền từ một bánh xe xuống đường ray hoặc nền. |
|
2.2 Thông số hình học
| 2.2.1. | Tầm với L Khoảng cách theo phương ngang tính từ tâm quay của cần trục tới trục thẳng đứng đi qua trọng tâm của thiết bị mang tải, được đo trong điều kiện không tải và khi cần trục được lắp đặt trên mặt phẳng ngang. CHÚ THÍCH 1: Ký hiệu tầm với trong trạng thái không tải - Lo. CHÚ THÍCH 2: Ký hiệu tầm với trong trạng thái có tải - L1. |
|
| 2.2.2. | Tầm với tính từ cạnh lật A Khoảng cách theo phương ngang tính từ cạnh lật đến trục thẳng đứng đi qua trọng tâm của thiết bị mang tải, được đo trong điều kiện không tải và khi cần trục được lắp đặt trên mặt phẳng ngang. |
|
| 2.2.3. | Tầm với của công xôn l Khoảng cách lớn nhất theo phương ngang tính từ tâm gối tựa gần công xôn nhất của cần trục đến trục thẳng đứng đi qua trọng tâm của thiết bị mang tải treo dưới công xôn. |
|
| 2.2.4. | Khoảng cách tiếp cận của thiết bị mang tải C Khoảng cách nhỏ nhất theo phương ngang tính từ tâm ray di chuyển cần trục đến trục thẳng đứng đi qua trọng tâm của thiết bị mang tải. |
|
| 2.2.5. | Bán kính đuôi cần trục r Bán kính lớn nhất của phần quay cần trục ở phía đối diện với cần. |
|
| 2.2.6. | Chiều cao nâng tải H Khoảng cách theo phương thẳng đứng tính từ mặt bằng đặt máy đến vị trí làm việc cao nhất của thiết bị mang tải, đối với móc treo và thiết bị mang tải dạng nĩa - đến bề mặt tựa của chúng, đối với các thiết bị mang tải khác - đến điểm dưới cùng (trong trạng thái đóng). CHÚ THÍCH: Đối với cần trục kiểu cầu, chiều cao nâng được tính từ mặt nền. Chiều cao nâng được xác định khi không tải, cần trục được lắp đặt trên mặt phẳng ngang. |
|
| 2.2.7 | Độ sâu hạ tải h Khoảng cách theo phương thẳng đứng tính từ mặt bằng đặt máy đến vị trí làm việc thấp nhất của thiết bị mang tải, đối với móc treo và thiết bị mang tải dạng nĩa - đến bề mặt tựa của chúng, đối với các thiết bị mang tải khác - đến điểm dưới cùng (trong trạng thái đóng). CHÚ THÍCH: Đối với cần trục kiểu cầu, độ sâu hạ tải được tính từ mặt nền. Độ sâu hạ tải được xác định khi không tải, cần trục được lắp đặt trên mặt phẳng ngang. |
|
| 2.2.8. | Phạm vi nâng/hạ D Khoảng cách theo phương thẳng đứng giữa vị trí làm việc cao nhất và thấp nhất của thiết bị mang tải (D= H + h). CHÚ THÍCH: Xem chiều cao nâng (2.2.6) và độ sâu hạ tải (2.2.7). |
|
| 2.2.9 | Chiều cao đường ray cần trục Ho Khoảng cách theo phương thẳng đứng tính từ mặt nền (sàn) đến mặt đình ray cần trục. |
|
2.3. Tốc độ chuyển động
| 2.3.1 | Tốc độ nâng tải Tốc độ hạ tải vn Tốc độ dịch chuyển tải trọng làm việc theo phương thẳng đứng trong điều kiện chuyển động ổn định. |
|
| 2.3.2. | Tốc độ hạ tải chính xác vm Tốc độ nhỏ nhất để hạ tải trọng làm việc lớn nhất khi lắp ráp hoặc xếp chồng tải trọng trong điều kiện chuyển động ổn định. |
|
| 2.3.3 | Tốc độ quay w Tốc độ quay phần quay của cần trục trong điều kiện chuyển động ổn định. CHÚ THÍCH: Tốc độ quay được xác định khi cần trục được lắp đặt trên mặt phẳng ngang, có tầm với lớn nhất với tải trọng làm việc và tốc độ gió không vượt quá 3m/s ở độ cao 10 m. |
|
| 2.3.4 | Tốc độ di chuyển vk Tốc độ di chuyển cần trục trong điều kiện chuyển động ổn định. CHÚ THÍCH: Tốc độ được xác định khi cần trục di chuyển trên mặt phẳng ngang với tải trọng làm việc và tốc độ gió không vượt quá 3 m/s ở độ cao 10 m. |
|
| 2.3.5 | Tốc độ di chuyển xe con vt Tốc độ di chuyển xe con trong điều kiện chuyển động ổn định. CHÚ THÍCH: Tốc độ được xác định khi xe con di chuyển trên mặt phẳng ngang với tải trọng làm việc lớn nhất và tốc độ gió không vượt quá 3 m/s ở độ cao 10 m. |
|
| 2.3.6 | Tốc độ thay đổi tầm với vr Tốc độ trung bình dịch chuyển tải trọng làm việc theo phương ngang trong điều kiện chuyển động ổn định. CHÚ THÍCH: Tốc độ được xác định khi thay đổi từ giá trị tầm với lớn nhất đến tầm với nhỏ nhất, cần trục được lắp đặt trên mặt phẳng ngang và tốc độ gió không vượt quá 3 m/s ở độ cao 10 m. |
|
| 2.3.7 | Thời gian thay đổi tầm với t Thời gian cần thiết để thay đổi tầm với từ giá trị lớn nhất đến giá trị nhỏ nhất. CHÚ THÍCH: Thời gian thay đổi tầm với được xác định với giá trị tải trọng bằng tải trọng nâng ứng với tầm với lớn nhất, cần trục được lắp đặt trên mặt phẳng ngang và tốc độ gió không vượt quá 3 m/s ở độ cao 10 m. |
|
| 2.3.8 | Tốc độ vận chuyển vmax Tốc độ di chuyển lớn nhất của cần trục trong trạng thái vận chuyển, được dẫn động bằng năng lượng của cần trục. |
|
| 2.3.9 | Thời gian chu kỳ làm việc Thời gian yêu cầu để hoàn thành một chu kỳ làm việc theo quy định. |
|
| 2.3.10. | Tốc độ kiểm tra vs Tốc độ chậm, có giá trị không đổi để khảo sát (kiểm tra) các cáp thép và các bộ phận của cần trục. |
|
2.4. Thông số liên quan đến đường
| 2.4.1. | Mặt bằng đặt máy Bề mặt nằm ngang của nền móng hoặc bề mặt đỉnh ray mà phần không quay của cần trục tựa trên đó. CHÚ THÍCH: Đối với cần trục có các gối tựa trên các bề mặt có độ cao khác nhau thì mặt bằng đặt máy được xác định theo bề mặt của gối tựa thấp hơn. |
|
| 2.4.2 | Khẩu độ S (Cần trục kiểu cầu) khoảng cách theo phương ngang giữa tâm các đường ray di chuyển cần trục. |
|
| 2.4.3 | Khổ đường K (Cần trục kiểu cần) khoảng cách theo phương ngang giữa tâm các đường ray hoặc tâm các bánh xe (xích) di chuyển cần trục. |
|
| 2.4.4 | Khổ đường K (Xe con) khoảng cách giữa tâm các đường ray di chuyển xe con. |
|
| 2.4.5. | Kích thước cơ sở b (Cần trục tự hành hoặc cần trục di chuyển) khoảng cách giữa trục các gối tựa, đo song song với trục dọc của cần trục. |
|
| 2.4.6 | Kích thước cơ sở của chân chống bo Khoảng cách giữa các trục thẳng đứng đi qua tâm các chân chống, đo song song với trục dọc của cần trục. |
|
| 2.4.7 | Khoảng cách giữa các chân chống Ko Khoảng cách giữa các trục thẳng đứng đi qua tâm các chân chống, đo vuông góc với trục dọc của cần trục. |
|
| 2.4.8 | Độ nghiêng i Độ nghiêng cho phép của cần trục trong trạng thái làm việc, được xác định bằng tỷ số i= h/b, tính theo phần trăm, tương ứng với sự chênh lệch độ cao h của hai điểm trên nền đường có khoảng cách theo phương ngang bằng kích thước cơ sở b. CHÚ THÍCH: Đại lượng chênh lệch độ cao được đo khi cần trục không tải trên đoạn nền đường cho trước. |
|
| 2.4.9. | Độ dốc vượt qua được j Độ dốc lớn nhất của nền đường mà cần trục không tải có thể vượt qua với tốc độ vận chuyển không đổi, được xác định bằng tỷ số i= h/b, tính theo phần trăm. |
|
| 2.4.10. | Đường viền gối tựa Đường viền được tạo bởi hình chiếu bằng của các đường thẳng nối các trục thẳng đứng đi qua tâm các bộ phận tựa của cần trục như bánh xe di chuyển hoặc chân chống. |
|
| 2.4.11 | Bán kính đoạn đường vòng rc Bán kính cong nhỏ nhất của đường tâm ray phía trong trên đoạn đường vòng. |
|
| 2.4.12 | Bán kính quay vòng nhỏ nhất rmin Bán kính đường tròn được vẽ bởi bánh xe trước phía ngoài của cần trục khi chuyển hướng di chuyển. |
|
2.5 Thông số chung
| 2.5.1 | Nhóm chế độ làm việc Nhóm cần trục và các cơ cấu của nó có tính đến mức độ chất tải, thời gian và số chu kỳ làm việc. |
|
| 2.5.2. | Đường bao không gian làm việc của cần trục Khoảng không gian xác định điều kiện làm việc an toàn của cần trục gần vật thể (công trình) khác mà vượt ra ngoài giới hạn đó chỉ có thể là thiết bị mang tải trong quá trình vận hành. |
|
3. Khái niệm cơ bản
3.1. Chuyển động
| 3.1.1 | Nâng hạ tải Sự dịch chuyển tải trọng theo phương thẳng đứng. |
|
| 3.1.2 | Hạ tải chính xác Hạ tải với tốc độ nhỏ nhất khi lắp ráp hoặc xếp chồng tải trọng. CHÚ THÍCH: Xem tốc độ hạ tải chính xác (2.3.2). |
|
| 3.1.3. | Nâng [hạ] cần Chuyển động quay của cần quanh chốt chân cần trong mặt phẳng thẳng đứng. |
|
| 3.1.4 | Thay đổi tầm với Dịch chuyển thiết bị mang tải bằng cách nâng, hạ hoặc dịch chuyển cần hoặc bằng cách di chuyển xe con. |
|
| 3.1.4.1 | Dịch chuyển tải trọng theo phương ngang Thay đổi tầm với bằng cách nâng cần, trong đó tải trọng được dịch chuyển tự động theo quỹ đạo gần với đường thẳng nằm ngang. |
|
| 3.1.5 | Di chuyển cần trục Dịch chuyển toàn bộ cần trục trong trạng thái làm việc. |
|
| 3.1.6 | Di chuyển xe con (Hướng) dịch chuyển xe con dọc theo dầm cầu, cáp treo chịu tải, cần hoặc công xôn. |
|
| 3.1.7 | Quay cần trục Chuyển động quay phần quay của cần trục kiểu cầu hoặc cần trong mặt phẳng ngang. |
|
| 3.1.8 | Cần ống lồng Một đoạn hoặc một số đoạn cần/tháp chuyển động từ đoạn cần/tháp cơ sở để thay đổi chiều dài cần hoặc chiều cao thấp. |
|
3.2. Tính ổn định của cần trục
| 3.2.1 | Tính ổn định của cần trục Khả năng của cần trục chống lại mômen lật. |
|
| 3.2.2 | Ổn định khi có tải Khả năng của cần trục chống lại mômen lật do tải trọng nâng Q, lực quán tính, tải trọng gió trong điều kiện làm việc và do các nguyên nhân khác. |
|
| 3.2.3 | Ổn định khi không tải (ổn định bản thân cần trục) Khả năng của cần trục chống lại mômen lật do tải trọng gió trong điều kiện không làm việc và do các nguyên nhân khác. |
|
3.3. Thử tải
| 3.3.1 | Thử tải tĩnh Thử tải cần trục bằng cách đặt tải trọng tĩnh trên thiết bị mang tải, vượt X% so với tải trọng nâng danh nghĩa của cần trục. |
|
| 3.3.2 | Thử tải động Thử tải cần trục bằng cách vận hành các chuyển động của cần trục với tải trọng vượt Y% so với tải trọng nâng danh nghĩa của cần trục. |
|
| 3.3.3 | Thử ổn định Thử cần trục bằng cách đặt tải trọng tĩnh trên thiết bị mang tải, vượt Z% so với tải trọng nâng danh nghĩa của cần trục. |
|
4. Bộ phận
| 4.1 | Cơ cấu nâng Cơ cấu dẫn động để nâng và hạ tải trọng. |
|
| 4.2 | Cơ cấu di chuyển cần trục Cơ cấu dẫn động để di chuyển cần trục. |
|
| 4.3 | Cơ cấu di chuyển xe con hoặc pa lăng Cơ cấu dẫn động để di chuyển xe con hoặc palăng theo phương ngang. |
|
| 4.4 | Cơ cấu nâng/hạ cần Cơ cấu dẫn động để thay đổi tầm với bằng cách thay đổi góc nghiêng của cần và/hoặc cần phụ. |
|
| 4.5 | Cơ cấu quay Cơ cấu dẫn động để quay phần quay của cần trục trong mặt phẳng ngang. |
|
| 4.6. | Tời Cơ cấu truyền lực kéo bằng phần tử mềm (cáp, xích) từ tang dẫn động, ví dụ tời với tang cuốn, tời với tang hoặc puly ma sát. |
|
| 4.7 | Palăng Cơ cấu nâng được lắp cùng hoặc không cùng với bộ phận dẫn động thành một khối. |
|
| 4.8 | Khung di chuyển Khung đỡ cần trục để lắp đặt bàn quay hoặc tháp của cần trục, kể cả cơ cấu dẫn động để di chuyển cần trục |
|
| 4.9 | Cổng (Chân đế) Kết cấu có dầm được nâng cao tựa trên các chân cổng có hoặc không có hệ truyền động di chuyển trên nền đường. |
|
| 4.10 | Hộp (cụm) đỡ bánh xe Kết Cấu đỡ được trang bị các bánh xe hoặc con lăn và được liên kết bằng khớp bản lề để truyền tải đều lên các bánh xe hoặc con lăn. |
|
| 4.11 | Dầm cầu Kết cấu chịu lực chính của cần trục kiểu cầu để di chuyển xe con dọc theo dầm cầu hoặc kết cấu giữa các gối tựa của cổng trục hoặc bán cổng trục. |
|
| 4.12 | Xe con Cụm kết cấu được thiết kế để di chuyển tải trọng treo. |
|
| 4.13 | Vòng tựa quay Cụm chi tiết dùng để truyền tải trọng (mômen tải trọng, lực thẳng đứng và lực nằm ngang) từ phần quay tới phần không quay và có thể lắp (hợp nhất) với vành răng để quay phần quay của cần trục. |
|
| 4.14 | Bàn quay Kết cấu quay của cần trục để bố trí lắp đặt các cơ cấu cần trục. |
|
| 4.15 | Tháp Kết cấu thẳng đứng của cần trục để đỡ cần và/hoặc bàn quay và đảm bảo độ cao cần thiết của chốt chân cần. |
|
| 4.16 | Cột Cột thẳng đứng để đỡ cần quay cùng tải trọng làm việc và đảm bảo chiều cao nâng cần thiết. |
|
| 4.17 | Cần Kết cấu của cần trục để đảm bảo tầm với cần thiết và/hoặc chiều cao nâng của thiết bị mang tải. |
|
| 4.18. | Thiết bị tháp-cần Thiết bị thay thế của cần trục tự hành bao gồm tháp, cần với cần phụ hoặc không có cần phụ và các thiết bị phụ cần thiết. |
|
| 4.19 | Đối trọng Tải trọng được gắn với cần đối trọng hoặc bàn quay để cân bằng với trọng lượng của tải trọng làm việc và/hoặc một phần của cần trục trong thời gian làm việc. |
|
| 4.20. | Tải dằn (ba lát) Tài trọng được gắn với khung di chuyển hoặc cổng (chân đế) để đảm bảo ổn định của cần trục. |
|
| 4.21 | Phanh Thiết bị dùng để giảm tốc độ hoặc dừng và/hoặc giữ cơ cấu cần trục ở trạng thái không chuyển động. |
|
| 4.21.1. | Phanh tang Phanh tác động trực tiếp trên tang của tời. |
|
| 4.21.2 | Phanh má Phanh có tang phanh (bánh phanh) và các má phanh. |
|
| 4.21.3 | Phanh đĩa Phanh có đĩa phanh và các má phanh. |
|
| 4.22 | Phanh ray Phanh tác động trên ray di chuyển cần trục để giữ cho cần trục không bị dịch chuyển dọc theo ray tại vị trí bất kỳ dưới tác dụng của gió trong điều kiện làm việc. |
|
| 4.23 | Thiết bị kẹp ray Thiết bị kẹp chặt trên ray di chuyển cần trục để giữ cho cần trục không bị dịch chuyển dọc theo ray tại vị trí bất kỳ dưới tác dụng của gió trong điều kiện không làm việc. |
|
| 4.24 | Thiết bị neo cần trục Thiết bị định vị cần trục trên đường ray tại bến đỗ cần trục bằng cách neo (khóa) cần trục với nền (móng) đường ray để loại trừ khả năng cần trục bị dịch chuyển dọc theo ray dưới tác dụng của gió bão trong trạng thái không làm việc. |
|
| 4.25 | Puly Chi tiết quay có một hoặc một số rãnh để dẫn hướng và/hoặc đổi hướng cáp (xích) mà không làm thay đổi đáng kể lực căng cáp (xích). |
|
| 4.25.1 | Puly cân bằng (puly cáp) Puly làm cân bằng các nhánh cáp có chiều dài không bằng nhau trong hệ thống palăng cáp. |
|
| 4.26. | Palăng cáp Hệ thống gồm các puly và cáp để thay đổi lực, tốc độ và hướng. |
|
| 4.27. | Cụm móc treo Hệ thống các puly lắp trong khung có thiết bị móc treo. |
|
| 4.28 | Thiết bị mang tải Thiết bị (móc treo, gầu ngoạm, nam châm điện, nĩa, dầm nâng, v.v...) để treo, cặp hoặc đỡ tải trọng. |
|
| 4.29 | Chân chống Thiết bị dùng để tăng đường viền gối tựa của cần trục trong trạng thái làm việc. |
|
| 4.30 | Buồng máy Không gian kín lắp đặt một hoặc một số cơ cấu dẫn động và cho phép người vào trong để kiểm tra và bảo dưỡng. |
|
| 4.31 | Buồng thiết bị điện Không gian kín lắp đặt thiết bị điện và cho phép người vào trong để kiểm tra và bảo dưỡng. |
|
| 4.32 | Đường ray Hệ thống gồm ray, dầm, dàn, các chi tiết định vị và kết cấu đỡ, dùng làm đường di chuyển cần trục. |
|
5. Thiết bị giới hạn và chỉ báo
| 5.1 | Thiết bị giới hạn Thiết bị phải tác động để dừng hoặc giới hạn chuyển động hoặc chức năng của cần trục. CHÚ THÍCH 1: Phần lớn các thiết bị này tác động tự động khi chuyển động tương ứng hoặc chức năng đạt tới giá trị giới hạn của nó. CHÚ THÍCH 2: Thiết bị giới hạn chức năng cần trục (5.1.1), thiết bị giới hạn tải trọng (5.1.2), thiết bị giới hạn chuyển động (5.1.3), giảm chấn (5.1.4) và gối chặn (5.1.5), chúng đều bao gồm các chức năng sau: giới hạn độ xô lệch, giới hạn cuốn cáp, giới hạn nhả cáp, giới hạn tốc độ quay, giới hạn tốc độ nâng/hạ tải, giới hạn tốc độ di chuyển cần trục, giới hạn tốc độ di chuyển xe con và van an toàn (trong hệ thống thủy lực). |
|
| 5.1.1 | Thiết bị giới hạn chức năng cần trục Thiết bị tác động để dừng và/hoặc giới hạn chức năng xác định của cần trục. |
|
| 5.1.2 | Thiết bị giới hạn tải trọng Thiết bị giới hạn tự động ngăn ngừa sự quá tải của cần trục, vượt quá tải trọng nâng danh nghĩa ở một giá trị xác định. |
|
| 5.1.3 | Thiết bị giới hạn chuyển động Thiết bị giới hạn tác động để dừng và/hoặc giới hạn chuyển động xác định của cần trục. VÍ DỤ: Thiết bị giới hạn chiều cao nâng, thiết bị giới hạn độ sâu hạ tải, thiết bị giới hạn chuyển động quay, thiết bị giới hạn di chuyển cần trục, thiết bị giới hạn di chuyển xe con, thiết bị giới hạn góc nghiêng cần. |
|
| 5.1.4 | Giảm chấn Thiết bị dùng để giảm va đập. |
|
| 5.1.5. | Gối chặn Thiết bị dùng để giới hạn chuyển động của cần trục hoặc xe con. |
|
| 5.2 | Thiết bị chỉ báo Thiết bị dùng để cung cấp cho người lái các thông tin nghe được và/hoặc nhìn thấy được để chủ động điều khiển cần trục trong khoảng giới hạn các thông số làm việc của nó. CHÚ THÍCH: Thiết bị chỉ báo các thông số làm việc (5.2.1) và thiết bị chỉ báo tải trọng làm việc (5.2.2), chúng đều bao gồm các chức năng chỉ báo sau; chỉ báo độ xô lệch, chỉ báo độ nghiêng (góc dốc) của cần trục, chỉ báo số vòng quay của tang, chỉ báo độ chùng của cáp và chỉ báo vị trí (chỉ báo tầm với, chỉ báo góc nghiêng cần). |
|
| 5.2.1 | Thiết bị chỉ báo các thông số làm việc Thiết bị dùng để cung cấp cho người lái cần trục các thông tin nghe được (tín hiệu âm thanh) và/hoặc nhìn thấy được về giá trị của các thông số làm việc. |
|
| 5.2.2. | Thiết bị chỉ báo tải trọng làm việc Thiết bị tự động cung cấp các tín hiệu cảnh báo bằng âm thanh và/hoặc ánh sáng (nhìn thấy được). |
|
6. Tải trọng nâng
6.1. Thuật ngữ, định nghĩa và ký hiệu
| 6.1.1 | Tải trọng nâng có ích Tải trọng có khối lượng, mPL, được nâng bởi cần trục và được treo bằng thiết bị mang tải tháo được hoặc, nếu chúng không được sử dụng thì treo tải trực tiếp vào thiết bị mang tải cố định. CHÚ THÍCH: Nếu cần trục được sử dụng để nâng cửa van tại trạm thủy điện hoặc nâng tải từ dưới nước thì tải trọng nâng có ích có thể bao gồm cả lực do lượng nước hút vào hoặc lực bám của nước hút vào. |
|
| 6.1.2 | Thiết bị mang tải tháo được Thiết bị bất kỳ có khối lượng mNA, liên kết tải trọng nâng có ích với cần trục và là bộ phận không thuộc cần trục, cũng không thuộc tải trọng. CHÚ THÍCH: Thiết bị mang tải tháo được phải dễ dàng tháo được từ cần trục và tải trọng nâng có ích. |
|
| 6.1.3 | Tải trọng nâng tinh Tải trọng có khối lượng mNL, được nâng bởi cần trục và được treo vào thiết bị mang tải cố định. CHÚ THÍCH: Khối lượng mNL bằng tổng khối lượng tải trọng nâng có ích mPL và khối lượng thiết bị mang tải tháo được mNA: mNL = mPL + mNA |
|
| 6.1.4. | Thiết bị mang tải cố định Thiết bị bất kỳ có khối lượng mFA, để treo tải trọng nâng tinh và được cố định thường xuyên vào đầu dưới của phương tiện nâng. CHÚ THÍCH: Thiết bị mang tải cố định là một bộ phận của cần trục. |
|
| 6.1.5 | Tải trọng trên phương tiện nâng (trên cáp) Tải trọng có khối lượng mHL, được nâng bởi cần trục và được treo vào đầu dưới của phương tiện nâng. CHÚ THÍCH: Khối lượng mHL bằng tổng khối lượng tải trọng nâng có ích mPL, khối lượng thiết bị mang tải tháo được mNA và khối lượng thiết bị mang tải cố định mFA: mHL = mPL + mNA + mFA |
|
| 6.1.6 | Phương tiện nâng Cáp, xích hoặc thiết bị bất kỳ có khối lượng mHM, được treo vào cần trục, ví dụ, từ xe con hoặc đầu cần, được dẫn động bằng tời..., được dùng để nâng và hạ tải trọng treo ở đầu dưới của phương tiện nâng. CHÚ THÍCH: Phương tiện nâng là một bộ phận của cần trục. |
|
| 6.1.7 | Tải trọng nâng thô (tổng tải trọng nâng) Tải trọng có khối lượng mGL, được treo trực tiếp vào cần trục, ví dụ vào xe con hoặc đầu cần: mGL = mPL + mNA + mFA + mHM |
|
| 6.1.8 | Tải trọng nâng danh nghĩa Tải trọng nâng tinh lớn nhất hoặc, đối với cần trục tự hành (1.1.3.3), tải trọng trên phương tiện nâng (6.1.5), được dùng để thiết kế cần trục với dạng kết cấu và vị trí tải trọng cho trước trong điều kiện làm việc bình thường. |
|
| 6.1.9 | Tải trọng nâng lớn nhất Giá trị lớn nhất của tải trọng nâng danh nghĩa. |
|
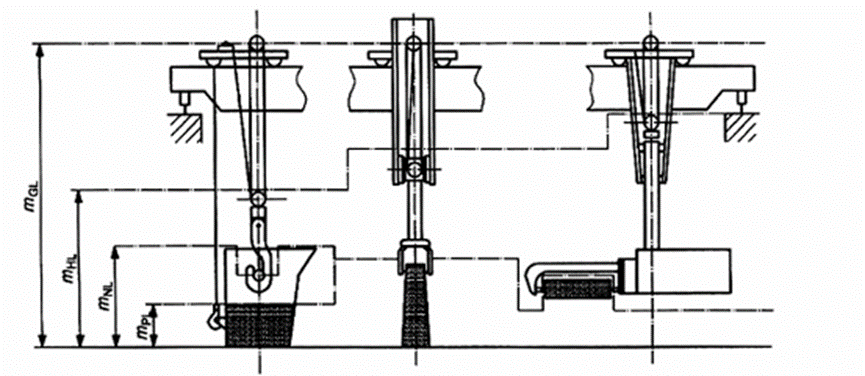
| 6.2 | Ví dụ sử dụng thuật ngữ Ví dụ về sử dụng thuật ngữ có liên quan đến tải trọng trên cần trục cho trong Hình 1 đến Hình 4 và Bảng 1 đến Bảng 4. |
|

Hình 1 - (Xem Bảng 1)
Bảng 1
| Tải trọng nâng thô (tổng tải trọng nâng) | Phương tiện nâng | mHM | Cáp nâng được treo từ đầu cần | Cáp nâng được treo từ xe con | |||||
| Tải trọng trên phương tiện nâng | Thiết bị mang tải cố định | mFA | Cụm móc treo | Cụm móc treo | Cụm dưới | Cụm dưới | Cụm dưới | ||
| Tải trọng nâng tinh | Thiết bị mang tải tháo được | mNA | Thùng và xích | Lưới | Cáp treo tải | Nam châm điện và xích | Gầu ngoạm | ||
| Tải trọng nâng có ích | mPL | Vật liệu chứa trong thùng | Vật liệu chứa trong lưới | Hộp chứa và vật liệu | Kim loại vụn | Vật liệu chứa trong gầu | |||
| mGL | mHL | mNL |
| ||||||

Hình 2 - (Xem bảng 2)
Bảng 2
| Tải trọng nâng thô (tổng tải trọng nâng) | Phương tiện nâng | mHM | Cáp nâng được treo từ xe con | Cáp nâng được treo từ đầu cần | |||||
| Tải trọng trên phương tiện nâng | Thiết bị mang tải cố định | mFA | Cụm dưới | Thiết bị cặp và puly a | Gầu ngoạm a | - | - | ||
| Tải trọng nâng tinh | Thiết bị mang tải tháo được | mNA | Thiết bị cặp | - | - | Gầu ngoạm b | Móc treo, dầm nâng và dây treo b | ||
| Tải trọng nâng có ích | mPL | Đá đã gia công | Đá đã gia công | Vật liệu chứa trong gầu | Vật liệu chứa trong gầu | Hộp chứa và vật liệu | |||
| mGL | mHL | mNL |
| ||||||
| a Các thiết bị này cố định thường xuyên vào cáp b Các thiết bị này cố định không thường xuyên vào cáp: liên kết giữa chúng dễ dàng tháo được. | |||||||||

Hình 3 - (Xem bảng 3)
Bảng 3
| Tải trọng nâng thô (tổng tải trọng nâng) | Phương tiện nâng | mHM | Cáp nâng chính và cáp nâng phụ | Cáp nâng | Cáp nâng | ||
| Tải trọng trên phương tiện nâng | Thiết bị mang tải cố định | mFA | Cụm dưới và móc treo | Thiết bị cặp | Thiết bị cặp | ||
| Tải trọng nâng tinh | Thiết bị mang tải tháo được | mNA | Gầu | - | - | ||
| Tải trọng nâng có ích | mPL | Vật liệu chứa trong gầu | Thỏi đúc | Thỏi đúc | |||
| mGL | mHL | mNL |
| ||||

Hình 4 - (Xem Bảng 4)
Bảng 4
| Tải trọng nâng thô (tổng tải trọng nâng) | Phương tiện nâng | mHM | - | Cáp nâng | Cáp nâng | ||
| Tải trọng trên phương tiện nâng | Thiết bị mang tải cố định | mFA | Thiết bị quay (lái) và gầu | Nĩa và xe con thẳng đứng | Cụm đầu | ||
| Tải trọng nâng tinh | Thiết bị mang tải tháo được | mNA | - | - | Khung treo với các chốt khóa | ||
| Tải trọng nâng có ích | mPL | Vật liệu chứa trong gầu | Giá kê và hộp chứa | Công ten nơ | |||
| mGL | mHL | mNL |
|
|
|
|
|
7. Sử dụng
| 7.1. | Người vận hành cần trục Người được phép điều khiển cần trục |
|
Bạn chưa Đăng nhập thành viên.
Đây là tiện ích dành cho tài khoản thành viên. Vui lòng Đăng nhập để xem chi tiết. Nếu chưa có tài khoản, vui lòng Đăng ký tại đây!








































































































